Скачать Серия 1.232-3 Выпуск 11. Указания по применению панелей с утеплением из минераловатных плитДата актуализации: 01.01.2021
|
| Обозначение: | Серия 1.232-3 |
| Обозначение англ: | Series 1.232-3 |
| Статус: | не действует |
| Название рус.: | Выпуск 11. Указания по применению панелей с утеплением из минераловатных плит |
| Дата добавления в базу: | 01.09.2013 |
| Дата актуализации: | 01.01.2021 |
| Дата введения: | 01.06.1985 |
| Дата окончания срока действия: | 01.05.1999 |
| Область применения: | Асбестоцементные панели предназначены для применения при проектировании и строительстве общественных зданий (предприятий торговли, общественного питания, бытового обслуживания, школ), а также административно-бытовых зданий, гостиниц и других зданий |
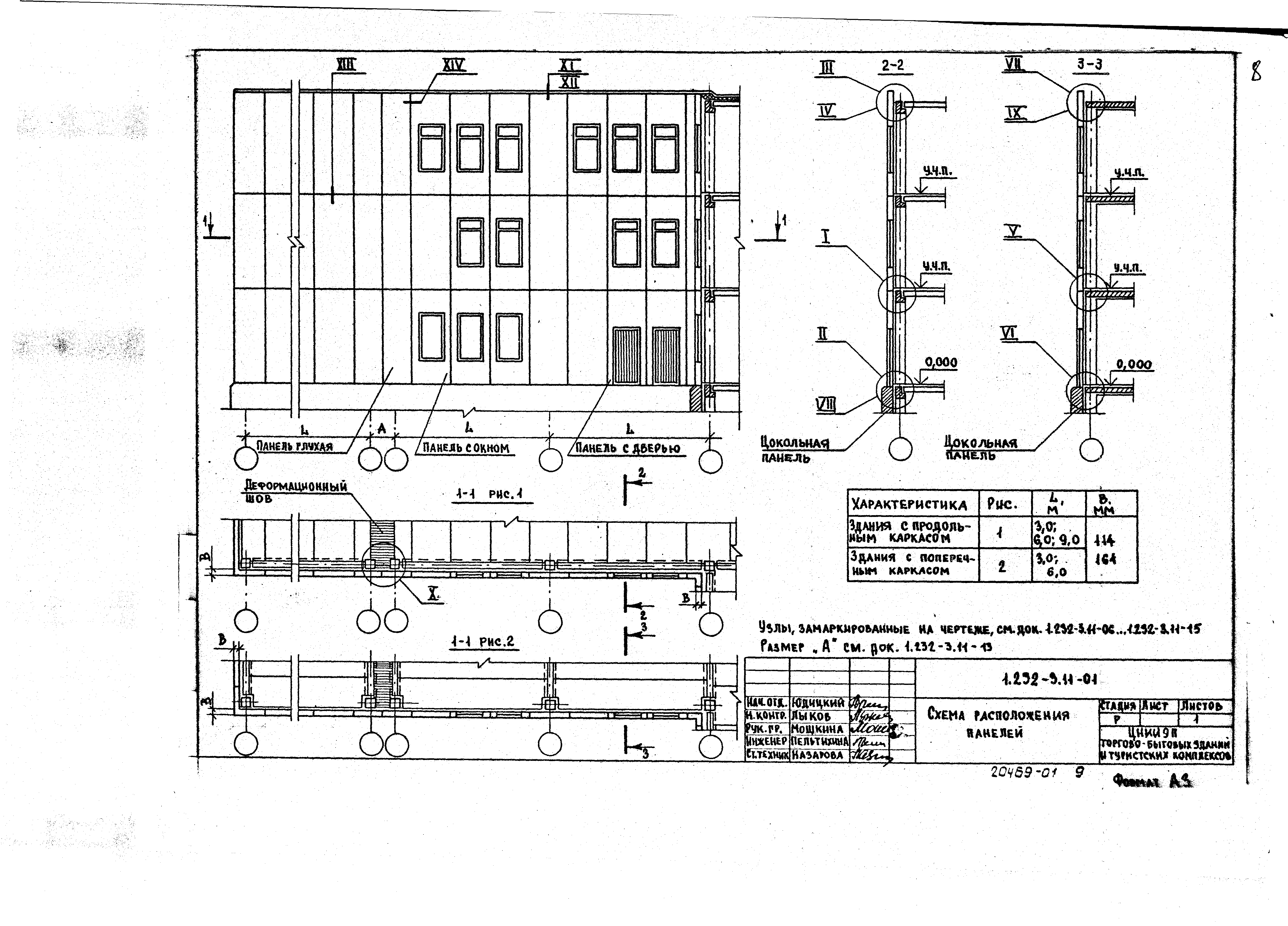
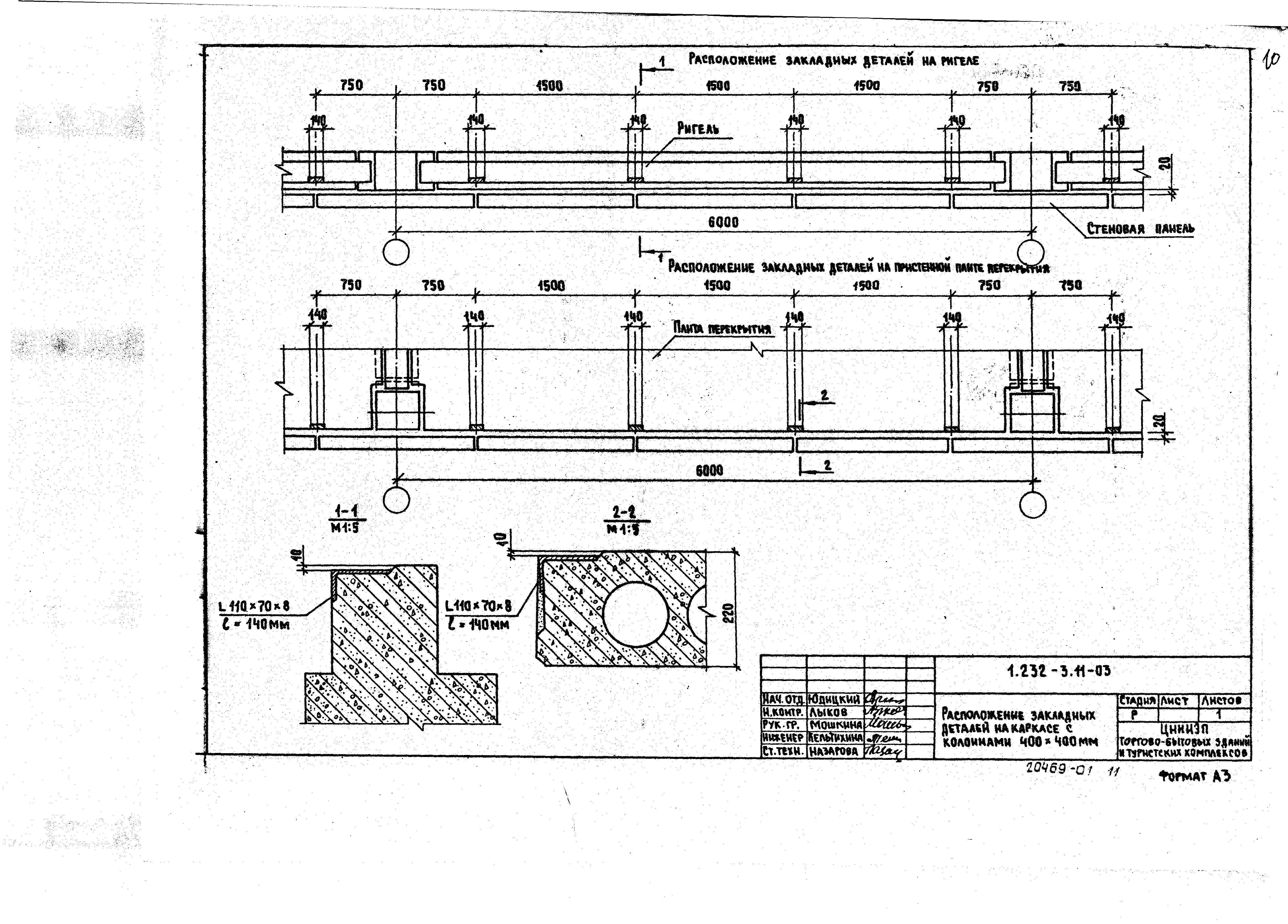
| Оглавление: | 1.232-3.11-00 ПЗ Пояснительная записка 1.232-3.11-01 Схема расположения панелей 1.232-3.11-02 Расположение закладных деталей на каркасе с колоннами 300 х 300 1.232-3.11-03 Расположение закладных деталей на каркасе с колоннами 400 х 400 1.232-3.11-04 Расположение закладных деталей. Наружный и внутренний угол 1.232-3.11-05 Варианты компановки наружных панелей 1.232-3.11-06 Узел I 1.232-3.11-07 Узел II,III 1.232-3.11-08 Узел IV 1.232-3.11-09 Узел V 1.232-3.11-10 Узел VI, VII 1.232-3.11-11 Узел VIII 1.232-3.11-12 Узел IX 1.232-3.11-13 Устройство температурного шва Узел X 1.232-3.11-14 Узел XI, XII 1.232-3.11-15 Узел XIII, XIV 1.232-3.11-16 Спецификация на монтажные узлы |
| Разработан: | ЦНИИЭП торгово-бытовых зданий и туристских комплексов |
| Утверждён: | 09.04.1985 Государственный комитет по гражданскому строительству (100) |
| Нормативные ссылки: |
|


























