Скачать Серия 1.232-3 Выпуск 12. Панели толщиной 114 и 164 мм на деревянном каркасе с утеплителем из минераловатных плит. Рабочие чертежиДата актуализации: 01.01.2021
|
| Обозначение: | Серия 1.232-3 |
| Обозначение англ: | Series 1.232-3 |
| Статус: | не действует |
| Название рус.: | Выпуск 12. Панели толщиной 114 и 164 мм на деревянном каркасе с утеплителем из минераловатных плит. Рабочие чертежи |
| Дата добавления в базу: | 01.09.2013 |
| Дата актуализации: | 01.01.2021 |
| Дата введения: | 01.06.1985 |
| Дата окончания срока действия: | 01.05.1999 |
| Область применения: | Выпуск 12 содержит рабочие чертежи асбестоцементных навесных стеновых панелей, предназначенных для применения при проектировании и строительстве общественных зданий |
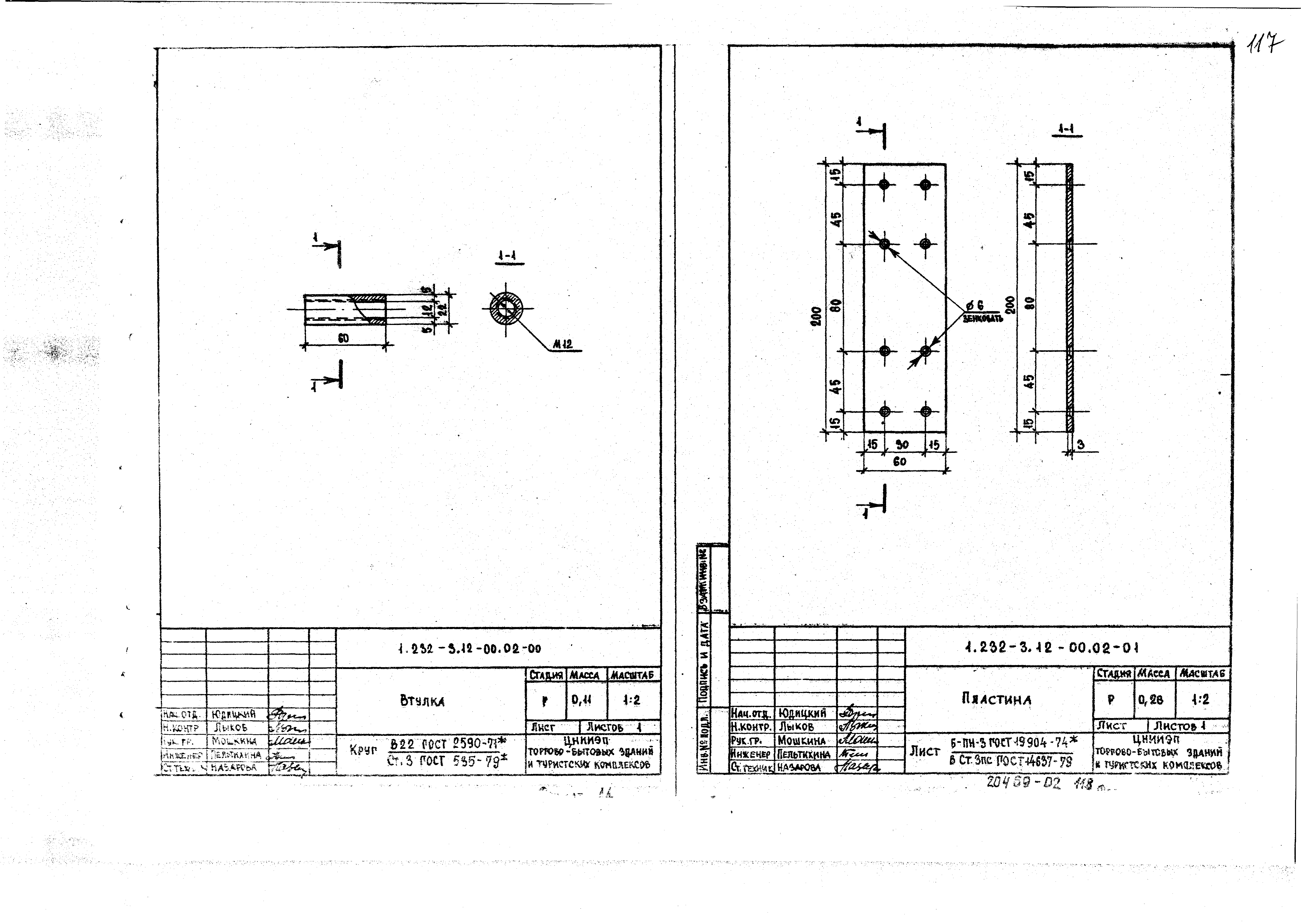
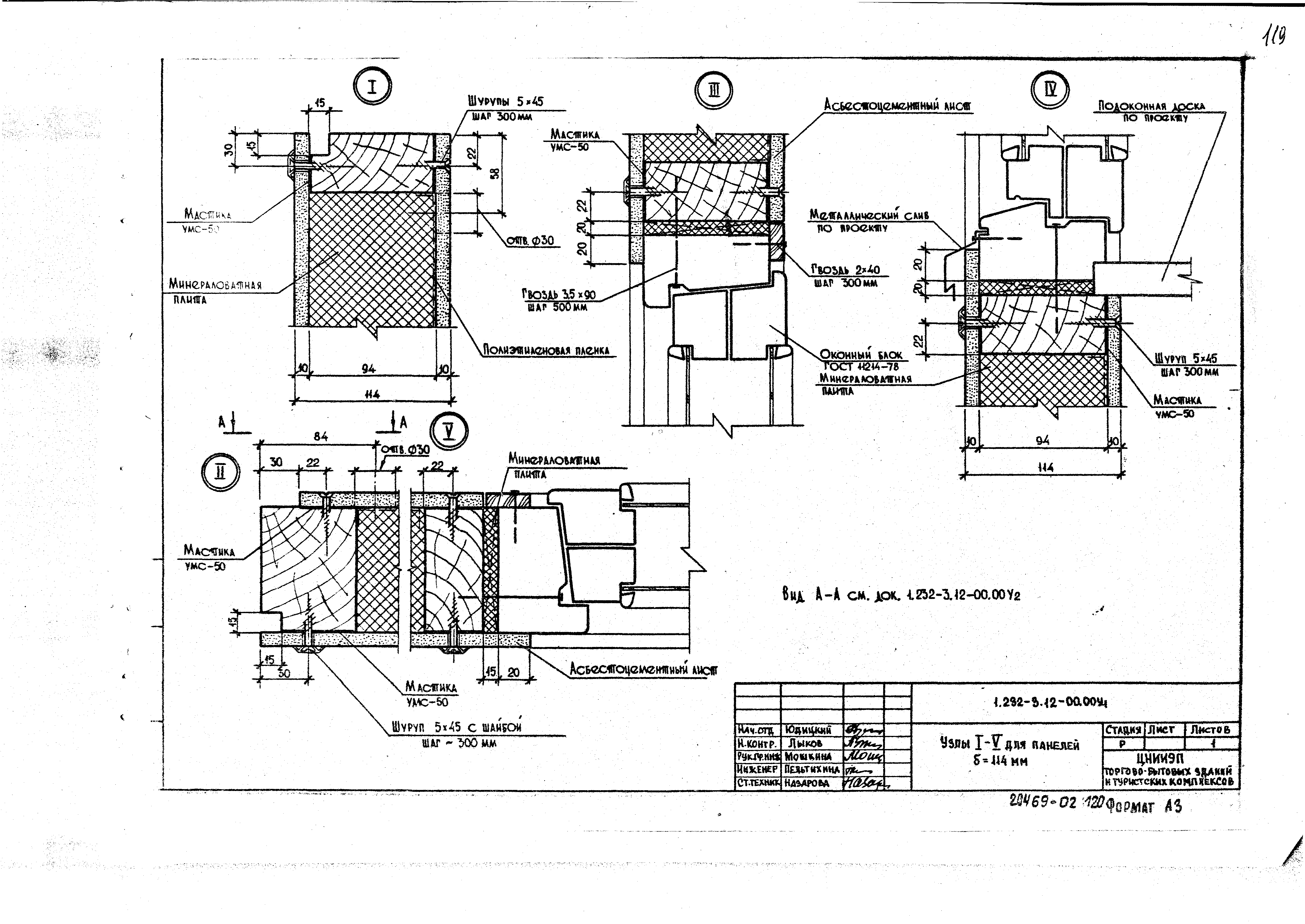
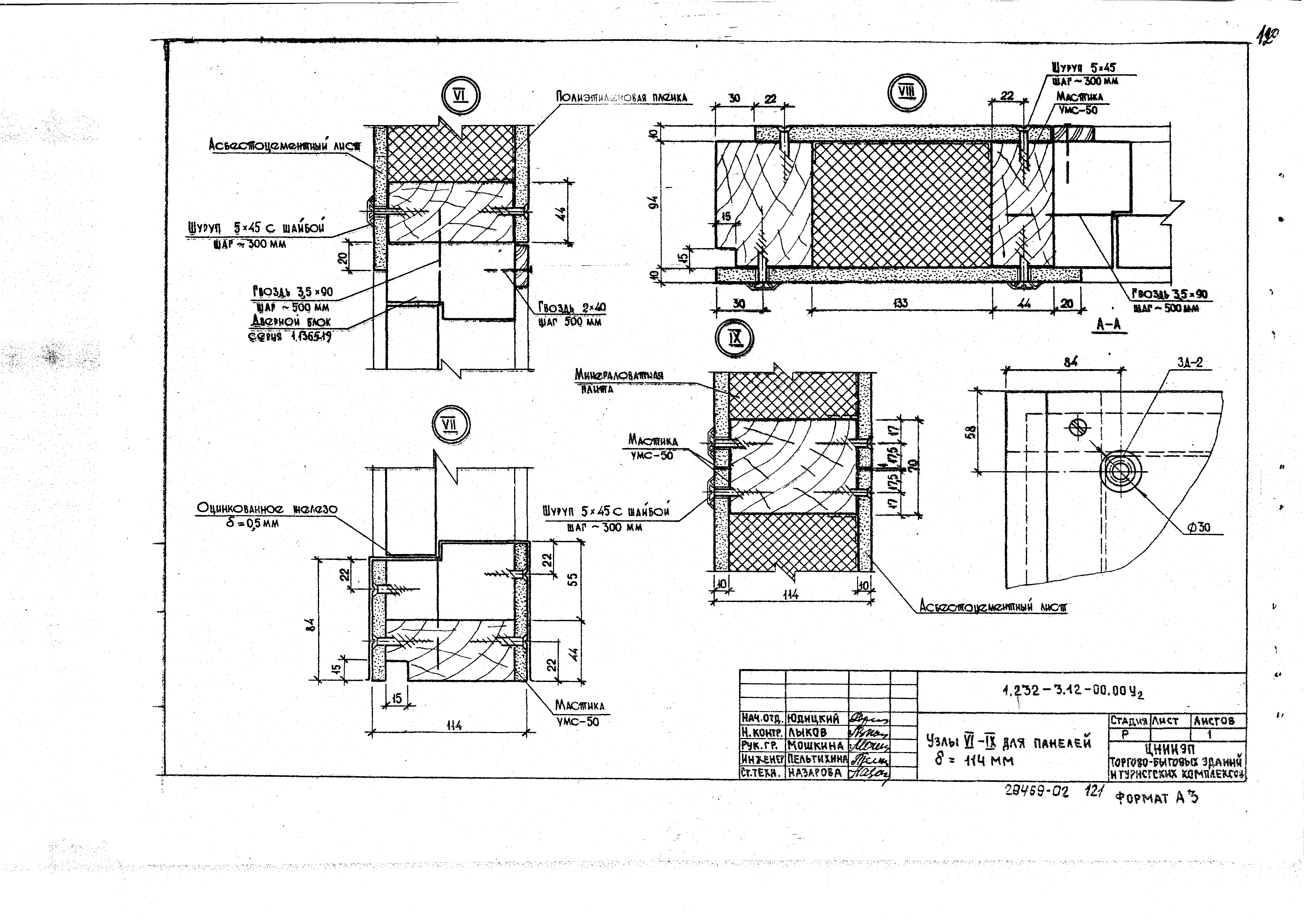
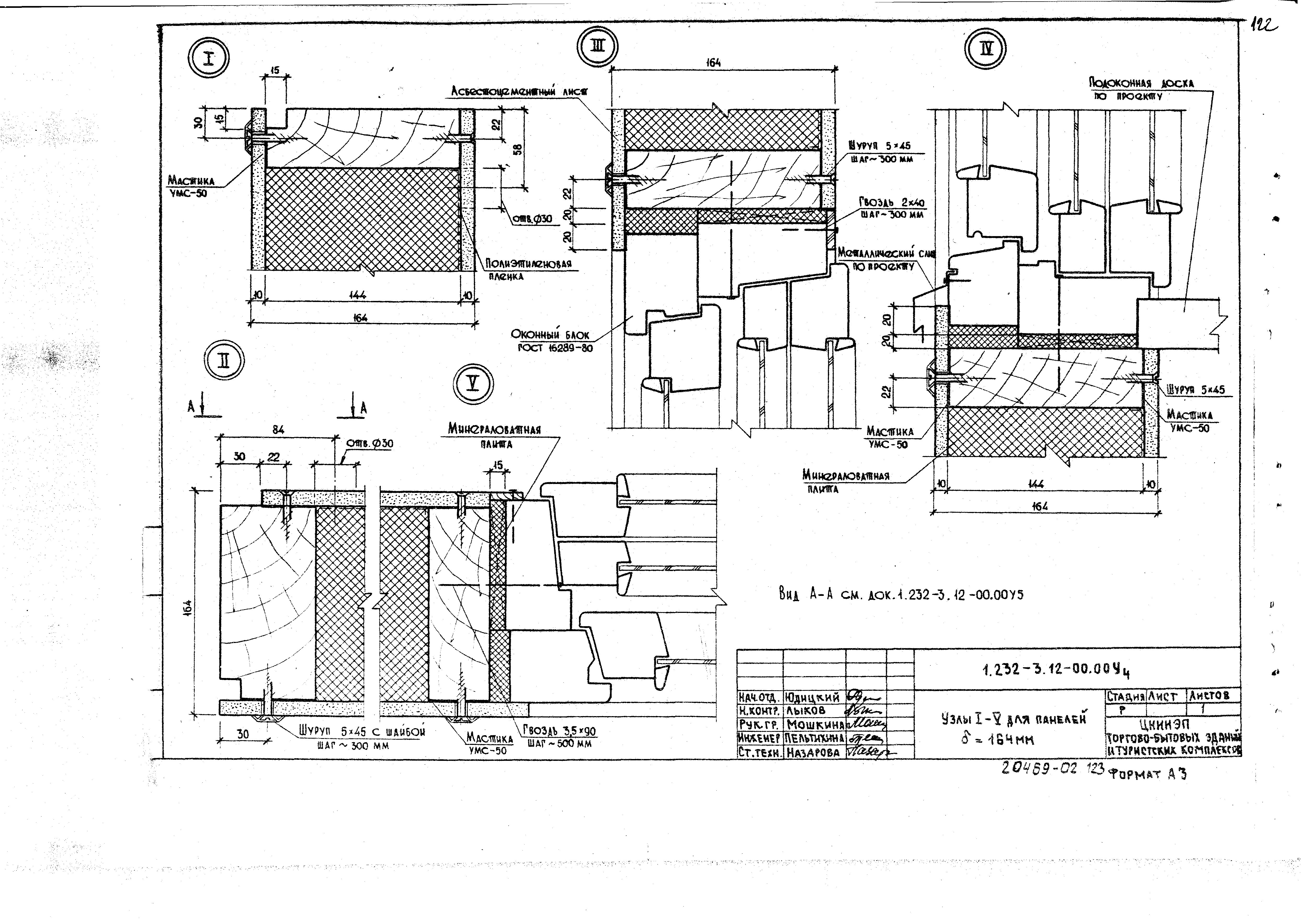
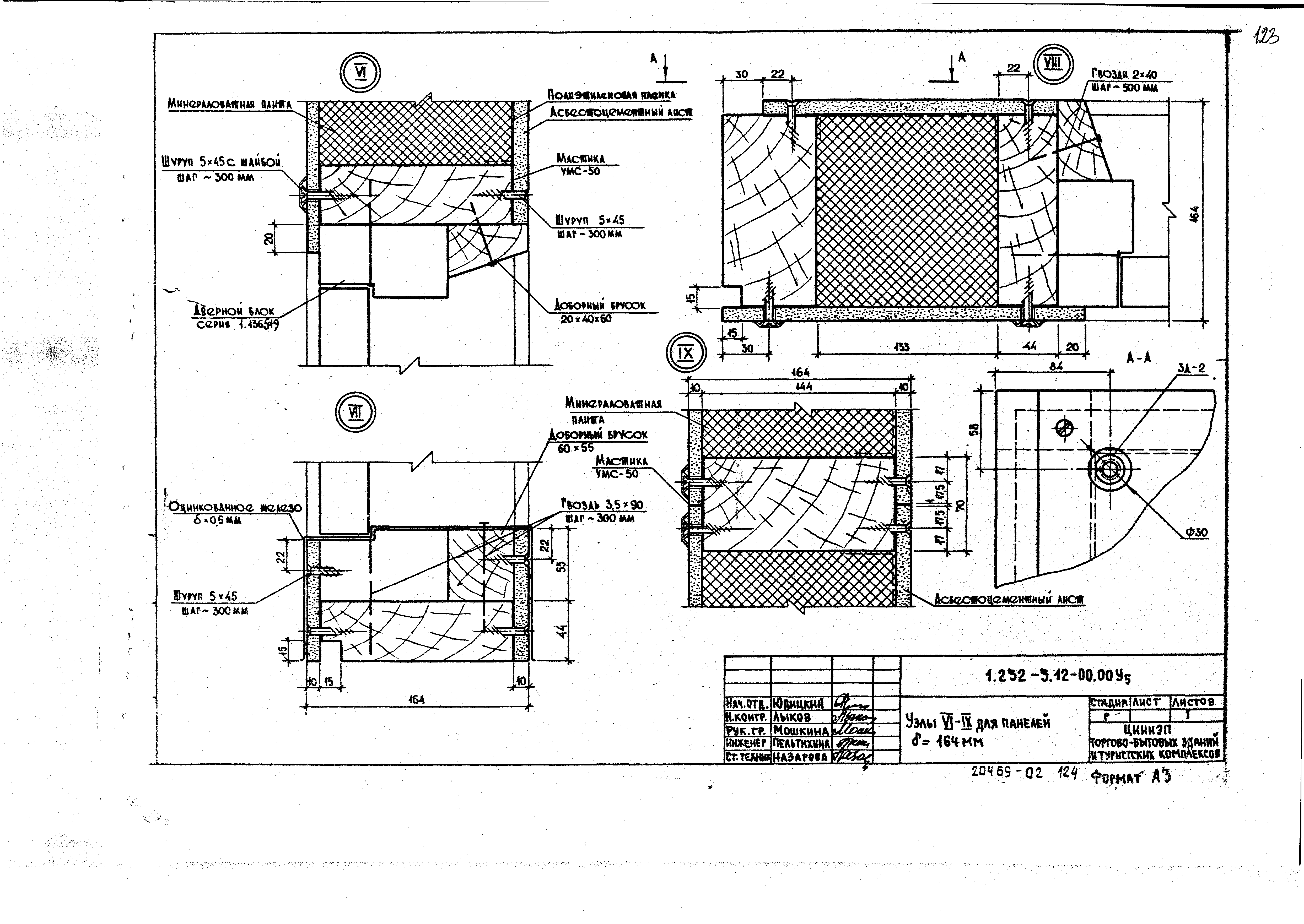
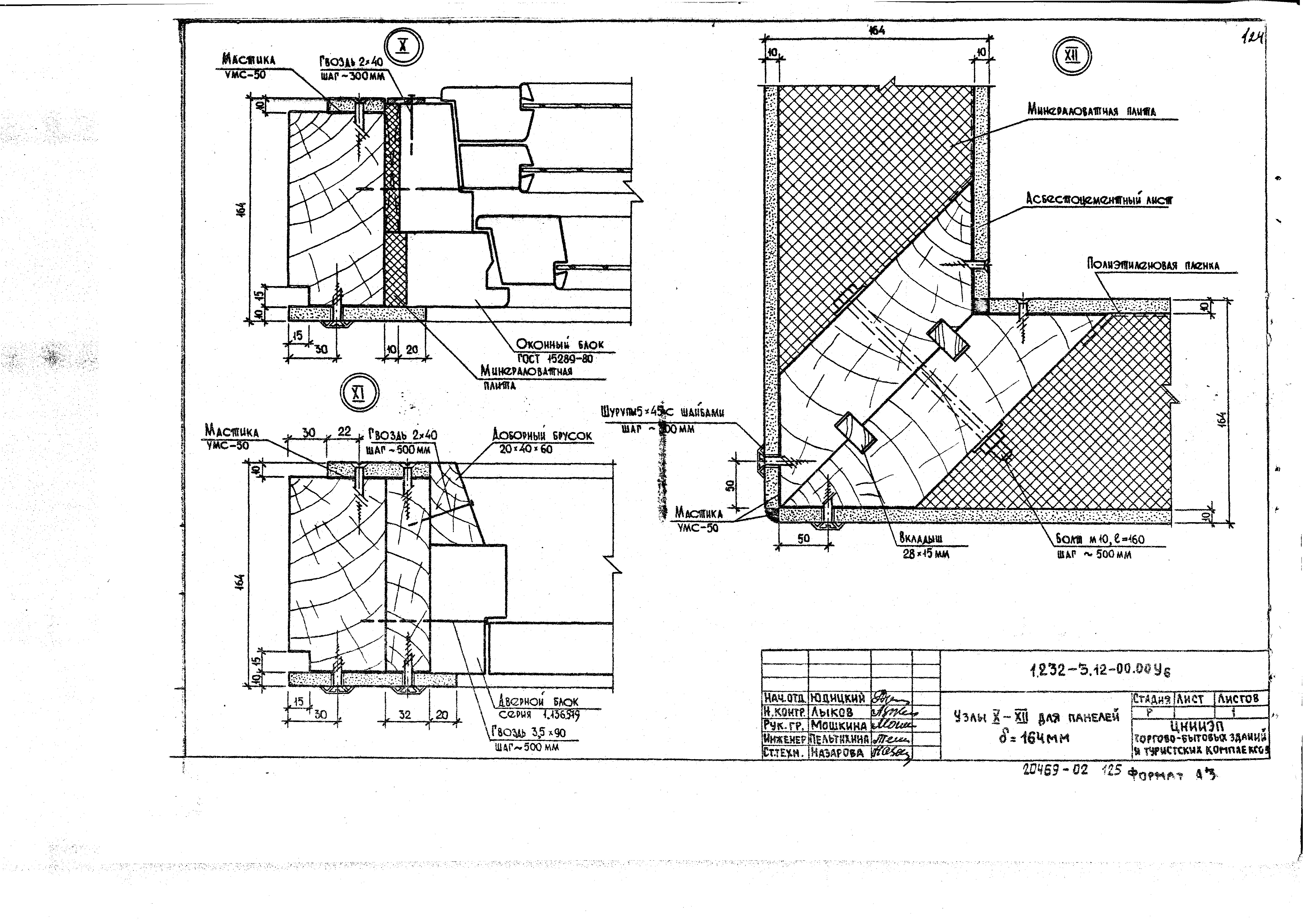
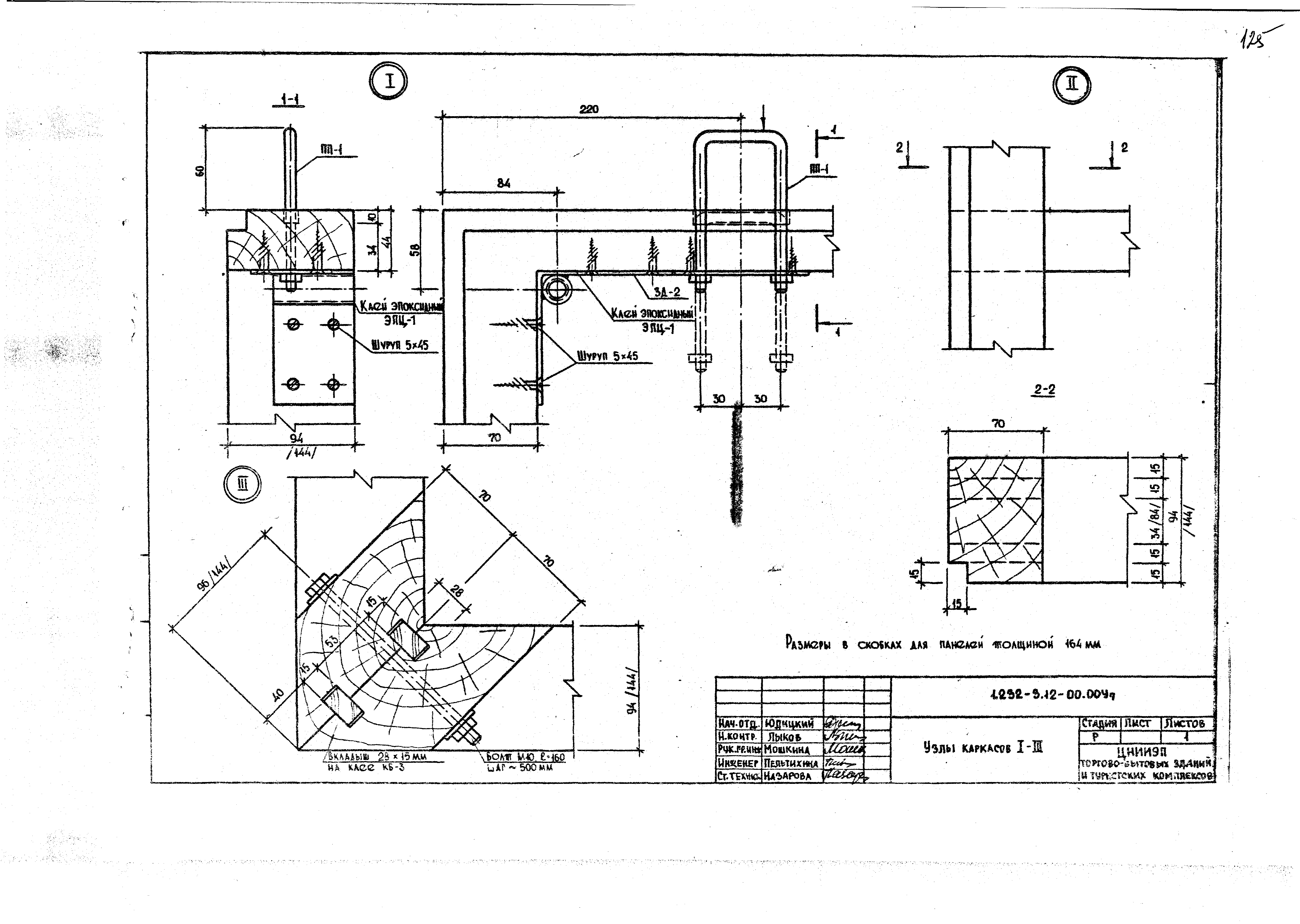
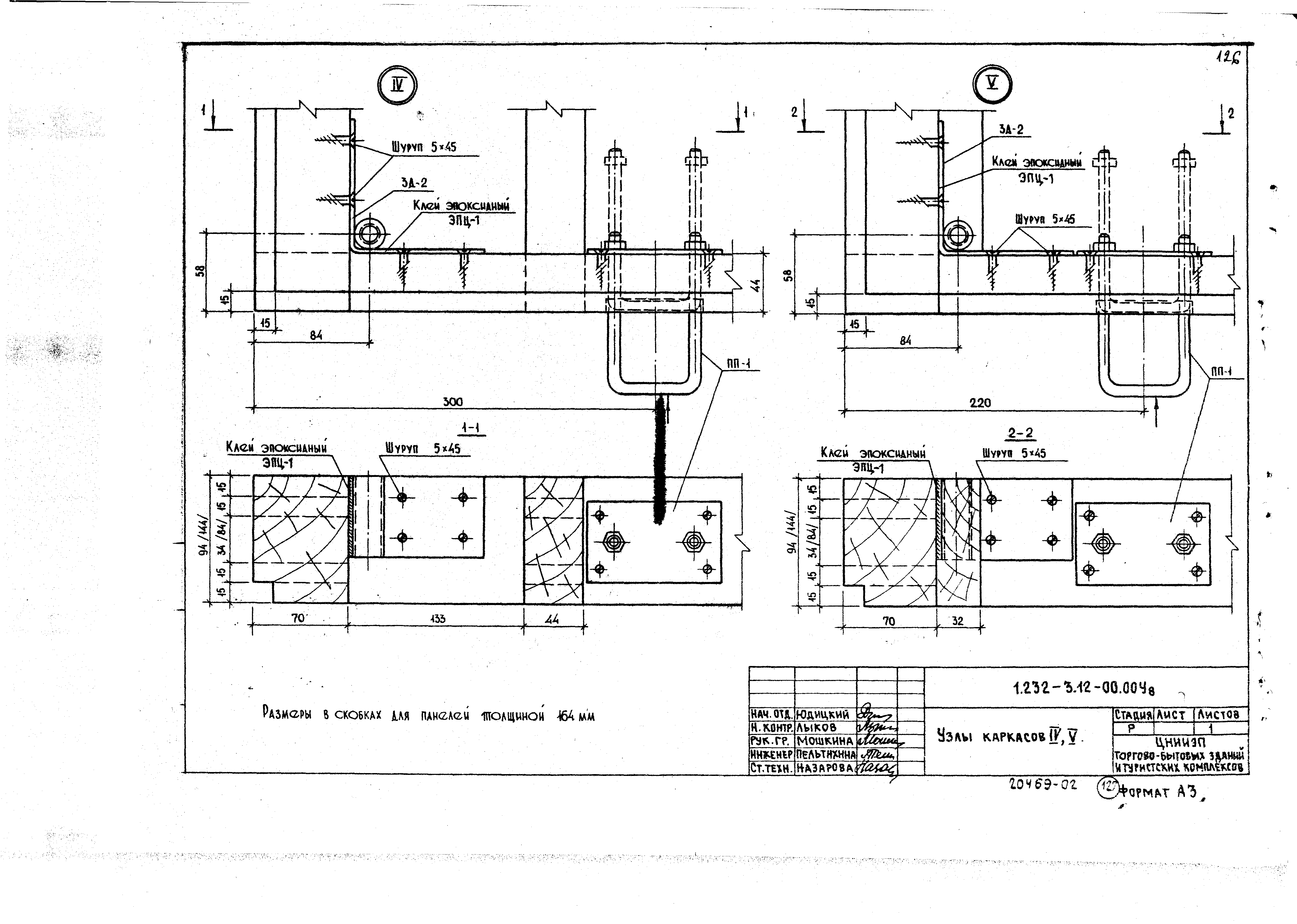
| Оглавление: | 1.232-3.12-00.00 ТО Техническое описание 1.232-3.12-01.00 Панель глухая ПР1-15.28.12… ПП1-11.39.12 1.232-3.12-01.00 СБ Панель глухая ПР1-15.28.12… ПП1-11.39.12. Сборочный чертеж 1.232-3.12-01.10 Панель глухая. Каркас КД-1… КД-12 1.232-3.12-01.10 СБ Панель глухая. Каркас КД-1… КД-12. Сборочный чертеж 1.232-3.12-02.00 Панель с окном ПР2-15.28.12-1… ПП2-15.39.12-8 1.232-3.12-02.00 СБ Панель с окном ПР1-15.28.12-1… ПП1-15.39.12-8. Сборочный чертеж 1.232-3.12-02.10 Панель с окном. Каркас КД-13… КД-36 1.232-3.12-02.10 СБ Панель с окном. Каркас КД-13… КД-36. Сборочный чертеж 1.232-3.12-03.00 Панель с дверью ПР3-15.28.12-1… ПР3-15.42.12-2 1.232-3.12-03.00 СБ Панель с дверью ПР1-15.28.12-1… ПР3-15.42.12-2. Сборочный чертеж 1.232-3.12-03.10 Панель с дверью. Каркас КД-37… КД-44 1.232-3.12-03.10 СБ Панель с дверью. Каркас КД-37… КД-44. Сборочный чертеж 1.232-3.12-04.00 Панель угловая для наружных углов ПУ3-10.28.12-н… ПУп-11.6.12-н 1.232-3.12-04.00 СБ Панель угловая для наружных углов ПУ3-10.28.12-н… ПУп-11.6.12-н. Сборочный чертеж 1.232-3.12-04.10 Панель угловая для наружных углов. Каркас КД-45… КД-56 1.232-3.12-04.10 СБ Панель угловая для наружных углов. Каркас КД-45… КД-56. Сборочный чертеж 1.232-3.12-05.00 Панель угловая для внутренних углов ПУ3-5.28.12-В… ПУП-6.6.12-В 1.232-3.12-05.00 СБ Панель угловая для внутренних углов ПУ3-5.28.12-В… ПУП-6.6.12-В. Сборочный чертеж 1.232-3.12-05.10 Панель угловая для внутренних углов. Каркас КД-57… КД-68 1.232-3.12-05.10 СБ Панель угловая для внутренних углов. Каркас КД-57… КД-68. Сборочный чертеж 1.232-3.12-06.00 Панель глухая ПР1-15.28.17… ПП1-11.39.17 1.232-3.12-06.00 СБ Панель глухая ПР1-15.28.17… ПП1-11.39.17. Сборочный чертеж 1.232-3.12-06.10 Панель глухая. Каркас КД-69… КД-80 1.232-3.12-06.10 СБ Панель глухая. Каркас КД-69… КД-80. Сборочный чертеж 1.232-3.12-07.00 Панель с окном ПР2-15.28.17-1… ПП2-15.39.17-8 1.232-3.12-07.00 СБ Панель с окном ПР2-15.28.17-1… ПП2-15.39.17-8. Сборочный чертеж 1.232-3.12-07.10 Панель с окном. Каркас КД-81… КД-104 1.232-3.12-07.10 СБ Панель с окном. Каркас КД-81… КД-104. Сборочный чертеж 1.232-3.12-08.00 Панель с дверью ПР3-15.28.17-1… ПР3-15.42.17-2 1.232-3.12-08.00 СБ Панель с дверью ПР1-15.28.17-1… ПР3-11.42.17-2. Сборочный чертеж 1.232-3.12-08.10 Панель с дверью. Каркас КД-105… КД-112 1.232-3.12-08.10 СБ Панель с дверью. Каркас КД-105… КД-112. Сборочный чертеж 1.232-3.12-09.00 Панель угловая для наружных углов ПУ3-11.28.17-н… ПУп-12.6.17-н 1.232-3.12-09.00 СБ Панель угловая для наружных углов ПУ3-11.28.17-н… ПУп-12.6.17-н. Сборочный чертеж 1.232-3.12-09.10 Панель угловая для наружных углов. Каркас КД-113… КД-124 1.232-3.12-09.10 СБ Панель угловая для наружных углов. Каркас КД-113… КД-124. Сборочный чертеж 1.232-3.12-10.00 Панель угловая для внутренних углов ПУ-5.28.17-В… ПУП-6.6.17-В 1.232-3.12-10.00 СБ Панель угловая для внутренних углов ПУ-5.28.17-В… ПУП-6.6.17-В. Сборочный чертеж 1.232-3.12-10.10 Панель угловая для внутренних углов. Каркас КД-125… КД-136 1.232-3.12-10.10 СБ Панель угловая для внутренних углов. Каркас КД-125… КД-136. Сборочный чертеж 1.232-3.12-00.01 Подъемная петля ПП-1 1.232-3.12-00.01 СБ Подъемная петля ПП-1. Сборочный чертеж 1.232-3.12-00.01-00 Хомут 1.232-3.12-00.01-01 Пластина 1.232-3.12-00.02 Закладная деталь ЗД-1 1.232-3.12-00.02 СБ Закладная деталь ЗД-1. Сборочный чертеж 1.232-3.12-00.02-00 Втулка 1.232-3.12-00.02-01 Пластина 1.232-3.12-00.03 СБ Закладная деталь ЗД-2. Сборочный чертеж 1.232-3.12-00.03-00 Уголок 1.232-3.12-00.00 У1 Узлы I - V для панелей б = 144 мм 1.232-3.12-00.00 У2 Узлы VI - IX для панелей б = 144 мм 1.232-3.12-00.00 У3 Узлы X - XII для панелей б = 144 мм 1.232-3.12-00.00 У4 Узлы I - V для панелей б = 144 мм 1.232-3.12-00.00 У5 Узлы VI - IX для панелей б = 144 мм 1.232-3.12-00.00 У6 Узлы X - XII для панелей б = 144 мм 1.232-3.12-00.00 У7 Узлы каркасов I - III 1.232-3.12-00.00 У8 Узлы каркасов IV, V |
| Разработан: | ЦНИИЭП торгово-бытовых зданий и туристских комплексов |
| Утверждён: | 09.04.1985 Государственный комитет по гражданскому строительству (100) |
| Нормативные ссылки: |
|



























































































































