Скачать Серия 1.232.5-9 Выпуск 2. Изделия соединительные стальные. Рабочие чертежиДата актуализации: 01.01.2021
|
| Обозначение: | Серия 1.232.5-9 |
| Обозначение англ: | Series 1.232.5-9 |
| Статус: | не действует |
| Название рус.: | Выпуск 2. Изделия соединительные стальные. Рабочие чертежи |
| Дата добавления в базу: | 01.09.2013 |
| Дата актуализации: | 01.01.2021 |
| Дата введения: | 01.02.1987 |
| Дата окончания срока действия: | 01.05.1999 |
| Область применения: | Настоящий выпуск содержит рабочие чертежи стальных соединительных элементов, предназначенных для выполнения сопряжений стеновых панелей с элементами несущего каркаса |
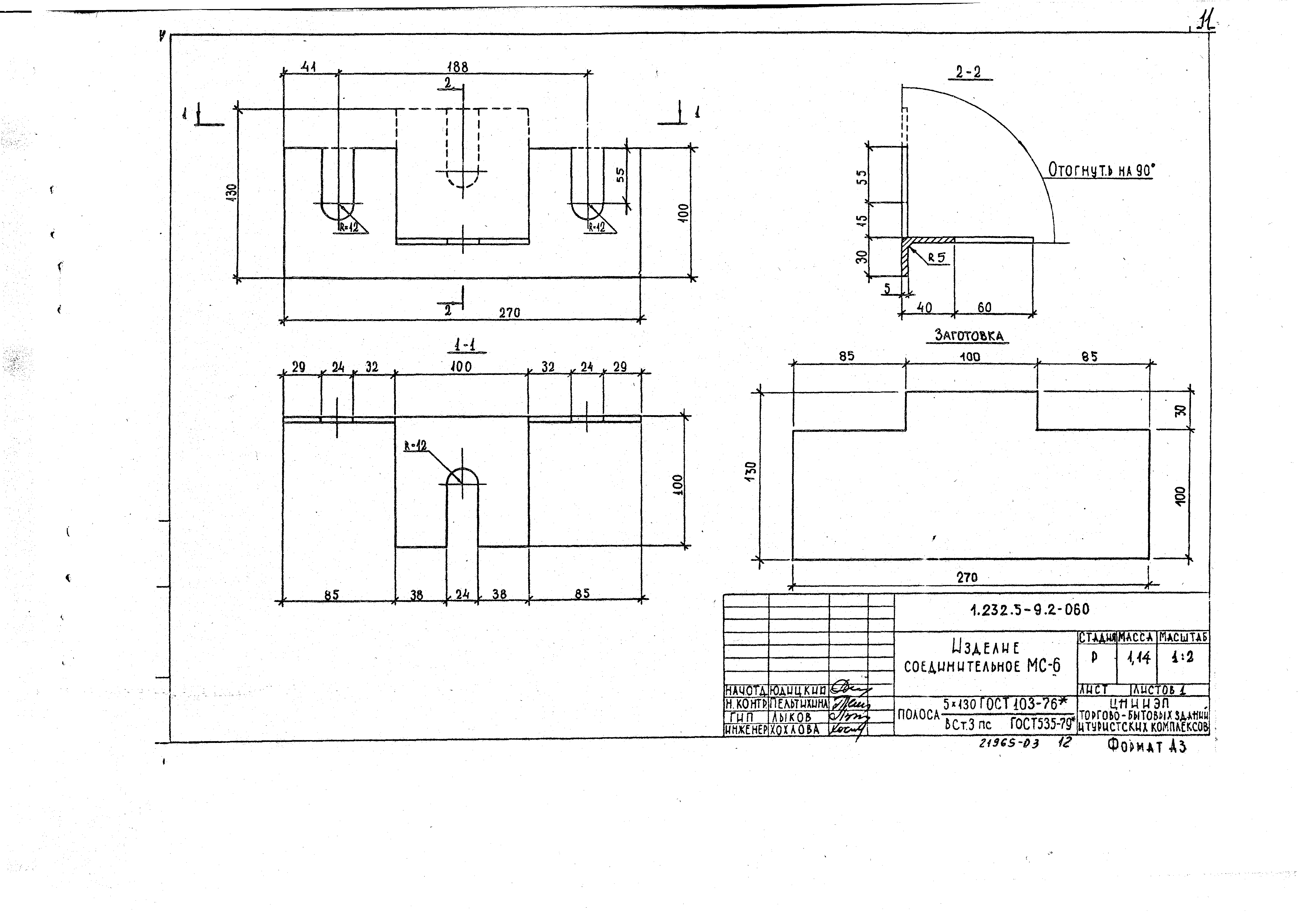
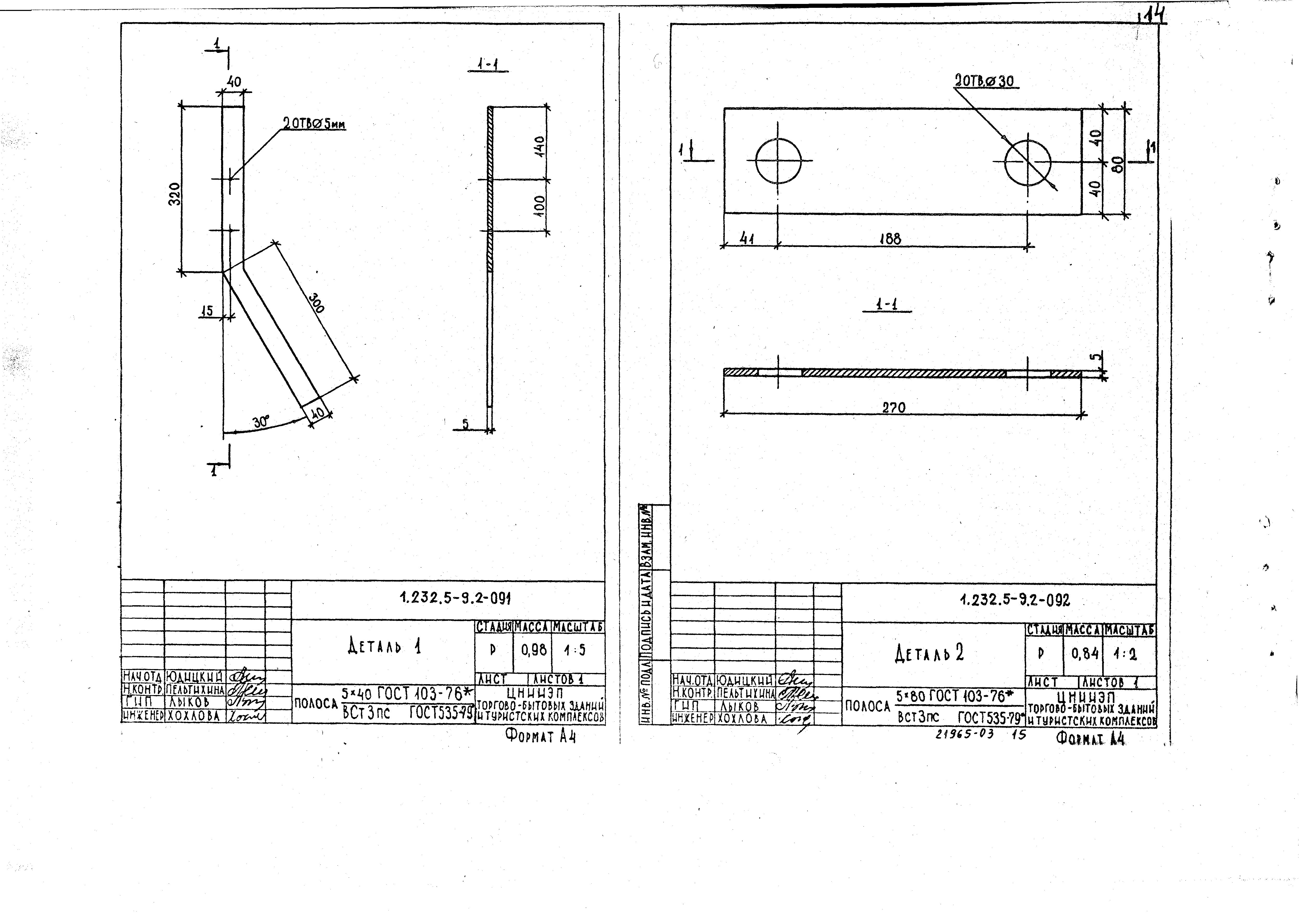
| Оглавление: | 1.232.5-9.2-000 ТО Техническое описание 1.232.5-9.2-010 Изделие соединительное МС-1 1.232.5-9.2-010 СБ Изделие соединительное МС-1. Сборочный чертеж 1.232.5-9.2-011 Пластина 1.232.5-9.2-012 Пластина 1.232.5-9.2-020 Изделие соединительное МС-2 1.232.5-9.2-020 СБ Изделие соединительное МС-2. Сборочный чертеж 1.232.5-9.2-021 Пластина 1.232.5-9.2-030 Изделие соединительное МС-3 1.232.5-9.2-030 СБ Изделие соединительное МС-3. Сборочный чертеж 1.232.5-9.2-031 Пластина 1.232.5-9.2-040 Изделие соединительное МС-4 1.232.5-9.2-040 СБ Изделие соединительное МС-4. Сборочный чертеж 1.232.5-9.2-041 Пластина 1.232.5-9.2-050 Изделие соединительное МС-5 1.232.5-9.2-050 СБ Изделие соединительное МС-5. Сборочный чертеж 1.232.5-9.2-051 Пластина 1.232.5-9.2-060 Изделие соединительное МС-6 1.232.5-9.2-070 Изделие соединительное МС-7 1.232.5-9.2-080 Изделие соединительное МС-8 1.232.5-9.2-090 Изделие соединительное МС-9 1.232.5-9.2-090 СБ Изделие соединительное МС-9. Сборочный чертеж 1.232.5-9.2-091 Деталь 1 1.232.5-9.2-092 Деталь 2 1.232.5-9.2-100 Изделие соединительное МС-10 1.232.5-9.2-100 СБ Изделие соединительное МС-10. Сборочный чертеж 1.232.5-9.2-101 Деталь 1 1.232.5-9.2-110 Шайба 1.232.5-9.2-120 Нащельник 1.232.5-9.2-120 СБ Нащельник. Сборочный чертеж |
| Разработан: | ЦНИИЭП торгово-бытовых зданий и туристских комплексов |
| Утверждён: | 29.12.1986 Государственный комитет по гражданскому строительству и архитектуре при Госстрое СССР (457) |
| Нормативные ссылки: |
|
















