Скачать ГОСТ Р 53037-2008 Мобильные подъемники с рабочими платформами. Расчеты конструкции, требования безопасности, испытанияДата актуализации: 01.01.2021
|
| Обозначение: | ГОСТ Р 53037-2008 |
| Обозначение англ: | GOST R 53037-2008 |
| Статус: | заменен |
| Название рус.: | Мобильные подъемники с рабочими платформами. Расчеты конструкции, требования безопасности, испытания |
| Название англ.: | Mobile elevating work platforms. Design calculations, safety requirements, tests |
| Дата добавления в базу: | 01.09.2013 |
| Дата актуализации: | 01.01.2021 |
| Дата введения: | 01.07.2009 |
| Дата окончания срока действия: | 01.09.2014 |
| Область применения: | Стандарт устанавливает требования, обеспечивающие единство проектирования, расчетов и испытания всех типов мобильных подъемников с рабочими платформами (МПРП) для обеспечения их безопасного применения. |
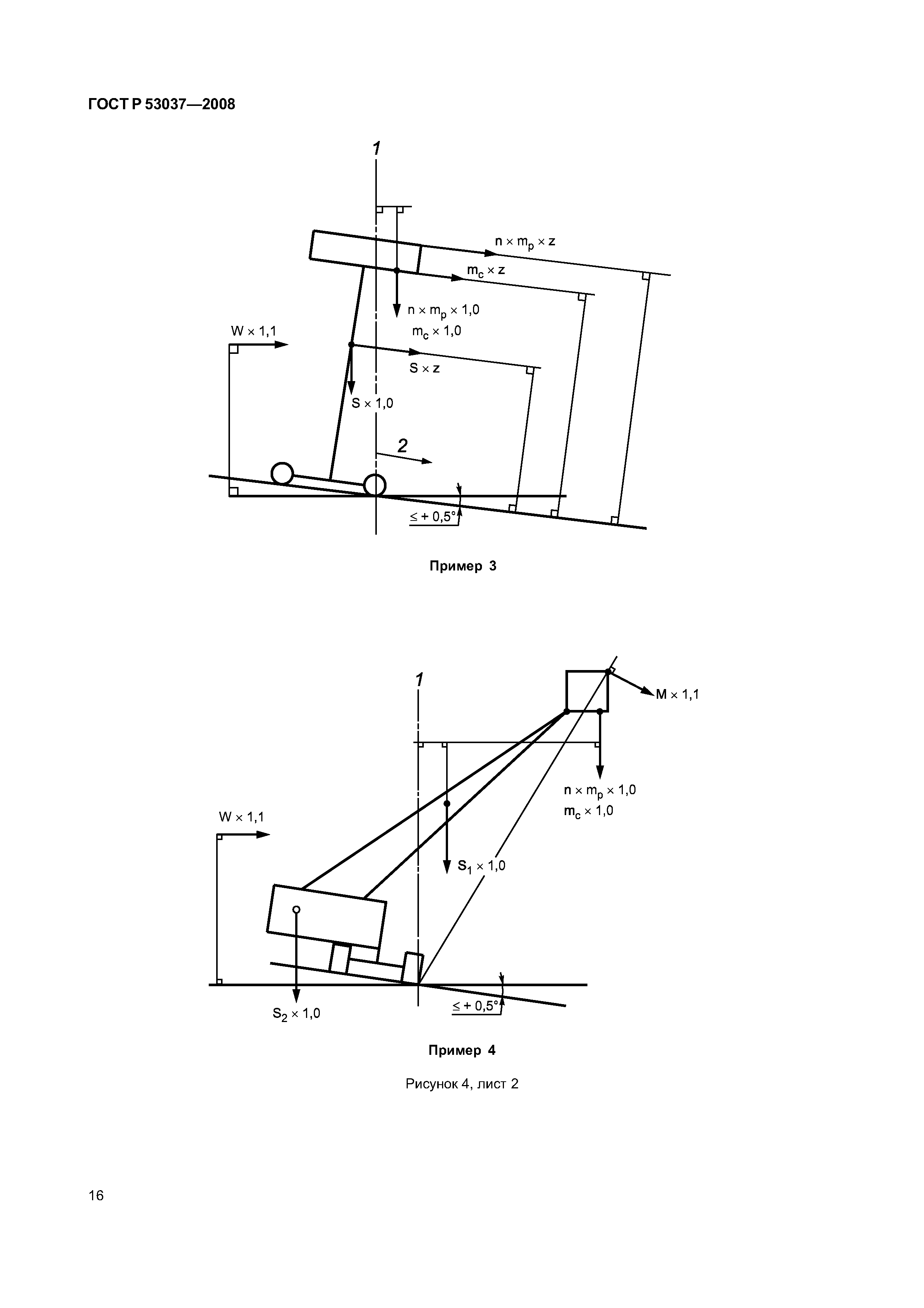
| Оглавление: | 1 Область применения 2 Нормативные ссылки 3 Термины и определения 4 Перечень опасных факторов 5 Требования и/или мероприятия по обеспечению безопасности на стадиях проектирования и изготовления 5.1 Общие положения 5.2 Расчеты металлоконструкции и устойчивости 5.3 Требования к базовому шасси и выносным опорам 5.4 Требования к подъемному оборудованию 5.5 Требования к системам привода подъемного оборудования 5.6 Требования к рабочей платформе 5.7 Требования к органам управления 5.8 Требования к электрооборудованию 5.9 Требования к гидравлической системе, гидравлическому оборудованию и трубопроводам 5.10 Требования к устройствам (приборам) безопасности 6 Проверки и испытания МПРП на соответствие требованиям безопасности 6.1 Общие положения 6.2 Проверки 6.3 Испытания 7 Эксплуатационные документы и информационные таблички 7.1 Общие положения 7.2 Эксплуатационные документы 7.3 Информационные таблички Приложение А (справочное) Эксплуатация МПРП при скорости ветра более 12,5 м/с Приложение В (справочное) Динамические коэффициенты в расчетах устойчивости и напряжений в металлоконструкции Приложение С (справочное) Расчеты испытаний на бордюрном камне Приложение D (обязательное) Расчет систем привода стальным канатом Приложение Е (справочное) Пример расчета системы привода стальным канатом Приложение F (справочное) Расчет изменения давления в гидросистеме при отклонении от нормального функционирования Приложение G (справочное) Структура системы испытаний МПРП Приложение Н (справочное) Эксплуатационная техническая документация Приложение К (рекомендуемое) Паспорт МПРП Приложение М (справочное) Сопоставление структуры настоящего стандарта со структурой ИСО 16368:2003 Библиография |
| Разработан: | ПТОУ-Фонд |
| Утверждён: | 17.12.2008 Федеральное агентство по техническому регулированию и метрологии (423-ст) |
| Издан: | Стандартинформ (2009 г. ) |
| Нормативные ссылки: |
|


























































































