Скачать Серия 1.442.1-1 Выпуск 1. Предварительно напряженные плиты шириной 3,0; 1,5 и 0,95 м. Рабочие чертежиДата актуализации: 01.01.2021
|
| Обозначение: | Серия 1.442.1-1 |
| Обозначение англ: | Series 1.442.1-1 |
| Статус: | не действует |
| Название рус.: | Выпуск 1. Предварительно напряженные плиты шириной 3,0; 1,5 и 0,95 м. Рабочие чертежи |
| Дата добавления в базу: | 01.09.2013 |
| Дата актуализации: | 01.01.2021 |
| Дата введения: | 01.01.1983 |
| Дата окончания срока действия: | 01.12.1991 |
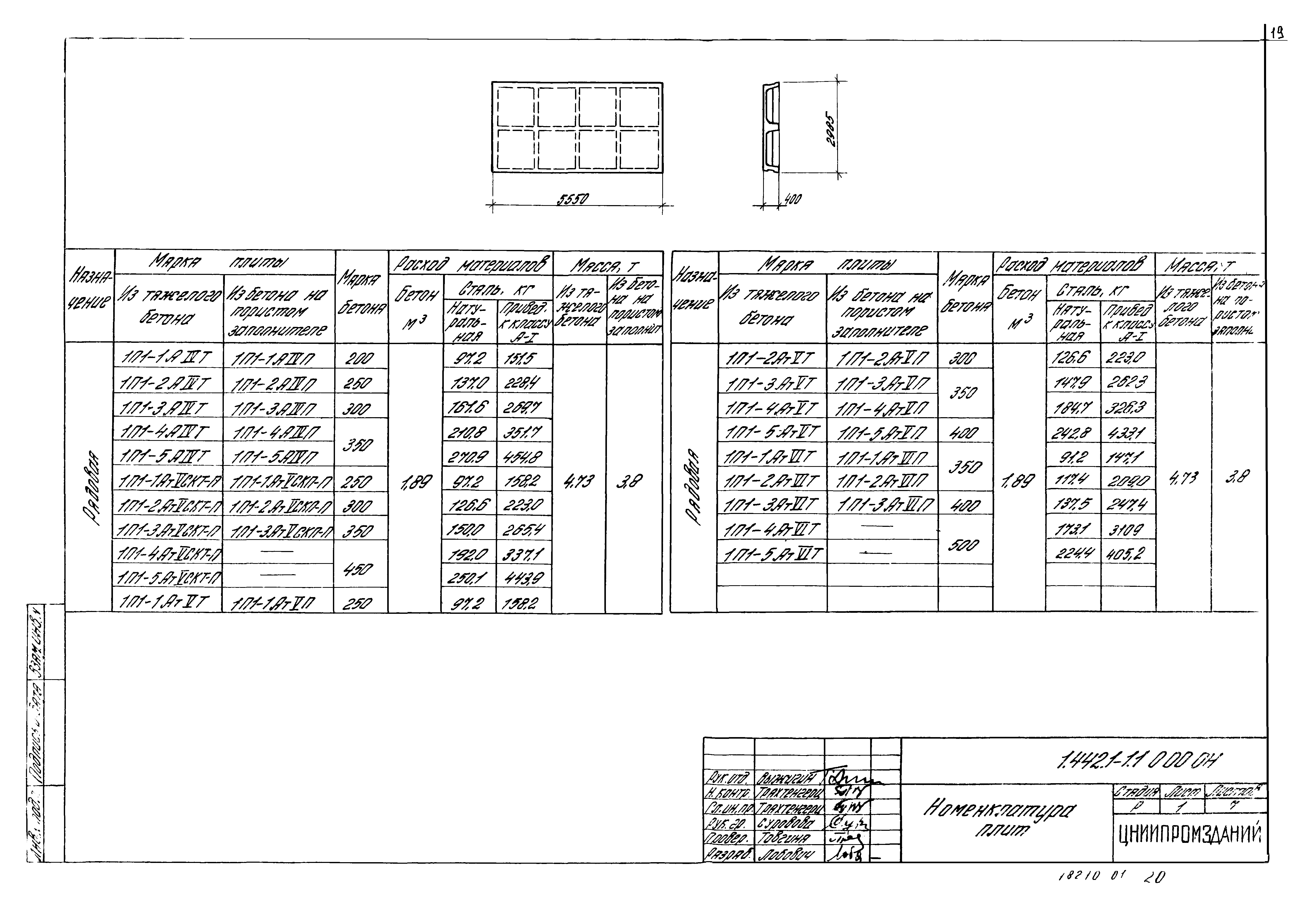
| Оглавление: | 1.442.1-1.1 Содержание 1.442.1-1.1 0.00.0 ПЗ Пояснительная записка 1.442.1-1.1 0.00.0 Н Номенклатура плит 1.442.1-1.1 1.00.0 Плита 1П1,1П2 1.442.1-1.1 1.00.0 СБ Плита 1П1,1П2. Сборочный чертеж 1.442.1-1.1 1.00.0 СМ Плита 1П1 с квадратными отверстиями (пример) 1.442.1-1.1 1.00.0 СМ Плита 1П1,1П2 со шпонками (вариант) 1.442.1-1.1 2.00.0 Плита 1П3,1П4 1.442.1-1.1 2.00.0 СБ Плита 1П3,1П4. Сборочный чертеж 1.442.1-1.1 2.00.0 СМ Плита 1П3 с квадратными отверстиями (пример) 1.442.1-1.1 2.00.0 СМ Плита 1П3,1П4 со шпонками (вариант) 1.442.1-1.1 3.00.0 Плита 1П5,1П6 1.442.1-1.1 3.00.0 СБ Плита 1П5,1П6. Сборочный чертеж 1.442.1-1.1 3.00.0 СМ Плита 1П5 с квадратными отверстиями (пример) 1.442.1-1.1 3.00.0 СМ Плита 1П5,1П6 со шпонками (вариант) 1.442.1-1.1 0.00.0 ВМС Ведомость расхода стали на плиту |
| Разработан: | ЦНИИпромзданий |
| Утверждён: | 22.10.1982 Госстрой СССР (Государственный комитет Совета Министров СССР по делам строительства) (USSR Gosstroy 262) |
| Заменяет собой: |
|












































































