Скачать Серия ИИС24-1/73 Железобетонные плиты для перекрытий типа 1, с опиранием на полки ригелей (расчетная сейсмичность 9 баллов)Дата актуализации: 01.01.2021 Серия ИИС24-1/73
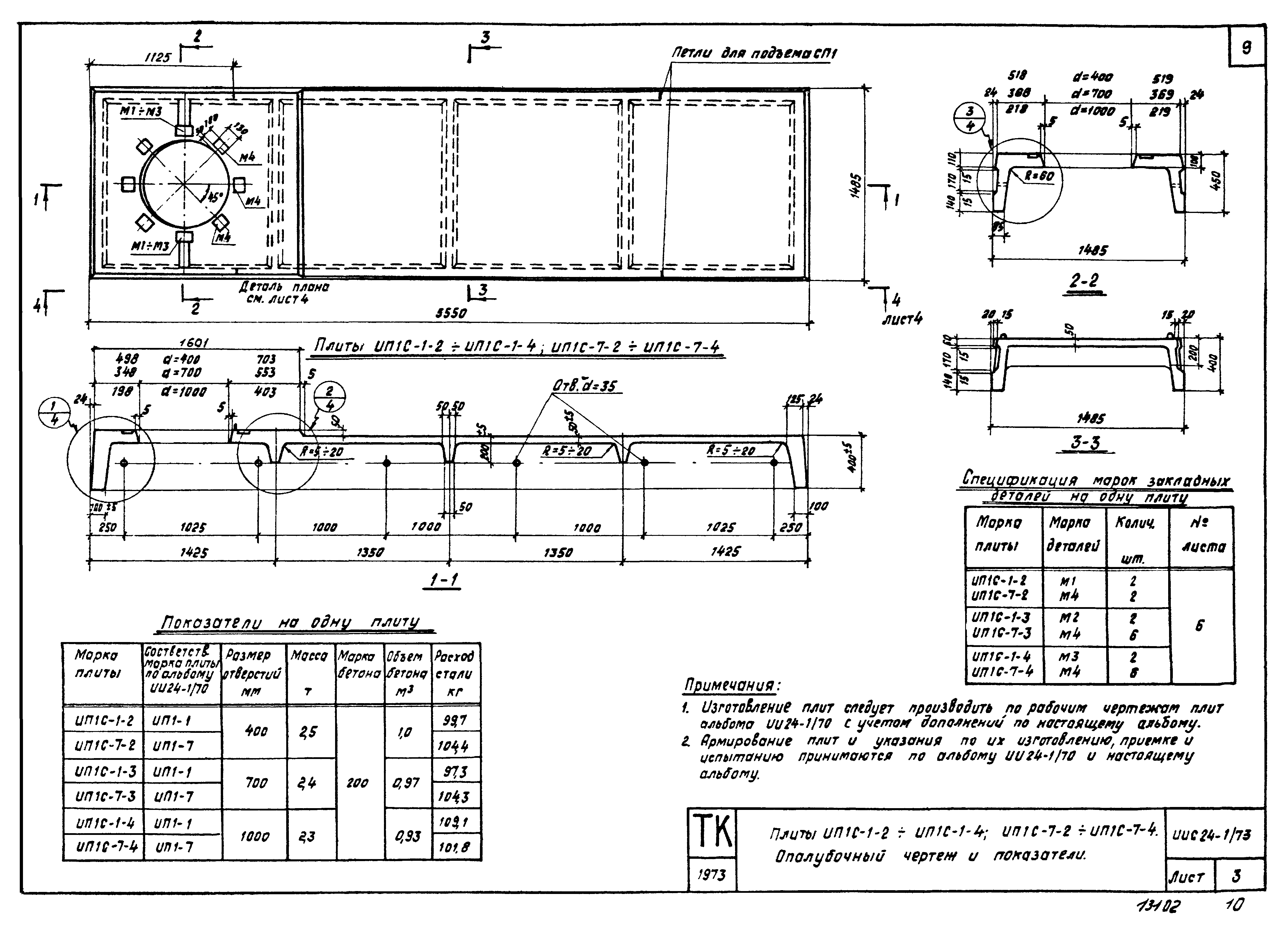
Железобетонные плиты для перекрытий типа 1, с опиранием на полки ригелей (расчетная сейсмичность 9 баллов)| Обозначение: | Серия ИИС24-1/73 | | Обозначение англ: | Series ИИС24-1/73 | | Статус: | заменен | | Название рус.: | Железобетонные плиты для перекрытий типа 1, с опиранием на полки ригелей (расчетная сейсмичность 9 баллов) | | Дата добавления в базу: | 01.09.2013 | | Дата актуализации: | 01.01.2021 | | Дата введения: | 01.01.1975 | | Дата окончания срока действия: | 01.02.1983 | | Разработан: | ЦНИИпромзданий
| | Утверждён: | 21.10.1974 Госстрой СССР (Государственный комитет Совета Министров СССР по делам строительства) (USSR Gosstroy 216)
| | Заменяет собой: | | | Чем заменён: | |
             
|