Скачать Серия 1.132-1 Выпуск 0-2. Общие материалы и унифицированные детали панелей толщиной 350 мм

Дата актуализации: 01.01.2021

Серия 1.132-1

Выпуск 0-2. Общие материалы и унифицированные детали панелей толщиной 350 мм

Обозначение: Серия 1.132-1
Обозначение англ: Series 1.132-1
Статус:заменен
Название рус.:Выпуск 0-2. Общие материалы и унифицированные детали панелей толщиной 350 мм
Дата добавления в базу:01.09.2013
Дата актуализации:01.01.2021
Дата введения:01.01.1972
Дата окончания срока действия:01.10.1983
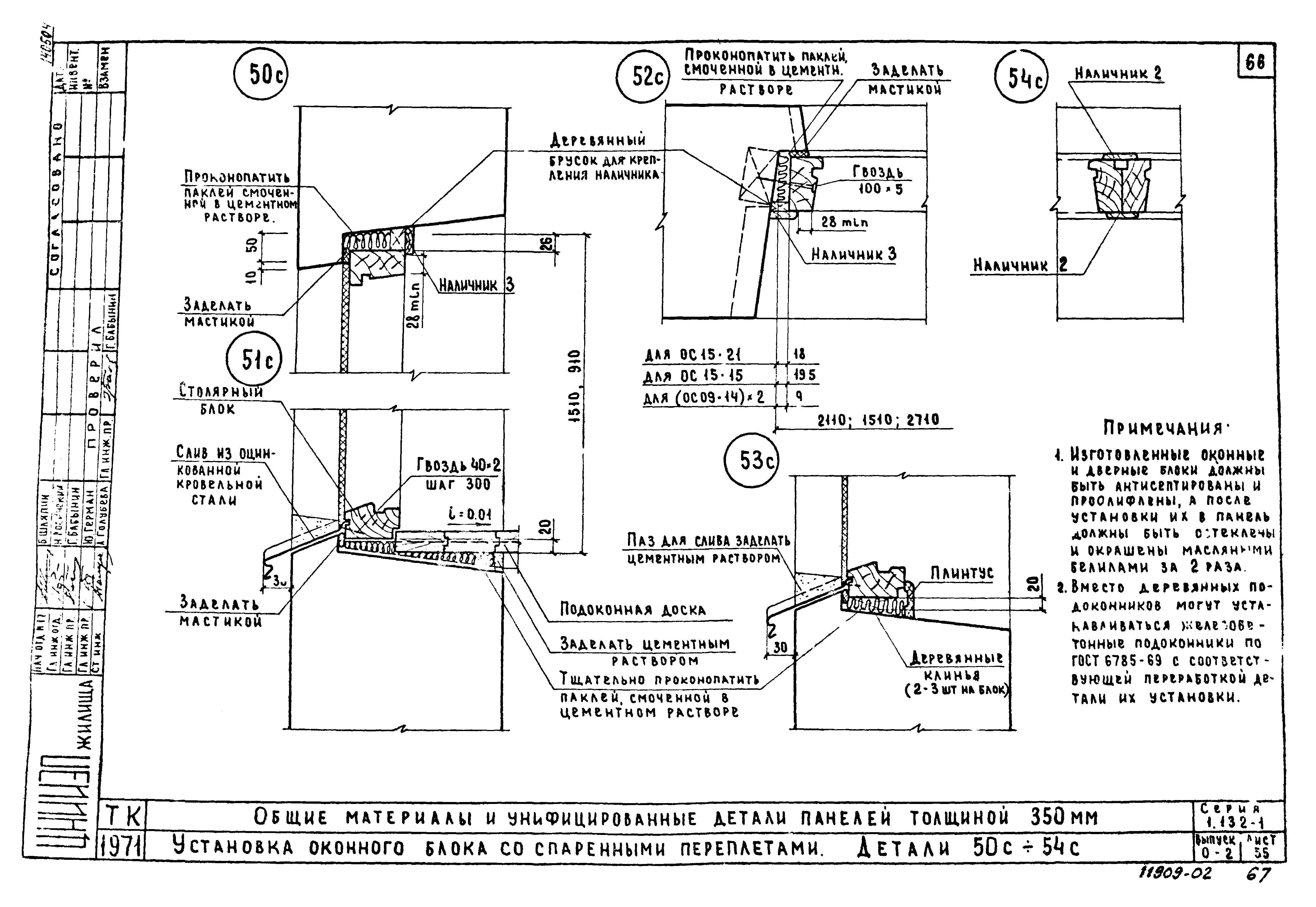
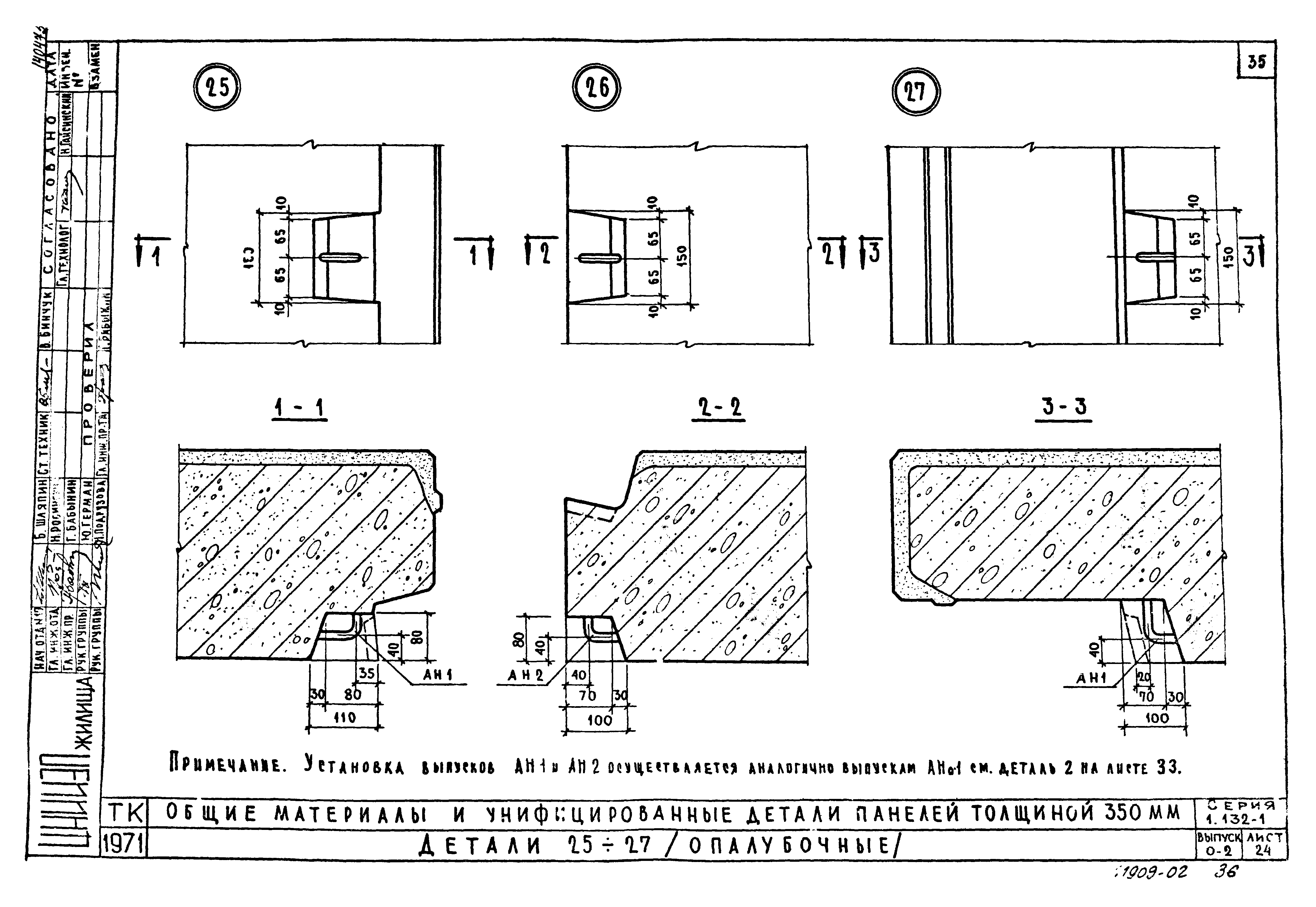
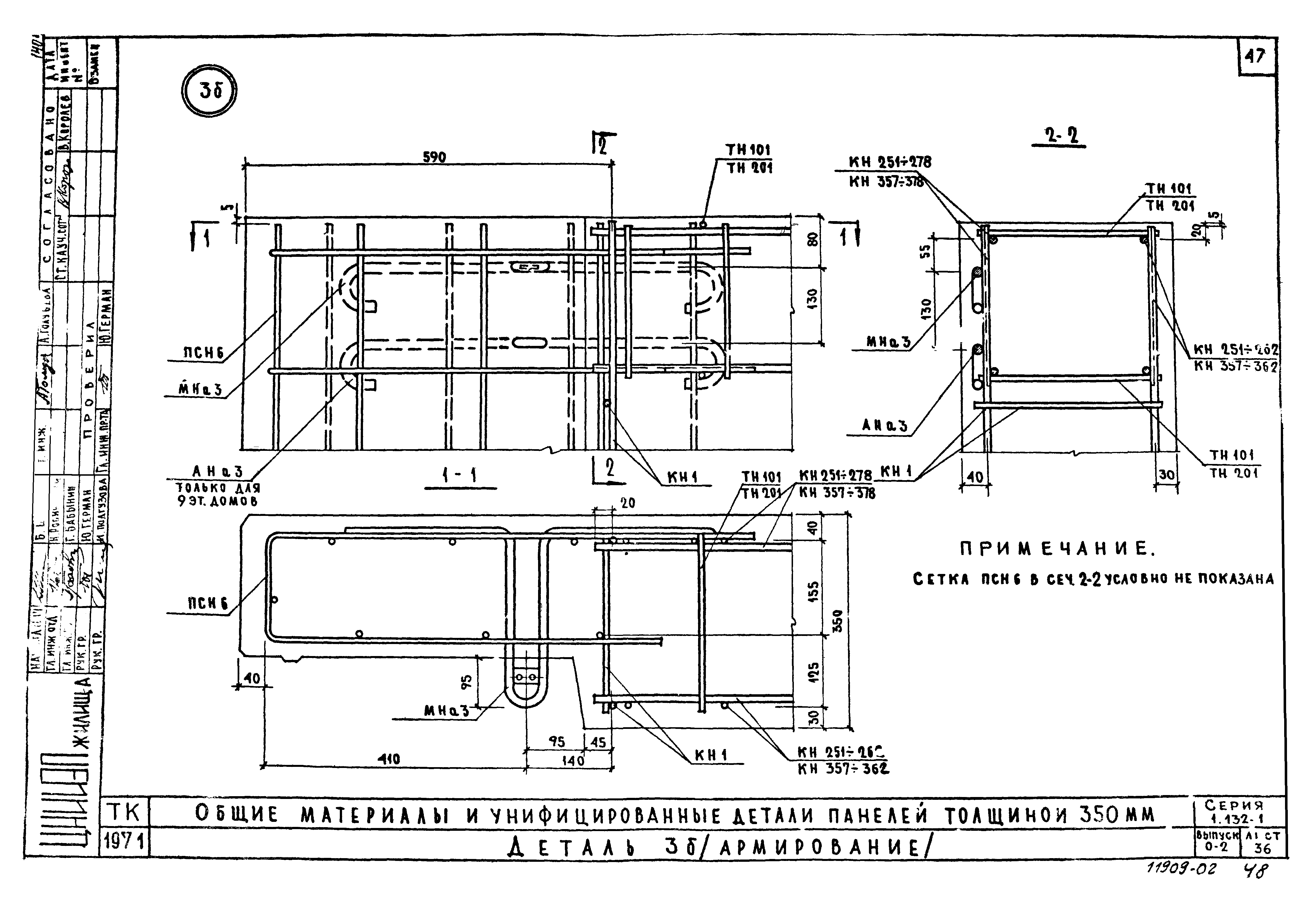
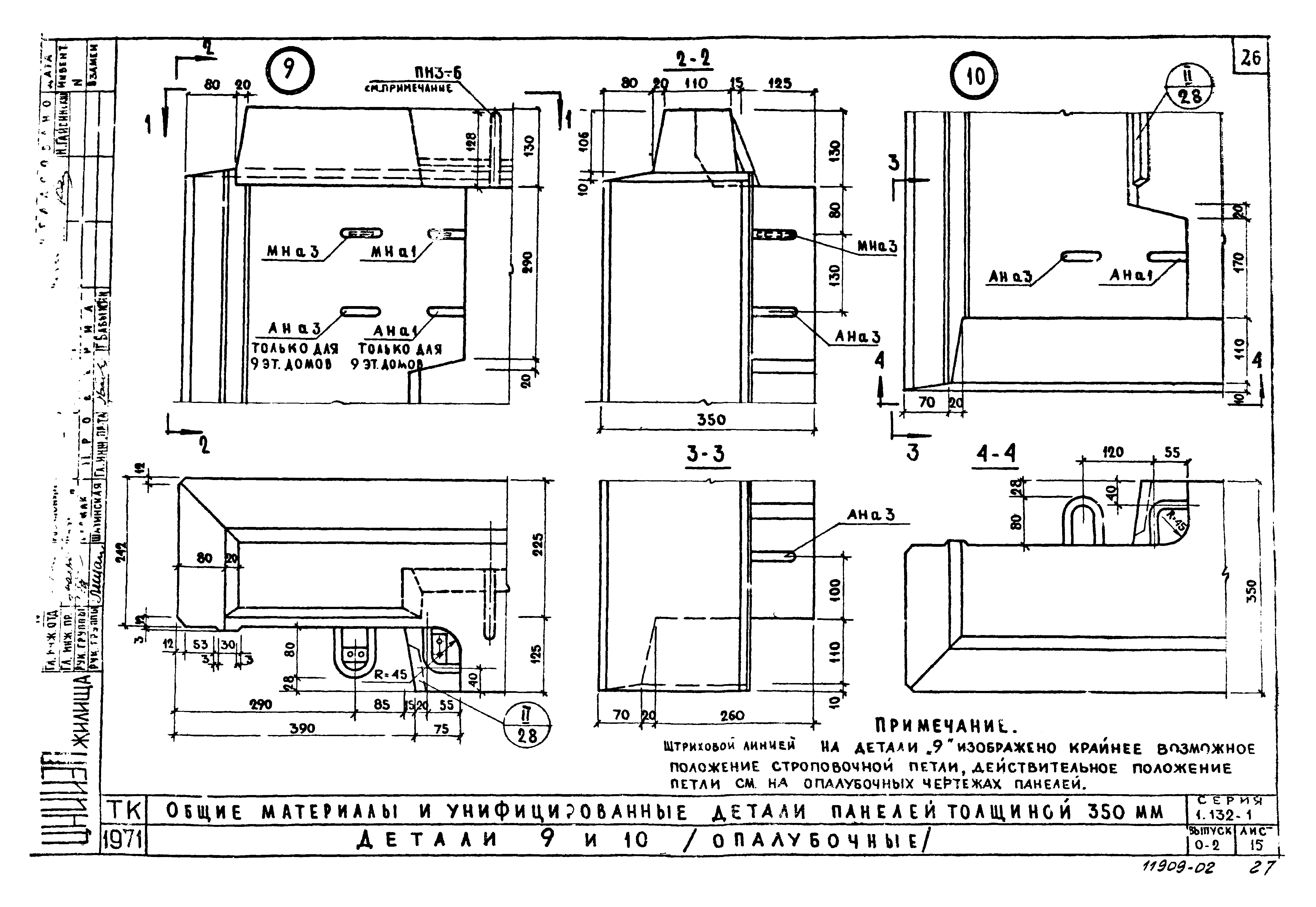
Область применения:Рабочие чертежи унифицированных панелей из легкого бетона на пористых заполнителях разработаны для наружных несущих стен крупнопанельных 5 - 9-этажных жилых домов с малым шагом поперечных внутренних несущих стен, предназначенных для строительства в обычных условиях во II и III строительно-климатических зонах
Разработан: ЦНИИСК им. В.А. Кучеренко
ЦНИИЭП жилища
Утверждён:26.10.1971 Государственный комитет по гражданскому строительству и архитектуре при Госстрое СССР (190)
Чем заменён:
  • Серия 1.132-1/82
Нормативные ссылки:
Серия 1.132-1Серия 1.132-1Серия 1.132-1Серия 1.132-1Серия 1.132-1Серия 1.132-1Серия 1.132-1Серия 1.132-1Серия 1.132-1Серия 1.132-1Серия 1.132-1Серия 1.132-1Серия 1.132-1Серия 1.132-1Серия 1.132-1Серия 1.132-1Серия 1.132-1Серия 1.132-1Серия 1.132-1Серия 1.132-1Серия 1.132-1Серия 1.132-1Серия 1.132-1Серия 1.132-1Серия 1.132-1Серия 1.132-1Серия 1.132-1Серия 1.132-1Серия 1.132-1Серия 1.132-1Серия 1.132-1Серия 1.132-1Серия 1.132-1Серия 1.132-1Серия 1.132-1Серия 1.132-1Серия 1.132-1Серия 1.132-1Серия 1.132-1Серия 1.132-1Серия 1.132-1Серия 1.132-1Серия 1.132-1Серия 1.132-1Серия 1.132-1Серия 1.132-1Серия 1.132-1Серия 1.132-1Серия 1.132-1Серия 1.132-1Серия 1.132-1Серия 1.132-1Серия 1.132-1Серия 1.132-1Серия 1.132-1Серия 1.132-1Серия 1.132-1Серия 1.132-1Серия 1.132-1Серия 1.132-1Серия 1.132-1Серия 1.132-1Серия 1.132-1Серия 1.132-1Серия 1.132-1Серия 1.132-1Серия 1.132-1Серия 1.132-1Серия 1.132-1Серия 1.132-1Серия 1.132-1Серия 1.132-1Серия 1.132-1Серия 1.132-1Серия 1.132-1