Скачать Серия 1.232-3 Выпуск 6/79. Указания по изготовлению панелей и применению их в проектировании и строительствеДата актуализации: 01.01.2021
|
| Обозначение: | Серия 1.232-3 |
| Обозначение англ: | Series 1.232-3 |
| Статус: | не действует |
| Название рус.: | Выпуск 6/79. Указания по изготовлению панелей и применению их в проектировании и строительстве |
| Дата добавления в базу: | 01.09.2013 |
| Дата актуализации: | 01.01.2021 |
| Дата введения: | 01.10.1980 |
| Дата окончания срока действия: | 01.05.1999 |
| Область применения: | Изделия серии предназначены для применения в проектах общественных зданий (предприятия торговли, общественного питания, бытового обслуживания, школы, детские учреждения и другие, а также административно-бытовых зданий при промышленных предприятиях и других зданиях |
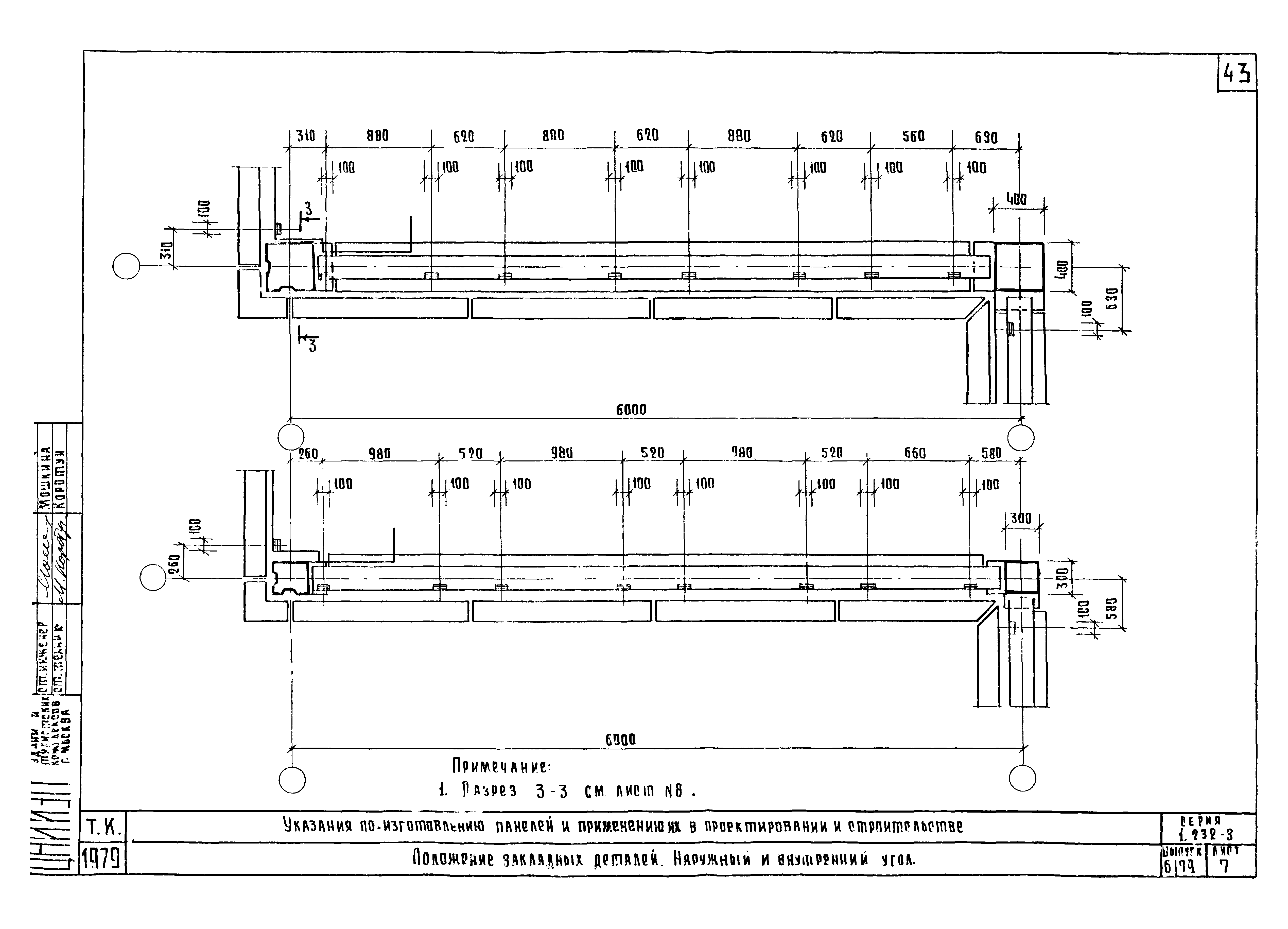
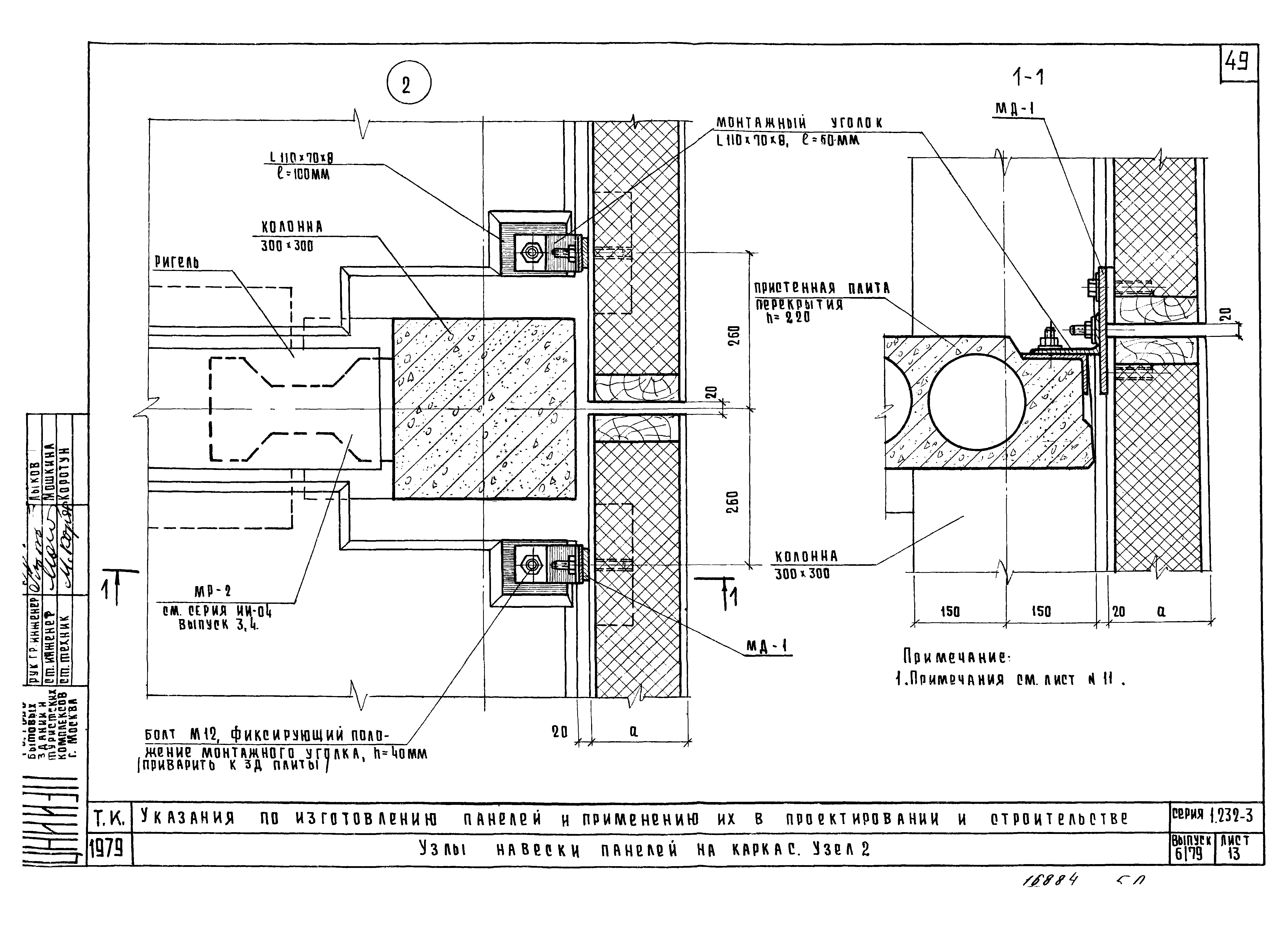
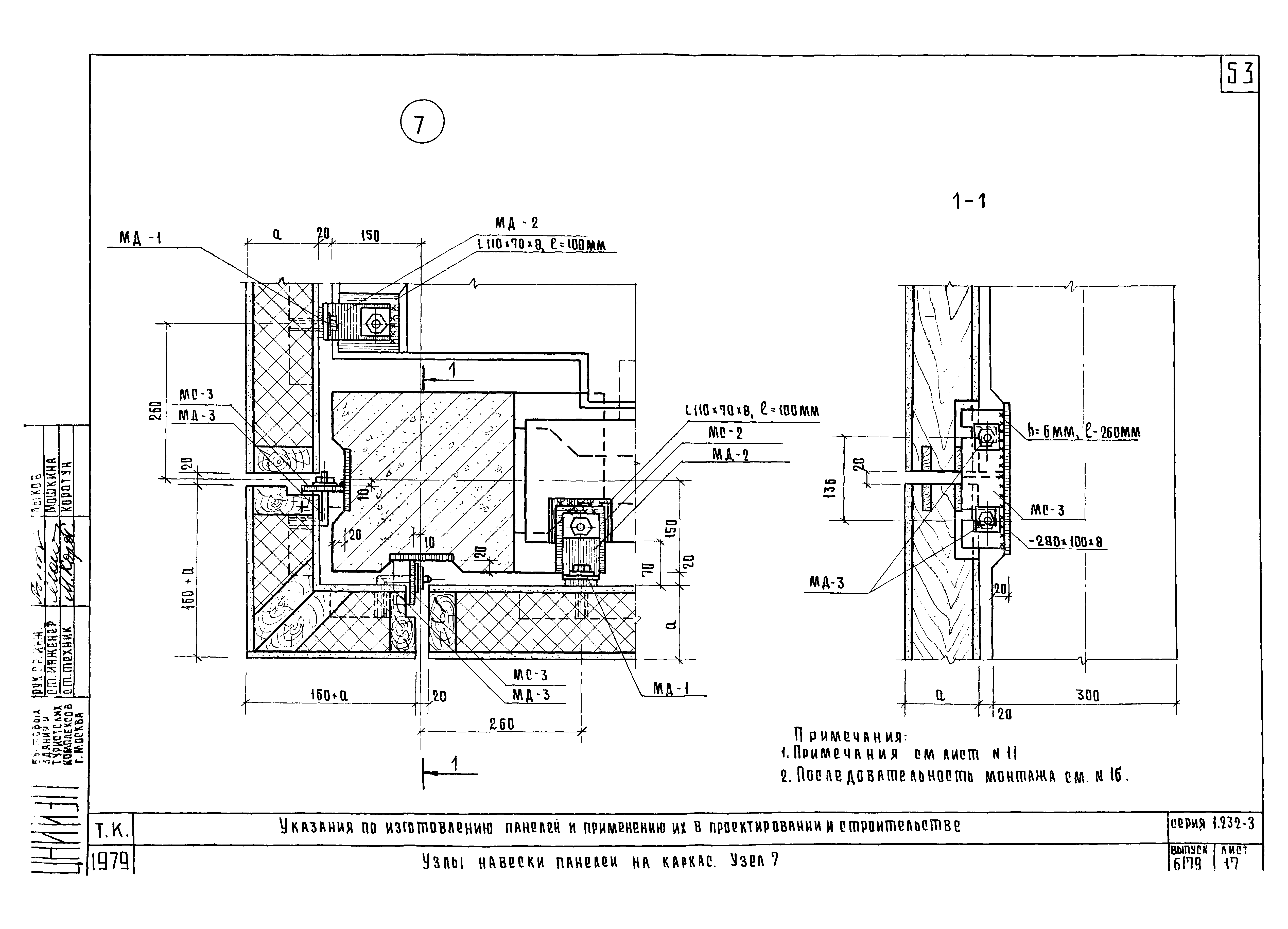
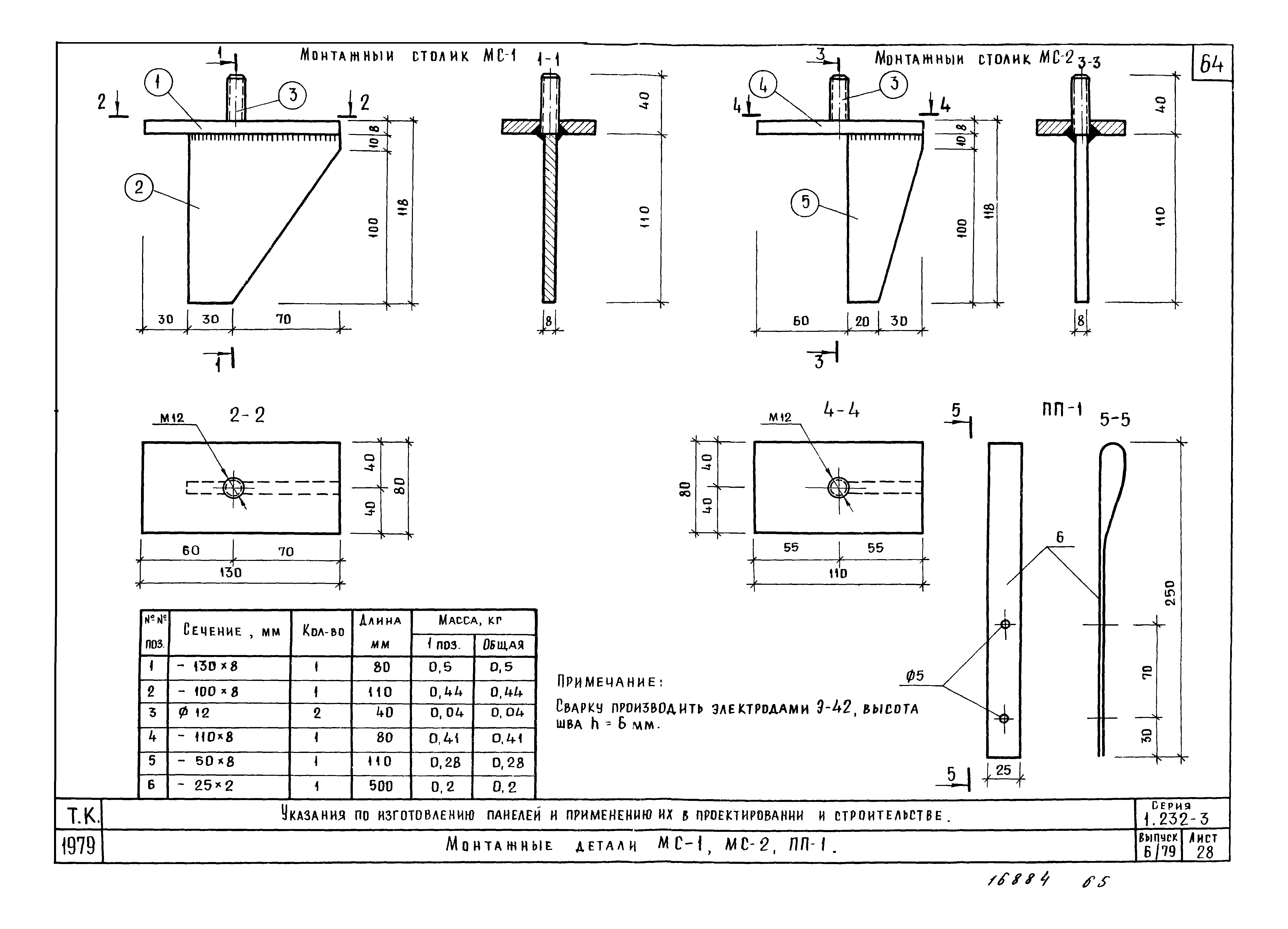
| Оглавление: | Содержание альбома Пояснительная записка Номенклатура изделий Схема навески наружных стен Положение закладных деталей на каркасе с колоннами 300х300 мм Положение закладных деталей на каркасе с колоннами 400х400 мм Положение закладных деталей. Наружный и внутренний угол Варианты компоновки наружных панелей Узлы навески панелей на каркас. Узел 1 Узлы навески панелей на каркас. Узел 1а Узлы навески панелей на каркас. Узел 2 Узлы навески панелей на каркас. Узел 2а Узлы навески панелей на каркас. Узлы 3, 4, 5 Узлы навески панелей на каркас. Узел 6 Узлы навески панелей на каркас. Узел 7 Узлы навески панелей на каркас. Узел 7а Узлы навески панелей на каркас. Узлы 8, 8а Узлы навески панелей на каркас. Узел 9 Узлы навески панелей на каркас. Узел 10. Устройство цокольного узла. Узел 11 Устройство цокольного и рядового узла. Узлы 12, 13 Устройство кровли. Узлы 14, 15 Стыки панелей. Узел 16, 16а Вертикальный и горизонтальный стык панелей. Узлы 17, 18 Монтажные детали МД-1, МД-3 Монтажные детали МД-2, МС-3, МП-1 Монтажные детали МС-1, МС-2, ПП-1 Закладная деталь ЗД-1 Закладная деталь ЗД-2 |
| Разработан: | ЦНИИЭП торгово-бытовых зданий и туристских комплексов |
| Утверждён: | 01.08.1980 Государственный комитет по гражданскому строительству и архитектуре при Госстрое СССР (196) |
| Заменяет собой: | |
| Нормативные ссылки: |
|



































































