Скачать ГОСТ 21.704-2011 Система проектной документации для строительства. Правила выполнения рабочей документации наружных сетей водоснабжения и канализации

Дата актуализации: 01.01.2021

ГОСТ 21.704-2011

Система проектной документации для строительства. Правила выполнения рабочей документации наружных сетей водоснабжения и канализации

Обозначение: ГОСТ 21.704-2011
Обозначение англ: GOST 21.704-2011
Статус:взамен
Название рус.:Система проектной документации для строительства. Правила выполнения рабочей документации наружных сетей водоснабжения и канализации
Название англ.:System of design documents for construction. Rules for execution of working documentation of outside networks of water supply and sewerage
Дата добавления в базу:01.10.2014
Дата актуализации:01.01.2021
Дата введения:01.05.2013
Область применения:Стандарт устанавливает состав и правила выполнения рабочей документации наружных сетей водоснабжения и канализации объектов строительства различного назначения.
Оглавление:1 Область применения
2 Нормативные ссылки
3 Общие положения
4 Общие данные по рабочим чертежам
5 Чертежи сетей
   5.1 Планы сетей
   5.2 Продольные профили сетей
   5.3 Схемы напорных сетей
6 Эскизные чертежи общих видов нетиповых изделий
7 Спецификация оборудования, изделий и материалов
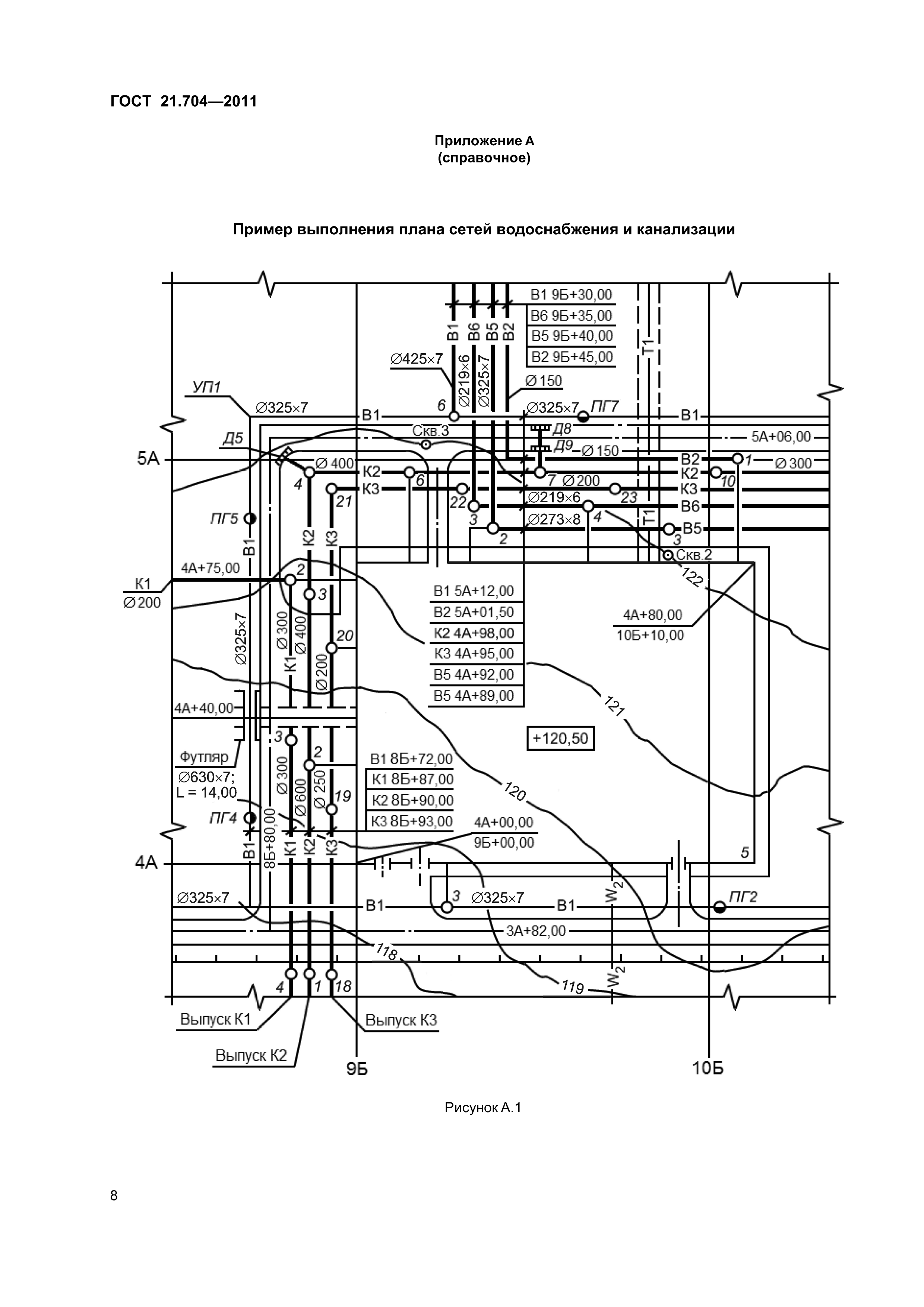
Приложение А (справочное) Пример выполнения плана сетей водоснабжения и канализации
Приложение Б (справочное) Пример выполнения фрагмента плана сетей водоснабжения и канализации
Приложение В (справочное) Примеры выполнения профилей сетей
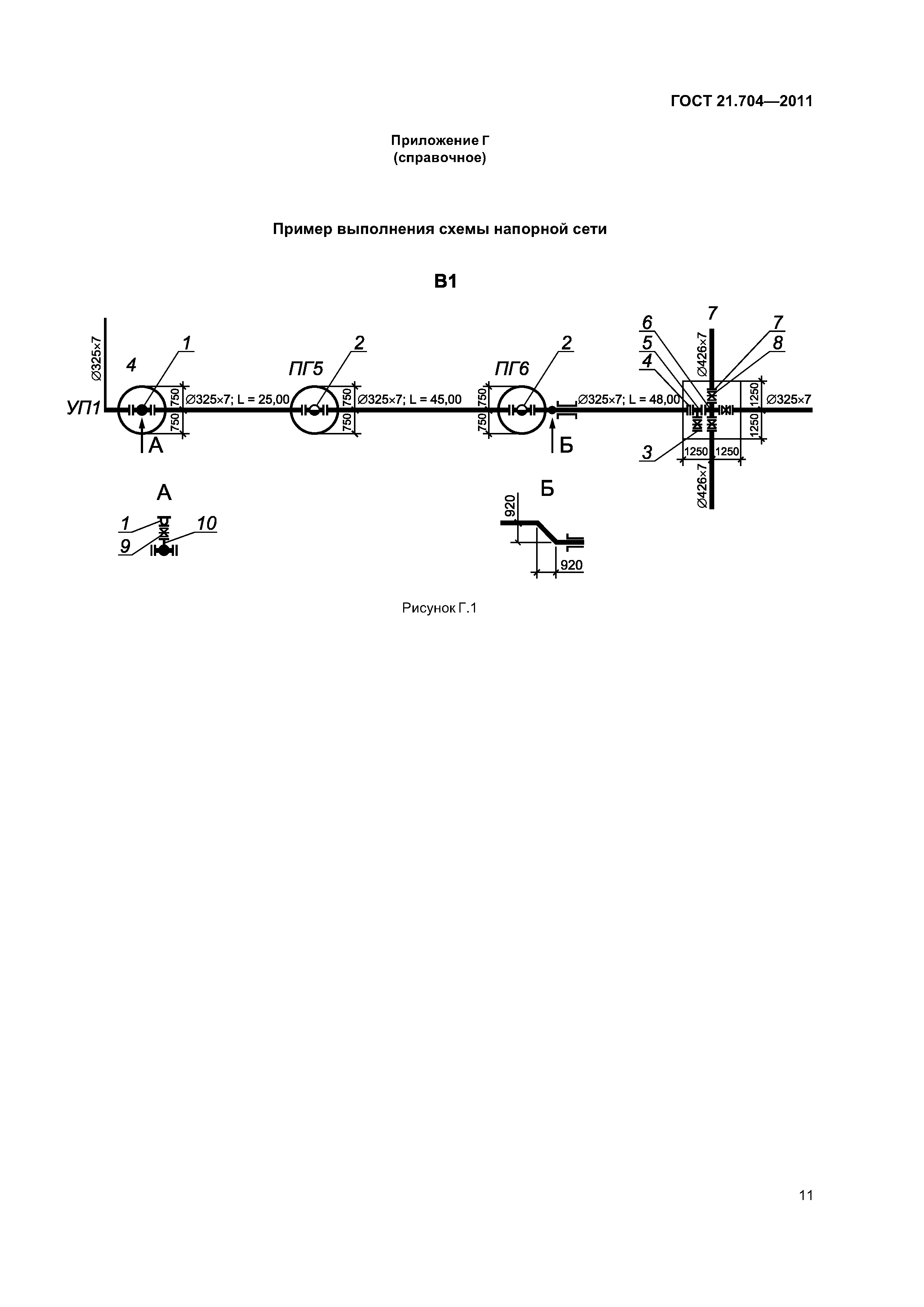
Приложение Г (справочное) Пример выполнения схемы напорной сети
Разработан: ОАО ЦНС
Утверждён:08.12.2011 МНТКС (MNTKS 39)
11.10.2012 Федеральное агентство по техническому регулированию и метрологии (484-ст)
Издан: Стандартинформ (2013 г. )
Список изменений:
  • № 1 от 01.07.2017 (ИУС 3-2017, Текстовое изменение; изменены ссылочные НД)
Заменяет собой:
Нормативные ссылки:
ГОСТ 21.704-2011ГОСТ 21.704-2011ГОСТ 21.704-2011ГОСТ 21.704-2011ГОСТ 21.704-2011ГОСТ 21.704-2011ГОСТ 21.704-2011ГОСТ 21.704-2011ГОСТ 21.704-2011ГОСТ 21.704-2011ГОСТ 21.704-2011ГОСТ 21.704-2011ГОСТ 21.704-2011ГОСТ 21.704-2011ГОСТ 21.704-2011ГОСТ 21.704-2011ГОСТ 21.704-2011ГОСТ 21.704-2011ГОСТ 21.704-2011ГОСТ 21.704-2011

Текстовое изменение № 1 от 01.07.2017

№ 1№ 1№ 1№ 1№ 1