Изменение № 1 ГОСТ 21.704-2011 Система проектной документации для строительства. Правила выполнения рабочей документации наружных сетей водоснабжения и канализации

Принято Межгосударственным советом по стандартизации, метрологии и сертификации (протокол № 93-П от 22.11.2016)

Зарегистрировано Бюро по стандартам МГС № 11531

За принятие изменения проголосовали национальные органы по стандартизации следующих государств: AM, KG, GE, RU [коды альфа-2 по МК (ИСО 3166) 004]

Дату введения в действие настоящего изменения устанавливают указанные национальные органы по стандартизации*

_________

* Дата введения в действие на территории Российской Федерации - 2017-07-01.

Раздел 2 изложить в новой редакции:

«ГОСТ 2.317-2011 Единая система конструкторской документации. Аксонометрические проекции

ГОСТ 21.101-97** Система проектной документации для строительства. Основные требования к проектной и рабочей документации

_________

** В Российской Федерации действует ГОСТ Р 21.1101-2013.

ГОСТ 21.110-2013 Система проектной документации для строительства. Спецификация оборудования, изделий и материалов

ГОСТ 21.114-2013 Система проектной документации для строительства. Правила выполнения эскизных чертежей общих видов нетиповых изделий

ГОСТ 21.204-93 Система проектной документации для строительства. Условные графические обозначения и изображения элементов генеральных планов и сооружений транспорта

ГОСТ 21.205-93 Система проектной документации для строительства. Условные обозначения элементов санитарно-технических систем

ГОСТ 21.206-2012 Система проектной документации для строительства. Условные обозначения трубопроводов

ГОСТ 21.302-2013 Система проектной документации для строительства. Условные графические обозначения в документации по инженерно-геологическим изысканиям

Примечание - При пользовании настоящим стандартом целесообразно проверить действие ссылочных стандартов в информационной системе общего пользования - на официальном сайте Федерального агентства по техническому регулированию и метрологии в сети Интернет или по ежегодному информационному указателю «Национальные стандарты», который опубликован по состоянию на 1 января текущего года, и по выпускам ежемесячного информационного указателя «Национальные стандарты» за текущий год. Если ссылочный стандарт заменен (изменен), то при пользовании настоящим стандартом следует руководствоваться заменяющим (измененным) стандартом. Если ссылочный стандарт отменен без замены, то положение, в котором дана ссылка на него, применяется в части, не затрагивающей эту ссылку».

Пункт 3.6. Таблицу 1 дополнить строкой (после последней):

«Неподвижная опора (для надземных трубопроводов)

Н».

Пункт 3.8 дополнить абзацем:

«Система координат и высотных отметок, принимаемая в рабочих чертежах наружных сетей водоснабжения и канализации, должна соответствовать системе координат и высотных отметок, принятой в рабочих чертежах генерального плана».

Пункт 3.9 изложить в новой редакции:

«3.9 На планах сетей условные графические обозначения различных способов прокладки сетей принимают по ГОСТ 21.204 (таблица 5).

Трубопроводы и их элементы на чертежах указывают условными графическими обозначениями по ГОСТ 21.206. Видимые участки проектируемых трубопроводов изображают сплошной толстой основной линией, невидимые (например, в перекрытых каналах) - штриховой линией той же толщины.

Допускается обозначать невидимые трубопроводы (например, подземные, в перекрытых каналах) сплошной толстой основной линией при отсутствии на чертежах видимых участков трубопроводов с необходимым пояснением в общих данных по рабочим чертежам или на соответствующих чертежах.

Существующие и проектируемые здания и сооружения, существующие сети водоснабжения и канализации, существующие и проектируемые инженерные сети другого назначения, влияющие на прокладку проектируемых сетей, изображают сплошной тонкой линией».

Пункт 3.14. Таблица 2. Графа «Масштаб» для наименования « - по горизонтали». Изложить в новой редакции:

«1:200; 1:500; 1:1000; 1:2000; 1:5000».

Пункт 5.2.4. Второй абзац дополнить словами после слов «по эстакадам»:

«или отдельно стоящим опорам»;

форма 2. Первую строку изложить в новой редакции:

форма 3. Последнюю строку изложить в новой редакции:

Пункт 5.2.7 изложить в новой редакции:

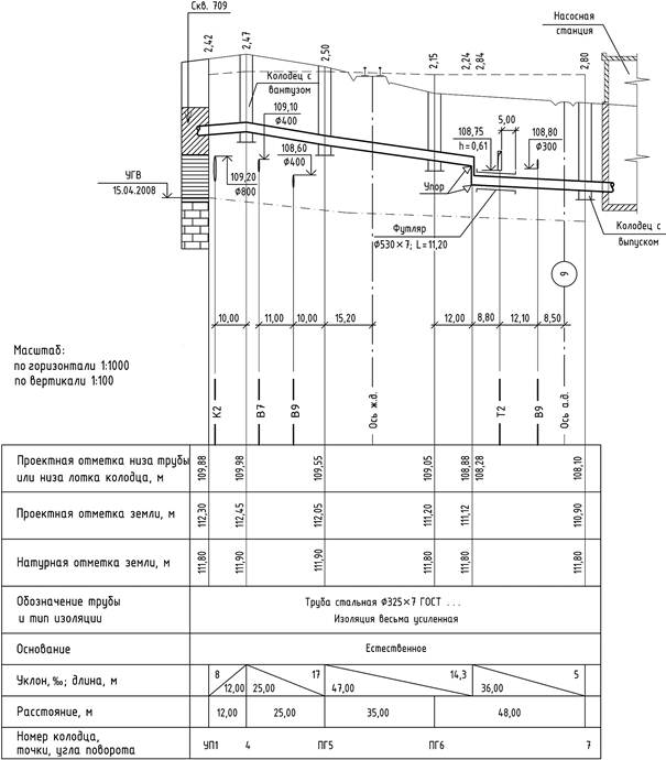
«5.2.7 Пример оформления продольного профиля напорной сети при подземной прокладке приведен на рисунке В.1 (приложение В).

Пример оформления продольного профиля самотечной сети при подземной прокладке приведен на рисунке В.2 (приложение В).

Пример оформления продольного профиля сети при надземной прокладке приведен на рисунке В.3 (приложение В)».

Пункт 5.3.2. Второй абзац изложить в новой редакции:

«- трубопроводы и длины их участков, диаметры труб и, при необходимости, толщины стенок, фасонные части, арматуру, упоры, неподвижные опоры, опуски труб и другие элементы трубопроводов»;

дополнить абзацем (после третьего):

«- секущие плоскости поперечных разрезов и их нумерацию (обозначения) - для трубопроводов надземной прокладки;».

Пункт 5.3.4 дополнить абзацем:

«На схеме напорной сети надземной прокладки показывают разбивку, привязку и типы всех опор трубопроводов или приводят таблицу (произвольной формы) с указанием типа опор и расстояний между ними для каждого диаметра труб».

Пункт 7.1. Заменить слово: «водоотведения» на «канализации».

Пункт 7.6. Первый абзац. Заменить слова: «шифра «С» на «шифра «СО»;

примеры. Заменить обозначения:

«1 2345-11-НВК.С на 1 2345-11-НВК.СО

2 2345-12-НВ.С на 2 2345-12-НВ.СО».

Приложение В изложить в новой редакции:

«Приложение В
(справочное)

Примеры выполнения профилей сетей

Рисунок В.1 - Пример оформления продольного профиля напорной
сети при подземной прокладке

Рисунок В.2 - Пример выполнения профиля самотечной сети

Рисунок В.3 - Пример выполнения профиля напорной сети при надземной прокладке».

(ИУС № 3 2017 г.)