Скачать ГОСТ Р 55941-2014 Рельсы трамвайные желобчатые. Технические условия

Дата актуализации: 01.01.2021

ГОСТ Р 55941-2014

Рельсы трамвайные желобчатые. Технические условия

Обозначение: ГОСТ Р 55941-2014
Обозначение англ: GOST R 55941-2014
Статус:введен впервые
Название рус.:Рельсы трамвайные желобчатые. Технические условия
Название англ.:Grooved rails. Specifications
Дата добавления в базу:21.05.2015
Дата актуализации:01.01.2021
Дата введения:01.01.2015
Область применения:Стандарт распространяется на трамвайные желобчатые рельсы, предназначенные для путей городского электрического транспорта.
Оглавление:1 Область применения
2 Нормативные ссылки
3 Термины и определения
4 Классификация
5 Основные параметры и размеры
6 Технические требования
7 Правила приемки
8 Методы испытаний
9 Транспортирование и хранение
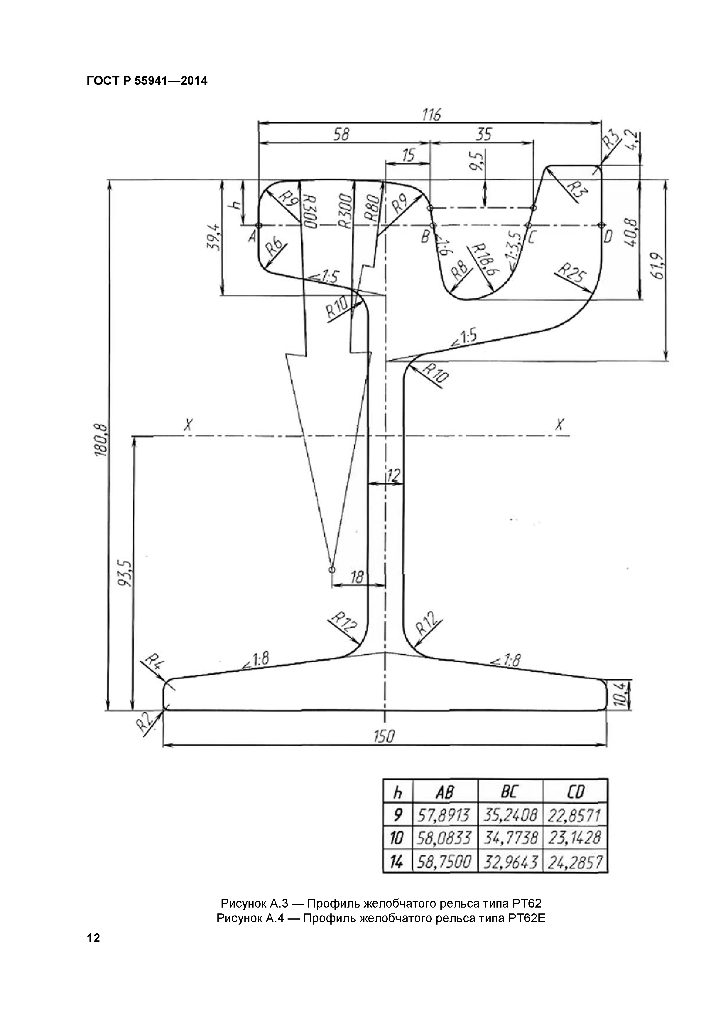
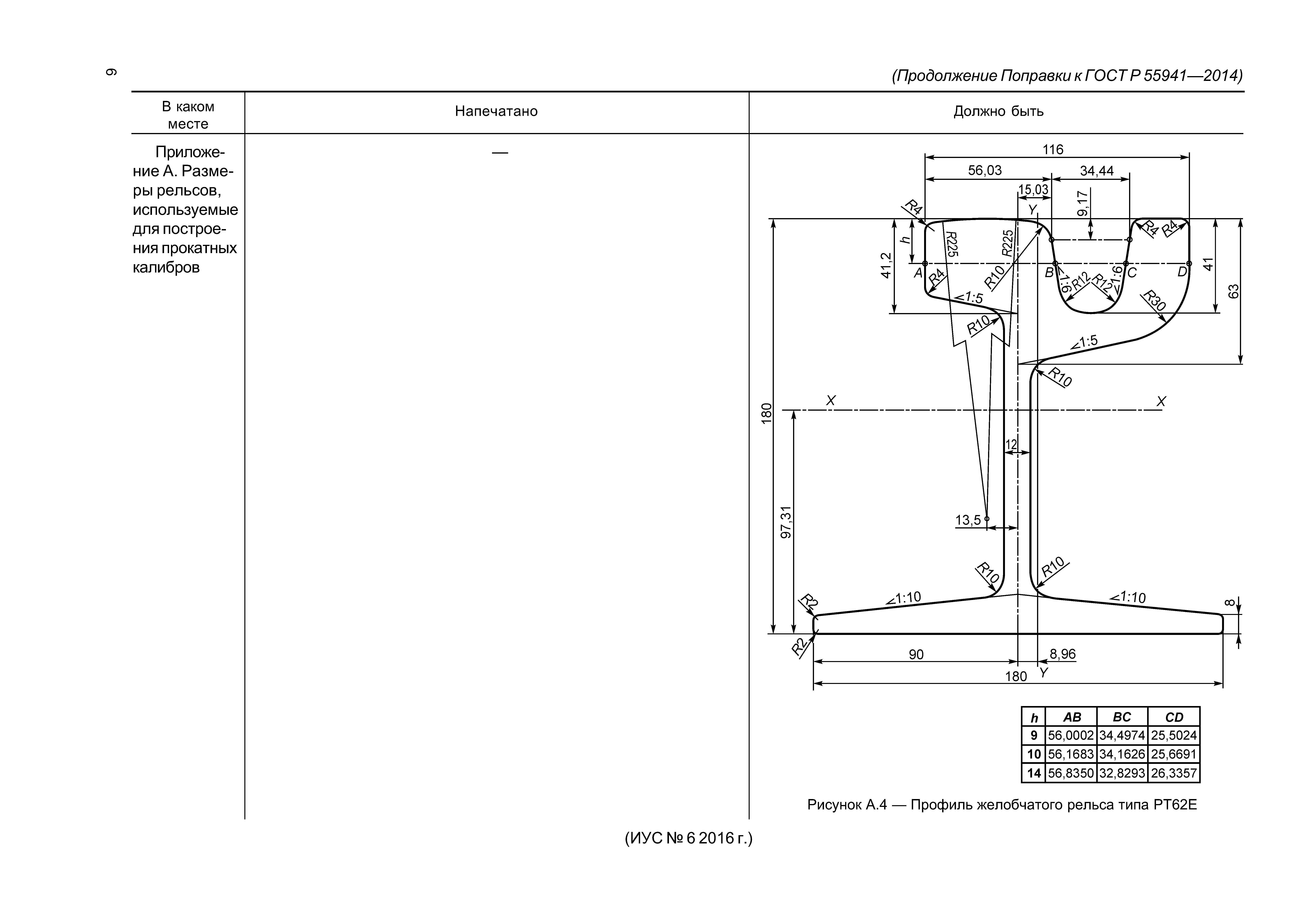
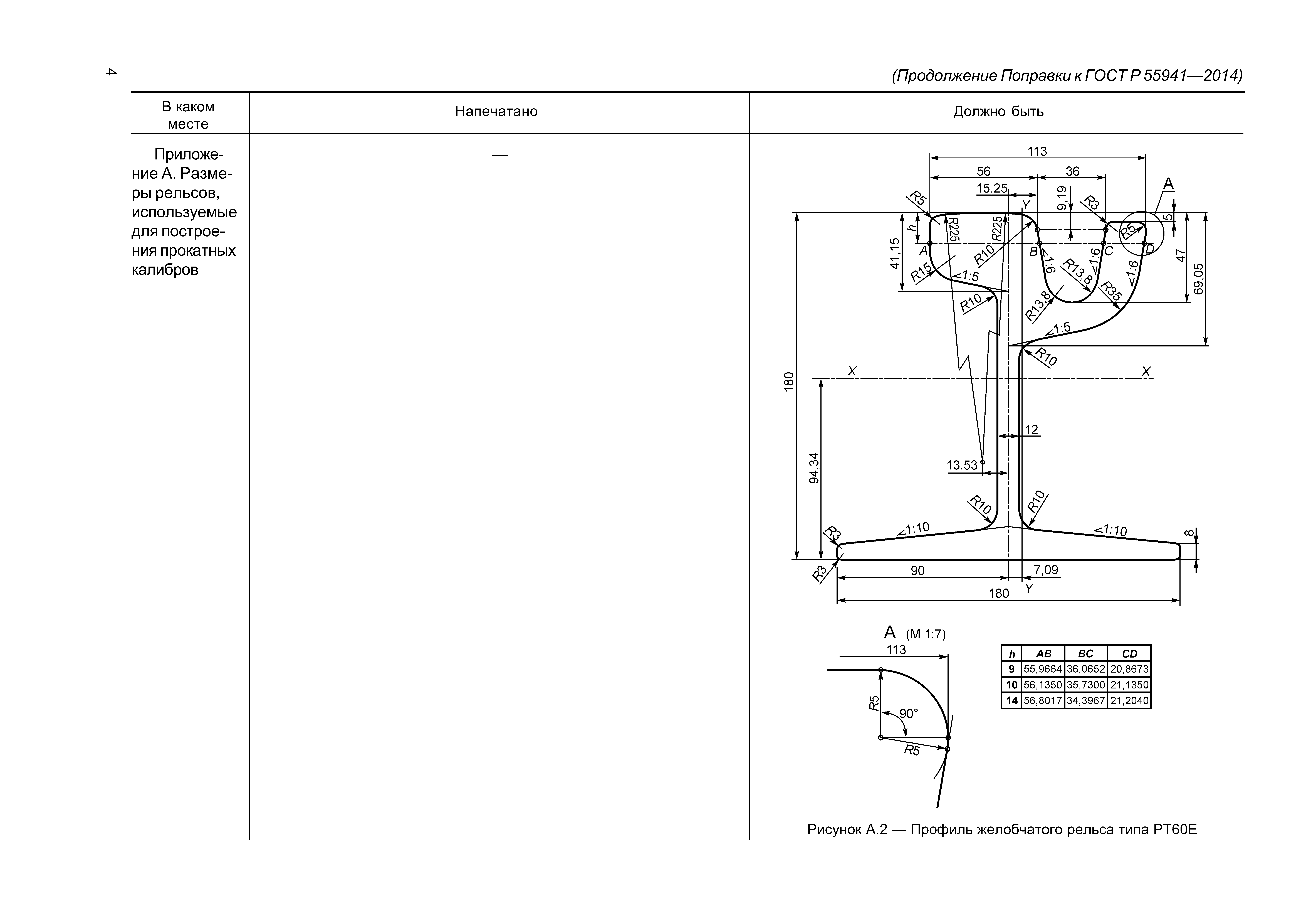
Приложение А (справочное) Размеры рельсов, используемые для построения прокатных калибров
Приложение Б (справочное) Расчетные параметры конструкции рельсов
Библиография
Разработан: ОАО УИМ
ОАО ЕВРАЗ ЗСМК
Утверждён:29.01.2014 Федеральное агентство по техническому регулированию и метрологии (9-ст)
Издан: Стандартинформ (2014 г. )
Список изменений:
Нормативные ссылки:
ГОСТ Р 55941-2014ГОСТ Р 55941-2014ГОСТ Р 55941-2014ГОСТ Р 55941-2014ГОСТ Р 55941-2014ГОСТ Р 55941-2014ГОСТ Р 55941-2014ГОСТ Р 55941-2014ГОСТ Р 55941-2014ГОСТ Р 55941-2014ГОСТ Р 55941-2014ГОСТ Р 55941-2014ГОСТ Р 55941-2014ГОСТ Р 55941-2014ГОСТ Р 55941-2014ГОСТ Р 55941-2014ГОСТ Р 55941-2014ГОСТ Р 55941-2014ГОСТ Р 55941-2014ГОСТ Р 55941-2014ГОСТ Р 55941-2014ГОСТ Р 55941-2014

Текстовое изменение Поправка от 18.02.2016

ПоправкаПоправкаПоправкаПоправкаПоправкаПоправка