Скачать СТО 274.465.001-2013 Стандарт РАПЭКС на применение экструдированного пенополистирола в ограждающих и несущих строительных конструкциях с учетом обеспечения требуемых показателей огнестойкости и пожарной опасностиДата актуализации: 01.01.2021
|
| Обозначение: | СТО 274.465.001-2013 |
| Обозначение англ: | STO 274.465.001-2013 |
| Статус: | введен впервые |
| Название рус.: | Стандарт РАПЭКС на применение экструдированного пенополистирола в ограждающих и несущих строительных конструкциях с учетом обеспечения требуемых показателей огнестойкости и пожарной опасности |
| Дата добавления в базу: | 01.10.2014 |
| Дата актуализации: | 01.01.2021 |
| Область применения: | Стандарт разработан для широкого круга специалистов строительных, эксплуатационных, научно-исследовательских и проектных организаций, надзорных органов. Стандарт организации устанавливает основные требования к проектированию, строительству и эксплуатации зданий и сооружений с применением утеплителя из экструдированного пенополистирола РАПЭКС ХРS с точки зрения его использования в различных конструкциях с учетом необходимости соблюдения требований пожарной безопасности. Стандарт распространяется только на марки экструдированного пенополистирола, производимые членами Ассоциации производителей экструдированного пенополистирола РАПЭКС ХРS |
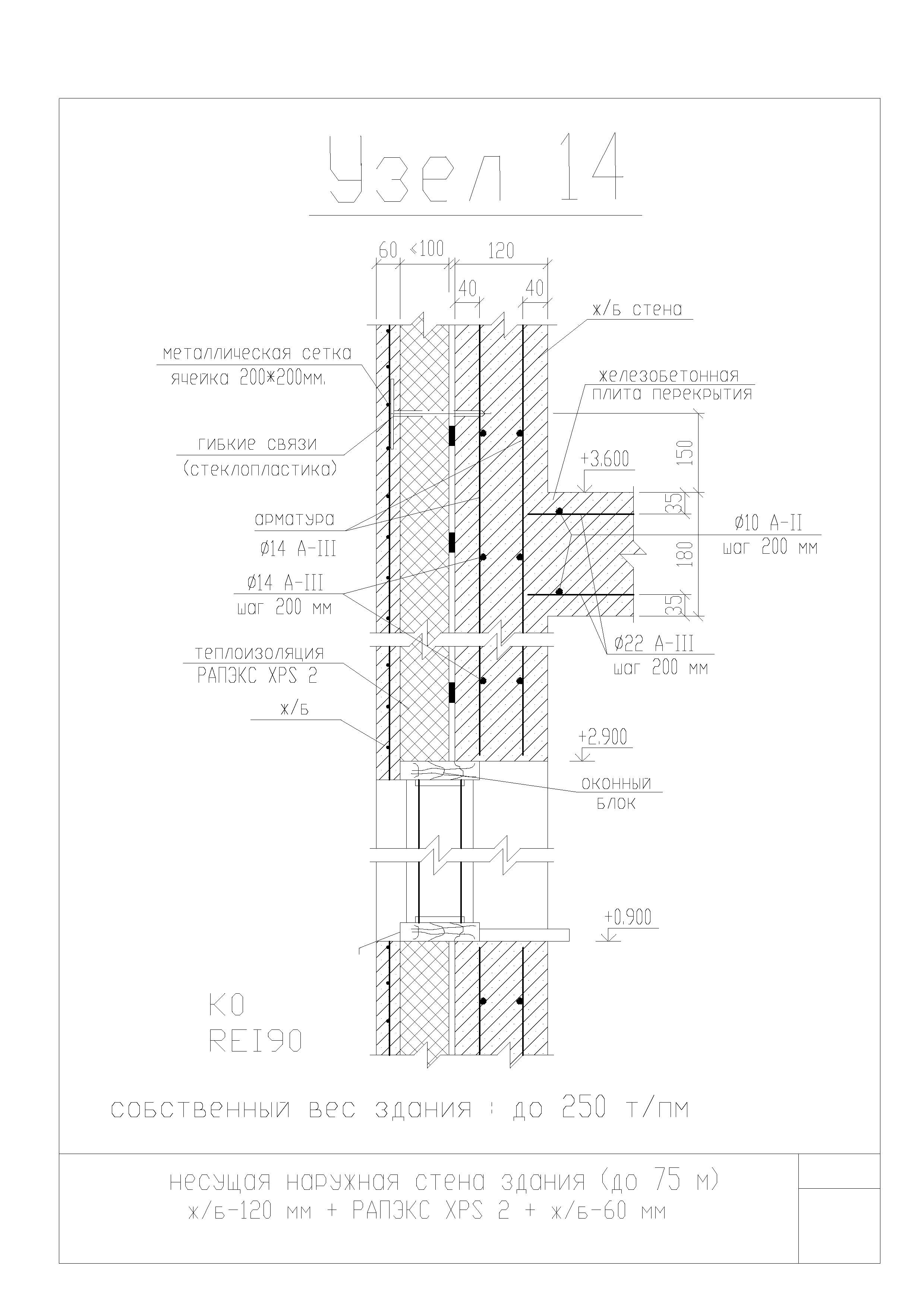
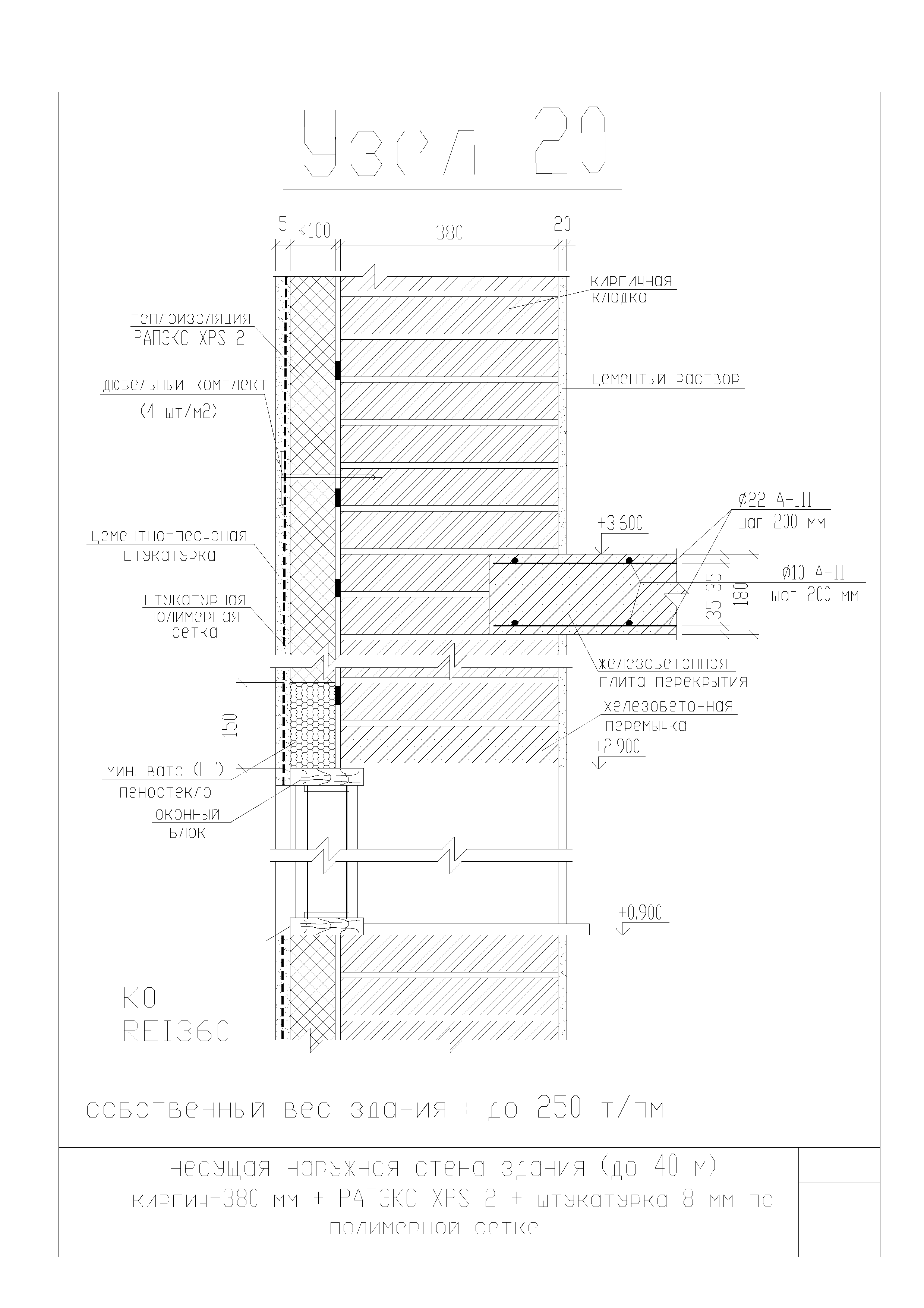
| Оглавление: | Введение 1. Область применения 2. Нормативные ссылки 3. Термины и определения 4. Классификация зданий, строительных материалов и конструкций по пожарной опасности 4.1. Пожарно-техническая классификация зданий, сооружений, строений и пожарных отсеков 4.2. Пожарно-техническая классификация строительных материалов, конструкций и противопожарных преград 4.2.1. Цель классификации 4.2.2. Классификация строительных материалов по пожарной опасности 4.2.3. Классификация строительных конструкций по огнестойкости 4.2.4. Классификация строительных конструкций по пожарной опасности 4.2.5. Классификация противопожарных преград 5. Взаимосвязь стандарта ассоциации "РАПЭКС" с положениями основных действующих нормативных документов (НД) в области пожарной безопасности 6. Определение требуемой степени огнестойкости зданий, сооружений, строений в зависимости от их этажности, класса функциональной пожарной опасности, площади пожарного отсека и пожарной опасности технологических процессов 7. Требования безопасности при хранении РАПЭКС XPS 8. Требования безопасности при монтаже РАПЭКС ХРS 9. Общие требования пожарной безопасности к РАПЭКС ХРS и его применению в строительстве 10. Пожарно-техническая характеристики строительных конструкций с применением РАПЭКС ХРS 10.1. Стены 10.1.1. Многослойные стены 10.1.2. Фасадные системы с мокрым процессом по РАПЭКС ХРS 10.2. Крыши с РАПЭКС ХРS 10.2.1. Крыши с холодным чердаком 10.2.2. Крыши с теплым чердаком 10.2.3. Мансарды 10.2.4. Бесчердачные крыши 10.2.5. Крыши с основанием из стального профилированного листа 10.2.6. Инверсионная кровля 10.3. Полы 10.3.1. Описание 10.3.2. Защитные слои 10.3.3. Основания для полов 10.3.4. Полы холодильников Чертежи |
| Разработан: | ООО ПЕНОПЛЭКС СПб |
| Утверждён: | 24.01.2014 ООО ПЕНОПЛЭКС СПб (12) 24.01.2014 ЗАО НИСКО Индастри (12) 24.01.2014 ООО УРСА Евразия (12) |
| Нормативные ссылки: |
|



















































































































