Скачать ТУ 5216-067-36910961-2002 Ограждения дорожные, удерживающие, для автомобилей боковые, первого типа в одностороннем и двустороннем исполненииДата актуализации: 01.01.2021 ТУ 5216-067-36910961-2002
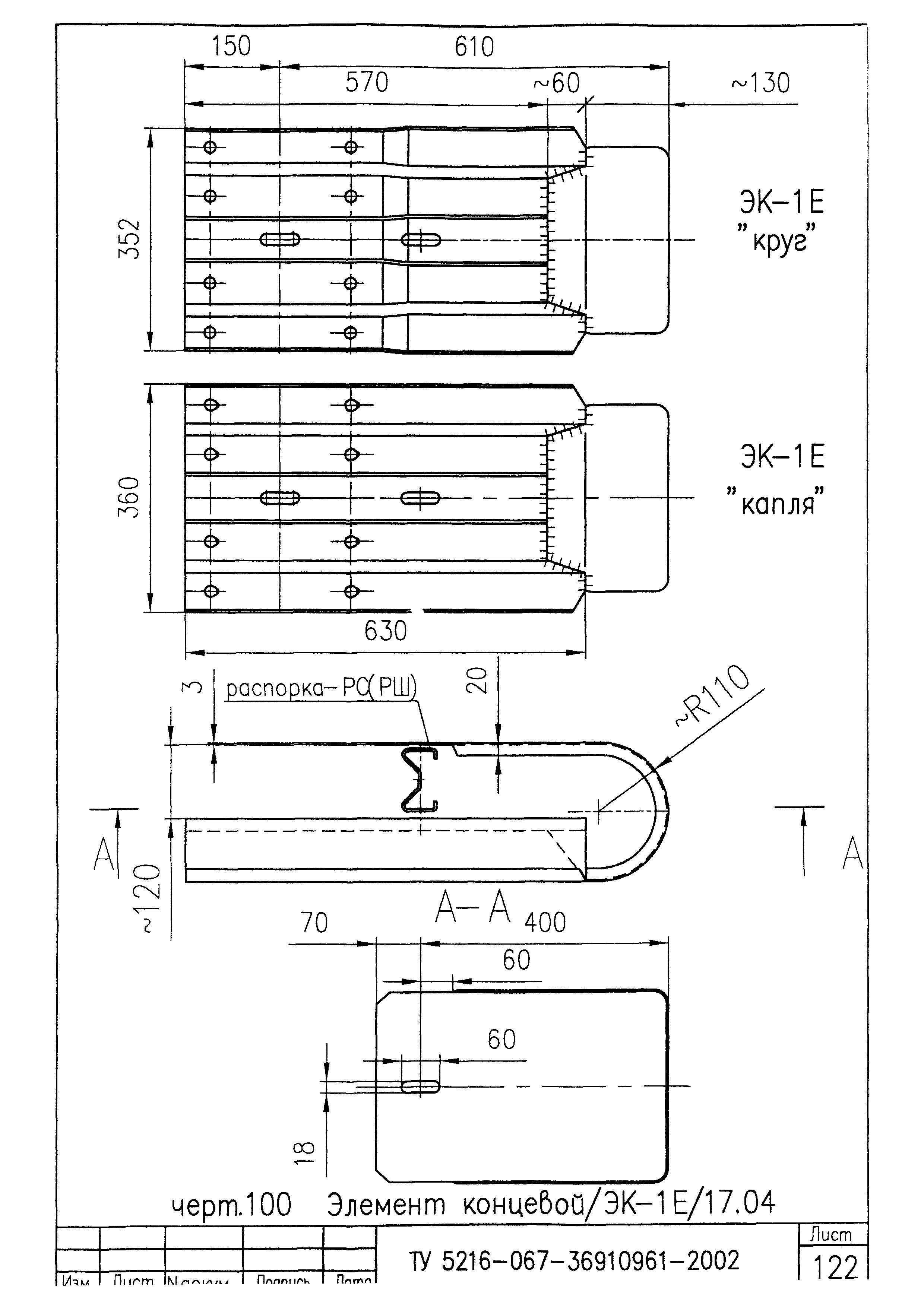
Ограждения дорожные, удерживающие, для автомобилей боковые, первого типа в одностороннем и двустороннем исполнении| Обозначение: | ТУ 5216-067-36910961-2002 | | Обозначение англ: | TU 5216-067-36910961-2002 | | Статус: | действует | | Название рус.: | Ограждения дорожные, удерживающие, для автомобилей боковые, первого типа в одностороннем и двустороннем исполнении | | Дата добавления в базу: | 01.01.2019 | | Дата актуализации: | 01.01.2021 | | Дата введения: | 10.11.2002 | | Область применения: | Технические условия распространяются на ограждения дорожные и мостовые удерживающие для автомобилей боковые, первого типа в одностороннем и двустороннем исполнении. Ограждения по настоящим ТУ предназначены для применения на автомобильных дорогах общего пользования, мостовых сооружениях и тоннелях на них, а также на дорожно-уличной сети в населенных пунктах | | Оглавление: | 1 Область применения 2 Нормативные ссылки 3 Основные параметры и размеры 4 Технические требования 5 Комплектность 6 Правила приемки 7 Методы контроля 8 Упаковка, маркировка, транспортирование и хранение 9 Указания по монтажу 10 Технология установки стоек дорожных ограждений, выпускаемых ЗАО "Южуралавтобан" 11 Сертификационные натурные испытания Чертежи и схемы Приложение 1. Комплекты начальных (конечных) участков Комплектация ограждений по ТУ | | Разработан: | ЗАО Южуралавтобан
| | Утверждён: | ЗАО Южуралавтобан
| | Принят: | 06.02.2003 Гипродорнии (Giprodornii ) 23.01.2003 Росавтодор (Rosavtodor ) 06.02.2003 Союздорпроект Минтрансстроя (Soyuzdorproject, Mintransstroy ) 10.11.2002 ГИБДД МВД России (GIBDD, Russian Federation Ministry of Internal Affairs ) ГП РосдорНИИ (Rosdornii GP ) ГУП СоюздорНИИ
| | Нормативные ссылки: | |
                                                                                                                                                    
|