Скачать Технологические схемы проведения горизонтальных и наклонных капитальных горных выработок при строительстве и реконструкции шахт

Дата актуализации: 01.01.2021

Технологические схемы проведения горизонтальных и наклонных капитальных горных выработок при строительстве и реконструкции шахт

Статус:справочные материалы, мп, тпр
Название рус.:Технологические схемы проведения горизонтальных и наклонных капитальных горных выработок при строительстве и реконструкции шахт
Дата добавления в базу:01.02.2017
Дата актуализации:01.01.2021
Область применения:Технологические схемы являются оптимальными для конкретных условий, так как при принятых на основании изложенной ниже методики темпах проходки и комплектах горнопроходческого оборудования обеспечивается наиболее высокая производительность труда с снижение затрат на проведение выработки.
Оглавление:Введение
I. Основные положения
II. Методические положения разработки технологических схем и выбора основных организационно-технических параметров проведения капитальных горных выработок
   Выбор рациональных комплектов горнопроходческого оборудования
   Определение оптимальной скорости проведения горных выработок
   Выбор основных параметров организации работ
   Порядок применения технологических схем
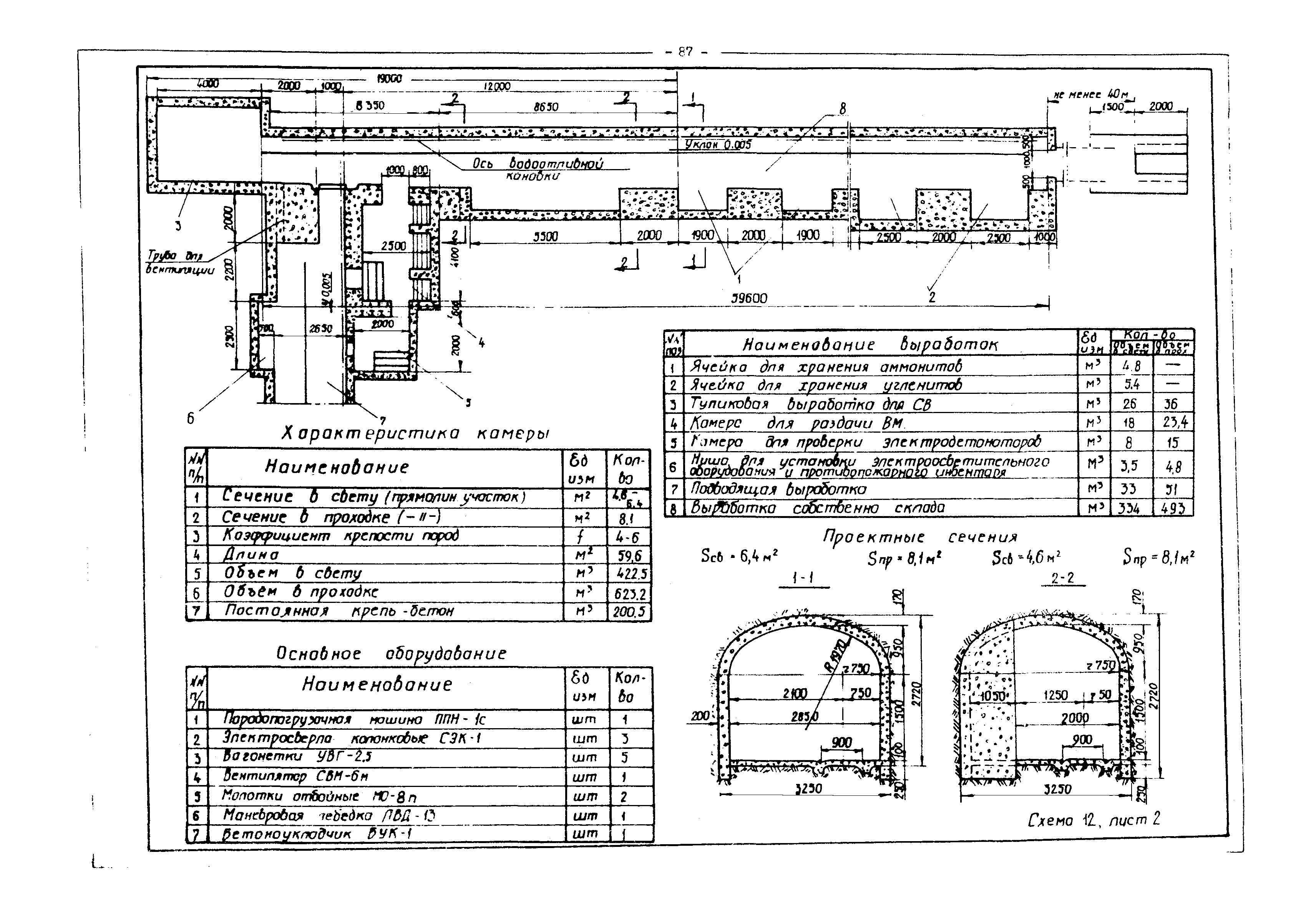
   Примерный расчет организационно-технических параметров технологической схемы проведения насосной камеры
   Примерный расчет параметров технологической схемы проведения насосной камеры
   Контурное взрывание при проведении горных выработок
III. Расчет проветривания выработок и выбор вентиляционного оборудования
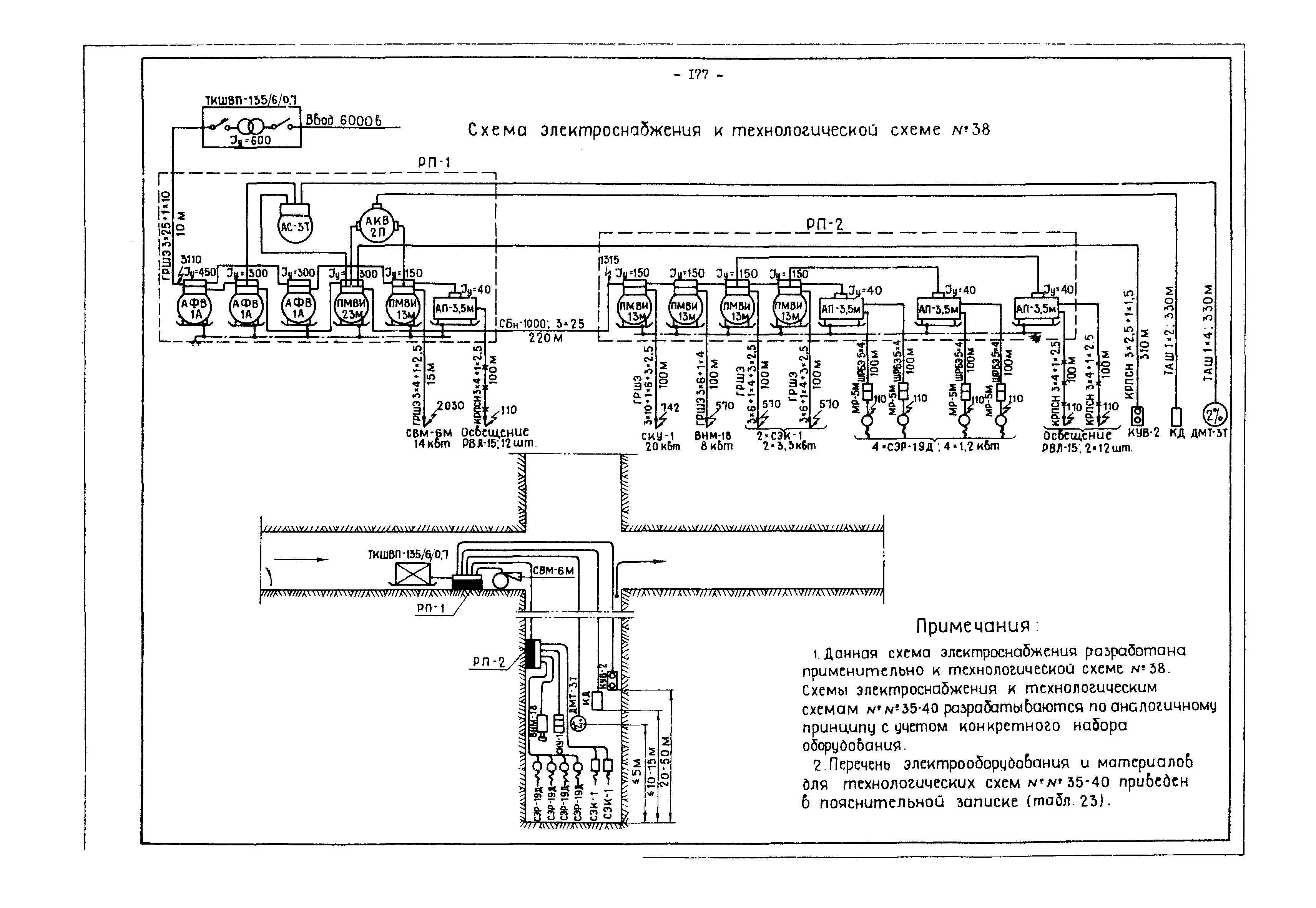
IV. Электроснабжение
V. Технологические схемы
Схемы (приложения)
Разработан: ИГД им. А.А. Скочинского
Утверждён:23.05.1974 Министерство угольной промышленности СССР (USSR Ministry of the Coal Industry )
Нормативные ссылки: