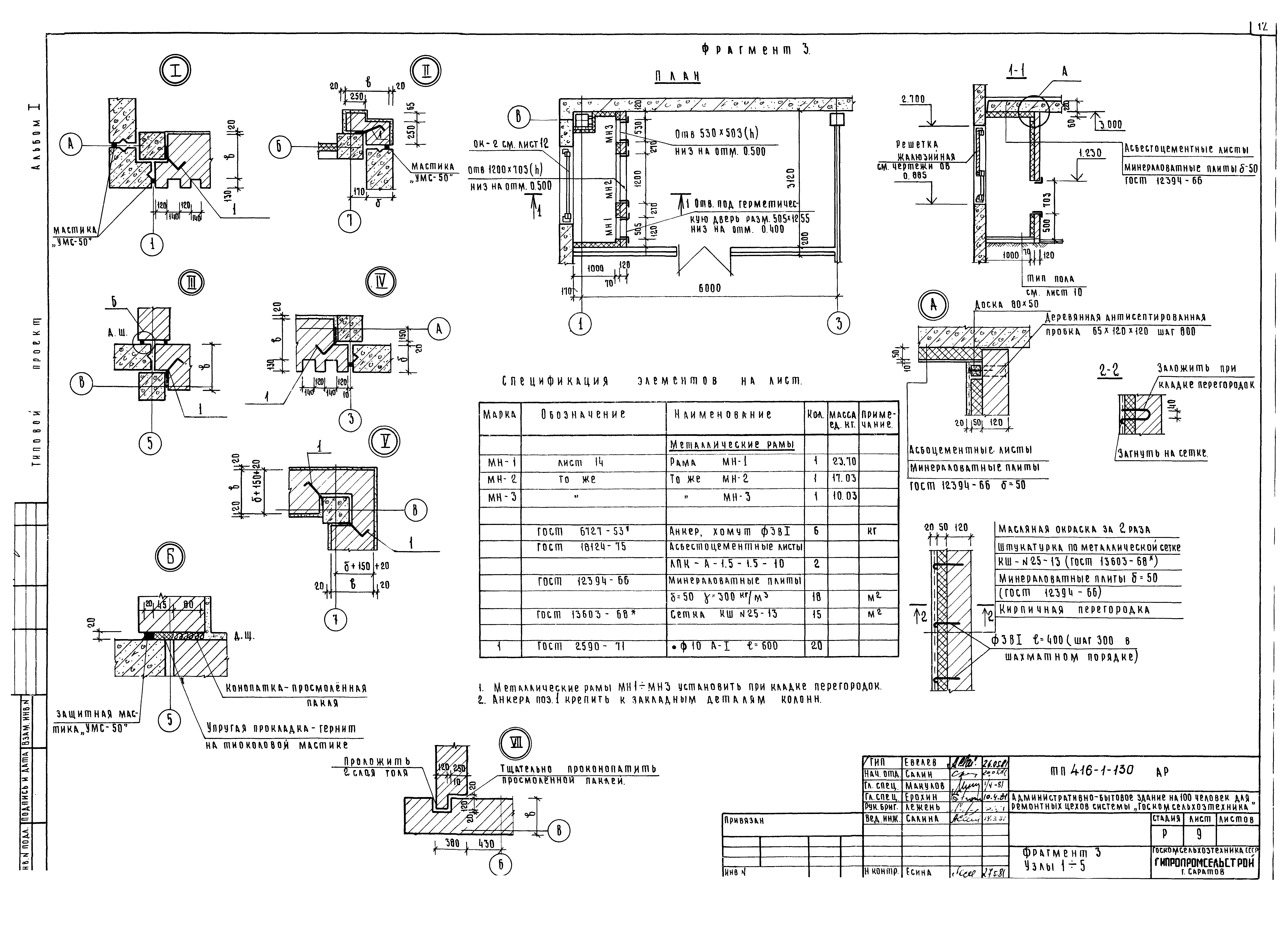
Скачать Типовой проект 416-1-130 Альбом I. Архитектурно-строительные, технологические, санитарно-технические и электротехнические чертежиДата актуализации: 01.01.2021 Типовой проект 416-1-130
Альбом I. Архитектурно-строительные, технологические, санитарно-технические и электротехнические чертежи| Обозначение: | Типовой проект 416-1-130 | | Обозначение англ: | 416-1-130 | | Статус: | заменен | | Название рус.: | Альбом I. Архитектурно-строительные, технологические, санитарно-технические и электротехнические чертежи | | Дата добавления в базу: | 01.01.2018 | | Дата актуализации: | 01.01.2021 | | Дата введения: | 10.06.1981 | | Дата окончания срока действия: | 01.06.1986 | | Разработан: | Гипропромсельстрой
| | Утверждён: | 16.12.1980 Госкомсельхозтехника СССР (62)
| | Издан: | ЦИТП Госстроя СССР (CITP, Gosstroy (USSR) 1982 г. )
| | Чем заменён: | - Типовой проект 416-1-171.88
| | Нормативные ссылки: | |
                                                                 
|