Скачать ТУ 24.09.411-82 Краны мостовые электрические специальные

Дата актуализации: 01.01.2021

ТУ 24.09.411-82

Краны мостовые электрические специальные

Обозначение: ТУ 24.09.411-82
Обозначение англ: TU 24.09.411-82
Статус:действует
Название рус.:Краны мостовые электрические специальные
Дата добавления в базу:01.01.2019
Дата актуализации:01.01.2021
Дата введения:01.04.1983
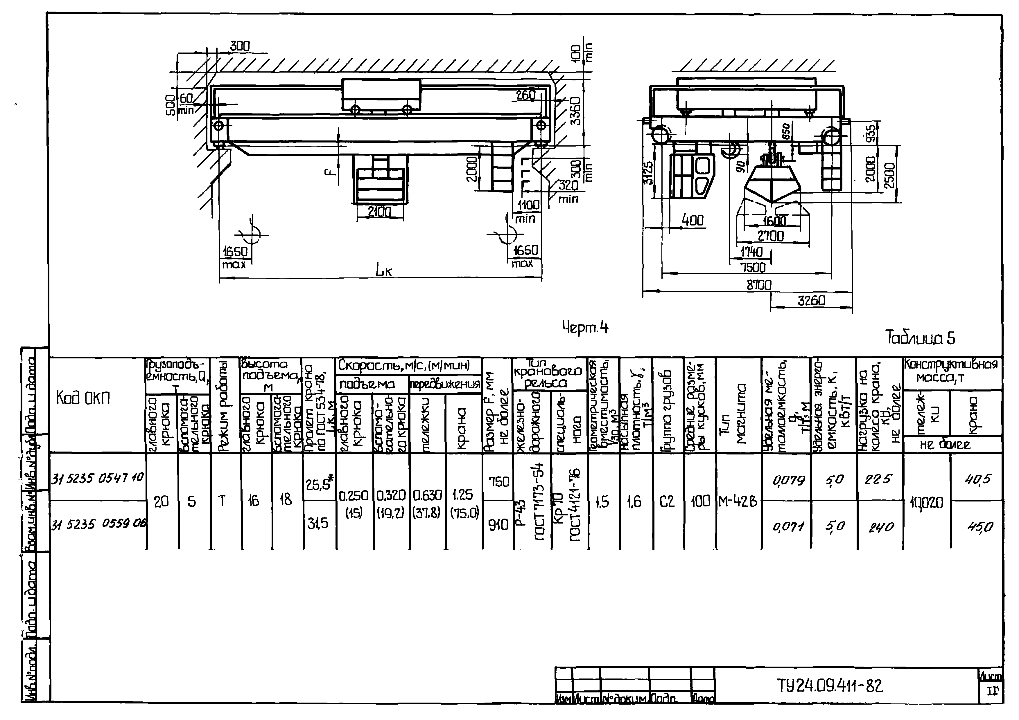
Область применения:Технические условия распространяются на мостовые электрические краны специальные: грейферные грузоподъемностью 10 т тяжелого режима работы; магнитно-грейферные грузоподъемностью 10/10, 16/3,2 и 20/5 т тяжелого режима работы; магнитные грузоподъемностью 16; 16/3,2 и 20/5 т тяжелого режима работы с магнитом на главном крюке; с гибким подвесом траверсы грузоподъемностью 10, 16 и 20 т тяжелого режима работы с продольным и поперечным расположением траверсы; с гибким подвесом траверсы и вращающейся тележкой грузоподъемностью 10 т тяжелого режима работы; с двумя тележками грузоподъемностью 10 + 10 т среднего и тяжелого режимов работы; копровые грузоподъемностью 16 т тяжелого режима работы; с двумя скоростями на каждом механизме грузоподъемностью 16/3,2 т легкого и среднего режимов работы.
Оглавление:1. Технические требования
   1.1 Общие требования
   1.2 Основные параметры и размеры
   1.3 Требования к материалам
   1.4 Требования к конструкции
   1.5 Требования к сборочным единицам, элементам и деталям
   1.6 Требования к сварным соединениям
   1.7 Требования к покрытиям
   1.8 Требования к электрооборудованию
   1.9 Требования к надёжности
   1.10 Комплектность
   1.11 Маркировка
   1.12 Упаковка
2. Требования безопасности
3. Правила приёмки
4. Методы контроля (испытаний)
5. Транспортирование и хранение
6. Указания по эксплуатации
7. Гарантии изготовителя
Приложение 1 Перечень оборудования, необходимого для проведения контроля и испытаний
Приложение 2 Перечень документов, на которые даны ссылки в настоящих технических условиях
Разработан: ПО Кран
Утверждён:10.12.1982 ВПО Союзподъемтрансмаш
Принят:12.11.1982 ВНИИПТМАШ (VNIIPTMASH )
15.11.1982 Минавтопром СССР (USSR Minavtoprom )
22.11.1982 Бюро экспертизы МПС (2233-03/6559)
18.11.1982 ЦК профсоюза рабочих тяжелого машиностроения
Список изменений:
Заменяет собой:
  • ТУ 24-9-411-76
Нормативные ссылки:
ТУ 24.09.411-82ТУ 24.09.411-82ТУ 24.09.411-82ТУ 24.09.411-82ТУ 24.09.411-82ТУ 24.09.411-82ТУ 24.09.411-82ТУ 24.09.411-82ТУ 24.09.411-82ТУ 24.09.411-82ТУ 24.09.411-82ТУ 24.09.411-82ТУ 24.09.411-82ТУ 24.09.411-82ТУ 24.09.411-82ТУ 24.09.411-82ТУ 24.09.411-82ТУ 24.09.411-82ТУ 24.09.411-82ТУ 24.09.411-82ТУ 24.09.411-82ТУ 24.09.411-82ТУ 24.09.411-82ТУ 24.09.411-82ТУ 24.09.411-82ТУ 24.09.411-82ТУ 24.09.411-82ТУ 24.09.411-82ТУ 24.09.411-82ТУ 24.09.411-82ТУ 24.09.411-82ТУ 24.09.411-82ТУ 24.09.411-82ТУ 24.09.411-82ТУ 24.09.411-82ТУ 24.09.411-82ТУ 24.09.411-82ТУ 24.09.411-82ТУ 24.09.411-82ТУ 24.09.411-82ТУ 24.09.411-82ТУ 24.09.411-82ТУ 24.09.411-82ТУ 24.09.411-82ТУ 24.09.411-82ТУ 24.09.411-82ТУ 24.09.411-82ТУ 24.09.411-82ТУ 24.09.411-82ТУ 24.09.411-82ТУ 24.09.411-82ТУ 24.09.411-82ТУ 24.09.411-82ТУ 24.09.411-82ТУ 24.09.411-82ТУ 24.09.411-82ТУ 24.09.411-82ТУ 24.09.411-82ТУ 24.09.411-82ТУ 24.09.411-82ТУ 24.09.411-82ТУ 24.09.411-82ТУ 24.09.411-82ТУ 24.09.411-82ТУ 24.09.411-82ТУ 24.09.411-82ТУ 24.09.411-82ТУ 24.09.411-82ТУ 24.09.411-82ТУ 24.09.411-82ТУ 24.09.411-82ТУ 24.09.411-82ТУ 24.09.411-82ТУ 24.09.411-82ТУ 24.09.411-82ТУ 24.09.411-82ТУ 24.09.411-82ТУ 24.09.411-82ТУ 24.09.411-82ТУ 24.09.411-82ТУ 24.09.411-82ТУ 24.09.411-82ТУ 24.09.411-82ТУ 24.09.411-82ТУ 24.09.411-82ТУ 24.09.411-82ТУ 24.09.411-82ТУ 24.09.411-82ТУ 24.09.411-82ТУ 24.09.411-82ТУ 24.09.411-82ТУ 24.09.411-82ТУ 24.09.411-82ТУ 24.09.411-82ТУ 24.09.411-82ТУ 24.09.411-82ТУ 24.09.411-82ТУ 24.09.411-82ТУ 24.09.411-82ТУ 24.09.411-82ТУ 24.09.411-82ТУ 24.09.411-82ТУ 24.09.411-82ТУ 24.09.411-82ТУ 24.09.411-82ТУ 24.09.411-82ТУ 24.09.411-82ТУ 24.09.411-82ТУ 24.09.411-82ТУ 24.09.411-82ТУ 24.09.411-82ТУ 24.09.411-82ТУ 24.09.411-82ТУ 24.09.411-82ТУ 24.09.411-82ТУ 24.09.411-82ТУ 24.09.411-82ТУ 24.09.411-82ТУ 24.09.411-82

Текстовое изменение № 7 от 15.06.1989

№ 7№ 7№ 7№ 7

Текстовое изменение № 8 от 01.01.1990

№ 8№ 8№ 8№ 8№ 8№ 8№ 8№ 8

Текстовое изменение № 1 от 15.10.1984

№ 1№ 1№ 1№ 1№ 1№ 1

Текстовое изменение № 2 от 05.02.1985

№ 2№ 2№ 2№ 2

Текстовое изменение № 3 от 01.09.1985

№ 3№ 3№ 3№ 3№ 3№ 3№ 3№ 3№ 3№ 3

Текстовое изменение № 4 от 10.01.1986

№ 4№ 4№ 4№ 4№ 4№ 4№ 4№ 4№ 4

Текстовое изменение № 5 от 21.04.1986

№ 5№ 5№ 5№ 5№ 5№ 5

Текстовое изменение № 6 от 19.01.1988

№ 6№ 6№ 6№ 6№ 6№ 6№ 6№ 6№ 6№ 6№ 6№ 6№ 6№ 6№ 6