Скачать Методические рекомендации по построению комплексно-механизированных процессов производства земляных работДата актуализации: 01.01.2021
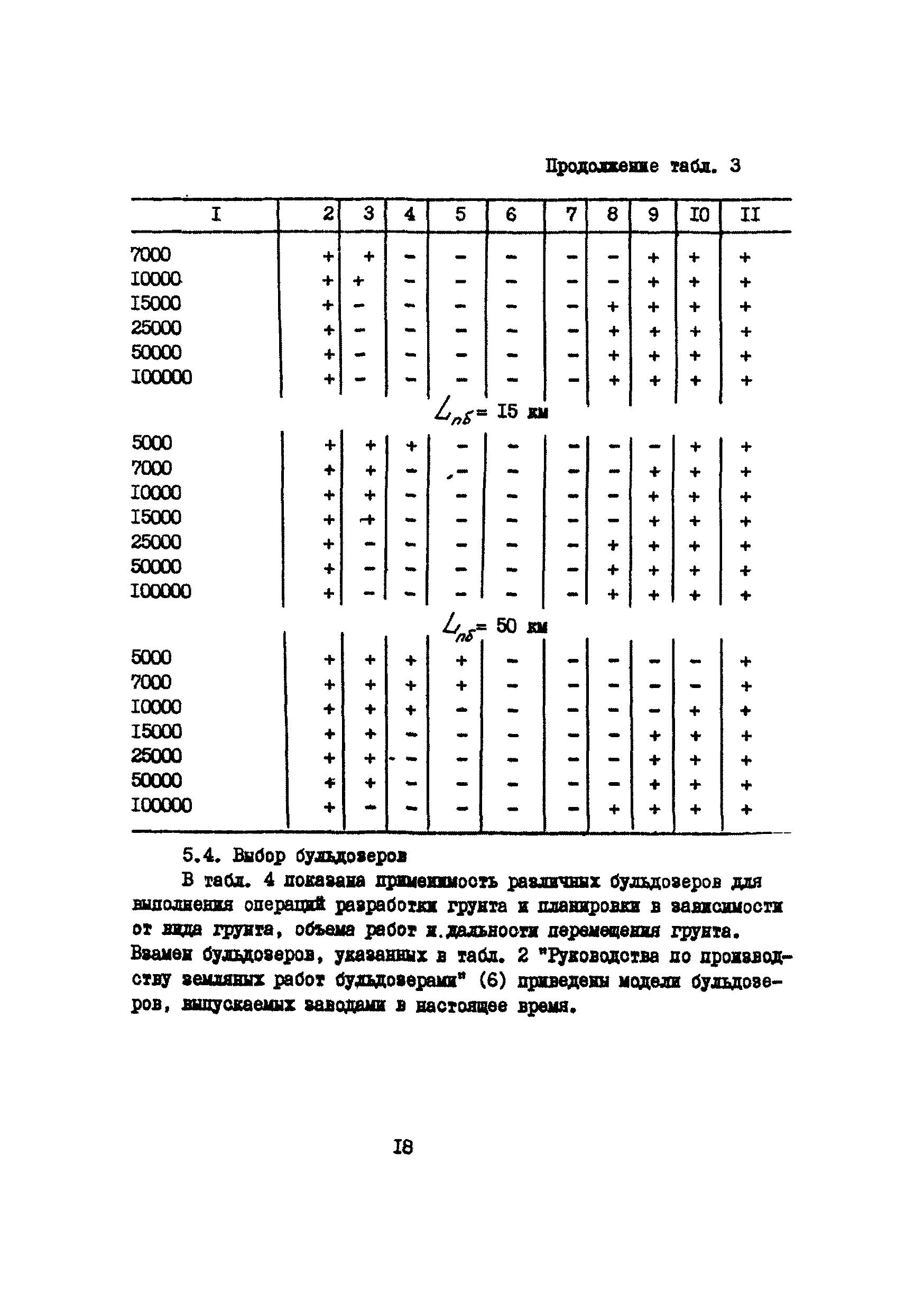
Методические рекомендации по построению комплексно-механизированных процессов производства земляных работ| Статус: | справочные материалы, мп, тпр | | Название рус.: | Методические рекомендации по построению комплексно-механизированных процессов производства земляных работ | | Дата добавления в базу: | 01.01.2019 | | Дата актуализации: | 01.01.2021 | | Область применения: | В методических рекомендациях приведена последовательность построения комплексно-механизированного процесса, определены условия производства земляных работ, показано, как выбрать машины для отдельных операций, как формировать комплексы машин для технологических процессов при возведении земляных сооружений и определить их эффективность. Даны примеры построения комплексно-механизированных процессов. Приложены: перечень операций, применяемых в производстве земляных работ, технологические возможности ряда новых машин, сравнительные данные по удельным приведенным затратам. Методические рекомендации предназначены для использования при разработке технологических карт и ППР в Оргтехстроях и строительных организациях | | Оглавление: | Введение 1. Общие положения 2. Последовательность построения комплексно-механизированного процесса 3. Определение условий производства работ 4. Предварительный выбор способа производства работ 5. Выбор средств механизации для отдельных технологических операций 5.1. Выбор одноковшовых экскаваторов 5.2. Выбор траншейных экскаваторов 5.3. Выбор скреперов 5.4. Выбор бульдозеров 6. Определение последовательности операций технологического процесса и их взаимосвязей 7. Формирование комплекса машин и механизмов 7.1. Определение количества машин, участвующих в составе комплекса 7.2. Определение количества автомобилей-самосвалов для транспортировки грунта 7.3. Определение состава комплекса машин 8. Определение показателей комплексно-механизированного процесса 8.1. Продолжительность комплексно-механизированного процесса 8.2. Трудоемоксть комплексно-механизированного процесса 8.3. Удельные приведенные затраты на единицу продукции 9. Определение эффективности комплексно-механизированного процесса 10. Рекомендации по разработке технологической карты комплексно-механизированного процесса производства земляных работ Пример 1 построения комплексно-механизированного технологического процесса разработки котлована в немерзлых грунтах 1 группы Пример 2 построения комплексно-механизированного технологического процесса разработки котлована в крупно-обломочных и трещиновато-скальных грунтах Приложение 1. Перечень операций, применяемых в производстве земляных работ и их индексация Приложение 2. Технологические возможности одноковшовых гидравлических экскаваторов Приложение 3. Сравнение удельных приведенных затрат при разработке траншей гидравлическими экскаваторами, оборудованными обратной лопатой, с отсыпкой грунта в отвал Приложение 4. Сравнение удельных приведенных затрат при разработке траншей гидравлическими экскаваторами, оборудованными обратной лопатой, с погрузкой грунта в автотранспорт Приложение 5. Сравнение удельных приведенных затрат при разработке котлованов гидравлическими экскаваторами, оборудованными обратной лопатой, с погрузкой грунта в автотранспорт Приложение 6. Технологические возможности зачистных устройств на ковшах гидравлических экскаваторов Приложение 7. Технологические возможности гидравлического экскаватора ЭО-3322В с полуавтоматической системой для планировочных работ Приложение 8. Технологические возможности роторных траншейных экскаваторов Приложение 9. Технологические возможности цепных траншейных экскаваторов Приложение 10. Размеры и профили траншей (м), отрываемых траншейными экскаваторами Приложение 11. Технологические возможности скреперов Приложение 12. Сравнение удельных приведенных затрат при разработке котлована и возведении отсыпаемой насыпи скрепером ДЗ-13 с толкачом ДЗ-118 и скрепером Д-357П с толкачом ДЗ-35 Литература | | Разработан: | ЦНИИОМТП Госстроя СССР
| | Утверждён: | 01.01.1982 Госстрой СССР
| | Издан: | ЦНИИОМТП Госстроя СССР (1982 г. )
| | Нормативные ссылки: | |
                                                                                             
|