Скачать Руководство по проектированию сборно-монолитных железобетонных оболочек положительной кривизны для покрытий промышленных зданий

Дата актуализации: 01.01.2021

Руководство по проектированию сборно-монолитных железобетонных оболочек положительной кривизны для покрытий промышленных зданий

Статус:справочные материалы, мп, тпр
Название рус.:Руководство по проектированию сборно-монолитных железобетонных оболочек положительной кривизны для покрытий промышленных зданий
Дата добавления в базу:01.02.2020
Дата актуализации:01.01.2021
Область применения:Руководство содержит основные положения, принятые при разработке рабочих чертежей типовых оболочек серии 1.466-1, а также рекомендации по применению для покрытий промышленных зданий сборно-монолитных оболочек положительной кривизны, монтируемых без кондукторов. Руководство предназначено для инженерно-технических работников проектных и строительно-монтажных организаций, а также студентов строительных вузов
Оглавление:Предисловие
1. Общие положения
2. Область применения оболочек
3. Проектирование оболочек
   Назначение геометрических параметров
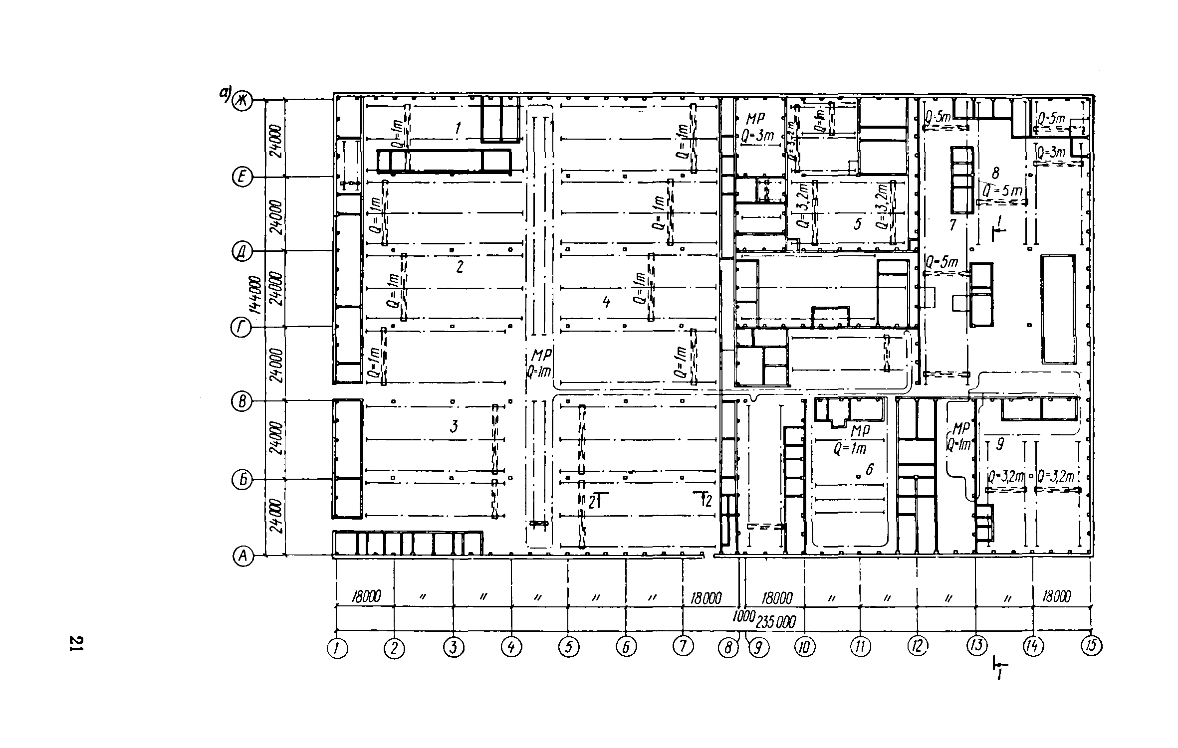
   Компоновочная схема оболочек
   Типы плит и контурных элементов
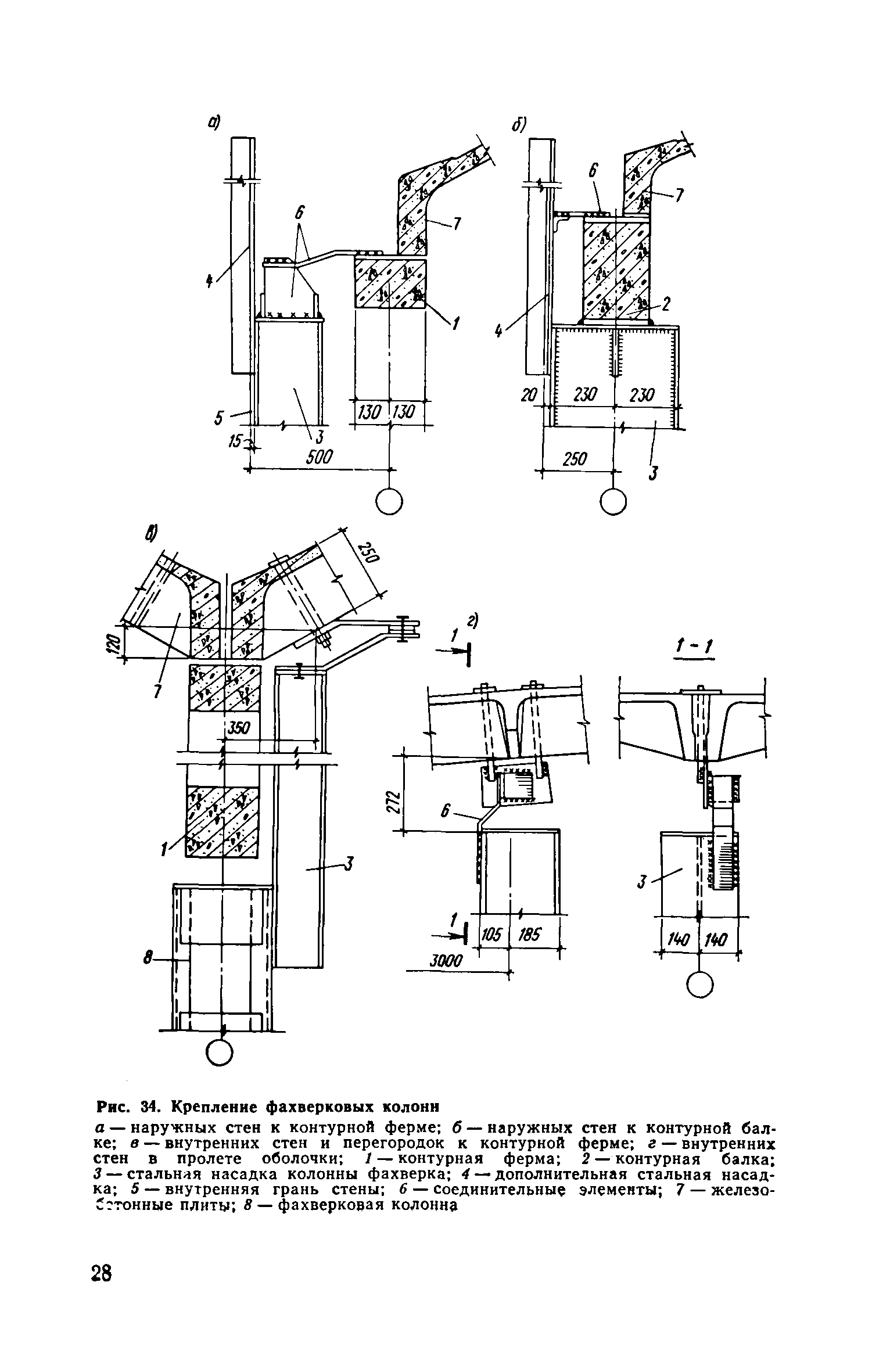
   Сопряжения элементов оболочек
   Основные положения расчета
4. Применение типовых оболочек в проектах
   Параметры зданий
   Колонны
   Стены в перегородки
   Кровля
   Фонари и отверстия в покрытии
   Крепление путей подвесного транспорта коммуникаций и подвесных потолков
   Рекомендации по определению сметной стоимости
5. Изготовление элементов оболочек
6. Возведение оболочек
   Общие указания
   Перевозка и складирование изделий
   Монтаж оболочек
   Замоноличивание сопряжений
   Демонтаж затяжек
7. Основные положения методики определения технико-экономических показателей
Приложение 1. Алгоритм и программа определения координат точек оболочки на ЭВМ «Мир»
Приложение 2. Пример расчета стоимости и трудоемкости монтажа оболочек
Приложение 3. Технико-экономические показатели зданий с оболочками и плоскостными конструкциями покрытий
Разработан: Проектный институт № 1 Госстроя СССР
ЦНИИпромзданий Госстроя СССР
Оргтехстрой Минстроя СССР
Утверждён: ЦНИИпромзданий Госстроя СССР (TsNIIpromzdaniy, USSR Gosstroy )
Издан: Стройиздат (1979 г. )
Нормативные ссылки: