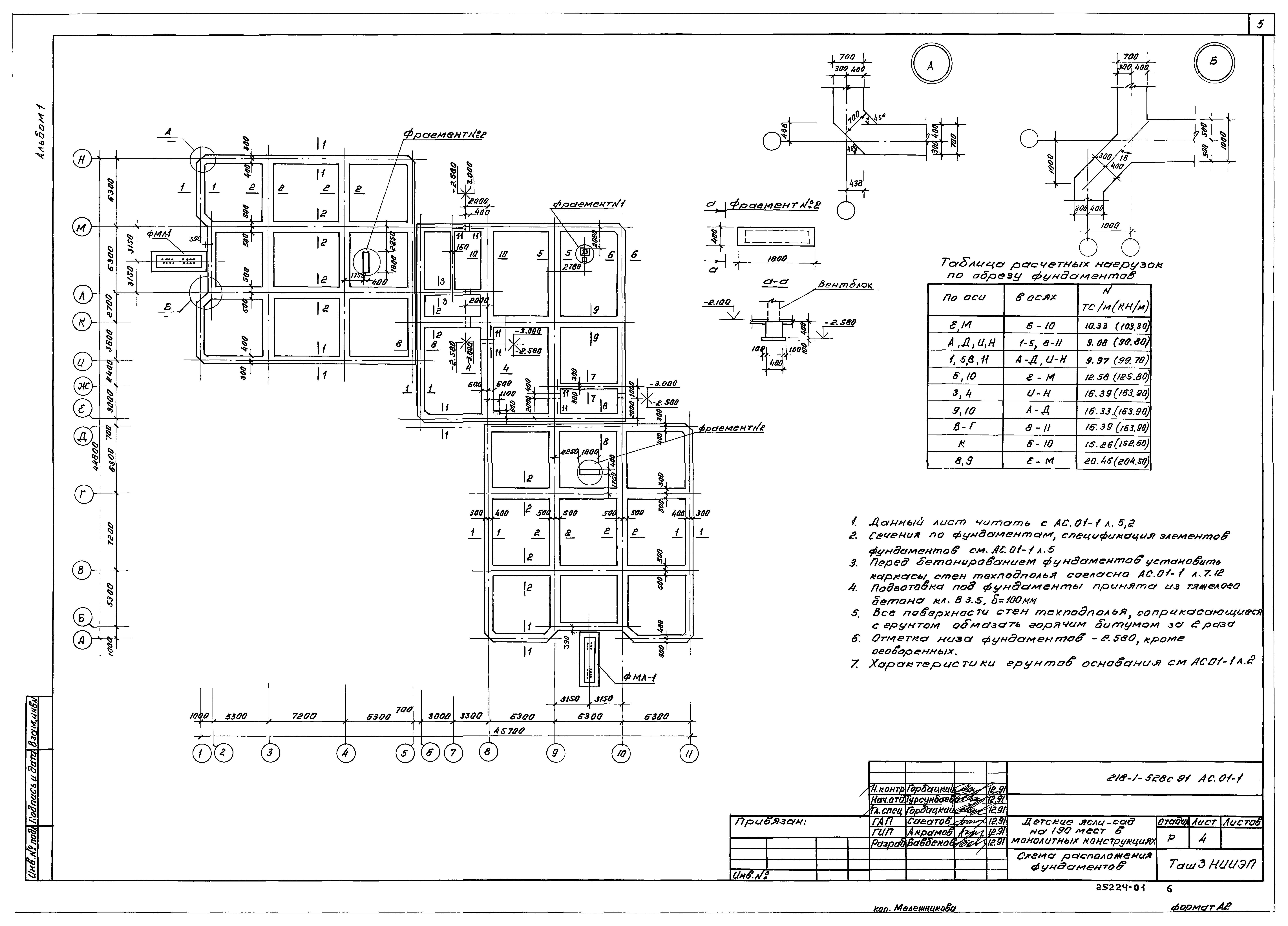
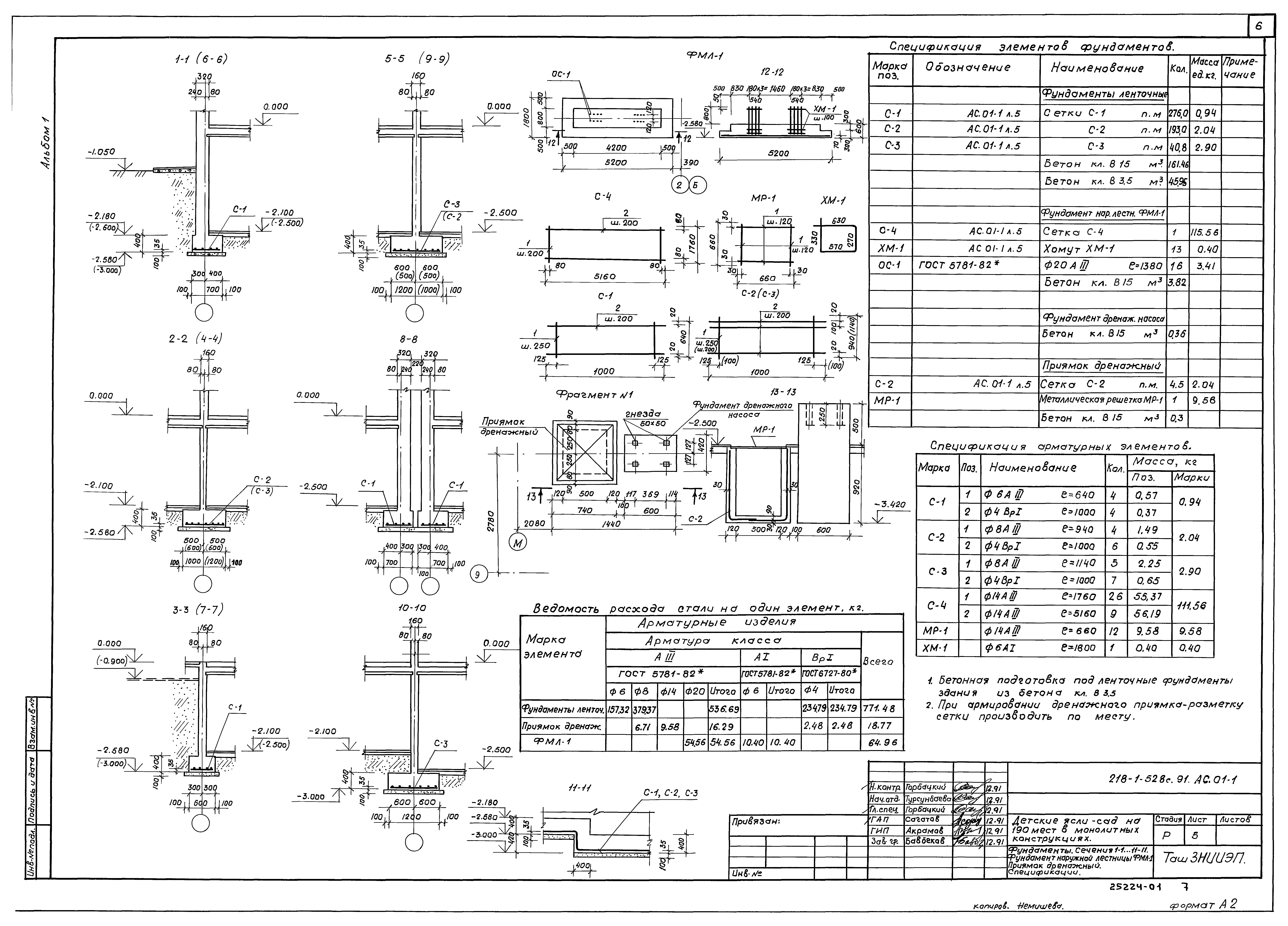
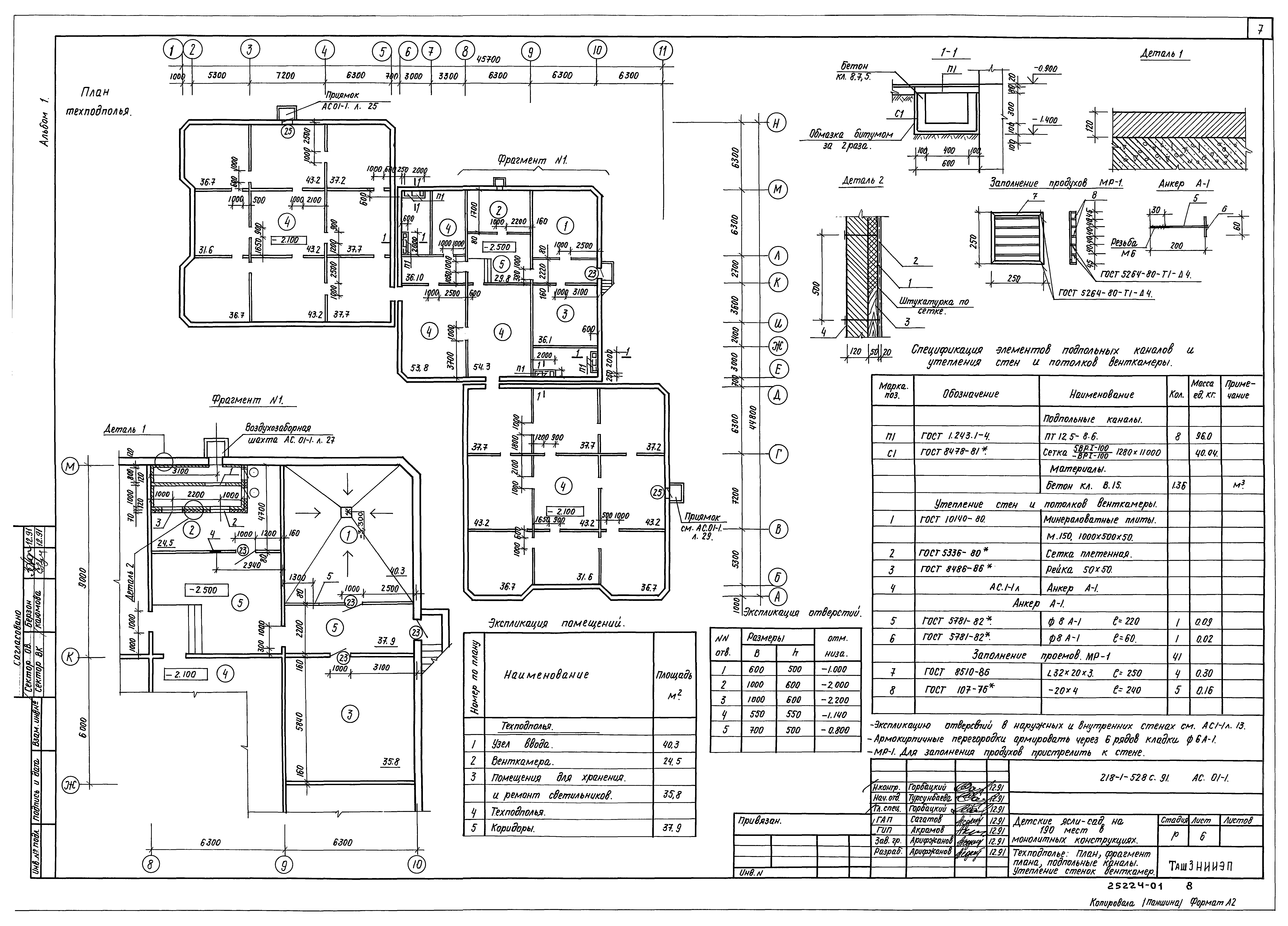
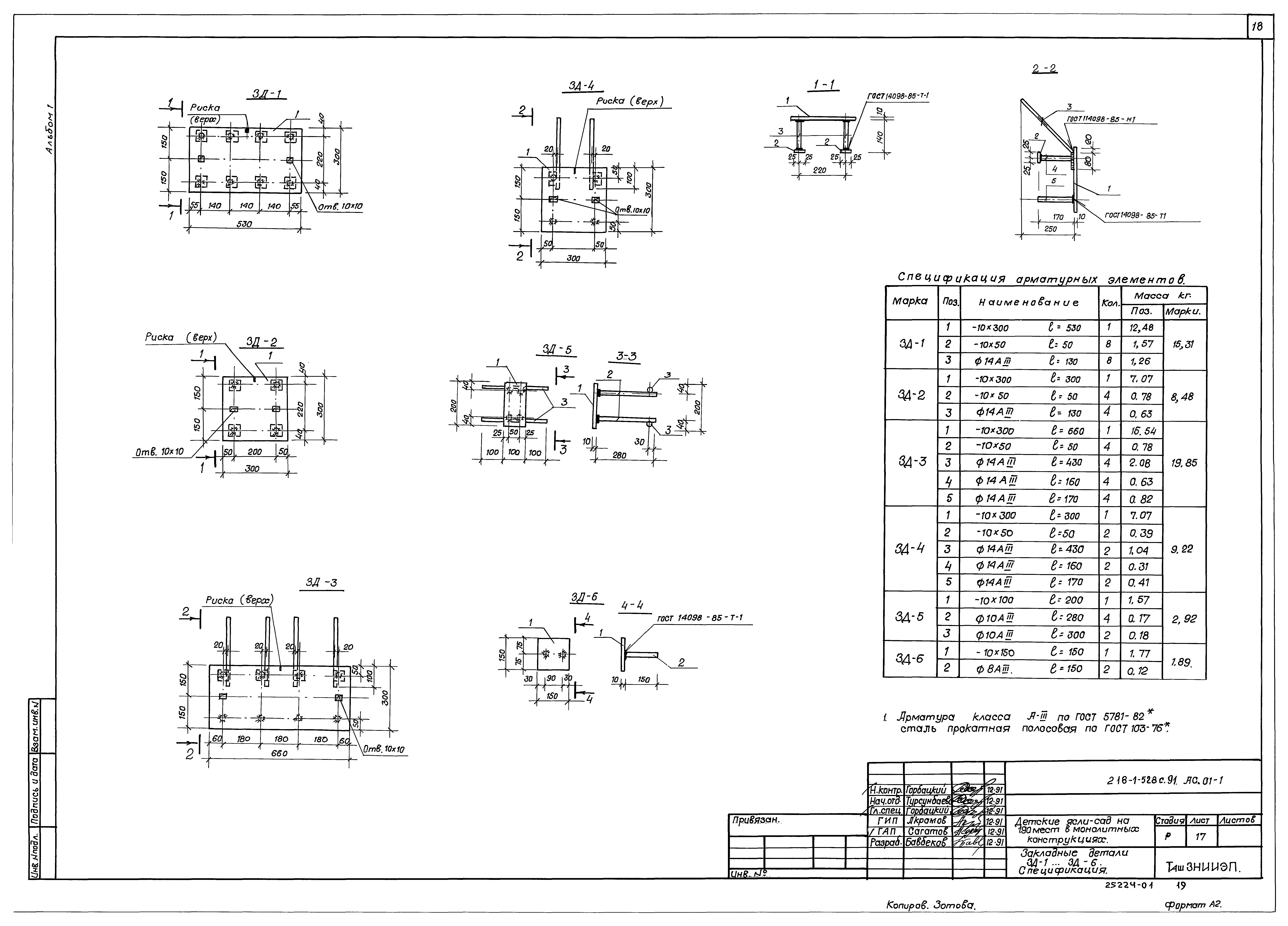
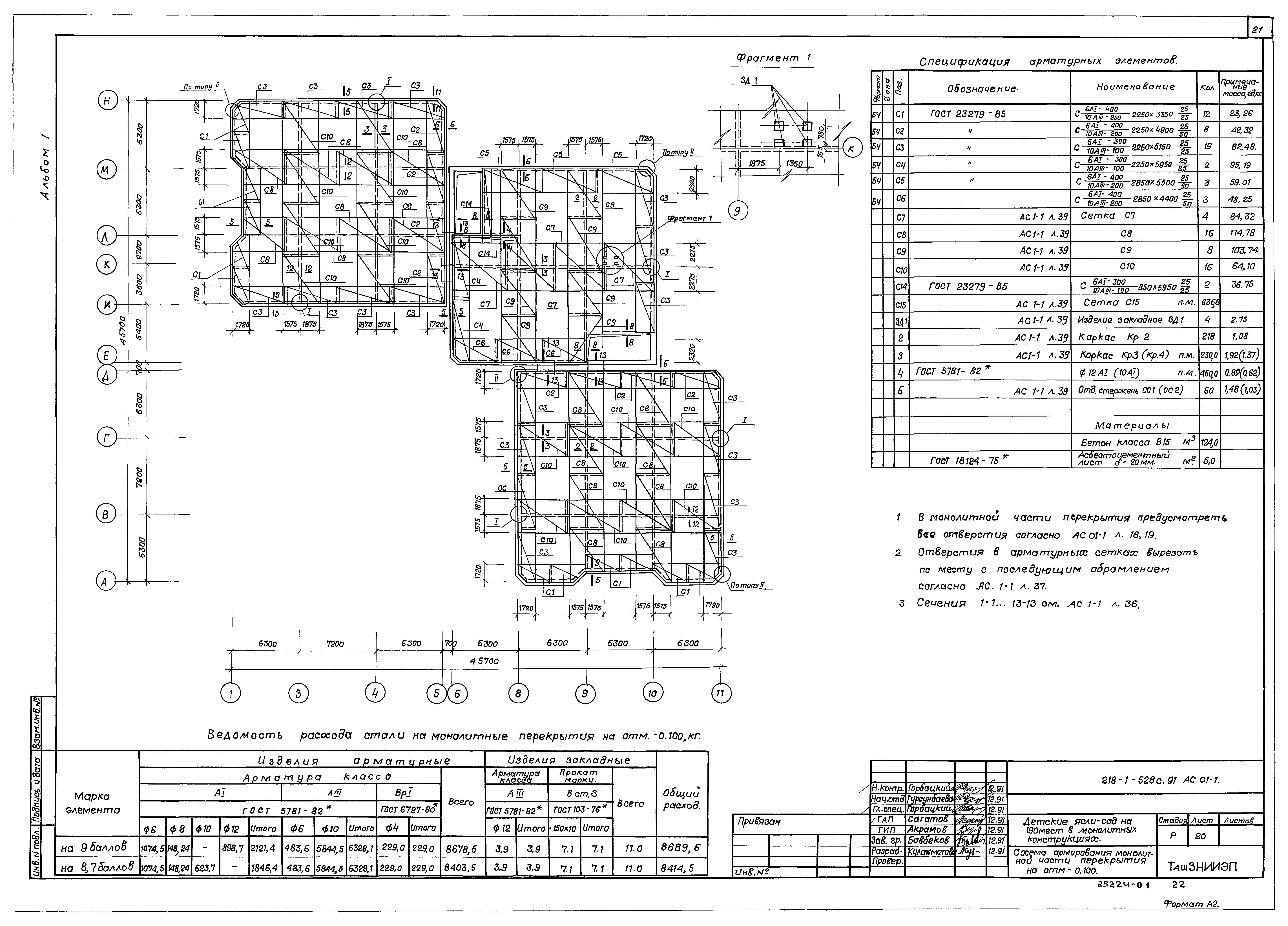
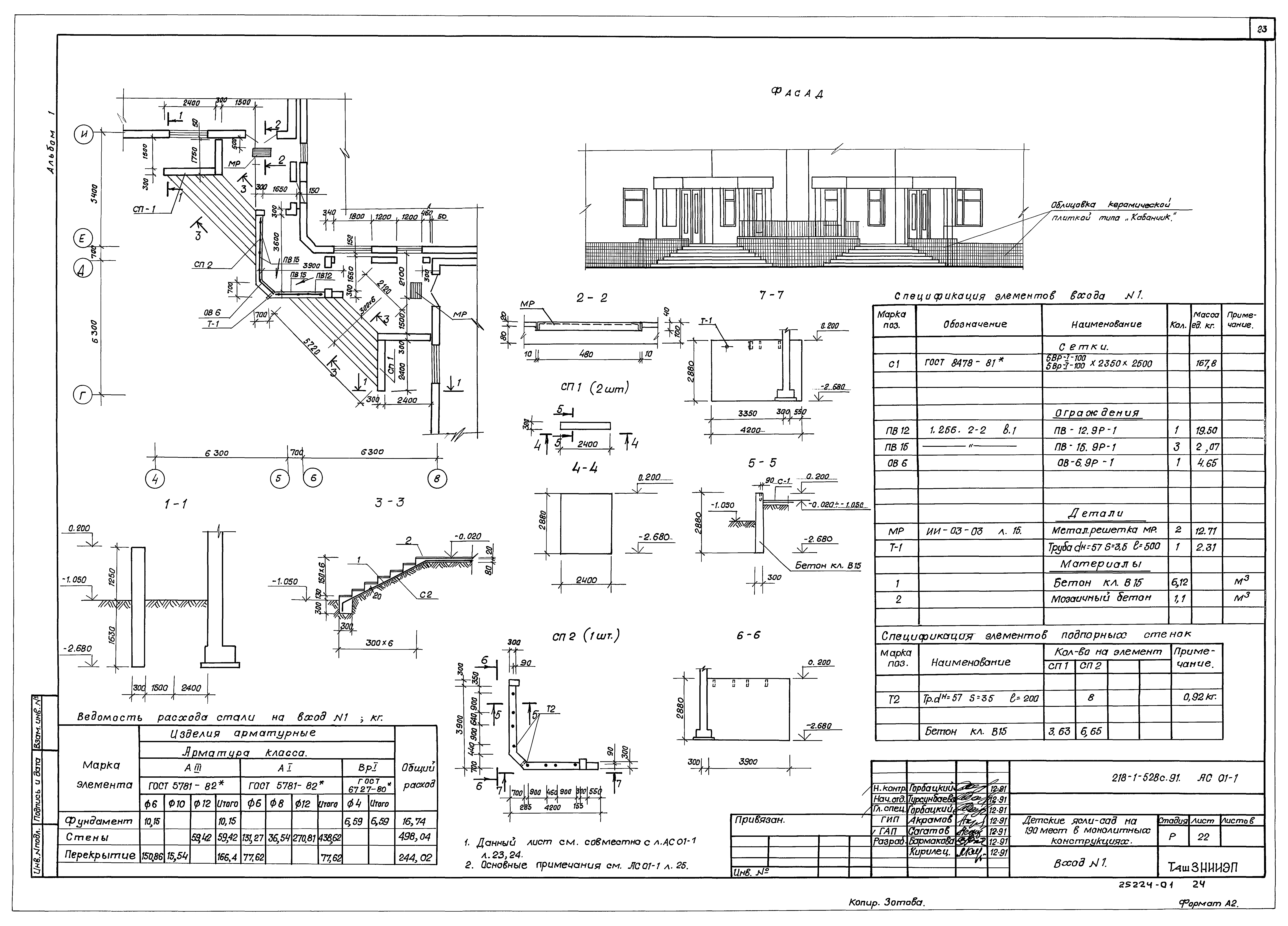
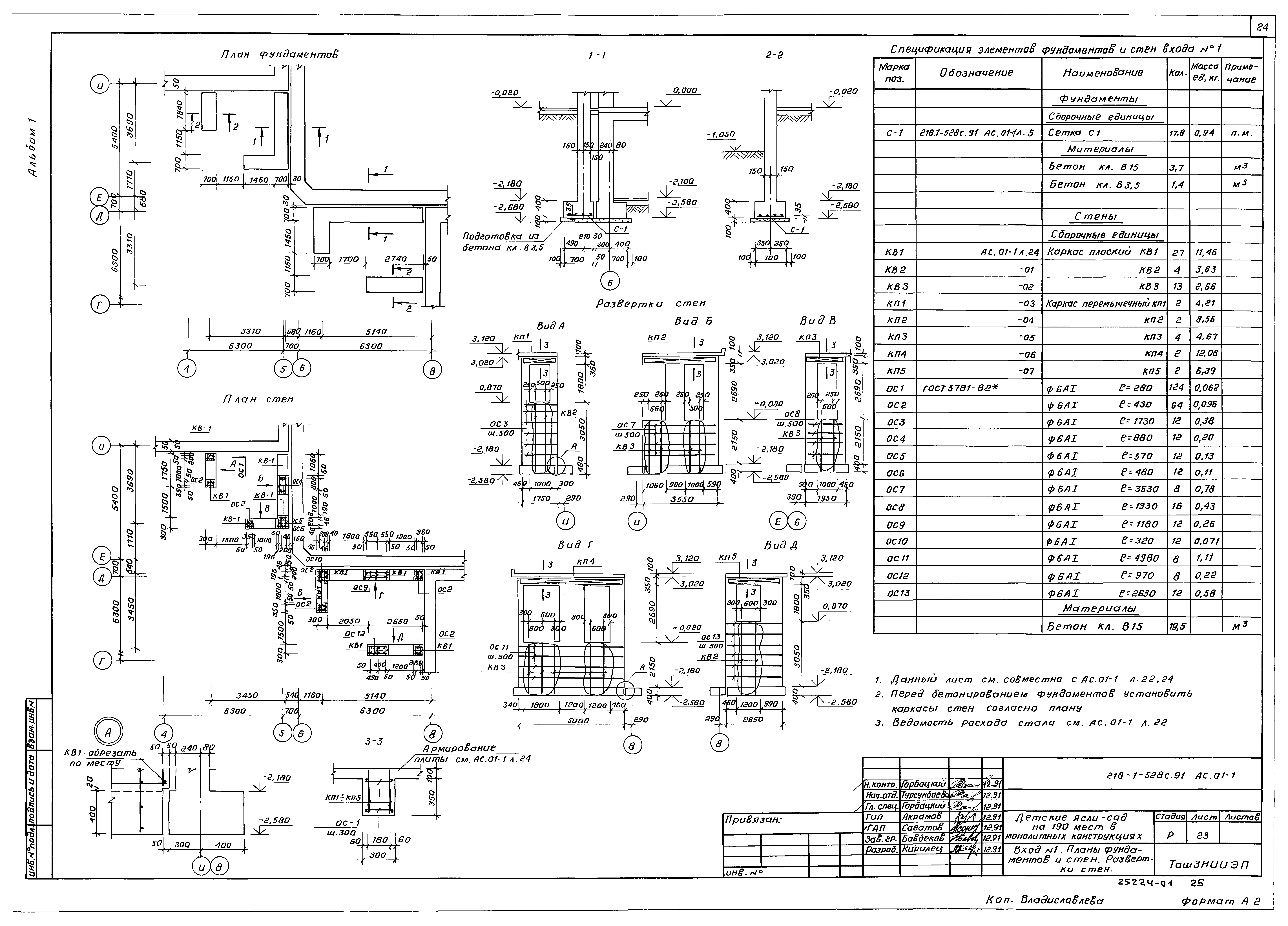
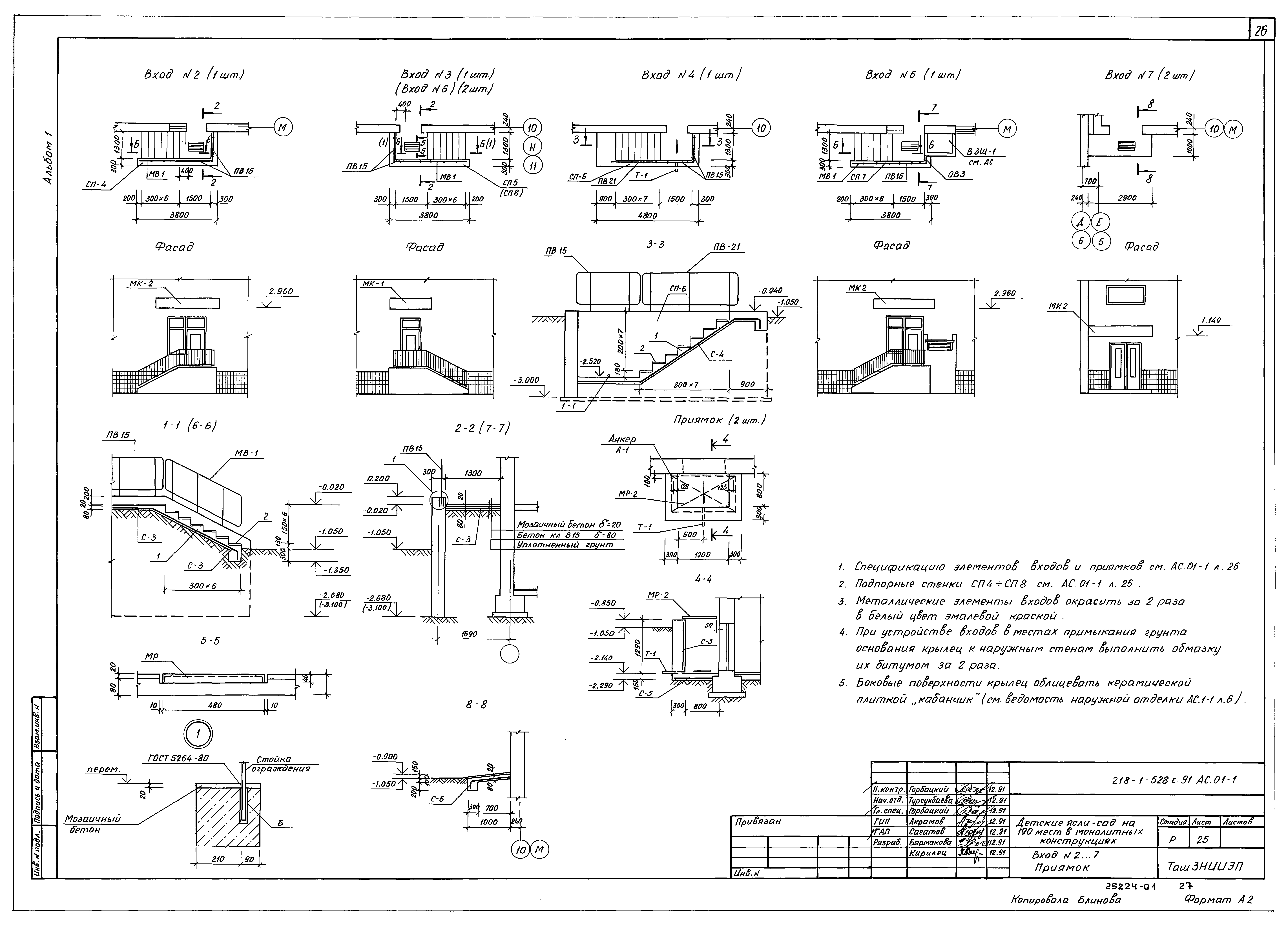
Скачать Типовой проект 218-1-528с.91 Альбом 1. Архитектурно-строительные решения ниже отм. 0.000Дата актуализации: 01.01.2021
|
| Обозначение: | Типовой проект 218-1-528с.91 |
| Обозначение англ: | 218-1-528с.91 |
| Статус: | не определен законодательством |
| Название рус.: | Альбом 1. Архитектурно-строительные решения ниже отм. 0.000 |
| Дата добавления в базу: | 01.02.2020 |
| Дата актуализации: | 01.01.2021 |
| Дата введения: | 06.12.1991 |
| Дата окончания срока действия: | 30.06.2003 |
| Разработан: | ТашЗНИИЭП Госгражданстроя |
| Утверждён: | 03.04.1991 Госкомархитектура (60) |
| Нормативные ссылки: |




























