Скачать Основные направления строительного проектирования объектов угольной промышленности СССР на XI пятилетку и до 1990 года

Дата актуализации: 01.01.2021

Основные направления строительного проектирования объектов угольной промышленности СССР на XI пятилетку и до 1990 года

Статус:справочные материалы, мп, тпр
Название рус.:Основные направления строительного проектирования объектов угольной промышленности СССР на XI пятилетку и до 1990 года
Дата добавления в базу:01.01.2021
Дата актуализации:01.01.2021
Область применения:Основные направления строительного проектирования являются обязательным документом для проектных институтов Минуглепрома СССР, а также организаций других министерств я ведомств, осуществляющих проектирование и строительство для угольной промышленности. Она направлены на обеспечение единой технической политики при разработке проектов на строительство новых, расширение, реконструкцию, техническое перевооружение действующих предприятий, зданий и сооружений на всех стадиях проектирования в дополнение к действующим общесоюзным а ведомственным нормативным материалам.
Оглавление:1. Генеральный план предприятия
2. Здания и сооружения
2.1. Объемно-планировочные и архитектурные решения
   2.2. Строительные конструкции
3. Дополнительные рекомендации по проектированию в Северной строительно-климатической зоне
Приложение 1. Ориентировочные объемы внедрения прогрессивных конструкций на ХI пятилетку и до 1990 года
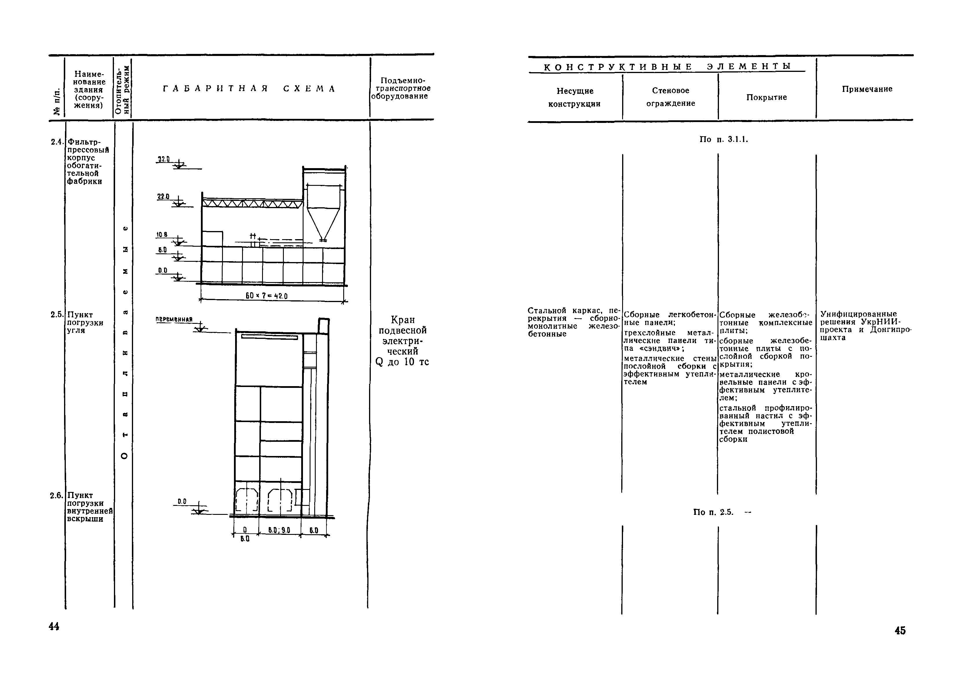
Приложение 2. Габаритные схемы н конструкции основных зданий и сооружений шахт, разрезов, обогатительных фабрик, заводов угольного машиностроения, баз стройиндустрии
Приложение 3. Номенклатура зданий и сооружений предприятий угольной промышленности, подлежащих выполнению в легких металлических конструкциях комплектной поставки (ЛМК) и в блочно-комплектном исполнении
Приложение 4. Перечень унифицированных проектных решений, подлежащих применению, и стадии их разработки
Приложение 5. Перечень проектов зданий и сооружений, рекомендуемых для повторного применения
Приложение 6. Перечень технологического оборудования шахт, разрезов и обогатительных фабрик угольной промышленности, подлежащих установке на открытых площадках или в производственных неотапливаемых зданиях
Разработан: ЦНИИпромзданий
Центрогипрошахт
Днепрогипрошахт
Карагандагипрошахт
Донгипрошахт
Ростовгипрошахт
КузНИИшахтострой
ВО Союзшахтопроект
УкрНИИпроект
Южгипрошахт
Гипрошахт
Сибгипрошахт
Сибгипрошахтострой
Донгипрошахтострой
Утверждён: Министерство угольной промышленности СССР (USSR Ministry of the Coal Industry )
Нормативные ссылки: