Скачать МТ-РТС-ВИК-М-01-2017 Методика визуального и измерительного контроля цапф и траверс металлоразливочных ковшей, крюков и удлинителей крюковых подвесок кранов, транспортирующих расплавленный металл

Дата актуализации: 01.01.2021

МТ-РТС-ВИК-М-01-2017

Методика визуального и измерительного контроля цапф и траверс металлоразливочных ковшей, крюков и удлинителей крюковых подвесок кранов, транспортирующих расплавленный металл

Обозначение: МТ-РТС-ВИК-М-01-2017
Обозначение англ: МТ-РТС-ВИК-М-01-2017
Статус:действует
Название рус.:Методика визуального и измерительного контроля цапф и траверс металлоразливочных ковшей, крюков и удлинителей крюковых подвесок кранов, транспортирующих расплавленный металл
Дата добавления в базу:01.01.2021
Дата актуализации:01.01.2021
Оглавление:Введение
1 Требования к службам и специалистам, проводящим контроль
2 Средства контроля
3 Подготовка к контролю
   3.1 Подготовка ковша
   3.2 Подготовка деталей подвески
   3.3 Подготовка средств контроля
4 Проведение контроля
5 Оформление результатов контроля
6 Требования безопасности при проведении контроля
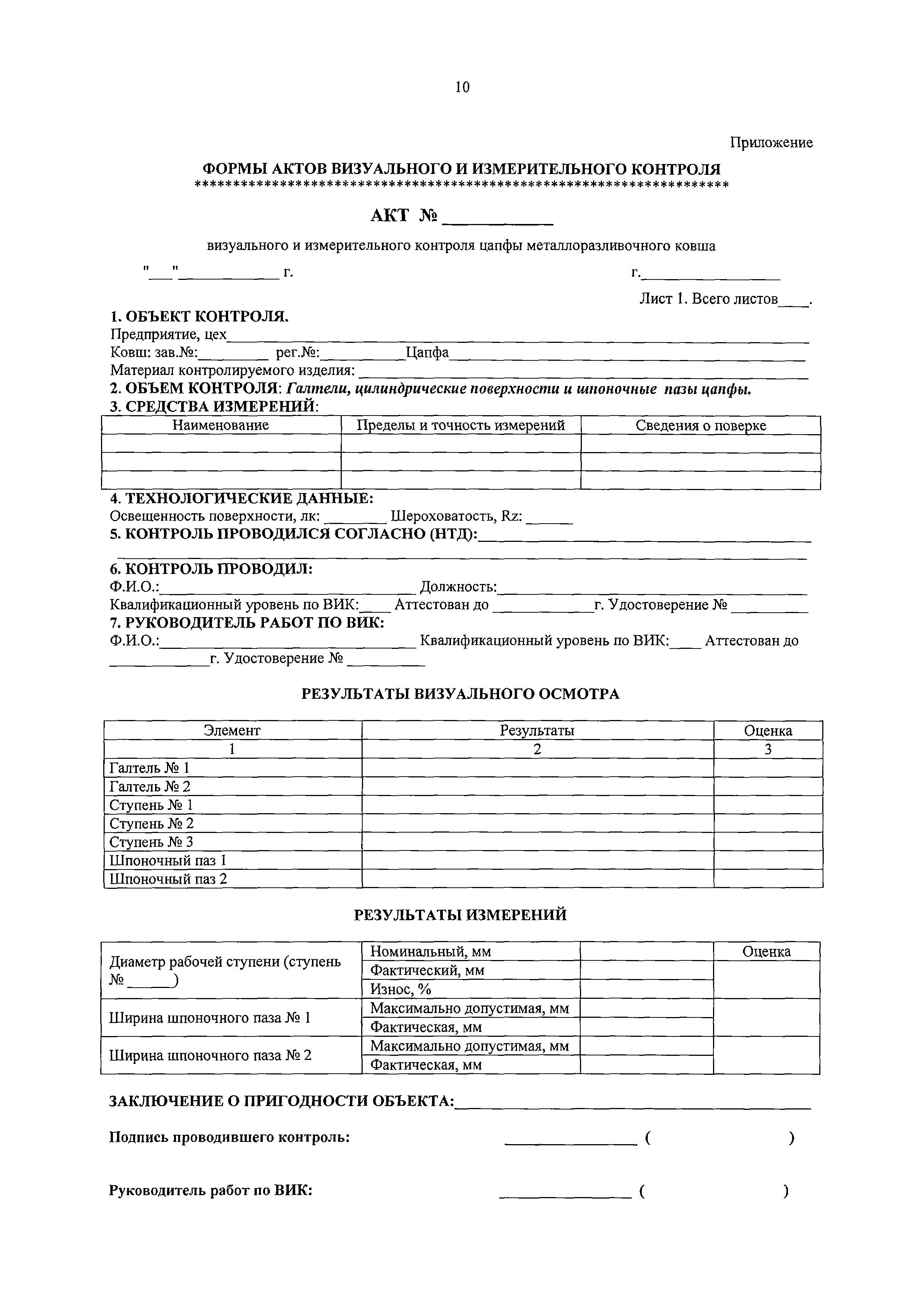
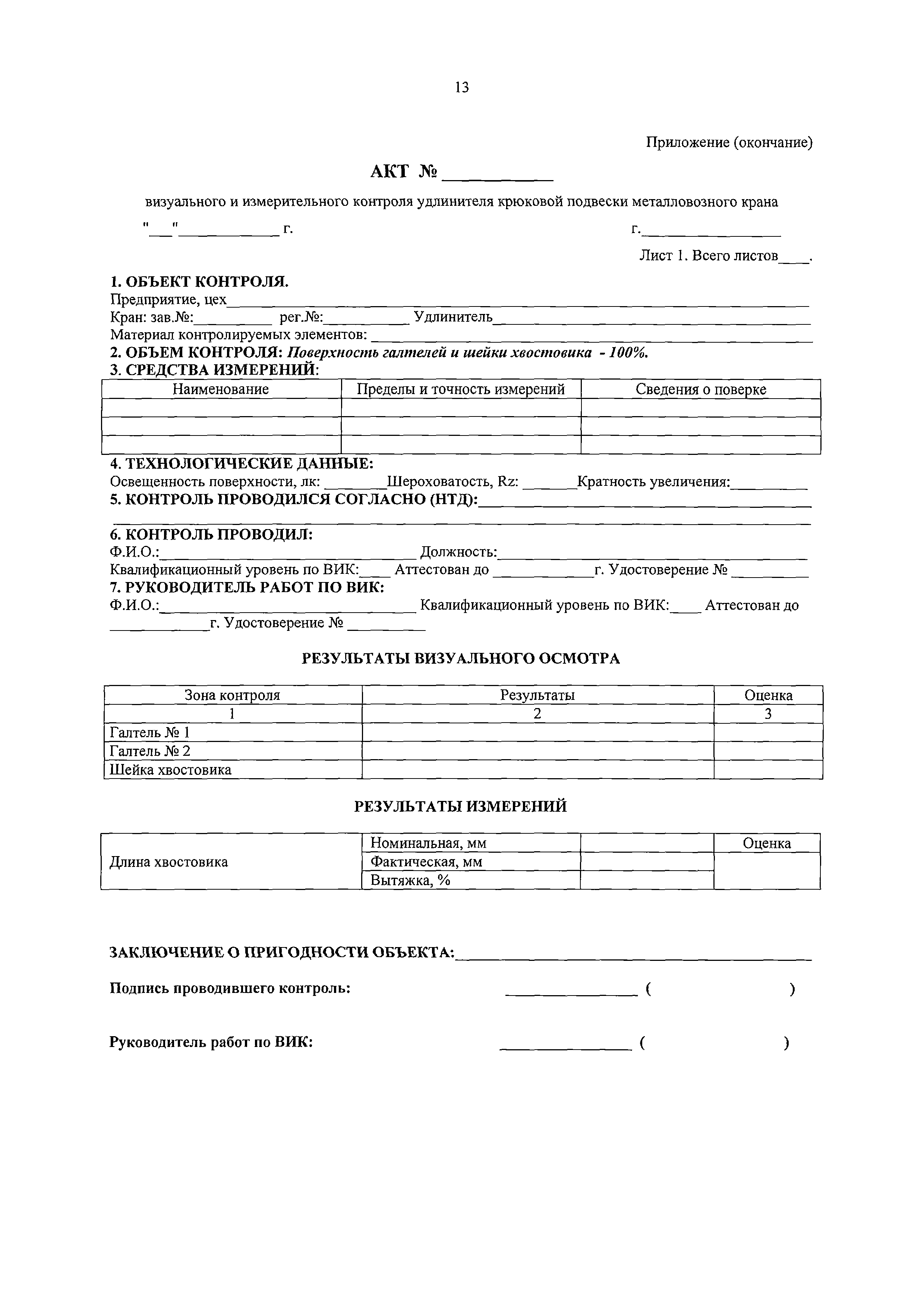
Приложение. Формы актов визуального и измерительного контроля
Список литературы
Разработан: ЧОУ ДПО НУЦ РТС
Утверждён:04.04.2017 ЧОУ ДПО НУЦ РТС
Нормативные ссылки:
МТ-РТС-ВИК-М-01-2017МТ-РТС-ВИК-М-01-2017МТ-РТС-ВИК-М-01-2017МТ-РТС-ВИК-М-01-2017МТ-РТС-ВИК-М-01-2017МТ-РТС-ВИК-М-01-2017МТ-РТС-ВИК-М-01-2017МТ-РТС-ВИК-М-01-2017МТ-РТС-ВИК-М-01-2017МТ-РТС-ВИК-М-01-2017МТ-РТС-ВИК-М-01-2017МТ-РТС-ВИК-М-01-2017МТ-РТС-ВИК-М-01-2017МТ-РТС-ВИК-М-01-2017МТ-РТС-ВИК-М-01-2017