Главная // Актуальные документы // Актуальные документы (обновление с 29.09.2025 по 01.11.2025) // ГОСТ (Государственный стандарт)
СПРАВКА
Источник публикации
В данном виде документ опубликован не был.
Первоначальный текст документа опубликован в издании
М.: Стандартинформ, 2015.
Информацию о публикации документов, создающих данную редакцию, см. в справке к этим документам.
Примечание к документу
Изменение N 1 введено в действие на территории Российской Федерации Приказом Росстандарта от 25.07.2025 N 793-ст с 01.11.2025.

Взамен ГОСТ 30698-2000.
Название документа
"ГОСТ 30698-2014. Межгосударственный стандарт. Стекло закаленное. Технические условия"
(введен в действие Приказом Росстандарта от 16.04.2015 N 263-ст)
(ред. от 25.07.2025)
РЕДАКЦИЯ

"ГОСТ 30698-2014. Межгосударственный стандарт. Стекло закаленное. Технические условия"
(введен в действие Приказом Росстандарта от 16.04.2015 N 263-ст)
(ред. от 25.07.2025)


Содержание


Введен в действие
Приказом Федерального
агентства по техническому
регулированию и метрологии
от 16 апреля 2015 г. N 263-ст
МЕЖГОСУДАРСТВЕННЫЙ СТАНДАРТ
СТЕКЛО ЗАКАЛЕННОЕ
ТЕХНИЧЕСКИЕ УСЛОВИЯ
Tempered glass. Specifications
(EN 12150-1:2000, NEQ)
(EN 12150-2:2004, NEQ)
ГОСТ 30698-2014
Список изменяющих документов
(в ред. Изменения N 1, введенного в действие
Приказом Росстандарта от 25.07.2025 N 793-ст)
МКС 81.040.30
Дата введения
1 апреля 2016 года
Предисловие
Цели, основные принципы и основной порядок проведения работ по межгосударственной стандартизации установлены ГОСТ 1.0-92 "Межгосударственная система стандартизации. Основные положения" и ГОСТ 1.2-2009 "Межгосударственная система стандартизации. Стандарты межгосударственные, правила и рекомендации по межгосударственной стандартизации. Правила разработки, принятия, применения, обновления и отмены"
Сведения о стандарте
1 ПОДГОТОВЛЕН Открытым акционерным обществом "Институт стекла" (ТК 41 "Стекло")
2 ВНЕСЕН Федеральным агентством по техническому регулированию и метрологии (Росстандарт)
3 ПРИНЯТ Межгосударственным советом по стандартизации, метрологии и сертификации (протокол от 20 октября 2014 г. N 71-П)
За принятие проголосовали:
Краткое наименование страны по МК (ИСО 3166) 004-97
Код страны по МК (ИСО 3166) 004-97
Сокращенное наименование национального органа по стандартизации
Азербайджан
AZ
Азстандарт
Армения
AM
ЗАО "Национальный орган по стандартизации и метрологии" Республики Армения
Беларусь
BY
Госстандарт Республики Беларусь
Казахстан
KZ
Госстандарт Республики Казахстан
Киргизия
KG
Кыргызстандарт
Молдова
MD
Институт стандартизации Молдовы
Россия
RU
Росстандарт
Таджикистан
TJ
Таджикстандарт
(таблица в ред. Изменения N 1, введенного в действие Приказом Росстандарта от 25.07.2025 N 793-ст)
4 Приказом Федерального агентства по техническому регулированию и метрологии от 16 апреля 2015 г. N 263-ст межгосударственный стандарт ГОСТ 30698-2014 введен в действие в качестве национального стандарта Российской Федерации с 1 апреля 2016 г.
5 Настоящий стандарт соответствует следующим европейским региональным стандартам:
- EN 12150-1:2000 Glass in building - Thermally toughened soda lime silicate safety glass - Part 1: Definition and description (Стекло в строительстве. Закаленное натрий-кальций силикатное безопасное стекло. Часть 1. Определение и описание, NEQ);
- EN 12150-2:2004 Glass in building - Thermally toughened soda lime silicate safety glass - Part 2: Evaluation of conformity/Product standard (Стекло в строительстве. Закаленное натрий-кальций силикатное безопасное стекло. Часть 2. Оценка соответствия, NEQ)
6 Настоящий стандарт подготовлен на основе ГОСТ Р 54162-2010 <*>
--------------------------------
<*> Приказом Федерального агентства по техническому регулированию и метрологии от 16 апреля 2015 г. N 263-ст стандарт ГОСТ Р 54162-2010 отменен с 1 апреля 2016 г.
7 ВЗАМЕН ГОСТ 30698-2000
Информация об изменениях к настоящему стандарту публикуется в ежегодном информационном указателе "Национальные стандарты", а текст изменений и поправок - в ежемесячном информационном указателе "Национальные стандарты". В случае пересмотра (замены) или отмены настоящего стандарта соответствующее уведомление будет опубликовано в ежемесячном информационном указателе "Национальные стандарты". Соответствующая информация, уведомление и тексты размещаются также в информационной системе общего пользования - на официальном сайте Федерального агентства по техническому регулированию и метрологии в сети Интернет
1 Область применения
Настоящий стандарт распространяется на закаленное стекло (в т.ч. моллированное, огнестойкое) (далее - стекло), предназначенное для безопасного остекления светопрозрачных строительных конструкций (оконных и дверных блоков, витрин, перегородок, элементов структурного остекления фасадов и т.д.), средств наземного транспорта, мебели, бытовых приборов, промышленных установок и других целей в соответствии со своими характеристиками. Настоящий стандарт не устанавливает требования к пределу огнестойкости строительных конструкций и заполнению проемов в них.
(в ред. Изменения N 1, введенного в действие Приказом Росстандарта от 25.07.2025 N 793-ст)
Стекло может применяться как составляющий элемент сложной конструкции: в многослойном стекле, стеклопакетах, а также может применяться для других целей в соответствии со своими техническими характеристиками.
Настоящий стандарт допускается применять при проведении сертификационных испытаний и для целей оценки соответствия.
2 Нормативные ссылки
(в ред. Изменения N 1, введенного в действие Приказом Росстандарта от 25.07.2025 N 793-ст)
В настоящем стандарте использованы нормативные ссылки на следующие межгосударственные стандарты:
Ссылки исключены с 01.11.2025. - Изменение N 1, введенное в действие Приказом Росстандарта от 25.07.2025 N 793-ст.
ГОСТ 111 Стекло листовое бесцветное. Технические условия
ГОСТ 166 Штангенциркули. Технические условия
ГОСТ 427 Линейки измерительные металлические. Технические условия
ГОСТ 5533 Стекло узорчатое. Технические условия
ГОСТ 9013 Металлы. Метод измерения твердости по Роквеллу
ГОСТ 20403 Резина. Метод определения твердости в международных единицах (от 30 до 100 IRHD)
ГОСТ 25535 Стекло и изделия из него. Методы определения термостойкости
ГОСТ 26302 Стекло. Методы определения коэффициентов направленного пропускания и отражения света
ГОСТ 30733 Стекло с низкоэмиссионным твердым покрытием. Технические условия
ГОСТ 31364 Стекло с низкоэмиссионным мягким покрытием. Технические условия
ГОСТ 32361 Стекло и изделия из него. Пороки. Термины и определения
ГОСТ 32529 Стекло и изделия из него. Правила приемки
ГОСТ 32530 Стекло и изделия из него. Маркировка, упаковка, транспортирование и хранение
ГОСТ 32539 Стекло и изделия из него. Термины и определения
ГОСТ 32557-2013 Стекло и изделия из него. Методы контроля геометрических параметров и показателей внешнего вида
ГОСТ 32997 Стекло листовое окрашенное в массе. Общие технические условия
ГОСТ 33000 Стекло и изделия из него. Метод испытания на огнестойкость
(ссылка введена Изменением N 1, введенным в действие Приказом Росстандарта от 25.07.2025 N 793-ст)
ГОСТ 33002 Стекло и изделия из него. Методы определения механических свойств. Испытания на характер разрушения
ГОСТ 33003 Стекло и изделия из него. Методы определения оптических искажений
ГОСТ 33004 Стекло и изделия из него. Характеристики. Термины и определения
ГОСТ 33017 Стекло с солнцезащитным или декоративным твердым покрытием. Технические условия
ГОСТ 33086 Стекло с солнцезащитным или декоративным мягким покрытием. Технические условия
ГОСТ 33559 Стекло и изделия из него. Метод испытания на стойкость к удару мягким телом
(ссылка введена Изменением N 1, введенным в действие Приказом Росстандарта от 25.07.2025 N 793-ст)
ГОСТ 33560 Стекло и изделия из него. Требования безопасности при обращении со стеклом
(ссылка введена Изменением N 1, введенным в действие Приказом Росстандарта от 25.07.2025 N 793-ст)
ГОСТ 33561 Стекло и изделия из него. Указания по эксплуатации
(ссылка введена Изменением N 1, введенным в действие Приказом Росстандарта от 25.07.2025 N 793-ст)
ГОСТ 34998 Стекло с многофункциональным мягким покрытием. Технические условия
(ссылка введена Изменением N 1, введенным в действие Приказом Росстандарта от 25.07.2025 N 793-ст)
ГОСТ EN 410 Стекло и изделия из него. Методы определения оптических характеристик. Определение световых и солнечных характеристик
ГОСТ EN 12600 Стекло и изделия из него. Метод испытания на стойкость к удару двойной шиной
(ссылка введена Изменением N 1, введенным в действие Приказом Росстандарта от 25.07.2025 N 793-ст)
ГОСТ EN 14179-1 Стекло закаленное термовыдержанное. Технические требования
(ссылка введена Изменением N 1, введенным в действие Приказом Росстандарта от 25.07.2025 N 793-ст)
Примечание - При пользовании настоящим стандартом целесообразно проверить действие ссылочных стандартов и классификаторов на официальном интернет-сайте Межгосударственного совета по стандартизации, метрологии и сертификации (www.easc.by) или по указателям национальных стандартов, издаваемым в государствах, указанных в предисловии, или на официальных сайтах соответствующих национальных органов по стандартизации. Если на документ дана недатированная ссылка, то следует использовать документ, действующий на текущий момент, с учетом всех внесенных в него изменений. Если заменен ссылочный документ, на который дана датированная ссылка, то следует использовать указанную версию этого документа. Если после принятия настоящего стандарта в ссылочный документ, на который дана датированная ссылка, внесено изменение, затрагивающее положение, на которое дана ссылка, то это положение применяется без учета данного изменения. Если ссылочный документ отменен без замены, то положение, в котором дана ссылка на него, применяется в части, не затрагивающей эту ссылку.
(примечание в ред. Изменения N 1, введенного в действие Приказом Росстандарта от 25.07.2025 N 793-ст)
3 Термины и определения
В настоящем стандарте применены термины по ГОСТ 32539, ГОСТ 32361, ГОСТ 33004, а также следующие термины с соответствующими определениями:
3.1 класс защиты стекла: Характеристика, показывающая способность стекла противостоять воздействиям на него.
3.2 локальное отклонение от плоскостности: Отклонение от плоскостности измеренное на длине 300 мм.
3.3 радужные пятна: Небольшие отдельные участки поверхности стекла, которые представляют зоны напряжений (анизотропии) в закаленном стекле и которые за счет явления двойного лучепреломления видны под определенным углом обзора.
(в ред. Изменения N 1, введенного в действие Приказом Росстандарта от 25.07.2025 N 793-ст)
3.4 огнестойкое закаленное стекло: Закаленное стекло, способное в течение определенного периода времени выдерживать воздействие тепловых и механических нагрузок, возникающих во время пожара, препятствуя распространению огня и продуктов горения.
Примечание - Допускается использование термина "пожаростойкое закаленное стекло".
(п. 3.4 введен Изменением N 1, введенным в действие Приказом Росстандарта от 25.07.2025 N 793-ст)
4 Классификация, основные параметры и размеры
(в ред. Изменения N 1, введенного в действие Приказом Росстандарта от 25.07.2025 N 793-ст)
4.1 Стекло изготавливают в соответствии с требованиями настоящего стандарта по конструкторской и технологической документации, утвержденной в установленном порядке.
4.2а Закаленное стекло подразделяют на следующие виды:
- общего применения;
- огнестойкое.
(п. 4.2а введен Изменением N 1, введенным в действие Приказом Росстандарта от 25.07.2025 N 793-ст)
4.2 Для изготовления закаленных стекол используют стекла, указанные в таблице 1.
Таблица 1
Наименование вида стекла
Обозначение стандарта
Буквенное обозначение (марка стекла)
Листовое бесцветное
М0, М1
Узорчатое
У
Окрашенное в массе
Т0, Т1
Стекло с солнцезащитным или декоративным твердым покрытием
Ст, Дт
(в ред. Изменения N 1, введенного в действие Приказом Росстандарта от 25.07.2025 N 793-ст)
Стекло с солнцезащитным или декоративным мягким покрытием <*>
См, Дм
(в ред. Изменения N 1, введенного в действие Приказом Росстандарта от 25.07.2025 N 793-ст)
Стекло с низкоэмиссионным твердым покрытием
К
Стекло с низкоэмиссионным мягким покрытием <*>
И
Стекло с многофункциональным мягким покрытием <*>
МФ
(введено Изменением N 1, введенным в действие Приказом Росстандарта от 25.07.2025 N 793-ст)
<*> Закалке подвергают стекла, разрешенные производителем данного стекла с покрытием.
Примечания
1 Допускается применять другие виды стекол (например, химически матированное стекло, стекло с термостойким лакокрасочным покрытием) при условии, что изготовленное закаленное стекло отвечает требованиям настоящего стандарта.
2 Стекла, подвергнутые пескоструйной обработке, подвергать закалке не допускается.
4.3 Номинальные размеры длины (ширины) листов плоского стекла устанавливают в договоре (заказе) на изготовление. Предельные отклонения от номинальных размеров длины и ширины должны соответствовать указанным в таблице 2.
Таблица 2
В миллиметрах
Номинальные размеры длины (ширины) стекла
Предельные отклонения длины (ширины)
номинальная толщина стекла до 12,0 мм включ.
номинальная толщина стекла свыше 12,0 мм
До 2000 включ.
+/- 2,0
+/- 3,0
Св. 2000 " 3000 "
+/- 3,0
+/- 4,0
" 3000
+/- 4,0
+/- 5,0
4.4 Номинальная толщина и предельные отклонения от толщины листов стекла должны соответствовать требованиям на исходное стекло.
4.5 Размеры и допуски размеров стекла непрямоугольной формы должны соответствовать рабочим чертежам или шаблонам, согласованным изготовителем с потребителем. Огнестойкое закаленное стекло должно иметь закругленные углы, рекомендуемый радиус закругления - не менее 4 мм.
(в ред. Изменения N 1, введенного в действие Приказом Росстандарта от 25.07.2025 N 793-ст)
Предельные отклонения размеров стекла, изготавливаемого по шаблонам, должны быть согласованы изготовителем с потребителем. В случае отсутствия указанного согласования предельные отклонения размеров стекла должны соответствовать требованиям таблицы 2.
4.6 Моллированное закаленное стекло должно соответствовать требованиям настоящего стандарта по характеристикам (кроме оптических искажений), а по основным параметрам, размерам и оптическим искажениям - требованиям нормативных документов и конструкторской документации.
4.7 Отклонения от плоскостности (общее отклонение и локальное отклонение) листов стекла (кроме узорчатых и моллированных стекол) не должны превышать значений, указанных в таблице 3. Отклонение от плоскостности листов узорчатых стекол устанавливают в договоре изготовителя с потребителем.
Таблица 3
Номинальная толщина стекла, мм
Общее отклонение от плоскостности, мм/м, не более
Локальное отклонение от плоскостности, мм/300 мм, не более
стекло без покрытия
стекло с покрытием
От 3,0 до 5,0 включ.
3
4
0,5
Св. 5,0 " 25,0
2
3
0,4
(в ред. Изменения N 1, введенного в действие Приказом Росстандарта от 25.07.2025 N 793-ст)
4.8 Отклонение от прямолинейности кромок плоского стекла не должно превышать предельные отклонения по длине (ширине), указанные в таблице 2.
4.9 Разность длин диагоналей стекла, имеющего прямоугольную форму, не должна превышать значений, указанных в таблице 4.
Таблица 4
В миллиметрах
Длина диагоналей листов стекла
Разность длин диагоналей
До 1600 включ.
3
Св. 1600 " 2500 "
4
" 2500 " 3200 "
5
" 3200
6
4.10 Условное обозначение закаленного стекла должно состоять из буквенного обозначения закаленного стекла (З или зак), обозначения исходного стекла по нормативной документации, длины, ширины и толщины листа стекла, класса защиты (предела огнестойкости - для огнестойкого закаленного стекла) и обозначения настоящего стандарта.
(в ред. Изменения N 1, введенного в действие Приказом Росстандарта от 25.07.2025 N 793-ст)
Примеры условных обозначений:
- стекло закаленное, изготовленное из листового стекла марки М1, длиной 2200 мм, шириной 1500 мм и номинальной толщиной 6 мм, класс защиты СМ 2:
ЗМ1 - 2200 - 1500-6 - СМ 2 ГОСТ 30698-2014
- стекло закаленное огнестойкое, изготовленное из листового стекла марки М1, длиной 1500 мм, шириной 1000 мм и номинальной толщиной 6 мм, предел огнестойкости Е30:
ЗМ1 - 1500 - 1000-6 - Е30 ГОСТ 30698-2014
(в ред. Изменения N 1, введенного в действие Приказом Росстандарта от 25.07.2025 N 793-ст)
Допускается вместо обозначения исходного стекла указывать торговую марку (название) исходного стекла. Допускается для огнестойкого закаленного стекла перед пределом огнестойкости указывать его торговую марку.
(в ред. Изменения N 1, введенного в действие Приказом Росстандарта от 25.07.2025 N 793-ст)
4.11 В заказе на изготовление стекол должны быть указаны сведения: об исходном стекле (вид стекла, марка, характеристики), требования к обработке кромок; цвету, а также другие требования, согласованные изготовителем с потребителем.
4.12 Требования к обработке кромок
4.12.1 Кромки закаленного стекла должны быть обработанными. Обработку кромки исходного стекла производят до его закалки. Рекомендуется использовать стекло со шлифованной кромкой.
Кромка огнестойкого закаленного стекла должна быть шлифованной или полированной.
(абзац введен Изменением N 1, введенным в действие Приказом Росстандарта от 25.07.2025 N 793-ст)
4.12.2 Виды обработки кромки закаленного стекла указывают в договоре на его изготовление (поставку) в соответствии с приложением А.
4.13 Требования к отверстиям
4.13.1 Стекло может изготавливаться с различными отверстиями.
4.13.2 Для изготовления стекла с отверстиями используют стекло толщиной не менее 4 мм.
4.13.3 Диаметр отверстий менее номинальной толщины стекла должен быть согласован изготовителем с потребителем. Предельные отклонения от номинального диаметра отверстия не должны превышать указанные в таблице 5.
Таблица 5
В миллиметрах
Номинальный диаметр
Предельные отклонения
От 4,0 до 20,0 включ.
+/- 1,0
Св. 20,0 " 100,0 "
+/- 2,0
Примечание - При изготовлении отверстий номинальным диаметром свыше 100 мм предельные отклонения согласовываются изготовителем с потребителем.
4.13.4 При расположении отверстий на стекле должны выполняться следующие условия:
1) расстояние от кромки стекла до кромки отверстия должно быть не менее чем удвоенная номинальная толщина стекла, как показано на рисунке 1;
a - расстояние от кромки стекла до кромки отверстия
не менее 2s, мм (s - номинальная толщина стекла, мм)
Рисунок 1 - Расстояние от кромки стекла до кромки отверстия
2) расстояние между кромками двух отверстий должно быть не менее чем удвоенная номинальная толщина стекла, как показано на рисунке 2;
b - расстояние между кромками двух отверстий
не менее 2s, мм (s - номинальная толщина стекла, мм)
Рисунок 2 - Расстояние между кромками двух отверстий
3) расстояние от угла листа стекла до кромки отверстия должно быть не менее номинальной толщины стекла, увеличенной в шесть раз, как показано на рисунке 3.
c - расстояние от угла листа стекла до кромки отверстия
не менее 6s, мм (s - номинальная толщина стекла, мм)
Рисунок 3 - Расстояние от угла листа
стекла до кромки отверстия
4.13.5 Кромки отверстий должны быть притуплены.
4.14 Требования к пазам и вырезам
4.14.1 Стекло может изготавливаться с различными пазами и вырезами, при этом должны выполняться следующие условия:
1) все пазы и вырезы должны иметь скругленные углы радиусом не менее толщины стекла;
2) внутренние размеры пазов и вырезов должны быть не менее толщины стекла;
3) ширина пазов и вырезов должна быть не менее толщины стекла и не более 1/3 соответствующего линейного размера стекла;
4) внешние углы пазов и вырезов должны быть скругленными.
4.14.2 Кромки пазов и вырезов должны быть обработаны. Вид обработки кромки указывают в договоре на изготовление (поставку) закаленного стекла в соответствии с приложением А.
5 Технические требования
5.1 Характеристики
5.1.1 По нормируемым показателям внешнего вида: локальным и линейным порокам, цвету закаленное стекло должно соответствовать условиям договора на поставку.
При отсутствии утвержденных согласованных требований следует руководствоваться требованиями, указанными в нормативной документации на исходный вид стекла.
На поверхности стекла могут наблюдаться радужные пятна и/или полосы (т.н. "леопардовые пятна" или анизотропия), наиболее заметные под острым углом к поверхности стекла или в поляризованном свете.
(п. 5.1.1 в ред. Изменения N 1, введенного в действие Приказом Росстандарта от 25.07.2025 N 793-ст)
5.1.2 Трещины, посечки, грубые царапины, незашлифованные сколы, щербление кромки и повреждения углов стекла не допускаются.
На закрытых кромках закаленного стекла (кроме огнестойкого) допускаются зашлифованные сколы глубиной не более половины толщины стекла. По согласованию изготовителя с потребителем допускаются зашлифованные сколы на открытых кромках (кроме полированных, см. А.4 приложения А) закаленного стекла (кроме огнестойкого). При необходимости допускаемые размеры и количество зашлифованных сколов указывают в договоре поставки.
(абзац введен Изменением N 1, введенным в действие Приказом Росстандарта от 25.07.2025 N 793-ст)
Примечание - Закрытая кромка - это кромка стекла, закрытая деталями конструкции, не видимая при ее эксплуатации. Открытая кромка - это кромка стекла, видимая при эксплуатации и при необходимости выполняющая декоративные функции.
(примечание введено Изменением N 1, введенным в действие Приказом Росстандарта от 25.07.2025 N 793-ст)
5.1.3 Стекло должно быть механически прочным и выдерживать без разрушения удар стального шара массой (227 +/- 2) г (справочно - диаметр шара 38 мм), падающего с высоты, указанной в таблице 6.
Таблица 6
Номинальная толщина стекла, мм
Высота падения шара, мм
От 3,0 до 4,0 включ.
2000 +/- 30
Св. 4,0 " 6,0 "
2500 +/- 30
" 6,0
3000 +/- 50
5.1.4 Стекло должно быть термостойким и выдерживать перепад температур не менее 200 °C.
5.1.5 Стекло должно иметь безопасный характер разрушения. Стекло при разрушении (характер разрушения) не должно образовывать крупные (более 3 см2) осколки. При разрушении стекла количество осколков в квадрате 50 x 50 мм должно соответствовать требованиям, указанным в таблице 7 <*>.
(в ред. Изменения N 1, введенного в действие Приказом Росстандарта от 25.07.2025 N 793-ст)
Таблица 7 <*>
(в ред. Изменения N 1, введенного в действие
Приказом Росстандарта от 25.07.2025 N 793-ст)
Вид стекла
Номинальная толщина стекла, мм
Количество осколков, шт., не менее
Листовое
3,0
15
От 4,0 до 12,0 включ.
40
От 15,0 до 25,0 включ.
30
Узорчатое
От 4,0 до 10,0 включ.
30
<*> Справочная информация об особенностях разрушения огнестойкого закаленного стекла приведена в приложении В.
(сноска введена Изменением N 1, введенным в действие Приказом Росстандарта от 25.07.2025 N 793-ст)
Длина осколков не должна превышать 75 мм, и количество осколков длиной от 60 до 75 мм не должно превышать 5 шт.
5.1.6 Стекло должно выдерживать без разрушения удар мягкого тела массой (45 +/- 1) кг. Класс защиты стекла в зависимости от высоты падения тела приведен в таблице 8.
Таблица 8
Класс защиты стекла
Высота падения мягкого тела, мм
СМ 1
190 +/- 20
СМ 2
450 +/- 20
СМ 3
1200 +/- 30
СМ 4
2000 +/- 30
Допускается стекло подразделять на классы защиты в соответствии с ГОСТ EN 12600.
(в ред. Изменения N 1, введенного в действие Приказом Росстандарта от 25.07.2025 N 793-ст)
Таблица 9 - Исключена с 01.11.2025. - Изменение N 1, введенное в действие Приказом Росстандарта от 25.07.2025 N 793-ст.
5.1.7 Оптические искажения стекла, видимые в проходящем свете под углом менее или равным 30°, при просмотре экрана типа "кирпичная стена" не допускаются. Для узорчатого и моллированного стекла, а также для стекол с коэффициентом направленного пропускания света менее 30% оптические искажения не нормируются. Оптические искажения закаленного стекла, видимые в отраженном свете, не нормируются.
(в ред. Изменения N 1, введенного в действие Приказом Росстандарта от 25.07.2025 N 793-ст)
5.1.8 Оптические характеристики (коэффициенты пропускания и отражения света, солнечной энергии и т.д.) закаленного стекла должны соответствовать требованиям, предъявляемым к оптическим характеристикам исходного стекла (кроме случаев, когда производитель исходного стекла особо оговаривает изменение его оптических характеристик в процессе закалки).
5.1.9 Справочные значения физико-механических характеристик стекла, требования к которым не регламентированы настоящим стандартом, приведены в приложении Б.
5.1.10 По согласованию изготовителя с потребителем допускается устанавливать другие требования к изделиям из закаленного стекла в соответствии с предполагаемой областью их применения (за исключением требований 5.1.3 - 5.1.6).
Дополнительные требования к огнестойкому закаленному стеклу, например по оптическим искажениям, а также соответствующие методы контроля устанавливают в нормативных документах или технической документации изготовителя.
(п. 5.1.10 в ред. Изменения N 1, введенного в действие Приказом Росстандарта от 25.07.2025 N 793-ст)
5.1.11 Огнестойкое закаленное стекло должно иметь предел огнестойкости, подтвержденный испытаниями по ГОСТ 33000.
В зависимости от вида и толщины базового стекла, размеров и формы изделия, режимов закалки, конструктивных особенностей удерживающей рамы (каркаса) огнестойкое закаленное стекло может иметь следующие пределы огнестойкости: Е15, Е30, Е45, Е60.
Предел огнестойкости должен быть указан в договорах (контрактах) на поставку. Предел огнестойкости определяют для всей конструкции в целом. При этом в договоре должны быть указаны наименование конструкции остекления и ее состав: рама (каркас) и светопрозрачный элемент (стекло). При отсутствии указания на конкретную конструкцию огнестойкость стекла устанавливают для стандартной испытательной рамы по ГОСТ 33000.
Примечание - При необходимости в документах изготовителя допускается указывать предел огнестойкости, полученный в результате испытаний огнестойкого закаленного стекла в совокупности с любой конструкцией или испытательной рамой (по выбору изготовителя), но с обязательной ссылкой на конкретную конструкцию рамы.
(п. 5.1.11 введен Изменением N 1, введенным в действие Приказом Росстандарта от 25.07.2025 N 793-ст)
5.2 Требования к материалам
5.2.1 Материалы, применяемые для изготовления закаленного стекла, должны соответствовать требованиям нормативных документов.
5.2.2 При изготовлении закаленного стекла используют различные виды стекол (см. 4.2).
5.3 Маркировка, упаковка
5.3.1 На стекло должна быть нанесена маркировка в соответствии с требованиями ГОСТ 32530 со следующими дополнениями:
- буквенное обозначение "З" или "зак";
- обозначение предела огнестойкости по ГОСТ 33000 (дополнительно для огнестойкого закаленного стекла).
Допускается в маркировке вместо обозначения "З" или "зак" наносить другие обозначения закаленного стекла: "Закаленное", "Tempered", "Temp", "ESG".
Допускается не указывать в маркировке дату (или месяц и год) изготовления стекла.
При необходимости в маркировку включают дополнительную информацию, согласованную изготовителем с потребителем.
Место нанесения маркировки должно быть согласовано изготовителем с потребителем с учетом требований ГОСТ 32530 и указано в договоре поставки. При отсутствии данного согласования маркировку наносят в любом углу рабочей зоны стекла, а при отсутствии углов - в любом месте края рабочей зоны, на усмотрение изготовителя.
(п. 5.3.1 в ред. Изменения N 1, введенного в действие Приказом Росстандарта от 25.07.2025 N 793-ст)
5.3.2 Транспортная маркировка - по ГОСТ 32530.
5.3.3 Упаковку стекла производят в соответствии с требованиями ГОСТ 32530.
6 Требования безопасности
(раздел 6 в ред. Изменения N 1, введенного в действие Приказом Росстандарта от 25.07.2025 N 793-ст)
Требования безопасности - по ГОСТ 33560.
6.1 - 6.6 Исключены с 01.11.2025. - Изменение N 1, введенное в действие Приказом Росстандарта от 25.07.2025 N 793-ст.
7 Требования охраны окружающей среды
(раздел 7 в ред. Изменения N 1, введенного в действие Приказом Росстандарта от 25.07.2025 N 793-ст)
Требования охраны окружающей среды - по ГОСТ 33560.
7.1, 7.2 Исключены с 01.11.2025. - Изменение N 1, введенное в действие Приказом Росстандарта от 25.07.2025 N 793-ст.
8 Правила приемки
8.1 Приемку стекла проводят в соответствии с требованиями ГОСТ 32529 по показателям, указанным в таблице 10.
Таблица 10
Наименование показателя
Номер пункта
требования
метода испытания
Отклонения по длине (ширине)
Отклонения по толщине
Отклонение размеров стекол непрямоугольной формы
Отклонение размеров моллированных стекол
Отклонение от плоскостности
Отклонение от прямолинейности кромок
Разность длин диагоналей
Требования к обработке кромок
Требование к расположению отверстий и качество их обработки
Требования к расположению пазов и/или вырезов
Пороки внешнего вида
Механическая прочность
Термостойкость
Характер разрушения
Стойкость к удару мягким телом
Оптические искажения
Оптические характеристики
Предел огнестойкости
9.17
(введено Изменением N 1, введенным в действие Приказом Росстандарта от 25.07.2025 N 793-ст)
Маркировка
8.2 Требования к содержанию документа, сопровождающего партию стекла, устанавливают в соответствии с ГОСТ 32529.
При экспортно-импортных операциях требования к содержанию документа, сопровождающего партию стекла, могут устанавливаться в договорах (контрактах) на поставку.
9 Методы контроля
9.1 Определение длины и ширины
9.1.1 Длину (ширину) стекла измеряют по нормативным документам на соответствующее исходное стекло.
9.1.2 Оценка результатов
Стекло считают выдержавшим испытания, если результат измерений соответствует 4.3.
9.2 Определение толщины
9.2.1 Толщину стекла измеряют по нормативным документам на соответствующее исходное стекло.
9.2.2 Оценка результатов
Стекло считают выдержавшим испытания, если результат измерений соответствует 4.4.
9.3 Определение размеров стекол непрямоугольной формы
9.3.1 Размеры стекол непрямоугольной формы проверяют наложением шаблона, аттестованного в установленном порядке. При этом предельные отклонения размеров стекла должны соответствовать требованиям 4.5. В процессе эксплуатации шаблон должен не изменять свою форму и заданные размеры.
9.4 Определение размеров моллированных стекол
9.4.1 Размеры моллированных стекол определяют по нормативным документам.
9.5 Определение отклонения от плоскостности
9.5.1 Отклонение от плоскостности стекла определяют в соответствии с ГОСТ 32557-2013 (раздел 11) со следующим дополнением:
(в ред. Изменения N 1, введенного в действие Приказом Росстандарта от 25.07.2025 N 793-ст)
- общее и локальное отклонения от плоскостности узорчатого стекла измеряют по выступам узора (наиболее выпуклые участки поверхности).
9.5.2 Оценка результатов
Стекло считают выдержавшим испытание, если щуп не входит в зазор.
9.6 Определение отклонения от прямолинейности кромок
9.6.1 Отклонение от прямолинейности кромок определяют по нормативным документам на соответствующее исходное стекло.
9.6.2 Оценка результатов
Стекло считают выдержавшим испытания, если результат измерений соответствует 4.8.
9.7 Определение разности длин диагоналей
9.7.1 Разность длин диагоналей прямоугольных стекол определяют по нормативным документам на соответствующее исходное стекло.
9.7.2 Оценка результатов
Стекло считают выдержавшим испытания, если результат измерений соответствует 4.9.
9.8 Определение показателей внешнего вида
Показатели внешнего вида определяют и контролируют визуально по ГОСТ 32557 со следующими дополнениями:
- пороки внешнего вида контролируют на расстоянии не менее 1,0 м от осматриваемой поверхности для стекол без покрытия или на расстоянии не менее 3,0 м для стекол с покрытиями, узорчатых и моллированных стекол;
- щербление кромки, наличие трещин, сколов, повреждения углов, качество обработки кромок, отверстий, пазов и вырезов контролируют на расстоянии от 0,6 до 1,0 м.
(п. 9.8 в ред. Изменения N 1, введенного в действие Приказом Росстандарта от 25.07.2025 N 793-ст)
9.8.1 - 9.8.3 Исключены с 01.11.2025. - Изменение N 1, введенное в действие Приказом Росстандарта от 25.07.2025 N 793-ст.
9.9 Определение механической прочности
9.9.1 Сущность метода
Метод состоит в определении минимальной механической прочности при ударе стальным шаром.
9.9.2 Отбор образцов
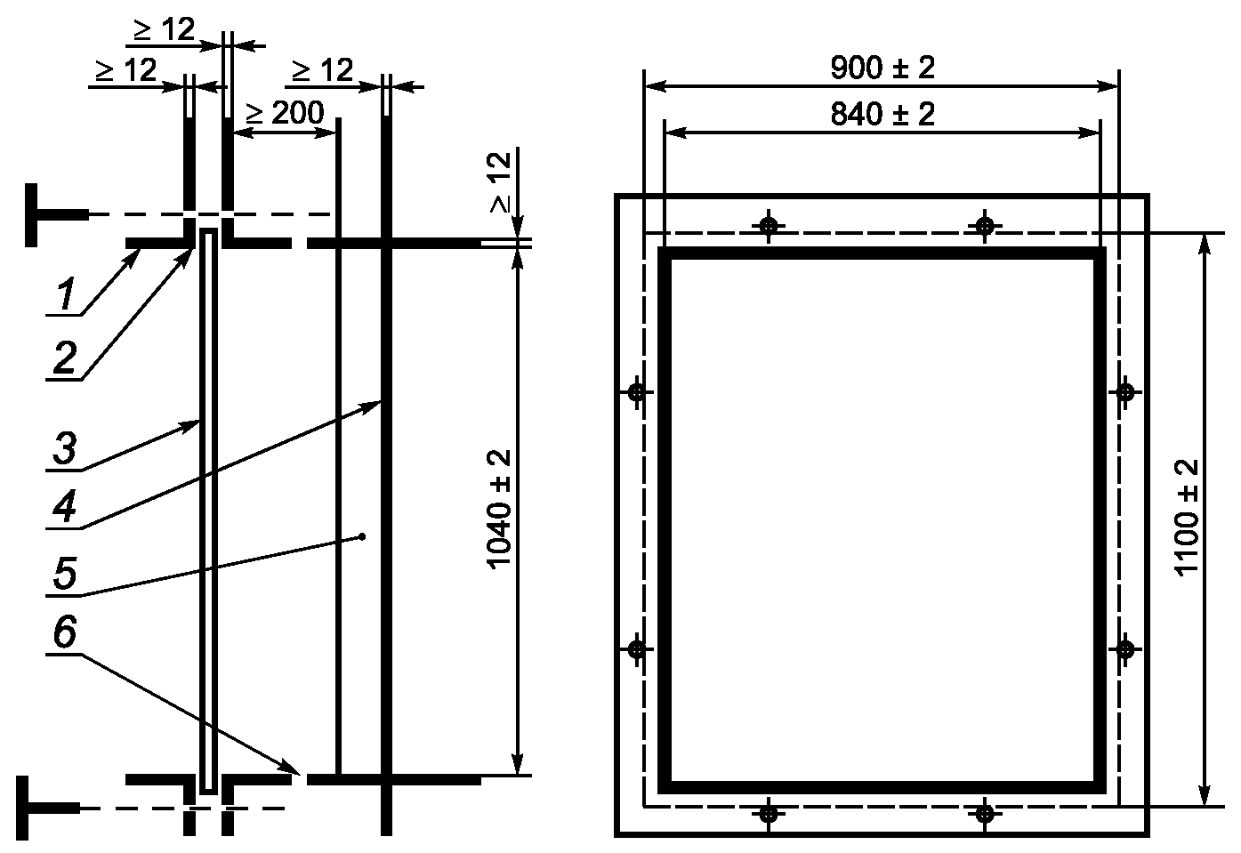
Испытания проводят на образцах размером [(1100 x 900) +/- 5] мм, изготовленных вместе с испытываемой партией.
9.9.3 Оборудование
Оборудование для крепления образца состоит из:
- стальной рамы (рисунок 4), которую устанавливают в горизонтальном положении;
- зажимающей рамы (стальной) (рисунок 4), которая должна обеспечивать плавное равномерное зажатие образца по четырем сторонам с перекрытием края (30 +/- 5) мм.
Места контакта стальной рамы и зажимающей рамы с образцом покрывают резиновыми полосами шириной (30 +/- 5) мм, номинальной толщиной 4 мм и твердостью от 40 до 60 IRHD ГОСТ 20403;
- шара, который изготавливают из полированной стали твердостью не менее 60 HRC по Роквеллу, в соответствии с ГОСТ 9013. Масса шара (227 +/- 2) г.
1 - зажимающая рама; 2 - резиновая полоса; 3 - испытываемый
образец; 4 - жесткая стальная рама; 5 - мягкая прокладка
(амортизирующий материал); 6 - отверстия
Рисунок 4 - Стальная рама для крепления образца
9.9.4 Проведение испытаний
9.9.4.1 Условия проведения испытаний
Температура при проведении испытаний (20 +/- 5) °C.
Перед проведением испытаний образцы выдерживают при указанной температуре не менее 12 ч.
9.9.4.2 Образец устанавливают и закрепляют в горизонтально расположенной стальной раме. На поверхности образца отмечают его геометрический центр.
Шар сбрасывают с высоты (см. 5.1.3, таблица 6) таким образом, чтобы точка удара была на расстоянии не более 25 мм от геометрического центра образца.
По каждому образцу наносят один удар.
9.9.5 Оценка результатов
Образец считают выдержавшим испытание, если он не разрушился.
9.10 Испытания на характер разрушения
9.10.1 Характер разрушения стекла определяют в соответствии с ГОСТ 33002.
9.10.2 Оценка результатов
Образец считают выдержавшим испытание, если количество и размеры образовавшихся осколков соответствуют 5.1.5.
9.11 Определение термостойкости
9.11.1 Определение термостойкости стекла проводят в соответствии с требованиями ГОСТ 25535, по методу Б с однократным нагреванием и охлаждением образцов со следующим дополнением:
- испытания проводят на трех образцах размером не менее 150 x 150 мм, изготовленных вместе с испытываемой партией.
9.11.2 Оценка результатов
Образцы считают выдержавшими испытания, если перепад температур соответствует 5.1.4.
Допускается оформлять результаты испытания в порядке, установленном изготовителем/потребителем.
9.12 Определение оптических искажений
9.12.1 Оптические искажения стекла (кроме узорчатого стекла, а также стекол с коэффициентом направленного пропускания света менее 30%) определяют в соответствии с ГОСТ 33003 с использованием экрана "кирпичная стена".
9.12.2 Оценка результата
Стекло считают выдержавшим испытание, если величина оптических искажений соответствует 5.1.7.
9.13 Определение класса защиты
(подраздел 9.13 в ред. Изменения N 1, введенного в действие Приказом Росстандарта от 25.07.2025 N 793-ст)
Класс защиты закаленного стекла определяют по ГОСТ 33559.
9.13.1 - 9.13.5 Исключены с 01.11.2025. - Изменение N 1, введенное в действие Приказом Росстандарта от 25.07.2025 N 793-ст.
9.13а Определение предела огнестойкости
Для огнестойких закаленных стекол предел огнестойкости определяют по ГОСТ 33000 в соответствии с требованиями 5.1.11.
(п. 9.13а введен Изменением N 1, введенным в действие Приказом Росстандарта от 25.07.2025 N 793-ст)
9.14 Определение оптических характеристик
9.14.1 Оптические характеристики (коэффициенты пропускания и отражения света, солнечной энергии и т.д.) закаленного стекла определяют в соответствии с требованиями ГОСТ EN 410 на трех образцах.
Допускается для определения световых характеристик применять ГОСТ 26302 или использовать данные производителя исходного стекла.
9.15 Контроль отверстий, пазов и/или вырезов
9.15.1 Расположение отверстий, пазов и/или вырезов должно соответствовать требованиям конструкторской документации.
9.15.2 Контроль размеров отверстий, пазов и/или вырезов
9.15.2.1 Сущность метода
Метод основан на измерении размеров и вычислении величины отклонений от заданных значений.
9.15.2.2 Подготовка образцов
Измерения проводят на готовом изделии.
9.15.2.3 Средства контроля
Штангенциркуль по ГОСТ 166 с ценой деления не более 0,1 мм.
Линейка по ГОСТ 427 с ценой деления не более 1 мм.
Допускается применять другие средства измерений, если они обеспечивают заданную точность измерений.
9.15.2.4 Проведение измерения
Измеряют штангенциркулем или линейкой заданные размеры отверстий, пазов и/или вырезов.
9.15.2.5 Оценка результата
Изделие (стекло) считают выдержавшим испытание, если измеренные значения соответствуют требованиям конструкторской документации и 4.13.3.
9.16 Контроль маркировки
9.16.1 Место нанесения, а также содержание маркировки стекол контролируют визуально при освещенности не менее 300 лк в соответствии с ГОСТ 32530.
10 Транспортирование и хранение
10.1 Транспортирование и хранение стекла осуществляют в соответствии с требованиями ГОСТ 32530.
10.2 В процессе транспортирования и хранения стекла не допускается воздействие на него прямых солнечных лучей, влаги, агрессивных веществ, механических ударов.
10.3 Стекло должно храниться в закрытых сухих отапливаемых помещениях в распакованном виде в вертикальном положении под углом от 5° до 15° к вертикали на специальных подставках, покрытых амортизирующим материалом.
11 Рекомендации по изготовлению, проектированию, монтажу и эксплуатации
11.1 При манипуляциях с закаленным стеклом, выборе закаленного стекла для конкретного применения, монтаже, эксплуатации и его техническом обслуживании следует соблюдать требования ГОСТ 33561.
(п. 11.1 в ред. Изменения N 1, введенного в действие Приказом Росстандарта от 25.07.2025 N 793-ст)
11.2 Исключен с 01.11.2025. - Изменение N 1, введенное в действие Приказом Росстандарта от 25.07.2025 N 793-ст.
11.3 Не допускается эксплуатация стекла, имеющего незашлифованные сколы, щербление кромки, отбитые углы.
11.4, 11.5 Исключены с 01.11.2025. - Изменение N 1, введенное в действие Приказом Росстандарта от 25.07.2025 N 793-ст.
11.6 Выбор конкретного вида, геометрических размеров и формы стекла производят исходя из того, что оно должно выдерживать расчетные значения эксплуатационных нагрузок (механических, климатических и др.) с учетом конкретных условий его применения согласно действующим строительным нормам и правилам.
При проектировании конструкций (изделий) с использованием закаленного стекла проектировщик должен установить требования к прогибу стекол (в том числе необходимо учитывать возможность выпадения стекла из конструкции при больших деформациях). При отсутствии в проектной документации согласованных специальных требований к прогибу рекомендуется применять следующие нормы: при наиболее неблагоприятном сочетании нагрузок максимальный прогиб - не более L/65 или 50 мм (применяется меньшее значение). Размер L определяют в зависимости от способа крепления стекла в конструкции:
- длина самой длинной незакрепленной стороны при креплении по двум сторонам;
- длина незакрепленной стороны при креплении по трем сторонам;
- длина самой короткой стороны при креплении по всем сторонам.
Допускается по согласованию изготовителя с потребителем применять другие требования к прогибу.
Стойкость к эксплуатационным нагрузкам подтверждают испытаниями или расчетами с использованием методик, утвержденных в установленном порядке.
(п. 11.6 в ред. Изменения N 1, введенного в действие Приказом Росстандарта от 25.07.2025 N 793-ст)
11.7 Из-за наличия в стекле включений сульфида никеля возможно самопроизвольное разрушение закаленного стекла. Для снижения вероятности самопроизвольного разрушения стекла в процессе эксплуатации рекомендуется применять термовыдержанное закаленное стекло по ГОСТ EN 14179-1. Решение о необходимости применения термовыдержанного закаленного стекла принимает заказчик (проектировщик) на основании анализа рисков.
(п. 11.7 введен Изменением N 1, введенным в действие Приказом Росстандарта от 25.07.2025 N 793-ст)
12 Гарантии изготовителя
12.1 Изготовитель гарантирует соответствие стекла требованиям настоящего стандарта при соблюдении правил упаковки, транспортирования, хранения и эксплуатации.
12.2 Гарантийный срок хранения стекла - пять лет со дня изготовления при условии хранения в сухих, закрытых, отапливаемых помещениях.
Приложение А
(обязательное)
ВИДЫ ОБРАБОТКИ КРОМКИ ЗАКАЛЕННОГО СТЕКЛА
А.1 Притупленная кромка закаленного стекла показана на рисунке А.1.
Рисунок А.1 - Притупленная кромка
А.2 Грубошлифованная кромка показана на рисунке А.2.
Рисунок А.2 - Грубошлифованная кромка
А.3 Гладкошлифованная кромка показана на рисунке А.3.
Рисунок А.3 - Гладкошлифованная кромка
А.4 Полированная кромка - гладкошлифованная кромка, отполированная до получения ровной прозрачной поверхности фасок и торца, показана на рисунке А.4.
Рисунок А.4 - Полированная кромка
Приложение Б
(справочное)
ФИЗИКО-МЕХАНИЧЕСКИЕ ХАРАКТЕРИСТИКИ ЗАКАЛЕННОГО СТЕКЛА
Б.1 Физико-механические характеристики закаленного стекла приведены в таблице Б.1.
Таблица Б.1
Наименование показателя
Справочное значение
Плотность (при 18 °C)
2500 кг/м3
Твердость по Кнупу
6 ГПа
Прочность на сжатие
700 - 900 МПа
Прочность на изгиб:
- стекло листовое (окрашенное в массе, стекло с покрытием)
120 МПа
- стекло узорчатое
90 МПа
Модуль упругости (модуль Юнга)
7 x 1010 Па
Коэффициент Пуассона
0,2
Температура размягчения
600 °C
Температурный коэффициент линейного расширения (в интервале температур от -40 °C до -300 °C)
(7 - 9) x 10-6 K-1
Теплопроводность
1 Вт/(м·K)
Удельная теплоемкость (бесцветное стекло)
720 Дж/(кг·K)
Коэффициент теплопередачи (бесцветное стекло)
5,8 Вт/(м2·K)
Коэффициент преломления света
1,5
Коэффициент направленного отражения света (бесцветное стекло)
0,08
Приложение В
(справочное)
ДОПОЛНИТЕЛЬНЫЕ СВЕДЕНИЯ ОБ ОГНЕСТОЙКОМ ЗАКАЛЕННОМ СТЕКЛЕ
(приложение В введено Изменением N 1, введенным в действие
Приказом Росстандарта от 25.07.2025 N 793-ст)
В.1 При разрушении огнестойкого закаленного стекла, как правило, образуются более мелкие осколки, чем при разрушении закаленного стекла общего применения. Данные о количестве осколков, образующихся при разрушении огнестойкого закаленного стекла при проведении испытаний по 9.10.1, приведены в таблице В.1.
Таблица В.1
Номинальная толщина стекла, мм
Количество осколков в квадрате 50 x 50 мм, шт., не менее
От 5,0 до 6,0 включ.
300
Св. 6,0
350
В.2 Информация, приведенная в таблице В.1, является справочной, она не предназначена для подтверждения соответствия огнестойкого закаленного стекла требованиям настоящего стандарта и не может служить основанием для подтверждения предела огнестойкости или качества готового изделия.
УДК 691.618.1:006.354
МКС 81.040.30
NEQ
Ключевые слова: стекло закаленное, основные размеры, характеристики, упаковка, маркировка, правила приемки, методы контроля, транспортирование, хранение