Главная // Актуальные документы // Журнал (форма)СПРАВКА
Источник публикации
М.: ООО Издательство "БСТ", 2015
Примечание к документу
Текст данного документа приведен с учетом
поправки, утв. Ассоциацией "Национальное объединение строителей", "НОСТРОЙ" 02.06.2017.
Название документа
"СТО НОСТРОЙ 2.33.86-2013. Стандарт организации. Организация строительного производства. Промышленное строительство. Реконструкция зданий и сооружений"
(утв. и введен в действие Протоколом Ассоциации "Национальное объединение строителей", "НОСТРОЙ" от 15.03.2013 N 40)
"СТО НОСТРОЙ 2.33.86-2013. Стандарт организации. Организация строительного производства. Промышленное строительство. Реконструкция зданий и сооружений"
(утв. и введен в действие Протоколом Ассоциации "Национальное объединение строителей", "НОСТРОЙ" от 15.03.2013 N 40)
Утвержден и введен в действие
Протоколом Совета Национального
объединения строителей
от 15 марта 2013 г. N 40
СТАНДАРТ ОРГАНИЗАЦИИ
ОРГАНИЗАЦИЯ СТРОИТЕЛЬНОГО ПРОИЗВОДСТВА
ПРОМЫШЛЕННОЕ СТРОИТЕЛЬСТВО.
РЕКОНСТРУКЦИЯ ЗДАНИЙ И СООРУЖЕНИЙ
Construction management
Industrial construction.
Reconstruction of buildings and construction
СТО НОСТРОЙ 2.33.86-2013
1 | РАЗРАБОТАН | Обществом с ограниченной ответственностью "Центр научных исследований организации, механизации, технологии строительного производства" (ООО "ЦНИОМТП") |
2 | ПРЕДСТАВЛЕН НА УТВЕРЖДЕНИЕ | Комитетом по промышленному строительству Национального объединения строителей, протокол от 6 февраля 2013 г. N 22 |
3 | УТВЕРЖДЕН И ВВЕДЕН В ДЕЙСТВИЕ | Решением Совета Национального объединения строителей, протокол от 15 марта 2013 г. N 40 |
4 | ВВЕДЕН | ВПЕРВЫЕ |
Настоящий стандарт разработан в соответствии с Программой стандартизации Национального объединения строителей, утвержденной Решением Совета Национального объединения строителей.
Настоящий стандарт разработан в развитие свода правил
СП 48.13330.2011 "СНиП 12-01-2004 Организация строительства" для конкретизации применительно к деятельности строительных организаций единых требований к организации строительного производства при реконструкции промышленных предприятий, зданий и сооружений.
Стандарт направлен на реализацию Градостроительного
кодекса Российской Федерации, Федерального
закона от 27 декабря 2002 г. N 184-ФЗ "О техническом регулировании", Федерального
закона от 30 декабря 2009 г. N 384-ФЗ "Технический регламент о безопасности зданий и сооружений", Федерального
закона от 21 июля 1997 г. N 116-ФЗ "О промышленной безопасности опасных производственных объектов", Федерального
закона от 23 ноября 2009 г. N 261-ФЗ "Об энергосбережении и о повышении энергетической эффективности и о внесении изменений в отдельные законодательные акты Российской Федерации",
Постановления Правительства Российской Федерации от 16 февраля 2008 г. N 87 "О составе разделов проектной документации и требований к их содержанию",
приказа Министерства регионального развития Российской Федерации от 30 декабря 2009 г. N 624 "Об утверждении Перечня видов работ по инженерным изысканиям, по подготовке проектной документации, по строительству, реконструкции, капитальному ремонту объектов капитального строительства, которые оказывают влияние на безопасность объектов капитального строительства" и взаимоувязан с национальными стандартами, строительными нормами и правилами, стандартами Национального объединения строителей на правила выполнения строительных работ и оценку соответствия.
Авторский коллектив: докт. техн. наук, проф. П.П. Олейник, канд. техн. наук, ст. науч. сотр. В.И. Бродский, канд. техн. наук, старший научный сотрудник Б.В. Жадановский, О.В. Баранов, Ю.А. Гутарев, Н.М. Полишкина, Р.Е. Тептюева, В.А. Щитникова (ООО "Центр научных исследований организации, механизации, технологии строительного производства").
1.1 Настоящий стандарт распространяется на реконструкцию зданий, строений и сооружений промышленных объектов основного, подсобного и обслуживающего назначения. Положения
разделов 6,
10,
пунктов 5.1 -
5.4 являются рекомендуемыми.
1.2 При реконструкции линейных сооружений технической инфраструктуры должны дополнительно учитываться требования действующих нормативных документов.
В настоящем стандарте использованы нормативные ссылки на следующие документы:
ГОСТ 12.1.004-91 Система стандартов безопасности труда. Пожарная безопасность. Общие требования
ГОСТ 23407-78 Ограждения инвентарные строительных площадок и участков производства строительно-монтажных работ. Технические условия
ГОСТ Р 12.4.026-2001 Система стандартов безопасности труда. Цвета сигнальные, знаки безопасности и разметка сигнальная. Назначение и правила применения. Общие технические требования и характеристики. Методы испытаний
СП 49.13330.2010 "СНиП 12-03-2001 Безопасность труда в строительстве. Часть 1. Общие требования"
СТО НОСТРОЙ 2.33.14-2011 Организация строительного производства. Общие положения
СТО НОСТРОЙ 2.33.51-2011 Организация строительного производства. Подготовка и производство строительных и монтажных работ
Примечание - При пользовании настоящим стандартом целесообразно проверить действие ссылочных нормативных документов в информационной системе общего пользования - на официальных сайтах национального органа Российской Федерации по стандартизации и НОСТРОЙ в сети Интернет или по ежегодно издаваемым информационным указателям, опубликованным по состоянию на 1 января текущего года. Если ссылочный документ заменен (изменен), то при пользовании настоящим стандартом следует руководствоваться новым (измененным) документом. Если ссылочный документ отменен без замены, то положение, в котором дана ссылка на него, применяется в части, не затрагивающей эту ссылку.
3.1 внутрипостроечный транспорт: Моторизованные средства механизации для транспортирования грузов на объекте, к которым относятся подъемники, малогабаритные краны и лебедки для вертикальной подачи материалов, ручные тележки.
3.2 демонтаж объекта: Ликвидация здания (сооружения) путем разборки сборных и обрушения монолитных конструкций с предварительным демонтажем технических систем и элементов отделки.
3.3 линейный календарный график: Организационно-технологический документ, устанавливающий целесообразную очередность, взаимную увязку во времени и сроки выполнения работ.
3.4 малая механизация: Средства и вспомогательное оборудование, предназначенные для сокращения затрат ручного труда путем механизации трудоемких операций и отдельных процессов.
3.5 нормокомплект: Технологический комплект средств малой механизации, инструмента и оснастки, рассчитанный на выполнение определенных видов строительно-монтажных работ.
3.6 продолжительность доостановочного периода: Часть продолжительности основного периода реконструкции, необходимая для выполнения возможного объема реконструктивных работ в совмещении с технологическими процессами предприятия с целью сокращения продолжительности остановки его производства.
3.7 продолжительность остановочного периода: Часть продолжительности основного периода реконструкции, определяемая минимально возможным временем, необходимым для замены технологического оборудования и выполнения связанных с этим строительных, монтажных и специальных работ.
3.8 продолжительность после остановочного периода: Часть продолжительности основного периода реконструкции, необходимая для выполнения строительно-монтажных работ после запуска технологических процессов предприятия до завершения реконструкции объекта.
3.9
реконструкция объектов капитального строительства (за исключением линейных объектов): Изменение параметров объекта капитального строительства, его частей (высоты, количества этажей, площади, объема), в том числе надстройка, перестройка, расширение объекта капитального строительства, а также замена и (или) восстановление несущих строительных конструкций объекта капитального строительства, за исключением замены отдельных элементов таких конструкций на аналогичные или иные улучшающие показатели таких конструкций элементы и (или) восстановление указанных элементов (по Градостроительному
кодексу Российской Федерации
[1]).
3.10 реконструктивная работа: Работа по реконструкции зданий и сооружений.
3.11 снос объекта: Ликвидация здания (сооружения) одним из способов обрушения с предварительным демонтажем технических систем и элементов отделки.
3.12 совмещение работ: Одновременное выполнение ряда смежных работ на одном участке.
3.13 стесненность объекта: Пространственные препятствия и ограничения рабочих зон и проездов.
3.14 узловой метод организации и управления строительством промышленных комплексов: Возведение (реконструкция) зданий и сооружений в виде конструктивно и технологически обособленных узлов, связанных между собой общей технологической схемой заводского производства.
3.15 участок реконструкции: Часть реконструируемого объекта, в пределах которого развиваются и увязываются между собой специализированные потоки, входящие в состав объектного потока.
3.16 циклограмма: Графоаналитическая модель организационно-технологического процесса возведения предприятия, здания и сооружения, отображающая периодичность развития строительных потоков во времени и пространстве.
4.1 Генеральной задачей реконструкции является обновление производства с целью приведения его в соответствие с достигнутым уровнем научно-технического прогресса и требованиями законодательных актов [
2,
3]. Виды реконструкции предприятий, зданий и сооружений приведены в
приложении А.
4.2 При выполнении реконструктивных работ в условиях действующего предприятия следует учитывать ряд особенностей, сгруппированных в четыре группы
[4].
4.2.1 Первая группа особенностей связана с совмещением по времени и территории технологических процессов предприятия и строительно-монтажных работ и включает:
- наличие в зонах работ действующего оборудования, требующего установки ограждений, устройства временных перегородок, защитных настилов, временных кровельных покрытий и других защитных устройств;
- наличие различного назначения подземных, наземных, надземных, настенных коммуникаций, требующих их временного переноса, переключения или ограждения;
- наличие заглубленных сооружений - тоннелей, подвалов, каналов и колодцев, требующих усиления их покрытий и стенок;
- ограничение применения машин с двигателями внутреннего сгорания на внутрицеховых работах;
- периодические остановки производства строительно-монтажных работ в связи с осуществлением производственных и транспортных процессов предприятия;
- необходимость предохранения технологического оборудования от загрязнения грунтом, бетонной смесью, раствором, окрасочными составами;
- наличие взрыво- и пожароопасной среды на территории предприятия;
- необходимость применения закрытых способов прокладки (переноса) коммуникаций;
- постоянное соблюдение режима, установленного предприятием на всей его территории.
4.2.1.1 Допустимый уровень совмещения строительно-монтажных работ с технологическими процессами предприятия определяет выбор метода организации реконструкции.
4.2.1.2 Методы организации реконструкции предусматривают выполнение работ:
- с остановкой основного производства предприятия на период реконструкции;
- без остановки основного производства.
4.2.1.3 Методы организации реконструкции с остановкой основного производства применяются на предприятиях перерабатывающего типа с непрерывным технологическим процессом (производство стали, цемента, стекла) и в производствах со строгими требованиями к микроклимату, влажности, чистоте (электронная, химическая промышленность).
4.2.1.4 Методы организации реконструкции без остановки основного производства используются на промышленных предприятиях сборочного типа с прерывистым или цикличным технологическим процессом (машиностроительные производства, ремонтные заводы, текстильные фабрики).
4.2.2 Вторая группа особенностей характеризует уровень стесненности территории предприятия, проявляющийся в ограничении размещения и перемещения строительной техники, складирования строительных конструкций и материалов, транспортирования строительных грузов, в создании производственно-бытовых условий для строительных рабочих.
4.2.2.1 Уровень стесненности территории включает внешнюю и внутреннюю стесненность.
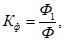
4.2.2.2 Внешняя стесненность выражается отношением свободной площади территории строительной площадки к площади, необходимой для размещения временной строительной инфраструктуры:

(1)

(2)

(3)
где Кс - уровень внешней стесненности территории;
F - общая площадь территории реконструируемого предприятия;
F1 - свободная площадь территории реконструируемого предприятия;

- площадь застройки существующими зданиями и сооружениями;

- площадь зон надземных инженерных сетей;

- площадь территории под складами и дорогами;

- площадь территории, находящаяся в опасных зонах (вблизи легковоспламеняющихся жидкостей, транспортных магистралей, объектов энергетического хозяйства);
F2 - площадь, необходимая для размещения временной строительной инфраструктуры;

- площадь складов для строительных конструкций, изделий и материалов;

- площадь под бытовые городки строителей;

- площадь дорог и площадок, необходимых на период реконструкции;

- площадь зон работы строительных машин.
4.2.2.3 Внутренняя стесненность объекта реконструкции определяется условиями организации рабочих мест, включающими ограничения на формирование фронта работ, использование строительных машин и механизмов, применение технологий производства работ, взаимоувязку работ во времени и пространстве.
4.2.3 Третья группа особенностей учитывает специфику выполнения строительно-монтажных работ в условиях реконструкции и включает:
- выполнение больших объемов работ по сносу, демонтажу зданий и сооружений, усилению и замене конструкций;
- ограничения по применению ряда технологий производства работ;
- ограничения по применению строительных машин и механизмов;
- выполнение значительных объемов работ с применением средств малой механизации, машин и механизмов предприятия;
- высокую рассредоточенность рабочих по рабочим местам на территории предприятия.
4.2.4 Четвертая группа особенностей связана со спецификой транспортирования строительных грузов по территории предприятия и включает:
- ограничения провоза крупногабаритных и длинномерных грузов из-за недостаточности ширины, высоты, радиусов проездов;
- необходимость дополнительного устройства и содержания переездов через действующие пути и коммуникации;
- ограничения в использовании подъездных путей во времени;
- большое количество тупиковых подъездов к различным объектам предприятия.
4.3 Основными методами организации реконструкции являются поточные и узловой методы организации и управления строительством (реконструкцией) предприятий, зданий и сооружений.
4.3.1 Поточные методы в условиях реконструкции применяются при выполнении работ на объектах с повторяющимися процессами на отдельных участках [
4,
5].
4.3.1.1 Требования к организации работ поточными методами, включая положения по определению пространственных, временных и организационных параметров, приведены в СТО НОСТРОЙ 2.33.14-2011 (пункт 6.1).
4.3.1.2 Линейные календарные графики (циклограммы) поточного производства работ (рисунки 1,
2,
3) строятся с учетом особенностей, изложенных в
4.4 настоящего стандарта.
I - VI - специализированные потоки;
1, 2, 3 - количество смен работы
Рисунок 1 - Пример графика потока при реконструкции цеха
с частичной остановкой производства. Вариант с поочередной
остановкой производства на реконструируемых участках
I - VI - специализированные потоки;
1, 2, 3 - количество смен работы
Рисунок 2 - Пример графика потока при реконструкции цеха
с частичной остановкой производства. Вариант с уменьшением
числа смен работы в период реконструкции участков цеха
I - VI - специализированные потоки;
1, 2, 3 - количество смен работы
Рисунок 3 - Пример графика потока при реконструкции цеха
с полной остановкой производства на период реконструкции
4.3.1.3 При разделении цехов, зданий и сооружений на участки и захватки необходимо максимально учитывать интересы действующего производства - сохранение транспортных и инженерных коммуникаций, материальных ценностей.
4.3.1.4 Размеры участков и захваток должны обеспечивать пространственную жесткость объекта и быть достаточными для размещения в них бригад и звеньев, входящих в поток.
4.3.1.5 Выравнивание ритмов потоков на различных участках осуществляется изменением в ходе работ численного состава частных и специализированных потоков за счет перестановки рабочих из одних звеньев и бригад в другие.
4.3.1.6 Для организации совместной работы бригад разной подчиненности необходимо предварительно провести организационную подготовку с учетом наличия свидетельств о допуске к работам, оказывающим влияние на безопасность выполнения работ по реконструкции
[6], и организовать систему оперативного управления.
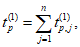
4.3.1.7 При оптимизации параметров потока при поочередной остановке производства следует использовать следующую зависимость:

(4)
где Tр - продолжительность реконструкции объекта, дн.;

- продолжительность выполнения значительной работы на
i-ом участке, дн.;
m - число участков;

- продолжительность развертывания потока на первом участке, дн., определяемая как

(5)
где

- продолжительность организационно-технологического перерыва между смежными работами потока, дн.;
n - количество работ, равное числу потоков.
4.3.1.8 При оптимизации параметров потока при полной остановке производства необходимо применять зависимость вида:

(6)
где Tр - продолжительность реконструкции объекта, дн.;

- продолжительность выполнения работ потоками I - V, дн.;

- продолжительность выполнения заключительной работы VI специализированного потока, дн.
4.3.1.9 Кроме объектных и комплексных графиков потока в условиях реконструкции следует разрабатывать декадные, недельные, суточные и часовые графики, необходимые для уточнения заданий бригадам и увязки работ по реконструкции с функционированием производства, особенно в случаях использования мостовых кранов, электрокаров, мотовозов и других технических средств предприятия одновременно в технологических процессах и реконструкции.
4.3.2 Узловой метод организации и управления строительством (реконструкцией) предприятий, зданий и сооружений применяется при реконструкции крупных предприятий и сложных объектов
[7].
4.3.2.1 Требования к организации работ с применением узлового метода, в том числе при реконструкции действующих предприятий, приведены в СТО НОСТРОЙ 2.33.14-2011 (пункт 6.2).
4.3.2.2 Формирование узлов начинается с определения границ технологических узлов.
4.3.2.3 В состав строительных узлов включаются здания, сооружения производственного назначения или их части. В строительном узле должно быть целое число технологических узлов.
4.3.2.4 Завершение реконструктивных строительных работ в строительном узле открывает фронт механомонтажным работам.
4.3.2.5 В состав общеплощадочных узлов включаются здания, сооружения вспомогательного и обслуживающего назначения и инженерные коммуникации, необходимые для функционирования узлов основного производственного назначения.
4.3.2.6 При увязке реконструктивных работ по узлам необходимо предусматривать непрерывное и равномерное использование трудовых и технических ресурсов.
4.4 Требования к контролю качества реконструктивных работ приведены в СП 48.13330.2011
(пункт 7.1) и СТО НОСТРОЙ 2.33.51-2011
(пункт 5.4).
5 Организационно-технологическая документация
5.1 Проект организации строительства по реконструкции промышленного предприятия (ПОС(р)) является первичным организационно-технологическим документом в системе подготовки строительного производства.
5.2 ПОС(р) разрабатывается проектной организацией по заданию технического заказчика (дирекции предприятия) в составе проектной документации (
Постановление Правительства Российской Федерации от 16 февраля 2008 г. N 87 (раздел 6)
[8]).
5.3 При необходимости сноса (демонтажа) объекта или его части в составе проектной документации разрабатывается "Проект организации работ по сносу или демонтажу объектов капитального строительства" (
Постановление Правительства Российской Федерации от 16 февраля 2008 г. N 87 (раздел 7)
[8]).
5.4 ПОС(р) и проекты организации работ по сносу или демонтажу объектов капитального строительства передаются в составе проектной документации генподрядной строительной организации в установленном порядке.
| | ИС МЕГАНОРМ: примечание. В официальном тексте документа, видимо, допущена опечатка: пункт 5.75 в СП 48.13330.2011 отсутствует. Возможно, имеется в виду пункт 5.7.5 СП 48.13330.2011. | |
5.5 Проект производства работ по реконструкции действующего промышленного предприятия (ППР(р)) разрабатывается в том же объеме, что и на новое строительство в соответствии с СП 48.13330.2011
(пункт 5.75), но с учетом особенностей производства работ на действующем предприятии.
5.6 Дополнительные требования к разработке ППР(р) приведены в таблице 1
[9].
Таблица 1
Дополнительные требования к разработке ППР(р)
Раздел проекта | Содержание дополнительных требований |
Календарный план производства работ по объекту (виду работ) или комплексный сетевой график | Определяется порядок совмещения строительных работ и технологических процессов реконструируемого производства или сроки временной остановки предприятия, цеха для производства строительно-монтажных работ |
Строительный генеральный план | Устанавливаются: - границы участков, отводимых для производства работ (цех, пролет, часть территории и т.п.); - расположение существующих зданий и сооружений, не подлежащих реконструкции, возводимых, реконструируемых и сносимых (демонтируемых); - расположение существующих инженерных сетей с выделением функционирующих и обозначением мест примыкания новых сетей к имеющимся; - расположение прокладываемых, разбираемых и перекладываемых инженерных сетей; - пути транспортирования строительных материалов, машин и оборудования; - пути безопасного прохода рабочих в зону производства строительно-монтажных работ, к мобильным (инвентарным) зданиям и к используемым строителями постоянным пунктам бытового обслуживания работников предприятия; - зоны повышенной опасности производства строительно-монтажных работ |
Технологические карты | Производится увязка строительно-монтажных работ с производственными процессами предприятия, цеха. Указываются: - условия работы строительных машин и механизмов вблизи существующих зданий и сооружений; - порядок перемещения рабочих реконструируемого предприятия в зоне производства строительно-монтажных работ; - средства и способы защиты технологического оборудования и инженерных коммуникаций от возможного повреждения при производстве строительно-монтажных работ; - средства защиты рабочих строительно-монтажных организаций от вредного воздействия производственной среды предприятия (цеха), специальные требования по обеспечению охраны труда, пожарной безопасности и взрывобезопасности |
Пояснительная записка | Указываются мероприятия по сохранению элементов благоустройства: деревьев, кустов, посевов трав, покрытия тротуаров, пешеходных дорожек, в том числе порядок движения транспорта и строительных машин, расположение и передвижение машин в рабочих зонах, складирование материалов, конструкций и оборудования, пересадка кустов и деревьев, их ограждение перед началом работ, сохранение растительного грунта, меры предохранения тротуаров, пешеходных дорожек |
5.7 В составе ППР(р) разрабатываются календарные планы производства работ или комплексные сетевые графики на комплекс объектов, входящих в этап реконструкции предприятия.
5.7.1 Разработка календарных планов производства работ в составе ППР(р) производится в следующей последовательности:
- анализируются существующие и проектные строительно-технологические решения реконструируемых объектов;
- разбиваются реконструируемые объекты на участки - технологические переделы;
- определяется технологическая структура строительно-монтажных работ, рассчитываются показатели этих работ - объемы, трудозатраты и продолжительность;
- формируются варианты организации выполнения строительно-монтажных работ по реконструкции объектов;
- осуществляется увязка строительно-монтажных работ между собой с определением продолжительности реконструкции объектов по вариантам организации;
- выбирается рациональный вариант организации выполнения строительно-монтажных работ по заданному критерию;
- составляется календарный план производства работ по реконструкции объекта на основе рационального варианта организации.
5.7.2 При разбивке реконструируемых объектов на участки наряду с требованиями технологии строительного производства учитываются и дополнительные требования, определяемые технологией промышленного производства реконструируемых объектов. Участки производства реконструктивных работ принимаются по границам отдельных технологических переделов.
5.7.3 Границы технологического передела устанавливаются с соблюдением всех условий технологии производства строительно-монтажных работ, устойчивости реконструируемого объекта и выполнения правил техники безопасности в сфере промышленного и строительного производства.
5.7.4 При разработке календарных планов производства работ следует рассматривать следующий примерный перечень строительно-монтажных работ: демонтаж технологического оборудования, трубопроводов, подъемно-транспортного оборудования и специальных сооружений; разборка и усиление фундаментов под технологическое оборудование; разборка, усиление, демонтаж и монтаж строительных конструкций (по отдельным конструктивным элементам); разработка грунта; устройство фундаментов под строительные конструкции; монтаж колонн; обратная засыпка и уплотнение грунта; монтаж ферм или балок, плит покрытия, подкрановых балок, плит перекрытий, фундаментных балок, стеновых панелей; устройство внутренних кирпичных стен и перегородок или их участков; устройство оконных и дверных проемов; устройство кровли или ее участков; устройство фундаментов под технологическое оборудование; монтаж технологического оборудования; санитарно-технические и электромонтажные работы; устройство полов; монтаж внутрицеховых технологических трубопроводов; монтаж систем промышленной вентиляции; отделочные работы; монтаж приборов и средств автоматизации; индивидуальное испытание и комплексное опробование оборудования; пуск и наладка.
5.7.5 Варианты организации строительно-монтажных работ формируются на основе целенаправленного перебора возможных методов реконструкции объектов, очередности реконструкции участков технологических переделов, последовательности выполнения работ с учетом технологически возможного их совмещения.
5.7.6 Общая продолжительность реконструкции объекта включает продолжительности подготовительного и основного периодов. Продолжительность основного периода состоит из доостановочного, остановочного и послеостановочного периодов:

(7)
где T - общая продолжительность реконструкции объекта, мес.;
T1 - продолжительность подготовительного периода, мес.;
T2 - продолжительность основного периода, мес.;

- продолжительность доостановочного периода, мес.;

- продолжительность остановочного периода, мес.;

- продолжительность послеостановочного периода, мес.
5.7.7 В календарных планах производства работ указываются методы реконструкции объектов, количество смен работы цеха и строительных организаций, очередность реконструкции участков, последовательность и сроки выполнения работ.
5.7.8 В тех случаях, когда выполнение работ связано с необходимостью временной или полной остановки технологического оборудования реконструируемого производства (цеха), в графической части календарного плана следует выделять работы, выполняемые в доостановочный и послеостановочный периоды.
5.7.9 На основе календарных планов производства работ определяются: режим работы основного производства по периодам реконструкции; сроки сдачи цехов и участков - технологических переделов для выполнения строительно-монтажных работ; продолжительность остановки цехов и участков на реконструкцию; последовательность и совмещение строительно-монтажных работ; перечень и объемы работ, выполняемых с использованием мостовых кранов и других транспортных средств предприятия.
5.7.10 Разработанные календарные планы реконструкции промышленных объектов служат основой для составления в составе ППР(р) следующих документов:
- графика поступления на объекты строительных конструкций, деталей, полуфабрикатов, материалов, оборудования с приложением комплектовочных ведомостей;
- графика движения рабочих кадров по объектам;
- графика движения основных строительных машин по объектам;
- сведений о всех ограничениях, накладываемых специфическими условиями данного производства на методы выполнения строительно-монтажных работ;
- сведений о возможности, сроках и продолжительности использования существующих подъездных путей предприятия, транспортных магистралей, причалов и т.д.
5.8 Дополнительными материалами для разработки технологических карт являются:
- рабочие чертежи реконструируемого объекта;
- чертежи (планы и разрезы) установки действующего и проектируемого технологического, транспортного, энергетического и другого оборудования и связанных с ним коммуникаций, конструкций, устройств и схемы технологических трубопроводов;
- организационно-технологические решения по реконструкции и возведению зданий и сооружений и обоснование методов производства сложных строительно-монтажных работ в составе проекта организации строительства;
- дополнительные требования и ограничения, согласованные с заказчиком, при выполнении работ в условиях действующего производства с учетом стесненности и других факторов;
- материалы обследования технического состояния конструкций зданий, оборудования, коммуникаций;
- режим выполнения работ (в одну, две, три смены или продолжительность в часах предоставляемых "окон").
5.8.1 В характеристике условий и особенностей производства работ должны быть приведены следующие вопросы:
- производство работ по реконструкции в условиях полной, частичной остановки производства или без его остановки;
- режим выполнения работ в деятельности предприятия и его отдельных участков, цехов, бригад;
- особые условия работ (стесненность, проведение вблизи действующего технологического оборудования и транспортных технологических путей, загазованность, взрыво- и пожаробезопасность среды и др.).
5.8.2 Указания по подготовке к выполнению строительного процесса должны содержать:
- перечень монтажных приспособлений, оснастки, инвентаря и инструмента, которые необходимо доставить в рабочую зону;
- минимально необходимое количество материалов и конструкций для обеспечения бесперебойного выполнения работ;
- требования к подготовке машин и механизмов, в том числе выделяемых заказчиком, к выполнению работ;
- порядок устройства и обозначения временных дорог, путей движения и рабочих стоянок строительных машин и механизмов;
- перечень мероприятий по обеспечению безопасных условий труда строительных рабочих и рабочих действующего производства;
- местоположение геодезических знаков (временных реперов) и их характеристики;
- места и порядок подключения машин и механизмов к существующим энергетическим сетям;
- порядок отключения и последовательность демонтажа или переноса сетей, расположенных в рабочей зоне реконструируемых (разбираемых) зданий и сооружений и на конструкциях;
- перечень и места устройства временных ограждений, отделяющих зону строительно-монтажных работ от действующего производства или предохраняющих помещения и оборудование действующего производства от повреждений и загрязнения (пыли, мусора, выделений и др.) при производстве строительно-монтажных работ;
- границы зон действия мостовых кранов и других (перемещающихся грузоподъемных и транспортных) средств действующего производства (цеха) и режим их работ, согласованные с администрацией предприятия;
- обозначения положения всех подземных (скрытых) коммуникаций, проходящих в зоне работ и вблизи нее, и перечень мероприятий по их защите от возможных повреждений;
- порядок согласования с администрацией действующего предприятия сроков начала и окончания производства работ, остановки или обесточивания технологического оборудования и транспорта, находящегося в зоне производства работ;
- перечень мероприятий, учитывающих конкретные условия производства строительно-монтажных работ и направленных на обеспечение необходимого и достаточного фронта работ, предусмотренного картой.
5.8.3 Планы и разрезы конструктивной части здания (сооружения) выполняются без излишней детализации в виде эскизов, на которых должны быть указаны:
- основные оси, размеры и высотные отметки конструктивной части здания (сооружения) до и после реконструкции;
- расположение действующего, демонтируемого и вновь устанавливаемого технологического и транспортного оборудования;
- существующие электрические сети, технологические и энергетические трубопроводы, распределительные устройства и др.
При необходимости на листах планов и разрезов могут приводиться конструктивные решения основных элементов и узлов реконструируемой части здания (сооружения), в том числе подлежащих демонтажу (разборке).
5.8.4 На схемах организации строительной площадки (рабочей зоны) на время производства данного вида работ должны быть указаны:
- основные размеры реконструируемого объекта, а при необходимости - расстояния до прилегающих зданий, сооружений, линий электропередачи;
- места размещения строительных машин и механизмов, агрегатов, погрузочно-разгрузочных устройств, их основные габариты и зоны действия;
- места складирования материалов, оборудования, изделий и конструкций, в том числе после разборки и демонтажа, остающихся для повторного использования;
- площадки укрупнительной сборки оборудования и строительных конструкций;
- пути транспортирования после разборки и демонтажа материалов, конструкций и оборудования;
- расположение лесов, подмостей, а также ограждений и защитных устройств, отделяющих строительно-монтажное производство от действующего и от проходов для работающей смены предприятия;
- временные и существующие сети электро-, тепло- и водоснабжения и др., необходимые для производства работ;
- места расстановки щитов для подключения механизированного инструмента и установки светильников временного освещения и сигнальных знаков;
- места устройства монтажных проемов и проездов в реконструируемом цехе.
5.8.5 В технологических картах на сложные и большие объемы работ, выполняемые до остановки технологического оборудования, следует разрабатывать схемы организации строительной площадки (рабочих зон) для доостановочного и остановочного периодов, а в отдельных случаях и для послеостановочного периода.
5.8.6 В указаниях по продолжительности хранения и запасу конструкций, изделий и материалов на строительной площадке и в рабочей зоне должны быть установлены:
- общая потребность и номенклатура конструкций, изделий, материалов, а также устанавливаемого оборудования, определяемая по рабочим чертежам, спецификациям или по физическим объемам работ и нормам расходов ресурсов на строительный процесс, для которого разработана технологическая карта;
- запас материальных ресурсов, который должен храниться (складироваться) непосредственно на строительной площадке (в рабочей зоне) и на складах строительно-монтажной организации. Запас материальных ресурсов должен обеспечить общую потребность на весь объем работ, в том числе на строительной площадке: на смену, цикл, остановочный период (в соответствии с графиком работ), чтобы полностью исключить перебои в работах (в особенности в период остановки производства).
5.8.7 При разработке технологических карт на снос (демонтаж) зданий и сооружений следует руководствоваться положениями
СТО НОСТРОЙ 2.33.53.
5.9 При демонтаже, монтаже и транспортировании сложного оборудования следует составлять по решению главного инженера монтажной организации схемы организации производства работ.
5.9.1 Схемы выбираются на основании сопоставления показателей экономической эффективности вариантов выполнения заданных объемов работ в установленные сроки.
5.9.2 В схемах организации производства работ должны быть приведены следующие вопросы:
- последовательность выполнения работ (с обязательным учетом интересов действующего производства);
- выбор типа грузоподъемного крана (самоходный стреловой, башенный, козловый, кабельный, установленный на покрытии или мостовой кран) или комплекта кранов;
- выбор мест установки кранов, направления их движения, ограничения поворотов их стрел;
- расположение автомобильных и железнодорожных подъездных путей, по которым подвозятся (вывозятся) монтируемые конструкции;
- определение мест укрупнительной сборки конструкции перед монтажом, если она выполняется в зоне монтажа.
При этом в схемах указываются последовательность выполнения отдельных операций, способы обеспечения устойчивого положения остающихся частей демонтируемого и блоков устанавливаемого оборудования (конструкций), объем укрупнительной сборки и методы установки оборудования (конструкций) в проектное положение, а также даются указания по безопасному выполнению работ.
5.10 При разработке проекта производства работ следует согласовывать со службами реконструируемого предприятия методы производства, сроки начала и окончания работ в действующих цехах, в зонах с насыщенными действующими инженерными сетями, вблизи существующих строений; порядок демонтажа оборудования; порядок восстановления дорожного покрытия после завершения работ, связанных с необходимостью его вскрытия; порядок складирования строительных материалов и конструкций и другие вопросы, возникающие при реконструкции действующего предприятия
[9].
Примеры согласования проекта производства работ на работы подготовительного периода и по реконструкции действующих цехов приведены в таблицах 2 и
3.
Таблица 2
Ведомость согласования решений ППР(р) на подготовительный
период реконструкции объекта
Решения проекта | Исполнитель | Предмет согласования | Согласовывающая организация |
Решения по разборке зданий и сооружений | Генеральный подрядчик | Сроки выполнения работ. Способы разборки зданий и сооружений. Схемы транспортирования строительных материалов и движения машин. Использование материалов от разборки. Мероприятия по безопасности | Предприятие-заказчик (главный архитектор, бюро генерального плана). Управление, трест механизации. Органы государственного надзора и местного самоуправления |
Решение по перекладке инженерных сетей из зоны производства работ | Специализированные субподрядные организации | Сроки выполнения работ. График отключения и подключения инженерных сетей | Предприятие-заказчик (бюро генерального плана, главный архитектор, отдел главного механика). Органы государственного надзора и местного самоуправления |
Решения по устройству временных дорог, проездов и переездов | Генеральный подрядчик или специализированная субподрядная организация | Транспортные схемы. Сроки и продолжительность закрытия отдельных внутризаводских магистралей | Предприятие-заказчик (бюро генерального плана, главный архитектор, начальник транспортного цеха). Органы Госавтоинспекции и местного самоуправления |
Решения по возведению временных и установке инвентарных зданий и сооружений | Генеральный подрядчик | Места размещения временных, мобильных (инвентарных) зданий и сооружений. Условия использования строителями существующих зданий. Места подключения временных инженерных сетей | Предприятие-заказчик (бюро генерального плана, главный механик, начальник силового и слаботочного цехов, пожарной охраны) |
Решения по размещению площадок для складирования материалов, укрупнительной сборки, конструкций и оборудования | Генеральный подрядчик | Места складирования материалов, конструкций и технологического оборудования | Предприятие-заказчик (бюро генерального плана, начальник транспортного цеха, пожарной и сторожевой охраны). Органы Госавтоинспекции и местного самоуправления |
Таблица 3
Ведомость согласования решений ППР(р) на реконструкцию
промышленного предприятия
Решения проекта | Исполнитель | Предмет согласования | Согласовывающая организация |
Календарный план производства работ по объекту | Генеральный подрядчик, субподрядные специализированные организации | Очередность реконструкции участков цеха. Сроки предоставления фронта работ заказчиком. Использование технологического транспорта предприятия на строительно-монтажных работах. Использование рабочих предприятия на строительно-монтажных работах | Предприятие-заказчик (Управление капитального строительства, отдел капитального строительства (УКС (ОКС)) предприятия, руководство реконструируемого цеха, главный механик). Субподрядные организации |
Строительный генеральный план | Генеральный подрядчик, субподрядные специализированные организации | Места организации приобъектных складов. Места врезки сетей в действующие коммуникации предприятия. Обеспечение безопасности производства работ в действующем цехе. Порядок использования и обустройства дорог, переездов | Предприятие-заказчик (УКС (ОКС) предприятия, руководство реконструируемого цеха, главный механик, отдел генерального плана, пожарно-сторожевая охрана) |
Технологические карты на сложные работы: | | | |
разборка конструкций | Генеральный подрядчик, субподрядная специализированная организация | Сроки и методы проведения работ. Мероприятия по защите действующего оборудования от пыли, взрывной волны и т.п. | Предприятие-заказчик (руководство цеха, главный механик, главный энергетик, пожарно-сторожевая охрана) |
общестроительные работы | Генеральный подрядчик | Сроки выполнения работ. Очередность освобождения участков цеха. Мероприятия по безопасности. Схемы транспортирования строительных материалов | Предприятие-заказчик (руководство цеха, главный механик, главный энергетик) |
6 Механизация реконструктивных работ
6.1 Для выполнения работ при реконструкции промышленных предприятий используются грузоподъемные краны, экскаваторы, бульдозеры, автотранспорт, различные механизмы и средства малой механизации
(ГОСТ 25646).
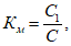
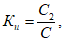
6.2 Выбор эффективных средств механизации в условиях реконструкции осуществляется на основе:
- анализа проектной документации и материалов обследования реконструируемого предприятия;
- определения вариантов производства работ, отличающихся применением различных видов машин и механизмов;
- учета ограничений, накладываемых на методы производства работ в связи с обеспечением функционирования действующего производства в заданных режимах;
- наличие парка строительных машин, которые могут быть использованы для выполнения определенных реконструктивных работ.
6.3 Для механизированного выполнения реконструктивных работ выбираются по технико-экономическим показателям необходимые комплекты машин и механизмов с учетом их возможного применения в условиях ограниченных параметров рабочих зон и проездов. Примерная номенклатура машин для производства отдельных видов работ в стесненных условиях представлена в
приложении Б.
6.4 При работах в стесненных условиях следует применять универсальные средства механизации с массой и габаритами, обеспечивающими возможность их перемещения внутри цеха мостовыми кранами.
6.5 В условиях реконструкции следует применять мобильные средства механизации, быстро переводимые из транспортного в рабочее положение, позволяющие в ходе работ сменять одно навесное оборудование на другое.
6.6 Для предохранения покрытий дорог, площадок, полов в цехах, рельсовых путей на период проведения реконструктивных работ следует применять машины с пневмоколесной ходовой частью или на гусеницах с плоскими опорными траками.
6.7 Количество машин и механизмов в комплекте, необходимое для выполнения заданного объема работ в установленные сроки в стесненных условиях реконструкции, определяется по следующей формуле:
Пм = Vм/ВэTnсмtсм, (8)
где Пм - количество одинаковых машин в комплекте, шт.;
Vм - объем механизированных работ, м3;
Вэ - эксплуатационная выработка машин, м3/ч;
T - заданные сроки выполнения работ, дн.;
nсм - количество рабочих смен в сутки, шт.;
tсм - продолжительность рабочей смены, ч.
Эксплуатационная выработка машин при реконструкции определяется по условию
Вэ = ВнКнКПКс/Кус, (9)
где Вэ - эксплуатационная выработка машин;
Вн - нормативная выработка машин (производительность);
Кн - коэффициент использования машин во времени, среднее значение Кн = 0,95;
КП - коэффициент учета перерывов в работе в зависимости от влияния отдельных факторов
(таблица 4);
Кс - коэффициент учета совместной работы машин
(таблица 5);
Кус - коэффициент изменения длительности рабочего цикла вследствие условий стесненности
(таблица 6).
Таблица 4
Коэффициент учета перерывов в работе в зависимости
от влияния отдельных факторов КП
Факторы, определяющие значения коэффициента | Значение коэффициента КП |
Перерывы на дополнительный инструктаж по технике безопасности при работе в стесненных условиях | 0,06 |
Перерывы на изучение условий производства работ | 0,02 |
Оформление нарядов-допусков на работу в сложных условиях | 0,02 |
Ожидание в связи с параллельным выполнением в данной рабочей зоне других видов работ | 0,03 |
Ожидание окончания работы других организаций, работающих теми же подъемными механизмами (мостовые краны, тельферы и т.п.) | 0,04 |
Перерывы, связанные с движением в рабочей зоне автотранспорта | 0,08 |
Перерывы, связанные с движением и нахождением в рабочей зоне железнодорожного транспорта | 0,05 |
Перерывы в работе, связанные с основным технологическим процессом действующих цехов | 0,08 |
Перерывы на техническое обслуживание машин | 0,06 |
Простои по метеорологическим причинам | 0,04 |
Регламентированный отдых рабочих | 0,04 |
Дополнительный отдых рабочих, связанный с загазованностью рабочих зон и с работой в респираторах | 0,04 |
Дополнительный отдых рабочих, связанный с повышенной температурой в рабочей зоне | 0,04 |
| | ИС МЕГАНОРМ: примечание. Текст дан в соответствии с официальным текстом документа. | |
|
Дополнительный отдых рабочих при содержании окиси углерода в воздухе рабочей зоны от 50 мг/м3 до 1000 мг/м3 | 0,66 |
Дополнительный отдых рабочих при содержании окиси углерода в воздухе рабочей зоны от 100 мг/м3 до 200 мг/м3 | 0,8 |
Дополнительный отдых рабочих при содержании окиси углерода в воздухе рабочей зоны более 200 мг/м3 | 0,89 |
Таблица 5
Коэффициент учета совместной работы машин
Кс
Факторы, влияющие на применение коэффициента | Значение коэффициента Кс |
Рабочие зоны машин не совмещаются | 1 |
Расстояние между последовательно работающими машинами превышает 10 м | 1 |
Синхронная работа машин в совмещенных рабочих зонах | 0,8 |
Расстояние между последовательно работающими машинами в пределах 10 м | 0,8 |
Таблица 6
Коэффициент изменения длительности рабочего цикла
вследствие условий стесненности Кус
Факторы, определяющие применение коэффициента | Значение коэффициента Кус |
Работа машин в нормальных условиях | 1 |
Работа машин при наличии ограничений с шириной рабочей зоны более 1,6Вм | 1 |
Работа на расстоянии до 1 м от конструкции | 1,25 |
Работа машин при ширине рабочей зоны от 1,4Вм до 1,6Вм | 1,25 |
Работа машин при ширине рабочей зоны менее 1,4Вм | 1,5 |
Примечание - Вм - наибольший габарит машины. |
6.8 При выборе средств механизации производится выделение ведущих и вспомогательных машин и механизмов. Техническая возможность применения грузоподъемных машин и механизмов определяется массой монтажных (демонтажных) единиц, высотой подъема крюка и величиной монтажных зон. Расчетные зависимости для башенных кранов приведены в
СТО НОСТРОЙ 2.33.52.
6.9 При реконструкции промышленных предприятий с раскрытием крыши и полной заменой перекрытий, кроме башенных кранов, могут применяться стреловые краны на гусеничном или пневмоколесном ходу, а также на автомобильном шасси, размещение которых на строительной площадке зависит от конструктивных параметров зданий и расположения соседних сооружений с учетом вылета стрелы и габаритов кранов.
6.9.1 При монтаже, выполняемом стреловым краном через верх здания, высота подъема крюка hкр должна составлять:
hкр >= Hзд + hk + hгс + hс + b, (10)
где Hзд - расстояние до наиболее высокого элемента здания после демонтажа конструкции, м;
hk - максимальная высота монтируемой конструкции;
hгс - высота грузозахватных устройств, м;
hс - высота грузозахватного механизма крана с системой полиспастов, м;
b - расстояние между наиболее высоким элементом здания и нижним торцом конструкции, b >= 0,5 м без нахождения людей в рабочей зоне, b = 2 м - при нахождении людей в рабочей зоне.
6.9.2 При работе в стесненных условиях на величину вылета стрелы влияет расположение находящихся рядом строений, расстояние hбез, м, до которых от наибольшего габарита грузоподъемного крана должно соответствовать установленным нормативным показателям безопасности.
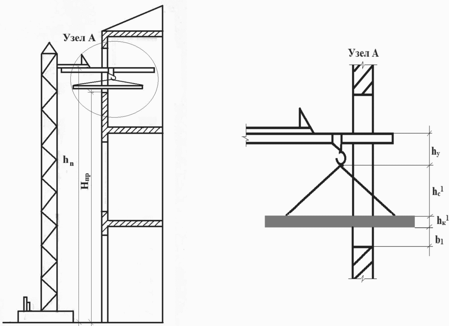
6.9.3 При организации монтажа конструкций подъемником с монорельсом через проемы здания
(рисунок 4) высота расположения монорельса
hn может определяться из зависимости:

(11)
где Hпр - высота от уровня земли до внешней грани нижнего бруска оконной коробки, установленной в проеме, через который конструкции подают внутрь здания, м;

- высота монтируемой конструкции, м;

- высота подвески (строп), м;
hу - высота устройства для подачи грузов в проемы, м;
b1 - расстояние от нижнего бруса оконной коробки до нижней части монтируемой конструкции, b1 = 0,5 м.
Рисунок 4 - Монтаж конструкций через проемы здания
6.9.4 При перемещении строительных конструкций через вертикальные проемы необходимая высота проема
hпр при использовании подвесных грузоподъемных средств с монорельсом
(рисунок 5) определяется из зависимости

(12)
где hбм - расстояние от нижней части верхней грани проема до верхней полки монорельса, hбм = 0,3 м;
hм - высота монорельса, м;
hт - габарит тележки от нижней грани монорельса до низа грузоподъемного крюка, м.
Рисунок 5 - Перемещение строительных конструкций
при использовании подвесных грузоподъемных средств
6.10 Автомобильные краны следует применять на погрузочно-разгрузочных работах, монтаже и подаче к местам производства строительных работ материалов, изделий, конструкций и технологического оборудования небольшой массы и объемов.
6.11 Краны на специальном шасси автомобильного типа с гидравлической телескопической стрелой необходимо использовать для подачи строительных материалов, изделий и конструкций в стесненные места, при монтаже конструкций и оборудования пристраиваемых помещений и сооружений, а также при производстве работ внутри реконструируемых зданий.
6.12 Короткобазовые краны на пневмоколесном ходу с телескопической стрелой, характеризующиеся незначительными габаритными размерами и высокой маневренностью, целесообразно использовать для работы внутри цехов.
6.13 Самоходные гусеничные краны следует применять для выполнения монтажных работ большого объема и значительной массы монтируемых конструкций при возведении пристраиваемых цехов и сооружений, внутри реконструируемых цехов через технологические проемы в крыше и стенах, перегрузки и подачи в стесненные места строительных материалов, конструкций, машин и оборудования. При этом применение на гусеничных стреловых кранах сменного башенно-стрелового оборудования расширяет рабочую зону, обслуживаемую краном с одной стоянки, а также обеспечивает возможность подачи груза в более отдаленные места внутри реконструируемого цеха через технологические проемы в крыше.
6.14 Стреловые самоходные краны на пневмоколесном ходу с телескопическими стрелами эффективны при небольших объемах рассредоточенных работ внутри цехов одноэтажных промышленных зданий, а также при производстве работ на территории реконструируемых объектов.
6.15 Башенные краны следует использовать при возведении пристраиваемых зданий и сооружений на территории реконструируемого предприятия, а также для подачи материалов и изделий внутрь действующих цехов, насыщенных технологическим оборудованием, через предварительно устраиваемые проемы в ограждающих конструкциях.
6.16 Для единичных подъемов строительных конструкций и технологического оборудования, при демонтаже и монтаже сверхтяжелых подкрановых балок и подстропильных ферм, а также в случаях технической невозможности использования грузоподъемных кранов, применяются монтажные мачты, порталы, шевры, переносные монтажные стрелы и мачтовые краны.
6.17 Для перемещения и подъема конструкций при производстве работ внутри действующих цехов, в которых по условиям стесненности невозможно применение грузоподъемных кранов, применяются лебедки как в качестве самостоятельного механизма, так и в комплекте со специальными грузоподъемными устройствами и такелажными средствами. С использованием лебедок осуществляется демонтаж колонн, подкрановых балок, крановых рельсов, усиление подстропильных и стропильных ферм.
6.18 Экскаваторы при работах в стесненных условиях следует в основном использовать для разработки грунта и при погрузке отходов, подлежащих утилизации.
6.19 Для погрузочно-разгрузочных работ и перемещения на относительно небольшие расстояния различных грузов в стесненных условиях реконструируемых предприятий могут применяться одноковшовые погрузчики на пневмоколесном и гусеничном ходу, а также вилочные авто- и электропогрузчики.
6.19.1 Одноковшовые фронтальные погрузчики на пневмоколесном ходу, снабженные разнообразным сменным оборудованием (ковшами различной конструкции и захватами), применяются для погрузки сыпучих и мелкокусковых материалов, разработки грунта I - II групп и транспортирования его на небольшие расстояния, засыпки траншей и пазух при возведении фундаментов, погрузки строительного мусора, перевозки и укладки труб, бетонных плит, покрытий дорог и тротуаров, перемещения различных мелких грузов к местам производства работ, а также при разборке дорожных покрытий и тротуаров, бетонных полов, кирпичных стен и других конструкций одноэтажных зданий и сооружений.
6.19.2 Одноковшовые погрузчики на гусеничном ходу, обладая значительными тяговыми и напорными усилиями, возможностью перемещаться с крупногабаритным грузом, используются для выполнения погрузочных и землеройно-погрузочных работ, а также для перемещения строительных материалов в стесненных условиях при устройстве подземных частей пристраиваемых зданий и сооружений.
6.19.3 Автопогрузчики применяются в основном для обеспечения погрузочно-разгрузочных работ при контейнерной и пакетной доставке различных строительных материалов, для перемещения их в пределах строительной площадки к рабочим местам.
6.19.4 Автопогрузчики с фронтальным расположением грузоподъемной рамы с вилочными захватами применяются для срыва, перемещения и погрузки на автотранспортные средства плит дорожных покрытий и бетонных полов при их разборке, для погрузки в автосамосвалы строительного мусора при разборке зданий и сооружений, а также используются при блочной разборке кирпичных стен.
В качестве сменного рабочего оборудования, монтируемого на передвижной каретке автопогрузчика, применяются ковши, снабженные гидравлическим цилиндром для их поворота при погрузке и выгрузке, грейферные захваты.
6.19.5 Электропогрузчики с фронтальным и боковым расположением навесного сменного оборудования используются при погрузочно-разгрузочных работах и доставке строительных материалов в контейнерах или пакетах к местам производства работ внутри реконструируемых помещений промышленных зданий и сооружений.
6.20 Для механизации погрузочно-разгрузочных и вспомогательных малообъемных работ в стесненных условиях используют мобильные гидрокрановые установки на базе малогабаритных пневмоколесных тракторов, а также навесное гидрокрановое оборудование к одноковшовым гидравлическим экскаваторам.
6.21 Для замены ручного труда при транспортировании различных строительных грузов в действующих цехах, где вследствие стесненности не могут применяться традиционные автотранспортные средства, используются маневренные малогабаритные мото- и электротележки.
6.21.1 Мототележки, имеющие незначительные радиусы поворота, предназначаются для перевозок малогабаритных штучных, сыпучих и жидких грузов на небольшие расстояния.
6.21.2 Мототележки могут снабжаться платформой для перевозки штучных грузов, самосвальным кузовом или объемным бункером для сыпучих материалов, цистерной для жидких материалов, а также съемным ковшом, имеющим гидравлический механизм, для его подъема и опрокидывания.
6.21.3 Электротележки в условиях реконструируемого предприятия применяются для транспортирования малогабаритных штучных грузов внутри цехов, имеющих твердое покрытие. Электротележки могут оборудоваться крановым устройством, обеспечивающим механизацию погрузочно-разгрузочных работ.
6.22 Для транспортирования строительных грузов в места, где вследствие условий стесненности невозможно установить дополнительно разгрузочные машины, используются автомобили-самопогрузчики с гидравлической крановой консольной шарнирно-сочлененной стрелой. В транспортном положении гидрокрановая установка не превышает транспортные габариты автомобиля.
6.23 Средства малой механизации, применяемые при реконструкции, подразделяются по функциональному назначению на средства подмащивания, грузозахватные приспособления, механизированный инструмент, контейнеры и пакеты.
6.23.1 Эффективное использование средств малой механизации обеспечивается в виде нормокомплектов, рассчитываемых на специализированные или комплексные бригады.
6.23.2 Номенклатура средств малой механизации для производства реконструктивных работ приведена в
приложении В.
6.23.3 В составе нормокомплектов следует предусматривать резервные средства малой механизации для обеспечения замены вышедших из строя или увеличения объемов работ.
6.23.4 Относящиеся к средствам малой механизации самоходные подмости и телескопические подъемники применяются для подъема рабочих, строительных материалов и конструкций в соответствии с паспортными характеристиками при выполнении монтажных, демонтажных, отделочных и других видов работ.
6.23.5 Вышки строительные с гидравлической шарнирной секционной стрелой используются для выполнения работ в труднодоступных местах и над оборудованием, расположенным в реконструируемом цехе.
6.23.6 Механизированный инструмент, применяемый при реконструктивных работах, включает сверлильные электрические и пневматические машины, ручные гайковерты, шлифовальные машины, механические ножницы, установки для пневматического распыления краски и антикоррозийного покрытия, механизмы для герметизации стыков и швов.
6.24 Для выполнения работ вблизи фундаментов следует ограничить использование средств механизации и способов, при которых возникают динамические воздействия (забивка свай молотами, уплотнение грунта трамбующими плитами ударного действия, установка шпунта вибропогружателями, разбивка бетонных массивов молотами). В этих случаях применяются машины для вдавливания свай и шпунта, для вибротрамбования грунта, разрезания бетона и другие способы, исключающие или ограничивающие динамические воздействия.
6.25 Для выполнения работ по обратным засыпкам в стесненных условиях применяют бульдозеры, фронтальные и грейферные погрузчики, одноковшовые экскаваторы и мостовые краны с оборудованием грейфера.
6.26 Для послойного уплотнения грунта в наименее доступных местах (нижняя часть пазух котлованов и траншей) используются ручные электрические трамбовки или навесное оборудование к грузоподъемным кранам, экскаваторам и тракторам.
6.27 В качестве грунтоуплотняющего оборудования возможно использовать гидромолоты при установке на них трамбующей плиты.
6.28 В условиях реконструкции могут применяться крышевые и мостовые краны, спаренные мостовые краны, оборудованные тентами для защиты от атмосферных осадков, а также настилами, предохраняющими от падения предметов и искр при огневых работах.
6.29 Применение определенных средств механизации для подачи и укладки бетонной смеси зависит от степени стесненности площадки, наличия подъездов и других специфических особенностей. Бетонная смесь может подаваться грузоподъемными кранами с помощью бадей и ковшей, бетононасосами, ленточными бетоноукладчиками и транспортерами, виброжелобами, мототележками и фронтальными погрузчиками.
6.29.1 Подачу бетонной смеси с использованием грузоподъемного крана целесообразно применять при интенсивности бетонных работ до 20 м3 в смену. При этом кран одновременно используется на арматурных и опалубочных работах.
6.29.2 Для возведения фундаментов под оборудование внутри реконструируемого цеха могут использоваться для подачи бетонной смеси мостовые краны.
6.30 Выбор средств механизации следует производить с учетом рабочих зон, имеющихся на участках производства работ, проездов и проходов, пространства над оборудованием цеха, а также технических параметров машин (емкость ковша, грузоподъемность, длина стрелы, высота ее подъема, производительность машин и т.п.). Для работ по реконструкции средства механизации могут комплектоваться путем их соответствующего отбора, а также дооснащения и модернизации. Наряду с учетом технических параметров выполняется экономическая оценка различных вариантов механизации.
6.31 Возможность проезда средств механизации и транспорта по внутризаводским дорогам и рабочим зонам устанавливается с учетом их габаритов и габаритов строительных конструкций и имеющихся ограничений по высоте, ширине, а также наличия в местах проезда зданий, сооружений, поворотов и других конкретных факторов. В частности, следует устанавливать минимальные размеры дороги по ширине входящей Bвх в проезд и выходящей Bвых из него, по высоте, а также минимальную ширину свободной зоны проезда на участке поворота как на криволинейных участках (в зависимости от радиусов поворота машин), так и при повороте гусеничных машин под прямым углом. При условии, если точка с координатами, соответствующими габариту (по ширине) входящей (по направлению движения) в проезд дороги Bвх и выходящей Bвых, нанесенная на график, оказывается выше кривой вписываемости соответствующего транспортного средства, то проезд удовлетворяет требуемым условиям.
6.32 Возможность перемещения длиннобазовых строительных машин, транспортирования длинномерных конструкций и оборудования, перевозимых седельными тягачами с полуприцепами, с учетом ограничений в местах поворота ориентировочно проверяются по графикам вписываемости автотранспортных средств в прямоугольный проезд (рисунок 6).
1 - с полуприцепом длиной 6 м; 2 - с полуприцепом
длиной 12 м; 3 - с полуприцепом длиной 18 м;
4 - с полуприцепом длиной 24 м; 5 - внешняя габаритная
кривая тягача; Bвх - значения зоны движения на въезде;
Bвых - значение зоны движения на выезде
Рисунок 6 - Вписываемость в прямоугольный проезд седельного
тягача КАМАЗ с учетом габаритных параметров полуприцепов
Для определения возможности проезда с учетом угла сопряжения входящей и выходящей дороги могут быть упрощенным способом построены кривые вписываемости любого автомобильного тягача с заданными параметрами прицепа или транспортируемой конструкции. Порядок определения возможности вписываемости автотранспортного средства с длинномерными конструкциями приведен в
приложении Г.
6.33 В случае прохождения трассы внутрипостроечных дорог в непосредственной близости от существующих подземных сооружений или над ними проверяется возможность восприятия ими нагрузок, возникающих от строительных машин и транспортных средств.
6.34 На территории реконструируемых предприятий для транспортных средств устанавливаются предельно допустимые скорости движения. Зоны ограничения скорости, места стоянки и разворотов отмечают соответствующими дорожными знаками, хорошо видимыми в любое время суток.
6.35 Возможные перемещения внутрипостроечного транспорта следует увязывать с размещением на территории предприятия складов для строительных конструкций площадок укрупнительной сборки.
7 Организация работ подготовительного периода
7.1 В подготовительный период реконструкции промышленных предприятий выделяются внеплощадочные и внутриплощадочные подготовительные работы.
7.2 Организационно-технологические схемы и методы выполнения внеплощадочных подготовительных работ при реконструкции промышленных предприятий по своему составу и содержанию не отличаются от нового строительства (СТО НОСТРОЙ 2.33.14).
7.3 Внутриплощадочные подготовительные работы подразделяются по функциональному назначению на четыре группы
(рисунок 7):
- первая - обустройство территории зоны реконструкции;
- вторая - подготовка территории зоны реконструкции;
- третья - инженерная подготовка зоны реконструкции;
- четвертая - обеспечение нормального функционирования объектов реконструируемого предприятия при проведении строительно-монтажных работ.
Рисунок 7 - Схема внутриплощадочных подготовительных работ
7.4 В первую очередь выполняются работы первой группы, затем остальные. Последовательность работ внутри групп и степень их совмещения определяются конкретными условиями реконструкции.
7.5 Внутриплощадочные подготовительные работы по территориальному признаку включают:
- объектные, проводимые внутри зданий и сооружений и на непосредственно примыкающей к ним территории;
- общеобъектные, проводимые на территории предприятия, не примыкающей к реконструируемым зданиям и сооружениям.
7.6 Общеобъектные и объектные работы могут выполняться как совместно, так и раздельно.
7.6.1 В состав основных общеобъектных работ входит:
- перенос зеленых насаждений;
- устройство временного ограждения строительной площадки;
- вертикальная планировка;
- возведение зданий и сооружений, необходимых для переноса в них действующего технологического оборудования или перевода служб предприятия на период реконструкции цеха.
7.6.2 В состав основных объектных работ входит:
- ограждение зоны проведения работ (возведение временных стенок и перегородок, обеспечивающих безопасные условия производства строительно-монтажных работ и производственную деятельность реконструируемого цеха);
- возведение экранов, обеспечивающих защиту от вредного воздействия производственной среды предприятия;
- закрытие входов и въездов реконструируемого цеха, расположенных в опасной зоне проведения строительно-монтажных работ;
- оборудование постоянных зданий и сооружений, используемых на период реконструкции;
- защита эксплуатируемых зданий, сооружений, технологического оборудования и инженерных сетей на период проведения строительно-монтажных работ;
- усиление оснований фундаментов зданий и сооружений;
- сооружение защитных настилов и перекрытий над технологическим оборудованием и инженерными сетями;
- усиление строительных конструкций зданий и сооружений;
- демонтаж технологического оборудования.
7.7 В организационно-технологических решениях на выполнение внутриплощадочных подготовительных работ следует учитывать следующие факторы:
- возможность функционирования реконструируемого производства при расширении существующих и строительстве новых зданий и сооружений или монтаже технологического оборудования на свободных площадках действующего предприятия;
- полную остановку основного производства в реконструируемом объекте при функционировании предприятия в целом;
- частичную остановку производства в действующих цехах и на участках, последовательно освобождаемых предприятием.
7.8 Последовательность выполнения подготовительных работ устанавливается с учетом совмещения с основными строительно-монтажными работами в календарном плане производства работ.
7.8.1 Для случая совмещения общеобъектных подготовительных работ
tобщ с объектными подготовительными

и основными работами
Tосн (изображение а),
рисунок 8) время совмещения общеобъектных и объектных подготовительных работ выражается временем проведения объектных подготовительных работ
tвн. Время совмещения основных и общеобъектных подготовительных работ

зависит от времени, требующегося для открытия фронта объектных подготовительных работ, и продолжительности выполнения общеобъектных и объектных подготовительных работ.
7.8.2 Для случая совмещения общеобъектных и объектных подготовительных работ (изображение б), рисунок 8), когда в работах подготовительного периода преобладают объектные подготовительные работы, совмещение основных и подготовительных работ отсутствует. Время, требующееся для открытия основных строительно-монтажных работ, равно сумме времени, требующегося для открытия объектных подготовительных работ tф, и времени их проведения tвн.
а) совмещение общеобъектных подготовительных работ
с объектными подготовительными и основными работами;
б) совмещение общеобъектных и объектных
подготовительных работ
1 - объектные подготовительные работы;
2 - общеобъектные подготовительные работы;
3 - основные строительно-монтажные работы
Рисунок 8 - Принципиальная организационно-технологическая
схема производства работ
7.8.3 Продолжительность реконструкции
T для трех объектов с объектными и общеобъектными подготовительными работами (рисунок 9) равна продолжительности проведения работ подготовительного периода
Tпод и продолжительности проведения последней основной работы

.
1 - объектные подготовительные работы;
2 - общеобъектные подготовительные работы;
3 - основные строительно-монтажные работы
Рисунок 9 - Принципиальная организационно-технологическая
схема производства работ (на предприятии реконструируются
три объекта)
7.9 Принципиальная организационно-технологическая схема при реконструкции с частичной остановкой производства с поэтапным выделением участков для проведения строительно-монтажных работ показана на рисунке 10 (на объекте выделены три последовательно реконструируемых участка).
1 - общеобъектные подготовительные работы; 2 - объектные
подготовительные работы; 3 - основные строительно-монтажные
работы; 4 - время перехода бригад с участка на участок
Рисунок 10 - Принципиальная организационно-технологическая
схема производства работ при реконструкции с частичной
остановкой производства
7.10 При реконструкции объекта, где для производства строительно-монтажных работ последовательно выделяются участки, на которых останавливается основное производство, работы начинаются с общеобъектных подготовительных работ. После выполнения некоторого объема общеобъектных работ
tф, достаточных для начала объектных подготовительных работ, на первом выделенном участке, начинается производство объектных подготовительных работ продолжительностью

, по окончании которых выполняются основные строительно-монтажные работы продолжительностью

. После производства всего комплекса реконструктивных работ на первом участке бригада переходит на другой выделенный участок. При этом должно учитываться время перехода

с одного участка на другой, необходимое на передислокацию бригады строителей с машинами и механизмами.
После выполнения объектных подготовительных работ на втором участке продолжительностью

производятся основные строительно-монтажные работы продолжительностью

. Для третьего участка все повторяется в той же последовательности.
7.11 На реконструируемом предприятии могут использоваться действующие инженерные сети для снабжения строительной площадки электроэнергией, теплом, паром, сжатым воздухом и газом.
7.12 При недостаточной мощности энергетических установок промышленного предприятия или при большом удалении постоянных инженерных сетей от мест проведения работ прокладываются временные инженерные сети с заглублением, по поверхности земли, на имеющихся эстакадах, по опорам, столбам или стойкам, по стенам зданий.
7.13 Все коммуникации на действующем предприятии перед началом работ по реконструкции и во время их выполнения отключаются только по указаниям и силами эксплуатационного персонала предприятия.
7.14 В схемах движения транспортных средств и строительных машин на территории реконструируемого предприятия учитывается размещение дорог и зданий (сооружений) этого предприятия.
7.15 Организация движения транспортных средств и строительных машин на территории реконструируемого предприятия предусматривает:
- выявление постоянных дорог, по которым допускается движение крупногабаритных транспортных средств и строительных машин, особенно с гусеничной ходовой частью;
- установление направлений движения по временным путям;
- определение подъездов к реконструируемым зданиям и цехам;
- выделение мест стоянки транспортных средств и строительных машин;
- разработку схемы движения транспортных средств и строительных машин по территории реконструируемого предприятия.
7.16 Для сохранения покрытий тротуаров и пешеходных дорожек ограничивается перемещение всех видов транспортных средств и строительных машин по ним. В случае необходимости переезда транспортных средств и строительных машин через указанные покрытия оборудуются специальные переезды, а если повреждение названных покрытий в ходе реконструкции неизбежно, следует предусматривать работы по восстановлению этих покрытий.
7.17 При использовании существующих дорог предприятия для целей реконструкции необходимо проверить их на допустимость провоза грузов для реконструкции с учетом габаритных параметров и радиусов поворота транспортных средств.
7.18 Открытые склады материалов, изделий и конструкций, площадки укрупнительной сборки располагаются в зонах действия монтажных кранов, а в случае отсутствия такой возможности - на свободном участке предприятия или рядом расположенной территории. При этом необходимо предусматривать возможность транспортирования укрупненных конструкций к монтажной зоне.
7.19 При выполнении ряда строительно-монтажных работ требуется создавать въезды для транспорта в боковых или торцевых стенах реконструируемых пролетов, а также проемы в покрытиях, перекрытиях и боковых стенах одно- и многоэтажных зданий. В зимних условиях проемы следует оборудовать быстро сдвигающимися завесами, створками или щитами с уплотняющими устройствами для предохранения помещения от воздействия внешней среды.
7.20 Техническим заказчиком (администрацией предприятия) для нужд строительства под производственные, служебные, санитарно-бытовые и складские помещения могут предоставляться постоянные существующие, подлежащие сносу или возводимые в первую очередь здания, а также предоставляться в совместное пользование имеющиеся на предприятии столовая, медпункт и бытовые помещения.
7.21 Выбор для использования постоянных зданий обосновывается технико-экономическим расчетом с учетом стесненности территории реконструируемых производств. При этом учитывают затраты Q, тыс. руб., как на эксплуатацию, так и последующий ремонт (восстановление) зданий:
Q = Qэ + Qр, (13)
где Qэ - затраты на эксплуатацию постоянного здания;
Qр - затраты на ремонт постоянного здания.
7.22 При отсутствии необходимых объемов постоянных зданий или недостаточности их мощности (вместимости) используются мобильные (инвентарные) здания.
7.23 Работы и мероприятия по защите эксплуатируемых зданий и сооружений, технологического оборудования, инженерных сетей на период реконструкции в подготовительный период проводятся по следующим направлениям:
- предохранение зданий, сооружений, технологического оборудования, инженерных сетей от динамических воздействий при забивке свай молотами, вибропогружении шпунта, уплотнении грунта трамбующими плитами и проведении взрывных работ;
- предохранение технологического оборудования, помещений и производственной среды от загрязнения при разборке кирпичных и бетонных конструкций;
- предохранение конструкций, оборудования и элементов благоустройства от механических повреждений при работе строительных машин, монтажного оборудования и механизмов.
7.24 В условиях реконструкции применяются различные виды временных ограждений, соответствующие требованиям ГОСТ 23407-78
(пункт 1.1) и СТО НОСТРОЙ 2.33.52-2011
(пункт 5.3).
7.25 Кроме временных ограждений при реконструкции могут также устанавливаться:
- временные стенки и перегородки для разделения мест работ, используемых в процессе реконструкции, и участков действующего производства;
- защитные настилы, предохраняющие от падения предметов и материалов с высоты в помещениях, где продолжает функционировать основное производство;
- временные покрытия для защиты от атмосферных воздействий производственных помещений на участках, где с них демонтировано покрытие;
- завесы, закрывающие проемы в стенах, созданные для временного въезда в помещения цехов;
- экраны и легкие укрытия при электросварочных работах в цехах с действующим производством для предохранения от теплового облучения в горячих цехах, укрытия оборудования от загрязнения и др.
7.26 Временные стенки, перегородки и покрытия, защитные настилы, завесы, экраны и легкие укрытия проектируются и изготовляются для конкретных условий использования в зависимости от размеров ограждаемых участков и рабочих мест, специфики выполняемых работ, для защиты от интенсивного светового излучения и пыли, сохранения температурного режима в помещениях, защиты от внешних атмосферных воздействий, выполнения функций охраны материальных ценностей и пожарной безопасности.
При этом требуется учитывать возможные ветровые нагрузки на указанные защитные устройства и в случае необходимости оснащать их расчалками, а иногда и элементами жесткости.
7.27 Ограждения должны быть инвентарными, пригодными для многократного использования, легкими, достаточно долговечными, транспортабельными и соответствовать требованиям пожарной безопасности по
ГОСТ 12.1.004.
7.28 Геодезические работы в условиях реконструкции в основном выполняются с учетом требований, что и при новом строительстве, при этом необходимо следить за состоянием деформаций грунтов и несущих конструкций.
7.29 Окончание работ подготовительного периода в объеме, обеспечивающем реконструкцию объекта запроектированными темпами, подтверждается актом, составленным заказчиком и генподрядчиком с участием субподрядной организации, выполняющей работы в подготовительный период.
8 Организация работ основного периода
8.1 До начала работ основного периода в зависимости от конкретной ситуации следует выполнить следующие работы:
- перенести за пределы монтажной зоны все действующие надземные коммуникации и технологическое оборудование, в случае невозможности переноса они должны быть надежно защищены от возможного повреждения во время монтажных работ;
- установить, при необходимости, временные ограждения, отделяющие монтажную зону от действующего производства;
- устроить монтажные проемы и проезды в реконструируемом цехе;
- оборудовать звуковую сигнализацию на действующих железнодорожных путях, проходящих вблизи и через монтажную зону, и создать при необходимости переезды;
- обесточить оборудование производственных помещений, находящихся в зоне выполнения работ;
- закрыть из действующих цехов все выходы в опасную зону;
- подготовить средства защиты рабочих и механизмов строительно-монтажных организаций от вредного воздействия производственной среды действующего предприятия.
8.2 Выбор организационно-технологических методов производства работ основного периода строительства осуществляется с учетом их совмещения с основной деятельностью реконструируемого производства, генерального плана объекта, характера застройки промышленной площадки, планировочных и конструктивных решений зданий и сооружений. Факторы, влияющие на выполнение строительно-монтажных работ при реконструкции, представлены в таблице 7.
Таблица 7
Факторы, влияющие на выполнение строительно-монтажных
работ при реконструкции
Условия реконструкции промышленных предприятий | Факторы, влияющие на строительно-монтажные работы при реконструкции | Характер влияния факторов |
1 | 2 | 3 |
Производственная деятельность реконструируемого предприятия | Превышение установленных норм санитарно-гигиенической среды реконструируемого предприятия (пыль, загазованность, шум) | Проявляется в цехах, отнесенных к разряду вредных, с большими тепло- и газовыделениями, высокой концентрацией пыли в воздухе, источниками шума и вибрации. Вызывает увеличение трудоемкости работ, дополнительные издержки строительного производства в результате внедрения мероприятий по обеспечению безопасности работ и условий работы строителей |
Повышенная опасность в зоне проведения работ (взрывоопасность, пожароопасность) | Приводит к снижению производительности труда в связи с применением менее прогрессивных строительных процессов, невозможностью их механизации. Требуется проведение работ по укрупнительной сборке строительных конструкций и технологического оборудования вне территории предприятия |
Особенности технологических схем и процессов реконструируемого предприятия | При последовательно-непрерывном технологическом процессе: - задаются кратковременные директивные сроки производства строительно-монтажных работ, что вызывает необходимость концентрации материально-технических и людских ресурсов в зоне реконструкции; - ограниченное время остановки основного производства требует перенесения строительно-монтажных работ на неблагоприятные смены; - ограничиваются сроки производства строительно-монтажных работ (работы производятся в ночные смены, в общие выходные дни предприятия). При параллельно-последовательном технологическом процессе (часть цехов функционирует с непрерывной технологией и параллельно действуют цехи, где выполняются все стадии изготовления продукции) участки для производства строительно-монтажных работ освобождаются предприятием поэтапно, что приводит к нарушению непрерывности строительных процессов из-за неподготовленности фронта работ в связи с необходимостью полного завершения работ на свободном участке |
Насыщенность зоны реконструкции действующими технологическим оборудованием и инженерными сетями | Затрудняется применение имеющейся в распоряжении строителей и монтажников строительной техники, усложняется организация материально-технического снабжения, производятся дополнительные работы с целью предохранения технологического оборудования от повреждений |
Эксплуатация внутризаводских транспортных коммуникаций строителями и производственниками | Увеличиваются сроки проведения строительно-монтажных работ в связи с нарушением непрерывности производства работ, проводимых вблизи транспортных коммуникаций |
Эксплуатация цехового грузоподъемного оборудования строителями и производственниками | Нарушается ритмичность строительно-монтажных работ |
Показатели застройки территории предприятия | Высокая плотность застройки территории предприятия | Приводит к нерациональному складированию строительных материалов и конструкций, не позволяет организовать приобъектные склады в зоне действия грузоподъемных кранов и промежуточные склады в пределах строительной площадки, что вызывает организацию перевалочных баз вне территории предприятия. Не позволяет создавать площадки для укрупнения строительных конструкций и технологического оборудования, что ограничивает возможность применения крупноблочного монтажа. Препятствует применению строительной техники, увеличивая объемы немеханизированных работ |
Рассредоточенность реконструируемых объектов предприятия | Приводит к нерациональному размещению инвентарных зданий и сооружений на строительной площадке. Увеличивает количество пересечений людского и грузового потоков строителей и производственников |
Насыщенность территории предприятия подземными коммуникациями | Не позволяет при инженерной подготовке строительной площадки использовать землеройную технику с полной производительностью, так как в местах пересечений с коммуникациями ее применение затруднено или невозможно |
Стесненность проездов внутризаводской автодорожной сети | Ограничивается возможность использования существующих на предприятии автомобильных дорог для перевозки длинномерных строительных конструкций и перемещения строительных машин. Усложняются транспортные схемы доставки конструкций к месту монтажа |
Объемно-планировочные и конструктивные решения зданий и сооружений | Сложная конфигурация зданий и сооружений | Усложняются трассы передвижения строительных машин, производится их многократный монтаж и демонтаж, что снижает эффективность применения строительной техники |
Индивидуальность объемно-планировочных и конструктивных решений | Приводит к увеличению объемов применения строительных материалов и снижению степени сборности. Не позволяет использовать типовые технологические карты и индустриальные методы производства работ |
Недоступность детального обследования частей и конструкций зданий и сооружений, подвергаемых реконструкции | Приводит к возникновению непредвиденных работ по усилению и закреплению конструкций, не подвергаемых разборке при демонтаже элементов зданий и сооружений |
8.3 К работам по монтажу оборудования и коммуникаций следует приступать только после завершения подготовительных работ, установленных согласованным графиком, при наличии на объекте (складах технического заказчика) оборудования, конструкций, материалов и других изделий в количестве, необходимом для нормального выполнения монтажных работ, а также при выполнении мероприятий по охране труда, противопожарной безопасности и производственной санитарии, предусмотренных нормами, правилами и особыми условиями монтажных работ.
8.4 Производство строительно-монтажных работ в местах расположения действующих подземных инженерных коммуникаций и их вскрытие допускается при наличии разрешения организации, эксплуатирующей эти коммуникации. Границы и оси коммуникаций на местности должны быть обозначены соответствующими знаками по
ГОСТ Р 12.4.026 и
СТО НОСТРОЙ 2.33.52.
8.5 В условиях действующего производства монтаж оборудования, трубопроводов и конструкций следует производить в последовательности и в сроки, не нарушающие работу действующего технологического оборудования.
8.6 При реконструкции с остановкой отдельных технологических линий или части оборудования необходимо установить пути перемещения подлежащего монтажу оборудования. В тех местах, где груз перемещается в непосредственной близости от оборудования, трубопроводов и элементов зданий и сооружений, необходимо устанавливать ограничители, выполненные в виде щитов, стоек, сеток и других защитных конструкций, исключающих возможность соприкосновения.
8.7 Оборудование, находящееся в монтажной зоне, следует обесточить и отключить от действующих коммуникаций. В тех случаях, когда действующие коммуникации, находящиеся в пределах монтажной зоны, не могут быть отключены, их необходимо ограждать защитными кожухами или сетками.
8.8 При подъеме грузов в действующих цехах, когда визуальные сигналы могут не дойти до исполнителей, следует пользоваться двусторонней телефонной или радиотелефонной связью.
8.9 Земляные работы в условиях реконструкции характеризуются следующими особенностями:
- стесненные условия выполнения земляных работ в цехах с действующим производством и на территории предприятия, занятой зданиями, сооружениями, коммуникациями;
- отрывка котлованов вблизи существующих фундаментов;
- необходимость разборки в ряде случаев покрытий дорог, площадок и полов до начала земляных работ;
- разнообразие коммуникаций в местах отрывки котлованов и траншей;
- ограничения на применение машин с двигателями внутреннего сгорания на внутрицеховых работах и динамические воздействия на грунт вблизи коммуникаций;
- отсутствие во многих случаях мест для временного хранения грунта, разработанного в котлованах и траншеях;
- относительно большой объем работ, выполняемых вручную из-за стесненности, наличия большого количества коммуникаций, трудности применения средств механизации.
8.9.1 Отрывка котлованов может включать следующие варианты:
- необходимость понижения уровня грунтовых вод;
- отрывка котлованов вблизи фундаментов зданий и оборудования ниже подошв существующих фундаментов, несущих нагрузки;
- отрывка котлованов по периметру фундаментов при увеличении их размеров, когда создаются условия для выпирания грунта из-под подошвы и возникновения просадок;
- отрывка котлованов глубиной более 4 м с вертикальными стенками;
- закрепление грунта под подошвами фундаментов и в откосах котлованов.
8.9.2 Подготовка к производству земляных работ должна содержать:
- выявление, уточнение и обозначение на местности положения всех коммуникаций, проходящих вблизи и в зоне работ;
- установление положения геодезических знаков, требующихся для проведения работ, а в необходимых случаях - установка временных реперов;
- снятие и обвалование растительного грунта со всей площади работ, включая временные дороги и места временной укладки материалов;
- разборку конструкций, подлежащих сносу на местах разработки выемок, покрытия полов, дорог и площадок.
8.9.3 В условиях реконструкции в связи со стесненностью большая часть котлованов и траншей отрывается с вертикальными стенками и для предотвращения обрушения грунта требуется установка металлического шпунта с распорными рамами или анкерами, а также деревянных шпунтов или щитов.
8.9.4 Обратная засыпка котлованов и траншей в условиях реконструкции в общем случае включает доставку грунта, его отсыпку, разравнивание и уплотнение. Доставка грунта может осуществляться наряду с общепринятыми способами, а также съемными емкостями, доставляемыми к месту разгрузки мостовыми кранами.
8.9.5 При отрывке котлованов должно вестись ежедневное геодезическое наблюдение за осадками фундаментов, расположенных вблизи от разрабатываемого котлована. При наличии даже незначительных осадок работы следует приостановить и принять меры по предотвращению дальнейших осадок.
8.10 Бетонные работы, выполняемые в условиях реконструкции, характеризуются следующими особенностями:
- стесненность мест производства работ из-за расположенного вблизи технологического оборудования предприятия;
- большое разнообразие единичных объемов работ при устройстве фундаментов под оборудование;
- малые объемы работ при усилении колонн и других железобетонных конструкций;
- необходимость во многих случаях совмещать бетонные работы с работой предприятия, предоставляющего фронт работ в третьи смены или кратковременные периоды в первые и вторые смены;
- наличие недоступных мест для подъезда транспортных средств, доставляющих бетонную смесь;
- необходимость транспортирования бетонной смеси мостовыми кранами, электрокарами и другими имеющимися на предприятии техническими средствами;
- применение бетонных смесей со специальными свойствами, а также применение средств для ускорения процесса набора прочности бетона;
- повышенные требования к чистоте рабочих мест при бетонировании в действующих цехах;
- необходимость обеспечения в более короткие сроки начала работ по монтажу оборудования после окончания бетонных работ.
8.10.1 Приготовление бетонной смеси в зависимости от территориального расположения предприятия и условий реконструкции может осуществляться:
- на заводах товарного бетона;
- на заводах полустационарного типа или бетонных узлах, расположенных на территории реконструируемого предприятия или вблизи от него;
- в бетоносмесительных установках, располагаемых вблизи от мест бетонирования (при этом применяются специальные бетонные смеси на мелком щебне, требующиеся для усиления конструкций, с повышенной подвижностью, на специальных цементах);
- в автобетономешалках, получающих смесь сухих материалов на заводах или пунктах дозировки и загрузки (при больших расстояниях, требующих значительной продолжительности транспортирования).
8.10.2 Место получения или приготовления бетонной смеси устанавливается в зависимости от режима выполнения бетонных работ на реконструируемом предприятии.
Следует предусматривать минимальное количество перегрузок бетонной смеси и исключить применение ручного труда.
8.10.3 При выполнении работ в условиях реконструкции могут применяться следующие основные способы подачи бетонной смеси к бетонируемым конструкциям:
- непосредственная выгрузка из автобетоновозов;
- бетононасосами;
- башенными или самоходными стреловыми кранами с использованием бункеров;
- технологическими мостовыми кранами в бункерах и бадьях;
- автопогрузчиками и электрокарами в бункерах и бадьях;
- мото- и электротележками с опрокидывающимися кузовами;
- бетоноукладчиками и конвейерами.
8.10.4 Средства транспортирования бетонной смеси должны позволять выгружать бетонную смесь непосредственно в бетонируемую конструкцию или перегружать в другую емкость, с помощью которой смесь подается к месту бетонирования.
8.10.5 В случаях, когда бетонируемая конструкция расположена в пролете, не оснащенном мостовым краном, но рядом с пролетом, имеющим мостовой кран, бетонная смесь из бункера с помощью мостового крана разгружается в приемное устройство бетоноукладчика или ленточного конвейера, расположенного в зоне действия мостового крана, и затем подается в соседний пролет.
8.10.6 Сопряжение каркаса усиления фундамента со старым фундаментом может быть выполнено с помощью стальных анкеров, вставленных на цементно-песчаном растворе или эпоксидном клее в пробуренные (просверленные) шпуры. Количество анкеров, их длина, диаметр и заглубление устанавливаются проектом.
8.10.7 Для уменьшения периода времени между бетонированием конструкций и монтажом оборудования следует применять различные способы ускорения твердения бетона.
8.10.8 Для тепловой обработки бетона используются следующие способы:
- при бетонировании фундаментов под колонны и оборудование, свайных ростверков, фундаментных плит, конструкций подвалов, тоннелей, колонн, стен при их толщине более 0,3 м - обогрев в греющей опалубке или периферийный электропрогрев в деревянной опалубке с закрепленными на ней полосовыми электродами;
- при бетонировании полов, днищ, покрытий площадок, междуэтажных перекрытий, набетонок - обогрев с применением термоактивных гибких покрытий (матов) или периферийный электропрогрев с применением полосовых электродов, закрепленных на деревянных накладных щитах или на деревянной подвесной опалубке;
- при усилении колонн - периферийный прогрев с подключением арматурного каркаса к нулевой фазе, а металлической опалубки или пластинчатых (или полосовых) электродов, укрепленных на деревянной опалубке, - к одной из фаз понижающего трансформатора;
- при небольших объемах работ - электропрогрев с помощью стержневых электродов, устанавливаемых (забиваемых) в свежеуложенный бетон;
- при замоноличивании стыков - греющие провода, устанавливаемые в полости стыка, греющая опалубка, стрежневые или полосовые электроды.
8.11 Монтажные работы в условиях реконструкции характеризуются следующими особенностями:
- ограниченная доступность на участки производства работ;
- ограниченная возможность крупноблочного монтажа;
- ограниченная зона действия грузоподъемных кранов;
- мелкосерийность, разнотипность, разновесность монтируемых конструкций;
- ограниченность размеров зон складирования и площадок укрупнительной сборки;
- необходимость выборочной замены конструкций;
- частая перестановка монтажных механизмов.
8.11.1 Замена конструкций покрытия производится грузоподъемными кранами, располагаемыми в пролетах или за пределами здания.
При невозможности установки грузоподъемных кранов для замены покрытия применяются крышевые краны.
8.11.2 Демонтировать и заменять подкрановые балки под покрытием следует целиком или частями с помощью стреловых самоходных кранов, которые оснащаются телескопическим стреловым оборудованием. При невозможности использования грузоподъемных кранов работы выполняются с помощью стрел, мачт, шевров или полиспастов, закрепленных за оголовки колонн или в узлах ферм, способных воспринимать монтажные нагрузки.
8.11.3 В цехах с действующим производством, а также в местах, недоступных для стреловых кранов, работы по замене подкрановых балок производятся с помощью лебедок. Перед заменой подкрановых балок мостовые краны удаляют из опасной зоны и выставляют временные упоры, а при необходимости ставят временные связи между колоннами для восприятия тормозных усилий от мостовых кранов.
8.11.4 Замену колонн в цехах с остановкой производства производят с предварительным вывешиванием конструкций покрытия. Вывешивание покрытия может осуществляться установкой временных стоек-опор под усиленные узлы стропильных ферм и поддомкрачиванием их до образования зазора между опорными узлами стропильной фермы и колонны.
В цехах с действующим производством монтажные и демонтажные работы выполняются с помощью лебедок и такелажных приспособлений. При замене металлических колонн применяются опорные устройства, обеспечивающие устойчивость колонн за счет жесткого закрепления этих устройств к колонне и фундаменту.
8.11.5 Замена стропильных ферм и конструкций покрытия в цехах с остановкой производства и малой внутренней стесненностью производится с помощью стреловых самоходных кранов, передвигающихся внутри пролета. При производстве работ в пролетах с большой внутренней стесненностью применяются башенные или стреловые самоходные краны с башенно-стреловым оборудованием, установленные с наружной стороны цеха.
8.11.6 В случае установки нового покрытия на более высокой отметке, чем подлежащее демонтажу (нижний пояс новой стропильной фермы расположен выше верхнего пояса старой), может быть использован способ, при котором вначале монтируют новое покрытие. Демонтаж старого покрытия осуществляют после полного завершения монтажных работ на захватке с помощью оборудования, подвешиваемого к нижнему поясу вновь смонтированных ферм. Демонтаж производится во время кратковременных остановок производства, при этом может быть использован мостовой кран. В случае укладки демонтированных конструкций на настил мостового крана, их снятие осуществляют самоходным стреловым краном или лебедками.
8.11.7 Демонтаж и монтаж конструкций встроенных помещений, рабочих площадок и инженерных систем в реконструируемых цехах целесообразно производить мостовыми кранами.
8.11.8 В условиях реконструкции наиболее целесообразно применять комплексный метод монтажа, при котором грузоподъемный кран, расположенный в одной секции (при движении внутри пролета) или возле секции (при движении вне пролета), выполняет все работы в пределах этой секции.
При сплошной замене элементов каркаса на большой длине при возможности расположения кранов снаружи пролета, а также при отсутствии внутренней стесненности работы могут вестись раздельным методом.
8.11.9 Монтаж покрытий зданий, в которых реконструкцией предусмотрено увеличение высоты, можно производить способом надвижки блоков по накаточным путям, входящим в состав конструкций здания.
Блоки покрытия предварительно собирают самоходными стреловыми кранами на сборочных стендах или на накаточных путях, расположенных в торце здания, и надвигают отдельными или несколькими блоками в проектное положение.
Монтаж покрытий способом надвижки блоков может производиться также по временным накаточным путям, установленным между колоннами на уровне опорной части ферм. В этом случае накаточные пути по окончании работ подлежат демонтажу.
8.11.10 Очередность выполнения монтажных работ при реконструкции многопролетных зданий может быть последовательная, параллельная, ступенчатая. Принятие одной из них зависит от возможности предоставления для монтажа фронта работ в одном или нескольких пролетах, мощности строительно-монтажной организации, установленной продолжительности работ, условий выполнения работ (без остановки, с остановкой производства), возможности движения грузоподъемных кранов внутри пролета и других конкретных условий.
8.11.11 Для организации поточного производства монтажных (демонтажных) работ реконструируемое здание разбивают на захватки. Размер захваток назначается исходя из следующих условий:
- часть цеха, являющаяся захваткой, должна иметь пространственную устойчивость;
- разрыв между зонами работ грузоподъемных кранов, входящих в поток, а также между зонами монтажных и смежных работ должен быть минимальным, но достаточным для безопасного их выполнения.
Очередность работы по захваткам устанавливают в соответствии с назначенными сроками предоставления участков цеха под монтажно-демонтажные работы, в увязке с общей последовательностью работ. Монтаж следует выполнять так, чтобы смонтированная часть цеха не увеличивала стесненность других участков, где предстоит монтаж.
8.11.12 Монтажные краны, выбранные по техническим характеристикам, проверяются на возможность их использования с учетом особенностей их эксплуатации. Проверке подлежат следующие показатели:
- возможность доставки грузоподъемного крана и установки его на объекте;
- достаточность пространственных габаритов для выполнения грузоподъемным краном требующихся операций;
- возможность перемещения крана к местам предполагаемых стоянок.
8.11.13 В результате проверок устанавливается необходимость введения ограничений на работу грузоподъемного крана или необходимость выбора другого типа грузоподъемного крана, удовлетворяющего условиям конкретной обстановки.
8.12 Усиление фундаментов может осуществляться за счет уширения их подошв, передачи нагрузки от них на сваи и, при благоприятных условиях, увеличения несущей способности грунта основания. Выбор способа усиления фундаментов, методов и порядок выполнения работ устанавливаются проектной документацией.
8.13 Типовым решением усиления железобетонных колонн является увеличение площади сечения колонны за счет устройства обоймы (железобетонной рубашки) толщиной 50 - 120 мм.
До начала основных работ по устройству обоймы подготавливается площадка около мест производства работ, устанавливаются инвентарные подмости (передвижные вышки), доставляются щиты опалубки, арматурные каркасы, хомуты, скобы для приварки арматуры усиления к стержням колонны.
8.13.1 В общем случае производство работ по устройству обоймы выполняется в следующей последовательности:
- на колонне через каждые 500 - 800 мм по высоте путем вырубания бетона обнажаются арматурные стержни, к ним при помощи скоб привариваются арматурные каркасы;
- производится очистка, насечка и промывка граней колонны;
- устанавливается опалубка;
- выполняется бетонирование.
8.14 Усиление балок и ригелей междуэтажных перекрытий производится следующим образом:
- арматурные продольные стержни усиления привариваются к арматурным стержням балки через коротыши, шаг, диаметр и длина которых указываются в рабочей документации. Защитный слой снизу балки полностью удаляется. Бетонирование производится методом торкретирования с установкой опалубки на нижней и одной из боковых сторон;
- обнажается вырубанием нижняя арматура балки (ригеля) с шагом, указанным в рабочей документации, и к ней при помощи хомутов приваривается арматура усиления, после чего устанавливается опалубка и производится бетонирование. Перед армированием и установкой опалубки следует произвести очистку, насечку бетона и промывку поверхностей.
8.15 Технологическое оборудование, устанавливаемое на опорных металлоконструкциях, следует предварительно укрупнить на стендах в виде блоков с последующей их установкой стреловыми кранами вместе с опорными конструкциями.
8.16 Технологические трубопроводы следует монтировать из заранее изготовленных узлов и секций, при этом в состав узлов необходимо включать трубопроводную арматуру.
При раздельном монтаже крупной трубопроводной арматуры она должна поставляться с закрепленными патрубками и установленными в соответствии с проектной документацией крепежными элементами.
9 Отраслевые особенности реконструкции зданий и сооружений
9.1.1 Реконструкция объектов требует выполнения больших объемов работ, включая земляные работы, устройство массивных фундаментов под оборудование на глубоких отметках, бетонные и железобетонные работы, демонтаж и монтаж строительных конструкций, специальные работы по усилению металлических и железобетонных конструкций, демонтаж и монтаж технологического и электротехнического оборудования, специальные строительные работы (обмуровочные, теплоизоляционные, антикоррозионные). Характеристика объектов приведена в
приложении Д.
9.1.2 Организация реконструкции металлургических предприятий должна предусматривать доставку различных строительных материалов и конструкций одновременно с интенсивной перевозкой по железнодорожным путям производственных грузов, в том числе расплавленного металла. В этих условиях целесообразным является автомобильный транспорт, а также прицепы-тяжеловозы с мощными колесными тягачами. Железнодорожный транспорт применяется для перевозки тяжелого оборудования с заездом в цех или постановкой вагонов на специальные тупиковые пути.
9.1.3 Монтаж технологического и электротехнического оборудования, приборов и средств автоматики отличается большим разнообразием - от тяжелого доменного оборудования до тончайших современных электронных систем управления производственными процессами. При этом укрупнительная сборка тяжелого оборудования осуществляется на крайне стесненных по размерам площадках в непосредственной близости от действующих чугуно-шлакоотвозных путей, а монтаж и наладка средств автоматики производятся при работающем технологическом оборудовании без его остановки или с кратковременной остановкой.
9.1.4 По агломерационным цехам:
- реконструкцию тракта подачи шихты, кокса, складов для хранения и усреднения материалов, вагоноопрокидывателей и конвейерных трактов в отделениях распределения материалов следует производить в доостановочный период, совмещая эти работы с капитальным ремонтом агрегатов, или производить замену отдельных агрегатов без остановки агломерационной машины;
- приводы агломерационных машин и охладителей агломерата собираются и монтируются одним узлом;
- укрупнение и замену узлов агломерационных машин, грохотов, охладителей агломерата необходимо производить в зоне действия мостового крана;
- замену всех укрытий и уплотнений конвейеров, грохотов, дробилок следует производить по графикам ремонта из заранее заготовленных элементов.
9.1.5 По коксовым батареям:
- реконструкция коксовых батарей состоит в полной разборке огнеупорной кладки и оставлении (или расширении) железобетонной плиты-основания, на которой возводится новая огнеупорная кладка;
- монтаж оборудования и оснастки при реконструкции коксовых батарей выполняется так же, как на новых коксовых батареях.
9.1.6 По доменным печам:
- до остановки печи на реконструкцию следует произвести при необходимости перенос и строительство временных или постоянных железнодорожных путей для отвозки чугуна и шлака; строительство временных и обводных газопроводов, промпроводок, линий электроснабжения, имея в виду отключение постоянных источников снабжения; сооружение всех новых объектов, зданий, фундаментов и монтаж всех агрегатов, не связанных с работой печи;
- в зависимости от наличия стесненности площадки вблизи фундамента под печь принимается способ надвижки печи в целом со смонтированным основным оборудованием и футеровкой или эстакадный способ монтажа отдельными блоками;
- сборка производится на монтажной площадке в максимально укрупненные блоки, совместно с оборудованием и трубопроводами охлаждения печи, исходя из грузоподъемности башенного или другого крана, монтирующего печь;
- замена воздухонагревателей осуществляется в доостановочный период по одному при работе печи с уменьшенным числом воздухонагревателей;
- новый пылеуловитель собирается и подготавливается к установке целиком с последующей надвижкой его на место (после сноса старого пылеуловителя);
- окончательная выверка отсекающего клапана и работа лебедок производится на фундаментах;
- трубопроводы собираются предварительно и устанавливаются на свои опоры вместе с арматурой (окрашенными и изолированными) и с обслуживающими площадками.
Загрузочные устройства доменных печей целесообразно собирать в ремонтно-механических цехах и после проверки всех зазоров блоками доставлять в монтажную зону.
Сборку фурменных приборов следует производить на литейном дворе с помощью мостового или автомобильного крана. Подача фурменных приборов к месту монтажа производится с помощью кольцевого монорельса, установленного вокруг фурменной зоны печи (временно или постоянно).
Реконструкция бункерной эстакады производится в доостановочный период (поочередно группами бункеров) путем сокращения числа работающих бункеров и связанных с ними агрегатов.
Работа внутри печи в несколько ярусов разрешается при наличии соответствующих перекрытий.
Для подъема груза и людей параллельно с монтажом металлоконструкций печи рекомендуется устанавливать грузопассажирский лифт.
9.1.7 По сталеплавильным цехам:
- в кислородно-конверторных цехах при реконструкции производят замену конверторов на более мощные, увеличивают число конверторов в цехе, устанавливают новые котлы-утилизаторы, реконструируют агрегаты по очистке отходящих газов;
- в электросталеплавильных цехах устанавливают более производительные электропечи, производят реконструкцию шихтовых отделений;
- в сталеплавильных цехах разливку стали в изложницы заменяют установками непрерывной разливки стали. На многих заводах реконструкции подвергаются известковые цехи с установкой дополнительных агрегатов;
- наиболее сложные работы по реконструкции производятся в мартеновских цехах, где печи заменяются на конверторы;
- при увеличении числа работающих агрегатов или их замене сборка новых агрегатов в блоки должна производиться при помощи действующих в цехе мостовых кранов, а конверторы после их сварки полностью собираются на монтажной тележке и надвигаются к месту установки;
- сборка котлов-утилизаторов в блоки мостовым краном должна производиться в зоне работы крана;
- установку непрерывной разливки стали следует собирать в блоки и подготавливать к монтажу на ремонтных стендах до остановки цеха. После завершения монтажа необходимо отрегулировать систему охлаждения;
- монтаж установки непрерывной разливки стали вертикального и радиального типа рекомендуется производить мостовыми кранами.
9.1.8 По прокатным цехам:
Реконструкция прокатных цехов производится в разных объемах и имеет целью:
- демонтаж устаревших станов с установкой нового современного оборудования;
- установку более мощных клетей на блюминге, заготовительном стане, а также дополнительных клетей на черновой и чистовой группах станов горячей прокатки;
- замену устаревшего или установку дополнительного оборудования на линии стана (рольгангов, ножниц, холодильников, моталок, агрегатов зачистки металла, передачи металла, слитковозов и других его агрегатов);
- реконструкцию существующих агрегатов или установку дополнительных печей, колодцев для нагрева или охлаждения металла;
- модернизацию линии клетей для получения качественного металла;
- замену мостовых кранов.
В состав комплекса при реконструкции прокатных станов входят станции гидравлики, смазки и маслоподвалы, кислотное хозяйство, насосные станции воды, очистные сооружения, установки получения азота, водорода и другие сооружения.
Период реконструкции отдельных узлов стана и другого оборудования комплекса должен быть, как правило, совмещен с капитальным ремонтом оборудования комплекса.
При значительном объеме работ по реконструкции для уменьшения периода остановки рекомендуется разбить все работы на несколько технологических узлов и проводить реконструкцию в несколько очередей, т.е. проводить по узловому методу, с дополнительным укрупнением агрегатов, собранных в блоки на специальных площадках, вблизи фундаментов.
Оборудование маслоподвалов и насосных станций следует собирать и монтировать блоками, включающими трубопроводы и арматуру.
9.2 Химическая, нефтеперерабатывающая, нефтехимическая, коксохимическая и газовая промышленность
9.2.1 Особенности предприятий (характеристика объектов промышленного строительства приведена в
приложении Д) определяют организацию реконструкции и выбор методов производства работ:
- реконструкция предприятий, как правило, производится без остановки производства (выдачи конечной продукции), однако с частичной остановкой (не более 2 мес.) отдельных производств по выпуску полупродуктов. Чтобы не снижать количества выпускаемой конечной продукции, недостаток полупродукта компенсируется создаваемым запасом или поступлением с других предприятий. Полная остановка предприятия по выпуску конечной продукции встречается относительно редко и имеет место главным образом на производствах чистых и особо чистых продуктов (органические химические реактивы и др.);
- на некоторых предприятиях (нефтеперерабатывающие заводы) загазованность достигает таких размеров, при которых невозможно производство огневых работ. При отсутствии других способов проведения монтажных работ реконструкцию в этих случаях следует производить с остановкой производства на данном участке и в сжатые сроки;
- агрессивная среда (сырье, полупродукты, продукты и выделяемые ими газы) оказывает значительное влияние на строительные конструкции, трубопроводы и оборудование некоторых производств (сернокислотное и др.), что требует более частых ремонтов (в том числе капитальных), чем в других отраслях промышленности. В этих случаях реконструкцию целесообразно совмещать с ремонтными работами;
- при относительно малых объемах общестроительных работ по сравнению с монтажными реконструкцию предприятия целесообразно производить по прямым договорам технических заказчиков с монтажными организациями. Производство строительных работ в этих случаях должно осуществляться ремонтно-строительными службами предприятий;
- реконструкцию аппаратов колонного типа (изменение числа и конструкции тарелок и др.) рекомендуется выполнять силами технического заказчика, как правило, без демонтажа аппаратов;
- после выполнения работ по демонтажу оборудования и трубопроводов, произведенных силами предприятия или по договору с монтажной организацией, эксплуатационный персонал (в том числе ремонтный) следует привлекать в качестве ответственных представителей технического заказчика или в составе монтажных бригад.
9.2.2 Перед монтажом оборудования (сосудов, аппаратов, арматуры и трубопроводов), подлежащего использованию при реконструкции, оно должно быть отревизовано силами технического заказчика или, согласно особым условиям к договору, монтажной организацией. Особое внимание следует обращать на отсутствие коррозии, а используемые теплообменные аппараты до передачи в монтаж должны быть очищены от отложений, проверены и испытаны на прочность и плотность.
9.2.3 При повторном использовании находящегося в эксплуатации оборудования, емкостей и трубопроводов следует обращать внимание на их подготовку (очистку) персоналом технического заказчика к монтажу, которая состоит из следующей последовательности операций.
Оборудование аппаратов и трубопроводов очищается водой, растворами поверхностно активных веществ и щелочей, пропариванием паром, а также продувкой воздухом и инертными газами. В зависимости от состава удаляемых веществ применяют нейтрализацию или дегазацию. Качество очистки определяют анализами. Очистка считается законченной, если после двукратного анализа проб воздуха окажется, что содержание паров или газов вредных веществ, в том числе взрывоопасных, внутри аппарата ниже предельно допустимых концентраций.
При освобождении и промывке оборудования и трубопроводов следует обращать особое внимание на очистку застойных зон, газовых мешков, тупиковых участков трубопроводов, перекошенных днищ аппаратов, тарелок ректификационных колонн, а также арматуры. Во всех этих участках могут оставаться опасные вещества как во время их освобождения, так и при промывке. Для предотвращения возможности неполного удаления опасных веществ применяются временное удаление отдельных деталей или узлов трубопроводов, вакуумные отсосы, открытие люков, крышек и лазов, заблаговременное устройство дополнительных штуцеров, проведение промывок в циркуляционном контуре с применением струйных аппаратов и барботажа воздухом и паром.
9.2.4 Трубопроводы, емкости и аппараты отключаются заказчиком от действующих систем заглушками независимо от наличия запорных устройств, что делается для предотвращения случайного открытия запорного устройства. Заглушки обязательно снабжают хвостовиком для того, чтобы не забыть снять их по окончании работ. Установка и снятие заглушек производятся под руководством и при участии ответственного лица предприятия-заказчика, номера заглушек следует заносить в специальный журнал.
9.2.5 Все удаляемые из аппаратуры продукты и промывочные воды сбрасываются заказчиком либо в заранее освобожденные и подготовленные емкости, либо в очистные сооружения. Порядок сброса должен быть определен специальной инструкцией. Продувочные газы выбрасывают в атмосферу через стояки (воздушки). Выброс продувочных газов в помещение и слив промывочных вод на полы цехов и площадок категорически запрещается.
9.2.6 Для циркуляционных промывок рекомендуется применять передвижные инвентарные насосы, циркуляционные установки, моечные ванны и гидромониторы с поворотной головкой, перемещающейся по высоте аппарата.
9.2.7 Подготовку к реконструкции оборудования взрывоопасного производства заказчику следует начинать с продувки аппаратов и трубопроводов инертным газом, а затем воздухом, после чего необходимо вскрыть (начиная с верхних) люки, лазы и крышки для проведения чистки и промывки.
Аппараты и трубопроводы, в которых находились легковоспламеняющиеся жидкости, после продувки инертным газом промывают водой и только после этого приступают к продувке воздухом.
В процессе продувки следует проводить систематическое наблюдение за всеми участками аппарата и особенно тупиковых трубопроводов. В верхних частях аппаратов, емкостей, в тупиковых участках трубопроводов во избежание скопления газов рекомендуется заранее вваривать штуцера для присоединения продувочных линий.
9.2.8 К плану проведения подготовительных работ к реконструкции должна быть приложена схема продувочных линий, на которой следует отметить последовательность проведения продувочных работ и указать направление движения газов.
9.3 Целлюлозно-бумажная промышленность
9.3.1 Реконструкция предприятий целлюлозно-бумажной промышленности часто сопровождается расширением площадей зданий основного производственного назначения - строительством новых корпусов с установкой в них машин большей мощности. В этих случаях остановка производства на период реконструкции не требуется.
В случаях замены существующего устаревшего технологического оборудования на более производительное, реконструкция ведется с частичной остановкой производства. Это становится возможным при вводе в эксплуатацию новых технологических линий, смонтированных в новых корпусах или в пристройках к существующим зданиям, и при последующем переоборудовании старых цехов.
Реконструкция с частичной остановкой возможна также при последовательной замене отдельных агрегатов (варочных аппаратов, промывных фильтров, отдельных башен), поскольку они обычно резервируются.
9.3.2 Основные цеха предприятий целлюлозно-бумажной промышленности (промывной, очистный, отбельный, размольно-подготовительный), а также зоны картоно- и бумагоделательных машин оборудуются мостовыми кранами грузоподъемностью 5 - 30 т для монтажа и замены деталей оборудования, а также съема рулонов бумаги и картона с наката. В ряде случаев возможно использование этих кранов для проведения работ по реконструкции.
9.3.3 Обновление предприятий целлюлозно-бумажной промышленности связано с выполнением различных строительно-монтажных работ. В связи с большим объемом монолитных конструкций одним из основных видов работ являются бетонные. Из монолитного железобетона сооружаются вертикальные и горизонтальные мешальные бассейны, фундаменты под технологическое оборудование, конструкции перекрытий. Это накладывает определенные ограничения на последовательность и длительность проведения работ. Поскольку продолжительность остановки производства, как правило, чрезвычайно мала, эти работы необходимо планировать в доостановочный период.
В перечень остальных видов работ, характерных для реконструкции целлюлозно-бумажных предприятий, входят земляные работы в стесненных условиях, разборка существующих фундаментов под технологическое оборудование, замена несущих и ограждающих конструкций вследствие их коррозии, изоляционные работы, а также весь комплекс работ по демонтажу и монтажу технологического оборудования, трубопроводов, выполняемый, как правило, по отдельным элементам.
9.3.4 Для предприятий целлюлозно-бумажной промышленности характерны также особенности, рассмотренные в
9.2.
9.4.1 При проектировании и производстве реконструктивных работ следует учитывать следующие факторы:
- выполнение работ должно осуществляться без остановки предприятия;
- замена покрытий производится блочным методом с предварительным изготовлением блоков с расположенными в них коммуникациями;
- относительно большой объем работ составляет перекладка коммуникаций (приточно-вытяжной вентиляции, разводок электропитания, эмульсопроводов);
- демонтаж и монтаж оборудования целесообразно проводить в периоды технологических остановок предприятия, а также в смены, когда производство не работает;
- демонтаж и монтаж станочного оборудования целесообразно выполнять силами эксплуатационного персонала предприятия с привлечением, при необходимости, представителей заводов - изготовителей станков;
- при недостаточной грузоподъемности внутрицехового транспорта (мостовых кранов и др.) для монтажа станочного и другого оборудования рекомендуется использовать самоходные краны с телескопическими стрелами.
9.5 Легкая промышленность
9.5.1 Реконструкция предприятий легкой промышленности проводится по двум направлениям: техническое перевооружение; реконструкция существующих зданий с полной или частичной заменой оборудования.
9.5.2 Реконструкция предприятий легкой промышленности, как правило, производится с частичной остановкой производства, а в отдельных случаях - без остановки.
При реконструкции следует создавать нормальные условия для действующей части производства, а именно: немедленная уборка отходов строительного производства с увлажнением материалов, образующих пыль; устройство пыленепроницаемых перегородок, изолирующих участки, отведенные для реконструкции, от действующей части цеха; создание, при необходимости, дополнительной приточно-вытяжной вентиляции с целью предотвращения проникания пыли и др.
9.5.3 На прядильных и отделочных фабриках, а также некоторых производствах обувной промышленности, связанных с выделением пыли и газов, могут образовываться пожароопасные смеси.
9.5.4 При реконструкции легкой промышленности демонтаж технологического оборудования, как правило, выполняется силами технического заказчика, с привлечением в необходимых случаях монтажной организации. При этом демонтаж оборудования целесообразно производить в собранном виде. Такой способ рекомендуется применять при демонтаже конденсаторов станций управления, чесальных и основовязальных машин, ткацких станков (челночных эксцентриковых, гидравлических, пневморапирных, с малогабаритными прокладчиками утка), швейных и обувных машин.
При невозможности перемещения демонтированного оборудования (разрыхлители, наклонные очистители, смесители, трепальные, ленточные, пневмопрядильные машины, мотальные автоматы, шлифовальные машины, ткацкие станки челночные кареточные, кругловязальные и плосковязальные машины и автоматы) в собранном виде производится его частичная разборка.
9.6 Пищевая и мясомолочная промышленность
9.6.1 Многие предприятия пищевой и мясомолочной промышленности (сахарной, винодельческой, консервной, частично мясной) имеют сезонный характер производства продолжительностью 1 - 2 квартала. Реконструкция таких предприятий производится в межсезонный период, когда производство не работает. Для эффективного использования времени между сезонной работой предприятий для их реконструкции особо важное значение имеет подготовка к реконструкции. До начала основного периода реконструкции (к моменту окончания сезонной работы предприятия) должна быть выполнена комплектация строительных конструкций, а также оборудования, аппаратуры и приборов. Специальная остановка на реконструкцию предприятий с сезонным производством не рекомендуется. Остальные предприятия (производства) реконструируются также без остановки производства или с частичной остановкой с принятием мер, обеспечивающих соблюдение санитарных требований, предъявляемых к производствам отрасли.
9.6.2 Особенности организации реконструкции предприятий аналогичны изложенным в
9.4 и
9.5.
9.6.3 При производстве работ по реконструкции на предприятиях пищевой промышленности, оснащенных действующими аммиачными холодильными установками, необходимо проявлять особую осторожность, чтобы избежать прорыва аммиака из системы. Перед началом работ при частичной или полной реконструкции холодильных установок необходимо кроме принятия общих мер по технике безопасности силами заказчика произвести отсос хладагента или слив хладоносителя из (перекрытых запорной арматурой) отдельных участков холодильной установки, подлежащих демонтажу и реконструкции, техническими средствами действующего предприятия.
10 Организация безопасности работ в условиях реконструкции
10.1 Перед началом работ по реконструкции действующего промышленного предприятия для организации безопасного производства работ генеральный подрядчик совместно с техническим заказчиком (администрацией действующего предприятия) обязаны оформить акт-допуск согласно СП 49.13330.2010
(пункт 4.6).
10.2 При реконструкции действующего предприятия генеральному подрядчику техническим заказчиком (администрацией предприятия) перед началом выполнения работ предоставляются:
- копия приказа о назначении руководством предприятия лица из числа его инженерно-технических работников, ответственного за организацию и соблюдение со стороны предприятия необходимых мер безопасности при выполнении строительно-монтажных работ (с указанием фамилии, инициалов и должности) согласно СП 49.13330.2010
(пункт 5.3);
- копия приказа о назначении лиц со стороны предприятия (с указанием фамилии, инициалов и должности) для проведения инструктажа рабочих и инженерно-технических работников строительно-монтажной организации по соблюдению ими требований по охране труда и противопожарных мер при выполнении работ в производственных цехах.
10.3 Генеральный подрядчик при реконструкции промышленных предприятий для выполнения строительно-монтажных работ:
- разрабатывает совместно с субподрядчиками обязательный для всех организаций и лиц на территории предприятия график выполнения совмещенных работ, обеспечивающих безопасные условия труда;
- обеспечивает выполнение общих для всех организаций мероприятий и координацию действий субподрядчиков по безопасности труда согласно акту-допуску и графику выполнения совмещенных работ.
10.4 Мероприятия по обеспечению безопасности работ в условиях реконструкции формируются по двум направлениям:
- по предохранению рабочих и инженерно-технических работников строительно-монтажных организаций от опасностей, связанных с действующим производством;
- по предохранению рабочих и инженерно-технических работников действующего производства от опасностей, связанных с работой строительно-монтажных организаций.
10.5 Разрабатываемые в составе организационно-технологической документации мероприятия по созданию безопасных условий труда согласовываются с руководителями предприятий, на территории которых будут проводиться работы. Общее руководство разработкой мероприятий и контроль за их выполнением в части ведения строительно-монтажных работ осуществляет генеральная подрядная строительная организация, а по цеховым мероприятиям - администрация предприятия. Весь комплекс мероприятий утверждается представителями генподрядной строительной организации и реконструируемого предприятия.
10.6 При выполнении реконструктивных работ необходимо предусмотреть:
- взаимосвязанную безопасность работ;
- временное закрепление конструкций, устойчивость которых уменьшается в ходе демонтажа, разборки или усиления;
- способы строповки и выполнения погрузочно-разгрузочных операций;
- защиту работающих от возможного падения предметов;
- предотвращение повреждения при производстве строительно-монтажных работ действующего технологического оборудования и инженерных систем;
- противопожарные меры при выполнении огневых работ;
- порядок удаления строительного мусора и пылеподавления.
10.7 Работникам строительно-монтажных организаций, допущенным на действующее предприятие, следует находиться только на участках и рабочих местах, которые предусмотрены для непосредственного выполнения работ.
10.8 Перед началом работ в зонах действия опасных производственных факторов, возникновение которых не связано с характером выполняемых работ, выдается наряд-допуск по форме, приведенной в СП 49.13330.2010
(пункт 4.11).
10.9 Наряд-допуск выдается на срок, необходимый для выполнения заданного объема работ. В случае возникновения в процессе производства работ опасных или вредных производственных факторов, не предусмотренных нарядом-допуском, работы следует прекратить, наряд-допуск аннулировать и возобновить работы только после выдачи нового наряда-допуска согласно СП 49.13330.2010
(пункт 4.11.4).
10.10 Наряд-допуск подписывается представителями строительно-монтажной организации и предприятия.
Выдача и продление наряда-допуска регистрируется в журнале учета, рекомендуемая форма которого представлена в
приложении Е.
10.11 До начала выполнения работ следует выявлять источники вредных производственных факторов и принимать меры по их устранению или уменьшению до величин, допустимых действующими санитарными нормами.
10.12 В период реконструкции промышленных предприятий, в случае организации штаба координации работ всех строительно-монтажных организаций, в составе штаба может создаваться рабочая группа или комиссия по охране труда.
В состав рабочей группы входят руководители, инженерно-технические работники, инженеры служб охраны труда всех строительно-монтажных организаций, участвующих в реконструкции, а также представители руководства и служб охраны труда действующего предприятия.
Создание группы по охране труда и ее состав оформляется приказом по генеральной подрядной строительной организации.
10.13 В случаях проведения работ по реконструкции действующих предприятий, когда в опасных зонах и вблизи них возможно передвижение работников реконструируемого производства, необходимо предусматривать комплекс мероприятий по ограждению и обозначению на территории предприятия опасных зон (
ГОСТ 23407,
СТО НОСТРОЙ 2.33.52).
10.14 Опасные зоны при выполнении строительно-монтажных работ, эксплуатации грузоподъемных и строительных машин аналогичны новому строительству
(СТО НОСТРОЙ 2.33.52).
10.15 При монтаже строительных конструкций или технологического оборудования несколькими грузоподъемными кранами во избежание неравномерности их загрузки следует применять балансирные траверсы. Возможность использования несущих конструкций каркаса для закрепления или опирания грузоподъемных машин проверяется расчетом и подлежит согласованию с администрацией предприятия и генеральным проектировщиком.
10.16 При установке двух и более грузоподъемных кранов на одном участке, для исключения их опасного сближения, зоны действия грузоподъемных кранов следует ограничить. Работы необходимо выполнять в соответствии с графиком совмещения работы грузоподъемных кранов.
10.17 Скорость движения транспортных средств по территории реконструируемого предприятия на прямых, хорошо просматриваемых участках предусматривается в пределах 10 км/ч.
Скорость движения транспортных средств на въездах, выездах, в цехе, при выезде из бокового проезда на главный проезд или дорогу с интенсивным движением, при поворотах на перекрестках, разворотах, подаче транспортных средств задним ходом, густом тумане не должна превышать 5 км/ч.
10.18 При выполнении работ по теплоизоляции и защите оборудования от коррозии, в случае реконструкции без остановки предприятия или с остановкой отдельных цехов, а также технологических линий, требуются специальные устройства и приспособления, обеспечивающие как безопасность обслуживающего персонала предприятия и сохранность действующего оборудования, так и безопасность рабочих, непосредственно выполняющих эти работы.
10.19 Работы по устройству кровли и тепловой изоляции над действующими цехами при отсутствии над ними перекрытий или покрытий (настилов) необходимо выполнять после полной остановки цеха. Работники предприятия на период указанных работ удаляются за пределы цеха, а существующее технологическое оборудование и инженерные системы защищаются от пыли и падения предметов.
10.20 До начала кровельных и изоляционных работ над действующим цехом для защиты работающего персонала и оборудования дополнительно принимаются следующие меры безопасности:
- над цехом устанавливаются предохранительные сетки;
- проходы и проезды, находящиеся в пределах зоны производства работ, перекрываются сплошным настилом;
- принимаются меры, исключающие попадание остатков материалов и пыли на действующее оборудование.
10.21 При выполнении окрасочных работ и работ по защите от коррозии объектов реконструкции на действующих предприятиях необходимо соблюдение следующих условий:
- приостановление в цехе всех других работ;
- проветривание помещения в период выполнения работ и после их окончания;
- при приточной вентиляции забор чистого воздуха производится снаружи помещения на высоте не менее 2 м от уровня земли;
- технологическое оборудование, возможно вызывающее искрообразование, необходимо выключить;
- не допускается пребывание на участках выполнения работ лиц, не связанных с производственными процессами;
- участки выполнения работ обеспечиваются необходимыми средствами пожаротушения;
- рабочим предоставляются средства индивидуальной защиты
[10];
- на участках выполнения работ следует одновременно находиться не менее двух человек;
- применяются вентиляторы только во взрывобезопасном исполнении.
10.22 В процессе производства работ по реконструкции промышленных предприятий следует предусматривать и выполнять мероприятия, направленные на охрану окружающей среды.
(рекомендуемое)
ВИДЫ РЕКОНСТРУКЦИИ ПРЕДПРИЯТИЙ, ЗДАНИЙ И СООРУЖЕНИЙ
А.1 По величине обновления производственных фондов
[4]:
- большая реконструкция при Кф >= 0,40;
- средняя реконструкция при 0,20 < Кф < 0,40;
- малая реконструкция при Кф <= 0,20,

(А.1)
где Кф - коэффициент обновления производственных фондов;
Ф1 - показатель создания новых производственных фондов при реконструкции, тыс. р.;
Ф - показатель производственных фондов до реконструкции, тыс. р.
А.2 По характеру выполнения строительно-монтажных работ:
- без изменения объемно-планировочных решений;
- с изменением объемно-планировочных решений;
- строительство новых зданий и сооружений;
- с заменой и усилением несущих конструкций;
- без замены и усиления несущих конструкций.
А.3 По степени сложности объекта:
- несложные объекты (типовые здания с простыми объемно-планировочными решениями, с типовыми конструкциями для массового строительства, объекты с малой плотностью застройки и нестесненностью строительной площадки);
- средней сложности объекты (нетиповые здания и сооружения с повторяющимися параметрами габаритных схем, с индивидуальными и типовыми конструкциями, малой стесненностью строительной площадки);
- сложные объекты (здания с нетиповыми объемно-планировочными решениями, с индивидуальными конструкциями с их усилением или заменой, стесненными условиями производства работ);
- особо опасные и технически сложные объекты (по Градостроительному кодексу Российской Федерации
(статья 48.1) [1]);
- уникальные объекты (по Градостроительному кодексу Российской Федерации
(статья 48.1) [1]).
А.4 По уровню внешней стесненности территории:
- особо стесненные условия Кс = 0;
- сильно стесненные условия 0 < Кс <= 0,4;
- стесненные условия 0,4 < Кс < 1;
- не стесненные условия Кс >= 1,
где Кс - уровень внешней стесненности территории.
А.5 По степени механизации строительно-монтажных работ:
- комплексно-механизированные при Км >= 0,65;
- механизированные при 0,30 < Км < 0,65;
- слабо механизированные при Км <= 0,30,

(А.2)
где Км - коэффициент механизации строительно-монтажных работ на объекте реконструкции;
С1 - стоимость строительно-монтажных работ, выполняемых с применением строительных машин, тыс. р.;
С - сметная стоимость реконструкции объекта, тыс. р.
А.6 По уровню индустриализации строительно-монтажных работ:
- высокий уровень при Ки >= 0,70;
- средний уровень при 0,40 < Ки < 0,70;
- низкий уровень при Ки <= 0,40,

(А.3)
где Ки - коэффициент индустриализации работ;
С2 - стоимость строительно-монтажных работ, выполняемых индустриальными методами, тыс. р.;
С - сметная стоимость реконструкции объекта, тыс. р.
А.7 По способу выполнения строительно-монтажных работ:
- подрядный способ (работы выполняются подрядными строительными и монтажными организациями);
- хозяйственный способ (работы выполняются подразделениями предприятия);
- смешанный способ (работы выполняются как подрядными строительными и монтажными организациями, так и подразделениями предприятия).
(рекомендуемое)
ПРИМЕРНАЯ НОМЕНКЛАТУРА МАШИН ДЛЯ ПРОИЗВОДСТВА
ОТДЕЛЬНЫХ ВИДОВ РАБОТ В СТЕСНЕННЫХ УСЛОВИЯХ
Таблица Б.1
Конструктивные элементы | Машины и механизмы (приспособления) для бетонных работ | Усредненная производительность ведущей машины, м3/смену | Условия применения | Машины и механизмы для монтажа арматуры, опалубки, сборного железобетона |
высота помещения, м | минимальная сетка колонн, м |
1 | 2 | 3 | 4 | 5 | 6 |
Фундаменты, приямки, тоннели, стены и перекрытия подвалов (монолитные, сборные железобетонные конструкции) | Кран автомобильный грузоподъемностью 4 т, вибробункеры V = 0,5 м3 | 20 | 6 | 6 x 12 | Кран автомобильный |
Кран автомобильный грузоподъемностью 10 т, вибробункеры V = 1,4 м3 | 28 | 6 | 6 x 12 | Кран автомобильный |
Траншея | Кран автомобильный грузоподъемностью 16 т, вибробункеры V = 1 м3 | 34 | 6 | 6 x 12 | Кран автомобильный |
Фундаменты, приямки, резервуары, колонны, стены, тоннели, полы (монолитные и сборные железобетонные конструкции) | Стреловой кран грузоподъемностью 10 т, вибробункеры V = 1 м3 | 20 | 7 | 6 x 18 | Стреловой кран |
Стреловой кран грузоподъемностью 20 т, вибробункеры V = 1 м3 | 34 | 7 | 6 x 18 | Стреловой кран |
Стреловой кран грузоподъемностью 25 т, вибробункеры V = 2 м3 | 40 | 7 | 6 x 18 | Стреловой кран |
Фундаменты, приямки, резервуары, колонны, стены, тоннели, полы (монолитные конструкции) | Передвижная пневмотранспортная установка | 40 | 3,6 | 6 x 6 | Подъемник со стрелой грузоподъемностью 3 т |
Передвижная пневмотранспортная установка | 90 | 3,6 | 6 x 6 | Мостовой кран грузоподъемностью свыше 10 т |
Бетононасос | 100 | 6 | 6 x 6 | Мостовой кран грузоподъемностью свыше 10 т |
Автобетононасос со стрелой манипулятора | 200 | 7 | 6 x 12 | Кран автомобильный |
Автобетононасос со стрелой манипулятора | 200 | 7 | 6 x 12 | Мостовой кран грузоподъемностью свыше 10 т |
Автобетононасос со стрелой манипулятора | 200 | 7 | 6 x 12 | Подъемник со стрелой грузоподъемностью 3 т |
Фундаменты, приямки, лотки (монолитные и сборные железобетонные конструкции) | Подъемник грузоподъемностью 3 т со специальным вибробункером V = 0,5 м3 | 15 | 3,6 | 6 x 6 | Подъемник со стрелой грузоподъемностью 3 т |
Автопогрузчик со специальным вибробункером V = 1 м3 | 25 | 3,6 | 6 x 6 | Автопогрузчик грузоподъемностью 5 т |
Фундаменты, приямки, перегородки | Одноковшовый пневмоколесный погрузчик | 18 | 3,6 | 6 x 6 | Подъемник со стрелой грузоподъемностью 3 т |
Пневмоколесный погрузчик с грейфером | 26 | 3,6 | 6 x 12 | Пневмоколесный погрузчик грузоподъемностью 0,3 т |
Фундаменты, приямки, конструкции инженерных коммуникаций и встроенных помещений (монолитные и сборные железобетонные конструкции) | Кран мостовой грузоподъемностью свыше 5 т, вибробункеры V = 1 м3 | 32 | 9 | 6 x 6 | Кран мостовой грузоподъемностью свыше 5 т |
Кран мостовой грузоподъемностью свыше 10 т, вибробункеры V = 2 м3 | 56 | 9 | 6 x 6 | Кран мостовой грузоподъемностью свыше 10 т |
Подвесная кран-балка грузоподъемностью от 3 до 5 т, вибробункеры V = 0,5 м3 | 24 | 6 | 6 x 6 | Подвесная кран-балка грузоподъемностью свыше 3 т |
(рекомендуемое)
ПРИМЕРНАЯ НОМЕНКЛАТУРА ОСНОВНЫХ СРЕДСТВ МАЛОЙ МЕХАНИЗАЦИИ
ДЛЯ ПРОИЗВОДСТВА РАБОТ ПРИ РЕКОНСТРУКЦИИ
Таблица В.1
Виды работ | Выполняемые операции | Машины и механизмы |
1 | 2 | 3 |
Подготовка территории строительной площадки | Удаление деревьев и кустарников | Бензопилы, электропилы, сучкорезы, гидроклинья |
Земляные работы | Водоотливные установки, насосы, инвентарные щиты крепления |
Бетонные, железобетонные и каменные работы | Устройство конструкций | Леса, подмости, такелажная оснастка, контейнеры, поддоны, машины затирочные |
Отбойка и бурение | Молотки, перфораторы и машины ударного действия |
Резание | Сверлильные машины и установки; отрезные, шлифовальные машины; пилы дисковые, канатные и цепные; бороздоделы; установки газовой и гидравлической резки |
Раскалывание | Ручные раскалывающие машины, установки и агрегаты |
Отделка, зачистка и шлифовка | Затирочные и заглаживающие машины, виброскребки, шлифовальные ручные машины и установки |
Обработка металла | Разделительные операции | Пилы дисковые, ножницы для листового металла, ножницы для резки арматуры |
Гибка и рубка | Трубогибы, рубильные молотки |
Обработка древесины | Распиловка | Пилы дисковые, цепные, струнные |
Строжка | Рубанки, паркетострогательные машины |
Выборка пазов и обработка кромок | Фрезерные машины, долбежники |
Сборочные работы | Соединение конструктивных элементов | Шуруповерты, гайковерты, сборочные манипуляторы, пистолеты-молотки |
Уплотнение | Уплотнение грунта | Виброплиты, трамбовки |
Уплотнение бетонной смеси | Вибраторы общего назначения и глубинные |
Отделочные работы | Нанесение штукатурного покрытия | Дозаторы, растворонасосы, штукатурные агрегаты, торкрет-установки |
Окрашивание | Смесители, окрасочные агрегаты и установки, пневмонагнетатели, телескопические вышки, люльки краскопульты, краскотерки, передвижные сушильные установки |
(рекомендуемое)
ПОСТРОЕНИЕ КРИВОЙ ВПИСЫВАЕМОСТИ АВТОТРАНСПОРТНОГО
СРЕДСТВА С ДЛИННОМЕРНЫМИ КОНСТРУКЦИЯМИ
Рисунок Г.1 - Построение кривой вписываемости
автомобильных транспортных средств
Г.1 На плане существующей или проектируемой внутризаводской автомобильной дороги по паспортным техническим характеристикам тягача вычерчивается кривая А-А перемещения седла тягача. Для упрощения построения в качестве этой кривой может быть принята ось дороги. Кривая А-А разбивается на равные интервалы, фиксируемые точками с 1 по 21. Из точки 1, соответствующей началу входа седла тягача в поворот, откладывается по оси дороги отрезок 1-1
', равный длине прицепа. Из точки 1
' перпендикулярно линии 1-1
' откладывается отрезок 1
'-1
", равный половине ширины прицепа, увеличенной на габарит безопасности от 1,0 до 1,5 м. Из точки 2 проводят линию 2-1
', на которой вновь откладывают отрезок, равный длине прицепа 2-2
', и перпендикулярно 2-2
' откладывают отрезок 2
'-2
", равный половине ширины прицепа, увеличенной на габарит безопасности. Далее повторяют аналогичную процедуру последовательно по всем точкам от 3 до 21, после чего точки от 1
" до 21
" соединяют кривой Б-Б. Эта кривая является границей возможного приближения существующих строений или других препятствий к оси автомобильной дороги (см.
рисунок Г.1).
Г.2 На практике, как правило, оказывается достаточным построение кривой приближения строений только со стороны внутренней кривизны дороги. При необходимости получения кривой приближения строений со стороны внешней кривизны дороги вначале строят кривую В1-В1 траектории движения переднего левого колеса тягача. Для этого из точек с 1 по 21 перпендикулярно кривой А-А откладывают отрезки, равные половине ширины базы передних колес тягача, увеличенной на габарит безопасности от 1,0 до 1,5 м. После этого строят кривую траектории движения левого заднего колеса прицепа. Для этого последовательно из точек 1', 2', 3' и т.д. на продолжениях линий 1'-1", 2'-2" и т.д. находят точки, аналогичные точкам 1", 2", 3" и т.д., до тех пор, пока очередная точка не окажется внутри кривой В1-В1. Эту же операцию повторяют, начиная с конечной расчетной точки 21 в сторону 20, 19, 18 и т.д. По найденным точкам строят огибающую кривую, которая и является границей приближения строений со стороны внешней кривизны дороги. Необходимость построения этой кривой появляется, как правило, в местах незарегулированного движения транспортных средств: при въезде в реконструируемые пролеты, транспортировке конструкций внутри пролетов, маневрировании среди различного рода препятствий, доставке в рабочую зону негабаритных блоков конструкции.
(рекомендуемое)
ХАРАКТЕРИСТИКА ОБЪЕКТОВ ПРОМЫШЛЕННОГО СТРОИТЕЛЬСТВА
Д.1 Черная металлургия
Д.1.1 Предприятия черной металлургии отличаются большим числом зданий и сооружений, составляющих до 50 объектов со сложными объемно-планировочными и конструктивными решениями. Объекты основного производственного назначения занимают свыше 60% общей территории предприятия. Вся территория предприятия насыщена подземными, надземными и транспортными коммуникациями.
Д.1.2 Объекты черной металлургии включают:
- закрытые одноэтажные здания цехов, выполняемые преимущественно в металлических конструкциях с тяжелыми мостовыми кранами (грузоподъемностью до 600 т в сталеплавильных цехах) с пролетами до 36 м и шагом наружных колонн 12 м и внутренних до 36 м; здания большой протяженности до 1200 - 1500 м с площадью 250 - 300 тыс. м2 высотой до нижнего пояса ферм 10,8 - 19,8 м (прокатные цехи); фундаменты под оборудование - массивные железобетонные монолитные сложного очертания с расположенными в их теле пустотами (нишами, отверстиями и т.п.), с большим числом анкерных болтов для крепления оборудования; размеры фундаментов под оборудование в плане до 50 x 90 м с глубиной заложения 2,5 - 13,5 м (наиболее распространенная глубина 3 - 8 м в прокатных цехах);
- галереи и эстакады большой протяженности (500 м и более) с различными материалами конструкций (сталь, железобетон);
- тоннели железобетонные, проходные для прокладки в них трубопроводов различного назначения;
- опускные железобетонные колодцы диаметром 20 м и более с глубиной опускания до 40 м (вагоноопрокидыватели, ямы окалины в прокатных цехах, насосные станции и др.);
- железобетонные силосы диаметром 10 м и более и высотой до 40 м для хранения угля, выполняемые в скользящей опалубке;
- железобетонные охладительные бассейны, градирни, отстойники, сгустители, дымовые трубы;
- теплоэлектростанции, насосные, воздуходувные и газокомпрессорные станции;
- развитую внутризаводскую железнодорожную сеть, которую следует рассматривать как крупную сортировочную станцию с парками прибытия и отправления, с обгонными и тупиковыми путями и с многочисленными съездами;
- подземную сеть водоснабжения и канализации, кабельную электросеть;
- различные вспомогательные и обслуживающие объекты (ремонтные цехи, лаборатории, бытовые).
Д.2 Химическая, нефтеперерабатывающая, нефтехимическая, коксохимическая и газовая промышленность
Д.2.1 Объемно-планировочные и конструктивные решения объектов химической, нефтеперерабатывающей, нефтехимической, коксохимической и газовой промышленности отличаются разнообразием. Наряду с открытыми установками оборудования, смонтированного на фундаментах или этажерках, имеются установки, размещенные в закрытых помещениях одноэтажных и многоэтажных зданий преимущественно смешанной каркасной конструкции (из металла, сборного и монолитного железобетона) со стеновым заполнением из кирпича или со стенами из навесных панелей.
Д.2.2 Характерными особенностями предприятий являются:
- больший удельный вес активной части производственных фондов, определяющий характер работ при реконструкции, состоящий в основном из демонтажа и монтажа оборудования;
- широкая кооперация в производстве полупродуктов между предприятиями, что создает возможность обеспечивать в необходимых случаях потребность предприятия полупродуктами с других предприятий на время остановки производства на реконструируемом предприятии;
Примечание - остановка производства на одном предприятии влияет на деятельность других.
- наличие токсичных, взрыво- и пожароопасных производств, усложняющих строительно-монтажные работы, в особенности демонтаж и монтаж оборудования;
- сложная очистка сточных вод и обезвреживание выделяемых газов, значительно увеличивающих объем строительно-монтажных работ при реконструкции предприятий, в особенности построенных до 1960 г.;
- наличие загазованности на предприятиях и в цехах, требующей проведения мер по ее снижению до допустимой концентрации;
- ограниченная численность рабочих, занятых на основном производстве (выпуске продукции), а вследствие этого недостаточная возможность обеспечивать бытовыми помещениями строительных рабочих в период реконструкции предприятия.
Д.2.3 Одноэтажные одно- или многопролетные здания используются при горизонтальных технологических процессах (производство шин, резинотехнических изделий, минеральных удобрений). Такие здания имеют различные по размерам производственные площадки, крановые или бескрановые пролеты 12, 18, 24 и 30 м с шагом колонн 6 - 12 м и средней высотой цехов 6 - 12 м.
При вертикально-горизонтальных схемах технологического процесса (производства нефтехимии, пластмасс, лакокрасок) строятся многоэтажные здания с пролетами 6 и 9 м, шагом колонн 6 м, с унифицированной высотой этажей 3,6; 4,3; 6 и 7,2 м. Каркасная конструкция зданий встречается наиболее часто, она выполняется в сборном железобетоне со сборными плитами перекрытий. Имеются также каркасы, выполненные в монолитном железобетоне в случаях, когда унифицированные пролеты, высота этажей и шаг колонн не соответствуют габаритам технологического оборудования.
У одно- и многоэтажных зданий имеются и бескаркасные конструкции с несущими кирпичными стенами и железобетонными (монолитными или сборными) перекрытиями, которые в некоторых случаях состоят из металлических балок, перекрываемых рифленым металлическим листом.
Д.2.4 Для открытых установок некоторых видов оборудования, главным образом нестандартизированного, и для его обслуживания применяются открытые каркасы (без стенового заполнения), так называемые "этажерки", выполняемые из железобетона или чаще из металла.
Д.2.5 Во взрывоопасных производствах (органического синтеза, нефтегазопереработки) предусматриваются легкосбрасываемые кровли из асбестоцементных, алюминиевых или стальных (профилированных) листов с эффективным легким утеплителем.
Д.2.6 Разнообразны конструкции полов - от кислотостойких керамических до неискрящих из бетонов с известковым песком и мраморным заполнителем во взрывоопасных производствах. В особо чистых производствах применяются бесшовные непылящие полы наливного типа из составов на основе поливинилацетатной эмульсии или иных синтетических материалов.
Д.2.7 В производственных зданиях отсутствуют подвалы и каналы, поскольку их наличие связано с большой пожаро- и взрывоопасностью перерабатываемых и образующихся жидкостей и газов.
Д.2.8 Различные трубопроводы (в том числе для транспортирования полупродуктов и продуктов) укладываются на эстакадах с высокими опорами, обеспечивающими проезд транспортных средств и мобильных кранов (с опущенными стрелами). На участках территорий, где не предусматривается движение транспортных средств, трубопроводы укладываются на низких опорах.
Д.3 Целлюлозно-бумажная промышленность
Д.3.1 На территории предприятий целлюлозно-бумажной промышленности, наряду с производственными зданиями, значительные площади заняты зданиями и сооружениями энергетического хозяйства, различными складами (сырья, коры, древесных отходов, известкового камня и др.), железнодорожными путями и автомобильными дорогами и очистными сооружениями, площадками для накопления и переработки отходов. Здания и сооружения занимают около 15% площади территории.
На предприятиях данной отрасли имеется большое количество эстакад и галерей значительной протяженности для лесотасок, кабель-конвейеров, трубопроводов.
Д.3.2 Производство целлюлозы и бумаги связано с большими выделениями газов и агрессивных жидкостей. Наиболее существенны выделения сероводорода и хлора.
Д.3.3 Для бумажных и картонных фабрик с горизонтальной схемой технологического процесса наиболее характерны двухэтажные здания длиной в зависимости от размеров машин от 200 до 500 м с высотой 18 - 20 м, а в зоне варочных аппаратов - до 60 м.
Д.3.4 Большая часть технологического оборудования целлюлозно-бумажной промышленности (баковое хозяйство, вращающиеся печи, отдельные башни и др.) размещается на открытых площадках.
Технологическое оборудование внутри зданий, как правило, размещается на самостоятельных фундаментах или встроенных этажерках.
Д.3.5 Основным конструктивным типом зданий целлюлозно-бумажной промышленности являются каркасные здания с навесными панельными стенами. Перекрытия - монолитные и сборные железобетонные из ребристых плит. Конструкции покрытий - сборные железобетонные и металлические. Для установки технологического оборудования, монтируемого в пределах нескольких этажей, широко применяются нетиповые железобетонные или стальные конструкции.
Д.3.6 Во многих зданиях имеется сложная и разветвленная сеть подпольных каналов для стока агрессивных проливов с пола, что ограничивает возможности использования строительных машин.
Д.4 Машиностроение
Д.4.1 Цеха машиностроительных предприятий размещаются преимущественно в одноэтажных корпусах с различной по величине производственной площадью, высотой помещений, грузоподъемностью мостовых кранов, числом пролетов и разнообразием конструктивно-планировочных решений. Основные характеристики производственных зданий машиностроительной промышленности приведены в таблице Д.1.
Таблица Д.1
Характеристика производственных зданий машиностроения
Отрасли | Производственная площадь корпуса, тыс. м2 | Высота корпуса, м | Грузоподъемность мостовых кранов, т |
Тяжелое и транспортное машиностроение | 30 - 330 | 10,0 - 40,0 | | 10 - 50 |
50 - 250 |
250 - 600 |
Электротехническое машиностроение | 40 - 100 | 15,0 - 50,0 (средняя 20) | | 10 - 50 |
50 - 250 |
250 - 320 |
Станкостроение | 50 - 200 | 12,6 | 30 |
Инструментальная промышленность | 20 - 95 | 12,6 | | 2 - 3 |
5 - 10 |
Автомобилестроение | 50 - 480 | 7,2 - 12,8 | | 3 - 10 |
10 - 30 |
Тракторостроение и сельскохозяйственное машиностроение | 30 - 100 | 15,0 | 30 |
Машиностроение для легкой и пищевой промышленности | 30 - 40 | 10,0 | 50 |
Строительное, дорожное и коммунальное машиностроение | 30 - 130 | 8,4 - 14,4 | 10 - 50 |
Машиностроение для животноводства и кормопроизводства | 30 - 180 | 15,0 - 20,0 | 5 - 10 - 40 |
Д.4.2 Переустройство машиностроительных предприятий осуществляется в основном путем технического перевооружения.
Д.4.3 Здания машиностроительных предприятий, в большей части каркасные, смешанной конструкции (колонны из сборного железобетона, фермы металлические). Каркасы зданий, выполненные полностью в сборном железобетоне (колонны и фермы) встречаются реже, а выполненные полностью в металлоконструкциях - редко (главным образом в кузнечных цехах). Бескаркасные здания с наружными несущими кирпичными стенами имеют ограниченное распространение в машиностроении.
Наиболее распространенная ширина пролета от 18 до 24 м, максимальная - от 30 до 35 м, минимальная - 12 м, шаг колонн 6 - 12 м. Подкрановые балки при длине 6 м и грузоподъемности кранов до 20 т - железобетонные, при большей грузоподъемности - металлические.
Д.4.4 Цехи, в которых осуществляются тепловыделяющие процессы (кузнечные, литейные, термические, сварочные и др.), не имеют систем отопления. В остальных цехах они имеются. Некоторые цехи оборудованы системами кондиционирования воздуха. Кроме трубопроводов систем отопления и кондиционирования, во многих цехах проложены магистральные и раздаточные трубы горячего и холодного водоснабжения, пара, газа, сжатого воздуха, эмульсии и др. Во многих цехах машиностроительных предприятий под полами размещены каналы и тоннели для коммуникаций, удаления стружки и др.
Д.4.5 Технологическое оборудование предприятий машиностроения в зависимости от его назначения, массы, режима работы устанавливается на индивидуальных фундаментах (кузнечные молоты, штамповочные прессы, ковочные машины, ножницы для резки массивных металлических деталей, карусельные и другие тяжелые станки) или на общую железобетонную плиту (легкие станки, автоматические линии). Некоторое оборудование устанавливается без анкерного крепления. Глубина заложения фундаментов, а также технических подвалов небольшая (3 - 4 м).
Д.4.6 Межферменное пространство в зданиях имеет различные коммуникации.
Д.5 Легкая промышленность
Д.5.1 При проектировании организации реконструкции следует иметь в виду, что предприятия текстильной промышленности размещаются в нескольких одноэтажных корпусах или одном сблокированном корпусе. Такое размещение текстильных предприятий характеризуется высокой плотностью застройки (от 70% до 90%) и накладывает определенные ограничения на решения стройгенплана.
Предприятия обувной, швейной, трикотажной промышленности, как правило, размещаются в многоэтажных зданиях, площадь застройки таких предприятий составляет от 40% до 60%.
Основным типом зданий прядильных и ткацких фабрик является бесфонарный одноэтажный сблокированный корпус шириной 144 - 216 м с производственной площадью 80 - 100 тыс. м2 с сеткой колонн 18 x 12 м и высотой от пола до подвесного потолка 4,8 - 6,0 м с железобетонными фермами с пролетом 18 м, уложенными на сборные железобетонные колонны, с плитами покрытий длиной 12 м и стеновыми навесными панелями. Межферменное пространство в таких корпусах используется для размещения в них внутрицеховых коммуникаций (кондиционирование воздуха и др.). Мостовые краны отсутствуют. Стены глухие без оконных проемов, освещение искусственное.
Прядильные и ткацкие корпуса, а также многоэтажные здания для других производств легкой промышленности, построенные до 1940 г., имеют несущие кирпичные стены и металлические фермы.
Д.5.2 Для предприятий обувной, швейной и трикотажной промышленности в настоящее время строятся многоэтажные здания, ширина которых достигает 24 м с сеткой колонн 6 x 6 м и стандартной высотой этажей 4,8 м. Конструкции зданий выполняются в сборном железобетоне. Стеновое заполнение - кирпич или панельные плиты.
Д.6 Пищевая и мясомолочная промышленность
Д.6.1 Часть предприятий пищевой и мясомолочной промышленности (некоторые цехи мясопереработки, молочные и молочно-консервные, масло-сыродельные) размещаются в одноэтажных зданиях с сеткой колонн 12 x 6 м. Основная часть предприятий отрасли размещается в многоэтажных зданиях с сеткой колонн 6 x 6 м. Здания выполняются из сборного, реже из монолитного, железобетона. Стены в большей части случаев кирпичные, реже из навесных панелей. Планировка характеризуется размещением в секциях цехов, разделенных внутренними перегородками (мясо-, пищекомбинаты, молочно-консервные и сыродельные заводы). В этом случае реконструкция осуществляется участками, выделенными указанными перегородками.
При зальной планировке требуются мероприятия по изоляции реконструируемой зоны от эксплуатируемой части цеха на период реконструкции. При этом проходы в зону реконструкции должны быть расположены так, чтобы исключить возможность захода рабочих (строителей) в зону действующего предприятия. Устройство пыленепроницаемых перегородок должно быть предусмотрено проектно-сметной документацией.
(рекомендуемое)
ФОРМА ЖУРНАЛА УЧЕТА ВЫДАЧИ И ПРОДЛЕНИЯ НАРЯДОВ-ДОПУСКОВ
ПРОИЗВОДСТВА РАБОТ В МЕСТАХ ДЕЙСТВИЯ ОПАСНЫХ
ИЛИ ВРЕДНЫХ ПРОИЗВОДСТВЕННЫХ ФАКТОРОВ
Журнал
учета выдачи и продления нарядов-допусков производства работ
в местах действия опасных или вредных производственных факторов
1. Форма учета выдачи нарядов-допусков
_________________________________________________
(наименование организации)
Номер наряда-допуска и дата выдачи | Наименование работ | Сроки действия наряда-допуска | Должность, фамилия, имя, отчество, подпись, дата |
начало | окончание | фактическое окончание | выдавшего наряд-допуск | получившего наряд-допуск |
1 | 2 | 3 | 4 | 5 | 6 | 7 |
| | | | | | |
| | | | | | |
| | | | | | |
2. Форма продления нарядов-допусков
_________________________________________________
(наименование организации)
Номер наряда-допуска и дата выдачи | Наименование работ | Должность, фамилия, имя, отчество, подпись, дата | Срок продления работ |
выдавшего (продлившего) наряд-допуск | ответственного руководителя работ | начало | окончание |
1 | 2 | 3 | 4 | 5 | 6 |
| | | | | |
| | | | | |
| | | | | |
| Градостроительный кодекс Российской Федерации |
| Федеральный закон от 30 декабря 2009 г. N 384-ФЗ "Технический регламент о безопасности зданий и сооружений" |
| Федеральный закон от 23 ноября 2009 г. N 261-ФЗ "Об энергосбережении и о повышении энергетической эффективности и о внесении изменений в отдельные законодательные акты Российской Федерации" |
| Руководство по организации строительного производства в условиях реконструкции промышленных предприятий, зданий и сооружений. М., Стройиздат, 1982 |
| Методические рекомендации по эффективным методам организации строительного производства в условиях реконструкции действующих предприятий. М., ЦНИИОМТП, 1986 |
| Приказ Министерства регионального развития Российской Федерации от 30 декабря 2009 г. N 624 "Об утверждении Перечня видов работ по инженерным изысканиям, по подготовке проектной документации, по строительству, реконструкции, капитальному ремонту объектов капитального строительства, которые оказывают влияние на безопасность объектов капитального строительства" |
| Руководство по применению узлового метода проектирования, подготовки, организации и управления строительством сложных объектов и крупных промышленных комплексов. М., Стройиздат, 1982 |
| Постановление Правительства Российской Федерации от 16 февраля 2008 г. N 87 "О составе разделов проектной документации и требований к их содержанию" |
| Разработка проектов организации строительства и проектов производства работ для реконструкции действующих предприятий, зданий и сооружений. М., Стройиздат, 1980 |
| Постановление Правительства Российской Федерации от 24 декабря 2009 г. N 1213 "Технический регламент о безопасности средств индивидуальной защиты" |
от 30 декабря 2009 г. N 624. |
Ключевые слова: организация строительного производства, реконструкция, основные периоды реконструкции, механизация реконструктивных работ, промышленные здания и сооружения |