Главная // Актуальные документы // Задание (форма)СПРАВКА
Источник публикации
М., 2018
Примечание к документу
Название документа
"Методическое пособие. Проектирование медицинских организаций"
"Методическое пособие. Проектирование медицинских организаций"
МИНИСТЕРСТВО СТРОИТЕЛЬСТВА И ЖИЛИЩНО-КОММУНАЛЬНОГО
ХОЗЯЙСТВА РОССИЙСКОЙ ФЕДЕРАЦИИ
ФЕДЕРАЛЬНОЕ АВТОНОМНОЕ УЧРЕЖДЕНИЕ
"ФЕДЕРАЛЬНЫЙ ЦЕНТР НОРМИРОВАНИЯ, СТАНДАРТИЗАЦИИ
И ОЦЕНКИ СООТВЕТСТВИЯ В СТРОИТЕЛЬСТВЕ"
МЕТОДИЧЕСКОЕ ПОСОБИЕ
ПРОЕКТИРОВАНИЕ МЕДИЦИНСКИХ ОРГАНИЗАЦИЙ
Настоящее пособие развивает положения
СП 158.13330.2014 "Здания и помещения медицинских организаций. Правила проектирования" в части требований к проектируемым, реконструируемым, капитально ремонтируемым зданиям медицинских организаций, а также к помещениям медицинского назначения, встраиваемым в жилые, общественные и производственные здания (независимо от формы собственности). В частности, разъясняются вопросы реконструкции существующих больниц в части рационального использования существующих зданий, уточняются подходы к планировочным решениям реконструируемых и капитально ремонтируемых зданий в части обеспечения нормативных габаритов и площадей отдельных помещений.
Учтены данные, полученные научно-исследовательскими учреждениями и организациями, о практике применения отдельных положений
СП 158.13330.2014 и других нормативных документов, устанавливающих требования к проектированию зданий и помещений медицинских организаций, в частности по вопросам рационального зонирования зданий, организации путей эвакуации, применения раздвижных дверей на путях эвакуации с целью соблюдения требований пожарной безопасности. В пособии разъясняются требования к системам инженерного обеспечения зданий, в том числе в виде конкретных функциональных схем и проектных решений, получивших апробацию при проектировании, строительстве и функционировании зданий медицинского назначения. Учтены запросы различных проектных и экспертных организаций в части разъяснения отдельных положений свода правил.
Проанализирован зарубежный опыт проектирования зданий медицинского назначения с целью использования современного положительного опыта в проектных решениях. Широкомасштабная реконструкция больничных зданий и массовое строительство новых больниц в развитых странах начались раньше, чем у нас в стране, в связи с чем богатый опыт и анализ современных тенденций больничного проектирования нашли отражение как в самом своде правил, так и в положениях настоящего пособия. Прежде всего это коснулось новых форм и архитектурно-планировочных решений для обеспечения комфорта пациентов, оптимальных условий работы персонала, рационального использования ресурсов и необходимости обеспечения дальнейшего развития и инновации больничных зданий. В частности зарубежный опыт показал насущную потребность преодоления павильонной и моноблочной структур больничных комплексов, наиболее распространенных как несколько десятилетий назад за рубежом, так и до сих пор в нашей стране, необходимость строительства новых больниц в виде единых зданий (полиблоков) ограниченной этажности для организации связей между отделениями с четким функциональным зонированием по степени интенсивности лечения, и следовательно насыщенности отдельных блоков инженерным и медицинским оборудованием, а также с учетом требований пожарной безопасности - здания медицинского назначения являются одними из самых сложных с точки зрения функциональной пожарной опасности.
Пособие составлено по принципу пояснений, комментариев к требованиям свода правил, с графическими материалами, иллюстрирующими примеры проектных решений по различным разделам проекта. В тексте пособия приводятся пункты свода правил с их оригинальной нумерацией курсивным начертанием в рамке, далее приводятся пояснения и комментарии указанных в пункте требований.
АСДУ - автоматизированная система диспетчерского управления;
ИБП - источник бесперебойного питания;
ИТП - индивидуальный тепловой пункт;
ИСМП - инфекции, связанные с медицинской помощью;
КГС - кислородно-газификационная станция;
КТ - компьютерная томография;
КПП - контрольно-пропускной пункт;
МГН - маломобильные группы населения;
ОРИТ - отделение реанимации и интенсивной терапии;
РФП - радиофармпрепарат;
СИ - системы информирования;
ЦСО - центральное стерилизационное отделение;
ЭКГ - электрокардиограмма;
ЯМРТ - ядерная магнитно-резонансная томография.
Пособие разработано для применения широким кругом специалистов, чья деятельность связана с проектированием зданий и помещений медицинских организаций, в том числе специалистами проектных организаций, государственных и иных органов экспертизы и согласования, контрольно-надзорных органов, а также преподавателями и студентами высших учебных заведений.
В пособии разъясняются требования к зонированию участков, расположению зданий на участке, планировочной структуре зданий медицинского назначения, приводятся примеры конкретных планировочных решений, требования к технологическому зонированию и планировке отдельных подразделений, комплексов помещений и отдельных помещений (палатных отделений и палат, ЦСО, дезотделений, прачечных, санитарных пропускников и др.). В пособии разъясняются требования к системам инженерного обеспечения зданий, в том числе в виде конкретных функциональных схем и примеров проектных решений.
ГОСТ Р 12.3.047-2012 "Система стандартов безопасности труда. Пожарная безопасность технологических процессов. Общие требования. Методы контроля"
ГОСТ Р ИСО 7396-1-2011 "Системы трубопроводные медицинских газов. Часть 1. Системы трубопроводные для сжатых медицинских газов и вакуума"
ГОСТ Р 52750-2007 "Устройства экстренного открывания дверей эвакуационных и аварийных выходов. Технические условия"
СП 1.13130.2009 "Системы противопожарной защиты. Эвакуационные пути и выходы"
СП 2.13130.2012 "Системы противопожарной защиты. Обеспечение огнестойкости объектов защиты"
СП 4.13130.2013 "Системы противопожарной защиты. Ограничение распространения пожара на объектах защиты. Требования к объемно-планировочным и конструктивным решениям"
СП 5.13130.2009 "Системы противопожарной защиты. Установки пожарной сигнализации и пожаротушения автоматические. Нормы и правила проектирования"
СП 7.13130.2013 "Отопление, вентиляция и кондиционирование. Противопожарные требования"
СП 12.13130.2009 "Определение категорий помещений, зданий и наружных установок по взрывопожарной и пожарной опасности"
СП 42.13330.2016 "СНиП 2.07.01-89* Градостроительство. Планировка и застройка городских и сельских поселений"
СП 59.13330.2016 СНиП 35-01-2001 "Доступность зданий и сооружений для маломобильных групп населения"
СП 154.13130.2013 "Встроенные подземные автостоянки. Требования пожарной безопасности"
Современные принципы оказания медицинских услуг, использование новейшего медицинского оборудования и инженерных систем жизнеобеспечения влекут за собой постоянные изменения требований к проектированию и строительству зданий медицинских организаций, что обеспечивает:
- возможность реализации инновационных методик диагностики и лечения;
- комфорт и безопасность пациентов;
- удобство и эффективность работы персонала.
Ниже перечислены характерные черты современной медицины, требующие при проектировании применение новых архитектурных форм, инженерных и медицинских технологий, нового подхода к дизайну.
4.1 Гуманизация больницы. В последние десятилетия в развитых странах мира наблюдается настоящий переворот в подходах к проектированию больниц. Если до этого больницы проектировались и функционировали исходя из потребностей и организации работы персонала, то в последнее время основным критерием проектных решений является центральная роль пациента, обеспечение его прав, безопасности, комфорта, потребностей в информации и приватности. Гуманизация и ориентация на пациента не означают недооценку роли сложной работы персонала, но ставят во главу угла создание комфортной теплой среды как для пациентов, так и для персонала - на это должны быть направлены архитектура, дизайн и эргономика, отделка, цвета, микроклимат и т.д. Перед архитектурой поставлена непростая задача: превратить больницу из холодного, закрытого "технического" объекта страха перед болезнью и болью в открытое и комфортное место надежды, лечения и ухода, совместной борьбы за здоровье.
При проектировании эта концепция в первую очередь выражается в создании объемов "человеческого размера" - малоэтажных зданий. Проектирование больничных зданий "вровень или ниже кроны деревьев" в гармонии с окружающей средой является одной из основных тенденций в развитых странах мира. Многоэтажные здания, как правило, строят в районах плотной застройки при реконструкции существующих больниц. Создание комфортной среды для круглосуточного пребывание пациента обеспечивается одно-, двухкоечными палатами, разработкой дизайн-проектов и цветовых решений как части терапевтического процесса, обеспечением приватности пациентов за счет разделения потоков стационарных и амбулаторных больных. Для гуманизации детских медицинских учреждений необходимо создавать игровые пространства. Примеры проектных решений общих зон больниц и интерьеров детских больниц приведены на
рисунках 1 и
2.
Рисунок 1 - Примеры проектных решений атриумов больниц
Рисунок 2 - Пример интерьеров общих зон детской больницы
4.2 Соответствие интенсивности лечения необходимому вмешательству требует при проектировании разделения отделений и организаций по интенсивности лечения - амбулаторно-поликлинические организации и отделения, дневные стационары (в том числе специализированные: хирургические, психиатрические и т.п.), отделения по уходу, обычные палатные отделения, отделения интенсивной и субинтенсивной терапии (в том числе специализированные - кардиологические, неврологические и т.п.). С целью оптимизации затрат для пациентов, которые не нуждаются в госпитализации, но которым назначены длительные или повторяющиеся диагностические и лечебные процедуры, целесообразно предусматривать на территории больницы или непосредственно в зданиях пансионаты гостиничного типа.
4.3 Применение высоких медицинских технологий и их постоянная инновация выражаются в экспансивном развитии зон для диагностики и лечения (отделения лучевой, функциональной, эндоскопической, лабораторной диагностики, радиотерапии, операционные блоки).
Необходимость соответствия темпам развития медицинских технологий требует уже в эскизе будущего здания закладывать возможность его роста и эволюции, которая связана не всегда и не только с изменениями планировочных решений, но и с новыми подходами к организации инженерного обеспечения здания, возможностями его безболезненного обновления и расширения.
4.4 Эффективность организации процессов связана с ограничением коечности больниц с целью обеспечения эффективного лечебного процесса, зонированием и созданием рациональных технологических потоков, в том числе с помощью внутрибольничного транспорта (роботизированные системы, скоростные лифты, эскалаторы). Отделения, в частности палатные, должны иметь гибкую универсальную структуру, позволяющую менять специализацию в зависимости от потребностей. Это позволяет организовать больницу исходя не из функций отдельных подразделений, а из диагностического и лечебного процесса, в котором задействованы все подразделения, работающие на одну конечную цель - лечение пациента. Все это невозможно без заранее продуманных и взаимно организованных пространственных и инженерных структур.
4.5 Урбанизация современной больницы, ее интеграция в жизнь города также является общей тенденцией практически для всех развитых стран и выражается в открытости больницы, большом внимании при проектировании к общим зонам и пространствам (просторные входные холлы, размещение в них типично городских элементов сервиса - банков, цветочных киосков, кафе, небольших магазинов, зон для устройства встреч и конференций). В последние годы эта тенденция проявляется и в России: во многих проектах находят воплощение развитая входная группа, больничная галерея, в англоязычной литературе называемая main street, холлы и другие общие пространства.
4.6 Обеспечение возможностей исследовательской деятельности и постоянного профессионального роста врачей и медицинского персонала - эта тенденция находит выражение в пристальном внимании к учебным и научным функциям современной больницы. Распространенный элемент проектируемых больниц - группа аудиторий, предназначенная как для обучения студентов, так и для повышения квалификации персонала. Кроме того, практически обязательным элементом является конференц-зал для проведения лекций, симпозиумов, совещаний. Громадные территории России обусловливают распространение такой формы передачи информации, обучения и консультаций врачей, находящихся в отделенных учреждениях, как телемедицина, кабинеты для проведения которой в последнее время предусматриваются во многих проектах.
4.3 На основе медико-технического задания заказчика, отражающего структуру проектируемого объекта, с учетом технологических особенностей каждого подразделения и требований настоящего свода правил проектировщиком разрабатывается программа на проектирование. Методика перехода от расчетной нормативной площади помещений, определенной в программе на проектирование к ориентировочным расчетной и общей площадям здания, приведена в приложении М. |
Комментарий:
Пример медико-технического задания и разработанной на его основе программы на проектирование приведен в
Приложениях 1 и
2.
5 Требования к планировочной организации участка |
Комментарий:
Основой планировочной организации территорий медицинских организаций является функциональное зонирование, размещение на участке зданий в соответствии с этим зонированием, устройство пешеходных и транспортных коммуникаций, обеспечивающих удобные взаимосвязи всех подразделений комплекса.
Функциональное зонирование территории определяется мощностью и специализацией медицинской организации и предусматривает максимальное использование внутренних территориальных резервов.
Планирование территории должно обеспечить:
- оптимальное использование участка;
- возможность дальнейшего развития комплекса;
- комфортное пребывание пациентов;
- условия для работы и отдыха обслуживающего персонала;
- создание современной социальной, транспортной и инженерной инфраструктуры.
При проектировании необходимо учитывать следующие факторы:
- градостроительные условия - архитектура окружающей застройки, пропорции и величина участка застройки;
- естественный рельеф участка застройки - организация рельефа должна учитывать и использовать естественные повышения и понижения рельефа, в том числе для подъездных путей к подземным этажам зданий для организации материального снабжения;
- ориентация зданий и блоков здания должна, с одной стороны, обеспечивать нормативную инсоляцию палат и других нормируемых по инсоляции помещений, нормативный уровень естественной освещенности всех помещений, а с другой стороны - позволить защитить нуждающиеся в этом помещения от излишней инсоляции и перегрева (операционные, палаты интенсивной терапии, палаты для новорожденных, процедурные, лаборантские и др.);
- компоновка зданий и блоков должна обеспечивать соблюдение норм пожарной безопасности;
- возможность объединения (блокирование) отдельных зданий и блоков для удобства обслуживания, экономичности инженерного освоения территории и организации строительства;
- организация внешних и внутренних транспортных связей должна по возможности максимально изолировать друг от друга и не допускать пересечения пешеходных и автомобильных транспортных путей;
- необходимо обеспечить максимальную доступность зданий и сооружений для посетителей и персонала;
- при расположении зданий рекомендуется учитывать необходимость дальнейшего развития медицинской организации, гибкого использования зданий и возможность их реновации.
Наиболее удобным для размещения больничного комплекса является участок прямоугольной формы с соотношением сторон 1:2 или 2:3.
5.2 Размеры земельных участков для медицинских организаций (без учета площади автомобильных стоянок под трансформаторные подстанции, кислородные станции, дизель-генераторные установки) следует принимать по таблице 5.1. |
Комментарий:
В таблице указана удельная площадь участка на единицу мощности (койку или место) для интервалов по мощности. Для расчета площади участка организаций определенной мощности следует использовать метод интерполяции.
5.3 При проектировании на участке действующих стационаров новых лечебных корпусов, допускается уменьшать удельные показатели земельного участка, но не более чем на 20%. Для стационаров с неполным набором вспомогательных зданий площадь участка может быть соответственно уменьшена по заданию на проектирование. Для размещения стоянок автомобилей, трансформаторных подстанций, кислородных станций, дизель-генераторных установок для них следует предусматривать дополнительную площадь. |
Комментарий:
При реконструкции больниц необходимо осуществлять комплексный подход к развитию всего больничного комплекса, для чего рекомендуется разрабатывать специальные проекты комплексной поэтапной реконструкции. Задача такого проекта - анализ материально-технической базы существующих зданий и выработка предложений по их дальнейшему использованию и новому строительству с целью создания оптимально взаимосвязанного с помощью горизонтальных и вертикальных коммуникаций комплекса основных и вспомогательных подразделений.
Опыт реконструкции больниц в развитых странах показал, что зачастую сложившаяся павильонная или моноблочная структура больницы, а также конструктивные решения существующих зданий и значительный их износ делают технически невозможным размещение современных инженерных систем и медицинского оборудования, а также экономически нецелесообразным реконструкцию и дальнейшее использование этих зданий в качестве зданий медицинского назначения. В связи с этим, несмотря на сложившуюся материальную базу здравоохранения, в развитых странах в большинстве случаев было принято решение о сносе или перепрофилировании крепких больничных зданий под другие функции, не требующие столь сложного инженерного оборудования и предъявляющие более низкие требования к конструктивной схеме здания.
При решении вопроса о дальнейшем использовании зданий при нецелесообразности их эксплуатации и реконструкции для размещения в них высокотехнологичных подразделений (оперблоки, ОРИТ, диагностические отделения и др.) с учетом их износа, расположения на участке, конструктивной схемы и других факторов следует последовательно оценить возможность их использования под:
- палатные отделения терапевтического профиля;
- поликлинические службы и дневные стационары;
- административные, служебно-бытовые помещения и вспомогательные службы.
При недостатке площади участка возможно размещение стоянок автомашин в подземной части зданий с учетом требований норм пожарной безопасности
(СП 154.13130).
5.6 Вход в отделение поликлинического приема рекомендуется приближать к входу на участок. |
Комментарий:
Данное размещение входной зоны учитывает направление основных потоков пешеходного движения и радиусов доступности. Приближение входов в поликлиники к входным зонам на участок (при проектировании многофункциональных комплексов) исключает возможность пересечения потоков пациентов и сотрудников разных отделений. Примеры генеральных планов медицинских организаций приведены на
рисунках 3,
4.
Рисунок 3 - Пример генерального плана
многопрофильной межрайонной больницы:
1 - главный корпус больницы; 2 - туберкулезный корпус;
3 - здание дезинфекции; 4 - гараж;
5 - кислородно-газификационная станция;
6 - электротехнические сооружения (ТП, ДГУ и т.д.);
7 - парковка для персонала и посетителей; 8 - сооружения
водозабора и водоподготовки; 9 - сооружения очистки
сточных вод; 10 - КПП
Рисунок 4 - Пример генерального плана
психоневрологического интерната:
1 - корпус интерната; 2 - хозяйственный блок; 3 - котельная;
4 - КПП; 5 - электротехнические сооружения (ТП);
6 - парковка для персонала и посетителей; 7 - площадки
и сооружения для реабилитационной трудотерапии; 8 - площадка
тихого отдыха; 9 - площадка для посетителей; 10 - спортивные
площадки и сооружения
5.8 Для обеспечения удобных технологических связей между подразделениями больничный комплекс рекомендуется проектировать единым зданием, для чего целесообразно соединять отдельные блоки атриумами и крытыми улицами. При размещении подразделений в отдельных корпусах рекомендуется соединять их теплыми переходами. Минимальные расстояние между корпусами, а также от корпусов до красных линий застройки следует принимать в соответствии с приложением А. |
Комментарий:
Функциональное зонирование здания и размещение отдельных подразделений и их групп в отдельных блоках продиктовано различными требованиями разных отделений к конструктивной схеме, оснащению инженерными системами, мероприятиям по пожарной безопасности. Технологические связи между подразделениями в этом случае могут быть обеспечены различными планировочными приемами - создание центральных атриумов-"площадей" или атриумов-"улиц" с примыкающими вертикальными и горизонтальными транспортными коммуникациями, многоэтажными транспортными переходами или комбинацией указанных приемов. Примеры подобных решений приведены на
рисунках 5 -
7.
Рисунок 5 - Пример проектного решения по устройству атриума
в здании больницы
Рисунок 6 - Пример функционального зонирования здания
и распределения отделений по блокам медицинской организации
Рисунок 7 - Пример компоновки и проектного решения
по устройству переходов между блоками больницы
При размещении отделений в различных корпусах, зданиях, особенно в условиях реконструкции или проектировании новых объектов на территориях существующих больниц архитектурно-планировочными решениями необходимо предусматривать связи между корпусами посредством теплых переходов. Пример приведен на
рисунке 8.
Рисунок 8 - Пример генплана реконструкции межрайонного
онкологического диспансера (новое строительство трех
корпусов - обозначены красным цветом) с переходами
между существующими зданиями и новыми корпусами:
1 - патологоанатомическое отделение; 2 - отделение
радиотерапии и ПЭТ-центр; 3 - поликлиника; 4 - хирургический
корпус; 5 - отделение общей онкологии; 6 - КПП;
7 - электротехнические сооружения (ТП, ДГУ и т.д.);
8 - кислородно-газификационная станция; 9 - парковка
для персонала и посетителей; 10 - площадка для отдыха
5.10 На участке больниц следует выделять хозяйственную зону для снабжения, вывоза отходов и других видов хозяйственной деятельности, связанных с подъездом транспорта. На участке больниц для длительного лечения (психиатрических, фтизиатрических, восстановительного лечения и т.п.) рекомендуется выделять садово-парковую зону. На участке должны быть предусмотрены подъезды к главному входу, приемному, патологоанатомическому отделениям и хозяйственный подъезд. Подъезд к патологоанатомическому отделению может быть совмещен с хозяйственным. |
Комментарий:
Примеры функционального зонирования участка многопрофильной больницы и онкодиспансера приведены на
рисунках 9,
10.
Рисунок 9 - Пример схемы функционального зонирования
многопрофильной больницы:
1 - лечебно-диагностическая зона (неинфекционная);
2 - лечебно-диагностическая зона (инфекционная), включая
парковую для туберкулезного корпуса; 3 - зона очистки
сточных вод; 4 - входная зона, совмещенная с парковой;
5 - зона размещения сооружений водозабора и водоподготовки;
6 - хозяйственная зона
Рисунок 10 - Пример схемы функционального зонирования
онкологического диспансера:
1А - лечебная зона; 1Б - диагностическая зона; 1В - зона
радиотерапии; 2 - хозяйственная зона; 3 - зеленая защитная
зона; 4 - входная зона, зона посетителей, зона отдыха;
5 - зона размещения патологоанатомического корпуса
При проектировании специализированных отделений с длительным пребыванием пациентов (психоневрологические интернаты, санатории, дома-интернаты, туберкулезные больницы и корпуса) для восстановления, адаптации и социализации пациентов необходимо предусматривать рекреационные зоны (парковые, спортивные и т.д.). Пример схемы функционального зонирования психоневрологического интерната приведен на
рисунке 11.
Рисунок 11 - Пример схемы функционального зонирования
психоневрологического интерната:
1 - лечебно-диагностическая зона; 2 - хозяйственная зона;
3 - спортивно-оздоровительная зона; 4 - входная зона, зона
посетителей; 5 - парковая зона; 6 - зона
реабилитационной трудотерапии
6 Общие требования к зданиям
6.2.1 Планировочная структура здания должна обеспечивать поточность (последовательность) технологических процессов, оптимизацию путей движения основных потоков персонала, больных, больничных грузов с целью минимизации их протяженности и удобства больных, посетителей и персонала. |
Комментарий:
Архитектурно-планировочные решения должны отвечать следующим целям:
1. Обеспечение поточности (последовательности) технологических процессов в большей степени касается организации процессов внутри отдельных подразделений, в особенности в подразделениях с замкнутым технологическим циклом (ЦСО, прачечная, дезотделение, КДЛ, пищеблок, блок помещений производства РФП), а также подразделений с высокими санитарно-гигиеническими требованиями (оперблок, ОРИТ и т.п.). Однако, при расположении отделений следует стремиться к максимально возможному поступательному движению больных, персонала и больничных грузов между отделениями с целью минимизации пересечения отдельных потоков (например, потока больных из приемного отделения в стационар и амбулаторных больных; потока материального снабжения и потоков посетителей и амбулаторных больных).
2. Организация оптимальных технологических связей между подразделениями с точки зрения протяженности маршрутов больных, персонала, посетителей, внутрибольничных грузов.
С этой целью на этапе разработки планировочных решений необходимо проанализировать интенсивность связей между различными подразделениями проектируемой медицинской организации. Ориентиром может служить матрица пространственно-технологических связей, приведенная на
рисунке 12.
Рисунок 12 - Матрица пространственно-технологических связей
между подразделениями медицинской организации
3. Максимальная централизация диагностических (включая лабораторные), лечебных (радиотерапия, восстановительное лечение и др.) и вспомогательных служб для обеспечения возможности их использования всеми подразделениями больницы, за исключением некоторых служб, о которых в каждом конкретном случае в зависимости от их расположения и мощности использующих их отделений может быть принято решение о децентрализации (например, приближение лаборатории срочных анализов, службы крови и т.п. к ОРИТ и оперблоку). При этом в диагностических и лечебных подразделениях, которые используются амбулаторными и стационарными больными, рекомендуется предусматривать два входа - для стационарных и амбулаторных пациентов.
4. Соблюдение норм пожарной безопасности, разделение здания на пожарные отсеки с однородными с точки зрения функциональной пожарной опасности отделениями, обеспечение возможности прогрессивной поэтапной эвакуации маломобильных больных при пожаре.
6.2.2 Потоки материалов с высокой степенью эпидемиологической опасности должны быть максимально изолированы от остальных потоков с помощью планировочных решений или специального оборудования (закрытые тележки, герметичные контейнеры для отходов, проходные стерилизаторы и моечные машины, барьерные стиральные машины и др.). Упакованные грузы, а также трупы в закрытых специализированных тележках допускается транспортировать по общебольничным коридорам и общебольничными лифтами. |
Комментарий:
Согласно современным представлениям доказательной медицины о механизмах распространения ИСМП, основными векторами передачи инфекций в медицинских организациях являются персонал, ненадлежащим образом обработанные инструменты и оборудование. Для ограничения распространения ИСМП каждый больной должен рассматриваться как потенциально инфицированный, при этом персоналом должны соблюдаться стандартные меры предосторожности и дополнительные меры, направленные на исключения передачи ИСМП.
Исходя из вышесказанного, ясно, что ставившаяся в течение десятилетий задача обеспечить непересечение так называемых "грязных" и "чистых" потоков в отделениях с общебольничным режимом путем только планировочных решений технически невыполнима и экономически нецелесообразна. У постели больного все потоки неизбежно пересекаются. Эта задача может быть выполнена только путем транспортировки опасных в эпидемиологическом отношении материалов (грязное белье, медицинские отходы и т.п.) в упакованном виде или в закрытых специальных контейнерах и тележках. Вместе с тем, в отделениях, где опасные в эпидемиологическом отношении материалы манипулируются в открытом виде (ЦСО, дезинфекционное отделение, прачечная и т.п.), особое внимание следует обратить на планировочные решения, зонирование, установку на границе чистых и "грязных" зон оборудования проходного барьерного типа с целью максимальной изоляции потоков с высокой степенью эпидемиологической опасности.
Для транспортирования пациентов на кроватях рекомендуется устанавливать лифты с глубиной кабины 2700 мм, на каталках для перевозки больных - 2400 мм. Стандартные размеры лифтов приведены на
рисунке 13.
Рисунок 13 - Примеры габаритов больничных лифтов
Таблица Б.1
Минимальные габариты помещений лечебных подразделений
Наименование помещения | Минимальные габариты, м, не менее |
1 Кабинет врача, спальные и лечебно-диагностические помещения | Ширина | 2,4 |
2 Одноместная палата | 2,8 |
3 Перевязочная, малая операционная, процедурная с урологическим, гинекологическим креслом | 3,2 |
4 Процедурная рентгенофлюорографического, рентгенотерапевтического, рентгенодиагностического кабинета со столами для просвечивания и снимков, кабинетов дистанционной и внутриполостной аппаратной лучевой терапии | Не менее 4 |
5 Палаты, кабинеты врачей | Отношение глубины к ширине | Не более 2 |
6 Коридоры палатных отделений | Ширина | 2,4 |
7 Коридоры лабораторных отделений | 1,8 |
8 Коридоры амбулаторно-поликлинических отделений | |
не используемые под ожидальные | 2 |
используемые как ожидальные при одностороннем размещении кабинетов | 2,8 |
используемые как ожидальные при двустороннем размещении | 3,2 |
9 Коридоры операционных блоков, родовых и реанимационных отделений, предназначенные для провоза и разворота каталки | 2,8 |
10 Коридоры операционных блоков, родовых и реанимационных отделений, не предназначенные для провоза и разворота каталки | 1,6 |
11 Коридоры складских помещений и аптек, жилых групп санаториев | 1,8 |
12 Коридоры в ванных и грязелечебных залах для персонала, обслуживающего процедурные места | 0,9 |
13 Коридоры других групп помещений | |
при общей длине более 10 м | 1,5 |
при общей длине менее 10 м | 1,25 |
Комментарий:
При реконструкции и капитальном ремонте возможно снижение указанных в таблице значений ширины, но не более чем на 10% при условии соблюдения требований к ширине путей эвакуации. При этом в коридорах палатных отделений, родовых и операционных блоков, реанимационных отделений для обеспечения завоза кровати или каталки при входе в помещения должны быть предусмотрены местные расширения коридора до нормативной ширины.
7 Объемно-планировочные решения лечебно-диагностических отделений и помещений
6.7.1.10 В инфекционных больницах (отделениях) прием пациентов осуществляют через приемно-смотровые боксы. Количество приемно-смотровых боксов определяют следующим расчетом в зависимости от количества коек в отделениях (за исключением боксированных отделений): до 60 коек - 2 бокса; свыше 60 до 100 коек - 3 бокса; на каждые 50 коек свыше 100 предусматривают дополнительный приемно-смотровой бокс. В I и II климатическом районе (СП 131.13330) вместо боксов допускается проектирование смотровых и боксированных изоляционно-диагностических палат со вспомогательными помещениями, объединенных общим коридором с отдельным наружным входом через отапливаемый тамбур для машин скорой помощи с одной стороны и входом из стационара с другой стороны. В инфекционной больнице (отделении), где 100% коек размещены в боксах, приемное отделение не требуется. |
Комментарий:
Эффективность применения боксов для ограничения распространения ИСМП не доказана. Эти планировочные элементы не применяются в развитых странах мира, делают невозможным использование теплого тамбура для подъезда машин скорой помощи и выгрузки больного, удорожают сметную стоимость и эксплуатационные расходы по сравнению со смотровыми, что с учетом сурового зимнего периода на большей территории Российской Федерации ставит под сомнение целесообразность использования указанного планировочного элемента. Планировочные решения приемно-смотровых боксов приведены на
рисунках 14,
15. Уборная в боксах предусматривается по заданию на проектирование.
Рисунок 14 - Планировочное решение приемно-смотрового бокса:
1 - наружный тамбур; 2 - открытая галерея;
3 - шлюз для персонала; 4 - смотровая
Рисунок 15 - Планировочное решение приемно-смотрового бокса:
1 - наружный тамбур; 2 - уборная; 3 - шлюз для персонала;
4 - смотровая; 5 - открытая галерея
6.7.2.14 Во вновь строящихся и реконструируемых зданиях организаций родовспоможения следует предусматривать систему компенсационных планировочных и инженерных мероприятий, препятствующих распространению ИСМП, а именно: индивидуальные родовые палаты; 1 - 2-местные палаты в палатном отделении или возможность планировочной изоляции одной из палатных секций; не менее 30% палат совместного пребывания матери и ребенка должны быть на одну койку и одну кроватку, остальные - не более двух коек и двух кроваток; наличие боксированных палат (1 - 2 на палатную секцию); мощность палатных секций не более 30 коек. При соблюдении этих условий нет необходимости создания обсервационных отделений. В составе приемных отделений могут быть предусмотрены индивидуальные родовые боксы (кроме I и II климатических районов по СП 131.13330), наличие и число которых определяются заданием на проектирование. |
Комментарий:
Эффективность применения боксов для ограничения распространения ИСМП не доказана. Эти планировочные элементы не применяются в развитых странах мира, делают невозможным использование теплого тамбура для подъезда машин скорой помощи и выгрузки больного, удорожают сметную стоимость и эксплуатационные расходы по сравнению с индивидуальными родовыми, что с учетом сурового зимнего периода на большей территории Российской Федерации ставит под сомнение целесообразность использования указанного планировочного элемента. При необходимости при приемном отделении может быть предусмотрен акушерский блок - одна или несколько родовых палат в виде блока с обслуживающими помещениями. Этот блок помещений должен иметь удобную связь через вестибюль приемного отделения с теплым тамбуром для подъезда машин скорой помощи. Такое планировочное решение позволяет предусмотреть изоляцию роженицы и вместе с тем лишено описанных выше недостатков. При родовой палате следует предусмотреть подготовительную персонала с душевой. При входе в акушерский блок может быть предусмотрен санитарный пропускник для персонала, в этом случае подготовительные персонала при родовых палатах не предусматриваются. Примеры планировочных решений приведены на
рисунках 16 -
18.

Рисунок 16 - Пример планировочного решения родовых боксов
с подготовительными персонала
Рисунок 17 - Пример планировочного решения родовых боксов
при приемном отделении с санпропускником для персонала
Рисунок 18 - Пример планировочного решения акушерского блока
в приемном отделении
6.7.2.1 Палатные отделения являются основным структурным элементом стационарных лечебных организаций. Палатное отделение состоит из палатной секции и общих помещений. В палатах и лечебных помещениях палатных отделений осуществляется диагностика, лечение, наблюдение и уход за больными. Количество коек палатного отделения каждого профиля определяется медико-техническим заданием. Соотношение коек в палатных секциях и палатах разной коечности определяется программой на проектирование и уточняется планировочными решениями с учетом рационального использования площади этажей. |
Комментарий:
В палатных отделениях с двумя или более секциями общие помещения отделения рекомендуется размещать в центральной части между секциями. Зону общих помещений рекомендуется размещать в удобной связи с вертикальными и горизонтальными коммуникациями, связывающими палатные отделения с другими подразделениями медицинской организации. Примеры конфигураций палатных отделений приведены на
рисунках 19 -
22.
Рисунок 19 - Пример планировки палатного отделения
Рисунок 20 - Пример планировки палатного отделения
с операционным блоком
Рисунок 21 - Пример планировки палатного отделения
Рисунок 22 - Примеры планировки палатного отделения
6.2.13 Площадь и габариты палат необходимо определять исходя из требования подхода к кровати больного с трех сторон (боковым и торцевой со стороны ног). К койкам жилых комнат санатория, психиатрическим (кроме наблюдательных) и койкам сопровождающих больного (матерей в палатах совместного пребывания матери и ребенка и др.) указанное требование не предъявляется. 6.2.14 Расстояние от торца койки до торца другой койки или стены палаты должно быть не менее 1,2 м. Расстояние между длинными сторонами рядом стоящих коек должно быть не менее 0,8 м, а в палатах восстановительного лечения, нейрохирургических, ортопедотравматологических, ожоговых, медико-социальных и палатах для больных, передвигающихся с помощью кресел-колясок - не менее 1,2 м. |
Комментарий:
| | ИС МЕГАНОРМ: примечание. Текст дан в соответствии с официальным текстом документа. | |
Планировка палаты должна позволять расстановку палатной мебели: функциональных кроватей, шкафов для личных вещей больных, палатного стола со стульями с соблюдением нормативных расстояний и позволять вывоз кровати без перестановки мебели. Пример расстановки мебели в палате приведен на
рисунке 23. Примеры конфигурации палат приведены в
Приложении 3 на
рисунках 3.28 -
3.30. В палатах интенсивной расстояние между кроватями должно быть не менее 2 м. Примеры расстановки мебели в палатах интенсивной терапии приведен на
рисунках 24,
25.
1 - кровать функциональная; 2 - тумбочка; 3 - шкаф
для личных вещей; 4 - стул; 5 - стол палатный;
6 - холодильник малогабаритный; 7 - телевизор на кронштейне;
8 - консоль настенная; 9 - унитаз; 10 - умывальник;
11 - душевой поддон
Рисунок 23 - Пример планировки палат
Рисунок 24 - Пример планировки палаты интенсивной терапии
на 6 коек
Рисунок 25 - Пример планировки палаты интенсивной терапии
на 3 койки
6.7.2.13 В инфекционном стационаре пациенты должны размещаться в боксированных палатах на 1 - 2 койки. Для карантинных инфекций должно быть предусмотрено не менее 5% одноместных боксов от общего числа коек. |
Комментарий:
Планировочные решения боксов с санузлом с душем и с санузлом с ванной приведены на
рисунках 26,
27. В случае расположения боксов выше первого этажа для доставки пациентов необходимо предусмотреть лестнично-лифтовой узел. Пример планировочного решения лестнично-лифтового узла приведен на
рисунке 28.
Рисунок 26 - Пример планировки боксов
на 1 и 2 койки с санузлом с душем:
1 - наружный тамбур; 2 - санузел с душем; 3 - шлюз
для персонала; 4 - палата на 1 койку; 5 - палата на 2 койки
Рисунок 27 - Пример планировки боксов
на 1 и 2 койки с санузлом с ванной:
1 - наружный тамбур; 2 - санузел с душем; 3 - шлюз
для персонала; 4 - палата на 1 койку; 5 - палата на 2 койки
Рисунок 28 - Пример планировки лестнично-лифтового узла
боксированного отделения
| | ИС МЕГАНОРМ: примечание. Текст дан в соответствии с официальным текстом документа. | |
6.5.1 При палате предусматривается санузел с унитазом, умывальником и душем (в дневных стационарах душ предусматривается по заданию на проектирование, в психиатрических отделениях душ предусматривается только при палатах для больных с пограничными состояниями). Рекомендуемые габариты припалатного санузла (в том числе для МГН на креслах-колясках) - 1,8 x 1,8 (2,2 x 1,8) м, уборной - 1,8 x 1,65 м, душевой - 1x x 1,8 (1,4 x 1,8) м. Души рекомендуется проектировать с поддоном в уровне пола. Санузлы и уборные, доступные для инвалидов-колясочников, оборудуются душевым поддоном в уровне пола, приспособлениями (поручнями, стойками, откидными сиденьями), облегчающими тяжелобольным пользование санитарными приборами. В психиатрических отделениях для больных в острых состояниях предусматриваются душевые помещения для принятия душа под наблюдением персонала. Число душевых определяется из расчета 1 открытая душевая сетка на 10 человек, но не менее 2 и не более 4. Габариты душевого помещения (с оборудованием душем на гибком шланге) должны обеспечивать персоналу возможность купания лежачего больного на душевой каталке. |
Комментарий:
При проектировании новых зданий рекомендуется предусматривать 100% санузлов, уборных и душевых при палатах с габаритами, позволяющими использование их МГН.
При реконструкции и капитальном ремонте допускается предусматривать специальные палаты с санузлами, душевыми и уборными с габаритами помещений, позволяющими использование их МГН. Количество коек в таких палатах определяется по заданию на проектирование, но не менее 10% от количества коек в палатном отделении. Габариты уборной, не предназначенной для МГН, принимаются 1,5 x 1,5 м.
6.8.2.2 Операционные должны быть объединены в централизованный оперблок без деления на септический и асептический. По заданию на проектирование в составе оперблока может быть выделена операционная для оперирования больных с гнойными осложнениями. В основу планировочного решения операционного блока должно быть положено деление внутреннего пространства на три зоны: стерильная зона (операционные), зона строгого режима (наркозные, предоперационные, помещения хранения стерильных материалов), зона ограниченного режима: послеоперационные палаты (помещения для персонала, помещения обработки аппаратуры и инструментария и др.). Вход в зону строгого режима для персонала должен быть предусмотрен через санитарный пропускник. |
Комментарий:
Примеры планировочных решений и зонирования оперблоков с указанием основных технологических потоков приведены на
рисунках 29 -
32.
Рисунок 29 - Пример планировочного решения
операционного блока на 5 операционных
Рисунок 30 - Пример зонирования оперблока на 5 операционных
Рисунок 31 - Пример планировочного решения
операционного блока на 3 операционных
Рисунок 32 - Пример зонирования оперблока на 3 операционных
Для организации условно "грязного" потока (использованные материалы, инструменты, белье, медицинские отходы) может предусматриваться специальный коридор. Преимуществом такой планировки является также возможность обеспечить отсутствие в операционных наружных стен с целью поддержания микроклимата. При однокоридорной схеме оперблока разделение чистых и "грязных" потоков обеспечивается упаковкой материалов и частично разделение потоков во времени. Функционирование такого оперблока требует более строгой организации работы персонала.
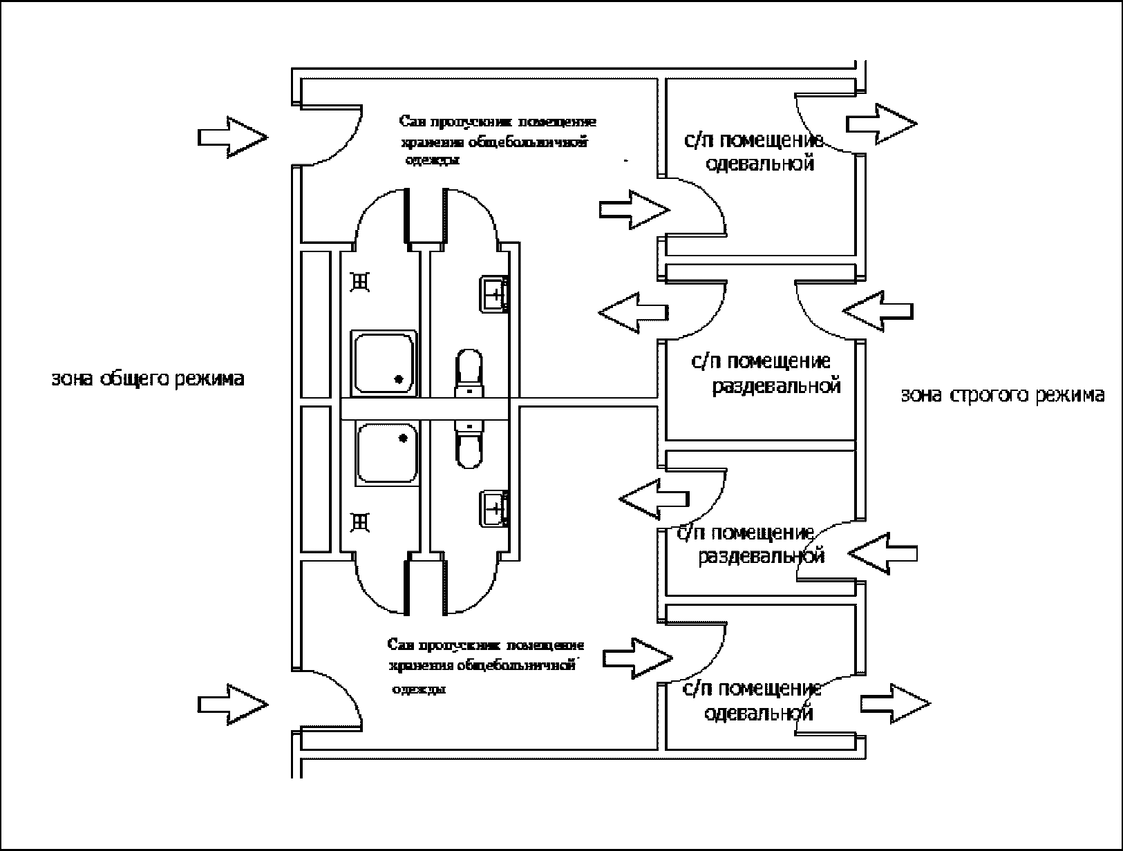
6.2.17 Санпропускники проектируются раздельно для мужчин и женщин. При числе работающих и пользующихся санпропускником 5 человек и менее в смену допускается проектировать один санитарный пропускник. Санпропускники из трех помещений (помещение хранения общебольничной одежды, помещение одевания персонала в стерильную одежду, помещение сбора использованной одежды) должны предусматриваться при оперблоках, родовых блоках, а также стерильных блоках онкогематологических и других отделений по пересадке органов и тканей, при входе в блок содержания экспериментальных СПФ-животных, при входе в блок производственных помещений синтеза РФП. Санпропускники из двух помещений (помещение хранения общебольничной одежды и одевальная) - в хирургической реанимации, секции реанимации для новорожденных и недоношенных. В остальных отделениях с высокими требованиями к санитарно-эпидемиологическому режиму (терапевтическая реанимация, палатная секция выхаживания новорожденных, вход в стерильную зону ЦСО и т.п.) предусматривается шлюз для надевания спецодежды и мытья рук. При помещениях хранения общебольничной одежды санпропускника предусматривается уборная и душевая. Душевые предусматриваются из расчета одна душевая на четыре операционных (но не менее одной) или на шесть постов дежурного персонала. |
Комментарий:
Примеры планировочных решений санитарных пропускников различного типа приведены на
рисунках 33 -
35.
Рисунок 33 - Пример планировки санитарного пропускника
из трех помещений
Рисунок 34 - Пример планировки санитарного пропускника
из двух помещений
Рисунок 35 - Пример планировки санитарного пропускника
для персонала инфекционного отделения при входе
в палатную секцию
6.7.2.17 Планировка отделений выхаживания, хирургической коррекции врожденных патологий, неврологической коррекции новорожденных возможна по двум вариантам: совместное круглосуточное пребывание матери и ребенка (не менее 30% мест); дневное пребывание матери в палатах новорожденных. При использовании второго варианта для приходящих родителей следует предусмотреть фильтр при входе в секцию и помещение для отдыха. |
Комментарий:
Современные подходы к проектированию больниц предполагают обеспечение открытости и комфорт пациентов, посещение которых родственниками является частью терапевтического процесса. При входах в лечебные подразделения с особым санитарным режимом (секции интенсивной терапии, родовые блоки) следует предусматривать фильтры для родственников, в которых они могут оставить свои личные вещи в шкафчиках, помыть руки и надеть комплект одноразовой или сменной одежды. В фильтрах для приходящих родителей при входе в секцию интенсивной терапии новорожденных и других случаях длительного пребывания родственников по заданию на проектирование в фильтре рекомендуется предусматривать душевую кабину. Уборная для посетителей может быть предусмотрена непосредственно при фильтре или в зоне общих помещений отделения. Примеры планировочных решений фильтров для родственников приведены на
рисунке 36.
Рисунок 36 - Примеры планировки фильтра для посетителей
(с душевой кабиной и без душевой кабины)
6.9.4.6 В блоке радионуклидного обеспечения проводятся работы по II и III классам работ с открытыми радионуклидами [11]. В соответствии с требованиями [11] при выходе персонала из блока радионуклидного обеспечения необходимо предусматривать санитарный шлюз с постом дозиметрического контроля, душевой и помещением для хранения загрязненной РФП спецодежды. Вместе с тем, помещения синтеза радиофармпрепаратов для ПЭТ-диагностики и связанные с ним единым технологическим процессом помещения подготовки реактивов и лаборатория контроля качества РФП, а также фасовочная РФП для ОФЭКТ-диагностики являются помещениями для изготовления лекарственных средств с нормируемой чистотой воздуха и должны быть устроены специальным образом для сведения к минимуму вероятности контаминации РФП. Вход в эти помещения предусматривается через санпропускники и каскад шлюзов в зависимости от класса чистоты воздуха в помещении. |
Комментарий:
Пример планировочного решения санитарного пропускника при входе в контролируемую зону блока радионуклидного обеспечения приведен на
рисунке 37.
Рисунок 37 - Пример планировки санитарного шлюза,
совмещенного с санитарным пропускником между зоной
общебольничного режима и контролируемой зоной производства
радиофармпрепаратов ПЭТ-центра
6.9.3.5 В состав отделения медицинской визуализации входят кабинеты магнито-резонансной томографии, рентгеновской диагностики (для общих исследований, ангиографической, рентгентомографической, маммографической и др.) и ультразвуковой диагностики. Набор кабинетов определяется профилем и мощностью медицинских организаций. |
Комментарий:
Примеры планировочных решений кабинетов медицинской визуализации приведены на
рисунках 38 -
40.
Рисунок 38 - Пример планировочного решения кабинета
рентгендиагностики для общих исследований
Рисунок 39 - Пример планировочного решения кабинета ЯМРТ
Рисунок 40 - Пример планировочного решения кабинетов КТ
и флюорографии
8 Объемно-планировочные решения вспомогательных и хозяйственных подразделений
6.11.4.2 ЦСО следует разделять на зону производственных помещений и зону помещений для персонала. При разработке планировочных схем ЦСО необходимо соблюдать принцип поточности и разделения всех производственных помещений на зоны: "грязную", чистую и стерильную. К "грязной" зоне относятся помещения приема, разборки, мытья и дезинфекции инструментов, транспортных тележек. К чистой зоне относятся помещения комплектации и упаковки инструментария, белья и перевязочных материалов со вспомогательными помещениями. К стерильной зоне относятся: стерильная половина стерилизационной, склад стерильных материалов, экспедиция. Проход в помещения стерильной зоны осуществляется через шлюз, который оборудуется умывальником для мытья рук и вешалкой или шкафом для специальной одежды. Между чистой и стерильной зонами рекомендуется устанавливать оборудование проходного типа для обработки изделий. В крупных ЦСО следует предусматривать помещение для центрального компьютера, предназначенного для автоматизации производственных процессов и контроля качества стерилизации. |
Комментарий:
Пример планировочного решения ЦСО приведен на
рисунке 41.
Рисунок 41 - Пример планировочного решения
и технологического зонирования ЦСО
6.12.1.2 Помещения дезотделения должны быть разделены на две зоны: "грязную", где ведутся работы с инфицированными вещами, и чистую, где работают с дезинфицированными вещами, и иметь два самостоятельных входа - один для персонала и выдачи дезинфицированных вещей, другой - для приема инфицированных вещей. Дезотделения желательно размещать в нижних этажах, в том числе подземных. |
Комментарий:
Пример планировочного решения дезинфекционного отделения приведен на
рисунке 42.
Рисунок 42 - Пример планировочного решения
и технологического зонирования дезинфекционного отделения
6.12.3.2 Больничные прачечные рекомендуется оснащать стиральными машинами барьерного типа, которые делят помещения производственной зоны на чистую и "грязную" зоны. К "грязной" зоне относятся помещения приема и сортировки белья и стиральный цех, остальные относятся к чистой зоне. При выходе из "грязной" зоны следует предусматривать санитарный шлюз с душем. |
Комментарий:
Пример планировочного решения больничной прачечной приведен на
рисунке 43.
Рисунок 43 - Пример планировочного решения
и технологического зонирования прачечной
6.12.4.1 Пищеблоки следует проектировать с учетом [19]. По заданию на проектирование обеспечение пищей может организовываться по традиционной технологии или по индивидуально-порционной системе "таблет-питания", гарантирующей безопасность и качество процесса компоновки горячих и холодных блюд. В пищеблоках выделяют зоны производственных, складских и служебно-бытовых помещений. Планировочные решения и закрытое оборудование для транспортировки должны обеспечивать последовательность технологических процессов и максимально ограничивать встречные потоки сырья, полуфабрикатов и готовой продукции, чистой и использованной посуды. Допускается планировка цехов по обработке продуктов и комплектации блюд в одном производственном помещении. При этом цеха рекомендуется выделять в зоны, разделенные перегородками на высоту 1,6 м. |
Комментарий:
В заготовочных цехах потоки сырья, полуфабрикатов и отходов из-за цикличности технологического процесса разделены во времени. Потоки сырья, полуфабрикатов и готовой продукции, а также грязной и чистой посуды не должны пересекаться. Пример планировочного решения производственных помещений, предусматривающих систему таблет-питания, приведен на
рисунке 44. Примеры планировочных решений зоны складских и служебно-бытовых помещений приведены на
рисунках 45,
46.
Рисунок 44 - Пример планировочного решения и технологических
потоков производственных помещений пищеблока
Рисунок 45 - Пример планировочного решения
складских помещений пищеблока
Рисунок 46 - Пример планировочного решения
служебно-бытовых помещений пищеблока
9 Системы инженерного обеспечения
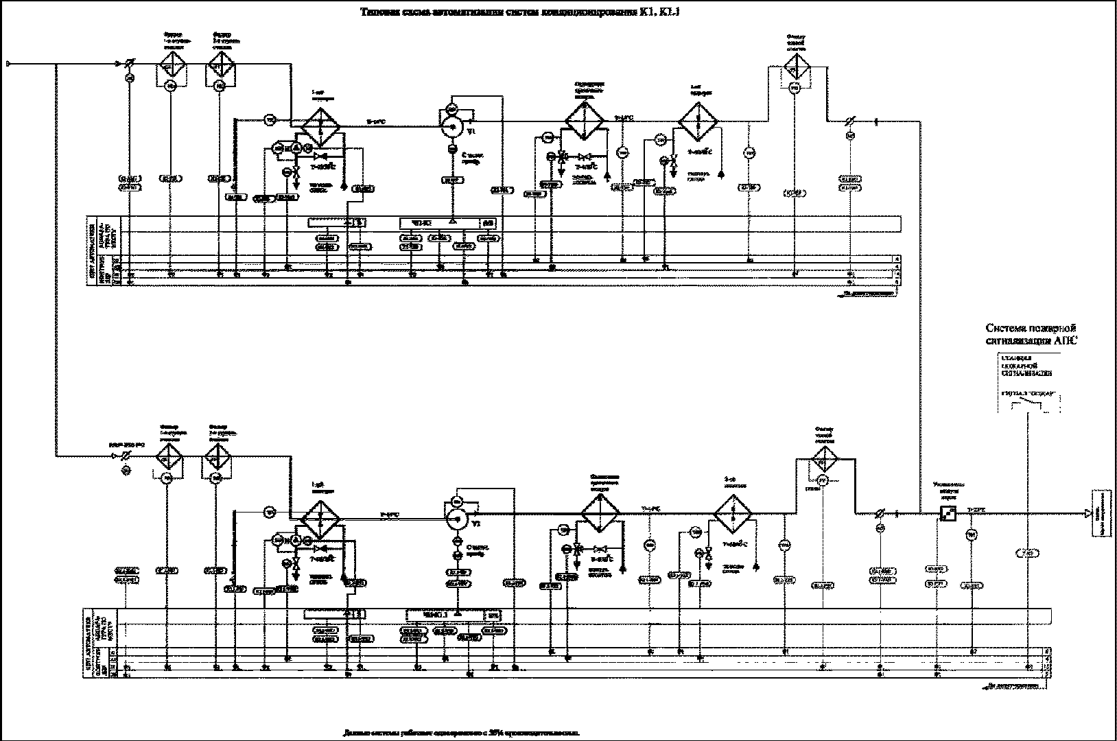
9.1 Вентиляция и кондиционирование
7.2.3.1 Вентиляция в зданиях должна исключать возможность перетоков воздушных масс из зон (помещений) с относительно низкими требованиями к чистоте воздуха в помещения с более высокими требованиями. |
Комментарий:
Принципиальные схемы вентиляции и кондиционирования различных помещений и комплексов помещений медицинских организаций приведены на
рисунках 47 -
59.
Принципиальные схемы вентиляции и кондиционирования
Рисунок 47 - Санитарный пропускник оперблока
Рисунок 48 - Родовой бокс
Рисунок 49 - Палаты палатных отделений
Рисунок 50 - Палаты интенсивной терапии, родовые палаты
Рисунок 51 - Палата для инфекционных больных (вариант 1)
Рисунок 52 - Палата для инфекционных больных
(вариант 2 - для иммунокомпрометированных больных)
Рисунок 53 - Палата интенсивной терапии,
послеоперационная палата (со шлюзом)
Рисунок 54 - Палата интенсивной терапии,
послеоперационная палата (без шлюза)
Рисунок 55 - Палата интенсивной терапии,
послеоперационная палата (изолятор)
Рисунок 56 - Палата для новорожденных
Рисунок 57 - Изолятор палатного отделения
Рисунок 58 - Операционный блок
Рисунок 59 - Родовой полубокс
9.2 Водоснабжение и канализация
7.5.1.1 Нормы расхода воды в медицинских организациях на технологические нужды патологоанатомического отделения, медицинских лабораторий, лабораторий центров гигиены и эпидемиологии, лабораторных корпусов клиник НИИ принимают по таблице 7.8. |
Комментарий:
По нормативу для лабораторий химического профиля принимаются расходы для патологоанатомического отделения, дезинфекционного отделения, отделения гемодиализа и непосредственно лаборатории и лабораторные отделения химического профиля. По нормативу лабораторий биологического профиля допускается принимать лаборатории экстренных анализов, КДЛ биологического профиля.
7.5.1.3 Расходы воды на лечебные ванны, бассейны, кафедры водолечения, приготовление пищи, стирку белья, бытовые нужды административного и обслуживающего персонала, технологические нужды помещений грязелечения и на нужды пароувлажнения учитываются дополнительно в соответствии с технологической частью проекта. |
Комментарий:
Расходы воды на лечебные ванны определяются в зависимости от типа (объема) медицинской ванны, утвержденной технологической частью проекта. Расходы воды могут составлять от 250 л (медицинские ванны общего назначения) до 810 л (ванна подводного вытяжения). Для определения суточного расхода по заданию технологов указывается количество процедур в сутки. Для определения расхода холодной и горячей воды допускается использовать следующее соотношение: 1/3 от общего расхода для холодной воды, 2/3 от общего расхода для горячей воды.
Для определения расходов воды на кафедры водолечения допускается принимать следующие расчетные данные: 3000 л/ч - общий расход воды, 900 л/ч - расход холодной воды, 2100 л/ч - расход горячей воды. Продолжительность работы для кафедры водолечения определяется в соответствии с технологическим заданием.
| | ИС МЕГАНОРМ: примечание. В официальном тексте документа, видимо, допущена опечатка: п. 20 в таблице А2 СП 30.13330 отсутствует. Вероятно, имеется в виду п. 20 табл. А3. | |
Административный персонал, выделенный в отдельное отделение, учитывается дополнительно. Обслуживающий персонал (охрана, инженерные службы, шоферы и др.) учитывается по нормам персонала в производственных цехах (
п. 20 табл. А2 СП 30.13330). Работники и учащиеся медицинских кафедр учитываются как учащиеся.
Расходы воды на нужды парогенераторов системы вентиляции и кондиционирования здания учитываются дополнительно по заданию ОВ. При этом необходимо учесть, что приблизительно 97% процентов воды уходит в пар и в балансе на объект учитывается в безвозвратных потерях.
7.5.1.4 Расход воды на мытье посуды в буфетных учтен в норме расхода на приготовление одного условного блюда. |
Комментарий:
Расходы воды в пищеблоках и столовых при медицинских учреждениях определяются по
СП 30.13330 в соответствии с нормами расхода воды для предприятий общественного питания. Минимально на 1 койку принимается 5 условных блюд в сутки, 0,22 условных блюда в час. По дополнительному заданию на проектирование при улучшенном питании пациентов, принимается большее количество условных блюд на 1 койку.
Расходы воды на мытье посуды в буфетных учтены в норме расхода на приготовление одного условного блюда. При расположении моечных столовой посуды отдельно от места приготовления пищи (не в пищеблоке, а в самих отделениях) дополнительно учитывать расход не требуется. При раздельном расположении моечных столовой посуды от пищеблока, только для гидравлического расчета внутренних сетей водоснабжения, следует разделять расход на приготовление пищи и мытье посуды (принимается 10 л на приготовление пищи и 2 л на мытье посуды).
7.5.2.1 При проектировании бассейнов следует руководствоваться [39]. Водообмен в ваннах лечебных бассейнов следует предусматривать с рециркуляцией воды или с непрерывным протоком свежей воды. Вода должна подаваться равномерно в течение всего времени работы бассейнов. Температура воды в лечебном бассейне зависит от характера заболевания лиц, выполняющих лечебную гимнастику в нем, и должна быть в пределах от 25 °C до 37 °C. Относительная влажность воздуха в помещении бассейна должна быть в пределах 50 - 60%. 7.5.2.3 Водоподготовка бассейнов и конструктивные решения по ним принимаются в соответствии с требованиями ГОСТ Р 53491.1. |
Комментарий:
Отвод воды из ванн плавательных бассейнов на рециркуляцию может осуществляться как через переливные технические устройства, так и через отверстия в дне, располагаемые в глубокой и мелкой частях ванн.
Сброс загрязненной воды из ванн плавательных бассейнов, а также от промывки фильтров, из переливных желобов, от ножных ванн, с обходных дорожек и от мытья стенок и дна ванн бассейнов должен осуществляться в канализацию. При отсутствии централизованной системы канализации указанная вода может быть отведена в водный объект при наличии положительного санитарно-эпидемиологического заключения.
Присоединение ванн бассейнов к канализационным трубопроводам должно исключать возможность обратного попадания стока и запаха из канализации в ванны, для этого трубопроводы должны иметь воздушные разрывы перед гидравлическим затвором.
Сброс загрязненной воды из ванн бассейнов в зависимости от местных условий осуществляют в ливневую или хозяйственно-бытовую канализацию. Сброс воды от промывки фильтров, от проходных ножных ванн, с обходных дорожек, от мытья обходных дорожек, переливных лотков, стен и дна ванн бассейнов осуществляют в хозяйственно-бытовую канализацию.
Сброс воды от промывки фильтров, по согласованию с представителями организаций, эксплуатирующих местные инженерные сети или уполномоченными надзорными органами, может быть отведен в ливневую канализацию.
7.5.2.2 Водообмен в ваннах бассейнов объемом до 65 м3 следует предусматривать с рециркуляцией воды или с непрерывным протоком свежей воды (разовое использование с дезинфекцией). Водообмен в ваннах для детей должен производиться за одну смену; для взрослых - не более чем за две смены работы бассейна. Водообмен методом периодических наполнений и опорожнений не допускается. Выбор схемы водообмена определяется технико-экономическим расчетом. |
Комментарий:
Конструкция смесителя для бассейна на протоке приведена на
рисунке 60.
Рисунок 60 - Устройство смесителя для бассейна на протоке
7.5.2.4 Перед выходом на обходную дорожку или выплыв в бассейн предусматривается ножная ванна с проточной водой, требования к которой отражены в [39]. |
Комментарий:
Вместо ножных проходных ванн у выхода из раздевальных в зал бассейна допускается применение ковриков, пропитанных антисептиками.
7.5.2.10 В помещениях лечебных бассейнов предусматривается установка поливочных кранов с подводкой холодной и горячей воды. |
Комментарий:
Поливочные краны устанавливаются для мытья обходных дорожек и душевых при бассейнах.
7.5.3 Санитарно-техническое оборудование |
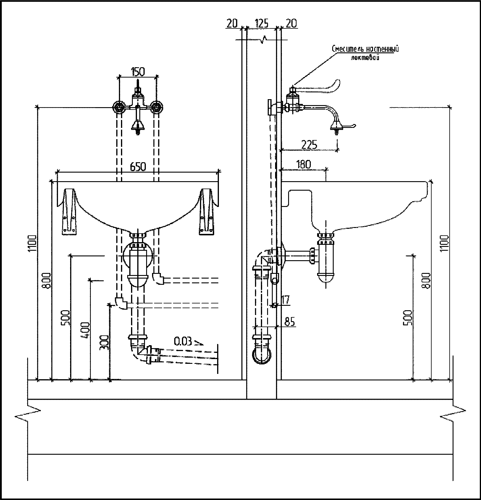
В медицинских организациях устанавливают специальные санитарно-технические приборы для лечебных процедур, мойки медицинского инструмента. К ним относятся: медицинские ванны, хирургические и медицинские умывальники, ножные ванны, больничные сливы (видуары), инвентарные мойки. Схема установки медицинского умывальника со смесителем приведена на
рисунке 61.
Рисунок 61 - Установка умывальника со смесителем
Медицинские ванны отличаются от обычных тем, что у них нет отверстия для перелива. У ванны большой модели для ускорения опорожнения диаметр выпуска равен 50 мм; у ванн обычной модели - 40 мм.
Хирургический фаянсовый умывальник предназначен для мытья рук до локтя, снабжен локтевым смесителем, который позволяет при пользовании не касаться рукоятки ладонью. Имеет широкую чашу и вогнутый передний край. Схема установки умывальника с локтевым смесителем приведена на
рисунке 62.
Рисунок 62 - Установка умывальника с локтевым смесителем
Слив больничный (видуар) используется, как правило, в медицинских учреждениях для слива грязной воды, ополаскивания больничного инвентаря, а также для опорожнения суден и мочеприемников лежачих больных при палатах интенсивной терапии. Сливы (видуары) надлежит устанавливать с отводным патрубком

во избежание засоров в канализационной сети.
7.5.3.1 В палатах для детей и психически больных, а также в предоперационных и других помещениях (по заданию технологов), предусматривается установка термостатических смесителей. |
Комментарий:
Термостатическими смесителями оборудуются только сантехнические приборы, которыми самостоятельно пользуются дети или психически больные. Также термостатами должны быть оборудованы умывальники (ванночки) с широкой чашей для обработки новорожденных в акушерских отделениях и отделениях для новорожденных. Для снижения температуры у приборов может устанавливаться как смеситель со встроенным термостатом, так и групповой термостат, обслуживающий группу приборов.
7.5.3.3 В помещениях психиатрических больниц, в которых больные находятся без наблюдения со стороны обслуживающего персонала (умывальные, уборные и т.п.), трубопроводы и запорная арматура, как правило, предусматриваются не доступными для больных; место установки смесителей определяется требованиями технологического проектирования. |
Комментарий:
Сантехнические приборы и сантехническая арматура должны быть антивандального исполнения, не иметь выступающих частей и острых углов.
7.5.3.4 В ванных, санитарных комнатах, в общественных уборных с двумя унитазами и более, клизменных, помещениях хранения уборочного инвентаря, медицинских отходов, моечных следует устанавливать поливочные краны с подводкой горячей и холодной воды и трапы диаметром 50 мм (при необходимости дополнительная установка трапов и поливочных кранов выполняется по техническому или технологическому заданию). Максимальная высота бортиков душевого поддона относительно уровня чистого пола 100 мм. Рекомендуется установка душевых поддонов без бортиков или в строительном исполнении - вровень с полом. В этом случае установка трапа не требуется. |
Комментарий:
Поливочными кранами оборудуются следующие производственные помещения пищеблоков и столовых: помещение первичной обработки овощей, моечная кухонной и столовой посуды, помещение мойки тележек и бачков, помещение хранения пищевых отходов. Трапами диаметром 100 мм оборудуются следующие помещения:
- помещение первичной обработки овощей;
- цеха заготовки овощей, рыбы, мяса и птицы, яиц;
- цех мучных изделий;
- холодная заготовочная;
- загрузочная;
- варочный цех (дополнительно в варочном зале предусматривается установка лотков с подключением к канализации, возле теплового оборудования плит, варочных панелей и котлов);
- помещение для мойки бачков;
- моечные (котлов, тележек, посуды и др.);
- помещения хранения пищевых отходов;
- помещения холодильных камер.
Высота установки поливочного крана в помещениях медицинских организаций и в помещениях пищеблока проиллюстрирована на
рисунке 63. Схемы установки душевого поддона приведены на
рисунках 64,
65.
Рисунок 63 - Установка внутреннего поливочного крана
Рисунок 64 - Схема установки душевого поддона в полу
Рисунок 65 - Схема установки душевого поддона в полу
7.5.3.4 В помещениях приточных вентиляционных камер (кондиционеров), технических подпольях, тепловых пунктах, вакуумных, в водопроводных насосных станциях, помещениях лечебных плавательных бассейнов и оборотного водоснабжения предусматриваются мероприятия по отводу воды с пола (установка трапов или устройство сборных приямков с установкой погружных насосов). |
Комментарий:
Сточные воды, поступающие из данных помещений, принимаются как условно-чистые и в зависимости от наличия централизованных сетей, могут отводиться в водосточные сети.
7.5.3.6 При необходимости повторного использования лечебной грязи, отвод производственных сточных вод из помещений для грязевых процедур, грязевой кухни, помещений мойки и сушки простыней, холстов, брезентов и из помещений для хранения и регенерации грязи осуществляется через специальные трапы мм (без гидравлического затвора) в сборный грязеотстойник, оборудованный гидравлическим затвором. |
Комментарий:
Схема установки трапа для грязелечебниц приведена на
рисунке 66.
Рисунок 66 - Трап для грязелечебниц
7.5.3.9 В помещениях для приготовления гипса под умывальником следует предусматривать установку гипсоотстойников. |
Комментарий:
Схема установки гипсоотстойника приведена на
рисунке 67.
Рисунок 67 - Гипсоотстойник стационарный
7.5.3.10 Отвод воды от автоклавов предусматривается через конденсатные устройства. |
Комментарий:
Схема конденсаторного устройства приведена на
рисунке 68.
Рисунок 68 - Пример устройства охладителя пара
7.5.3.11 Для водопотребляющего технологического оборудования (стерилизаторы, парогенераторы, моечно-дезинфекционные машины, аппараты водоочистки для лабораторий и др.) предусматриваются системы водоподготовки. Метод подготовки воды (очистка, деминерализация, умягчение и т.д.), а также количество потребителей и расходы воды определяются требованиями технологического оборудования. |
Комментарий:
Рекомендуется устройство централизованной системы водоподготовки для всех потребителей. При малом количестве потребителей подготовленной воды и их рассредоточенном расположении в организации рекомендуется установка местных систем водоподготовки.
7.5.4.1 Очистка и обеззараживание сточных вод от больниц и других стационаров, в том числе и инфекционных, осуществляется на общегородских или других канализационных очистных сооружениях. 7.5.4.2 При отсутствии общегородских или других сооружений сточные воды медицинских стационаров должны проходить очистку и обеззараживание на локальных канализационных очистных сооружениях полной биологической очистки соответствующих стационаров. |
Комментарий:
Рекомендуется применять комплектные установки по очистке и (или) обеззараживанию сточных вод.
7.5.4.4 Для очистки производственных сточных вод на выпусках из зданий пищеблоков в больницах на 1000 коек и более следует предусматривать вне здания установку жироуловителей. На выпусках производственной канализации от моечных столовой посуды при столовых и кафе с числом посадочных мест менее 200 установка жироуловителей не требуется. |
Комментарий:
Установка жироуловителей предусматривается по дополнительным техническим требованиям местных ресурсоснабжающих организаций.
7.5.5.2 В зданиях лечебных организаций высотой до 40 м установка противопожарных манжет на пластмассовых канализационных стояках не требуется. |
Комментарий:
В соответствии с требованиями
ФЗ 123 в местах пересечения труб холодного и горячего водопровода, канализации и внутренних водостоков с перекрытиями, перегородками и стенами зданий предусматриваются футляры с уплотнением несгораемыми материалами, обеспечивающими нормируемый предел огнестойкости. К установке рекомендуются противопожарные муфты, ленты, пены и др. материалы, имеющие соответствующие сертификаты.
7.5.5.3 Стояки водопровода холодной и горячей воды, канализации и внутренних водостоков прокладываются, как правило, в вертикальных коммуникационных шахтах или в приставных коробах. Все подводки к санитарным приборам прокладываются скрыто. Допускается открытая прокладка магистралей стояков и подводок в технических помещениях и технических этажах. |
Комментарий:
Открытая прокладка рекомендуется только для магистралей в технических подпольях и технических этажах, при отсутствии в них постоянно пребывающего персонала.
7.5.5.4 Прокладку канализационных трубопроводов в зданиях следует осуществлять в соответствии с СП 30.13330. |
Комментарий:
Прокладка внутренних канализационных сетей (от приборов, не относящихся к данному помещению) не допускается под потолком, в стенах и в полу:
- палат;
- лечебных кабинетов;
- обеденных залов;
- рабочих кабинетов;
- залов заседаний,
- зрительных залов;
- библиотек;
- учебных аудиторий;
- электрощитовых, трансформаторных, помещений для ИБП, пультов управления автоматики;
- вакуумных и компрессорных медицинских газов;
- помещений, требующих особого санитарного режима (класса А и Б), например, лабораторий клеточных технологий, стерильных зон ЦСО и т.п.
Не допускается прокладка канализационных сетей под потолком (открыто или скрыто):
- помещений обработки и хранения пищевых продуктов.
9.3 Медицинское газоснабжение
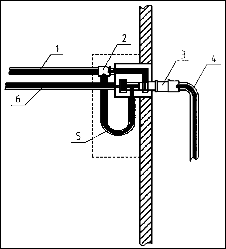
7.4.2.15 При количестве баллонов 10 шт. и менее в составе кислородной двухплечевой рампы (одно плечо рампы является рабочим, другое - резервным) ее размещение может быть в двух вариантах: в специальных несгораемых шкафах пристенно у глухого участка стены здания на расстоянии не менее 3 м от оконных и дверных проемов по горизонтали и вертикали; в помещении для кислородной рампы - в одноэтажной отапливаемой пристройке (T внутр. 10 °C) из несгораемого материала, имеющей непосредственный выход наружу. Пол должен иметь бетонное покрытие. |
Комментарий:
Ниже представлены варианты размещения кислородной рампы:
на
рисунке 69 - Эскиз шкафа металлического для размещения кислородной рампы 2 x 5 баллонов;
на
рисунке 70 - Эскиз одноэтажной пристройки к зданию для размещения кислородной рампы 2 x 5 баллонов.
Рисунок 69 - Эскиз шкафа металлического
для кислородной рампы 2 x 5 баллонов
Рисунок 70 - Эскиз одноэтажной пристройки к зданию
для размещения кислородной рампы 2 x 5 баллонов
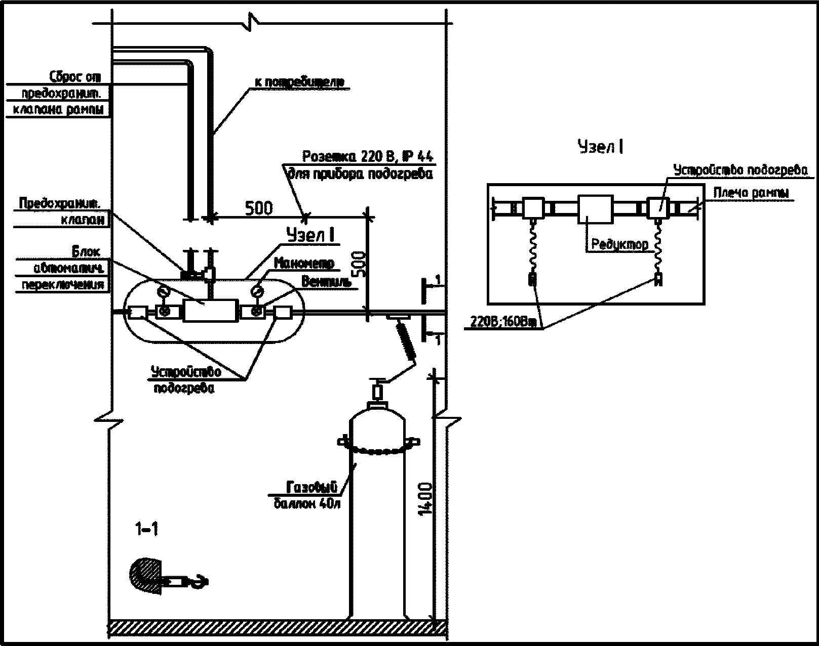
7.4.2.16 Кислородная рампа используется в медицинских организациях в качестве: - основного источника при небольшой потребности организации в кислороде (при этом суммарная емкость баллонов должна обеспечивать запас кислорода для работы организации не менее 3 сут.); - резервного (аварийного) источника в дополнение к основному источнику кислорода (КГС или центральный кислородный пункт), при наличии в организации операционного или реанимационного блока. |
Комментарий:
Кислородная рампа 2 x 5 баллонов, предусмотренная в качестве резервного (аварийного) источника на случай одновременного выхода из строя первичного и вторичного источников кислорода, используется в этом случае только для снабжения кислородом помещений, связанных с жизнеобеспечением пациентов (операционные, отделения реанимации и интенсивной терапии), в течение нескольких часов до момента восстановления и включения в работу одного из основных источников (первичного или вторичного).
На
рисунке 71 представлена принципиальная схема газоразрядной кислородной двухплечевой рампы.
А1 - группа баллонов N 1; А2 - группа баллонов N 2; Б1 - первое плечо рампы; Б2 - второе плечо рампы; В - первая ступень регулирования давления; Г - вторая ступень регулирования давления. | 1 - баллоны - источники газа; 2 - гибкое соединение; 3 - обратный клапан; 4 - запорный вентиль; 5 - выпускной вентиль; 6 - фильтр; 7 - манометр; 8 - аварийный сигнал контроля давления; 9 - регулятор давления; 10 - предохранительный клапан. |
Рисунок 71 - Принципиальная схема
газоразрядной кислородной двухплечевой рампы
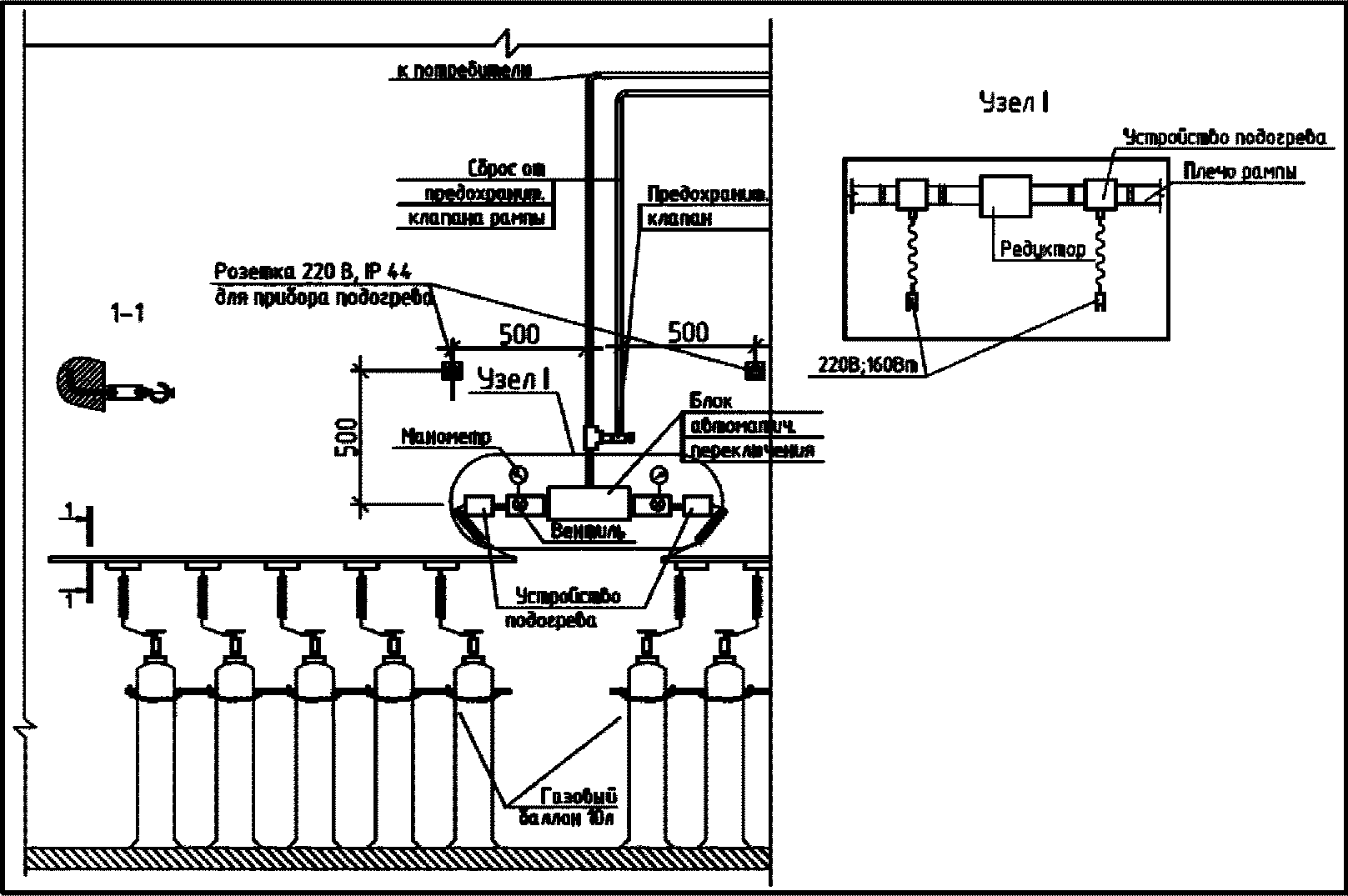
7.4.3.5 Снабжение закисью азота должно осуществляться от двух групп рамп для 10-литровых баллонов с закисью азота (одна группа - рабочая, другая резервная). При опорожнении баллонов рабочей группы должно осуществляться автоматическое переключение на работу баллонов резервной группы. |
Комментарий:
При большой потребности в закиси азота в медицинской организации источниками закиси азота могут быть рампы, состоящие из 10 или 20 баллонов.
Средний ориентировочный коэффициент использования (уточняется технологическим заданием) при расчете потребности закиси азота в операционные:
0,7 - при количестве операционных от 2 до 5;
0,5 - при количестве операционных от 6 до 10;
0,3 - при количестве операционных более 10.
На
рисунке 72 представлена принципиальная схема газоразрядной двухплечевой рампы закиси азота 2 x 5 баллонов.
Рисунок 72 - Схема газоразрядной двухплечевой
рампы N2O 2 x 5 баллонов
7.4.6.3 Снабжение углекислым газом осуществляется от двухплечевой рампы (одно плечо рампы - рабочее, другое - резервное) для 40-литровых баллонов с углекислым газом. При опорожнении баллонов рабочего плеча рампы осуществляется автоматическое переключение на работу баллонов резервного плеча. 7.4.7.3 Снабжение азотом, аргоном и гелием должно осуществляться от двухплечевой рампы (одно плечо рампы является рабочим, другое - резервным), состоящей из двух для 40-литровых баллонов с азотом или аргоном. При опорожнении баллонов рабочего плеча рампы осуществляется автоматическое переключение на работу баллонов резервного плеча. |
Комментарий:
На
рисунке 73 представлена принципиальная схема газоразрядной двухплечевой рампы (CO
2, N
2, Ar, He).
Рисунок 73 - Схема газоразрядной двухплечевой рампы
(CO2, N2, Ar, He)
7.4.3.8 Удаление отработанных наркотических газов из контура наркозно-дыхательной аппаратуры осуществляется двумя способами: методом эжекции, либо при помощи установок (насосов) для отвода наркогазов. В первом случае в настенных и потолочных консолях устанавливаются эжекционные устройства с розетками, работающие на сжатом воздухе и обеспечивающие через трубопроводы и стояки выброс наркогазов за пределы здания. Во втором случае в консолях устанавливаются розетки, которые посредством трубопроводов и стояков соединяются с установками (насосами) для отвода наркогазов, которые монтируются на техническом этаже и осуществляют выброс наркогазов за пределы здания. Трубопроводы от каждой розетки до поэтажной магистрали прокладываются отдельно и по максимально короткой траектории. Трубопровод сброса отработанных наркогазов выводится за пределы здания на 200 мм выше кровли. На выхлопе трубы устанавливается узел влагозащиты. Трубопровод сброса отработанных наркотических газов из помещений медицинских организаций, расположенных в жилых домах, прокладывается по фасаду здания до места сброса (на 200 мм выше кровли). |
Комментарий:
К эжекционному устройству для удаления отработанных наркотических газов из контура наркозно-дыхательной аппаратуры подводится трубопровод сжатого воздуха давлением 0,4 МПа. Расход сжатого воздуха 0,4 МПа на одно эжекционное устройство составляет 50 л/мин.
При небольшом количестве точек отвода отработанных наркотических газов (до 5 точек) допускается не предусматривать объединение трубопроводов сброса отработанных наркотических газов в единый стояк с выводом выше кровли здания. В этом случае выброс отработанных наркотических газов осуществляется непосредственно из каждого помещения отдельным трубопроводом через наружную стену за пределы здания на высоте h = 3000 мм от уровня земли. На выхлопе трубы устанавливается узел влагозащиты.
На
рисунке 74 представлена схема удаления отработанных наркотических газов методом эжекции.
Рисунок 74 - Схема удаления отработанных наркотических газов
методом эжекции:
1 - трубопровод удаления наркозного газа; 2 - эжектор;
3 - газовая розетка; 4 - трубопровод подключения
наркозного аппарата; 5 - соединительный трубопровод;
6 - трубопровод подачи сжатого воздуха
7.4.2.33 Кислород из наружных сетей во внутреннюю систему кислородоснабжения поступает через кислородный коллектор, объединенный с трубопроводами других медицинских газов в узел управления (распределения), где на трубопроводах кислорода устанавливается запорно-отсекающая арматура и контрольно-измерительная аппаратура. 7.4.8.4 Узел управления следует монтировать на стене. В конструкции узла управления предусматривается контрольно-измерительная и запорная арматура. Далее от узла управления медгазы по стоякам и ответвлениям на каждом этаже здания подаются к точкам потребления. |
Комментарий:
На
рисунке 75 представлен пример схемы узла управления медгазами.
Рисунок 75 - Пример схемы узла управления медгазами
7.4.8.1 От источников трубопроводы всех медицинских газов сводятся в единый узел управления (изготавливается индивидуально в соответствии с проектной документацией), который размещается в помещении медгазов с оконными проемами, располагаемом преимущественно на 1 этаже здания с учетом точки ввода кислорода из наружных сетей и мест максимального потребления газов. Не допускается размещение узла управления в подвале. При технической необходимости (медицинская организация занимает часть здания и т.п.) допускается размещение узла управления выше первого этажа в помещении с оконными проемами. В этом же помещении могут устанавливаться разрядные рампы - источники закиси азота, углекислого газа, азота и аргона и гелия. |
Комментарий:
В зависимости от объема потребляемых медицинских газов рекомендуемая площадь помещения управления медгазами может составлять от 15 до 40 м. Площадь определяется расстановкой оборудования.
На
рисунках 76,
77 представлены примеры проектных решений по планировке и оборудованию помещения управления медгазами.
Рисунок 76 - Пример 1 проектного решения по планировке
и оборудованию помещения управления медгазами
Рисунок 77 - Пример 2 проектного решения по планировке
и оборудованию помещения управления медгазами
7.4.4.3 Система централизованного обеспечения вакуумом в соответствии с ГОСТ Р ИСО 7396-1 должна содержать, как минимум, три независимых источника - первичный, вторичный и резервный. Каждый из трех источников должен обеспечивать суммарную расчетную потребность проектируемого объекта в вакууме. В состав медицинской вакуумной станции должно входить не менее двух антибактериальных фильтров, один из которых резервный. |
Комментарий:
На
рисунке 78 представлена принципиальная схема обеспечения вакуумом от вакуумной станции.
А - вакуумный насос (три или более); Б - ресивер; В - бактериальный фильтр; Г - система дренажа; Д - система трубопроводов вакуума к точкам потребления | 1 - запорный вентиль источника; 2 - основной запорный вентиль; 3 - запорный вентиль ветви; 4 - запорный вентиль стояка; 5 - контактный датчик давления. |
Рисунок 78 - Принципиальная схема обеспечения вакуумом
7.4.5.4 Система централизованного обеспечения сжатым воздухом в соответствии с ГОСТ Р ИСО 7396-1 должна содержать, как минимум, три независимых источника (компрессора) - первичный, вторичный и резервный. Каждый из трех источников должен обеспечивать суммарную расчетную потребность проектируемого объекта в сжатом воздухе. В состав станции сжатого воздуха входят компрессоры, ресиверы, блок управления станцией, блоки осушки сжатого воздуха, рампы фильтров очистки сжатого воздуха до требуемых параметров. Блоки осушки, рампы фильтров дублируются. Один комплект является рабочим, другой - резервным. |
Комментарий:
На
рисунке 79 представлена принципиальная схема системы подачи сжатого воздуха (0,4 МПа и 0,8 МПа) от компрессорной станции.
А - компрессор (три или более); Б - ресивер; В - система подготовки воздуха (осушение и фильтрация); Г - система трубопроводов медицинского сжатого воздуха к точкам потребления; Д - система трубопроводов сжатого воздуха для привода хирургических инструментов. | 1 - запорный вентиль источника; 2 - основной запорный вентиль; 3 - запорный вентиль ветви; 4 - запорный вентиль стояка; 5 - клапан сброса давления; 6 - обратный клапан; 7 - сервисное отведение; 8 - контактный датчик давления; 9 - линейный регулятор давления. |
Рисунок 79 - Принципиальная схема системы подачи
сжатого воздуха (0,4 МПа и 0,8 МПа) от компрессорной станции
7.4.8.9 Трубопроводы медицинских газов внутри зданий следует прокладывать: а) горизонтальные участки в помещениях: - со съемными потолками - в межпотолочном пространстве, - с подшивными несъемными потолками - открыто, ниже подшивных потолков над дверными проемами; б) вертикальные опуски - открыто (кроме "чистых помещений"); в) в "чистых помещениях" - в пространстве выше подвесных потолков или за панелями ограждающих конструкций из цельных труб без стыков. Допускается скрытая прокладка трубопроводов медицинских газов при соблюдении следующих условий: - ввод и горизонтальная прокладка труб внутри помещения с точками потребления медгазов осуществляется только в промежутке, расположенном на высоте от 200 до 500 мм ниже потолка, с вертикальными опусками непосредственно к точкам потребления; - участки скрытой проводки должны быть из цельных труб без стыков. Переход трубопроводов медгазов в коридорах с одной стены на противоположную, а также из коридора в палаты может осуществляться выше подшивных несъемных потолков коридоров и припалатных санузлов в межпотолочном пространстве с креплением их к перекрытию. При этом трубопроводы, проходящие в межпотолочном пространстве, должны быть из цельных труб без стыков. |
Комментарий:
На
рисунке 80 представлен пример схемы прокладки трубопроводов медицинских газов от магистралей в коридоре через санузел с вводом в помещение и скрытой подводкой к потребителю (настенная консоль или газовая розетка).
Рисунок 80 - Схема прокладки трубопроводов медгазов
от магистралей в коридоре через санузел с вводом в помещение
и скрытой подводкой к потребителю (настенная консоль
или газовая розетка)
7.4.8.13 В местах потребления медицинских газов следует устанавливать: - настенные газовые клапаны на высоте 1400 - 1600 мм от пола; - настенные панели (консоли) на высоте 1400 - 1600 мм от пола с установленными в них газовыми клапанами; - потолочные панели (консоли) с установленными в них газовыми клапанами. Контрольно-отключающее оборудование на трубопроводах медгазов следует устанавливать на высоте 1500 - 1600 мм от пола. |
Комментарий:
Поэтажные контрольно-отключающие коробки, устанавливаемые в коридорах (холлах), могут быть наружного и встроенного исполнения.
На
рисунке 81 представлен вариант монтажа контрольно-отключающей коробки наружного исполнения с опусками трубопроводов медгазов, проложенными открыто по стене и зашитыми гипсокартоном.
Рисунок 81 - Вариант монтажа контрольно-отключающей коробки
наружного исполнения с открытыми опусками
трубопроводов медгазов
На
рисунке 82 представлен вариант монтажа контрольно-отключающей коробки встроенного исполнения с опусками трубопроводов медгазов, проложенными скрыто в подготовке стены.
Рисунок 82 - Вариант монтажа контрольно-отключающей коробки
внутреннего исполнения со скрытыми опусками
трубопроводов медгазов
7.4.8.4 Узел управления следует монтировать на стене. В конструкции узла управления предусматривается контрольно-измерительная и запорная арматура. Далее от узла управления медгазы по стоякам и ответвлениям на каждом этаже здания подаются к точкам потребления. |
Комментарий:
Стояки труб медгазов монтируются в нишах МГ, размерами не менее 800 x 500 мм для удобства монтажа. Ниши закрываются дверями высотой не менее 2000 мм с отверстиями для вентиляции в нижней и верхней частях.
В местах, где в нишу встроены контрольно-отключающие коробки, двери предусматриваются со стеклом для визуального контроля за контрольно-отключающими приборами (300 x 300 мм на уровне 1500 мм от пола до нижнего края стекла).
На
рисунках 83 и
84 представлены примерная схема исполнения ниши для стояков медгазов со встроенной в нее контрольно-отключающей коробкой внутреннего исполнения и схема разреза ниши для стояков медицинских газов.
Рисунок 83 - Примерная схема исполнения ниши для стояков МГ
со встроенной в нее контрольно-отключающей коробкой
внутреннего исполнения
Рисунок 84 - Схема разреза ниши для стояков медгазов
7.4.9.7 Крепление трубопроводов к стене должно осуществляться хомутами или специальными комплектами деталей крепежа. |
Комментарий:
На
рисунках 85 и
86 представлены схемы вариантов крепления трубопроводов медицинских газов к стене и перекрытию.
Рисунок 85 - Схема варианта крепления трубопроводов медгазов
к стене или перекрытию
Рисунок 86 - Схема варианта крепления трубопроводов медгазов
к стене или перекрытию
7.4.9.9 В местах прохождения через перекрытия, стены и перегородки трубы закладывают в защитные футляры (гильзы) из водогазопроводных труб по ГОСТ 3262. Края футляра (гильзы) следует располагать в одном уровне с поверхностью стен, перегородок и потолков и на 50 мм выше уровня чистого пола помещений. Пространство между трубой и футляром заделывают специальными сертифицированными материалами, предотвращающими распространение продуктов горения по каналам и трубопроводам. |
Комментарий:
На
рисунке 87 представлена схема прохода труб медицинских газов через стены и перекрытия.
Рисунок 87 - Схема прохода труб медгазов через стены
и перекрытия
9.4 Электротехнические устройства
7.7.1.1 Классификация медицинских помещений по электробезопасности. Для целей электробезопасности медицинские помещения подразделяют по типу проводимых процедур и используемого медицинского оборудования: Группа 0: Медицинское помещение, в котором не применяются медицинские аппараты с электрическими контактирующими частями. Группа 1: Медицинское помещение, в котором контактирующие части предполагается применять наружно или внутренне, за исключением случаев, относящихся к группе 2. Группа 2: Медицинские помещения, в которых есть опасность микрошока для пациента при использовании медицинского аппарата с контактирующими частями при хирургических операциях, внутрисердечных и других процедурах, или когда прекращение (сбой) электроснабжения представляет опасность для жизни пациента. |
Комментарий:
Подразделения помещений различных классов и групп безопасности приведены в
СП 158.13330.2014.
В медицинских помещениях группы 1 выполнение дополнительной системы уравнивания потенциалов требуется только для опасных и особо опасных помещений (по классификации ПУЭ).
ПУЭ
П. 1.1.13. В отношении опасности поражения людей электрическим током различаются:
1. Помещения без повышенной опасности, в которых отсутствуют условия, создающие повышенную или особую опасность (см.
п. 2 и
3).
2. Помещения с повышенной опасностью, характеризующиеся наличием в них одного из следующих условий, создающих повышенную опасность:
а) сырости или токопроводящей пыли (см.
1.1.8 и
1.1.11);
б) токопроводящих полов (металлические, земляные, железобетонные, кирпичные и т.п.);
в) высокой температуры (см.
1.1.10);
г) возможности одновременного прикосновения человека к имеющим соединение с землей металлоконструкциям зданий, технологическим аппаратам, механизмам и т.п. с одной стороны и к металлическим корпусам электрооборудования - с другой.
3. Особоопасные помещения, характеризующиеся наличием одного из следующих условий, создающих особую опасность:
а) особой сырости (см.
1.1.9);
б) химически активной или органической среды (см.
1.1.12);
в) одновременно двух или более условий повышенной опасности (см.
п. 2).
В медицинских помещениях группы 2 (операционные, предоперационные, наркозные, палаты интенсивной терапии и т.п.) выполнение дополнительной системы уравнивания потенциалов (ДСУП) обязательно, схема приведена на
рисунке 88.
Рисунок 88 - Выполнение ДСУП в помещениях группы 2
Для подключения передвижной и переносной медицинской аппаратуры используются клеммы заземления, расположенные на консолях и операционных щитках.
Расположение шины дополнительной системы уравнивания потенциалов выбирается исходя из конструктивных особенностей применяемых ограждающих конструкций помещения группы 2 и технических особенностей токопроводящего покрытия пола. В любом случае все разъемные соединения должны быть доступны для плановых осмотров. Для этих целей могут быть использованы специальные лючки и съемные элементы стен или потолка. Прокладка открыто по стенам или облицовочным панелям не допускается. Примеры установки шины дополнительной системы уравнивания потенциалов приведены на
рисунках 89,
90.
Рисунок 89 - Пример установки шины дополнительной системы
уравнивания потенциалов в запотолочном пространстве
и присоединения токопроводящего напольного покрытия
Рисунок 90 - Пример установки шины дополнительной системы
уравнивания потенциалов у пола и присоединения
токопроводящего напольного покрытия
7.7.1.2.1 По допустимому времени перерыва электроснабжения медицинские помещения группы 1 и 2 подразделяются на пять классов безопасности (таблица 7.9). |
Пять классов безопасности по допустимому времени перерыва электроснабжения |
| Класс безопасности | Характеристика переключения на резервный источник питания | |
Класс 0 (безобрывное переключение) | Автоматическое переключение на резервный источник без прерывания электроснабжения |
Класс 0,15 (очень быстрое переключение) | Автоматическое переключение на резервный источник с временем переключения не более 0,15 с |
Класс 0,5 (быстрое переключение) | Автоматическое переключение на резервный источник с временем переключения не более 0,5 с |
Класс 15 (среднее время переключения) | Автоматическое переключение на резервный источник с временем переключения не более 15 с |
Класс >15 (большое время переключения) | Автоматическое переключение на резервный источник с временем переключения более 15 с |
|
Комментарий:
Подразделение помещений на различные классы и группы безопасности приведены в
СП 158.13330.2014.
Надежность электроснабжения потребителей "Особая группа I категории. Класс 0" (безобрывное переключение) обеспечивается включением в схему электроснабжения источников бесперебойного питания (с системой резервирования N + 1).
Надежность электроснабжения потребителей "Особая группа I категории. Класс 0,5" (автоматическое переключение на резервный источник с временем переключения не более 0,5 с) обеспечивается включением в схему источников бесперебойного питания (с системой резервирования N + 1, учитывая практическую невозможность обеспечить требуемое время переключением АВР и запуском ДГУ). Структурная схема электроснабжения потребителей "Особая группа I категории. Класс 0 и класс 0,5" приведена на
рисунке 91.
Рисунок 91 - Структурная схема электроснабжения потребителей
"Особая группа I категории. Класс 0 и Класс 0,5"
Надежность электроснабжения потребителей "Особая группа I категории. Класс > 15" (автоматическое переключение на резервный источник с временем переключения более 15 с), так же как и потребителей "Особая группа I категории. Класс 15" (автоматическое переключение на резервный источник с временем переключения не более 15 с) обеспечивается только подключением к панелям вводно-распределительных устройств с третьим независимым вводом с питанием от ДГУ без включения в схему источников бесперебойного питания. Структурная схема электроснабжения потребителей "Особая группа I категории. Класс 15 и класс > 15" приведена на
рисунке 92.
Рисунок 92 - Структурная схема электроснабжения потребителей
"Особая группа I категории. Класс 15 и класс > 15"
Надежность электроснабжения потребителей I и II категорий обеспечивается в соответствии с требованиями ПУЭ.
7.7.1.4.1 На участке медицинской организации все электрические сети, включая сети наружного освещения, как правило, выполняются кабельными. Рекомендации по проектированию взаиморезервирующих кабельных линий (основной и резервной) приведены в [33]. 7.7.1.4.2 Не рекомендуется рекламная или декоративная подсветка фасадов, создающая дискомфорт пациентам и мешающая работе персонала. |
Комментарий:
Для освещения территории необходимо применять светильники с экономичными светодиодными лампами. Управление наружным освещением предусматривать автоматическим и дистанционным из диспетчерского пункта медицинского учреждения. Подключение к сетям "Горсвет" не рекомендуется, в связи с отличиями режимов работы наружного освещения медицинских учреждений от городского освещения.
7.7.2.1.1 Общее и местное освещение лечебно-диагностических помещений выполняют осветительными приборами с разрядными источниками света и другими источниками света с использованием ламп по спектру цветоизлучения "естественно-белый" с характеристиками по цветовой температуре и интенсивности ультрафиолетового излучения в соответствии с действующими санитарно-эпидемиологическими нормами. Источники света по цветовым характеристикам должны соответствовать требованиям СП 52.13330. Дополнительные критерии энергоэффективности для выбора светильников со светодиодами следующие: - габаритная яркость у светового прибора должна быть не более 2000 кд/м2; - единичная мощность светодиода должна быть в пределах 0,25 - 0,5 Вт; - показатель энергоэффективности светильника, в конструкцию которого входит один или несколько светодиодов, должен быть не менее 85 лм/Вт. |
Комментарий:
Светодиодное освещение в нашей стране, как наиболее экономически эффективное на данном этапе развития техники, получило широкое распространение. Для безопасного применения светодиодного осветительного оборудования следует соблюдать нормативные требования как к искусственному освещению, так и к самим светодиодным светильникам с целью исключения применения некачественного оборудования, массово заполонившего рынок светотехнического оборудования в настоящее время.
Согласно
п. 3.1.5 СанПиН 2.2.1/2.1.1.1278-03 (с изменениями и дополнениями, введенными СанПиН 2.2.1/2.1.1.2585-10), "для общего и местного искусственного освещения следует использовать источники света с цветовой коррелированной температурой от 2400 °К до 6800 °К.
Интенсивность ультрафиолетового излучения в диапазоне длин волн 320 - 400 нм не должна превышать 0,03 Вт/м; наличие в спектре излучения длин волн менее 320 нм не допускается. Световые приборы для общего и местного освещения, предназначенные к эксплуатации со светодиодами, должны иметь защитный угол, исключающий попадание в поле зрения прямого излучения. Осветительные установки, независимо от используемых источников света и световых приборов, должны обеспечивать нормативные требования к общему искусственному освещению, изложенные в
таблицах 1 и
2.
В учреждениях дошкольного, школьного и профессионально-технического образования, а также в основных функциональных помещениях лечебно-профилактических учреждений следует применять разрядные лампы и лампы накаливания".
Вместе с тем согласно
статье 1 Федерального закона "О санитарно-эпидемиологическом благополучии населения" от 30.03.1999 N 52-ФЗ:
Санитарно-эпидемиологические требования - обязательные требования к обеспечению безопасности и (или) безвредности для человека факторов среды обитания, условий деятельности юридических лиц и граждан, в том числе индивидуальных предпринимателей, используемых ими территорий, зданий, строений, сооружений, помещений, оборудования, транспортных средств, несоблюдение которых создает угрозу жизни или здоровью человека, угрозу возникновения и распространения заболеваний и которые устанавливаются государственными санитарно-эпидемиологическими правилами и гигиеническими нормативами (далее - санитарные правила), а в отношении безопасности продукции и связанных с требованиями к продукции процессов ее производства, хранения, перевозки, реализации, эксплуатации, применения (использования) и утилизации, которые устанавливаются документами, принятыми в соответствии с международными договорами Российской Федерации, и техническими регламентами".
Согласно
статье 1 Федерального закона от 27.12.2002 N 184-ФЗ "О техническом регулировании" светильники, а также здания и сооружения, где они устанавливаются, являются продукцией. Указанный закон регулирует отношения, связанные с разработкой, принятием, применением и исполнением санитарно-эпидемиологических требований к продукции и связанным с требованиями к продукции процессам проектирования (включая изыскания), производства, строительства, монтажа, наладки, эксплуатации, хранения, перевозки, реализации и утилизации.
В соответствии с
письмом N 01/11157-12-32 от 01.10.2012 г. руководителя Федеральной службы по надзору в сфере защиты прав потребителей и благополучия человека Г.Г. Онищенко, при использовании в системах общего освещения в общественных зданиях допускается применение светильников со светодиодами при обеспечении ряда качественных и количественных показателей светильников со светодиодами.
Таким образом, запрет на использование светодиодных светильников в основных функциональных помещениях лечебно-профилактических учреждений, содержащийся в
СанПиН 2.2.1/2.1.1.1278-03, противоречит положениям
N 52-ФЗ и
N 184-ФЗ. Согласно этим законам санитарные правила должны устанавливать критерии санитарной безопасности светильников (интенсивность, цветовая температура и т.п.), и не могут предъявлять требования к продукции, в том числе к запрету использования отдельных ее видов или применяемых в ней технологий. При пересмотре санитарных правил целесообразно привести их положения в соответствие законодательству РФ.
7.7.2.2.1 В операционных (в том числе ангиографических и эндоскопических), палатах интенсивной терапии, реанимационных залах и послеоперационных палатах питание электромедицинской аппаратуры, как правило, выполняется от специального разделительного трансформатора с изолированной, симметричной относительно земли, вторичной обмоткой напряжением не более 250 В, с устройством контроля изоляции и защиты вторичных цепей трансформатора от перегрузки и замыканий. |
Комментарий:
В помещениях группы 2 питание электромедицинской аппаратуры, как правило, выполняется от специального "медицинского" разделительного трансформатора с изолированной, симметричной относительно земли, вторичной обмоткой напряжением не более 250 В. Медицинские трансформаторы, для предотвращения электрического пробоя между обмотками, должны быть выполнены с заземленным экраном между первичной и вторичной обмотками или разнесенными обмотками по магнитопроводу.
На вводе в электроустановку здания должно быть выполнено повторное заземление. Величина нормируемого сопротивления заземлителей определяется по допустимому напряжению прикосновения в медицинских помещениях группы 2 в 25 В. |
Комментарий:
На вводе в электроустановку здания должно быть выполнено повторное заземление. Величина нормируемого сопротивления заземлителей определяется по допустимому напряжению прикосновения в медицинских помещениях 1-й (только для опасных и особо опасных помещений) и 2-й групп в 25 В или по требованию заводов - изготовителей медицинского оборудования обычно не превышает 2 Ом.
Для медицинских помещений группы 2 электрическое сопротивление проводников, включая сопротивление соединений между зажимами защитного проводника штепсельных розеток или стационарного оборудования или любых сторонних проводящих частей и шины уравнивания потенциалов, не должно превышать 0,2 Ом.
9.5 Автоматизация и диспетчеризация инженерных систем
7.3.1 В медицинских организациях автоматизации подлежат следующие инженерные системы: лечебного газоснабжения; отопления и теплоснабжения; водоснабжения и канализации; вентиляции и кондиционирования воздуха; холодоснабжения; электроснабжения. |
Комментарий:
В медицинских организациях автоматизации и диспетчеризации подлежат следующие инженерные системы:
- лечебного газоснабжения;
- отопления, теплоснабжения и холодоснабжения;
- водоснабжения и канализации;
- вентиляции и кондиционирования воздуха;
- холодоснабжения;
- электроснабжения;
- тепловых завес;
- систем противопожарной защиты и устройств пожаротушения;
- лифтового оборудования.
7.3.2 Автоматизированную систему диспетчерского управления (АСДУ) следует предусматривать для больничных комплексов и родильных домов на 100 и более коек. Необходимость и объем диспетчеризации инженерного оборудования в организациях меньшей мощности определяется заданием на проектирование. Проектирование АСДУ приведено в [34]. Допускается выход из помещений АСДУ в помещения. |
Комментарий:
Система автоматизации должна обеспечивать программное управление инженерными системами здания, автоматическое поддержание заданных значений параметров технологических систем, защиту от аварийных ситуаций, технологическую и аварийную сигнализацию отклонения от нормального режима работы инженерно-технических систем, если такие отклонения могут вызвать опасность для жизни людей, порчу оборудования, зданий, сооружений и других материальных ценностей.
7.3.3 В медицинских организациях АСДУ должна обеспечивать централизованный контроль и управление инженерными системами зданий в автоматическом и дистанционном режимах, предоставлять возможность оперативного вмешательства в функционирование инженерного оборудования диспетчерской службе путем изменения заданных установок параметров или путем перехода в дистанционный режим управления от рабочего стола диспетчера. В помещениях операционных залов следует предусматривать установку панелей дистанционного управления и индикации параметров работы систем вентиляции, кондиционирования воздуха и системы электроснабжения. |
Комментарий:
В медицинских организациях система диспетчеризации инженерных систем (система диспетчерского управления и сбора данных) должна обеспечивать:
- сбор данных о состоянии инженерного оборудования от контроллеров щитов локальной автоматики;
- визуальное отображение процессов, происходящих с инженерным оборудованием здания;
централизованный контроль и дистанционное управление инженерными системами зданий;
- возможность оперативного вмешательства в функционирование инженерного оборудования диспетчерской службы путем изменения заданных уставок параметров.
Проектирование системы диспетчеризации следует выполнять по требованиям
СП 31.110.
7.3.4 В диспетчерском пункте, а при его отсутствии - в помещении дежурного технического персонала необходимо установить аварийную сигнализацию отклонения от нормального режима работы инженерно-технических систем, если такие отклонения могут вызвать опасность для жизни людей, порчу оборудования, зданий, сооружений и других материальных ценностей. |
Комментарий:
Диспетчерский пункт с автоматизированным рабочим местом и монитором для контроля и управления инженерными системами расположить в помещении с круглосуточным пребыванием персонала.
В операционных следует предусматривать установку панелей дистанционного управления и индикации параметров работы систем вентиляции, кондиционирования воздуха и системы электроснабжения.
7.3.5 При возникновении пожара по сигналу систем пожарной сигнализации, оповещения и управления эвакуацией людей необходимо предусматривать отключение приточно-вытяжной вентиляции, включение систем противодымной вентиляции и подпора воздуха, управление противопожарными клапанами в соответствии с требованиями СП 7.13130. |
Комментарий:
При возникновении пожара по сигналу систем пожарной сигнализации, оповещения и управления эвакуацией людей необходимо предусматривать отключение приточно-вытяжной вентиляции, включение систем противодымной вентиляции и подпора воздуха, управление противопожарными клапанами в соответствии с требованиями
СП 7.13130 и перевод лифтов в режим "Пожарная опасность".
С целью сохранения работоспособности системы защиты от замораживания отключение щитов автоматизации вентиляционных систем при этом не предусматривается.
Система диспетчеризации лифтов должна обеспечивать прямую переговорную связь между диспетчерским пунктом и основным посадочным этажом в режиме работы лифта "перевозка пожарных подразделений".
Типовая структурная схема автоматизации и диспетчеризации инженерных систем приведена на
рисунке 93.
Рисунок 93 - Типовая структурная схема автоматизации
и диспетчеризации инженерных систем
7.3.6 При возникновении пожара автоматические раздвижные двери (в операционных и других технологически необходимых случаях) должны переключаться на ручное управление с возможностью блокировки в открытом состоянии для беспрепятственного выхода на путь эвакуации. |
Комментарий:
При возникновении пожара автоматические раздвижные двери (в операционных и других технологически необходимых случаях) должны переключаться на ручное управление с возможностью блокировки в открытом состоянии для беспрепятственного выхода на путь эвакуации.
Подпорные системы, подающие воздух в безопасные зоны, должны быть предусмотрены с электрическими воздухонагревателями, включаемыми совместно с вентиляторами при температуре воздуха в воздуховоде менее 18 °C.
Система приточной противодымной вентиляции, подающая воздух в зону пожарной безопасности, должна иметь 2 режима работы.
1) Этап перемещения людей в/из ПБЗ - дверь в коридор открыта.
Вентиляторы систем с электрическим подогревом приточного воздуха включены.
Вентиляторы без подогрева включены.
2) Этап ожидания людьми пожарных подразделений - дверь в коридор закрыта.
Вентиляторы систем с электрическим подогревом приточного воздуха включены.
Вентиляторы без подогрева выключены.
Включение/выключение вентиляторов происходит в зависимости от положения двери из коридора в зону пожарной безопасности.
Типовая схема автоматизации систем кондиционирования приведена на
рисунке 94.
Рисунок 94 - Типовая схема автоматизации систем
кондиционирования
10 Требования пожарной безопасности
Комментарий:
Согласно
п. 5.4.19 СП 2.13130 пределы огнестойкости конструкций переходов между зданиями (корпусами) определенной степени огнестойкости должны соответствовать требованиям, предъявляемым к соответствующим конструкциям зданий этой степени огнестойкости. При разных степенях огнестойкости зданий (корпусов), соединяемых переходом, конструкции переходов должны соответствовать требованиям, предъявляемым к конструкциям зданий более высокой степени огнестойкости. Переходы должны выполняться из материалов НГ.
Коммуникационные, в том числе пешеходные, тоннели следует проектировать из материалов НГ.
Для зданий одного класса функциональной пожарной опасности, соединенных переходами и тоннелями, стены зданий в местах примыкания к ним переходов и тоннелей следует предусматривать из материалов НГ с пределом огнестойкости не менее EI 120. Двери в проемах этих стен должны быть противопожарными 1-го типа. В случае, если общая площадь этажей зданий одного класса функциональной пожарной опасности, соединенных переходами, не превышает допустимой площади этажа в пределах пожарного отсека, данные мероприятия допускается не предусматривать. Для зданий различного класса функциональной пожарной опасности, соединенных переходами, одну из стен зданий, в местах примыкания к ним переходов и тоннелей, следует предусматривать в виде противопожарных преград согласно положениям
СП 4.13130. Таким образом, требуемая степень огнестойкости переходов между зданиями определяется по степени огнестойкости здания с более высокой степенью огнестойкости.
Рисунок 95 - Пример перехода между корпусами больницы
Рисунок 96 - Пример перехода между корпусами больницы
8.1.1.3 Для зданий медицинских организаций с круглосуточным пребыванием пациентов (класса Ф1.1) должны применяться системы наружного утепления класса пожарной опасности К0 [4]. |
Комментарий:
Строительные конструкции по пожарной опасности подразделяются на следующие классы:
1) непожароопасные (К0);
2) малопожароопасные (К1);
3) умереннопожароопасные (К2);
4) пожароопасные (К3).
Класс пожарной опасности строительных конструкций определяется в соответствии с
таблицей 6 приложения к Федеральному закону
[2].
Численные значения критериев отнесения строительных конструкций к определенному классу пожарной опасности определяются в соответствии с методами, установленными нормативными документами по пожарной безопасности.
Согласно
п. 5.2.3 СП 2.13130, класс пожарной опасности (в том числе возможность распространять горение) конструкций наружных стен с внешней стороны с применением фасадных теплоизоляционных композиционных систем с наружными штукатурными слоями ФТКС и навесных фасадных систем с воздушным зазором НФС определяют при проведении огневых испытаний по
ГОСТ 31251.
В зданиях и сооружениях I - III степеней огнестойкости, кроме малоэтажных жилых домов, не допускается выполнять отделку (в случае использования штучных материалов - облицовку) внешних поверхностей наружных стен из материалов групп горючести Г2 - Г4, а для зданий классов функциональной пожарной опасности Ф1.1 и Ф4.1 должны применяться фасадные системы класса К0 с применением негорючих материалов облицовки, отделки и теплоизоляции.
Таким образом, возможность использования различных фасадных систем определяется степенью огнестойкости и классом функциональной пожарной опасности зданий. В зданиях медицинских учреждений с круглосуточным пребыванием пациентов (Ф1.1) использование любых фасадных систем, кроме класса К0, не допускается. Класс пожарной опасности используемых фасадных систем должен подтверждаться соответствующими испытаниями по
ГОСТ 31251.
8.1.1.4 В зданиях (пожарных отсеках) типа А (класса функциональной пожарной опасности Ф1.1), вне зависимости от этажности и высоты, декоративно-отделочные материалы стен и потолков: вестибюлей, лестничных клеток и лифтовых холлов должны соответствовать классу пожарной опасности КМ0; общих коридоров, холлов, фойе - не более КМ1. Покрытия полов вестибюлей, лестничных клеток и лифтовых холлов должны быть не более класса пожарной опасности КМ1. Покрытия полов в общих коридорах, холлах фойе должны быть не более класса пожарной опасности КМ2. В операционных, реанимационных палатах и залах для отделки стен, потолков и заполнения подвесных потолков не допускается применять материалы с пожарной опасностью более высокой, чем класс КМ2, материалы для покрытия пола с пожарной опасностью более высокой, чем класс КМ3. |
Комментарий:
Класс пожарной опасности строительных материалов определяется по
таблице 1 [
таблица 3,
2] в зависимости от групп пожарной опасности материалов, характеризующихся следующими свойствами:
1) горючестью;
2) воспламеняемостью;
3) способностью распространения пламени по поверхности;
4) дымообразующей способностью;
5) токсичностью продуктов горения.
Таблица 1
Классы пожарной опасности строительных материалов
Свойства пожарной опасности строительных материалов | Классы пожарной опасности строительных материалов в зависимости от групп |
КМ0 | КМ1 | КМ2 | КМ3 | КМ4 | КМ5 |
Горючесть | НГ | Г1 | Г1 | Г2 | Г3 | Г4 |
Воспламеняемость | - | В1 | В2 | В2 | В2 | В3 |
Дымообразующая способность | - | Д2 | Д2 | Д3 | Д3 | Д3 |
Токсичность | - | Т2 | Т2 | Т2 | Т3 | Т4 |
Распространение пламени | - | РП1 | РП1 | РП2 | РП2 | РП4 |
Классификация материалов по пожарной опасности определяется в соответствии со
статьей 13 [2].
Используемые материалы должны пройти процедуру подтверждения соответствия требованиям Федерального
закона [2] в форме обязательной сертификации.
Пример сертификата соответствия представлен на
рисунке 97.
Рисунок 97 - Пример сертификата соответствия
В соответствии с положениями
статьи 134 и
таблицы 28 Федерального закона
[2] в зданиях (пожарных отсеках) класса функциональной пожарной опасности Ф1.1, вне зависимости от этажности и высоты, декоративно-отделочные материалы стен и потолков: вестибюлей, лестничных клеток и лифтовых холлов должны соответствовать классу пожарной опасности КМ0; общих коридоров, холлов, фойе - не более КМ1.
Покрытия полов вестибюлей, лестничных клеток и лифтовых холлов должны быть не более класса пожарной опасности КМ1. Покрытия полов в общих коридорах, холлах, фойе должны быть не более класса пожарной опасности КМ2.
Таким образом, содержащиеся в
п. 8.1.1.4 указания носят общий характер, при выборе отделки помещений следует руководствоваться более детализованными положениями
статьи 134 и
таблицы 28 [2].
8.1.2 Классификация отделений и групп помещений по функциональной пожарной опасности. Деление на пожарные отсеки 8.1.2.1 Отделения больницы классифицируются по функциональной пожарной опасности следующим образом: Тип А - отделения, предназначенные для госпитализации или проживания (отделения реанимации и интенсивной терапии, отделение выхаживания новорожденных, родовые отделения, операционные отделения, приемные отделения, палатные отделения, жилые группы домов престарелых и интернатов для инвалидов и т.д.) (Ф1.1) [4]. Тип Б - отделения, предназначенные для посещения амбулаторными или стационарными пациентами (поликлиники, консультации, отделения диагностики, отделения восстановительного лечения, переливания крови, дневные стационары, отделения экстракорпорального оплодотворения и т.д.) (Ф3.4) [4]. Тип Е - отделения, в которые доступ пациентов не предусматривается: Тип Е1 - вспомогательные подразделения - клинико-диагностические лаборатории, патологоанатомические отделения, центральные стерилизационные отделения, внутрибольничные аптеки, медицинские архивы (Ф5.1 и Ф5.2) [4]. Тип Е2 - хозяйственные подразделения - пищеблоки, прачечные, дезинфекционные отделения, помещения хранения (центральные бельевые и др.), участки обработки отходов, эксплуатационные мастерские, закрытые стоянки автотранспорта (Ф5.1 и Ф5.2) [4]. Тип Е3 - административно-бытовые подразделения, клинические кафедры (администрация, конференц-залы, столовые персонала, гардеробные персонала и др.) (Ф4.2 и Ф4.3) [4]. |
Комментарий:
Классификация зданий, сооружений и пожарных отсеков по функциональной пожарной опасности осуществляется в соответствии со
статьей 32 [2].
Приведенная классификация уточняет классификацию зданий и пожарных отсеков по функциональной пожарной опасности, приведенную в
статье 32 [2], для целей проектирования зданий медицинского назначения, так как одной из характерных особенностей зданий медицинского назначения является то, что в одном здании или пожарном отсеке могут быть сосредоточены разнообразные функции.
Рисунок 98 - Пример компоновки медицинской организации
8.1.2.2 Не допускается размещать в составе зданий с круглосуточным пребыванием пациентов (с отделениями типа А) помещения, не связанные с лечебным процессом или с процессом обслуживания больных, посетителей и медицинского персонала. |
Комментарий:
Согласно
п. 5.1.1 СП 4.13130, "на объектах защиты жилого и общественного назначения могут размещаться части зданий, группы помещений или отдельные помещения различного функционального назначения с учетом требований настоящего свода правил к объектам защиты соответствующего класса функциональной пожарной опасности". Помещения различного функционального назначения в составе зданий с круглосуточным пребыванием пациентов (с отделениями типа А) должны быть предназначены для осуществления лечебно-диагностического процесса и для обслуживания больных, посетителей и персонала (лаборатории, диагностические и лечебные отделения, кафетерии и аптечные киоски для посетителей, центральные стерилизационные отделения, столовые для персонала и т.д.). При этом для выделения указанных помещений противопожарными преградами следует руководствоваться положениями
СП 158 и нормативными документами по пожарной безопасности
<1>. Не допускается размещение помещений, не связанных с этими функциями, например, городских прачечных, столовых и пр.
--------------------------------
<1> В соответствии с редакцией проекта изменений
СП 4.13130, подготовленной по результатам публичного обсуждения, части здания со спальными помещениями в детских дошкольных и образовательных учреждениях с круглосуточным пребыванием (интернаты), в специализированных домах престарелых и инвалидов, а также стационары больниц (кроме стационаров дневного пребывания) следует размещать в отдельных корпусах, блоках или частях здания, отделенных от других вспомогательных функциональных частей (культурно-досуговых, медицинских, спортивно-оздоровительных, предприятий питания и торговли, административно-хозяйственных, служб технической эксплуатации и т.п.) противопожарными стенами не ниже 2-го типа или перегородками 1-го типа, в зданиях IV степени огнестойкости - перегородками 2-го типа.
8.1.2.4 Степень огнестойкости, класс конструктивной пожарной опасности, допустимую высоту зданий и площадь этажа в пределах пожарного отсека для зданий с отделениями типа А следует принимать по таблице 8.1. |
| Степень огнестойкости здания | Класс конструктивной пожарной опасности | Количество коек | Допустимая высота здания, м | Площадь этажа в пределах пожарного отсека, м2 | |
I, II | С0 | Не ограничено | 28 | 4000 |
II | С1 | До 400 | 18 | 1500 |
III | С0 | До 200 | 18 | 1500 |
III | С1 | До 150 | 9 | 1000 |
| |
Комментарий:
Согласно положениям
п. 6.7.19 СП 2.13130 лечебные учреждения, в том числе входящие в состав зданий иного функционального назначения (школ, детских дошкольных учреждений, санаториев и т.п.), следует проектировать в соответствии со следующими требованиями:
- здания больниц (Ф1.1), амбулаторно-поликлинических учреждений (Ф3.4) следует проектировать не выше 28 м. Степень огнестойкости этих зданий должна быть не ниже II, класс конструктивной пожарной опасности - не ниже С0;
- здания стационаров высотой до трех этажей включительно необходимо разделять на пожарные секции площадью не более 1000 м2, выше трех этажей - на секции площадью не более 800 м2 противопожарными перегородками 1-го типа;
- лечебные корпуса психиатрических больниц и диспансеров должны быть высотой не более 9 м, не ниже II степени огнестойкости класса конструктивной пожарной опасности С0;
- в сельской местности здания лечебных учреждений на 60 и менее коек и амбулаторно-поликлинических учреждений на 90 посещений в смену допускается предусматривать с рублеными или брусчатыми стенами.
В связи с внутренней противоречивостью требований действующей редакции
СП 2.13130 <2> и несоответствием требований сводов правил добровольного применения
СП 158.13330 и
СП 2.13130 между собой, при проектировании зданий медицинских организаций степени огнестойкости ниже II и класса конструктивной пожарной опасности ниже С0 принятые проектные решения по обеспечению допустимых значений пожарного риска по Федеральному
закону [2] следует подтвердить расчетом, выполненным по
методике [5].
--------------------------------
<2> В соответствии с редакцией проекта
СП 2.13130, подготовленной по результатам публичного обсуждения, больницы (Ф1.1) следует размещать в отдельно стоящих зданиях или выделенных пожарных отсеках высотой не более 28 м. Степень огнестойкости больниц высотой 2 этажа и более должна быть не ниже II, класс конструктивной пожарной опасности - не ниже С0, одноэтажные больницы допускается проектировать III степени огнестойкости класса конструктивной пожарной опасности не ниже С1 с площадью этажа в пределах пожарного отсека не более 2000 м
2 для зданий класса С0 и не более 1200 м
2 для зданий класса С1. При этом стены, перегородки и перекрытия, в том числе с применением деревянных конструкций, должны иметь класс пожарной опасности К0.
Здания стационаров высотой до 3 этажей включительно необходимо разделять на пожарные секции площадью не более 1000 м2, выше 3 этажей и зданий класса С1 - на пожарные секции площадью не более 800 м2 противопожарными перегородками 1-го типа.
Лечебные корпуса психиатрических больниц и диспансеров должны быть высотой не более 9 м, не ниже II степени огнестойкости класса конструктивной пожарной опасности С0.
Дома для престарелых и инвалидов следует проектировать в соответствии с требованиями, предъявляемыми к больницам.
8.1.2.5 В отделениях типа А площадью этажа менее 4000 м2 для обеспечения горизонтальной эвакуации допускается выделять на этаже более одного пожарного отсека. |
Комментарий:
Допустимая площадь этажа пожарного отсека для зданий медицинских организаций класса Ф1.1 определяется согласно
таблице 6.9 СП 2.13130. Максимальная допустимая площадь пожарного отсека (с учетом ограничения высоты зданий по
п. 6.7.19) не должна превышать 4000 м
2. Вместе с тем, для обеспечения пожарной безопасности необходимо при проектировании учитывать требования
п. 6.7.19 СП 2.13130 по дополнительному делению площади пожарного отсека на секции.
Согласно
п. 6.7.19 СП 2.13130 зданий типа А (Ф1.1) высотой до 3 этажей включительно необходимо разделять на пожарные секции площадью не более 1000 м
2, выше 3 этажей - на секции площадью не более 800 м
2 противопожарными перегородками 1-го типа.
Согласно
пункту 27 статьи 2 Федерального закона
[2] пожарный отсек - часть здания и сооружения, выделенная противопожарными стенами и противопожарными перекрытиями или покрытиями, с пределами огнестойкости конструкции, обеспечивающими нераспространение пожара за границы пожарного отсека в течение всей продолжительности пожара. Таким образом, в случае наличия в здании двух и более пожарных отсеков соседний пожарный отсек может рассматриваться как безопасная зона при условии возможности размещения в нем, кроме собственного контингента, также эвакуирующихся маломобильных больных на средствах передвижения (кроватях, тележках для перевозки больных, креслах-колясках) в сопровождении персонала.
8.1.2.6 Размещать под палатами, а также в подвальных этажах зданий или пожарных отсеков с отделениями типа А помещения категорий В1 - В3, как правило, не допускается. При размещении в подвальных этажах помещений категорий В2 - В3 по пожарной опасности, их следует выделять стенами, противопожарным перекрытием 2-го типа и оборудовать автоматическими установками пожаротушения. |
Комментарий:
В соответствии с действующей
<3> редакцией
п. 5.2.4 СП 4.13130 помещения со спальными местами (групповые ячейки со спальнями, комнаты для проживания, больничные палаты и т.п.) на объектах класса Ф1.1 (тип А) следует размещать в отдельных блоках или частях здания, отделенных от частей здания другого назначения (административно-хозяйственных, бытовых, технических и др.) противопожарными стенами не ниже 2-го типа и перекрытиями не ниже 3-го типа (в зданиях I степени огнестойкости - перекрытиями 2-го типа). Размещать под спальными помещениями, актовыми залами, а также в подвальных этажах помещения категорий В1 - В3 не допускается.
--------------------------------
<3> В соответствии с редакцией проекта изменений
СП 4.13130, подготовленной по результатам публичного обсуждения, под зрительными и актовыми залами, а также в подвальных этажах зданий класса Ф1.1, спальных корпусов санаториев и медицинских реабилитационных центров не допускается размещать помещения производственного и складского назначения, за исключением помещений категорий В4 и Д по пожарной опасности и помещений, допускаемых к размещению по процессу деятельности зданий согласно
СП 118.13330 и других нормативных документов, исходя из вида объекта защиты.
Таким образом, в соответствии с действующей редакцией
СП 4.13130 размещение под спальными помещениями, актовыми залами помещений категории В1 - В3 (даже при выделении их противопожарными преградами) не допускается, в случае отступления принятые проектные решения по обеспечению допустимых значений пожарного риска по Федеральному
закону [2] следует подтвердить расчетом, выполненным по
методике [5].
8.1.2.7 Размещаемые в зданиях медицинских организаций помещения производственного, складского и технического назначения (мастерские, лаборатории, кладовые, инженерно-технические помещения, автостоянки, котельные и т.п.) подлежат категорированию по взрывопожарной и пожарной опасности в соответствии с СП 12.13130. |
Комментарий:
Классификация зданий и помещений по взрывопожарной и пожарной опасности применяется для установления требований пожарной безопасности, направленных на предотвращение возможности возникновения пожара и обеспечение противопожарной защиты людей и имущества в случае возникновения пожара.
По взрывопожарной и пожарной опасности помещения подразделяются на категории А, Б, В1 - В4, Г и Д, а здания - на категории А, Б, В, Г и Д.
Категории помещений и зданий определяются, исходя из вида находящихся в помещениях горючих веществ и материалов, их количества и пожароопасных свойств, а также, исходя из объемно-планировочных решений помещений и характеристик проводимых в них технологических процессов.
Категории помещений по взрывопожарной и пожарной опасности принимаются в соответствии с
таблицей 2.
Таблица 2
Категории помещений по взрывопожарной и пожарной опасности
Категория помещения | Характеристика веществ и материалов, находящихся (обращающихся) в помещении |
А Повышенная взрывопожароопасность | Горючие газы, легковоспламеняющиеся жидкости с температурой вспышки не более 28 °C в таком количестве, что могут образовывать взрывоопасные парогазовоздушные смеси, при воспламенении которых развивается расчетное избыточное давление взрыва в помещении, превышающее 5 кПа, и (или) вещества и материалы, способные взрываться и гореть при взаимодействии с водой, кислородом воздуха или друг с другом, в таком количестве, что расчетное избыточное давление взрыва в помещении превышает 5 кПа |
Б взрывопожароопасность | Горючие пыли или волокна, легковоспламеняющиеся жидкости с температурой вспышки более 28 °C, горючие жидкости в таком количестве, что могут образовывать взрывоопасные пылевоздушные или паровоздушные смеси, при воспламенении которых развивается расчетное избыточное давление взрыва в помещении, превышающее 5 кПа |
В1 - В4 пожароопасность | Горючие и трудногорючие жидкости, твердые горючие и трудногорючие вещества и материалы (в том числе пыли и волокна), вещества и материалы, способные при взаимодействии с водой, кислородом воздуха или друг с другом только гореть, при условии, что помещения, в которых они находятся (обращаются), не относятся к категории А или Б |
Г умеренная пожароопасность | Негорючие вещества и материалы в горячем, раскаленном или расплавленном состоянии, процесс обработки которых сопровождается выделением лучистого тепла, искр и пламени, и (или) горючие газы, жидкости и твердые вещества, которые сжигаются или утилизируются в качестве топлива |
Д пониженная пожароопасность | Негорючие вещества и материалы в холодном состоянии |
Примечания: 1 Методы определения категорий помещений А и Б устанавливаются в соответствии с приложением А. 2 Отнесение помещения к категории В1, В2, В3 или В4 осуществляется в зависимости от количества и способа размещения пожарной нагрузки в указанном помещении и его объемно-планировочных характеристик, а также от пожароопасных свойств веществ и материалов, составляющих пожарную нагрузку. Разделение помещений на категории В1 - В4 регламентируется положениями в соответствии с приложением Б. |
Определение категорий помещений следует осуществлять путем последовательной проверки принадлежности помещения к категориям, приведенным в
таблице 1, от наиболее опасной (А) к наименее опасной (Д).
8.1.2.8 Встраивание и пристраивание к объектам медицинского назначения автостоянок, котельных, трансформаторных и других инженерно-технических сооружений следует осуществлять в соответствии с разделом 6 СП 4.13130, а также других действующих нормативных документов. |
Комментарий:
В соответствии с редакцией проекта изменений
СП 4.13130, подготовленной по результатам публичного обсуждения, устанавливаются следующие требования применительно к объектам защиты класса Ф1.1:
- размещаемые на объектах класса Ф1.1 части здания или помещения производственного, складского, инженерно-технического назначения следует выделять противопожарными преградами в соответствии с
5.1.2, согласно положениям которого пожароопасные помещения, кроме помещений категорий В4 и Д, следует отделять от других помещений и коридоров в зданиях I, II и III-й степеней огнестойкости - противопожарными перегородками 1-го типа, в зданиях IV степени огнестойкости - перегородками 2-го типа, если иное не оговорено требованиями других нормативных документов для соответствующих видов объектов защиты;
- встраивание и пристраивание котельных к зданиям функциональной пожарной опасности Ф1.1 не предусматривается. В случае отступления принятые проектные решения по обеспечению допустимых значений пожарного риска по
[2], следует подтвердить расчетом, выполненным по
методике [5].
8.1.2.10 Отделения типа Е, за исключением некатегорируемых помещений, помещений категорий В4 и Д, следует выделять противопожарными стенами не ниже 2-го типа (перегородками 1-го типа) и перекрытиями не ниже 3-го типа (в зданиях I степени огнестойкости - перекрытиями 2-го типа). |
Комментарий:
В соответствии с действующими
<4> требованиями
пунктов 5.2.4,
5.2.6 СП 4.13130 помещения со спальными местами (групповые ячейки со спальнями, комнаты для проживания, больничные палаты и т.п.) на объектах класса Ф1.1 следует размещать в отдельных блоках или частях здания, отделенных от частей здания другого назначения (административно-хозяйственных, бытовых, технических и др.) противопожарными стенами не ниже 2-го типа и перекрытиями не ниже 3-го типа (в зданиях I степени огнестойкости - перекрытиями 2-го типа).
--------------------------------
<4> В соответствии с редакцией проекта изменений
СП 4.13130, подготовленной по результатам публичного обсуждения, стационары больниц (кроме стационаров дневного пребывания) следует размещать в отдельных корпусах, блоках или частях здания, отделенных от других вспомогательных функциональных частей (культурно-досуговых, медицинских, спортивно-оздоровительных, предприятий питания и торговли, административно-хозяйственных, служб технической эксплуатации и т.п.) противопожарными стенами не ниже 2-го типа или перегородками 1-го типа, в зданиях IV степени огнестойкости - перегородками 2-го типа.
Размещаемые на объектах класса Ф1.1 части здания или помещения производственного, складского, инженерно-технического назначения следует выделять противопожарными преградами в соответствии с
5.1.2, согласно положениям которого, пожароопасные помещения, кроме помещений категорий В4 и Д, следует отделять от других помещений и коридоров в зданиях I, II и III-й степеней огнестойкости - противопожарными перегородками 1-го типа, в зданиях IV степени огнестойкости - перегородками 2-го типа, если иное не оговорено требованиями других нормативных документов для соответствующих видов объектов защиты.
Предусматриваемые в составе объектов класса Ф1.1 пищеблоки, а также части зданий, группы помещений, либо отдельные помещения производственного, складского и технического назначения (прачечные, гладильные, мастерские, кладовые, электрощитовые т.д.), за исключением помещений категорий В4 и Д, следует выделять противопожарными стенами не ниже 2-го типа (перегородками 1-го типа) и перекрытиями не ниже 3-го типа (в зданиях I степени огнестойкости - перекрытиями 2-го типа).
8.1.3 Требования к зонам зданий по функциональной пожарной опасности |
Комментарий:
Для отделения помещений, частей зданий различного функционального назначения и пожарной опасности друг от друга применяются противопожарные преграды. Наименования, типология и соответствующие пределы огнестойкости, а также типы заполнения проемов в противопожарных преградах установлены в
таблице 3 [
таблица 23,
2].
Наименование противопожарных преград | Тип противопожарных преград | Предел огнестойкости противопожарных преград | Тип заполнения проемов в противопожарных преградах | Тип тамбур-шлюза |
Стены | 1 | REI 150 | 1 | 1 |
2 | REI 45 | 2 | 2 |
Перегородки | 1 | EI 45 | 2 | 1 |
2 | EI 15 | 3 | 2 |
Светопрозрачные перегородки с остеклением площадью свыше 25 процентов | 1 | EIW 45 | 2 | 1 |
2 | EIW 15 | 3 | 2 |
Перекрытия | 1 | REI 150 | 1 | 1 |
2 | REI 60 | 1 | 1 |
3 | REI 45 | 1 | 1 |
4 | REI 15 | 1 | 1 |
8.1.3.1 Отделения типа А следует размещать в отдельных блоках или частях здания, отделенных от отделений других типов противопожарными стенами не ниже 2-го типа и перекрытиями не ниже 3-го типа (в зданиях I степени огнестойкости - перекрытиями 2-го типа). 8.1.3.3 Отделения типов Б и Е, располагаемые в составе пожарного отсека с отделениями типа А, следует выделять противопожарными стенами не ниже 2-го типа (перегородками 1-го типа) и перекрытиями не ниже 3-го типа (в зданиях I степени огнестойкости - перекрытиями 2-го типа). 8.1.3.4 Предусматриваемые в зданиях с отделениями типа А залы лечебной физкультуры, конференц-залы, кафетерии и другие помещения, предназначенные более чем для 50 чел., следует выделять противопожарными перегородками 1-го типа и перекрытиями 3-го типа и подключать к объектовой системе оповещения и управления эвакуацией. |
Комментарий:
В соответствии с действующими
<5> требованиями
пунктов 5.2.2,
5.2.4,
5.2.6 СП 4.13130 объекты защиты класса функциональной пожарной опасности Ф1.1 должны размещаться в отдельно стоящих зданиях либо выделяться в самостоятельные пожарные отсеки при размещении в жилых и общественных зданиях иного класса функциональной пожарной опасности.
--------------------------------
<5> В соответствии с редакцией проекта изменений
СП 4.13130, подготовленной по результатам публичного обсуждения, объекты защиты класса функциональной пожарной опасности Ф1.1 должны размещаться в отдельно стоящих зданиях либо выделяться в самостоятельные пожарные отсеки при размещении в общественных зданиях иного класса функциональной пожарной опасности.
Стационары больниц (кроме стационаров дневного пребывания) следует размещать в отдельных корпусах, блоках или частях здания, отделенных от других вспомогательных функциональных частей (культурно-досуговых, медицинских, спортивно-оздоровительных, предприятий питания и торговли, административно-хозяйственных, служб технической эксплуатации и т.п.) противопожарными стенами не ниже 2-го типа или перегородками 1-го типа, в зданиях IV степени огнестойкости - перегородками 2-го типа.
Размещаемые на объектах класса Ф1.1 части здания или помещения производственного, складского, инженерно-технического назначения следует выделять противопожарными преградами в соответствии с
5.1.2, согласно положениям которого пожароопасные помещения, кроме помещений категорий В4 и Д, следует отделять от других помещений и коридоров в зданиях I, II и III-й степеней огнестойкости - противопожарными перегородками 1-го типа, в зданиях IV степени огнестойкости - перегородками 2-го типа, если иное не оговорено требованиями других нормативных документов для соответствующих видов объектов защиты.
Помещения со спальными местами (групповые ячейки со спальнями, комнаты для проживания, больничные палаты и т.п.) на объектах класса Ф1.1 следует размещать в отдельных блоках или частях здания, отделенных от частей здания другого назначения (административно-хозяйственных, бытовых, технических и др.) противопожарными стенами не ниже 2-го типа и перекрытиями не ниже 3-го типа (в зданиях I степени огнестойкости - перекрытиями 2-го типа).
Предусматриваемые в составе объектов класса Ф1.1 пищеблоки, а также части зданий, группы помещений либо отдельные помещения производственного, складского и технического назначения (прачечные, гладильные, мастерские, кладовые, электрощитовые т.д.), за исключением помещений категорий В4 и Д, следует выделять противопожарными стенами не ниже 2-го типа (перегородками 1-го типа) и перекрытиями не ниже 3-го типа (в зданиях I степени огнестойкости - перекрытиями 2-го типа).
8.1.3.2 Операционные и родовые блоки, отделения реанимации и интенсивной терапии должны быть размещены в блоках или частях здания, отделенных: в зданиях I степени огнестойкости - противопожарными перекрытиями и стенами 1-го типа; в зданиях II, III степеней огнестойкости - противопожарными стенами 2-го типа и перекрытиями 3-го типа, а по коридорам - шлюзами с подпором воздуха при пожаре. При этом для перечисленных в настоящем пункте отделений, размещаемых в пределах одного этажа, допускается вместо стен 2-го типа устройство противопожарных перегородок 1-го типа. |
Комментарий:
В соответствии с действующими требованиями
п. 6.7.19 СП 2.13130 операционные блоки, отделения реанимации и интенсивной терапии должны располагаться в самостоятельных пожарных отсеках. При этом в соответствии с редакцией проекта
СП 2.13130, подготовленной по результатам публичного обсуждения, требований по выделению операционных и родовых блоков, отделений реанимации и интенсивной терапии в зданиях больниц, независимо от их степени огнестойкости, не установлено.
8.1.3.5 Кабинеты теплолечения с саунами (кроме инфракрасных) не допускается размещать под помещениями, рассчитанными на пребывание более 50 человек, под палатами, в подвалах зданий с отделениями типов А и Б. Комплекс помещений указанных кабинетов должен быть выделен в зданиях I, II, III степеней огнестойкости классов конструктивной пожарной опасности С0 и С1 противопожарными перегородками не ниже 1-го типа и перекрытиями 3-го типа. |
Комментарий:
Действующие положения
п. 5.5.8 СП 4.13130, в части выделения комплекса помещений встроенных бань (саун), устанавливают аналогичные требования по типам применяемых противопожарных преград.
При этом в соответствии с редакцией проекта изменений
СП 4.13130, подготовленной по результатам публичного обсуждения, комплекс помещений встроенных бань (саун) следует выделять в зданиях I, II, III степеней огнестойкости - стенами с пределами огнестойкости не ниже REI 45 или перегородками не ниже EI 45, в зданиях IV степени огнестойкости - REI 15 и EI 15 соответственно.
8.1.3.6 Размещаемые в зданиях типа Б отделения типа Е, за исключением некатегорируемых помещений и помещений категорий В4 и Д, следует выделять противопожарными перегородками не ниже 2-го типа. |
Комментарий:
Согласно действующим
<6> требованиям
п. 5.5.7 СП 4.13130 размещаемые в пределах объектов Ф3.4 помещения производственного назначения (лаборатории, помещения приготовления лекарств, мастерские и т.п.), а также складские помещения (кладовые лекарств и лекарственных материалов, кладовые инвентаря, горючих товаров и товаров в горючей упаковке и т.п.), технические помещения, за исключением помещений категорий В4 и Д, выделяются противопожарными перегородками не ниже 1-го типа.
--------------------------------
<6> В соответствии с редакцией проекта изменений
СП 4.13130, подготовленной по результатам публичного обсуждения, пожароопасные помещения, кроме помещений категорий В4 и Д, следует отделять от других помещений и коридоров в зданиях I, II и III-й степеней огнестойкости - противопожарными перегородками 1-го типа, в зданиях IV степени огнестойкости - перегородками 2-го типа, если иное не оговорено требованиями других нормативных документов для соответствующих видов объектов защиты.
Таким образом, представляется целесообразным при плановых пересмотрах
СП 158.13330 и
СП 4.13130 провести согласованную корректировку их положений, исключающую противоречия.
8.1.3.7 В отделениях типа А и Б допускается размещать вспомогательные помещения и помещения хранения, необходимые для функционирования отделений (экстренные стерилизационные, экспресс-лаборатории, буфетные для раздачи пищи, помещение мойки и дезинфекции медицинских инструментов, хранения лекарственных препаратов, медицинских карт, белья, медицинских отходов и т.п.) при условии, что: категорируемые помещения выделены соответствующими противопожарными преградами; помещения оборудованы автоматической пожарной сигнализацией; в помещении или в непосредственной близости предусмотрены первичные средства пожаротушения. |
Комментарий:
Категорируемые по взрывопожарной и пожарной опасности помещения, то есть помещения производственного или складского назначения, за исключением помещений категорий В4 и Д, выделяются соответствующими противопожарными преградами по
СП 4.13130, защиту помещений автоматическими установками пожарной сигнализации и первичными средствами пожаротушения в соответствии с
[2],
[3] и
СП 5.13130.
Следует отметить, что применительно к помещениям, не относящимся к производственным (техническим) и складским, таким как буфеты, помещения мойки и дезинфекции медицинских инструментов и т.п.,
СП 4.13130 устанавливает завышенные требования.
Таким образом, представляется целесообразным при плановых пересмотрах
СП 158.13330 и
СП 4.13130 провести согласованную корректировку их положений, исключающую противоречия и необоснованно завышенные требования.
Рисунок 99 - Пример оборудования палатного отделения
первичными средствами пожаротушения
8.1.3.8 Допускается предусматривать в объеме здания буфеты и другие точки общественного питания, торговые помещения площадью не более 50 м2, предназначенные для больных, посетителей и персонала медицинских организаций без выделения противопожарными перегородками. Торговые автоматы не должны устанавливаться в зонах пожарной безопасности и уменьшать ширину путей эвакуации. |
Комментарий:
Точки общественного питания и торговые помещения могут размещаться в атриумах, вестибюлях, общих холлах и других подобных помещениях. При этом следует выполнять требования
СП 158.13330 и документов по пожарной безопасности к выделению противопожарными преградами различных функциональных зон и отдельных помещений (палатных отделений, категорируемых помещений и др.).
Представляется целесообразным при плановых пересмотрах
СП 158.13330 и
СП 4.13130 провести согласованную корректировку их положений, исключающую противоречия.
Рисунок 100 - Пример размещения открытого кафетерия
в атриуме больницы
8.1.3.9 Пределы огнестойкости заполнения проемов в противопожарных преградах следует принимать в соответствии с [4]. |
Комментарий:
Наименования, типология и соответствующие им пределы огнестойкости заполнения проемов в противопожарных преградах установлены в
таблице 4 [
таблица 24,
2].
Наименование элементов заполнения проемов в противопожарных преградах | Тип заполнения проемов в противопожарных преградах | Предел огнестойкости |
Двери (за исключением дверей с остеклением более 25 процентов и дымогазонепроницаемых дверей), ворота, люки, клапаны, шторы и экраны | 1 | EI 60 |
2 | EI 30 |
3 | EI 15 |
Двери с остеклением более 25 процентов | 1 | EIW 60 |
2 | EIW 30 |
3 | EIW 15 |
Дымогазонепроницаемые двери (за исключением дверей с остеклением более 25 процентов) | 1 | EIS 60 |
2 | EIS 30 |
3 | EIS 15 |
Дымогазонепроницаемые двери с остеклением более 25 процентов, шторы и экраны | 1 | EIWS 60 |
2 | EIWS 30 |
3 | EIWS 15 |
Двери шахт лифтов | 2 | EI 30 (в зданиях высотой не более 28 метров предел огнестойкости дверей шахт лифтов принимается E 30) |
Окна | 1 | E 60 |
2 | E 30 |
3 | E 15 |
Занавесы | 1 | EI 60 |
8.1.3.10 Помещения, в которые осуществляются технологические заезды машин скорой помощи и для материального снабжения в здания медицинских организаций, должны отделяться противопожарными стенами 2-го типа и перекрытиями 1-го типа. |
Комментарий:
При условии, что оговоренные в рассматриваемом
пункте помещения не относятся к помещениям для стоянки автомобилей, для их выделения следует руководствоваться требованиями
п. 5.2.6 СП 4.13130, согласно положениям которого предусматриваемые в составе объектов классов Ф1.1 части зданий, группы помещений, либо отдельные помещения производственного, складского и технического назначения (прачечные, гладильные, мастерские, кладовые, электрощитовые т.д.), за исключением помещений категорий В4 и Д, следует выделять противопожарными стенами не ниже 2-го типа (перегородками 1-го типа) и перекрытиями не ниже 3-го типа (в зданиях I степени огнестойкости - перекрытиями 2-го типа).
8.1.4.1 Во вновь проектируемых зданиях функциональной пожарной опасности Ф1.1 на более чем 25 коек эвакуационные лестничные клетки должны быть незадымляемыми [4]. В зонах типа А использование наружных эвакуационных лестниц не допускается. |
Комментарий:
В соответствии с положениями
пунктов 5.2.11,
5.2.18 СП 1.13130 устройство наружных открытых лестниц в стационарах лечебных учреждений (тип А) не предусматривается. В расчет эвакуации людей при пожаре указанные лестницы не включаются.
Рисунок 101 - Пример проектного решения
незадымляемой лестничной клетки Н1
Рисунок 102 - Примеры проектных решений
незадымляемых лестничных клеток Н2, Н3
8.1.4.2 Габариты тамбур-шлюзов при входе в лестничные клетки и безопасные (пожаробезопасные) зоны в зонах типа А должны обеспечивать движение пациентов на кроватях или носилках. |
Комментарий:
В соответствии с требованиями
п. 4.2.5 СП 1.13130 во всех случаях ширина эвакуационного выхода должна быть такой, чтобы с учетом геометрии эвакуационного пути через проем или дверь можно было беспрепятственно пронести носилки с лежащим на них человеком.
8.1.4.3 Лестничные клетки должны иметь выход наружу непосредственно или через холл (вестибюль). Допускается предусматривать выход наружу из лестничных клеток через коридор первого этажа, длиной не более 15 м, оборудованный вытяжной противодымной вентиляцией для удаления продуктов горения. Размещение горючей нагрузки (ГОСТ Р 12.3.047) в указанном коридоре не допускается. |
Комментарий:
В соответствии с требованиями
п. 4.4.6 СП 1.13130 лестничные клетки должны иметь выход наружу на прилегающую к зданию территорию непосредственно или через вестибюль, отделенный от примыкающих коридоров перегородками с дверями, за исключением случаев, специально оговоренных в нормативных документах по пожарной безопасности. В случае отступления принятые проектные решения по обеспечению допустимых значений пожарного риска по
[2] следует подтвердить расчетом, выполненным по
методике [5].
В соответствии с требованиями
пп. б) п. 36 [3] при эксплуатации эвакуационных путей, эвакуационных и аварийных выходов запрещается загромождать эвакуационные пути и выходы (в том числе проходы, коридоры, тамбуры, галереи, лифтовые холлы, лестничные площадки, марши лестниц, двери, эвакуационные люки) различными материалами, изделиями, оборудованием, производственными отходами, мусором и другими предметами, а также блокировать двери эвакуационных выходов.
8.1.4.5 Ширина марша лестниц в зданиях с отделениями типа А должна быть не менее ширины выхода на лестничную клетку с наиболее населенного этажа, но не менее 1,35 м. В реконструируемых зданиях при расчете путей эвакуации допускается наличие одной эвакуационной лестницы шириной не менее 1,2 м, остальных лестниц шириной не менее 0,9 м. |
Комментарий:
Согласно
п. 5.2.5 СП 1.13130 ширина лестничного марша в зданиях должна быть не менее ширины выхода на лестничную клетку с наиболее населенного этажа, но не менее 1,35 м. Промежуточная площадка в прямом марше лестницы должна иметь глубину не менее 1 м. Ширина лестничных площадок должна быть не менее ширины марша. Согласно
п. 5.2.6 СП 1.13130 в зданиях лечебных учреждений допускается предусматривать лестничные марши, ведущие на этаж (в помещения), не предназначенный для пребывания или посещения больных, шириной не менее 1,2 м. При этом, если данный этаж (помещения) не рассчитан для одновременного пребывания более 5 чел., лестничный марш допускается выполнять шириной не менее 0,9 м. Каждый этаж здания должен иметь не менее двух эвакуационных выходов (
п. 5.2.13 СП 1.13130).
Таким образом, наличие в реконструируемых зданиях одной эвакуационной лестницы шириной 1,2 м и остальных лестниц шириной 0,9 м без соответствующего расчетного обоснования не допускается. В случае, если реконструируемое здание медицинской организации не имеет эвакуационных лестниц, удовлетворяющих требованиям
п. 5.2.5 и
п. 5.2.6 СП 1.13130, при проектировании путей эвакуации возможно проведение расчетов по определению величины пожарного риска. В этом случае условия соответствия объекта защиты требованиям пожарной безопасности, в том числе пути эвакуации в реконструируемом здании, подтверждаются согласно положениям
статьи 6 [2].
8.1.4.6 В реконструируемых зданиях с отделениями типа А высотой до 12 метров допускается предусматривать для эвакуации с надземных этажей одну незадымляемую лестничную клетку шириной не менее 1,35 м в случае, если длина эвакуационных путей от дверей каждого помещения до нее не превышает 15 м. |
Комментарий:
Возможность использования для эвакуации одной лестничной клетки определяется классом функциональной пожарной опасности здания. В зданиях класса Ф1.1 (тип А) использование только одной лестничной клетки для эвакуации не допустимо, так как согласно
п. 5.2.13 СП 1.13130 каждый этаж здания должен иметь не менее 2 эвакуационных выходов. Вместе с тем, в зданиях медицинских организаций других классов функциональной пожарной опасности Ф3.4 (тип Б) или Ф4.3 (тип Е3) согласно
пунктам 7.1.12,
8.3.8 СП 1.13130 при высоте расположения этажа не более 15 м допускается предусматривать один эвакуационный выход с этажа (или с части этажа, отделенной от других частей этажа противопожарными стенами не ниже 2-го типа или противопожарными перегородками 1-го типа) площадью не более 300 м
2 с численностью не более 20 человек и при оборудовании выхода на лестничную клетку дверями 2-го типа. Таким образом, для зданий классов Ф3.4, Ф4.3 при выполнении указанных ограничений по площади этажа, количеству людей на этаже и высоте его расположения, использование для эвакуации только одной лестничной клетки возможно. Для зданий Ф1.1 в случае отступления от норм пожарной безопасности принятые проектные решения по обеспечению допустимых значений пожарного риска по
[2] следует подтвердить расчетом, выполненным по
методике [5].
8.1.4.7 Допускается предусматривать не более 50% лестничных клеток с подпором воздуха на лестничную клетку при пожаре и с входом на них на каждом этаже через тамбур-шлюзы, в которых во время пожара обеспечивается подпор воздуха, предназначенных для эвакуации, без световых проемов. |
Комментарий:
В случае отступления от норм пожарной безопасности в части естественного освещения лестничных клеток принятые проектные решения по обеспечению допустимых значений пожарного риска по
[2] следует подтвердить расчетом, выполненным по
методике [5].
8.1.5.2 Лифтовые шахты и дверные проемы в ограждениях лифтовых шахт следует проектировать по [4]. |
Комментарий:
В соответствии с положениями
статьи 88 Федерального закона
[2] ограждающие конструкции лифтовых шахт, расположенных вне лестничной клетки и помещений машинных отделений лифтов (кроме расположенных на кровле), а также каналов и шахт для прокладки коммуникаций должны соответствовать требованиям, предъявляемым к противопожарным перегородкам 1-го типа и перекрытиям 3-го типа. Предел огнестойкости ограждающих конструкций между шахтой лифта и машинным отделением лифта не нормируется.
Дверные проемы в ограждениях лифтовых шахт с выходами из них в коридоры и другие помещения, кроме лестничных клеток, должны защищаться противопожарными дверями с пределом огнестойкости не менее EI 30 или экранами из негорючих материалов с пределом огнестойкости не менее EI 45, автоматически закрывающими дверные проемы лифтовых шахт при пожаре, либо лифтовые шахты в зданиях и сооружениях должны отделяться от коридоров, лестничных клеток и других помещений тамбурами или холлами с противопожарными перегородками 1-го типа и перекрытиями 3-го типа.
Согласно положениям
части 2 статьи 140 Федерального закона
[2] при выходе из лифтов в коридор, лифтовый холл или тамбур, не отвечающий требованиям, предъявляемым к тамбур-шлюзам 1-го типа, двери шахт лифтов должны иметь предел огнестойкости не ниже, чем EI 30 (в зданиях высотой не более 28 метров допускается применять двери шахт лифтов, имеющие предел огнестойкости E 30). При выходе из лифтов в коридор, лифтовый холл или тамбур, отвечающий требованиям, предъявляемым к тамбур-шлюзам 1-го типа, и при выходе из лифтов на лестничную клетку предел огнестойкости дверей шахт лифтов не нормируется. Условия размещения лифтовых шахт в объемах лестничных клеток определяются нормативными документами по пожарной безопасности.
8.1.5.4 В каждом пожарном отсеке с отделениями типа А должен предусматриваться лифт для транспортирования пожарных подразделений с габаритами больничного лифта. |
Комментарий:
Минимальные требования пожарной безопасности к лифтам для пожарных изложены в
ГОСТ Р 53296-2009 "Установка лифтов для пожарных в зданиях и сооружениях. Требования пожарной безопасности".
В соответствии с
ТР ТС 011/2011 "Технический регламент Таможенного союза. Безопасность лифтов" (принятым Решением Комиссии Таможенного союза от 18.10.2011 N 824) для обеспечения безопасности на лифте, обеспечивающем транспортирование пожарных во время пожара, должны выполняться следующие специальные требования:
- размеры кабины и грузоподъемность лифта должны обеспечивать транспортирование пожарных с оборудованием для борьбы с пожаром и (или) спасаемых при пожаре людей;
- системы управления и сигнализация должны обеспечивать работу лифта под непосредственным управлением пожарных. Иные режимы управления лифтом должны отключаться;
- наличие режима управления лифтом, независимо от работы других лифтов, объединенных с ним системой группового управления;
- наличие визуальной информации в кабине лифта и на основном посадочном (назначенном) этаже о местоположении кабины и направлении ее движения;
- двери шахты лифта должны быть противопожарными, предел огнестойкости которых устанавливается в соответствии с требованиями к пожарной безопасности зданий (сооружений);
- наличие мер и (или) средства по эвакуации пожарных из кабины, остановившейся между этажами;
- использование в конструкции купе кабины материалов, снижающих риск возникновения пожарной опасности по применимым показателям горючести, воспламеняемости, дымообразующей способности, распространения пламени и токсичности при горении.
Пункт 8.1.5.4 СП 158.13330 устанавливает дополнительные требования к лифтам для транспортирования пожарных подразделений в отделениях типа А в части габаритов кабины.
Согласно п. 38.2 международной нормы
[6], все лифты во вновь строящихся зданиях должны предусматривать эвакуацию людей в случае пожара. При ремонте или реконструкции существующих зданий лифты в них должны быть приспособлены для эвакуации людей в случае пожара.
Рисунок 103 - Пример лифта для транспортирования
пожарных подразделений с габаритами больничного лифта
8.2 Обеспечение безопасной эвакуации и спасение людей при пожаре 8.2.1 Эвакуационные выходы. Расчет числа эвакуационных выходов 8.2.1.1 Ширину эвакуационного выхода из коридора на лестничную клетку, а также ширину маршей лестниц следует устанавливать в зависимости от числа эвакуирующихся через этот выход из расчета 1 м ширины выхода (двери) в зданиях классов конструктивной пожарной опасности: С0 - не более 165 чел.; С1 - не более 115 чел.; С2, С3 - не более 80 чел. Максимальное число эвакуирующихся принимается: в зонах типа А - по числу коек в отделении, умноженному на 1,5; в зонах типа Б: во врачебных и диагностических кабинетах: 1 чел. на 10 м2, а также в ожидальных - 1 чел. на 3 м2; в зонах типа Е: штатное число персонала, в административных помещениях - 1 чел. на 6 м2; в зонах типа Г: конференц-залы, столовые, аудитории и т.д. - по числу мест; в зонах типа Д (для посетителей): 1 чел. на 3 м2. |
Комментарий:
Положения
пункта 8.2.1.1 СП 158.13330 устанавливают расчетное число эвакуирующихся по функциональным зонам. Положения
п. 5.2.21 СП 1.13130 устанавливают аналогичные требования, в части зависимости числа эвакуирующихся через выход из расчета 1 м ширины выхода (двери) в зданиях медицинских организаций.
8.2.1.2 Отсеки этажа должны быть обеспечены эвакуационными выходами, исходя из максимально возможного числа эвакуирующихся и нормативной пропускной способности эвакуационных выходов, наружу или в безопасную зону. Траектории путей эвакуации включают в себя коридоры, лестничные клетки, пандусы и другие проходы. |
Комментарий:
Согласно положениям
статьи 53 Федерального закона
[2] для обеспечения безопасной эвакуации людей должны быть:
1) установлены необходимое количество, размеры и соответствующее конструктивное исполнение эвакуационных путей и эвакуационных выходов;
2) обеспечено беспрепятственное движение людей по эвакуационным путям и через эвакуационные выходы;
3) организованы оповещение и управление движением людей по эвакуационным путям (в том числе с использованием световых указателей, звукового и речевого оповещения).
8.2.1.3 Двери эвакуационных выходов из поэтажных коридоров, холлов, фойе, вестибюлей и лестничных клеток должны открываться по направлению выхода из здания и должны быть оснащены устройством экстренного открывания дверей эвакуационных и аварийных выходов (устройством "антипаника") по ГОСТ Р 52750. |
Комментарий:
Указанные двери должны быть оснащены устройством экстренного открывания дверей эвакуационных и аварийных выходов (устройством "антипаника") по
ГОСТ Р 52750-2007 и открываться по направлению выхода из здания простым нажатием на рычаг-штангу.
|
А - Антипаника со штангой нажимного типа | Б - Антипаника со штангой-рейкой |
Рисунок 104 - Типы устройств антипаника
|
А - Антипаника со штангой нажимного типа | Б - Антипаника со штангой-рейкой |
Рисунок 105 - Типы устройств "антипаника"
Рисунок 106 - Примеры дверей эвакуационных выходов
с устройством "антипаника"
8.2.1.4 В операционных, рентгенпроцедурных и иных медицинских помещениях с ненормируемым направлением открывания дверей (СП 1.13130) допускается предусматривать установку раздвижных дверей при соблюдении следующих условий: устройство автоматического (по сигналу пожарной автоматики), дистанционного (из помещения пожарного поста) и ручного открывания дверей; переключение на ручное управление с возможностью блокировки в открытом состоянии для беспрепятственного выхода на путь эвакуации; способ открывания дверей должен быть легкодоступен и четко обозначен. |
Комментарий:
В соответствии с требованиями
пп. а) п. 36 [3] при эксплуатации эвакуационных путей, эвакуационных и аварийных выходов запрещается устраивать на путях эвакуации пороги (за исключением порогов в дверных проемах), устанавливать раздвижные и подъемно-опускные двери и ворота без возможности вручную открыть их изнутри и заблокировать в открытом состоянии, вращающиеся двери и турникеты, а также другие устройства, препятствующие свободной эвакуации людей, при отсутствии иных (дублирующих) путей эвакуации либо при отсутствии технических решений, позволяющих вручную открыть и заблокировать в открытом состоянии указанные устройства. Допускается в дополнение к ручному способу применения автоматического или дистанционного способа открывания и блокирования устройств.
Рисунок 107 - Примеры установки раздвижной двери
в операционную
Рисунок 108 - Пример установки раздвижных дверей
при входе в оперблок
Рисунок 109 - Пример установки раздвижной двери
при входе в отделение реанимации
8.2.1.5 Допускается нахождение противопожарных дверей в постоянно открытом положении с помощью специальных устройств, при условии автоматического закрывания дверей в следующих случаях: срабатывания автоматической пожарной сигнализации; срабатывания автоматической установки пожаротушения; отсутствия электропитания; или приведения в действие ручного устройства закрывания дверей, находящегося вблизи двери в указанном месте. |
Комментарий:
В соответствии с требованиями
пп. г) п. 36 [3] при эксплуатации эвакуационных путей, эвакуационных и аварийных выходов запрещается фиксировать самозакрывающиеся двери лестничных клеток, коридоров, холлов и тамбуров в открытом положении (если для этих целей не используются устройства, автоматически срабатывающие при пожаре), а также снимать их.
Рисунок 110 - Пример противопожарных самозакрывающихся
дверей с автоматическим устройством фиксирования
их в открытом положении
Рисунок 111 - Автоматические устройства фиксирования дверей,
срабатывающие при пожаре
8.2.2 Требования к путям эвакуации 8.2.2.6 Коридоры в зонах типа А длиной более 42 м следует разделять противопожарными перегородками 2-го типа с противопожарными дверями 3-го типа. |
Комментарий:
В соответствии с требованиями
п. 5.2.26 СП 1.13130 в палатных корпусах лечебных учреждений коридоры следует разделять противопожарными перегородками 2-го типа с расстоянием между ними не более 42 м.
8.2.2.8 Длина тупикового коридора в отделениях типа А не должна превышать 15 м. Длину тупикового коридора определяют от выхода из наиболее удаленного помещения (кроме уборных, умывальных, душевых, санитарных комнат и других обслуживающих помещений) до эвакуационного выхода с этажа или пересечения с коридором, из которого возможна эвакуация по крайней мере в двух направлениях. Длина тупикового коридора в отделениях типов Б, Г, Д и Е определяется в соответствии с СП 118.13330. |
Комментарий:
В случае, когда первая часть эвакуационного пути проходит по тупиковому коридору, должны одновременно выполняться два условия:
1. допустимые расстояния по путям эвакуации в зависимости от класса функциональной пожарной опасности здания или пожарного отсека должны быть не более указанных в
разделе А таблиц 2,
5,
17 СП 1.13130;
2. длина тупикового коридора от выхода из наиболее удаленного помещения (кроме уборных, умывальных, душевых, санитарных комнат и других обслуживающих помещений) до эвакуационного выхода с этажа или пересечения с коридором, из которого возможна эвакуация по крайней мере в двух направлениях, должна быть не более указанных в
разделе Б таблиц 2,
5,
17 СП 1.13130
<7>.
--------------------------------
<7> Определение тупикового коридора согласуется с международными нормативными документами и национальными стандартами развитых стран в области пожарной безопасности и проектирования и строительства зданий
[6],
[7],
[8],
[9],
[10], в связи с чем представляется целесообразным при плановых пересмотрах
СП 1.13130 уточнить этот термин.
В связи с тем, что Федеральный
закон [2] устанавливает, что эвакуационным выходом с этажа может быть не только выход на лестницу, но и в безопасную зону, представляется целесообразным при плановых пересмотрах
СП 1.13130 уточнить формулировки с целью приведения их в соответствие с
[2].
Рисунок 112 - Типичные примеры тупиковых коридоров
(из Life Safety

Handbook, Eleventh edition, National
Fire Protection Association, Quincy, Massachusetts)
8.2.2.9 В реконструируемых зданиях допускаются тупиковые коридоры длиной не более 25 м при выполнении следующих условий: внутренние стены и перегородки (в том числе из светопрозрачных материалов) помещений, выходящих в тупиковый коридор, следует предусматривать из негорючих материалов с пределом огнестойкости не менее (R)EI 45; помещения, выходящие в тупиковый коридор, должны иметь двери огнестойкостью не менее EI 30 с устройством для самозакрывания и с уплотнением в притворе. Двери, которые используются преимущественно в открытом положении, должны быть снабжены электромагнитным устройством отпуска; в указанный коридор не должны выходить помещения, предназначенные для пациентов и маломобильных групп населения. |
Комментарий:
Обеспечение безопасной эвакуации людей при невыполнении (отступлении) от требований
СП 1.13130, в том числе для реконструируемых зданий медицинских организаций, должно быть подтверждено расчетом пожарного риска, выполненным по
методике [5]. При этом при разработке проектных решений могут быть выбраны как один или несколько из перечисленных в рассматриваемом
пункте, так и другие условия.
8.2.3 Требования к безопасным зонам 8.2.3.1 При проектировании безопасных зон следует учитывать требования СП 59.13330 и настоящего свода правил. Для обеспечения своевременной эвакуации лиц, потерявших способность к самостоятельному передвижению, а также не способных к эвакуации по лестничным маршам, в отделениях типа А следует предусматривать прогрессивную (поэтапную) горизонтальную эвакуацию в соседний пожарный отсек или в безопасную зону. |
Комментарий:
Согласно
пункту 50 статьи 2 Федерального закона
[2], эвакуация - это процесс организованного самостоятельного движения людей непосредственно наружу или в безопасную зону из помещений, в которых имеется возможность воздействия на людей опасных факторов пожара. При этом согласно
пункту 2 статьи 2 Федерального закона
[2] безопасная зона - это зона, в которой люди защищены от воздействия опасных факторов пожара или в которой опасные факторы пожара отсутствуют либо не превышают предельно допустимых значений.
Требования к устройству безопасных зон в зданиях и сооружениях установлены положениями Федерального закона
[1],
части 15 статьи 89 Федерального закона
[2] и требованиями
СП 59.13330.
Пункты
СП 59.13330 внесены в Перечень национальных стандартов и сводов правил (частей таких стандартов и сводов правил), в результате применения которых на обязательной основе обеспечивается соблюдение требований Федерального
закона "Технический регламент о безопасности зданий и сооружений".
Согласно
пункту 27 статьи 2 Федерального закона
[2], пожарный отсек - часть здания и сооружения, выделенная противопожарными стенами и противопожарными перекрытиями или покрытиями, с пределами огнестойкости конструкции, обеспечивающими нераспространение пожара за границы пожарного отсека в течение всей продолжительности пожара. Таким образом, в случае наличия в здании двух и более пожарных отсеков соседний пожарный отсек может рассматриваться как безопасная зона при условии возможности размещения в нем, кроме собственного контингента, также эвакуирующихся маломобильных больных на средствах передвижения (кроватях, тележках для перевозки больных, креслах-колясках) в сопровождении персонала.
Согласно
п. 6.59 СП 118.13330, в зданиях стационаров лечебно-профилактических и социальных учреждений (больниц, родильных домов, хосписов и т.п.) для лежачих людей, не способных перемещаться по лестницам, следует предусматривать возможность горизонтальной эвакуации в соседний пожарный отсек или зону безопасности, из которой они могут быть эвакуированы за более продолжительное время или находиться в ней до прибытия спасательных подразделений. Размеры зоны безопасности определяются расчетным числом лежачих больных на средствах горизонтального транспортирования (каталках, кроватях). Требования к помещению приведены в
СП 59.13330.
В работах В.В. Холщевникова, Д.А. Самошина, А.П. Парфененко, И.С. Кудрина, Р.Н. Истратова, И.Р. Белосохова указывается, что при невыполнении условий беспрепятственности и своевременности эвакуации целесообразна разработка алгоритма поэтапной эвакуации.
В соответствии с
[5] организация поэтапной эвакуации людей из здания относится к числу противопожарных мероприятий, направленных на снижение величины пожарного риска.
Поэтапная (прогрессивная) горизонтальная эвакуация предусматривается при проектировании зданий, где эвакуация маломобильных групп населения по лестницам затруднена, в особенности зданий стационаров медицинских организаций, где для пациентов в тяжелом состоянии, прикованных к постели, необходимы специальные медицинские системы жизнеобеспечения, этот способ эвакуации регламентируется в развитых странах нормативными документами по пожарной безопасности
[6],
[7],
[8],
[9],
[10] и обозначается общепринятым термином - progressive horizontal evacuation (англ.). В связи с вышесказанным представляется целесообразным при плановых пересмотрах сводов правил по пожарной безопасности провести корректировку положений с целью гармонизации с отечественными и зарубежными нормами.
Рисунок 113 - Пример иллюстративной схемы
поэтапной (прогрессивной) горизонтальной эвакуации
(из http://cdep.org.ph)
Рисунок 114 - Пример проектного решения, предусматривающего
поэтапную (прогрессивную) горизонтальную эвакуацию
Рисунок 115 - Пример проектного решения, предусматривающего
поэтапную (прогрессивную) горизонтальную эвакуацию
8.2.3.2 В каждом пожарном отсеке отделений типа А должна предусматриваться безопасная зона, из которой можно эвакуироваться за более продолжительное время или находиться в ней до прибытия пожарно-спасательных подразделений. 8.2.3.3 На этаже площадью свыше 1000 м2, имеющем отделения типа А и один пожарный отсек, следует предусматривать не менее двух безопасных зон, расположенных рассредоточенно. |
Комментарий:
| | ИС МЕГАНОРМ: примечание. В официальном тексте документа, видимо, допущена опечатка: пункт 5.2.23 в СП 59.13330 отсутствует. Возможно, имеется в виду пункт 6.2.19. | |
Согласно
п. 5.2.23 СП 59.13330, проектные решения зданий и сооружений должны обеспечивать безопасность посетителей в соответствии с требованиями "Технического
регламента о безопасности зданий и сооружений", "Технического
регламента о требованиях пожарной безопасности" и
ГОСТ 12.1.004 с обязательным учетом психофизиологических возможностей инвалидов различных категорий, их численности и места предполагаемого нахождения в здании или сооружении.
Требования
СП 158.13330 направлены на снижение величины пожарного риска. Минимальные требования к безопасным зонам изложены в
СП 59.13330 и нормативных документах по пожарной безопасности.
8.2.3.4 Суммарная площадь безопасных зон должна быть рассчитана для пациентов с ограниченными возможностями передвижения с учетом площади горизонтальной проекции, м2/чел.: |
| взрослый с новорожденным на руках, пациент, перемещающийся пешком с сопровождающим | 1,0 | |
пациент в кресле-коляске | 2,4 |
пациент в кресле-коляске с сопровождающим | 2,65 |
пациент на кровати с сопровождающим | 2,8 |
ребенок (до 14 лет) | 0,5 |
новорожденный в кювезе или кроватке с сопровождающим | 1,2 |
кровать для новорожденных четырехместная с сопровождающим | 2,7 |
При обеспечении горизонтальной эвакуации в соседний пожарный отсек площадь безопасных зон может быть уменьшена до 50% от расчетной. |
Комментарий:
| | ИС МЕГАНОРМ: примечание. В официальном тексте документа, видимо, допущена опечатка: пункт 5.2.28 в СП 59.13330 отсутствует. Возможно, имеется в виду пункт 6.2.26. | |
Согласно
п. 5.2.28 СП 59.13330 площадь зоны безопасности должна быть предусмотрена на всех инвалидов, остающихся по расчету на этаже, исходя из удельной площади, приходящейся на одного спасаемого, при условии возможности его маневрирования, м/чел.:
инвалид в кресле-коляске | 2,40 |
инвалид в кресле-коляске с сопровождающим | 2,65 |
инвалид, перемещающийся самостоятельно | 0,75 |
инвалид, перемещающийся с сопровождающим | 1,00 |
| | ИС МЕГАНОРМ: примечание. В официальном тексте документа, видимо, допущена опечатка: пункт 5.2.28 в СП 59.13330 отсутствует. Возможно, имеется в виду пункт 6.2.26. | |
Пункт
СП 59.13330 внесен в Перечень национальных стандартов и сводов правил (частей таких стандартов и сводов правил), в результате применения которых на обязательной основе обеспечивается соблюдение требований Федерального
закона "Технический регламент о безопасности зданий и сооружений"; таким образом, расчет площади зоны безопасности следует производить по
п. 5.2.28 СП 59.13330 в части, противоречащей требованиям
СП 158.13330.
8.2.3.6 Безопасные зоны следует предусматривать с выходом на незадымляемую лестничную клетку и оборудовать лифтом для транспортирования пожарных подразделений (в зонах типа А - с габаритами больничного лифта). |
Комментарий:
| | ИС МЕГАНОРМ: примечание. В официальном тексте документа, видимо, допущена опечатка: пункт 5.2.27 в СП 59.13330 отсутствует. Возможно, имеется в виду пункт 6.2.25. | |
Согласно
п. 5.2.27 СП 59.13330 если по расчету невозможно обеспечить своевременную эвакуацию всех МГН за необходимое время, то для их спасения на путях эвакуации следует предусматривать зоны безопасности, в которых они могут находиться до прибытия спасательных подразделений, либо из которых они могут эвакуироваться более продолжительное время и (или) спасаться самостоятельно по прилегающей незадымляемой лестничной клетке или пандусу.
Предельно допустимые расстояния от наиболее удаленной точки помещения для инвалидов до двери в зону безопасности должны быть в пределах досягаемости за необходимое время эвакуации.
Зоны безопасности рекомендуется предусматривать в холлах лифтов для транспортирования пожарных подразделений, а также в холлах лифтов, используемых МГН. Данные лифты могут использоваться для спасения инвалидов во время пожара.
Рисунок 116 - Схема корректного проектного решения
безопасной зоны
Рисунок 117 - Типичные ошибки при проектировании
безопасных зон
Рисунок 118 - Пример проектного решения безопасной зоны
в палатном отделении
8.2.3.7 Безопасная зона должна быть отделена от других помещений и примыкающих коридоров противопожарными преградами с пределами огнестойкости: - не менее EI 90 - перегородки; - не менее REI 60 - перекрытия; - не ниже 1-го типа - противопожарные двери и окна. |
Комментарий:
| | ИС МЕГАНОРМ: примечание. В официальном тексте документа, видимо, допущена опечатка: пункт 5.2.29 в СП 59.13330 отсутствует. | |
Согласно п. 5.2.29
СП 59.13330, зона безопасности должна быть запроектирована в соответствии с требованиями
СП 1.13130 в отношении конструктивных решений и применяемых материалов.
Зона безопасности должна быть отделена от других помещений и примыкающих коридоров противопожарными преградами, имеющими пределы огнестойкости: стены, перегородки, перекрытия - не менее REI 60, двери и окна - первого типа.
Следует отметить, что
СП 1.13130 не содержит требований к безопасным зонам.
Таким образом, представляется целесообразным при плановых пересмотрах
СП 158.13330 и
СП 1.13130 провести согласованную корректировку их положений, исключающую противоречия.
8.2.3.8 Класс пожарной опасности конструкций безопасных зон должен быть К0. Класс пожарной опасности материалов отделки и покрытий должен быть КМ0. |
Комментарий:
| | ИС МЕГАНОРМ: примечание. В официальном тексте документа, видимо, допущена опечатка: пункт 5.2.29 в СП 59.13330 отсутствует. | |
Согласно п. 5.2.29
СП 59.13330 зона безопасности должна быть запроектирована в соответствии с требованиями
СП 1.13130 в отношении конструктивных решений и применяемых материалов.
Следует отметить, что
СП 1.13130 не содержит требований к безопасным зонам.
8.2.3.9 Безопасная зона должна быть незадымляемой. При пожаре в безопасной зоне или в тамбур-шлюзе при ней должно создаваться избыточное давление. В шахтах лифтов с выходами в безопасную зону должен быть создан подпор воздуха. |
Комментарий:
| | ИС МЕГАНОРМ: примечание. В официальном тексте документа, видимо, допущена опечатка: пункт 5.2.29 в СП 59.13330 отсутствует. | |
Согласно п. 5.2.29
СП 59.13330, зона безопасности должна быть незадымляемой. При пожаре в ней должно создаваться избыточное давление 20 Па при одной открытой двери эвакуационного выхода. Согласно
п. 6.59 СП 118.13330, зона безопасности в здании должна быть незадымляемой или отделяться от других помещений незадымляемыми шлюзами. При пожаре в ней или шлюзе должно создаваться избыточное давление от 20 до 40 Па.
В связи с тем, что в зонах типа А зданий медицинских организаций расчетная площадь безопасных зон может быть значительной и с учетом того, что подпор воздуха обеспечивается неподготовленным воздухом, в том числе в зимнее время, а также учитывая физическое состояние пациентов, в ряде случаев может быть целесообразно обеспечивать незадымляемость безопасной зоны тамбур-шлюзом с подпором воздуха, что с технической точки зрения соответствует требованиям к незадымляемым лестницам типа Н3 (
п. 3 части 3 статьи 40 Федерального закона
[2]) и согласуется с
[7] -
[10].
1. Федеральный
закон от 30 декабря 2009 г. N 384-ФЗ "Технический регламент о безопасности зданий и сооружений"
2. Федеральный
закон от 22 июля 2008 г. N 123-ФЗ "Технический регламент о требованиях пожарной безопасности"
3.
Правила противопожарного режима в Российской Федерации, утвержденные постановлением Правительства Российской Федерации от 25 апреля 2012 года N 390
4.
Приказ Федерального агентства по техническому регулированию и метрологии от 16 апреля 2014 г. N 474 (в ред. Приказов Росстандарта от 08.07.2014 N 1074, от 26.11.2014 N 1894, от 20.03.2015 N 337, от 25.02.2016 N 177) "Об утверждении перечня документов в области стандартизации, в результате применения которых на добровольной основе обеспечивается соблюдение требований Федерального
закона от 22 июля 2008 г. N 123-ФЗ "Технический регламент о требованиях пожарной безопасности"
5.
Приказ МЧС России от 30.06.2009 N 382 (в редакции приказа МЧС России N 749 от 12.12.2011 г. и приказа МЧС России N 632 от 02.12.2015 года) "Об утверждении методики определения расчетных величин пожарного риска в зданиях, сооружениях и строениях различных классов функциональной пожарной опасности" (зарегистрировано в Минюсте России 06.08.2009 N 14486)
6. ISO 21542:2011 Building construction - Accessibility and usability of the built environment.
7. NFPA 101 Life Safety Code 2015 edition, National Fire Protection Association
8. BS 9999:2008 Code of practice for fire safety in the design, management and buildings@British Standards Institution (BSI)
9. Health Technical Memorandum 05-02: Firecode Guidance in support of functional provisions (Fire safety in the design of healthcare premises) 2015 edition. Department of Health of United Kingdom.
10. Regola tecnica di prevenzione incendi per la progettazione, costruzione ed esercizio delle strutture sanitarie, pubbliche e private. Ministero dell'Interno, GU n. 227 del 27-9-2002 (con Aggiornamento D.M. 19-03-2015) (it)
11. Руководство по инфекционному контролю в стационаре. Пер. с англ./Под ред. Р. Венцеля, Т. Бревера, Ж.-П. Бутцлера/Смоленск: МАКМАХ, 2003 г. (A Guide to Infection Control in the Hospital. An official publication of the International Society for Infectious Diseases. 2nd Edition. Editors: R. Wenzel, T. Brewer, J.-P. Butzler. BC Decker Inc Hamilton, London, 2002)
12. Principi guida tecnici, organizzativi e gestionali per la realizzazione e gestione di ospedali ad alta tecnologia e assistenza. Progetto di ricerca finalizzata. Rapporto conclusive. Roma. 2003 (it.)
13. Практическое руководство по биологической безопасности в лабораторных условиях. Третье издание. Всемирная организация здравоохранения, Женева, 2004 г.
14. Обеспечение эпидемиологической безопасности при технологиях ухода за новорожденным в условиях совместного пребывания матери и ребенка. Федеральные клинические рекомендации. Москва. 2015 г.
15. Клинико-организационное руководство по организации работы акушерского стационара на основе новых технологий родовспоможения и инфекционного контроля.
ПРИМЕР МЕДИКО-ТЕХНИЧЕСКОГО ЗАДАНИЯ
НА ПРОЕКТИРОВАНИЕ МЕДИЦИНСКОЙ ОРГАНИЗАЦИИ
"УТВЕРЖДАЮ" "СОГЛАСОВАНО"
____________/________________ ____________/________________
М. П. "___" ________ 20__ г. М. П. "___" ________ 20__ г.
МЕДИКО-ТЕХНИЧЕСКОЕ ЗАДАНИЕ
по объекту
"Инфекционная больница на 100 коек"
"СОГЛАСОВАНО"
___________/______________
М.П.
"___" _________ 20__ г.
Москва, 2018 г.
N п/п | Перечень основных данных требований | Основные данные и требования |
| Место расположения | |
1 | Основание для проектирования | |
2 | Государственный заказчик | |
3 | Вид строительства | Новое строительство |
4 | Тип строительства | Жилищно-гражданское строительство |
5 | Назначение объекта | Медицинское учреждение, оказывающее специализированную медицинскую помощь детям и взрослым с инфекционными заболеваниями |
| Основные условия для проектирования | Проектирование вести в соответствии с требованиями действующих нормативных документов по проектированию применительно к данному объекту, порядков оказания соответствующих видов медицинской помощи, утвержденных Министерством здравоохранения РФ |
6 | Сроки начала и окончания строительства | Начало - ________ год Ввод в эксплуатацию - не позднее ________ года |
7 | Общее число коек и мощность поликлиники | Стационар на 100 коек Центр по профилактике и борьбе с инфекционными болезнями на 50 посещений в смену |
8 | Требования к режиму работы | Круглосуточный |
9 | Структура подразделений и помещений | Структура и ориентировочные площади объекта: |
NN | Наименование подразделения |
1. | Входная группа помещений |
2. | Стационар на 100 коек |
2.1. | Приемное отделение |
2.2. | Боксированное отделение воздушно-капельных инфекций для детей совместного пребывания матери и ребенка на 25 коек |
2.3. | Боксированное диагностическое отделение для детей совместного пребывания матери и ребенка на 25 коек |
2.4. | Палатное отделение кишечных инфекций для детей совместного пребывания матери и ребенка на 25 коек |
2.5. | Палатное отделение гемоконтактных инфекций на 25 коек |
2.6. | Отделение реанимации и интенсивной терапии на 6 коек |
3. | Центр по профилактике и борьбе с инфекционными болезнями на 50 посещений в смену |
3.1. | Вестибюльно-регистрационная группа помещений |
3.2. | Кабинет врача-инфекциониста |
3.3. | Блок диагностических кабинетов |
3.4. | Амбулаторно-поликлиническое отделение по работе с больными ВИЧ-инфекцией |
3.5. | Дневной стационар на 10 коек |
4. | Вспомогательные подразделения |
4.1. | Внутрибольничная аптека |
4.2. | Клинико-диагностическая лаборатория |
4.3. | Центральное стерилизационное отделение |
5. | Хозяйственные подразделения |
5.1. | Пищеблок |
5.2. | Дезинфекционное отделение |
5.3. | Блок помещений для обработки и хранения медицинских отходов |
5.4. | Теплая стоянка на 6 машин |
5.5. | Пункт для дезинфекции автотранспорта |
6. | Административные и служебно-бытовые помещения |
7. | Контрольно-пропускной пункт |
8. | Помещения клинической кафедры |
10 | Задачи, выполняемые инфекционной больницей | - оказание специализированной медицинской помощи в соответствии с утвержденными стандартами медицинской помощи; - проведение мероприятий по повышению квалификации медицинского персонала инфекционной больницы и иных медицинских организаций; - организационно-методическое руководство отделениями (кабинетами) инфекционных болезней поликлиник; - анализ медицинской деятельности, изучение причин летальных исходов и отдельных результатов лечения инфекционных и паразитарных заболеваний, в том числе изучения причин летальных исходов; - организационно-методическая помощь кабинетам инфекционных заболеваний по вопросам диагностики, лечения и профилактики инфекционных и паразитарных заболеваний и иммунопрофилактики; - своевременное предоставление в установленном порядке сведений о регистрируемой инфекционной заболеваемости, возникновении или выявлении случаев внутрибольничной инфекции, поздней госпитализации больного и иных сведений |
11 | Территория инфекционной больницы | Планирование территории осуществить в соответствии с требованиями СП 158.13330.2014 "Здания и помещения медицинских организаций. Правила проектирования" и СП 42.13330.2016 "Градостроительство. Планировка и застройка городских и сельских поселений". В соответствии с требованиями градостроительных планов земельных участков с кадастровыми номерами 11:05:0105018:378 общей площадью 11 918 м2, 11:05:0105018:42 общей площадью 9 349 м2, 11:05:0105018:373 общей площадью 4 519 м2. |
Предусмотреть ограждение территории. Предусмотреть следующие въезды на территорию: - основной въезд, каждый основной въезд дополнительно должен быть оборудован шлагбаумом; - въезд для машин скорой помощи; - въезд в зону хозяйственного обеспечения. При въезде предусмотреть пост охраны с пропускным пунктом. На посту охраны предусмотреть городской и местный телефоны, тревожную кнопку с выводом сигнала на пульт полиции, пульт дистанционного управления открытием и закрытием распашных ворот и шлагбаумов с электромеханическим приводом. Предусмотреть оборудованную площадку для временного складирования отходов под навесом с сетчатым ограждением и запирающимися на замок дверями. Проектом предусмотреть автостоянку для автотранспорта сотрудников и посетителей. Общее количество машиномест определить расчетом по СП 158.13330.2014 |
12 | Входные пути | Входные пути запроектировать в соответствии с требованиями СП 158.13330.2014 "Здания и помещения медицинских организаций. Правила проектирования". Прием пациентов, в том числе с подозрением на особо опасные инфекции, осуществляется через индивидуальные приемно-смотровые боксы, что полностью исключает возможность пересечения пациентов с различными видами инфекций. Разделение на детское и взрослое отделение не требуется |
13 | Требования к диагностическому блоку | Диагностический блок и кабинеты медицинской диагностики запроектировать в соответствии с требованиями СП 158.13330.2014 "Здания и помещения медицинских организаций. Правила проектирования". Состав диагностических кабинетов уточнить в Программе на проектирование и согласовать с Заказчиком и Министерством здравоохранения |
14 | Требования к палатным отделениям | Палатные отделения запроектировать в соответствии с требованиями СП 158.13330.2014 "Здания и помещения медицинских организаций. Правила проектирования". Состав помещений палатных отделений определить в Программе на проектирование и согласовать с Заказчиком и Министерством здравоохранения. В отделениях предусмотреть одно- и двухместные палаты. Минимальная площадь палат должна приниматься в соответствии с требованиями СП 158.13330.2014 "Здания и помещения медицинских организаций. Правила проектирования". Палата должна быть оборудована: - больничными функциональными кроватями; - прикроватными тумбочками; - палатным столом; - стульями; - вешалкой; - однокамерным холодильником; - настенным телевизором; - больничной палатной с вызывной сигнализацией. Во всех палатах, над каждой койкой предусмотреть медицинские консоли |
15 | Требования к отделениям реанимации и интенсивной терапии | Отделения реанимации и интенсивной терапии запроектировать в соответствии с СП 158.13330.2014 "Здания и помещения медицинских организаций. Правила проектирования". Оснащение отделения реанимации и интенсивной терапии разработать, исходя из профиля больницы, и согласовать с Заказчиком и Министерством здравоохранения. Состав помещений определить в Программе на проектирование в соответствии с настоящим Медико-техническим заданием и согласовать с Заказчиком и Министерством здравоохранения |
16 | Требования к отделению лабораторной диагностики | Отделение лабораторной диагностики запроектировать в соответствии с СП 158.13330.2014 "Здания и помещения медицинских организаций. Правила проектирования". Оснащение отделения лабораторной диагностики разработать, исходя из профиля лабораторий, и согласовать с Заказчиком и Министерством здравоохранения. Состав помещений определить в Программе на проектирование в соответствии с настоящим Медико-техническим заданием и согласовать с Заказчиком и Министерством здравоохранения |
17 | Общие требования к вспомогательным, хозяйственным и административным и служебно-бытовым подразделениям | Проектирование вести в соответствии с СП 158.13330.2014 "Здания и помещения медицинских организаций. Правила проектирования". Мощности пищеблока, дезинфекционного отделения и других вспомогательных и хозяйственных подразделений определить проектом и согласовать с Министерством здравоохранения и Заказчиком. Состав помещений определить в Программе на проектирование в соответствии с настоящим Медико-техническим заданием и согласовать с Заказчиком и Министерством здравоохранения |
18 | Штатное расписание | Разработать штатное расписание в соответствии с действующими приказами Министерства здравоохранения Российской Федерации |
19 | Организация питания больных | Проектирование пищеблока и систему организации питания больных вести в соответствии с требованиями СП 158.13330.2014 |
20 | Общие требования к архитектурным решениям и отделке помещений | Планировочная структура здания должна обеспечивать поточность (последовательность) технологических процессов, оптимизацию путей движения основных потоков персонала, больных, больничных грузов с целью минимизации их протяженности и удобства больных, посетителей и персонала. Разработать и согласовать с Департаментом архитектуры проект архитектурного оформления фасадов |
21 | Медицинская информационная система | Рабочие места и сети, соответствующие действующему регламенту Медицинской информационной системы. Проектом предусмотреть возможность оснащения больницы медицинской информационной системой со следующим обязательным функционалом: - оснащение рабочих мест главного врача, заведующих отделениями, врачей в ординаторских, на сестринских постах, в техническом подразделении и др.; - установка сервера баз данных медицинской информационной системы; - возможность главному врачу проведения селекторной связи с видеовводом с рабочего места заведующих отделений и операционными; - информационное взаимодействие подразделений больницы; - обеспечение ведения и хранения электронных историй болезни и электронной персональной медицинской записи (ЭПМЗ), согласно ГОСТ Р 52636-2006. Под ЭПМЗ понимается описание проведенного осмотра или обследования, в том числе лабораторного или инструментального, консультации, назначения, выполненной операции или процедуры, обобщенного заключения о состоянии больного, оформленного в электронном виде. Проектом предусмотреть необходимое количество серверов и оснащение рабочих мест необходимым количеством компьютерной и оргтехники |
22 | Общие требования к инженерному обеспечению | Проектировать инженерные сети в соответствии с СП 158.13330.2014 "Здания и помещения медицинских организаций. Правила проектирования", а также Заданием на проектирование. |
Сведения об инженерном обеспечении объекта: - сети электроснабжения; - сети холодного водоснабжения; - сети водоотведения; - сети теплоснабжения; - слаботочные сети; - сети газоснабжения. |
Проектирование вести в соответствии с техническими условиями на присоединение объекта к инженерным сетям |
Медицинское газоснабжение Предусмотреть кислородно-распределительный пункт для подачи медицинских газов: - кислорода; - сжатого воздуха; - вакуума; - закиси азота |
23 | Технологическое оборудование | Предусмотреть комплектацию инфекционной больницы современным медицинским и технологическим оборудованием, медицинской и офисной мебелью в соответствии со стандартами оказания медицинской помощи по профилю. В проект включить только медицинскую технику и медицинскую мебель, прошедшие регистрацию в Минздраве РФ (ФС "Росздравнадзор"), и имеющие регистрационное удостоверение, и соответствующие санитарно-гигиеническим требованиям |
НА ПРОЕКТИРОВАНИЕ МЕДИЦИНСКОЙ ОРГАНИЗАЦИИ
АО "ГИПРОЗДРАВ -
научно-проектный центр по объектам здравоохранения и отдыха"
"УТВЕРЖДАЮ"
_______________________
"___" _________ 2018 г.
Программа на проектирование объекта:
ИНФЕКЦИОННАЯ БОЛЬНИЦА НА 100 КОЕК
Генеральный директор
Главный технолог
МОСКВА 2018 г.
Сводная таблица площадей
N | Наименование помещения | Рабочая площадь (м2) |
1 | Входная группа помещений | 154 |
2 | Стационар на 100 коек | 3034 |
2.1 | Приемное отделение | 245 |
2.2 | Боксированное отделение воздушно-капельных инфекций для детей на 25 коек | 692 |
2.3 | Палатное отделение кишечных инфекций для детей совместного пребывания матери и ребенка на 25 коек | 618 |
2.4 | Палатное диагностическое отделение для детей совместного пребывания матери и ребенка на 25 коек | 618 |
2.5 | Палатное отделение гемоконтактных инфекций на 25 коек | 497 |
2.6 | Отделение реанимации и интенсивной терапии на 6 коек | 364 |
3 | Центр по профилактике и борьбе с инфекционными болезнями на 50 посещений в смену | 1061 |
3.1 | Вестибюльно-регистрационная группа помещений | 229 |
3.2 | Кабинет врача-инфекциониста | 2 x 62 |
3.3 | Блок диагностических кабинетов | 183 |
3.4 | Амбулаторно-поликлиническое отделение по работе с больными ВИЧ-инфекцией | 270 |
3.5 | Дневной стационар на 10 коек | 255 |
4 | Вспомогательные подразделения | 533 |
4.1 | Внутрибольничная аптека | 55 |
4.2 | Клинико-диагностическая лаборатория | 323 |
4.3 | Центральное стерилизационное отделение | 155 |
5 | Хозяйственные подразделения | 693 |
5.1 | Пищеблок | 190 |
5.2 | Дезинфекционное отделение | 94 |
5.3 | Блок помещений для обработки и хранения медицинских отходов | 75 |
5.4 | Теплая стоянка на 6 машин | 270 |
5.5 | Пункт для дезинфекции автотранспорта | 64 |
6 | Административные и служебно-бытовые помещения | 651 |
7 | Контрольно-пропускной пункт | 2 x 21 |
| Итого | 6168 |
Ориентировочная общая площадь 6168 x 2,5 = 15420 м2
1 Входная группа помещений |
NN | Наименование помещения | Кол-во | Пл. ед. (м2) | Пл. сумм. (м2) |
1 | Вестибюль | 1 | 80 | 80 |
2 | Уборная для посетителей (женская) | 1 | 6 | 6 |
3 | Уборная для посетителей (мужская) | 1 | 5 | 5 |
4 | Уборная универсальная | 1 | 4 | 4 |
5 | Гардеробная уличной одежды посетителей | 1 | 25 | 25 |
6 | Помещение охраны | 1 | 10 | 10 |
7 | Справочная | 1 | 6 | 6 |
8 | Киоск аптечный | 1 | 18 | 18 |
| Итого | | | 154 |
2 Стационар на 100 коек |
2.1 Приемное отделение |
2.1.1 Помещения приема |
N | Наименование помещения | Кол-во | Пл. ед. (м2) | Пл. сумм. (м2) |
1 | Место для хранения каталок и передвижных кресел | 1 | 6 | 6 |
2 | Бокс приемно-смотровой с уборной (смотровая, уборная, наружный тамбур, шлюз) 16 + 3 + 2 + 2 | 4 | 23 | 92 |
3 | Шлюз при входе в секцию | 1 | 6 | 6 |
4 | Санитарная комната | 1 | 8 | 8 |
5 | Тамбур наружный | 1 | 2 | 2 |
6 | Реанимационный зал | 1 | 36 | 36 |
7 | Предреанимационная | 1 | 12 | 12 |
8 | Слив | 1 | 2 | 2 |
| Итого | | | 164 |
2.1.2 Санитарный пропускник для больных |
N | Наименование помещения | Кол-во | Пл. ед. (м2) | Пл. сумм. (м2) |
1 | Санитарный пропускник для больных с ванной с подъемником и душем | 1 | 14 | 14 |
2 | Санитарный пропускник для больных: одевальная | 1 | 6 | 6 |
3 | Санитарный пропускник: уборная | 1 | 3 | 3 |
4 | Помещение для временного хранения вещей больных | 1 | 6 | 6 |
| Итого | | | 29 |
2.1.3 Общие помещения отделения |
N | Наименование помещения | Кол-во | Пл. ед. (м2) | Пл. сумм. (м2) |
1 | Комната дежурных врачей | 1 | 12 | 12 |
2 | Комната персонала | 1 | 9 | 9 |
3 | Комната сестры-хозяйки с местом для хранения чистого белья | 1 | 12 | 12 |
4 | Кладовая одежды и обуви | 1 | 4 | 4 |
5 | Ожидальная | 1 | 12 | 12 |
6 | Уборная для персонала | 1 | 3 | 3 |
| Итого | | | 52 |
| 2.1 ВСЕГО | | | 245 |
2.2 Боксированное отделение воздушно-капельных инфекций для детей на 25 коек |
2.2.1 Боксированная секция на 25 коек |
N | Наименование помещения | Кол-во | Пл. ед. (м2) | Пл. сумм. (м2) |
1 | Шлюз при входе в секцию | 1 | 6 | 6 |
2 | Бокс на 1 койку с наружным тамбуром, шлюзом и санузлом с душем | 7 | 28 | 196 |
3 | Бокс на 2 койки с наружным тамбуром, шлюзом и санузлом с душем | 9 | 36 | 324 |
4 | Помещение для подготовки инфузионных систем | 1 | 12 | 12 |
5 | Пост дежурной медицинской сестры с подсобным помещением (6 + 6) | 1 | 12 | 12 |
6 | Буфетная | 1 | 9 | 9 |
7 | Моечная столовой посуды | 1 | 9 | 9 |
8 | Санитарная комната | 1 | 8 | 8 |
| Итого | | | 576 |
2.2.2 Общие помещения отделения |
N | Наименование помещения | Кол-во | Пл. ед. (м2) | Пл. сумм. (м2) |
1 | Санитарный пропускник для персонала с душевой | 2 | 10 | 20 |
2 | Кабинет заведующего отделением | 1 | 16 | 16 |
3 | Комната старшей медицинской сестры с местом для хранения медикаментов | 1 | 14 | 14 |
4 | Ординаторская | 1 | 12 | 12 |
5 | Кабинет дежурного врача | 1 | 10 | 10 |
6 | Комната персонала | 1 | 12 | 12 |
7 | Комната сестры-хозяйки с местом для хранения чистого белья | 1 | 12 | 12 |
8 | Кладовая мягкого инвентаря | 1 | 6 | 6 |
9 | Помещение хранения переносной аппаратуры | 1 | 8 | 8 |
10 | Уборная для персонала | 2 | 3 | 6 |
| Итого | | | 116 |
| 2.2 ВСЕГО | | | 692 |
2.3 Палатное отделение кишечных инфекций для детей совместного пребывания матери и ребенка на 25 коек |
2.3.1 Палатная секция на 25 коек |
N | Наименование помещения | Кол-во | Пл. ед. (м2) | Пл. сумм. (м2) |
1 | Шлюз при входе в секцию | 1 | 6 | 6 |
2 | Буфетная | 1 | 9 | 9 |
3 | Моечная столовой посуды | 1 | 9 | 9 |
4 | Помещение хранения переносной аппаратуры | 1 | 8 | 8 |
5 | Помещение хранения предметов уборки | 1 | 4 | 4 |
6 | Палата на 1 кроватку с круглосуточным пребыванием матери со шлюзом и санузлом (14 + 3 + 4) | 5 | 21 | 105 |
7 | Палата на 2 койки и 2 кроватки со шлюзом и санузлом (24 + 3 + 4) | 10 | 31 | 310 |
8 | Процедурная | 1 | 12 | 12 |
9 | Санитарная комната | 1 | 8 | 8 |
10 | Пост дежурной медицинской сестры с подсобным помещением | 1 | 16 | 16 |
11 | Ванная-клизменная с уборной (12 + 3) | 1 | 15 | 15 |
| Итого | | | 502 |
2.3.2 Общие помещения отделения |
N | Наименование помещения | Кол-во | Пл. ед. (м2) | Пл. сумм. (м2) |
1 | Санитарный пропускник для персонала с душевой | 2 | 10 | 20 |
2 | Кабинет заведующего отделением | 1 | 16 | 16 |
3 | Комната старшей медицинской сестры с местом для хранения медикаментов | 1 | 14 | 14 |
4 | Ординаторская | 1 | 12 | 12 |
5 | Кабинет дежурного врача | 1 | 10 | 10 |
6 | Комната персонала | 1 | 12 | 12 |
7 | Комната сестры-хозяйки с местом для хранения чистого белья | 1 | 12 | 12 |
8 | Кладовая мягкого инвентаря | 1 | 6 | 6 |
9 | Помещение хранения переносной аппаратуры | 1 | 8 | 8 |
10 | Уборная для персонала | 2 | 3 | 6 |
| Итого | | | 116 |
| 2.3 ВСЕГО | | | 618 |
2.4 Палатное диагностическое отделение для детей совместного пребывания матери и ребенка на 25 коек |
2.4.1 Палатная секция на 25 коек |
N | Наименование помещения | Кол-во | Пл. ед. (м2) | Пл. сумм. (м2) |
1 | Шлюз при входе в секцию | 1 | 6 | 6 |
2 | Буфетная | 1 | 9 | 9 |
3 | Моечная столовой посуды | 1 | 9 | 9 |
4 | Помещение хранения переносной аппаратуры | 1 | 8 | 8 |
5 | Помещение хранения предметов уборки | 1 | 4 | 4 |
6 | Палата на 1 кроватку с круглосуточным пребыванием матери со шлюзом и санузлом (14 + 3 + 4) | 5 | 21 | 105 |
7 | Палата на 2 койки и 2 кроватки со шлюзом и санузлом (24 + 3 + 4) | 10 | 31 | 310 |
8 | Процедурная | 1 | 12 | 12 |
9 | Санитарная комната | 1 | 8 | 8 |
10 | Пост дежурной медицинской сестры с подсобным помещением | 1 | 16 | 16 |
11 | Ванная-клизменная с уборной (12 + 3) | 1 | 15 | 15 |
| Итого | | | 502 |
2.4.2 Общие помещения отделения |
N | Наименование помещения | Кол-во | Пл. ед. (м2) | Пл. сумм. (м2) |
1 | Санитарный пропускник для персонала с душевой | 2 | 10 | 20 |
2 | Кабинет заведующего отделением | 1 | 16 | 16 |
3 | Комната старшей медицинской сестры с местом для хранения медикаментов | 1 | 14 | 14 |
4 | Ординаторская | 1 | 12 | 12 |
5 | Кабинет дежурного врача | 1 | 10 | 10 |
6 | Комната персонала | 1 | 12 | 12 |
7 | Комната сестры-хозяйки с местом для хранения чистого белья | 1 | 12 | 12 |
8 | Кладовая мягкого инвентаря | 1 | 6 | 6 |
9 | Помещение хранения переносной аппаратуры | 1 | 8 | 8 |
10 | Уборная для персонала | 2 | 3 | 6 |
| Итого | | | 116 |
| 2.4 ВСЕГО | | | 618 |
2.5 Палатное отделение гемоконтактных инфекций на 25 коек |
2.5.1 Палатная секция на 25 коек |
N | Наименование помещения | Кол-во | Пл. ед. (м2) | Пл. сумм. (м2) |
1 | Шлюз при входе в секцию | 1 | 6 | 6 |
2 | Палата на 1 койку со шлюзом и санузлом (12 + 3 + 4) | 3 | 19 | 57 |
3 | Палата на 2 койки со шлюзом и санузлом (8 x 2 + 3 + 4) | 11 | 23 | 253 |
4 | Помещение для подготовки инфузионных систем | 1 | 12 | 12 |
5 | Пост дежурной медицинской сестры с подсобным помещением (6 + 6) | 1 | 12 | 12 |
6 | Буфетная | 1 | 9 | 9 |
7 | Моечная столовой посуды | 1 | 9 | 9 |
8 | Санитарная комната | 1 | 8 | 8 |
9 | Клизменная со шлюзом и уборной | 1 | 15 | 15 |
| Итого | | | 381 |
2.5.2 Общие помещения отделения |
N | Наименование помещения | Кол-во | Пл. ед. (м2) | Пл. сумм. (м2) |
1 | Санитарный пропускник для персонала с душевой | 2 | 10 | 20 |
2 | Кабинет заведующего отделением | 1 | 16 | 16 |
3 | Комната старшей медицинской сестры с местом для хранения медикаментов | 1 | 14 | 14 |
4 | Ординаторская | 1 | 12 | 12 |
5 | Кабинет дежурного врача | 1 | 10 | 10 |
6 | Комната персонала | 1 | 12 | 12 |
7 | Комната сестры-хозяйки с местом для хранения чистого белья | 1 | 12 | 12 |
8 | Кладовая мягкого инвентаря | 1 | 6 | 6 |
9 | Помещение хранения переносной аппаратуры | 1 | 8 | 8 |
10 | Уборная для персонала | 2 | 3 | 6 |
| Итого | | | 116 |
| 2.5 ВСЕГО | | | 497 |
2.6. Отделение реанимации и интенсивной терапии на 6 коек |
2.6.1 Секция реанимации и интенсивной терапии на 6 коек |
N | Наименование помещения | Кол-во | Пл. ед. (м2) | Пл. сумм. (м2) |
1 | Шлюз при входе в секцию | 1 | 6 | 6 |
2 | Палата интенсивной терапии на 1 место со сливом и шлюзом (18 + 2 + 4) | 6 | 24 | 144 |
3 | Пост дежурной медицинской сестры | 2 | 6 | 12 |
4 | Помещение хранения медикаментов, наркотических и психотропных препаратов | 1 | 6 | 6 |
5 | Помещение для подготовки инфузионных систем | 1 | 12 | 12 |
| Итого | | | 180 |
2.6.2 Лаборатория срочных анализов |
N | Наименование помещения | Кол-во | Пл. ед. (м2) | Пл. сумм. (м2) |
1 | Комната дежурного лаборанта | 1 | 10 | 10 |
2 | Моечная лабораторной посуды | 1 | 10 | 10 |
3 | Лаборатория срочных анализов | 1 | 12 | 12 |
| Итого | | | 32 |
2.6.3 Общие помещения отделения |
N | Наименование помещения | Кол-во | Пл. ед. (м2) | Пл. сумм. (м2) |
1 | Кабинет заведующего отделением | 1 | 16 | 16 |
2 | Комната старшей медицинской сестры с местом для хранения медикаментов | 1 | 14 | 14 |
3 | Ординаторская | 1 | 12 | 12 |
4 | Кабинет дежурного врача | 1 | 10 | 10 |
5 | Комната персонала | 1 | 12 | 12 |
6 | Комната сестры-хозяйки с местом для хранения чистого белья | 1 | 12 | 12 |
7 | Кладовая мягкого инвентаря | 1 | 6 | 6 |
8 | Помещение выписки больных | 1 | 8 | 8 |
9 | Уборная для персонала | 2 | 3 | 6 |
10 | Комната для хранения передвижного рентгеновского аппарата | 1 | 6 | 6 |
11 | Помещение хранения переносной аппаратуры | 1 | 12 | 12 |
12 | Буфетная | 1 | 9 | 9 |
13 | Моечная столовой посуды | 1 | 9 | 9 |
14 | Санитарный пропускник для персонала с душевой | 2 | 10 | 20 |
| Итого | | | 152 |
| 2.6 ВСЕГО | | | 364 |
| 2 ВСЕГО | | | 3034 |
3 Центр по профилактике и борьбе с инфекционными болезнями на 50 посещений в смену |
3.1 Вестибюльно-регистрационная группа помещений |
N | Наименование помещения | Кол-во | Пл. ед. (м2) | Пл. сумм. (м2) |
1 | Вестибюль | 1 | 150 | 150 |
2 | Гардеробная уличной одежды посетителей | 1 | 15 | 15 |
3 | Регистратура | 1 | 12 | 12 |
4 | Регистратура: помещение для оформления листов нетрудоспособности | 1 | 8 | 8 |
5 | Помещение охраны и пожарного поста | 1 | 15 | 15 |
6 | Помещение хранения предметов уборки | 1 | 4 | 4 |
7 | Уборная для посетителей (женская) | 1 | 6 | 6 |
8 | Уборная для посетителей (мужская) | 1 | 5 | 5 |
9 | Уборная универсальная | 1 | 4 | 4 |
10 | Договорный отдел | 1 | 10 | 10 |
| Итого | | | 229 |
3.2 Кабинет врача-инфекциониста - 2 кабинета |
N | Наименование помещения | Кол-во | Пл. ед. (м2) | Пл. сумм. (м2) |
1 | Кабинет врача-инфекциониста | 1 | 12 | 12 |
2 | Процедурная | 1 | 12 | 12 |
3 | Процедурная ректороманоскопии | 1 | 18 | 18 |
4 | Санитарная комната | 1 | 5 | 5 |
5 | Клизменная со шлюзом и уборной | 1 | 15 | 15 |
| Итого | 2 | 62 | 124 |
3.3 Блок диагностических кабинетов |
3.3.1 Рентгендиагностический кабинет для общих исследований |
N | Наименование помещения | Кол-во | Пл. ед. (м2) | Пл. сумм. (м2) |
1 | Процедурная рентгендиагностическая для общих исследований | 1 | 24 | 24 |
2 | Комната управления | 1 | 15 | 15 |
3 | Кабина для раздевания | 2 | 2 | 4 |
4 | Кабинет врача | 1 | 10 | 10 |
5 | Уборная для больных | 1 | 3 | 3 |
| Итого | | | 56 |
3.3.2 Эндоскопический кабинет |
N | Наименование помещения | Кол-во | Пл. ед. (м2) | Пл. сумм. (м2) |
1 | Помещение мытья и дезинфекции эндоскопической аппаратуры | 1 | 8 | 8 |
2 | Процедурная гастроскопии | 1 | 18 | 18 |
3 | Процедурная колоноскопии и ректоскопии | 1 | 18 | 18 |
4 | Уборная для больных | 1 | 3 | 3 |
| Итого | | | 47 |
3.3.3 Рентген-флюорографический кабинет |
N | Наименование помещения | Кол-во | Пл. ед. (м2) | Пл. сумм. (м2) |
1 | Кабинет рентген-флюорографический | 1 | 14 | 14 |
2 | Кабина для раздевания | 1 | 2 | 2 |
3 | Кабинет врача-рентгенолога | 1 | 10 | 10 |
| Итого | | | 26 |
3.3.4 Кабинеты функциональной диагностики и ультразвуковых исследований |
N | Наименование помещения | Кол-во | Пл. ед. (м2) | Пл. сумм. (м2) |
1 | Кабинет ультразвуковых исследований | 1 | 18 | 18 |
2 | Кабинет ЭКГ и исследования функций внешнего дыхания и основного обмена | 1 | 18 | 18 |
3 | Кабинет электроэнцефалографии | 1 | 18 | 18 |
| Итого | | | 54 |
| 3.3 ВСЕГО | | | 183 |
3.4 Амбулаторно-поликлиническое отделение по работе с больными ВИЧ-инфекцией |
3.4.1 Входная группа помещений |
N | Наименование помещения | Кол-во | Пл. ед. (м2) | Пл. сумм. (м2) |
1 | Вестибюль | 1 | 40 | 40 |
2 | Гардеробная уличной одежды посетителей | 1 | 8 | 8 |
3 | Уборная универсальная | 1 | 4 | 4 |
4 | Регистратура | 1 | 10 | 10 |
5 | Регистратура: помещение для оформления листов нетрудоспособности | 1 | 8 | 8 |
6 | Кабинет отдела лекарственного обеспечения | 1 | 12 | 12 |
7 | Уборная для посетителей | 1 | 3 | 3 |
| Итого | | | 85 |
3.4.2 Кабинеты врачебного приема |
N | Наименование помещения | Кол-во | Пл. ед. (м2) | Пл. сумм. (м2) |
1 | Ожидальная | 1 | 48 | 48 |
2 | Кабинет врача-инфекциониста | 1 | 12 | 12 |
3 | Кабинет врача-терапевта | 1 | 12 | 12 |
4 | Кабинет врача-фтизиатра | 1 | 15 | 15 |
5 | Кабинет врача-дерматовенеролога | 1 | 12 | 12 |
6 | Кабинет врача акушера-гинеколога со смотровой (10 + 16) | 1 | 26 | 26 |
7 | Процедурная | 1 | 12 | 12 |
8 | Кабинет врача-невролога | 1 | 12 | 12 |
9 | Кабинет врача-эпидемиолога | 1 | 12 | 12 |
| Итого | | | 161 |
3.4.3 Блок кабинетов медико-социальной помощи |
N | Наименование помещения | Кол-во | Пл. ед. (м2) | Пл. сумм. (м2) |
1 | Кабинет социально-правовой помощи | 1 | 12 | 12 |
2 | Кабинет психолога | 1 | 12 | 12 |
| Итого | | | 24 |
| 3.4 ВСЕГО | | | 270 |
3.5 Дневной стационар на 10 коек |
3.5.1 Палатная секция на 10 коек |
N | Наименование помещения | Кол-во | Пл. ед. (м2) | Пл. сумм. (м2) |
1 | Шлюз при входе в секцию | 1 | 6 | 6 |
2 | Пост дежурной медицинской сестры с подсобным помещением | 1 | 16 | 16 |
3 | Помещение для подготовки инфузионных систем | 1 | 12 | 12 |
4 | Санитарная комната | 1 | 8 | 8 |
5 | Палата на 1 койку со шлюзом и санузлом (12 + 3 + 4) | 2 | 19 | 38 |
6 | Палата на 2 койки со шлюзом и санузлом (8 x 2 + 3 + 4) | 4 | 23 | 92 |
| Итого | | | 172 |
3.5.2 Общие помещения отделения |
N | Наименование помещения | Кол-во | Пл. ед. (м2) | Пл. сумм. (м2) |
1 | Кабинет заведующего отделением | 1 | 16 | 16 |
2 | Комната старшей медицинской сестры с местом для хранения медикаментов | 1 | 14 | 14 |
3 | Ординаторская | 1 | 12 | 12 |
4 | Комната персонала | 1 | 12 | 12 |
5 | Комната сестры-хозяйки с местом для хранения чистого белья | 1 | 12 | 12 |
6 | Кладовая мягкого инвентаря | 1 | 6 | 6 |
7 | Помещение хранения переносной аппаратуры | 1 | 8 | 8 |
8 | Уборная для персонала | 1 | 3 | 3 |
| Итого | | | 83 |
| 3.5 ВСЕГО | | | 255 |
| 3 ВСЕГО | | | 1061 |
4 Вспомогательные подразделения |
4.1 Внутрибольничная аптека |
N | Наименование помещения | Кол-во | Пл. ед. (м2) | Пл. сумм. (м2) |
1 | Помещение приема и регистрации медикаментов | 1 | 8 | 8 |
2 | Помещение хранения медицинского инструмента, предметов ухода за больными, перевязочных средств | 1 | 12 | 12 |
3 | Помещение хранения термолабильных лекарственных средств | 1 | 9 | 9 |
4 | Помещение хранения горючих и легковоспламеняющихся жидкостей (со шлюзом) | 1 | 5 | 5 |
5 | Помещение хранения готовых лекарственных форм | 1 | 10 | 10 |
6 | Кладовая дезинфицирующих средств и кислот | 1 | 5 | 5 |
7 | Помещение хранения наркотических и психотропных препаратов | 1 | 6 | 6 |
| Итого | | | 55 |
4.2 Клинико-диагностическая лаборатория |
4.2.1 Клиническая группа |
N | Наименование помещения | Кол-во | Пл. ед. (м2) | Пл. сумм. (м2) |
1 | Центрифужная | 1 | 12 | 12 |
2 | Лаборантская гематологическая | 1 | 18 | 18 |
3 | Лаборантская для исследования мочи | 1 | 16 | 16 |
4 | Лаборантская биохимическая | 1 | 24 | 24 |
5 | Лаборантская для иммунологических исследований | 1 | 18 | 18 |
| Итого | | | 88 |
4.2.2 Микробиологическая группа |
N | Наименование помещения | Кол-во | Пл. ед. (м2) | Пл. сумм. (м2) |
1 | Лаборантская подготовки клинических проб | 1 | 24 | 24 |
2 | Помещение выделения и амплификации нуклеиновых кислот со шлюзом | 1 | 20 | 20 |
3 | Лаборантская подготовки реакционной смеси | 1 | 20 | 20 |
4 | Лаборантская микробиологических исследований | 1 | 20 | 20 |
5 | Лаборантская для санитарно-бактериологических исследований | 1 | 12 | 12 |
6 | Микроскопическая | 1 | 12 | 12 |
7 | Санитарный пропускник для персонала с душевой | 1 | 6 | 6 |
8 | Уборная для персонала | 1 | 3 | 3 |
9 | Автоклавная | 1 | 12 | 12 |
10 | Помещение для электрофореза со шлюзом | 1 | 20 | 20 |
| Итого | | | 149 |
4.2.3 Общие помещения лаборатории |
N | Наименование помещения | Кол-во | Пл. ед. (м2) | Пл. сумм. (м2) |
1 | Кабинет заведующего | 1 | 16 | 16 |
2 | Комната персонала | 1 | 12 | 12 |
3 | Помещение для обеззараживания и временного хранения отходов | 1 | 8 | 8 |
4 | Материальная для хранения запасных частей, посуды | 1 | 8 | 8 |
5 | Помещение хранения реактивов | 1 | 8 | 8 |
6 | Моечная-стерилизационная лабораторной посуды | 1 | 12 | 12 |
7 | Уборная для персонала | 1 | 3 | 3 |
8 | Душевая для персонала | 1 | 2 | 2 |
9 | Помещение приема, регистрации, сортировки проб на анализы | 1 | 9 | 9 |
10 | Помещение хранения предметов уборки | 1 | 4 | 4 |
11 | Кладовая чистого белья | 1 | 4 | 4 |
| Итого | | | 86 |
| 4.2 ВСЕГО | | | 323 |
4.3 Центральное стерилизационное отделение |
N | Наименование помещения | Кол-во | Пл. ед. (м2) | Пл. сумм. (м2) |
1 | Кабинет заведующего | 1 | 10 | 10 |
2 | Комната персонала | 1 | 9 | 9 |
3 | Душевая для персонала | 1 | 2 | 2 |
4 | Уборная для персонала | 1 | 3 | 3 |
5 | Помещение хранения предметов уборки | 2 | 4 | 8 |
6 | Помещение приема и хранения нестерильных материалов, хирургических инструментов | 1 | 20 | 20 |
7 | Помещение разборки, предстерилизационной обработки, мытья и сушки хирургических инструментов | 1 | 16 | 16 |
8 | Кладовая упаковочных материалов и тары | 1 | 4 | 4 |
9 | Санитарный шлюз | 1 | 3 | 3 |
10 | Экспедиционная | 1 | 6 | 6 |
11 | Помещение водоподготовки | 1 | 15 | 15 |
12 | Помещение контроля, комплектации и упаковки хирургических инструментов | 1 | 24 | 24 |
13 | Стерильная зона | 1 | 20 | 20 |
14 | Склад стерильных материалов | 1 | 15 | 15 |
| Итого | | | 155 |
| 4 ВСЕГО | | | 533 |
5 Хозяйственные подразделения |
5.1 Пищеблок |
5.1.1 Производственные помещения |
N | Наименование помещения | Кол-во | Пл. ед. (м2) | Пл. сумм. (м2) |
1 | Помещение первичной обработки овощей | 1 | 10 | 10 |
2 | Цех заготовки овощей | 1 | 8 | 8 |
3 | Цех заготовки мяса, птицы, рыбы | 1 | 10 | 10 |
4 | Варочный цех | 1 | 30 | 30 |
5 | Холодная заготовочная | 1 | 6 | 6 |
6 | Цех мучных изделий | 1 | 8 | 8 |
7 | Моечная кухонной посуды | 1 | 8 | 8 |
8 | Кладовая суточного запаса продуктов | 1 | 6 | 6 |
9 | Экспедиция | 1 | 8 | 8 |
| Итого | | | 94 |
5.1.2 Складские помещения |
N | Наименование помещения | Кол-во | Пл. ед. (м2) | Пл. сумм. (м2) |
1 | Помещение охлаждаемых камер | 1 | 16 | 16 |
2 | Охлаждаемая камера для хранения отходов (со шлюзом) | 1 | 6 | 6 |
3 | Кладовая сухих продуктов | 1 | 4 | 4 |
4 | Кладовая хлеба | 1 | 4 | 4 |
5 | Кладовая овощей | 1 | 6 | 6 |
6 | Загрузочная | 1 | 6 | 6 |
7 | Тарная | 1 | 6 | 6 |
8 | Кладовая белья | 1 | 5 | 5 |
9 | Кладовая инвентаря | 1 | 5 | 5 |
| Итого | | | 58 |
5.1.3 Служебные и бытовые помещения |
N | Наименование помещения | Кол-во | Пл. ед. (м2) | Пл. сумм. (м2) |
1 | Гардеробные, душевые, уборные для персонала | 1 | 13 | 13 |
2 | Помещение хранения предметов уборки | 1 | 4 | 4 |
3 | Комната персонала | 1 | 9 | 9 |
4 | Помещение мойки и хранения мармитных тележек | 1 | 12 | 12 |
| Итого | | | 38 |
| 5.1 ВСЕГО | | | 190 |
5.2 Дезинфекционное отделение |
N | Наименование помещения | Кол-во | Пл. ед. (м2) | Пл. сумм. (м2) |
1 | Помещение хранения предметов уборки | 2 | 4 | 8 |
2 | Помещение приема и сортировки вещей | 1 | 8 | 8 |
3 | Кладовая инфицированных вещей | 1 | 4 | 4 |
4 | Помещения дезинфекционных камер: а) загрузочное отделение, б) разгрузочное отделение | 1 | 50 | 50 |
5 | Санитарный шлюз между загрузочным и разгрузочным отделениями | 1 | 3 | 3 |
6 | Кладовая дезинфицированных вещей | 1 | 5 | 5 |
7 | Гардеробная персонала с душевой кабиной | 1 | 8 | 8 |
8 | Уборная для персонала | 1 | 3 | 3 |
9 | Кладовая инвентаря | 1 | 3 | 3 |
10 | Кладовая дезинфицирующих средств | 1 | 2 | 2 |
| Итого | | | 94 |
5.3 Блок помещений для обработки и хранения медицинских отходов |
N | Наименование помещения | Кол-во | Пл. ед. (м2) | Пл. сумм. (м2) |
1 | Помещение временного хранения и обеззараживания медицинских отходов | 1 | 20 | 20 |
2 | Душевая для персонала на 1 душевую сетку | 1 | 3 | 3 |
3 | Помещение для дезинфекции тележек и контейнеров | 1 | 8 | 8 |
4 | Помещение временного хранения медицинских отходов | 1 | 20 | 20 |
5 | Помещение хранения расходных материалов | 1 | 12 | 12 |
6 | Комната персонала | 1 | 9 | 9 |
7 | Уборная для персонала | 1 | 3 | 3 |
| Итого | | | 75 |
5.4 Теплая стоянка на 6 машин |
N | Наименование помещения | Кол-во | Пл. ед. (м2) | Пл. сумм. (м2) |
1 | Кладовая запасных частей | 1 | 6 | 6 |
2 | Бокс для автомашины | 6 | 36 | 216 |
3 | Уборная для персонала | 1 | 3 | 3 |
4 | Бокс для обработки транспорта | 1 | 42 | 42 |
5 | Кладовая дезинфицирующих средств | 1 | 3 | 3 |
| Итого | | | 270 |
5.5 Пункт для дезинфекции автотранспорта |
N | Наименование помещения | Кол-во | Пл. ед. (м2) | Пл. сумм. (м2) |
1 | Комната дежурных дезинфекторов | 1 | 12 | 12 |
2 | Помещение для хранения дезсредств и приготовления дезрастворов | 1 | 6 | 6 |
3 | Санузел с душевой кабиной | 1 | 4 | 4 |
4 | Бокс для обработки транспорта | 1 | 42 | 42 |
| Итого | | | 64 |
| 5. ВСЕГО | | | 693 |
6 Административные и служебно-бытовые помещения |
N | Наименование помещения | Кол-во | Пл. ед. (м2) | Пл. сумм. (м2) |
1 | Кабинет главного врача | 1 | 24 | 24 |
2 | Комната отдыха при кабинете главного врача | 1 | 12 | 12 |
3 | Санузел с душевой кабиной | 1 | 4 | 4 |
4 | Кабинет заместителя главного врача | 4 | 16 | 64 |
5 | Кабинет главного бухгалтера | 1 | 16 | 16 |
6 | Кабинет главной медицинской сестры | 1 | 16 | 16 |
7 | Отдел кадров | 1 | 12 | 12 |
8 | Помещение заведующего хозяйственной частью | 1 | 12 | 12 |
9 | Организационно-методический отдел | 1 | 16 | 16 |
10 | Кабинет заведующего организационно-методическим отделом | 1 | 16 | 16 |
11 | Кабинет охраны труда и техники безопасности | 1 | 12 | 12 |
12 | Бухгалтерия | 2 | 14 | 28 |
13 | Касса | 1 | 6 | 6 |
14 | Комната инженерно-технического персонала | 1 | 18 | 18 |
15 | Помещение для занятий с персоналом | 1 | 24 | 24 |
16 | Центральная диспетчерская инженерных служб | 1 | 12 | 12 |
17 | Комната для совещаний на 50 мест | 1 | 45 | 45 |
18 | Помещение системных администраторов | 1 | 12 | 12 |
19 | Помещение сервера | 1 | 12 | 12 |
20 | Медицинский архив | 1 | 22 | 22 |
21 | Уборная для персонала (женская) | 1 | 6 | 6 |
22 | Уборная для персонала (мужская) | 1 | 5 | 5 |
23 | Гардеробная персонала для домашней и рабочей одежды | 1 | 42 | 42 |
24 | Гардеробная персонала для домашней и рабочей одежды | 1 | 28 | 28 |
25 | Душевая для персонала на 2 душевые сетки | 1 | 4 | 4 |
26 | Душевая для персонала на 3 душевые сетки | 1 | 7 | 7 |
27 | Уборная для персонала | 2 | 3 | 6 |
28 | Складские помещения | 3 | 50 | 150 |
29 | Помещение для мытья кухонной посуды | 1 | 6 | 6 |
| | ИС МЕГАНОРМ: примечание. Текст во второй графе дан в соответствии с официальным текстом документа. | |
|
30 | Помещение для мытья кухонной посуды | 1 | 6 | 6 |
31 | Помещение временного хранения трупов | 1 | 8 | 8 |
| Итого | | | 651 |
7 Контрольно-пропускной пункт - 2 КПП |
N | Наименование помещения | Кол-во | Пл. ед. (м2) | Пл. сумм. (м2) |
1 | Пост охраны | 1 | 8 | 8 |
2 | Уборная для персонала | 1 | 3 | 3 |
3 | Комната персонала | 1 | 10 | 10 |
| Итого | 2 | 21 | 42 |
ПРИМЕРЫ ОБЪЕМНО-ПЛАНИРОВОЧНЫХ РЕШЕНИЙ
БОЛЬНИЦ РАЗНОГО ТИПА
Пример проектного решения компоновки многопрофильной
больницы скорой медицинской помощи регионального уровня
Рисунок 3.1 - План подвального этажа
Рисунок 3.2 - План 1-го этажа
Рисунок 3.3 - План 2-го этажа
Рисунок 3.4 - План 3-го этажа
Рисунок 3.5 - План 4-го этажа
Рисунок 3.6 - План 5-го этажа
Рисунок 3.7 - План 6-го этажа
Рисунок 3.8 - План 7-го этажа
Рисунок 3.9 - План 8-го этажа
Пример проектного решения компоновки
онкологического центра регионального уровня
Рисунок 3.10 - План подвального этажа
Рисунок 3.11 - План 1-го этажа
Рисунок 3.12 - План 2-го этажа
Рисунок 3.13 - План 3-го этажа
Рисунок 3.14 - План 4-го этажа
Рисунок 3.15 - План 5-го этажа
Рисунок 3.16 - План 6-го этажа
Рисунок 3.17 - План 7-го этажа
Пример проектного решения компоновки
центральной районной больницы
Рисунок 3.18 - План подвального этажа
Рисунок 3.19 - План 1-го этажа
Рисунок 3.20 - План 2-го этажа
Рисунок 3.21 - План 3-го этажа
Пример проектного решения многопрофильного корпуса
городской больницы
Рисунок 3.22 - План подвального этажа
Рисунок 3.23 - План 1-го этажа
Рисунок 3.24 - План 2-го этажа
Рисунок 3.25 - План 3-го этажа
Рисунок 3.26 - План 4-го этажа
Рисунок 3.27 - План 5-го этажа
Примеры планировки палат
Рисунок 3.28 - Пример планировки палат
Рисунок 3.29 - Пример планировки палат
Рисунок 3.30 - Пример планировки палат