Главная // Актуальные документы // РуководствоСПРАВКА
Источник публикации
М.: Стройиздат, 1972
Примечание к документу
Взамен Инструкции по проектированию промышленных зданий с каркасом из сборных железобетонных конструкций для сейсмических районов, ЦНИИПромзданий, 1970.
Название документа
"Руководство по проектированию производственных зданий с каркасом из железобетонных конструкций для сейсмических районов"
"Руководство по проектированию производственных зданий с каркасом из железобетонных конструкций для сейсмических районов"
ПО ПРОЕКТИРОВАНИЮ ПРОИЗВОДСТВЕННЫХ ЗДАНИЙ С КАРКАСОМ
ИЗ ЖЕЛЕЗОБЕТОННЫХ КОНСТРУКЦИЙ ДЛЯ СЕЙСМИЧЕСКИХ РАЙОНОВ
Настоящее руководство разработано в развитие главы
СНиП II-А.12-69 "Строительство в сейсмических районах. Нормы проектирования" в части проектирования каркасных одноэтажных и многоэтажных зданий с применением железобетонных конструкций для районов с сейсмичностью 7, 8 и 9 баллов и взамен "Инструкции по проектированию промышленных зданий с каркасом из сборных железобетонных конструкций для сейсмических районов", ЦНИИПромзданий, 1970.
Руководство разработано Центральным научно-исследовательским и проектно-экспериментальным институтом промышленных зданий и сооружений (канд. техн. наук И.С. Арнапольским, инженерами Б.Ф. Васильевым, В.И. Деньщиковым) с участием Центрального научно-исследовательского института строительных конструкций им. В.А. Кучеренко (кандидатов техн. наук В.С. Павлыка, Я.М. Айзенберга, Ф.В. Боброва), Научно-исследовательского института бетона и железобетона (д-ра техн. наук А.П. Васильева, канд. техн. наук Ю.Д. Быченкова) и института Казахский Промстройниипроект (кандидатов техн. наук Т.Ж. Жунусова, П.М. Гресселя, инж. В.М. Безрукова).
Руководство предназначено для проектировщиков и инженерно-технических работников строительно-монтажных организаций.
1.1. Настоящее руководство распространяется на проектирование производственных зданий с каркасом из железобетонных конструкций по обычным типовым конструктивным схемам, применяемым в массовом промышленном строительстве. При проектировании промышленных зданий для сейсмических районов, как правило, должны применяться типовые сборные конструкции, разработанные для этих районов.
1.2. При выборе типов зданий для строительства в сейсмических районах при прочих равных условиях следует отдавать предпочтение одноэтажным зданиям.
Здания рекомендуется проектировать прямоугольной формы в плане, с параллельно расположенными пролетами, без перепада высот смежных пролетов. При сложных очертаниях в плане здания должны разделяться антисейсмическими швами на отдельные отсеки прямоугольной формы.
Антисейсмическими швами должны разделяться также участки здания, имеющие различные высоты.
Примечание. В отдельных обоснованных случаях небольшие пристройки к зданию или внутренние площадки разрешается проектировать с опиранием несущих элементов покрытий и перекрытий на колонны каркасов.
1.3. Температурные и осадочные швы следует выполнять как антисейсмические швы.
1.4. Антисейсмические швы в несущих и ограждающих конструкциях должны разделять смежные отсеки зданий по всей высоте. Допускается не устраивать шва в фундаменте, за исключением случаев, когда антисейсмический шов совпадает с осадочным швом.
1.5. Антисейсмические швы в каркасных зданиях осуществляются постановкой парных колонн со вставкой. Размеры вставок назначаются в зависимости от ширины антисейсмического шва, определяемой в соответствии с
п. 2.8, и величины привязки несущих конструкций к разбивочным осям здания.
Заделка швов в стенах, перекрытиях и покрытиях не должна препятствовать взаимному смещению стен и каркасов.
1.6. Каркасные здания должны проектироваться таким образом, чтобы все сейсмические силы, за исключением сил, действующих в плоскости самонесущих стен, были восприняты самим каркасом (с устройством в необходимых случаях вертикальных стальных связей между колоннами, диафрагм и пр.). Сейсмические силы от самонесущих стен, действующие в плоскости стен, должны восприниматься самими стенами.
При этом должны соблюдаться следующие требования:
а) между поверхностями стен и гранями колонн каркаса должен быть предусмотрен зазор шириной не менее 2 см;
б) в местах пересечения торцовых и поперечных стен с продольными должны устраиваться вертикальные антисейсмические швы на всю высоту стен
(рис. 38);
в) в навесных стенах должны устраиваться горизонтальные антисейсмические швы по всей длине стен на уровне низа каждого навесного участка
(рис. 39);
г) крепления стен к конструкциям каркаса не должны препятствовать горизонтальным смещениям каркаса вдоль самонесущих стен или смещениям каркаса на участках между горизонтальными антисейсмическими швами при навесных стенах
(рис. 40);
д) лестничные клетки, устанавливаемые на каркас здания, а также внутренние перегородки следует проектировать таким образом, чтобы они не создавали дополнительной жесткости;
е) лестничные клетки с несущими стенами, встроенные и пристроенные к зданию, должны быть отделены от каркаса здания антисейсмическими швами по всей их высоте.
1.7. Элементы строительных конструкций и их соединения следует стремиться проектировать так, чтобы конструкция была способна до разрушения претерпевать значительные пластические деформации (см.
пп. 2.31 -
2.33).
Сварные швы в соединениях должны выполняться электродами, обеспечивающими достаточную пластичность швов. При ручной сварке углеродистой стали марок ВСт.3, ВСт.3пс, ВСт.3кп рекомендуется применять электроды Э42А, а при ручной сварке низколегированной арматурной стали - электроды Э50А или Э55.
1.8. Предварительно напряженные железобетонные конструкции должны проектироваться с учетом следующих требований:
а) при применении конструкций должны быть удовлетворены условия:
для центрально обжатых элементов при осевом растяжении и втором случае внецентренного растяжения

(1)
для элементов, работающих на изгиб, внецентренное сжатие и первый случай внецентренного растяжения

(2)
где
N и
M - несущая способность элемента по первому предельному состоянию с учетом коэффициента условия работы
mкр, принимаемого в соответствии с указаниями
п. 1.15 (при внецентренном сжатии и втором случае внецентренного растяжения
M =
Ne);
| | ИС МЕГАНОРМ: примечание. Взамен СНиП II-В.1-62 Постановлением Госстроя СССР от 24.11.1975 N 196 с 1 января 1977 года введены в действие СНиП II-21-75. | |
Nт и Mт - усилия трещинообразования, определяемые по формулам (149), (152), (155) и (158) главы СНиП II-В.1-62* "Бетонные и железобетонные конструкции. Нормы проектирования", в которых Rт умножается на коэффициент mкр;
б) не допускается применять арматуру, для которой браковочный минимум величины относительного удлинения при разрыве ниже 4%;
в) круглую гладкую высокопрочную проволоку без свивки в канаты (тросы) разрешается применять только при устройстве анкеров на концах;
г) при расчетной сейсмичности 9 баллов не допускается применять без анкеров на концах проволочные пряди, двухпрядевые канаты и стержневую арматуру периодического профиля диаметром более 25 мм;
д) при натяжении арматуры на бетонные элементы необходимо обеспечивать надежное сцепление арматуры с бетоном этих элементов путем инъецирования каналов, заливки пазов или обетонировки.
1.9. Расчет конструкций зданий с учетом сейсмического воздействия производится по первому предельному состоянию (по несущей способности).
1.10. Конструкции зданий, проектируемых для строительства в сейсмических районах, должны удовлетворять расчетам:
| | ИС МЕГАНОРМ: примечание. Взамен СНиП II-А.11-62 Постановлением Госстроя СССР от 08.02.1974 N 16 с 1 сентября 1974 года введены в действие СНиП II-6-74. | |
на основное и на дополнительное сочетание нагрузок в соответствии с требованиями главы СНиП II-А.11-62 "Нагрузки и воздействия. Нормы проектирования";
на особое сочетание нагрузок при сейсмическом воздействии.
Расчет конструкций зданий на особое сочетание нагрузок производится на совместное действие постоянных, временных длительных и кратковременных нагрузок и сейсмических нагрузок. Классификация нагрузок и значения коэффициентов перегрузки принимаются в соответствии с главой СНиП II-А.11-62.
При расчете на особое сочетание нагрузок к их расчетным величинам вводятся коэффициенты сочетания:
для постоянных нагрузок - 0,9;
для временных длительных нагрузок - 0,8;
для кратковременных нагрузок на перекрытия и снеговых нагрузок - 0,5.
Примечания: 1. При расчете на сейсмические воздействия снижение нагрузок на перекрытия, предусмотренное п. 3.10 главы СНиП II-А.11-62, не учитывается.
2. Кратковременными нагрузками, которые необходимо учитывать в особом сочетании, являются нагрузки на перекрытия (по пп. 1.5 "б" и "в" главы СНиП II-А.11-62), снеговые нагрузки, нагрузки от веса мостовых и подвесных кранов.
При расчете конструкций с учетом сейсмического воздействия нагрузки от ветра, усилия от температурных деформаций каркаса при климатическом изменении температуры, усилия от удлинений нижних растянутых граней несущих конструкций, динамические воздействия от машин и оборудования, тормозные и боковые усилия от движения кранов, горизонтальные инерционные силы от грузов на гибких подвесках не учитываются. Грузоподъемность крана и вес тележки учитываются только при определении вертикальной сейсмической силы. При этом грузоподъемность принимается с коэффициентом 0,3.
При расчете конструкций на нагрузки, возникающие в период монтажа здания, сейсмические воздействия не учитываются.
1.11. При проектировании конструкций зданий следует учитывать, что сейсмические нагрузки могут иметь любое направление в пространстве.
При расчете на сейсмическое воздействие зданий (отсеков) в целом или при расчете их отдельных несущих элементов, за исключением оговоренных в
пп. 2.6,
4.5 и
4.18, сейсмические нагрузки принимаются действующими горизонтально в направлениях продольной и поперечной осей здания (отсека). Действие сейсмических нагрузок в обоих направлениях учитывается раздельно.
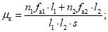
1.12. Расчетные величины действующих сейсмических нагрузок для зданий определяются по формуле

(3)
где Sik - расчетная величина сейсмической нагрузки (соответствующая i-й форме собственных колебаний), статически приложенной в какой-либо точке k, где согласно расчетной схеме здания сосредоточена нагрузка Qk;
Qk - нагрузка, вызывающая инерционную силу (собственный вес конструкций здания, вес стационарного оборудования, временная нагрузка на перекрытие, нагрузка от снега и др.), которая в соответствии с расчетной схемой здания принята сосредоточенной в точке
k; при определении величины
Qk значения коэффициентов перегрузки и коэффициентов сочетания принимаются в соответствии с указаниями
п. 1.10;
Kc - коэффициент сейсмичности (принимается по
табл. 1);

- коэффициент динамичности, соответствующий
i-й форме собственных колебаний рассчитываемого каркаса здания (отсека);

- коэффициент, зависящий от формы деформаций каркаса при его собственных колебаниях по
i-й форме и от места расположения нагрузки
Q (рис. 1).
Таблица 1
Значения коэффициента сейсмичности
Kc
Расчетная сейсмичность в баллах | 7 | 8 | 9 |
Kc | 0,025 | 0,05 | 0,1 |
Рис. 1. Схема деформации сооружения
при горизонтальных колебаниях
Расчетная сейсмическая нагрузка для одноэтажных зданий, высота которых до низа балок или ферм не более 8 м и с пролетами не более 18 м, определяется с дополнительным коэффициентом 0,8.
Для зданий с числом этажей n > 5 расчетная сейсмическая нагрузка определяется с дополнительным коэффициентом, равным 1 + 0,1 (n - 5), но не более 1,4.
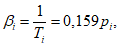
Значение

определяется по следующей формуле или по графику
рис. 2:

(4)
где Ti - численное значение периода собственных колебаний в сек;
pi - численное значение круговой частоты собственных колебаний в рад/сек.
Рис. 2. Определение коэффициента динамичности

Величина

должна приниматься не менее 0,8 и не более 3.
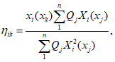
Значение

определяется по формуле

(5)
где
Xi(
xk) и
Xi(
xj) - смещения каркаса здания при его собственных колебаниях соответственно в рассматриваемой точке
k и во всех точках
j, т.е. в точках, отвечающих расположению масс в рассматриваемой динамической схеме (см.
рис. 1).
1.13. При расчете каркасов зданий (отсеков), если отношение высоты колонн в пределах этажа к горизонтальному размеру их грани в направлении действия сейсмического толчка больше 15, в
формуле (3) вместо коэффициента динамичности

, должен приниматься коэффициент динамичности

, определяемый по формуле

(6)
где

- коэффициент, принимаемый по табл. 2.
Для зданий с числом этажей
n > 5 из коэффициентов, введенных в настоящем пункте (

) и в
п. 1.12, для расчета следует принимать один - больший.
Таблица 2
Значение коэффициента

H --- h | <= 15 | 16 | 17 | 18 | 19 | 20 | 21 | 22 | 23 | 24 | >= 25 |
| 1 | 1,05 | 1,1 | 1,15 | 1,2 | 1,25 | 1,3 | 1,35 | 1,4 | 1,45 | 1,5 |
Здесь H - высота колонны, равная расстоянию между точками закрепления колонны, принятыми в расчетной схеме рамы каркаса;
h - горизонтальный размер граней колонн рассматриваемого этажа в направлении действия сейсмических нагрузок.
Примечание. Для каркасов зданий с колоннами различной высоты
H и поперечного сечения
h значение коэффициента принимается по наибольшей величине

. При этом для колонн, имеющих в пределах высоты
H переменное сечение, принимается приведенный размер

(7)
где Cк - жесткость колонны на уровне ее верхней точки закрепления (горизонтальная реакция в верхней точке закрепления от перемещения последней на единицу);
k - коэффициент, принимаемый для колонн жестко защемленных внизу и с шарнирной опорой вверху равным 1,6;
Eб - начальный модуль упругости бетона при сжатии и растяжении;
b - горизонтальный размер грани колонн в направлении, перпендикулярном размеру h; для двухветвевых колонн при расчете каркаса в продольном направлении здания размер b принимается равным удвоенной величине горизонтального размера грани одной ветви в направлении, перпендикулярном размеру h.
1.14. В случае если центр жесткости каркаса здания (отсека) не совпадает в плане с центром его массы (при несимметричном распределении масс или жесткостей), то при распределении сейсмических нагрузок следует учитывать влияние поворота здания (отсека).
Полная сейсмическая нагрузка с учетом поворота каркаса здания (отсека) может быть определена в соответствии с указаниями "Инструкции по определению расчетной сейсмической нагрузки для зданий и сооружений" <1>.
--------------------------------
<1> Госстройиздат, 1962.
Примечание. Для отсеков одноэтажных каркасных зданий, у которых имеется эксцентриситет между центром жесткости и центром масс вследствие несимметричного расположения наружных навесных стен, допускается при расчете каркаса на действие сейсмических сил не учитывать влияние поворота; при этом величины сейсмических нагрузок следует вычислять в предположении наличия наружных стен по всему контуру отсека.
1.15. При расчете конструкций на прочность помимо коэффициентов условий работы, принимаемых в соответствии с главами СНиП проектирования конструкций зданий для несейсмических районов, учитывается ввиду кратковременности действия нагрузки дополнительный коэффициент условий работы
mкр, который принимается равным:
а) для бетонных и железобетонных (обычных и предварительно напряженных) конструкций
mкр = 1,2; в случае расчета сварных стыков и сечений, в которых вся рабочая арматура имеет сварные соединения, а эти сечения определяют несущую способность конструкций, а также для конструкций, указанных в
п. 3.1,
mкр = 1;
б) для каменных конструкций mкр = 1,2; в случае расчета на срез и растяжение mкр = 1;
в) для стальных конструкций mкр = 1,4; в случае расчета сварных соединений mкр = 1.
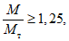
При расчете на устойчивость сжатых и сжатоизогнутых стальных и железобетонных элементов с гибкостью более 100 учитывается дополнительный коэффициент условий работы mкр = 1.
1.16. Расчет оснований зданий с учетом сейсмических воздействий производится по первому предельному состоянию (по несущей способности) в соответствии с указаниями
пп. 5.29 -
5.33 главы СНиП II-Б.1-62 "Основания зданий и сооружений. Нормы проектирования". При этом учитываются дополнительные коэффициенты условий работы
mкр:
для скальных оснований, а также оснований, сложенных маловлажными крупнообломочными, плотными песчаными и глинистыми грунтами с консистенцией 0,75 и менее - 1,2;
для рыхлых водонасыщенных песков и глинистых грунтов с консистенцией более 0,75 - 0,7;
для всех остальных грунтов - 1.
1.17. В необходимых случаях следует производить дополнительную проверку здания на опрокидывание от сейсмических воздействий (например, для высоких узких зданий) и на сдвиг по подошве фундаментов (например, фундаментов колонн связевой панели, см.
п. 3.2).
2.1. Расчет каркаса здания (отсека) на действие сейсмических нагрузок должен производиться раздельно в поперечном и продольном направлениях, и соответственно в этих направлениях должны быть определены сейсмические силы.
2.2. При расчетах каркасов зданий (отсеков) с учетом сейсмических воздействий деформации конструкций не ограничиваются, если расчет конструкций удовлетворяет условиям прочности (с учетом в необходимых случаях продольного изгиба и с проверкой устойчивости формы конструкции).
2.3. Жесткость сечения железобетонных элементов принимается равной EбJ, где Eб - начальный модуль упругости бетона при сжатии и растяжении; J - момент инерции полного бетонного сечения.
При определении жесткости стоек каркаса жесткость стен, запроектированных с соблюдением требований
п. 1.6, не учитывается, за исключением жесткости самонесущих каменных стен в направлении, перпендикулярном их плоскости, которая учитывается в соответствии с указанием
п. 4.25.
| | ИС МЕГАНОРМ: примечание. Взамен СНиП II-В.1-62 Постановлением Госстроя СССР от 24.11.1975 N 196 с 1 января 1977 года введены в действие СНиП II-21-75. | |
2.4. При расчете каркасов зданий на особое сочетание нагрузок с учетом действия сейсмических нагрузок расчетные длины колонн l0 допускается принимать по табл. 19* и 20* главы СНиП II-В.1-62*.
2.5. Покрытия и перекрытия зданий, объединяющие рамы каркаса в единый пространственный блок, должны быть возможно более жесткими в горизонтальной плоскости. Для увеличения жесткости и прочности диска покрытия и перекрытия из сборных железобетонных плит должны предусматриваться мероприятия в соответствии с
пп. 2.18 -
2.22 и
2.29.
2.6. Сварные швы, соединяющие отдельные элементы пролетных конструкций, должны быть проверены на особое сочетание нагрузок с учетом вертикальной сейсмической нагрузки (при
mкр = 1).
При этом сейсмическая нагрузка определяется по
формуле (3), где коэффициенты

и

принимаются в соответствии с периодом и формой собственных вертикальных колебаний рассчитываемых конструкций. Конструкции, имеющие период первого (основного) тона собственных колебаний больше 0,5 сек, следует рассчитывать с учетом высших форм колебаний, как правило, не более трех. При периодах основного тона
T <= 0,5 сек учитывается лишь только первая форма колебаний.
При определении частот и форм собственных колебаний ферм покрытия следует принимать:
а) жесткости сечений для сжатых и растянутых предварительно напряженных железобетонных элементов - без учета образования трещин (EбJб); для растянутых элементов, выполняемых без предварительного напряжения, - без учета работы бетона (EаFа);
б) массы, сосредоточенные в узлах верхнего пояса ферм, - исходя из суммарной равномерно-распределенной нагрузки, включающей собственный вес покрытия, снег (без учета снеговых мешков), а также подвесной транспорт (влияние которого приводится к эквивалентной равномерно-распределенной нагрузке); при этом коэффициенты перегрузки и коэффициенты сочетаний, необходимые для определения величин масс, принимаются в соответствии с указаниями
п. 1.10.
Вертикальные сейсмические нагрузки на фермы, соответствующие различным сочетаниям нагрузок, допускается определять при постоянных значениях

и

, вычисленных из условий, приведенных в данном пункте.
2.7. Расчетные усилия в рассматриваемом сечении конструкции каркаса от действия сейсмической нагрузки при учете высших форм колебаний определяются по формуле

(8)
где Nр - расчетное значение усилия (поперечной или нормальной силы, изгибающего момента) в рассматриваемом сечении от действия сейсмической нагрузки;
Nмакс - наибольшее значение данного усилия в рассматриваемом сечении, определяемое из сопоставления эпюр усилий, вызываемых сейсмическими нагрузками, отвечающими учитываемым формам собственных колебаний каркаса;
Ni - значения усилия в том же сечении по эпюрам для других форм колебаний (кроме значения Nмакс).
2.8. Ширина антисейсмического шва (в см) в покрытиях и перекрытиях определяется по формуле (9) и принимается кратной 5 см:

(9)
где

и

- максимальные перемещения в см двух смежных каркасов здания (отсеков), разделенных антисейсмическим швом, при действии расчетных горизонтальных сейсмических нагрузок.
2.9. В зданиях со стенами, запроектированными в соответствии с требованиями
п. 1.6, при расчете каркаса необходимо учитывать сейсмическую нагрузку от самонесущих стен, расположенных только в плоскостях, перпендикулярных направлению действующих сейсмических нагрузок. Сейсмическая нагрузка от поперечных и продольных навесных стен при расчете каркаса должна учитываться в обоих направлениях.
Каркас одноэтажного здания
2.10. Разработанные в настоящем руководстве мероприятия и рекомендации по конструктивному решению одноэтажных промышленных зданий с каркасом из сборных железобетонных конструкций предусмотрены для зданий с обычной конструктивной схемой
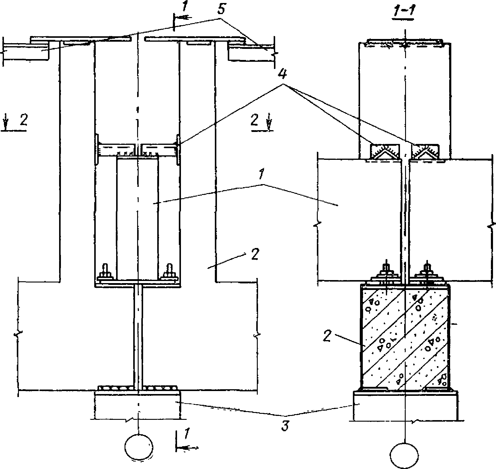
(рис. 3) - со стойками, защемленными внизу в фундаменты и шарнирно связанными поверху с балками или фермами покрытия, при шаге колонн 6 и 12 м. При этом конструктивные решения покрытий следует применять:
а) при расчетной сейсмичности 7 и 8 баллов - без подстропильных конструкций и с ними; для зданий с расчетной сейсмичностью 8 баллов следует отдавать предпочтение покрытиям без подстропильных конструкций (с шагом колонн и стропильных конструкций 6 и 12 м);
б) при расчетной сейсмичности 9 баллов:
в зданиях I степени огнестойкости - из сборных железобетонных плит длиной 6 м по железобетонным стропильным балкам или фермам (без применения подстропильных балок или ферм);
в зданиях II и III степени огнестойкости, как правило, из легких материалов по стальным стропильным и подстропильным конструкциям; при отсутствии легких материалов для покрытия допускается применение сборных железобетонных плит длиной 6 м по стальным стропильным и подстропильным конструкциям; рекомендации по проектированию конструкций, указанных в данном подпункте, настоящим руководством не охватываются.
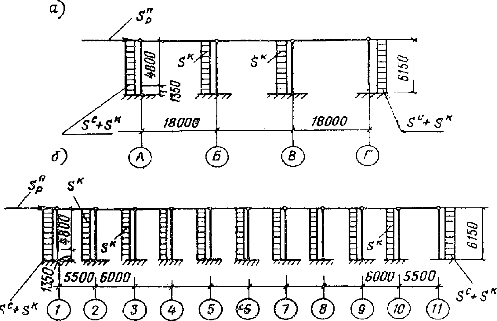
Рис. 3. Расчетные схемы рам каркаса
а - поперечный разрез здания; б - динамическая расчетная
схема каркаса здания; в - расчетная схема поперечной рамы;
г - продольный разрез здания; д - расчетная схема
продольной рамы
2.11. При определении периода и формы собственных колебаний каркаса здания (отсека) динамическая расчетная схема принимается в виде невесомой консольной стойки, защемленной на уровне верха фундамента, с массой, сосредоточенной на уровне верха колонн (система с одной степенью свободы). В этом случае коэффициент

равен единице, а период собственных колебаний каркаса в секундах определяется по формуле

(10)
где Q - вертикальная нагрузка в т, принимаемая сосредоточенной в уровне верха колонн;
C - жесткость каркаса здания (отсека) в т/м на уровне верха колонн;
g - ускорение силы тяжести в м/сек2.
Нагрузка
Q (с учетом коэффициентов перегрузки и коэффициентов сочетаний, принимаемых в соответствии с указаниями
п. 1.10) составляется из:
а) собственного веса покрытия (включая вес подвесных потолков, трубопроводов и пр.) и стен (а также перегородок), расположенных выше верха колонн;
б) 1/4 собственного веса: колонн, подкрановых балок и участков стен (а также перегородок), расположенных в пределах высоты колонн;
в) 1/4 собственного веса мостов кранов, расположенных в здании или отсеке (только при расчете в поперечном направлении);
г) снеговых нагрузок.
При определении нагрузки
Q учитываются указания
п. 2.9.
Жесткость каркаса здания (отсека) на уровне верха колонн определяется по формуле

(11)
где Cк - жесткость отдельной колонны (или рамы) на уровне ее верха;
n - количество колонн (или рам) в каркасе здания (отсека);

- перемещение отдельной колонны (или рамы) на уровне ее верха от действия горизонтальной единичной силы в том же уровне; перемещения продольных рам каркаса со стальными связями между колоннами вычисляются с учетом деформаций этих связей; перемещения пристенных колонн в зданиях с самонесущими стенами в направлении, перпендикулярном их плоскости, вычисляются с учетом жесткости стен в соответствии с указаниями
п. 4.25.
Примечание. При наличии в здании (отсеке) колонн продольных и торцовых фахверков жесткость каркаса вычисляется с учетом жесткости этих колонн.
2.12. Сейсмические нагрузки, определяемые по
формуле (3), принимаются:
а) от покрытия зданий (отсека), участков наружных продольных стен, расположенных выше верха колонн и стен (а также перегородок), связанных с покрытием с помощью фахверковых колонн, - сосредоточенными, приложенными в уровне верха колонн:

(12)
Сейсмическую нагрузку
Sп следует распределять между отдельными рамами каркаса здания (отсека) при расчете в поперечном направлении - пропорционально их жесткости, а при расчете в продольном направлении - пропорционально жесткостям рам и пропорционально прилегающим к ним грузовым площадям и принимать для расчета

значения, подсчитанные для этих двух случаев.
Примечание. При определении усилий с учетом сейсмической нагрузки в поперечных рамах одноэтажных зданий с железобетонными покрытиями допускается производить перераспределение усилий между торцовыми и промежуточными рамами. Изгибающие моменты в расчетных сечениях колонн торцовых рам от действия сейсмических нагрузок, определенные с учетом перераспределения усилий, должны отличаться от изгибающих моментов, вычисленных без учета перераспределения, не более чем на 30%;
б) от собственного веса колонн зданий - равномерно распределенными по длине колонн:

(13)
в) от собственного веса подкрановых балок - сосредоточенными, приложенными в уровне низа подкрановых балок:

(14)
г) от собственного веса участков стен (а также перегородок), расположенных в пределах высоты колонн при определении сейсмических нагрузок, действующих в направлении, перпендикулярном плоскости стен (перегородок), - равномерно распределенными по длине колонн:

(15)
д) от собственного веса навесных стен, расположенных в пределах высоты колонн, при определении сейсмических нагрузок, действующих в плоскости этих стен, - сосредоточенными, приложенными в уровне опорных консолей навесных стен:

(16)
е) от собственного веса мостовых кранов - в соответствии с указаниями
п. 2.13.
Qп - вертикальная нагрузка, расположенная выше уровня верха колонн каркаса здания (отсека), составляемая из собственного веса покрытия (включая вес подвесных потолков, трубопроводов и пр.), снега, участков наружных продольных стен, расположенных выше верха колонн, а также 50% веса стен и перегородок, связанных с покрытием с помощью фахверковых колонн; при определении нагрузки от веса стен (перегородок) должны учитываться указания
п. 2.9;
Qк - собственный вес колонны;
Qп.б - нагрузки от собственного веса подкрановых балок, опирающихся на рассматриваемую колонну или раму каркаса;
Qс - собственный вес стены (перегородки), примыкающей к рассматриваемой колонне или раме;
Qн.с - нагрузка от собственного веса навесной стены в местах опирания на опорные консоли;
H - расстояние от верха фундаментов до верха колонн;
Kс - коэффициент сейсмичности, принимаемый по
табл. 1;

- коэффициент динамичности, вычисленный для каркаса зданий (отсека) по
формуле (6).
В
формулах (12) -
(16) нагрузки
Q должны определяться с коэффициентами перегрузки и коэффициентами сочетаний, принимаемыми в соответствии с указаниями
п. 1.10.
2.13. В колоннах, несущих крановую нагрузку, помимо моментов от сейсмических нагрузок, вычисленных в соответствии с
п. 2.12 "а" -
"д", в плоскости поперечной рамы каркаса должны учитываться моменты, вызванные местной сейсмической нагрузкой от собственного веса мостов кранов (рис. 4). При этом в расчетной схеме колонн верхняя опора принимается несмещаемой.
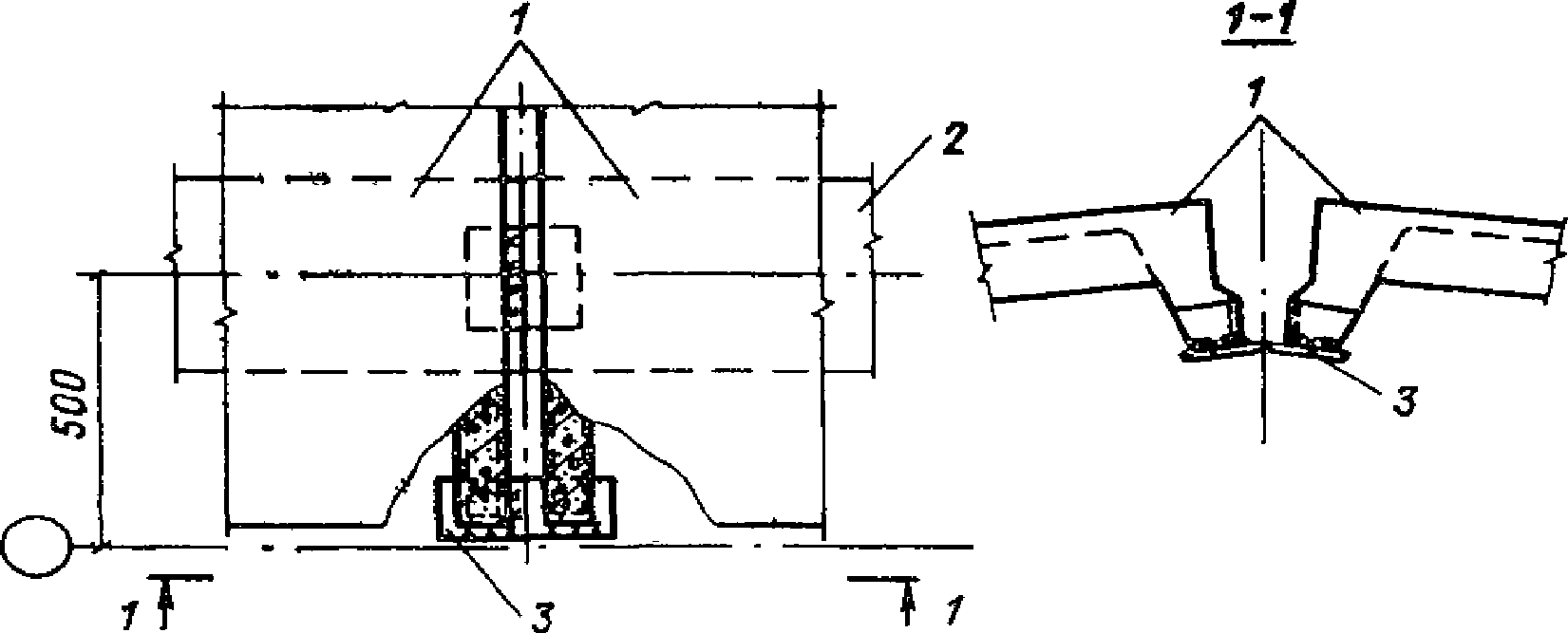
Рис. 4. Схемы к расчету колонны на местную сейсмическую
нагрузку от собственного веса моста крана
а - деталь разреза здания; б - динамическая расчетная схема
колонны; в - расчетная схема колонны; 1 - один мостовой кран
Сейсмическая сила от кранов, прикладываемая к колонне на уровне низа подкрановых балок, определяется по
формуле (3) как для системы с одной степенью свободы. При этом величина нагрузки
Qкр, сосредоточенной на уровне низа подкрановых балок, принимается равной максимальному давлению на колонну от собственного веса мостов кранов (с учетом коэффициента перегрузки и коэффициента сочетания, принимаемых в соответствии с указаниями
п. 1.10), располагаемых по одному в каждом пролете здания, а произведение коэффициентов

принимается равным 3.
При определении горизонтальных сейсмических нагрузок, действующих на колонны в продольном направлении, нагрузка от крана не учитывается.
При расчете каркаса здания в поперечном и продольном направлениях на особое сочетание нагрузок с учетом действия сейсмических нагрузок вертикальная нагрузка от кранов принимается от одного крана в каждом пролете и определяется при максимальном давлении на колеса крана (включая вес груза) с коэффициентами перегрузки и сочетания, принимаемыми в соответствии с указаниями
п. 1.10.
2.14. Фахверковые колонны поперечных или продольных стен, шарнирно соединенные вверху с конструкциями покрытия и защемленные на уровне верха фундаментов, должны быть проверены расчетом на изгиб от совместного действия усилий, возникающих при перемещении каркаса на величину

(см.
п. 2.15), и местных сейсмических нагрузок от собственного веса навесных или самонесущих стен (рис. 5).
Рис. 5. Схемы к расчету фахверковых колонн
а - деталь разреза здания; б - расчетная схема фахверковой
колонны; 1 - навесные участки стены; 2 - опорные консоли;
3 - фахверковая колонна
Расчетные моменты в фахверковых колоннах допускается определять с учетом упругого поворота фундамента. При шарнирном опирании фахверковых колонн на уровне верха фундаментов учитывается влияние только местной сейсмической нагрузки.
Величина местной сейсмической нагрузки от собственного веса навесных или самонесущих стен определяется по
формуле (3), при этом произведение коэффициентов

принимается как для каркаса соответствующего направления, но не меньше 2.
2.15. Деформация (перемещение) каркаса здания (отсека) на уровне верха колонн от действия расчетных горизонтальных сейсмических нагрузок определяется по формуле

(17)
где
S - расчетная горизонтальная сейсмическая нагрузка на каркас здания (отсека), вычисленная для соответствующего направления и приложенная статически на уровне верха колонн; при этом сейсмическая нагрузка определяется по
формуле (3), где величина
Qk равняется приведенной вертикальной нагрузке
Q, вычисленной в соответствии с
п. 2.11;
C - жесткость каркаса здания (отсека) на уровне верха колонн, определяемая по
формуле (11).
2.16. Стальные связи по колоннам продольных рядов здания (отсека) с мостовыми кранами рекомендуется располагать в пределах подкрановых частей колонн.
Связи и их крепления к закладным деталям колонн, а также закладные детали и их заделка в колоннах должны быть проверены расчетом на прочность от действия расчетных горизонтальных сейсмических нагрузок.
2.17. Подкрановые балки принимаются для сейсмических районов по соответствующим сериям с учетом указаний
п. 1.8.
Узлы соединения подкрановых балок с колоннами, а также закладные детали должны быть рассчитаны на усилия, возникающие в подкрановых балках при передаче расчетных горизонтальных сейсмических нагрузок на связевую панель рамы.
2.18. Покрытия зданий с расчетной сейсмичностью 7, 8 и 9 баллов рекомендуется выполнять сборными с применением типовых конструкций, разработанных для несейсмических районов, при условии выполнения указаний пп. 2.19 -
2.28.
2.19. В покрытиях, выполненных сборными с применением типовых конструкций для несейсмических районов, горизонтальная сейсмическая нагрузка, действующая на плиты покрытия в поперечном направлении здания (отсека), передается на несущие конструкции покрытия (балки или фермы) через сварные швы; от несущих конструкций сейсмическая нагрузка передается на поперечные ряды колонн. Замоноличивание плит покрытия, выполняемое в соответствии с
пп. 2.20 и
2.21, обеспечивает восприятие соответствующих поперечных горизонтальных нагрузок.
Горизонтальная сейсмическая нагрузка, действующая на плиты в продольном направлении здания (отсека), передается на продольные ряды колонн. Эта передача осуществляется:
а) в бесфонарных покрытиях при расчетной сейсмичности 7 и 8 баллов - диском покрытия, образуемым замоноличенными плитами в соответствии с указаниями
пп. 2.20 и
2.21;
б) в бесфонарных покрытиях при расчетной сейсмичности 9 баллов и в покрытиях с фонарями при расчетной сейсмичности 8 и 9 баллов - диском покрытия, который образуется в соответствии с
пп. 2.20 и
2.21, а также путем соединения полок плит между собой в поперечном направлении при помощи сварки закладных элементов; при этом соединения полок плит в покрытии (бесфонарном и с фонарем) при расчетной сейсмичности 9 баллов устраиваются по всей длине здания или отсека (включая покрытие фонаря), а в покрытии с фонарем при расчетной сейсмичности зданий 8 баллов эти соединения устраиваются только в плитах, расположенных у торцов и поперечных антисейсмических швов здания (
рис. 6 и
7).
Рис. 6. Приварка плит к стропильным конструкциям
и соединение плит между собой стальными накладками
в покрытиях с фонарем при расчетной сейсмичности
здания 8 баллов
1 - плиты покрытия; 2 - несущие конструкции покрытия;
3 - стальные накладки; 4 - грань торцовой стены
Рис. 7. Приварка плит к стропильным конструкциям покрытия
и соединение плит между собой стальными накладками
в зданиях с расчетной сейсмичностью 9 баллов
1 - плиты покрытия; 2 - несущие конструкции покрытия;
3 - стальные накладки; 4 - грань продольной стены;
5 - грань торцовой стены
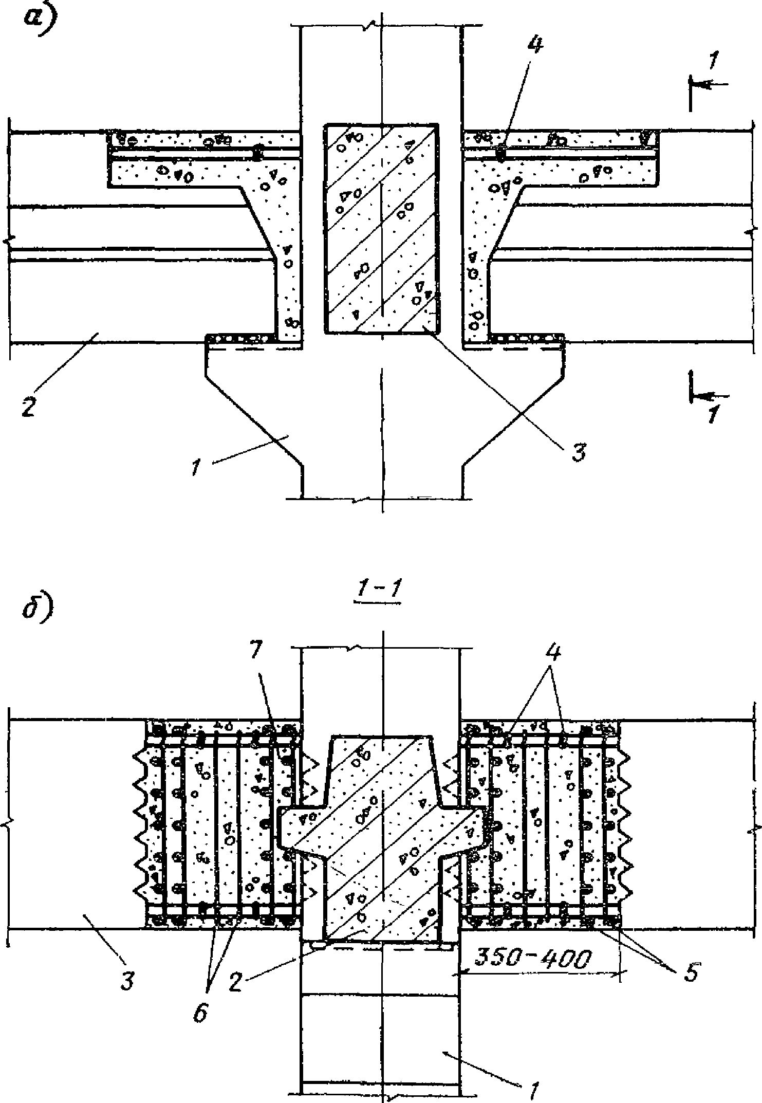
Соединение полок осуществляется путем установки в плитах закладных элементов у торцов плит (в местах расположения крайних поперечных ребер) с последующим соединением их при помощи стальных накладок, привариваемых к плитам. Закладные элементы в плитах должны быть соединены между собой стержнями арматуры (рис. 8).
Рис. 8. Соединение плит покрытия между собой
стальными накладками
1 - плиты покрытия; 2 - стропильные конструкции;
3 - стальные накладки; 4 - закладные детали плиты;
5 - стержни соединительной арматуры закладной детали плиты
Сечение стальных накладок и стержней соединительной арматуры закладных элементов в плитах определяется по расчету на растягивающие усилия, возникающие в покрытии от действия сейсмических нагрузок в продольном направлении здания. При этом диск - покрытие пролета зданий допускается рассматривать как балку-стенку, свободно опертую и загруженную равномерно распределенной по площади сейсмической нагрузкой.
Исходя из этих условий площадь сечения стальных накладок и стержней соединительной арматуры закладных элементов в плитах покрытия определяется по формуле

(18)
где
Sп - расчетная горизонтальная сейсмическая нагрузка, действующая на покрытие рассматриваемого пролета здания в продольном направлении; нагрузка
Sп определяется по
формуле (12);
B - пролет покрытия;
l - длина плиты покрытия;
Rа - расчетное сопротивление растяжению стальных накладок или стержней соединительной арматуры закладных элементов в плитах;
mкр = 1,4 - коэффициент условия работы;
k - коэффициент, принимаемый по табл. 3 в зависимости от отношения величины пролета покрытия B к длине здания или отсека L;

- при бесфонарном покрытии;

- при покрытии с фонарем.
Таблица 3
B --- L | <= 0,5 | 0,75 | 1 | 1,5 |
k | 0,38 | 0,62 | 0,96 | 1,88 |
2.20. В сборном покрытии для обеспечения передачи горизонтальных нагрузок с покрытия на колонны должны предусматриваться следующие мероприятия по замоноличиванию типовых плит покрытия:
а) плиты покрытия должны крепиться к несущим конструкциям (фермам, балкам) сваркой опорных закладных элементов не менее чем в трех углах, за исключением плит, примыкающих к антисейсмическому шву или торцовой стене, которые допускается приваривать со стороны одного продольного ребра, но при этом торцы смежных продольных ребер антисейсмического шва или торцовой стены соединяются между собой при помощи стальных накладок, привариваемых к опорным закладным элементам плит (рис. 9).
Рис. 9. Крепление плит покрытия к стропильным конструкциям,
расположенным у торца или антисейсмического шва здания
1 - плиты покрытия; 2 - стропильная конструкция;
3 - стальная накладка
Длина шва принимается по всей длине или ширине плоскости опирания закладного элемента плиты на закладной элемент в балке или ферме. Толщина шва принимается равной 6 мм в зданиях с расчетной сейсмичностью 7 баллов и 8 мм в зданиях с расчетной сейсмичностью 8 и 9 баллов, за исключением случаев, когда швы принимаются по расчету в соответствии с
п. 2.21;
б) в покрытиях с фонарями при расчетной сейсмичности здания 8 и 9 баллов продольные ребра плит, примыкающие к фонарю, должны быть соединены по длине между собой при помощи стальных накладок, привариваемых к опорным закладным элементам плит (см.
рис. 6 и 10);
Рис. 10. Соединение стальными накладками опорных закладных
деталей продольных ребер плит покрытия, примыкающих
к фонарю в зданиях с расчетной сейсмичностью 8 и 9 баллов
1 - плиты покрытия; 2 - стропильная конструкция;
3 - закладные детали плит; 4 - стальная накладка
в) продольные ребра плит в местах опирания на подстропильные балки должны крепиться к стропильным балкам таким образом, чтобы была обеспечена возможность поворота сечения стропильной балки.
Продольные ребра плит, опирающиеся на подстропильные фермы, во избежание работы стропильных ферм как неразрезной конструкции, необходимо закрепить упорными уголками, которые привариваются к закладным элементам ферм по ходу монтажа плит.
В целях обеспечения устойчивости подстропильных балок и ферм, расположенных у продольных антисейсмических швов здания, следует приваривать к ним продольные ребра плит;
г) в продольных швах между плитами должны предусматриваться шпонки. Все швы (продольные и поперечные) между плитами должны быть тщательно заполнены раствором или бетоном марки 200 на мелком гравии или щебне.
Для образования шпонок на наружных поверхностях продольных ребер плит должны предусматриваться пазы прямоугольного сечения;
д) во всех продольных швах между плитами в местах пересечения с поперечными швами симметрично относительно несущей конструкции укладываются одиночные плоские сварные каркасы из двух стержней диаметром 6 - 8 мм из стали класса А-I (рис. 11);
Рис. 11. Установка каркаса между продольными ребрами
плит покрытия
1 - плиты покрытия; 2 - верхний пояс стропильной
конструкции; 3 - сварной каркас; 4 - раствор марки 200
е) в покрытиях с сегментными фермами уширенные продольные швы между плитами, расположенные на расстоянии 3 м от продольных разбивочных осей здания, должны использоваться для устройства монолитных железобетонных антисейсмических поясов. Эти пояса армируются по всей длине сварными каркасами, которые стыкуются между собой и крепятся к несущим конструкциям (балкам или фермам) с помощью сварки. Площадь сечения продольной арматуры каркасов из стали класса А-I должна быть не менее 0,5%, а из стали класса А-II и А-III - 0,4% площади сечения бетона пояса.
2.21. В сборных покрытиях ребра плит, примыкающие к продольным рядам колонн, а также упорные уголки (см.
п. 2.20 "в") должны привариваться швами, рассчитанными на продольные горизонтальные усилия, передающиеся с плит на опоры несущих конструкций покрытия. При этом величина усилия, приходящегося на продольный ряд колонн, от действия сейсмических нагрузок (определяемых в соответствии с
п. 2.12 "а") в крайних рядах целиком передается на ребра плит, а в средних рядах усилие распределяется между двумя смежными рядами ребер крайних плит пропорционально грузовым площадям покрытий пролетов, примыкающих к продольному ряду колонн.
Сварные швы рассчитываются по формуле

(19)
где Uп - величина продольного горизонтального усилия, приходящегося на один ряд ребер плит, примыкающих к рассматриваемому продольному ряду колонн;

- расчетное сопротивление углового сварного шва, принимаемое по табл. 6 главы СНиП II-В.3-62*;
hш - толщина углового шва, принимаемая равной не менее указанной в
п. 2.20 "а";
lш - суммарная длина расчетных швов, воспринимающих усилие Uп;
m - коэффициент, учитывающий сложные условия работы шва и принимаемый равным 0,7;
mкр - коэффициент условий работы для сварных соединений, принимаемый равным единице (см.
п. 1.15).
Число расчетных швов и их местоположение зависит от конструктивной схемы здания и расположения связей между опорными участками стропильных конструкций покрытия.
2.22. В зданиях с пролетами до 24 м включительно при расчетной сейсмичности 7 баллов конструктивная схема и расположение связей между опорными участками стропильных конструкций принимается как для несейсмических районов. При этом число и местоположение расчетных сварных швов в покрытии определяется в соответствии с "Указаниями по применению крупноразмерных плит в покрытиях промышленных зданий" <1>.
--------------------------------
<1> Серия 1-237. Изд. Центрального института типовых проектов, 1965.
В зданиях с пролетом 30 м и более при расчетной сейсмичности 7 баллов и с пролетами 12 м и более при расчетной сейсмичности 8 и 9 баллов конструктивная схема и расположение связей между опорными участками стропильных конструкций принимается в соответствии с указаниями
п. 2.23. При этом возможны следующие случаи распределения продольного горизонтального усилия между сварными швами крепления крайних продольных ребер плит:
I случай. Усилие Uп распределяется на все места приварки крайних продольных ребер плит.
Такой случай может быть:
а) когда на колонны непосредственно опираются стропильные конструкции и между последними на опорах установлены вертикальные стальные связи, расположенные не реже чем через шаг, чередуясь с распорками в уровне верха колонн (
рис. 12, а);
б) когда стропильные конструкции опираются на подстропильные конструкции.
Рис. 12. Схемы расположения расчетных сварных швов
крепления плит в покрытиях без подстропильных конструкций
а - первый случай; б - второй случай;
1 - связи; 2 - распорки; 3 - расчетные сварные швы
для усилия

; 4 - расчетные сварные швы для усилия

II случай. Усилие Uп передается на продольные ряды колонн в отдельных узлах.
Этот случай имеет место, когда на колонны непосредственно опираются стропильные конструкции и между последними на опорах устанавливаются вертикальные стальные связи более чем через шаг и распорки в уровне верха колонн (
рис. 12, б).
2.23. В зданиях с пролетами 30 м и более при расчетной сейсмичности 7 баллов и с пролетами 12 м и более при расчетной сейсмичности 8 баллов должны быть предусмотрены:
а) в продольных рядах колонн без подстропильных конструкций - вертикальные стальные связи между опорными участками балок или ферм и распорки по верху колонн; при этом нижние пояса связей и распорки крепятся к закладным деталям колонн
(рис. 13); количество вертикальных связей между опорными участками стропильных конструкций определяется из условия расположения расчетных сварных швов крепления ребер плит, примыкающих к продольным рядам колонн (см.
п. 2.21);
б) в продольных рядах колонн с подстропильными балками или фермами при скатной кровле - стальные упоры для закрепления опорных участков стропильных балок или ферм от опрокидывания, а также стальные распорки между опорными стойками и верхним поясом подстропильных ферм (
рис. 14 -
18);
в) в продольных рядах с подстропильными балками или фермами при плоской кровле - стальные упоры или распорки для закрепления опорных участков стропильных балок или ферм от опрокидывания (
рис. 19 и
20).
Рис. 13. Пример расположения связей покрытия с балками
(при плоской кровле) в зданиях с шагом колонн 6 м
при расчетной сейсмичности 8 баллов
1 - стропильные балки; 2 - вертикальные связевые фермы;
3 - стальные распорки
Рис. 14. Крепление стропильных балок к подстропильной
в середине ее пролета (при скатной кровле) в зданиях
с расчетной сейсмичностью 8 баллов
1 - стропильные балки; 2 - подстропильные балки;
3 - стальные упоры; 4 - закладные детали
подстропильной балки
Рис. 15. Крепление стропильных балок к подстропильным
в месте опирания их на колонну (при скатной кровле)
в зданиях с расчетной сейсмичностью 8 баллов
1 - стропильные балки; 2 - подстропильные балки;
3 - колонна; 4 - стальные упоры, привариваемые
к подстропильным балкам после установки стропильных балок
Рис. 16. Пример расположения связей покрытия с фермами
(при скатной кровле) в зданиях с шагом крайних колонн 6 м
и средних 12 м при расчетной сейсмичности 8 баллов
1 - стропильные фермы; 2 - подстропильные фермы;
3 - вертикальные связевые фермы; 4 - стальные распорки
Рис. 17. Крепление стропильных ферм к подстропильной
в середине ее пролета (при скатной кровле) в зданиях
с расчетной сейсмичностью 8 баллов
1 - стропильные фермы; 2 - подстропильные фермы;
3 - стальные упоры, привариваемые к подстропильной ферме
Рис. 18. Крепление стропильных ферм к подстропильным
в месте опирания их на колонну (при скатной кровле)
в зданиях с расчетной сейсмичностью 8 баллов
1 - стропильные фермы; 2 - подстропильные фермы;
3 - колонны; 4 - упоры, плотно прижатые к бетонной
поверхности фермы; 5 - стальные распорки
Рис. 19. Крепление стропильных балок к подстропильным
в месте опирания их на колонну (при плоской кровле)
в зданиях с расчетной сейсмичностью 8 баллов
1 - стропильная балка; 2 - подстропильная балка;
3 - стальная распорка; 4 - колонна
Рис. 20. Пример расположения связей покрытия с фермами
(при плоской кровле) в зданиях с шагом крайних колонн 6 м
и средних 12 м при расчетной сейсмичности 8 баллов
1 - стропильные фермы; 2 - подстропильные фермы;
3 - вертикальные связевые фермы; 4 - стальные распорки
При подборе подстропильных балок по нагрузке от покрытия должна учитываться также вертикальная составляющая от действия продольных горизонтальных нагрузок, передающихся с покрытия через стальные распорки, устанавливаемые в опорных участках стропильных балок.
В зданиях с пролетами 12 м и более при расчетной сейсмичности 9 баллов между балками или фермами на опорах должны быть установлены не реже чем через шаг вертикальные стальные связи, чередующиеся с распорками. При этом нижние пояса связей и распорки должны крепиться к закладным элементам балок или ферм (
рис. 21 и
22).
Рис. 21. Пример расположения связей покрытия с балками
(при плоской кровле) в зданиях с шагом колонн 6 м
при расчетной сейсмичности 9 баллов
1 - стропильные балки; 2 - вертикальные связевые фермы;
3 - стальные распорки
Рис. 22. Крепление вертикальной связи и распорки
в покрытии здания с расчетной сейсмичностью 9 баллов
1 - стропильная конструкция; 2 - колонна; 3 - вертикальная
связевая ферма; 4 - стальная распорка;
5 - закладная деталь в стропильной конструкции
Стальные вертикальные связи, распорки и упоры должны быть рассчитаны на восприятие приходящихся на них расчетных горизонтальных сейсмических нагрузок; при этом в зданиях с расчетной сейсмичностью 9 баллов связи между опорными участками балок или ферм должны быть рассчитаны с учетом усилий, возникающих в связях от смещения места приложения вертикальной нагрузки на колонны при повороте опорной плоскости колонн от сейсмических воздействий (рис. 23).
Рис. 23. Схемы к расчету вертикальных связей между опорными
участками стропильных конструкций на усилия от смещения
места приложения вертикальной нагрузки на колонну
а - схема покрытия; б - схема деформированного элемента
покрытия; в - расчетная схема связи;
1 - вертикальная связь; 2 - распорка
Величина силы, приходящейся на вертикальную связь, от смещения места приложения вертикальной нагрузки на колонну определяется по формуле

(20)
где
N - расчетная нормальная сила на колонну от нагрузок покрытия (коэффициенты перегрузки и сочетаний принимаются в соответствии с указаниями
п. 1.10);
b - ширина поперечного сечения стропильной конструкции в месте опирания на колонну;
c - размер площадки соприкасания стальной опорной части стропильной конструкции с закладным элементом колонны с учетом смятия (в месте передачи усилий) стальных частей и бетона верха колонны; величина c принимается равной 60 мм;
h - высота вертикальной связи.
2.24. Конструкцию соединения стропильных несущих конструкций покрытия (балок, ферм) с подстропильными, а также стропильных и подстропильных конструкций с колоннами каркаса здания с расчетной сейсмичностью 7 и 8 баллов допускается принимать как для несейсмических районов с учетом дополнительных мероприятий, предусмотренных в
п. 2.23.
В зданиях с расчетной сейсмичностью 9 баллов узел опирания стропильной конструкции на колонну следует выполнять путем соединения опорных листов колонны и стропильной конструкции с применением сварки по двум сторонам листов и монтажных болтов, располагаемых за гранями колонны для обеспечения возможности поворота верхнего сечения колонны (рис. 24). При этом расчетные усилия передаются только на сварные швы.
Рис. 24. Опирание стропильных конструкций на колонну
при расчетной сейсмичности 9 баллов
1 - стропильные конструкции; 2 - колонна
Узлы соединения несущих конструкций покрытия с колоннами должны быть рассчитаны на срез от усилий, возникающих в этих местах в соответствии с величинами горизонтальных сейсмических нагрузок, действующих на рассматриваемое соединение.
В соответствии с решениями узлов опирания стропильных конструкций на колонны и конструкций связей опорные участки стропильных конструкций должны быть проверены на усилия, возникающие при смещении продольной силы при деформациях колонн. В случае недостаточной прочности необходимо произвести соответствующие усиления опорных частей стропильных конструкций.
2.25. В покрытиях с фермами нижний пояс стропильных ферм должен быть развязан стальными распорками и двумя вертикальными связями в пределах температурного блока здания. Вертикальные связи и распорки устанавливаются посередине пролета ферм (рис. 25).
Рис. 25. Пример расположения связей покрытия с фермами
при расчетной сейсмичности здания 7 баллов
1 - стропильные фермы; 2 - вертикальные связевые фермы;
3 - стальные распорки
2.26. Для сейсмических районов выбор типа здания с фонарем или без фонаря должен производиться на общих основаниях. При прочих равных условиях следует отдавать предпочтение бесфонарным зданиям.
В зданиях с фонарями рамы фонарей рекомендуется выполнять стальными. Фонарь по длине здания (отсека) должен не доходить до торцов здания и антисейсмических швов на один пролет плит для создания замкнутого диска покрытия.
Устойчивость рам фонарей должна обеспечиваться постановкой в двух крайних ячейках каждого температурного блока вертикальных связей в середине пролета фонаря и связей в плоскости верхнего пояса рамы фонаря, а также крупнопанельными плитами покрытия и бортовыми плитами, которые привариваются к рамам фонаря.
На подфонарных участках покрытия в уровне верхнего пояса ферм для обеспечения устойчивости должны устанавливаться распорки посередине пролета.
Конструкции фонаря должны быть рассчитаны на особое сочетание нагрузок с учетом сейсмических нагрузок, действующих вдоль или поперек фонаря. На продольные нагрузки рассчитываются продольные вертикальные связи, на поперечные - рамы фонаря. Сейсмические нагрузки, действующие на фонарь, определяются по
формуле (3) при значениях

и

, принятых из расчета каркаса.
2.27. При применении в сейсмических районах облегченных покрытий, не образующих жесткого диска, необходимо предусматривать связи в плоскости верхних поясов ферм покрытия. Продольные горизонтальные сейсмические нагрузки, действующие на покрытие, воспринимаются на уровне верхнего пояса ферм горизонтальными связевыми фермами покрытия и через систему вертикальных связей и распорок между фермами передаются на колонны или на вертикальные связи колонн.
2.28. Конструкции покрытия (балки, фермы и плиты), запроектированные для несейсмических районов, разрешается применять в сейсмических районах при условии выполнения указаний
пп. 1.8;
2.18 -
2.27. В необходимых случаях, должны быть установлены в конструкциях дополнительные закладные элементы.
Каркас многоэтажного здания
2.29. Многоэтажные здания для сейсмических районов должны проектироваться с несущим каркасом, образованным продольными и поперечными рамами преимущественно со всеми жесткими узлами.
Каркас, как правило, должен проектироваться из сборных железобетонных колонн и поперечных ригелей. Продольные ригели могут выполняться монолитными или сборными (
рис. 26 и
27).
Рис. 26. Перекрытия (покрытия) многоэтажного здания
а - план перекрытия с продольными монолитными ригелями;
б - план расположения сборных железобетонных ригелей
в перекрытии; 1 - поперечные сборные железобетонные ригели;
2 - продольные монолитные железобетонные ригели;
3 - сборные железобетонные плиты
Рис. 27. Армирование продольного монолитного
железобетонного ригеля перекрытия
а - поперечный разрез ригеля у колонны; б - поперечный
разрез ригеля в середине его пролета; в - продольный
разрез ригеля у колонны; 1 - колонна; 2 - сборные
железобетонные ригели; 3 - сборные железобетонные плиты
В зданиях с расчетной сейсмичностью 7 баллов продольная устойчивость каркаса может быть осуществлена путем установки стальных связей между колоннами или продольных рам с жесткими узлами, располагаемых в отдельных рядах симметрично продольной оси здания. При этом число таких рам определяется расчетом.
2.30. Перекрытия, как правило, должны проектироваться из сборных железобетонных плит и образовывать жесткий диск, что достигается тщательной приваркой плит к сборным ригелям и заполнением швов между плитами бетоном марки не ниже 200 на мелком гравии или щебне с применением вибрирования при укладке.
В продольных ребрах сборных плит, применяемых в зданиях с расчетной сейсмичностью 9 баллов, должны предусматриваться пазы для образования бетонных шпонок.
При продольных ригелях, выполняемых из монолитного железобетона, плиты, примыкающие к этим ригелям, привариваются в четырех углах; следующие за ними - или в трех углах (при опирании плит по верху ригеля), или в двух углах (при опирании плит на полки ригеля); средняя плита в каждой ячейке может укладываться без приварки.
В зданиях с расчетной сейсмичностью 9 баллов торцы смежных продольных ребер плит, укладываемых поверх ригелей, соединяются между собой у антисейсмического шва или торцовой стены при помощи стальных накладок, привариваемых к закладным элементам плит.
При необходимости устройства в перекрытиях проемов во избежание нарушения жесткости диска перекрытия количество проемов должно назначаться минимальным, а размеры проемов не должны превышать размеров в свету между поперечными и между продольными ригелями.
Мероприятия по созданию жесткости перекрытий в ячейках, в которых устраиваются проемы, должны предусматриваться в проектах зданий.
Балочная клетка перекрытия, на которую опирается оборудование, должна быть рассчитана также на действие горизонтальной сейсмической нагрузки от веса оборудования, приложенной в центре тяжести оборудования. При этом значение произведения коэффициентов

принимается как для каркаса в уровне рассматриваемого перекрытия, но не менее 2.
Покрытия многоэтажных зданий с укрупненной сеткой колонн в верхнем этаже проектируются с соблюдением требований, предъявляемых к покрытиям одноэтажных зданий (см.
пп. 2.18 -
2.28).
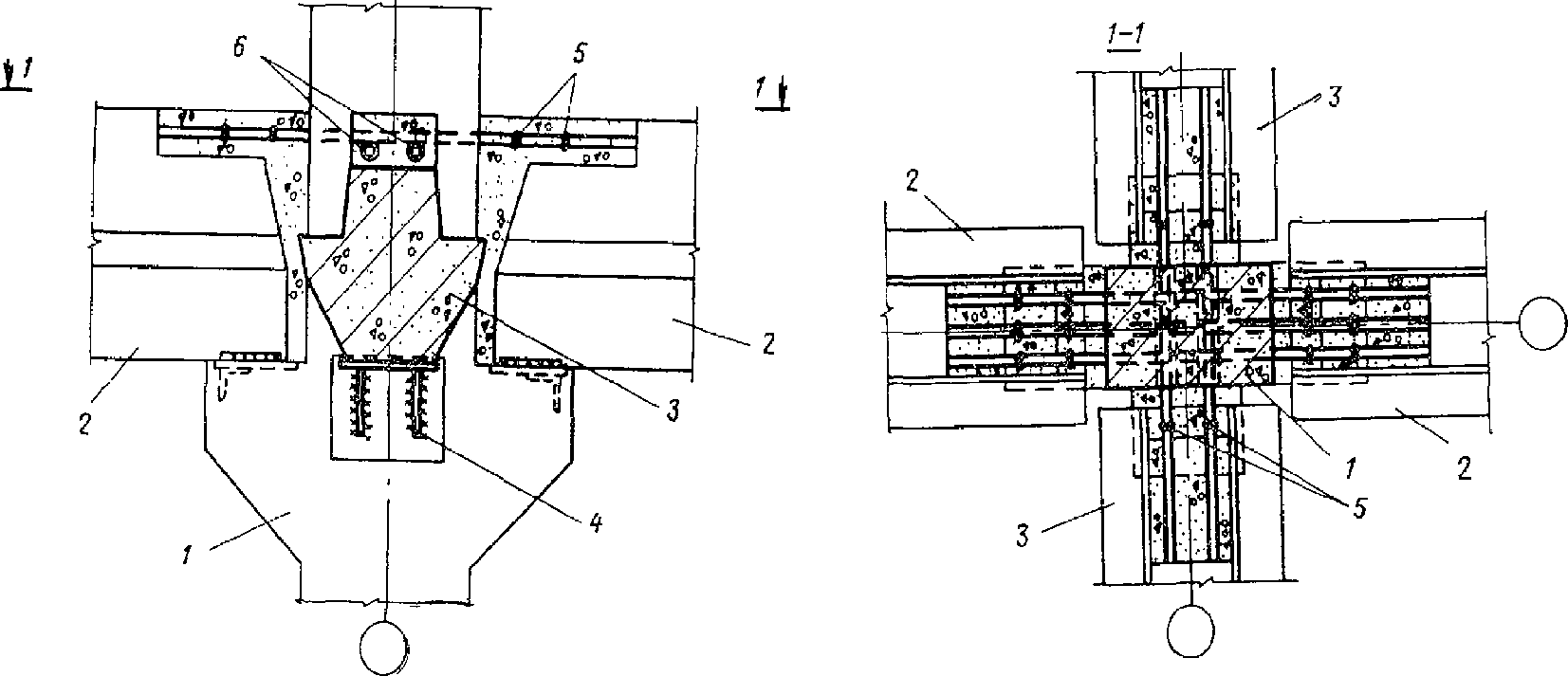
2.31. Стыки колонн сборных железобетонных каркасов рекомендуется относить от узлов рам и устраивать в зоне действия наименьших изгибающих моментов.
Стыки колонн рекомендуется выполнять путем соединения на сварке рабочей арматуры колонн с последующим замоноличиванием зоны стыка. Соединение рабочей арматуры может выполняться через накладки, привариваемые к стальным оголовкам дуговой сваркой, к которым заранее приварена рабочая арматура колонн, или путем сварки встык выпусков рабочей арматуры из колонн. В тех случаях, когда стык колонн со стальными оголовками расположен в зоне наибольшего изгибающего момента, для возможности развития пластических деформаций в накладках рекомендуется производить приварку накладок с таким расчетом, чтобы расстояние между сварными швами по длине накладок составляло не менее 10 см.
Стыки ригелей с колоннами рекомендуется выполнять замоноличенными со сваркой выпусков арматурных стержней колонн и ригелей. При наличии на колоннах консолей, на которых устанавливаются ригели, стыкование нижней арматуры может осуществляться при помощи сварки стальных закладных элементов консолей колонн и ригелей (рис. 28 и
29).
Рис. 28. Сопряжение сборных поперечных ригелей
перекрытия со средней колонной
а - при опирании плит на полки ригелей;
б - при опирании плит на ригели прямоугольного сечения;
1 - колонна; 2 - ригели; 3 - ванная сварка;
4 - выпуски арматуры в продольный монолитный ригель
Рис. 29. Консольное сопряжение сборных поперечных
и продольных ригелей с колонной
1 - колонна; 2 - поперечный ригель; 3 - продольный ригель;
4 - опорная консоль; 5 - ванная сварка;
6 - отверстия в колонне
Не рекомендуется устраивать подрезки снизу ригелей при опирании их на консоли колонн.
При устройстве замоноличенных стыков ригелей с колоннами при бесконсольном решении следует обеспечивать передачу поперечных сил с помощью сварки закладных элементов в колоннах и ригелях, путем устройства шпонок на стыкуемых поверхностях колонн и ригелей и т.п.
(рис. 30).
Рис. 30. Сопряжение сборных поперечных и продольных ригелей
с колонной (при бесконсольном опирании продольных ригелей)
а - узел поперечной рамы; б - узел продольной рамы;
1 - колонна; 2 - поперечный ригель; 3 - продольный ригель;
4 - ванная сварка; 5 - сварные сетки; 6 - хомуты;
7 - бетон марки на одну ступень выше, чем бетон
примыкающих сборных элементов
| | ИС МЕГАНОРМ: примечание. Взамен СН 393-69 Постановлением Госстроя СССР от 04.09.1978 N 175 с 1 июля 1979 года введены в действие СН 393-78. | |
Сварные соединения встык выпусков арматурных стержней должны выполняться в соответствии с "Указаниями по сварке соединений арматуры и закладных деталей железобетонных конструкций" (СН 393-69).
Замоноличивание стыков каркаса может выполняться бетоном на мелком щебне или путем инъецирования цементного раствора в зависимости от конструкции стыков и условий строительства.
2.32. При бесконсольном примыкании ригелей к колоннам для обеспечения несущей способности жестких узлов каркаса в колоннах и ригелях на участках, примыкающих к узлу и имеющих длину, равную высоте поперечного сечения элемента (соответственно колонны или ригеля), рекомендуется устанавливать замкнутую поперечную арматуру с шагом, вдвое меньшим, чем требуется по расчету, и не более 10 см (
рис. 31, а).
В случае опирания ригелей на железобетонные консоли колонн дополнительную поперечную арматуру следует устанавливать только в колонне выше верха ригелей (
рис. 31, б).
Рис. 31. Армирование поперечной арматурой участков колонн
и ригелей, примыкающих к узлу
а - при бесконсольном сопряжении;
б - при опирании ригелей на короткие консоли колонн;
1 - колонна; 2 - ригели
2.33. Центральная зона жестких узлов поперечных и продольных рам каркаса должна рассчитываться на прочность от действия расчетных усилий в сечениях по границам центральной зоны узла (рис. 32). Величины расчетных усилий (
M,
Q и
N) в рассматриваемом узле определяются по комбинации усилий при особом сочетании нагрузок, являющейся расчетной для сечения колонны над узлом.
Рис. 32. Схемы узлов с усилиями, учитываемыми
при расчете центральной зоны
а - узлы с бесконсольным опиранием ригелей; б - узлы
с опиранием ригелей на железобетонные консоли колонны;
1 - центральная зона узла
На схемах узлов (рис. 32) показаны усилия, учитываемые при расчете центральной зоны узла. Поперечные и нормальные силы в ригелях не учитываются. Изгибающие моменты, поперечные и нормальные силы в колоннах принимаются равными:

(21)

(22)

(23)
где

,

и

,

- расчетные значения изгибающих моментов и поперечных сил в колонне соответственно в верхнем и нижнем сечениях от узла;

- расчетное значение нормальной силы в колонне в верхнем сечении от узла.
Прочность центральной зоны узла определяется расчетом на сжатие условной бетонной наклонной призмы
(рис. 33) по формуле
Nуз <= 0,8
RпрbHmузmкр, (24)
где Nуз - величина расчетного сжимающего усилия в наклонной призме, определяемая как равнодействующая горизонтальных Wгор и вертикальных Wверт внутренних усилий, возникающих в сечениях по границам центральной зоны узла, т.е.

(25)
здесь Rпр - расчетная призменная прочность бетона;
b - ширина узла, принимаемая равной ширине колонны;
H - расчетная высота сечения сжатой наклонной призмы;
mуз - коэффициент условий работы узла, принимаемый равным 0,8. Если к узлу рассчитываемой рамы примыкают с обеих сторон ригели рам второго направления с монолитным или замоноличенным сопряжением и при этом ими перекрывается не менее 50% площади узла, то mуз может быть принят равным 1;
mкр - коэффициент условий работы для железобетонных конструкций, принимаемый равным 1,2 (см.
п. 1.15).
Рис. 33. Расчетные схемы центральной зоны узла
а - при

; б - при

; 1 - расчетная призма;
на схемах а и б в случае другого направления действия
изгибающего момента в правом ригеле

величина
равнодействующей горизонтальных внутренних усилий
в узле определяется по формуле

Если
условие (24) выполняется, то центральную зону узла рекомендуется конструктивно армировать хомутами из стержней диаметром не менее 8 мм, устанавливаемыми с шагом 10 см. При несоблюдении
условия (24) следует повысить прочность узла косвенным армированием центральной зоны (см.
п. 2.34). В необходимых случаях прочность узла может быть повышена путем увеличения марки бетона или размеров узла.
Расчетная высота сечения сжатой наклонной призмы определяется по формуле

(26)
где zр и zк - расстояния между равнодействующими внутренних усилий соответственно для ригелей и колонны;

- коэффициент, принимаемый равным единице, если равнодействующие внутренних усилий в колонне определены по 1-му случаю внецентренного сжатия или по 2-му случаю при

; при 2-м случае внецентренного сжатия, если

, коэффициент

определяется по формуле

(27)
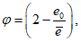
здесь e0 - эксцентриситет продольной силы Nк относительно центра тяжести сечения колонны;
| | ИС МЕГАНОРМ: примечание. Взамен СНиП II-В.1-62 Постановлением Госстроя СССР от 24.11.1975 N 196 с 1 января 1977 года введены в действие СНиП II-21-75. | |

- расстояние от точки приложения равнодействующей усилий в арматуре и бетоне сжатой зоны сечения, соответствующих границе между случаями 1-м и 2-м внецентренного сжатия, до оси, проходящей через центр тяжести арматуры со стороны наименее сжатой или растянутой грани сечения; величина
e определяется по формуле (96) главы СНиП II-В.1-62*.
Величина zр для средних узлов рамы определяется по формуле

(28)
где

и

- расстояния между равнодействующими усилий в бетоне сжатой зоны и в арматуре растянутой зоны ригеля соответственно в сечениях слева и справа от узла.
При определений
zр по граням крайних и средних узлов рамы эпюра напряжений сжатой зоны бетона принимается прямоугольной со значением расчетного сопротивления бетона
Rи, а арматура сжатой зоны бетона не учитывается. При этом
zр для крайних узлов, а также

и

для средних узлов принимаются не менее:
для бетона марки <= 400 .......... 0,73

" " " 500 .......... 0,78

" " " 600 .......... 0,80

,
где h0 - рабочая высота сечения ригеля.
Внутренние усилия в сечении колонн
при

(29)
принимаются равными равнодействующей усилий в арматуре и бетоне сжатой зоны сечения и равнодействующей усилий в растянутой арматуре;
при

(30)
равнодействующая сжимающих усилий принимается равной нормальной силе Nк, а равнодействующая усилий в растянутой (или наименее сжатой) арматуре принимается равной нулю.
Величина zк определяется:
в узлах с бесконсольным примыканием ригеля к колонне по формуле

(31)
в узлах с опиранием ригелей на железобетонные консоли по формулам:
для крайних узлов

(32)
для средних узлов

(33)
e - расстояние от точки приложения нормальной силы до равнодействующей усилий в растянутой или наименее сжатой арматуре;
h - высота поперечного сечения колонны ниже узла;
h0 - рабочая высота сечения колонны ниже узла;
lк - вылет консоли колонны;

- принимается: при

равной расстоянию между равнодействующими внутренних усилий для сечения колонны над узлом;
при

равной:
для бетона марки <= 400 .......... 0,73

" " " 500 .......... 0,78

" " " 600 .......... 0,80

,
где h0 - рабочая высота сечения колонны над узлом.
2.34. Косвенное армирование центральной зоны узлов осуществляется постановкой горизонтальных сеток (рис. 34).
Рис. 34. Армирование центральной зоны узла сетками
1 - колонна; 2 - ригель; 3 - сетки
Необходимое косвенное армирование определяется из условия

(34)
где
H,
Rпр,
mуз и
mкр - обозначения те же, что и в
п. 2.33;
bя - ширина сечения узла, заключенная внутри контура стержней косвенного армирования;
| | ИС МЕГАНОРМ: примечание. Взамен СНиП II-В.1-62 Постановлением Госстроя СССР от 24.11.1975 N 196 с 1 января 1977 года введены в действие СНиП II-21-75. | |

- объемный коэффициент косвенного армирования, определяемый в соответствии с п. 7.13 главы СНиП II-В.1-62* по формуле

(35)
Rа - расчетное сопротивление растяжению стержней сеток или хомутов косвенного армирования;

- угол между осью сжатой наклонной призмы узла и плоскостью косвенного армирования:

(36)
Величины
Wверт и
Nуз принимаются из
п. 2.33.
2.35. При сборно-монолитных продольных ригелях каркаса таврового сечения и в виде монолитной или сборной плиты
(рис. 27), ширина которых более ширины колонны, часть рабочей арматуры, устанавливаемой на приопорных участках, должна иметь соединение с колонной. Соединение может быть выполнено:
или путем пропуска части арматуры ригеля через колонну - при консольном и бесконсольном опирании поперечных ригелей на колонны; при этом площади верхней и нижней арматуры, пропускаемой через колонну, должны составлять

(37)
и не менее 50% расчетного количества рабочей арматуры;
или путем выпусков арматуры из поперечных ригелей с заделкой их в продольном ригеле - при консольном опирании поперечных ригелей на колонны (см.
рис. 27, а).
Вместо пропуска части арматуры через колонны допускается приварка этой части арматуры к закладным элементам, надлежащим образом заделанным в колонне.
При расчете на прочность продольных сборно-монолитных ригелей таврового сечения и в виде монолитной плиты ширину сжатой зоны бетона в сечении по грани колонны следует принимать равной ширине колонны.
При проверке прочности нормальных сечений ригеля по граням узла при особом сочетании нагрузок рекомендуется не учитывать продольную арматуру в сжатой зоне. В случае необходимости можно учитывать часть сжатой арматуры, причем учитываемая площадь ее не должна превышать величины

(38)
fа и

- площадь растянутой и сжатой арматуры, пропускаемой через колонну;

- учитываемая в расчете площадь сжатой продольной арматуры;
Fа и

- площадь расчетной растянутой и сжатой рабочей арматуры ригеля;

- расчетный изгибающий момент в ригеле по грани колонны;

и

- расчетные значения изгибающих моментов в смежных ригелях по граням колонны соответственно слева и справа от узла, определяемые по
п. 2.33; в
формулах (37) и
(38) знак (+) - в случае моментов в ригелях по рис. 35, в; знак (-) - в случае моментов в ригелях по рис. 35, б.
Рис. 35. Эпюры изгибающих моментов в узлах рамы каркаса
а - крайний узел; б и в - средние узлы;
1 - грань колонны или ее консоли
2.36. Каркасы многоэтажных зданий (отсеков), имеющие период основного тона собственных колебаний больше 0,5 сек, следует рассчитывать на сейсмические нагрузки с учетом трех высших форм колебаний.
При учете высших форм собственных колебаний сейсмические нагрузки находятся отдельно для каждой формы.
2.37. При определении периодов (или частот) и соответствующих им форм собственных колебаний многоэтажных каркасов в качестве динамической расчетной схемы рекомендуется принимать систему с сосредоточенными грузами на уровнях перекрытий и покрытия (рис. 36). Количество сосредоточенных грузов определяет число степеней свободы принятой системы.
Рис. 36. Динамическая расчетная схема каркаса
многоэтажного здания
а - поперечный разрез здания; б - динамическая
расчетная схема каркаса здания
Величина каждого груза
Qj вычисляется в соответствии с
пп. 1.12 и
2.9 от нагрузок, расположенных в пределах половины высоты выше- и нижележащих этажей.
В зданиях, оборудованных мостовыми кранами, при расчете каркаса в поперечном направлении здания величина Qj определяется с учетом нагрузок от собственного веса мостов кранов.
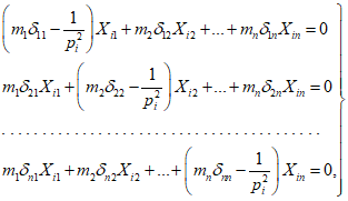
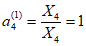
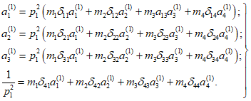
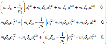
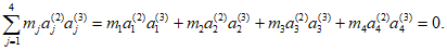
Частоты и формы собственных колебаний определяются из уравнений:

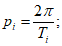
(39)
где pi - круговая частота i-й формы собственных колебаний, связанная с периодом собственных колебаний зависимостью

(40)
mj - масса, соответствующая грузу Qj, сосредоточенному на уровне j-го перекрытия или покрытия в т·сек2/м:

(
j = 1, 2, ...,
n), (41)
здесь g - ускорение силы тяжести;

- перемещение в точке
k от действия единичной горизонтальной силы, приложенной в точке, в м/т;
Xij - амплитуда i-й формы собственных колебаний в точке j в м/т.
Уравнения (39) для многомассовых систем рекомендуется решать при помощи ЭВМ с использованием существующих стандартных программ. Для систем, имеющих не более пяти степеней свободы, применительно к полноклавишным машинам может быть использован итерационный метод (см.
пример 3 приложения).
2.38. Сейсмическая нагрузка, действующая на весь каркас здания в уровне какого-либо перекрытия или покрытия, определяется по
формуле (3), где нагрузка
Qк принимается равной соответствующей нагрузке, вычисленной при определении периода и формы собственных колебаний каркаса (см.
п. 2.37), за исключением нагрузок от собственного веса мостов кранов, которые учитываются в соответствии с
п. 2.13.
В уровнях перекрытий или покрытия сейсмические нагрузки распределяются между отдельными рамами каркаса пропорционально их жесткости Cka

(42)
где Ska - расчетная горизонтальная сейсмическая нагрузка, приходящаяся на рассматриваемую раму a в уровне k-го перекрытия или покрытия;
Sk - расчетная горизонтальная сейсмическая нагрузка, действующая на каркас здания (отсека) в уровне k-го перекрытия или покрытия;
Cka - жесткость рассматриваемой рамы a в уровне k-го перекрытия или покрытия:

(43)
Ck - общая жесткость каркаса здания (отсека) в уровне k-го перекрытия или покрытия

(44)

- перемещение каркаса здания (отсека) на уровне
k-го перекрытия или покрытия от горизонтальной единичной силы, приложенной в уровне
k-го перекрытия или покрытия в центре жесткости;

- перемещение рассматриваемой рамы на уровне
k-го перекрытия или покрытия от горизонтальной единичной силы, приложенной в уровне
k-го перекрытия или покрытия.
Примечание. При определении усилий с учетом сейсмических нагрузок в поперечных и продольных рамах многоэтажных зданий перераспределение усилий в соответствии с "Инструкцией по расчету статически неопределимых железобетонных конструкций с учетом перераспределения усилий" <1> допускается лишь для вертикальных нагрузок. Перераспределение усилий от сейсмических нагрузок не производится и эти усилия суммируются с перераспределенными усилиями от вертикальных нагрузок.
--------------------------------
<1> Госстройиздат, 1961.
2.39. Деформация каркаса многоэтажного здания (отсека) на уровне какого-либо перекрытия или покрытия от действия расчетных сейсмических нагрузок определяется:
при учете i-й формы собственных колебаний

(45)
при учете высших форм собственных колебаний

(46)
Kс,

,

- обозначения приведены в
п. 1.12;
Ti - период i-го тона собственных колебаний в сек;
g - ускорение силы тяжести в м/сек2;

- наибольшее из значений перемещений рассматриваемого перекрытия или покрытия, вычисленных по
формуле (45) для каждой из учитываемых форм собственных колебаний каркаса;

- значения перемещений рассматриваемого перекрытия или покрытия, вычисленных для других форм собственных колебаний каркаса.
3.1. Фундаменты под колонны рекомендуется проектировать стаканного типа.
Расчет стакана фундамента следует выполнять в соответствии с указаниями по расчету для несейсмических районов, при этом коэффициент условий работы mкр принимается равным единице.
3.2. Фундаменты колонн связевой панели помимо расчета на нормальные силы и моменты следует рассчитывать на сдвиг от действия расчетных горизонтальных нагрузок в продольном направлении здания, при этом учитываются силы трения фундаментов о грунт.
Фундаменты колонн связевой панели должны быть соединены между собой распоркой, рассчитываемой на действие горизонтальных сил и поперечной нагрузки, обусловленной осадкой фундаментов при действии постоянных нагрузок.
Фундаменты колонн связевой панели должны дополнительно соединяться распорками с соседними фундаментами, если суммарные силы трения под подошвами фундаментов связевой панели меньше суммарных усилий сдвига от расчетных горизонтальных нагрузок (рис. 37).
Рис. 37. Схемы к расчету фундаментов колонн
связевой панели на сдвиг
1 - распорка; 2 - дополнительные распорки
при Q1 + Q2 > (N1 + N2)f, где f - коэффициент трения
В качестве распорок между фундаментами наружных рядов колонн могут быть использованы фундаментные балки.
3.3. Над стыками фундаментных балок с фундаментом следует укладывать симметрично оси ряда сетку длиной 2 м из арматуры диаметром 8 - 10 мм с шагом продольных стержней 100 мм, поперечных 200 мм.
3.4. Если разгружающая сила в колонне связевой панели от действия расчетных горизонтальных нагрузок превышает нормальную силу, то грани колонн, а также стенки стаканов фундаментов должны иметь шпонки, рассчитываемые на срез от растягивающих усилий.
4.1. В целях уменьшения сейсмических нагрузок, действующих на каркас здания, стены рекомендуется принимать преимущественно из легких крупноразмерных панелей (пенобетонных, керамзитобетонных и др.) длиной, равной шагу пристенных колонн. При навесных стенах рекомендуется применять ленточное остекление.
В зданиях с расчетной сейсмичностью 8 и 9 баллов применение стен из кирпича, бетонных блоков и других штучных материалов должно быть максимально ограничено.
4.2. В зависимости от способа опирания стены могут быть:
а) навесными, с опиранием их на каркас здания;
б) самонесущими, с опиранием их на фундаментные балки или на ленточные фундаменты.
Навесные и самонесущие стены должны выполняться с соблюдением требований
п. 1.6.
4.3. Ширина вертикального антисейсмического шва в навесных панельных и каменных стенах определяется по
формуле (9), а в самонесущих каменных стенах принимается:
а) для стен высотой до 5 м - не менее 3 см;
б) для стен высотой более 5 м ширину шва следует увеличивать на 2 см на каждые 5 м высоты.
Ширина вертикального антисейсмического шва (в сантиметрах) в местах пересечений продольных стен с поперечными определяется по формуле

(47)
где

принимается равным:
для зданий с навесными стенами - максимальной из величин относительных перемещений каркаса в пределах высот навесных участков стены (
рис. 38, а, б);
для зданий с самонесущими стенами - максимальному перемещению каркаса (
рис. 38, в, г).
Рис. 38. Схемы стен и их деформации
в момент сейсмического толчка
а - навесная стена; б - деформация навесной стены в момент
сейсмического толчка; в - самонесущая стена; г - деформация
самонесущей стены в момент сейсмического толчка;
1 - навесные участки стены; 2 - горизонтальные
антисейсмические швы; 3 - вертикальный антисейсмический
шов; 4 - оси колонн каркаса; 5 - самонесущие стены
Перемещения (в см) каркаса здания (отсека) от действия расчетных горизонтальных сейсмических нагрузок вычисляются для одноэтажных зданий по
формуле (17), для многоэтажных зданий по
формулам (45) и
(46).
Высота горизонтального антисейсмического шва в стенах принимается равной 1,5 - 2 см.
4.4. Горизонтальные антисейсмические швы в стенах должны заполняться упругими прокладками, не препятствующими взаимному сдвигу участков стены. В качестве прокладок могут применяться ленты из пенопласта, пороизола, губчатой резины и других упругих материалов.
Вертикальные антисейсмические швы в стенах должны закрываться компенсаторами или нащельниками из оцинкованной стали, не препятствующими перемещению стены (или отдельных ее участков). Допускается устройство оштукатуренных швов по сетке. В зависимости от климатических условий и температурно-влажностного режима помещений антисейсмические швы в стенах заполняются утеплителем из минеральной ваты, обвернутой толем, из поропласта и других аналогичных материалов.
4.5. При опирании навесных стен на колонны с помощью консолей последние должны размещаться в уровне горизонтальных антисейсмических швов таким образом, чтобы они не препятствовали взаимным горизонтальным перемещениям смежных по высоте участков стен и колонн при деформации каркаса в момент сейсмического толчка (рис. 39).
Рис. 39. Пример решения панельной стены
и ее деформация в момент сейсмического толчка
1 - навесные участки стены; 2 - опорные консоли;
3 - антисейсмические швы; 4 - верх колонн
Опорные консоли и сварные швы их крепления к колоннам, а также закладные элементы и их заделка в колоннах должны быть рассчитаны на одновременное действие нагрузки от собственного веса навесной стены и вертикальных сейсмических нагрузок, вычисленных по
формуле (3), где величина
Qk принимается равной нагрузке от собственного веса навесной стены в месте опирания на опорную консоль и значение произведения коэффициентов

равно 5. При определении величин нагрузок должны учитываться указания
п. 1.10.
4.6. Стены и их крепления к каркасу должны быть проверены расчетом на местную сейсмическую нагрузку от собственного веса стены в направлении, перпендикулярном их плоскости.
Величина местной сейсмической нагрузки от собственного веса стены определяется по
формуле (3); при этом значение произведения коэффициентов

принимается как для соответствующих уровней каркаса, но не меньше 2.
При расчете парапетов в направлении, перпендикулярном плоскости стены, значение произведения коэффициентов

принимается равным 5.
4.7. Гидроизоляцию в стенах на уровне верха фундаментных балок следует выполнять из цементного раствора.
4.8. В навесных стенах каждая крупноразмерная панель (железобетонная, пенобетонная, керамзитобетонная и др.) длиной, равной шагу пристенных колонн, должна крепиться к каркасу в соответствии с
п. 1.6 "г" (рис. 40).
Рис. 40. Пример крепления стеновых панелей
к колонне в уровне растворного шва (а)
и в уровне антисейсмического шва (б)
1 - колонна; 2 - стеновые панели; 3 - закладная деталь
стеновой панели; 4 - закладная деталь колонны; 5 - опорная
консоль; 6 - цементный раствор; 7 - антисейсмический шов,
заполненный упругой синтетической прокладкой
Заполнение всех швов между панелями, за исключением вертикальных и горизонтальных антисейсмических швов (см.
п. 4.4), может приниматься как для несейсмических районов.
Для заполнения оконных проемов должны применяться оконные панели (панельные переплеты), которые крепятся к каркасу аналогично стеновым панелям. Допускается оконное заполнение выполнять и из отдельных переплетов при условии обеспечения свободного сдвига переплетов по отношению к колонне и перекрывающей их панели.
4.9. Самонесущие стены с опиранием панелей на простенки допускается применять высотой не более 18 м при расчетной сейсмичности 7 баллов, 16 м при расчетной сейсмичности 8 баллов и 9 м при расчетной сейсмичности 9 баллов.
Панели длиной, равной шагу пристенных колонн, должны крепиться к каркасу в четырех углах, а панели простенков - в месте примыкания к колонне в двух верхних и нижних точках. Крепления панелей выполняются в соответствии с
п. 1.6 "г".
Для восприятия усилий, возникающих в самонесущих стенах от действия сейсмической нагрузки в их плоскости, панели простенков по граням, обращенным к проемам, следует соединять между собой по высоте и с примыкающими к ним панелями (длиной, равной шагу пристенных колонн) при помощи сварки закладных элементов, заложенных по углам панелей. Панели длиной, равной шагу пристенных колонн, должны соединяться между собой по длине стены стальными накладками, привариваемыми к верхним закладным элементам панелей.
Величина сейсмической нагрузки, действующей в самонесущей стене, а также величины расчетных усилий в элементах стены (простенках, горизонтальных поясах между проемами) могут быть определены по аналогии с расчетом каменных стен, изложенным в
пп. 4.18 -
4.21.
Заполнение всех швов между панелями, за исключением вертикальных антисейсмических швов, должно производиться цементным раствором.
4.10. Каменные стены должны проектироваться выносными, примыкающими к наружным граням колонн. Шаг пристенных колонн каркаса должен быть не более 6 м.
Стены должны выполняться из кладки 1-й и 2-й категории по сопротивляемости сейсмическим воздействиям.
4.11. Применение самонесущих стен допускается при соблюдении следующих требований:
а) высота стен в зависимости от расчетной сейсмичности зданий не должна превышать:
при 7 баллах ................. 18 м
" 8 " ................. 16 "
" 9 " ................. 9 "
б) независимо от результата расчета в стенах высотой более 12 м при расчетной сейсмичности 7 баллов, 9 м - 8 баллов; 6 м - 9 баллов должно быть предусмотрено конструктивное вертикальное продольное армирование, при этом площадь всей продольной арматуры должна составлять не менее 0,1% площади сечения кладки.
4.12. Вертикальные антисейсмические швы в местах пересечения продольных самонесущих стен с поперечными до отметки 5 м от уровня чистого пола 1-го этажа выполняются шириной 3 см. Выше отметки 5 м ширина антисейсмического шва принимается постоянной и равной расчетной ширине, определяемой по
формуле (47).
4.13. По всей длине стены между вертикальными антисейсмическими швами на уровне плит покрытий и верха оконных проемов должны устраиваться антисейсмические пояса, которые рекомендуется выполнять железобетонными (сборными или монолитными). Антисейсмические пояса должны быть соединены с каркасом анкерами.
Сборные железобетонные перемычки (или обвязочные балки), соединенные между собой и со всеми колоннами каркаса в соответствии с указанием
п. 4.15, являются антисейсмическими поясами.
4.14. Железобетонные антисейсмические пояса должны иметь ширину, как правило, равную толщине стены, и высоту не менее 15 см. При толщине стены 50 см и более ширина железобетонных поясов может быть меньше толщины стены на 10 - 15 см.
Железобетонный пояс должен выполняться из бетона марки не ниже 150.
Продольная арматура железобетонных поясов должна быть определена по расчету в соответствии с
п. 4.23. При этом площадь всей продольной арматуры должна быть не менее: при расчетной сейсмичности 7 и 8 баллов - 3 см
2 и при расчетной сейсмичности 9 баллов - 4,5 см
2 для стали класса А-I. Для сталей других классов допускается изменение площади сечения арматуры в соответствии с ее расчетным сопротивлением. Арматуру следует укладывать у боковых граней и связывать хомутами из круглой стали диаметром 4 - 6 мм, установленными через 25 - 40 см.
4.15. Сборные железобетонные перемычки длиной 6 м (или обвязочные балки) в уровне их верха необходимо соединять между собой стальными накладками, привариваемыми к закладным элементам, и крепить к колоннам каркаса в двух плоскостях на уровне верха и низа перемычек (или обвязочных балок).
В случае когда в простенках предусматривается вертикальное продольное армирование перемычки допускается выполнять монолитными или сборно-монолитными, которые крепятся к колоннам в одном уровне.
Для единичных проемов шириной до 2 м допускается проектировать перемычки, не соединенные с каркасом.
4.16. Расстановку креплений стены к каркасу по высоте зданий следует принимать не более чем через 1,2 м.
В горизонтальном шве кладки, расположенном выше креплений стен к каркасу, следует укладывать сварные сетки из холоднотянутой проволоки диаметром 3 - 5,5 мм с общей площадью сечения продольной арматуры не менее 1 см2.
Сетки пропускаются не менее чем на 50 см в каждую сторону от креплений. При расчетной сейсмичности 9 баллов сетки рекомендуется укладывать по всей длине швов (рис. 41).
Рис. 41. Пример крепления самонесущих кирпичных стен
к колонне каркаса при расчетной сейсмичности здания 9 баллов
1 - колонна; 2 - самонесущая кирпичная стена; 3 - закладная
деталь в колонне; 4 - сварная сетка;

- максимальное
перемещение каркаса вдоль стены
4.17. Кладка парапетов должна выполняться из кирпича или камней правильной формы марки не ниже 75 на растворе марки не ниже 50. В случае необходимости (см.
п. 4.6) парапеты должны быть армированы вертикальной продольной арматурой, заанкеренной в антисейсмическом поясе, а в горизонтальные швы через 5 - 6 рядов по высоте кладки должны быть уложены два стержня из проволоки диаметром 3 мм.
4.18. Расчет каменных стен производится на одновременное действие горизонтально и вертикально направленных сейсмических сил. При этом величину вертикальной сейсмической нагрузки в случае расчетной сейсмичности 7 и 8 баллов допускается принимать равной 15%, а при расчетной сейсмичности 9 баллов - равной 30% соответствующей вертикальной статической нагрузки. Направление действия вертикальной сейсмической нагрузки (вверх или вниз) принимается более невыгодным для напряженного состояния рассматриваемого элемента.
4.19. Стены с оконными проемами при определении сейсмических нагрузок, действующих в плоскости стены, разбиваются по высоте на ярусы с границами на уровне горизонтальных осей проемов (рис. 42).
Рис. 42. Схема фасада самонесущей стены
1 - антисейсмические швы; 2 - горизонтальные пояса;
3 - простенки; 4 - глухой участок
Горизонтальные сейсмические нагрузки, действующие в пределах каждого яруса стены, определяются по
формуле (3), при этом нагрузка
Qk принимается равной собственному весу стены
k-го яруса, а величина произведения коэффициентов

принимается по табл. 4.
Таблица 4
Величина произведения коэффициентов

для стен с оконными проемами
Ярус | Количество ярусов по высоте стен |
1 | 2 | 3 | 4 | 5 |
1-й | 3 | 1,8 | 1,3 | 1 | 0,8 |
2-й | - | 3,6 | 2,6 | 2 | 1,6 |
3-й | - | - | 3,9 | 3 | 2,5 |
4-й | - | - | - | 4 | 3,3 |
5-й | - | - | - | - | 4,1 |
Горизонтальные сейсмические нагрузки Sk, действующие в пределах каждого яруса стены, распределяются между отдельными простенками и глухими участками (без проемов) пропорционально их жесткостям. При этом не учитываются гибкие простенки, удовлетворяющие условию

(48)
где h - высота простенка, принимаемая равной высоте проемов;
b - ширина простенка.
Жесткость каждого учитываемого простенка (или глухого участка), исходя из деформаций изгиба и сдвига, может быть определена по формуле

(49)
где E0 - модуль упругости кладки;
d - толщина простенка;

- коэффициент (учитывающий деформации сдвига и изгиба в простенке), определяемый по графику на рис. 43 в зависимости от отношения высоты простенка к его ширине.
Рис. 43. График коэффициента

При

жесткость простенка (или глухого участка) допускается определять с учетом только деформаций сдвига. В этом случае сейсмическая нагрузка между отдельными простенками и глухими участками стены распределяется по формуле

(50)
где Skn - часть горизонтальной сейсмической нагрузки на уровне k-го яруса стены, приходящаяся на n-й простенок (глухой участок);
Fn - площадь горизонтального сечения n-го простенка (глухого участка) на уровне k-го яруса (за вычетом площади отверстий, каналов и т.д.);

- суммарная площадь горизонтального сечения всех простенков и глухих участков рассматриваемой стены.
В случае если стена состоит из всех гибких простенков, то в ней должны предусматриваться глухие участки, которые, как правило, должны располагаться у вертикальных антисейсмических швов. Тогда сейсмическая нагрузка от собственного веса всей стены должна полностью восприниматься глухими участками и распределяться между ними пропорционально их жесткости.
4.20. При расчете стен без оконных проемов на действующие в их плоскости сейсмические силы величина произведения коэффициентов

при определении горизонтальной сейсмической нагрузки принимается равной 4.
4.21. Расчетные усилия в простенках и горизонтальных поясах между проемами от горизонтальных сейсмических нагрузок, действующих в плоскости стены, допускается определять исходя из того, что нулевые точки в эпюре моментов располагаются по вертикали в середине расстояния между осями горизонтальных поясов, а по горизонтали - симметрично относительно вертикальных осей простенков (рис. 44).
Рис. 44. Схемы к расчету простенков и горизонтальных
поясов самонесущей каменной стены на действие
сейсмических сил в ее плоскости
а - элемент фасада стены; б - расчетная схема;
в - эпюра M; 1 - оси проемов; 2 - простенки;
3 - оси горизонтальных поясов
| | ИС МЕГАНОРМ: примечание. Взамен СНиП II-В.1-62 Постановлением Госстроя СССР от 24.11.1975 N 196 с 1 января 1977 года введены в действие СНиП II-21-75. | |
| | ИС МЕГАНОРМ: примечание. Взамен СНиП II-В.2-62 Госстроем СССР от 16.09.1971 с 1 июля 1972 года введены в действие СНиП II-В.2-71. | |
В случае если прочность горизонтальных поясов окажется недостаточной для восприятия усилий, возникающих от действия сейсмических сил и собственного веса, то простенки следует рассчитывать как консоли с учетом разгружающего действия моментов M1, M2, ..., Mn (рис. 45), определяемых несущей способностью горизонтальных поясов согласно СНиП II-В.1-62* и СНиП II-В.2-62*.
Рис. 45. Схемы к расчету простенков самонесущей каменной
стены на действие сейсмических сил в ее плоскости
а - элемент фасада стены; б - расчетная схема;
в - эпюра M; 1 - оси проемов; 2 - оси горизонтальных
поясов; 3 - простенки
Расчетные усилия в глухих участках от горизонтальных сейсмических нагрузок, действующих в плоскости стены, могут определяться как в консоли, загруженной сосредоточенными горизонтальными сейсмическими силами на уровнях осей междуоконных горизонтальных поясов кладки (рис. 46).
Рис. 46. Схемы к расчету глухого участка самонесущей
каменной стены на действие сейсмических сил в ее плоскости
а - элемент фасада стены; б - расчетная схема;
в - эпюра M; 1 - глухой участок; 2 - оси
горизонтальных поясов; 3 - оси проемов
4.22. Прочность стен в направлении, перпендикулярном их плоскости, проверяется на совместное действие:
а) местной сейсмической нагрузки от собственного веса стен на участках между антисейсмическими поясами и стойками каркаса, являющимися опорами стен;
б) усилий (моментов) в стене, возникающих от перемещения стены вместе с каркасом.
В одноэтажных зданиях перемещение стены на уровне верха колонн принимается равным перемещению каркаса в том же уровне.
В многоэтажных зданиях простенки стен могут быть рассчитаны как неразрезная балка на упругих опорах, которыми служат антисейсмические пояса. Перемещения опор стены принимаются равными перемещениям ярусов рам при всех учитываемых в расчете формах колебания каркаса. Прочность стены проверяется по наибольшему моменту в данном сечении при рассматриваемых формах колебания каркаса.
4.23. Железобетонные антисейсмические пояса, расположенные в пределах глухих участков стены, должны рассчитываться на изгиб из плоскости стены от горизонтальной нагрузки, полученной из расчета стены в соответствии с
п. 4.22 "а".
| | ИС МЕГАНОРМ: примечание. Взамен СНиП II-В.2-62 Госстроем СССР от 16.09.1971 с 1 июля 1972 года введены в действие СНиП II-В.2-71. | |
4.24. Сечения стен должны проверяться на внецентренное сжатие, срез и главные растягивающие напряжения в соответствии с указаниями главы СНиП II-В.2-62* "Каменные и армокаменные конструкции. Нормы проектирования".
При расчете на главные растягивающие напряжения в случае, если
e0 >= 0,45y, (51)
учитывается ослабление сечения трещинами, для чего величина площади сечения кладки в расчетных формулах заменяется площадью сжатой зоны.
В формуле (51) принято:
e0 - эксцентриситет продольной силы относительно центра тяжести сечения;
y - расстояние от центра тяжести сечения до края сечения в сторону эксцентриситета.
4.25. Жесткость сечения самонесущей стены (или ее элемента) определяется без учета трещин и принимается равной
EJс = 0,8
E0Jс, где
E0 - модуль упругости кладки, принимаемый в соответствии с п. 3.4 главы СНиП II-В.2-62*;
Jс - момент инерции полного сечения стены (или ее элемента).
При расчете каркаса здания (отсека) с самонесущими стенами в направлении, перпендикулярном плоскости стен, пристенный элемент каркаса рассматривается как составное сечение с жесткостью, равной сумме жесткостей пристенных колонн каркаса EбJк и стены EJс.
При опирании самонесущей стены на фундамент (жесткое опирание) суммарная жесткость (EбJк + EJс) принимается постоянной по всей высоте пристенного элемента каркаса. При этом в продольно армированной кладке должно быть обеспечено заанкеривание вертикальной продольной арматуры кладки в фундамент на величину, равную 40 диаметрам.
При опирании самонесущей стены на фундаментные балки (шарнирное опирание) суммарная жесткость принимается постоянной от второго (снизу) анкера крепления стены к каркасу (расположенного на расстоянии 1,2 м от низа кладки) до верхнего конца пристенного элемента каркаса. На участке между верхом фундаментных балок и вторым (снизу) анкером жесткость стены принимается изменяющейся по линейному закону от нуля на уровне шарнира до EJс на уровне второго (снизу) анкера. Допускается принимать на этом участке суммарную жесткость постоянной и равной EбJк + 0,4EJс (рис. 47).
Рис. 47. Схемы к расчету каркаса здания с учетом
жесткости самонесущих стен
а - поперечный разрез; б - расчетная схема; в - эпюра
изгибающих моментов; 1 - фундаментная балка; 2 - самонесущая
кирпичная стена; 3 - анкеры крепления стен; 4 - колонна
В месте опирания стены на фундаментную балку прочность кладки должна быть проверена из условия, что площадь сжатой части сечения не должна превышать 1/6 площади всего сечения кладки. В случае если прочность сжатой части сечения окажется недостаточной, кладку следует усилить сетчатым армированием.
ПРИМЕРЫ РАСЧЕТА
Пример 1. Определение усилий в каркасе одноэтажного
бескранового здания от действия сейсмических нагрузок
Определить усилия в каркасе одноэтажного бескранового здания (
рис. 48 и
49) от действия сейсмических нагрузок. Расчетная сейсмичность здания 8 баллов.
Рис. 48. План здания на отметке +/- 0,000
1 - антисейсмический шов
а - поперечный; б - продольный
Несущие конструкции каркаса: колонны сечением 40 x 40 см, двускатные балки пролетом 18 м. Марка бетона крайних колонн 200 (Eб = 265000 кг/см2), средних 300 (Eб = 315000 кг/см2).
Колонны торцового фахверка запроектированы составными из железобетонной нижней части сечением 40 x 40 см (марка бетона 200) и металлической верхней части (рис. 50).
Рис. 50. Схема торцового фахверка
Покрытие - из крупнопанельных ребристых плит с замоноличенными швами. Кровля рулонная.
Стены самонесущие толщиной 38 см, из кирпича марки 75, на растворе марки 50.
Схемы фасадов продольных и торцовых стен изображены на рис. 51.
Рис. 51. Схема фасадов здания
а - продольного; б - торцового; 1 - антисейсмический шов
Расчетные вертикальные нагрузки от собственного веса конструкций и снега приведены в табл. 5.
Таблица 5
Вертикальные расчетные нагрузки
Нагрузка | Единица измерения | Нормативная нагрузка | Коэффициент | Расчетная нагрузка |
перегрузки | сочетания |
От веса колонн | т | 2,8 | 1,1 | 0,9 | 2,77 |
То же, балки покрытия | " | 9,1 | 1,1 | 0,9 | 9,01 |
То же, плит покрытия с замоноличенными швами | т/м2 | 0,145 | 1,1 | 0,9 | 0,144 |
От веса кровли | " | 0,047 | 1,1 | 0,9 | 0,046 |
То же, утеплителя | " | 0,06 | 1,2 | 0,9 | 0,065 |
То же, кирпичной стены (без проемов) | " | 0,685 | 1,1 | 0,9 | 0,678 |
От веса оконного остекления | " | 0,05 | 1,1 | 0,9 | 0,049 |
То же, ворот, включая вес рамы | " | 0,38 | 1,1 | 0,9 | 0,376 |
То же, снега | " | 0,1 | 1,4 | 0,5 | 0,07 |
А. Расчет каркаса в поперечном направлении здания
1. Определяем перемещения колонн от действия единичных горизонтальных сил, приложенных в уровнях верха колонн.
Момент инерции поперечного сечения колонны каркаса и железобетонной части колонны торцового фахверка

, то же, поперечного сечения металлической части фахверковой колонны

.
Жесткость сечения колонны каркаса по осям А и Г EбJк = 265·104·21,3·10-4 = 5,65·103 т·м2, то же, колонны по осям Б и В EбJк = 315·104·21,3·10-4 = 6,71·103 т·м2.
Жесткость сечения железобетонной части фахверковой колонны EбJф.б = EбJк = 5,65·103 т·м2, то же, металлической части фахверковой колонны EстJф.м = 2,1·107·1,33·10-5 = 0,28·103 т·м2.
| | ИС МЕГАНОРМ: примечание. Взамен СНиП II-В.2-62 Госстроем СССР от 16.09.1971 с 1 июля 1972 года введены в действие СНиП II-В.2-71. | |
В соответствии с указаниями
п. 2.9 перемещения колонн каркаса по осям А и Г определяют с учетом жесткости прилегающих к ним участков самонесущей стены. При этом модуль деформаций кладки принимается в соответствии с указаниями п. 3.4 главы СНиП II-В.2-62* "Каменные и армокаменные конструкции. Нормы проектирования":

.
Тогда перемещения на уровне верха колонн будут иметь следующие значения:
а) в колонне по осям 1/А, 1/Г, 11/А и 11/Г с учетом жесткости участка продольной стены длиной

:

;

;

;

;
б) в колонне по осям 2/А, 2/Г, 10/А и 10/Г с учетом жесткости участка продольной стены длиной

:

;

;

;

;
в) в колонне по осям 3/А - 9/А и 3/Г - 9/Г с учетом жесткости участка продольной стены длиной 3 м:

;

;

;

;
г) в колонне по осям Б и В
д) в фахверковой колонне
2. Определяем жесткость каркаса здания на уровне верха колонн.
Жесткость каркаса здания на уровне верха колонн определяем по
формуле (8):
3. Определяем вертикальную нагрузку от собственного веса конструкций и снега.
Вертикальную нагрузку принимаем сосредоточенной в уровне верха колонн и определяем в соответствии с указаниями
п. 2.9. Вычисление вертикальной нагрузки приведено в табл. 6.
Таблица 6
Вычисление вертикальной нагрузки
Нагрузка | Вычисление | Расчетная нагрузка Q в т |
От веса кровли | 0,046·54·60 | 149 |
То же, утеплителя | 0,065·54·60 | 211 |
То же, плит покрытия с замоноличенными швами | 0,144·54·60 | 467 |
От веса балок покрытия | 9,01·33 | 297 |
То же, участков продольных стен, расположенных выше верха колонн | 0,678·1,5·60·2 | 122 |
От 1/4 веса колонн | 0,25·2,77·56 | 39 |
То же, участков продольных стен, расположенных в пределах высоты колонн | 0,25[0,678(6·60 - 4,2·3·8)2 + 0,049·4,2·3·8·2] | 90 |
От веса снега | 0,07·54·60 | 227 |
Итого | - | 1602 |
4. Определяем период собственных колебаний каркаса в поперечном направлении здания.
Период собственных колебаний каркаса определяем по
формуле (7):

.
5. Определяем коэффициент динамичности для каркаса здания.
Коэффициент динамичности определяется по
формуле (3):

. Так как

, то

увеличиваем на коэффициент

, который определяется по
табл. 3:

;

.
6. Определяем коэффициент сейсмичности
Kс и коэффициент

.
Коэффициент сейсмичности
Kс принимаем по
табл. 1.
При расчетной сейсмичности 8 баллов Kс = 0,05.
Коэффициент

для системы с одной степенью свободы равен единице.
7. Определяем расчетные величины сейсмических нагрузок, действующих на поперечные рамы каркаса.
В соответствии с указанием
п. 1.12 при определении расчетных величин сейсмических нагрузок на каркас учитываем дополнительный коэффициент 0,8.
а) В уровне верха колонн - от покрытия, участков продольных стен, расположенных выше верха колонн, снега.
Предварительно по
формуле (12) определяем сейсмическую нагрузку, действующую на весь каркас здания, при этом нагрузку
Qп находим с учетом вычислений, приведенных в
п. 3 настоящего примера:
Qп = 149 + 211 + 467 + 297 + 122 + 227 = 1473 т;

.
Затем сейсмическую нагрузку распределяем между поперечными рамами каркаса пропорционально их жесткостям:
на раму по осям 1 и 11, при ее жесткости

,

;
на раму по осям 2 и 10, при

,

;
на раму по осям 3 - 9, при

,

.
в) По длине колонн по осям А и Г - от участков стен, расположенных в пределах высоты колонн, по
формуле (13):
на раму по осям 1 и 11:
Qс = 0,678·3,25·6,15 = 13,7 т;

;
на раму по осям 2 и 10:
Qс = 0,678(5,75·6,15 - 4,2·1,5) + 0,049·4,2·1,5 = 20 т;

;
на раму по осям 3 - 9:
Qс = 0,678(6·6,15 - 4,2·3) + 0,049·4,2·3 = 17,1 т;

.
8. Определяем расчетные усилия
M,
Q в сечениях колонн на уровне верха фундаментов от сейсмических нагрузок

,
Sк и
Sс (рис. 52).
Эпюры
M,
Q приведены на
рис. 53, а.
Рис. 52. Расчетные схемы рам каркаса
а - поперечной; б - продольной
Рамы | Нагрузка |
 в т | Sс + Sк в т/м | Sк в т/м |
Поперечные | по оси 1 и 11 | 4,2 | 0,1 | 0,02 |
по оси 2 и 10 | 4,3 | 0,13 | 0,02 |
по оси 3 - 9 | 4,1 | 0,12 | 0,02 |
Продольные | крайняя по оси А и Г | 10,6 | 0,1 | 0,02 |
средняя по оси Б и В | 18,7 | 0,16 | 0,02 |
Рис. 53. Эпюры изгибающих моментов и поперечных сил
а - в поперечных рамах; б - в продольных рамах
Рамы по оси | MА и MГ в т·м | MБ и MВ в т·м | QА и QГ в т | QБ и QВ в т |
1 и 11 | 8,29 | 6,87 | 1,66 | 1,18 |
2 и 10 | 9,11 | 7,02 | 1,88 | 0,96 |
3 - 9 | 8,55 | 7,02 | 1,76 | 1,2 |
Рамы по оси | M1 и M11 в т·м | M2 - M10 в т·м | Q1 и Q11 в т | Q2 - Q10 в т |
А и Г | 8,78 | 6,11 | 1,74 | 1,05 |
Б и В | 16,45 | 10,17 | 3,16 | 1,72 |
Б. Расчет каркаса в продольном направлении здания
9. Определяем перемещения колонн от действия единичных горизонтальных сил, приложенных в уровнях верха колонн.
В соответствии с указаниями
п. 2.9 перемещения колонн, примыкающих к торцовым стенам, определяем с учетом жесткости прилегающих к ним участков стены.
Для колонны по осям 1/А, 1/Г, 11/А и 11/Г с учетом жесткости участка торцовой стены длиной

:

;

;

;

;
Для колонн по осям 1/Б, 1/В, 11/Б и 11/В с учетом жесткости участка торцовой стены длиной 6 м:

;

;

;

;
Для колонны по осям 2/А - 10/А и 2/Г - 10/Г
Для колонн по осям 2/Б - 10/Б и 2/В - 10/В
Для фахверковой колонны с учетом жесткости участка торцовой стены длиной

(расчетная схема колонны изображена на
рис. 50)

;

;

;

;

;

;

;
10. Определяем жесткость каркаса здания в уровне верха колонн:
11. Определяем вертикальную нагрузку от собственного веса конструкций и снега.
Вычисление вертикальной нагрузки приведено в табл. 7.
Таблица 7
Вычисление вертикальной нагрузки
Нагрузка | Вычисление | Расчетная нагрузка Q в т |
От веса кровли | 0,046·54·60 | 149 |
То же, утеплителя | 0,065·54·60 | 211 |
То же, плит покрытия с замоноличенными швами | 0,144·54·60 | 467 |
От веса балок покрытия | 9,01·33 | 297 |
То же, участков торцовых стен, расположенных выше верха колонн | 0,678(1,8·54,8 + 0,4·9·3)2 | 149 |
От 1/4 веса колонн | 0,25·2,77·56 | 39 |
То же, участков торцовых стен, расположенных в пределах высоты колонн | 0,25·[0,678(6,15·54,8 - 3,6·5·3)2 + 0,376·3,6·5·6] | 106 |
От веса снега | 0,07·54·60 | 227 |
Итого | - | 1645 |
12. Определяем период собственных колебаний каркаса в продольном направлении здания

.
13. Определяем коэффициент динамичности для каркаса здания

;

.
14. Определяем расчетные величины сейсмических нагрузок, действующих на продольные рамы каркаса.
а) В уровне верха колонн - от покрытия, торцовых стен и снега.
Предварительно по
формуле (12) определяем сейсмическую нагрузку, действующую на весь каркас здания, при этом нагрузку
Qп определяем по табл. 8 с учетом вычислений, приведенных в
п. 11 настоящего примера.

.
Сейсмическую нагрузку распределяем между продольными рамами каркаса.
Таблица 8
Вычисление нагрузки Qп
Нагрузка | Вычисление | Расчетная нагрузка Qп в т |
От веса покрытия и снега | 149 + 211 + 467 + 297 + 227 | 1351 |
От 1/2 веса торцовых стен, фахверковых колонн и ворот | 0,5[0,678(7,8·54,8 + 0,4·9·3 - 3,6·5·3) + 0,376·3,6·5·3 + 2,77·6]2 | 297 |
Итого | - | 1648 |
Пропорционально их жесткости
На раму по осям А и Г, при

,

.
На раму по осям Б и В, при

,

.
Пропорционально прилегающим к ним грузовым площадям
| На раму по осям А и Г | |
| на раму по осям Б и В | |
Наибольшие величины сейсмических нагрузок, принимаемые для расчета, составляют:
| в раме по осям А и Г | |
| в раме по осям Б и В | |
б) По длине колонн - от собственного веса колонн - по
формуле (13):

.
в) По длине пристенных колонн - от участков торцовых стен, расположенных в пределах высоты колонн по
формуле (15).
На раму по осям А и Г:
Qс = 0,678·3,4·6,15 = 14,2 т;

.
На раму по осям Б и В:
Qс = 0,678·6·6,15 = 25 т;

.
15. Определяем расчетные усилия
M,
Q в сечениях колонн в уровне верха фундаментов от сейсмических нагрузок

,
Sк и
Sс (рис. 52).
Эпюры
M и
Q приведены на
рис. 53, б.
Пример 2. Определение усилий в каркасе одноэтажного здания,
оборудованного мостовыми кранами, от действия
сейсмических нагрузок
Определить усилия в каркасе одноэтажного здания (
рис. 54 -
56) от действия сейсмических нагрузок. Расчетная сейсмичность зданий 7 баллов.
Рис. 55. Поперечный разрез здания
Рис. 56. Продольные разрезы здания
а - по оси А и Г; б - по оси Б и В; 1 - стальные связи
Каждый пролет здания оборудован двумя мостовыми кранами среднего режима работы грузоподъемностью 20/5 т.
Несущие конструкции каркаса:
крайние колонны в надкрановой части ... сечением 40 x 38 см
" " " подкрановой " ... " 40 x 80 "
средние " " надкрановой " ... " 50 x 60 "
" " " подкрановой " ... " 50 x 80 "
стропильные и подстропильные фермы, подкрановые балки.
Марка бетона крайних колонн 200 (Eб = 265000 кг/см2), средних 300 (Eб = 315000 кг/см2).
В середине продольных рядов колонн поставлены вертикальные стальные связи. Геометрические схемы и сечения элементов связей приведены на рис. 57.
Рис. 57. Геометрические схемы и сечения
элементов стальных связей
а - между колоннами крайних рядов;
б - между колоннами средних рядов
Материал конструкций связей - сталь марки ВСт.3кп (Eст = 2100000 кг/см2).
Колонны торцового фахверка запроектированы составными из железобетонной нижней части сечением 40 x 60 см (марка бетона 300) и верхней металлической части (рис. 58).
Рис. 58. Схема торцового фахверка
А - расчетная схема фахверковой колонны
Покрытие - из крупнопанельных ребристых плит размером 3 x 6 м с рулонной кровлей. Рамы фонарей стальные.
Стеновые ограждающие конструкции - панели керамзитобетонные толщиной 24 см. Схемы фасадов продольных и торцовых стен см. на рис. 59.
Рис. 59. Схемы фасадов здания
а - продольного; б - торцового
Вертикальные расчетные нагрузки от собственного веса конструкций здания, моста крана и снега приведены в табл. 9.
Таблица 9
Вертикальные расчетные нагрузки
Нагрузка | Единица измерения | Нормативная нагрузка | Коэффициент | Расчетная нагрузка |
перегрузки | сочетания |
От веса колонны крайней | т | 8 | 1,1 | 0,9 | 7,92 |
То же, средней | " | 12,4 | 1,1 | 0,9 | 12,276 |
От веса фермы стропильной | " | 11,2 | 1,1 | 0,9 | 11,088 |
То же, подстропильной | " | 11,8 | 1,1 | 0,9 | 11,682 |
От веса подкрановой балки: | | | | | |
длиной 6 м | " | 4,2 | 1,1 | 0,9 | 4,158 |
" 12 " | " | 10,7 | 1,1 | 0,9 | 10,593 |
От веса плиты покрытия с заливкой швов | т/м2 | 0,145 | 1,1 | 0,9 | 0,144 |
То же, кровли | " | 0,047 | 1,1 | 0,9 | 0,047 |
" утеплителя | " | 0,06 | 1,2 | 0,9 | 0,065 |
" фонарных конструкций | " | 0,05 | 1,1 | 0,9 | 0,050 |
То же, панельных стен | " | 0,22 | 1,1 | 0,9 | 0,218 |
" оконного остекления | " | 0,04 | 1,1 | 0,9 | 0,04 |
" рамы ворот и кирпичной кладки заполнения между рамой ворот и панельной стеной | т | 13 | 1,1 | 0,9 | 12,87 |
То же, полотна ворот | " | 1,1 | 1,1 | 0,9 | 1,089 |
" моста крана | " | 36 | 1,2 | 0,5 | 21,6 |
" снега | т/м2 | 0,1 | 1,4 | 0,5 | 0,07 |
А. Расчет каркаса в поперечном направлении здания
1. Определяем перемещения колонн от действия единичных горизонтальных сил, приложенных в уровнях верха колонн.
Моменты инерции поперечных сечений крайней колонны каркаса:
в надкрановой части

в подкрановой части

То же, средней колонны каркаса:
в надкрановой части

в подкрановой части

Моменты инерции поперечных сечений фахверковой колонны:
металлической части

железобетонной части

Перемещения в уровне верха колонн определяем следующим образом:
а) в крайней колонне каркаса
б) в средней колонне каркаса
в) в фахверковой колонне А
г) в фахверковой колонне Б
2. Определяем жесткость каркаса здания в уровне верха колонн.
Жесткость каркаса здания в уровне верха колонн определяем по
формуле (11):
3. Определяем вертикальную нагрузку от собственного веса конструкций и снега.
Вертикальную нагрузку принимаем сосредоточенной в уровне верха колонн и определяем в соответствии с указанием
п. 2.11. Вычисление вертикальной нагрузки приведено в табл. 10.
Таблица 10
Вычисление вертикальной нагрузки
Нагрузка | Вычисление | Расчетная нагрузка Q в т |
От веса кровли | 0,047·60·72 | 200,9 |
То же, утеплителя | 0,065·60·72 | 279,9 |
То же, плит покрытия с заливкой швов | 0,144·60·72 | 622,1 |
То же, стропильных ферм | 11,088·33 | 365,9 |
То же, подстропильных ферм | 11,682·10 | 116,8 |
То же, фонарных конструкций | 0,050·12·48 | 28,5 |
То же, участков стен, расположенных выше верха колонн | 0,218(1,8·60·2 + 2,4 x 72 x 2 + 0,5·6·1,2·12 + 1,8·6·12) | 160,1 |
От 1/4 веса колонн | 0,25(7,92·40 + 12,276·12) | 116 |
То же, подкрановых балок | 0,25(4,158·20 + 10,593·20) | 73,8 |
То же, участков стен, расположенных в пределах высоты колонн | 0,25{0,218 [(10,8·60 - 7,2·48)2 + (10,8·72 - 1,8·60 - 5,4·60)2] + 0,04(7,2·48 + 1,8·60 + 5,4·42)2 + (12,87 + 1,089)6} | 103,2 |
То же, мостов кранов | 0,25·21,6·6 | 32,4 |
От веса снега | 0,07·60·72 | 302,4 |
Итого | - | 2402 |
4. Определяем период собственных колебаний каркаса в поперечном направлении здания.
Период собственных колебаний каркаса определяем по
формуле (10):

5. Определяем коэффициент динамичности для каркаса здания.
Принимаем

.
Приведенный размер поперечного сечения колонн определяем по
формуле (7):
крайних
средних
При

коэффициент

по
табл. 2 равен единице.

.
6. Определяем коэффициент сейсмичности
Kс и коэффициент

.
Коэффициент сейсмичности
Kс принимаем по
табл. 1. При расчетной сейсмичности 7 баллов
Kс = 0,025.
Коэффициент

для системы с одной степенью свободы равен единице.
7. Определяем расчетные величины сейсмических нагрузок, действующих на поперечные рамы каркаса.
а) В уровне верха колонн - от покрытия, снега, участков продольных стен, расположенных выше верха колонн, части (50%) торцовых стен.
Предварительно по
формуле (12) определяем сейсмическую силу, действующую на весь каркас здания; при этом нагрузку
Qп определяем по табл. 11 с учетом вычислений, приведенных в
п. 3 настоящего примера

.
Таблица 11
Вычисление нагрузки Qп
Нагрузка | Вычисление | Расчетная нагрузка Qп в т |
От веса покрытия и снега | 200,9 + 279,9 + 622,1 + 365,9 + 116,8 + 28,5 + 302,4 | 1916,5 |
То же, участков продольных стен, расположенных выше верха колонн | 0,218·1,8·60·2 | 47,1 |
От 1/2 веса торцовых стен и фахверковых колонн | 0,5[0,218(13,2·72·2 + 0,5·6·1,2·12 + 12·1,8·6 - 1,8·60·2 - 5,4·42·2 - 5,4·6·6) + 0,04(1,8·60·2 + 5,4·42·2) + 12,87 + 1,089)6 + 7,92·18] | 258,3 |
Итого | - | 2221,9 |
Затем сейсмическую силу Sп распределяем между поперечными рамами каркаса пропорционально их жесткостям.
На раму по осям 1 - 11, при ее жесткости

,

На раму по осям 3, 5, 7 и 9, при

,

.
б) По длине колонн - от собственного веса колонн - по
формуле (13):
на крайнюю колонну рамы по осям 1 и 11:

;

;
на крайнюю колонну рамы по осям 3, 5, 7 и 9:

;

;
на среднюю колонну:

;

.
в) В уровне низа подкрановых балок - от собственного веса подкрановых балок - по
формуле (14):
на крайнюю колонну рамы по осям 1 и 11:

;

;
на крайнюю колонну рамы по осям 3, 6, 7 и 9:

;

;
на среднюю колонну рамы по осям 1 и 11:

;

;
на среднюю колонну рамы по осям 3, 5, 7 и 9:

;

.
г) По длине крайних колонн - от участков продольных стен, расположенных в пределах высоты колонн, по
формуле (15):
на раму по осям 1 и 11:
Qс = 0,218·6·10,95 = 14,45 т;

.
д) В уровне расположения опорных консолей навесного участка торцовой стены (отметка + 6,600 м) - от собственного веса навесного участка торцовой стены по
формуле (16):
на крайнюю колонну рамы по осям 1 и 11:

;

;
на среднюю колонну рамы по осям 1 и 11:

;

.
е) В уровне низа подкрановых балок - от собственного веса мостов кранов определяем в соответствии с указаниями
п. 2.13.
Вычисляем максимальное давление на колонны от собственного веса мостов кранов, принимаемых по одному в каждом пролете здания (схемы крановой нагрузки и линии влияния давления на колонны показаны на
рис. 60):
на крайние колонны рамы по осям 1 и 11:

;
на крайние колонны рамы по осям 3, 5, 7 и 9:

;
на среднюю колонну рамы по осям 1 и 11:

;
на среднюю колонну рамы по осям 3, 5, 7 и 9:

.
Рис. 60. Схемы крановой нагрузки и линии влияния давления
а - на крайние колонны; б - на средние колонны
на крайние колонны рамы по осям 1 и 11:

;
на крайние колонны рамы по осям 3, 5, 7 и 9:

;
на средние колонны рамы по осям 1 и 11:

;
на средние колонны рамы по осям 3, 5, 7 и 9:

.
8. Определяем расчетные усилия
M,
Q в сечениях колонн от сейсмических нагрузок

,
Sк,
Sп.б,
Sс,
Sн.с и
Sкр (рис. 61). Эпюры
M и
Q приведены на
рис. 62.
Рис. 61. Расчетная схема поперечной рамы каркаса здания
Рамы по оси |  в т |  в т/м |  в т/м |  в т |  в т |  в т |  в т |  в т |  в т |
1 и 11 | 6,4 | 0,05 | 0,02 | 0,08 | - | 0,05 | 0,28 | 0,56 | 1,14 |
3, 5, 7 и 9 | 7,36 | 0,06 | 0,02 | 0,17 | 0,43 | - | - | 0,66 | 1,03 |
Рис. 62. Эпюры изгибающих моментов и поперечных сил
в поперечных рамах каркаса
Рама по оси | Колонна по оси | M1 в т·м | M2 в т·м | Q1 в т | Q2 в т | Q3 в т | Q4 в т |
1 и 11 | А и Г | 21,4 | 5,02 | 2,46 | 2,1 | 1,42 | 1,23 |
Б и В | 25,3 | 5,74 | 2,96 | 2,82 | 1,39 | 1,31 |
3, 5, 7 и 9 | А и Г | 28,42 | 6,97 | 3,22 | 2,79 | 1,96 | 1,73 |
Б и В | 25,6 | 5,76 | 3 | 2,86 | 1,4 | 1,32 |
Б. Расчет каркаса в продольном направлении здания
9. Определяем перемещения крайнего продольного ряда колонн каркаса с учетом деформации стальных связей от действия единичной горизонтальной силы в уровне верха колонн.
Моменты инерции поперечных сечений крайней колонны равны:
в надкрановой части

;
в подкрановой части

.
Расчетную схему ряда принимаем в виде двух раздельных колонн со стальными подкосами; при этом жесткость каждой колонны равняется жесткости

колонны (рис. 63).
Рис. 63. Расчетная схема крайнего продольного ряда
колонн каркаса
Площадь поперечного сечения стального подкоса, состоящего из двух прокатных неравнобоких уголков 110 x 70 x 8, равна Fсв = 278·10-5 м2.
Вычисляем: EбJв = 265·104·203·10-5 = 5380 т·м2; EбJв =265·104·427·10-5 = 11300 т·м2; EстFсв = 210·105·278·10-5 = 58400 т.
Для простоты вычислений величину жесткости 5,5·
EбJн принимаем
k = 1. Тогда соответственно жесткости стальных элементов расчетной схемы составят

;

Основная система метода сил приведена на
рис. 64. На этом же рисунке показаны эпюры моментов
M1 и
MP.
Вычисляем

и

:
Усилие в связях

Определяем изгибающие моменты в колонне от силы P = 1 и строим эпюру M (рис. 64): Mв = 1·3,8 = 3,8 т·м; Mн = 1·10,95 - 2,35·0,65·7,15 = 0,05 т·м.
Рис. 64. Эпюры моментов в колоннах крайнего
продольного ряда каркаса от единичных сил
Перемещение крайнего ряда колонн со связями от действия горизонтальной единичной силы в уровне верха колонн равняется половине величины перемещения верха одной приведенной колонны с подкосом от силы P = 1, которое определяем перемножением эпюр MP и M:
10. Определяем перемещение среднего продольного ряда колонн каркаса с учетом деформации стальных связей от действия единичной горизонтальной силы в уровне верха колонн.
Расчетная схема ряда приведена на рис. 65.
Рис. 65. Расчетная схема среднего продольного ряда
колонн каркаса
Площади поперечных сечений элементов стальных связей, состоящих из прокатных профилей, равны: F1 = 218·10-5 м2; F2 = 312·10-5 м2.
Вычисляем: EбJв = 315·104·625·10-5 = 19700 т·м2; EбJн = 315·104·833·10-5 = 26200 т·м2; EстF1 = 210·105·218·10-5 = 45800 т; EстF2 = 210·105·312·10-5 = 65500 т.
Для простоты вычислений величину жесткости 6
EбJн принимаем равной
k = 1. Тогда соответственно жесткости остальных элементов расчетной схемы составят:

;

;

.
Определяем усилия в стержнях связей от действия горизонтальных сил
P = 0,5 т, приложенных в узлах
C и
L (рис. 66):
HA = 0,5 т;

;

;

;

;

;

.
Рис. 66. Усилия в стержнях связей от действия
горизонтальной единичной силы
За неизвестное x принимаем усилие в месте примыкания колонны к верху портальной связи. Строим эпюры моментов M1 и MP (рис. 67).
Рис. 67. Эпюры моментов в колоннах среднего
продольного ряда каркаса от единичных сил
Вычисляем единичные перемещения

и

, кратные
EбJн:
Тогда

Определяем изгибающие моменты в колонне от силы
P = 1 и строим эпюру
M (рис. 67):
Mв = 1·3,5 = 3,5;
Mн = 1·10,25 - 1,09·6,75 = 2,89.
Горизонтальное перемещение среднего ряда колонн со связями от действия горизонтальной единичной силы в уровне верха колонн определяем перемножением эпюр MP и M:
11. Определяем перемещение фахверковых колонн от действия единичных горизонтальных сил, приложенных в уровнях верха фахверковых колонн.
Моменты инерции поперечных сечений фахверковой колонны:
металлической части

;
железобетонной части

.
Перемещения на уровне верха колонн определяем следующим образом:
а) в колонне А
б) в колонне Б
12. Определяем жесткость каркаса здания в уровне верха колонн;
13. Определяем вертикальную нагрузку от собственного веса конструкций и снега.
Вертикальную нагрузку от собственного веса конструкций и снега принимаем из расчета каркаса в поперечном направлении (см.
п. 3 настоящего примера) за вычетом нагрузки от веса мостов кранов, так как при расчете каркаса в продольном направлении нагрузка от крана не учитывается:
Q = 2042 - 32,4 = 2009,6 т.
14. Определяем период собственных колебаний каркаса в продольном направлении здания:

15. Определяем коэффициент динамичности для каркаса здания:

Принимаем

.
Так как

, коэффициент

принимаем согласно
табл. 2 
.
В этом случае

.
16. Определяем расчетные величины сейсмических нагрузок, действующих на продольные рамы каркаса.
а) В уровне верха колонн - от покрытия, снега, участков продольных стен, расположенных выше верха колонн, и части (50%) торцовых стен.
Предварительно по
формуле (12) определяем сейсмическую нагрузку, действующую на весь каркас здания; при этом нагрузку
Qп принимаем из расчета каркаса в поперечном направлении (
п. 7 настоящего примера):
Qп = 2221,9 т;

.
Сейсмическую силу Sп распределяем между продольными рамами каркаса.
Пропорционально их жесткостям
На крайнюю раму при

;

.
На среднюю раму при

;

.
Пропорционально прилегающим к ним грузовым площадям
На крайнюю раму

.
На среднюю раму

.
Наибольшие величины сейсмических нагрузок, принимаемые для расчета, составляют:
для крайней рамы

;
для средней рамы

.
б) По длине колонн - от собственного веса колонн по
формуле (13):
на крайнюю раму:

;

;
на среднюю раму:

;

.
в) В уровне низа подкрановых балок - от собственного веса подкрановых балок по
формуле (14):
на крайнюю раму
Qп.б = 4,158·10 = 41,58 т;

;
на среднюю раму: Qп.б = 10,593·10 = 105,93 т; Sп.б = 105,93·0,025·0,92 = 2,46 т.
г) По длине пристенных колонн - от участков торцовых стен, расположенных в пределах высоты колонн по
формуле (15):
на крайнюю раму:
Qс = 0,218·10,95·3,25 = 7,85 т;

на среднюю раму:
Qс = 0,218(0,6 + 1,8 + 1,35)6 + 0,04(1,8 + 5,4)6 = 6,62 т;

.
д) В уровне расположения опорных консолей навесного участка продольной стены (отметка +6,600 м) - от собственного веса навесного участка продольной стены по
формуле (16):
на колонну по осям 1 и 11:

;

;
на колонну по осям 2 и 10:

;

;
на колонну по осям 3 - 9:

;

.
17. Определяем расчетные усилия
M,
Q в сечениях колонн от сейсмических нагрузок

,
Sк,
Sп.б,
Sс и
Sн.с (рис. 68).
Нагрузка |  в т | Sс +Sк в т/м | Sп.б в т | Sк в т/м |  и  в т |  в т |
Величина нагрузки | 11,85 | 0,04 | 0,96 | 0,02 | 0,06 | 0,08 |
Нагрузка |  в т | Sс +Sк в т/м | Sп.б в т | Sк в т/м |
Величина нагрузки | 17,1 | 0,05 | 2,46 | 0,03 |
Рис. 68. Расчетные схемы продольных рам каркаса здания
а - для рамы по оси А и Г; б - для рамы по оси Б и В
Рис. 69. Эпюры изгибающих моментов и поперечных сил
в продольных рамах каркаса по оси А и Г
Колонна по оси | M1 в т·м | M2 в т·м | Q1 в т | Q2 в т | Q3 в т | Q4 в т |
1 и 11 | 10,64 | 10,41 | 0,29 | 0,15 | 3,08 | 2,9 |
2 - 10 | 9,79 | 10,31 | 0,09 | 0,22 | 3,01 | 2,9 |
Рис. 70. Эпюры изгибающих моментов и поперечных сил
в продольных рамах каркаса по оси Б и В
Колонна по оси | M1 в т·м | M2 в т·м | Q1 в т | Q2 в т | Q3 в т | Q4 в т |
1 и 11 | 1,86 | 4,38 | 0,32 | 0,61 | 1,23 | 1,08 |
2 - 10 | 0,66 | 4,24 | 0,54 | 0,68 | 0,04 | 1,16 |
Пример 3. Определение усилий в каркасе многоэтажного
здания от действия сейсмических нагрузок
Определить усилия в каркасе многоэтажного здания (
рис. 71 и
72) от действия сейсмической нагрузки в поперечном направлении. Расчетная сейсмичность здания 8 баллов.
Рис. 71. Схемы продольного (а) и торцового (б)
фасадов здания и его план (в)
Рис. 72. Поперечный разрез здания
Каркас здания в поперечном и продольном направлении принят рамным со всеми жесткими узлами.
Несущие конструкции каркаса: колонны в двух верхних этажах сечением 400 x 400 мм, в двух нижних этажах сечением 400 x 600 мм; ригели сечением 800 x 300 мм с полками для опирания плит перекрытий и покрытия (рис. 73).
Рис. 73. Поперечное сечение ригеля
1 - центр тяжести сечения
Конструкции каркаса выполнены из бетона марки 300 (Eб = 315000 кг/см2).
Стены панельные с ленточным остеклением.
Вертикальные расчетные нагрузки, действующие на каркас здания, приведены в табл. 12.
Таблица 12
Вертикальные расчетные нагрузки
Нагрузка | Единица измерения | Нормативная нагрузка | Коэффициент | Расчетная нагрузка |
перегрузки | сочетания |
А. Постоянные | | | | | |
От веса кровли и утеплителя | т/м2 | 0,143 | 1,2 | 0,9 | 0,154 |
То же, конструкций перекрытий и покрытия | " | 0,6 | 1,1 | 0,9 | 0,594 |
От веса пола и перегородок | " | 0,25 | 1,1 | 0,9 | 0,248 |
панельных стен без проемов | " | 0,2 | 1,1 | 0,9 | 0,198 |
То же, ленточного остекления колонн сечением | " | 0,05 | 1,1 | 0,9 | 0,05 |
400 x 400 мм | т/м | 0,4 | 1,1 | 0,9 | 0,396 |
400 x 600 мм | " | 0,6 | 1,1 | 0,9 | 0,594 |
От веса консолей колонн длиной 350 мм | т | 0,2 | 1,1 | 0,9 | 0,198 |
То же, 250 мм | " | 0,13 | 1,1 | 0,9 | 0,129 |
Б. Временные длительные | | | | | |
От веса стационарного оборудования | т/м2 | 1,7 | 1,2 | 0,8 | 1,63 |
В. Кратковременные | | | | | |
Кратковременная нагрузка на перекрытиях | " | 0,5 | 1,2 | 0,5 | 0,3 |
От веса снега | " | 0,1 | 1,4 | 0,5 | 0,07 |
1. Определяем перемещения каркаса здания от действия единичных горизонтальных сил, приложенных в уровнях перекрытий и покрытия.
Перемещения поперечной рамы каркаса здания от действия единичных горизонтальных сил определяем по методу деформаций.
Так как жесткости всех поперечных рам каркаса здания одинаковы, то перемещение каркаса здания от единичных сил, приложенных в уровнях перекрытий, будет в 9 раз меньше перемещения каждой рамы.
Используя симметрию здания, получим расчетную схему рамы, изображенную на
рис. 74.
Рис. 74. Расчетная схема поперечной рамы каркаса
Участки примыкания ригелей к колоннам принимаем абсолютно жесткими с размерами, обозначенными на
рис. 75.
Рис. 75. Определение размеров жестких участков
в узлах поперечной рамы каркаса
а) Определение моментов инерции элементов рамы.
Для ригелей
Для колонн сечением 400 x 400 мм

.
Для колонн сечением 400 x 600 мм

.
б) Определение коэффициентов распределения и коэффициентов передачи.
Расчетные схемы узлов поперечной рамы каркаса изображены на
рис. 76.
Рис. 76. Расчетные схемы узлов поперечной рамы каркаса
а - узел А; б - узел Б; в - узел Г и Ж; г - узел Д и И;
д - узел Л; е - узел М;
на схеме узлов Г и Ж стержни 3, 4, 7 - для узла Г,
стержни 7, 8, 11 - для узла Ж; на схеме узлов Д и И
стержни 4, 5, 6, 9 - для узла Д,
стержни 8, 9, 10, 13 - для узла И
В качестве примера приводим расчет для узла А.
Значения погонных жесткостей стержней 1 и 3 (для упрощения расчета уменьшенные в
Eб раз):

;

.
Далее определяем реактивные моменты в стержнях узла от единичного поворота по формулам, приведенным в серии 7-02р (Гипротис):
Определяем реактивные моменты на противоположных концах стержней от единичного угла поворота узла А:
Определяем коэффициенты распределения по формуле

:

;

;

.
Проверка:

.
Определяем коэффициенты передачи по формуле

:

;

.
Коэффициенты распределения и коэффициенты передачи для всех узлов рамы приведены на схеме
(рис. 77).
Рис. 77. Схема рамы с коэффициентами распределения
и передачи
в) Определение начальных моментов от единичных смещений ярусов.
Начальные моменты от единичных смещений ярусов определяем в соответствии со схемами, приведенными на
рис. 78 и
79.
Рис. 78. Начальные моменты от единичного смещения
четвертого (а) и третьего (б) яруса рамы
Рис. 79. Начальные моменты от смещения
второго (а) и первого (б) яруса рамы
В качестве примера приводим определение значений начальных моментов при смещении на единицу IV яруса рамы (
рис. 78, а):
Значения начальных моментов в стержнях при последовательном смещении каждого из ярусов рамы приведены на
рис. 78 и
79.
г) Распределение начальных моментов.
Распределение начальных моментов приведено в табл. 13. Начальные моменты, приведенные в табл. 13, увеличены в

раз.
Таблица 13
Распределение начальных моментов в раме
а) смещен I ярус
Узлы | А | Б | Г | Д | Ж |
Стержни | 1 | 3 | 1 | 2 | 5 | 3 | 4 | 7 | 4 | 5 | 6 | 9 | 7 | 8 | 11 |
| 0,801 | 0,199 | 0,358 | 0,553 | 0,089 | 0,134 | 0,693 | 0,173 | 0,335 | 0,064 | 0,518 | 0,083 | 0,095 | 0,491 | 0,414 |
| 0,513 | 0,12 | 0,225 | 0 | 0,054 | 0,105 | 0,444 | 0,105 | 0,215 | 0,05 | 0 | 0,05 | 0,074 | 0,315 | 0,25 |
Mi | - | - | - | - | - | - | - | - | - | - | - | - | - | - | 49391 |
| - | - | - | - | - | - | - | -3655 | - | - | - | -2074 | - | -88841 | 1028 |
- | 384 | - | - | 104 | - | 446 | 578 | 1623 | - | - | 627 | 384 | 2674 | 2202 |
-24 | -108 | -197 | - | -113 | -46 | -484 | -387 | -455 | -6 | - | -134 | -108 | -572 | -562 |
71 | 96 | 68 | - | 30 | 16 | 128 | 92 | 408 | 17 | - | 101 | 96 | 430 | 440 |
-22 | -25 | -86 | - | -26 | -20 | -113 | -71 | -105 | -5 | - | -24 | -25 | -103 | -105 |
26 | 21 | 24 | - | 7 | 6 | 29 | 17 | 91 | 6 | - | 19 | 21 | 80 | 81 |
-7 | -5 | -24 | - | -6 | -6 | -25 | -13 | -23 | -2 | - | -5 | -5 | -19 | -19 |
7 | 5 | 6 | - | 2 | 1 | 6 | 3 | 20 | 2 | - | 4 | 5 | 15 | 15 |
-2 | -1 | -6 | - | -1 | - | -6 | -3 | -4 | -0,4 | - | -1 | -1 | -4 | -4 |
2 | - | 2 | - | - | - | 1 | 1 | 4 | - | - | - | - | 3 | 3 |
-0,5 | - | -1 | - | - | - | - | - | 1 | - | - | - | - | -1 | -1 |
- | - | - | - | - | - | - | - | - | - | - | - | - | - | - |
| 51 | 367 | -214 | - | -3 | -49 | -18 | -3440 | 1558 | 12 | - | -1487 | 367 | -6338 | 3078 |
| 51 | 367 | -214 | - | -3 | -49 | -18 | -3440 | 1558 | 12 | - | -1487 | 367 | -6338 | 52469 |
| -335 | -83 | 78 | 120 | 19 | 470 | 2430 | 607 | -28 | -5 | -43 | -7 | -4417 | -22831 | -19250 |
Всего | -284 | 284 | -136 | 120 | 16 | 421 | 2412 | -2833 | 1530 | 7 | -43 | -1494 | -4050 | -29169 | -33219 |
Продолжение табл. 13
Узлы | И | Л | М | П | Р |
Стержни | 8 | 9 | 10 | 13 | 11 | 12 | 15 | 12 | 13 | 14 | 16 | 15 | 16 |
| 0,279 | 0,054 | 0,432 | 0,235 | 0,248 | 0,44 | 0,312 | 0,264 | 0,749 | 0,400 | 0,187 | - | - |
| 0,179 | 0,042 | 0 | 0,142 | 0,193 | 0,294 | 0,143 | 0,176 | 0,116 | 0 | 0,086 | - | - |
Mi | - | - | - | 49391 | 42505 | - | -47834 | - | 42505 | - | -47834 | -33149 | - 33149 |
| -15558 | - | - | 618 | -12348 | 938 | - | 1567 | -7014 | - | - | 762 | 458 |
2641 | 104 | - | 632 | 1953 | 959 | - | 3355 | 2121 | - | - | 1632 | 468 |
-1657 | -113 | - | -635 | -1315 | -964 | - | -855 | -454 | - | - | -416 | -471 |
391 | 30 | - | 152 | 311 | 231 | - | 670 | 342 | - | - | 326 | 113 |
-304 | -26 | - | -117 | -242 | -178 | - | -159 | -81 | - | - | -78 | -87 |
73 | 7 | - | 28 | 58 | 42 | - | 123 | 63 | - | - | 60 | 21 |
-57 | -6 | - | -22 | -46 | -33 | - | -29 | -15 | - | - | -14 | -16 |
14 | 2 | - | 5 | 11 | 8 | - | 23 | 12 | - | - | 11 | 4 |
-11 | -1 | - | -4 | -9 | -6 | - | -6 | -3 | - | - | -3 | -3 |
3 | - | - | 1 | 2 | 2 | - | 4 | 2 | - | - | 2 | 1 |
-2 | - | - | - | -2 | -1 | - | -1 | -1 | - | - | -1 | - |
1 | - | - | - | 1 | - | - | - | - | - | - | - | - |
| -14646 | -3 | - | 658 | -11626 | 998 | - | 4691 | -5028 | - | - | -2281 | -488 |
| -14646 | -3 | - | 50049 | 30879 | 998 | -47834 | 4691 | 37477 | - | -47834 | -30865 | -32661 |
| -9876 | -1912 | -15293 | -8319 | 3957 | 7021 | 4979 | 1496 | 844 | 2266 | 1060 | - | - |
Всего | -24522 | -1915 | -15293 | 41730 | 34836 | 8019 | 42855 | 6187 | 38321 | 2266 | -46774 | - | - |
Продолжение табл. 13
б) смещен II ярус
Узлы | А | Б | Г | Д | Ж |
Стержни | 1 | 3 | 1 | 2 | 5 | 3 | 4 | 7 | 4 | 5 | 6 | 9 | 7 | 8 | 11 |
| 0,801 | 0,199 | 0,358 | 0,553 | 0,089 | 0,134 | 0,693 | 0,173 | 0,335 | 0,064 | 0,518 | 0,083 | 0,095 | 0,491 | 0,414 |
| 0,513 | 0,12 | 0,229 | 0 | 0,054 | 0,105 | 0,444 | 0,105 | 0,215 | 0,05 | 0 | 0,05 | 0,074 | 0,315 | 0,25 |
Mi | - | - | - | - | - | - | - | 14633 | - | - | - | 14633 | 12593 | - | -49391 |
| - | -1536 | - | - | -732 | - | -3146 | 2723 | -6497 | - | - | 1546 | -1536 | 6587 | 8203 |
168 | 44 | 788 | - | 248 | 184 | 1064 | -981 | 188 | 40 | - | -663 | 44 | -2826 | -3219 |
-237 | -28 | -109 | - | 22 | -25 | 94 | 444 | -119 | -56 | - | 251 | -28 | 1071 | 1242 |
20 | -54 | 136 | - | -4 | 32 | -16 | -169 | -228 | 5 | - | -115 | -54 | -491 | -532 |
-30 | 16 | 17 | - | 17 | 4 | 73 | 80 | 68 | -7 | - | 44 | 16 | 187 | 203 |
-8 | -16 | 7 | - | -5 | 2 | -23 | -30 | -70 | -2 | - | -21 | -16 | -89 | -93 |
-4 | 5 | 12 | - | 5 | 3 | 20 | 15 | 23 | -0,1 | - | 8 | 5 | 33 | 35 |
1 | -4 | -2 | - | -2 | -1 | -7 | -5 | -17 | - | - | -4 | -4 | -16 | -17 |
-1 | 1 | 4 | - | 1 | - | 5 | 3 | 6 | - | - | 1 | 1 | 6 | 6 |
- | - | -1 | - | - | - | -2 | -1 | -4 | - | - | - | - | -3 | -3 |
- | - | - | - | - | - | 1 | - | 1 | - | - | - | - | 1 | 1 |
- | - | - | - | - | - | - | - | - | - | - | - | - | - | - |
| -91 | -1572 | 852 | - | -450 | 199 | -1937 | 2079 | -6649 | -20 | - | 1047 | -1572 | 4460 | 5826 |
| -91 | -1572 | 852 | - | -450 | 199 | -1937 | 16712 | -6649 | -20 | - | 15680 | 11021 | 4460 | -43565 |
| 1332 | 331 | -144 | -222 | -36 | -2007 | -10377 | -2591 | -3019 | -577 | -4658 | -748 | 2668 | 13789 | 11627 |
Всего | 1241 | -1241 | 708 | -222 | -486 | -1808 | -12314 | 14121 | -9668 | -597 | -4669 | 14932 | 13689 | 18249 | 31938 |
Продолжение табл. 13
Узлы | И | Л | М | П | Р |
Стержни | 8 | 9 | 10 | 13 | 11 | 12 | 15 | 12 | 13 | 14 | 16 | 15 | 16 |
| 0,279 | 0,054 | 0,432 | 0,235 | 0,248 | 0,44 | 0,312 | 0,264 | 0,149 | 0,4 | 0,187 | - | - |
| 0,179 | 0,042 | 0 | 0,142 | 0,193 | 0,294 | 0,143 | 0,176 | 0,116 | 0 | 0,086 | - | - |
Mi | - | 12593 | - | -49391 | -42505 | - | - | - | -42505 | - | - | - | - |
| 11591 | -732 | - | 4931 | 9200 | 7491 | - | 12496 | 5225 | - | - | 6078 | 3655 |
-4175 | 248 | - | -2056 | -3314 | -3119 | - | -4904 | -2242 | - | - | -2385 | -1524 |
1820 | 22 | - | 829 | 1500 | 1258 | - | 1891 | 850 | - | - | 920 | 615 |
-720 | -4 | - | -318 | -571 | -482 | - | -811 | -389 | - | - | -394 | -236 |
339 | 17 | - | 139 | 269 | 211 | - | 311 | 148 | - | - | 151 | 103 |
-128 | -5 | - | -53 | -102 | -81 | - | -141 | -70 | - | - | -69 | -39 |
62 | 5 | - | 24 | 50 | 37 | - | 54 | 26 | - | - | 26 | 18 |
-23 | -2 | - | -9 | -18 | -14 | - | -26 | -13 | - | - | -12 | -7 |
12 | 1 | - | 5 | 9 | 7 | - | 9 | 5 | - | - | 5 | 3 |
-4 | - | - | -2 | -3 | -2 | - | -5 | -3 | - | - | -2 | -1 |
2 | - | - | 1 | 2 | 1 | - | 1 | 1 | - | - | 1 | - |
-1 | - | - | - | -1 | - | - | - | - | - | - | - | - |
| 8845 | -450 | - | 3491 | 7021 | 5297 | - | 8874 | 3538 | - | - | 4319 | 2587 |
| 8845 | 12143 | - | -45900 | -35484 | 5297 | - | 8874 | 38357 | - | - | - | - |
| 6950 | 1345 | 10762 | 5854 | 7486 | 13282 | 9418 | 7945 | 4484 | 12037 | 5627 | - | - |
Всего | 15795 | 13488 | 10762 | 40046 | 27998 | 18579 | 9418 | 16819 | -34483 | 12037 | 5627 | - | - |
Продолжение табл. 13
в) смещен III ярус
Узлы | А | Б | Г | Д | Ж |
Стержни | 1 | 3 | 1 | 2 | 5 | 3 | 4 | 7 | 4 | 5 | 6 | 9 | 7 | 8 | 11 |
| 0,801 | 0,199 | 0,358 | 0,553 | 0,089 | 0,134 | 0,693 | 0,173 | 0,335 | 0,064 | 0,518 | 0,083 | 0,095 | 0,491 | 0,414 |
| 0,513 | 0,12 | 0,229 | 0 | 0,054 | 0,105 | 0,444 | 0,105 | 0,215 | 0,05 | 0 | 0,05 | 0,074 | 0,315 | 0,25 |
Mi | - | 14633 | - | - | 14633 | 12593 | - | -14633 | - | 12593 | - | -14633 | -12593 | - | - |
| -3351 | 214 | -7507 | - | 102 | -1756 | 439 | 932 | 906 | -790 | - | 529 | 214 | 2254 | - |
1696 | 40 | 1609 | - | -32 | 376 | -139 | -183 | 171 | 400 | - | -171 | 40 | -728 | -608 |
-361 | -6 | -891 | - | -20 | -208 | -86 | 96 | -24 | -85 | - | 43 | -6 | 182 | 180 |
209 | 21 | 188 | - | 3 | 44 | 14 | -26 | 88 | 49 | - | -24 | 21 | -101 | -114 |
-44 | -3 | -118 | - | -6 | -28 | -24 | 14 | -14 | -10 | - | 7 | -3 | 28 | 31 |
28 | 4 | 24 | - | 1 | 6 | 4 | -4 | 17 | 7 | - | -4 | 4 | -15 | -18 |
-6 | -1 | -16 | - | - | -4 | -4 | 2 | -3 | -1 | - | 1 | -1 | 4 | 5 |
4 | - | 4 | - | - | 1 | 1 | -1 | 3 | - | - | - | - | -3 | -3 |
-1 | - | -2 | - | - | - | - | - | -0,4 | - | - | - | - | 1 | 1 |
0,5 | - | - | - | - | - | - | - | - | - | - | - | - | - | - |
| -1826 | 269 | -6708 | - | 48 | -1569 | 205 | 830 | 1144 | -432 | - | 381 | 269 | 1622 | -526 |
| -1826 | 14902 | -6708 | - | 14681 | 11024 | 205 | -13803 | 1144 | 12163 | - | -14252 | -12324 | 1622 | -526 |
| -10474 | -2602 | -2854 | -4409 | -710 | 345 | 1784 | 445 | 317 | 60 | 490 | 78 | 1067 | 5513 | 4648 |
Всего | -12300 | 12300 | -9562 | -4409 | 13971 | 11369 | 1989 | -13358 | 1461 | 12223 | 490 | -14174 | -11257 | 7135 | 4122 |
Продолжение табл. 13
Узлы | И | Л | М | П | Р |
Стержни | 8 | 9 | 10 | 13 | 11 | 12 | 15 | 12 | 13 | 14 | 15 | 15 | 16 |
| 0,279 | 0,054 | 0,432 | 0,235 | 0,248 | 0,44 | 0,312 | 0,264 | 0,149 | 0,4 | 0,187 | - | - |
| 0,179 | 0,042 | 0 | 0,142 | 0,193 | 0,294 | 0,143 | 0,176 | 0,116 | 0 | 0,086 | - | - |
Mi | - | -12593 | - | - | - | - | - | - | - | - | - | - | - |
| 3967 | 102 | - | - | 3148 | - | - | - | 1788 | - | - | - | - |
-777 | -32 | - | -207 | -617 | -315 | - | -926 | -578 | - | - | -450 | -154 |
408 | -20 | - | 174 | 324 | 265 | - | 274 | 144 | - | - | 133 | 129 |
-112 | 3 | - | -48 | -89 | -74 | - | -173 | -80 | - | - | -84 | -36 |
61 | -6 | - | 29 | 49 | 45 | - | 48 | 22 | - | - | 23 | 22 |
-18 | 1 | - | -8 | -14 | -12 | - | -28 | -12 | - | - | -13 | -6 |
9 | - | - | 5 | 7 | 7 | - | 8 | 4 | - | - | 4 | 3 |
-3 | - | - | -1 | -2 | -2 | - | -4 | -2 | - | - | -2 | -1 |
2 | - | - | - | 2 | 1 | - | 1 | 1 | - | - | 1 | - |
-1 | - | - | - | -1 | - | - | - | - | - | - | - | - |
| 3536 | 48 | - | -56 | 2807 | -85 | - | -800 | 1287 | - | - | -388 | -43 |
| 3536 | -12545 | - | -56 | 2807 | -85 | - | -800 | 1287 | - | - | - | - |
| 2529 | 490 | 3916 | 2130 | -675 | -1198 | -849 | -129 | -73 | -195 | -91 | - | - |
Всего | 6065 | -12055 | 3916 | 2074 | 2132 | -1283 | -849 | -929 | 1214 | -195 | -91 | - | - |
Продолжение табл. 13
г) смещен IV ярус
Узлы | А | Б | Г | Д | Ж |
Стержни | 1 | 3 | 1 | 2 | 5 | 3 | 4 | 7 | 4 | 5 | 6 | 9 | 7 | 8 | 11 |
| 0,801 | 0,199 | 0,358 | 0,533 | 0,089 | 0,134 | 0,693 | 0,173 | 0,335 | 0,064 | 0,518 | 0,083 | 0,095 | 0,491 | 0,414 |
| 0,513 | 0,12 | 0,225 | 0 | 0,054 | 0,105 | 0,444 | 0,105 | 0,215 | 0,05 | 0 | 0,05 | 0,074 | 0,315 | 0,25 |
Mi | - | -14633 | - | - | -14633 | -12593 | - | - | - | -12593 | - | - | - | - | - |
| 3351 | 1322 | 7507 | - | 630 | 1756 | 2707 | - | 5591 | 790 | - | - | 1322 | - | - |
-1863 | -469 | -2397 | - | -319 | -561 | -1372 | -98 | -1982 | -439 | - | -26 | -469 | -113 | - |
622 | 213 | 1196 | - | 122 | 280 | 526 | 43 | 902 | 147 | - | 31 | 213 | 132 | 64 |
-302 | -89 | -428 | - | -54 | -100 | -232 | -30 | -377 | -71 | - | -13 | -89 | -56 | -31 |
110 | 38 | 201 | - | 23 | 47 | 99 | 13 | 164 | 26 | - | 9 | 38 | 37 | 26 |
-51 | -17 | -76 | - | -10 | -18 | -42 | -7 | -71 | -12 | - | -4 | -17 | -16 | -12 |
20 | 7 | 35 | - | 4 | 8 | 19 | 3 | 30 | 5 | - | 2 | 7 | 9 | 7 |
-9 | -3 | -14 | - | -2 | -3 | -8 | -2 | -13 | -2 | - | -1 | -3 | -4 | -3 |
4 | 1 | 6 | - | 1 | 1 | 3 | 1 | 6 | 1 | - | - | 1 | 2 | 2 |
-2 | - | -3 | - | - | - | -2 | - | -2 | - | - | - | - | -1 | -1 |
1 | - | 1 | - | - | - | 0,4 | - | 1 | - | - | - | - | - | - |
| 1881 | 1003 | 6028 | - | 395 | 1410 | 1702 | -77 | 4246 | 445 | - | -2 | 1003 | -10 | 52 |
| 1881 | -13630 | 6028 | - | -14238 | -11183 | 1702 | -77 | 4246 | -12148 | - | -2 | 1003 | -10 | 52 |
| 9411 | 2338 | 2939 | 4540 | 731 | 1281 | 6624 | 1653 | 2648 | 506 | 4094 | 656 | -99 | -513 | -433 |
Всего | 11292 | -11292 | 8964 | 4540 | -13507 | -9902 | 8326 | 1576 | 6894 | -11642 | 4094 | 654 | 904 | -523 | -381 |
Продолжение табл. 13
Узлы | И | Л | М | П | Р |
Стержни | 5 | 9 | 10 | 13 | 11 | 12 | 15 | 12 | 13 | 14 | 16 | 15 | 16 |
| 0,279 | 0,054 | 0,432 | 0,235 | 0,248 | 0,44 | 0,312 | 0,264 | 0,149 | 0,4 | 0,187 | - | - |
| 0,179 | 0,042 | 0 | 0,142 | 0,193 | 0,294 | 0,143 | 0,176 | 0,116 | 0 | 0,086 | - | - |
Mi | - | - | - | - | - | - | - | - | - | - | - | - | - |
| | ИС МЕГАНОРМ: примечание. Текст в графе Р дан в соответствии с официальным текстом документа. | |
|
| - | 630 | - | - | - | - | - | - | - | - | - | - | | |
-416 | -319 | - | - | -331 | - | - | - | -89 | - | - | - | - |
183 | 122 | - | 10 | 146 | 16 | - | 97 | 104 | - | - | 47 | 8 |
-129 | -54 | - | -23 | -102 | -35 | - | -48 | -45 | - | - | -23 | -17 |
55 | 23 | - | 11 | 44 | 16 | - | 40 | 29 | - | - | 20 | 8 |
-32 | -10 | - | -8 | -25 | -12 | - | -18 | -13 | - | - | -9 | -6 |
14 | 4 | - | 4 | 11 | 5 | - | 11 | 7 | - | - | 5 | 3 |
-7 | -2 | - | -2 | -6 | -3 | - | -5 | -3 | - | - | -2 | -2 |
3 | 1 | - | 1 | 3 | 1 | - | 3 | 2 | - | - | 1 | 1 |
-2 | - | - | - | -1 | - | - | -1 | -1 | - | - | - | - |
1 | - | - | - | - | - | - | - | - | - | - | - | - |
| -330 | 395 | - | -7 | -261 | -12 | - | 79 | -9 | - | - | 39 | -5 |
| -330 | 395 | - | -7 | -261 | -12 | - | 79 | -9 | - | - | - | - |
| -16 | -3 | -25 | -14 | 68 | 120 | 85 | -18 | -10 | -28 | -13 | - | - |
Всего | -346 | 392 | -25 | -21 | -193 | 108 | 85 | 61 | -19 | -28 | 13 | - | - |
Эпюры изгибающих моментов, а также направление реакций в фиктивных связях от единичных перемещений ярусов рамы приведены на рис. 80 и
81. Числовые значения эпюр кратны
E·10
-2.
Рис. 80. Эпюры моментов от единичных смещений
первого (а) и второго (б) яруса рамы
Рис. 81. Эпюры моментов от единичных смещений
третьего (а) и четвертого (б) яруса рамы
д) Определение реакций от единичных перемещений.
Реакции в фиктивных связях при смещении первого яруса рамы:
Аналогично определяются реакции при перемещении остальных ярусов рамы. Значения вычисленных реакций rjk приведены в табл. 14.
Таблица 14
Величины реакций rjk в т/дм от единичных смещений
ярусов рамы, уменьшенные в E·10-3 раз
j | k |
1 | 2 | 3 | 4 |
1 | -65,584 | 32,995 | -2,297 | 0,152 |
2 | 32,995 | -39,727 | 12,578 | -0,862 |
3 | -2,297 | 12,578 | -20,981 | 10,389 |
4 | 0,152 | -0,862 | 10,389 | -9,655 |
Полученные реакции в фиктивных связях от единичных перемещений ярусов рамы rjk являются коэффициентами системы канонических уравнений метода деформаций.
Перемещения рамы от действия единичных сил, последовательно приложенных к каждому ярусу в отдельности, определяются из систем канонических уравнений, при этом свободные члены
Ajk (
j = 1, 2, 3, 4) принимаются по
табл. 15:
Таблица 15
Величины свободных членов канонических уравнений
Ajk | k |
1 | 2 | 3 | 4 |
A1k | 1 | 0 | 0 | 0 |
A2k | 0 | 1 | 0 | 0 |
A3k | 0 | 0 | 1 | 0 |
A4k | 0 | 0 | 0 | 1 |
Системы канонических уравнений удобно решать алгоритмом Гаусса. Решение проводится в табличной форме (табл. 16 и
17).
Таблица 16
Решение канонических уравнений методом Гаусса.
Прямой ход
N обратного хода | N прямого хода | | | | | | | Свободные члены |
k1 | k2 | k3 | k4 |
IV | 1 | -65,584 | 32,995 | -2,297 | 0,152 | | -34,736 | 1 | 0 | 0 | 0 |
| 2 | 32,995 | -39,727 | 12,578 | -0,862 | - | 4,983 | 0 | 1 | 0 | 0 |
| 32,995 | 16,599 | -1,156 | 0,076 | | -17,475 | 0,503 | 0 | 0 | 0 |
III | | 0 | -23,128 | 11,422 | -0,786 | | -12,492 | 0,503 | 1 | 0 | 0 |
| 3 | -2,297 | 12,578 | -20,981 | 10,389 | - | -0,311 | 0 | 0 | 1 | 0 |
| 2,297 | -1,155 | 0,08 | -0,005 | 1,215 | -0,035 | 0 | 0 | 0 |
| 0 | -11,123 | 5,641 | -0,388 | -6,169 | 0,249 | 0,491 | 0 | 0 |
II | | 0 | 0 | -15,26 | 9,996 | | -5,264 | 0,213 | 0,494 | 1 | 0 |
| 4 | 0,152 | 0,862 | 10,389 | -9,655 | - | 0,024 | 0 | 0 | 0 | 1 |
| -0,152 | 0,076 | -0,005 | 0 | -0,081 | 0,002 | 0 | 0 | 0 |
| 0 | 0,768 | -0,388 | 0,027 | 0,425 | -0,017 | -0,034 | 0 | 0 |
| 0 | 0 | -9,996 | 6,548 | -3,448 | 0,139 | -0,324 | 0,655 | 0 |
I | | 0 | 0 | 0 | -3,08 | - | -3,08 | 0,125 | 0,29 | 0,655 | 1 |
Таблица 17
Вычисление неизвестных

. Обратный ход
N обратного хода | Левые части уравнений | Правые части уравнений | | | | |
| | | | свободные члены | сумма |
I | 0 | 0 | 0 | | 0,125 | 0,29 | 0,655 | 1 | 0,125 | 0,29 | 0,655 | 1 | -0,041 | -0,094 | -0,213 | -0,325 |
II | 0 | 0 | | | 0,213 | 0,494 | 1 | 0 | 0,626 | 1,434 | 3,128 | 3,25 | -0,041 | -0,094 | -0,205 | -0,213 |
-0,413 |
-0,94 |
-2,128 |
-3,25 |
III | 0 | | | | 0,503 | 1 | 0 | 0 | 0,946 | 2,012 | 2,174 | 2,174 | -0,041 | -0,087 | -0,094 | -0,094 |
-0,464 | 0,029 |
-1,079 | 0,067 |
-2,341 | 0,167 |
-2,43 | 0,255 |
IV | | | | | 1 | 0 | 0 | 0 | 2,27 | 2,669 | 2,669 | 2,669 | -0,035 | -0,041 | -0,041 | -0,041 |
-1,358 | 0,094 | -0,006 |
-2,871 | 0,216 | -0,014 |
-3,102 | 0,465 | -0,032 |
-3,102 | 0,489 | -0,046 |
Значения неизвестных

систем канонических уравнений приведены в табл. 18.
Таблица 18
Значения единичных перемещений для одной
полурамы

(дм/т), уменьшенные в 10
3/
E раз
j | k |
1 | 2 | 3 | 4 |
1 | 0,035 | 0,041 | 0,041 | 0,041 |
2 | 0,041 | 0,087 | 0,094 | 0,094 |
3 | 0,041 | 0,094 | 0,205 | 0,213 |
4 | 0,041 | 0,094 | 0,213 | 0,325 |
Необходимо иметь в виду, что перемещения

определены для полурамы при коэффициентах
rjk, кратных
E·10
-3.
Действительные перемещения ярусов всей рамы от действия силы
P = 1 будут равны

, или

. Действительные перемещения не подсчитывались, так как в дальнейшем расчете не участвуют.
2. Определяем массы, сосредоточенные в уровнях перекрытий и покрытия.
Значения сосредоточенных нагрузок
Qk, приложенных в уровнях перекрытий и покрытия, вычислены в соответствии с нагрузками (см.
табл. 12) и приведены в табл. 19.
Таблица 19
Вычисление грузов Qk, сосредоточенных в уровнях
перекрытий и покрытия, в т
Вертикальные нагрузки | Q1 | Q2 | Q3 | Q4 |
А. Постоянные | | | | |
От веса кровли и утеплителя | - | - | - | 0,154·48·18 = 132 |
То же, конструкций перекрытий | 0,594·48·18 = 513 | 0,594·48·18 = 513 | 0,594·48·18 = 513 | 0,594·48·18 = 513 |
От веса пола и перегородок | 0,248·48·18 = 214 | 0,248·48·18 = 214 | 0,248·48·18 = 214 | - |
То же, колонн | 0,594·4,605·36 + 0,198·54 = 109 | (0,594·2 + 0,396·2,8)36 + 0,129·54 = 89 | 0,396·4,8·36 + 0,198·54 = 79 | 0,396·2,84·36 + 0,198·54 = 51,3 |
То же, панельных стен | (0,198·1,8 + 0,05·2,8)132 = 65 | (0,198·1,8 + 0,05·3)132 = 67 | (0,198·1,8 + 0,05·3)132 = 67 | (0,198·1,2 + 0,05·2,3)132 = 47 |
Б. Временные длительные | | | | |
От веса стационарного оборудования | 1,63·48·18 = 1410 | 1,63·48·18 = 1410 | 1,63·48·18=1410 | - |
В. Кратковременные | | | | |
Кратковременная нагрузка на перекрытиях | 0,3·48·18 = 259 | 0,3·48·18 = 259 | 0,3·48·18 = 259 | - |
От веса снега | - | - | - | 0,07·48·18 = 61 |
Величины грузов Qk | 2570 ~ 2550 | 2552 ~ 2550 | 2542 ~ 2550 | 803 |
Соответствующие значения масс

;

;
m2 = 260 т·сек
2/м;
m3 = 260 т·сек
2/м;
m4 = 82 т·сек
2/м.
3. Определяем частоты и формы собственных колебаний каркаса здания.
Динамическая расчетная схема изображена на рис. 82.
Рис. 82. Динамическая расчетная схема каркаса здания.
Отметки 4,260; 9,060; 13,860 и 18,660 соответствуют уровням
центров тяжести ригелей перекрытий и покрытия
Для системы с четырьмя степенями свободы динамические уравнения собственных колебаний принимают вид:

(52)
где

- перемещения ярусов каркаса здания от действия единичных сил;
Xj - амплитуда колебаний ярусов.
В данном примере решение динамических уравнений выполнено итерационным методом с использованием ортогональности с весом форм собственных колебаний <1>.
--------------------------------
<1> И.С. Арнапольский. Определение частот и форм собственных колебаний систем с дискретными массами. "Строительная механика и расчет сооружений", 1966, N 3.
Сущность метода заключается в следующем. Сначала определяют первую частоту и первую форму собственных колебаний. Для этого
систему (52) представляют следующим образом:

(53)
где

;

;

;

- координаты (относительные амплитуды) первой формы собственных колебаний каркаса здания. Здесь и в дальнейшем цифры в скобках при координатах форм означают номера форм.
Затем систему динамических
уравнений (53) представляют в виде, удобном для итераций:
| | ИС МЕГАНОРМ: примечание. Формула дана в соответствии с официальным текстом документа. | |

(54)
Далее задаются произвольными (чаще единичными) значениями неизвестных
a(1) (нулевая итерация) и из последнего уравнения системы (54) находят некоторое значение частоты
p1. По найденному
p1 и принятым значениям неизвестных из остальных трех уравнений
системы (54) определяют

,

и

(первая итерация).
Последующие итерации выполняются аналогично.
Процесс вычислений продолжается до тех пор, пока значения неизвестных в одной из последующих итераций совпадут со значениями предыдущей итерации. Вычисления удобно вести в табличной форме.
В результате получают значение первой частоты
p1 собственных колебаний и координаты первой формы:

.
Для нахождения второй частоты и второй формы собственных колебаний три первых уравнения
системы (52) записывают в виде:

(55)
Из условия ортогональности первой и второй форм собственных колебаний

(56)
находят выражение для

через

,

и

, после подстановки которого в
систему (55) последняя принимает вид, аналогичный виду
системы (54). Из полученной системы также методом итерации определяют
p2,

,

. Значение

определяют из
условия (56).
Описанный выше итерационный процесс сходится очень быстро при определении первой частоты и первой формы собственных колебаний, несколько медленнее - при определении второй частоты и второй формы.
Для определения третьей частоты и третьей формы используют два первых уравнения
системы (52), в которых

и

выражают через

и

из условий ортогональности первой и третьей форм собственных колебаний
| | ИС МЕГАНОРМ: примечание. Формула дана в соответствии с официальным текстом документа. | |

(57)
и второй и третьей форм

(58)
В получающейся системе из двух уравнений дальнейшие вычисления можно проводить также методом итераций. Но здесь будет удобнее, исключив

, составить квадратное уравнение относительно

и найти из него значения третьей
p3 и четвертой
p4 частот собственных колебаний.
По найденному
p3 из любого из двух уравнений последней системы, принимая

, находят

, а из
зависимостей (57) и
(58) -

и

.
Правильность найденных значений частот может быть проверена на основании равенства

(59)
где

- сумма, состоящая из обратных величин квадратов четырех частот собственных колебаний;

- сумма четырех коэффициентов, расположенных на главной диагонали
системы (52).
а) Определяем первую частоту и первую форму собственных колебаний.
где

Полученную систему приводим к виду
(53):

(60)
помня о том, что

.
Представим систему (60) в виде, удобном для итераций:
Решение этой системы уравнений методом итерации приводится в табл. 20.
Таблица 20
Решение системы уравнений методом итерации
N итерации | | | | |
0 | 1 | 1 | 1 | 117,13 |
1 | 0,288415 | 0,558764 | 0,903833 | 93,434972 |
2 | 0,230940 | 0,487212 | 0,881586 | 89,841514 |
3 | 0,223226 | 0,475796 | 0,877365 | 89,246550 |
4 | 0,222060 | 0,473995 | 0,876646 | 89,150253 |
5 | 0,221879 | 0,473713 | 0,876530 | 89,135007 |
6 | 0,221851 | 0,473669 | 0,876510 | 89,132526 |
7 | 0,221846 | 0,473662 | 0,876508 | 89,132190 |
8 | 0,221846 | 0,473661 | 0,876508 | 89,132165 |
9 | 0,221846 | 0,473661 | 0,876508 | 89,132165 |
Окончательно принимаем

.
Первая частота собственных колебаний

Координаты первой формы собственных колебаний A(1) = (0,221846; 0,473661; 0,876508; 1).
б) Определяем вторую частоту и вторую форму собственных колебаний.

(61)

(62)
Подставляя (62) в
(61) и помня, что

, получаем:
Решение полученной системы методом итераций приводится в табл. 21.
Таблица 21
Решение системы уравнений методом итерации
N итерации | | | |
0 | 1 | 1 | 1,341806 |
1 | 10,182038 | 14,398468 | -37,587923 |
2 | -4,008741 | -5,737301 | 21,554006 |
3 | -2,684913 | -3,779154 | 15,893967 |
4 | -2,389005 | -3,325613 | 14,600423 |
5 | -2,289871 | -3,170411 | 14,161227 |
| | | |
6 | -2,252248 | -3,110815 | 13,993301 |
7 | -2,231193 | -3,086943 | 13,926190 |
8 | -2,228705 | -3,077221 | 13,898891 |
9 | -2,227683 | -3,073235 | 13,887705 |
10 | -2,227263 | -3,071600 | 13,881221 |
11 | -2,227090 | -3,070924 | 13,880443 |
| | | |
12 | -2,227023 | -3,070646 | 13,880126 |
13 | -2,226990 | -3,070531 | 13,879988 |
14 | -2,226977 | -3,070484 | 13,879934 |
15 | -2,226971 | -3,070465 | 13,879908 |
16 | -2,226969 | -3,070456 | 13,879899 |
17 | -2,226969 | -3,070453 | 13,879898 |
18 | -2,226968 | -3,070451 | 13,879895 |
19 | -2,226968 | -3,070451 | 13,879895 |
Окончательно принимаем

.
Вторая частота собственных колебаний

.
Значение

определяем из
(62):

.
Координаты второй формы собственных колебаний A(2) = (-2,228968; -3,070451; 1; 3,398671).
в) Определяем третью частоту и третью форму собственных колебаний.

(63)
| | ИС МЕГАНОРМ: примечание. Формула дана в соответствии с официальным текстом документа. | |
из которых

(64)
Подставляя (64) в
(63) и помня, что

, получаем:

(65)
После исключения из
системы (65) 
получается квадратное уравнение

, из решения которого получаем

;

.

.
Третья частота собственных колебаний

.
Окончательно координаты третьей формы собственных колебаний имеют вид: A(3) = (2,558934; 1; -6,264769; 14,087927).
4. Определяем коэффициент динамичности

для каркаса здания.
Для I формы колебаний

.
Условие 0,8 <= 1,197 <= 3 выполнено.
Так как

, то коэффициент

принимаем равным единице, а

.
Для II формы колебаний

.
Принимаем

.
Для III формы колебаний

.
Принимаем

.

.
5. Определяем коэффициенты форм колебаний каркаса здания

.
Коэффициенты

определяем по формуле

,
где

- величина, постоянная для каждой формы
(табл. 22);
mj - массы, сосредоточенные в уровне перекрытий и покрытия;

и

- относительные амплитуды колебаний по
i-й форме в рассматриваемой точке
k и во всех точках
j, т.е. в точках, отвечающих расположению масс в рассматриваемой расчетной схеме.
Таблица 22
Определение
ki для трех форм колебаний
j | mj | I форма | II форма | III форма |
| | | | | | | | | | | |
1 | 260 | 0,222 | 0,049 | 57,72 | 12,74 | -0,655 | 0,429 | -170,3 | 111,54 | 0,184 | 0,034 | 47,84 | 8,84 |
2 | 260 | 0,474 | 0,225 | 123,24 | 58,5 | -0,903 | 0,815 | -234,78 | 211,9 | 0,071 | 0,005 | 18,46 | 1,3 |
3 | 260 | 0,877 | 0,769 | 228,02 | 199,94 | 0,294 | 0,086 | 76,44 | 22,36 | -0,445 | 0,198 | -115,7 | 51,48 |
4 | 82 | 1 | 1 | 82 | 82 | 1 | 1 | 82 | 82 | 1 | 1 | 82 | 82 |
| Итого | 490,98 | 353,18 | Итого | -246,64 | 427,8 | Итого | 32,6 | 143,62 |
| | | |
Вычисление коэффициентов

приведено в
табл. 23.
6. Определяем сейсмические нагрузки.
Расчетные значения сейсмических нагрузок определяем по формуле

.
Коэффициент сейсмичности Kc = 0,05 (для 8 баллов).
Для I формы колебаний
S1 = 2550·0,05·1,197·0,309 = 47,153 т;
S2 = 2550·0,05·1,197·0,659 = 100,563 т;
S3 = 2550·0,05·1,197·1,219 = 186,018 т;
S4 = 803·0,05·1,197·1,39 = 66,794 т.
Для II формы колебаний
S1 = 2550·0,05·3·0,377 = 144,203 т;
S2 = 2550·0,05·3·0,52 = 198,9 т;
S3 = 2550·0,05·3(-0,169) = -64,643 т;
S4 = 803·0,05·3(-0,576) = -69,379 т.
Таблица 23
Значения коэффициентов

k | I форма | II форма | III форма |
| | | | | |
1 | 0,222 | 0,309 | -0,655 | 0,377 | 0,184 | 0,042 |
2 | 0,474 | 0,659 | -0,903 | 0,520 | 0,071 | 0,016 |
3 | 0,877 | 1,219 | 0,294 | -0,169 | -0,445 | -0,101 |
4 | 1 | 1,390 | 1 | -0,576 | 1 | 0,227 |
Для III формы колебаний
S1 = 2550·0,05·3·0,042 = 16,065 т;
S2 = 2550·0,05·3·0,016 = 6,12 т;
S3 = 2550·0,05·3 (-0,101) = -38,633 т;
S4 = 803·0,05·3·0,227 = 27,342 т.
7. Определяем перемещения ярусов рамы каркаса от действия сейсмических нагрузок.
Перемещения
k-го яруса плоской рамы каркаса от действия сейсмических нагрузок определяем по формуле

.
Значения

, приведенные в
табл. 18 для полурамы, для всего каркаса уменьшаем в 2 x 9 раз. Так как

считались с точностью до множителя 10
4/
E, то значения
xki тоже кратны этому множителю. В дальнейшем при определении усилий этот множитель сократится.
Для I формы колебаний
Для II формы колебаний
Для III формы колебаний
Следует отметить, что перемещения
xki пропорциональны координатам форм собственных колебаний

, и множитель пропорциональности для
i-й формы колебаний

, где
g = 9,81 - ускорение силы тяжести;
В этом случае единичные перемещения определяются по формуле

.
Для I формы колебаний:
x1 = 4,04·0,222 = 0,897; x2 = 4,041·0,474 = 1,915; x3 = 4,041·0,877 = 3,543; x4 = 4,041·1 = 4,041.
Для II формы колебаний:
x1 = -0,654(-0,655) = 0,428; x2 = -0,654(-0,903) = 0,591; x3 = -0,654·0,294 = -0,192; x4 = -0,654·1 = -0,654.
Для III формы колебаний:
x1 = 0,105·0,184 = 0,019; x2 = 0,105·0,071 = 0,007; x3 = 0,105(-0,445) = -0,048; x4 = 0,105·1 = 0,105.
8. Определяем изгибающие моменты в поперечной раме каркаса.
Изгибающие моменты от действия сейсмических нагрузок определяем по формуле

,
где xki - перемещение k-го яруса от действия сейсмических нагрузок;

- изгибающие моменты от единичного смещения
k-го яруса (
рис. 80 и
81).
В качестве примера вычислим изгибающий момент
MР16 в узле Р и
MБ5 в узле Б (см. расчетную схему
рис. 74).
Для I формы колебаний
MБ5 = 0,897·0,016 + 1,915(-0,486) + 3,543·13,971 +
+ 4,041(-13,507) = -5,987;
MР16 = 0,897(-32,659) + 1,915·2,588 + 3,543(-0,042) +
+ 4,041(-0,05) = -24,508.
Для II формы колебаний
MБ5 = 0,428·0,016 + 0,591(-0,486) - 0,192·13,971 -
- 0,654(-13,507) = 5,872;
MР16 = 0,428(-32,659) + 0,591·2,588 - 0,192(-0,042) -
- 0,654(-0,005) = -12,407.
Для III формы колебаний
MБ5 = 0,019·0,016 + 0,007(-0,486) - 0,048·13,971 +
+ 0,105(-13,507) = -2,093;
MР16 = 0,019(-32,659) + 0,007·2,588 - 0,048(-0,042) +
+ 0,105(-0,005) = -0,602.
Аналогично вычисляются изгибающие моменты в остальных стержнях рамы.
Эпюры изгибающих моментов от действия сейсмических нагрузок приведены на рис. 83.
Рис. 83. Эпюры изгибающих моментов
от действия сейсмических сил
а - первая форма колебаний; б - вторая форма колебаний;
в - третья форма колебаний
9. Определяем расчетные изгибающие моменты в раме каркаса с учетом влияния высших форм колебаний.
Расчетные изгибающие моменты в произвольном сечении элементов рамы, с учетом влияния высших форм колебаний, определяем по формуле

,
где Mр - расчетное значение момента в рассматриваемом сечении от действия сейсмической нагрузки;
Mмакс - наибольшее значение момента в данном сечении, определяемое из сопоставления эпюр, построенных от действия сейсмических нагрузок, отвечающих трем первым формам собственных колебаний системы;
Mi - значения момента в том же сечении по эпюрам для двух других форм колебаний (кроме Mмакс).
Вычислим расчетный момент MБ5 в узле Б и MР16 в узле Р:
Аналогично определяются расчетные усилия в других стержнях рамы.
Пример 4. Определение сейсмических нагрузок, действующих
на каркас многоэтажного здания с учетом его поворота
Определить сейсмические нагрузки, действующие на сборный железобетонный каркас трехэтажного производственного здания с верхним этажом, оборудованным мостовым краном (
рис. 84 и
85).
Рис. 84. Схемы продольного (а) и торцового (б)
фасадов здания и его план (в)
Рис. 85. Поперечный разрез здания
1 - колонны сечением 400 x 400 мм; 2 - то же, 400 x 600 мм;
3 - мостовой кран грузоподъемностью 10 т
Расчетная сейсмичность здания 7 баллов.
Временная длительная нагрузка приложена к перекрытиям неравномерно и составляет:
в осях 1 - 4 - 1200 кг/м2;
в осях 4 - 9 - 700 кг/м2.
Перемещения каркаса в поперечном направлении здания от действия горизонтальных единичных сил приведены в табл. 24.
Таблица 24
Перемещения каркаса

(в м) в поперечном
направлении здания от силы P = 1 т
j | k |
1 | 2 | 3 |
1 | 0,180 x 10-4 | 0,217 x 10-4 | 0,209 x 10-4 |
2 | 0,217 x 10-4 | 0,515 x 10-4 | 0,763 x 10-4 |
3 | 0,209 x 10-4 | 0,763 x 10-4 | 14,95 x 10-4 |
Перемещения рам каркаса в продольном направлении здания от действия горизонтальных единичных сил приведены в табл. 25 и
26.
Таблица 25
Перемещения рамы каркаса

(в м) по осям А и Г
в продольном направлении здания от силы P = 1 т
j | k |
1 | 2 | 3 |
1 | 1,05 x 10-4 | 1,05 x 10-4 | 1,05 x 10-4 |
2 | 1,05 x 10-4 | 2,38 x 10-4 | 2,38 x 10-4 |
3 | 1,05 x 10-4 | 2,38 x 10-4 | 7,38 x 10-4 |
Таблица 26
Перемещения рамы каркаса

(в м) по осям Б и В
в продольном направлении здания от силы P = 1 т
j | k |
1 | 2 |
1 | 1,89·10-4 | 1,89·10-4 |
2 | 1,89·10-4 | 3,83·10-4 |
Массы, сосредоточенные в уровне перекрытий и покрытия, равны (см. рис. 86): m1 = 177 т·сек2/м; m2 = 202 т·сек2/м; m3 = 62 т·сек2/м.
Рис. 86. Динамическая расчетная схема каркаса здания
1. Определяем частоту и формы собственных колебаний каркаса здания в поперечном направлении.
Динамическая расчетная схема изображена на
рис. 86. Для системы с тремя степенями свободы динамические уравнения имеют вид:
| | ИС МЕГАНОРМ: примечание. Формула дана в соответствии с официальным текстом документа. | |

(66)
Подставляя значения масс и единичных перемещений в систему уравнений (66), получим:

(67)
Систему уравнений (67) решаем итерационным методом с использованием свойства ортогональности с весом форм собственных колебаний (см.
пример 3).
Обозначения

;

;

; переписываем
систему (67) в виде, удобном для итерации:

(68)
Определение I частоты и I формы собственных колебаний сведено в табл. 27.
Таблица 27
Определение I частоты и I формы собственных колебаний
N итерации | | | |
0 | 1 | 1 | 1062,820 |
1 | 0,083440 | 0,178530 | 957,5628 |
2 | 0,024484 | 0,072145 | 938,9251 |
3 | 0,018001 | 0,059378 | 936,7176 |
4 | 0,017225 | 0,057834 | 936,4510 |
5 | 0,017131 | 0,057648 | 936,4187 |
6 | 0,017120 | 0,057625 | 936,4148 |
7 | 0,017118 | 0,057622 | 936,4143 |
8 | 0,017118 | 0,057622 | 936,4142 |
Итак,

;

. Координаты I формы собственных колебаний
A(1) = (0,017118; 0,057622; 1).
Для определения II и III частот и форм собственных колебаний записываем условие ортогональности (I со II формой и I с III формой). 177·0,017118X1 + 202·0,057622X2 + 62X3 = 0.
Из этого условия для II и III форм
X3 = -0,048870
X1 - 0,187740
X2. (69)
Значение
X3 из условия (69) подставляем в два первых уравнения
системы (67) и получаем после приведения подобных членов:

(70)

(71)
Исключив
a1, будем иметь квадратное уравнение относительно

:

;
p2 = 9,3927 рад/сек;
p3 = 27,6701 рад/сек.
a3 = -0,048870a1 + 0,187740a2. (72)
Подставляя по очереди значения
p2 и
p3 в
систему (71), а также используя выражение (72), получим координаты II и III форм собственных колебаний.
Координаты II формы:
Координаты III формы:
Принимая (так же как и для I формы)

и

, получим координаты II формы
A(2) = (-2,373892; -4,708692; 1) и координаты III формы
A(3) = (29,689390; -13,055120; 1).
2. Определяем коэффициент динамичности

для каркаса здания.
Для I формы колебаний

;

.
Принимаем

.
Коэффициент

определяем в соответствии с указаниями
п. 1.13. При этом приведенную высоту сечения колонны определяем по
формуле (5):

.
Перемещение

верха колонны от силы
P = 1 т
(рис. 87) 
;

;

.
Рис. 87. К определению приведенной высоты сечения колонны
По
табл. 2 для

коэффициент

принимает значение 1,165. Тогда

.
Для II формы колебаний

.
Условие

выполнено и

.
Для III формы колебаний

.
Принимаем

:

.
3. Определяем коэффициенты форм колебаний каркаса здания

.
Коэффициент

для трех форм колебаний определяем по формуле

, где

.
Подсчет коэффициентов
ki приведен в табл. 28, а коэффициентов

- в
табл. 29.
Таблица 28
Определение ki для трех форм колебаний
j | mj | I форма |
| | | |
1 | 177 | 0,017118 | 0,000293 | 3,029921 | 0,051861 |
2 | 202 | 0,057622 | 0,00332 | 11,639604 | 0,670701 |
3 | 62 | 1 | 1 | 62 | 62 |
Итого | | 76,6695 | 62,7226 |
| |
Продолжение табл. 28
j | mj | II форма |
| | | |
1 | 177 | -2,373892 | 5,635362 | -420,17885 | 997,45913 |
2 | 202 | -4,708692 | 22,17178 | -951,15578 | 4478,6996 |
3 | 62 | 1 | 1 | 62 | 62 |
Итого | | -1309,3344 | 5538,1587 |
| |
Продолжение табл. 28
j | mj | III форма |
| | | |
1 | 177 | 29,68939 | 881,45988 | 5255,022 | 156018,4 |
2 | 202 | -13,05512 | 170,436158 | -2637,1342 | 34428,1 |
3 | 62 | 1 | 1 | 62 | 62 |
Итого | | 2679,888 | 190508,5 |
| |
Таблица 29
Определение

k | I форма | II форма | III форма |
| | | | | |
1 | 0,017118 | 0,0209 | -2,373892 | 0,5612 | 29,68939 | 0,4176 |
2 | 0,057622 | 0,0704 | -4,708692 | 1,1131 | -13,05512 | -0,1836 |
3 | 1 | 1,2224 | 1 | -0,2364 | 1 | 0,01407 |
4. Определяем сейсмические нагрузки с учетом поворота здания.
В соответствии с рис. 88 (на заштрихованной части плана здания величина временной длительной нагрузки составляет 1200 кг/м2) определяем положение центров масс перекрытий относительно главных осей.
Рис. 88. К определению центра масс здания в плане
1 - центр масс; 2 - центр жесткости
Для этого определяем массу, соответствующую временной длительной нагрузке на перекрытие с площадей 18 x 18 и 30 x 18 м
2:

;

.
Положение центра массы перекрытия первого этажа

.
Положение центра массы перекрытия второго этажа

.
Так как жесткости поперечных, а также продольных рам каркаса одинаковы, то центры жесткостей ярусов совпадают с точкой пересечения осей симметрии здания.
Согласно "Инструкции по определению расчетной сейсмической нагрузки для зданий и сооружений", полная горизонтальная сила в уровне
k, действующая на рассматриваемую поперечную раму каркаса
(рис. 89), с учетом поворота здания определяется по формуле

(73)
где Ska - сейсмическая нагрузка, действующая на рассматриваемую раму a в уровне k, без учета поворота каркаса здания;
Sj - сейсмическая нагрузка, действующая на каркас здания в уровне k и во всех более высоких уровнях (j >= k);
Cka - жесткость рассматриваемой рамы a в уровне k;
la - расстояние от центра жесткости k-го этажа до рассматриваемой рамы a;
dkj - расстояние между центром жесткости каркаса в уровне k и центрами его массы в уровне k и во всех более высоких уровнях (j >= k);

- угловая горизонтальная жесткость сооружения в уровне
k-го перекрытия в т·м/рад:
| | ИС МЕГАНОРМ: примечание. Обозначения даны в соответствии с официальным текстом документа. | |
где

и

- жесткости каждой вертикальной рамы в уровне
k соответственно в продольном и поперечном направлении;
lxa и lya - расстояния каждой вертикальной рамы соответственно до продольной и поперечной осей, проведенных через центр жесткости сооружения.
Рис. 89. К определению сейсмических сил
с учетом поворота здания
1 - центр массы; 2 - центр жесткости;
3 - рассматриваемая рама a с жесткостью Cka
Величины действующих на каркас здания сейсмических нагрузок без учета поворота определяются по формуле

.
Коэффициент Kс = 0,025 (для зданий с расчетной сейсмичностью 7 баллов).
Для I формы колебаний
S1 = 9,81·177·0,025·0,932·0,0209 = 0,846 т;
S2 - 9,81·202·0,025·0,932·0,0704 = 3,250 т;
S3 = 9,81·62·0,025·0,932·1,2224 = 17,328 т.
Для II формы колебаний
S1 = 9,81·177·0,025·1,642·0,5612 = 40 т;
S2 = 9,81·202·0,025·1,642·1,1131 = 90,545 т;
S3 = 9,81·62·0,025·1,642(-0,2364) = -5,902 т.
Для III формы колебаний
S1 = 9,81·177·0,025·3,495·0,4176 = 63,292 т;
S2 = 9,81·202·0,025·3,495(-0,1836) = -31,757 т;
S3 = 9,81·62·0,025·3,495·0,01407 = 0,747 т.
Сейсмическая нагрузка, действующая на поперечную раму каркаса

.
Для I формы колебаний

;
S2a = 0,361 т;
S3a = 1,925 т.
Для II формы колебаний
S1a = 4,444 т; S2a = 10,061 т; S3a = -0,656 т.
Для III формы колебаний
S1a = 7,032 т; S2a = -3,529 т; S3a = 0,083 т.
Жесткость поперечной рамы каркаса в уровне
k-го перекрытия равняется:

;

.
Жесткость продольной рамы каркаса в уровне k-го перекрытия:
а) по осям А и Г:

;

;
б) по осям Б и В:

;

.
Вычисляем угловую горизонтальную жесткость яруса в уровне k-го перекрытия (при условии, что k-й ярус свободно поворачивается, а остальные закреплены).
Для I яруса:

.
Для II яруса:
Вычисляем угловую горизонтальную жесткость каркаса в уровнях перекрытий первого и второго этажа.
Угловая горизонтальная жесткость в уровне перекрытия первого этажа будет равна:

.
Угловую горизонтальную жесткость в уровне перекрытия второго этажа определяем из следующего равенства:

.
Откуда

.
Определяем по
формуле (73) полную сейсмическую нагрузку, действующую на поперечную раму каркаса
a, с учетом поворота для трех форм собственных колебаний.
Для I формы колебаний
S3 = 1,925 т.
Для II формы колебаний
S3 = -0,656 т.
Для III формы колебаний
S3 = 0,083 т.
Пример 5. Определение усилий в стержнях железобетонной
фермы от действия вертикальных сейсмических нагрузок
Определить величины усилий в стержнях типовой железобетонной сегментной фермы ФСМ-24П-3 (серия ПК-01-129/68) от действия вертикальных сейсмических нагрузок. Расчетная сейсмичность здания 8 баллов. Расчетная схема фермы изображена на рис. 90. Шаг ферм 6 м. Ширина плит покрытия 3 м. Нагрузки, действующие на ферму, сосредоточены в узлах верхнего пояса. Величины вертикальных нагрузок приведены в
табл. 30.
Рис. 90. Динамическая расчетная схема фермы
Таблица 30
Вертикальная расчетная нагрузка
Нагрузка | Единица измерения | Нормативная нагрузка | Коэффициент | Расчетная нагрузка |
перегрузки | сочетаний |
От веса кровли | т/м2 | 0,047 | 1,1 | 0,9 | 0,047 |
То же, утеплителя | " | 0,06 | 1,2 | 0,9 | 0,065 |
От веса плиты покрытия с заливкой швов | " | 0,145 | 1,1 | 0,9 | 0,144 |
То же, фермы | т | 14,9 | 1,1 | 0,9 | 14,8 |
Эквивалентная нагрузка на ферму от подвесных грузов | т/м | 0,419 | 1,2 | 0,3 | 0,151 |
От веса снега | т/м2 | 0,1 | 1,4 | 0,5 | 0,07 |
Расчетная нагрузка на 1 м фермы:

.
Расчетная узловая нагрузка: Q = 2,724·3 = 8,172 т.
Массы, сосредоточенные в узлах фермы, одинаковы и равны

.
Усилия в стержнях фермы от единичных сил, прикладываемых в узлах верхнего пояса, приведены в табл. 31.
Таблица 31
Значения усилий в стержнях фермы от единичных сил
Обозначения усилий в стержнях | Значения усилий в стержнях от единичных сил, прикладываемых в узлах верхнего пояса |
P1 | P2 | P3 | P4 | P5 | P6 | P7 |
Верхний пояс | N1 | -1,862 | -1,602 | -1,332 | -1,062 | -0,792 | -0,522 | -0,261 |
N2 | -0,935 | -1,87 | -1,555 | -1,24 | -0,924 | -0,609 | -0,305 |
N3 | -0,896 | -1,792 | -1,49 | -1,188 | -0,886 | -0,584 | -0,292 |
N4 | -0,493 | -0,986 | -1,496 | -2,007 | -1,496 | -0,986 | -0,493 |
N5 | -0,493 | -0,986 | -1,496 | -2,007 | -1,496 | -0,986 | -0,493 |
N6 | -0,292 | -0,584 | -0,886 | -1,188 | -1,49 | -1,792 | -0,896 |
N7 | -0,305 | -0,609 | -0,924 | -1,24 | -1,555 | -1,87 | -0,935 |
N8 | -0,261 | -0,522 | -0,792 | -1,062 | -1,332 | -1,602 | -1,862 |
Нижний пояс | N9 | 1,643 | 1,413 | 1,175 | 0,937 | 0,698 | 0,46 | 0,23 |
N10 | 0,674 | 1,347 | 2,044 | 1,63 | 1,216 | 0,801 | 0,4 |
N11 | 0,4 | 0,801 | 1,216 | 1,63 | 2,044 | 1,347 | 0,674 |
N12 | 0,23 | 0,46 | 0,698 | 0,937 | 1,175 | 1,413 | 1,643 |
Раскосы | N13 | -0,85 | 0,422 | 0,351 | 0,28 | 0,209 | 0,138 | 0,069 |
N14 | 0,295 | 0,59 | -0,752 | -0,6 | -0,447 | -0,295 | -0,147 |
N15 | -0,245 | -0,49 | -0,743 | 0,498 | 0,372 | 0,245 | 0,122 |
N16 | 0,122 | 0,242 | 0,375 | 0,498 | -0,743 | -0,49 | -0,245 |
Nl7 | -0,147 | -0,295 | -0,447 | -0,6 | -0,752 | 0,59 | 0,295 |
N18 | 0,069 | 0,138 | 0,209 | 0,28 | 0,351 | 0,422 | -0,85 |
Стойки | N19 | 0,203 | -0,593 | 0,338 | 0,27 | 0,201 | 0,132 | 0,066 |
N20 | 0,082 | 0,164 | 0,249 | -0,667 | 0,249 | 0,164 | 0,082 |
N21 | 0,066 | 0,132 | 0,201 | 0,27 | 0,338 | -0,593 | 0,203 |
Вычисление элементов матрицы единичных перемещений (в см/т), увеличенных в 100 раз, приводится в табл. 32.
Таблица 32
Вычисление элементов матрицы единичных перемещений
Усилие в стержне | Длина стержня li в см | Площадь сечения стержня Fi в см2 | 100li ------- EFi в см/т | | | | | | | | |
N1 | 328,7 | 700 | 0,134 | 0,465 | 0,4 | 0,333 | 0,265 | 0,198 | 0,13 | 0,065 | 0,344 |
N2 | 303,7 | 700 | 0,124 | 0,108 | 0,217 | 0,18 | 0,144 | 0,107 | 0,071 | 0,035 | 0,433 |
N3 | 301 | 700 | 0,123 | 0,099 | 0,197 | 0,164 | 0,131 | 0,098 | 0,064 | 0,032 | 0,394 |
N4 | 301 | 700 | 0,123 | 0,03 | 0,06 | 0,091 | 0,122 | 0,091 | 0,06 | 0,03 | 0,12 |
N5 | 301 | 700 | 0,123 | 0,03 | 0,06 | 0,091 | 0,122 | 0,091 | 0,06 | 0,03 | 0,12 |
N6 | 301 | 700 | 0,123 | 0,01 | 0,021 | 0,032 | 0,043 | 0,053 | 0,064 | 0,032 | 0,042 |
N7 | 303,7 | 700 | 0,124 | 0,011 | 0,023 | 0,035 | 0,047 | 0,059 | 0,071 | 0,035 | 0,046 |
N8 | 328,7 | 700 | 0,134 | 0,009 | 0,018 | 0,028 | 0,037 | 0,047 | 0,056 | 0,065 | 0,037 |
N9 | 580 | 750 | 0,221 | 0,597 | 0,513 | 0,427 | 0,34 | 0,254 | 0,167 | 0,084 | 0,441 |
N10 | 600 | 750 | 0,229 | 0,104 | 0,207 | 0,315 | 0,251 | 0,187 | 0,123 | 0,062 | 0,415 |
N11 | 600 | 750 | 0,229 | 0,037 | 0,073 | 0,111 | 0,149 | 0,187 | 0,123 | 0,062 | 0,147 |
N12 | 580 | 750 | 0,221 | 0,012 | 0,024 | 0,036 | 0,048 | 0,06 | 0,072 | 0,084 | 0,047 |
N13 | 328,7 | 225 | 0,417 | 0,302 | -0,15 | -0,125 | -0,099 | -0,074 | -0,049 | -0,024 | 0,075 |
N14 | 403,6 | 225 | 0,513 | 0,045 | 0,089 | -0,114 | -0,091 | -0,068 | -0,045 | -0,022 | 0,178 |
N15 | 403,6 | 225 | 0,513 | 0,031 | 0,062 | 0,093 | -0,063 | -0,047 | -0,031 | -0,015 | 0,123 |
N16 | 403,6 | 225 | 0,513 | 0,008 | 0,015 | 0,023 | 0,031 | -0,047 | -0,031 | -0,015 | 0,031 |
Nl7 | 403,6 | 225 | 0,513 | 0,011 | 0,022 | 0,034 | 0,045 | 0,057 | -0,045 | -0,022 | 0,045 |
N18 | 328,7 | 225 | 0,417 | 0,002 | 0,004 | 0,006 | 0,008 | 0,01 | 0,012 | -0,024 | 0,008 |
N19 | 245 | 225 | 0,311 | 0,013 | -0,038 | 0,021 | 0,017 | 0,013 | 0,008 | 0,004 | 0,11 |
N20 | 295 | 225 | 0,375 | 0,003 | 0,005 | 0,008 | -0,02 | 0,008 | 0,005 | 0,002 | 0,01 |
N21 | 245 | 225 | 0,311 | 0,001 | 0,003 | 0,004 | 0,006 | 0,007 | -0,012 | 0,004 | 0,006 |
| 1,928 | 1,825 | 1,793 | 1,533 | 1,291 | 0,873 | 0,504 | 3,172 |
Продолжение табл. 32
Усилие в стержне | Длина стержня li в см | Площадь сечения стержня Fi в см2 | 100li ------- EFi в см/т | | | | | | | | |
N1 | 328,7 | 700 | 0,134 | 0,286 | 0,228 | 0,17 | 0,112 | 0,238 | 0,19 | 0,141 | 0,151 |
N2 | 303,7 | 700 | 0,124 | 0,36 | 0,287 | 0,214 | 0,141 | 0,3 | 0,239 | 0,178 | 0,19 |
N3 | 301 | 700 | 0,123 | 0,328 | 0,261 | 0,195 | 0,128 | 0,272 | 0,217 | 0,162 | 0,173 |
N4 | 301 | 700 | 0,123 | 0,181 | 0,243 | 0,181 | 0,12 | 0,275 | 0,369 | 0,275 | 0,495 |
N5 | 301 | 700 | 0,123 | 0,181 | 0,243 | 0,181 | 0,12 | 0,275 | 0,369 | 0,275 | 0,495 |
N6 | 301 | 700 | 0,123 | 0,064 | 0,085 | 0,107 | 0,128 | 0,096 | 0,129 | 0,162 | 0,173 |
N7 | 303,7 | 700 | 0,124 | 0,07 | 0,094 | 0,117 | 0,141 | 0,106 | 0,142 | 0,178 | 0,19 |
N8 | 328,7 | 700 | 0,134 | 0,055 | 0,074 | 0,093 | 0,112 | 0,084 | 0,113 | 0,141 | 0,151 |
N9 | 580 | 750 | 0,221 | 0,367 | 0,293 | 0,218 | 0,144 | 0,305 | 0,243 | 0,181 | 0,194 |
N10 | 600 | 750 | 0,229 | 0,629 | 0,502 | 0,374 | 0,247 | 0,955 | 0,761 | 0,568 | 0,607 |
N11 | 600 | 750 | 0,229 | 0,223 | 0,298 | 0,374 | 0,247 | 0,338 | 0,453 | 0,568 | 0,607 |
N12 | 580 | 750 | 0,221 | 0,071 | 0,095 | 0,12 | 0,144 | 0,108 | 0,145 | 0,181 | 0,194 |
N13 | 328,7 | 225 | 0,417 | 0,062 | 0,049 | 0,037 | 0,024 | 0,052 | 0,041 | 0,031 | 0,033 |
N14 | 403,6 | 225 | 0,513 | -0,228 | -0,181 | -0,135 | -0,089 | 0,29 | 0,231 | 0,173 | 0,184 |
N15 | 403,6 | 225 | 0,513 | 0,187 | -0,125 | -0,093 | -0,062 | 0,283 | -0,19 | -0,142 | 0,127 |
N16 | 403,6 | 225 | 0,513 | 0,047 | 0,063 | 0,093 | -0,062 | 0,071 | 0,095 | -0,142 | 0,127 |
N17 | 403,6 | 225 | 0,513 | 0,068 | 0,091 | 0,014 | -0,089 | 0,103 | 0,138 | 0,173 | 0,184 |
N18 | 328,7 | 225 | 0,417 | 0,012 | 0,016 | 0,02 | 0,024 | 0,018 | 0,024 | 0,031 | 0,033 |
N19 | 245 | 225 | 0,311 | -0,062 | -0,05 | -0,037 | -0,024 | 0,036 | 0,028 | 0,021 | 0,023 |
N20 | 295 | 225 | 0,375 | 0,015 | -0,041 | 0,015 | 0,01 | 0,023 | -0,062 | 0,023 | 0,168 |
N2l | 245 | 225 | 0,311 | 0,008 | 0,011 | 0,014 | -0,024 | 0,013 | 0,017 | 0,021 | 0,023 |
| 2,924 | 2,536 | 2,186 | 1,492 | 4,241 | 3,692 | 3,199 | 4,522 |
Матрица единичных перемещений имеет вид:

(74)
Определяем формы и соответствующие им частоты собственных колебаний фермы, необходимые при вычислении сейсмических нагрузок. При этом рассматривается система с сосредоточенными (в узлах верхнего пояса фермы) массами и конечным числом степеней свободы, равным числу этих узлов.
В связи с симметрией фермы и
m1 =
m2 = ... =
m7 =
m система динамических алгебраических
уравнений (39) может быть упрощена путем расчленения ее на две независимые друг от друга системы уравнений, одна из которых описывает симметричные, а другая - кососимметричные формы колебаний.
Принимая в
системе (39) n = 7 и подставляя в четыре первых уравнения ее
X1 =
X7;
X2 =
X6;
X3 =
X5, получаем систему, описывающую симметричные формы колебаний:

(75)
Используя
(74) и (75), составляем систему уравнений для симметричных форм колебаний фермы ФСМ-24П-3:
или

(76)
Подставляя в три первые уравнения
системы (39) условия для кососимметричных форм
X1 = -
X7;
X2 = -
X6;
X3 = -
X5;
X4 = 0 и используя
(74), получаем:

(77)
В
системах (76) и (77) множитель при единичных перемещениях 10
-2 для упрощения записи опущен и учитывается только в конечном результате.
Для нахождения из
системы (76) I частоты и I формы собственных колебаний используется итерационный метод, описанный в примере 3.
В результате решения получено:

;
X1 = 0,453;
X2 = 0,722;
X3 = 0,955;
X4 = 1.
Первая частота собственных колебаний

.
Период колебаний

.
Так как полученное значение периода меньше 0,5 сек, то в соответствии с
п. 2.6 можно ограничиться учетом I формы колебаний. Поэтому определение последующих форм и частот производить не следует.
Координаты I формы собственных колебаний, нормированные в соответствии с
формулой (5), имеют вид:

;

;

;

.
Сейсмические нагрузки, действующие в узлах фермы, определяются по
формуле (3), в которой
Qk для всех узлов равняется 8,172 т,
Kс = 0,05, а величина

принята равной 3, так как

. Тогда величины сейсмических нагрузок имеют значения:
S1 =
S7 = 8,172·0,05·3·0,557 = 0,683 т;
S2 =
S6 = 8,172·0,05·3·0,888 = 1,089 т;
S3 =
S5 = 8,172·0,05·3·1,175 = 1,44 т;
S4 = 8,172·0,05·3·1,23 = 1,508 т.
Индекс при нагрузке указывает на номер узла верхнего пояса, в котором сосредоточена нагрузка.
По вычисленным значениям сейсмических нагрузок с помощью
табл. 31 единичных усилий определяют усилия в стержнях фермы. Результаты вычислений приведены в табл. 33.
Таблица 33
Значения усилий в стержнях фермы от сейсмических нагрузок
Обозначение усилий в стержнях | Значения усилий в т в стержнях от сейсмических нагрузок, прикладываемых в узлах верхнего пояса | Значения суммарных усилий  |
S1 = 0,683 | S2 = 1,089 | S3 = 1,44 | S4 = 1,508 | S5 = 1,44 | S6 = 1,089 | S7 = 0,683 |
Верхний пояс | N1 | -1,272 | -1,745 | -1,918 | -1,601 | -1,14 | -0,568 | -0,178 | -8,422 |
N2 | -0,639 | -2,036 | -2,239 | -1,87 | -1,331 | -0,663 | -0,208 | -8,986 |
N3 | -0,612 | -1,951 | -2,146 | -1,792 | -1,276 | -0,636 | -0,199 | -8,612 |
N4 | -0,337 | -1,074 | -2,154 | -3,027 | -2,154 | -1,074 | -0,337 | -10,157 |
N5 | -0,337 | -1,074 | -2,154 | -3,027 | -2,154 | -1,074 | -0,337 | -10,157 |
N6 | -0,199 | -0,636 | -1,276 | -1,792 | -2,146 | -1,951 | -0,612 | -8,612 |
N7 | -0,208 | -0,663 | -1,331 | -1,87 | -2,239 | -2,036 | -0,639 | -8,986 |
N8 | -0,178 | -0,568 | -1,14 | -1,601 | -1,918 | -1,745 | -1,272 | -8,422 |
Нижний пояс | N9 | 1,122 | 1,539 | 1,692 | 1,413 | 1,005 | 0,501 | 0,157 | 7,429 |
N10 | 0,46 | 1,467 | 2,943 | 2,458 | 1,751 | 0,872 | 0,273 | 10,224 |
N11 | 0,273 | 0,872 | 1,751 | 2,458 | 2,943 | 1,467 | 0,46 | 10,224 |
N12 | 0,157 | 0,501 | 1,005 | 1,413 | 1,692 | 1,539 | 1,122 | 7,429 |
Раскосы | N13 | -0,581 | 0,46 | 0,505 | 0,422 | 0,301 | 0,15 | 0,047 | 1,304 |
N14 | 0,201 | 0,643 | -1,083 | -0,905 | -0,644 | -0,321 | -0,1 | -2,209 |
Nl5 | -0,167 | -0,534 | -1,07 | 0,751 | 0,536 | 0,267 | 0,083 | -0,134 |
N16 | 0,083 | 0,267 | 0,536 | 0,751 | -1,07 | -0,534 | -0,167 | -0,134 |
N17 | -0,1 | -0,321 | -0,644 | -0,905 | -1,083 | 0,643 | 0,201 | -2,209 |
N18 | 0,047 | 0,15 | 0,301 | 0,422 | 0,505 | 0,46 | -0,581 | 1,304 |
Стойки | N19 | 0,139 | -0,646 | 0,487 | 0,407 | 0,289 | 0,144 | 0,045 | 0,865 |
N20 | 0,056 | 0,179 | 0,359 | -1,006 | 0,359 | 0,179 | 0,056 | 0,182 |
N21 | 0,045 | 0,144 | 0,289 | 0,407 | 0,487 | -0,646 | 0,139 | 0,865 |
Пример 6. Расчет жестких узлов рамы многоэтажного здания
Рассчитать на прочность центральные зоны узлов поперечных рам с бесконсольным опиранием ригелей на колонны рис. 91 и с опиранием ригелей на железобетонные консоли колонн
рис. 92.
Рис. 91. Крайний (а) и средний (б) узлы рамы
с бесконсольным опиранием ригелей на колонны
1 - колонна; 2 - поперечный ригель; 3 - продольный ригель
Рис. 92. Крайний (а) и средний (б) узлы рамы с опиранием
ригелей на железобетонные консоли колонн
1 - колонна; 2 - поперечный ригель
А. Расчет узлов рамы с бесконсольным опиранием
ригелей на колонны
На схемах узлов
рис. 93 показаны усилия, учитываемые при расчете центральной зоны. Эти усилия определены в сечениях по границам центральной зоны из комбинации усилий при особом сочетании нагрузок, являющейся расчетной для сечения колонны над узлом. При этом величины
Mк и
Qк в колоннах приняты равными полусумме их значений в верхнем и нижнем сечениях от узла, а величина
Nк в нижнем сечении колонны принята равной значению, вычисленному для верхнего сечения. Поперечные и нормальные силы в ригелях не учитываются.
Рис. 93. Расчетные схемы крайнего (а) и среднего (б) узлов
1. Определяем величины равнодействующих внутренних усилий и расстояний между ними в сечениях по границам центральной зоны.
Крайний узел
а) Для ригеля рис. 94: Mр = 5550000 кг·см; b = 30 см; h = 60 см; h0 = 54,6 см; Rи = 160 кг/см2.
Рис. 94. Расчетная схема ригеля, принимаемая
при определении величин равнодействующих внутренних
усилий и расстояний между ними
Определяем высоту сжатой зоны бетона (без учета сжатой арматуры):

;

;
x2 - 109,2
x + 2310 = 0;
x = 28,7 см;

;

.
б) Для колонны
рис. 95:
Mк = 2850000 кг·см;
Nк = 73400 кг;
b = 40 см;
h = 40 см;
h0 = 34,6 см;
a =
a' = 5,4 см;
Fа' =
F'
а = 15,2 см
2;
R =
Rа.с = 3400 кг/см
2;
Rи = 160 кг/см
2.

;

;
Рис. 95. Расчетная схема колонны, принимаемая
при определении величин равнодействующих внутренних
усилий и расстояний между ними
Так как

, т.е. случай 1-го внецентренного сжатия.
Определяем высоту сжатой зоны бетона:

;

;
x2 - 69,2
x + 753 = 0;
x = 13,6 см.
Определяем расстояние от центра тяжести растянутой арматуры до равнодействующей сжимающих усилий в арматуре и бетоне:
Внутренние усилия равны:

;
Dк.р =
Dк.сж -
Nк = 138,2 - 73,4 = 64,8 т.
Средний узел
а) Для левого ригеля:

;
b = 30 см;
h = 60 см;
h0 = 54,6 см;
Rи = 160 кг/см
2.

;

;
x2 - 109,2
x + 2310 = 0;
x = 28,9 см;

;

.
б) Для правого ригеля:

;
b = 30 см;
h = 60 см;
h0 = 54,6 см;
Rи = 160 кг/см
2;

;
x2 - 109,2
x + 415 = 0;
x = 4,1 см;

;

.
в) Для колонны:
Mк = 3320000 кг·см;
Nк = 79400 кг;
b = 40 см;
h = 40 см;
h0 = 34,8 см;
a =
a' = 5,2 см;
Fа =
F'
а = 19,64 см
2;
Rа = 3400 кг/см
2;
Rи = 160 кг/см
2;

;

;
Так как
Nк = 79400 кг < 0,55·160·40·34,8 = 122500 кг, т.е. случай 1-го внецентренного сжатия:

;
x2 - 69,6
x + 790 = 0;
x = 14,3 см;

Внутренние усилия равны:

;
Dк.р =
Dк.сж -
Nк = 158,8 - 79,4 = 79,4 т.
2. Определяем расчетные сжимающие усилия в узлах по
формуле (25).
Крайний узел
Расчетная схема узла дана на рис. 96.
Wгор =
Dр.р -
Qк = 138 - 10,3 = 127,7 т;
Wверт =
Dк.сж +
Dк.р = 138,2 + 64,8 = 203 т;

.
Рис. 96. Расчетная схема центральной зоны
крайнего узла рамы
Средний узел
Расчетная схема узла дана на
рис. 97.

;
Wверт =
Dк.сж +
Dк.р = 158,8 + 79,4 = 238,2 т;

.
Рис. 97. Расчетная схема центральной зоны
среднего узла рамы
3. Проверяем прочность центральной зоны узлов по
формуле (24).
Крайний узел
Определяем по
формуле (26) расчетную высоту сечения сжатой наклонной призмы

; 0,8
RпрbHmузmкр = 0,8·130·40·24,6·1·1,2 = 123000 кг = 123 т <
Nуз = 240 т.
Следовательно, прочность узла недостаточна, требуется армирование центральной зоны узла.
Средний узел

;

; 0,8·130·40·27,2·1·1,2 = 136000 кг = 136 т <
Nуз = 279 т.
Следовательно, прочность узла недостаточна, требуется армирование центральной зоны узла.
4. Проверяем прочность армированной центральной зоны узлов по
формуле (34).
Центральную зону узлов армируем горизонтальными сетками из стержней диаметром 12 мм из стали А-III (Rа = 3400 кг/см2), устанавливаемыми с шагом s = 10 см.
Крайний узел
Ширина сечения узла, заключенная внутри контура крайних стержней сеток, bя = 36 см.
Объемный коэффициент косвенного армирования определяем по
формуле (35):
Синус угла между осью сжатой наклонной призмы узла и горизонтальной плоскостью косвенного армирования определяем по
формуле (36):
Следовательно, прочность узла обеспечена.
Средний узел

; 0,8·27,2·36[130 + (1 + 0,857)0,0299·3400]1·1,2 = 300000 кг = 300 т >
Nуз = 279 т.
Следовательно, прочность узла обеспечена.
Б. Расчет узлов рамы с опиранием ригелей
на железобетонные консоли колонн
На схемах узлов рис. 98 показаны усилия, на которые следует рассчитывать центральные зоны узлов. Эти усилия получены таким же образом, как для узлов рамы с бесконсольным опиранием ригелей на колонны.
Рис. 98. Расчетные схемы крайнего (а) и среднего (б) узла
5. Определяем величины равнодействующих внутренних усилий и расстояний между ними в сечениях по границам центральной зоны.
Крайний узел
а) Для ригеля:
Mр = 6300000 кг·см;
b = 30 см;
h = 80 см;
h0 = 73,8 см;
Rи = 160 кг/см
2;

;

;
x2 - 147,6
x + 2620 = 0;
x = 20,6 см;

;

.
б) Для колонны:
Mк = 5370000 кг·см;
Nк = 155000 кг;
b = 40 см;
h = 60 см;
h0 = 54,8 см;
a =
a' = 5,2 см; F
а = F'
а = 19,64 см
2;
Rа.с =
Rа = 3400 кг/см
2;
Rи = 160 кг/см
2;

;

;
Так как
Nк = 150000 кг < 0,55·160·40·54,8 = 192900 кг, т.е. случай 1-го внецентренного сжатия

;

;
x2 - 109,6
x + 1840 = 0;
x = 20,6 см.
Определяем расстояние от центра тяжести растянутой арматуры до равнодействующей сжимающих усилий в арматуре и бетоне:
Внутренние усилия равны:

;
Dк.р =
Dк.сж - N
к = 199 - 155 = 44 т.
Средний узел
а) Для левого ригеля:

;
b = 30 см;
h = 80 см;
h0 = 73,8 см;
Rи = 160 кг/см
2;

;
x2 - 147,6
x + 2660 = 0;
x = 21 см;

;

.
б) Для правого ригеля:

;
b = 30 см;
h = 80 см;
h0 = 73,8 см;
Rи = 160 кг/см
2;

;
x2 - 147,6
x + 1325 = 0;
x = 9,6 см;

;

.
в) Для колонны:
Mк = 5060000 кг·см;
Nк = 310000 кг;
b = 40 см;
h = 60 см;
h0 = 54,9 см;
a =
a' = 5,1 см;
Fа =
F'
а = 24,63 см
2;
Rа = 3400 кг/см
2;
Rи = 210 кг/см
2;

;

;

;
Nк = 310000 кг > 0,55·210·40·54,9 = 253600 кг, т.е. имеет место 2-й случай внецентренного сжатия.
Так как

, то равнодействующая сжимающих усилий принимается равной
Nк = 310000 кг, а равнодействующая усилий в растянутой (или наименее сжатой) арматуре принимается равной нулю.
6. Определяем расчетные сжимающие усилия в узлах по
формуле (25).
Крайний узел
Wгор =
Dр.р -
Qк = 99,2 - 20 = 79,2 т;
Wверт =
Dк.сж +
Dк.р = 199 + 44 = 243 т;

.
Средний узел

;
Wверт =
Nк = 310 т;

.
7. Проверяем прочность центральной зоны узлов по
формуле (24).
Крайний узел

;

; 0,8
RпрbHmузmкр = 0,8·130·40·43,5·0,8·1,2 = 173000 кг = 173 т <
Nуз = 256 т.
Следовательно, прочность узла недостаточна, требуется армирование центральной зоны узла.
Средний узел

;

;

;

; 0,8·170·40·69,6·0,8·1,2 = 362000 кг = 362 т >
Nуз = 332 т.
Следовательно, прочность узла обеспечена. Центральную зону узла конструктивно армируем хомутами из стержней диаметром 10 мм, устанавливаемыми с шагом 10 см.
8. Проверяем прочность армированной центральной зоны крайнего узла по
формуле (34).
Центральную зону узла армируем горизонтальными сетками из стержней диаметром 10 мм из стали А-III (
Rа = 3400 кг/см
2), устанавливаемыми с шагом
s = 15 см,
bя = 36 см;

;

;

Следовательно, прочность узла обеспечена.
Пример 7. Расчет самонесущей кирпичной стены
Рассчитать продольную самонесущую стену одноэтажного промышленного здания на действие сейсмических нагрузок. Расчетная сейсмичность здания 9 баллов.
Стена толщиной 38 см из кирпича марки 75 на растворе марки 50. Схема фасада стены изображена на
рис. 51.
Стены армированы горячекатаной арматурной сталью класса А-I (
Rа = 1900 кг/см
2) по

на 1 м стены при двустороннем расположении арматуры (
Fа =
F'
а = 6,28 см
2).
Остальные исходные данные для расчета стены следующие:
| Вес кирпичной стены без проемов | qс = 0,685 т/м2 |
| Вес оконного остекления | qо = 0,05 т/м2 |
| Жесткость сечения колонны каркаса, примыкающей к продольной стене | EбJк = 5,65·103 т·м2 |
| Модуль деформации кладки | E = 236·103 т/м2 |
| Жесткость каркаса здания в уровне верха колонн | C = 4168 т/м |
| Расчетная вертикальная нагрузка от собственного веса конструкций и снега с учетом коэффициентов перегрузки и коэффициентов сочетания, принятая сосредоточенной в уровне верха колонн | Q = 1639 т |
| Коэффициент динамичности для каркаса здания | |
| Коэффициент сейсмичности при расчетной сейсмичности 9 баллов | Kс = 0,1 |
| Коэффициент формы колебаний каркаса | |
1. Расчет стены на действие сейсмических нагрузок
в направлении, перпендикулярном ее плоскости
А. Расчет глухого (без проемов) участка стены
1. Определяем усилие в стене от действия местной сейсмической нагрузки.
Величину местной сейсмической нагрузки определяем по
формуле (3). Так как

, то согласно указаниям
п. 4.6 принимаем

.
Sс = 0,685·0,1·2·1,1·0,9 = 0,14 т/м2.
Расчетную схему стены в соответствии с
рис. 99, а принимаем как прямоугольную плиту, опертую по трем сторонам (на две колонны и фундаментную балку) и защемленную по четвертой стороне (на уровне низа антисейсмического пояса). При этом на участок стены размером
lx x
ly действуют следующие местные сейсмические нагрузки:
при изгибе вдоль оси
x 
;
при изгибе вдоль оси
y 
(коэффициент

определяется по таблицам расчета плит, опертых по контуру в зависимости от отношения

).
Рис. 99. Схемы к определению усилий в глухом (без проемов)
участке стены при расчете в направлении, перпендикулярном
плоскости стены
а - от действия местной сейсмической нагрузки;
б - от перемещения стены вместе с каркасом;
1 - антисейсмический пояс
Расчетные схемы стены в эпюры изгибающих моментов в ее сечениях при изгибе вдоль осей
x и
y приведены на
рис. 99, а.
Поперечная сила в сечении стены на отметке 1,20 м при изгибе ее вдоль оси y Q = 0,09 т.
2. Определяем усилия в стене от перемещения ее вместе с каркасом.
Жесткость сечения стены длиной 7,5 м

.
Жесткость сечения двух пристенных колонн каркаса, связанных со стеной, EбJк = 5,65·103·2 = 11,3·103 т·м2.
Суммарную жесткость сечений стены и пристенных колонн каркаса принимаем в соответствии с указаниями
п. 4.25 и составляет:
до отметки 1,20 м 0,4EJс + EбJк = 0,4·8,1·103 + 11,3·103 = 14,54·103 т·м2;
от отметки 1,20 м и до верха колонны EJс + EбJс = 8,1·103 + 11,3·103 = 19,4·103 т·м2.
Определяем по
формуле (17) перемещение каркаса здания на уровне верха колонн от действия сейсмических сил в поперечном направлении здания:
Определяем перемещение двух пристенных колонн в поперечном направлении здания от действия горизонтальной единичной силы, приложенной в уровне верха колонн, с учетом жесткости стены в соответствии с указанием
п. 4.25:
| | ИС МЕГАНОРМ: примечание. Формула дана в соответствии с официальным текстом документа. | |
Определяем реакцию в уровне верха колонн от перемещения стены вместе с двумя пристенными колоннами на величину перемещения каркаса здания (
рис. 99, б)

.
Определяем изгибающий момент и поперечную силу в составном сечении (стена + две пристенные колонны) на расстоянии h = 4,8 м от верха колонны: M = 6,82·4,8 = 32,7 т·м; Q = 6,82 т.
При распределении усилий (
M и
Q) между стеной и пристенными колоннами пропорционально их жесткостям, часть усилий, приходящихся на стену, составляет:

;

.
То же, на 1 м стены

;

.
3. Определяем расчетные усилия в стене.
При изгибе стены вдоль оси x расчетный изгибающий момент и поперечная сила равны: MSx = 0,15 т·м; QSx = 0,21 т.
| | ИС МЕГАНОРМ: примечание. Формула дана в соответствии с официальным текстом документа. | |
При изгибе стены вдоль оси
y расчетный изгибающий момент в стене равен максимальному суммарному моменту, возникающему в сечении стены (на отметке 1,20) от перемещения ее вместе с каркасом и от действия местной сейсмической нагрузки

.
Поперечная сила в том же сечении

.
Нормальная сила в том же сечении от собственного веса стены и вертикальной сейсмической нагрузки, которая при расчетной сейсмичности 9 баллов принимается равной 30% собственного веса стены, определяется по формуле N = (Nс + Nа.п)1,3;
где Nс - расчетный вес кладки стены;
Nа.п - расчетный вес антисейсмического пояса.
N = (0,685·5,7 + 2,5·0,6·0,38)1,1·0,9·1,3 = 5,76 т.
4. Рассчитываем стену на прочность.
а) Расчет на внецентренное сжатие
M = 1,60 т·м;
N = 5,76 т.

.
| | ИС МЕГАНОРМ: примечание. Взамен СНиП II-В.2-62 Госстроем СССР от 16.09.1971 с 1 июля 1972 года введены в действие СНиП II-В.2-71. | |
Так как e0 > 0,95y = 0,95·19 = 18 см, то в соответствии с п. 4.10 главы СНиП II-В.2-62* сечение необходимо армировать продольной арматурой.
Продольную арматуру Fа + F'а = 3,14 см2 располагаем в вертикальных швах кладки согласно рис. 100.
Рис. 100. Схема к расчету стены на прочность
при действии сейсмических нагрузок в направлении,
перпендикулярном ее плоскости
Расчет производим по формуле (62)
<*> 
.
При этом положение нейтральной оси определяем из уравнения (63)
<*> 
,
где

.
Площадь сжатой арматуры F'а в расчете не учитывается.

;
x2 + 17,9
x - 250 = 0.
Решая уравнение, получаем x = 9,2 см.
Коэффициент продольного изгиба согласно табл. 17
<*> при гибкости

и упругой характеристике кладки

будет равен

: 0,78(1,25·13·100·9,2 - 1900·3,14) = 7000 кг > 5760 кг.
Следовательно, прочность сечения обеспечена.
б) Расчет на главные растягивающие напряжения
Расчет стены на главные растягивающие напряжения выполняются в соответствии с указаниями п. 9.15
<*>.
Определяем расчетное сопротивление скалыванию кладки

,
где
Rгл - расчетное сопротивление кладки главным растягивающим напряжением при изгибе;

.
По табл. 10
<*> Rгл = 1,2 кг/см
2.
Так как
e0 > 0,45
y = 0,45·19 = 8,55 см, то при расчете на главные растягивающие напряжения принимаем площадь сечения
F =
Fс, где
Fс =
bx - площадь сжатой зоны сечения;

. Тогда

.
Условие прочности проверяем по формуле (118)
<*> 
, т.е. прочность сечения по главным растягивающим напряжениям обеспечена.
--------------------------------
| | ИС МЕГАНОРМ: примечание. Взамен СНиП II-В.2-62 Госстроем СССР от 16.09.1971 с 1 июля 1972 года введены в действие СНиП II-В.2-71. | |
<*> Глава СНиП II-В.2-62* "Каменные и армокаменные конструкции. Нормы проектирования".
в) Расчет на изгиб в горизонтальной плоскости
MSx = 0,15 т·м (см.
рис. 99, а);
QSx = 0,21 т.
При этом прочность кладки по изгибающему моменту проверяется по формуле (22)
<*>:
M <=
Rр.иW,
где Rр.и - расчетное сопротивление кладки растяжению при изгибе; в соответствии с табл. 10 Rр.и = 2 кг/см2 = 20 т/м2;
W - момент сопротивления сечения кладки:

; 20·0,024 = 0,48 т·м > 0,15 т·м.
--------------------------------
<*> Глава СНиП II-В.2-62*.
Прочность кладки обеспечена.
Расчет по поперечной силе выполняется по формуле (23) главы СНиП II-В.2-62* Q <= Rглbz,
где Rгл - расчетное сопротивление кладки главным растягивающим напряжениям при изгибе: Rгл = 12 т/м2;
b - ширина сечения: b = 1 м;
z - плечо внутренней пары сил:

; 12·1·0,25 = 3 т > 0,21 т, т.е. прочность кладки обеспечена.
Б. Расчет междуоконного простенка
Так как междуоконные простенки крепятся к колоннам каркаса анкерами с шагом 1,2 м, то расчет простенков на местную сейсмическую нагрузку от собственного веса стены не производим (ввиду незначительных усилий, возникающих в стене при пролете, равном 1,2 м).
Расчет на усилия, возникающие в простенке от перемещения его вместе с каркасом, выполняем аналогично расчету глухого участка стены (см.
п. 2 и
4 настоящего примера).
5. Определяем усилие в простенке от перемещения его вместе с каркасом.

;
EбJк = 5,65·10
3 т·м
2; 0,4
EJс +
EбJк = 0,4·3,25·10
3 + 5,65·10
3 = 6,95·10
3 т·м
2;
EJс +
EбJк = 3,25·10
3 + 5,65·10
3 = 8,9·10
3 т·м
2;

;
(рис. 101);

;
Mс = 1,17·4,8 = 5,6 т·м;

;

;

.
| | ИС МЕГАНОРМ: примечание. Текст дан в соответствии с официальным текстом документа. | |
Рис. 101. Схемы к определению усилий в простенке
от помещения его вместе с каркасом в направлении,
перпендикулярном плоскости стены
А - расчетная схема; 1 - антисейсмический пояс
6. Рассчитываем простенок на прочность.
а) Расчет на внецентренное сжатие

;

;

;
e0 > 0,95
y = 0,95·0,19 = 18 см;
Fа +
F'
а = 3,14 см
2;

;

;
x2 + 8,6
x - 214 = 0;
x = 11,8 см;

;

; 1,25·13·100·11,8 - 1900·3,14 = 13130 кг > 8050 кг.
б) Расчет на главные растягивающие напряжения
| | ИС МЕГАНОРМ: примечание. Взамен СНиП II-В.2-62 Госстроем СССР от 16.09.1971 с 1 июля 1972 года введены в действие СНиП II-В.2-71. | |

;
Rгл = 1,2 кг/см
2 (см. табл. 10 главы СНиП II-В.2-62*);

;

.
2. Расчет стены на действие сейсмических
нагрузок в ее плоскости
Расчетная сейсмическая нагрузка, действующая на стену в уровне середины надоконного горизонтального пояса, вычисляется по
формуле (3), где нагрузка
Qк равна собственному весу всей самонесущей стены, расположенной выше горизонтальной оси оконных проемов, а произведение
(п. 4.19);
Q = [0,685(1,5·60 + 2,1·7,5·2 + 2,1·3,7) + 2,5·0,6·60·0,38 + 0,05·2,1·3·8]1,1·0,9 = 149 т;

.
Так как отношение высоты простенков и глухих участков к их ширине

, то сейсмическую нагрузку распределяем между глухими участками и простенками по
формуле (28).
Для глухого участка стены

.
Для простенка

.
А. Расчет глухого (без проемов) участка стены
7. Определяем усилие в стене.
Согласно указанию
п. 4.21 глухой участок стены рассматриваем как консоль, нагруженную сосредоточенной горизонтальной сейсмической нагрузкой на уровне середины надоконного горизонтального пояса стены и нормальной силой от собственного веса стены и вертикальной сейсмической нагрузки (
рис. 102, а).
Рис. 102. Схемы к определению усилий в глухом участке
стены (а) и в простенке (б) при расчете их
на сейсмические силы, действующие в плоскости стены
1 - антисейсмический пояс; 2 - ось проемов
Расчетные усилия в глухом участке стены (на отметке 1,20 м) равны: M = 9,4·5,25 = 49,3 т·м; Q = 9,4 т; N = [0,685(7,5·4,2 + 9·1,5) + 2,5·0,6·0,38·9]1,1·0,9·1,3 = 46,2 т.
8. Рассчитываем стены на прочность.
а) Расчет на внецентренное сжатие
| | ИС МЕГАНОРМ: примечание. Взамен СНиП II-В.2-62 Госстроем СССР от 16.09.1971 с 1 июля 1972 года введены в действие СНиП II-В.2-71. | |

, так как
e0 < 0,95
y = 0,95·375 = 357 см, то согласно п. 4.10 главы СНиП II-В.2-62* прочность армокаменных сечений глухого участка стены обеспечена.
б) Расчет на главные растягивающие напряжения
e0 = 0,45
y = 0,45·375 = 169 см;

;
Rгл = 1,2 кгс/см
2 (см. табл. 10 главы СНиП II-В.2-62*);

;

.
Б. Расчет междуоконного простенка
9. Определяем усилия в простенке и горизонтальных поясах кладки.
Расчетная схема междуоконного простенка изображена на
рис. 102, б.
| | ИС МЕГАНОРМ: примечание. В официальном тексте документа, видимо, допущена опечатка: рисунок 109 отсутствует. | |
Согласно указанию
п. 4.21 расчетные усилия в простенке и горизонтальных поясах от действия сейсмической нагрузки определяем исходя из допущения, что нулевые точки моментов располагаются по вертикали в середине расстояния между осями горизонтальных поясов, а по горизонтали симметрично относительно вертикальных осей проемов. Эпюры изгибающих моментов изображены на рис. 109, б.
Расчетные усилия в сечениях простенка:
на уровне верхней грани проемов (отметка 5,4 м): M = 7,4 т·м; Q = 3,74 т; N = (0,685·6·1,5 + 2,5·0,6·6·0,38)1,1·0,9·1,3 = 12,3 т;
на уровне нижней грани проемов (отметка 1,2 м): M = 8,4 т·м; Q = 4,25 т; N = [0,685(6·1,5 + 3·4,2) + 2,5·6·0,6·0,38 + 0,05·3·4,2]·1,1·0,9·1,3 = 24,2 т.
Прочность простенка, проверенная на расчетные усилия, действующие из плоскости стены, достаточна и для восприятия сейсмических нагрузок, действующих в плоскости стены. Поэтому последний расчет на прочность в данном примере не приводим.
3. Расчет стены на центральное сжатие в месте
опирания ее на фундаментную балку
Расчетная нормальная сила на 1 м стены N = (0,685·6,9 + 2,5·0,6·0,38)1,1·0,9·1,3 = 6,8 т.
В соответствии с указанием
п. 4.25 в месте опирания стены на фундаментную балку прочность кладки должна быть проверена по формуле

,
где R - расчетное сопротивление сжатию кладки R = 13 кг/см2;
F - площадь 1 м сечения кладки:
F = 38·100 = 3800 см
2;

.
Следовательно, прочность кладки обеспечена.