Главная // Актуальные документы // ПротоколСПРАВКА
Источник публикации
М., 2023
Примечание к документу
Текст документа приведен в соответствии с публикацией на сайте https://ki-rf.ru/standart/ по состоянию на 17.04.2023.
Название документа
"СТО 11468812.007-2023. Типовой стандарт осуществления кадастровой деятельности. Описание характеристик объектов недвижимости. Характеристики помещений"
(утв. и введен в действие Протоколом Президиума Ассоциации "Национальная палата кадастровых инженеров" от 29.03.2023 N 03/23)
"СТО 11468812.007-2023. Типовой стандарт осуществления кадастровой деятельности. Описание характеристик объектов недвижимости. Характеристики помещений"
(утв. и введен в действие Протоколом Президиума Ассоциации "Национальная палата кадастровых инженеров" от 29.03.2023 N 03/23)
Утвержден и введен в действие
Протоколом Президиума Ассоциации
"Национальное объединение
саморегулируемых организаций
кадастровых инженеров"
от 29 марта 2023 г. N 03/23
ТИПОВОЙ СТАНДАРТ
ОСУЩЕСТВЛЕНИЯ КАДАСТРОВОЙ ДЕЯТЕЛЬНОСТИ
ОПИСАНИЕ ХАРАКТЕРИСТИК ОБЪЕКТОВ НЕДВИЖИМОСТИ
ХАРАКТЕРИСТИКИ ПОМЕЩЕНИЙ
СТО 11468812.007-2023
Цели и принципы стандартизации в Российской Федерации установлены Федеральным
законом от 29 июня 2015 года N 162-ФЗ "О стандартизации в Российской Федерации", а правила применения стандарта организации -
ГОСТ Р 1.4-2004 "Стандартизация в Российской Федерации. Стандарты организаций. Общие положения".
Настоящий стандарт устанавливает основные правила определения (установления) характеристик помещений при подготовке технических планов в рамках осуществления кадастровой деятельности.
1. РАЗРАБОТАН Ассоциацией "Национальное объединение саморегулируемых организаций кадастровых инженеров".
2. ВНЕСЕН Образовательно-методической коллегией Ассоциации "Национальное объединение саморегулируемых организаций кадастровых инженеров".
3. УТВЕРЖДЕН И ВВЕДЕН В ДЕЙСТВИЕ Решением Президиума Ассоциации "Национальное объединение саморегулируемых организаций кадастровых инженеров" (Протокол N 03/23 от 29.03.2023).
4. ВВЕДЕН ВПЕРВЫЕ.
5. Информация о введении в действие настоящего стандарта, об изменениях к нему и прекращении действия публикуется на официальном сайте разработчика в информационно-телекоммуникационной сети "Интернет".
1.1. Типовой стандарт осуществления кадастровой деятельности "Описание характеристик объектов недвижимости. Характеристики помещений" (далее - Стандарт) разработан в соответствии с требованиями Федерального
закона от 29 июня 2015 года N 162-ФЗ "О стандартизации в Российской Федерации". Настоящий стандарт является корпоративным нормативным техническим документом, устанавливающим правила определения (установления) характеристик помещений, а также их отражения в технических планах в рамках осуществления кадастровой деятельности.
1.2. Требования настоящего Стандарта применяются при проведении кадастровых работ в отношении помещений, а также зданий и сооружений в случаях, когда требуется одновременное описание расположенных в них помещений.
1.3. Описание правил определения (установления) характеристик помещений, а также их отражения в технических планах в рамках осуществления кадастровой деятельности осуществлено на базе существующей нормативной, правовой и технической базы.
1.4. Стандарт подлежит обязательному применению саморегулируемыми организациями кадастровых инженеров при разработке собственных стандартов осуществления кадастровой деятельности, реализации иных предусмотренных законом функций и непосредственно кадастровыми инженерами при осуществлении кадастровой деятельности. Последовательность, достаточность и особенности совершения кадастровым инженером действий в соответствии со Стандартом определяются, в том числе, конкретными обстоятельствами, условиями проведения кадастровых работ и свойствами (характеристиками) объекта недвижимости.
1.5. Решения об утверждении настоящего Стандарта, внесении в него изменений и прекращении его действия принимаются постоянно действующим коллегиальным органом управления Ассоциации "Национального объединения саморегулируемых организаций кадастровых инженеров".
2.1.
СП 4.13130.2013. Свод правил. Системы противопожарной защиты. Ограничение распространения пожара на объектах защиты. Требования к объемно-планировочным и конструктивным решениям, утвержденный Приказом МЧС России от 24.04.2013 N 288;
2.2.
СП 17.13330.2017. Свод правил. Кровли. Актуализированная редакция СНиП II-26-76, утвержденный приказом Минстроя России от 31.05.2017 г. N 827/пр;
2.3.
СП 53.13330.2019. Свод правил. Планировка и застройка территории ведения гражданами садоводства. Здания и сооружения (СНиП 30-02-97. Планировка и застройка территорий садоводческих (дачных) объединений граждан, здания и сооружения), утвержденный и введенный в действие Приказом Минстроя России от 14.10.2019 N 618/пр;
2.4.
СП 54.13330.2022 "СНиП 31-01-2003. Здания жилые многоквартирные", утвержденный Приказом Минстроя России от 13.05.2022 N 361/пр;
2.5.
СП 55.13330.2016 "СНиП 31-02-2001. Дома жилые одноквартирные", утвержденный Приказом Минстроя России от 20.10.2016 N 725/пр;
2.6.
СП 56.13330.2021 "СНиП 31-03-2001. Производственные здания", утвержденный Приказом Минстроя России от 27.12.2021 N 1024/пр;
2.7.
СП 118.13330.2022 "СНиП 31-06-2009. Общественные здания и сооружения", утвержденный приказом Минстроя России от 19.05.2022 г. N 389/пр;
2.8.
СТО 11468812.005-2022. Типовой стандарт осуществления кадастровой деятельности "Описание характеристик объектов недвижимости. Характеристики жилых зданий", утвержденный Президиумом Ассоциации "Национальное объединение саморегулируемых организаций кадастровых инженеров" (протокол N 04/22 от 12.05.2022).
2.9. СТО 11468812.006-2022. Типовой стандарт осуществления кадастровой деятельности "Описание характеристик объектов недвижимости. Характеристики нежилых зданий", утвержденный Президиумом Ассоциации "Национальное объединение саморегулируемых организаций кадастровых инженеров" (протокол N 08/22 от 30.09.2022).
3. Термины, определения и сокращения
3.1. Термины и определения <1>
--------------------------------
<1> В настоящем Стандарте, в том числе в
разделе "3.1. Термины и определения", в отношении одних и тех же терминов могут применяться различные определения, что обусловлено наличием в действующей системе нормативно-правовых актов и СНиПов различных определений терминов, в том числе применительно к зданиям разного функционального назначения (жилых, общественных, производственных и т.д.).
3.1.1. абрис: сделанный от руки внемасштабный, но с соблюдением пропорций, чертеж с обозначением в нем данных, необходимых для составления поэтажного плана здания, сооружения, на котором будет изображено местоположение помещения (помещений).
3.1.2.
антресоль (в МКД): площадка, на и под которую предусмотрен доступ людей, в помещении высотой, обеспечивающей ее безопасную эксплуатацию, площадью не более 40% площади помещения, в котором она сооружается <2>. Примечание - не является этажом. антресоль (для общественных зданий): доступная площадка в объеме двусветного помещения, открытая в это помещение, или расположенная в пределах этажа с повышенной высотой, размером менее 40% площади помещения, в котором она находится <3>. Антресоль не является этажом. Примечание - На антресоли могут размещаться помещения. антресоль (для производственных зданий): площадка внутри здания, на которой размещены помещения различного назначения (производственные, административно-бытовые или для инженерного оборудования). |
--------------------------------
<2> В случае, если площадка занимает площадь более 40% площади помещения, в котором она находится, то отнесение данной площадки к понятию "этаж здания" осуществляется с учетом проектной документации и (или) определений, отраженных в
СП 54.13330.2022.
<3> В случае, если площадка занимает площадь более 40% площади помещения, в котором она находится, то отнесение данной площадки к понятию "этаж здания" осуществляется с учетом проектной документации и (или) определений, отраженных в
СП 118.13330.2022.
3.1.3.
балкон (для жилых домов и МКД): выступающая из плоскости стены фасада огражденная площадка, может выполняться с покрытием и остеклением, имеет ограниченную глубину, взаимоувязанную с освещением помещения, к которому примыкает; балкон французский (в МКД): световой проем, в который установлен балконный блок с внешним визуально проницаемым защитным ограждением. Примечание - Наружная площадка не предусматривается, нижняя грань проема, образованная в пределах толщины стены с наружной стороны от коробки балконного блока, шириной менее 0,6 м, эксплуатируемой площадкой не является. балкон (для общественных зданий): открытый планировочный элемент здания, огороженная площадка, выступающая из плоскости наружной стены, доступ на которую осуществляется из помещений общественного здания. Примечание - Может выполняться с покрытием и остеклением. балкон внутренний (для общественных зданий): открытый планировочный элемент здания, огороженная площадка, выступающая из плоскости внутренней стены. |
3.1.4.
веранда: застекленное неотапливаемое помещение, пристроенное к зданию, встроенное в него или встроенно-пристроенное, не имеющее ограничения по глубине, может устраиваться на перекрытии нижерасположенного этажа; веранда (в МКД): застекленное сезонное неотапливаемое помещение, пристроенное к зданию, встроенное в него или встроенно-пристроенное, не имеющее ограничения по глубине, может устраиваться на перекрытии нижерасположенного этажа. |
3.1.5.
душевая (в МКД): санитарно-гигиеническое помещение, оборудованное душем (душевой кабиной) и раковиной. |
3.1.6.
квартира - структурно обособленное помещение в многоквартирном доме, обеспечивающее возможность прямого доступа к помещениям общего пользования в таком доме и состоящее из одной или нескольких комнат, а также помещений вспомогательного использования, предназначенных для удовлетворения гражданами бытовых и иных нужд, связанных с их проживанием в таком обособленном помещении. |
3.1.7.
комната: часть жилого дома или квартиры, предназначенная для использования в качестве места непосредственного проживания граждан в жилом доме или квартире. |
3.1.8.
комната ванная (в МКД): вспомогательное санитарно-гигиеническое помещение, оборудованное ванной (душевой кабиной) и раковиной (умывальником). |
3.1.9.
комната жилая (в МКД): часть квартиры, предназначенная для использования в качестве места непосредственного проживания граждан. |
3.1.10.
кухня (в МКД): вспомогательное помещение с обеденной зоной, а также местом для размещения кухонного оборудования для приготовления пищи, мойки, хранения посуды и инвентаря; кухня-столовая (в МКД): вспомогательное помещение с обеденной зоной для единовременного приема пищи всеми членами семьи, а также с местом для размещения кухонного оборудования для приготовления пищи, мойки, хранения посуды и инвентаря. |
3.1.11.
крыльцо (для жилых домов): открытая площадка, примыкающая к наружным ограждающим конструкциям непосредственно перед входом в дом, при необходимости оборудованная лестницей, пандусом и покрытием. |
3.1.12.
лестница (для общественных зданий): функциональный и конструктивный строительный элемент, обеспечивающий вертикальные связи между этажами здания. Примечание - Типы лестниц см. в Федеральном законе от 22 июля 2008 г. N 123-ФЗ "Технический регламент о требованиях пожарной безопасности". |
3.1.13.
лестничная клетка (для общественных зданий): ограниченное стенами, перекрытиями, покрытием пространство внутри здания, сооружения (или пристроенное), предназначенное для размещения лестничных площадок и лестничных маршей. Примечание - Типы лестничных клеток см. в Федеральном законе от 22 июля 2008 г. N 123-ФЗ "Технический регламент о требованиях пожарной безопасности". лестничная клетка (в МКД): помещение общего пользования с размещением лестничных площадок и лестничных маршей, предназначенное для обеспечения связи между этажами здания, а также между этажами здания и выходом наружу. |
3.1.14.
лестничный марш (для общественных зданий): наклонная конструкция, соединяющая горизонтальные площадки на разных уровнях, состоящая, как правило, из косоуров с непрерывным рядом ступеней сверху. |
3.1.15.
лифтовый холл (для общественных зданий): помещение перед входом в лифт (лифты). |
3.1.16.
лоджия (в жилом доме, общественном здании): помещение, встроенное в здание или пристроенное к нему, имеющее стены с трех сторон (или с двух при угловом расположении) на всю высоту этажа и ограждение с открытой стороны, может выполняться с покрытием и остеклением, имеет ограниченную глубину, взаимоувязанную с освещением помещения, к которому примыкает; лоджия (в МКД): вспомогательное неотапливаемое помещение, встроенное в здание или пристроенное к нему, имеющее стены с трех сторон (или с двух сторон при угловом расположении) на всю высоту этажа, ограждение с открытой стороны (сторон) и ограниченную глубину, взаимоувязанную с освещением помещения, к которому примыкает; может выполняться с покрытием и остеклением. |
3.1.17.
остекление панорамное: Светопрозрачные конструкции с общей габаритной высотой, равной высоте помещения в чистоте, и общей габаритной шириной, равной ширине помещения, включая выступающие несущие конструкции здания: пилоны, балки или ригели под потолком или над полом. |
3.1.18.
помещение - обособленная часть здания или сооружения, пригодная для постоянного проживания граждан (жилое помещение) либо для других целей, не связанных с проживанием граждан (нежилое помещение), и подходящая для использования в соответствующих целях. |
3.1.19.
помещение жилое - обособленная часть здания, пригодная для постоянного проживания граждан и подходящая для использования в соответствующих целях; помещение жилое - изолированное помещение, которое является недвижимым имуществом и пригодно для постоянного проживания граждан (отвечает установленным санитарным и техническим правилам и нормам, иным требованиям законодательства). |
3.1.20.
помещение нежилое - обособленная часть здания или сооружения, пригодная для других целей, не связанных с проживанием граждан и подходящая для использования в соответствующих целях. |
3.1.21.
помещение вспомогательное (в жилом доме): помещение для обеспечения коммуникационных, санитарных, технических и хозяйственно-бытовых нужд. Пример - кухня или кухня-ниша, передняя, ванная комната или душевая, уборная или совмещенный санузел, кладовая или хозяйственный встроенный шкаф, постирочная, помещение теплогенераторной и т.п. помещение вспомогательное (в МКД): помещение квартиры для обеспечения коммуникационных, санитарных, технических и хозяйственно-бытовых нужд, в том числе: кухня (или кухня-столовая), передняя, внутриквартирные холл и коридор, ванная комната или душевая, уборная, туалет или совмещенный санузел, кладовая, постирочная, помещение теплогенераторной и т.п. |
3.1.22.
помещение общего имущества - помещения, предназначенные для обслуживания иных помещений в здании или сооружении, являются общим имуществом в таких здании или сооружении и не участвуют в обороте как самостоятельные недвижимые вещи, за исключением случая, предусмотренного пунктом 7 статьи 287.5 Гражданского кодекса. |
3.1.23.
помещения общего пользования (в МКД): Помещения в многоквартирном жилом здании, не являющиеся частями квартир и предназначенные для обслуживания более одного жилого и (или) нежилого помещения в этом многоквартирном жилом здании <*>. -------------------------------- <*> В том числе лестничные клетки, коридоры, лифтовые холлы, вестибюли, колясочные, технические помещения, помещения дежурного по подъезду (консьержа), мусоросборные камеры. |
3.1.24.
помещение техническое (в МКД): помещение, предназначенное для технического обслуживания внутридомовых инженерных систем, с доступом специалистов служб эксплуатации и служб безопасности и спасения в экстренных случаях. |
3.1.25.
тамбур: проходное пространство между дверями при входе в здание, лестничную клетку или другие помещения, служащее для защиты от проникания холодного воздуха и запахов, а также (тамбур-шлюз) горючих газов, паров, пылей и опасных факторов пожара. |
3.1.26.
терраса: огражденная открытая (без устройства остекления) площадка, пристроенная к зданию, встроенная в него или встроенно-пристроенная, не имеющая ограничения по глубине, может иметь покрытие и устраиваться на кровле нижерасположенного этажа; |
3.1.27.
туалет (в МКД): вспомогательное санитарно-гигиеническое помещение, оборудованное унитазом со смывным бачком. |
3.1.28.
уборная (в МКД): вспомогательное санитарно-гигиеническое помещение, оборудованное унитазом со смывным бачком и умывальником. |
3.1.29.
узел лестнично-лифтовой: помещение лестничной клетки с шахтой (шахтами) лифта (лифтов), допускается с размещением: лифтового холла (холлов), пожаробезопасной зоны для МГН, мусоропровода. |
3.1.30.
эксплуатируемая кровля - специально оборудованная защитным слоем кровля, предназначенная для использования, например в качестве зоны для отдыха, размещения спортивных площадок, автостоянок, автомобильных дорог, транспорта над подземными паркингами и т.п. и предусмотренная для пребывания людей, не связанных с периодическим обслуживанием инженерных систем здания. |
3.2. В настоящем стандарте применены следующие сокращения:
3.2.1. Закон N 218-ФЗ | - Федеральный закон от 13.07.2015 N 218-ФЗ "О государственной регистрации недвижимости"; |
3.2.2. ГКУ | - государственный кадастровый учет; |
3.2.3. ЕГРОКН | - единый государственный реестр объектов культурного наследия (памятников истории и культуры) народов Российской Федерации; |
3.2.4. МКД | - многоквартирный дом; |
3.2.5. СКП | - средняя квадратическая погрешность; |
3.2.6. ФИАС | - Федеральная информационная адресная система; |
3.2.7. ЕГРН | - Единый государственный реестр недвижимости. |
4. Работы по определению характеристик помещения
4.1. Определение характеристик помещения (помещений) осуществляется в рамках проведения кадастровых работ по подготовке технического плана помещения или технического плана здания, сооружения с одновременным описанием расположенных в нем помещений.
4.2. При проведении кадастровых работ в отношении помещения, не прошедшего государственный кадастровый учет, кадастровому инженеру надлежит определить полный набор характеристик такого объекта, позволяющих описать его в качестве индивидуально-определенного объекта недвижимости. В исключительной компетенции кадастрового инженера находится определение площадных характеристик объекта недвижимости и пространственное описание местоположения его границ (в том числе его частей). Определение остальных характеристик объекта недвижимости осуществляется кадастровым инженером путем использования сведений документов, изданных органами государственной власти, органами местного самоуправления, проектными и иными организациями, а также предоставленными заказчиками кадастровых работ (см.
раздел 5 настоящего Стандарта).
4.3. При проведении кадастровых работ в отношении помещения, прошедшего государственный кадастровый учет, кадастровому инженеру надлежит определить площадные характеристики объекта недвижимости и (или) пространственное описание местоположения его границ (при необходимости указать кадастровый номер здания, сооружения, в границах которого расположено такое помещение. В некоторых случаях допускается дополнительно в техническом плане приводить иные характеристики объекта недвижимости, содержащие новые для внесения в ЕГРН сведения, при наличии подтверждающих такое изменение документов (например, номер этажа, на котором расположено помещение после проведенной перепланировки или реконструкции здания).
4.4. Полученные кадастровым инженером в ходе проведения кадастровых работ характеристики помещения (помещений) отражаются в техническом плане.
4.5. Работы по определению характеристик помещений подразделяются на камеральные и полевые.
4.6. В зависимости от задания на проведение кадастровых работ в рамках осуществления полевых работ в отношении помещений проводятся следующие виды работ:
1) проведение линейных обмеров помещений и составление абриса;
2) сличение при обследовании помещений сведений существующей документации на здание, сооружение, в котором расположены помещения, или документации, содержащей сведения непосредственно о самих помещениях, с их фактическим состоянием (например, при перепланировке) в объеме, необходимом для подготовки технического плана.
4.7. В зависимости от задания на проведение кадастровых работ, в рамках осуществления камеральных работ, в отношении помещений могут проводиться следующие виды работ:
1) определение характеристик помещений из документов, служащих основанием для подготовки технического плана (см.
раздел 5 настоящего Стандарта);
2) составление поэтажного плана (или поэтажных планов) здания, сооружения, в котором расположено помещение (или фрагмента такого плана), на основании полученных измерений;
3) определение площади помещения с вычислением СКП;
4) отражение характеристик помещения в техническом плане.
5. Документы - основания для указания характеристик помещения и подготовки технического плана
5.1. В качестве обязательных исходных данных при проведении кадастровых работ по подготовке технического плана выступают сведения ЕГРН.
5.2. Использование сведений ЕГРН об определенных объектах недвижимости зависит от задания на проведение кадастровых работ и условий их осуществления.
5.3. В общих случаях в целях описания характеристик помещения в техническом плане используются следующие сведения ЕГРН:
1) выписка из ЕГРН о здании или сооружении в случае, если работы проводятся в отношении подлежащего первичному государственному кадастровому учету помещения (помещений), расположенного (расположенных) в таком здании, сооружении. Исключение составляет случай, если кадастровые работы проводятся в отношении помещения в введенном в эксплуатацию до 13.07.2015 МКД, сведения о котором отсутствуют в ЕГРН и до 01.01.2017 осуществлен государственный кадастровый учет хотя бы одного помещения или машино-места в таком МКД.
[7, статья 70, часть 15]
2) выписка из ЕГРН о помещении (помещениях), в случае если кадастровые работы проводятся в связи с:
- изменением характеристик помещений в результате перепланировки;
- изменением границ помещений, образованием новых помещений из существующих помещений (за исключением случая образования помещений или изменения их границ в результате реконструкции здания, сооружения);
- исправлением реестровой ошибки, исполнением судебного акта и иных случаях.
5.4. Документы, на основании которых готовится технический план, используются кадастровым инженером для указания характеристик помещений, за исключением площади и местоположения границ помещений в здании или сооружении.
В случае если сведения о помещении вносятся в технический план одновременно с проведением кадастровых работ в отношении здания или сооружения, в котором оно расположено, то характеристики помещения указываются на основании документов, служащих основанием для подготовки технического плана здания или сооружения (проектная, разрешительная, техническая документация на здание, сооружение и т.д.).
В случае необходимости внесения изменений в сведения ЕГРН о помещении (помещениях) в результате проведенной перепланировки, реконструкции, характеристики помещения (помещений) указываются в соответствии с документами, подтверждающими проведение указанных работ (проект перепланировки, акт приемочной комиссии, подтверждающий завершение перепланировки и т.д.). Полный перечень документов-оснований для указания в техническом плане характеристик помещений в зависимости от условий проведений кадастровых работ и задания заказчика приведены в
Таблице 1.
Таблица 1
Документы - основания для указания
в техническом плане характеристик помещения
N п/п | Документы-основания для подготовки технического плана | Особенности использования |
Общие случаи |
1. | 1) проектная документация на здание, сооружение, в котором расположены помещения; 2) разрешение на строительство (в случае, если требуется получение такого разрешения) | если подготовка технического плана осуществляется в целях: 1) ввода в эксплуатацию МКД; 2) ввода в эксплуатацию нежилого здания, сооружения и последующего проведения его государственного кадастрового учета с расположенными внутри него помещениями |
2. | 1) разрешение на ввод здания или сооружения, в котором расположено (расположены) помещение (помещения), в эксплуатацию; 2) проектная документация здания или сооружения, в котором расположено (расположены) помещение (помещения); 3) разрешение на строительство | если подготовка технического плана осуществляется в целях государственного кадастрового учета: 1) здания, сооружения, введенных в эксплуатацию до 13.07.2015 года, и одновременного учета всех расположенных в них помещений; 2) расположенных в МКД помещений, относящихся к общему имуществу, одновременно с ГКУ МКД. При этом МКД должен соответствовать одновременно следующим условиям: - МКД введен в эксплуатацию до 13.07.2015; - МКД не внесен в ЕГРН, однако до 01.01.2017 учтено в ЕГРН хотя бы одно помещение (или машино-место) |
3. | 1) разрешение на ввод здания или сооружения, в котором расположено (расположены) помещение (помещения), в эксплуатацию; 2) проектная документация здания или сооружения, в котором расположено (расположены) помещение (помещения) | если подготовка технического плана осуществляется в целях государственного кадастрового учета: 1) всех помещений в здании, сооружении, по заявлению собственника здания или сооружения, право собственности на которые зарегистрировано в ЕГРН; 2) всех помещений в здании, сооружении (при отсутствии государственной регистрации права собственности на нежилое здание, сооружение, государственный кадастровый учет которых осуществлен до 1 января 2017 года), по заявлению застройщика или лица, уполномоченного собственниками указанных помещений, лицами, права которых на данные помещения возникают, в том числе участниками долевого строительства; [7, статья 70, часть 2.1]3) расположенных в МКД помещений, относящихся к общему имуществу, одновременно с ГКУ МКД. При этом должно выполняться следующее условие: - учет в ЕГРН МКД осуществлен без ГКУ помещений или машино-мест в нем |
4. | 1) технический паспорт помещения, изготовленный до 1 января 2013 года или 2) технический паспорт здания или сооружения, в котором расположено помещение, изготовленный до 1 января 2013 года и (или) 3) утвержденный акт о приемке в эксплуатацию здания или сооружения, выданный до вступления в силу Градостроительного кодекса | в случае отсутствия разрешения на ввод здания или сооружения в эксплуатацию, в которых расположено помещение - объект кадастровых работ, а также проектной документации таких объектов недвижимости |
5. | 1) проект перепланировки; 2) акт приемочной комиссии, подтверждающий завершение перепланировки | В случае перепланировки помещения, когда в соответствии с требованиями законодательства требуется получение разрешительных документов |
6. | 1) декларация об объекте недвижимости; 2) иные документы, предусмотренные федеральными законами, например: - копия договора участия в долевом строительстве, содержащего описание помещения; акт приема-передачи объекта долевого строительства - помещения, расположенного во введенном в эксплуатацию здании, сооружении | При подготовке технического плана помещения в случае, предусмотренном частью 15 статьи 70 Закона N 218-ФЗ (в том числе при отсутствии проектной документации здания или сооружения, в которых расположено помещение, машино-место): 1) ГКУ и (или) ГРП на помещение (помещения) в МКД могут осуществляться при отсутствии в ЕГРН сведений о таком МКД в случае, если до 01.01.2017 был осуществлен ГКУ хотя бы одного жилого или нежилого помещения либо машино-места, расположенных в таком МКД; 2) если ГКУ такого МКД был осуществлен без ГКУ помещений или машино-мест в нем. Условие распространяется на МКД, введенные в эксплуатацию до 13.07.2015 |
7. | декларация об объекте недвижимости | если законодательством РФ не предусмотрены подготовка и (или) выдача разрешений и (или) проектной документации |
8. | 1) вступившее в законную силу решение суда, предусматривающее снос части самовольной постройки или необходимость ее реконструкции; 2) декларация об объекте недвижимости (при необходимости) | В случае, предусмотренном частью 6 статьи 58 Закона N 218-ФЗ, когда осуществляется подготовка технического плана в связи с изменением основных характеристик здания, сооружения и помещений в них |
Помещения в зданиях или сооружениях отдельных видов |
N п/п | Вид (специфика) здания, сооружения, в котором расположено помещение | Документы-основания для подготовки технического плана |
9. | Помещение расположено в здании, сооружении, построенном в дореволюционный период (законченное строительством до 1917 года) | декларация об объекте недвижимости |
10. | Помещение расположено в здании или сооружении гражданской обороны, защиты населения и территорий от чрезвычайных ситуаций природного и техногенного характера, удовлетворяющем следующим условиям: 1) здание создано до 21.01.1992; 2) отнесено к числу объектов гражданской обороны, находящихся в государственной или муниципальной собственности | декларация об объекте недвижимости (до 1 января 2025 года) |
11. | Помещение расположено в здании, сооружении, созданном до 21.01.1992 и не указанном в предыдущей строке таблицы | 1) декларация; 2) выписка из реестра государственного или муниципального имущества (при отсутствии разрешительной и проектной документации в срок до 1 января 2025 года) |
12. | Помещение расположено в здании, которое представляет собой имущество общего пользования в СНТ, ОНТ, ДНТ, созданное до 30.12.2004 | декларация об объекте недвижимости (до 1 января 2024 года) |
13. | Помещение расположено в здании - объекте культурного наследия, памятнике истории и культуры народов РФ | 1) декларация об объекте недвижимости; 2) выписка из единого государственного реестра объектов культурного наследия (памятников истории и культуры) народов РФ; 3) иные документы, содержащие сведения об объекте культурного наследия |
14. | Помещение расположено в здании, сооружении силовых структур, созданных до 31.01.1998, относящееся к: 1) имуществу ВС РФ; 2) подведомственных Минобороны РФ организаций; 3) имуществу органов ФСБ РФ | Декларация об объектах недвижимости, в том числе о земельных участках, относящихся к имуществу ВС РФ и подведомственных Минобороны РФ организаций, имуществу органов ФСБ (до 2025 года) |
15. | Помещение находится в здании, сооружении, представляющем собой объект вспомогательного использования | Один из представленных ниже документов: - проектная документация по строительству (реконструкции) основного объекта капитального строительства (при наличии в ней сведений об объекте вспомогательного использования); - проектная документация на объект вспомогательного использования; - декларация на объект недвижимости (при отсутствии проектной документации) |
16. | Помещение находится в самовольно построенном здании, сооружении, в отношении которого принято решение суда о сносе его части или реконструкции | решение суда; декларация (при необходимости). |
17. | Помещение образуется в результате преобразования исходного помещения (раздел, объединение), при этом реконструкция и перепланировка не осуществлялись (юридический раздел) | Декларация на объект недвижимости |
5.5. При необходимости в зависимости от условий проведения кадастровых работ, содержания документов, служащих основанием для подготовки технического плана, сведений ЕГРН об объекте недвижимости, по усмотрению кадастрового инженера могут быть использованы иные (дополнительные) документы для подготовки технического плана помимо тех, что указаны в
таблице 1.
6. Характеристики помещения и порядок их определения
6.1. К характеристикам помещения, определяемым в рамках проведения кадастровых работ в целях первичной постановки на государственный кадастровый учет объекта недвижимости, относятся следующие:
1) вид объекта недвижимости (в настоящем Стандарте рассматривается - помещение);
2) ранее присвоенные государственные учетные номера;
3) кадастровый номер исходного объекта недвижимости (при преобразовании помещений (объединение, раздел));
4) номер кадастрового квартала (кадастровых кварталов), в котором (которых) находится объект недвижимости;
5) кадастровый номер здания или сооружения, в котором расположено помещение;
6) кадастровый номер квартиры, в которой расположена комната;
7) адрес или местоположение;
8) назначение;
9) вид (виды) разрешенного использования;
10) наименование;
11) иные характеристики, отражающие функциональные особенности помещения (вид жилого помещения - "квартира", "комната (в квартире)", "помещение вспомогательного использования", "общее имущество в многоквартирном доме", отнесение жилого помещения к определенному виду жилых помещений специализированного жилищного фонда, к жилым помещениям наемного дома социального использования или наемного дома коммерческого использования и т.д.);
12) номер, тип этажа, на котором расположено помещение;
13) обозначение (номер) помещения на поэтажном плане;
14) площадь;
15) средняя квадратическая погрешность определения площади;
16) местоположение границ помещения.
6.2. Кадастровый номер помещения указывается в техническом плане в случае, если технический план подготовлен в результате выполнения кадастровых работ в связи с изменением характеристик помещений, подлежащих внесению в ЕГРН, в том числе в связи с исправлением ошибки, указанной в
части 3 статьи 61 Закона N 218-ФЗ.
| | ИС МЕГАНОРМ: примечание. Нумерация пунктов дана в соответствии с официальным текстом документа. | |
6.1. Требования к помещению как объекту недвижимости
6.1.1. Помещением признается обособленная часть здания или сооружения, пригодная для постоянного проживания граждан (жилое помещение) либо для других целей, не связанных с проживанием граждан (нежилое помещение), и подходящая для использования в соответствующих целях.
[1, статья 141.4, часть 1]
6.1.2. Объектом кадастровых работ может являться помещение, в том числе представляющее собой совокупность нескольких смежных изолированных и (или) обособленных комнат (помещений), которые могут располагаться на нескольких смежных этажах здания либо сооружения один над другим и имеют доступ друг к другу без использования иных помещений в таком здании либо сооружении, права на которое зарегистрированы в ЕГРН или подлежат государственной регистрации.
[11, пункт 19]
6.1.4. Нежилое помещение в здании или сооружении должно быть обособлено от других помещений и иметь возможность впоследствии быть самостоятельным предметом гражданского оборота.
[7, статья 26, пункт 34; 11, пункт 19]
6.1.5. Помещение считается обособленным, если оно отграничено от остального объема здания (сооружения) строительными конструкциями.
[7, статья 26, пункт 34; 11, пункт 19; 15, 16, 17]
6.1.6. Помещение считается изолированным, если отграничено от остального объема здания (сооружения) строительными конструкциями, имеет отдельный вход и не используется для доступа в иное помещение.
[15, 16, 17]
6.1.7. Помещения, предназначенные для обслуживания иных помещений в здании или сооружении, являются общим имуществом в таких здании или сооружении и не участвуют в обороте как самостоятельные недвижимые вещи, за исключением случая, когда общее имущество в здании или сооружении, пригодное для самостоятельного использования, может быть предоставлено в пользование третьим лицам по решению, принятому двумя третями голосов собственников помещений, машино-мест в здании или сооружении, при условии, что такое предоставление третьим лицам не нарушит охраняемые законом интересы собственников иных помещений, машино-мест в этих здании или сооружении.
[1, статья 141.4, часть 2, статья 287.5, часть 7]
6.1.8. Помещения могут быть образованы в том числе в результате:
1) раздела здания, сооружения, в которых они образуются;
2) раздела помещения;
3) объединения смежных помещений;
4) реконструкции здания, сооружения, при проведении которой образуются помещения как новые недвижимые вещи.
[1, статья 141.4, часть 3]
6.1.9. В одном здании, сооружении может быть образовано не менее двух помещений и (или) машино-мест.
[1, статья 141.4, часть 4]
6.1.10. Не допускается образование помещений:
6.1.11. При перепланировке помещений могут быть образованы иные помещения путем объединения смежных помещений или раздела помещений. В остальных случаях осуществления перепланировки помещение сохраняется как недвижимая вещь, в том числе в измененных границах.
[1, статья 141.4, часть 5]
6.1.12. При внесении в технический план сведений о нежилых помещениях, в том числе относящихся к общему имуществу собственников помещений в МКД, в технический план не подлежат внесению в качестве сведений о помещениях сведения о частях и элементах здания, не отвечающих критериям, указанным в
пункте 6.1.4 настоящего Стандарта (например, подъезд, лестничные клетки или площадки, лифтовые шахты, каналы для инженерных коммуникаций и иные подобные части и элементы здания), а также сведения об оборудовании (механическом, электрическом, санитарно-техническом и другом), расположенном в МКД или ином здании.
[11, пункт 19]
6.2. Ранее присвоенные государственные учетные номера
6.2.1. К ранее присвоенным государственным учетным номерам объекта недвижимости относятся номера, которые были присвоены в установленном законодательством Российской Федерации порядке уполномоченным органом, с учетом условий, отраженных в
пунктах 6.1.2 -
6.1.5:
1) кадастровый номер;
2) инвентарный номер;
3) условный номер.
6.2.2. Ранее присвоенный кадастровый номер в отношении помещения указывается, если он был присвоен до присвоения в соответствии с Федеральным
законом от 24.07.2007 N 221-ФЗ "О государственном кадастре недвижимости" кадастрового номера (например, органом технической инвентаризации, органом местного самоуправления и т.д.). Кадастровый номер может быть указан, например, в кадастровом паспорте, который выдавался органом технической инвентаризации, или техническом паспорте (например, 69:37:070305:0004:1\2679\02:0001\А).
6.2.3. Ранее присвоенный инвентарный номер может быть указан в техническом плане на основании технического паспорта, выданного органом технической инвентаризации до 1 января 2013 года (например, 1-2679).
6.2.4. Условный номер указывается в техническом плане, если он был присвоен при государственной регистрации права (ограничения права) на нежилое здание до 1 января 2017 года. Условный номер может быть указан в свидетельстве о государственной регистрации права (например, 03-03-02/004/2007-195).
6.2.5. При заполнении технического плана данные сведения указываются (при их наличии в соответствующих документах) в отношении ранее учтенного объекта недвижимости, сведения о котором отсутствуют в ЕГРН, в следующем объеме: ранее присвоенный государственный учетный номер, дата его присвоения, наименование органа (организации), присвоившей такой номер. Если объект имеет несколько ранее присвоенных государственных учетных номеров, указывается информация обо всех таких номерах.
Данные сведения не указываются в техническом плане при их отсутствии в документах, используемых для проведения кадастровых работ, или в случае подготовки технического плана в отношении объекта недвижимости, сведения о котором содержатся в ЕГРН.
6.3. Кадастровый номер исходного объекта недвижимости
6.3.1. В случае образования помещения (помещений) в характеристике "Кадастровый номер исходного объекта недвижимости (из которого (которых) образован объект недвижимости)" раздела "Характеристики объекта недвижимости" технического плана указывается кадастровый номер объекта недвижимости, из которого в результате реконструкции, раздела, изменения границ помещений или иного действия с исходным объектом недвижимости, в том числе путем перепланировки, был образован такой объект недвижимости.
6.4. Номер кадастрового квартала (кадастровых кварталов), в котором (которых) находится объект недвижимости
В техническом плане указывается номер кадастрового квартала, в котором фактически находится помещение. Номер кадастрового квартала, в котором помещению был присвоен кадастровый номер (при внесении сведений о нем в ЕГРН (ГКН) в качестве ранее учтенного, либо при передаче сведений о нем из органов технической инвентаризации до 1 января 2013 года) может не совпадать с номером кадастрового квартала, где фактически расположен объект недвижимости.
6.5. Кадастровый номер здания или сооружения, в котором расположено помещение
Кадастровый номер здания или сооружения, в котором расположено помещение, указывается в техническом плане в случае, если технический план подготавливается в отношении помещения, расположенного в здании или сооружении, сведения о котором содержатся в ЕГРН. Исключением является случай проведения кадастровых работ в отношении помещения (помещений) в МКД, сведения о котором отсутствуют в ЕГРН, при этом:
1) до 01.01.2017 был осуществлен государственный кадастровый учет хотя бы одного помещения либо машино-места, расположенных в таком МКД;
2) МКД введен в эксплуатацию до 13 июля 2015 года.
6.6. Кадастровый номер квартиры, в которой расположена комната (комнаты)
Кадастровый номер квартиры, в которой расположена комната (комнаты) указывается в техническом плане в случае, если объектом кадастровых работ является комната (комнаты) и в ЕГРН содержатся сведения о квартире, в которой они расположены.
[11, пункт 51, подпункт 5]
6.7. Адрес или местоположение
6.7.1. Адрес помещения указывается в техническом плане в структурированном в соответствии с федеральной информационной адресной системой (далее - ФИАС) виде. Сведения об адресе указываются на основании выписки из государственного адресного реестра об адресе объекта адресации.
6.7.2. Решение уполномоченного органа о присвоении адреса объекту адресации, принятое после 2 декабря 2014 года, не является основанием для указания в техническом плане адреса помещения.
6.7.3. В случае отсутствия в государственном адресном реестре адреса помещения, присвоенного в порядке, установленном до вступления в силу
постановления Правительства Российской Федерации от 19 ноября 2014 г. N 1221 "Об утверждении Правил присвоения, изменения и аннулирования адресов" (далее - Постановление N 1221), допускается указание адреса на основании акта уполномоченного органа государственной власти или органа местного самоуправления.
6.7.4. При отсутствии адреса помещения в государственном адресном реестре или присвоенного до вступления в силу
Постановления N 1221 указывается местоположение объекта недвижимости.
6.7.5. Местоположение приводится в структурированном в соответствии с ФИАС виде с указанием:
- слов "Российская Федерация";
- наименования субъекта Российской Федерации;
- наименование федеральной территории (при наличии);
- муниципального образования;
- населенного пункта (город, село);
- улицы (проспект, шоссе, переулок, бульвар) - при наличии;
- номера здания (сооружения);
- номера помещения, в том числе с учетом сведений, содержащихся в документах-основаниях.
6.7.6. Если здание, в котором расположено помещение, расположено в границах территории СНТ, ОНТ или ДНТ, в местоположении объекта недвижимости указывается:
1) адрес земельного участка, присвоенный в соответствии с
Постановлением N 1221;
2) при отсутствии адреса - местоположение земельного участка, в границах которого расположен такой объект недвижимости, включая:
- наименование соответствующего некоммерческого товарищества и номер земельного участка, содержащееся в проекте межевания территории, либо в утвержденном до 1 января 2018 года проекте организации и застройки СНТ, ОНТ или ДНТ, либо в ином документе, устанавливающем распределение земельных участков между членами садоводческого или огороднического некоммерческого товарищества.
6.7.7. В строке "Дополнение местоположения объекта недвижимости" указываются сведения о местоположении помещения в случае, если оно не указано в структурированном в соответствии с ФИАС виде.
6.7.8. В случае расположения здания, в котором расположено помещение, в границах СНТ, ОНТ или ДНТ и отсутствия возможности указания в строке "Местоположение объекта недвижимости" в структурированном в соответствии с ФИАС виде отдельных сведений в строке "Дополнение местоположения объекта недвижимости" указывается неструктурированная часть места нахождения земельного участка, в границах которого расположен такой объект недвижимости (включая наименование СНТ, ОНТ или ДНТ и номер земельного участка).
В случае расположения нежилого здания, в котором расположено помещение, в границах лесного участка в строке "Дополнение местоположения объекта недвижимости" указываются: наименование лесничества, номера лесных кварталов, к которым относится лесной участок, в границах которого расположены здание, сооружение, объект незавершенного строительства.
6.7.9. Для заполнения адреса (местоположения) помещения в XML-схеме технического плана необходимо руководствоваться описанием внесения адреса (местоположения) согласно пунктам 4.5 "Общих требований к заполнению технического плана в формате XML" и 5.6.4 "Описание структуры XML-схемы файла обмена". При этом необходимо правильно указывать признак, позволяющий отличить присвоенный в установленном порядке адрес объекта недвижимости и местоположение объекта недвижимости, указывая одно из значений:
0 - Местоположение объекта недвижимости;
1 - Присвоенный в установленном порядке адрес объекта недвижимости.
6.8. Назначение, вид разрешенного использования, наименование и иные функциональные характеристики
6.8.1. Назначение помещения указывается из числа предусмотренных
пунктом 9 части 5 статьи 8 Закона N 218-ФЗ на момент выполнения кадастровых работ: жилое, нежилое.
6.8.2. В отношении помещения указывается предусмотренный проектной документацией вид разрешенного использования помещения (кроме слов "квартира", "комната"), в случае отсутствия в проектной документации таких сведений о помещении или отсутствия проектной документации вид разрешенного использования помещения(й) не указывается.
[11, пункт 51, подпункт 9]
| | ИС МЕГАНОРМ: примечание. В официальном тексте документа, видимо, допущена опечатка: имеется в виду [11, пункт 51, подпункт 10], а не [10, пункт 51, подпункт 9]. | |
6.8.3. Наименование помещения указывается только в случае, если помещение является объектом культурного наследия.
[10, пункт 51, подпункт 9]
6.8.4. В отношении жилых помещений, расположенных в МКД, в техническом плане указывается вид жилого помещения "квартира", "комната (в квартире)".
[11, пункт 51, подпункт 9]
6.8.5. Если помещение предназначено для обслуживания всех остальных помещений и (или) машино-мест в здании, сооружении или помещение относится к общему имуществу в МКД, то в техническом плане указывается информация, что "помещение вспомогательного использования" или "общее имущество в многоквартирном доме".
[11, пункт 51, подпункт 22]
6.8.6. Если жилое помещение отнесено к определенному виду жилых помещений специализированного жилищного фонда, к жилым помещениям наемного дома социального использования или наемного дома коммерческого использования, в техническом плане указывается одна из следующей информации:
служебные жилые помещения;
жилые помещения в общежитиях;
жилые помещения маневренного фонда;
жилые помещения в домах системы социального обслуживания граждан;
жилые помещения фонда для временного поселения вынужденных переселенцев;
жилые помещения фонда для временного поселения лиц, признанных беженцами;
жилые помещения для социальной защиты отдельных категорий граждан;
жилые помещения для детей-сирот и детей, оставшихся без попечения родителей, лиц из числа детей-сирот и детей, оставшихся без попечения родителей.
6.9. Номер, тип этажа, на котором расположено помещение
6.9.1. В отношении помещения в техническом плане указывается информация в строке "Номер, тип этажа (этажей), на котором (которых) расположено помещение".
6.10. Обозначение (номер) помещения на поэтажном плане
В отношении помещения в техническом плане указывается информация в строке "Обозначение (номер) помещения, машино-места на поэтажном плане".
6.11.1. Площадь помещения определяется на основании натурных измерений как площадь простейшей геометрической фигуры (например, прямоугольник, трапеция, прямоугольный треугольник) или путем разбивки такого объекта на простейшие геометрические фигуры и суммирования площадей таких фигур (с округлением до 0,1 квадратного метра).
[9, Приложение 2, пункт 2]
6.11.2. Измерения для определения площади помещений рекомендуется проводить по завершении строительных, в том числе отделочных, работ. Результаты измерений отображаются в графической части технического плана.
[9, Приложение 2, пункт 2]
6.11.3. Значение площади помещения определяется в квадратных метрах с округлением до 0,1 квадратного метра, а значения измеренных расстояний, применяемые для определения площадей, - в метрах с округлением до 0,01 метра, вычисление площади производится после округления линейных измерений.
[9, Приложение 2, пункт 3]
| | ИС МЕГАНОРМ: примечание. Нумерация пунктов дана в соответствии с официальным текстом документа. | |
6.11.1. Площадь нежилого помещения
6.11.1.1. Площадь нежилого помещения определяется как сумма площадей всех частей такого помещения, рассчитанных по их размерам, измеряемым между внутренними поверхностями стен и (или) перегородок.
[9, Приложение 2, пункт 11.1]
(
Рис. 1. - площадь нежилого помещения показана желтой штриховкой).
Рис. 1. Определение площади нежилого помещения
6.11.1.2. Расстояния, применяемые для определения площади нежилого помещения, измеряются на высоте от нуля до 1,10 метра от уровня пола (при этом плинтусы, декоративные элементы, кабельные короба, системы отопления или кондиционирования воздуха не учитываются).
[9, Приложение 2, пункт 11.1]
Иными словами, измерения производятся от стены до стены, а площади, занятые такими элементами как - плинтусы, декоративные элементы, кабельные короба, системы отопления или кондиционирования воздуха, входят в площадь помещения
(рис. 2).
Рис. 2. Особенности подсчета площади помещения
при наличии напольных систем отопления
6.11.1.3. В площадь нежилого помещения включается площадь:
- лестничных площадок и ступеней, расположенных в пределах такого помещения;
- площадь наружных тамбуров, лоджий, террас (в том числе расположенных на эксплуатируемой кровле);
- веранд, балконов, галерей и иных подобных частей помещения или здания.
[9, Приложение 2, пункт 11.2]
6.11.1.4. Площадь многосветных пространств и проемов в перекрытиях нежилого помещения учитывается в нижней по отношению к такому пространству части нежилого помещения.
[9, Приложение 2, пункт 6]
6.11.1.5. Площадь нежилого помещения мансардного этажа нежилого здания, сооружения определяется в пределах высоты наклонного потолка (стены) при наклоне 30° - до 1,5 метра, при наклоне 45° - до 1,1 метра, при наклоне 60° и более - до 0,5 метра. При промежуточных значениях угла наклона высота определяется по интерполяции
(рис. 3).
[9, Приложение 2, пункт 8.6]
Рис. 3. Определение площади нежилого помещения
мансардного этажа нежилого здания
6.11.1.6. Площадь эксплуатируемой кровли, наружных галерей, веранд, террас, открытых или остекленных лоджий и балконов, а также наружных тамбуров нежилого помещения определяется в пределах внутренних поверхностей стен и ограждений без учета площади, занятой ограждением.
[9, Приложение 2, пункт 7]
Таблица 2
Учет конструктивных элементов в площади нежилого помещения
N п/п | Конструктивные элементы (части) нежилого помещения | Включение в площадь нежилого помещения |
Включаются | Не включаются |
1. | наружные тамбуры | | |
2. | балкон | | |
3. | лоджия | | |
4. | терраса, в том числе на эксплуатируемой кровле | | |
5. | веранда | | |
6. | перегородки и стены | | |
7. | лестницы - лестничные площадки и ступени, расположенные в пределах помещения | | |
8. | дверные проемы (проходы) во внутренних стенах (перегородках) | | |
9. | дверной проем наружной (входной) двери | | |
10. | антресоль |  (в случае если площадь антресоли включена в площадь помещения в соответствии с проектной документацией, а также в случае, если на ней расположены помещения) | |
11. | галерея | | |
12. | эксплуатируемая кровля | | |
13. | многосветные пространства (включая проемы) |  (в нижней части помещения) | |
14. | ниши |  в случае наличия совокупности следующих условий: - если высота ниши составляет 2 метра и более; - углубление ниши идет от поверхности пола; - площадь ниши составляет 0.1 м и более. | |
6.11.2. Площадь жилого помещения
6.11.2.1. Площадь жилого помещения (квартира, комната в квартире) состоит из суммы площадей всех частей такого помещения, рассчитанных по их размерам, измеряемым между поверхностями стен и перегородок. (
рис. 4 - площадь жилого помещения показана желтой штриховкой).
[9, Приложение 2, пункт 12.1]
Рис. 4. Определение площади жилого помещения (квартиры)
6.11.2.2. В площадь жилого помещения включается площадь помещений вспомогательного использования, предназначенных для удовлетворения гражданами бытовых и иных нужд, связанных с их проживанием в жилом помещении:
- кухонь,
- коридоров,
- ванн,
- санузлов,
- встроенных шкафов,
- кладовых,
- площадь, занятая внутриквартирной лестницей и иные.
[9, Приложение 2, пункт 12.2]
6.11.2.3. В площадь жилого помещения не включается площадь:
- балконов,
- лоджий,
- веранд,
- террас,
- эксплуатируемой кровли,
- под маршем внутриквартирной лестницы на участке с высотой от пола до низа выступающих конструкций лестницы 1,6 метра и менее
(рис. 5);
[9, Приложение 2, пункт 12.4]
- занимаемая печью, в том числе печью с камином, которые входят в отопительную систему здания и не являются декоративными.
[9, Приложение 2, пункт 12.5]
Рис. 5. Площадь лестницы, не включаемая в площадь
жилого помещения (выделена красным цветом)
6.11.2.4. Площадь многосветных пространств и проемов в перекрытиях жилого помещения учитывается в нижней по отношению к такому пространству части жилого помещения. (
п. 6 Приложения N 2 к Приказу П/0393)
6.11.2.5. Площадь жилого помещения мансардного этажа жилого здания определяется в пределах высоты наклонного потолка (стены) при наклоне до 45° - от 1,6 метра, при наклоне от 45° и более - от 1,9 метра.
Площадь жилого помещения мансардного этажа жилого здания с высотой потолка менее 1,6 и 1,9 метра соответственно при соответствующих углах наклона потолка не учитываются (не включаются)
(рис. 6).
[9, Приложение 2, пункт 13]
Рис. 6. Определение площади жилого помещения
на мансардном этаже жилого здания
6.11.2.6. Расстояния, применяемые для определения площади жилого помещения, измеряются на высоте от нуля до 1,10 метра от уровня пола (плинтусы, декоративные элементы, кабельные короба, системы отопления или кондиционирования воздуха не учитываются).
[9, Приложение 2, пункт 12.3]
Иными словами, измерения производятся от стены до стены, а площади, занятые такими элементами как - плинтусы, декоративные элементы, кабельные короба, системы отопления или кондиционирования воздуха, входят в площадь помещения
(рис. 2).
Таблица 3
Учет конструктивных элементов в площади жилого помещения
N п/п | Конструктивные элементы (части) жилого помещения | Включение в площадь жилого помещения |
Включаются | Не включаются |
1. | эксплуатируемая кровля | | |
2. | балкон | | |
3. | лоджия | | |
4. | терраса | | |
5. | веранда | | |
6. | внутренние перегородки и стены | | |
7. | площадь под маршем внутриквартирной лестницы на участке с высотой от пола до низа выступающих конструкций лестницы 1,6 м и менее | | |
8. | площадь, занимаемая печью, печью с камином, которые входят в отопительную систему здания и не являются декоративными | | |
9. | дверные проемы (проходы) во внутренних стенах (перегородках) | | |
10. | дверной проем наружной (входной) двери | | |
11. | антресоль [СП 54.13330.2022, А.2.1] |  (в случае, если площадь антресоли включена в площадь квартиры в соответствии с проектной документацией) | |
| | ИС МЕГАНОРМ: примечание. В официальном тексте документа, видимо, допущена опечатка: пункт 6.15.2.5 отсутствует. | |
|
12. | мансарда (см. пункт 6.15.2.5) | | |
13. | шкаф встроенный | | |
14. | ниши |  в случае наличия совокупности следующих условий: - если высота ниши составляет 2 метра и более; - углубление ниши идет от поверхности пола; - площадь ниши составляет 0.1 м и более | |
6.11.2.7. При проведении кадастровых работ в техническом плане может возникнуть необходимость в обосновании значения площади помещения путем указания используемых формул для расчета площади и формул с подставленными значениями.
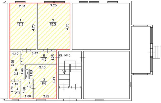
В качестве примера расчета площади помещения, план которого представлен на
рисунке 4, можно привести следующие:
S = S1 + S2 + S3 + S4 + S5 + S6 + S7 = (2.61 x 4.70) + (3.25 x 4.70) + (2.28 x 3.41 + 0.82 x 0.41 + 1.00 x 0.45) + (1.79 x 1.10) + (2.88 x 1.10 + 0.32 x 1.43) + (3.47 x 1.25) + (1.00 x 1.90) = 12.27 + 15.28 + (7.77 + 0.34 + 0.45) + 1.97 + (3.17 + 0.46) + 4.34 + 1.90 = 12.27 + 15.28 + 8.56 + 1.97 + 3.63 + 4.34 + 1.90 = 48.0 м2,
где S - общая площадь здания;
Sn - площадь n-го помещения.
6.12. Средняя квадратическая погрешность определения площади
Для оценки точности определения (вычисления) площади помещения рассчитывается средняя квадратическая погрешность определения (вычисления) площади.
В настоящем разделе Стандарта приведен пример расчета средней квадратической погрешности (далее - СКП) площади помещения по одной из методик.
В качестве примера для расчета СКП взято помещение, линейные измерения которого проведены с использованием лазерной рулетки. Основываясь на общих положениях научно-обоснованной теории ошибок измерений, общеизвестных формул определения СКП площади объектов, показана методика и формула расчета СКП площади объекта и СКП линейных измерений. На практике возможны и другие вариации формул, которые во многом обусловлены используемыми технологиями проведения работ и измерений, применяемыми приборами, конфигурацией объекта кадастровых работ и условиями проведения работ в целом.
6.12.1. Описание и условия работ
Кадастровые работы проводятся в отношении помещения, в котором завершены все строительные и ремонтные работы.
Измерения проведены опытным кадастровым инженером прибором Leica Disto D2 на h = 1,10 м от уровня пола.
Температура среды измерения: комнатная температура (около +21 °C). Измерения проведены при умеренной дневной освещенности.
Стены с хорошей отражательной способностью (стены из пеноблоков и окрашены плотной матовой краской).
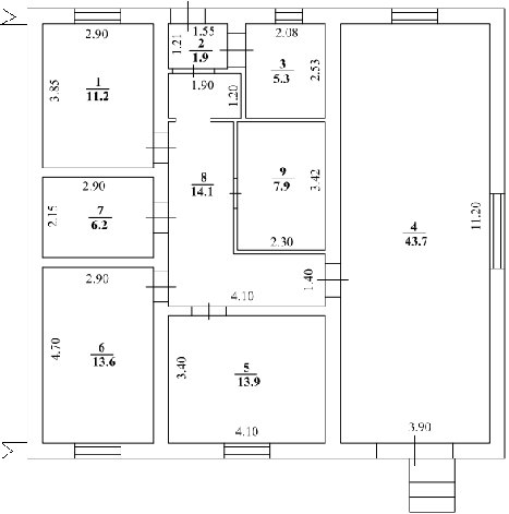
Рис. 7. План помещения - объекта кадастровых работ
6.12.2. Определение СКП линейных измерений
Измерения длин линий сопровождаются погрешностями. Рассмотрим источники погрешностей и способы ослабления их влияния на точность измерения. Величина погрешности линейных измерений зависит от ряда факторов, которые и определяют ее итоговое значение. При проведении линейных измерений лазерной рулеткой СКП измерений можно выразить следующей формулой:

(1)
где mпр - СКП измерений длин линий прибором;
mг - СКП определения горизонтального проложения линии (СКП измерений за кривизну лазерного луча при наведении луча не по горизонтали);
mст - СКП уклонения луча от створа измеряемой линии;
mфикс - СКП неточности фиксирования (прикладывания) лазерной рулетки к поверхности отсчета;
mв - СКП измерений за кривизну стен по высоте;
mф - СКП за неравенство стен при приведении объекта к правильной фигуре (методическая ошибка).
1) Из условий проведения работ (температура, освещенность, отражательная способность стен) можно сделать вывод о наличии благоприятных условий для проведения линейных измерений. Из описания типа средств измерений "Лазерный дальномер Leica DISTO D2", являющегося приложением к свидетельству N 63050 (взят из открытых источников в сети "Интернет") установлено, что при благоприятных условиях проведения измерений прибор Leica DISTO D2 дает следующие СКП
(таблица 4):
- при длине стен до 5 м mпр = 1.5 мм
- при длине стен от 5 до 100 м mпр = 1.5 мм + 0.1 мм/м.
Таблица 4
Метрологические и технические характеристики
лазерного дальномера Leica DISTO D2
В зависимости от технических характеристик приборов, которыми проводятся линейные измерения при подготовке технических планов, их погрешности оказывают чувствительное влияние на результаты измерений, как правило, при длине стен в несколько десятков метров. При меньших длинах стен mпр, как правило, пренебрежительно мало и не оказывает сильного влияния на результаты измерений и величину их погрешности. Данное условие во многом обусловлено точностью проведения линейных измерений в кадастровых работах (необходимостью округления их результатов до 0,01 м), при этом погрешность лазерных рулеток (в зависимости от производителя) при небольших длинах стен (до 10 - 20 м), как правило, не превышает 5 мм.
2) Лазерными рулетками обеспечивается определение горизонтальных проложений. Погрешность в определении горизонтальных проложений линий является результатом точности обеспечения горизонтальности лазерного луча. Точность выставления горизонтальности луча должна быть тем выше, чем длиннее сама линия.
Так, например, при длине линии в 5 м предельное отклонение луча от горизонта измеряемой линии не должно превышать 32 см
(рис. 8). Такое отклонение от горизонта легко обнаруживается опытным исполнителем на глаз. Однако для ослабления влияния этой погрешности луч лазерной рулетки следует направлять как можно точней в горизонте измеряемой линии. Некоторые модели лазерных рулеток оснащены горизонтальным уровнем.
Рис. 8. Определение высоты кривизны лазерного луча
3) Погрешность от неточного фиксирования лазерной рулетки на поверхности измерения (или на невидимой линии, являющейся продолжением поверхности измерения) может оказаться достаточно ощутимой. Поэтому устанавливать ее рекомендуется как можно точнее на поверхности стены или на невидимой линии, являющейся продолжением такой стены
(рис. 9). В целях исключения грубых ошибок и промахов также важно следить за соответствием поверхности отсчета, устанавливаемой в программе лазерной рулетки и устанавливаемой исполнителем в месте измерения.
Рис. 9. Точность фиксирования лазерной рулетки
4) Наблюдения показывают, что кривизна стен зависит от качества строительных и ремонтно-отделочных работ. Как правило, кривизна стен на высоте от 0 до 1,10 м не превосходит величины в 1 - 2 см, редко при сильных "завалах" стен можно наблюдать изменение длины стен в 3 см. Для исключения ошибки за кривизну стен по высоте рекомендуется проводить измерения на фиксированной высоте. Сведения о данной высоте можно записывать в абрисах, "Заключении кадастрового инженера" либо в иных документах, отражающих результаты натурных измерений объекта. В противном случае, необходимо вводить mв - СКП за кривизну стен по высоте, которую можно вычислить по формуле Бесселя, имея необходимый ряд измерений длин стен на разных высотах относительно уровня пола (например, 0 м, 0,50 м, 1,10 м).
5) Форма помещений зачастую представляет собой правильную геометрическую фигуру. В соответствии с требованиями действующего законодательства площадь объектов недвижимости также вычисляется как площадь простейшей геометрической фигуры (например, прямоугольник, трапеция, прямоугольный треугольник) или путем разбивки такого объекта на простейшие геометрические фигуры и суммирования площадей таких фигур. Между тем, при проведении натурных измерений мы зачастую сталкиваемся с небольшим неравенством длин стен и пренебрегаем им при представлении формы измеряемого объекта в виде простейшей геометрической фигуры, например, прямоугольника. Как показывает практика, значительное влияние на итоговое значение СКП линейных измерений оказывает именно СКП за неравенство стен при приведении объекта к правильной фигуре - mф, величина которой также может быть определена по формуле Бесселя:

(2)
Так, при измерении самых длинных противоположных стен в помещении N 4 у кадастрового инженера был получен ряд измерений: 11,23 м; 11,23 м; 11,18 м; 11,18 м. Помещение N 4 мы приводим к форме прямоугольника, пренебрегая незначительными при такой длине стен расхождениями в их величине. Вычислим СКП за неравенство стен при приведении помещения N 4 к правильной фигуре:
a = (11,23 + 11,23 + 11,18 + 11,18)/4 = (11,23 + 11,18)/2 = 11,20 м
При приведении помещения к форме правильной фигуры можно установить зависимость
mф от имеющейся величины неравенства стен. Результаты такой зависимости приведены в
Таблице 5:
Таблица 5
Зависимость СКП приведения к правильной фигуре
от неравенства длины стен
N п/п | Неравенство противоположных стен | Величина mф |
1 | +/- 0,01 м | +/- 0,01 м |
2 | +/- 0,02 м |
3 | +/- 0,03 м | +/- 0,02 м |
4 | +/- 0,04 м |
5 | +/- 0,05 м | +/- 0,03 м |
6 | +/- 0,06 м |
При проведении кадастровых работ в отношении типовых объектов (например, помещения, здания прямоугольной формы с площадью до 40 - 50 кв. м с максимальной длиной стен до 10 - 15 м) с измерением длин стен лазерной рулеткой на одной высоте можно принять:
Поскольку любые измерения не могут быть лишены ошибок и погрешностей, то при проведении кадастровых работ можно принять минимальное значение ms = +/- 0,01 м. В зависимости от влияния иных факторов на погрешность линейных измерений величина ms может увеличивать свое значение.
6.12.3. Определение СКП площади помещения по СКП площади входящих в его состав помещений и стен
Площадь помещения можно вычислить, сложив площадь всех входящих в его состав помещений:
P = P1 + P2 + P3 + P4 + P5 + P6 + P7 + P8 + P9 =
= 11,2 + 1,9 + 5,3 + 43,7 + 13,9 + 13,6 +
+ 6,2 + 14,1 + 7,9 = 117,8 м2
Поскольку не во всех помещениях СКП линейных измерений длин стен a и b совпадали по величине, то в таких случаях величина СКП площади рассчитывалась по формуле:
Таблица 6
Подсчет СКП площади
N помещения | Длина стен, м | СКП линейных измерений, м | СКП площади, mf, м2 |
a | b | msa | msb | |
1 | 3,85 | 2,90 | 0,02 | 0,02 | 0,10 |
2 | 1,21 | 1,55 | 0,01 | 0,01 | 0,02 |
3 | 2,53 | 2,08 | 0,01 | 0,01 | 0,03 |
4 | 11,20 | 3,90 | 0,03 | 0,01 | 0,16 |
5 | 3,40 | 4,10 | 0,02 | 0,02 | 0,11 |
6 | 4,70 | 2,90 | 0,02 | 0,02 | 0,11 |
7 | 2,15 | 2,90 | 0,01 | 0,01 | 0,04 |
8 | 1,20 | 1,90 | 0,01 | 0,01 | 0,07 |
| 4,90 | 1,70 | 0,02 | 0,01 |
| 1,40 | 2,40 | 0,01 | 0,01 |
9 | 3,42 | 2,30 | 0,02 | 0,01 | 0,06 |
Итого по помещениям: | | | | | +/- 0,27 |
Существует множество других способов определения СКП площади (например, определение СКП при уравнивании площадей в условиях наличия дополнительных измерений (например, диагоналей в прямоугольнике), определение СКП с помощью матриц измеренных величин и т.д.).
Величина СКП определения площади зависит от методики ее определения, применяемых приборов и формул при вычислениях.
6.12.4. Пример "Заключения кадастрового инженера"
При необходимости формулы СКП определения площади с подставленными в них значениями и результатом вычисления можно приводить в разделе технического плана "Заключение кадастрового инженера".
В зависимости от используемой кадастровым инженером методики определения площади здания в "Заключении кадастрового инженера" также может быть приведена следующая информация об определении СКП площади:
ВАРИАНТ 1:
Обмеры помещения проведены на h = 1.10 м от уровня пола. В здании завершены строительные работы. Отделочные работы отсутствуют. Площадь помещения получена путем разбивки такого объекта на простейшие геометрические фигуры и суммирования площадей таких фигур, поэтому СКП определения площади здания вычислена по формуле:
Дополнительно могут быть приведены расчеты СКП каждого помещения:
Таблица 7
Вариант обоснования подсчета площади здания
N помещения | Длина стен, м | СКП линейных измерений, м | СКП площади, mf, м2 |
a | b | msa | msb |
1 | 3,85 | 2,90 | 0,02 | 0,02 | 0,10 |
2 | 1,21 | 1,55 | 0,01 | 0,01 | 0,02 |
3 | 2,53 | 2,08 | 0,01 | 0,01 | 0,03 |
4 | 11,20 | 3,90 | 0,03 | 0,01 | 0,16 |
5 | 3,40 | 4,10 | 0,02 | 0,02 | 0,11 |
6 | 4,70 | 2,90 | 0,02 | 0,02 | 0,11 |
7 | 2,15 | 2,90 | 0,01 | 0,01 | 0,04 |
8 | 1,20 | 1,90 | 0,01 | 0,01 | 0,07 |
4,90 | 1,70 | 0,02 | 0,01 |
1,40 | 2,40 | 0,01 | 0,01 |
9 | 3,42 | 2,30 | 0,02 | 0,01 | 0,06 |
Итого по помещениям: | | | | | +/- 0,27 |
Вместо табличной формы расчет СКП каждого помещения может быть представлен в виде перечня расчетных формул с подставленными в них значениями.
Таблица 8
Формулы расчета СКП площади
для разных геометрических фигур <4>
--------------------------------
<4> Данный перечень формул не является исчерпывающим. Для ряда фигур могут быть выведены и иные формулы расчета СКП площади.
Фигура | Чертеж | Формула для подсчета площади фигуры | Формула определения СКП площади фигуры |
Квадрат | | P = a2 | |
Прямоугольник | | P = ab | Если mp = mb = ms, т.е. когда все стороны измерены с одинаковой точностью: |
Параллелограмм | |
Треугольник | | | |
| Формула Герона: | где A = (q - a)(q - b)(q - c); B = q(q - b)(q - c); C = q(q - a)(q - c); D = q(q - a)(q - b). |
Круг | | | |
6.13. СВЕДЕНИЯ О ВКЛЮЧЕНИИ ПОМЕЩЕНИЯ В ЕГРОКН (ПАМЯТНИКОВ ИСТОРИИ И КУЛЬТУРЫ) НАРОДОВ РОССИЙСКОЙ ФЕДЕРАЦИИ
6.13.1. Если помещение или здание, сооружение, в котором оно расположено, является объектом культурного наследия, включенным в единый государственный реестр объектов культурного наследия (памятников истории и культуры) народов Российской Федерации или выявленным объектом культурного наследия, подлежащим государственной охране, то в рамках кадастровых работ должны быть собраны сведения о включении помещения (или здания, сооружения, в котором расположено помещение), в ЕГРОКН (памятников истории и культуры) народов Российской Федерации, которые в последующем отображаются в техническом плане:
1) регистрационный номер, вид и наименование объекта культурного наследия либо регистрационный номер учетной карты объекта, представляющего собой историко-культурную ценность, вид и наименование выявленного объекта культурного наследия;
2) реквизиты решений органов государственной власти, иных документов (в том числе утвержденного охранного обязательства, охранно-арендного договора, охранного договора или охранного обязательства в отношении памятника истории и культуры, охранного обязательства собственника объекта культурного наследия или охранного обязательства пользователя объектом культурного наследия, паспорта объекта культурного наследия) (при наличии таких решений и (или) документов):
- реквизиты решений Правительства Российской Федерации, органов охраны объектов культурного наследия о включении объекта недвижимости в единый государственный реестр объектов культурного наследия (памятников истории и культуры) народов Российской Федерации либо об отнесении объекта недвижимости к выявленным объектам культурного наследия, подлежащим государственной охране;
- реквизиты документа, на основании которого установлены требования к сохранению, содержанию и использованию объектов культурного наследия (памятников истории и культуры) народов Российской Федерации, требования к обеспечению доступа к таким объектам либо выявленному объекту культурного наследия.
6.14. СВЕДЕНИЯ О ЧАСТИ (ЧАСТЯХ) ПОМЕЩЕНИЯ
Если в отношении части (частей) помещения установлено (устанавливается) ограничение (обременение) прав, то в целях определения пределов действия таких ограничений (обременении) в рамках кадастровых работ должны быть также собраны сведения о таких части (частях) помещения.
В случаях когда установленное (устанавливаемое) ограничение (обременение) прав распространяется на часть помещения в пределах этажа, нескольких этажей, описание такой части приводится в виде связного текста (например, приводятся номера помещений на Плане здания, сооружения, Плане этажа, фрагменте Плана здания, сооружения, этажа).
В отношении части помещения подлежат указанию также следующие сведения:
1) порядковый номер части объекта недвижимости;
2) учетный номер или обозначение части;
3) площадь части (в квадратных метрах с округлением до 0,1 кв. метра);
4) характеристика части.
Содержание установленного (устанавливаемого) ограничения (обременения) прав приводится на основании актов органов государственной власти или органов местного самоуправления, договоров или соглашений (при их наличии), вступивших в законную силу судебных актов.
В графической части технического плана границы части объекта недвижимости обозначаются специальными условными знаками.
7. ТЕХНИЧЕСКОЕ ОПИСАНИЕ ПОМЕЩЕНИЯ
7.1. ЛИНЕЙНЫЕ ИЗМЕРЕНИЯ В ПОМЕЩЕНИИ И СОСТАВЛЕНИЕ АБРИСА
7.1.1. При обследовании помещения, здания или сооружения, в которых расположены помещения, подлежащие государственному кадастровому учету, кадастровым инженером проводятся натурные измерения и фиксируются в абрисе. Абрис может быть изготовлен на поэтажном плане из проектной документации, технического паспорта (дополнен необходимыми измерениями, отсутствующими в проектной документации или техническом паспорте) либо изготовлен кадастровым инженером самостоятельно.
7.1.2. Абрис представляет собой внемасштабный, но с соблюдением пропорций, чертеж здания, сооружения или помещения с обозначением данных, в том числе результатов линейных измерений, необходимых для последующего оформления раздела технического плана "План здания, сооружения, План этажа, фрагмент Плана здания, сооружения, этажа".
7.1.3. Абрис здания составляется в соответствии с требованиями
раздела 7.1 Типового стандарта осуществления кадастровой деятельности "СТО 11468812.006-2022. Описание характеристик объектов недвижимости. Характеристики нежилых зданий", Типового стандарта осуществления кадастровой деятельности "
СТО 11468812.005-2022. Описание характеристик объектов недвижимости. Характеристики жилых зданий". Абрис сооружения, в котором расположены помещения, подлежащие государственному кадастровому учету, может составляться по аналогичным правилам составления абриса здания. В
разделе 7.1 настоящего Стандарта приводятся требования к составлению абриса помещения или помещений (далее - абрис).
7.1.4. Абрис составляется непосредственно в момент проведения линейных измерений с помощью автоматизированных средств или вручную.
7.1.5. Абрис является рабочим документом кадастрового инженера и в состав технического плана не включается.
Включение абриса в состав технического плана допускается осуществлять в случаях, необходимых для дополнительного обоснования результатов кадастровых работ (например, при исправлении реестровых ошибок).
7.1.6. В зависимости от задания на выполнение кадастровых работ абрис содержит план этажа (планы этажей) здания, сооружения (или их фрагменты), на которых расположено помещение (помещения). При этом на абрисе подлежат отражению следующие строительные конструкции, относящиеся к помещению (помещениям) - объекту кадастровых работ:
1) стены и перегородки, в том числе внутренние;
2) оконные и дверные проемы;
3) лестницы, балконы, лоджии;
4) веранды, террасы;
5) тамбур;
6) внутренние выступы стен, арки;
7) другие строительные конструкции здания, сооружения, помещения, которые необходимы для составления графической части технического плана;
8) результаты линейных измерений.
7.1.7. Записи результатов измерений строительных конструкций, в том числе стен и перегородок, а также вспомогательных промеров должны быть в абрисе записаны аккуратно и четко определяться к чему они относятся. Данных обмеров должно быть достаточно для вычерчивания поэтажного плана (или его фрагмента) и подсчета площади помещения. В необходимых местах могут быть отражены контрольные промеры.
7.1.8. Абрис оформляется необходимыми пояснительными надписями (наименование объекта, его адрес и назначение, даты начала и окончания натурных работ, исполнитель и т.д.).
7.1.9. Сторону главного фасада в абрисе в целях последующего составления поэтажного плана рекомендуется располагать параллельно нижнему краю листа. В случае если невозможно определить главный фасад, параллельно нижнему краю листа располагается южная сторона здания, в котором расположено помещение.
[11, пункт 68]
7.1.10. В абрисе указываются все строительные конструкции помещения в плане и по мере измерения проставляются их размеры. Измерения рекомендуется проводить по завершении строительных, в том числе отделочных, работ.
7.1.11. Последовательность составления абриса и измерений:
В зависимости от задания на проведение кадастровых работ в рамках составления абриса может проводиться внутренний обмер помещений, взятие при необходимости высот (например, для определения типов этажей - цокольный, мансардный и т.д.), диагоналей.
При перепланировке помещений в МКД или изменении конфигураций помещений в нежилых зданиях, сооружениях натурные работы сводятся до сличения на месте существующей документации на здание, сооружение, помещение с фактическим его состоянием, расположением учетных элементов, зарисовке в абрисе выявленных планировочных изменений, производству необходимых измерений.
Расстояния, применяемые для определения в последующем площади помещения, измеряются внутри помещения на высоте от нуля до 1,10 метра от уровня пола (плинтусы, декоративные элементы, кабельные короба, системы отопления или кондиционирования воздуха не учитываются).
В помещениях непрямоугольной формы целесообразно брать диагонали, в зависимости от конфигурации помещения в количестве, достаточном для правильного вычерчивания Плана.
При обмере помещений необходимо знать толщину всех стен и перегородок. Толщина стен и перегородок в помещениях измеряется через дверной и (или) оконный проем.
Колонны измеряются и увязываются по параллельным касательным к окружности и в абрисе указываются их диаметры.
Измерения помещений производятся с точностью 1 см по всему периметру стен на высоте с одновременным измерением дверей, выступов и других элементов, с соблюдением следующих обязательных правил:
дверные и оконные проемы измеряются в свету (по завесам);
при измерении лестничных клеток измеряются площадки и в абрисе указывается количество ступенек и направление подъема маршей.
Перегородки не до потолка учитываются и измеряются в случае, если конструкция перегородки присутствует на высоте проведения кадастровым инженером линейных измерений (например, высота перегородки 1 м, а измерения кадастровый инженер проводит на уровне пола). В данном случае важно фиксировать в "Заключении кадастрового инженера" высоту, на которой проводились линейные измерения.
Обозначенная на полу разметкой перегородка, отсутствующая на момент проведения кадастровых работ и планируемая к возведению при проведении ремонтных работ, не измеряется и в абрисе не отображается.
Все выступы стен и перегородок, ниши и т.п. размером более 5 см подлежат занесению в абрис и измерению.
Высота помещений показывается на абрисе в тех помещениях, где были взяты эти замеры (например, на мансардном, подвальном этаже и т.д.).
7.1.12. Абрис не составляется в случае наличия проектной документации или технического паспорта здания, сооружения, помещения, содержащих поэтажный план, на котором отображено помещение - объект кадастровых работ с конфигурацией, результатами линейных измерений и площади, которые соответствуют фактическому состоянию помещения.
Рис. 10. Пример абриса нежилого помещения,
расположенного на 1 этаже нежилого здания
7.2. ГРАНИЦЫ ПОМЕЩЕНИЯ И ЕГО ОТОБРАЖЕНИЕ НА ПЛАНЕ
7.2.1. Местоположение помещения устанавливается посредством графического отображения границы геометрической фигуры, образованной внутренними сторонами наружных ограждающих конструкций помещения с указанием внутренних стен, перегородок, дверных проемов, и его (их) обозначения (номера) на Плане здания, сооружения, Плане этажа, фрагменте Плана здания, сооружения, этажа (далее - План).
[7, статья 24, часть 6; 11, пункт 76, подпункт 1]
Примыкающие к жилому помещению (квартира, комната (в квартире)) в МКД балконы, лоджии, террасы, веранды и тому подобное в границы жилого помещения не включаются.
[11, пункт 37] Данное требование не распространяется в отношении нежилых помещений.
7.2.2. Границы помещения определяются в соответствии с проектной документацией здания, сооружения (при ее наличии) или проектом перепланировки помещения в МКД, техническим паспортом здания, сооружения, помещения.
Графическая часть технического плана помещения оформляется на основе:
- поэтажных планов, являющихся частью проектной документации;
- изготовленных кадастровым инженером Плана;
- проекта перепланировки;
- графической части технического паспорта здания (или сооружения).
7.2.3. В целях отображения границ помещения подготавливается раздел технического плана "План здания, сооружения, План этажа, фрагмент Плана здания, сооружения, этажа" (по тексту также - План).
Фрагмент Плана здания, сооружения, этажа оформляется в случае, если помещение расположено в пределах изолированной части этажа здания, сооружения либо части здания, сооружения (например, подъезд здания). При этом на фрагменте Плана здания, сооружения, этажа указывается обозначение такой части (например, подъезд N 1).
[11, пункт 74]
В случае если помещение расположено на нескольких этажах здания, сооружения, в состав графической части технического плана включаются планы соответствующих этажей здания, сооружения либо соответствующие фрагменты Плана здания, сооружения, этажа.
[11, пункт 75]
7.2.4. План здания с одновременным отображением помещений, подлежащих государственному кадастровому учету, составляется в соответствии с требованиями раздела 7.2 Типового стандарта осуществления кадастровой деятельности "
СТО 11468812.006-2022. Описание характеристик объектов недвижимости. Характеристики нежилых зданий", Типового стандарта осуществления кадастровой деятельности "
СТО 11468812.005-2022. Описание характеристик объектов недвижимости. Характеристики жилых зданий". План сооружения, в котором расположены помещения, подлежащие государственному кадастровому учету, может составляться по аналогичным правилам составления плана здания. В
разделе 7.2 настоящего Стандарта приводятся требования к составлению Плана, на котором отображается помещение (помещения) - объект кадастровых работ.
7.2.5. Поэтажные планы здания, сооружения (в котором расположены помещения), являющиеся частью проектной документации, включаются в технический план в качестве раздела(ов) "План здания, сооружения, План этажа, фрагмент Плана здания, сооружения, этажа", если содержание таких поэтажных планов в части характеристик расположенного на соответствующем этаже помещения - объекта кадастровых работ (линейных измерений, площади, конфигурации помещения) соответствует фактическим характеристикам такого помещения.
7.2.6. Кадастровым инженером по результатам выполненных им измерений и абриса самостоятельно изготавливается План и включается в технический план в виде соответствующего раздела технического плана в следующих случаях:
1) если поэтажные планы, являющиеся частью проектной документации, не содержат необходимые для оформления Плана обозначения и сведения;
2) указанные в поэтажных планах параметры, в том числе линейные размеры, площади и конфигурации помещений не соответствуют их фактическим характеристикам;
3) изменения проектной документации не отражены в поэтажных планах;
4) при отсутствии поэтажных планов.
7.2.7. Камеральные работы по составлению Плана как обязательного раздела технического плана включают в себя:
1) непосредственно подготовку Плана по утвержденной форме;
2) проставление линейных размеров, обозначений и подписей;
3) подсчет внутренних площадей (при необходимости);
4) проставление на плане обозначений помещений.
7.2.8. Камеральные работы при работе с помещением после перепланировки в МКД или работ по изменению конфигурации помещений в нежилых домах включает:
1) вычерчивание Планов с учетом всех выявленных изменений;
2) пересчет площадей изменившихся и вновь образованных помещений, а также при необходимости определение площади здания.
7.2.9. План размещается симметрично краям листа. Сторона главного фасада в плане должна располагаться параллельно нижнему краю листа. В случае если невозможно определить главный фасад, параллельно нижнему краю листа располагается южная сторона здания.
7.2.10. План вычерчивается, как правило, в масштабе 1:100 или 1:200 в условных знаках, принятых для кадастровых работ.
7.2.11. Оформление Плана производится с точностью до 0,5 мм с применением средств компьютерной графики.
7.2.12. На Плане отображаются в масштабе:
- контур наружных стен здания;
- внутренние стены, перегородки (о классификации стен и перегородок см. Приложение А Типовых стандартов осуществления кадастровой деятельности указанных в
пункте 7.2.4 настоящего Стандарта);
- местоположение помещений, машино-мест;
- пристройки;
- крыльцо;
- лестницы и ступени;
- оконные и дверные проемы по наружному периметру стен;
- окна и двери;
- балконы, лоджии;
- внутренние выступы стен и перегородок;
- ниши в стенах, если они присутствуют на высоте проводимых кадастровым инженером измерений и глубина их более 5 см;
- арки и отдельно расположенные столбы и колонны;
- приямки, лазы подвалов и цокольных этажей;
- необходимые условные обозначения.
7.2.13. Последовательность составления Плана
План оформляется после проверки суммы измерений, выполненных снаружи здания и суммы измерений, выполненных внутри здания, сооружения по той же стороне (с учетом толщины стен и внутренних перегородок).
Оформление Плана осуществляется путем последовательного нанесения на него фасадной, боковых линий здания, сооружения, стен (перегородок), проемов и лестниц с учетом увязки на соответствующих местах и в точном соответствии с принятыми условными знаками.
Допустимая невязка между наружными и внутренними измерениями при вычерчивании плана распределяется пропорционально на все комнаты, т.е. на расстояние между стенами и перегородками в помещениях.
Проемы, ниши, стенные шкафы как по своему размеру, так и в отношении расположения, наносятся на План в масштабе.
Веранды, галереи и тамбуры измеряются внутри и вычерчиваются на Плане.
По центру на Плане сверху на листе указывается тип этажа (при наличии такой информации) или номер этажа (например, цокольный этаж, 1-й этаж).
На Плане параллельно направлению соответствующих стен и перегородок отображаются соответствующие линейные размеры. Допускается не отображать отдельные линейные размеры, если размер соответствующей надписи превышает изображение элемента, к которому необходимо указать такой линейный размер.
На Плане проставляются следующие размеры в метрах с двумя десятичными знаками:
на планах всех этажей, подвалов, мансард - размеры всех помещений (длина и ширина), а в помещениях непрямоугольной формы - размеры по всему внутреннему периметру стен.
Примечание. Размеры ниш, арок, колонн, выступов, дверей, окон, приямки, прочие наружные строительные конструкции здания, не включаемые в площадь здания, и т.д., а также другие измерения: диагонали, засечки и т.п., на Плане не проставляются.
Обозначения помещений на этаже или в здании, сооружении, надписи, за исключением линейных измерений, на Плане отображаются параллельно нижнему краю листа.
При необходимости на Плане могут быть указаны номера помещений и их площади
(рис. 11).
Рис. 11. Отражение границ нежилого помещения
на Плане этажа здания
| | ИС МЕГАНОРМ: примечание. Нумерация пунктов дана в соответствии с официальным текстом документа. | |
7.2.14. При наличии в нежилом здании антресоли, эксплуатируемой кровли и полуэтажей
<5>, такие уровни в здании отображаются на Плане.
--------------------------------
<5> Понятие полуэтаж применяется в отношении многоэтажных стоянок автомобилей
[СП 113.13330.2016, пункт 5.1.27].
Рис. 12. Отражение границ комнаты
на фрагменте Плана этажа здания
7.3. УСЛОВНЫЕ ЗНАКИ ДЛЯ ПЛАНОВ
Для оформления раздела технического плана "План здания, сооружения, План этажа, фрагмент Плана здания, сооружения, этажа" применяются специальные условные знаки, установленные требованиями к подготовке технических планов. Для отражения в графической части технического плана необходимой информации допускается применение иных условных знаков при условии отражения информации о них в условных обозначениях, примененных в поэтажных планах
(Таблица 9).
Таблица 9
Условные знаки для Планов
N п/п | Название условного знака | Изображение |
| Условные знаки, предусмотренные Приказом Росреестра от 15.03.2022 N П/0082 |
1. | Стена с окном и дверью | Сплошные линии черного цвета, толщиной 0,2 мм, перпендикулярные границе геометрической фигуры |
2. | Лестница Наружная открытая лестница в подвал | |
Лестничная клетка с двухмаршевой лестницей: - в плане 1 этажа - в плане 2 этажа | |
3. | Дверь остекленная (на балкон, лоджию) | |
4. | Веранда | |
5. | Терраса | |
6. | Перегородка | |
Дополнительные условные знаки, которые могут использоваться при подготовке поэтажных планов в техническом плане |
7. | Лоджии | |
8. | Эркер | |
9. | Арка в стене | |
10. | Стена с пилястрами | |
11. | Ниша и шкаф в стене | |
12. | Приямок | |
13. | Внутренний тамбур | |
Наружный тамбур | |
14. | Кирпичное крыльцо со ступенями | |
Деревянное крыльцо со ступенями | |
Крыльцо со ступенями на 3 стороны | |
15. | Стена с трехчетвертными колоннами | |
16. | Арка | |
17. | Витрины и дверь в стене | |
18. | Вентиляционные каналы | |
Если примененные в поэтажных планах здания, сооружения, являющихся частью проектной документации, условные знаки не соответствуют специальным условным знакам, применяемым при подготовке технических планов, данное обстоятельство не является нарушением установленных требований.
7.4. КОНТРОЛЬ ТЕХНИЧЕСКОГО ОПИСАНИЯ ПОМЕЩЕНИЯ
7.4.1. Проверка выполненных работ технического описания помещения осуществляется кадастровым инженером. При этом проверяется следующее:
1) точность наружных измерений и данных отсчетов по проемам (окон и дверей) - при их наличии;
2) правильность линейных размеров внутри помещений, правильность сквозных измерений, толщины стен и перегородок;
3) полноту (достаточность) вспомогательных размеров (диагоналей) в помещениях со сложной конфигурацией;
4) правильность нумерации помещений;
5) оформление абрисов (наличие подписи, даты производства работ и др.).
7.4.2. При контроле графических работ исполняются следующие действия:
1) сопоставление Плана с абрисом;
2) сопоставление плана первого этажа (контрольного) с планами расположения капитальных стен (наружных и внутренних), оконных проемов, лестниц (при составлении поэтажных планов зданий, сооружений с одновременным описанием расположенных внутри них помещений);
3) проверка масштаба Плана;
4) проверка Плана после вычерчивания размеров, соответствия плана принятым условным обозначениям.
7.4.3. При контроле вычислительных работ проверяются:
1) правильность формул, подсчетов и др.;
2) правильность выполнения подсчетов и итогов по помещению в целом;
3) правильность указания площади каждого помещения на Плане (при необходимости).
Незначительные ошибки и отклонения исправляются кадастровым инженером; дела с грубыми ошибками могут требовать повторных натурных измерений, пересчетов и иных действий по исправлению ошибок.
1. Гражданский
кодекс Российской Федерации от 30.11.1994 N 51-ФЗ;
2. Федеральный
закон от 27.12.2002 N 184-ФЗ "О техническом регулировании";
3. Жилищный
кодекс Российской Федерации от 29.12.2004 N 188-ФЗ;
4. Градостроительный
кодекс Российской Федерации от 29.12.2004 N 190-ФЗ;
5. Федеральный
закон от 24.07.2007 N 221-ФЗ "О кадастровой деятельности";
6. Федеральный
закон от 30.12.2009 N 384-ФЗ "Технический регламент о безопасности зданий и сооружений";
7. Федеральный
закон от 13.07.2015 N 218-ФЗ "О государственной регистрации недвижимости";
8.
Приказ Росреестра от 25.04.2019 N П/0163 "О размещении на официальном сайте Федеральной службы государственной регистрации, кадастра и картографии в информационно-телекоммуникационной сети "Интернет" XML-схемы, используемой для формирования XML-документа - технического плана здания, сооружения, объекта незавершенного строительства, помещения, машино-места, единого недвижимого комплекса в форме электронного документа, и особенности ее применения";
9.
Приказ Росреестра от 23.10.2020 N П/0393 "Об утверждении требований к точности и методам определения координат характерных точек границ земельного участка, требований к точности и методам определения координат характерных точек контура здания, сооружения или объекта незавершенного строительства на земельном участке, а также требований к определению площади здания, сооружения, помещения, машино-места";
10.
Приказ Росреестра от 01.06.2021 N П/0241 "Об установлении порядка ведения Единого государственного реестра недвижимости, формы специальной регистрационной надписи на документе, выражающем содержание сделки, состава сведений, включаемых в специальную регистрационную надпись на документе, выражающем содержание сделки, и требований к ее заполнению, а также требований к формату специальной регистрационной надписи на документе, выражающем содержание сделки, в электронной форме, порядка изменения в Едином государственном реестре недвижимости сведений о местоположении границ земельного участка при исправлении реестровой ошибки";
11.
Приказ Росреестра от 15.03.2022 N П/0082 "Об установлении формы технического плана, требований к его подготовке и состава содержащихся в нем сведений";
12.
Письмо Росреестра от 08.09.2020 N 13-00215/20 "О рассмотрении обращений" (о видах разрешенного использования);
13. Письмо Росреестра от 10.03.2022 N 06-00251/22@ "О рассмотрении обращения";
14.
Письмо Росреестра от 03.08.2022 N 14-6689-ТГ/22;
15.
Письмо Минэкономразвития от 24.12.2013 N ОГ-Д23-6667 "О рассмотрении обращения";
16. Письмо Минэкономразвития от 24.02.2014 N Д23и-501 "Относительно признания помещений изолированными или обособленными от других помещений в здании или сооружении";
17.
Письмо ФГБУ "ФКП Росреестра" от 03.07.2015 N 10-2024-КЛ "О рассмотрении обращения".
|
Ключевые слова: кадастровые работы, технический план, помещение, поэтажный план, характеристики помещения |