Главная // Актуальные документы // МетодикаСПРАВКА
Источник публикации
В данном виде документ опубликован не был.
Первоначальный текст документа опубликован в издании
М.: Стандартинформ, 2018.
Информацию о публикации документов, создающих данную редакцию, см. в справке к этим документам.
Примечание к документу
О применении данного документа см.
Письмо Минстроя России от 01.07.2021 N 27166-АС/08.
Документ включен в
Перечень документов в области стандартизации, в результате применения которых на добровольной основе обеспечивается соблюдение требований Федерального
закона от 30.12.2009 N 384-ФЗ "Технический регламент о безопасности зданий и сооружений" (
Приказ Росстандарта от 02.04.2020 N 687).
Название документа
"СП 391.1325800.2017. Свод правил. Храмы православные. Правила проектирования"
(утв. Приказом Минстроя России от 22.12.2017 N 1703/пр)
(ред. от 28.12.2023)
"СП 391.1325800.2017. Свод правил. Храмы православные. Правила проектирования"
(утв. Приказом Минстроя России от 22.12.2017 N 1703/пр)
(ред. от 28.12.2023)
и жилищно-коммунального хозяйства
Российской Федерации
от 22 декабря 2017 г. N 1703/пр
СВОД ПРАВИЛ
ХРАМЫ ПРАВОСЛАВНЫЕ
ПРАВИЛА ПРОЕКТИРОВАНИЯ
Orthodox temples. Rules of architectural design
СП 391.1325800.2017
| | Список изменяющих документов Минстроя России от 28.12.2023 N 1004/пр) | |
Дата введения
23 июня 2018 года
Сведения о своде правил
1 ИСПОЛНИТЕЛИ - Общество с ограниченной ответственностью "Научно-исследовательский и проектный институт учебных, общественных и жилых зданий" (ООО "Институт общественных зданий"); Акционерное общество "Центральный научно-исследовательский и проектно-экспериментальный институт промышленных зданий и сооружений - ЦНИИПромзданий" (АО "ЦНИИПромзданий")
2 ВНЕСЕН Техническим комитетом по стандартизации ТК 465 "Строительство"
3 ПОДГОТОВЛЕН к утверждению Департаментом градостроительной деятельности и архитектуры Министерства строительства и жилищно-коммунального хозяйства Российской Федерации (Минстрой России)
4 УТВЕРЖДЕН
приказом Министерства строительства и жилищно-коммунального хозяйства Российской Федерации от 22 декабря 2017 г. N 1703/пр и введен в действие с 23 июня 2018 г.
5 ЗАРЕГИСТРИРОВАН Федеральным агентством по техническому регулированию и метрологии (Росстандарт)
6 ВВЕДЕН ВПЕРВЫЕ
В случае пересмотра (замены) или отмены настоящего свода правил соответствующее уведомление будет опубликовано в установленном порядке. Соответствующая информация, уведомление и тексты размещаются также в информационной системе общего пользования - на официальном сайте разработчика (Минстрой России) в сети Интернет
Свод правил "Храмы православные. Правила проектирования" разработан с учетом требований Федерального
закона от 30 декабря 2009 г. N 384-ФЗ "Технический регламент о безопасности зданий и сооружений" в развитие
СП 118.13330.2012 "СНиП 31-06-2009 Общественные здания и сооружения" и на основе
СП 31-103-99 "Здания, сооружения и комплексы православных храмов".
Требования настоящего свода правил направлены на повышение уровня безопасности и степени соответствия зданий и сооружений их функциональному назначению, на обеспечение применения единых методов определения эксплуатационных характеристик.
Настоящий свод правил выполнен авторским коллективом ООО "Институт общественных зданий" (руководитель организации-разработчика - Д.А. Рождественский, руководитель темы - канд. архит., проф. А.М. Гарнец) при участии НИИСФ РААСН (д-р техн. наук, проф. В.Г. Гагарин, канд. техн. наук А.Ю. Неклюдов, канд. техн. наук Х.А. Щиржецкий), НП "АВОК" (д-р техн. наук, проф. Ю.А. Табунщиков, канд. техн. наук, проф. М.М. Бродач, канд. техн. наук, проф. Н.В. Шилкин), ООО "Сервисэкспо" (канд. архит. Т.П. Кудрявцева), Союза архитекторов России (М.Ю. Кеслер), Ассоциации "Росэлектромонтаж", "Товарищества реставраторов" (С.В. Осышный).
Настоящий свод правил распространяется на проектирование вновь возводимых, реконструируемых и капитально ремонтируемых зданий, сооружений и комплексов православных храмов, а также помещений домовых церквей, встроенных в здания другого назначения.
Проектирование монастырских комплексов, миссий и епархиальных центров следует проводить в соответствии с утвержденными заданиями на проектирование с учетом требований
[1],
[2] и настоящего свода правил.
Настоящий свод правил не распространяется на храмы, отнесенные в установленном порядке к объектам культурного наследия.
Настоящий свод правил не распространяется на храмы, временно размещаемые в сборно-разборных и других аналогичных зданиях.
В настоящем своде правил использованы нормативные ссылки на следующие документы:
СП 1.13130.2009 Системы противопожарной защиты. Эвакуационные пути и выходы (с изменением N 1)
СП 5.13130.2009 Системы противопожарной защиты. Установки пожарной сигнализации и пожаротушения автоматические. Нормы и правила проектирования (с изменением N 1)
СП 31.13330.2012 "СНиП 2.04.02-84* Водоснабжение. Наружные сети и сооружения" (с изменениями N 1, 2)
СП 42.13330.2016 "СНиП 2.07.01-89* Градостроительство. Планировка и застройка городских и сельских поселений"
СП 59.13330.2016 "СНиП 35-01-2001 Доступность зданий и сооружений для маломобильных групп населения"
СП 60.13330.2016 "СНиП 41-01-2003* Отопление, вентиляция и кондиционирование воздуха"
СП 118.13330.2012 "СНиП 31-06-2009 Общественные здания и сооружения" (с изменениями N 1, 2)
СП 136.13330.2012 Здания и сооружения. Общие положения проектирования с учетом доступности для маломобильных групп населения (с изменениями N 1, 2)
СП 138.13330.2012 Общественные здания и сооружения, доступные маломобильным группам населения. Правила проектирования (с изменением N 1)
СП 251.1325800.2016 Здания общеобразовательных организаций. Правила проектирования (с изменением N 1)
СанПиН 2.1.2882-11 Гигиенические требования к размещению, устройству и содержанию кладбищ, зданий и сооружений похоронного значения
СанПиН 2.3.6.1079-01 Санитарно-эпидемиологические требования к организации общественного питания, изготовлению и оборотоспособности в них пищевых продуктов и продовольственного сырья
СН 2.2.4/2.1.8.562-96 Шум на рабочих местах, в помещениях жилых, общественных зданий и на территории жилой застройки
Примечание - При пользовании настоящим сводом правил целесообразно проверить действие ссылочных документов в информационной системе общего пользования - на официальном сайте федерального органа исполнительной власти в сфере стандартизации в сети Интернет или по ежегодному информационному указателю "Национальные стандарты", который опубликован по состоянию на 1 января текущего года, и по выпускам ежемесячного информационного указателя "Национальные стандарты" за текущий год. Если заменен ссылочный документ, на который дана недатированная ссылка, то рекомендуется использовать действующую версию этого документа с учетом всех внесенных в данную версию изменений. Если заменен ссылочный документ, на который дана датированная ссылка, то рекомендуется использовать версию этого документа с указанным выше годом утверждения (принятия). Если после утверждения настоящего свода правил в ссылочный документ, на который дана датированная ссылка, внесено изменение, затрагивающее положение, на которое дана ссылка, то это положение рекомендуется применять без учета данного изменения. Если ссылочный документ отменен без замены, то положение, в котором дана ссылка на него, рекомендуется применять в части, не затрагивающей эту ссылку. Сведения о действии сводов правил целесообразно проверить в Федеральном информационном фонде стандартов.
В настоящем своде правил применены следующие термины с соответствующими определениями:
3.1 алтарь: Главное помещение храма, ориентированное на восток, отделенное иконостасом и находящееся на возвышении по отношению к уровню пола остальных частей храма.
3.2 амвон: Часть солеи, выступающая в центр храма перед Царскими вратами.
Примечание - Архиерейский амвон - четырехугольное возвышение в центре храма, на которое во время богослужения ставится архиерейская кафедра.
3.3 апсида: Восточная сторона (стена) алтаря с полукруглой, многогранной либо усложненной формой плана, перекрытая полукуполом или сомкнутым полусводом (конхой).
Примечания
1 Конха - перекрытие апсиды в форме полукупола или сомкнутого полусвода.
2 В трехчастной апсиде могут располагаться собственно алтарь, ризница и жертвенник.
3.4 барабан: Завершающая часть храма цилиндрической или многогранной формы, несущая главу, купол или сомкнутый свод; в большинстве случаев имеет световые проемы.
Примечание - Барабан без проемов называется шеей.
3.5 глава: Завершение барабана в форме "шлема" или "луковицы" с яблоком и крестом.
3.6 голосники (резонаторы): Небольшие камеры или глиняные сосуды, размещаемые в верхней части стен храма и открытые внутрь помещения для усиления звука.
3.7 Горнее место: Выступающая часть алтарной апсиды, где на возвышении располагается место архиерея.
3.8 гульбище: Открытый или крытый обход в виде галереи, окружающей здание храма с трех сторон, кроме восточной, расположенный на уровне второго этажа.
3.9 журавец: Каждый из элементов каркаса главы, крепящийся к центральному столпу, несущему крест, в виде деревянного шаблона с абрисом поверхности вращения главы.
3.10 закомара: Завершение верхней части прясла полукруглой или килевидной формы на наружной стене храма; обычно соответствует форме внутреннего свода; может быть декоративной.
3.11 звонница: Отдельно стоящее, пристроенное к храму или надстроенное над храмом в его западной части сооружение с открытыми проемами, предназначенное для размещения колоколов (как правило, не имеет башнеобразного завершения), или плоская стенка с проемами, размещенными ярусами для подвешивания колоколов.
3.12 иконостас: Вертикальная конструкция в виде перегородки, отделяющая алтарь от остального пространства храма, заполненная двумя - пятью рядами икон, крепящихся к горизонтальным тягам (тяблам), в строгом соответствии с церковным каноном и завершаемая Распятием.
3.13 канон: Свод положений, имеющих догматический характер и определяющих систему стилистических и иконографических норм в композиции, колорите, пропорциях; в храмовой архитектуре роль канона выполняет "каноническая традиция" - образцовые сооружения, принятые Церковью, как отражающие средствами архитектуры богословское содержание храма.
3.14 кафедральный собор: Городской храм, в котором находится кафедра архиерея.
3.15 клирос: Боковая часть солеи (обычно северная), предназначенная для церковного клира (хора певчих и чтецов).
3.16 кокошник: Декоративный элемент или ложная закомара полукруглой, трехцентровой, килевидной или двухскатной формы со сложной профилировкой; служит для завершения прясел стен, оконных проемов, обрамления оснований барабанов, шатров, для наружного оформления сопряжения сводчатой конструкции в виде горки кокошников.
3.17 колокольня: Отдельно стоящее, пристроенное к храму или надстроенное сооружение в виде высокой многоярусной башни, предназначенное для подвешивания колоколов, с шатровым завершением и главкой, имеет открытые проемы (слухи).
3.18 крещальня: Здание (или помещение), завершаемое куполом с крестом, оборудованное купелью, предназначенное для совершения в нем таинства Крещения.
3.19 купол: Полусферическое покрытие здания (или его части) круглой, квадратной или многогранной формы. Куполами являются и наружные покрытия храмов формы "шлем" или "луковица".
3.20 луковица: Форма купола в виде шарового сегмента, высота которого равна не более трех четвертей диаметра восстановленной сферы.
3.21 микроклимат храма: Состояние внутренней среды, характеризуемое показателями температуры, относительной влажности, подвижности и газового состава внутреннего воздуха, обеспечиваемое системами отопления, вентиляции и кондиционирования воздуха (при необходимости), а также теплозащитными показателями наружных ограждающих конструкций.
3.22 надвратная церковь: Храм, расположенный над воротами монастырских стен или церковной ограды.
3.23 неф (корабль): Средняя часть храма, вытянутая в длину с востока на запад, ограниченная от боковых нефов колоннадами, аркадами или столпами.
3.24 паникадило: Крупная люстра с более чем 12 светильниками, подвешиваемая в центре средней части храма.
3.25 паперть: Широкое открытое крыльцо (иногда с навесом) или галерея, устроенная перед входом в храм (внешний притвор).
3.26 подклет: Нижний ярус в церквях, который может использоваться как теплый (зимний) храм или как подземное помещение храма, служащее для погребения и выставления для почитания мощей святых.
3.27 позакомарное покрытие: Кровля, уложенная непосредственно по сводам закомар (комарам).
3.28 поликандило: Напольный многосвечник, размещаемый в нефах храма, объединяющий семь или 12 свечей.
3.29 пономарка (протезис): Подсобное помещение в алтарной части храма (как правило, размещается в северной части), предназначенное для хранения богослужебных предметов.
Примечание - Вместе с ризницей (диаконником) составляет пастофорий.
3.30 престол: Неподвижный четырехугольный стол, стоящий в центре алтаря; в соборах или больших храмах над престолом устанавливают сень (киворий).
Примечание - Киворий - алтарная сень, навес над престолом в алтаре в виде купола, опирающегося на колонны и завершающегося крестом; как правило, устраивается в соборах и крупных храмах.
3.31 придел: Дополнительное помещение с собственным престолом в алтаре и иконостасом, примыкающее к основному зданию храма либо включенное в его основной объем.
3.32 притвор (нартекс): Помещение, пристраиваемое к западной стене храма и служащее в качестве входного тамбура; может быть расширен за счет помещения трапезной.
3.33 прясло: Наружная часть стены храма, заключенная между двумя лопатками или пилястрами, завершаемая закомарой.
Примечание - Лопатка - вертикальный плоский и узкий выступ на стене, напоминающий пилястру, но не имеющий базы и капители; плоскость стены, разделенная лопатками, образует отдельные прясла.
3.34 решетка: Несплошное, сквозное (ажурное) ограждение территорий храмов (в противоположность глухим оградам).
3.35 ризница (диаконник): Помещение в южной части алтаря или под алтарем, предназначенное для хранения облачений священнослужителей, богослужебных принадлежностей и церковной утвари; может быть отдельным зданием.
3.36 свод (взвод): Каменная, кирпичная или бетонная конструкция перекрытия, имеющая выпуклую криволинейную поверхность, передающую на основание нагрузку и распор.
3.37 сень: Художественно оформленный навес на колоннах (столпах), возводимый над престолом или купелью.
3.38 слухи: Открытые проемы (отверстия, продушины) в шатровом покрытии колоколен, обрамленные наподобие оконных проемов наличниками.
3.39 собор: Главный храм в городе или монастыре, предназначенный для богослужения епархиального архиерея.
3.40 солея (внешний престол): Возвышение части пола перед иконостасом, находящееся на отметке пола алтаря, предназначенное для выходов священнослужителей во время богослужений; в середине солеи находится амвон, по бокам - клиросы.
3.41 стилобат, стилобатная часть храма (здесь): Цокольный этаж, как правило, выступающий за пределы абриса выше расположенной части здания. Обычно применяется при сложном рельефе места строительства.
3.42 столп: Массивная несущая опора, поддерживающая и имеющая в плане прямоугольное, круглое или крестообразное сечение.
3.43 трапезная: Столовая палата в монастыре или помещение для трапезы в церковно-причтовом доме.
3.44 трапезная [трапезная (молитвенная) часть храма]: Пониженная западная часть, примыкающая к его главному объему и служащая для размещения прихожан (молящихся).
3.45 трибун: Квадратное основание барабана главы храма.
3.46 хоры: Антресольное пространство, расположенное, как правило, над западным притвором (нартексом) в виде открытой галереи или балкона и предназначенное преимущественно для церковного хора.
3.47 храм (церковь): Здание, предназначенное для молитвенного собрания верующих, где проводятся богослужения. Православный храм имеет следующие характерные признаки: здание имеет алтарь с престолом, отделенный от средней части иконостасом; квадратная или прямоугольная форма в плане; апсида расположена на восточной стороне, притвор - на западной стороне; завершается куполом или системой куполов, несущих кресты.
3.48 часовня: Небольшое культовое здание без алтаря, предназначенное для молитвенного собрания или частной молитвы верующих.
Примечание - Также придорожный столб с иконой и лампадой в нише.
3.49 шатер: Завершение (покрытие) внутреннего пространства храма, колокольни, часовни в форме высокой четырехгранной или восьмигранной пирамиды.
3.50 яблоко: Основание для креста в форме шара, венчающего купол или шатер храма.
3.51 ярусы: Уровни членения храма или колокольни по вертикали.
4.1 Проектирование храмов осуществляется на основании задания на проектирование и в соответствии с принятыми канонами - сводом христианских правил.
4.2 Кроме требований настоящего свода правил при проектировании следует также учитывать требования
СП 118.13330.
4.3 Храмовые комплексы в соответствии с функциональным назначением подразделяются на епархиальные центры, духовные миссии, приходские и монастырские комплексы, а также храмы в составе комплексов, зданий и сооружений общественного и жилого назначения.
Размещение, примерный состав, основной и дополнительный набор зданий, сооружений и помещений богослужебного и вспомогательного назначения приведены в таблице 4.1.
Таблица 4.1
Примерный состав зданий, сооружений
и помещений храмового комплекса
Вид комплекса | Рекомендуемое размещение на селитебной территории <*> | Здания, сооружения и помещения (вместимость) | Примечание |
Вид храмового комплекса (вместимость) | Объекты | Административно-хозяйственные подразделения | Дополнительные объекты |
1 Епархиальный центр | - | Собор (2 - 5 тыс. чел.) | Часовня. Крещальня. Колокольня. Домовая церковь | Епархиальное управление. Церковно-причтовый дом. Хоз. службы, в том числе гараж | Духовное училище. Воскресная школа. Редакция издательства. Архиерейский дом. Церковная лавка | - |
2 Православная миссия | В пределах селитебной территории города | Храм (до 100 чел.) | Крещальня. Часовня | Церковно-причтовый дом. Хоз. службы. Церковная лавка | Воскресная школа. Гостиница. Жилые дома причта | - |
3 Приходской комплекс | Городской | Центр планировочного района | Храм (500 - 2500 чел.) | Крещальня. Часовня | Церковно-причтовый дом. Хоз. службы. Церковная лавка | Воскресная школа (гимназия). Гостиница. Богадельня. Медицинский пункт. Жилые дома причта | Развернутый состав приходского комплекса см. в таблице 4.3 |
Сельский | Центр сельского поселения | Храм (100 - 500 чел.) | Летний храм. Часовня | Церковно-причтовый дом. Хоз. службы | Воскресная школа Гостиница Жилые дома причта | - |
4 Монастырский комплекс | Монастырь | Пригородная зона селитебной территории. Городской район. Сельское поселение | Храм (100 - 2000 чел.) | Трапезный храм. Больничный храм. Надвратный храм. Домовый храм. Колокольня. Часовня | Келейный корпус. Дом наместника. Хоз. службы. Церковная лавка | Воскресная школа. Производственные мастерские. Гостиница | - |
Скит | Территория монастыря. Пригородная зона. Вне населенных пунктов | Храм (50 - 100 чел.) | Часовня | Келейные корпуса. Хоз. службы | - | - |
Подворье | Городской район. Сельское поселение | Храм (100 - 600 чел.) | Часовня | Келейный корпус. Гостиница. Адм. службы. Хоз. службы. Церковная лавка | Корпус наместника. Воскресная школа. Мастерские. Склад. Гараж | - |
5 В составе комплексов и зданий общественного назначения | Кладбище | Входная зона кладбищ | Храм (100 - 900 чел.) | Часовня | Церковно-причтовый дом. Хоз. службы. Церковная лавка | Производственные мастерские | - |
Часовня | - |
Мемориальный комплекс | Мемориальная зона селитебной территории. Пригородная зона | Храм (50 - 500 чел.). Часовня | Звонница | Помещения: - церковного причта; - хозяйственные | - | - |
6 В составе комплексов и зданий общественного назначения | Учреждения социального назначения, медицинские учреждения | Территория учреждения; встроены в здания учреждений (верхний этаж) | Храм (50 - 100 чел.). Часовня | - | Помещения церковного причта | - | Вспомогательные помещения встроены |
Учебные заведения | Встроены в здания учебных заведений (верхний этаж) | Храм (100 - 500 чел.). Часовня | - | Помещения церковного причта | - | Вспомогательные помещения встроены |
Воинские части | Территория части | Храм (100 - 300 чел.). Часовня | - | Помещения церковного причта | - | Вспомогательные помещения встроены |
Места заключения | Территория зоны, тюрьмы | Храм (100 - 300 чел.). Часовня | - | Помещения церковного причта | - | Вспомогательные помещения встроены |
7 В жилых зданиях | Жилые здания | Встроены в жилые здания | Домовая церковь. Часовня | - | - | - | - |
<*> Размещение и вместимость уточняются по местным нормативам градостроительного проектирования в задании на проектирование. |
4.4 Вместимость храмов определяется исходя из численности и демографического состава населения.
Примерная вместимость городских приходских храмов приведена в таблице 4.2.
Таблица 4.2
Примерная вместимость городских приходских храмов
Численность населения, тыс. чел. | Требуемая вместимость храмов, чел. |
60 | 450 |
120 | 900 |
200 | 1500 |
Примечание - Показатель вместимости соответствует посещаемости храмов в праздничные дни (для регионов с преимущественно православным населением). |
4.5 Наиболее распространенным видом храмового комплекса является приходской.
Оптимальный перечень групп зданий, сооружений и помещений приходских храмовых комплексов, который может быть уточнен в задании на проектирование, приведен в таблице 4.3.
Таблица 4.3
Перечень зданий, сооружений и помещений
приходских храмовых комплексов
Назначение групп зданий, сооружений и помещений | Перечень зданий, сооружений и помещений | Единицы измерения | Оптимальное количество |
Богослужебные | Храм (с одним - тремя приделами), в том числе летний и зимний. | чел. | 100 - 1500 |
Колокольня (звонница). | ярус | 1 - 3 |
Крещальня. | м2 | 30 - 150 |
Часовня | чел. | 1 - 25 |
Служебно-бытовые | Церковно-причтовый дом. | м2 | До 1000 |
Гостиница. | чел. | До 20 |
Жилые дома причта | квартира | |
Просветительские | Воскресная школа. | чел. | До 100 |
Гимназия. | чел. | До 300 |
Библиотека | чел. | До 15 |
Благотворительные | Богадельня. | чел. | До 25 |
Медицинский пункт. | посещ./день | До 30 |
Комната матери и ребенка. | чел. | До 15 |
Трапезная | место | До 350 |
Хозяйственные | Церковная лавка (киоск, магазин). | м2 | 5 - 50 |
Просфорная. | м2 | 20 - 100 |
Художественные мастерские. | м2 | 20 - 100 |
Гараж. | автомобиль | 1 - 5 |
Склады | м2 | До 50 |
4.6 При проектировании зданий и сооружений храмовых комплексов следует предусматривать устройства и мероприятия для удобного доступа маломобильных групп населения (МГН) и пользования ими помещениями в соответствии с требованиями
СП 59.13330,
СП 136.13330 и
СП 138.13330.
Места и элементы, доступные для МГН, устанавливают в задании на проектирование, согласованном с заказчиком.
4.7 Нормативные значения равномерно распределенных временных нагрузок на плиты перекрытий, лестницы и полы на грунтах следует принимать не менее 400 кгс/м2; коэффициент надежности по нагрузке следует принимать равным 1,2.
4.8 При реконструкции, приспособлении для современного использования и капитальном ремонте зданий и сооружений православных храмов, являющихся объектами культурного наследия, кроме требований, указанных в настоящем своде правил, следует учитывать требования законодательства в области сохранения, использования и государственной охраны объектов культурного наследия, в том числе требования
[4].
В случае нового строительства на территориях объектов культурного наследия проектирование следует вести на основании планового задания, выдаваемого органом исполнительной власти в области сохранения, использования, популяризации и государственной охраны объектов культурного наследия с учетом требований
[4].
4.9 Проектирование противопожарной защиты зданий, сооружений и храмовых комплексов, а также соблюдение противопожарного режима при их строительстве, реконструкции и ремонте должны осуществляться в соответствии с требованиями
[3], требованиями пожарной безопасности, предъявляемыми к объектам религиозного назначения, и другими действующими нормами и правилами.
Размещение храма на участке, его объемно-планировочное решение, обеспечение безопасной эвакуации людей при пожаре, оборудование системами пожарной безопасности должны соответствовать требованиям пожарной безопасности, предъявляемым к объектам религиозного назначения.
4.10 Для подсчета общей, полезной и расчетной площадей, строительного объема, площади застройки и этажности зданий и сооружений храмовых комплексов рекомендуется руководствоваться
приложением А настоящего свода правил и
приложением Г СП 118.13330.2012.
4.11 Строительный объем зданий храмов рекомендуется принимать при проектировании на одно расчетное место, м3, не менее:
- приходских храмов - 4;
- соборов - 6.
Примечание - В зависимости от объемно-планировочного решения допускается увеличение или уменьшение указанных значений.
5 Требования к размещению и участкам храмовых комплексов
5.1 Место для строительства храмового комплекса на селитебных территориях отводится в соответствии с утвержденным документом территориального планирования - генеральным планом поселения, генеральным планом городского округа.
Примерный расчет городской сети православных храмов следует осуществлять по
приложению Б.
Участок для строительства храмового комплекса, расположенного за пределами границ городского и сельского поселения, отводится на основе документов территориального планирования муниципального образования - схемы территориального планирования муниципального района.
5.2 На селитебной территории здания, сооружения и храмовые комплексы следует размещать на основании градостроительного задания вблизи существующих инженерных коммуникаций и дорог с условием обеспеченности общественным пассажирским транспортом.
Пути подходов к храмам не должны пересекать в одном уровне проезжую часть магистральных улиц. Примерная
схема генерального плана приходского храма приведена в приложении В.
5.3 Размеры земельных участков приходских храмовых комплексов, включающих основные здания и сооружения богослужебного и вспомогательного назначения, рекомендуется принимать исходя из удельного показателя земельного участка 7 м2 площади участка на единицу расчетной вместимости храма.
При строительстве храмовых комплексов в районах затесненной городской застройки допускается уменьшение удельного показателя земельного участка, но не более чем на 20 - 25%.
5.4 Минимальные расстояния между зданиями следует принимать в соответствии с требованиями пожарной безопасности и
СП 42.13330.
5.5 Планировку территорий епархиальных центров, духовных миссий и комплексов общественного назначения, включающих здания и сооружения православных храмов, следует осуществлять в соответствии с заданием на проектирование и градостроительным планом земельного участка.
5.6 На земельных участках храмовых комплексов не рекомендуется размещать здания и сооружения, функционально не связанные с ними. Допускается предусматривать рядом с земельными участками храмов участки для размещения жилых домов церковного причта, богаделен, гостиниц, церковных мастерских и хозяйственных служб храма. Размеры участков и номенклатура зданий и сооружений, размещаемых на смежных участках, устанавливаются заданием на проектирование.
При обосновании в зависимости от местных условий жилые дома церковного причта, которые следует проектировать в соответствии с
СП 54.13330, допускается размещать на земельных участках храмов.
5.7 Территорию храмового комплекса следует подразделять на функциональные зоны:
- входную;
- храмовую;
- вспомогательного назначения;
- хозяйственную.
5.8 Во входной зоне следует предусматривать въезд для автотранспорта и вход для прихожан.
В этой зоне предусматриваются церковные лавки по распространению церковной литературы, свечей, оформлению треб, продаже церковных принадлежностей, места для отдыха прихожан, общественные уборные.
5.9 Храмовая зона, предназначенная для проведения богослужений, должна иметь непосредственную связь с входной и вспомогательной зонами.
В храмовой зоне следует предусматривать здания храмов, колоколен и звонниц, часовен, памятников, водосвятных колодцев, площадки для проведения культовых мероприятий.
Вокруг храма должен быть обеспечен круговой обход для прохождения Крестного хода во время церковных праздников. Ширина обхода должна быть от 3 до 5 м с площадками шириной до 6 м перед боковыми входами в храм, а также со стороны алтаря. Ширина обхода должна обеспечивать проезд пожарной техники.
Перед главным входом в храм следует предусматривать площадь из расчета 0,2 м2 на единицу расчетной вместимости храма.
Ориентация алтаря храма в плане должна быть в восточном направлении. В соответствии с градостроительными особенностями выделяемого участка допустимо возможное смещение оси храма в пределах 30°.
5.10 Ограждение участка следует размещать не ближе 3 м от здания храма для организации кругового обхода вокруг храма.
При реконструкции и строительстве храмов в районах затесненной городской застройки это расстояние может быть сокращено вплоть до красных линий застройки с выходом Крестного хода за пределы храмовой территории.
5.11 В храмовой зоне допускается устройство захоронений в соответствии с
СанПиН 2.1.2882.
5.12 Церковно-причтовый дом, гостиница и воскресная школа могут быть отдельно стоящими или сблокированными между собой, а иногда с храмом и хозяйственным блоком.
Богадельню рекомендуется располагать вблизи озелененных участков храмового комплекса.
Общественные уборные для прихожан размещаются в отдельно стоящем здании на расстоянии не менее 50 м от храма. Также общественные уборные могут быть сблокированы с другими вспомогательными зданиями храмового комплекса или размещаться в них, если эти вспомогательные здания не сблокированы с храмом. Уборные для священнослужителей следует размещать отдельно от общественных уборных. Допускается предусматривать асфальтированную площадку на удалении не менее 50 м от храма для временного размещения мобильных кабинок в церковные праздники при большом скоплении верующих.
5.13 При ограниченной площади участка храма или сложном рельефе допускается размещать здания и сооружения вспомогательного назначения, кроме уборных, в подклете храма или пристройках к нему.
5.14 Хозяйственная зона приходского храмового комплекса, предназначенная для размещения хозяйственных сооружений, в том числе складов, мастерских, гаража для автотранспорта, площадки для мусоросборника и печного устройства для сжигания поминальных записок, должна иметь подъезды со стороны транспортных магистралей и быть оборудована стоянкой автомобилей для грузового и легкового автотранспорта, принадлежащего храму.
Площадь хозяйственной зоны определяется размерами зданий и сооружений хозяйственного назначения, числом автотранспортных средств, определяемым заданием на проектирование, и составляет ориентировочно 15% площади земельного участка.
Подъезд грузовых транспортных средств следует предусматривать со стороны хозяйственной зоны храмового комплекса.
5.15 На земельных участках следует предусматривать подъездные дороги к главному входу в храм, а также к основным эвакуационным выходам из всех зданий и сооружений, входящих в храмовый комплекс.
5.16 Участок приходского храмового комплекса огораживается по всему периметру. Ограду рекомендуется выполнять из сквозных металлических решеток высотой 1,5 - 2,0 м.
Главный вход следует размещать со стороны подходов и остановок общественного транспорта с ориентацией на главный вход в храм.
При вместимости храма более 300 человек следует предусматривать второй въезд на территорию со стороны хозяйственной зоны.
Размеры и устройство калиток в оградах должны обеспечивать беспрепятственный проход для прихожан на креслах-колясках.
Высота проема ворот для въезда пожарных автомобилей на храмовую территорию должна быть не менее 4,5 м, а ширина - не менее 3,5 м.
Допускается не ограждать земельные участки храмов, расположенных в мемориальных комплексах, на кладбищах, а также часовен.
5.17 За пределами ограды храмовых комплексов следует предусматривать стоянки автомобилей из расчета двух машино-мест на 50 человек расчетной вместимости храма.
Выходы из стоянок легковых автомобилей и автобусов, а также остановки общественного транспорта следует располагать на расстоянии, как правило, не далее 50 м от входа на участок храмового комплекса.
При размещении парковочных мест на стоянках автомобилей следует предусматривать места для хранения (стоянки) электромобилей, оборудованные зарядными устройствами, в соответствии с требованиями
СП 113.13330. Расчетную потребность парковочных мест, оборудованных зарядными устройствами, следует устанавливать в соответствии с заданием на проектирование, но не менее установленных
СП 118.13330.
(абзац введен
Изменением N 1, утв. Приказом Минстроя России от 28.12.2023 N 1004/пр)
5.18 Участок храмового комплекса должен быть озеленен на площади не менее 15%.
Подбор растений, в том числе кустов и цветов, рекомендуется проводить таким образом, чтобы обеспечить непрерывное цветение в течение всего весенне-летне-осеннего сезона.
5.19 Дороги, площадки и обход вокруг храма должны иметь твердое покрытие с вертикальной планировкой, обеспечивающей сток дождевых вод.
Твердое покрытие должно обеспечивать проезд пожарных автомобилей.
6 Здания и сооружения богослужебного назначения
6.1 Конструктивная безопасность зданий храма должна соответствовать требованиям
[1],
[2] и разработанным на их основе нормативным документам, применение которых обеспечивает соблюдение требований
[2].
Обеспечение безопасной эвакуации людей при пожаре должно соответствовать
[3] и
СП 1.13130.
6.2 Здание храма предназначено для проведения богослужений.
Храм планировочно состоит из трех основных частей:
- алтаря;
- средней части храма;
- притвора с папертью.
Здание храма может включать в свой состав также приделы, колокольню, трапезную, пристроенную крещальню.
Храм может состоять из одного пространства, разделенного иконостасом на помещения алтаря и собственно храма.
6.3 Основные варианты объемно-планировочных решений отдельно стоящих храмов приведены в таблице 6.1.
Таблица 6.1
Основные варианты объемно-планировочных
решений отдельно стоящих храмов
Объекты объемно-планировочных решений | Основные варианты решения |
Число нефов | Однонефный. Трехнефный. Пятинефный и более |
Число столпов | Бесстолпный. Четырехстолпный. Шестистолпный и более |
Структура плана | Двухчастная: алтарь - храм. Трехчастная: алтарь - центральная часть - притвор с папертью (+ трапезная) |
Форма плана | Крестовая. Прямоугольная (квадратная). Круглая. Восьмиугольная |
Расположение приделов | В средней части. В трапезной части. Пристроены |
Расположение колокольни (звонницы) | Отдельно стоящая. Пристроена. Надстроена. Встроена, в том числе в барабан главы |
Расположение алтаря | Встроен. Пристроен |
Расположение хоров в средней части | На западной стороне. П-образное в плане с северной, западной и южной сторон |
Форма кровельного покрытия | Купольная. Позакомарная. Шатровая. Щипцовая |
Число глав в завершении | Одноглавая. Многоглавая (три, пять и более) |
Число ярусов (этажей) | Один ярус. Два яруса - храм с подклетом. Три яруса - нижний с подклетом и верхний храмы |
6.4 Следует применять формы основных элементов храма, его функциональные и декоративные элементы, установленные православной традицией и символикой:
- завершение храма главой с крестом, ориентированным на запад;
- приподнятость уровня пола храма над уровнем земли, а также приподнятость солеи с алтарем над уровнем пола храма (может не соблюдаться в домовых и ряде древних храмов);
- округлые формы сводов, арок, куполов, глав, завершений оконных и дверных проемов в каменных храмах или иные формы; силуэт храма, повышающийся к центру;
- система организации естественного освещения в средней части храма.
6.5 Алтарь должен быть размещен с восточной стороны храма.
Он может быть встроенным в основной объем или пристроенным, но в любом случае должен располагаться по центральной оси здания.
В храмах вместимостью до 300 человек устраивают, как правило, один алтарь. В храмах большей вместимости в приделах допускается устраивать свои алтари согласно заданию на проектирование.
6.6 Уровень алтарной части храма по отношению к средней части и притвору должен быть поднят на одну или три ступени с высотой подступенков 0,12 - 0,15 м.
6.7 Габариты алтаря и подсобных помещений при нем в зависимости от его вместимости устанавливаются заданием на проектирование.
Глубина алтаря в малых и домовых храмах должна составлять не менее 3,0 м.
Престол (размер стороны 0,8 - 1,0 м) размещается на расстоянии до Царских врат иконостаса не менее 1,3 м.
Вокруг престола должен быть предусмотрен круговой обход с расстоянием от престола до запрестольного образа (Горнего места) не менее 0,9 м.
В кафедральных соборах у Горнего места на возвышении должны быть устроены сидячие места для архиерея (в центре) и других священнослужителей (по обеим сторонам).
6.8 При алтарях храмов вместимостью свыше 100 человек, как правило, устраиваются подсобные помещения (пономарки, диаконники, ризницы) площадью от 4 до 12 м2 по заданию на проектирование. Входы в них организуются из алтаря; при этом установка дверей не обязательна.
6.9 Входы из средней части храма в алтарь должны быть организованы в иконостасе через Царские врата, южную и северную двери. Устройство порогов в них не допускается. Дополнительный выход из алтаря может быть организован непосредственно наружу, через подсобные помещения алтаря или через иконостасные двери придела.
6.10 Ширина солеи перед алтарем составляет не менее 1,2 м.
Напротив Царских врат на солее располагают амвон многогранной или полукруглой формы с радиусом 0,5 - 1,0 м на уровне верхней ступеньки.
6.11 В храмах вместимостью более 300 человек солея может быть укомплектована декоративным решетчатым ограждением с открывающимися частями напротив дверных проемов иконостаса. Ширина каждой створки должна быть не менее 0,8 м.
6.12 По бокам солеи устраивают клиросы для размещения церковных хоров. Их ширину принимают в зависимости от вместимости храма, но не менее 2,0 м. Клиросы отделяются от средней части храма киотами для икон, обращенными к средней части храма.
В случае невозможности размещения церковных хоров на солее или открытых галереях или балконах (хорах) для них допускается устраивать огражденные помосты в средней части храма, а при наличии центральных столпов - с их восточной стороны.
6.13 Иконостас представляет собой по своей конструкции перегородку, высота которой не регламентируется, однако рекомендуется оставлять вверху проема открытую или решетчатую часть для улучшения циркуляции воздушных потоков между средней частью храма и алтарем, а также для улучшения слышимости возгласов священнослужителей.
Северную и южную двери в иконостасе выполняют одностворчатыми, открывающимися в сторону боковых стен алтаря. Рекомендуемая ширина проема - примерно 0,9 м, но не менее 0,7 м, высота - около 2,1 м. Центральная дверь (Царские врата) - двустворчатая с шириной проема ориентировочно 1,0 - 1,4 м и высотой 2,5 м. Размеры дверей иконостаса устанавливают в соответствии с заданием на проектирование.
В приделе и домовых церквях допускается устройство, помимо Царских врат, лишь одной боковой (северной) двери.
Число рядов (чинов) иконостаса не регламентируется, но должно быть не менее одного (нижнего, или местного) ряда с Распятием наверху.
6.14 Роль иконостаса может выполнять восточная стена средней части храма при пристроенном снаружи алтаре или специально устроенная перегородка, выполненная из камня, кирпича или дерева, которая может быть одноярусной или многоярусной, заполняющей проем между средней частью храма и алтарем. В четырех- и шестистолпных храмах иконостас устраивается перед восточными столпами.
На первом этапе эксплуатации храма допускается устройство временного иконостаса, выполненного на легком каркасе.
6.15 Допускается устройство временного иконостаса, выполненного на легком каркасе при начальном этапе эксплуатации храма.
6.16 Для отделки интерьеров храма предпочтение следует отдавать природным материалам, в том числе камню и дереву, а также следует учитывать их долговечность, акустические свойства и пригодность по
6.20. Для размещения прихожан используется до 90% площади средней части храма. Остальные 10% площади следует предусматривать под размещение церковной утвари, в том числе подсвечников, киотов икон, размещенных вдоль стен и вокруг столпов.
В кафедральных соборах, в случае устройства архиерейской кафедры, приподнятой на одну или несколько ступеней над уровнем пола, может быть выполнено декоративное решетчатое ограждение (высотой 0,9 м) от остального пространства средней части храма. Ограждение должно открываться в сторону алтаря и иметь створки шириной не менее 0,8 м. Вокруг архиерейской кафедры необходимо организовать проход для прихожан с южной, северной и западной сторон.
6.17 Лестница на хоры, расположенные с западной стороны храма, может быть закрытой или открытой и находиться как в притворе, так и в средней части храма.
Лестницы на хоры допускается проектировать винтовыми или с забежными ступенями, при этом ширина проступи в середине должна быть не менее 0,18 м. Марши лестниц на хоры допускаются шириной 0,9 м.
6.18 В планировочных решениях храмов необходимо учитывать размещение его оборудования. Состав оборудования здания храма включает: киоты и аналои для икон, подсвечники, поминальный стол (канун), литийный и водосвятный столы, чаны со святой водой, скамьи для отдыха прихожан, лавки для продажи свечей, купель для крещения и др. Лавки для продажи свечей устанавливают в притворах или помещениях, отделенных от молитвенных частей храма.
Особо чтимые иконы устанавливаются на возвышениях высотой 0,3 - 0,9 м. Для подъема и спуска к ним устраиваются ступени с поручнем. Допускается применение устройств для перемещения икон по высоте.
Подсвечники диаметром от 0,2 до 1,0 м устанавливают перед особо чтимыми иконами и аналоем, стоящим в центре храма.
Поминальный стол (канун) с размером стороны 0,8 - 1,2 м устанавливают в западной зоне - в средней части храма или трапезной.
В середине перекрытия или свода средней части храма, боковых нефов и приделов должны быть предусмотрены крюки для подвески паникадил и поликандил.
6.19 Места для сидения инвалидов и больных располагают вдоль западной, северной и южной стен трапезной в один ряд.
6.20 Полы в средней части храма рекомендуется выполнять из природного камня, керамики или материалов, допускающих мокрую уборку.
6.21 Стены должны быть отделаны под последующую роспись по известково-песчаной штукатурке, а также натуральным камнем, мозаикой.
6.22 Площадь храма, где располагаются прихожане, рекомендуется принимать из расчета минимально 0,5 м2 на одного человека (без учета площади для прихожан из числа МГН на креслах-колясках, равной 2,4 м2, и мест для сидения).
Общую площадь храма рекомендуется принимать из расчета до 1 м2 на единицу вместимости храма без учета алтаря и солеи с клиросами.
6.23 Главный вход в храм должен быть расположен с западной стороны. Дополнительно могут проектироваться входы с южной и северной сторон храма.
В климатических районах I, II, III и климатическом подрайоне IIIг по
СП 131.13330 при главном входе следует предусматривать тамбур. При дополнительных входах, служащих в качестве эвакуационных, тамбуры допускается не предусматривать.
Храмы, проектируемые в климатических подрайонах Iа, Iб, Iг, должны иметь тамбуры, в которых возможно устройство входа, как прямого, так и (при необходимости) с поворотом.
Ширина тамбуров должна превышать ширину дверного проема не менее чем на 0,15 м с каждой стороны, а глубина тамбуров должна превышать ширину полотна двери не менее чем на 0,2 м (при открывании дверей в одном направлении).
Пороги в дверных проемах притворов должны быть высотой не более 0,014 м.
Ширину проема в свету для основных входов в храм рекомендуется принимать не менее 1,2 м, ширину свободного прохода внутренних дверей и проемов - не менее 1,0 м.
6.24 Наружные лестницы должны иметь минимальную ширину 2,2 м.
Площадки высотой от уровня земли более 0,45 м, находящиеся при входах в храмы, должны иметь ограждения высотой не менее 0,9 м.
Входы в храмы и вспомогательные здания храмовых комплексов, пандусы и лестницы, вспомогательные средства и приспособления (подъемники, поручни, ручки и т.п.) следует проектировать в соответствии с требованиями
СП 59.13330.
6.25 Притворы могут служить в качестве входного тамбура, а также могут иметь трапезную, обеспечивающую дополнительное размещение прихожан.
К трапезной с восточной стороны могут примыкать один или несколько приделов храма.
6.26 В притворах могут быть предусмотрены церковные лавки по распространению церковной литературы, свечей, оформлению треб, по возможности изолированные от молитвенных помещений храма (трапезной и средней части), места для проведения заказных богослужений (например, молебны, панихиды), а также помещения подсобного назначения: комнаты персонала, помещения уборочного инвентаря, кладовые, гардеробы верхней одежды прихожан и обслуживающего персонала в соответствии с заданием на проектирование.
При наличии гардеробной верхней одежды, определяемой заданием на проектирование, число крючков должно быть не менее 10% расчетной вместимости храма.
6.27 Вход в притвор предусматривается с открытой или перекрытой площадки-паперти, возвышающейся над уровнем земли не менее чем на 0,45 м. На паперти должно быть предусмотрено место для размещения крышек гробов и венков.
6.28 Не допускается размещение уборных в зоне основных помещений храма: в алтаре, смежных с алтарем помещениях, зоне молитвенных помещений, в том числе в притворе и трапезной, а также над или под перечисленными помещениями. Допускается размещение уборных для священнослужителей в стилобате, в случае его отсутствия допускается размещение уборных, проход в которые должен осуществляться через смежное с притвором помещение.
Уборные общественного пользования могут располагаться в домах причта или как отдельно стоящие сооружения. При отсутствии возможности такого размещения допускается размещение внутри стилобатной части храма вблизи от входа при условии соблюдения требований
предыдущего абзаца.
6.29 Высота средней части храма (без барабана и купола) должна соответствовать размерам храма в плане, при этом притвор и алтарь могут быть меньшей высоты.
Минимальная высота помещений от пола до потолка храмов должна составлять 3 м и более. На хорах, во вспомогательных помещениях и подклете высоту помещений допускается уменьшать до 2,5 м.
В домовых церквях вместимостью до 100 человек высота всех частей церкви может быть одинаковой и соответствовать высоте этажа здания, в который встроена домовая церковь.
6.30 Каркас глав диаметром до 3 м выполняется с деревянными журавцами, крепящимися к центральному столпу, служащему основанием для креста. Для глав большего диаметра каркас может быть выполнен из металла.
Для покрытия куполов и глав используют, как правило, медные листы или листы из нержавеющей стали с последующей их окраской.
6.31 Главы имеют шлемовидную или луковичную форму, а их число должно быть не менее числа престолов в храме.
Глава должна быть увенчана крестом, ориентированным на запад.
6.32 Здания приходских и монастырских храмов, а также отдельно стоящих храмов, расположенных в общественных комплексах, следует проектировать одноярусными или двухъярусными (с подклетом, предназначенным для размещения помещений богослужебного назначения).
Кафедральные и монастырские соборы могут быть трехъярусными. При этом над и под алтарными частями храмов верхнего и нижнего ярусов не должно быть помещений иного назначения, кроме собственно алтаря. Под иными частями храмов в нижнем ярусе допускается размещать только такие помещения, как ризница и комната священнослужителя.
Домовые церкви и церкви, встроенные в общественные здания учреждений медицинского и социального назначения, учебных заведений и пр., следует размещать на верхних этажах зданий или таким образом, чтобы над алтарем не было помещений иного назначения.
6.33 Колокольни и звонницы, служащие для подвески колоколов, могут быть отдельно стоящими, пристроенными, надстроенными над притвором или встроенными в барабан главы.
Они располагаются с западной стороны храма.
6.34 Колокольни устраивают в виде высоких многоярусных башен с открытыми проемами в верхних ярусах, где подвешены колокола.
Ярусы с открытыми проемами могут быть высотой от пола до потолка: для нижнего яруса - не менее 4,0 м, а верхних - не менее 3,0 м.
Звонницы устраивают в виде крытой площадки или стенки с проемами для подвески колоколов, звон в которых можно осуществлять с площадки или уровня земли.
6.35 Для подъема на колокольню следует проектировать внутреннюю лестницу шириной не менее 0,8 м с поручнем.
6.36 Размеры проемов звонницы определяются архитектурой колокольни (звонницы) и условиями свободного распространения звона колоколов.
6.37 Звонница, независимо от числа колоколов, должна состоять из трех групп колоколов: большие (благовестники), средние (подзвонные) и малые (зазвонные).
Балки для подвески малых (массой 8 - 32 кг) и средних (массой 52 - 240 кг) колоколов следует располагать в проемах колокольни на высоте 2,0 - 2,7 м от уровня пола (звонницы).
Балки для подвески больших колоколов (массой более 240 кг) допускается размещать внутри звонницы с обеспечением расстояния от уровня пола до нижнего среза колокола не менее 1,5 м.
Малые колокола располагают, как правило, в проеме звонницы, ориентированном в сторону главного входа (подхода к храму).
6.38 Допускается применять балки с обязательным обеспечением мероприятий для снижения передачи на балки ударных и вибрационных нагрузок (подкладки, обшивка досками и др.).
6.39 Проемы в колокольнях должны иметь ограждения высотой 1,0 - 1,2 м, служащие для безопасности и крепления колокольных тяг.
6.40 Пол звонницы должен иметь уклоны к проемам в пределах 3° - 5°, служащие для отражения звука и стока воды. Поверхность пола должна быть шероховатой в целях предотвращения скольжения.
6.41 В шатровых завершениях колоколен устраивают открытые проемы (слухи), способствующие повышению турбулентности обтекающего воздушного потока в целях снижения ветровой нагрузки.
6.42 Для удобства управления колоколами допускается предусматривать помост размерами в плане не более 1,5 x 1,5 м с поручнем, стойкой и педалями для крепления тяг колоколов.
6.43 На верхних закрытых ярусах колоколен возможна установка курантов с механической передачей к тягам колоколов.
Применение технических средств звукоусиления колокольных звонов не рекомендуется, а применение вместо колокольных звонов технических средств звуковоспроизведения не допускается (см. также
приложение Б).
6.44 Крещальни, предназначенные для крещения детей и взрослых, могут быть расположены в отдельных зданиях, пристроены к зданиям храмов или встроены в храмы и церковно-причтовые дома, с обязательным понижением уровня пола крещальни по отношению к уровню существующего пола.
В крещальне должны быть соблюдены нормы температурно-влажностного режима согласно
разделу 9 и организована самостоятельная система вентиляции.
6.45 В состав помещений крещален входят: крещальня, подсобное помещение для священнослужителя, раздевальные для взрослых крещаемых, для переодевания младенцев, помещение для ожидания.
В крещальных храмах при крещальне устраивается алтарь.
Вместимость и площади помещений крещален определяются заданием на проектирование. Высоту помещений крещален от пола до потолка следует принимать не менее 3 м.
6.46 В крещальнях для взрослых крещаемых следует устраивать стационарную купель с подводкой горячей и холодной воды и сливом освященной воды в отдельный дренажный колодец, расположенный на храмовой территории, с учетом требований
раздела 9.
Также может быть предусмотрена переносная купель.
6.47 Размер купели для взрослых должен быть не менее 1 x 1 м с высотой уровня воды 0,9 м для обеспечения полного погружения в воду.
6.48 Борта стационарной купели в крещальне должны подниматься над уровнем пола на высоту от 0,6 до 0,9 м с обеспечением уровня воды на высоте соответственно от 0,3 до 0,6 м от пола.
Стены крещальни выполняются из кирпича или бетона и облицовываются мрамором, керамической плиткой или другим материалом, допускающим влажную уборку.
Ванна купели может быть выполнена из нержавеющей стали или пластика.
6.49 Для подъема и спуска в купель предусматривают ступени с поручнем. Над купелью допускается устраивать сень в виде шатрового или купольного покрытия на столпах, выполненную из дерева, камня или металла.
6.50 Помещения крещален должны быть оборудованы переносными купелями диаметром 0,6 - 0,9 м для крещения младенцев, столами шириной 0,9 м для переодевания грудных детей и устройством для подогрева воды до необходимой температуры при отсутствии подвода системы горячего водоснабжения.
Для установки купели для крещения младенцев следует предусматривать свободное пространство для кругового обхода вокруг купели шириной не менее 0,9 м.
6.51 Полы в крещальнях рекомендуется выполнять из влагостойких материалов - мрамора, керамической плитки; рекомендуется предусматривать систему подогрева.
6.52 Часовни могут быть отдельно стоящими на селитебной и кладбищенской территории или в природной среде, пристроенными или встроенными; могут входить в состав храмового комплекса, комплекса общественного назначения или отдельно стоящего здания.
Часовни могут быть отапливаемыми и неотапливаемыми, закрытыми и открытыми, одноэтажными и с подклетом. Материал часовен - камень, кирпич, дерево, металл или бетон.
6.53 Выделяют по назначению водосвятные, погребальные, мемориальные и богослужебные часовни.
Водосвятные часовни устраивают над колодцами, водоемами, скважинами и другими источниками воды в виде навесов или закрытых сооружений площадью от 4 до 30 м2.
Погребальные часовни устраиваются над погребальными камерами и могилами в виде открытых или закрытых сооружений площадью от 2 до 10 м2.
Мемориальные часовни отмечают значимые для Православной церкви места.
Богослужебные часовни чаще всего устраивают при отсутствии храма или для размещения чтимых икон. Их вместимость приближенно составляет от 5 до 50 человек.
6.54 Высота часовен от пола до потолка должна быть не менее 3,0 м.
Форма покрытия может быть купольной, шатровой, горкой кокошников или иной.
6.55 Здания часовен, как и храмов, должны быть увенчаны главой с крестом.
6.56 Часовни площадью до 10 м2 и вместимостью до 10 человек могут состоять из одного помещения, в часовнях большей площади и вместимости допускается организовывать вспомогательные помещения.
7 Здания и сооружения вспомогательного назначения
7.1 Церковно-причтовые дома, предназначенные для служебно-бытовых целей, включают следующие основные группы помещений: входная, административная, трапезная, отдыха, подсобная. Кроме того, в зависимости от особенностей применяемых архитектурных решений храмового комплекса и деятельности его прихода (учебной, благотворительной, хозяйственной) в состав церковно-причтовых домов могут входить группы помещений крестильного, образовательного, благотворительного, гостинично-паломнического назначения и др.
7.2 Церковно-причтовые дома могут быть как отдельно стоящими, так и сблокированными с другими зданиями вспомогательного назначения, входящими в состав храмового комплекса, в том числе с воскресными школами, богадельнями и др. Их следует проектировать с числом этажей не более четырех и не выше, чем утверждено градостроительными регламентами. Высоту этажей следует принимать в соответствии с
СП 118.13330.
Высоту этажа, где размещается крещальня, рекомендуется принимать не менее 3,0 м.
7.3 Состав помещений церковно-причтовых домов, численность церковного причта, обслуживающего и технического персонала и посетителей, на которую рассчитывают площади помещений и количество санитарно-технического оборудования, устанавливаются заданием на проектирование.
7.4 При проектировании церковно-причтовых домов следует предусматривать объединение отдельных помещений по функциональным группам исходя из правил организации приходской жизни храма с учетом санитарно-гигиенических и противопожарных требований.
7.5 Входная группа помещений включает вестибюль, помещение охраны, уборные. Гардеробную в вестибюле служебно-бытовой группы помещений допускается не предусматривать.
7.6 Группа административных помещений включает: кабинет настоятеля, кабинет старосты, бухгалтерию, зал заседания церковного совета (может быть совмещен с трапезной или классной комнатой).
Группа административных помещений должна иметь непосредственную связь с входной группой (при размещении выше первого этажа - через лестничную клетку).
При храмах вместимостью до 100 человек число административных помещений может быть уменьшено в задании на проектирование.
7.7 Трапезная группа помещений включает помещения кухни с кладовыми продуктов и холодильными камерами, трапезную для священников, трапезную для персонала. В данную группу может быть также включена трапезная для нуждающихся (см. также
7.12). В этом случае она должна быть размещена на первом этаже и иметь самостоятельный вход.
Помещения трапезной группы следует проектировать с учетом требований
СанПиН 2.3.6.1079.
7.8 Группа помещений отдыха, включающая комнаты отдыха персонала и церковного причта, должна быть расположена в зоне, обособленной от зоны, предназначенной для посетителей.
7.9 Группа подсобных помещений включает просфорную, ризницу, постирочную (прачечную) и кладовые.
Просфорную следует проектировать с соблюдением требований санитарной гигиены и пожарной безопасности, предъявляемых к помещениям, оборудованным шкафами для выпечки хлеба.
7.10 Состав помещений крещальни указан в
6.45 -
6.51.
При наличии алтаря в крещальне над ним не допускается размещение никаких помещений.
Крещальня должна быть размещена на первом этаже и иметь самостоятельный вход.
7.11 Группа учебных помещений включает классные комнаты и библиотеку духовной литературы.
Вход в библиотеку должен быть организован непосредственно снаружи и (или) из входной группы помещений.
7.12 Группа помещений благотворительной деятельности включает пункт приема-выдачи благотворительной помощи, медицинский пункт и трапезную для нуждающихся.
Вход в помещения этой группы рекомендуется устраивать отдельно от входов в остальные группы помещений.
7.13 В состав художественных и других мастерских входят помещения для работы иконописцев, пошива и ремонта церковных принадлежностей.
7.14 Примерные состав и площади помещений церковно-причтовых домов приведены в таблице 7.1.
Таблица 7.1
Примерные состав и площади помещений
церковно-причтовых домов
Группы помещений и помещения | Площадь, м2, на одного человека из числа причта |
Входная группа помещений |
1 Вестибюль | 0,5 |
2 Помещение охраны | 4 |
3 Уборные | |
Группа административных помещений |
4 Кабинеты настоятеля, старосты, бухгалтерии | 4 |
5 Зал заседаний церковного совета | 2 |
Группа помещений отдыха |
6 Комнаты отдыха причта и персонала | 4 - 6 |
7 Комнаты отдыха архиерея | По заданию |
Группа помещений трапезной |
8 Кухня с кладовой продуктов | По нормам предприятий питания |
9 Трапезная для причта | 2 |
10 Трапезная для персонала | 2 |
Группа подсобных помещений |
11 Просфорная | По заданию |
12 Ризница | По заданию |
13 Постирочная | 2 |
14 Кладовая | 2 |
Крещальня |
15 Вестибюль-ожидание | |
16 Крещальня | |
17 Подсобное помещение | |
Группа помещений благотворительной деятельности |
18 Пункт приема-выдачи гуманитарной помощи | По заданию |
19 Медицинский пункт, в том числе комната матери и ребенка | По заданию |
20 Трапезная для нуждающихся | По заданию |
Группа учебных помещений |
21 Классные комнаты | 2 |
22 Библиотека духовной литературы | По заданию |
Художественные мастерские |
23 Мастерская иконописцев | 4 |
24 Мастерская вышивальщиц | 4 |
Примечание - Площади помещений зала заседаний церковного совета и классных комнат должны быть не менее 20 м2, а остальных помещений - не менее 8 м2. |
7.15 Уборные с умывальниками в церковно-причтовых домах должны размещаться при трапезной, крещальне, комнатах отдыха церковного причта и в зонах пребывания посетителей, в том числе в составе входной группы помещений.
Для священнослужителей следует предусматривать отдельные санитарно-бытовые помещения с тамбуром, в котором необходима вешалка для одежды.
Уборные для прихожан должны быть расположены отдельно от уборных для причта с входом непосредственно с храмовой территории.
При расчете санитарных приборов соотношение мужчин и женщин среди прихожан следует принимать в пропорции 1:2.
Расчетную нагрузку на один санитарный прибор следует принимать по
СП 118.13330 с учетом требований к размерам кабинок для инвалидов по
СП 59.13330.
7.16 Проектирование зданий богаделен, паломнических и гостиничных корпусов, жилых домов причта, келейных корпусов, воскресных школ и гимназий, а также зданий иного назначения, которые могут входить в состав приходских и монастырских комплексов, епархиальных центров, следует осуществлять по заданию на проектирование с соблюдением требований
СП 54.13330,
СП 251.1325800,
СП 257.1325800 и других нормативных документов по проектированию соответствующих объектов.
7.17 Хозяйственный блок приходского комплекса должен включать гараж, мастерские и хозяйственный склад.
Площадь гаража принимают с учетом требований
СП 113.13330 из расчета 18 м
2 на один автомобиль и 30 м
2 на один автобус, площадь мастерских - по заданию на проектирование, площадь склада - 18 - 60 м
2.
7.18 Здания хозяйственного назначения должны быть, как правило, отдельно стоящими с подвалом или цокольным этажом.
Отдельные помещения (стоянки автомобилей, кладовые) могут быть сблокированы с церковно-причтовыми домами.
8 Естественное и искусственное освещение, шумозащита, звукоизоляция и акустика помещений
8.1 Естественное и искусственное освещение зданий и сооружений храмовых комплексов следует проектировать в соответствии с настоящим разделом с учетом требований
СП 52.13330.
Система освещения храма включает естественное и искусственное освещение.
Искусственное освещение помимо электрического включает освещение от лампад, висящих перед иконами, и свечей на подсвечниках.
8.2 К уровню освещенности, направленности и месту источника освещения каждой структурной части храма предъявляются свои специфические требования, обусловленные традициями храмового зодчества и функциональным назначением этих частей.
8.3 Естественное освещение притвора может быть ограниченным.
8.4 Естественное освещение средней части храма осуществляется преимущественно из верхних ярусов храма через окна в стенах и световых барабанах глав, размеры которых определяются архитектурным решением фасадов.
Площадь световых проемов рекомендуется предусматривать в пределах 10% площади пола.
Естественное освещение алтаря осуществляется, как правило, через три световых проема, центральный из которых ориентирован в восточном направлении. Допускается вместо центрального светового проема размещать икону (запрестольный образ).
8.5 На окна храмов и других зданий устанавливают решетки. Для решеток, имеющих отметку слива около 2 м от уровня земли, должна быть предусмотрена возможность открывания из помещений наружу в целях возможной эвакуации.
8.6 Допускается проектировать без естественного освещения следующие помещения:
- приделы, крещальни, коридоры, кладовые, инженерно-технические помещения, размещаемые в подклетах храмов;
- помещения в цокольных и подвальных этажах церковно-причтовых домов;
- лекционные залы, иконные лавки и другие помещения, перечень которых приведен в
приложении Д СП 118.13330.2012.
8.7 Светильники для искусственного освещения располагают следующим образом: в средней части храма подвешивают паникадила (люстры) с числом светильников более 12, в боковых нефах - с числом светильников от 7 до 12, по стенам размещают настенные бра с одним - тремя светильниками; в боковых нефах размещают поликандила.
8.8 Нормируемые показатели искусственной освещенности основных частей храмов следует принимать по
СП 52.13330, а также по таблице 8.1.
Таблица 8.1
Уровень освещенности в основных помещениях храма
Основные помещения храма | Уровни освещенности, лк, при лампах накаливания |
1 Притвор | 20 |
2 Средняя часть | 50 |
3 Алтарь | 200 |
8.9 Акустический комфорт в храмах обеспечивается комплексом мероприятий по акустике и защите от внешних и внутренних шумов.
При проектировании шумозащитных мероприятий спектральные уровни звукового давления допустимого шума в соответствии с
СП 51.13330 следует принимать по нормативной кривой шума ПС-35 и использовать методы и средства шумозащиты, приведенные в настоящем разделе.
8.10 При выборе участков для строительства храмов необходимо проведение анализа шумовой карты местности.
Размещение зданий храмов и их комплексов вблизи объектов с повышенным шумовым режимом эксплуатации (взлетно-посадочные полосы аэропортов, скоростные железнодорожные линии и т.п.) не рекомендуется, за исключением домовых храмов.
Акустические и шумозащитные мероприятия при проектировании колоколен и звонниц рекомендуется применять с учетом
приложения Г.
8.11 Вентиляционные камеры, насосные, тепловые пункты и другие помещения с оборудованием, являющимся источником шума и вибраций, не следует располагать смежно и над помещениями храмов, домовых церквей, а также помещениями в церковно-причтовых домах, используемых воскресной школой, богадельней, художественными мастерскими и другими помещениями с постоянным пребыванием людей.
Снижение шума и вибрации от этих источников достигается применением малошумного оборудования, выбором режима его работы, а также использованием звукопоглощающих конструкций в помещениях с источниками шума и установкой глушителей шума в системах вентиляции.
8.12 Выбор оптимальных параметров внутренних поверхностей помещений храмов (размеры, тип отделки) для достижения акустического комфорта следует проводить в соответствии с расчетом.
При проектировании акустики помещений храмов следует применять методы и средства, используемые при акустическом проектировании зрительных залов, с учетом специфики объемно-планировочного решения и функционального назначения православных храмов и использования голосников согласно
приложению Д.
При расчете частотной характеристики времени реверберации следует учитывать особенности акустических сигналов, передаваемых в храмах (вокализованная или пастырская речь священнослужителей, хоровые распевы), а также значительную дифференциацию акустических условий в зависимости от численности и места расположения прихожан. Объемный оптимум реверберации должен представлять собой диапазон допустимых отклонений от среднего значения времени реверберации, являющегося допустимым при различной степени заполнения храма.
8.13 При проектировании храмов с разделенным внутренним объемом на центральный и боковые нефы, трапезную и притвор звуковые поля в них следует рассчитывать с учетом взаимного акустического влияния и недиффузного характера звуковых полей в отдельных частях храма. В этом случае переходные процессы послезвучания (реверберацию) в каждой отдельной части храма следует рассчитывать изолированно с учетом совокупности следующих факторов:
- функциональное назначение, степень заполнения каждого объема;
- соотношение воздушных объемов каждой части храма, площади проемов между ними и площади размещения прихожан;
- акустическое соотношение между общими фондами звукопоглощения в отдельных объемах.
8.14 При использовании в храмах установок звукоусиления их выбор и места размещения устройств должны осуществляться в соответствии с акустическим расчетом согласно
приложению Д.
9 Инженерное оборудование
9.1 В зданиях и сооружениях храмовых комплексов следует предусматривать системы отопления и вентиляции, которые должны обеспечивать расчетные параметры внутреннего воздуха в обслуживаемой зоне, системы хозяйственно-питьевого, наружного противопожарного водоснабжения, канализацию и водостоки, а также электрооборудование, в том числе электросиловое, электроосвещение, системы телефонной сети и автоматической пожарной сигнализации.
В соответствии с заданием на проектирование здания храмов, церковно-причтовых домов и другие здания, входящие в храмовые комплексы, могут быть дополнительно оборудованы системами кондиционирования воздуха, системами телевидения, установками усиления речи, охранной сигнализации и системами оповещения о пожаре.
9.2 Расчетную температуру воздуха и другие параметры микроклимата для проектирования систем отопления и вентиляции в основных помещениях храмов следует принимать согласно таблице 9.1.
Таблица 9.1
Расчетные параметры внутреннего воздуха
обслуживаемой зоны основных помещений храма
Период года | Помещение | Параметры внутреннего воздуха |
температура tв, °C | влажность  , % | подвижность vв, м/с |
Холодный и переходный | Притвор | 12 - 16 | Не более 60 | Не более 0,2 |
Средняя часть храма | 14 - 16 | Не более 60 | Не более 0,2 |
Алтарь | 16 - 20 | Не более 60 | Не более 0,1 |
Ризница, диаконский придел | 16 - 20 | Не более 60 | Не более 0,2 |
Крещальня | 23 - 26 | Не более 60 | Не более 0,2 |
Теплый | Все помещения | | Не более 75 | Не более 0,3 |
<*> Расчетное значение температуры должно быть не более чем на 3 °C выше расчетной температуры наружного воздуха по параметрам A СП 131.13330. |
9.3 Расчетное значение воздухообмена для проектирования систем вентиляции в основных и сопутствующих помещениях храмов следует принимать согласно таблице 9.2.
Таблица 9.2
Расчетный воздухообмен в помещениях храма
Помещение | Кратность воздухообмена, ч-1, или правило для назначения расчетного объема приточного/вытяжного воздуха |
Приток | Вытяжка |
Притвор | - | - |
Средняя часть храма | По расчету <*>, но не менее 20 м 3/ч наружного воздуха на одного человека (при 100%-ном заполнении) | По расчету, но не менее 20 м3/ч наружного воздуха на одного человека (при 100%-ном заполнении) |
Алтарь | По расчету, но не менее 30 м3/ч наружного воздуха на одного человека | По расчету, но не менее 30 м3/ч наружного воздуха на одного человека. При организации системы местной вытяжной вентиляции над местом розжига и подвески кадила принимают расход воздуха системы не менее 25 м3/ч |
Крещальня | По расчету, но не менее 30 м3/ч наружного воздуха на одного человека | По расчету, но не менее 30 м3/ч наружного воздуха на одного человека |
Трапезная (в отдельном помещении) | 3 | 3 |
Пекарня и доготовочная | 2 | 4 |
Моечная | 3 | 6 |
Кладовая, тарная, помещения для уборочного инвентаря | - | 1 |
Хозяйственная кладовая | - | 1 |
Келья | - | 1 |
Библиотека | - | 1 |
Контора, кабинеты, комната персонала | 2 | 1,5 |
Зал-аудитория | По расчету, но не менее 30 м3/ч наружного воздуха на одного человека | По расчету, но не менее 30 м3/ч наружного воздуха на одного человека |
<*> Здесь и далее в настоящей таблице "по расчету" означает "по расчету производительности систем вентиляции на ассимиляцию вредных выделений". |
9.4 Тепловая защита наружных ограждающих конструкций храмов должна обеспечивать невыпадение конденсата на внутренних поверхностях наружных ограждающих конструкций при расчетных значениях температуры и относительной влажности внутреннего воздуха.
9.5 Теплотехнический расчет наружных ограждающих конструкций храмов допускается выполнять только по санитарно-гигиеническим условиям, без проведения расчетов по определению удельной теплозащитной характеристики и удельной характеристики расхода тепловой энергии на отопление и вентиляцию здания.
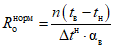
9.6 Приведенное сопротивление теплопередаче основных ограждающих конструкций строящихся и реконструируемых храмов следует принимать не менее значений, определяемых по формуле

, (9.1)
где
n - коэффициент, принимаемый в зависимости от положения наружной поверхности ограждающих конструкций по отношению к наружному воздуху согласно
СП 50.13330;
tв - расчетная средняя температура внутреннего воздуха здания, °C, принимаемая с учетом
таблицы 9.1;
tн - расчетная температура наружного воздуха в холодный период года, °C, принимаемая равной средней температуре наиболее холодной пятидневки обеспеченностью 0,92 согласно
СП 131.13330;

- нормируемый температурный перепад между температурой внутреннего воздуха и температурой внутренней поверхности ограждающей конструкции, °C, принимаемый равным 6 °C;

- коэффициент теплоотдачи внутренней поверхности ограждающих конструкций, Вт/(м
2·°C), принимаемый согласно
СП 50.13330.
9.7 Теплотехнические показатели основных ограждающих конструкций реконструируемых храмов, представляющих архитектурную или историко-культурную значимость, определяются в каждом конкретном случае с учетом необходимости сохранения их исторической ценности на основании решений органов власти и согласовываются с органами государственного контроля в области охраны памятников истории и культуры.
9.8 Сопротивление воздухопроницанию, паропроницанию и теплоустойчивость ограждающих конструкций должны соответствовать требованиям
СП 50.13330 для общественных зданий.
9.9 Для элементов ограждающих конструкций, обладающих пониженными теплофизическими показателями, обусловленными конструктивными особенностями, следует предусматривать мероприятия по обеспечению невыпадения конденсата на их внутренних поверхностях путем дополнительного местного отопления этих элементов или удаления избытков влаги с помощью организации соответствующего воздухообмена для ассимиляции этих избытков влаги системами вентиляции.
9.10 При реконструкции храмов, представляющих архитектурную и историко-культурную ценность, а также при переводе неотапливаемых храмов в круглогодичный режим эксплуатации фактические значения сопротивлений теплопередаче ограждающих конструкций могут не соответствовать требованиям
9.6.
В этом случае системы отопления и вентиляции должны обеспечивать невыпадение конденсата на внутренних поверхностях стен и покрытии храма.
9.11 Рациональное расположение оконных блоков по глубине светового проема в целях исключения возможности выпадения конденсата или промерзания конструкции оконных откосов следует определять на основе расчетов двухмерных температурных полей.
При замене или установке новых заполнений световых проемов в раздельных переплетах следует уплотнять внутренний переплет в целях защиты от проникновения влаги внутреннего воздуха в межстекольное пространство.
Рекомендуется использовать окна с вентиляционными клапанами.
9.12 Для вновь строящихся, реконструируемых и капитально ремонтируемых храмов не допускается покрывать наружную поверхность ограждающих конструкций пароизоляционными материалами.
9.13 Расчет теплового баланса средней части храма в холодный период года ведут при условии минимального заполнения храма прихожанами (10% расчетной вместимости).
9.14 Расчет воздухообмена средней части храма выполняется при условии максимального заполнения храма прихожанами (100% расчетной вместимости) с учетом вредных выделений от людей, затепленных (горящих) свечей и лампад.
9.15 Процесс горения свечей сопровождается выделением теплоты, углекислого газа, влаги и сажи.
Тепловыделения от свечей следует принимать по низшей теплоте сгорания парафина

. Количество углекислого газа, выделяемого при сгорании 1 кг свечей,

, составляет 1650 л/кг парафина. Влаговыделение при сгорании 1 кг свечей,
Gw, составляет 1,3 кг/кг парафина.
9.16 Приближенный расход свечей определяют по таблице 9.3.
Таблица 9.3
Приближенные значения расхода свечей в храме
Общая численность гнезд на столешницах | Расход свечей, кг |
До 100 | 0,5 |
101 - 200 | 0,5 - 0,8 |
201 - 350 | 0,9 - 1,5 |
351 - 450 | 1,6 - 2,0 |
451 - 650 | 2,1 - 2,5 |
651 - 750 | 2,6 - 3,0 |
Св. 750 | Св. 3,5 |
9.17 При организации воздухообмена следует учитывать неравномерность вредных выделений в храмах, связанных с режимом совершения богослужений. Во время совершения богослужений поступления теплоты, влаги и углекислого газа (CO2) от людей, затепленных (горящих) свечей и лампад достигают максимальных значений. В перерывах между богослужениями концентрации вышеперечисленных поступлений минимизируются.
Системы отопления и вентиляции должны обеспечивать поддержание благоприятного теплового и воздушного режимов помещений храма путем достижения расчетных параметров внутреннего воздуха помещений в соответствии с
таблицами 9.1 и
9.2 как во время совершения богослужений, так и в остальное время.
По согласованию с заказчиком поддерживаемые параметры внутреннего воздуха помещений могут отличаться от заданных в
таблице 9.1.
9.18 Системы отопления и вентиляции должны способствовать долговременной сохранности конструкций, росписи и внутреннего убранства храмов.
9.19 В качестве систем отопления помещений зданий храмовых комплексов допускается применять центральные и местные системы водяного, воздушного, электрического, печного отопления, а также другие типы систем, удовлетворяющие требованиям пожарной безопасности и
СП 60.13330.
9.20 Выбор конструктивных решений систем отопления следует проводить с учетом архитектурно-структурных и объемно-планировочных особенностей храмов, режима их эксплуатации, а также наличия источников теплоснабжения.
9.21 Для реконструируемых и капитально ремонтируемых храмов и иных зданий храмовых комплексов допускается использовать существующие системы отопления.
9.22 Для реконструируемых и капитально ремонтируемых храмов, представляющих архитектурную или историко-культурную значимость, рекомендуется предусматривать реабилитационный период (два-три года), в течение которого обеспечивается постепенное достижение расчетных параметров воздуха помещений, если поддержание вновь формируемого теплового и воздушного режимов этих помещений может вызвать разрушение настенной и станковой живописи и предметов убранства храма, которые долгое время существовали в иных температурно-влажностных условиях, под воздействием биологических факторов, кристаллизации солей на поверхностях при высыхании конструкций, влажностных и температурных деформаций.
9.23 Для особо ценных предметов внутреннего убранства рекомендуется предусматривать местные системы кондиционирования воздуха (витрины с автоматически поддерживаемыми параметрами воздуха и подобное экспозиционное оборудование) либо центральные системы кондиционирования воздуха (в том числе зональные), обеспечивающие поддержание заданной относительной влажности воздуха.
Рекомендуемый диапазон значений относительной влажности воздуха

при соответствующих расчетных температурах воздуха - 40 - 55%.
9.24 Системы отопления допускается выполнять с естественным или искусственным побуждением движения теплоносителя.
9.25 В качестве отопительных приборов систем водяного отопления могут быть приняты радиаторы, регистры, отопительные шкафы, напольные низкотемпературные панели, конвекторы и другие отопительные приборы по согласованию с заказчиком.
Системы отопления рекомендуется оснащать устройствами автоматического регулирования.
9.26 Отопительно-вентиляционные агрегаты систем воздушного отопления и теплоснабжения приточного воздуха центральных вентиляционных систем допускается оборудовать водяными, паровыми, электрическими или огневоздушными калориферами.
9.27 В качестве отопительных приборов систем электрического отопления могут быть приняты нагревательные кабели, электроконвекторы и другие отопительные приборы по согласованию с заказчиком.
9.28 Отопительные приборы системы водяного отопления рекомендуется устанавливать у наружных стен и под световыми проемами в нишах.
9.29 Трубы системы водяного отопления храма рекомендуется прокладывать в подпольных каналах со съемными плитами.
9.30 В качестве теплоносителя для систем водяного отопления рекомендуется применять воду при температуре 95 - 70 °C или 85 - 60 °C по заданию на проектирование.
9.31 Расчетная температура на поверхности обогреваемых полов должна быть не более 29 °C.
9.32 При использовании центральных воздушных систем отопления, совмещенных с системами вентиляции, используемых для отопления барабанов глав, приточные устройства должны обладать повышенным гидравлическим сопротивлением, обеспечивающим гидравлическую устойчивость при распределении воздуха и возможность регулирования потока при условии соблюдения нормативного уровня шума.
9.33 Температура приточного воздуха для воздушных систем отопления храмов не должна превышать 40 °C при подаче в обслуживаемую зону.
9.34 Местные системы отопления допускается выполнять с помощью отопительных шкафов с естественным или механическим побуждением.
9.35 В реконструируемых и капитально ремонтируемых храмах допускается не предусматривать систему центрального отопления, если местная система отопления, в том числе печная, обеспечивает расчетную температуру внутреннего воздуха в обслуживаемой зоне согласно значениям
таблицы 9.1.
9.36 В реконструируемых и капитально ремонтируемых храмах при устройстве центральных систем отопления следует максимально использовать существующие каналы, которые ранее предназначались для огневоздушного отопления.
9.37 Отдельные системы отопления рекомендуется предусматривать для храма, церковно-причтового дома, хозяйственного блока и других зданий, входящих в состав храмового комплекса.
9.38 В притворах храмов рекомендуется предусматривать размещение воздушно-тепловых завес.
9.39 Теплоснабжение зданий и сооружений храмовых комплексов может осуществляться как от внешних сетей с помощью узла ввода или индивидуального теплового пункта, так и от собственных автономных источников теплоснабжения, располагаемых в специально выделенном помещении внутри зданий и сооружений или в пристроенных или отдельно стоящих зданиях и сооружениях.
9.40 При необходимости устройства отдельно стоящей местной котельной ее следует располагать на расстоянии не менее 30 м от здания с заветренной стороны от преобладающего направления ветра в холодный период года.
9.41 В качестве систем вентиляции помещений зданий храмовых комплексов допускается применять центральные и местные системы вентиляции с естественным способом побуждения движения воздуха, а при обосновании - и с механическим.
9.42 Выбор конструктивных решений систем вентиляции следует проводить с учетом архитектурно-структурных и объемно-планировочных особенностей храмов и режима их эксплуатации.
9.43 Подачу воздуха при выборе схемы организации воздухообмена "снизу - вверх" следует проводить в обслуживаемую зону на уровне не ниже 0,3 м от пола с соблюдением требований к подвижности воздуха согласно
таблице 9.1.
9.44 Приточный воздух в многопридельных храмах рекомендуется распределять зонально в каждый придел.
В многопридельных храмах допускается предусматривать обслуживание всех помещений центральной системой приточной вентиляции с зональными подогревателями в каждом приделе.
9.45 Рециркуляция воздуха в системах вентиляции и воздушного отопления допускается только в период времени вне совершения богослужений.
9.46 Удаление воздуха из помещений храмов следует предусматривать с помощью вытяжных отверстий, расположенных в барабанах глав и куполах, или через заполнения световых проемов в верхней зоне храма при обеспечении недопущения проникновения в храм атмосферной влаги.
Вытяжные отверстия, расположенные в барабанах глав, рекомендуется оснащать заслонками с электроприводами дистанционного управления и "незадуваемыми" козырьками или аэрационными устройствами.
Аэрационные устройства целесообразно располагать в верхних фрагментах рам. Расположение и конструкция аэрационных устройств определяются объемно-пространственной композицией, особенностями внешней аэродинамики здания, розой ветров, устройством оконных рам и другими факторами.
9.47 В зданиях, ранее оборудованных печным отоплением, для удаления воздуха допускается использовать существующие дымоходы.
9.48 В вытяжных шахтах следует устанавливать утепленные клапаны с ручным или дистанционным управлением.
9.49 В помещении алтаря в зоне розжига и подвески разожженного кадила рекомендуется предусматривать местную систему вытяжной вентиляции.
9.50 Для систем вентиляции с механическим способом побуждения движения воздуха следует предусматривать мероприятия по шумоглушению в соответствии с
СП 51.13330.
9.51 Уровень шума не должен превышать Lш.доп = 35 дБA.
Для снижения уровня шума вентиляционное оборудование следует размещать в отдельных помещениях со звукоизолирующими конструкциями и устанавливать на воздуховодах шумоглушители.
9.52 При проектировании систем приточной вентиляции с механическим побуждением движения воздуха, работающих исключительно во время совершения богослужений, в помещениях храмов следует предусматривать вытяжную вентиляцию с естественным побуждением воздуха из расчета по кратности воздуха, равной 1 ч-1.
9.53 Для помещения крещальни, расположенной в здании храма, рекомендуется предусматривать самостоятельную систему вентиляции. Для помещений трапезной, просфорной, мастерских, а также уборных, которые расположены в отдельно стоящих от храма зданиях, рекомендуется предусматривать самостоятельные системы вентиляции.
9.54 Системы вентиляции молитвенных комнат, встроенных в здания различного назначения, рекомендуется устраивать отдельными от инженерных систем, обслуживающих основные помещения этих зданий по назначению.
9.55 Нормализацию температурно-влажностного режима в неотапливаемых храмах рекомендуется осуществлять путем регулируемого проветривания при выполнении следующих соотношений параметров наружного и внутреннего воздуха (температуры, относительной влажности и влагосодержания соответственно):
tн >
tв,

, d
н <= d
в.
9.56 В теплый период года во время совершения праздничных богослужений рекомендуется устраивать естественное проветривание путем открывания имеющихся оконных проемов.
9.57 В храмах с хорами в средней части для их проветривания рекомендуется предусматривать установку вытяжных фрамуг в противоположных оконных проемах верхней зоны храма.
9.58 Принятые для общественных зданий требования по энергосбережению при проектировании храмовых комплексов допускается не учитывать ввиду специфики режима богослужебного использования храмов и их исключительного назначения.
Водоснабжение и канализация
9.59 В месте ввода труб систем холодного и горячего водоснабжения должно быть предусмотрено помещение для размещения водомерного узла.
9.60 Подвод холодной и горячей воды предусматривается: к раковинам в алтарях храмов, купели в помещениях крещален, водоразборным кранам, устанавливаемым в комнатах технического персонала и подсобных помещениях для мокрой уборки помещений храмов, умывальникам и мойкам, устанавливаемым в помещениях иконописных и столярных мастерских, умывальникам перед трапезной, санитарным приборам в уборных, а также к оборудованию кухни.
9.61 Расчет расхода воды на хозяйственно-питьевые нужды следует проводить в соответствии с указаниями
СП 30.13330, как для зданий административного назначения.
9.62 Температура горячей воды, поступающей к смесителям приборов купели, не должна превышать 60 °C.
9.63 При определении расходов воды на наружное пожаротушение категорию зданий храмовых комплексов следует выбирать по указаниям
СП 31.13330.
9.64 В храмах должны быть предусмотрены отдельные от общей хозяйственно-бытовой канализации сливы от умывальника (рукомойника) в алтаре и от купели в крещальне в дренажный колодец, расположенный на храмовой территории, с объемом суточного поглощения воды не менее 1 м3.
9.65 При наличии на храмовых территориях сетей ливнестоков в храмах должны быть предусмотрены трапы для слива воды после влажной уборки пола. При их отсутствии слив загрязненной воды предусматривают в специально отведенные места.
9.66 В храмах вместимостью до 100 человек и крещальнях, расположенных на участках, не обеспеченных сетями водоснабжения, допускается устройство местных систем, в том числе рукомойников и купелей, без централизованной подачи воды.
9.67 При отсутствии в районе строительства наружных сетей канализации в климатических районах I и II допускается устройство отдельно стоящих люфт-клозетов, а в климатическом районе III - наружных стационарных уборных, оборудованных системами отопления, вытяжной вентиляцией (и помещения, и выгреба) и искусственным освещением.
Электротехнические и слаботочные устройства
9.68 Электроснабжение, электрооборудование, электрическое освещение, слаботочные устройства зданий и наружное освещение зданий и территорий следует предусматривать в соответствии с требованиями
СП 52.13330 и
СП 76.13330.
9.69 Категория надежности электроснабжения зданий, входящих в храмовые комплексы, источники питания, а также типы вводных и распределительных щитов определяются заданием на проектирование.
9.70 Во всех помещениях зданий храмовых комплексов следует предусматривать скрытую электропроводку. В подсобных помещениях допускается открытая электропроводка.
9.71 Не допускается прокладка питающих и распределительных сетей электроприемников противопожарных устройств и охранной сигнализации зданий в общих коробах, трубах и каналах с другими электрическими сетями.
9.72 Общее освещение храмов выполняют лампами накаливания. Не допускается использовать люминесцентные лампы.
9.73 Необходимо предусматривать раздельное включение паникадил, поликандил, настенных бра, общего и местного освещения над жертвенником в алтаре.
Выключатели в алтарях следует устанавливать на высоте 1,5 - 1,8 м от пола.
9.74 На клиросах должны быть предусмотрены светильники с отдельными выключателями, расположенными с левой стороны от аналоев.
9.75 Для праздничной подсветки в системе общего освещения следует предусматривать дополнительные светильники.
9.76 Для подключения пылесосов и других технических средств уборки помещений в храмах должны быть предусмотрены штепсельные розетки с заземлением и защитными крышками не реже чем через 10 м по периметру помещений.
9.77 Электрощиты следует размещать на первых этажах в местах размещения церковных лавок с постоянным пребыванием персонала храмов.
Допускается размещение электрощитовых в цокольной части храма при условии низкого уровня грунтовых вод и устройства гидроизоляции.
9.78 В храмах вместимостью более 100 человек должно быть предусмотрено аварийное освещение.
Аварийное освещение для эвакуации людей из храма должно предусматриваться в алтаре, средней части храма, притворе, лестничной клетке на колокольню; из церковно-причтового дома - в крещальне, мастерских, трапезной.
Аварийное освещение должно предусматриваться в электрощитовых, вентиляционных камерах, тепловых узлах, насосных; при этом должна быть обеспечена норма освещенности 2 лк.
9.79 Наружное освещение земельных участков храмовых комплексов следует проектировать в соответствии с
[5].
Необходимость устройства наружной подсветки храма должна быть установлена заданием на проектирование.
9.80 Установки звукоусиления рекомендуется предусматривать в храмах вместимостью 1000 человек и более, располагая микрофоны в алтарях, а источники звука - ближе к западной зоне храмов в соответствии с акустическим расчетом.
9.81 Установка телефонов должна предусматриваться в помещениях администрации и охраны.
9.82 Здания храмов, в которых имеются богослужебные предметы и иконы, представляющие историко-культурную, художественную и материальную ценность и состоящие на государственном учете, кроме решеток на окнах по согласованию с местными органами охраны должны быть оборудованы охранными системами по заданию на проектирование.
Задание на проектирование охранных систем должно быть разработано по техническим условиям территориального подразделения вневедомственной охраны, оказывающего услуги по военизированной и физической охране, установке и эксплуатации технических средств охраны, и согласовано с данным территориальным подразделением.
Оборудованию средствами охранной сигнализации подлежат храмы и церковно-причтовые дома, в отдельных случаях - только алтарь и ризница.
В качестве датчиков охранной сигнализации рекомендуется использовать: сигнализаторы для блокировки открывания дверей, окон, форточек; датчики разрушения стекла, на проникновение и приближение к окнам.
Сети сигнализации предусматриваются скрытыми и сменяемыми в каналах, должны обеспечивать недоступность кабелей и устройств систем охранной сигнализации и телевизионного контроля для посторонних лиц.
Охранные системы допускается совмещать с системами автоматической пожарной сигнализации и другими системами в соответствии с
СП 5.13130.
9.83 В проекте следует предусматривать молниезащиту зданий храмов и колоколен по
[6].
9.84 Для составления проекта системы автоматизации систем отопления, вентиляции и кондиционирования воздуха расчет тепловых балансов и воздухообменов в храме проводят для следующих условий заполняемости:
- отсутствие прихожан в храме;
- минимальное заполнение храма прихожанами (10% расчетной вместимости);
- среднее заполнение храма прихожанами (50% расчетной вместимости);
- максимальное заполнение храма прихожанами (100% расчетной вместимости).
ПРАВИЛА ПОДСЧЕТА ОБЩЕЙ, ПОЛЕЗНОЙ И РАСЧЕТНОЙ ПЛОЩАДЕЙ,
СТРОИТЕЛЬНОГО ОБЪЕМА, ПЛОЩАДИ ЗАСТРОЙКИ И ЭТАЖНОСТИ
ЗДАНИЙ И СООРУЖЕНИЙ ПРАВОСЛАВНЫХ ХРАМОВ
А.1 Общую площадь храма следует определять как сумму площадей ярусов (этажей) (включая ярус подклета, нижний ярус храма, ярусы колокольни), измеренных в пределах внутренних поверхностей наружных стен, а также площадей хоров, закрытых гульбищ. При этом площадь лифтовых и других шахт включается в площадь в пределах одного яруса (этажа).
Примечание - Определение ярусности (этажности) см. в
А.7.
Наружные тамбуры, открытые гульбища (открытые наружные галереи) являются открытыми неотапливаемыми помещениями и входят в общую площадь, но указываются в ней отдельно.
Площади подполья для проветривания под храмом, надсводовое пространство или верхняя часть трапезной под крышей при высоте выступающих конструкций от пола до низа менее 1,8 м, площадь наружных лестниц, крылец портиков в общую и полезную площадь храмов не включают.
А.2 Полезную площадь храма следует определять как сумму площадей помещений богослужебного и подсобного назначения, а также хоров и звонниц без учета лестничных клеток, внутренних открытых лестниц, а также шахт и помещений, предназначенных для размещения инженерных коммуникаций и оборудования.
Площади под лестницами и выступающими конструкциями при высоте от пола до низа этих конструкций не более 1,8 м не включают в полезную площадь помещения.
А.3 Расчетная по вместимости площадь храма определяется как сумма площадей центральной части, трапезной части, хоров и приделов, предназначенных для размещения расчетного числа прихожан, за исключением площадей, занятых алтарем, солеею и утварью храма: киотами, подсвечниками и др.
А.4 Площадь помещений храмов следует определять по их размерам, измеряемым между отделанными поверхностями стен и перегородок на уровне пола (без учета киотов и плинтусов).
Площадь, занимаемую солеею, следует относить к площади центральной части храма.
А.5 Строительный объем храма определяют как сумму строительного объема выше отметки + 0,00 (надземная часть) и ниже этой отметки (подземная часть).
Строительный объем надземной и подземной частей храма определяют в пределах ограничивающих поверхностей с включением ограждающих конструкций, куполов, глав, звонниц и др., начиная с отметки + 0,00 каждой из частей храма, без учета выступающих архитектурных деталей и конструктивных элементов, подпольных каналов, открытых гульбищ, объемов крылец притворов, балконов, открытых звонниц и пространства под подклетом (в чистоте), а также проветриваемых подвалов под храмами с учетом
СП 118.13330.
А.6 Площадь застройки храма определяют как площадь горизонтального сечения по внешнему обводу храма на уровне цоколя, включая выступающие части.
Площади под гульбищем, расположенным на столпах, и под крытым переходом включают в площадь застройки.
А.7 При определении ярусности (этажности) надземной части храма в число ярусов (этажей) включают надземные ярусы храма и подклет, если верх его перекрытия находится выше средней планировочной отметки земли не менее чем на 2 м.
Подполье для проветривания под храмом, независимо от его высоты, в число надземных этажей не включают.
В ярусность (этажность) храма число ярусов пристроенной колокольни не включают. Технический этаж, расположенный в чердачном пространстве храма, при определении этажности храма не учитывают.
МЕТОДИКА РАСЧЕТА ГОРОДСКОЙ СЕТИ ХРАМОВ И ИХ ВМЕСТИМОСТИ
Б.1 Для расчета числа и вместимости новых православных храмов в городах принимается процентное соотношение жителей, относящихся к группе православного вероисповедания.
Рекомендуется применять средний расчетный показатель - 10 человек на 100 жителей, относящихся к группе православного вероисповедания, проживающих в зоне обслуживания храма.
Расчетный показатель уточняется исходя из конкретных социально-демографических особенностей районов размещения храмов по согласованию с местной епархией.
Б.2 При расчете городской структуры размещения православных храмов следует учитывать приходские храмы, кафедральные соборы, монастырские храмы и храмы при кладбищах, выполняющие функции приходских храмов.
Основными элементами этой структуры являются приходские храмы с "условным" радиусом пешеходной доступности до 0,5 ч или 1,0 - 1,5 км.
Кафедральные соборы имеют радиус пешеходной доступности в пределах 0,3 - 0,4 ч.
Храмы при учебных заведениях, больницах, приютах, воинских частях, в местах заключения ориентированы на удовлетворение религиозных потребностей контингента учреждений, в комплекс которых они входят, и при расчете городской структуры размещения храмов не учитываются.
Б.3 При определении числа и состава храмовых комплексов и вместимости храмов в центрах систем расселения рекомендуется дополнительно учитывать приезжающих из других городских и сельских поселений, расположенных в зоне, ограниченной затратами времени на дорогу в город-центр до 2 ч.
Б.4 Храмы в сельских поселениях рекомендуется размещать исходя из национального и возрастного состава населения из расчета радиуса пешеходной доступности в пределах 0,5 ч.
При численности группы православного населения менее 50 человек храмы рекомендуется предусматривать на группу сельских поселений с пешеходной доступностью в пределах 2 ч.
Б.5 Площадь зоны обслуживания приходскими храмами с "условным" радиусом 0,4 ч пешеходной доступности - от 80 до 250 га, численность населения (в зависимости от плотности заселения территории) - от 60 000 до 200 000 человек, что соответствует территории жилого района.
ПРИМЕРНАЯ СХЕМА ГЕНЕРАЛЬНОГО ПЛАНА
КОМПЛЕКСА ГОРОДСКОГО ПРИХОДСКОГО ХРАМА
1 - входная зона: 1.1 - остановка общественного транспорта;
1.2 - въездные и входные ворота; 1.3 - стоянка автомобилей;
1.4 - церковная лавка; 1.5 - скамьи для отдыха;
1.6 - цветник; 2 - храмовая зона: 2.1 - храм; 2.2 - круговой
обход; 2.3 - площадка перед входом; 2.4 - дренажный колодец;
3 - вспомогательная зона: 3.1 - церковно-причтовый дом;
3.2 - озелененная территория; 3.3 - общественные уборные
для прихожан; 4 - хозяйственная зона: 4.1 - хозблок
с гаражом; 4.2 - хозяйственный въезд; 4.3 - мусоросборник;
4.4 - печь для сжигания записок; 4.5 - стоянка автомобилей
Рисунок В.1
АКУСТИЧЕСКИЕ И ШУМОЗАЩИТНЫЕ МЕРОПРИЯТИЯ
ПРИ ПРОЕКТИРОВАНИИ КОЛОКОЛЕН (ЗВОННИЦ)
Настоящее приложение предназначено для расчетов слышимости колокольного звона на этапе проектирования колокольни храма.
Задача оптимизации акустических режимов колоколен (звонниц) должна решаться в сочетании двух ее составляющих:
1) обеспечение нормальной слышимости колокольных звонов в зоне проживания прихожан храма; при этом уровень звука, создаваемый звоном колоколов, должен превышать звуковой фон, создаваемый движением транспортных потоков в населенном пункте.
По справочным данным, в населенных пунктах на тихих улицах без транспортных потоков звуковой фон составляет 30 дБA, на улицах с активным транспортным движением - 70 дБA;
2) достижение нормативных уровней звукового фона, создаваемого колокольным звоном, в близлежащих зданиях, требующих специфического шумового режима (жилые дома, медицинские организации стационарного типа, дошкольные образовательные и общеобразовательные организации и т.д.), в соответствии с
СП 51.13330 согласно таблице Г.1.
Таблица Г.1
Нормируемый и максимально допустимый уровни звука, дБA
Назначение территорий | Время суток, ч | Нормируемый уровень звука, дБA | Максимально допустимый уровень звука <*>, дБA |
1 Территории, непосредственно прилегающие к жилым зданиям, домам отдыха, домам-интернатам для престарелых и инвалидов | 7:00 - 23:00 | 70 | 70,0 + 21,5 = 91,5 |
2 Территории, непосредственно прилегающие к зданиям медицинских организаций стационарного типа и санаториев | 7:00 - 23:00 | 65 | 65,0 + 21,5 = 86,5 |
3 Территории, непосредственно прилегающие к зданиям медицинских организаций амбулаторно-поликлинического типа, общеобразовательных и других образовательных организаций, дошкольных образовательных организаций | 7:00 - 23:00 | 70 | 70,0 + 21,5 = 91,5 |
Примечание - Значения максимально допустимых уровней звука, относящиеся к стационарно действующим в течение суток шумам, требуют корректировки на реальные интервалы времени звучания колокольных звонов. При времени звучания колоколов два раза в сутки по 5 мин до и после богослужения поправка к действующим уровням звука составит 21,5 дБA. |
Если рассматривать колокольный звон как колеблющийся во времени и прерывистый шум, то согласно СН 2.2.4/2.1.8.562-96
(пункт 5.3, таблица 1) максимальный уровень звука не должен превышать 110 дБA.
Если между колокольней (звонницей) и жилым или общественным зданием проходит транспортная магистраль, в первую очередь необходимо оценить уровни звука перед фасадами зданий, создаваемые движением транспортных потоков.
Если уровни шума, создаваемые движением транспорта, на 6 дБA и более превышают уровни звука, создаваемые звоном колоколов в той же точке, необходимость в проведении шумозащитных мероприятий от колокольного звона может возникнуть только после устранения или снижения уровней звука транспортной магистрали.
Мощность звукового потока, излучаемого колокольней (звонницей), складывается из прямого звука, излучаемого колоколами, и звуковых потоков излучения, создаваемых звонницей за счет отражений от ее ограждений при учете размера и направленности открытых проемов звонницы, звукоотражающей способности ее ограждений.
В таблице Г.2 приведены данные о типичных небольших колокольных наборах, в том числе уровень звуковой мощности благовестников и максимальные уровни звуковой мощности колокольного набора.
Таблица Г.2
Максимальный уровень звуковой мощности колокольного набора
N колокольного набора | Число колоколов | Масса колоколов, кг | Общая масса набора, кг | Уровень звуковой мощности благовестника, дБA | Максимальный уровень звуковой мощности колокольного набора, дБA <*> |
I | 3 | 34 <*>, 15, 8 | 57 | 100 | 100 + 13 +/- 5 |
II | 5 | 109 <*>, 42, 34, 15, 8 | 208 | 106 | 106 + 13 +/- 5 |
III | 7 | 350 <*>, 109, 88, 42, 34, 15, 8 | 646 | 112 | 112 + 13 +/- 5 |
Примечание - Значение максимального уровня звуковой мощности колокольного набора будет превышать уровень звуковой мощности благовестника на 13 дБA. |
В сложившейся практике работы звонарей, как показывают результаты экспериментальных исследований, существуют значительные возможности изменения силы ударов в колокола, не выходя за рамки требуемого режима колокольных звонов. Опытные данные свидетельствуют, что оперативно регулируемый диапазон изменения уровня звуковой мощности в зависимости от изменения силы ударов звонаря составляет +/- 5 дБA.
Направленность и уровни акустической мощности звукоизлучения колоколов, размещенных на колокольне (звоннице), определяются системой проемов в ее ограждениях.
В таблице Г.3 представлены акустические свойства рассматриваемых колоколен и звонниц.
Таблица Г.3
Звукоотражающая способность и учет размера открытых проемов
Тип сооружения | Звукоотражающая способность, дБA | При учете размера и направленности открытых проемов, дБA |
Колокольни | 1.1 | 13 | 11 |
1.2 | 8,7 | 11 |
Звонницы | 2.1 | 10,4 | 8 |
Примечание - Тип ограждений звонниц и колоколен взят для наиболее распространенного случая внутренней отделки: кирпичная кладка с штукатуркой и побелкой. При расчете уровней звука следует учесть, что уровни звукоизлучения колокольни (звонницы) рассчитываются в сторону открытого проема. При расчете уровней по направлениям в стороны закрытых проемов расчетные значения следует уменьшать, в том числе по направлениям, перпендикулярным открытым проемам, на 3 дБA, а по направлению, противоположному открытым проемам, - на 6 дБA. |
Уровень звука колокольного звона при прохождении от колокольни (звонницы) до расчетной точки у рассматриваемого здания снижается в основном от расстояния и наличия преград между ними в виде зеленых насаждений на значения, представленные в таблицах Г.4 и
Г.5.
Таблица Г.4
Снижение уровня звука в зависимости от расстояния
между колокольней (звонницей) и зданием
Расстояние, м | 50 | 75 | 100 | 150 | 200 | 300 | 400 | 500 |
дБA | 34 | 38 | 40 | 44 | 46 | 50 | 52 | 54 |
Таблица Г.5
Снижение уровня звука зелеными насаждениями (0,08 дБA/м)
Ширина полосы, м | 20 | 40 | 100 | 150 | 200 | 300 |
дБA | 1,6 | 3,2 | 8 | 12 | 16 | 24 |
Суммируя указанные составляющие звуковых потоков в расчетных точках на местности, можно получить поступающую туда звуковую мощность. Уровни звука считаются допустимыми, когда они не превышают максимально допустимых значений.
Результаты расчета сводят в таблицу Г.6.
Таблица Г.6
Результаты расчета уровня звука
Расчетная точка | РТ1 | РТ2 | РТ3 |
Расстояние до расчетной точки, м | | | |
Максимальный уровень звуковой мощности колокольного набора, дБA (таблица Г.2) | | | |
| | | |
Учет размера и направленности открытых проемов, дБA (таблица Г.3) | | | |
| | | |
| | | |
Поправка на время звучания, дБA ( примечание к таблице Г.1) | | | |
Поправка при направлениях расчетных точек в стороны закрытых проемов, дБA ( примечание к таблице Г.3) | | | |
Суммарный уровень звука, дБA | | | |
Максимально допустимый уровень звука в расчетной точке, дБA | | | |
Минимально допустимый уровень звука в расчетной точке, дБA (30 - 70 дБA) | | | |
В случае если расчет уровней звука в расчетных точках с нормативным уровнем шумового фона покажет, что требования по значениям уровней звука не выполняются, то следует провести коррекцию проекта колокольни (звонницы) по следующим направлениям:
- снижение уровня звуковой мощности колокольного набора путем снижения массы и числа колоколов;
- снижение уровня звука путем корректировки архитектурно-строительных решений колокольни (звонницы), в том числе по размерам и направлениям открытых проемов и по звукоотражающей способности ограждений;
- снижение уровня звука установкой дополнительных экранирующих сооружений между колокольней (звонницей) и защищаемым зданием. Преграды могут быть в виде зеленых насаждений или специальных шумозащитных барьеров, роль которых могут играть возводимые в комплексе храма или вокруг него здания, экранирующие прямое излучение звука колоколами;
- снижение уровня звука увеличением расстояния между колокольней (звонницей) и защищаемым зданием путем ее перенесения на новое место.
Рекомендуется приведенная ниже последовательность проведения акустического проектирования колоколен (звонниц) православных храмов:
1) составление (получение) масштабной карты местности вокруг проектируемого храма с определением области требуемой слышимости колокольного звона в районе проживания прихожан храма. В масштабную карту должны быть внесены все здания, размещенные на этой территории, с указанием высоты каждого здания и его назначения. Кроме того, на масштабную карту наносятся все улицы, трассы и свободные площади, а также территории, занятые зелеными насаждениями, с указанием их высот;
2) определение расчетных точек на местности:
- наиболее удаленная от колокольни (звонницы) точка, где должен быть слышен звук благовестника, извещающего о начале службы в храме;
- наиболее близкое к колокольне (звоннице) здание, внутри которого необходимо обеспечить нормативный уровень шумового фона (например, здания медицинских организаций стационарного типа, общеобразовательных и дошкольных образовательных организаций, жилых домов и т.п.).
В соответствии с этим устанавливают два расчетных значения уровней звука:
- минимально допустимый уровень громкости звучания благовестника перед наиболее удаленным зданием исследуемого района, с тем чтобы он превышал измеренный (или ожидаемый по расчету) уровень звукового фона в этом месте (30 - 70 дБA);
- максимально допустимый уровень звука колокольного звона перед ближайшим зданием с нормируемым звуковым фоном;
3) расчет звуковой мощности колокольного набора;
4) расчет звуковых потоков излучения, создаваемых колокольней (звонницей), с учетом отражений от ограждений звонницы;
5) расчет снижения уровня звука, поступающего в расчетные точки, за счет различных факторов;
6) расчет уровня звука в критических точках:
- уровень звука благовестника в наиболее удаленной точке;
- уровень звука колокольного звона перед ближайшим к звоннице зданием с нормируемым звуковым фоном.
РАСЧЕТ РЕВЕРБЕРАЦИИ В ПОМЕЩЕНИЯХ ХРАМОВ
Акустическое проектирование должно быть ориентировано на оптимизацию времени реверберации, определяющего гулкость звучания храмовых помещений.
Время реверберации T, с, рассчитывают по формуле Эйринга

, (Д.1)
где V - общий воздушный объем помещения, м3;
Sобщ - общая площадь внутренних ограждений, м2;

,
здесь

- средний коэффициент звукопоглощения (КЗП) помещения, определяемый в диапазоне 125 - 4000 Гц,
n - коэффициент, учитывающий поглощение звука в воздухе помещения (обычно вводится в расчет только для частот 2000 и 4000 Гц).
КЗП в каждом диапазоне частот определяют по формуле

, (Д.2)
где

; (Д.3)
здесь

- сумма произведений площадей отдельных поверхностей
Si, м
2, на их КЗП -

;

- сумма эквивалентных площадей звукопоглощения (ЭПЗ), м
2, штучных звукопоглотителей, а также ЭПЗ, создаваемых священнослужителями и прихожанами;

- коэффициент добавочного звукопоглощения, учитывающий звукопоглощение деталями меблировки интерьеров, не охватываемыми данными табличных расчетов (принимают по результатам статистики натурных измерений);

- общий фонд звукопоглощения храма.
Данные о звукопоглощении людьми, стоящими на отражающем полу, и добавочном КЗП церковных помещений приведены в таблицах Д.1 и
Д.2.
Таблица Д.1
Звукопоглощение стоящими людьми (без верхней одежды)
В квадратных метрах
Плотность расстановки, м2/чел. | Частота, Гц |
125 | 250 | 500 | 1000 | 2000 | 4000 |
6 | 0,15 | 0,23 | 0,61 | 0,97 | 1,10 | 1,10 |
3 | 0,13 | 0,21 | 0,48 | 0,81 | 0,96 | 1,00 |
1 | 0,11 | 0,20 | 0,32 | 0,66 | 0,81 | 0,89 |
0,5 | 0,10 | 0,18 | 0,28 | 0,59 | 0,65 | 0,72 |
0,25 | 0,07 | 0,16 | 0,26 | 0,45 | 0,54 | 0,60 |
Таблица Д.2
Средние значения добавочного звукопоглощения

в храмах
Частота, Гц | 125 | 250 | 500 | 1000 | 2000 | 4000 |
| 0,06 | 0,06 | 0,06 | 0,06 | 0,05 | 0,05 |
Примечание - В помещениях с обилием деревянных конструкций и гибких элементов следует увеличить  на 30% в диапазоне 125 - 250 Гц, а при значительном числе мелких членений, отверстий и тканевых деталей интерьера - на 30% в диапазоне свыше 500 Гц. |
На графике рисунка Д.1 приведена зависимость оптимумов времени реверберации от объема помещений в диапазоне 500 - 2000 Гц. Учитывая, что время реверберации зависит от степени заполнения храмов прихожанами, оптимальные значения времени реверберации должны укладываться в границы, верхний предел которых соответствует заполнению 6 м2/чел., а нижний - 0,25 м2/чел. На частотах 125 - 250 Гц допускается подъем времени реверберации на 25 - 30%, а на частоте 4000 Гц - снижение на 15 - 20%.
Рисунок Д.1 - Рекомендуемое время реверберации на средних
частотах для храмовых помещений в зависимости от их объема
В случае если расчет времени реверберации по
формулам (Д.1) -
(Д.3) покажет значения, выходящие из рекомендуемых по
рисунку Д.1, то следует провести корректировку объемно-планировочного решения и материалов отделки интерьеров проектируемого храма.
При избыточных значениях времени реверберации (при недостаточности общего фонда звукопоглощения) следует, во-первых, уменьшить воздушный объем помещения при неизменности площади пола основного и бокового нефов и, во-вторых, увеличить звукопоглощающие свойства материалов отделки интерьеров.
Если проведенный контрольный расчет времени реверберации по-прежнему покажет избыточные значения времени реверберации, то следует принять дополнительные меры к увеличению фонда звукопоглощения храма. При значительном превалировании времени реверберации в диапазоне низких частот допускается использовать голосники, выполненные по современной строительной технологии.
В диапазоне средних и высоких частот для увеличения звукопоглощения рекомендуется использовать тканевые элементы убранства храма. Их общее число определяется акустическим расчетом.
При недостаточности времени реверберации храма следует принять меры к увеличению его общего воздушного объема и уменьшению фонда звукопоглощения в убранстве храма.
При выборе объемно-планировочных решений храмов кривизну куполов и сводов следует выбирать так, чтобы их центры размещались значительно выше отметки пола (не ниже уровня +3,0 м по отношению к уровню пола алтаря и солеи).
В храмах с делением на средний и боковые нефы или трапезную часть, особенно при высоком центральном куполе, статистический метод расчета времени реверберации неприменим.
Расчет процесса реверберации следует начинать с определения среднего КЗП каждого i-го объема в диапазоне частот 125 - 4000 Гц

, на основании которого рассчитывают его фонд звукопоглощения:

(
Siобщ - общая площадь ограждений каждого объема). Далее рассчитывают площади воздушных проемов между соседними объемами и их коэффициенты акустической связи, равные

, (Д.4)
где Si,i+1 - площадь проема между соседними объемами Vi и Vi+1;

;

.
При коэффициенте акустической связи K >= 1 расчеты времени реверберации связанных объемов проводят как для единого акустического объема, по вышеприведенной методике.
При K < 1 проводят детальный акустический анализ с рассмотрением соотношения площадей проемов к общей площади граничных ограждений, соотношения значений воздушных объемов и их фондов звукопоглощения.
При этом учитывают следующие предельные случаи:
1) при соотношении соседних объемов Vi >> Vi+1 их время реверберации рассчитывают по объему Vi с введением в расчет КЗП проема Si,i+1, равного 0,1 - 0,3, в зависимости от величины Ai+1;
2) при значениях Vi и Vi+1 одного порядка, но при значительной разнице их фондов звукопоглощения (например, Ai+1 >> Ai) расчет времени реверберации в объеме Vi проводят по вышеприведенной стандартной методике с введением КЗП проема Si,i+1, равного 0,3 в широком диапазоне частот;
3) стандартную методику расчета времени реверберации используют также в случае близких значений величин воздушных объемов и фондов звукопоглощения соседних помещений, но при малом значении площади проемов между ними по отношению к общей площади граничных ограждений. В этом случае расчет времени реверберации для каждого объема проводят изолированно с введением в расчет КЗП проема Si,i+1, равного 0,2 - 0,3, в зависимости от значения их фондов звукопоглощения.
В остальных случаях процесс послезвучания в каждом связанном объеме рассчитывают численно, так как его огибающая не может быть объяснена одной кривой, по формуле

, (Д.5)
где Li(t) - уровень звука в процессе реверберации объема Vi при коэффициенте акустической связи его с соседним объемом Vi+1, равном Ki,i+1;
t - текущий объем реверберации;

и

- постоянные затухания звука в
Vi и
Vi+1.
При возможности объяснения расчетного хода логарифмической кривой
Li(
t) отдельными линейными участками уровнеграмм их следует, по возможности, проводить в диапазоне спадания уровня отзвука

не менее 15 - 20 дБ, и тогда в акустический анализ могут быть введены соответствующие этим участкам значения времени реверберации по формуле

, (Д.6)
где Tk - время реверберации, соответствующее k-му участку линейно-ломаной аппроксимации уровнеграммы Li(t);

- величина этого участка, дБ;

- интервал времени этого участка, с.
Определяющим для процесса слухового восприятия является так называемое начальное время реверберации, рассчитываемое по ходу кривой Li(t) за первые 10 - 20 дБ реверберации.
| Федеральный закон от 29 декабря 2004 г. N 190-ФЗ "Градостроительный кодекс Российской Федерации" |
| Федеральный закон от 30 декабря 2009 г. N 384-ФЗ "Технический регламент о безопасности зданий и сооружений" |
| Федеральный закон от 22 июля 2008 г. N 123-ФЗ "Технический регламент о требованиях пожарной безопасности" |
| Федеральный закон от 25 июня 2002 г. N 73-ФЗ "Об объектах культурного наследия (памятниках истории и культуры) народов Российской Федерации" |
| ПУЭ Правила устройства электроустановок (7-е изд.) |
| СО 153-34.21.122-2003 Инструкция по устройству молниезащиты зданий, сооружений и промышленных коммуникаций |
УДК 725.9:006354 | |
Ключевые слова: храмы православные, проектирование, храмовые комплексы, часовня, крещальня, колокольня, церковно-причтовый дом, алтарь, архитектурно-строительные решения, естественное и искусственное освещение, акустика, отопление, вентиляция, водоснабжение, канализация |