Главная // Актуальные документы // Методические рекомендацииСПРАВКА
Источник публикации
М.: Министерство сельского хозяйства Российской Федерации, 2008
Примечание к документу
Документ
введен в действие с 11 января 2009 года.
Название документа
"РД-АПК 3.10.07.01-09. Рекомендательные документы. Методические рекомендации по ветеринарной защите животноводческих, птицеводческих и звероводческих объектов"
(утв. и введены в действие Минсельхозом России 29.12.2008)
"РД-АПК 3.10.07.01-09. Рекомендательные документы. Методические рекомендации по ветеринарной защите животноводческих, птицеводческих и звероводческих объектов"
(утв. и введены в действие Минсельхозом России 29.12.2008)
Утверждены и введены в действие
Заместителем Министра сельского
хозяйства Российской Федерации
С.Н.АЛЕЙНИКОМ
29 декабря 2008 года
СИСТЕМА РЕКОМЕНДАТЕЛЬНЫХ ДОКУМЕНТОВ
АГРОПРОМЫШЛЕННОГО КОМПЛЕКСА
МИНИСТЕРСТВА СЕЛЬСКОГО ХОЗЯЙСТВА РОССИЙСКОЙ ФЕДЕРАЦИИ
РЕКОМЕНДАТЕЛЬНЫЕ ДОКУМЕНТЫ
МЕТОДИЧЕСКИЕ РЕКОМЕНДАЦИИ
ПО ВЕТЕРИНАРНОЙ ЗАЩИТЕ ЖИВОТНОВОДЧЕСКИХ,
ПТИЦЕВОДЧЕСКИХ И ЗВЕРОВОДЧЕСКИХ ОБЪЕКТОВ
РД-АПК 3.10.07.01-09
Дата введения
11 января 2009 года
1. Разработаны: ФГНУ "Росинформагротех" (к.т.н. Шевченко С.С., Гарафутдинова E.С.), ФГНУ "НПЦ "Гипронисельхоз";
(к.с.-х.н. Виноградов П.Н.), ГНУ ВНИИВСГЭ (д.в.н. Тюрин В.Г., Бирюков К.Н., Андреев Р.Ю.).
2. Внесены: ФГНУ "Росинформагротех".
3. Одобрены: секцией ветеринарии НТС Минсельхоза России (Протокол от 3 декабря 2008 г., N 75).
4. Утверждены и введены в действие: Заместителем Министра сельского хозяйства Российской Федерации Алейником С.Н. 29 декабря 2008 г.
5. Введены впервые.
6. Согласованы: Департаментом Ветеринарии Минсельхоза России (29 декабря 2008 г.).
1.1. Данные методические рекомендации распространяются на организацию ветеринарной защиты животноводческих, птицеводческих и звероводческих объектов при их проектировании, строительстве, эксплуатации и реконструкции.
1.2. Методические рекомендации рассматривают вопросы ветеринарной защиты животноводческих, птицеводческих и звероводческих объектов с помощью размещенных на этих объектах зданий и сооружений ветеринарного назначения.
1.3. В методических рекомендациях изложены вопросы функционального назначения существующих различных ветеринарных объектов, их примерный состав, специфики размещения на территории животноводческих, птицеводческих и звероводческих комплексов и ферм.
1.4. Методические рекомендации предназначены для ветеринарных специалистов и специалистов, обслуживающих животноводческие, птицеводческие и звероводческие комплексы и фермы, специалистов проектных организаций, а также работников административно-управленческого аппарата в регионах и муниципальных образованиях, осуществляющих контроль за деятельностью ферм и комплексов в различных регионах страны.
2. ОБЩИЕ ПОЛОЖЕНИЯ ВЕТЕРИНАРНОЙ ЗАЩИТЫ ФЕРМ И КОМПЛЕКСОВ
ОТ ИНФЕКЦИОННЫХ И ИНВАЗИОННЫХ ЗАБОЛЕВАНИЙ
2.1. Возбудители инфекционных и инвазионных болезней на территорию ферм и комплексов могут быть занесены с поступающими на них животными, транспортными средствами, обслуживающим персоналом, поступающими кормами, синантропными птицами, бродячими собаками, дикими животными, грызунами, насекомыми, воздушными потоками, а также другими источниками или объектами, контаминированными возбудителями инфекционных и инвазионных заболеваний.
В соответствии с ветеринарно-санитарными требованиями комплексы и фермы по производству продукции животноводства, птицеводства и звероводства в нашей стране работают в закрытом режиме, имеют по периметру территории надежное ограждение, а на самой территории в соответствии с требованиями
НТП-АПК 1.10.07.001-02 необходимые ветеринарные объекты.
2.2. Запрещается вход на территорию комплекса или фермы посторонних лиц и въезд любого вида транспорта, не связанного с непосредственным их обслуживанием.
2.3. Вход в производственную зону должен осуществляться через ветеринарно-санитарный пропускник, а въезд транспорта - через постоянно действующие дезбарьеры (отапливаемые). Вход в санпропускник как со стороны внешней территории, так и со стороны производственной зоны оборудуется дезковриками.
Входы в здание для содержания животных и птицы также оборудуются дезковриками, а входы в отдельные изолированные секции (например, родильное отделение, помещение пункта искусственного осеменения) оборудуются дезинфекционными ваннами, заполненными дезраствором.
2.4. При возникновении заболевания инфекционными болезнями сельскохозяйственных животных, домашних животных и птицы, принадлежащих работникам комплекса, фермы, последние не допускаются к работе по обслуживанию аналогичных или других видов животных комплекса, фермы, подверженных данному инфекционному заболеванию, до полной ликвидации болезни в возникшем очаге.
2.5. На территории комплекса и фермы запрещается содержать собак (кроме сторожевых), кошек и других видов животных, не свойственных направленности деятельности данного хозяйства.
2.6. Ветработникам комплекса, фермы запрещается обслуживание животных, находящихся в личном пользовании граждан.
2.7. Все производственные и вспомогательные помещения фермы, комплекса, а также территория санитарно-защитной зоны должны подвергаться защите от мышевидных грызунов и дератизационным мероприятиям.
Необходимо организовывать обезвреживание перед скармливанием животным и птице комбикормов (озонирование, УФ-облучение, термообработка и т.п.).
Поступающий на фермы и комплексы племенной молодняк с собственной племенной фермы и хозяйств-поставщиков должен подвергаться карантинированию.
Поголовье, находящееся на ферме, комплексе, должно подвергаться постоянному клиническому осмотру и плановому исследованию на туберкулез, бруцеллез, лептоспироз и другие заболевания в соответствии с действующими инструкциями по борьбе с инфекционными заболеваниями. Имеющееся поголовье подвергают плановым копрологическим исследованиям и при необходимости проводят соответствующую дегельминтизацию в комплексе с другими оздоровительными мероприятиями.
Во время карантинирования животных на фермах, комплексах проводят следующие мероприятия:
- клинический осмотр, термометрию, санитарно-гигиеническую обработку поголовья;
- взятие копрологических проб для исследования на гельминтоносительство;
- взятие проб крови для исследований на бруцеллез, лептоспироз, другие болезни, предусмотренные противоэпизоотологическим планом мероприятий для данной фермы, комплекса;
- туберкулинизацию;
- дегельминтизацию по результатам копрологических исследований;
- вакцинацию животных согласно плану противоэпизоотических и профилактических мероприятий хозяйства.
Для успешного проведения санитарно-гигиенических, профилактических, противоэпизоотических мероприятий, клинических исследований и ряда других мероприятий на фермах, комплексах возводятся различные здания и сооружения, перечень, назначение и функции которых рассмотрены ниже, в
разделе 4.
3. ВЕТЕРИНАРНАЯ ЗАЩИТА ПРИ ВЫБОРЕ УЧАСТКА СТРОИТЕЛЬСТВА
3.1. Ветеринарное благополучие хозяйства зависит в определенной степени от выбора участка под строительство фермы, комплекса.
3.2. Участок для строительства должен быть сухим, с уклоном для отвода поверхностного стока, располагаться с наветренной стороны по отношению к предприятиям с вредными выбросами и с подветренной стороны к населенным пунктам и рекреационным зонам.
Не допускается выбирать площадку под строительство на месте бывших полигонов для бытовых отходов, скотомогильников, кожсырьевых предприятий, очистных сооружений.
Не допускается также размещать животноводческие предприятия на земельных участках, загрязненных органическими и радиоактивными отбросами, до истечения сроков, установленных органами Роспотребнадзора и Россельхознадзора.
Для предотвращения заноса инфекций между животноводческими, птицеводческими и звероводческими предприятиями устанавливаются зооветеринарные разрывы. Величина зооветеринарных разрывов регламентируется нормами технологического проектирования для соответствующего вида животных, зверей и птицы. Нормами технологического проектирования предусматриваются также зооветеринарные разрывы от животноводческих и птицеводческих предприятий до других сельскохозяйственных предприятий и объектов подсобно-вспомогательного назначения.
Для предупреждения антропозоонозов животноводческие объекты от селитебной зоны отделяются санитарными разрывами (санитарно-защитными зонами). Размеры санитарно-защитных зон регламентируются СанПиН 2.1.1/2.1.1.1200-03.
4. ВЕТЕРИНАРНЫЕ ОБЪЕКТЫ ФЕРМ И КОМПЛЕКСОВ
4.1. Номенклатура ветеринарных объектов для конкретной фермы, комплекса конкретного вида животных, птицы и зверей определяется "Нормами технологического проектирования ветеринарных объектов для животноводческих, звероводческих, птицеводческих предприятий и крестьянских хозяйств"
НТП-АПК 1.10.07.001-02.
4.2. Ветеринарная лечебница (ветлечебница)
4.2.1. Ветеринарная лечебница предназначена для амбулаторного и стационарного лечения животных, осуществления профилактических, ветеринарно-санитарных, организационных мероприятий по предупреждению и ликвидации заразных и незаразных болезней животных, птиц и зверей, а также диагностических исследований.
Строится как общехозяйственный объект и размещается по заданию на проектирование.
4.2.2. Состав построек ветеринарной лечебницы, их размеры, номенклатура и технологическое оборудование определяются в зависимости от следующих условий:
- хозяйственная система, для которой предназначается ветеринарная лечебница;
- местонахождение лечебницы (ферма, комплекс и т.п.);
- вид и количество животных, птиц и зверей, для которых предназначается лечебница, и направление животноводства;
- климатический пояс, в котором будет строиться лечебница.
4.2.3. В соответствии с указанными в
п. 4.2.1 задачами ветеринарная лечебница должна быть обеспечена зданиями и сооружениями:
- для амбулаторного лечения;
- для стационарного лечения животных, птиц и зверей с заразными и незаразными заболеваниями;
- для лабораторной работы.
4.2.4. При выборе участка под ветеринарную лечебницу необходимо учитывать, чтобы она была связана с обслуживаемыми животноводческими объектами путями сообщения, исправно функционирующими даже в осенний и весенний периоды.
4.2.5. Участок нужно выбирать на слегка возвышенном месте, чтобы он был открыт для свободного движения воздуха и не затоплялся весенними и дождевыми водами.
4.2.6. По рельефу земельный участок должен быть ровным, с сухим грунтом, удобным для возведения дорог и фундаментов, устройства водопровода и канализации и для удаления атмосферных вод. Желательно, чтобы уровень грунтовых вод был ниже глубины промерзания подошв фундаментов. Почва должна быть сухая, легко просыхающая после дождя. На участке необходимы невысокие древесные насаждения.
4.2.7. Если участок отводится близ реки, используемой населением данной местности в качестве водоисточника, ветеринарную лечебницу следует располагать по течению ниже водозабора.
4.2.8. При выборе земельного участка под ветеринарные лечебные учреждения должны быть соблюдены следующие санитарные разрывы:
- от болот, заросших прудов, кладбищ, свалок и других источников загрязнения воздуха и разноса инфекции - не менее 1000 м;
- от пастбищ и водоемов общего пользования (реки, озера, пруды) - не менее 300 м;
- от скотопрогонных трактов федерального и регионального значения - не менее 1000 м;
- от скотопрогонных трактов муниципального значения - не менее 200 м;
- от железных и автомобильных дорог межрегионального значения I и II категории - 300 м;
- от дорог муниципального и местного значения - не менее 50 м.
4.2.9. Везде, где это представится возможным, следует использовать разрывы под зеленые насаждения; особенно желательно создать защитную зеленую зону от дорожной пыли со стороны скотопрогонных трактов и транзитных дорог.
4.2.10. При выборе и распределении земельного участка надо руководствоваться следующим расчетом его размеров (в процентах от общей площади участка):
- под постройки - не более 10%;
- под рабочую площадку при амбулатории (так называемый амбулаторный двор), рабочие дорожки при амбулатории и стационарах, выгульные дворы для стационарных больных, под дороги, дорожки и зеленые насаждения с учетом санитарных разрывов (внутри участка) - до 70%;
- под запасную площадь на случай расширения ветеринарной лечебницы - до 20%.
4.2.11. По наружным границам производственных зон ветеринарной лечебницы должен быть поставлен сплошной забор высотой 2 м. Таким же сплошным забором отделяются все производственные зоны одна от другой внутри территории ветеринарной лечебницы.
4.2.12. В состав ветеринарной лечебницы входят: амбулатория, стационар, изолятор, склад дезосредств.
4.2.13. Главное здание в составе ветеринарной лечебницы - ветеринарная амбулатория. Она предназначается для амбулаторного лечения заболевших животных.
Примерный состав помещений ветеринарной амбулатории:
- комната специалистов;
- манеж-приемная;
- диагностический кабинет;
- аптека;
- кладовая для биопрепаратов (с холодильником);
- моечная-стерилизационная;
- инвентарная;
- вскрывочная.
Краткие сведения о типовых проектах ветеринарных амбулаторий приведены в
Приложении А.
4.2.14. На территории амбулатории могут размещаться отдельные объекты, функционально связанные со зданием амбулатории.
Навес для животных закрыт стенами с трех сторон. Его рекомендуемая ширина - 3,5 м, длина - из расчета 2 м на 1 место для крупных животных и 1 м на 1 место для мелких животных, высота от пола до прогона передней низкой стены (при односкатной кровле) 2,5 м. Полы - асфальтовые, дощатые, кирпичные. Материал стен должен позволять проводить надлежащую дезинфекцию.
В отдельных случаях на территории амбулатории устраивается рабочая дорожка, которая служит для проводки и пробежки животных. Длина дорожки от 35 до 50 м, ширина - до 6 м. Покрытие дорожки, как правило, асфальтовое. Дорожка используется также для определения причины хромоты животных. Профиль дорожки должен иметь незначительный уклон от центра к внешним сторонам, чтобы не застаивалась вода.
На территории амбулатории могут размещаться: навозохранилище емкостью из расчета 6 - 7-дневного хранения навоза, обычный жижесборник и колодец-дезинфектор емкостью 3 - 6 м3 для обеззараживания сточных вод.
4.2.15. В отдельных случаях по заданию на проектирование в состав амбулатории может включаться здание кузницы (в регионах, где имеется поголовье лошадей, нуждающееся в расковке, расчистке копыт и перековке). Здание кузницы должно состоять из следующих помещений: горнового, манежа для ковки лошадей, кладовой для хранения запасного инструмента, кузнечного инвентаря и кованого материала.
4.2.16. В состав ветеринарной лечебницы входит здание стационара, предназначенного для содержания больных животных.
В здание стационара входят следующие помещения:
- для содержания больных животных;
- инвентарная;
- фуражная.
Краткие сведения о типовых проектах стационаров приведены в
Приложении Б.
4.2.17. В заразных стационарах для размещения крупных животных устраивают только денники - стойла не допускаются.
Для размещения мелких животных устраивают индивидуальные и групповые станки. Расположение денников и станков в заразных стационарах дается секционное, но с небольшим количеством мест в одной секции: 2 - 3 денника для крупных, 3 - 4 станка - для мелких животных. Каждая секция должна иметь свой отдельный тамбур.
4.2.18. В незаразных стационарах крупных животных размещают в денниках и стойлах, мелких животных - в индивидуальных станках.
4.2.19. Изоляторы, входящие в состав ветеринарных лечебниц, предназначены для содержания животных, заболевших инфекционными заболеваниями или подозреваемых на инфекционное заболевание.
4.2.20. Как правило, изолятор строится отдельным зданием.
В изоляторе для крупных животных, как правило, устраивают только индивидуальные денники; для мелких животных (свиней, коз, овец и т.д.) - индивидуальные станки. Допускается устройство в небольшом количестве групповых станков (на 2 - 4 головы).
4.2.21. Денники и станки в изоляторах размещают по системе боксов, т.е. каждый денник имеет свой отдельный тамбур и выход; на два индивидуальных станка для мелких животных делается один тамбур и выход.
Краткие сведения о типовых проектах изоляторов приведены в
Приложении В.
4.2.22. Склад медикаментов и дезинфекционных средств предназначается для хранения объемистых медикаментов и дезинфекционных средств.
4.3.1. Ветеринарный пункт предназначается для амбулаторного и стационарного лечения животных, зверей и птиц; проведения профилактических ветеринарных мероприятий.
Он обслуживает животноводческие, звероводческие и птицеводческие предприятия; размещается на территории обслуживаемого предприятия.
4.3.2. В состав ветеринарного пункта входят здания амбулатории и стационара.
В здании амбулатории размещаются:
- комната специалистов;
- манеж-приемная;
- аптека;
- кладовая для биопрепаратов (с холодильником);
- моечная-стерилизационная;
- вскрывочная;
- кладовая для дезосредств.
В здании стационара размещаются:
- помещение для содержания больных животных;
- инвентарная;
- фуражная.
4.3.3. Ветеринарные пункты могут быть двух типов: со стационаром и без стационара. Стационар обычно предусматривается на предприятиях по производству молока и выращиванию ремонтных телок при беспривязном содержании животных.
На остальных предприятиях стационары обычно не предусматриваются.
4.3.4. В состав помещений ветпунктов для птицеводческих, овцеводческих, козоводческих, кролиководческих и звероводческих предприятий вместо манежа-приемной включается диагностический кабинет.
Диагностический кабинет в составе помещений ветпункта предусматривается также и на свиноводческих предприятиях по выращиванию и откорму до 12 тыс. свиней в год.
На свиноводческих предприятиях по выращиванию и откорму 12 и 24 тыс. свиней в год в составе ветеринарного пункта предусматривается диагностическое отделение в составе:
- комнаты подготовки проб для исследований;
- комнаты для проведения исследований;
- помещения моечной-стерилизационной.
4.3.5. В состав ветеринарных пунктов для свиноводческих ферм включают санитарную бойню.
4.3.6. Для звероводческих ферм практикуют строительство ветеринарных пунктов, в состав которых включают изоляторы.
4.3.7. Краткие сведения о типовых проектах ветеринарных пунктов приведены в
Приложении Г; проектах амбулаторий и стационаров, входящих в состав ветпунктов - в
Приложениях А и
Б.
4.4. Ветеринарно-профилактический пункт
4.4.1. Ветеринарно-профилактический пункт предназначается для обработки животных (вакцинация, массовые диагностические исследования, обезроживание, расчистка копыт и проведение лечебных процедур).
4.4.2. Ветеринарно-профилактический пункт размещается на предприятиях крупного рогатого скота с беспривязным содержанием животных, откормочных площадках, овцеводческих и козоводческих объектах.
4.4.3. В состав ветеринарно-профилактического пункта могут входить амбулатория и изолятор.
В здании амбулатории размещается:
- комната специалистов;
- аптека;
- кладовая для биопрепаратов (с холодильником);
- кладовая для дезосредств;
- помещение для обработки животных;
- вскрывочная;
- к зданию примыкают загоны-накопители для животных перед обработкой и после обработки.
В здании стационара размещается:
- помещение для содержания больных животных;
- инвентарная;
- фуражная.
4.4.4. Краткие сведения о типовом проекте ветеринарно-профи-лактических пунктов приведены в
Приложении Д; о проектах амбулаторий и стационаров, которые могут входить в состав ветеринарно-профилактических пунктов - в
Приложениях А и
Б.
4.5. Лечебно-санитарный пункт
4.5.1. Лечебно-санитарный пункт предназначается для амбулаторного и стационарного лечения животных, проведения профилактических, ветеринарно-санитарных мероприятий.
4.5.2. Лечебно-санитарные пункты функционируют в хозяйствах с отгонным животноводством для предприятий крупного рогатого скота, овцеводческих и козоводческих при пастбищной системе содержания.
4.5.3. В состав лечебно-санитарных пунктов могут входить:
- амбулатория;
- стационар;
- изолятор;
- сооружения для обработки кожного покрова животных.
Краткие сведения о типовых проектах лечебно-санитарных пунктов приведены в
Приложении Е; о проектах амбулаторий и стационаров, которые могут входить в состав ветеринарно-санитарного пункта, - в
Приложениях А и
Б.
4.6. Ветеринарная лаборатория
4.6.1. Ветеринарная лаборатория предназначается для осуществления диагностических исследований, контроля за санитарным качеством кормов и качеством проводимой дезинфекции. Ветеринарная лаборатория осуществляет проведение профилактических, лечебных и ветеринарно-санитарных мероприятий.
4.6.2. Ветеринарные лаборатории размещаются на территории обслуживаемых предприятий:
- свиноводческих - откормочных и с законченным производственным циклом - при откорме 54 тысяч и более свиней в год;
- птицеводческих товарных (кроме ферм с поголовьем менее 50 тысяч кур, индеек или уток) и племенных хозяйствах;
- звероводческих хозяйствах с поголовьем самок основного стада зверей более 15 тысяч голов.
4.6.3. Ветеринарные лаборатории могут размещаться также на территории городов и иных населенных пунктов. В этом случае они обслуживают близлежащие хозяйства и поголовье животных, находящееся у населения.
4.6.4. В состав ветеринарной лаборатории входят:
- лабораторное отделение (лабораторный корпус);
- склад дезосредств.
4.6.5. В лабораторном отделении (корпусе) размещаются:
- комнаты специалистов;
- аптека;
- кладовая для биопрепаратов (с холодильником);
- бактериологическое отделение, в состав которого входят, как минимум, два стерильных бокса;
- химико-токсикологическое отделение;
- паразитологическое отделение;
- моечная-стерилизационная;
- комната для подготовки проб для исследований и проведения лечебно-профилактических мероприятий.
4.6.6. Лабораторный корпус, как правило, проектируется и строится вместе с виварием, в состав которого входят помещения для подопытных животных и птиц, помещения для кормов.
4.6.7. В состав склада дезосредств, который располагается недалеко от ветеринарной лаборатории, входят кладовые для дезосредств.
4.6.8. Краткие сведения о типовых проектах ветеринарных лабораторий приведены в
Приложении Ж.
4.7. Убойно-санитарный пункт (санбойня), убойная площадка
4.7.1. Убойно-санитарный пункт (санбойня) предназначается для вынужденного убоя животных и птицы. Располагается на животноводческих и птицеводческих предприятиях.
4.7.2. Если убойно-санитарный пункт обслуживает несколько ферм одного и того же хозяйства или если он предназначается для обслуживания нескольких животноводческих ферм, комплексов, его располагают на центральной усадьбе хозяйства или вблизи одного наиболее крупного комплекса с учетом оптимального расстояния от других ферм (комплексов) и хозяйств.
4.7.3. Если в хозяйстве имеется убойно-санитарный пункт и карантин, они располагаются, как правило, на одной площадке с этим хозяйством. При этом они располагаются отдельно друг от друга на расстоянии не менее 50 м и должны быть огорожены сплошным или сетчатым забором высотой 2 м с цоколем, заглубленным в землю не менее чем на 0,2 м, а также иметь самостоятельный въезд (выезд) на дорогу общего пользования.
4.7.4. Убойная площадка предназначается для вынужденного убоя животных и птиц и располагается на территории обслуживаемого животноводческого и птицеводческого предприятия.
4.7.5. Убойно-санитарный пункт, как правило, состоит из двух отделений: убойного и утилизационного.
В убойное отделение входят помещения:
- для убоя животных;
- для убоя птицы;
- для вскрытия желудочно-кишечного тракта животных;
- для посола и временного хранения шкур животных;
- камера временного хранения туш;
- душевая.
В утилизационное отделение входят помещения вскрывочной и утилизационной.
4.7.6. В составе здания убойной площадки предусматриваются следующие помещения: убоя животных и птицы, посола и временного хранения шкур, холодильной камеры для временного хранения туш, бытовые помещения.
4.7.7. Краткие сведения о типовых проектах убойно-санитарных пунктов и убойных площадок приведены в
Приложении И.
4.8. Здание карантина (карантинное помещение), карантин
4.8.1. Здание карантина (карантинное помещение) предназначается для ветеринарно-санитарной обработки, передержки, проведения диагностических исследований и лечебно-профилактических обработок животных, поступающих на предприятие и вывозимых в другие хозяйства для племенных и пользовательных целей.
4.8.2. Карантины строятся на животноводческих предприятиях, комплектование которых поголовьем животных осуществляется из разных хозяйств.
Общехозяйственный карантин размещают на центральной усадьбе хозяйства или вблизи одного из наиболее крупных животноводческих объектов хозяйства с учетом оптимального расстояния от других ферм (комплексов) хозяйства.
Карантин, предназначенный для обслуживания одного предприятия, размещается на одной площадке с этим предприятием.
4.8.3. Здание карантина должно быть огорожено сплошным или сетчатым забором высотой 2 м с заглубленным в землю не менее чем на 0,2 м цоколем, иметь самостоятельный въезд (выезд) на дорогу общего пользования.
Выход из помещения карантина также должен быть самостоятельным (изолированным), а территория, прилегающая к нему, должна быть огорожена забором и иметь изолированный въезд (выезд), выходящий на дорогу общего пользования.
4.8.4. Карантин состоит из двух отделений: отделения для приема и санитарной обработки животных и отделения для содержания животных.
Отделение для приема и санитарной обработки животных включает: весовую, помещение для приема и санитарной обработки животных (ингаляционную), кладовую для дезинфицирующих, дезинвазионных и моющих средств, помещение для хранения медикаментов и инструментов.
Отделение для содержания животных состоит из помещений: для содержания животных, фуражной, инвентарной.
4.8.5. Краткие сведения о типовых проектах зданий карантинов приведены в
Приложении К.
4.9.1. Изолятор предназначается для временного содержания больных или подозреваемых в заболевании заразными, инфекционными и инвазионными болезнями животных.
Как правило, изолятор размещается в составе ветлечебницы.
4.9.2. При отсутствии в хозяйстве ветлечебницы по заданию на проектирование изолятор может быть размещен на территории обслуживаемой фермы, предприятия.
4.9.3. Подробно об устройстве и размещении здания изолятора изложено в
пп. 4.2.19 -
4.2.21.
4.10. Сооружения для обработки кожного покрова животных
4.10.1. Сооружения предназначаются для обработки кожного покрова животных противопаразитарными и дезинфицирующими препаратами.
4.10.2. Сооружения для обработки кожного покрова животных возводятся на мясных и мясных репродукторных фермах крупного рогатого скота, овцеводческих и козоводческих фермах, на других предприятиях при содержании в них животных с использованием пастбищ и при отсутствии ветеринарно-санитарного пункта.
В зоне отгонного животноводства сооружения для обработки кожного покрова животных размещаются, как правило, как объект общехозяйственного назначения с учетом удобного обслуживания всех или нескольких ферм хозяйства (на скотопрогонах к пастбищу, в составе сооружений лечебно-санитарного пункта или на участках, где организуют стрижку овец и коз), в других зонах - как фермский объект.
4.10.3. Основой сооружений для обработки кожного покрова животных служат ванны.
4.10.4. Ванны для профилактических и зоогигиенических целей делаются таких размеров, чтобы можно было погрузить животное в жидкость. В этом случае ванна представляет собой длинный бассейн в земле, с навесом или без него. Бассейн делают из железобетона, кирпича, бутового камня с цементной штукатуркой или из дерева. Ванны, устраиваемые для купания крупного рогатого скота, овец или свиней, отличаются по размерам и по своему устройству. Крупный рогатый скот и овец купают только в теплые летние дни; поэтому ванны для них устраивают и на открытом воздухе и в теплых помещениях.
4.10.5. Ванны для крупного рогатого скота применяют главным образом с профилактической целью - для борьбы с клещами - переносчиками пироплазмоза. Купание крупного рогатого скота в ваннах применяют и для ветеринарно-санитарной обработки в соответствующих растворах, а также и с зоогигиенической целью в чистой воде.
4.10.6. Ванны для крупного рогатого скота представляют собой сооружение, состоящее из двух загонов, бассейна и навеса. Один загон устраивают при входной части бассейна, другой - у его выхода. Загоны делают чаще всего квадратной формы, площадью из расчета 2,5 - 3 м2 на 1 голову
(Приложение Л.1).
4.10.7. В первом загоне, ближе к бассейну, отгораживают дворик - "раскол", площадью 18 - 20 м2, из расчета 8 - 10 голов; узкой стороной раскол переходит в коридор, соединяющийся со входной площадкой бассейна. Коридор имеет размеры: длину 550 - 600 см, ширину 80 - 90 см, высоту ограждения 100 - 110 см. Ограждение загонов, раскола и коридора делают из жердей или брусков, пришитых к столбам, прочно врытым в землю. Животных небольшими партиями, по 8 - 10 голов, из загона вгоняют в раскол и из раскола по одному прогоняют по коридору на входную площадку бассейна. Площадку эту делают длиной 50 см и с крутым откосом в сторону бассейна, чтобы животное, войдя в нее, само, без подталкивания, скользило и погружалось в воду; ширина площадки равна ширине коридора: 80 - 90 см.
4.10.8. Бассейн у входной площадки делают такой глубины, чтобы животное, соскользнув с площадки, погрузилось в воду всем корпусом, с головой, не доставая дна. Окунувшись, животное переплывает бассейн и выходит на выходную площадку; здесь его задерживают на некоторое время, пока не стечет с него жидкость, после чего вгоняют во второй загон.
4.10.9. Выходную площадку делают площадью 35 - 40 м2 из расчета на 10 - 12 голов. Пол плотный, лучше асфальтовый; ему дается небольшой уклон (1:1,5) в сторону бассейна.
4.10.10. Бассейн в поперечном разрезе имеет форму трапеции, суживающейся ко дну. Дно устраивается с уклоном в сторону входной площадки. Здесь в дне делают выпуск для жидкости из бассейна в колодец (сборный или поглощающий).
4.10.11. Размеры бассейна:
- длина 1350 см, в которую входит входная площадка 50 см, длина плавания 700 см и выход 600 см;
- ширина по верху 135 см, по уровню воды или раствора 110 см и по дну 50 см;
- глубина у входной площадки 235 см, у начала выхода 200 см.
Бассейн наполняется на глубину 180 см у входной площадки.
4.10.12. Выход делают в виде наклонной плоскости, с набитыми планками (стремянка) под углом 23°. Сбоку бассейна устраивают навес, под которым устанавливают два бака для воды, очаг для нагревания воды и отгораживают дощатой стеной небольшое помещение для приготовления концентрированных растворов и определения годности растворов в бассейне, которое производится неоднократно во время купания стада.
4.10.13. Ванны для овец применяются с лечебной и профилактической целью в борьбе с чесоточными клещами (в противочесоточных растворах), а также перед стрижкой для мытья шерсти (в чистой воде). По своему устройству они сходны с ваннами для крупного рогатого скота, отличаясь от последних лишь размерами; кроме того, добавляется отжимочная площадка. План и разрезы ванны для овец приведены в
Приложении Л.2.
4.10.14. Размеры загонных дворов определяют из расчета 1 - 1,2 м2 на голову; размер раскола - 0,75 - 0,90 м2 на голову. Размеры коридора (струнки): длина 450 - 500 см, ширина 40 - 50 см, высота 60 - 70 см. Длина бассейна с площадками 2185 см: входная площадка 115 см, длина плавания 1700 см, выход 225 см и выходная площадка 145 см. Ширина бассейна поверху 62 см, по дну 45 см. Глубина бассейна у входной площадки 125 см, у начала выхода 95 см. Бассейн наполняется на глубину 100 см у входной площадки. К выходной площадке примыкает отжимная площадка площадью 10 x 7 м; на ней овец задерживают и отжимают с них жидкость (руками).
4.10.15. Ванны для свиней применяются с зоогигиенической целью. Размеры бассейна: длина 450 - 500 см, ширина 175 - 200 см, глубина по середине 70 - 75 см. Вода наливается на высоту в зависимости от величины свиней, которых купают. Бассейн имеет форму корыта с опущенной серединой дна.
4.10.16. Краткие сведения о типовых проектах сооружений для обработки кожного покрова животных приведены в
Приложении Л.3 -
Л.5.
4.11. Дезбарьер, дезинфекционный блок
4.11.1. Въездной дезбарьер предназначается для дезинфекции, дезинвазии колес транспортных средств.
4.11.2. Дезбарьер с подогревом дезраствора размещается на главном въезде на территорию животноводческих, звероводческих предприятий, птицефабрик и общехозяйственных ветобъектов.
Дезбарьер без подогрева дезраствора размещают при въезде в зону хранения кормов животноводческих ферм, в зону содержания птицы, инкубатория, цеха убоя птицы, убойно-санитарного пункта птицефабрик и птицеводческих хозяйств.
4.11.3. Въездной дезбарьер, как правило, размещается под навесом и представляет собой бетонированную ванну, заполненную дезраствором.
Габариты ванны:
- длина по зеркалу дезраствора не менее 9 м;
- длина по днищу не менее 6 м;
- ширина ванны должна быть не менее ширины ворот;
- глубина ванны не менее 0,2 м;
- пандусы перед и после ванны должны иметь уклон не более 1:4.
4.11.4. Входной дезбарьер размещается перед входом в отдельные животноводческие и ветеринарные объекты, а также перед входом на территорию ферм и перед входом в санпропускники.
4.11.5. Входной дезбарьер представляет собой бетонированную ванну, заполненную опилками или ковриком, залитую дезраствором.
Габариты ванны:
- длина не менее 1,5 м;
- ширина на 0,6 м шире дверного проема;
- глубина не менее 0,1 м.
4.11.6. Краткие сведения о типовых проектах дезбарьеров приведены в
Приложениях Л.6 -
Л.8.
4.11.7. Дезинфекционный блок (дезблок) предназначается для проведения дезинфекции и дезинвазии транспортных средств и тары, поступающих на животноводческие и птицеводческие предприятия.
4.11.8. Дезинфекционный блок (дезблок) размещается на главном въезде на территорию птицеводческих предприятий и крупных свиноводческих предприятий.
4.11.9. Краткие сведения и типовых проектах дезблоков приведены в Приложении М.
4.12. Сооружения сбора, утилизации и уничтожения биологических отходов
4.12.1. В соответствии с "Ветеринарно-санитарными
правилами сбора, утилизации и уничтожения биологических отходов" N 13-7-2/469 от 4 декабря 1995 г. биологические отходы утилизируют путем переработки на ветеринарно-санитарных утилизационных заводах (цехах), обеззараживают в биотермических ямах, уничтожают сжиганием или в исключительных случаях захоранивают в специально отведенных местах. С введением настоящих правил уничтожение биологических отходов путем захоронения в землю категорически запрещается.
4.12.2. На территории крестьянских хозяйств и в звероводческих хозяйствах размещают площадки с твердым покрытием для контейнеров для сбора трупов и конфискатов. Контейнеры предназначаются для хранения трупов животных и биологических отходов в случае отсутствия особо опасных инфекций и инвазий. Размеры площадки определяются заданием на проектирование. Размещается площадка на границе территории хозяйства. По мере необходимости содержимое контейнеров захоранивается в биотермическую яму.
4.12.3. Места, отведенные для утилизации биологических отходов, оборудуются одной или несколькими биотермическими ямами.
Биотермическая яма предназначается для биотермического обеззараживания трупов животных и биологических отходов в случае отсутствия особо опасных инфекций и инвазий. Строится как общехозяйственный объект.
4.12.4. Биотермические ямы размещают на сухом возвышенном участке земли площадью не менее 600 м2. Уровень стояния грунтовых вод должен быть не менее 2 м от поверхности земли.
Размещение биотермических ям в водоохранной, лесопарковой и заповедной зонах категорически запрещается.
Санитарный разрыв от биотермической ямы до селитебной зоны составляет 1000 м.
Зооветеринарные разрывы от биотермической ямы следующие:
- до животноводческих комплексов - 1000 м;
- до животноводческих ферм - 500 м;
- до скотопрогонов и пастбищ - 200 м;
- автомобильных, железных дорог в зависимости от категории последних - 60 - 300 м.
4.12.5. Территорию биотермической ямы огораживают глухим забором высотой не менее 2 м, с въездными воротами. С внутренней стороны забора по всему периметру выкапывают траншею глубиной 0,8 - 1,4 м (рисунок 1).
Рисунок 1. Биотермическая яма - разрез земляного
ограждения участка:
I - при песчаных грунтах; II - при глинистых грунтах
Через траншею перекидывают мост.
4.12.6. При строительстве биотермической ямы в центре участка выкапывают котлован глубиной 10 м и размером в плане 3 x 3 м; работы по устройству ямы проводятся открытым способом с креплением стен котлована. При наличии грунтовых вод забивают шпунтованные ряды из досок или брусков, под защитой которых производят земляные работы. В пределах грунтовых вод выкладывают стены круглой формы из красного кирпича или квадратной формы из другого водонепроницаемого материала и выводят выше уровня земли на 40 см с устройством отмостки.
Особого внимания требует устройство глиняного замка вокруг стен биотермической ямы для обеспечения водонепроницаемости ограждения ямы, что является основным условием пригодности ее для эксплуатации. Глина должна быть жирная, хорошо промятая. Ее нужно укладывать слоями не более 15 см высотой, с уплотнением тяжелыми трамбовками.
На дно ямы укладывают слой щебня и заливают бетонной смесью. Стены ямы штукатурят цементным раствором.
Над одной половиной ямы устраивают перекрытие из двух настилов досок толщиной 6 см, соединенных в четверть, а над другой половиной - две крышки из досок толщиной 6 см на планках. Размер крышек: верхней 150 x 310 см, нижней 140 x 300 см. Для утепления ямы на зимнее время пространство между настилами и крышками закладывают соломенными матами или мешками, набитыми опилками, торфяной крошкой или торфяным порошком. Крышки укрепляют на петлях и закрывают на замок.
Для вывода из ямы выделяющихся при гниении газов в перекрытии ямы устраивают вытяжную трубу сечением 25 x 25 см (в свету) и высотой 3 м.
Для защиты ямы от дождя и снега над ней на высоте 2,5 м строят навес длиной 6 м и шириной 3 м. Допускается устройство навеса 5 x 5 м (в плане).
К яме пристраивают помещение для вскрытия трупов животных, хранения дезинфицирующих средств, инвентаря, спецодежды и инструментов.
4.12.7. Биотермическая яма должна иметь удобные подъездные пути; перед въездом на ее территорию устраивают коновязь для животных, которых использовали для доставки биологических отходов.
4.12.8. Трупы и конфискат, заброшенные в яму, попадают в анаэробные условия и при благоприятной для гниения температуре (60 - 70 °C) подвергаются быстрому разложению вследствие действия на них термофильных бактерий, что обеспечивает гибель патогенных микроорганизмов.
При гниении выделяются газы: индол, скатол, меркаптан и др.
Чтобы определить, какое количество ям нужно в каждом отдельном случае, можно пользоваться следующим расчетом. Трупы крупного животного (лошади, коровы, быка) весом 400 - 500 кг занимают объем 1,5 м3, следовательно, в круглую яму диаметром 3 м и объемом 75 м3 можно одновременно загрузить 45 - 47 свежих трупов; в квадратную яму размером в плане 3 x 3 м и объемом 90 м3 - 57 - 60 трупов.
С момента начала разложения труп уменьшается в объеме:
- к концу первого месяца - до 20%;
- к концу второго месяца - до 50%;
- к концу третьего месяца - до 80%.
В дальнейшем уменьшение объема происходит медленнее и становится менее значительным.
На практике в сельских условиях в ямы загружают по 1 - 2 трупа с различными промежутками времени: от 1 до 10 дней и более. Это обстоятельство дает возможность забрасывать в одну круглую яму за год до 200 трупов, в квадратную - до 300 трупов.
4.12.9. Повторное использование биотермической ямы допускается через 2 года после последнего сброса биологических отходов и исключения возбудителя сибирской язвы в пробах изолированного материала, отобранных по всей глубине ямы через каждые 0,25 м. Гуммированный остаток захоранивают на территории расположения биотермической ямы в землю.
4.12.10. На территории биотермической ямы запрещается:
- пасти скот, косить траву;
- брать, выносить, вывозить землю и гуммированный остаток за ее пределы.
4.12.11. Трупосжигательные ямы и траншеи устраивают для сжигания трупов крупных и мелких животных. Сжигание производят до образования негорючего неорганического остатка.
4.12.12. Для сжигания трупов роют яму размером 2,5 x 1,5 м и глубиной 0,7 м, причем вынутую землю укладывают параллельно продольным краям ямы в виде гряды (рис. 2).
а) план; б) поперечный разрез
Рисунок 2. Трупосжигательная яма
Яму заполняют сухими дровами, сложенными в клетку до верхнего края ямы. Поперек ямы на земляную насыпь кладут три рельса, на которые укладывают труп. После этого зажигают дрова.
4.12.13. Роют две траншеи, расположенные крестообразно, длиной 2,6 м, шириной 0,6 м, глубиной 0,5 м. На дно траншеи кладут слой соломы, затем дрова до верхнего края ямы.
В середине на стыке траншей накладывают перекладины из сырых бревен или металлических балок и на них помещают труп животного. По бокам и сверху труп обкладывают дровами и накрывают листами металла. Дрова в яме обливают керосином или другой горючей жидкостью и поджигают.
Ямы и траншеи указанных размеров предназначены для сжигания трупов крупных животных. При сжигании трупов мелких животных размеры соответственно уменьшают. На рис. 3 и
4 приведены план и разрез траншей для сжигания трупов.
Рисунок 3. План трупосжигательной траншеи
Рисунок 4. Поперечный разрез трупосжигательной траншеи
Золу и другие несгораемые неорганические остатки закапывают в той же яме, траншее, где проводилось сжигание.
4.12.14. Для осуществления ветеринарной защиты животноводческих, птицеводческих и звероводческих объектов имеют большое значение меры по содержанию старых, уже не действующих скотомогильников, на территории которых было осуществлено захоронение трупов в землю.
Участок не действующего скотомогильника должен иметь тройное ограждение, аналогичное по конструкции ограждению биотермических ям, которое исключало бы возможность проникновения на него животных и домашней птицы. Могилы должны располагаться на расстоянии 1 м от канавы третьего ограждения.
Размеры могил делались длиной 3 м и шириной 2 м для всех видов животных (крупных и мелких). Между рядами могил и между могилами в ряду должно было соблюдаться расстояние в 50 см.
Осевшие насыпи старых могил на скотомогильниках подлежат обязательному восстановлению. Высота кургана над могилой после восстановления должна быть не менее 0,5 м над поверхностью земли.
Использованные скотомогильники должны оставаться закрытыми до 35 лет при песчаном грунте и до 50 лет при глинистых, сырых и холодных грунтах.
В случае принятия решения об использовании после истечения указанных сроков территории бывшего скотомогильника для промышленного строительства объектов, не связанных с приемом, производством и переработкой продуктов питания и кормов, строительные работы допускается проводить только после дезинфекции территории скотомогильника бромистым метилом или другим препаратом в соответствии с действующими правилами и последующего отрицательного лабораторного анализа проб почвы и гуммированного остатка на сибирскую язву.
В случае угрозы подтопления не действующих скотомогильников паводковыми водами или ожидаемого подтопления в результате строительства гидросооружений территорию скотомогильника оканавливают траншеей глубиной не менее 2 м. Вынутую при рытье траншеи землю размещают на территории скотомогильника между могильными курганами, затем всю территорию разравнивают и прикатывают. Затем траншею и всю территорию скотомогильника бетонируют. При бетонировании толщина бетонного слоя на территории скотомогильника и над траншеей должна быть не менее 0,4 м.
4.12.15. Ответственность за устройство, санитарное состояние и оборудование биотермических ям, а также неиспользованных скотомогильников в соответствии с ветеринарно-санитарными
правилами сбора, утилизации и уничтожения биологических отходов возлагается на местную администрацию, руководителей организаций, в ведении которых находятся эти объекты.
4.12.16. Краткая характеристика типового проекта биотермической ямы приведена в
Приложении Н.
4.12.17. Ветеринарно-санитарные утилизационные заводы предназначаются для переработки трупов животных и конфискатов, поступающих с ферм и комплексов крестьянских хозяйств и индивидуальных владельцев.
Обязанность по доставке биологических отходов для переработки или сжигания на ветеринарно-санитарных утилизационных заводах возлагается на владельца (руководителя фермерского, личного подсобного хозяйства, акционерного общества и т.д., службу коммунального хозяйства местной администрации).
4.12.18. Биологическими отходами являются:
- трупы животных и птиц, в том числе лабораторных;
- абортированные и мертворожденные плоды;
- послеоперационный секционный материал (ткани, части иссеченных органов и т.п.);
- ветеринарные конфискаты (мясо, рыба, другая продукция животного происхождения, не отвечающая требованиям ветеринарной безопасности и качества и непригодная для пищевых целей), выявленные после ветеринарно-санитарной экспертизы на убойных пунктах, хладобойнях и мясоперерабатывающих организациях, на рынках, организациях торговли и других объектах.
| | ИС МЕГАНОРМ: примечание. Текст дан в соответствии с официальным текстом документа. | |
4.12.19. В связи с тем, что ветеринарно-санитарные утилизационные заводы непосредственно не входят в состав объектов ветеринарной защиты, размещаемых в составе ферм и комплексов, краткие сведения о краткой о типовых проектах заводов в данных методических рекомендациях не приводятся.
4.12.20. Сжигание биологических отходов в хозяйствах допускается в трупосжигательных печах. Принцип действия, конструктивные особенности и способ монтажа трупосжигательных печей следует получать в организациях-изготовителях.
4.13. Санитарные пропускники (санпропускники)
4.13.1. Санитарные пропускники (санпропускники) предназначены для предупреждения заноса на территорию ферм и комплексов инфекционных и инвазионных заболеваний обслуживающим персоналом.
4.13.2. Размещается санпропускник на линии ограждения при главном въезде (входе) на ферму (комплекс) в составе административного здания или в отдельно стоящем здании.
4.13.3. На крупных птицефабриках санпропускники для персонала размещаются при входе (въезде) в каждую производственную зону.
Санпропускники для инкубатория, цеха убоя и переработки птицы, цеха для сортировки и упаковки яиц размещаются в составе этих зданий.
4.13.4. В санпропускнике проводится санитарная обработка обслуживающего персонала и посетителей, а также дезинфекция, стирка и сушка спецодежды и обуви работников.
Санпропускники включают ряд помещений, оборудованных сквозными душами, обслуживающими весь работающей персонал необходимой обработкой. Все работающие, идущие на работу и с работы, проходят через эти сквозные души. При этом обеспечивается смена домашней и уличной одежды на специальную.
В состав санпропускников могут входить различные помещения административного и бытового назначения.
4.13.5. Краткая характеристика типовых проектов санпропускников приведена в
Приложении П.
5. ЗАЩИТА ЖИВОТНОВОДЧЕСКИХ, ЗВЕРОВОДЧЕСКИХ
И ПТИЦЕВОДЧЕСКИХ ОБЪЕКТОВ ОТ СИНАНТРОПНЫХ ГРЫЗУНОВ
5.1. Ветеринарная защита от синантропных грызунов обеспечивается проведением инженерно-строительных, инженерно-технических, санитарно-гигиенических и дератизационных мероприятий.
5.2. Защита животноводческих, птицеводческих и звероводческих объектов от синантропных грызунов (серая крыса, черная крыса, домовая мышь) должна осуществляться постоянно во всех помещениях, на открытой территории ферм и комплексов и в санитарно-защитной зоне.
5.3. Инженерно-строительные, инженерно-технические и санитарно-гигиенические мероприятия должны быть направлены на предупреждение попадания грызунов на объекты, а также создание условий, препятствующих их нормальной жизнедеятельности, в основном за счет сокращения или ликвидации возможных мест их кормежки и укрытий.
5.4. К таким условиям относится соблюдение чистоты и порядка на территории ферм. Хранение навоза должно производиться в специально отведенных местах. Нельзя допускать неорганизованных свалок вышедшего из строя инвентаря, старого железа, строительного мусора и других предметов, загромождающих и засоряющих территорию. Не должно существовать ненужных ям, канав и т.п. Необходимо периодически выкашивать сорную траву, как на территории фермы, так и вокруг нее полосой шириной не менее 2 м.
5.5. Внутри животноводческих помещений должны соблюдаться ветеринарно-санитарные правила. Необходимо следить за чистотой помещений, регулярно убирая просыпи фуража и несъеденный корм.
5.6. В помещениях для хранения кормов пол лучше бетонировать, а нижние части стен обивать листовым железом. Тара с кормом должна храниться на стеллажах, приподнятых над полом на высоту не менее 25 см. Между стеной и стеллажами должны быть проходы в 50 - 70 см, облегчающие обследования и обработку помещений.
5.7. Складские помещения перед загрузкой должны быть осмотрены на наличие разрушений и отремонтированы. Необходимо также извещать дератизаторов о сроках полного или частичного освобождения складского помещения с целью обследования его на наличие грызунов.
5.8. При проектировании, строительстве и эксплуатации животноводческих помещений должны быть предусмотрены меры, исключающие возможность проникновения грызунов внутрь зданий.
5.9. Зазоры в местах ввода коммуникаций (вода, газ, канализация, отопление, связь, сигнализация и т.п.) через фундамент, стенки приямков, подвалы и пр. заполняют смесью цементного раствора с битым стеклом или закрывают листовой оцинкованной жестью. Допускается установка оцинкованных металлических сеток с ячейками 4 x 4 мм, если обеспечивается плотное примыкание их к поверхности пересекаемых элементов конструкций.
5.10. В местах примыкания наружных и внутренних стен и перегородок, выполненных из облегченных конструкций, к фундаменту, цоколю или полу с внутренней стороны здания устанавливают плинтус, а с наружной стороны - отмостки или слив (перекрывающий нижнюю грань стены или перегородки не менее чем на 70 - 80 мм) из прочного, стойкого неорганического материала (бетон, цемент, асфальт), обеспечивающего плотное заполнение всех зазоров. Этими же материалами заделывают щели в полу между опорными столбами и панелями.
5.11. Нижние участки стен и перегородки из материалов, поддающихся разрушению грызунами, плотно перекрывают с обеих сторон оцинкованной металлической сеткой с ячейками 4 x 4 мм на высоту не менее 30 см.
5.12. Вентиляционные отверстия и проемы для пропуска трубопроводов, кабелей, тросов, кормораздаточных транспортеров, лотков и пр., устраиваемых в стенах и перегородках из облегченных конструкций и трехслойных железобетонных панелей с утеплителем из пенопласта или другого органического материала при отсутствии бетонной окантовки, должны иметь плотную окантовку из кровельной оцинкованной жести, исключающую возможность проникновения грызунов в зону расположения утеплителя. Отверстия и проемы, перечисленные выше, должны быть закрыты проволочной сеткой диаметром 1 мм с ячейками 3 x 3 мм, препятствующей проникновению грызунов в помещения.
5.13. Пазы в стыках примыкания стен и перегородок следует тщательно заделывать.
5.14. При применении органического утеплителя в конструкциях потолка или кровли верхние грани наружных стен с утеплителем из органического материала на всю их ширину плотно перекрывают оцинкованным листом из кровельной стали с выпуском наружу козырька шириной 70 - 80 мм. При стенах из неорганических материалов металлический козырек заделывают внутрь стены на 10 - 12 см.
5.15. Приемные отверстия кормовых бункеров в птичниках закрывают металлической сеткой из проволоки диаметром 2 мм с ячейками не более 7 x 7 мм.
5.16. Зазоры между дверными полотнами и полом должны быть не более: для наружных входных дверей - 3 мм, для служебных (внутри помещений) - 10 мм.
5.17. В производственных и подсобных помещениях деревянные двери и загрузочные люки должны иметь принудительное закрывание; кроме того, низ их на высоту до 30 см, а также пороги входов должны быть обшиты кровельной оцинкованной жестью.
5.18. Проведение дератизационных мероприятий осуществляется в соответствии с "Ветеринарно-санитарными
правилами по организации и проведению дератизационных мероприятий", утвержденными Департаментом ветеринарии Минсельхоза России 14.03.2001 N 13-5-02/0043. Перечень химических средств, применяемых при проведении дератизации, приведен в
приложении к вышеназванным "Ветеринарно-санитарным правилам...". Различные животноводческие объекты, а также птицеводческие и звероводческие имеют ряд особенностей проведения дератизации.
5.19. Дератизация в свинарниках
5.19.1. Из всех сельскохозяйственных построек свинарники являются наиболее излюбленным местом обитания серых крыс. Поэтому дератизация этих помещений должна быть проведена в первую очередь и особенно тщательно. При обследовании свинарников обращает на себя внимание неравномерное распределение крыс в помещении. Больше всего их обнаруживают возле ларей или кладовых с запасами корма, в тамбурах, некоторых станках и т.п.
5.19.2. Среди сельскохозяйственных животных свиньи наиболее чувствительны к антикоагулянтам. Зоокумарин (варфарин) в дозе 1 мг/ кг живой массы при многократном потреблении вызывает гибель животных, особенно поросят после кастрации, когда у них повреждены кровеносные сосуды. При однократном потреблении яд смертелен в дозе 15 мг/кг. Менее токсичными для свиней являются дифенацин, этилфенацин, изоиндан, бродифакум, бромадиалон и др.
5.19.3. При случайном отравлении животных антикоагулянтами следует немедленно применить лечение, заключающееся в назначении раз в день противоядия - витамина К по 3 - 5 мг/кг внутримышечно, глюконата кальция по 10 - 20 мл на голову внутримышечно, а также сердечных средств. Курс лечения 6 - 8 дней.
5.19.4. При наличии в рационе свиней большого количества люцерны, люцерновой муки, капусты, рыбной муки, содержащих много витамина К (от 2 до 100 мг/кг), следует увеличить расход антикоагулянтов в приманках в 2 - 3 раза, ибо витамин К действует противоположно антикоагулянтам.
5.19.5. Расстановку подвесных кормушек, приманочных ящиков, поилок и кормушек из отрезков труб проводят в местах наибольшего скопления грызунов, на путях их движения или в местах вероятного проникновения в помещения, недоступных для свинопоголовья:
- в служебных и вспомогательных помещениях, в складах и т.п., где не проводят ежедневной влажной уборки, расставляют приманочные ящики, кормушки из отрезков труб и поилки;
- в свинарниках-маточниках, хрячниках, откормочниках, в свинарниках для ремонтного молодняка, холостых и супоросных свиноматок, где ежедневно производят гидросмыв, используют подвесные кормушки, укрепляя их на арматуре оборудования и других путях движения грызунов;
- в свинарниках для поросят-отъемышей и пигбалиях приманочные ящики из отрезков труб и поилки расставляют под деревянным настилом и других удобных для этого местах.
5.19.6. После дератизации в свинарнике необходимо провести санитарный ремонт, а по окончании его вновь тщательно обследовать помещение. Если крысы будут обнаружены, то курс дератизации повторяют.
5.20. Дератизация на птицефабриках
5.20.1. Птицефабрики также являются наиболее излюбленным местом обитания серых крыс. Поэтому дератизация на птицефабриках и в птичниках должна быть проведена наиболее тщательно. При обследовании объектов на степень заселенности грызунами необходимо обратить внимание не только на помещения, но и на прилегающую территорию.
5.20.2. Куры мало чувствительны к антикоагулянтам (зоокумарину, дифенацину, этилфенацину и др.) и отравление их крысиными приманками практически не встречается. Биологически они в десятки раз устойчивее к этим ядам, чем крысы. Даже трехкратное поедание крысиных приманок не вызывает серьезных изменений в их организме. Менее устойчив к антикоагулянтам молодняк (цыплята, утята, гусята), но и они по чувствительности в 5 - 7 раз устойчивее крыс.
5.20.3. Применение антибиотиков и кокцидиостатиков в кормах для птиц угнетает биосинтез витамина К в их организме. Они становятся более чувствительны к антикоагулянтам, особенно при клеточном содержании. Поэтому при проведении дератизационных мероприятий необходимо следить, чтобы приманки не попадали в корм птицам.
5.20.4. При напольном содержании птицы отравленные приманки раскладывают в специальные кормушки, которыми могут служить ящики из-под яйца с проделанными в них отверстиями диаметром 6 - 8 см в торцовых сторонах на высоте 5 - 10 см от днища. Кроме приманки дно ящика опудривают дустами антикоагулянтов (зоокумарин, ратиндан). Ящики укрепляют на путях движения крыс и в местах их концентрации.
Ликвидация оставшихся в живых грызунов, как и обычная дератизация на птичниках, сводится к широкому применению антикоагулянтов различными методами (пропыливанию нор и щелей, изготовлению ядовитых покрытий и применению различных пищевых и других приманок).
5.21. Дератизация в зверохозяйствах
5.21.1. Чувствительность пушных зверей к антикоагулянтам почти такая же, что и серых крыс, поэтому в звероводческих и кролиководческих хозяйствах тщательно следят за тем, чтобы родентициды не попадали в корм зверей и кроликов.
5.21.2. При проведении дератизации основное внимание уделяют приманочным и бесприманочным методам истребления - обработке нор, путей передвижения и мест скопления грызунов.
5.21.3. На территории расположения шедов обязательному опыливанию подлежат остатки кормов, собираемые и временно хранимые в различного рода емкостях, часто являющихся для грызунов основными местами кормежки.
5.21.4. Под настилом шедов и между их рядами входные отверстия нор грызунов обрабатывают дустами антикоагулянтов, закупоривают тампонами или ядовитыми пенами. В холодильниках и кормокухнях наряду с этим используют ядовитые покрытия.
5.22. Дератизация других объектов животноводства
5.22.1. Дератизация коровников, телятников, овчарен, конюшен, проводимая с использованием антикоагулянтов, менее опасна для животных, чем использование других ядов. Отравленные приманки раскладывают в местах, недоступных для животных.
5.22.2. Крупный рогатый скот и овцы устойчивы к антикоагулянтам. Яд, принятый в дозах 100 - 200 мг многократно, не смертелен для них, как и разовые дозы в 1 - 5 г.
5.22.3. При случайном отравлении проводят лечение по схеме, указанной в
п. 5.19.3, теми же препаратами, но в дозах, соответствующих виду и возрасту данного животного.
5.22.4. В коровниках, телятниках и кошарах широкое использование антикоагулянтов одновременно различными методами является наиболее эффективным путем борьбы с грызунами.
5.23. Дератизация открытой территории
5.23.1. Вокруг объектов предприятия поддерживают надлежащий санитарный порядок, особенно вдоль забора предприятия, выкашивают бурьян, заделывают в заборе дыры, не допускают скопление мусора, строительных материалов, металлолома, проводят планировку территории и т.п.
5.23.2. Для защиты от дождя и снега, а также с целью избежания поедания отравленной приманки птицами и собаками ее раскладывают только в деревянные кормушки закрытого типа. Кормушки расставляют по всему периметру предприятия вдоль забора через каждые 50 м; если есть сторожевые собаки, то у мест скопления собак, но с таким расчетом, чтобы они не доставали кормушки. Кормушки расставляют у автомобильных и железнодорожных дебаркадеров (погрузочных площадок), у мусоросборочных площадок, у весовых площадок, в укромных местах по периметру корпусов и т.д. Кроме расстановки дератизационных кормушек, обязательным является опыливание, пропыливание, тампонирование и закупорка ядовитой пеной жилых нор грызунов. Жилые норы с твердыми стенками обмазывают липкими массами. В укромных местах (под строительными конструкциями, в различных нишах под оборудованием) расставляют крысиные и мышиные капканы и давилки, которые ежедневно проверяют и при необходимости перезаряжают.
6. ВЕТЕРИНАРНО-САНИТАРНЫЕ ТРЕБОВАНИЯ К СИСТЕМАМ
УДАЛЕНИЯ И ПОДГОТОВКИ К ИСПОЛЬЗОВАНИЮ НАВОЗА И ПОМЕТА
6.1. В получаемом на фермах и комплексах и подготовленном к использованию навозе и помете должны отсутствовать возбудители инфекционных и инвазионных болезней, жизнеспособные семена сорных растений и нормализовано количество биогенных и других веществ, в соответствии с ветеринарно-санитарными, экологическими, агрохимическими требованиями.
6.2. На фермах и комплексах при подготовке навоза и помета к использованию следует предусматривать карантинирование всех видов навоза, помета, навозосодержащего поверхностного стока, применять эффективные технологии и технические средства для их обеззараживания (дезинфекция, дезинвазия) при контаминации отходов возбудителями инфекционных и инвазионных болезней, особенно передаваемых от животных к человеку.
Срок карантинирования с целью выявления инфицированности навоза и помета возбудителями инфекционных и инвазионных болезней следует принимать не менее 6 суток.
Продолжительность карантина на предприятиях следует принимать не менее 45 суток с начала возникновения очага болезни.
6.3. Для карантинирования подстилочного навоза, помета и твердой фракции навоза должны быть предусмотрены площадки секционного типа с твердым покрытием. Для карантинирования бесподстилочного навоза, помета и их жидкой фракции - емкости секционного типа. Карантинирование навоза и помета допускается в секционных прифермских навозохранилищах и прудах-накопителях.
6.4. Для исключения распространения в окружающей среде возбудителей болезней, накапливаемых в осадочной части навозохранилищ и прудов-накопителей, выгрузку навозных стоков или забор жидкой фракции следует производить выше поверхности дна пруда не менее чем на 50 см или предусмотреть соответствующие барьеры перед выгрузными приямками.
6.5. Обеззараживание жидкого навоза, помета, навозных стоков и жидкой фракции навоза химическим методом следует проводить, исходя из норм расхода реагентов на 1 м3 навоза: аммиака - 30 кг (время контакта - 3 - 5 суток), формальдегида - 3 кг (время контакта - 3 суток при гомогенизации в течение 6 часов).
Примечания. 1. Жидкий аммиак транспортируется в специальных автоцистернах. Обрабатываемый аммиаком жидкий навоз покрывают эмульсионно-дезинфицирующим слоем пленки (незонол, масляный ангидрид и др.). Расход препарата 0,1 - 0,3% к обрабатываемой массе.
2. Обработку навоза и помета формальдегидом допускается осуществлять в теплый период года.
6.6. Обеззараживание жидкого навоза, навозных стоков, жидкой фракции, осадку отстойников и избыточного активного ила термическим способом следует проводить при температуре 130 °C, давлении 0,2 МПа и экспозиции 10 мин.
Обеззараживание помета путем термической сушки следует проводить при температуре на выходе из аппарата 120 - 140 °C и экспозиции не менее 60 минут.
6.7. Естественное биологическое обеззараживание подстилочного и бесподстилочного навоза и помета осуществляется путем выдерживания в секционных навозохранилищах или прудах-накопителях в течение 12 месяцев.
Следует учитывать, что естественный биологический метод неприемлем для обеззараживания навоза и помета, контаминированных устойчивыми микроорганизмами (возбудители туберкулеза и др.), а также для зон с низкими температурами, где патогенные микроорганизмы выживают значительно больше указанных сроков.
6.8. Подстилочный навоз и помет, контаминированные спорообразующими возбудителями инфекций, сжигают.
Жидкий навоз и бесподстилочный помет, контаминированные неспорообразующими патогенными микроорганизмами, обеззараживают химическим способом.
При разделении жидкого навоза на фракции жидкую фракцию обеззараживают или естественным способом - путем длительного выдерживания, или химическим способом, а твердую фракцию - биотермическим способом.
6.9. Для биотермического обеззараживания твердой фракции жидкого навоза на площадку с твердым покрытием укладывают солому, торф, опилки или обеззараженный навоз слоем 30 - 40 см.
На влагопоглощающие материалы рыхло укладывают твердую фракцию навоза влажностью до 80% в штабеля высотой до 3 м, шириной до 5 м, произвольной длины.
Бурты укрывают торфом, соломой или навозом слоем 15 - 20 см.
Началом срока обеззараживания твердой фракции навоза считают время достижения температуры в средней трети штабеля на глубине 1,5 - 2,5 м до 55 - 60 °C.
Время выдерживания навоза в штабелях после достижения заданной температуры должно составить: в теплое время года - 2 месяца, в холодное - 3 месяца.
Выделяющуюся из штабеля навоза жидкость вместе с атмосферными осадками собирают в жижесборник и обеззараживают химическим способом.
6.10. Обеззараживание жидкого навоза и бесподстилочного помета от неспорообразующих возбудителей инфекционных болезней допускается осуществлять в метантенках.
6.11. Обеззараживание жидкого навоза и помета в метантенках в термофильном режиме сбраживания достигается при температуре 53 - 55 °C и экспозиции не менее трех суток без добавления свежих порций навоза.
При попадании контаминированного сброженного навоза в накопители обеззараживание достигается при выдерживании сброженной массы в открытом навозохранилище в течение 6 месяцев.
6.12. Обеззараживание навоза и помета в мезофильном режиме эксплуатации метантенков обеспечивается при температуре 36 - 38 °C и экспозиции 10 - 15 суток или температуре 40 - 42 °C и экспозиции 7 - 9 суток.
6.13. Для биотермического обеззараживания подстилочного помета, твердой фракции навоза и компоста влажность должна составлять не более 75%, что обеспечит доведение температуры по всему объему массы в штабеле до 55 - 60 °C при сроке выдерживания массы в штабелях не менее 2 месяцев в летний период и 3 месяца - в зимний период.
Примечания. 1 При отсутствии активных термобиологических процессов и невозможности подъема температуры выше 40 °C подстилочный помет, твердую фракцию навоза и компост при контаминировании неспорообразующими (инфекционными) возбудителями болезней для обеззараживания выдерживают в течение 12 месяцев, а при туберкулезе - 18 месяцев.
2. Для обеспечения требуемой для биотермического обеззараживания температуры соотношение между компостируемой массой и влагопоглощающими материалами должно быть не менее 2:1. При этом штабель укладывается рыхло.
3. Для предотвращения распространения возбудителей инфекционных болезней переукладка (аэрация) штабеля не производится.
6.14. При возникновении на предприятиях эпизоотий, вызванных спорообразующими возбудителями особо опасных болезней, обработка навоза и помета запрещается. Подстилочный навоз и осадки отстойников сжигают, полужидкий, жидкий навоз и навозные стоки подвергают термическому обеззараживанию.
6.15. Дегельминтизацию (дезинвазию) всех видов помета, навоза и его фракций следует проводить биологическим, физическим или химическим методами.
Биологический метод дегельминтизации (дезинвазии) предусматривает выдерживание подстилочного навоза и помета, жидкого и полужидкого навоза и бесподстилочного помета в открытых хранилищах:
- на предприятиях крупного рогатого скота - в течение 6 месяцев;
- на свиноводческих предприятиях - в течение 12 месяцев.
Помета - в пометохранилищах - в течение 3 - 6 месяцев.
Дегельминтизация полужидкого навоза крупного рогатого скота в подпольных навозохранилищах при отсутствии животных достигается выдерживанием его в течение 5 месяцев.
Биологическая дегельминтизация жидкой фракции свиного навоза осуществляется выдерживанием в секционных прудах-накопителях:
- в весенне-летний период - в течение не менее 6 месяцев;
- в период осеннего накопления - в течение 9 месяцев.
Биологическая дегельминтизация жидкой фракции навоза крупного рогатого скота достигается при выдерживании в секционных накопителях не менее 4 месяцев.
Дегельминтизацию жидкого и полужидкого навоза крупного рогатого скота, бесподстилочного помета, жидкого осадка и избыточного ила может осуществляться путем обработки безводным аммиаком в количестве 2% к объему массы и экспозиции 2 суток.
Дегельминтизацию жидкого навоза в аппарате контактного нагрева с погружной горелкой следует производить при температуре 60 °C.
6.16. Дегельминтизация твердой фракции навоза, компоста, подстилочного навоза и помета влажностью до 70% обеспечивается биотермическим способом при выдерживании в буртах в весенне-летний период не менее 1 месяца, в осенне-зимний период - не менее 2 месяцев.
При влажности 75%: в весенне-летний период - не менее 3 месяцев и в осенне-зимний период - не менее 6 месяцев.
Параметры буртов: высота по верху - 2 - 2,5 м, ширина - до 3 - 3,5 м, длина - произвольная.
Дегельминтизацию навоза и помета биотермическим способом допускается проводить на подготовленных полевых грунтовых площадках.
6.17. Дегельминтизация твердой фракции свиного навоза влажностью до 75% достигается выдерживанием ее в отстойниках-накопителях периодического действия в весенне-летний период в течение 3,5 месяцев.
6.18. Дегельминтизация массы при компостировании достигается при условии развития биотермических процессов во всех слоях массы навоза:
- жидкого;
- полужидкого;
- подстилочного при послойной, двух- или одноприемной закладке смеси с добавлением различных, в т.ч. нетрадиционных компонентов (кора древесины и др.).
При этом экспозиция дегельминтизации должна составлять не менее 1,5 месяцев, а началом процесса следует считать достижение температуры в верхних и нижних слоях массы 35 - 38 °C и в центре - 50 °C.
6.19. Дегельминтизация (дезинвазия) твердого подстилочного навоза, получаемого на свиноводческих фермах и крестьянских (фермерских) хозяйствах, осуществляется при складировании навоза в бурты:
- высотой - не более 1,5 м;
- шириной в основании - 2,5 - 3,0 м;
- выдерживание их - не менее 12 месяцев.
Для сокращения сроков дезинвазии навоза данной структуры до 7 - 8 месяцев необходима перебивка (перемешивание) массы 1 - 2 раза в весенне-летний период.
6.20. При внесении в почву жидкого навоза крупного рогатого скота на лугах и пастбищах внутрипочвенным способом, дегельминтизация массы обеспечивается внутри почвенного слоя при глубине заделки 17 см в весенне-летний период.
6.21. Краткая характеристика типовых проектов навозохранилищ и площадок для приготовления компостов приведена в
Приложении Р.
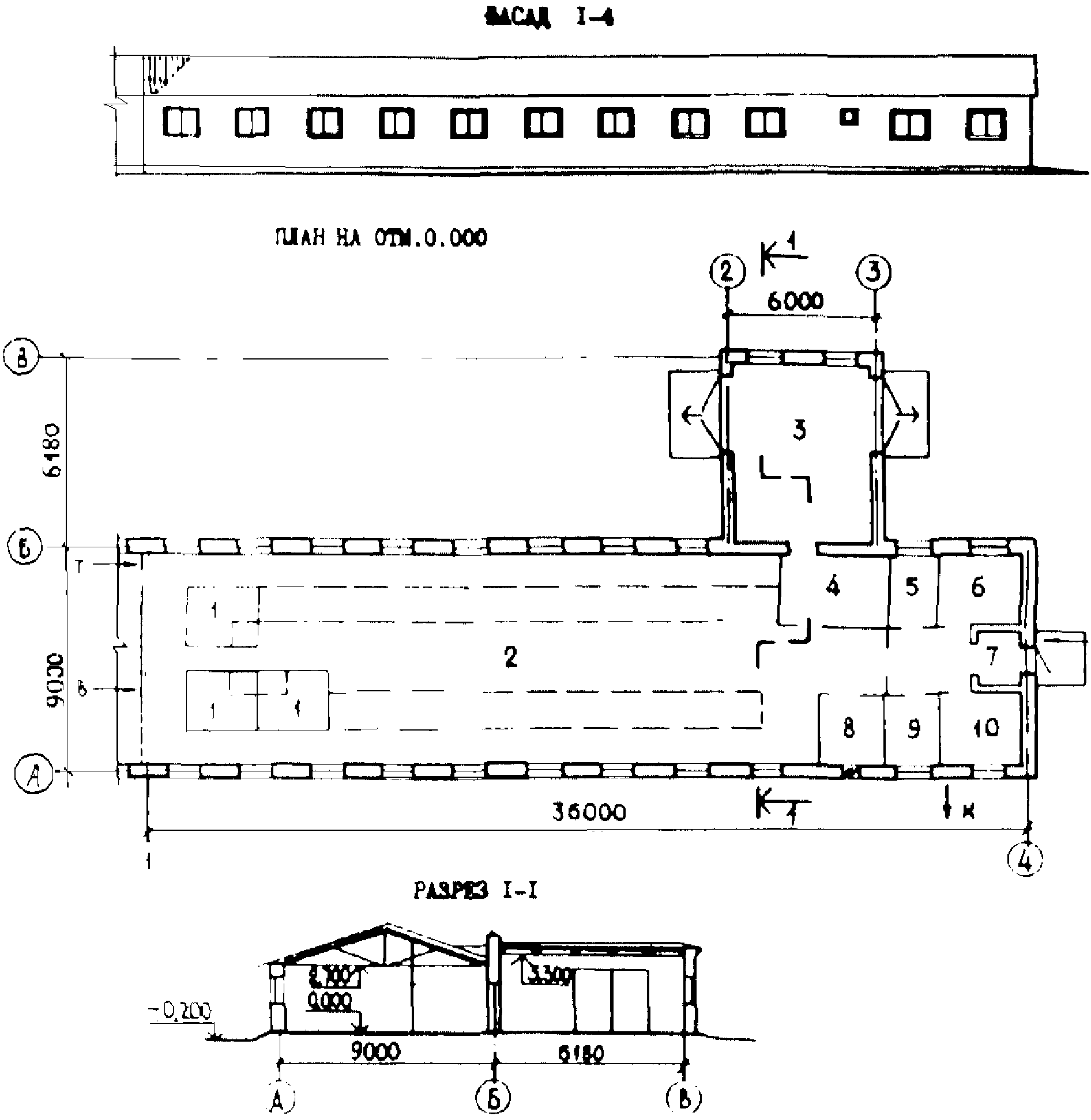
КРАТКИЕ СВЕДЕНИЯ О ТИПОВЫХ ПРОЕКТАХ ВЕТЕРИНАРНЫХ АМБУЛАТОРИЙ
А.1. Амбулатория участковой ветеринарной лечебницы т.п. 807-10-7;
А.2. Амбулатория участковой ветеринарной лечебницы т.п. 807-10-47;
А.3. Амбулатория ветпункта ферм крупного рогатого скота т.п. 807-10-118.87;
А.4. Ветамбулатория для предприятий по выращиванию и откорму 12 - 27 тыс. свиней в год т.п. 807-10-101.12.87;
А.5. Амбулатория ветпункта ферм крупного рогатого скота т.п. 807-10-54.83;
А.6. Амбулатория ветпунктов ферм крупного рогатого скота т.п. 807-10-75.85.
1 - манеж-приемная; 2 - диагностический кабинет;
3 - комната специалистов; 4 - комната ветсанпропаганды;
5 - тамбур; 6 - моечная-стерилизационная; 7 - гардероб;
8 - уборная; 9 - душевая; 10 - узел ввода и инвентарная;
11 - кладовая для биопрепаратов; 12 - аптека; 13 - тамбур;
14 - коридор
Рисунок А.1. Амбулатория участковой ветеринарной лечебницы,
т.п. 807-10-7
Область применения: I, III климатические районы с обычными геологическими условиями. Расчетные температуры наружного воздуха -20 °C, -30 °C (основное решение), -40 °C.
Строительные конструкции и инженерное оборудование
Фундаменты - сборные железобетонные
Стены - сборные керамзитобетонные панели и блоки
Перегородки - кирпичные
Кровля - асбестоцементные листы по ж/б плитам
Утеплитель - минераловатные плиты
Полы - цементно-песчаные, асфальтобетонные, из керамической плитки и линолеума
Водопровод - объединенный: хозяйственно-питьевой, противопожарный и производственный
Канализация - объединенная система бытовых и производственных стоков
Отопление - централизованное
Вентиляция - приточно-вытяжная с механическим и естественным побуждением
Основные показатели проекта
Площадь застройки - 184,2 м2
Строительный объем - 527,4 м3
Расход строительных материалов:
- цемента приведенного - 31,26 т;
- стали приведенной - 6,01 т;
- железобетона и бетона - 57,0 м3;
- легкого бетона - 69,91 м3;
- лесоматериалов - 15,33 м3;
- кирпича - 14,8 тыс. шт.
1 - манеж-приемная; 2 - диагностический кабинет;
3 - инвентарная; 4 - тамбур; 5 - комната ветспециалистов;
6 - коридор; 7 - тамбур; 8 - моечная-стерилизационная;
9 - уборная; 10 - душевая; 11 - узел ввода; 12 - кладовая
для биопрепаратов; 13 - аптека
Рисунок А.2. Амбулатория участковой ветеринарной лечебницы,
т.п. 807-10-47
Область применения: I, III климатические районы с обычными геологическими условиями.
Расчетные температуры наружного воздуха -20 °C, -30 °C (основное решение), -40 °C.
Строительные конструкции и инженерное оборудование
Фундаменты - бетонные ленточные монолитные
Стены, перегородки - кирпичные
Кровля - рулонная с утеплителем из пенобетона по сборным ж/б панелям и плитам
Полы - цементно-песчаные, асфальтобетонные, из керамической плитки и линолеума
Водопровод - объединенный: хозяйственно-питьевой, противопожарный и производственный
Канализация - объединенная система бытовых и производственных стоков
Отопление - водяное от внешних сетей
Вентиляция - приточно-вытяжная с механическим и естественным побуждением
Основные показатели проекта
Площадь застройки - 161,3 м2
Строительный объем - 656,9 м3
Расход строительных материалов:
- цемента приведенного - 30,2 т;
- стали приведенной - 1,93 т;
- железобетона и бетона - 127,59 м3;
- легкого бетона - 30,13 м3;
- лесоматериалов - 7,07 м3;
- кирпича - 54,36 тыс. шт.
1 - вскрывочная; 2 - манеж-приемная; 3 - кладовая
биопрепаратов; 4 - аптека; 5 - комната специалистов;
6 - кладовая дезинфицирующих средств; 7 - узел ввода;
8 - уборная; 9, 10 - тамбуры
Рисунок А.3. Амбулатория ветпункта ферм крупного рогатого
скота, т.п. 807-10-118.87
Область применения: I, II, III климатические районы с обычными геологическими условиями. Расчетные температуры наружного воздуха -20 °C, -30 °C (основное решение), -40 °C.
Строительные конструкции и инженерное оборудование
Фундаменты - сборные железобетонные под колонны, бетонные
Стены - ж/б панели, кирпичные
Перегородки - кирпичные
Колонны - сборные ж/б
Фермы - металлодеревянные
Кровля - асбестоцементные листы по ж/б плитам
Полы - цементно-песчаные, асфальтобетонные, из керамической плитки и линолеума
Водопровод - объединенный: хозяйственно-питьевой, противопожарный и производственный
Канализация - объединенная система бытовых и производственных стоков
Отопление - централизованное, от внешних сетей
Вентиляция - приточно-вытяжная с механическим и естественным побуждением
Основные показатели проекта
Площадь застройки - 184,2 м2
Строительный объем - 527,4 м3
Расход строительных материалов:
- цемента приведенного - 11,82 т;
- стали приведенной - 1,68 т;
- железобетона и бетона - 37,74 м3;
- легкого бетона - 7,03 м3;
- лесоматериалов - 11,05 м3;
- кирпича - 17,89 тыс. шт.
1 - комната специалиста; 2 - аптека; 3 - кладовая
для биопрепаратов; 4 - комната для проведения исследований;
5 - моечная стерилизация; 6 - комната для подготовки проб
для исследования; 7 - кладовая для дезосредств;
8 - уборная; 9 - коридор; 10 - тамбур
Рисунок А.4. Ветамбулатория для предприятий
по выращиванию и откорму 12 - 27 тыс. свиней в год,
т.п. 807-10-101.12.87
Область применения: I, II, III климатические районы с обычными геологическими условиями. Расчетные температуры наружного воздуха -20 °C, -30 °C (основное решение), -40 °C.
Строительные конструкции и инженерное оборудование
Фундаменты - сборные железобетонные под колонны, бетонные
Стены - керамзитобетонные панели
Перегородки - кирпичные
Колонны - сборные ж/б
Фермы - металлодеревянные
Кровля - рулонная по сборным ж/б плитам
Полы - цементно-песчаные, асфальтобетонные, из керамической плитки и линолеума
Водопровод - хозяйственно-питьевой
Канализация - бытовая в наружную сеть
Отопление - водяное
Вентиляция - приточно-вытяжная с механическим побуждением
Основные показатели проекта
Площадь застройки - 106,0 м2
Строительный объем - 432 м3
Расход строительных материалов:
- цемента приведенного - 29,60 т;
- стали приведенной - 4,80 т;
- железобетона и бетона - 88,30 м3;
- лесоматериалов - 5,10 м3;
- кирпича - 0,20 тыс. шт.
1 - узел ввода; 2 - тамбур; 3 - вскрывочная;
4 - манеж-приемная; 5 - комната специалиста;
6 - кладовая биопрепаратов; 7 - аптека; 8 - тамбур;
9 - уборная; 10 - кладовая для дезосредств
Рисунок А.5. Амбулатория ветпункта ферм
крупного рогатого скота, т.п. 807-10-54.83
Область применения: I, III климатические районы с обычными геологическими условиями. Расчетные температуры наружного воздуха -20 °C, -30 °C (основное решение), -40 °C.
Строительные конструкции и инженерное оборудование
Фундаменты - монолитные ленточные бетонные
Стены, перегородки - кирпичные
Фермы - металлодеревянные
Кровля - асбестоцементные листы по плитам с деревянным каркасом
Полы - бетонные, из керамической плитки и линолеума
Водопровод - объединенный: хозяйственно-питьевой, противопожарный и производственный
Канализация - бытовая
Отопление - водяное
Вентиляция - приточно-вытяжная с естественным побуждением
Основные показатели проекта
Площадь застройки - 99,76 м2
Строительный объем - 461,32 м3
Расход строительных материалов:
- цемента приведенного - 12,46 т;
- стали приведенной - 0,37 т;
- железобетона и бетона - 30,43 м3;
- лесоматериалов - 8,70 м3;
- кирпича - 33,43 тыс. шт.
1 - помещение для биопрепаратов; 2 - комната ветврача;
3 - уборная; 4 - аптека; 5 - коридор; 6 - манеж;
7 - помещение для дезосредств; 8 - вскрывочная; 9 - тамбур
Рисунок А.6. Амбулатория ветпунктов ферм
крупного рогатого скота, т.п. 807-10-75.85
Область применения: I, II, III климатические районы с обычными геологическими условиями. Расчетные температуры наружного воздуха -20 °C, -30 °C (основное решение).
Строительные конструкции и инженерное оборудование
Фундаменты - сборные железобетонные
Стены - сборные керамзитобетонные панели
Перегородки - сборные железобетонные
Кровля - рулонная по комплексным плитам
Полы - бетонные, асфальтобетонные, из керамической плитки и линолеума
Водопровод - объединенный: хозяйственно-питьевой и производственный от внутриплощадочных сетей
Канализация - бытовая и производственная в наружную сеть
Отопление - электронагревательными приборами
Вентиляция - приточно-вытяжная с естественным побуждением
Основные показатели проекта
Площадь застройки - 123,6 м2
Строительный объем - 435,7 м3
Расход строительных материалов:
- цемента приведенного - 27,77 т;
- стали приведенной - 6,16 т;
- железобетона и бетона - 107,43 м3;
- лесоматериалов - 4,91 м3.
КРАТКИЕ СВЕДЕНИЯ О ТИПОВЫХ ПРОЕКТАХ СТАЦИОНАРОВ
Б.1. Стационар на 36 мест для коров, т.п. 807-10-60.83;
Б.2. Стационар на 10 мест для коров, т.п. 807-10-113.87;
Б.3. Стационар на 24 места для коров, т.п. 807-10-114.87;
Б.4. Стационар на 45 мест для молодняка, т.п. 807-10-115.87.
1 - денники; 2 - стойловое помещение; 3 - навозоуборочное
помещение; 4 - помещение привода; 5 - инвентарная;
6 - фуражная; 7 - тамбур; 8 - венткамера;
9 - вакуум-насосная; 10 - молочная
Рисунок Б.1. Стационар на 36 мест для коров,
т.п. 807-10-60.83
Область применения: I, III климатические районы с обычными геологическими условиями. Расчетные температуры наружного воздуха -20 °C, -30 °C (основное решение), -40 °C.
Строительные конструкции и инженерное оборудование
Фундаменты - монолитные ленточные бетонные
Стены, перегородки - кирпичные
Кровля - асбестоцементные листы по плитам с деревянным каркасом и облицовкой фанерой
Полы - резинобитумные, бетонные, асфальтобетонные, из керамической плитки
Водопровод - объединенный: хозяйственно-питьевой и производственный
Канализация - бытовая
Отопление - централизованное
Вентиляция - приточно-вытяжная с механическим и естественным побуждением
Основные показатели проекта
Площадь застройки - 393,2 м2
Строительный объем - 1418 м3
Расход строительных материалов:
- цемента приведенного - 24,59 т;
- стали приведенной - 1,61 т;
- железобетона и бетона - 78,65 м3;
- лесоматериалов - 18,85 м3;
- кирпича - 79,29 тыс. шт.
1 - помещение стойловое; 2 - помещение для сбора молока;
3 - тамбур; 4 - инвентарная; 5 - фуражная
Рисунок Б.2. Стационар на 10 мест для коров,
т.п. 807-10-113.87
Область применения: IВ, II, III климатические районы с обычными геологическими условиями. Расчетные температуры наружного воздуха -20 °C, -30 °C (основное решение), -40 °C.
Строительные конструкции и инженерное оборудование
Фундаменты - сборные железобетонные
Колонны - сборные железобетонные
Стены - трехслойные ж/б панели
Перегородки - кирпичные
Фермы - металлодеревянные
Кровля - асбестоцементные листы по плитам с деревянным каркасом и облицовкой фанерой
Полы - бетонные, керамзитобетонные
Водопровод - объединенный: хозяйственно-питьевой и производственный
Канализация - раздельная (сброс в существующие сети и в систему навозоудаления)
Отопление - централизованное
Вентиляция - приточно-вытяжная с естественным побуждением
Основные показатели проекта
Площадь застройки - 116,52 м2
Строительный объем - 413,8 м3
Расход строительных материалов:
- цемента приведенного - 12,6 т;
- стали приведенной - 1,5 т;
- железобетона и бетона - 34,58 м3;
- то же, легкого - 7,20 м3;
- лесоматериалов - 12,54 м3;
- кирпича - 7,32 тыс. шт.
1 - помещение стойловое; 2 - венткамера; 3 - помещение
для сбора молока; 4 - тамбур; 5 - инвентарная; 6 - фуражная
Рисунок Б.3. Стационар на 24 места для коров,
т.п. 807-10-114.87
Область применения: IВ, II, III климатические районы с обычными геологическими условиями. Расчетные температуры наружного воздуха -20 °C, -30 °C (основное решение), -40 °C.
Строительные конструкции и инженерное оборудование
Фундаменты - сборные железобетонные
Колонны - сборные железобетонные
Стены - трехслойные ж/б панели
Перегородки - кирпичные
Фермы - металлодеревянные
Кровля - асбестоцементные листы по плитам с деревянным каркасом и облицовкой фанерой
Полы - бетонные, керамзитобетонные
Водопровод - объединенный: хозяйственно-питьевой и производственный
Канализация - раздельная (сброс в существующие сети и в систему навозоудаления)
Отопление - централизованное
Вентиляция - приточно-вытяжная с механическим и естественным побуждением
Основные показатели проекта
Площадь застройки - 229,92 м2
Строительный объем - 816,3 м3
Расход строительных материалов:
- цемента приведенного - 25,62 т;
- стали приведенной - 3,28 т;
- железобетона и бетона - 65,43 м3;
- то же, легкого - 14,40 м3;
- лесоматериалов - 17,60 м3;
- кирпича - 9,23 тыс. шт.
1 - тамбур; 2 - фуражная; 3 - помещение стойловое;
4 - помещение привода; 5 - инвентарная; 6 - тамбур;
7 - венткамера
Рисунок Б.4. Стационар на 45 мест для молодняка,
т.п. 807-10-115.87
Область применения: IВ, II, III климатические районы с обычными геологическими условиями. Расчетные температуры наружного воздуха -20 °C, -30 °C (основное решение), -40 °C.
Строительные конструкции и инженерное оборудование
Фундаменты - сборные железобетонные
Колонны - сборные железобетонные
Стены - трехслойные ж/б панели
Перегородки - кирпичные
Фермы - металлодеревянные
Кровля - асбестоцементные листы по плитам с деревянным каркасом и облицовкой фанерой
Полы - бетонные, керамзитобетонные
Водопровод - объединенный: хозяйственно-питьевой и производственный
Канализация - раздельная (сброс в существующие сети и в систему навозоудаления)
Отопление - централизованное
Вентиляция - приточно-вытяжная с механическим и естественным побуждением
Основные показатели проекта
Площадь застройки - 343,6 м2
Строительный объем - 1323 м3
Расход строительных материалов:
- цемента приведенного - 48,03 т;
- стали приведенной - 5,64 т;
- железобетона и бетона - 115,99 м3;
- то же, легкого - 26,58 м3;
- лесоматериалов - 25,54 м3;
- кирпича - 17,50 тыс. шт.
1 - тамбур; 2 - фуражная; 3 - помещение стойловое;
4 - помещение привода; 5 - инвентарная; 6 - тамбур;
7 - венткамера
Рисунок Б.5. Стационар на 90 мест для молодняка,
т.п. 807-10-116.87
Область применения: IВ, II, III климатические районы с обычными геологическими условиями. Расчетные температуры наружного воздуха -20 °C, -30 °C (основное решение), -40 °C.
Строительные конструкции и инженерное оборудование
Фундаменты - сборные железобетонные
Колонны - сборные железобетонные
Стены - трехслойные ж/б панели
Перегородки - кирпичные
Фермы - металлодеревянные
Кровля - асбестоцементные листы по плитам с деревянным каркасом и облицовкой фанерой
Полы - бетонные, керамзитобетонные
Водопровод - объединенный: хозяйственно-питьевой и производственный
Канализация - раздельная (сброс в существующие сети и в систему навозоудаления)
Отопление - централизованное
Вентиляция - приточно-вытяжная с механическим и естественным побуждением
Основные показатели проекта
Площадь застройки - 570,40 м2
Строительный объем - 2916 м3
Расход строительных материалов:
- цемента приведенного - 86,86 т;
- стали приведенной - 9,89 т;
- железобетона и бетона - 171,1 м3;
- то же, легкого - 43,38 м3;
- лесоматериалов - 44,31 м3;
- кирпича - 17,50 тыс. шт.
КРАТКИЕ СВЕДЕНИЯ О ТИПОВЫХ ПРОЕКТАХ ИЗОЛЯТОРОВ
В.1. Изолятор на 3 места для быков, т.п. 807-20-11;
В.2. Изолятор на 5 мест для коров, т.п. 807-10-119.87;
В.3. Изолятор на 10 мест для коров, т.п. 807-10-120.87;
В.4. Изолятор для свиней на 20 станков, т.п. 807-10-1.
1 - комната для проведения лечебных процедур;
2 - узел ввода; 3 - помещение для двух быков; 4 - тамбур;
5 - бокс на одного быка; 6 - коридор; 7 - уборная;
8 - тамбур; 9 - фуражная
Рисунок В.1. Изолятор на 3 места для быков, т.п. 807-20-11
Область применения: I, III климатические районы с обычными геологическими условиями. Расчетные температуры наружного воздуха -20 °C, -30 °C (основное решение), -40 °C.
Строительные конструкции и инженерное оборудование
Фундаменты - сборные железобетонные
Колонны - сборные железобетонные
Стены - панели из легкого бетона
Перегородки - кирпичные
Фермы - сборные железобетонные
Кровля - асбестоцементные листы по сборным ж/б плитам
Полы - бетонные, резинобитумные
Водопровод - объединенный: хозяйственно-питьевой и производственный
Канализация - бытовая в существующую сеть
Отопление - централизованное
Вентиляция - приточно-вытяжная с механическим и естественным побуждением
Основные показатели проекта
Площадь застройки - 120,96 м2
Строительный объем - 447,36 м3
Расход строительных материалов:
- цемента приведенного - 24,75 т;
- стали приведенной - 4,65 т;
- железобетона и бетона - 46,21 м3;
- то же, легкого - 60,11 м3;
- лесоматериалов - 5,64 м3;
- кирпича - 10,35 тыс. шт.
1 - изолированный бокс; 2 - помещение для лечебных
процедур; 3 - помещение для сбора молока; 4 - помещение
для содержания больных животных; 5 - тамбур; 6 - коридор;
7 - узел ввода; 8 - гардероб уличной и домашней одежды;
9 - душевая; 10 - уборная; 11 - фуражная
Рисунок В.2. Изолятор на 5 мест для коров,
т.п. 807-10-119.87
Область применения: IВ, II, III климатические районы с обычными геологическими условиями. Расчетные температуры наружного воздуха -20 °C, -30 °C (основное решение), -40 °C.
Строительные конструкции и инженерное оборудование
Фундаменты - сборные железобетонные
Колонны - сборные железобетонные
Стены - 3-х слойные ж/б панели
Перегородки - кирпичные
Фермы - металлодеревянные
Кровля - асбестоцементные листы по плитам с клеефанерными ребрами
Полы - бетонные, керамзитобетонные, керамическая плитка
Водопровод - объединенный: хозяйственно-питьевой и производственный
Канализация - бытовая в существующую сеть, производственная - в систему навозоудаления
Отопление - централизованное
Вентиляция - приточно-вытяжная с естественным побуждением
Основные показатели проекта
Площадь застройки - 117,56 м2
Строительный объем - 417,34 м3
Расход строительных материалов:
- цемента приведенного - 12,9 т;
- стали приведенной - 1,33 т;
- железобетона и бетона - 37,82 м3;
- то же, легкого - 7,2 м3;
- лесоматериалов - 15,19 м3;
- кирпича - 16,26 тыс. шт.
1 - изолированный бокс; 2 - помещение для сбора молока;
3 - помещение для лечебных процедур; 4 - помещение
для содержания больных животных; 5 - тамбур;
6 - коридор; 7 - узел ввода; 8 - гардероб уличной
и домашней одежды; 9 - душевая; 10 - уборная;
11 - комната специалиста; 12 - фуражная
Рисунок В.3. Изолятор на 10 мест для коров,
т.п. 807-10-120.87
Область применения: IВ, II, III климатические районы с обычными геологическими условиями. Расчетные температуры наружного воздуха -20 °C, -30 °C (основное решение), -40 °C.
Строительные конструкции и инженерное оборудование
Фундаменты - сборные железобетонные
Колонны - сборные железобетонные
Стены - 3-х слойные ж/б панели
Перегородки - кирпичные
Фермы - металлодеревянные
Кровля - асбестоцементные листы по плитам с клеефанерными ребрами
Полы - бетонные, керамзитобетонные, керамическая плитка, линолеум
Водопровод - объединенный: хозяйственно-питьевой и производственный
Канализация - бытовая в существующую сеть, производственная - в систему навозоудаления
Отопление - централизованное
Вентиляция - приточно-вытяжная с естественным побуждением
Основные показатели проекта
Площадь застройки - 174,26 м2
Строительный объем - 618,62 м3
Расход строительных материалов:
- цемента приведенного - 24,72 т;
- стали приведенной - 2,18 т;
- железобетона и бетона - 52,57 м3;
- то же, легкого - 10,8 м3;
- лесоматериалов - 20,78 м3;
- кирпича - 17,42 тыс. шт.
1 - фуражная; 2 - помещение для содержания свиней
на 20 станков; 3 - уборная; 4 - помещение для лечебных
процедур; 5 - реагентная; 6 - электрощитовая;
7 - инвентарная; 8 - узел ввода; 9 - комната персонала;
10 - тамбур
Рисунок В.4. Изолятор для свиней на 20 станков,
т.п. 807-10-1
Область применения: I, III климатические районы с обычными геологическими условиями. Расчетные температуры наружного воздуха -20 °C, -30 °C (основное решение), -40 °C.
Строительные конструкции и инженерное оборудование
Фундаменты - сборные железобетонные
Колонны - сборные железобетонные
Стены - керамзитобетонные панели
Перегородки - кирпичные
Фермы - сборные железобетонные
Кровля - асбестоцементные листы по ж/б плитам
Полы - бетонные, асфальтобетонные, керамическая плитка, линолеум
Водопровод - объединенный: хозяйственно-питьевой и производственный
Канализация - бытовая, производственная
Отопление - централизованное
Вентиляция - приточно-вытяжная с естественным побуждением
Основные показатели проекта
Площадь застройки - 293,8 м2
Строительный объем - 1001,9 м3
Расход строительных материалов:
- цемента приведенного - 33,74 т;
- стали приведенной - 12,88 т;
- железобетона и бетона - 87,77 м3;
- то же, легкого - 76,26 м3;
- лесоматериалов - 12,14 м3;
- кирпича - 13,06 тыс. шт.
КРАТКИЕ СВЕДЕНИЯ О ТИПОВЫХ ПРОЕКТАХ ВЕТЕРИНАРНЫХ ПУНКТОВ
Г.1. Ветеринарный пункт со стационаром на 18 мест для молодняка крупного рогатого скота, т.п. 807-10-112.87;
Г.2. Ветпункт с пунктом убоя для свиноводческих ферм, т.п. 807-10-146.92;
Г.3. Ветеринарный пункт с санбойней и стационаром на 18 станков для свиноводческих ферм, т.п. 807-10-74.85;
Г.4. Ветеринарный пункт с санбойней для ферм на 12 и 24 тыс. свиней в год, т.п. 807-10-72.85;
Г.5. Ветеринарный пункт для овец и крупного рогатого скота, 807-10-88.86;
Г.6. Ветеринарный пункт коневодческой фермы со стационаром на 6 мест, т.п. 807-10-26;
Г.7. Ветпункт с изолятором для звероводческих ферм, 807-10-143.91.
1 - кладовая для биопрепаратов; 2 - комната ветврача;
3 - уборная; 4 - аптека; 5 - коридор; 6 - манеж-приемная;
7 - кладовая для дезсредств; 8 - вскрывочная; 9 - тамбур;
10 - помещения для содержания больных животных на 18 мест;
11 - фуражная; 12 - инвентарная; 13 - тамбур
Рисунок Г.1. Ветеринарный пункт со стационаром на 18 мест
для молодняка крупного рогатого скота, т.п. 807-10-112.87
Область применения: IВ, II, III климатические районы с обычными геологическими условиями. Расчетная температура наружного воздуха -30 °C.
Строительные конструкции и инженерное оборудование
Фундаменты - монолитные бетонные
Стены, перегородки - кирпичные
Кровля - асбестоцементные листы по сборным ж/б плитам
Полы - бетонные, дощатые, из керамической плитки, линолеум
Водопровод - объединенный: хозяйственно-питьевой и производственный
Канализация - бытовая и производственная в наружную сеть
Отопление - радиаторами
Вентиляция - приточно-вытяжная с естественным побуждением
Основные показатели проекта
Площадь застройки - 243 м2
Строительный объем - 915 м3
Расход строительных материалов:
- цемента приведенного - 27,94 т;
- стали приведенной - 3,84 т;
- железобетона и бетона - 100,63 м3;
- лесоматериалов - 16,19 м3;
- кирпича - 49,27 тыс. шт.
1 - помещение специалистов; 2 - кабинет диагностики;
3 - вскрывочная; 4 - аптека; 5 - кладовая биопрепаратов;
6 - электрощитовая; 7 - помещение убоя; 8 - холодильная
камера; 9 - помещение для хранения шкур; 10 - машинное
отделение; 11 - холодильная камера; 12 - кодидор;
13 - душевая; 14 - уборная; 15 - помещение для хранения
дезосредств; 16 - 19 - тамбуры; 20 - гардероб;
21 - помещение теплового ввода
Рисунок Г.2. Ветпункт с пунктом убоя
для свиноводческих ферм, т.п. 807-10-146.92
Область применения: IВ, II, III климатические районы с обычными геологическими условиями. Расчетная температура наружного воздуха -20 °C, -30 °C (основное решение), -40 °C.
Строительные конструкции и инженерное оборудование
Фундаменты - ленточные, сборные бетонные
Стены, перегородки - кирпичные
Кровля - рулонная по сборным ж/б плитам
Полы - бетонные, из керамической плитки, линолеум
Водопровод - объединенный: хозяйственно-питьевой и производственный
Канализация - хозбытовая в наружную сеть фермы; производственная через дезинфекторы в наружную сеть канализации
Отопление - водяное
Вентиляция - приточно-вытяжная с механическим и естественным побуждением
Основные показатели проекта
Площадь застройки - 199,3 м2
Строительный объем - 815,1 м3
Расход строительных материалов:
- цемента приведенного - 40,73 т;
- стали приведенной - 3,64 т;
- железобетона и бетона - 95,08 м3;
- лесоматериалов - 14,91 м3;
- кирпича - 66,73 тыс. шт.
1 - помещение для камеры временного хранения туш;
2, 12, 16, 20, 26 - тамбуры; 3 - помещение для посола шкур;
4 - вскрывочная; 5 - помещение для отходов; 6 - моечная
стерилизационная; 7 - кладовая биопрепаратов;
8 - комната по подготовке проб для исследования;
9, 14 - уборные; 10 - комната для проведения исследований;
11 - помещение для убоя животных; 13 - гардероб уличной
и домашней одежды; 15, 18 - коридоры; 17 - вскрывочная;
19 - комната специалистов; 21 - кладовая дезосредств;
22 - аптека; 23 - стационар; 24 - венткамера;
25 - инвентарная; 27 - фуражная
Рисунок Г.3. Ветеринарный пункт с санбойней и стационаром
на 18 станков для свиноводческих ферм, т.п. 807-10-74.85
Область применения: IВ, II, III климатические районы с обычными геологическими условиями. Расчетная температура наружного воздуха -20 °C, -30 °C (основное решение), -40 °C.
Строительные конструкции и инженерное оборудование
Фундаменты - сборные железобетонные
Колонны - сборные железобетонные
Стены - 2-х слойные панели из легких бетонов
Перегородки - сборные железобетонные
Кровля - рулонная по сборным ж/б плитам
Полы - керамзитобетонные, из кислотоупорной керамической плитки, из керамической плитки, линолеум
Водопровод - объединенный: хозяйственно-питьевой и производственный
Канализация - раздельная бытовая и производственная
Отопление - водяное
Вентиляция - приточно-вытяжная с механическим и естественным побуждением
Основные показатели проекта
Площадь застройки - 463,68 м2
Строительный объем - 1599,7 м3
Расход строительных материалов:
- цемента приведенного - 75,5 т;
- стали приведенной - 16,75 т;
- железобетона и бетона - 346,58 м3;
- лесоматериалов - 37,31 м3;
- кирпича - 2,32 тыс. шт.
1 - помещение для камеры временного хранения мяса;
2, 14, 16, 20, 23 - тамбуры; 3 - помещение для посола шкур;
4 - помещение для отходов; 5 - моечная-стерилизационная;
6 - комната по подготовке проб для исследований;
7 - комната для проведения исследований; 8 - помещение
убоя животных; 9, 17 - вскрывочные; 10 - кладовая
биопрепаратов; 11, 12 - уборные; 13, 19 - коридоры;
15 - гардероб; 18 - комната специалистов;
21 - кладовая дезосредств; 22 - аптека
Рисунок Г.4. Ветеринарный пункт с санбойней для ферм
на 12 и 24 тыс. свиней в год, т.п. 807-10-72.85
Область применения: IВ, II, III климатические районы с обычными геологическими условиями. Расчетная температура наружного воздуха -20 °C, -30 °C (основное решение), -40 °C.
Строительные конструкции и инженерное оборудование
Фундаменты - сборные железобетонные
Колонны - сборные железобетонные
Стены - 2-х слойные панели из легких бетонов
Перегородки - сборные железобетонные
Кровля - рулонная по сборным ж/б плитам
Полы - керамзитобетонные, из кислотоупорной керамической плитки, из керамической плитки, линолеум
Водопровод - объединенный: хозяйственно-питьевой и производственный
Канализация - раздельная бытовая и производственная
Отопление - водяное
Вентиляция - приточно-вытяжная с механическим и естественным побуждением
Основные показатели проекта
Площадь застройки - 240,64 м2
Строительный объем - 830,21 м3
Расход строительных материалов:
- цемента приведенного - 44,04 т;
- стали приведенной - 8,87 т;
- железобетона и бетона - 186,24 м3;
- лесоматериалов - 7,69 м3;
- кирпича - 0,90 тыс. шт.
1 - помещение для содержания 50 голов крупного рогатого
скота; 2 - помещение для содержания 500 овец;
3 - венткамера; 4 - манеж-приемная; 5 - вскрывочная
с диагностическим кабинетом; 6 - аптека; 7 - кладовая
для биопрепаратов; 8 - кладовая для дезосредств;
9 - комната специалистов; 10 - помещение
для обслуживающего персонала; 11 - гардероб с душевой;
12 - венткамера; 13 - фуражная-инвентарная;
14 - электрощитовая; 15 - помещение узла ввода;
16 - помещение для хранения уборочного инвентаря;
17 - санузел; 18 - коридор; 19 - тамбур
Рисунок Г.5. Ветеринарный пункт для овец
и крупного рогатого скота, т.п. 807-10-88.86
Область применения: I, II, III климатические районы с обычными геологическими условиями. Расчетная температура наружного воздуха -20 °C, -30 °C, -40 °C.
Строительные конструкции и инженерное оборудование
Фундаменты - монолитные бетонные
Стойки - деревянные
Стены, перегородки - из кирпича и самана
Кровля - волнистые асбестоцементные листы по деревянному покрытию
Полы - бетонные, деревянные, из керамической плитки, линолеум
Водопровод - объединенный: хозяйственно-питьевой и производственный
Канализация - удаление навоза вручную с вывозом тележками на конной тяге
Отопление - водяное
Вентиляция - приточная механическая с подогревом воздуха в водяных калориферах, вытяжная - естественная
Основные показатели проекта (из кирпича)
Площадь застройки - 1381 м2
Строительный объем - 4779 м3
Расход строительных материалов:
- цемента приведенного - 51,4 т;
- стали приведенной - 12,3 т;
- железобетона и бетона - 177,6 м3;
- лесоматериалов - 107 м3;
- кирпича - 124,9 тыс. шт.
1 - помещение для содержания больных животных;
2 - манеж-приемная; 3 - моечная-стерилизационная;
4 - аптека; 5 - комната специалиста; 6 - кладовая
для дезосредств; 7 - кладовая для биопрепаратов;
8 - инвентарная; 9 - фуражная; 10 - санузел;
11 - тепловой пункт; 12 - коридор; 13 - тамбур
Рисунок Г.6. Ветеринарный пункт коневодческой фермы
со стационаром на 6 мест, т.п. 807-10-26
Область применения: районы с обычными геологическими условиями. Расчетная температура наружного воздуха -20 °C, -30 °C (основное решение), -40 °C.
Строительные конструкции и инженерное оборудование
Фундаменты - сборные железобетонные
Колонны - сборные железобетонные
Стены - керамзитобетонные панели
Перегородки - кирпичные
Кровля - волнистые асбестоцементные листы по ж/б плитам
Полы - бетонные, дощатые
Водопровод - хозяйственно-питьевой
Канализация - уборка навоза вручную
Отопление - централизованное
Вентиляция - естественная
Основные показатели проекта
Площадь застройки - 246 м2
Строительный объем - 1003 м3
Расход строительных материалов:
- цемента приведенного - 34,20 т;
- стали приведенной - 6,37 т;
- железобетона и бетона - 72,86 м3;
- лесоматериалов - 22,4 м3;
- кирпича - 20,66 тыс. шт.
1 - комната ветврача; 2 - аптека; 3 - кладовая
биопрепаратов; 4 - постирочная; 5 - гардероб уличной,
домашней и спецодежды; 6 - уборная; 7 - лаборатория;
8 - венткамера; 9 - коридор; 10 - тамбур;
11 - дообработочная; 12 - шкуросъемочная, обезжировочная;
13 - сушильная камера; 14 - кладовая для шкурок;
15 - электрощитовая; 16 - фуражная; 17 - вскрывочная;
18 - кладовая дезосредств; 19 - индивидуальный тепловой
пункт; 20 - душевая
Рисунок Г.7. Ветпункт с изолятором
для звероводческих ферм, т.п. 807-10-143.91
Область применения: IВ, IIБ, IIВ, IIIБ климатические районы с обычными геологическими условиями. Расчетная температура наружного воздуха -30 °C.
Строительные конструкции и инженерное оборудование
Фундаменты - бетонные
Стены, перегородки - из кирпича
Кровля - рулонная 4-х слойная с утеплителем из ячеистого бетона
Полы - цементно-песчаные, из керамической плитки, линолеум
Водопровод - объединенный: хозяйственно-питьевой и производственный
Канализация - бытовая и производственная в наружные сети
Отопление - водяное
Вентиляция - приточно-вытяжная с механическим побуждением и естественная
Основные показатели проекта (из кирпича)
Площадь застройки - 181,45 м2
Строительный объем - 602,4 м3
Расход строительных материалов:
- цемента приведенного - 31,11 т;
- стали приведенной - 1,83 т;
- железобетона и бетона - 58,05 м3;
- лесоматериалов - 11,64 м3;
- кирпича - 32,35 тыс. шт.
КРАТКИЕ СВЕДЕНИЯ О ТИПОВОМ ПРОЕКТЕ
ВЕТЕРИНАРНО-ПРОФИЛАКТИЧЕСКОГО ПУНКТА
Д.1. Ветеринарно-профилактический пункт для крупного рогатого скота с накопителем, 807-10-117.87.
1 - накопитель для животных до обработки; 2 - накопитель
для животных после обработки; 3 - помещение обработки
животных; 4 - комната ветврача; 5 - кладовая биопрепаратов;
6 - аптека; 7 - кладовая дезосредств; 8 - вскрывочная;
9 - уборная; 10 - тепловой пункт; 11 - тамбур
Рисунок Д.1. Ветеринарно-профилактический пункт
для крупного рогатого скота с накопителем,
т.п. 807-10-117.87
Область применения: IВ, II, III климатические районы с обычными геологическими условиями. Расчетная температура наружного воздуха -20 °C, -30 °C (основное решение), -40 °C.
Строительные конструкции и инженерное оборудование
Фундаменты - сборные железобетонные
Колонны - сборные железобетонные
Стены - двухслойные керамзитобетонные панели
Перегородки - из кирпича и бетонных камней
Кровля - асбестоцементные волнистые листы по деревянной обрешетке
Полы - бетонные, из керамической плитки и линолеума
Водопровод - объединенный: хозяйственно-питьевой и производственный
Канализация - бытовая и производственная в наружные сети
Отопление - водяное
Основные показатели проекта (из кирпича)
Площадь застройки - 313,5 м2
Строительный объем - 1406,1 м3
Расход строительных материалов:
- цемента приведенного - 47,846 т;
- стали приведенной - 11,71 т;
- железобетона и бетона - 161,32 м3;
- лесоматериалов - 9,1 м3;
- кирпича - 3,24 тыс. шт.
КРАТКАЯ ХАРАКТЕРИСТИКА УНИВЕРСАЛЬНОГО ПУНКТА ОБРАБОТКИ
КРУПНОГО РОГАТОГО СКОТА
Е.1. Универсальный пункт обработки крупного рогатого скота для условий Сибири и южного Урала, т.п. 807-19-21.13.91.
СХЕМА ГЕНПЛАНА
1 - загон для гурта, пребывающего на обработку;
2 - загон для обработанных животных; 3 - раскол;
4 - улитка; 5 - накопитель; 6 - фиксатор; 7 - весовая;
8 - погрузочная эстакада; 9 - денники; 10 - емкость
для воды на 1 м3; 11 - купочная ванна; 12 - загон для телят
Рисунок Е.1. Универсальный пункт обработки крупного
рогатого скота для условий Сибири и южного Урала,
807-19-21.13.91
Область применения: районы Сибири и южного Урала с обычными геологическими условиями.
Основные технико-экономические показатели
N п.п. | Наименование | Площадь застрой- ки, м2 | Строи- тельный объем, м3 | Материалы |
Цемент, т | Сталь, т | Лесомате- риалы, м3 |
1 | Загон для гурта, прибывающего на обработку | - | - | 4,36 | 0,284 | 6,279 |
2 | Загон для обработанных животных | - | - | - | - | - |
3 | Раскол | 70,3 | 126,5 | - | - | - |
4 | Улитка | 60,8 | 109,4 | 12,1 | 0,787 | 17,41 |
5 | Накопитель | 22,0 | 39,6 | - | - | - |
6 | Фиксатор | 4,2 | 9,03 | 1,36 | 0,088 | 1,957 |
7 | Весовая | 13,7 | 34,9 | 2,86 | 0,186 | 4,118 |
8 | Погрузочная эстакада | 10,0 | - | 1,19 | 0,077 | 1,712 |
9 | Денники | 15 | 33 | 2,5 | 0,162 | 3,588 |
10 | Емкость для воды на 1 м3 | - | 2,2 | 0,2 | 0,013 | 0,285 |
11 | Купочная ванна | 107,1 | - | 6,33 | 0,413 | 9,133 |
12 | Загон для телят | 120 | 327 | 6,9 | 0,45 | 9,948 |
КРАТКИЕ СВЕДЕНИЯ О ТИПОВЫХ ПРОЕКТАХ ВЕТЕРИНАРНЫХ ЛАБОРАТОРИЙ
Ж.1. Ветеринарная лаборатория для птицефабрик (полносборное здание), т.п. 807-10-68.84;
Ж.2. Ветеринарная лаборатория с санитарной бойней для комплексов на 54 и 108 тыс. свиней в год, т.п. 807-10-73.85;
Ж.3. Диагностические и лечебно-профилактические ветеринарные учреждения, т.п. 807-010-3 - районная ветеринарная станция с лабораторией;
Ж.4. Диагностические и лечебно-профилактические ветеринарные учреждения, т.п. 807-010-3 - районная ветеринарная лаборатория;
Ж.5. Лабораторный корпус районной ветеринарной лаборатории, т.п. 807-10-127.88;
Ж.6. Областные ветеринарные лаборатории со штатом 40, 60 и 100 человек, т.п. 807-010-78.85;
Ж.7. Лабораторный корпус с виварием (для ветлаборатории со штатом 40 человек), т.п. 807-10-79.85;
Ж.8. Лабораторный корпус с виварием (для ветлаборатории со штатом 60 человек), т.п. 807-10-80.85;
Ж.9. Ветеринарная лаборатория со штатом 100 человек, лабораторный корпус с виварием, т.п. 807-10-77.85;
Ж.10. Ветеринарная лаборатория со штатом 100 человек, вспомогательный корпус, т.п. 807-19-12.85.
1 - аптека; 2 - моечная; 3 - стерилизационная;
4 - помещение питательных сред; 5 - кабинет заведующей
лабораторией; 6 - помещение для отгонки протеина;
7 - инвентарная; 8 - венткамера; 9 - тамбур;
10 - коридор; 11 - подготовительное помещение; 12 - бокс;
13 - помещение бактериологических исследований;
14 - помещение серологических исследований;
15 - женская уборная; 16 - комната персонала;
17 - мужская уборная; 18 - гардероб; 19 - вестибюль;
20 - тамбур; 21 - аналитическая лаборатория
Рисунок Ж.1. Ветеринарная лаборатория для птицефабрик
(полносборное здание), т.п. 807-10-68.84
Область применения: I, III климатические районы с обычными геологическими условиями. Расчетная температура наружного воздуха -20 °C, -30 °C (основное решение), -40 °C.
Строительные конструкции и инженерное оборудование
Фундаменты - сборные железобетонные (под колонны), ленточные из бетонных блоков
Колонны - сборные железобетонные
Стены - из керамзитобетонных панелей
Перегородки - сборные железобетонные
Покрытие - сборные железобетонные плиты с утеплителем из пенобетона
Кровля - рулонная на битумной мастике
Полы - цементно-песчаные, из керамической плитки, линолеум
Водопровод - объединенный: хозяйственно-питьевой и производственный
Канализация - бытовая и производственная в наружную сеть
Отопление - водяное от котельной
Вентиляция - приточно-вытяжная с механическим и естественным побуждением
Основные показатели проекта
Площадь застройки - 312,48 м2
Строительный объем - 1056,18 м3
Расход строительных материалов:
- цемента приведенного - 62,07 т;
- стали приведенной - 11,33 т;
- железобетона и бетона - 245,02 м3;
- лесоматериалов - 14,24 м3.
1 - отделение для камеры временного хранения туш;
2 - тамбур; 3 - помещение для посола шкур; 4 - вскрывочная
желудочно-кишечного тракта; 5, 6 - вскрывочная;
7 - венткамера; 8 - химико-токсикологическое отделение;
9 - комната по подготовке проб для исследований;
10 - бактериологическое отделение; 11 - предбоксник;
12, 13 - бокс; 14, 20 - уборная; 15 - инвентарная;
16 - моечная-стерилизационная; 17 - помещение для убоя
животных; 18, 22, 26, 31 - тамбур; 19 - гардероб уличной
и домашней одежды; 21, 25 - коридор; 23 - вскрывочная;
24 - комната специалистов; 27 - кладовая дезосредств;
28 - кладовая биопрепаратов; 29 - аптека;
30 - комната для подопытных животных
Рисунок Ж.2. Ветеринарная лаборатория с санитарной бойней
для комплексов на 54 и 108 тыс. свиней в год,
т.п. 807-10-73.85
Область применения: IВ, II, III климатические районы с обычными геологическими условиями. Расчетная температура наружного воздуха -20 °C, -30 °C (основное решение), -40 °C.
Строительные конструкции и инженерное оборудование
Фундаменты - сборные железобетонные ленточные из бетонных блоков
Колонны - сборные железобетонные
Стены - из двухслойных панелей из легких бетонов
Перегородки - сборные железобетонные
Покрытие - сборные железобетонные плиты
Кровля - рулонная на битумной мастике
Полы - цементные, из керамической плитки, линолеума
Водопровод - объединенный: хозяйственно-питьевой и производственный
Канализация - раздельная: бытовая и производственная
Отопление - водяное от котельной
Вентиляция - приточно-вытяжная с механическим и естественным побуждением
Основные показатели проекта
Площадь застройки - 312,5 м2
Строительный объем - 1080,00 м3
Расход строительных материалов:
- цемента приведенного - 51,61 т;
- стали приведенной - 10,83 т;
- железобетона и бетона - 238,98 м3;
- лесоматериалов - 39,85 м3;
- кирпича - 2,46 тыс. шт.
1 - главный корпус; 2 - вспомогательный корпус;
3 - эстакада и площадка для мойки автомобилей
и сельхозмашин; 4 - насосная; 5 - отстойник-уловитель
нефтепродуктов; 6 - водозаборная камера; 7 - резервуар
для сбора масла; 8 - бадья для осадка; 9, 18 - ограда;
10 - площадка отдыха; 11 - стационар на 10 мест для коров;
12 - изолятор на 5 мест для коров; 13 - дезплощадка
с обогревом; 14 - навес на 10 рабочих лошадей;
15 - эстакада для погрузки животных;
16, 17 - площадка для складирования навоза;
19 - площадка для мусороконтейнеров
Рисунок Ж.3. Диагностические и лечебно-профилактические
ветеринарные учреждения, районная ветеринарная станция
с лабораторией, т.п. 807-010-3
Область применения: I, III климатические районы с обычными геологическими условиями. Расчетная температура наружного воздуха -20 °C, -30 °C (основное решение), -40 °C.
Описание проекта
Районная ветеринарная станция с лабораторией предназначена для всестороннего ветеринарного обслуживания животных.
Здания районной ветеринарной станции с лабораторией запроектированы в сборных железобетонных конструкциях.
Основные показатели проекта
Площадь общая в ограде - 3,67 га
Плотность застройки - 40,82%
Расход:
- воды - 21,8 м3/сутки;
- тепла - 463020 ккал/ч;
- потребная мощность электроэнергии - 91,00 кВт.
1 - лабораторный корпус; 2 - вспомогательный корпус;
3 - эстакада и площадка для мойки автомобилей
и сельхозмашин; 4 - насосная; 5 - отстойник-уловитель
нефтепродуктов; 6 - водозаборная камера; 7 - резервуар
для сбора масла; 8 - бадья для осадка; 9, 18 - ограда;
10 - площадка отдыха; 11 - площадка для мусороконтейнеров
Рисунок Ж.4. Диагностические и лечебно-профилактические
ветеринарные учреждения, районная ветеринарная
лаборатория, т.п. 807-010-3
Область применения: I, III климатические районы с обычными геологическими условиями. Расчетная температура наружного воздуха -20 °C, -30 °C (основное решение), -40 °C.
Описание проекта
Здания районной ветеринарной станции с лабораторией запроектированы в сборных железобетонных конструкциях.
Основные показатели проекта
Площадь общая в ограде - 2,84 га
Плотность застройки - 35,60%
Расход:
- воды - 15,57 м3/сутки;
- тепла - 346600 ккал/ч;
- потребная мощность электроэнергии - 87,00 кВт.
План на отм. 0,000
3 - помещение подопытных животных микотоксикологического
отдела; 7 - помещение для содержания баранов;
8 - помещение для содержания кроликов; 10 - инвентарная;
11 - помещение для содержания белых мышей; 12 - помещение
для содержания кур; 13, 37, 51 - бокс; 14, 38,
50 - предбоксник; 16 - помещение для содержания морских
свинок; 17, 31 - помещение для содержания подопытных
животных; 18 - вскрывочная; 21 - автоклавная (чистая);
22 - автоклавная (грязная); 25 - приемная материала;
26 - комната обработки материала; 35 - тамбур-шлюз;
36 - лаборантская; 39 - микроскопная; 48 - средоварочная;
49 - рабочий кабинет; 52 - кабинет бактериологических
исследований; 53 - кабинет исследования кожсырья;
54 - кабинет серологических исследований; 56 - кабинет
для проведения реакции микроагглютинаций и лизиса;
58 - инвентарная; 59 - кладовая; 60 - кабинет химико-
токсикологических исследований; 61, 68 - приборная;
66 - кабинет копрологических исследований;
67 - кабинет радиометрических исследований;
69 - кабинет микотоксикологических исследований
Рисунок Ж.5. Лабораторный корпус районной ветеринарной
лаборатории, т.п. 807-10-127.88
Область применения: IВ, II, III климатические районы с обычными геологическими условиями. Расчетная температура наружного воздуха -20 °C, -30 °C (основное решение), -40 °C.
Строительные конструкции и инженерное оборудование
Фундаменты - сборные железобетонные плиты и блоки
Стены - сборные железобетонные панели
Перегородки - сборные железобетонные панели
Перекрытия - сборные железобетонные плиты
Покрытие - сборные железобетонные плиты
Кровля - рулонная на битумной мастике
Полы - цементно-песчаные, из керамической плитки, линолеума
Водопровод - объединенный: хозяйственно-питьевой и производственный
Канализация - раздельная: бытовая и производственная
Отопление - водяное от котельной
Вентиляция - приточно-вытяжная с механическим и естественным побуждением
Основные показатели проекта
Площадь застройки - 540,5 м2
Строительный объем - 2843,9 м3
Расход строительных материалов:
- цемента приведенного - 162,61 т;
- стали приведенной - 17,83 т;
- железобетона и бетона - 557,35 м3;
- лесоматериалов - 27,51 м3;
- кирпича - 25,99 тыс. шт.
1 - лабораторный корпус с виварием; 2 - вспомогательный
корпус; 3 - очистные сооружения для сточных вод;
4 - площадка для сбора мусора; 5 - трансформаторная
подстанция мощностью 250 кВА; 6 - ограждение
Рисунок Ж.6. Областные ветеринарные лаборатории
со штатом 40, 60 и 100 человек, т.п. 807-010-78.85
Область применения: IB, II, III климатические районы с обычными геологическими условиями. Расчетная температура наружного воздуха -20 °C, -30 °C (основное решение), -40 °C.
Показатели генплана
Наименование | Ветеринарные лаборатории со штатом: |
40 чел. | 60 чел. | 100 чел. |
Площадь участка, га | 0,26 | 0,26 | 0,41 |
Плотность застройки, % | 40,80 | 40,80 | 35,00 |
Потребность в сырье и ресурсах
Наименование | Ветеринарные лаборатории со штатом: |
40 чел. | 60 чел. | 100 чел. |
Тепло ккал/ч | 537470 | 645750 | 775379 |
кВт | 623,74 | 749,34 | 901,60 |
Вода: | | | |
- водопровод хозяйственно- питьевой, противопожарный и производственный | | | |
м3/сут | 17,76 | 18,68 | 29,63 |
м3/ч | 6,12 | 6,40 | 10,10 |
л/с | 7,87 | 7,10 | 14,56 |
- горячее водоснабжение | | | |
м3/сут | 5,99 | 6,63 | 11,55 |
м3/ч | 2,92 | 3,44 | 5,39 |
л/с | 4,68 | 4,28 | 9,19 |
Установленная мощность токоприемников, кВт | 349,10 | 341,00 | 514,40 |
5, 38 - мойка и дезинфекция клеток;
6 - помещение для отходов; 8 - помещение для животных;
9 - карантин; 10 - кормокухня; 11 - помещение передачи
патматериалов; 12, 29, 41, 66, 72, 79 - бокс;
13, 28, 42, 66, 71 - предбоксник; 14 - помещение
для отходов; 15 - вскрывочная; 16 - прием патматериала;
24 - моечная; 30, 43, 48, 59, 69, 70 - рабочая комната;
34 - кабинет директора; 36 - помещение для эпизоотологов;
37, 46, 75 - автоклавная; 39 - помещение заражения животных;
47, 51 - комната люминесцентной микроскопии;
49 - помещение первичной обработки проб;
50 - препараторская; 52 - бокс и предбоксник;
60, 74 - моечная; 61 - радиометрическая;
62 - радиохимическая; 63 - кабинет асколи;
64 - комната серологических исследований;
68 - биохимический отдел; 76 - средоварочная;
78 - хранение сред; 80 - обработка данных
Рисунок Ж.7. Лабораторный корпус с виварием
(для ветлаборатории со штатом 40 человек),
т.п. 807-10-79.85
Область применения: IВ, II, III климатические районы с обычными геологическими условиями. Расчетная температура наружного воздуха -20 °C, -30 °C (основное решение), -40 °C.
Строительные конструкции и инженерное оборудование
Фундаменты - сборные железобетонные и бетонные блоки
Колонны - сборные железобетонные
Стены - сборные железобетонные панели
Перегородки - сборные железобетонные панели
Перекрытия - сборные железобетонные плиты
Покрытие - сборные железобетонные плиты
Кровля - рулонная на битумной мастике
Полы - цементные, из керамической плитки, линолеума
Водопровод - объединенный: хозяйственно-питьевой и производственный
Канализация - раздельная: бытовая и производственная
Отопление - водяное центральное
Вентиляция - приточно-вытяжная с механическим и естественным побуждением
Основные показатели проекта
Площадь застройки - 672,6 м2
Строительный объем - 7147,32 м3
Расход строительных материалов:
- цемента приведенного - 364,68 т;
- стали приведенной - 86,01 т;
- железобетона и бетона - 1216,93 м3;
- лесоматериалов - 89,81 м3;
- кирпича - 56,05 тыс. шт.
5, 34 - мойка и дезинфекция клеток; 6 - помещение
для отходов; 8 - помещение для животных; 9 - карантин;
10 - кормокухня; 11 - помещение передачи патматериалов;
12, 42, 51, 60, 75 - бокс; 13, 43, 61 - предбоксник;
14 - помещение для отходов; 15 - вскрывочная; 16 - прием
патматериала; 25 - аквариальная; 26 - рабочая комната;
30 - кабинет директора; 30 - кабинет директора;
33, 73 - автоклавная; 35 - помещение для заражения
животных; 37 - комната ветврачей; 38, 55, 65, 66,
77 - рабочая комната; 44 - комната люминесцентной
микроскопии; 46 - комната ветврачей; 56 - серологическая;
57 - помещение для эпизоотологов; 58 - кабинет асколи;
59 - кабинет серологических исследований;
64 - препараторская; 71 - сушильно-стерилизационная;
72 - средоварочная; 74 - хранение сред; 76 - помещение
обработки данных исследований; 81 - биохимическая;
85 - радиохимическая; 86 - радиометрическая;
87 - помещение первичной обработки проб
Рисунок Ж.8. Лабораторный корпус с виварием
(для ветлаборатории со штатом 60 человек),
т.п. 807-10-80.85
Область применения: IВ, II, III климатические районы с обычными геологическими условиями. Расчетная температура наружного воздуха -20 °C, -30 °C (основное решение), -40 °C.
Строительные конструкции и инженерное оборудование
Фундаменты - сборные железобетонные и бетонные блоки
Колонны - сборные железобетонные
Стены - сборные керамзитобетонные панели
Перегородки - сборные гипсобетонные панели
Перекрытия - сборные железобетонные плиты
Покрытие - сборные железобетонные плиты
Кровля - рулонная на битумной мастике
Полы - цементные, из керамической плитки, линолеума, мозаичные
Водопровод - объединенный: хозяйственно-питьевой и производственный
Канализация - раздельная: бытовая и производственная
Отопление - водяное центральное
Вентиляция - приточно-вытяжная с механическим и естественным побуждением
Основные показатели проекта
Площадь застройки - 672,6 м2
Строительный объем - 8768,65 м3
Расход строительных материалов:
- цемента приведенного - 384,32 т;
- стали приведенной - 110,16 т;
- железобетона и бетона - 1422,80 м3;
- лесоматериалов - 119,50 м3.
101, 111, 202, 205, 239, 242, 303, 312, 317, 407,
410 - бокс; 110, 102, 203, 204, 238, 241, 302, 311, 318,
408, 409 - предбоксник; 103, 107, 240, 237, 304, 309, 310,
402, 414 - рабочая комната; 106 - помещение хранения
образцов; 108 - помещение отходов; 109 - вскрывочная;
119 - помещение передачи патологического материала;
120 - помещение приема патологического материала;
121 - инвентарная; 122 - реагентная; 133 - постирочная;
135 - моечная; 139 - аквариальная отдела болезней рыб;
148 - помещение содержания животных микотоксикологического
отдела; 156 - помещение содержания птиц; 157 - помещение
содержания белых мышей; 159 - помещение содержания морских
свинок и кроликов; 160 - помещение содержания баранов;
161 - 163 - карантин; 201 - комната ветврачей;
209, 234 - комната люминесцентной микроскопии;
210 - термостатная; 220 и 221 - грязная и чистая
автоклавные; 233 - комната ветврачей
Рисунок Ж.9. Ветеринарная лаборатория
со штатом 100 человек, лабораторный корпус с виварием,
т.п. 807-10-77.85
Область применения: IВ, II, III климатические районы с обычными геологическими условиями. Расчетная температура наружного воздуха -20 °C, -30 °C (основное решение), -40 °C.
Строительные конструкции и инженерное оборудование
Фундаменты - сборные железобетонные и бетонные блоки
Колонны - сборные железобетонные
Стены - сборные керамзитобетонные панели
Перегородки - сборные гипсобетонные панели
Перекрытия - сборные железобетонные плиты
Покрытие - сборные железобетонные плиты
Кровля - рулонная на битумной мастике
Полы - цементные, из керамической плитки, линолеума, мозаичные
Водопровод - объединенный: хозяйственно-питьевой и производственный
Канализация - раздельная: бытовая и производственная
Отопление - водяное центральное
Вентиляция - приточно-вытяжная с механическим и естественным побуждением
Основные показатели проекта
Площадь застройки - 1023,0 м2
Строительный объем - 13600,00 м3
Расход строительных материалов:
- цемента приведенного - 553,00 т;
- стали приведенной - 147,65 т;
- железобетона и бетона - 1952,22 м3;
- лесоматериалов - 140,92 м3.
1 - стоянка автомашин; 2 - профилакторий;
3 - хозяйственный склад; 4 - склад дезинфицирующих средств;
5 - помещение розлива; 6 - склад хранения щелочей;
7 - склад хранения ЛВЖ; 8 - склад хранения кислот;
9, 10 - венткамера; 11 - мастерская; 12 - склад запчастей;
13 - уборная; 14 - душевая; 15 - мужской гардероб
уличной, домашней и специальной одежды; 16 - коридор;
17 - тамбур
Рисунок Ж.10. Ветеринарная лаборатория
со штатом 100 человек, вспомогательный корпус,
т.п. 807-19-12.85
Область применения: IВ, II, III климатические районы с обычными геологическими условиями. Расчетная температура наружного воздуха -20 °C, -30 °C (основное решение), -40 °C.
Строительные конструкции и инженерное оборудование
Фундаменты - сборные железобетонные
Колонны - сборные железобетонные
Стены - сборные керамзитобетонные панели
Перегородки - сборные гипсобетонные панели
Покрытие - сборные железобетонные плиты
Кровля - рулонная на битумной мастике
Полы - бетонные, цементно-песчаные, из керамической плитки
Водопровод - объединенный: хозяйственно-питьевой и производственный
Канализация - раздельная: бытовая и производственная
Отопление - водяное центральное
Вентиляция - приточно-вытяжная с механическим и естественным побуждением
Основные показатели проекта
Площадь застройки - 394,24 м2
Строительный объем - 1714,94 м3
Расход строительных материалов:
- цемента приведенного - 70,51 т;
- стали приведенной - 22,35 т;
- железобетона и бетона - 251,20 м3;
- лесоматериалов - 48,85 м3;
- кирпича - 18,91 тыс. шт.
КРАТКИЕ СВЕДЕНИЯ О ТИПОВЫХ ПРОЕКТАХ
УБОЙНО-САНИТАРНЫХ ПУНКТОВ И УБОЙНЫХ ПЛОЩАДОК
И.1. Убойно-санитарный пункт для колхозов и совхозов, т.п. 807-13-8.85;
И.2. Убойная площадка для животноводческих и птицеводческих ферм, т.п. 807-13-6.84.
1 - помещение для убоя животных и птицы;
2 - утилизационная; 3 - вскрывочная; 4 - помещение
для посола и временного хранения шкур; 5 - камера
временного хранения туш; 6 - место для компрессорно-
конденсаторного агрегата; 7 - раствороприготовительная;
8 - остывочная и экспедиция; 9 - площадка для вентилятора;
10 - гардероб; 11 - душевая; 12 - уборная; 13 - коридор;
14 - тамбур
Рисунок И.1. Убойно-санитарный пункт для колхозов
и совхозов, т.п. 807-13-8.85
Область применения: IIБ, IIВ, IIIБ, IIIВ климатические районы с обычными геологическими условиями. Расчетная температура наружного воздуха -20 °C, -30 °C (основное решение), -40 °C.
Строительные конструкции и инженерное оборудование
Фундаменты - сборные железобетонные, ленточные бутобетонные
Колонны - сборные железобетонные
Стены - сборные керамзитобетонные панели
Перегородки - кирпичные
Покрытие - сборные железобетонные плиты
Кровля - рулонная на битумной мастике
Полы - цементные, из керамической плитки, линолеума
Водопровод - хозяйственно-питьевой от существующей сети
Канализация - производственно-бытовая с использованием дезинфектора
Отопление - водяное от существующих сетей
Вентиляция - приточно-вытяжная с механическим и естественным побуждением
Основные показатели проекта
Площадь застройки - 163,84 м2
Строительный объем - 963,40 м3
Расход строительных материалов:
- цемента приведенного - 35,96 т;
- стали приведенной - 7,15 т;
- железобетона и бетона - 151,65 м3;
- лесоматериалов - 18,99 м3;
- кирпича - 22,66 тыс. шт.
1 - гардероб уличной, домашней и специальной одежды;
2 - уборная; 3 - душевая; 4 - инвентарная;
5 - помещение холодильной камеры; 6, 7, 10 - тамбур;
8 - помещение посола шкур;
9 - помещение убоя животных и птицы
Рисунок И.2. Убойная площадка для животноводческих
и птицеводческих ферм, т.п. 807-13-6.84
Область применения: IА, IВ, IД, IIВ, III климатические районы с обычными геологическими условиями. Расчетная температура наружного воздуха -20 °C, -30 °C (основное решение), -40 °C.
Строительные конструкции и инженерное оборудование
Фундаменты - ленточные бутобетонные
Стены - кирпичные
Перегородки - кирпичные
Покрытие - сборные железобетонные плиты
Кровля - рулонная на битумной мастике
Полы - цементно-песчаные, из керамической плитки
Водопровод - объединенный: хозяйственно-питьевой и производственный
Канализация - раздельная: бытовая и производственная
Отопление - водяное от внешних сетей
Вентиляция - естественная
Основные показатели проекта
Площадь застройки - 127,86 м2
Строительный объем - 588,13 м3
Расход строительных материалов:
- цемента приведенного - 20,29 т;
- стали приведенной - 3,14 т;
- железобетона и бетона - 58,62 м3;
- лесоматериалов - 3,71 м3;
- кирпича - 54,60 тыс. шт.
КРАТКИЕ СВЕДЕНИЯ О ТИПОВЫХ ПРОЕКТАХ ЗДАНИЙ КАРАНТИНА
К.1. Здание карантина на 250 телят, т.п. 807-10-90.86;
К.2. Здание карантина на 400 телят, т.п. 807-10-124.12.87;
К.3. Карантин, т.п. 807-20-10;
К.4. Карантин для свиней на 60 мест, т.п. 807-10-145.92;
К.5. Здание карантина на 90 мест, т.п. 802-9-67.12.87.
1 - помещение для хранения инструментов и медикаментов;
2 - помещение для персонала; 3 - венткамера;
4 - электрощитовая; 5, 7, 13, 21 - тамбур; 6 - помещение
приема и обработки телят; 8, 11, 14, 16 - коридор;
9 - кладовая для дезосредств; 10 - фуражная; 12 - молочная;
15 - секции для содержания телят; 17 - моечная;
18 - помещение привода; 19 - инвентарная; 20 - вестибюль;
22 - мужской гардероб уличной и домашней одежды;
23 - мужская душевая; 24 - мужской гардероб специальной
одежды; 25 - уборная; 26 - женский гардероб уличной
и домашней одежды; 27 - женская душевая;
28 - женский гардероб специальной одежды
Рисунок К.1. Здание карантина на 250 телят,
т.п. 807-10-90.86
Область применения: I, II, IIIА, IIIВ климатические районы с обычными геологическими условиями. Расчетная температура наружного воздуха -20 °C, -30 °C (основное решение), -40 °C.
Строительные конструкции и инженерное оборудование
Фундаменты, фундаментные балки - сборные железобетонные
Блоки стен подвалов - сборные бетонные
Полурамы - сборные железобетонные
Колонны - сборные железобетонные
Стены - из керамзитобетонных панелей
Перегородки - сборные железобетонные
Покрытие - сборные железобетонные плиты
Кровля - асбестоцементные волнистые листы УВ-7,5
Полы - бетонные, дощатые, из керамической плитки, линолеума
Водопровод - объединенный: хозяйственно-питьевой и производственный
Канализация - бытовая и производственная в наружную сеть
Отопление - воздушное, совмещенное с вентиляцией; радиаторы
Вентиляция - приточно-вытяжная с механическим и естественным побуждением
Основные показатели проекта
Площадь застройки - 958 м2
Строительный объем - 4275 м3
Расход строительных материалов:
- цемента приведенного - 190,87 т;
- стали приведенной - 39,05 т;
- железобетона и бетона - 599,31 м3;
- лесоматериалов - 77,14 м3.
1 - секции для содержания телят; 2 - помещение
для приготовления ЗЦМ; 3 - помещение для концкормов;
4 - моечные; 5 - электрощитовая; 6 - венткамера;
7 - помещение узла управления; 8 - помещение для инвентаря;
9 - тамбуры; 10 - коридор
Рисунок К.2. Здание карантина на 400 телят,
т.п. 807-10-124.12.87
Область применения: IВ, II, III климатические районы с обычными геологическими условиями. Расчетная температура наружного воздуха -20 °C, -30 °C (основное решение), -40 °C.
Строительные конструкции и инженерное оборудование
Фундаменты, фундаментные балки - сборные железобетонные
Рамы - сборные железобетонные
Колонны - сборные железобетонные
Стены - из керамзитобетонных панелей
Перегородки - кирпичные
Покрытие - сборные железобетонные плиты
Кровля - асбестоцементные волнистые листы УВ-7,5
Полы - бетонные, дощатые, из керамической плитки, линолеума
Водопровод - объединенный: хозяйственно-питьевой и производственный
Канализация - бытовая и производственная в наружную сеть
Отопление - водяное
Вентиляция - приточно-вытяжная с механическим и естественным побуждением
Основные показатели проекта
Площадь застройки - 1143 м2
Строительный объем - 5344 м3
Расход строительных материалов:
- цемента приведенного - 234,91 т;
- стали приведенной - 31,37 т;
- железобетона и бетона - 725,42 м3;
- лесоматериалов - 71,60 м3;
- кирпича - 55,08 тыс. шт.
1 - лаборатория; 2 - фиксация и мойка быков;
3, 9, 11 - тамбур; 4 - венткамера; 5 - помещение
для содержания 17 быков; 6 - гардероб для хранения уличной,
домашней и специальной одежды; 7 - уборная;
8 - инвентарная; 11 - фуражная
Рисунок К.3. Карантин, т.п. 807-20-10
Область применения: I, III климатические районы с обычными геологическими условиями. Расчетная температура наружного воздуха -20 °C, -30 °C (основное решение), -40 °C.
Строительные конструкции и инженерное оборудование
Фундаменты, фундаментные балки - сборные железобетонные
Фермы - сборные железобетонные
Колонны - сборные железобетонные
Стены - панели из легкого бетона
Перегородки - кирпичные
Покрытие - сборные железобетонные плиты
Кровля - асбестоцементные волнистые листы УВ-7,5
Полы - бетонные, из керамической плитки, резинобитумные
Водопровод - объединенный: хозяйственно-питьевой и производственный
Канализация - бытовая и производственная в наружную сеть
Отопление - воздушное, совмещенное с вентиляцией и водяное
Вентиляция - приточно-вытяжная с механическим и естественным побуждением
Основные показатели проекта
Площадь застройки - 394,2 м2
Строительный объем - 1734,50 м3
Расход строительных материалов:
- цемента приведенного - 70,03 т;
- стали приведенной - 14,03 т;
- железобетона и бетона - 134,92 м3;
- лесоматериалов - 49,14 м3;
- кирпича - 16,52 тыс. шт.
1, 10, 12 - тамбур; 2 - гардероб; 3 - душевая; 4 - уборная;
5 - помещение персонала; 6 - помещение для кормов;
7 - помещение для содержания животных; 8 - электрощитовая;
9 - помещение теплового ввода;
11 - помещение для приема животных
Рисунок К.4. Карантин для свиней на 60 мест,
т.п. 807-10-145.92
Область применения: IВ, II, III климатические районы с обычными геологическими условиями. Расчетная температура наружного воздуха -20 °C, -30 °C (основное решение), -40 °C.
Строительные конструкции и инженерное оборудование
Фундаменты - ленточные, сборные железобетонные
Стены - кирпичные
Перегородки - кирпичные
Покрытие - сборные железобетонные плиты
Кровля - рулонная
Полы - бетонные, из керамической плитки, линолеума
Водопровод - объединенный: хозяйственно-питьевой и производственный
Канализация - бытовая и производственная в наружную сеть
Отопление - воздушное, совмещенное с вентиляцией и водяное
Вентиляция - приточно-вытяжная с механическим и естественным побуждением
Основные показатели проекта
Площадь застройки - 163,4 м2
Строительный объем - 472,2 м3
Расход строительных материалов:
- цемента приведенного - 33,65 т;
- стали приведенной - 4,85 т;
- железобетона и бетона - 81,26 м3;
- лесоматериалов - 8,13 м3;
- кирпича - 41,47 тыс. шт.
1 - помещение для содержания ремонтного молодняка;
2 - помещение для дезосредств и инвентаря; 3 - коридор;
4 - весовая; 5 - помещение санитарной обработки животных;
6 - помещение сушки животных; 7 - венткамера;
8 - накопитель; 9 - гардероб для спец. одежды;
10 - уборная; 11 - душевая; 12 - гардероб для домашней
и уличной одежды; 13 - комната персонала; 14, 15 - тамбур
Рисунок К.5. Здание карантина на 90 мест,
т.п. 802-9-67.12.87
Область применения: IВ, II, III климатические районы с обычными геологическими условиями. Расчетная температура наружного воздуха -20 °C, -30 °C (основное решение), -40 °C.
Строительные конструкции и инженерное оборудование
Фундаменты, фундаментные балки - сборные железобетонные
Рамы - сборные железобетонные
Колонны - сборные железобетонные
Стены - керамзитобетонные панели
Перегородки - кирпичные
Покрытие - сборные железобетонные плиты
Кровля - асбестоцементные волнистые листы УВ-7,5
Полы - бетонные, из керамической плитки, резинобитумные
Водопровод - объединенный: хозяйственно-питьевой и производственный
Канализация - бытовая и производственная на очистные сооружения комплекса
Отопление - воздушное, совмещенное с вентиляцией и водяное
Вентиляция - приточно-вытяжная с механическим и естественным побуждением
Основные показатели проекта
Площадь застройки - 353 м2
Строительный объем - 1653 м3
Расход строительных материалов:
- цемента приведенного - 76 т;
- стали приведенной - 16,52 т;
- железобетона и бетона - 263,60 м3;
- лесоматериалов - 18,40 м3.
КРАТКИЕ СВЕДЕНИЯ О ТИПОВЫХ ПРОЕКТАХ СООРУЖЕНИЙ
ПО ОБРАБОТКЕ ЖИВОТНЫХ И СООРУЖЕНИЙ ДЕЗБАРЬЕРОВ
Л.1. Ванна для крупного рогатого скота;
Л.3. Площадка для обработки кожного покрова крупного рогатого скота и лошадей для ферм на 1200 голов, т.п. 801-9-6;
Л.4. Площадка для обработки кожного покрова крупного рогатого скота для ферм более 1200 голов, т.п. 801-9-5;
Л.5. Площадка для обработки кожного покрова свиней до 1000 голов, т.п. 802-9-13;
Л.6. Дезбарьер для животноводческих комплексов и ферм, т.п. 807-11-4;
Л.7. Отапливаемый дезбарьер, т.п. 807-11-13.85;
Л.8. Отапливаемый дезбарьер с электроподогревом, т.п. 807-11-14.85.
1 - коридор; 2 - ванна; 3 - выход; 4 - выходная площадка;
5 - загон; 6 - раскол; 7 - сборный колодец;
8 - навес для баков; 9 - помещение для приборов и реактивов
Рисунок Л.1. Ванна для крупного рогатого скота
Рисунок Л.2. Ванна для овец
Рисунок Л.3. Площадка для обработки кожного покрова
крупного рогатого скота и лошадей для ферм
до 1200 голов, т.п. 801-9-6
Область применения: I, III климатические районы с обычными геологическими условиями. Расчетная температура наружного воздуха -20 °C, -30 °C (основное решение), -40 °C.
Строительные конструкции и инженерное оборудование
Фундаменты - монолитные бетонные
Стойки - сборные железобетонные панели
Покрытие - асфальтобетонное
Водопровод - производственный
Канализация - производственная в жижесборник
Основные показатели:
Площадь покрытия - 1110 м2
Расход материалов:
- цемента приведенного - 10,21 т;
- стали приведенной - 6,06 т;
- железобетона и бетона - 29,49 м3;
- лесоматериалов - 0,56 м3;
- кирпича - 0,62 тыс. шт.
Рисунок Л.4. Площадка для обработки кожного покрова
крупного рогатого скота для ферм более 1200 голов,
т.п. 801-9-5
Область применения: I, III климатические районы с обычными геологическими условиями. Расчетная температура наружного воздуха -20 °C, -30 °C (основное решение), -40 °C.
Строительные конструкции и инженерное оборудование
Фундаменты - монолитные бетонные
Стойки - сборные железобетонные
Ограждение - сборные железобетонные панели
Покрытие - асфальтобетонное
Водопровод - производственный
Канализация - производственная в жижесборник
Основные показатели:
Площадь покрытия - 1240 м2
Расход материалов:
- цемента приведенного - 10,26 т;
- стали приведенной - 6,46 т;
- железобетона и бетона - 33,41 м3;
- лесоматериалов - 1,3 м3;
- кирпича - 0,99 тыс. шт.
Рисунок Л.5. Площадка для обработки кожного покрова
свиней до 1000 голов, т.п. 802-90-13
Область применения: I, III климатические районы с обычными геологическими условиями. Расчетная температура наружного воздуха -20 °C, -30 °C (основное решение), -40 °C.
Строительные конструкции и инженерное оборудование
Фундаменты - монолитные бетонные
Стойки - сборные железобетонные
Ограждения - сборные железобетонные панели
Покрытие - асфальтобетонное
Водопровод - производственный
Канализация - производственная в жижесборник
Основные показатели:
Площадь покрытия - 320 м2
Расход материалов:
- цемента приведенного - 2,10 т;
- стали приведенной - 1,97 т;
- железобетона и бетона - 9,42 м3;
- лесоматериалов - 0,78 м3.
Рисунок Л.6. Дезбарьер для животноводческих комплексов
и ферм, т.п. 807-11-4
Область применения: I, III климатические районы с обычными геологическими условиями. Расчетная температура наружного воздуха -20 °C, -30 °C (основное решение), -40 °C.
Строительные конструкции и инженерное оборудование
Покрытие - монолитная бетонная ванна с металлизацией поверхности
Основные показатели:
Площадь покрытия - 38 м2
Расход материалов:
- цемента приведенного - 1,8 т;
- железобетона и бетона - 7,71 м3.
Рисунок Л.7. Отапливаемый дезбарьер, т.п. 807-11-13.85
Область применения: IВ, II, III климатические районы с обычными геологическими условиями. Расчетная температура наружного воздуха -20 °C, -30 °C (основное решение), -40 °C.
Строительные конструкции и инженерное оборудование
Фундаменты - сборные железобетонные
Колонны - сборные железобетонные
Прогоны - сборные железобетонные
Фермы - сборные железобетонные
Плита днища - сборная железобетонная
Кровля - волнистые асбестоцементные листы
Полы - асфальтобетонные, в дезбарьере - бетонная смесь глубиной 0,5 м
Канализация - производственная в жижесборник
Отопление - от наружных сетей
Основные показатели:
Площадь застройки - 108 м2
Расход материалов:
- цемента приведенного - 6,64 т;
- стали приведенной - 3,33 т;
- бетона и железобетона - 19,24 м3;
- лесоматериалов - 1,55 м3;
- кирпича - 0,7 тыс. шт.
Рисунок Л.8. Отапливаемый дезбарьер с электроподогревом,
т.п. 807-11-14.85
Область применения: IВ, II, III климатические районы с обычными геологическими условиями. Расчетная температура наружного воздуха -20 °C, -30 °C (основное решение), -40 °C.
Строительные конструкции и инженерное оборудование
Фундаменты - сборные железобетонные
Колонны - сборные железобетонные
Прогоны - сборные железобетонные
Фермы - сборные железобетонные
Плита днища - сборная железобетонная
Кровля - волнистые асбестоцементные листы
Полы - асфальтобетонные, в дезбарьере - бетонная смесь глубиной 0,5 м
Канализация - производственная в жижесборник
Отопление - от наружных сетей
Основные показатели:
Площадь застройки - 101 м2
Расход материалов:
- цемента приведенного - 16,22 т;
- стали приведенной - 2,35 т;
- бетона и железобетона - 60,53 м3;
- лесоматериалов - 2,52 м3;
- кирпича - 0,84 тыс. шт.
КРАТКИЕ СВЕДЕНИЯ О ТИПОВЫХ ПРОЕКТАХ ДЕЗИНФЕКЦИОННЫХ БЛОКОВ
М.1. Блок дезинфекции тары племрепродукторов на 100 тыс. взрослых кур, т.п. 807-19-9;
М.2. Дезинфекционный блок для племзаводов и племрепродукторов мощностью до 300 тыс. кур, т.п. 807-19-4;
М.3. Дезинфекционный блок для птицефабрик на 400 тыс. кур-несушек, т.п. 805-9-6.84;
М.4. Блок дезинфекции тары, инвентаря и транспортных средств для птицефабрик на 3 млн. бройлеров, т.п. 805-9-2.83;
М.5. Дезинфекционный блок для птицефабрик на 3 млн. бройлеров, т.п. 805-9-5.84.
1, 10 - венткамера; 2 - узел приготовления
дезинфицирующего раствора; 3 - помещение хранения
и выдачи чистой тары; 4 - помещение дезинфекции транспорта;
5 - склад дезинфицирующих средств; 6 - инвентарная;
7 - мойка тары; 8 - камера для аэрозольной дезинфекции
птичьей тары; 9 - камера для аэрозольной дезинфекции яичной
тары; 11 - помещение приема и ремонта грязной тары;
12, 19 - коридор; 13, 17 - уборная; 14 - душевая;
15 - гардероб специальной одежды; 16 - гардероб уличной,
домашней и специальной одежды; 18, 21 - тамбур;
20 - комната персонала
Рисунок М.1. Блок дезинфекции тары племрепродукторов
на 100 тыс. взрослых кур, т.п. 807-19-9
Область применения: I, III климатические районы с обычными геологическими условиями. Расчетная температура наружного воздуха -20 °C, -30 °C (основное решение), -40 °C.
Строительные конструкции и инженерное оборудование
Фундаменты - сборные железобетонные
Балки - сборные железобетонные
Колонны - сборные железобетонные
Стены - из керамзитобетонных панелей
Перегородки - сборные железобетонные
Покрытие - сборные железобетонные плиты
Кровля - рулонная
Полы - бетонные, асфальтобетонные, из керамической плитки, линолеума
Водопровод - объединенный: хозяйственно-питьевой и производственный
Канализация - бытовая и производственная в наружную сеть
Отопление - водяное
Вентиляция - приточно-вытяжная с механическим и естественным побуждением
Основные показатели проекта
Площадь застройки - 586 м2
Строительный объем - 2440 м3
Расход строительных материалов:
- цемента приведенного - 115,87 т;
- стали приведенной - 23,93 т;
- бетон и железобетон - 218,18 м3;
- кирпич - 22,6 тыс. шт.;
- лесоматериалы - 13,69 м3.
1, 5, 6, 12, 16, 20 - тамбур; 2 - прием птичьей тары;
3, 22 - уборная; 4, 19 - гардероб уличной, домашней
и специальной одежды; 7 - выдача чистой мясной и птичьей
тары; 8 - сушка мясной тары; 9 - мойка и дезинфекция
птичьей тары; 10 - сушка птичьей тары; 11 - прием мясной
тары; 13 - мойка и дезинфекция мясной тары; 14 - помещение
дезинфекции транспорта; 15 - склад дезинфицирующих средств;
17 - узел приготовления дезинфицирующего раствора;
18 - комната персонала; 21 - инвентарная; 23 - коридор;
24 - венткамера; 15 - склад грязной тары; 26 - камера
для аэрозольной дезинфекции тары; 27 - склад чистой тары
Рисунок М.2. Дезинфекционный блок для племзаводов
и племрепродукторов мощностью до 300 тыс. кур,
т.п. 807-19-4
Область применения: I, III климатические районы с обычными геологическими условиями. Расчетная температура наружного воздуха -20 °C, -30 °C (основное решение), -40 °C.
Строительные конструкции и инженерное оборудование
Фундаменты - сборные железобетонные
Балки - сборные железобетонные
Колонны - сборные железобетонные
Стены - сборные двухслойные панели
Перегородки - сборные железобетонные панели
Покрытие - сборные железобетонные плиты
Кровля - асбестоцементные листы
Полы - цементно-песчаные, асфальтобетонные, из керамической плитки, линолеума
Водопровод - объединенный: хозяйственно-питьевой и производственный
Канализация - бытовая и производственная в наружную сеть
Отопление - водяное
Вентиляция - приточно-вытяжная с механическим и естественным побуждением
Основные показатели проекта
Площадь застройки - 621 м2
Строительный объем - 3477 м3
Расход строительных материалов:
- цемента приведенного - 131,61 т;
- стали приведенной - 20,39 т;
- бетона и железобетона - 264,3 м3;
- кирпича - 67,25 тыс. шт.;
- лесоматериалов - 43,02 м3.
1 - помещение дезинфекции транспортных средств;
2, 19 - венткамера; 3 - комната персонала; 4 - тамбур;
5 - коридор; 6 - гардероб на 6 человек; 7 - душевая;
8 - уборная; 9 - помещение хранения чистой мясной тары;
10 - помещение хранения чистой яичной тары; 11 - помещение
хранения чистой птичьей тары; 12 - помещение приготовления
дезинфицирующих средств; 13 - хозяйственная кладовая;
14 - кладовая; 15 - помещение сушки мясной тары;
16 - помещение мойки и дезинфекции мясной тары;
17 - камера аэрозольной дезинфекции яичной тары;
18 - камера аэрозольной дезинфекции птичьей тары;
19 - венткамера; 20 - помещение хранения дезинфицирующих
средств; 21 - помещение приема мясной тары; 22 - помещение
приема яичной тары; 23, 24 - помещение приема птичьей тары
Рисунок М.3. Дезинфекционный блок для птицефабрик
на 400 тыс. кур-несушек, т.п. 805-9-6.84
Область применения: IА, IВ, IД, IIВ, III климатические районы с обычными геологическими условиями. Расчетная температура наружного воздуха -20 °C, -30 °C (основное решение).
Строительные конструкции и инженерное оборудование
Фундаменты - сборные железобетонные
Балки - сборные железобетонные
Колонны - сборные железобетонные
Стены - сборные двухслойные панели
Перегородки - сборные керамзитобетонные панели
Покрытие - сборные железобетонные плиты
Кровля - рулонная
Полы - цементно-песчаные, асфальтобетонные, из керамической плитки, линолеума
Водопровод - объединенный: хозяйственно-питьевой и производственный
Канализация - бытовая и производственная в наружную сеть
Отопление - водяное
Вентиляция - приточно-вытяжная с механическим и естественным побуждением
Основные показатели проекта
Площадь застройки - 1238,76 м2
Строительный объем - 5474,85 м3
Расход строительных материалов:
- цемента приведенного - 207,54 т;
- стали приведенной - 48,71 т;
- бетона и железобетона - 791,79 м3;
- кирпича - 2,42 тыс. шт.;
- лесоматериалов - 33,28 м3.
1 - помещение приема птичьей тары; 2 - тамбур;
3 - комната персонала; 4 - гардероб уличной, домашней
и специальной одежды; 5 - коридор; 6 - инвентарная;
7 - душевая; 8 - уборная; 9 - помещение мойки и дезинфекции
мясной тары; 10 - помещение приема мясной тары;
11 - помещение хранения дезинфицирующих средств;
12 - помещение мойки птичьей тары; 13 - камера аэрозольной
дезинфекции птичьей тары; 14 - помещение для заполнения
распылителей; 15 - венткамера; 16 - помещение сушки
мясной тары; 17 - венткамера; 18 - помещение хранения
мясной тары; 19 - помещение хранения птичьей тары
Рисунок М.4. Блок дезинфекционной тары, инвентаря
и транспортных средств для птицефабрик на 3 млн. бройлеров,
т.п. 805-9-2.83
Область применения. IА, IВ, IД, IIВ, III климатические районы с обычными геологическими условиями. Расчетная температура наружного воздуха -20 °C, -30 °C (основное решение), -40 °C.
Строительные конструкции и инженерное оборудование
Фундаменты - сборные железобетонные
Балки - сборные железобетонные
Колонны - сборные железобетонные
Стены - облегченной конструкции
Перегородки - сборные керамзитобетонные панели
Покрытие - сборные железобетонные плиты
Кровля - рулонная
Полы - бетонные, асфальтобетонные, керамической плитки, линолеума
Водопровод - объединенный: хозяйственно-питьевой и производственный
Канализация - бытовая и производственная в наружную сеть
Отопление - водяное
Вентиляция - приточно-вытяжная с механическим и естественным побуждением
Основные показатели проекта
Площадь застройки - 750,0 м2
Строительный объем - 3375 м3
Расход строительных материалов:
- цемента приведенного - 124,21 т;
- стали приведенной - 24,56 т;
- бетона и железобетона - 347,11 м3;
- кирпича - 17,18 тыс. шт.;
- лесоматериалов - 15,6 м3.
1 - помещение дезинфекции транспортных средств;
2 - венткамера; 3 - хозяйственная кладовая; 4 - тамбур;
5 - коридор; 6 - комната персонала; 7 - помещение хранения
чистой мясной тары; 8 - кладовая; 9 - помещение
сушки мясной тары; 10 - помещение мойки и дезинфекции
мясной тары; 11 - помещение хранения чистой птичьей тары;
12 - помещение приготовления дезинфицирующих средств;
13 - гардероб на 5 чел.; 14 - душевая; 15 - уборная;
16 - камера аэрозольной дезинфекции птичьей тары;
17 - венткамера; 18 - тепловой пункт; 19 - помещение
хранения дезинфицирующих средств; 20 - помещение приема
мясной тары; 21 - помещение мойки птичьей тары;
22 - помещение приема птичьей тары
Рисунок М.5. Дезинфекционный блок для птицефабрик
на 3 млн. бройлеров, т.п. 805-9-5.84
Область применения: IА, IВ, IД, IIВ, III климатические районы с обычными геологическими условиями. Расчетная температура наружного воздуха -20 °C, -30 °C (основное решение).
Строительные конструкции и инженерное оборудование
Фундаменты - сборные железобетонные
Балки - сборные железобетонные
Колонны - сборные железобетонные
Стены - керамзитобетонные панели
Перегородки - сборные керамзитобетонные панели
Покрытие - сборные железобетонные плиты
Кровля - рулонная
Полы - бетонные, цементно-песчаные, из керамической плитки, линолеума
Водопровод - объединенный: хозяйственно-питьевой и производственный
Канализация - бытовая и производственная в наружную сеть
Отопление - водяное
Вентиляция - приточно-вытяжная с механическим и естественным побуждением
Основные показатели проекта
Площадь застройки - 903,96 м2
Строительный объем - 4194,37 м3
Расход строительных материалов:
- цемента приведенного - 161,95 т;
- стали приведенной - 37,71 т;
- бетона и железобетона - 347,11 м3;
- кирпича - 7,84 тыс. шт.;
- лесоматериалов - 30,26 м3.
КРАТКИЕ СВЕДЕНИЯ О ТИПОВОМ ПРОЕКТЕ БИОТЕРМИЧЕСКОЙ ЯМЫ
ДЛЯ УНИЧТОЖЕНИЯ ТРУПОВ ЖИВОТНЫХ
Н.1. Биотермическая яма для уничтожения трупов животных, т.п. 807-19-1
1 - вскрывочная; 2 - навес; 3 - биотермическая яма
Рисунок Н.1. Биотермическая яма для уничтожения
трупов животных, т.п. 807-19-1
Область применения: I, III климатические районы с обычными геологическими условиями. Расчетная температура наружного воздуха -20 °C, -30 °C (основное решение), -40 °C.
Строительные конструкции и инженерное оборудование
Фундаменты - монолитные бетонные
Балки - деревянные
Фермы - деревянные
Стены - кирпичные
Покрытие - щитовой накат по деревянным балкам
Кровля - асбестоцементные волнистые листы УВ-7,5
Полы - цементные
Водопровод - объединенный: хозяйственно-питьевой и производственный
Канализация - бытовая и производственная
Вентиляция - естественная
Основные показатели проекта
Площадь застройки - 63,6 м2
Строительный объем - 299 м3
Расход строительных материалов:
- цемента приведенного - 15,77 т;
- стали приведенной - 1,33 т;
- железобетона и бетона - 19,82 м3;
- лесоматериалов - 7,62 м3;
- кирпича - 25,55 тыс. шт.
КРАТКИЕ СВЕДЕНИЯ О ТИПОВЫХ ПРОЕКТАХ САНИТАРНЫХ ПРОПУСКНИКОВ
П.1. Санитарный пропускник на 15 человек для животноводческих и птицеводческих предприятий, т.п. 807-11-1;
П.2. Санитарный пропускник на 30 человек с электрокотельной, т.п. 807-11-27.12.87;
П.3. Санитарный пропускник на 30 человек для животноводческих и птицеводческих предприятий, т.п. 807-11-2;
П.4. Санитарный пропускник на 60 человек с электрокотельной, т.п. 807-11-28.12.87;
П.5. Санитарный пропускник на 90 человек для животноводческих и птицеводческих предприятий, т.п. 807-11-5.83;
П.6. Санитарный пропускник на 120 человек для животноводческих и птицеводческих предприятий, т.п. 807-11-6.83.
1, 5, 6, 8, 10, 12, 14, 16, 21 - тамбур; 2 - вестибюль;
3 - кабинет заведующего фермой; 4 - женский гардероб
уличной и домашней одежды; 7 - женская душевая;
9 - женский гардероб рабочей одежды; 11 - уборная;
13 - мужской гардероб уличной и домашней одежды;
15 - мужская душевая; 17 - мужской гардероб рабочей одежды;
18 - венткамера; 19 - постирочная; 20 - помещение
для дезинфекции одежды; 22 - красный уголок;
23 - комната специалистов; 24 - комната приема пищи;
25 - коридор
Рисунок П.1. Санитарный пропускник на 15 человек
для животноводческих и птицеводческих предприятий,
т.п. 807-11-1
Область применения: IВ, II, III климатические районы с обычными геологическими условиями. Расчетная температура наружного воздуха -20 °C, -30 °C (основное решение), -40 °C.
Строительные конструкции и инженерное оборудование
Фундаменты - сборные железобетонные
Колонны - сборные железобетонные
Балки - сборные железобетонные
Стены - двухслойные стеновые панели
Перегородки - кирпичные
Покрытие - сборные железобетонные плиты
Кровля - рулонная
Полы - бетонные, из керамической плитки, линолеума
Водопровод - объединенный: хозяйственно-питьевой и производственный
Канализация - бытовая в наружную сеть
Вентиляция - приточно-вытяжная с механическим и естественным побуждением
Отопление - водяное
Основные показатели проекта
Площадь застройки - 245 м2
Строительный объем - 858 м3
Расход строительных материалов:
- цемента приведенного - 50,5 т;
- стали приведенной - 11,33 т;
- железобетона и бетона - 164,9 м3;
- лесоматериалов - 6,4 м3;
- кирпича - 33,9 тыс. шт.
1, 4, 7, 11, 12 - тамбур; 2 - вестибюль; 3 - кабинет
заведующего фермой; 5 - мужской гардероб уличной
и домашней одежды; 6 - мужской гардероб рабочей одежды;
8 - мужская душевая; 9 - инвентарная; 10 - уборная;
13 - женская душевая; 14 - женский гардероб уличной
и домашней одежды; 15 - женский гардероб рабочей одежды;
16 - красный уголок; 17 - комната специалистов;
18 - коридор; 19 - постирочная; 20 - комната приема пищи;
21 - женская уборная; 22 - венткамера; 23 - молочная;
24 - мужская уборная; 25 - лаборатория; 26 - кладовая
дезосредств; 27 - электрокотельная; 28 - электрощитовая;
29 - компрессорная; 30 - помещение для градирни;
31 - кладовая
Рисунок П.2. Санитарный пропускник на 30 человек
с электрокотельной, т.п. 807-11-27.12.87
Область применения: II, III климатические районы с обычными геологическими условиями. Расчетная температура наружного воздуха -20 °C, -30 °C (основное решение).
Строительные конструкции и инженерное оборудование
Фундаменты - сборные железобетонные
Колонны - сборные железобетонные
Балки - сборные железобетонные
Стены - двухслойные керамзитобетонные панели
Перегородки - сборные железобетонные
Покрытие - сборные железобетонные плиты
Кровля - рулонная
Полы - бетонные, из керамической плитки, линолеума
Водопровод - объединенный: хозяйственно-питьевой и производственный
Канализация - бытовая и производственная в наружную сеть
Вентиляция - приточно-вытяжная с механическим и естественным побуждением
Отопление - от электрокотельной
Основные показатели проекта
Площадь застройки - 504 м2
Строительный объем - 1576 м3
Расход строительных материалов:
- цемента приведенного - 74,01 т;
- стали приведенной - 15,7 т;
- железобетона и бетона - 270,7 м3;
- лесоматериалов - 12,26 м3;
- кирпича - 2,7 тыс. шт.
1, 6, 7, 10, 12, 17, 22, 24, 26 - тамбур; 2 - вестибюль;
3 - инвентарная; 4 - кабинет заведующего фермой;
5 - женский гардероб уличной и домашней одежды;
8 - женская душевая; 9 - уборная; 11 - женский гардероб
рабочей одежды; 13 - женская уборная; 14 - венткамера;
15 - постирочная; 16 - помещение для дезинфекции одежды;
18 - комната приема пищи; 19 - комната специалистов;
20 - красный уголок; 21 - коридор; 23 - мужской гардероб
рабочей одежды; 25 - мужская душевая; 27 - мужской
гардероб уличной и домашней одежды; 28 - мужская уборная
Рисунок П.3. Санитарный пропускник на 30 человек
для животноводческих и птицеводческих предприятий,
т.п. 807-11-2
Область применения: IВ, II, III климатические районы с обычными геологическими условиями. Расчетная температура наружного воздуха -20 °C, -30 °C (основное решение), -40 °C.
Строительные конструкции и инженерное оборудование
Фундаменты - сборные железобетонные
Колонны - сборные железобетонные
Балки - сборные железобетонные
Стены - двухслойные стеновые панели
Перегородки - кирпичные
Покрытие - сборные железобетонные плиты
Кровля - рулонная
Полы - бетонные, из керамической плитки, линолеума
Водопровод - объединенный: хозяйственно-питьевой и производственный
Канализация - бытовая в наружную сеть
Вентиляция - приточно-вытяжная с механическим и естественным побуждением
Отопление - водяное
Основные показатели проекта
Площадь застройки - 322 м2
Строительный объем - 1127 м3
Расход строительных материалов:
- цемента приведенного - 59,81 т;
- стали приведенной - 12,43 т;
- железобетона и бетона - 191,32 м3;
- лесоматериалов - 6,93 м3;
- кирпича - 35,6 тыс. шт.
1 - тамбур; 2 - вестибюль; 3 - коридор; 4 - кабинет
заведующего фермой; 5 - мужской гардероб уличной
и домашней одежды; 6 - мужская уборная; 7 - женская
уборная; 8 - инвентарная; 9 - преддушевая; 10 - душевая;
11 - мужской гардероб рабочей одежды; 12 - постирочная;
13 - помещение для дезинфекции одежды; 14 - венткамера;
15 - электрокотельная; 16 - электрощитовая; 17 - комната
личной гигиены женщин; 18 - гардероб с уборной;
19 - кладовая; 20 - моечная; 21 - раздаточная;
22 - обеденный зал; 23 - красный уголок; 24 - комната
специалистов; 25 - женский гардероб рабочей одежды;
26 - женский гардероб уличной и домашней одежды
Рисунок П.4. Санитарный пропускник на 60 человек
с электрокотельной, т.п. 807-11-28.12.87
Область применения: I, II, III климатические районы с обычными геологическими условиями. Расчетная температура наружного воздуха -20 °C, -30 °C (основное решение), -40 °C.
Строительные конструкции и инженерное оборудование
Фундаменты - монолитные бетонные
Стены - кирпичные
Перегородки - кирпичные
Покрытие - сборные железобетонные плиты
Кровля - рулонная
Полы - бетонные, из керамической плитки, линолеума
Водопровод - объединенный: хозяйственно-питьевой и производственный
Горячее водоснабжение - от электрокотельной
Канализация - бытовая в наружную сеть
Вентиляция - приточно-вытяжная с механическим и естественным побуждением
Отопление - водяное от электрокотельной
Основные показатели проекта
Площадь застройки - 533,3 м2
Строительный объем - 1790 м3
Расход строительных материалов:
- цемента приведенного - 76,12 т;
- стали приведенной - 4,84 т;
- железобетона и бетона - 196,96 м3;
- лесоматериалов - 44,66 м3;
- кирпича - 130,1 тыс. шт.
1, 6, 7, 10, 14, 31, 32 - тамбур; 2 - вестибюль;
3 - кабинет заведующего фермой; 4 - инвентарная; 5, 8,
17, 19, 29 - уборная; 9 - женский гардероб уличной
и домашней одежды; 11 - женская душевая; 12 - женский
гардероб рабочей одежды; 13 - мужской гардероб уличной
и домашней одежды; 15 - душевая; 16 - мужской гардероб
рабочей одежды; 18 - кладовая чистой одежды; 20 - комната
личной гигиены женщин; 21 - венткамера; 22 - комната
специалистов; 23 - постирочная; 24 - помещение для
дезинфекции одежды; 25 - красный уголок; 26 - обеденный зал;
27 - моечная; 28 - раздаточная; 30 - коридор;
33 - кладовая грязной одежды
Рисунок П.5. Санитарный пропускник на 90 человек
для животноводческих и птицеводческих предприятий,
т.п. 807-11-5.83
Область применения: IВ, II, III климатические районы с обычными геологическими условиями. Расчетная температура наружного воздуха -20 °C, -30 °C (основное решение), -40 °C.
Строительные конструкции и инженерное оборудование
Фундаменты - сборные железобетонные
Колонны, балки - сборные железобетонные
Стены - двухслойные стеновые панели
Перегородки - кирпичные
Покрытие - сборные железобетонные плиты
Кровля - рулонная
Полы - бетонные, из керамической плитки, линолеума
Водопровод - объединенный: хозяйственно-питьевой и производственный
Горячее водоснабжение - от наружных сетей
Канализация - бытовая в наружную сеть
Вентиляция - приточно-вытяжная с механическим и естественным побуждением
Отопление - водяное от котельной комплекса
Основные показатели проекта
Площадь застройки - 561 м2
Строительный объем - 1937 м3
Расход строительных материалов:
- цемента приведенного - 109,42 т;
- стали приведенной - 16,45 т;
- железобетона и бетона - 379,52 м3;
- лесоматериалов - 15,09 м3;
- кирпича - 49,71 тыс. шт.
1, 6, 7, 14, 26, 33 - тамбур; 2 - вестибюль; 3 - кабинет
заведующего фермой; 4 - коридор; 5, 8, 18, 20,
27 - уборная; 9 - женский гардероб уличной и домашней
одежды; 10 - преддушевая; 11 - душевая; 12 - женский
гардероб рабочей одежды; 13 - мужской гардероб уличной
и домашней одежды; 15 - душевая; 16 - мужской гардероб
рабочей одежды; 17, 19 - кладовая чистой одежды;
21 - комната личной гигиены женщин; 22 - венткамера;
23 - комната специалистов; 24 - постирочная; 25 - помещение
для дезинфекции одежды; 28 - раздаточная; 29 - моечная;
30 - обеденный зал; 31 - красный уголок; 33 - коридор
Рисунок П.6. Санитарный пропускник на 120 человек
для животноводческих и птицеводческих предприятий,
т.п. 807-11-6.83
Область применения: IВ, II, III климатические районы с обычными геологическими условиями. Расчетная температура наружного воздуха -20 °C, -30 °C (основное решение), -40 °C.
Строительные конструкции и инженерное оборудование
Фундаменты - сборные железобетонные
Колонны, балки - сборные железобетонные
Стены - двухслойные стеновые панели
Перегородки - кирпичные
Покрытие - сборные железобетонные плиты
Кровля - рулонная
Полы - бетонные, из керамической плитки, линолеума
Водопровод - объединенный: хозяйственно-питьевой и производственный
Горячее водоснабжение - от наружных сетей
Канализация - бытовая в наружную сеть
Вентиляция - приточно-вытяжная с механическим и естественным побуждением
Отопление - водяное от котельной комплекса
Основные показатели проекта
Площадь застройки - 638 м2
Строительный объем - 2260 м3
Расход строительных материалов:
- цемента приведенного - 121,31 т;
- стали приведенной - 18,69 т;
- железобетона и бетона - 421,73 м3;
- лесоматериалов - 16,12 м3;
- кирпича - 51,38 тыс. шт.
КРАТКИЕ СВЕДЕНИЯ О ТИПОВЫХ ПРОЕКТАХ НАВОЗОХРАНИЛИЩ
Р.1. Навозохранилища для ферм и комплексов крупного рогатого скота, т.п. 815-28;
Р.2. Секционные площадки для твердой фракции навоза площадью 3860 м2, т.п. 815-55.87;
Р.3. Секционный накопитель для жидкой фракции навоза емкостью 22500 м3, т.п. 815-56.87;
Р.4. Площадка для компостирования навоза для ферм на 400 и 800 коров, т.п. 815-31.83;
Р.5. Площадка для приготовления компостов производительностью 10 тыс. тонн в год, т.п. 801-9-20.84.
Рисунок Р.1. Навозохранилища для ферм и комплексов
крупного рогатого скота, т.п. 815-28
Область применения: I, III климатические районы с обычными геологическими условиями. Расчетная температура наружного воздуха -20 °C, -30 °C (основное решение), -40 °C.
Строительные конструкции и инженерное оборудование
Контрфорсы - сборные железобетонные
Стены - сборные железобетонные плиты
Днища - монолитный бетон
Емкость секционных навозохранилищ, т: 1000, 1500, 2000, 2500, 3000, 3500, 4000, 6000
Площадь застройки для этих емкостей, м2: 1129, 1648, 2624, 2602, 3079, 3599, 4076, 5941
Расход материалов:
- цемента приведенного, т: 71,17; 105,64; 131,86; 157,24; 183,21; 217,31; 241,31; 339,09;
- стали приведенной, т: 10,11; 14,67; 16,16; 17,65; 19,13; 23,71; 25,20; 28,14;
- бетона и железобетона, м3: 215,13; 318,93; 395,85; 473,88; 551,81; 654,60; 726,63; 1019,76;
- лесоматериалов, м3: 0,21; 0,33; 0,33; 0,33; 0,33; 0,43; 0,43; 0,33.
Рисунок Р.2. Секционные площадки для твердой фракции
навоза площадью 3860 м2, т.п. 815-55.87
Область применения: IВ, II, III климатические районы с обычными геологическими условиями. Расчетная температура наружного воздуха -20 °C, -30 °C (основное решение), -40 °C.
Строительные конструкции и инженерное оборудование
Стены - сборные бетонные
Днища - монолитный бетон
Общая площадь - 3860 м2
Расход материалов:
- цемента приведенного - 247 т;
- стали приведенной - 3,16 т;
- бетона и железобетона - 771 м3.
1 - секционный накопитель; 2 - канализационный колодец
Рисунок Р.3. Секционный накопитель для жидкой фракции
навоза емкостью 22500 м3, т.п. 815-56.87
Область применения: IВ, II, III климатические районы с обычными геологическими условиями. Расчетная температура наружного воздуха -20 °C, -30 °C (основное решение), -40 °C.
Строительные конструкции и инженерное оборудование
1. Секционный накопитель:
- днища - полиэтиленовая пленка
2. Канализационный колодец:
- днища - сборные железобетонные плиты
- стены - сборные железобетонные кольца
- плиты покрытия и кольца люков - сборные железобетонные
Площадь застройки - 9809 м2
Полезная емкость - 22500 м3
Расход материалов:
- цемента приведенного - 2,06 т;
- стали приведенной - 0,21 т;
- бетона и железобетона - 4,19 м3;
- лесоматериалов - 0,05 м3.
1 - секция для торфа; 2 - секция для перемешивания торфа
с навозом; 3 - секция для компостов
Рисунок Р.4. Площадка для компостирования навоза для ферм
на 400 и 800 коров, т.п. 815-31.83
Область применения: IВ, II, III климатические районы с обычными геологическими условиями. Расчетная температура наружного воздуха -30 °C.
Строительные конструкции и инженерное оборудование
Покрытие площадки - монолитный бетон
Площадь застройки - 2050 м2 (на 400 коров)
Полезная емкость - 1848 м3 (на 400 коров)
Расход материалов (в числителе на 400 коров, в знаменателе - на 800 коров):
- цемента приведенного - 106,86/188,66 т;
- стали приведенной - 0,89/1,53 т;
- бетона - 351,5/620,6 м3.
1 - навозохранилище; 2 - линза компостирования;
3 - площадка с твердым покрытием
Рисунок Р.5. Площадка для приготовления компостов
производительностью 10 тыс. тонн в год, т.п. 801-9-20.84
Область применения: IВ, IIВ климатические районы с обычными геологическими условиями. Расчетная температура наружного воздуха -30 °C.
Строительные конструкции и инженерное оборудование
Фундаменты - монолитное железобетонное днище
Стены - сборные железобетонные панели
Покрытие площадки - монолитный бетон
Площадь застройки - 7105,80 м2
Расход материалов:
- цемента приведенного - 572,02 т;
- стали приведенной - 37,26 т;
- бетона и железобетона - 1450,92 м3;
- лесоматериалов - 25 м3.