Главная // Актуальные документы // ГОСТ (Государственный стандарт)
СПРАВКА
Источник публикации
М.: Стандартинформ, 2014
Примечание к документу
Текст данного документа приведен с учетом поправки, опубликованной в "ИУС", N 2, 2023.

Документ введен в действие с 01.07.2014.
Название документа
"ГОСТ EN 495-5-2012. Межгосударственный стандарт. Материалы кровельные и гидроизоляционные гибкие полимерные (термопластичные и эластомерные). Метод определения гибкости при пониженных температурах"
(введен в действие Приказом Росстандарта от 17.12.2013 N 2290-ст)

"ГОСТ EN 495-5-2012. Межгосударственный стандарт. Материалы кровельные и гидроизоляционные гибкие полимерные (термопластичные и эластомерные). Метод определения гибкости при пониженных температурах"
(введен в действие Приказом Росстандарта от 17.12.2013 N 2290-ст)


Содержание


Введен в действие
Приказом Федерального
агентства по техническому
регулированию и метрологии
от 17 декабря 2013 г. N 2290-ст
МЕЖГОСУДАРСТВЕННЫЙ СТАНДАРТ
МАТЕРИАЛЫ КРОВЕЛЬНЫЕ И ГИДРОИЗОЛЯЦИОННЫЕ ГИБКИЕ
ПОЛИМЕРНЫЕ (ТЕРМОПЛАСТИЧНЫЕ И ЭЛАСТОМЕРНЫЕ)
МЕТОД ОПРЕДЕЛЕНИЯ ГИБКОСТИ ПРИ ПОНИЖЕННЫХ ТЕМПЕРАТУРАХ
Roofing and hydraulic-insulating flexible polymeric
(thermoplastic or elastomer) materials. Method
for determination of foldability at low temperatures
(EN 495-5:2000, IDT)
ГОСТ EN 495-5-2012
МКС 91.100.99
Дата введения
1 июля 2014 года
Предисловие
Цели, основные принципы и основной порядок проведения работ по межгосударственной стандартизации установлены ГОСТ 1.0-92 "Межгосударственная система стандартизации. Основные положения" и ГОСТ 1.2-2009 "Межгосударственная система стандартизации. Стандарты межгосударственные, правила и рекомендации по межгосударственной стандартизации. Правила разработки, принятия, применения, обновления и отмены"
Сведения о стандарте
1 ПОДГОТОВЛЕН федеральным государственным бюджетным учреждением "Научно-исследовательский институт строительной физики Российской академии архитектуры и строительных наук" (НИИСФ РААСН) на основе аутентичного перевода на русский язык европейского регионального стандарта, указанного в пункте 4
2 ВНЕСЕН Техническим комитетом по стандартизации ТК 465 "Строительство"
3 ПРИНЯТ Межгосударственной научно-технической комиссией по стандартизации, техническому нормированию и оценке соответствия в строительстве (МНТКС) (протокол от 18 декабря 2012 г. N 41)
За принятие стандарта проголосовали:
Краткое наименование страны по МК (ИСО 3166) 004-97
Код страны по МК (ИСО 3166) 004-97
Сокращенное наименование национального органа государственного управления строительством
Азербайджан
AZ
Государственный комитет градостроительства и архитектуры
Армения
AM
Министерство градостроительства
Киргизия
KG
Госстрой
Молдова
MD
Министерство строительства и регионального развития
Россия
RU
Министерство регионального развития
Туркмения
TM
Главгосслужба "Туркменстандартлары"
Узбекистан
UZ
Госархитектстрой
Украина
UA
Министерство регионального развития, строительства и жилищно-коммунального хозяйства
4 Настоящий стандарт идентичен европейскому региональному стандарту EN 495-5:2000 Flexible sheets for waterproofing - Determination of foldability at low temperature - Part 5: Plastic and rubber sheets for roof waterproofing [Материалы гибкие гидроизоляционные. Определение гибкости при пониженных температурах. Часть 5: Материалы кровельные и гидроизоляционные полимерные (термопластичные или эластомерные)].
Наименование настоящего стандарта изменено по отношению к наименованию европейского регионального стандарта для приведения в соответствие с ГОСТ 1.5-2001 (подраздел 3.6).
При применении настоящего стандарта рекомендуется использовать вместо ссылочных европейских региональных стандартов соответствующие им межгосударственные стандарты, сведения о которых приведены в дополнительном приложении ДА.
Перевод с английского языка (en).
Степень соответствия - идентичная (IDT)
5 Приказом Федерального агентства по техническому регулированию и метрологии от 17 декабря 2013 г. N 2290-ст межгосударственный стандарт ГОСТ EN 495-5-2012 введен в действие в качестве национального стандарта Российской Федерации с 1 июля 2014
6 ВВЕДЕН ВПЕРВЫЕ
Информация об изменениях к настоящему стандарту публикуется в ежегодном информационном указателе "Национальные стандарты", а текст изменений и поправок - в ежемесячном информационном указателе "Национальные стандарты". В случае пересмотра (замены) или отмены настоящего стандарта соответствующее уведомление будет опубликовано в ежемесячном информационном указателе "Национальные стандарты". Соответствующая информация, уведомление и тексты размещаются также в информационной системе общего пользования - на официальном сайте Федерального агентства по техническому регулированию и метрологии в сети Интернет
Введение
Применение настоящего стандарта, устанавливающего метод определения гибкости кровельных и гидроизоляционных гибких полимерных (термопластичных или эластомерных) материалов при пониженных температурах, позволяет получить адекватную оценку качества материалов, производимых в государствах Евразийского экономического сообщества и странах ЕС, а также обеспечить конкурентоспособность продукции на международном рынке.
Настоящий стандарт применяют, если заключенные контракты или другие согласованные условия предусматривают применение материалов с характеристиками, гармонизированными с требованиями европейских региональных стандартов, а также в случаях, когда это технически и экономически целесообразно.
1 Область применения
Настоящий стандарт распространяется на кровельные и гидроизоляционные гибкие полимерные (термопластичные или эластомерные) материалы (далее - материалы) и устанавливает метод определения их гибкости при пониженных температурах.
Настоящий стандарт предназначен для определения характеристик материалов после их изготовления или поставки, до их укладки. Требования настоящего стандарта распространяются только на материалы и не применимы для определения характеристик изготовленных из них гидроизоляционных систем после производства работ.
Настоящий стандарт предназначен для определения характеристик материалов конкретных видов.
2 Нормативные ссылки
В настоящем стандарте использованы ссылки на следующие европейские региональные стандарты:
EN 13416:2001 Flexible sheets for waterproofing - Bitumen, plastic and rubber sheets for roof waterproofing - Rules for sampling (Материалы гибкие гидроизоляционные - Материалы кровельные и гидроизоляционные битумосодержащие и полимерные (термопластичные или эластомерные) - Правила отбора образцов)
EN 1849-2:2001 Flexible sheets for waterproofing - Determination of thickness and mass per unit area - Part 2: Plastic and rubber sheets for roof waterproofing [(Материалы гибкие гидроизоляционные - Определение толщины и массы на единицу площади - Часть 2: Материалы кровельные и гидроизоляционные полимерные (термопластичные или эластомерные)]
Примечание - При пользовании настоящим стандартом целесообразно проверить действие ссылочных стандартов в информационной системе общего пользования - на официальном сайте Федерального агентства по техническому регулированию и метрологии в сети Интернет или по ежегодному информационному указателю "Национальные стандарты", который опубликован по состоянию на 1 января текущего года, и по выпускам ежемесячного информационного указателя "Национальные стандарты" за текущий год. Если ссылочный стандарт заменен (изменен), то при пользовании настоящим стандартом следует руководствоваться заменяющим (измененным) стандартом. Если ссылочный стандарт отменен без замены, то положение, в котором дана ссылка на него, применяется в части, не затрагивающей эту ссылку.
3 Термины и определения
В настоящем стандарте применены следующие термины с соответствующими определениями:
3.1 лицевая поверхность (top surface): Верхняя сторона полотна материала при его эксплуатации; обычно находится внутри рулона.
3.2 нижняя поверхность (bottom surface): Нижняя сторона полотна материала при его эксплуатации; обычно находится снаружи рулона.
3.3 общая толщина e (overall thickness e): Толщина материала, за исключением профиля поверхности (см. EN 1849-2).
4 Сущность метода
Испытуемый образец, согнутый в петлю, помещают в фальцовочный аппарат и выдерживают при заданной отрицательной температуре в течение 1 ч. Затем в течение 1 с аппарат закрывают и выдерживают в этом положении в течение 1 с. Образец вынимают из аппарата, выдерживают до достижения комнатной температуры и осматривают в области сгиба с использованием лупы с шестикратным увеличением.
5 Средства испытаний
5.1 Фальцовочный аппарат
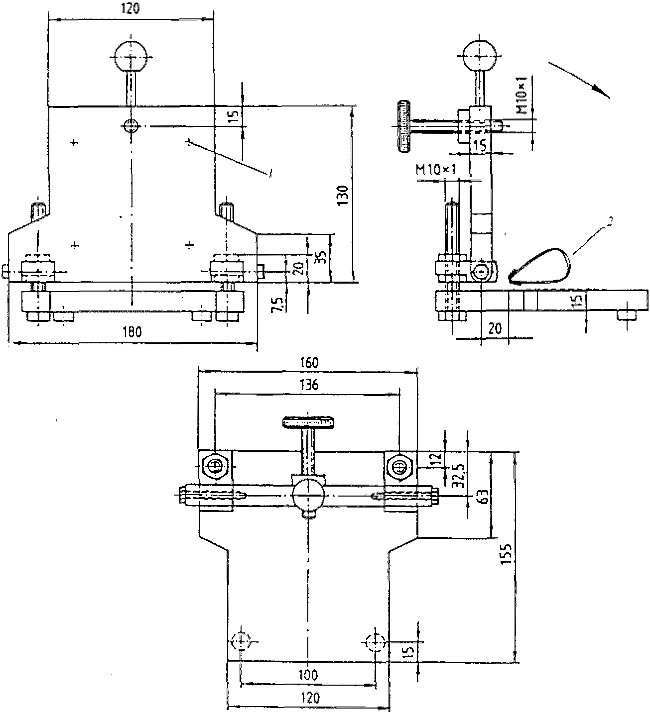
Металлический фальцовочный аппарат с двумя пластинами, расстояние между которыми можно регулировать; пример фальцовочного аппарата приведен на рисунке 1.
1 - измерительные точки; 2 - образец
Рисунок 1 - Фальцовочный аппарат (пример)
5.2 Холодильная камера
Холодильная камера с циркуляцией воздуха, обеспечивающая поддержание отрицательных температур до минус 45 °C с погрешностью не более +/- 2 °C.
5.3 Оптическое устройство
Оптическое устройство (например, лупа) с шестикратным увеличением.
6 Отбор образцов
Отбор образцов проводят в соответствии с требованиями EN 13416.
7 Подготовка образцов
Для каждого значения температуры готовят серию из четырех образцов размерами [(100 x 50) +/- 1] мм: два образца, вырубленных в продольном направлении (L), и два образца, вырубленных в поперечном направлении (T).
Перед проведением испытаний образцы выдерживают не менее 20 ч при температуре (23 +/- 2) °C и относительной влажности (50 +/- 5)%.
8 Методика проведения испытаний
8.1 Температура
Все операции, кроме выдержки в холодильной камере, должны проводиться при температуре (23 +/- 5) °C.
8.2 Измерение толщины
Измерение общей толщины каждого образца проводят в соответствии с EN 1849-2.
8.3 Сгибание образца
Испытуемый образец сгибают пополам в направлении длины и с помощью степлера или клейкой ленты скрепляют его концы (см. рисунок 1).
Сгибают один L и один T образец так, чтобы лицевая сторона образца находилась снаружи полученной петли. Оставшиеся два L и T образца сгибают и скрепляют так, чтобы лицевая сторона образца находилась внутри полученной петли.
8.4 Расстояние между пластинами
Устанавливают расстояние между пластинами фальцовочного аппарата, равное троекратному значению общей толщины образца, определенной в соответствии с 8.2.
Измеряют расстояние между пластинами в четырех измерительных точках (см. рисунок 1).
8.5 Установка образца
Устанавливают подготовленный в соответствии с 8.3 образец в фальцовочный аппарат так, чтобы скрепленные концы были параллельны шарниру фальцовочной плиты (см. рисунок 1). Помещают открытый фальцовочный аппарат с образцом в холодильную камеру с заданной температурой.
8.6 Фальцовка
После выдержки фальцовочного аппарата с образцом в холодильной камере в течение 1 ч аппарат закрывают в течение 1 с путем перемещения фальцовочной плиты на 90° из вертикального положения в горизонтальное и выдерживают в этом положении в течение 1 с. Процедуру фальцовки осуществляют в холодильной камере.
8.7 Кондиционирование
Образец вынимают из фальцовочного аппарата и выдерживают до достижения комнатной температуры (23 +/- 5) °C.
8.8 Осмотр образца
Образец осматривают в области сгиба с помощью лупы с шестикратным увеличением для выявления наличия или отсутствия трещин, или разрывов.
8.9 Определение температуры гибкости
Для определения температуры гибкости материала повторяют процесс фальцовки в соответствии с 8.6 при различных значениях отрицательных температур. Испытания начинают при температуре минус 40 °C, затем постепенно повышают температуру с шагом 5 °C (минус 35 °C, минус 30 °C, минус 25 °C, минус 20 °C и т.д.) и проводят испытания до отсутствия на образце трещин или разрывов при его осмотре в соответствии с 8.8.
Для каждого значения температуры используют новую серию из четырех образцов.
9 Обработка результатов
За температуру гибкости материала принимают самое низкое значение температуры, при котором на всех испытанных образцах отсутствуют трещины и разрывы.
10 Отчет об испытаниях
Отчет об испытаниях должен содержать:
a) данные, необходимые для идентификации испытуемого материала;
b) ссылку на настоящий стандарт и отклонения от его требований;
c) информацию об отборе образцов в соответствии с разделом 6;
d) информацию о подготовке образцов в соответствии с разделом 7;
e) результаты испытаний в соответствии с разделом 9;
f) информацию о любых отклонениях от стандартной процедуры во время испытания;
g) дату проведения испытаний.
Приложение ДА
(справочное)
СВЕДЕНИЯ О СООТВЕТСТВИИ МЕЖГОСУДАРСТВЕННЫХ СТАНДАРТОВ
ССЫЛОЧНЫМ ЕВРОПЕЙСКИМ РЕГИОНАЛЬНЫМ СТАНДАРТАМ
Таблица ДА.1
Обозначение и наименование ссылочного европейского регионального стандарта
Степень соответствия
Обозначение и наименование межгосударственного стандарта
EN 13416:2001 Материалы гибкие гидроизоляционные. Материалы кровельные и гидроизоляционные битумосодержащие и полимерные (термопластичные или эластомерные) - Правила отбора образцов
IDT
ГОСТ EN 13416-2011 Материалы кровельные и гидроизоляционные гибкие битумосодержащие и полимерные (термопластичные или эластомерные). Правила отбора образцов
EN 1849-2:2001 Материалы гибкие гидроизоляционные. Определение толщины и массы на единицу площади. Часть 2: Материалы кровельные и гидроизоляционные полимерные (термопластичные или эластомерные)
IDT
ГОСТ EN 1849-2-2011 Материалы кровельные и гидроизоляционные гибкие полимерные (термопластичные или эластомерные). Методы определения толщины и массы на единицу площади
Примечание - В настоящей таблице использовано следующее условное обозначение степени соответствия стандартов:
- IDT - идентичные стандарты.