Главная // Актуальные документы // ГОСТ (Государственный стандарт)СПРАВКА
Источник публикации
М.: Стандартинформ, 2011
Примечание к документу
Текст данного документа приведен с учетом
поправки, опубликованной в "ИУС", N 12, 2012;
поправки, опубликованной в "ИУС", N 1, 2021.
Документ
введен в действие с 01.01.2012.
Название документа
"ГОСТ 3.1105-2011. Межгосударственный стандарт. Единая система технологической документации. Формы и правила оформления документов общего назначения"
(введен в действие Приказом Росстандарта от 03.08.2011 N 212-ст)
"ГОСТ 3.1105-2011. Межгосударственный стандарт. Единая система технологической документации. Формы и правила оформления документов общего назначения"
(введен в действие Приказом Росстандарта от 03.08.2011 N 212-ст)
от 3 августа 2011 г. N 212-ст
МЕЖГОСУДАРСТВЕННЫЙ СТАНДАРТ
ЕДИНАЯ СИСТЕМА ТЕХНОЛОГИЧЕСКОЙ ДОКУМЕНТАЦИИ
ФОРМЫ И ПРАВИЛА ОФОРМЛЕНИЯ ДОКУМЕНТОВ ОБЩЕГО НАЗНАЧЕНИЯ
Unified system of technological documentation.
Forms and rules of making general-purpose documents
ГОСТ 3.1105-2011
Группа Т53
Дата введения
1 января 2012 года
Цели, основные принципы и основной порядок проведения работ по межгосударственной стандартизации установлены
ГОСТ 1.0-92 "Межгосударственная система стандартизации. Основные положения" и
ГОСТ 1.2-2009 "Межгосударственная система стандартизации. Стандарты межгосударственные, правила и рекомендации по межгосударственной стандартизации. Правила разработки, принятия, применения, обновления и отмены".
1 РАЗРАБОТАН Федеральным государственным унитарным предприятием "Всероссийский научно-исследовательский институт стандартизации и сертификации в машиностроении" (ФГУП "ВНИИНМАШ"), Автономной некоммерческой организацией "Научно-исследовательский центр CALS-технологий "Прикладная логистика" (АНО НИЦ CALS-технологий "Прикладная логистика")
2 ВНЕСЕН Федеральным агентством по техническому регулированию и метрологии
3 ПРИНЯТ Межгосударственным советом по стандартизации, метрологии и сертификации (Протокол N 39 от 12 мая 2011 г.)
За принятие стандарта проголосовали:
Краткое наименование страны по МК (ИСО 3166) 004-97 | Код страны по МК (ИСО 3166) 004-97 | Сокращенное наименование национального органа по стандартизации |
Азербайджан | AZ | Азстандарт |
Армения | AM | Минэкономики Республики Армения |
Беларусь | BY | Госстандарт Республики Беларусь |
Казахстан | KZ | Госстандарт Республики Казахстан |
Кыргызстан | KG | Кыргызстандарт |
Молдова | MD | Молдова-Стандарт |
Российская Федерация | RU | Росстандарт |
Таджикистан | TJ | Таджикстандарт |
Туркмения | TM | Главгосслужба "Туркменстандартлары" |
Узбекистан | UZ | Узстандарт |
Украина | UA | Госпотребстандарт Украины |
4
Приказом Федерального агентства по техническому регулированию и метрологии от 3 августа 2011 г. N 212-ст межгосударственный стандарт ГОСТ 3.1105-2011 введен в действие в качестве национального стандарта Российской Федерации с 1 января 2012 г.
Информация о введении в действие (прекращении действия) настоящего стандарта публикуется в указателе "Национальные стандарты".
Информация об изменениях к настоящему стандарту публикуется в указателе "Национальные стандарты", а текст изменений - в информационных указателях "Национальные стандарты". В случае пересмотра или отмены настоящего стандарта соответствующая информация будет опубликована в информационном указателе "Национальные стандарты".
Настоящий стандарт устанавливает формы и правила оформления технологических документов общего назначения: титульного листа, технологической инструкции и карты эскизов, разрабатываемых с применением различных методов проектирования.
На основе настоящего стандарта допускается, при необходимости, разрабатывать стандарты с учетом особенностей применения и обращения указанных документов в организации (предприятии).
В настоящем стандарте использованы нормативные ссылки на следующие межгосударственные стандарты:
ГОСТ 2.004-88 Единая система конструкторской документации. Общие требования к выполнению конструкторских и технологических документов на печатающих и графических устройствах вывода ЭВМ
ГОСТ 2.051-2006 Единая система конструкторской документации. Электронные документы. Общие положения
ГОСТ 2.052-2006 Единая система конструкторской документации. Электронная модель изделия. Общие положения
ГОСТ 2.105-95 Единая система конструкторской документации. Общие требования к текстовым документам
ГОСТ 2.301-68 Единая система конструкторской документации. Форматы
ГОСТ 3.1103-2011 Единая система технологической документации. Основные надписи. Общие положения
ГОСТ 3.1118-82 Единая система технологической документации. Формы и правила оформления маршрутных карт
ГОСТ 3.1119-83 Единая система технологической документации. Общие требования к комплектности и оформлению комплектов документов на единичные технологические процессы
ГОСТ 3.1120-83 Единая система технологической документации. Общие правила отражения и оформления требований безопасности труда в технологической документации
ГОСТ 3.1128-93 Единая система технологической документации. Общие правила выполнения графических технологических документов
ГОСТ 3.1129-93 Единая система технологической документации. Общие правила записи технологической информации в технологических документах на технологические процессы и операции
ГОСТ 3.1130-93 Единая система технологической документации. Общие требования к формам и бланкам документов
Примечание. При пользовании настоящим стандартом целесообразно проверить действие ссылочных стандартов в информационной системе общего пользования - на официальном сайте Федерального агентства по техническому регулированию и метрологии в сети Интернет или по ежегодно издаваемому информационному указателю "Национальные стандарты", который опубликован по состоянию на 1 января текущего года, и по соответствующим ежемесячно издаваемым информационным указателям, опубликованным в текущем году. Если ссылочный стандарт заменен (изменен), то при пользовании настоящим стандартом следует руководствоваться заменяющим (измененным) стандартом. Если ссылочный стандарт отменен без замены, то положение, в котором дана ссылка на него, применяется в части, не затрагивающей эту ссылку.
3 Термины, определения и сокращения
3.1 Термины и определения
В настоящем стандарте применен следующий термин с соответствующим определением:
3.1.1
электронный технологический документ: Документ, выполненный как структурированный набор данных, создаваемых программно-техническим средством и имеющий содержательную и реквизитную части, в том числе установленные подписи. Примечание. Установленные подписи в электронном документе выполняют в виде электронной цифровой подписи. |
3.2 Сокращения
В настоящем стандарте приняты следующие сокращения:
- ВМ - ведомость материалов;
- ВО - ведомость оснастки;
- ЕСТД - Единая система технологической документации;
- КЭ - карта эскизов;
- ТИ - технологическая инструкция;
- ТЛ - титульный лист;
- ЭЦП - электронная цифровая подпись.
4.1 Документы ТЛ, ТИ и КЭ могут быть выполнены в бумажной форме и/или в виде электронного технологического документа (см.
формы 1 -
8).
Примечание. При типографском способе выполнения бланка документа допускается обозначение формы (обозначение стандарта и номер формы) указывать в верхнем правом углу над рамкой.
4.3 Электронные технологические документы должны иметь все необходимые данные для вывода документа на средства отображения информации и на бумажный носитель в соответствии с указаниями настоящего стандарта.
4.4 Значения реквизитов (атрибутов) в блоках основной надписи указывают в соответствии с требованиями настоящего стандарта и
ГОСТ 3.1103.
Примечание. Для документов, получаемых на бумажном носителе с использованием алфавитно-цифровых печатающих устройств, необходимо дополнительно руководствоваться указаниями
ГОСТ 2.004.
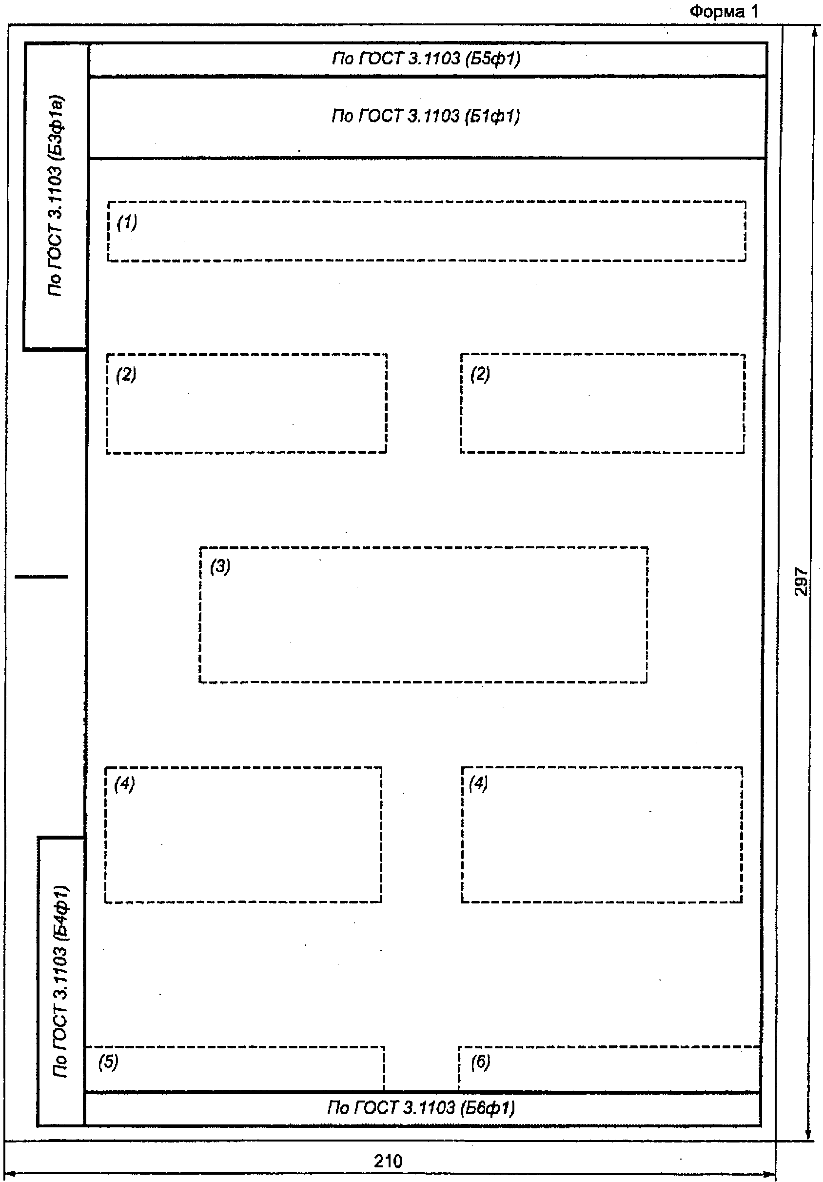
5 Правила оформления титульного листа
5.1 ТЛ применяют при оформлении:
- комплекта технологических документов (далее - комплекта документов) на отдельные технологические процессы (операции), специализированные по методам изготовления или ремонта;
- комплекта технологической документации (далее - комплекта документации) на технологические процессы изготовления или ремонта изделий и (или) их составных частей;
- отдельных технологических документов (далее - документов), если они имеют самостоятельное применение, например ВМ, ВО и т.д.
Допускается оформлять ТЛ на комплект документов (документации) в бумажной форме, оформленный в альбом. При оформлении комплекта документов (документации) в бумажной форме в нескольких альбомах ТЛ оформляют на каждый альбом, при этом поля 1, 2, 3, 4, 5 и 6 ТЛ ко второму и последующим альбомам допускается не заполнять. Конкретный порядок оформления ТЛ к последующим альбомам устанавливает организация, разрабатывающая комплект документов.
5.2 ТЛ является первым листом комплекта документов (документации).
Обязательность применения ТЛ устанавливает организация, разрабатывающая комплект документов.
5.3 Для оформления ТЛ следует применять
формы 1 -
4:
-
форму 1 применяют для комплекта документов (документации), выполненных на формате А4 с вертикальным расположением поля подшивки (или с преобладанием документов, выполненных на таком формате);
-
форму 2 применяют для комплекта документов (документации), выполненных на формате А4 с горизонтальным расположением поля подшивки (или с преобладанием документов, выполненных на таком формате);
-
форму 3 применяют для комплекта документов (документации), выполненных на формате А3 (или с преобладанием документов, выполненных на таком формате);
-
форму 4 применяют для комплекта документов (документации), выполненных методом автоматизированного проектирования (или с преобладанием таких документов в комплекте) на алфавитно-цифровых печатающих устройствах, имеющих максимальное количество шагов печати в строке

, равное 128.
Примечание. При разработке комплекта документов (документации) с применением автоматизированного метода проектирования для документов, имеющих

, равное 70 или 110, допускается соответствующее оформление ТЛ по форме 1 или
2. Разработку документов следует выполнять в соответствии с требованиями
ГОСТ 2.004.
Для бумажных документов допускается выполнять запись данных в ТЛ смешанными способами: типографским, машинописным, рукописным и с помощью резиновых штампов.
5.5 На ТЛ следует указывать:
- на поле 1 - наименование вышестоящей организации, в систему которой входит организация, разработавшая данный комплект (комплекты) документов (документации), например:
МИНИСТЕРСТВО ПРИБОРОСТРОЕНИЯ, СРЕДСТВ АВТОМАТИЗАЦИИ
И СИСТЕМ УПРАВЛЕНИЯ
Допускается записывать:
- ниже наименования вышестоящей организации наименование промышленного объединения, в которое входит организация, разработавшая данный комплект (комплекты) документов (документации), например:
ПРОМЫШЛЕННОЕ ОБЪЕДИНЕНИЕ СОЮЗТОЧМАШПРИБОР
или
ПО МАШТОЧПРИБОР
- наименование организации-разработчика при невозможности внесения этого наименования в графу 1 основной надписи, например:
ПРОИЗВОДСТВЕННОЕ ОБЪЕДИНЕНИЕ ВОЛНА
В этом случае графу 1 основной надписи не заполняют;
- на поле 2 - в левой части поля - должность и подпись лица, согласовавшего комплект (комплекты) документов (документации) от заказчика с указанием, при необходимости, наименования (обозначения) соответствующей организации, в правой части поля - должность и подпись лица, утвердившего комплект (комплекты) документов (документации).
Расположение грифов согласования и утверждения на поле 2 устанавливает разработчик документа;
- на поле 3 - наименование комплекта документов (документации) или наименование вида документа.
Запись данных на поле 3 следует выполнять в следующем порядке:
- на первой строке прописными буквами - наименование комплекта документов (документации) или отдельного вида документа, например:
КОМПЛЕКТ ТЕХНОЛОГИЧЕСКОЙ ДОКУМЕНТАЦИИ
или
КОМПЛЕКТ ПРОЕКТНОЙ ТЕХНОЛОГИЧЕСКОЙ ДОКУМЕНТАЦИИ,
или
КОМПЛЕКТ ДОКУМЕНТОВ,
или
ВЕДОМОСТЬ МАТЕРИАЛОВ
- на второй и последующих строках строчными буквами - для комплекта технологической документации - указание общего понятия изготовления или ремонта изделия (деталей, сборочных единиц) без указания применяемого метода, например:
КОМПЛЕКТ ТЕХНОЛОГИЧЕСКОЙ ДОКУМЕНТАЦИИ
изготовления изделия
- для комплекта документов на технологический процесс (операции) - наименование (или аббревиатуру) вида технологического процесса (операции) по организации производства, например единичный технологический процесс (ЕТП), типовой (групповой) технологический процесс ТТП (ГТП), типовая (групповая) технологическая операция ТО (ГО) и наименование основного технологического метода, применяемого при изготовлении (ремонте) изделий и (или) их составных частей, например:
КОМПЛЕКТ ДОКУМЕНТОВ
на групповой технологический процесс
электролитического покрытия
или
КОМПЛЕКТ ДОКУМЕНТОВ
на ГТП электролитического покрытия
Допускается:
- выполнять запись на второй и последующих строках прописными буквами;
- не указывать наименование (или аббревиатуру) вида технологического процесса по его организации для единичных технологических процессов;
- указывать в скобках вариант исполнения изделий и (или) их составных частей, например:
КОМПЛЕКТ ДОКУМЕНТОВ
на технологический процесс сборки
(тропическое исполнение)
- указывать для сброшюрованных в альбом (альбомы) комплектов документов (документации) после наименования технологического процесса с новой строки наименование и обозначение нескольких изделий (деталей, сборочных единиц), вошедших в данный альбом (альбомы);
- указывать на поле 4 - в левой части поля - должности и подписи лиц, подтвердивших согласование комплекта документов (документации), отдельного вида документа с подразделениями предприятия, отвечающими за отдельные технологические методы, применяемые при изготовлении (ремонте) изделий и (или) их составных частей, например главного металлурга, главного сварщика и т.д.; в правой части поля - должности и подписи лиц, ответственных за разработку комплекта (комплектов) документов (документации) или отдельного вида документа. Справа от каждой подписи проставляют инициалы и фамилию лица, подписавшего документ, а ниже подписи - дату подписания;
Примечания
1 В целях исключения дублирования информации на поле 4 выносят подписи ответственных лиц, не вошедшие в основную надпись основного документа, например, при наличии в маршрутной карте подписи руководителя технологического бюро эту подпись на ТЛ выносить не следует.
Номенклатуру должностных лиц, участвующих в согласовании и разработке документов (документации), устанавливает организация.
Дополнительные визы должностных лиц на бумажном документе, при необходимости, допускается указывать на поле подшивки ТЛ.
2 Запись данных на поле 4 допускается выполнять в одну или две строки.
- указывать на поле 5 номер акта и дату внедрения технологического процесса (операции), свидетельствующего о внедрении комплекта документов (документации) в производство, например:
АКТ N 14-82 от 23.04.09
- делать на поле 6 отметку о соответствии комплекта (комплектов) документов (документации) на технологические процессы отдельным "Положениям" или "Руководствам", действующих в организации (на предприятии).
Примечание. Обязательность и полноту заполнения полей 1, 2, 5 и 6 устанавливает организация (предприятие).
5.6 При необходимости указания данных о номере заказа (договора) соответствующую информацию следует вносить в графу 28 блока Б5
(ГОСТ 3.1103) основной надписи в соответствии с требованиями на уровне отрасли или предприятия.
5.7 Для указания общего количества листов в комплекте документов, альбоме (папке) следует руководствоваться требованиями
ГОСТ 3.1119. Общее количество альбомов (папок) и порядковый номер альбома (папки) следует указывать соответственно в графах 31 и 32 блока Б5 основной надписи.
5.8 Для ТЛ, издаваемого типографским способом, переменные данные на полях 2 - 4 не указывают.
6 Правила оформления технологической инструкции
6.1 Для разработки ТИ следует применять формы 5 и
5а.
6.2 ТИ применяют для описания:
- технологических процессов, имеющих непрерывный характер действия, например технологические процессы металлургического производства, химического производства и т.п.;
- технологических процессов, специализированных по отдельным методам, применяемым для изготовления или ремонта изделий и (или) их составных частей, формы документов которых не установлены стандартами ЕСТД;
- работы, имеющей общий и повторяющийся характер, независимо от состава изготовляемых или ремонтируемых изделий и (или) их составных частей, например приготовление электролитических растворов, клеев, смол, компаундов, смесей материалов и т.д.;
- правил эксплуатации средств технологического оснащения;
- физических и химических явлений, возникающих при выполнении отдельных технологических операций;
- настроечных и регулировочных работ и т.п.
6.3 Отражение требований безопасности труда в ТИ - по
ГОСТ 3.1120.
6.4 Правила оформления ТИ определяются ее назначением.
6.4.1 Описание в ТИ следует выполнять в технологической последовательности выполнения действий и в соответствии с требованиями
ГОСТ 3.1129 и
ГОСТ 3.1130.
6.4.2 При разработке ТИ следует предусматривать вводную часть, в которой должна быть отражена область распространения и назначения данного документа.
6.4.3 В зависимости от содержания текст ТИ может быть разбит на разделы и подразделы. В этом случае нумерацию пунктов следует выполнять в соответствии с требованиями
ГОСТ 2.105.
6.4.4 В целях удобства внесения изменений и обработки информации, содержащейся в ТИ, допускается вводить графу для указания нумерации строк аналогично формам МК по
ГОСТ 3.1118.
6.5 При оформлении ТИ с ТЛ для описания содержания ТИ следует применять
форму 5а с указанием состава исполнителей на поле 4 ТЛ.
6.6 Для сокращения состава документов, применяемых при разработке ТИ, допускается:
- взамен ТЛ применять
форму 5 ТИ, при этом информацию, характерную для ТЛ, размещать по всему полю документа или только в верхней части поля документа с введением, при необходимости, данных, содержащихся на полях 4 - 6, оставляя нижнюю часть для записи основного содержания ТИ;
- выполнять графические иллюстрации, таблицы непосредственно на формах ТИ.
7 Правила оформления карты эскизов
7.1 КЭ применяют для разработки графических иллюстраций, таблиц к текстовым документам и выполняют на форматах по
ГОСТ 2.301.
7.2 Для разработки КЭ следует применять следующие формы:
- 6 и 6а - для формата А4 с вертикальным расположением поля подшивки;
- 7 и 7а - для формата А4 с горизонтальным расположением поля подшивки;
- 8 и 8а - для формата А3.
Указанные формы КЭ приведены на рисунке 1.
Допускается применять для КЭ другие форматы по
ГОСТ 2.301, проставляя на ней следующий по порядку номер формы.
При разработке КЭ, выполненных на форматах:
- меньшем А4 - размеры и расположение блоков основной надписи должны быть аналогичны форме КЭ, выполненной на формате А4 с вертикальным расположением поля подшивки;
- большем А3 - размеры и расположение блоков Б1 - Б3 и Б5 основной надписи
(ГОСТ 3.1103) должны быть аналогичны соответствующим блокам формы КЭ, выполненной на формате А3.
7.3 Оформление КЭ не зависит от применяемых методов проектирования. Требования по оформлению КЭ - по
ГОСТ 3.1128 и
ГОСТ 3.1130.
7.4 При разработке КЭ графу 3 (блок Б1) основной надписи не заполняют.
При разработке одной КЭ к нескольким операциям графы 8 - 11 (блок Б1) основной надписи не заполняют, а номера операций в этом случае проставляют:
- при одном общем эскизе к нескольким операциям - под основной надписью;
- при нескольких эскизах - над каждым эскизом.
7.5 Для сокращения процедуры оформления допускается применять взамен первого или заглавного листа КЭ последующие листы, если КЭ и основной технологический документ разрабатывает один исполнитель. В этом случае на КЭ в графе 4 основной надписи следует проставлять обозначение того документа, к которому КЭ относится, с применением сквозной нумерации листов в пределах данного документа. Например, при описании операции обработки резанием на двух листах ОК эскиз выполнен на
форме 7а, при этом КЭ присваивают обозначение ОК и проставляют порядковый номер листа документа 3.
(рекомендуемое)
ПРИМЕРЫ ОФОРМЛЕНИЯ ТИТУЛЬНОГО ЛИСТА
(рекомендуемое)
ПРИМЕР ОФОРМЛЕНИЯ ТЕХНОЛОГИЧЕСКОЙ ИНСТРУКЦИИ
(рекомендуемое)
ПРИМЕРЫ ОФОРМЛЕНИЯ КАРТЫ ЭСКИЗОВ