Главная // Актуальные документы // ГОСТ (Государственный стандарт)
СПРАВКА
Источник публикации
М.: Издательство стандартов, 1974
Примечание к документу
Документ утратил силу с 1 января 1991 года в связи с изданием Постановления Госстандарта СССР от 27.03.1990 N 622. Взамен введен в действие ГОСТ 6.38-90.

С 1 июля 2003 года до вступления в силу технических регламентов акты федеральных органов исполнительной власти в сфере технического регулирования носят рекомендательный характер и подлежат обязательному исполнению только в части, соответствующей целям, указанным в пункте 1 статьи 46 Федерального закона от 27.12.2002 N 184-ФЗ.

Текст данного документа приведен с учетом поправки, опубликованной в "ИУС", N 5, 1979.

Документ введен в действие с 1 июля 1973 года.
Название документа
"ГОСТ 6.39-72. Государственный стандарт Союза ССР. Система организационно-распорядительной документации. Формуляр-образец"
(введен Постановлением Госстандарта СССР от 11.08.1972 N 1582)

"ГОСТ 6.39-72. Государственный стандарт Союза ССР. Система организационно-распорядительной документации. Формуляр-образец"
(введен Постановлением Госстандарта СССР от 11.08.1972 N 1582)


Содержание


Введен
Постановлением Государственного комитета
стандартов Совета Министров СССР
от 11 августа 1972 г. N 1582
ГОСУДАРСТВЕННЫЙ СТАНДАРТ СОЮЗА ССР
СИСТЕМА ОРГАНИЗАЦИОННО-РАСПОРЯДИТЕЛЬНОЙ ДОКУМЕНТАЦИИ
ФОРМУЛЯР-ОБРАЗЕЦ
System of administrative dokuments
Standard form
ГОСТ 6.39-72
Группа Т54
Дата введения
с 1 июля 1973 года
по 1 июля 1975 года
сроком действия до 1 июля 1978 года
Постановлением Государственного комитета стандартов Совета Министров СССР от 11/VIII 1972 г. N 1582 срок введения установлен с 01.07.73 сроком действия до 01.07.78.
Настоящий стандарт распространяется на организационно-распорядительную документацию центральных и местных органов государственного управления Союза ССР, союзных и автономных республик, а также подведомственных им предприятий, организаций и учреждений и устанавливает порядок расположения и границы реквизитов в формуляре-образце и требования к бланкам документов.
1. ОБЩИЕ ТРЕБОВАНИЯ
1.1. Порядок расположения реквизитов в документах должен соответствовать приведенному в стандарте.
В документах, оформляемых машинописным способом, реквизиты должны располагаться в пределах границ, устанавливаемых формуляром-образцом.
1.2. Устанавливается два формата документов - А4 и А5 по ГОСТ 9327-60.
1.3. Устанавливается для каждого формата документов два варианта расположения реквизитов:
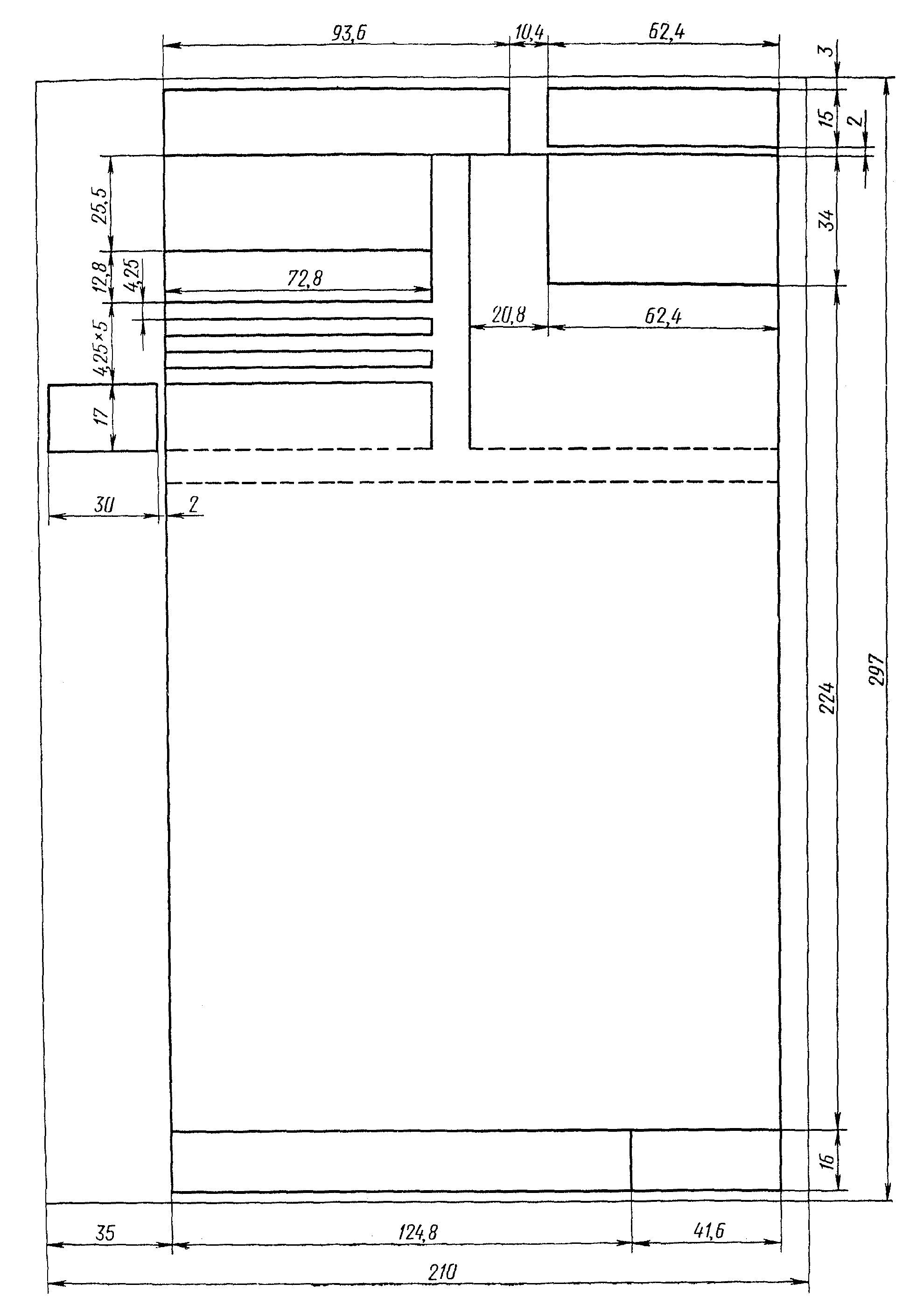
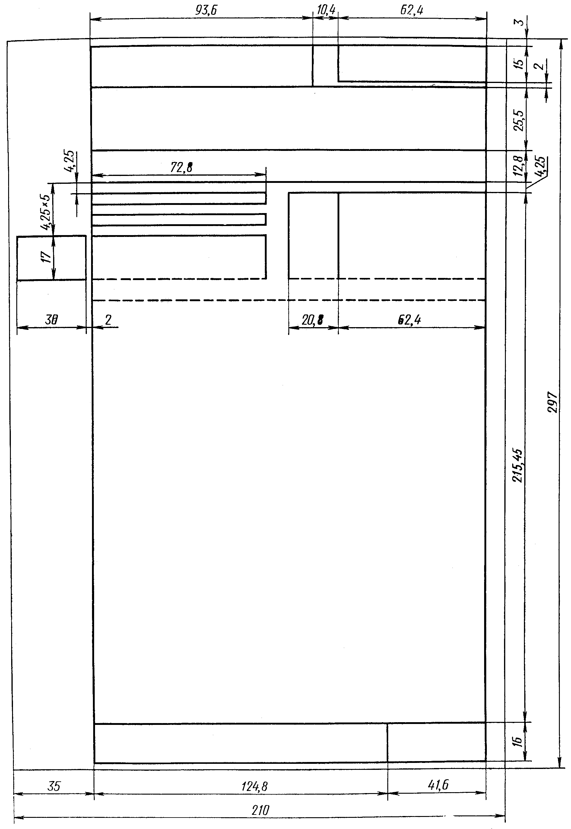
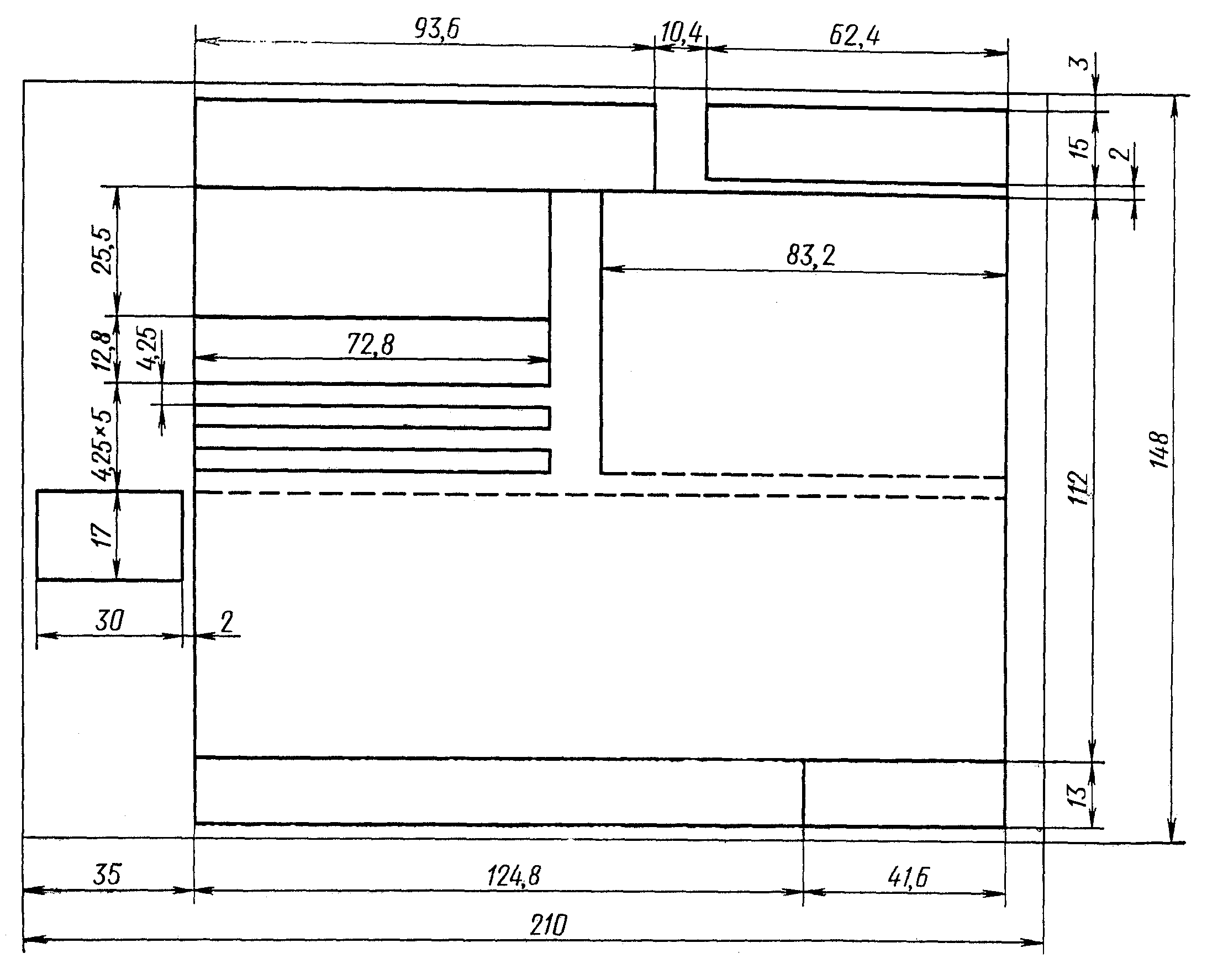
угловой (черт. 1 и 2), размеры приведены на черт. 3 и 4;
Черт. 1
Черт. 2
Черт. 3
Черт. 4
продольный (черт. 5 и 6), размеры приведены на черт. 7 и 8.
Черт. 5
Черт. 6
Черт. 7
Черт. 8
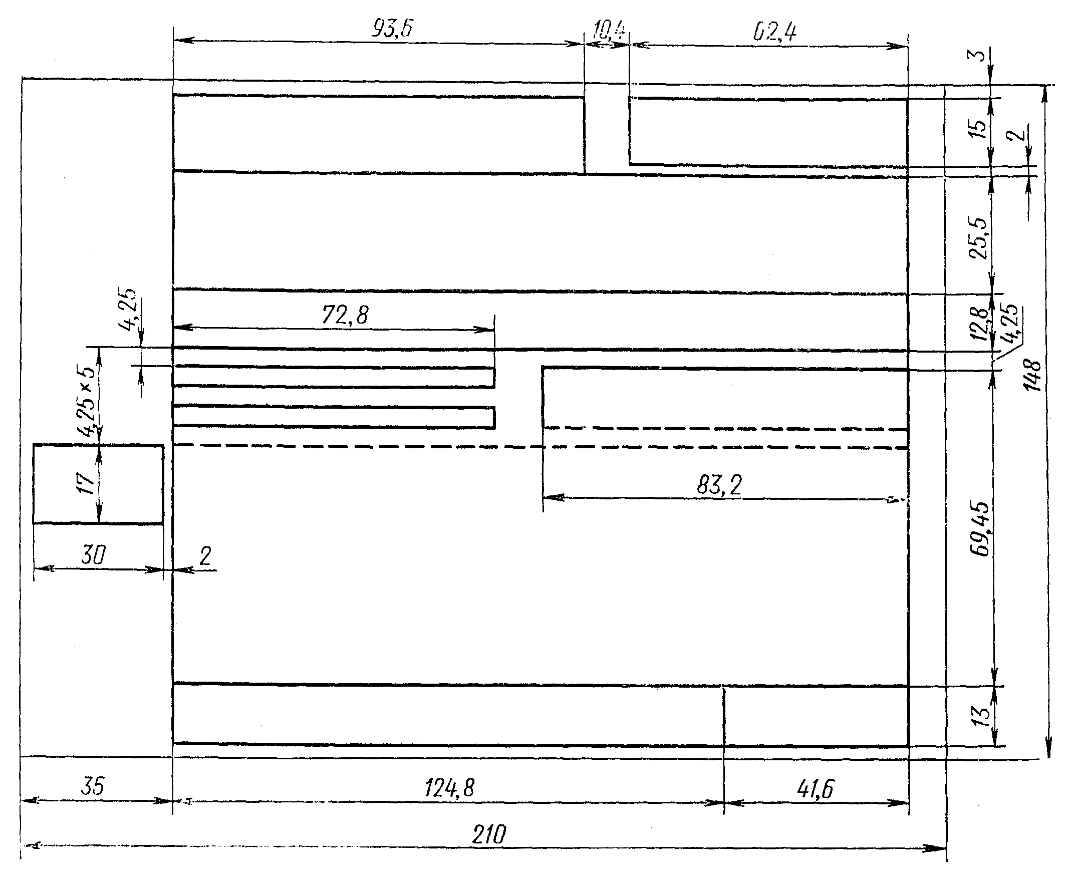
1.4. Формуляр-образец строится на основе конструкционной сетки, состоящей из:
9 вертикальных и 31 горизонтальной линии (для формата А4);
9 вертикальных и 14 горизонтальных линий (для формата А5).
Расстояние между соседними линиями:
вертикальными - 20,8 мм (восемь печатных знаков пишущей машины с шагом письма 2,6 мм по ГОСТ 6913-69);
горизонтальными - 8,5 мм (две строки машинописного текста с расстоянием между основаниями смежных <*> строк 4,25 мм по ГОСТ 6913-69).
--------------------------------
<*> В дальнейшем называется межстрочным интервалом.
1.5. Формуляр-образец имеет поля, мм:
левое - 35;
правое - не менее 8;
верхнее - 20;
нижнее:
для формата А4 - не менее 19;
для формата А5 - не менее 16.
Примечание. При печатании документа на оборотной стороне листа размер левого поля должен быть не менее 8 мм, правого - не менее 36 мм. Размеры верхнего и нижнего полей не меняются.
2. РЕКВИЗИТЫ
2.1. Формуляр-образец устанавливает следующий состав реквизитов и их расположение:
1 - государственный герб СССР или союзной республики;
2 - эмблема организации или предприятия;
3 - изображения наград;
4 - коды;
5 - наименование министерства или ведомства;
6 - наименование учреждения, организации или предприятия;
7 - наименование структурного подразделения;
8 - адресат;,
9 - резолюция;
10 - гриф утверждения;
11 - индекс предприятия связи, почтовый и телеграфный адрес, номер телетайпа (абонентского телеграфа), номер телефона, номер счета в банке;
12 - название вида документа;
13 - дата;
14 - индекс;
15 - ссылка на индекс и дату входящего документа;
16 - место составления или издания;
17 - отметка о контроле;
18 - заголовок к тексту;
19 - текст;
20 - отметка о наличии приложения;
21 - подпись;
22 - гриф согласования;
23 - отметка о заверении копий;
24 - визы;
25 - отметка об исполнении документа и направлении его в дело;
26 - отметка о поступлении.
27 - фамилия исполнителя и номер его телефона
В конкретных документах отдельные реквизиты могут отсутствовать.
Примечания:
1. Номера реквизитов на черт. 1, 2, 5 и 6 соответствуют номерам, указанным выше.
Порядок расположения реквизитов, для которых отводится одна и та же площадь, должен соответствовать последовательности их номеров.
2. В документах, оформляемых на двух или более страницах, реквизиты 20 - 24 располагают на последней странице.
3. На бланках предприятий, кроме наименования министерства, печатается наименование объединения (комбината).
2.2. Из каждой пары реквизитов 8 и 10, 11 и 12, 15 и 16 при оформлении конкретных документов следует использовать только один реквизит.
2.3. Реквизиты 1 - 7, 9 - 17, 25 и 26 должны располагаться в пределах границ, отведенных им на черт. 1, 2, 5 и 6.
2.4. Учреждения, организации и предприятия, подпадающие под действие специальных положений, указывают реквизиты 5, 6 и 7 в соответствии с правилами, устанавливаемыми этими положениями, а реквизит 11 при необходимости впечатывают в бланк документа машинописным способом или указывают в тексте документа.
2.5. В распорядительных документах, а также протоколах и актах, не имеющих грифов утверждения, оформляемых на основе продольного варианта расположения реквизитов, границы реквизитов 13, 14, 16 и 18 допускается продлевать до границы правого поля документа.
2.6. Допускается размещение реквизитов 1, 2, 3 на части площади, занимаемой реквизитами 5, 6 и 7. Реквизит 2 допускается располагать на левом поле документа на уровне реквизита 6.
2.7. Нижние границы реквизитов 8 и 18, отмеченные на чертежах штриховой линией, могут перемещаться в зависимости от объема этих реквизитов.
2.8. Если объем реквизита 8 не позволяет разместить на этой площади реквизит 9, то его допускается располагать на любой свободной площади лицевой стороны листа документа, кроме полей.
3. ТРЕБОВАНИЯ К БЛАНКАМ
3.1. Бланки документов должны конструироваться в соответствии с формуляром-образцом (черт. 9 и 10 <*>).
--------------------------------
<*> Размеры даны в типографских мерах измерения.
Примечание. Сплошными линиями обозначены элементы, печатаемые типографским способом, штриховыми - границы площадей для размещения шаблона или клише.
Черт. 9
Примечание. Сплошными линиями обозначены элементы, печатаемые типографским способом, штриховыми - границы площадей для размещения шаблона или клише.
Черт. 10
3.2. Устанавливаются два вида бланков:
общий бланк (для оформления распорядительных документов, протоколов, актов и др.);
бланк для писем.
Бланки каждого вида могут изготовляться на основе как углового, так и продольного расположения реквизитов.
Образцы бланков даны в Приложении.
3.3. На общих бланках могут печататься реквизиты 1, 2, 3, 5, 6, 7, трафаретные части отдельных реквизитов, ограничительные отметки для полей и реквизитов 4, 8, 10, 13, 14, 16, 17, 18, 25, 26, отметки для фальцевания и пробивки отверстий для подшивки.
Допускается изготовление бланков для отдельных видов документов на основе общего бланка, который дополняется реквизитами 12 и 16.
3.4. На бланках для писем могут печататься реквизиты 1, 2, 3, 5, 6, 7, 11, трафаретные части отдельных реквизитов, ограничительные отметки для полей и реквизитов 4, 8, 13, 14, 15, 17, 18, 25, 26, а также отметки для фальцевания и пробивки отверстий для подшивки.
3.5. На бланках документов учреждений, организаций и предприятий союзных и автономных республик реквизиты 5, 6, 7, 11, 12 и 16 могут печататься на национальном и русском языках. На бланках с угловым расположением реквизитов сначала печатают реквизиты на национальных языках, а ниже - на русском. На бланках с продольным расположением реквизитов слева печатают реквизиты на национальных языках, справа - на русском.
3.6. На бланках документов реквизиты 5, 6, 7, 11, 12, 16 в пределах площади, отводимой им формуляром-образцом, могут располагаться одним из способов:
центрованным (начало и конец каждой строки реквизита равно удалены от границ площади);
фланговым (каждая строка реквизита начинается от левой границы площади).
3.7. Бланки документов должны печататься в одну краску.
Примечание. На бланках документов, предназначенных для механизированной обработки и автоматического считывания информации, допускается нанесение служебных отметок и вспомогательных линий цветом, отличным от цвета основных реквизитов бланка.
3.8. При печатании бланков должны применяться типографские шрифты размером от 6 до 16 кегля по ГОСТ 3489.2-71, ГОСТ 3489.3-71, ГОСТ 3489.4-71, ГОСТ 3489.5-71, -ГОСТ 3489.6-71, ГОСТ 3489.10-71.
3.9. Ограничительные отметки для полей и отдельных реквизитов наносятся на бланк в виде уголков или других обозначений.
3.10. При печатании на бланках трафаретных частей текстов основания смежных строк должны располагаться на расстоянии, кратном межстрочному интервалу пишущих машин.
Приложение
Справочное
Образец общего бланка
Образец бланка для писем
┌─────────────────────────────────────────────────────────────────────────┐
│ │
│ МИНИСТЕРСТВО ПРОМЫШЛЕННОСТИ УТВЕРЖДАЮ │
│ СТРОИТЕЛЬНЫХ МАТЕРИАЛОВ СССР │
│ Заместитель министра │
│ ГЛАВНОЕ УПРАВЛЕНИЕ АСБЕСТО- Р.М.Строев │
│ ЦЕМЕНТНОЙ ПРОМЫШЛЕННОСТИ 22.10.70 │
│ │
│ АКТ │
│ 12.10.69 N ______ │
│ г. Белгород │
│ │
│ Установление производитель- │
│ ности поточно-механизирован- │
│ ной технологической линии по │
│ производству асбестоцемент- │
│ ных волокнистых листов │
│ │
│ Основание: приказ Министра промышленности строительных │
│ материалов от 10.09.69 N 108 │
│ Составлен комиссией в составе: │
│ Председатель: главный технолог управления Д.М.Петров. │
│ Члены комиссии: руководитель лаборатории технологии листовых │
│ материалов НИИпроектасбест С.И.Макаров, ст. │
│ инженер лаборатории Ю.В.Симченко. │
│ Присутствовали: главный инженер Белгородского комбината │
│ М.П.Родин, директор завода N I К.Л.Матвеев. │
│ В период с 10.10.69 по 12.10.69 комиссия провела работу по │
│ установлению фактической производительности технологичес- │
│ кой линии по изготовлению асбестоцементных волокнистых лис- │
│ тов на заводе N I. │
│ Технологическая линия принята в эксплуатацию Государст- │
│ венной комиссией в декабре 1964 г. со средней устойчивой ча- │
│ совой производительностью 800 листов в час. За время, истек- │
│ шее с момента приема линии в эксплуатацию, производительность │
│ линии значительно возросла. Для уточнения производительности │
│ линии и определения качества выпускаемой продукции комиссия │
│ рассмотрела следующие материалы: │
│ 1. Сведения о работе технологической линии за весь пери- │
│ од эксплуатации. │
│ 2. Результаты работы линии за I - III кв. 1969 г. │
│ 3. Физико-механические показатели. │
│ Основываясь на анализе представленных материалов и резуль- │
│ татах работы технологической линии завода N I, комиссия в соот- │
│ ветствии с "Указаниями по проведению одновременного учета на- │
│ личных производственных мощностей действующих промышленных │
│ предприятий" определила часовую производительность линии в │
│ 4000 листов, что соответствует годовой мощности 30 миллионов │
│ листов. │
│ Комиссия предлагает установить мощность технологичес- │
│ кой линии в размере 30 миллионов листов в год. │
│ Составлен в трех экземплярах: │
│ 1-й экземпляр - Главасбесту МПСМ СССР; │
│ 2-й экземпляр - НИИпроектасбесту; │
│ 3-й экземпляр - заводу N I. │
│ │
│ Председатель комиссии: Д.И.Петров │
│ │
│ Члены комиссии: С.И.Макаров │
│ Ю.В.Симченко │
│ │
│ │
│ │
│ │
│ │
└─────────────────────────────────────────────────────────────────────────┘
┌─────────────────────────────────────────────────────────────────────────┐
│ │
│ ВНИИС Заместителю директора института │
│ т. Павлову В.М. │
│ Отдел 401 │
│ │
│ ДОКЛАДНАЯ ЗАПИСКА │
│ 15.05.71 │
│ │
│ │
│ Об оказании помощи отделу в │
│ подготовке сборника статей │
│ │
│ В соответствии с Приказом Госстандарта СССР от 31 января │
│ 1971 г. N 65 ВНИИС подготовлен сборник статей для предстоящего │
│ международного семинара ЮНИДО. │
│ Для качественного выполнения указанной работы, в связи с │
│ отсутствием в отделе высококвалифицированных переводчиков анг- │
│ лийского языка и литературных редакторов, а также необходимостью │
│ перепечатки материалов сборника на наборно-пишущей машине, воз- │
│ никла потребность в привлечении специалистов других отделов. │
│ С заведующим отделом научно-технической информации имеется пред- │
│ варительная договоренность об оказании нам помощи при условии │
│ уменьшения ему объема переводов. │
│ Прошу Вашего указания заведующему ОНТИ выделить для работ │
│ по выпуску сборника переводчика и машинистку ОНТИ. │
│ │
│ Заместитель заведующего В.В.Прокофьев │
│ отделом │
│ │
│ │
│ │
│ │
│ │
└─────────────────────────────────────────────────────────────────────────┘
МЕЖДУНАРОДНАЯ СИСТЕМА ЕДИНИЦ (СИ)
┌─────────────────────────────┬──────────────────────────────────┐
│ Величина │ Единица │
│ ├────────────┬─────────────────────┤
│ │Наименование│ Обозначение │
│ │ ├───────────┬─────────┤
│ │ │ русское │между- │
│ │ │ │народное │
├─────────────────────────────┼────────────┼───────────┼─────────┤
│ Основные единицы │
│Длина │метр │м │m │
│Масса │килограмм │кг │kg │
│Время │секунда │с │s │
│Сила электрического тока │ампер │А │A │
│Термодинамическая температура│кельвин │К │K │
│Кельвина │ │ │ │
│Сила света │кандела │кд │cd │
│ Дополнительные единицы │
│Плоский угол │радиан │рад │rad │
│Телесный угол │стерадиан │ср │sr │
│ Производные единицы │
│Площадь │квадратный │ 2 │ 2 │
│ │метр │м │m │
│Объем, вместимость │кубический │ 3 │ 3 │
│ │метр │м │m │
│Плотность │килограмм на│ 3 │ 3 │
│ │кубический │кг/м │kg/m │
│ │метр │ │ │
│Скорость │метр в │м/с │m/s │
│ │секунду │ │ │
│Угловая скорость │радиан в │рад/с │rad/s │
│ │секунду │ │ │
│Сила; сила тяжести (вес) │ньютон │Н │N │
│Давление; механическое │паскаль │Па │Pa │
│напряжение │ │ │ │
│Работа; энергия; количество │джоуль │Дж │J │
│теплоты │ │ │ │
│Мощность; тепловой поток │ватт │Вт │W │
│Количество электричества; │кулон │Кл │C │
│электрический заряд │ │ │ │
│Электрическое напряжение, │вольт │В │V │
│электрический потенциал, │ │ │ │
│разность электрических │ │ │ │
│потенциалов, электродвижущая │ │ │ │
│сила │ │ │ │
│Электрическое сопротивление │ом │Ом │омега │
│Электрическая проводимость │сименс │См │S │
│Электрическая емкость │фарада │Ф │F │
│Магнитный поток │вебер │Вб │Wb │
│Индуктивность, взаимная │генри │Г │H │
│индуктивность │ │ │ │
│Удельная теплоемкость │джоуль на │Дж/(кг · К)│J/(kg · │
│ │килограмм- │ │K) │
│ │кельвин │ │ │
│Теплопроводность │ватт на │Вт/(м · К) │W/(m · K)│
│ │метр-кельвин│ │ │
│Световой поток │люмен │лм │lm │
│Яркость │кандела на │ 2 │ 2 │
│ │квадратный │кд/м │cd/m │
│ │метр │ │ │
│Освещенность │люкс │ лк │lx │
└─────────────────────────────┴────────────┴───────────┴─────────┘
Множители и приставки для образования десятичных кратных
и дольных единиц и их наименований
┌─────────────────────┬─────────┬────────────────────────────────┐
│Множитель, на который│Приставка│ Обозначение │
│ умножается единица │ ├──────────────┬─────────────────┤
│ │ │ русское │ международное │
├─────────────────────┼─────────┼──────────────┼─────────────────┤
│ 12 │ │ │ │
│ 10 │ тера │ Т │ T │
│ 9 │ │ │ │
│ 10 │ гига │ Г │ G │
│ 6 │ │ │ │
│ 10 │ мега │ М │ M │
│ 3 │ │ │ │
│ 10 │ кило │ к │ k │
│ 2 │ │ │ │
│ 10 │ (гекто) │ г │ h │
│ 1 │ │ │ │
│ 10 │ (дека) │ да │ da │
│ -1 │ │ │ │
│ 10 │ (деци) │ д │ d │
│ -2 │ │ │ │
│ 10 │ (санти) │ С │ c │
│ -3 │ │ │ │
│ 10 │ милли │ м │ m │
│ -6 │ │ │ │
│ 10 │ микро │ мк │ мю │
│ -9 │ │ │ │
│ 10 │ нано │ н │ n │
│ -12 │ │ │ │
│ 10 │ пико │ п │ p │
│ -15 │ │ │ │
│ 10 │ фемто │ ф │ f │
│ -18 │ │ │ │
│ 10 │ атто │ а │ a │
└─────────────────────┴─────────┴──────────────┴─────────────────┘
Примечание: В скобках указаны приставки, которые допускается применять только в наименовании кратных и дольных единиц, уже получивших широкое распространение (например, гектар, декалитр, дециметр, сантиметр).