Главная // Актуальные документы // ГОСТ (Государственный стандарт)
СПРАВКА
Источник публикации
М.: Стандартинформ, 2016
Примечание к документу
Документ включен в Перечень международных и региональных (межгосударственных) стандартов, а в случае их отсутствия - национальных (государственных) стандартов, в результате применения которых на добровольной основе обеспечивается соблюдение требований технического регламента Таможенного союза "О безопасности машин и оборудования" (ТР ТС 010/2011) (Решение Коллегии Евразийской экономической комиссии от 09.03.2021 N 28).

Документ введен в действие с 01.06.2017.
Название документа
"ГОСТ ISO 22242-2016. Межгосударственный стандарт. Машины и оборудование для дорожного строительства и обслуживания дорог. Основные виды. Идентификация и описание"
(введен в действие Приказом Росстандарта от 23.09.2016 N 1206-ст)

"ГОСТ ISO 22242-2016. Межгосударственный стандарт. Машины и оборудование для дорожного строительства и обслуживания дорог. Основные виды. Идентификация и описание"
(введен в действие Приказом Росстандарта от 23.09.2016 N 1206-ст)


Содержание


Введен в действие
Приказом Федерального
агентства по техническому
регулированию и метрологии
от 23 сентября 2016 г. N 1206-ст
МЕЖГОСУДАРСТВЕННЫЙ СТАНДАРТ
МАШИНЫ И ОБОРУДОВАНИЕ ДЛЯ ДОРОЖНОГО СТРОИТЕЛЬСТВА
И ОБСЛУЖИВАНИЯ ДОРОГ
ОСНОВНЫЕ ВИДЫ.
ИДЕНТИФИКАЦИЯ И ОПИСАНИЕ
Road construction and road maintenance machinery
and equipment. Basic types. Identification and description
(ISO 22242:2005, IDT)
ГОСТ ISO 22242-2016
МКС 93.080.10
Дата введения
1 июня 2017 года
Предисловие
Цели, основные принципы и основной порядок проведения работ по межгосударственной стандартизации установлены в ГОСТ 1.0-2015 "Межгосударственная система стандартизации. Основные положения" и ГОСТ 1.2-2015 "Межгосударственная система стандартизации. Стандарты межгосударственные, правила и рекомендации по межгосударственной стандартизации. Правила разработки, принятия, обновления и отмены"
Сведения о стандарте
1 ПОДГОТОВЛЕН Обществом с ограниченной ответственностью "ИЦ "ЦНИП СДМ" (ООО "ИЦ "ЦНИП СДМ") на основе собственного перевода на русский язык международного стандарта, указанного в пункте 5
2 ВНЕСЕН Межгосударственным Техническим комитетом по стандартизации МТК 267 "Строительно-дорожные машины и оборудование"
3 ПРИНЯТ Межгосударственным советом по стандартизации, метрологии и сертификации (протокол от 28 июня 2016 г. N 49)
За принятие проголосовали:
Краткое наименование страны по МК (ИСО 3166) 004-97
Код страны по МК (ИСО 3166) 004-97
Сокращенное наименование национального органа по стандартизации
Армения
AM
Минэкономики Республики Армения
Киргизия
KG
Кыргызстандарт
Россия
RU
Росстандарт
4 Приказом Федерального агентства по техническому регулированию и метрологии от 23 сентября 2016 г. N 1206-ст межгосударственный стандарт ГОСТ ISO 22242-2016 введен в действие в качестве национального стандарта Российской Федерации с 1 июня 2017 г.
5 Настоящий стандарт идентичен международному стандарту ISO 22242:2005 "Машины и оборудование для дорожного строительства и обслуживания дорог. Основные виды. Идентификация и описание" ("Road construction and road maintenance machinery and equipment - Basic types - Identification and description", IDT), включая изменение 1:2013 (Amd.1:2013).
В настоящий стандарт внесены изменения согласно Amd.1:2013 в пунктах 2.10.2, 2.10.3 и 2.10.4.
6 Международный стандарт может быть использован при ежегодной актуализации перечня стандартов, содержащих правила и методы исследований (испытаний), а также стандартов, в результате применения которых на добровольной основе обеспечивается соблюдение требований технического регламента Таможенного союза "О безопасности машин и оборудования"
7 ВВЕДЕН ВПЕРВЫЕ
Информация об изменениях к настоящему стандарту публикуется в ежегодном информационном указателе "Национальные стандарты" (по состоянию на 1 января текущего года), а текст изменений и поправок - в ежемесячном информационном указателе "Национальные стандарты". В случае пересмотра (замены) или отмены настоящего стандарта соответствующее уведомление будет опубликовано в ежемесячном информационном указателе "Национальные стандарты". Соответствующая информация, уведомление и тексты размещаются также в информационной системе общего пользования - на официальном сайте Федерального агентства по техническому регулированию и метрологии в сети Интернет
1. Область применения
Настоящий стандарт идентифицирует и описывает машины и оборудование, которые используются в строительстве и обслуживании автомагистралей, дорог обычного типа (нескоростных дорог), скоростных дорог, взлетно-посадочных полос, площадок и т.д. Настоящий стандарт применяют к специализированным машинам/оборудованию, предназначенным для строительства и обслуживания дорожного покрытия.
2. Машины и оборудование для дорожного строительства
и обслуживания дорог
Наименование
Идентификация/Описание
2.1 Машины и оборудование для стабилизации почвы
Используются для улучшения механических и физических свойств природных почв.
2.1.1 Разбрасыватели для порошкообразных связующих
Мобильная машина, предназначенная для одновременного применения порошкообразных связующих веществ, таких как цемент, известь, зола и т.д., для улучшения или уплотнения почвы.
Примечание 1 - Конструкция разбрасывателя позволяет контролировать скорость движения машины и распределения материала.
Примечание 2 - См. ISO 15689
Рисунок 1 - Разбрасыватели для порошкообразных связующих
2.1.2 Оборудование для смешивания грунтов
Комплект оборудования, предназначенный для смешивания материала и/или порошкообразных связующих, таких как цемент, известь, битумная или асфальтная эмульсия, с грунтом для улучшения механических и физических свойств материала.
Примечание - См. рисунки 2 и 3
2.1.3 Стационарное оборудование для смешивания грунтов
Рисунок 2 - Стационарное оборудование для смешивания грунтов
2.1.4 Передвижное оборудование для смешивания грунтов
Рисунок 3 - Передвижное оборудование для смешивания грунтов
2.1.5 Стабилизатор грунтов
Самоходные, прицепные или транспортируемые машины с функцией распыления, измельчения, аэрации, уплотнения и/или рыхления завезенного материала или материала дорожного покрытия, включая смешивание с одним или несколькими компонентами (уплотняющим раствором, цементом, известью и т.д.).
Примечание 1 - Основной целью стабилизации грунта является улучшение механических и физических свойств материала почвы путем смешивания его с порошкообразными связующими (цемент, известь, битум, эмульсии и т.д.) или уплотняющими растворами.
Примечание 2 - См. ISO 15688.
Рисунок 4 - Колесный стабилизатор грунта с центральным
горизонтальным ротором
Рисунок 5 - Гусеничный стабилизатор грунта с задним
горизонтальным ротором
2.1.6 Водораздатчик
Автомобиль, прицеп или полуприцеп с установленным на него резервуаром для воды и блоком распыления (распределения)
Рисунок 6 - Водораздатчик
2.1.7 Смесительная установка
Мобильная машина, используемая для приготовления растворных смесей.
Примечание - Смесительная установка может быть прицепной или буксируемой стабилизатором грунтов
Рисунок 7 - Смесительная установка
2.2 Машины и оборудование для приготовления и укладки битуминизированного слоя дорожного покрытия
Предназначены для хранения, подогрева, плавки, гомогенизации, транспортной обработки и/или набрызга битумных вяжущих смесей.
2.2.1 Комплекс оборудования с функциями подогрева и плавки битумной смеси
Стационарная или мобильная установка, предназначенная для хранения, подогрева, гомогенизации, перевозки и разгрузки битумной смеси.
Примечание - Комплекс оборудования состоит из:
- изолированного резервуара;
- масляного или газового нагревателя;
- внутреннего смесителя;
- разгрузочного устройства в виде запорного клапана;
- напорного бака или перекачивающего насоса
Рисунок 8 - Мобильный комплекс оборудования с функциями подогрева и плавки битумной смеси
2.2.2 Резервуар для хранения битумных смесей
Стационарный или прицепной изолированный резервуар с подогревом для хранения битумных вяжущих.
Рисунок 9 - Резервуар для хранения битумных смесей
2.2.3 Установка для хранения и подогрева битума
Система, состоящая из котла и изолированных горизонтальных или вертикальных металлических резервуаров или подземных бетонных цистерн, предназначенных для хранения горячего битума.
1 - резервуар с трубопроводом масляного отопления;
2 - масляный котел отопления
Рисунок 10 - Установка для хранения и подогрева битума
2.2.4 Дозатор для битумных смесей
Изолированный резервуар с подогревом, установленный на автомобиль, прицеп или полуприцеп и оснащенный блоком запорного клапана или перекачивающего насоса
Рисунок 11 - Дозатор для битумных смесей
2.2.5 Насос для горячих битумных смесей
Передаточный механизм или крыльчатый насос с возможностью перекачивания горячих битумных смесей.
Примечание - Насос может быть использован на разном оборудовании при дорожном строительстве, например, прицепной бетононасос с дополнительным оборудованием для соединения с резервуаром для смешивания и набрызга битумных смесей
Рисунок 12 - Насос для горячих битумных смесей
2.2.6 Битумно-эмульсионная установка
Стационарная или передвижная установка для производства битумных эмульсий, состоящая из резервуаров - дозаторов для воды, битума и системы гомогенизации.
1 - резервуар - дозатор для воды; 2 - резервуар - дозатор
для битума; 3 - система гомогенизации; 4 - блок отопления;
5 - сливная воронка; 6 - система перекачивания эмульсии;
7 - резервуар для хранения эмульсии;
a) - подача воды; b) - подача битума
Рисунок 13 - Битумно-эмульсионная установка
2.2.7 Разбрасыватели/распылители нижнего битуминизированного слоя дорожного покрытия
Колесная машина, предназначенная для дозированного нанесения битуминизированного слоя дорожного покрытия.
Примечание 1 - Отдельные типы машин определяются в зависимости от заданных рабочих операций и компонентов смеси.
Примечание 2 - См. ИСО 15643
Рисунок 14 - Разбрасыватели/распылители нижнего битуминизированного слоя дорожного покрытия
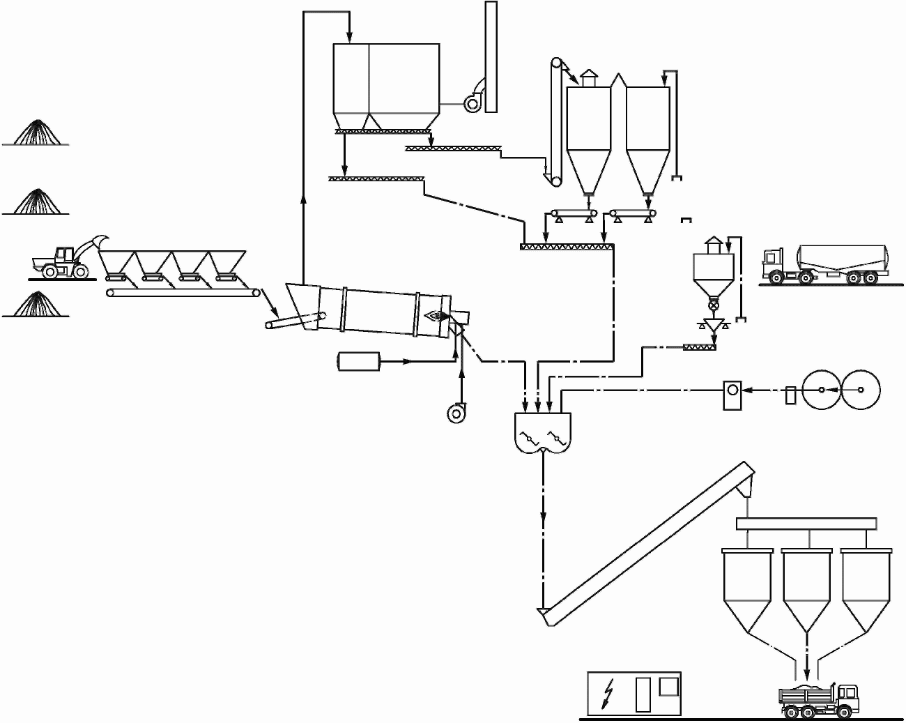
2.3 Машины и оборудование для производства асфальтобетонных смесей
2.3.1 Завод асфальтобетонных смесей
Комплект оборудования для производства асфальтобетонных смесей.
Примечание 1 - В зависимости от характера технологического процесса приготовления смеси установки различаются на цикличные и непрерывного действия.
Примечание 2 - См. ISO 15642.
Рисунок 15 - Завод асфальтобетонных смесей
2.3.2 Завод асфальтобетонных смесей с системой вторичной переработки асфальта
Завод асфальтобетонных смесей с системой вторичной переработки асфальта (RAP) с использованием дополнительного и/или модифицированного оборудования.
Рисунок 16 - Завод асфальтобетонных смесей с системой
вторичной переработки асфальта
2.3.3 Асфальтобетоносмеситель с плавильным устройством
Оборудование, установленное на автомобиль или прицеп, состоящее из плавильной печи и горизонтально вращающегося смешивающего механизма и предназначенное для выполнения малогабаритных работ по устройству дорожного покрытия
Рисунок 17 - Асфальтобетоносмеситель
с плавильным устройством
2.4 Машины и оборудование для асфальтобетонного дорожного строительства
Применяются для строительства асфальтобетонных дорожных покрытий и мастичных асфальтовых покрытий.
2.4.1 Оборудование для пневматической очистки дорожных покрытий
Самоходная машина для очистки дорожного покрытия и тротуаров
Рисунок 18 - Оборудование для пневматической очистки дорожных покрытий
2.4.2 Щебнеразбрасыватель
Машина, предназначенная для равномерного разбрасывания щебенки по поверхности дорожного покрытия на заданный уровень.
Примечание 1 - Щебнеразбрасыватели в зависимости от принципа работы делятся на три типа:
- прицепные;
- самоходные;
- самосвалы.
Примечание 2 - См. ISO 15644
Рисунок 19 - Щебнеразбрасыватель
2.4.3 Асфальтоукладчик
Самоходная колесная или гусеничная машина, предназначенная для получения, транспортировки, распределения, профилирования и уплотнения асфальтобетонной смеси дорожного покрытия
Рисунок 20 - Асфальтоукладчик
2.4.4 Гудронатор
Мобильная машина, предназначенная для получения, распределения и укладки битумных смесей на дорожное покрытие
Рисунок 21 - Гудронатор
2.4.5 Битумовоз
Машина, смонтированная на грузовике или прицепе, состоящая из горизонтального или вертикального смесителя для битумного покрытия с прямым или косвенным нагревом
Рисунок 22 - Битумовоз
2.4.6 Передвижной конвейер для подачи асфальтовой смеси в асфальтоукладчик
Машина, предназначенная для хранения и подачи укладываемого материала в асфальтоукладчик.
Рисунок 23 - Передвижной конвейер для подачи
асфальтовой смеси в асфальтоукладчик
2.5 Машины и оборудование для строительства бетонных конструкций дорожного покрытия
Применяются для дорожного строительства и обслуживания дорог с бетонным покрытием.
2.5.1 Распределитель бетонной смеси/бетоноукладчик
Мобильная или управляемая идущим рядом оператором машина, предназначенная для распределения бетонной смеси, которую доставляют самосвалами в неподвижную опалубку
Рисунок 24 - Распределитель бетонной смеси/бетоноукладчик
2.5.2 Бетоноукладчик/бетоноотделочная машина
Мобильная машина, предназначенная для уплотнения и отделки (заглаживания) бетонной смеси внутри неподвижной опалубки.
Рисунок 25 - Бетоноукладчик/бетоноотделочная машина
2.5.3 Машина для устройства дорожного покрытия со скользящей опалубкой
Мобильная машина, предназначенная для нанесения на дорожную поверхность слоев строительных материалов, таких как бетонные смеси, или для строительства профилированных конструкций.
Рисунок 26 - Машина для устройства дорожного покрытия
со скользящей опалубкой
2.5.4 Нарезчик швов
Самоходная машина с или без рабочего места оператора, предназначенная для нарезки швов в асфальтобетоне, бетоне и аналогичных материалах
Рисунок 27 - Нарезчик швов
2.5.5 Машина для герметизации швов
Мобильная машина, управляемая идущим рядом оператором, предназначенная для очистки и продувки швов сжатым воздухом и заполнения его герметизирующим составом
Рисунок 28 - Машина для герметизации швов
2.5.6 Резательно-уплотняющая машина
Машина, предназначенная для удаления выступающих швов и кромок трамбовкой или срезанием
Рисунок 29 - Резательно-уплотняющая машина
2.5.7 Машина для укладки дорожного покрытия камнем Машина для укладки дорожного покрытия плиткой
Самоходная машина, предназначенная для строительства дорожного покрытия и оснащенная стрелой и захватом для поднятия комплекта камня/плитки и расположения ее в установленном месте для последующей укладки.
Примечание - Машина может быть оснащена устройством для укладки бордюрного камня
Рисунок 30 - Машина для укладки дорожного покрытия камнем/плиткой
2.5.8 Выравниватель бетонной смеси
Мобильная машина, предназначенная для выравнивания и уплотнения распределенной бетонной смеси внутри неподвижной опалубки.
Рисунок 31 - Выравниватель бетонной смеси
2.5.9 Распределитель бетона
Мобильная машина, предназначенная для приема и распределения бетонной смеси на заданную ширину и высоту с учетом ее дальнейшей обработки бетоноукладочной машиной
Рисунок 32 - Распределитель бетона
2.5.10 Профилировочная машина
Мобильная машина с вращающимися режущими дисками, предназначенная для срезки и выравнивания основания грунта дороги или аэродромных площадок перед устройством дорожного основания.
Примечание - В конструкцию машины может входить конвейер, предназначенный для погрузки в грузовой автомобиль или для сбрасывания в валик лишнего материала.
Рисунок 33 - Профилировочная машина
2.5.11 Машина для транспортировки бетонной смеси
Мобильная машина, предназначенная для получения от смесительных установок бетонной смеси и доставки ее к месту укладки.
Рисунок 34 - Машина для транспортировки бетонной смеси
2.6 Машины и оборудование для отделочных работ
Машины, предназначенные для формирования склонов, бурения грунта и нанесения дорожной разметки.
2.6.1 Машина для формирования склонов
Самоходная машина, оснащенная телескопической стрелой и ковшом для формирования склонов набережных и канав
Рисунок 35 - Машина для формирования склонов
2.6.2 Машина для бурения грунта Шнековый бур
Прицепной или смонтированный на автомобиле буровой узел, предназначенный для сверления в грунте скважин для установки дорожных знаков, ограждений, акустических экранов и т.д.
Примечание - Стойки ограждений обычно устанавливаются специально разработанными для этих целей машинами
Рисунок 36 - Машина/шнековый бур для бурения грунта
2.6.3 Машина для нанесения дорожной разметки
Самоходная или управляемая идущим рядом оператором машина для нанесения дорожных разметок на дорожное покрытие.
Примечание 1 - Нанесение светоотражающей краски обычно производят пульверизатором при движении машины в направлении потока, движущегося по полосе.
Примечание 2 - Также машина предназначена для нанесения линий из структурных материалов, например микростеклошариков
Рисунок 37 - Машина для нанесения дорожной разметки
2.7 Машины для чистки дорожного покрытия
Мобильные машины, предназначенные для уборки мусора, отвального грунта и пыли на участках дорожного покрытия.
Примечание - Для выполнения функции чистки машина оборудована механизмом очистки - общее определение для всего чистящего оборудования, такого как щетки, метлы, пневматическое и/или механическое оборудование, промывочные и моечные машины высокого давления. Дополнительное оборудование может постоянно крепиться на машине, быть съемным или быть смонтировано на специально сконструированном шасси
2.7.1 Уборочная машина
Самоходная машина или смонтированное на автомобильном шасси оборудование, предназначенное для чистки участков дороги при движении машины в направлении движения потока.
Примечание - Рабочее оборудование - щетки и всасывающий шланг. Система загрузки мусора в накопительный бункер может быть пневматическая или механическая
Рисунок 38 - Уборочная машина
2.7.2 Уборочная машина с пневматической системой загрузки мусора
Уборочная машина, оснащенная пневматической системой загрузки мусора.
Примечание - Рабочее оборудование расположено в передней или центральной части транспортного средства
Рисунок 39 - Уборочная машина
с пневматической системой загрузки
мусора
2.7.3 Уборочная машина с механической системой загрузки мусора
Уборочная машина с механической системой загрузки мусора, с цилиндрической горизонтальной щеткой или щеткой-транспортером
Рисунок 40 - Уборочная машина с механической системой загрузки мусора
2.7.4 Поливомоечная машина
Поливомоечное автотранспортное средство со смонтированным резервуаром и системой распыления воды, предназначенное для мойки дорожного покрытия, тротуаров и дорожного оборудования.
Примечание - Распыляющие сопла расположены таким образом, что струя воды направлена вперед и в обе стороны от распылителя. Машина может быть снабжена распылительным трубопроводом, предназначенным для мойки дорожного оборудования (дорожные знаки, ограждения, стены туннеля)
Рисунок 41 - Поливомоечная машина
2.7.5 Моечная машина высокого давления с пневматической загрузкой мусора
Резервуар с водой, смонтированный на автотранспортном средстве с распыляющими воду соплами высокого давления и шланга всасывания, расположенного в центральной части шасси
Рисунок 42 - Моечная машина высокого давления с пневматической загрузкой мусора
2.7.6 Подметально-моющая машина
Самоходная машина, предназначенная для очистки дорожного покрытия от земли/щебня и мусора с помощью струи воды и цилиндрической горизонтальной щетки
Рисунок 43 - Подметально-моющая машина
2.7.7 Съемный кузов для автомобильных перевозок
Контейнер для хранения мусора, оснащенный откидными опорами и приспособлениями для расположения на автотранспортном средстве
Рисунок 44 - Съемный кузов для автомобильных перевозок
2.7.8 Чистящая машина
Машина, предназначенная для чистки дорожного оборудования, например, столбиков, дорожных знаков на стенах тоннеля.
Примечание - Чистящая машина оснащена различными насадками функционального назначения для чистки дорожных столбиков, дорожных знаков, знаков на стенах туннелей
Рисунок 45 - Чистящая машина
2.8 Машины и оборудование для удаления сорной растительности
Самоходная машина или прицепное оборудование.
2.8.1 Машина для мульчирования
Оборудование, смонтированное на автотранспортном средстве, работающее параллельно и плотно к грунту и предназначенное для скашивания и/или измельчения растительности
Рисунок 46 - Машина для мульчирования
2.8.2 Косилка
Машина для скашивания растительности, работающая параллельно и плотно к грунту
Рисунок 47 - Косилка
2.8.3 Машина для срезания кустов на обочинах дорог
Оборудование, смонтированное на автотранспортном средстве и предназначенное для срезания кустарников и трав
Рисунок 48 - Машина для срезания кустов на обочинах дорог
2.8.4 Машина для очистки канав
Машина, смонтированная на автотранспортном средстве, оборудованная стрелой с роторным рабочим органом для очистки канав
Рисунок 49 - Машина для очистки канав
2.8.5 Косилка для обочин
Машина, смонтированная на автотранспортном средстве с навесным оборудованием для удаления растительности на обочинах дорог.
Примечание - Конструкции навесного оборудования косилок разнообразны. Косилка, изображенная на рисунке 51, предназначена только для удаления растительности. Косилки, оснащенные ленточным конвейером, транспортируют срезанный материал в самосвал. Косилки, оснащенные пневматической установкой, загрузки срезанного материала транспортируют его в прицеп
Рисунок 50 - Косилка для обочин
2.8.6 Машина для удаления растительности
Машина для механического удаления растительности на асфальтобетонных покрытиях с помощью вращающихся щеток
Рисунок 51 - Машина для удаления растительности
2.9 Машины и оборудование для зимнего содержания дорог
2.9.1 Снегоочистительный отвал
Навесное оборудование к транспортному средству, предназначенное для очистки проезжей части от снега, льда и грязи и обеспечивающее отбрасывание снега на обочину.
Примечание - В зависимости от конструкции отвала, отбрасывание снега и льда на обочину может обеспечиваться как в обе стороны дороги, так и в одну сторону
Рисунок 52 - Снегоочистительный отвал
2.9.2 Снегоуборочная машина с вращающимся шнеком (шнеками) Роторный снегоочиститель
Навесное оборудование к транспортному средству, предназначенное для забора снега шнеком или ротором к центру ковша и выбрасывание его через выпускной канал в сторону.
Примечание - Типы навесного оборудования снегоуборочной машины:
- плужно-роторный;
- шнеко-роторный (два выпускных канала и три фрезы);
- шнеко-роторный (один выпускной канал и два шнека);
- плужный с выпускным каналом (плужно-роторный и выпускной канал)
Рисунок 53 - Снегоуборочная машина
с вращающимся шнеком (шнеками)/
роторный снегоочиститель
2.9.3 Распределитель песка и противогололедных материалов
Самоходный, прицепной или смонтированный на автотранспортном средстве распределитель, предназначенный для равномерного разбрасывания песка или реагента по всей ширине дорожного покрытия в целях поддержания или улучшения состояния дорожного покрытия.
Примечание - Типы распределителей:
- шнековый конвейер;
- ленточный конвейер
Рисунок 54 - Распределитель песка и противогололедных материалов
2.9.4 Снегоуборочный погрузчик
Самоходная или прицепная машина, предназначенная для забора снега на обочинах, сваленного снегоуборочными машинами
Рисунок 55 - Снегоуборочный погрузчик
2.10 Машины и оборудование для ремонта дорожных покрытий
Предназначены для ремонта и восстановления дорожных покрытий.
2.10.1 Дорожная фреза
Планировщик
Мобильная машина, предназначенная для срезания и измельчения верхнего слоя дорожного покрытия.
Примечание - См. ISO 15645.
Рисунок 56 - Дорожная фреза/планировщик
2.10.2 Асфальторазогреватель
Самоходная машина, предназначенная для разогрева и пластифицирования асфальтового дорожного покрытия с целью его повторной переработки. См. 2.10.3.
Рисунок 57 - Асфальторазогреватель
(Измененная редакция, Cor.1:2013)
2.10.3 Горячий ресайклер/рециклер
Самоходная машина, используемая для восстановления крупных участков дорожного покрытия с использованием переработанного асфальтобетона и добавлением новых вяжущих.
Примечание - Конструкция машины включает нагревающий блок, резервуар для хранения новых вяжущих, измельчитель, смеситель, конвейер и распределитель.
Рисунок 58 - Горячий ресайклер/рециклер
(Измененная редакция, Cor.1:2013)
2.10.4 Валковый элеватор
Машина, предназначенная для снятия материала дорожного покрытия и транспортирования его в бетоноукладчик.
Примечание - Валок расположен в передней части машины и предназначен для непрерывной переработки материала.
Рисунок 59 - Валковый элеватор
(Измененная редакция, Cor.1:2013)
2.10.5 Расширитель дорог
Мобильная машина с поперечным конвейером для транспортировки и уплотнения материала дорожного покрытия на обочине дороги.
Рисунок 60 - Расширитель дорог
2.10.6 Машина для ремонта дорожного покрытия
Установка, смонтированная на автотранспортном средстве, предназначенная для быстрого ремонта поврежденного дорожного покрытия.
Примечание 1 - Применяется для:
- очистки поврежденного участка сжатым воздухом;
- обработки клеящим смазочным материалом;
- заполнения битумной смесью (или эмульсией) посредством сжатого воздуха;
- покрытия верхнего слоя сухим заполнителем.
Примечание 2 - Может использоваться для ремонта повреждений на больших дорогах (см. 2.10.7)
Рисунок 61 - Машина для ремонта дорожного покрытия
2.10.7 Распределитель/укладчик битума и смесей
Автотранспортное средство или комплект прицепных установок для быстрого ремонта и обновления дорожного покрытия.
1 - битумный резервуар; 2 - разбрасыватель щебенки;
3 - каток; 4 - разбрызгиватель битума
Рисунок 62 - Распределитель/укладчик битума и смесей
2.10.8 Распределитель битумной эмульсии/укладчик холодного микроасфальта
Машина, предназначенная для нанесения тонкого слоя холодного микроасфальта на дорожное покрытие для улучшения его физических свойств.
Примечание - Холодный микроасфальт изготавливают путем смешивания в машине мелких связующих компонентов размером до 1,5 мм
Рисунок 63 - Распределитель битумной
эмульсии/укладчик холодного
микроасфальта
2.10.9 Дорожная фреза
Машина, предназначенная для фрезерования швов и трещин.
Примечание - Оснащение дорожных фрез зависит от типа выполняемых работ и обрабатываемого дорожного покрытия. Фреза может управляться идущим оператором или приводным двигателем (двигателем внутреннего сгорания или электродвигателем)
Рисунок 64 - Дорожная фреза
2.10.10 Шероховальная машина для дорожных покрытий
Машина, предназначенная для придания шероховатости дорожным покрытиям.
Примечание - Для придания шероховатости обычно используют фрезерное оборудование
2.10.11 Машина для удаления дорожной разметки
Машина, предназначенная для удаления с дорожных покрытий окрашенных знаков.
Примечание - Для удаления может быть использовано фрезерное оборудование, специальные газовые горелки и водоструйные машины
БИБЛИОГРАФИЯ
[1]
ISO 3339-0:1986 Tractors and machines for agriculture and forestry - Classification and terminology - Part 0: Classification system and classification (Тракторы и машины для сельского и лесного хозяйства. Классификация и терминология. Часть 0. Система классификации и классификация)
[2]
ISO 6165:1997 Earth-moving machinery - Basic types - Vocabulary (Машины землеройные. Основные типы. Идентификация, термины и определения)
[3]
ISO 6747:1998 Earth-moving machinery - Tractors-dozers - Terminology and commercial specifications (Машины землеройные. Тракторные бульдозеры. Терминология и торговые технические условия)
[4]
ISO 7131:1997 Earth-moving machinery - Loaders - Terminology and commercial specifications (Машины землеройные. Погрузчики. Терминология и торговые технические условия)
[5]
ISO 7132:1990 Earth-moving machinery - Dumpers - Terminology and commercial specifications (Машины землеройные. Самосвалы. Терминология и торговые технические условия)
[6]
ISO 7133:1994 Earth-moving machinery - Tractor scrapers - Terminology and commercial specifications (Машины землеройные. Тракторные скреперы. Терминология и торговые технические условия)
[7]
ISO 7134:1993 Earth-moving machinery - Graders - Terminology and commercial specifications (Машины землеройные. Автогрейдеры. Терминология и торговые технические условия)
[8]
ISO 8811 Earth-moving machinery - Rollers and compactors - Terminology and commercial specifications (Машины землеройные. Катки и уплотнители. Терминология и технические условия для торговых операций)
[9]
ISO 11375:1998 Building construction machinery and equipment - Terms and definitions (Машины и оборудование строительные. Термины и определения)
[10]
ISO 15642:2003 Road construction and maintenance equipment - Asphalt mixing plants - Terminology and commercial specifications (Оборудование для строительства и содержания дорог в исправности. Смесительные установки для асфальта. Терминология и торговые спецификации)
[11]
ISO 15643:2002 Road construction and maintenance equipment - Bituminous binder spreaders/sprayers - Terminology and commercial specifications (Оборудование для строительства и технического обслуживания дорог. Разбрасыватели/распылители нижнего битуминизированного слоя дорожного покрытия. Терминология и эксплуатационные характеристики)
[12]
ISO 15644:2002 Road construction and maintenance equipment - Chippings spreaders - Terminology and commercial specifications (Оборудование дорожное строительное и эксплуатационное. Разбрасыватели щебенки. Терминология и эксплуатационные требования)
[13]
ISO 15645:2002 Road construction and maintenance equipment - Road milling machinery - Terminology and commercial specifications (Оборудование дорожное строительное и эксплуатационное. Дорожные механизмы для измельчения. Терминология и эксплуатационные требования)
[14]
ISO 15688:2003 Road construction and maintenance equipment - Soil stabilizers - Terminology and commercial specifications (Оборудование для строительства и содержания дорог в исправности. Стабилизаторы грунта. Терминология и торговые спецификации)
[15]
ISO 15689:2003 Road construction and maintenance equipment - Powder binder spreaders - Terminology and commercial specifications (Оборудование для сооружения и содержания дорог. Разбрасыватели для порошкообразных связующих. Терминология и коммерческие технические условия)
[16]
ISO 16039:2004 Road construction and maintenance equipment - Slipform pavers - Definitions and commercial specifications (Дорожные конструкции и оборудование для технического обслуживания. Машины для устройства дорожного покрытия со скользящей опалубкой. Определения и технические требования)
[17]
EN 13019 Machines for road surface cleaning - Safety requirements (Машины для очистки дорожных покрытий. Требования безопасности)
[18]
EN 13020 Road surface treatment machines - Safety requirements (Машины для устройства, ремонта и содержания дорожных покрытий. Требования безопасности)
[19]
EN 13021 Winter service machines - Safety requirements (Машины для зимнего содержания дорог. Требования безопасности)
[20]
EN 13524 Highway maintenance machines - Safety requirements (Машины для содержания автомобильных дорог. Требования безопасности)
[21]
EN 15059 Snow grooming equipment - Safety requirements (Оборудование для очистки снега. Требования безопасности)