Главная // Актуальные документы // ГОСТ (Государственный стандарт)
СПРАВКА
Источник публикации
М.: ФГБУ "РСТ", 2022
Примечание к документу
Документ введен в действие с 01.02.2023.
Название документа
"ГОСТ EN 14596-2020. Межгосударственный стандарт. Цистерны для перевозки опасных грузов. Рабочее оборудование для цистерн. Предохранительный клапан сброса избыточного давления"
(введен в действие Приказом Росстандарта от 05.09.2022 N 876-ст)

"ГОСТ EN 14596-2020. Межгосударственный стандарт. Цистерны для перевозки опасных грузов. Рабочее оборудование для цистерн. Предохранительный клапан сброса избыточного давления"
(введен в действие Приказом Росстандарта от 05.09.2022 N 876-ст)


Содержание


Введен в действие
Приказом Федерального агентства
по техническому регулированию
и метрологии
от 5 сентября 2022 г. N 876-ст
МЕЖГОСУДАРСТВЕННЫЙ СТАНДАРТ
ЦИСТЕРНЫ ДЛЯ ПЕРЕВОЗКИ ОПАСНЫХ ГРУЗОВ
РАБОЧЕЕ ОБОРУДОВАНИЕ ДЛЯ ЦИСТЕРН
ПРЕДОХРАНИТЕЛЬНЫЙ КЛАПАН СБРОСА ИЗБЫТОЧНОГО ДАВЛЕНИЯ
Tanks for transport of dangerous goods. Service equipment
for tanks. Overpressure relief valve
(EN 14596:2018,
Tanks for transport of dangerous goods - Service equipment
for tanks - Emergency pressure relief valve, IDT)
ГОСТ EN 14596-2020
МКС 13.300;
23.020.20;
23.060.40
Дата введения
1 февраля 2023 года
Предисловие
Цели, основные принципы и общие правила проведения работ по межгосударственной стандартизации установлены ГОСТ 1.0 "Межгосударственная система стандартизации. Основные положения" и ГОСТ 1.2 "Межгосударственная система стандартизации. Стандарты межгосударственные, правила и рекомендации по межгосударственной стандартизации. Правила разработки, принятия, обновления и отмены"
Сведения о стандарте
1 ПОДГОТОВЛЕН Научно-производственным республиканским унитарным предприятием "Белорусский государственный институт стандартизации и сертификации" (БелГИСС) на основе собственного перевода на русский язык англоязычной версии стандарта, указанного в пункте 5
2 ВНЕСЕН Государственным комитетом по стандартизации Республики Беларусь
3 ПРИНЯТ Межгосударственным советом по стандартизации, метрологии и сертификации по результатам голосования в АИС МГС (протокол от 30 октября 2020 г. N 134-П)
За принятие проголосовали:
Краткое наименование страны по МК (ИСО 3166) 004-97
Код страны по МК (ИСО 3166) 004-97
Сокращенное наименование национального органа по стандартизации
Беларусь
BY
Госстандарт Республики Беларусь
Киргизия
KG
Кыргызстандарт
Россия
RU
Росстандарт
Таджикистан
TJ
Таджикстандарт
Узбекистан
UZ
Узстандарт
4 Приказом Федерального агентства по техническому регулированию и метрологии от 5 сентября 2022 г. N 876-ст межгосударственный стандарт ГОСТ EN 14596-2020 введен в действие в качестве национального стандарта Российской Федерации с 1 февраля 2023 г.
5 Настоящий стандарт идентичен европейскому стандарту EN 14596:2018 "Цистерны для перевозки опасных грузов. Рабочее оборудование для цистерн. Предохранительный клапан сброса давления" ("Tanks for transport of dangerous goods - Service equipment for tanks - Emergency pressure relief valve", IDT).
Европейский стандарт разработан Техническим комитетом CEN/TC 296 "Цистерны для перевозки опасных грузов" Европейского комитета по стандартизации (CEN).
Наименование настоящего стандарта изменено относительно наименования указанного европейского стандарта для приведения в соответствие с ГОСТ 1.5 (подраздел 3.6).
При применении настоящего стандарта рекомендуется использовать вместо ссылочных международных стандартов соответствующие им межгосударственные стандарты, сведения о которых приведены в дополнительном приложении ДА
6 ВВЕДЕН ВПЕРВЫЕ
Информация о введении в действие (прекращении действия) настоящего стандарта и изменений к нему на территории указанных выше государств публикуется в указателях национальных стандартов, издаваемых в этих государствах, а также в сети Интернет на сайтах соответствующих национальных органов по стандартизации.
В случае пересмотра, изменения или отмены настоящего стандарта соответствующая информация будет опубликована на официальном интернет-сайте Межгосударственного совета по стандартизации, метрологии и сертификации в каталоге "Межгосударственные стандарты"
Введение
Европейский стандарт разработан Техническим комитетом по стандартизации CEN/TC 296 "Цистерны для перевозки опасных грузов" Европейского комитета по стандартизации (CEN), секретариатом которого руководит AFNOR.
Предохранительный клапан сброса избыточного давления позволяет удалять пары из отсека цистерны при избыточном давлении.
Кроме того, предохранительный клапан сброса избыточного давления может выполнять функции закрытия и открытия крышки заправочной горловины, как указано в EN 13314 [1].
Предохранительный клапан сброса избыточного давления установлен на цистернах с опорожнением самотеком и не должен рассматриваться как предохранительный клапан цистерны высокого давления, как это определено в ADR [2].
Функцию предохранительного клапана сброса избыточного давления также может выполнять крышка заправочной горловины согласно EN 13314.
Настоящий стандарт является частью серии стандартов под общим названием "Цистерны для перевозки жидких опасных грузов. Рабочее оборудование для цистерн".
Данная серия включает в себя следующие стандарты:
EN 13081 Tanks for transport of dangerous goods - Service equipment for tanks - Vapour collection adaptor and coupler (Цистерны для перевозки опасных грузов. Рабочее оборудование для цистерн. Переходник и соединитель для паросборника);
EN 13082 Tanks for transport of dangerous goods - Service equipment for tanks - Vapour transfer valve (Цистерны для перевозки опасных грузов. Рабочее оборудование для цистерн. Клапан отвода паров);
EN 13083 Tanks for transport of dangerous goods - Service equipment for tanks - Adaptor for bottom loading and unloading (Цистерны для перевозки опасных грузов. Рабочее оборудование для цистерн. Переходник для нижнего налива и слива);
EN 13308 Tanks for transport of dangerous goods - Service equipment for tanks - Non pressure balanced footvalve (Цистерны для перевозки опасных грузов. Рабочее оборудование для цистерн. Всасывающие клапаны, не сбалансированные по давлению);
EN 13314 Tanks for transport of dangerous goods - Service equipment for tanks - Fill hole cover (Цистерны для перевозки опасных грузов. Рабочее оборудование для цистерн. Крышка с заправочной горловиной);
EN 13315 Tanks for transport of dangerous goods - Service equipment for tanks - Gravity discharge coupler (Цистерны для перевозки опасных грузов. Рабочее оборудование для цистерн. Соединительная муфта с самотечным сливом);
EN 13316 Tanks for transport of dangerous goods - Service equipment for tanks - Pressure balanced footvalve (Цистерны для перевозки опасных грузов. Рабочее оборудование для цистерн. Разгруженный клапан под давлением с ножной педалью);
EN 13317 Tanks for transport of dangerous goods - Service equipment for tanks - Manhole cover assembly (Цистерны для перевозки опасных грузов. Оборудование для обслуживания резервуаров. Комплект крышки люка);
EN 14595 Tanks for transport of dangerous goods - Service equipment - Breather device (Цистерны для перевозки опасных грузов. Сервисное оборудование. Вентиляционное устройство);
EN 14596 Tanks for transport of dangerous goods - Service equipment for tanks - Emergency pressure relief valve (Цистерны для перевозки опасных грузов. Оборудование для обслуживания резервуаров. Предохранительный клапан сброса давления);
EN 16249 Tanks for the transport of dangerous goods - Service equipment - Cap for the adaptor for bottom loading and unloading (Цистерны для перевозки опасных грузов. Вспомогательное оборудование. Крышка переходника для нижнего налива и слива);
EN 16257 Tanks for the transport of dangerous goods - Service equipment - Footvalve sizes other than 100 mm dia (nom) (Цистерны для перевозки опасных грузов. Вспомогательное оборудование. Донные клапаны с номинальным диаметром более или менее 100 мм);
EN 16522 Tanks for transport of dangerous goods - Service equipment for tanks - Flame arresters for breather devices (Цистерны для перевозки опасных грузов. Средства обслуживания цистерн. Противопожарные клапаны для вентиляционных устройств).
1 Область применения
Настоящий стандарт распространяется на предохранительный клапан сброса избыточного давления (далее - клапан).
Настоящий стандарт устанавливает эксплуатационные характеристики и предельные размеры клапана. Стандарт также устанавливает методы испытаний, необходимые для проверки соответствия данного оборудования требованиям настоящего стандарта.
Настоящий стандарт распространяется на рабочее оборудование для цистерн, предназначенное для использования с жидкими нефтепродуктами и другими опасными веществами 3-го класса по ADR [2], давление паров которых при 50 °C не превышает 110 кПа (включая бензин) и которые не классифицируются как токсичные или коррозионные.
2 Нормативные ссылки
В настоящем стандарте использованы нормативные ссылки на следующие стандарты [для датированных ссылок применяют только указанное издание ссылочного стандарта, для недатированных - последнее издание (включая все изменения)]:
EN 12266-1:2012, Industrial valves - Testing of metallic valves - Part 1: Pressure tests, test procedures and acceptance criteria - Mandatory requirements (Клапаны промышленные. Испытания металлических клапанов. Часть 1. Испытания под давлением, порядок проведения испытаний и критерии оценки. Обязательные требования)
EN 12266-2:2012, Industrial valves - Testing of metallic valves - Part 2: Tests, test procedures and acceptance criteria - Supplementary requirements (Клапаны промышленные. Испытание металлических клапанов. Часть 2. Испытания, порядок проведения испытаний и критерии приемки. Дополнительные требования)
EN 14564, Tanks for transport of dangerous goods - Terminology (Цистерны для перевозки опасных грузов. Терминология)
ISO 2859-1, Sampling procedures for inspection by attributes - Part 1: Sampling schemes indexed by acceptance quality limit (AQL) for lot-by-lot inspection (Процедуры выборочного исследования для контроля по качественным признакам. Часть 1. Планы выборочного исследования с указанием приемочного предела качества (AQL) для последовательного контроля партий)
3 Термины и определения
В настоящем стандарте применены термины по EN 14564, а также следующий термин с соответствующим определением.
ISO и IEC ведут базы данных терминов, применяемых в стандартизации, доступ к которым может быть получен по следующим адресам:
- электропедия IEC: http://www.electropedia.org/;
- онлайн-библиотека стандартов ISO: http://www.iso.org/obp.
3.1 давление полного открытия (relieving pressure): Давление, при котором начинает открываться клапан.
4 Функциональное назначение
Клапан, независимо от своего положения, должен функционировать следующим образом:
- должен открываться для сброса избыточного давления в отсеке цистерны;
- должен закрываться, когда избыточное давление сброшено;
- в закрытом состоянии должен удерживать вещество в отсеке цистерны.
5 Требования к конструкции
5.1 Давление полного открытия
Клапан должен быть паро- и водонепроницаемым в пределах давления полного открытия.
Давление полного открытия клапана должно быть указано изготовителем и превышать давление, составляющее 110% от общей суммы:
- максимального статического напора жидкости, который будет прикладываться веществом с самой высокой плотностью в отсеке цистерны, в котором установлен клапан;
- указанного давления полного открытия дыхательного устройства, установленного в том же отсеке.
5.2 Защита от атмосферных воздействий
Клапан должен быть сконструирован таким образом, чтобы исключалась возможность скопления воды, которая может замерзнуть и нарушить работу клапана.
Если для защиты от атмосферных воздействий используется крышка, она не должна влиять на работу или производительность клапана.
5.3 Испытание на удар
Каждый клапан должен быть конструктивно способен выдержать без утечек или остаточной деформации, которые могут повлиять на целостность его конструкции, испытание на удар в соответствии с 6.3.4.
5.4 Производительность при удалении паров
Минимальная производительность клапана при удалении паров достигается при давлении, меньшем испытательного давления отсека цистерны, к которому он прикреплен.
5.5 Температурный диапазон
Если не установлено иное, клапан должен сохранять работоспособность в диапазоне температур от минус 20 °C до плюс 50 °C. В случае если клапан подвергается более экстремальным условиям эксплуатации, температурный диапазон должен быть расширен до минус 40 °C или до плюс 70 °C, в зависимости от условий эксплуатации.
5.6 Материалы конструкции
Изготовитель должен предоставить вместе с оборудованием подробные сведения о материалах тех частей, которые могут контактировать с веществами, установленными в разделе 1.
5.7 Геометрические характеристики
Конструкция клапана должна обеспечить, чтобы ни одна часть клапана не выступала более чем на 150 мм над установочной поверхностью клапана, когда он находится в полностью открытом положении.
5.8 Электрическое сопротивление
Электрическое сопротивление между любой проводящей частью клапана, которая может соприкасаться с опасным веществом, и его основным корпусом не должно превышать (1 x 106) Ом.
Необходимо предусмотреть заземляющую перемычку между основным корпусом клапана и цистерной, чтобы электрическое сопротивление между ними не превышало 10 Ом.
5.9 Дополнительная функция
Клапан может выполнять функции закрытия и открытия крышки отверстия для заполнения, как приведено в EN 13314.
6 Испытания
6.1 Общие положения
Проводят два вида испытаний: приемо-сдаточные и испытания типа.
Методы и процедуры испытаний должны соответствовать EN 12266-1, за исключением положений, установленных настоящим стандартом.
Если не установлено иное, испытательной средой должен быть воздух или другой подходящий газ. Ответственность за выбор испытательной среды несет изготовитель.
Результаты испытаний должны быть внесены в протокол испытаний и храниться в соответствии с процедурами изготовителя.
6.2 Приемо-сдаточные испытания
6.2.1 Общие положения
Количество, периодичность и методы отбора образцов для приемо-сдаточных испытаний должны быть не менее указанных в ISO 2859-1 (AQL 2,5).
Приемо-сдаточные испытания должны включать:
- испытание на герметичность по внутренней посадочной поверхности;
- испытание на давление полного открытия.
6.2.2 Испытание на герметичность по внутренней посадочной поверхности
6.2.2.1 Общие положения
Разгрузочные механизмы могут быть заблокированы для достижения испытательного давления.
6.2.2.2 Тип клапана
Тип клапана должен быть (только для выбора метода испытания) мембранным (EN 12266-1:2012, таблица A.3).
6.2.2.3 Испытательное давление
Испытательное давление должно составлять 65 кПа.
6.2.2.4 Продолжительность испытания
Продолжительность испытания должна соответствовать EN 12266-1:2012 (таблица A.4).
6.2.2.5 Критерии приемки
Критерии приемки должны соответствовать скорости A по EN 12266-1:2012 (таблица A.5).
6.2.3 Испытание на давление полного открытия
6.2.3.1 Процедура испытания
Испытательной средой должен быть воздух или другой подходящий газ. Ответственность за выбор испытательной среды несет изготовитель. Испытания должны проводиться на укомплектованном клапане.
- Клапан должен быть установлен в стандартном рабочем положении.
- Если клапан находится в закрытом положении, на сторону впуска клапана должно подаваться постоянно возрастающее давление. Давление, действующее на стороне выпуска клапана, должно быть равно атмосферному давлению.
- После того как давление полного открытия будет отмечено, давление на стороне впуска должно быть постепенно снижено для подтверждения давления за клапаном.
- Считается, что клапан начинает открываться, когда утечку можно зафиксировать визуально. Закрытие клапана должно происходить, когда утечка будет прекращена.
6.2.3.2 Критерии приемки
Зарегистрированное значение давления полного открытия должно быть не менее указанного значения давления полного открытия клапана, и клапан должен быть закрыт при давлении, которое не менее чем в 0,8 раза превышает указанное давление полного открытия.
6.3 Испытания типа
6.3.1 Общие положения
Испытаниям типа для подтверждения эксплуатационных характеристик и механической прочности конструкции должны быть подвергнуты не менее двух образцов каждой модели.
Примечание - Одной моделью считают клапаны одинаковой конструкции, размеров и заданного значения давления.
Если не установлено иное, все испытания типа должны проводиться при максимальной и минимальной расчетных температурах.
Испытания типа должны включать:
- испытание на герметичность по внутренней посадочной поверхности (EN 12266-1:2012, раздел A.4);
- испытание на давление полного открытия;
- испытание на удар;
- испытание для определения рабочих характеристик удаления паров.
6.3.2 Испытание на герметичность по внутренней посадочной поверхности
Испытание на герметичность по внутренней посадочной поверхности при опрокидывании проводят в соответствии с приемо-сдаточными испытаниями.
6.3.3 Испытание на давление полного открытия
Испытание на давление полного открытия проводится в соответствии с приемо-сдаточными испытаниями.
6.3.4 Испытание на удар
6.3.4.1 Общие положения
Функция испытания на удар состоит в том, чтобы подвергнуть оборудование верхней части цистерны динамическим нагрузкам, которые могут возникнуть при опрокидывании цистерны на бок. Испытание должно проводиться только в условиях окружающей среды.
6.3.4.2 Испытательное оборудование
Установка для испытания на удар состоит из резервуара, имеющего с одной стороны крепежный фланец, на который устанавливают испытуемое устройство. Данная установка должна иметь следующие характеристики:
a) размеры, допуски и характеристики установки для испытания на удар должны соответствовать приложению A;
b) упоры должны быть выполнены из стали и не должны включать материал или иметь конструкцию такого типа, которая могла бы способствовать амортизации удара;
c) зона удара для упоров должна соответствовать условиям, определенным в приложении A (см. описание ящика с песком);
d) подъемно-спусковое оборудование должно позволять подъем резервуара на испытательную высоту и сбрасывание с нее;
e) направляющие и подъемное оборудование не должны препятствовать свободному падению резервуара;
f) конструкция подъемного устройства и порядок работы должны соответствовать правилам безопасной эксплуатации установки и должны быть такими, чтобы предотвратить случайное падение испытательной установки;
g) испытательный резервуар должен быть приспособлен для работы под давлением согласно требованиям 6.3.4.3.6.
6.3.4.3 Процедура испытания
Процедуру испытания необходимо проводить в следующей последовательности.
6.3.4.3.1 Установить испытуемое комплектное устройство на крепежный фланец установки для испытания на удар. Осевая линия устройства должна совпадать с осевой линией крепежного фланца;
6.3.4.3.2 Наполнить резервуар водой до уровня на 1,3 м выше осевой линии крепежного фланца. Закрыть отверстие индикации уровня;
6.3.4.3.3 Поднять резервуар до точки, из которой будет осуществляться сбрасывание, на 1,2 м выше исходного положения;
6.3.4.3.4 Размешать и разровнять до однородной консистенции песок в ящиках и установить резиновую накладку;
6.3.4.3.5 Отпустить резервуар и сбросить его с высоты 1,2 м по вертикали;
6.3.4.3.6 В течение одной минуты после падения создать избыточное давление в резервуаре, чтобы давление в резервуаре на горизонтальной центральной линии испытываемого устройства в 0,8 раза превышало давление полного открытия устройства, протереть испытываемое устройство и крепежный фланец и проверить на утечку.
6.3.4.4 Повторное испытание
Если утечка вызвана неправильной регулировкой, неисправность может быть устранена, а испытание проводят повторно.
6.3.4.5 Критерии приемки
Любая утечка не должна превышать значений скорости B согласно EN 12266-1:2012 (таблица A.5).
6.3.5 Испытание для определения рабочих характеристик удаления паров
Данное испытание определяет падение давления на клапане в диапазоне пропускной способности, определенной изготовителем. Испытание должно проводиться только в условиях окружающей среды.
Для определения рабочих характеристик удаления паров клапан должен быть установлен на испытательном стенде, который гарантирует стабильную скорость потока испытательной среды для обеспечения постоянного давления во время испытания. Чтобы наладить поток через клапан, он должен открываться только при избыточном давлении, создаваемом потоком продукта. Внешние устройства не должны использоваться.
Показания скорости потока и соответствующего перепада давления на клапане должны быть внесены в протокол испытаний.
7 Маркировка
7.1 Общая информация
Клапан должен иметь нестираемую идентификационную маркировку, которая включает следующие данные:
- обозначение настоящего стандарта;
- наименование изготовителя и/или его товарный знак;
- артикул изделия или заводской номер изготовителя;
- серийный номер и/или дату изготовления;
- давление полного открытия, кПа;
- номинальную производительность, м3/ч, при удалении паров и давление, кПа;
- особые условия эксплуатации.
8 Инструкция по установке, эксплуатации и техническому обслуживанию
К оборудованию должны прилагаться инструкции по установке, эксплуатации и техническому обслуживанию.
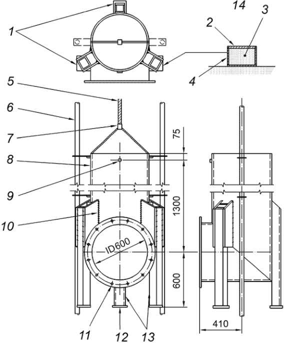
Приложение A
(обязательное)
УСТАНОВКА ДЛЯ ИСПЫТАНИЯ НА УДАР
Размеры в миллиметрах
1 - три ящика с песком; 2 - прокладка из каучука (280 +/- 5)
мм x (280 +/- 5) мм и толщиной 25 мм, твердостью по Шору 70
единиц IRHD; 3 - сухой песок; 4 - стальной ящик с размерами
(300 x 300) мм, высотой 250 мм, толщина стенок 8 мм, дно
полностью закреплено; 5 - подъемный канат; 6 - направляющая
стойка (DN 100); 7 - механизм освобождения. Номинальная
грузоподъемность оборудования - 1,5 т; 8 - испытательный
резервуар с внутренним диаметром (600 +/- 10) мм, корпус
толщиной 8 мм; 9 - отверстие индикации уровня; 10 - стальная
пластина толщиной 10 мм, приваренная, как показано
на рисунке; 11 - фланец с наружным диаметром 750 мм,
толщиной (минимум) 20 мм, с 12 отверстиями диаметром 22 мм
по окружности диаметром 680 мм; 12 - стальная плита
(для упора) (150 x 130 x 10) мм; 13 - три равномерно
расположенные поддерживающие опоры, стальная труба
прямоугольного сечения (102 x 76 x 6) мм;
14 - устройство одного из ящиков с песком
Следует предусмотреть условия для создания избыточного
давления в резервуаре в соответствии
с 6.3.4.2, перечисление g).
Рисунок A.1 - Установка для испытания на удар
Приложение B
(справочное)
МИНИМАЛЬНАЯ ПРОИЗВОДИТЕЛЬНОСТЬ КЛАПАНА ПРИ УДАЛЕНИИ ПАРОВ
ПРИ РАСПРОСТРАНЕНИИ ОГНЯ
Таблица B.1
Минимальная производительность клапана при удалении паров
Экспонированная область отсека цистерны, м2
Минимальная производительность при удалении паров, м3
2
480
3
720
4
960
5
1 200
6
1 440
7
1 680
8
1 920
9
2 160
10
2 400
12
2 880
14
3 360
16
3 840
18
4 320
20
4 800
25
6 000
30
6 650
35
7 260
40
7 830
45
8 370
50
8 880
55
9 370
60
9 840
65
10 300
70
10 700
75
11 200
80
11 600
85
12 000
90
12 400
95
12 800
100
13 200
Примечание 1 - Дополнительно вводят промежуточные величины.
Примечание 2 - Стандартные кубические метры свободного воздуха при давлении 101,3 кПа и температуре 15 °C.
Примечание 3 - Экспонированная область отсека цистерны - область корпуса отсека цистерны, которая видна снаружи цистерны (например, сумма площадей боковой и торцевой стенок концевого отсека, но только площадь боковой стенки промежуточного отсека).
Примечание 4 - Источник, содержащий таблицу, - DOT 49 178,345-10, сброс давления - [3].
Приложение ДА
(справочное)
СВЕДЕНИЯ О СООТВЕТСТВИИ ССЫЛОЧНЫХ МЕЖДУНАРОДНЫХ СТАНДАРТОВ
МЕЖГОСУДАРСТВЕННЫМ СТАНДАРТАМ
Таблица ДА.1
Обозначение ссылочного международного стандарта
Степень соответствия
Обозначение и наименование соответствующего межгосударственного стандарта
EN 12266-1:2012
-
<*>
EN 12266-2:2012
-
<*>
EN 14564
-
<*>
ISO 2859-1
-
<*>
<*> Соответствующий межгосударственный стандарт отсутствует.
БИБЛИОГРАФИЯ
[1]
EN 13314
Tanks for transport of dangerous goods - Service equipment for tanks - Fill hole cover (Цистерны для перевозки опасных грузов. Рабочее оборудование для цистерн. Крышка с заправочной горловиной)
[2]
European Agreement concerning the International Carriage of Dangerous Goods by Road (ADR) (Европейское соглашение в отношении международной перевозки опасных грузов автотранспортом (ADR))
[3]
US Department of Transportation, regulations for the transport of dangerous goods (Департамент транспорта США, Правила перевозки опасных грузов)
УДК 621.646.49:621.642.34:656.073.436(083.74)(476)
IDT
Ключевые слова: цистерны, перевозки опасных грузов, рабочее оборудование для цистерн, предохранительный клапан сброса, избыточное давление, установка для испытания на удар