Главная // Актуальные документы // ГОСТ (Государственный стандарт)
СПРАВКА
Источник публикации
М.: ФГБУ "РСТ", 2022
Примечание к документу
Документ введен в действие с 01.02.2023.
Название документа
"ГОСТ EN 13082-2020. Межгосударственный стандарт. Цистерны для перевозки опасных грузов. Рабочее оборудование для цистерн. Клапан отвода паров"
(введен в действие Приказом Росстандарта от 02.09.2022 N 864-ст)

"ГОСТ EN 13082-2020. Межгосударственный стандарт. Цистерны для перевозки опасных грузов. Рабочее оборудование для цистерн. Клапан отвода паров"
(введен в действие Приказом Росстандарта от 02.09.2022 N 864-ст)


Содержание


Введен в действие
Приказом Федерального агентства
по техническому регулированию
и метрологии
от 2 сентября 2022 г. N 864-ст
МЕЖГОСУДАРСТВЕННЫЙ СТАНДАРТ
ЦИСТЕРНЫ ДЛЯ ПЕРЕВОЗКИ ОПАСНЫХ ГРУЗОВ
РАБОЧЕЕ ОБОРУДОВАНИЕ ДЛЯ ЦИСТЕРН
КЛАПАН ОТВОДА ПАРОВ
Tanks for the transport of dangerous goods.
Service equipment for tanks. Vapour transfer valve
(EN 13082:2008+A1:2012, IDT)
ГОСТ EN 13082-2020
МКС 13.300
23.020.20
23.060.20
Дата введения
1 февраля 2023 года
Предисловие
Цели, основные принципы и общие правила проведения работ по межгосударственной стандартизации установлены ГОСТ 1.0 "Межгосударственная система стандартизации. Основные положения" и ГОСТ 1.2 "Межгосударственная система стандартизации. Стандарты межгосударственные, правила и рекомендации по межгосударственной стандартизации. Правила разработки, принятия, обновления и отмены"
Сведения о стандарте
1 ПОДГОТОВЛЕН Научно-производственным республиканским унитарным предприятием "Белорусский государственный институт стандартизации и сертификации" (БелГИСС) на основе собственного перевода на русский язык англоязычной версии стандарта, указанного в пункте 5
2 ВНЕСЕН Государственным комитетом по стандартизации Республики Беларусь
3 ПРИНЯТ Межгосударственным советом по стандартизации, метрологии и сертификации (протокол от 30 сентября 2020 г. N 133-П)
За принятие проголосовали:
Краткое наименование страны по МК (ИСО 3166) 004-97
Код страны по МК (ИСО 3166) 004-97
Сокращенное наименование национального органа по стандартизации
Беларусь
BY
Госстандарт Республики Беларусь
Киргизия
KG
Кыргызстандарт
Россия
RU
Росстандарт
Таджикистан
TJ
Таджикстандарт
Узбекистан
UZ
Узстандарт
4 Приказом Федерального агентства по техническому регулированию и метрологии от 2 сентября 2022 г. N 864-ст межгосударственный стандарт ГОСТ EN 13082-2020 введен в действие в качестве национального стандарта Российской Федерации с 1 февраля 2023 г.
5 Настоящий стандарт идентичен европейскому стандарту EN 13082:2008+A1:2012 "Цистерны для перевозки опасных грузов. Рабочее оборудование для цистерн. Клапан отвода паров" ("Tanks for the transport of dangerous goods. Service equipment for tanks. Vapour transfer valve", IDT).
Европейский стандарт разработан Техническим комитетом CEN/TC 296 "Цистерны для перевозки опасных грузов" Европейского комитета по стандартизации (CEN).
При применении настоящего стандарта рекомендуется использовать вместо ссылочных международных стандартов соответствующие им межгосударственные стандарты, сведения о которых приведены в дополнительном приложении ДА
6 ВВЕДЕН ВПЕРВЫЕ
Информация о введении в действие (прекращении действия) настоящего стандарта и изменений к нему на территории указанных выше государств публикуется в указателях национальных стандартов, издаваемых в этих государствах, а также в сети Интернет на сайтах соответствующих национальных органов по стандартизации.
В случае пересмотра, изменения или отмены настоящего стандарта соответствующая информация будет опубликована на официальном интернет-сайте Межгосударственного совета по стандартизации, метрологии и сертификации в каталоге "Межгосударственные стандарты"
Введение
Европейская директива 94/63/ЕС, касающаяся выбросов летучих органических соединений (ЛОС), устанавливает требования к ограничению выбросов в атмосферу паров, возникающих во время наполнения цистерн бензином и их опорожнения.
Для достижения данной цели необходимо при проведении наполнения или опорожнения цистерн обеспечить герметичный канал между цистерной, резервуаром для хранения топлива, резервуаром устройства для наполнения топливом и установкой для улавливания паров.
Клапан отвода паров обеспечивает отвод паров из отсеков транспортного средства в резервуар паросборника.
Настоящий стандарт является одним из серии взаимосвязанных стандартов с групповым заголовком "Цистерны для перевозки опасных грузов. Рабочее оборудование для цистерн", состоящей из следующих стандартов:
- EN 13081:2001 Переходник и соединитель для паросборника;
- EN 13082:2001 Клапан отвода паров;
- EN 13083:2001 Переходник для нижнего налива и слива;
- EN 13308:2002 Разгрузочный клапан слива отстоя самотеком;
- EN 13314:2002 Крышка заправочной горловины;
- EN 13315:2002 Соединитель для опорожнения самотеком;
- EN 13316:2002 Разгрузочный клапан слива отстоя под давлением;
- EN 13317:2002 Крышка смотрового люка;
- EN 13922:2003 Системы ограничения наполнения жидким топливом.
1 Область применения
Настоящий стандарт распространяется на клапан отвода паров, используемый для отвода паров из отсека цистерны при ее наполнении нефтепродуктами.
Настоящий стандарт устанавливает эксплуатационные характеристики и предельные размеры клапана отвода паров. Настоящий стандарт также устанавливает методы испытаний, необходимые для проверки соответствия данного оборудования требованиям настоящего стандарта. Оборудование, на которое распространяется настоящий стандарт, применяется для использования с жидкими нефтепродуктами и другими опасными веществами 3-го класса согласно ДОПОГ (Европейское соглашение о международной дорожной перевозке опасных грузов), давление паров которых при 50 °C не превышает 110 кПа (включая бензин) и которые не классифицируются как токсичные или коррозионные.
2 Нормативные ссылки
В настоящем стандарте использованы нормативные ссылки на следующие стандарты [для датированных ссылок применяют только указанное издание ссылочного стандарта, для недатированных - последнее издание (включая все изменения)]:
EN 12266-1:2003 <*>, Industrial valves - Testing of valves - Part 1: Pressure tests, test procedures and acceptance criteria - Mandatory requirements (Клапаны промышленные. Испытания клапанов. Часть 1. Испытания под давлением, порядок проведения испытаний и критерии оценки. Обязательные требования)
--------------------------------
<*> Заменен на EN 12266-1:2012. Однако для однозначного соблюдения требования настоящего стандарта, выраженного в датированной ссылке, рекомендуется использовать только указанное в этой ссылке издание.
EN 12266-2:2002 <**>, Industrial valves - Testing of valves - Part 2: Tests, test procedures and acceptance criteria - Supplementary requirements (Клапаны промышленные. Испытание клапанов. Часть 2. Испытания, методы испытания и критерии приемки. Дополнительные требования)
--------------------------------
<**> Заменен на EN 12266-2:2012. Однако для однозначного соблюдения требования настоящего стандарта, выраженного в датированной ссылке, рекомендуется использовать только указанное в этой ссылке издание.
ISO 2859-1, Sampling procedures for inspection by attributes - Part 1: Sampling schemes indexed by acceptance quality limit (AQL) for lot-by-lot inspection (Методы выборочного контроля по качественным признакам. Часть 1. Планы выборочного контроля с указанием приемлемого уровня качества (AQL) для последовательного контроля партий)
3 Термины и определения
В настоящем стандарте применены следующие термины с соответствующими определениями:
3.1 коллектор сбора паров (vapour collection manifold): Емкость, с которой соединены клапаны отвода паров каждого отсека, имеющая переходник для паросборника.
3.2 максимальное рабочее давление; MWP; избыточное давление (maximum working pressure; MWP; gauge pressure): Максимальное давление, на которое рассчитано оборудование, наибольшее из трех следующих давлений:
a) максимально допустимое эффективное давление в цистерне во время наполнения (максимально допустимое давление наполнения);
b) максимально допустимое эффективное давление в цистерне во время опорожнения (максимально допустимое давление опорожнения);
c) эффективное избыточное давление, которому подвергается цистерна в результате воздействия на нее содержимого (включая посторонние газы, которые могут содержаться) при максимальной рабочей температуре.
3.3 секвенциальная функция (sequential function): Способность подавать сигнал "Клапан открыт".
4 Назначение
Клапан отвода паров должен:
- в открытом положении обеспечивать распространение паров между отсеками цистерны и коллектором сбора паров;
- иметь устройство, показывающее, что он открыт;
- в закрытом положении предотвращать распространение паров и/или жидкости в любом направлении.
В открытом положении клапан отвода паров может препятствовать распространению жидкости между отсеками цистерны через коллектор сбора паров.
5 Конструктивные характеристики
5.1 Общие положения
Если клапан отвода паров встроен в другое рабочее оборудование, например дыхательный клапан, объединенная конструкция не должна ухудшать безопасность работы или изменять требования к клапану отвода паров, приведенные в настоящем стандарте.
5.2 Характеристики производительности
Изготовитель должен обеспечить кривую падения давления при следующих условиях:
- пропускная способность по воздуху - 300 м3/ч при температуре 20 °C (300 м3/ч воздуха соответствует подаче жидкости 150 м3/ч при нижнем наливе отсека).
5.3 Температурный диапазон
Клапан отвода паров должен сохранять работоспособность в диапазоне температур от минус 20 °C до плюс 50 °C, если не указано иное.
В случае если клапан отвода паров работает в более жестких условиях, диапазон проектных температур должен быть расширен до минус 40 °C или до плюс 70 °C (в зависимости от условий эксплуатации).
5.4 Приведение в действие
Клапан отвода паров может приводиться в действие устройствами дистанционного управления.
Клапан отвода паров может иметь секвенциальную функцию.
В случае отказа устройств управления клапан должен автоматически возвращаться в закрытое положение.
5.5 Материалы конструкции
Изготовитель должен предоставить вместе с оборудованием подробные сведения о материалах тех частей, которые могут контактировать с веществами, установленными в разделе 1.
5.6 Геометрические характеристики
5.6.1 Максимальная высота
Конструкция клапана должна обеспечить, чтобы ни одна часть клапана не выступала более чем на 150 мм над установочной поверхностью клапана [см. рисунок B.1 (приложение B)].
5.6.2 Фланцевый способ установки
Установочный фланец клапана отвода паров должен иметь следующие размеры и отверстия, равноудаленные от центральной оси клапана:
- типоразмер фланца
80;
100;
- диаметр втулки (максимальное значение)
106 мм;
122 мм;
- диаметр окружности расположения установочных отверстий
130 мм;
150 мм;
количество равномерно расположенных установочных отверстий (минимальное количество)
8 (4);
8 (4);
- диаметр отверстий
12 мм;
14 мм;
- значения допусков
+/- 1 мм;
+/- 1 мм.
5.6.3 Резьбовой тип соединения
Резьбовая втулка диаметром 98 мм со стопорной гайкой, длина свинчивания от 5 до 15 мм.
6 Испытания
6.1 Общие положения
Проводят два вида испытаний: приемо-сдаточные и испытания типа.
Методы и процедуры испытаний должны соответствовать требованиям EN 12266-1 и EN 12266-2, за исключением положений, установленных настоящим стандартом.
Если не установлено иное, то в качестве испытательной среды должны быть использованы воздух или другой подходящий газ. Выбор испытательной среды осуществляет изготовитель.
Примечание - Если обтюратор является частью корпуса, находящегося под давлением, он может быть закрыт при проведении испытаний на прочность и герметичность.
6.2 Приемо-сдаточные испытания
6.2.1 Общие положения
Количество, периодичность и методы отбора выборок при приемо-сдаточных испытаниях должны быть не менее указанных в ISO 2859-1 (при AQL = 2,5).
Приемо-сдаточные испытания должны включать:
- испытание на герметичность корпуса;
- испытание на герметичность по внутренней посадочной поверхности; и
- испытание на работоспособность.
6.2.2 Испытание на герметичность корпуса
6.2.2.1 Испытательное давление
Испытательное давление - по EN 12266-1 (пункт A.3.3.2).
6.2.2.2 Продолжительность испытания
Продолжительность испытания - по EN 12266-1 (пункт A.3.2.3).
6.2.2.3 Критерии приемки
Критерии приемки - по EN 12266-1 (пункт A.3.3).
6.2.3 Испытание на герметичность по внутренней посадочной поверхности
6.2.3.1 Тип клапана (только для выбора метода испытания)
Тип клапана - обратный клапан по EN 12266-1 (таблица A.3).
6.2.3.2 Испытательное давление
Испытательное давление - 5,5 кПа.
6.2.3.3 Продолжительность испытания
Продолжительность испытания - по EN 12266-1 (таблица A.4).
6.2.3.4 Критерии приемки
Критерии приемки - уровень A по EN 12266-1 (таблица A.5).
6.2.4 Испытание на работоспособность
Испытание на работоспособность - по EN 12266-2 (пункт B.1).
6.2.5 Результаты испытаний
Результаты испытаний должны регистрироваться и храниться в соответствии с процедурами изготовителя.
6.3 Испытания типа
6.3.1 Общие положения
Испытаниям типа для подтверждения эксплуатационных характеристик и механической прочности конструкции должны быть подвергнуты не менее двух образцов каждой модели клапана отвода паров.
Примечание - Одной моделью считают устройства одинаковой конструкции, размеров и заданного значения давления.
Если не установлено иное, все испытания типа должны проводиться при заданных максимальной и минимальной температурах.
Испытания типа должны включать:
- испытание на прочность корпуса;
- испытание на герметичность корпуса;
- испытание на герметичность по внутренней посадочной поверхности;
- испытание на долговечность и
- испытание на удар.
6.3.2 Испытание на прочность корпуса
6.3.2.1 Испытательное давление
Испытательное давление - 500 кПа или в 1,5 раза превышающее максимально допустимое рабочее давление (MWP) оборудования (используется большее из значений).
6.3.2.2 Продолжительность испытания
Продолжительность испытания - по EN 12266-1 (таблица A.2).
6.3.2.3 Критерии приемки
Критерии приемки - по EN 12266-1 (пункт A.2.4).
Испытание должно проводиться только в условиях окружающей среды.
6.3.3 Испытание на герметичность корпуса
Испытание на герметичность корпуса должно проводиться в соответствии с требованиями к приемо-сдаточным испытаниям.
Испытание должно проводиться только в условиях окружающей среды.
6.3.4 Испытание на герметичность по внутренней посадочной поверхности
Испытание на герметичность по внутренней посадочной поверхности должно проводиться в соответствии с требованиями к приемо-сдаточным испытаниям при следующих испытательных давлениях:
- 5,5 кПа и
- 25 кПа.
6.3.5 Испытание на долговечность
Испытание на долговечность должно проводиться в соответствии с требованиями к приемо-сдаточным испытаниям на работоспособность, со следующим дополнением:
- испытание на долговечность считают удовлетворительным, если устройство после испытания работоспособно и выдержало испытание на герметичность по внутренней посадочной поверхности (критерий приемки - уровень B по EN 12266-1, таблица A.5) после осуществления 25 000 циклов по соединению и разъединению без смазки и замены любой из частей.
Испытание должно проводиться только в условиях окружающей среды.
6.3.6 Испытание на удар
6.3.6.1 Общие положения
Назначение испытания на удар - подвергнуть оборудование верхней части цистерны динамическим нагрузкам, которые могут возникнуть при опрокидывании цистерны на бок. Испытание должно проводиться только в условиях окружающей среды.
6.3.6.2 Испытательная установка
Установка для испытания на удар состоит из резервуара, имеющего с одной стороны установочный фланец, на который устанавливают испытуемое устройство. Установка должна иметь следующие характеристики:
a) размеры, допуски и характеристики установки для испытания на удар должны соответствовать приложению A;
b) упоры должны быть изготовлены из стали и не должны включать материал или конструкцию такого типа, которая могла бы способствовать амортизации удара;
c) зона удара для упоров должна быть такой, как описано в приложении A (см. описание ящика с песком);
d) оборудование для подъема и освобождения должно позволять подъем резервуара на испытательную высоту и сбрасывание с нее;
e) направляющие и оборудование для подъема не должны препятствовать свободному падению резервуара;
f) конструкция установки для подъема и порядок ее работы должны соответствовать правилам безопасной эксплуатации установки и должны быть такими, чтобы предотвратить случайное падение испытательной установки.
6.3.6.3 Процедура испытания
Испытание должно выполняться в следующей последовательности:
a) установить испытуемое комплектное устройство на установочный фланец установки для испытания на удар. Осевая линия устройства должна совпадать с осевой линией установочного фланца;
b) наполнить резервуар водой до уровня на 1,3 м выше осевой линии крепежного фланца. Закрыть отверстие индикации уровня;
c) поднять резервуар до точки сброса - 1,2 м;
d) размешать и разровнять до однородной консистенции песок в ящиках и установить резиновую накладку;
e) сбросить резервуар с высоты 1,2 м;
f) в течение минуты после падения протереть устройство и фланец и проверить на утечку.
6.3.6.4 Повторные испытания
В случае обнаружения утечки по причине плохой регулировки дефект должен быть устранен, а испытание проведено повторно.
6.3.6.5 Критерий приемки
Любая утечка не должна превышать значений для уровня B по EN 12266-1 (таблица A.5).
6.3.7 Результаты испытания
Результаты испытания должны регистрироваться и храниться до снятия изделия с производства.
7 Маркировка
Клапаны отвода паров должны иметь нестираемую идентификационную маркировку, которая включает следующие данные:
- обозначение настоящего стандарта;
- наименование изготовителя и/или его товарный знак;
- обозначение типа или номера сборочной единицы, определенного изготовителем;
- серийный номер и/или дату изготовления;
- максимально допустимое рабочее давление (MWP);
- особые условия эксплуатации.
8 Инструкции по монтажу, эксплуатации и техническому обслуживанию
В комплект поставки оборудования должно входить руководство по монтажу, эксплуатации и техническому обслуживанию. Монтаж и эксплуатация - в соответствии с CEN/TR 15120.
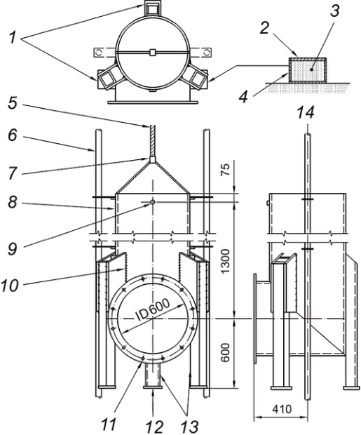
Приложение A
(обязательное)
УСТАНОВКА ДЛЯ ИСПЫТАНИЯ НА УДАР
Установка для испытания на удар приведена на рисунке A.1.
Размеры в миллиметрах
1 - три ящика с песком; 2 - резиновая квадратная накладка
со стороной (280 +/- 5) мм и толщиной 25 мм, твердостью
по Шору 70 единиц IRHD; 3 - сухой песок; 4 - стальной ящик
размерами (300 x 300) мм, высотой 250 мм, толщина стенок 8
мм, дно полностью закреплено; 5 - подъемный канат;
6 - направляющая стойка (с градуировкой через 100 мм
на трубе диаметром 80 мм); 7 - механизм освобождения.
Номинальная грузоподъемность оборудования - 1,5 т;
8 - испытательный резервуар внутренним диаметром (600 +/-
10) мм, корпус толщиной 8 мм; 9 - отверстие индикации
уровня; 10 - стальная пластина толщиной 10 мм, приваренная
как показано на рисунке; 11 - фланец наружным диаметром 750
мм, толщиной (не менее) 20 мм, с 12 отверстиями диаметром 22
мм по окружности диаметром 680 мм; 12 - стальная плита (для
упора) (150 x 130 x 10) мм; 13 - три равномерно
расположенные поддерживающие опоры, стальная труба
прямоугольного сечения (102 x 76 x 6) мм; 14 - устройство
одного из ящиков с песком
Примечание - Следует применять стандартные технические допуски, если не установлено иное.
Рисунок A.1 - Установка для испытания на удар
Приложение B
(обязательное)
МАКСИМАЛЬНАЯ ВЫСОТА. ТРЕБОВАНИЯ К УСТАНОВКЕ
Максимальная высота после установки (размер h) не должна превышать 150 мм.
1 - монтажная поверхность клапана; 2 - монтажная площадка
или опорная плита смотрового отверстия при необходимости
Рисунок B.1 - Максимальная высота. Требования к установке
Приложение ДА
(справочное)
СВЕДЕНИЯ О СООТВЕТСТВИИ ССЫЛОЧНЫХ МЕЖДУНАРОДНЫХ СТАНДАРТОВ
МЕЖГОСУДАРСТВЕННЫМ СТАНДАРТАМ
Таблица ДА.1
Обозначение ссылочного международного стандарта
Степень соответствия
Обозначение и наименование соответствующего межгосударственного стандарта
EN 12266-1:2003
-
<*>
EN 12266-2:2002
-
<*>
ISO 2859-1
-
<*>
<*> Соответствующий межгосударственный стандарт отсутствует.
БИБЛИОГРАФИЯ
[1]
VOC European Directive 94/63/EC on Volatile Organic Compounds
(VOC Европейская директива 94/63/ЕС по летучим органическим соединениям)
[2]
ADR. European Agreement concerning the International Carriage of Dangerous Goods by Road - (flammable liquids)
[ADR. Европейское соглашение о международной дорожной перевозке опасных грузов - (легковоспламеняющиеся жидкости)]
УДК 621.642.34-332:656.073.436(083.74)(476)
МКС 13.300
IDT
Ключевые слова: цистерна, опасный груз, рабочее оборудование, клапан отвода паров, испытание