Краткое наименование страны по МК (ИСО 3166) 004-97 | Код страны по МК (ИСО 3166) 004-97 | Сокращенное наименование национального органа по стандартизации |
Армения | AM | Минэкономики Республики Армения |
Беларусь | BY | Госстандарт Республики Беларусь |
Молдова | MD | Молдова-Стандарт |
Россия | RU | Росстандарт |
Узбекистан | UZ | Узстандарт |
Украина | UA | Минэкономразвития Украины |
- статический габарит для железнодорожного подвижного состава, допускаемого к обращению как по всей сети железных дорог колеи 1520 (1524) мм, так и по всем железным дорогам колеи 1435 мм европейских и азиатских стран;
- кинематический габарит для железнодорожного подвижного состава, допускаемого к обращению по всей сети железных дорог колеи 1520 (1524) мм и по железным дорогам колеи 1435 мм европейских и азиатских стран.
только для сигнальных устройств и зеркал заднего вида;

для сигнальных устройств и зеркал заднего вида;
только для сигнальных устройств, зеркал заднего вида в любом положении;



и
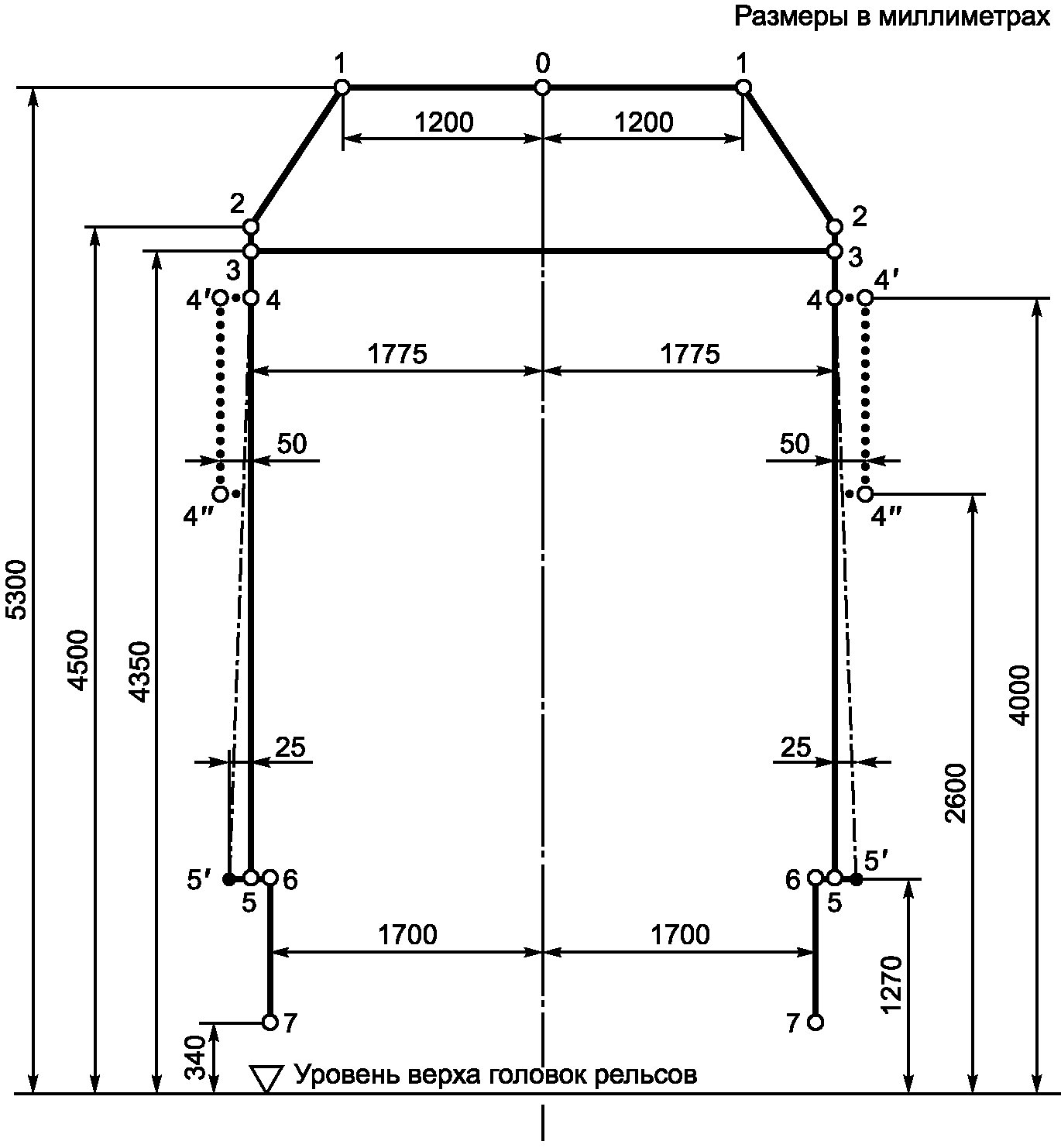
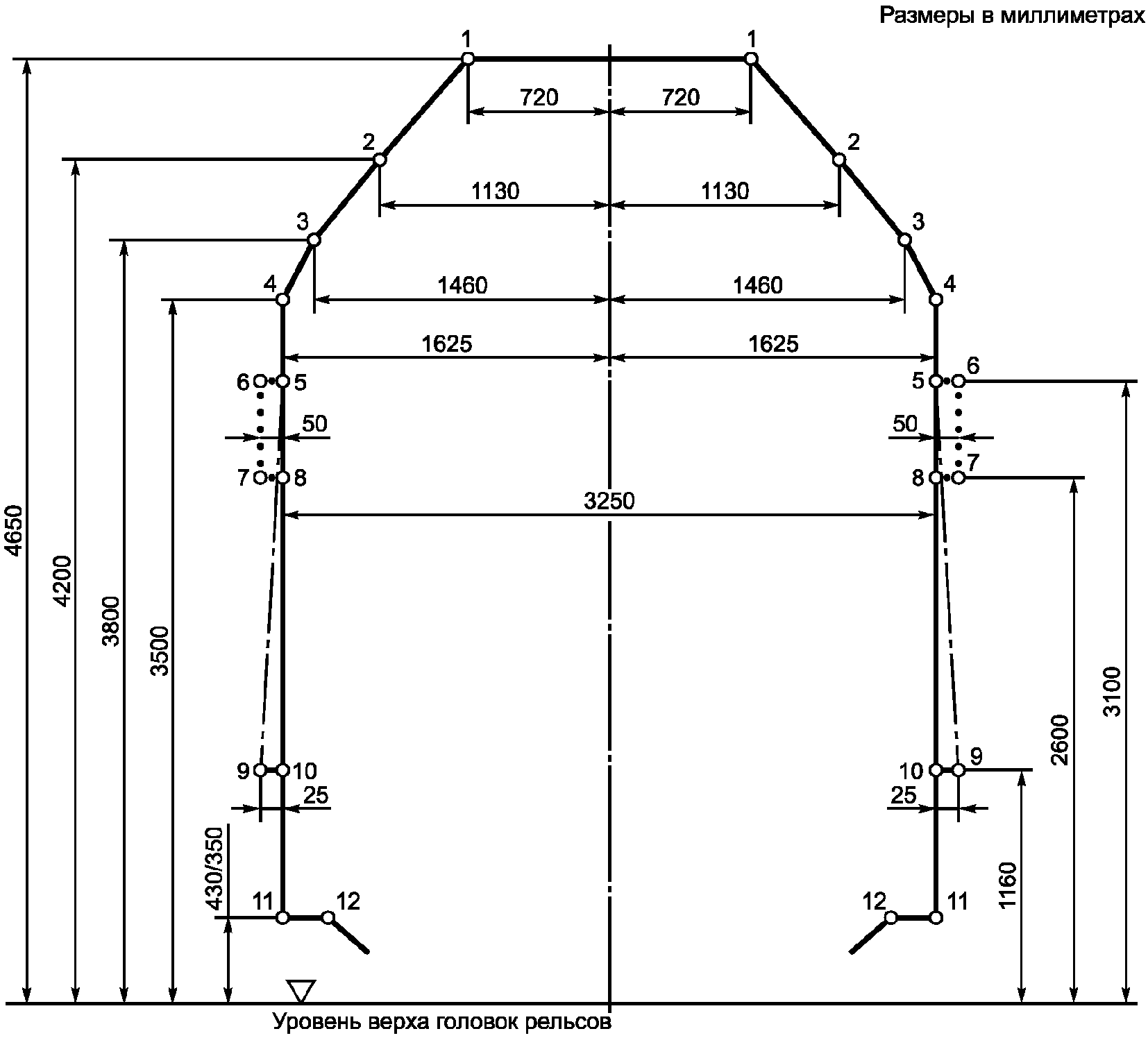
должны соответствовать указанным на рисунках 9 - 14. При этом габарит 1-BM, приведенный на рисунке 10, допускается увеличивать за счет дополнительной наклонной линии, имеющей расстояние от оси пути: 1700 мм - на высоте 3850 мм (точка 4); 1800 мм - на высоте 1160 мм (точка 9), для вписывания в габарит выступающих частей (поручни, подлокотники, козырьки для стока воды, параваны и др.) для подвижного состава, предназначенного к эксплуатации в пределах только железных дорог колеи 1520 (1524) мм.

только для сигнальных устройств.
только для сигнальных устройств;
только для сигнальных устройств.







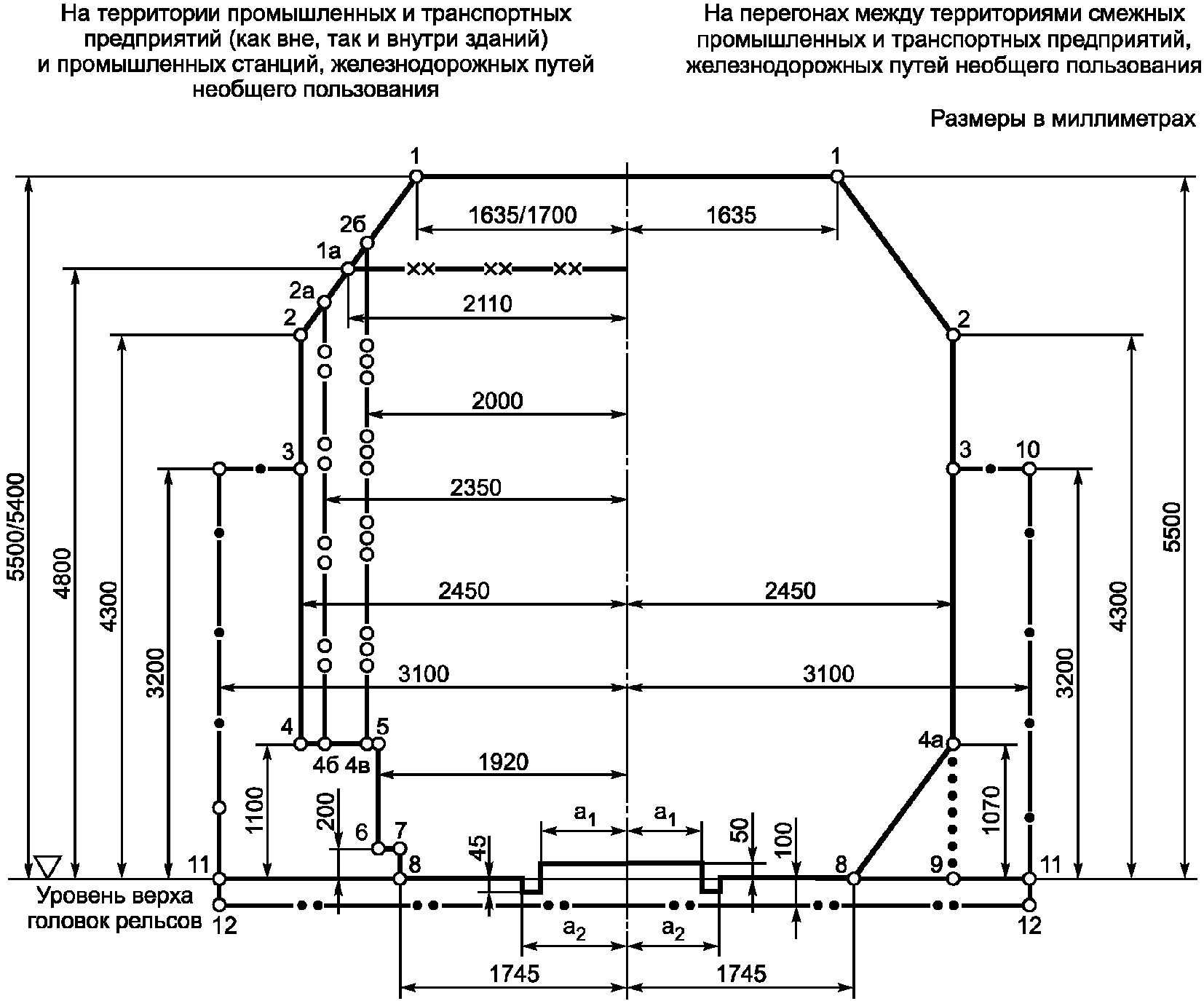
, проходящего по железнодорожным путям колеи 1520 (1524) мм, европейским и азиатским железным дорогам колеи 1435 мм, который может проходить сортировочные горки, оборудованные вагонными замедлителями на условиях, приведенных в названиях к рисункам 20 - 21.

следует принимать на условиях в соответствии с рисунками 22 - 23.

и 
,
- при ширине колеи 1520 мм;
,
- при ширине колеи 1524 мм.
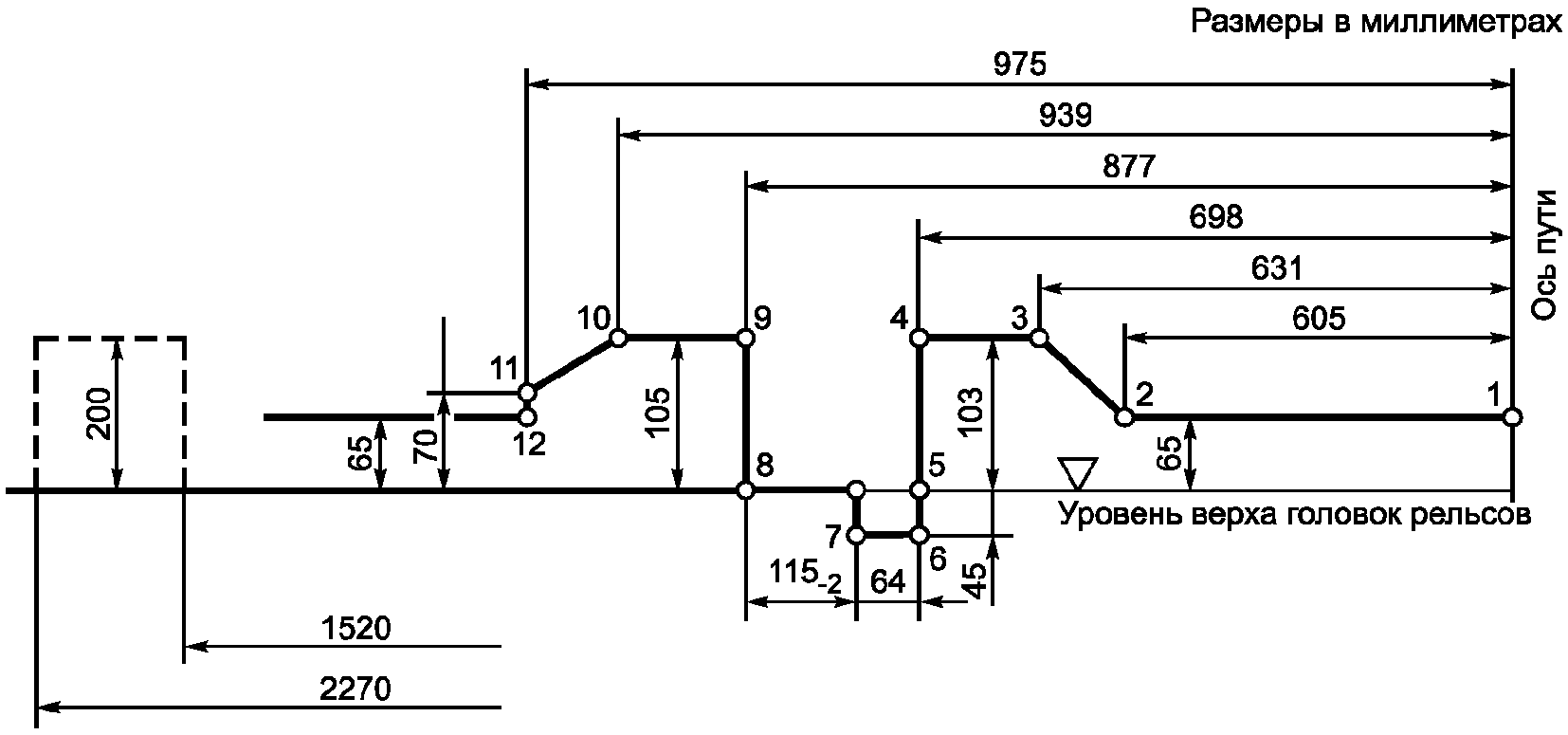
в пределах настила переездов на прямых участках пути допускается принимать не менее 75 мм.
);
линия, выше которой на перегонах и в пределах полезной длины путей на станциях не должно подниматься ни одно устройство, кроме инженерных сооружений, настилов переездов, устройств приема и передачи информации, а также механизмов стрелочных переводов и расположенных в их пределах устройств СЦБ;
линия приближения фундаментов зданий и опор, подземных тросов, кабелей, трубопроводов и других, не относящихся к пути сооружений на перегонах и станциях, за исключением инженерных сооружений и устройств СЦБ в местах расположения сигнальных и трансляционных точек;
линия приближения конструктивных элементов тоннелей, перил на мостах, эстакадах и других инженерных сооружениях;
линия приближения подкрановых балок, ригелей, стоек проемов ворот и тому подобных сооружений и устройств на путях, предназначаемых для эксплуатации только специального подвижного промышленного транспорта, высотой не более 4700 мм и попадание на которые подвижного состава высотой более 4700 мм исключается;
линия приближения отдельно стоящих колонн, стоек проемов ворот производственных зданий, а также выступающих частей зданий (пилястр, контрфорсов, лестниц и др.) при их длине вдоль пути не более 1000 мм;
линия приближения погрузо-выгрузочных и сливно-наливных устройств, свесов крыш прирельсовых складов, устройств по техническому обслуживанию, экипировке и ремонту железнодорожного подвижного состава и других технологических устройств в нерабочем их положении, расположенных на станционных (кроме главных и приемо-отправочных) и портовых путях.
,
- при ширине колеи 1520 мм;
,
- при ширине колеи 1524 мм.
в пределах настила переездов на прямых участках пути допускается принимать не менее 75 мм.
,
- при ширине колеи 1520 мм;
,
- при ширине колеи 1524 мм.
в пределах настила переездов на прямых участках пути допускается принимать не менее 75 мм.
, установлены для безопасности следования железнодорожного подвижного состава, обслуживающего персонала железнодорожного транспорта и сохранности грузов. Эти размеры в местах работы и передвижения обслуживающего персонала и работников предприятий должны быть дополнительно увеличены до норм, при которых может быть обеспечена безопасность нахождения работников указанных категорий в пространстве между железнодорожным подвижным составом и сооружением или устройством или между железнодорожными подвижными составами, находящимися на смежных путях. Увеличенные размеры должны быть установлены с учетом места расположения путей, их назначения и скорости движения по ним, специфики предприятия, а также протяженности вдоль пути здания, сооружения или их выступающих частей, находящихся на расстоянии от оси пути менее установленного линией
габаритов приближения строений C и
, сооружения и устройства высотой не более 4800 мм;
в трудных условиях до 2250 мм.
допускается в обоснованных случаях уменьшать при условии соблюдения минимальных зазоров между очертанием габарита железнодорожного подвижного состава и конкретного сооружения или устройства, приведенных в Приложении В, и обеспечении возможности эксплуатации перспективного подвижного состава увеличенных габаритов.
габарита приближения строений 



ИС МЕГАНОРМ: примечание. Нумерация пунктов дана в соответствии с официальным текстом документа. |
)
и 1-BM (в нижней части), за очертания этих габаритов в кривых участках пути радиусом R, равным 250 м, мм;
и нижней части габарита 1-BM) тележечного железнодорожного подвижного состава, мм;
и нижней части габарита 1-BM), мм/м2;
,
или
окажется отрицательной, то она не учитывается, т.е. принимается равной нулю. При этом расчет ограничений
, (6.5)
, (6.6)
и нижней части железнодорожного подвижного состава габарита 1-BM отрицательные значения указанных величин в скобках должны быть учтены. При этом, если ограничения Габарит | Точки габарита | Значения коэффициентов | |||
k, мм | |||||
T, | Все точки | 0 | ![]() | 2,5 | 180 |
1-BM | 1 - 11 | ||||
Остальные точки | 25 | 2 | 0 | ||
0-BM | 1 - 11 | 75 | |||
Остальные точки | 25 | ||||
02-BM | 1 - 8 | 75 | |||
Остальные точки | 25 | ||||
![]() | 1 - 5 | 75 | |||
Остальные точки | 25 | ||||
Примечание. В таблице обозначение p - база тележки железнодорожного подвижного состава, м. | |||||
(6.8)
и нижней части габарита 1-BM
(6.9)
(6.10)
, (6.11)Обозначение | Определения |
Внутреннее ограничение (уменьшение) половины ширины исходного очертания габарита для сечений вагона, расположенных между крайними осями двухосного вагона или между шкворнями тележек, м | |
Наружное ограничение половины ширины исходного очертания габарита для сечений вагона, расположенных снаружи крайних осей двухосного вагона или снаружи шкворней тележек, м | |
a | Расстояние между крайними осями двухосного вагона или между шкворнями тележек - база вагона, м |
n | Расстояние от рассматриваемого поперечного сечения вагона до ближайшей крайней оси двухосного вагона или ближайшего шкворня тележки, м |
Расстояние для рассматриваемого внутреннего сечения вагона, расположенного между колесными парами или шкворнями, м | |
Расстояние для рассматриваемого внешнего сечения вагона, расположенного снаружи колесных пар или шкворней, м | |
p | База тележки (расстояние между осями тележек), м |
d | Предельное значение расстояния между наружными гранями гребней предельно изношенных колесных пар железнодорожного подвижного состава (ширина колеи 1,435 м), измеряемое ниже круга катания на расстоянии 10 мм, составляет 1,410 м |
R | Радиус пути в кривой, м |
w | Поперечное смещение между рамами тележек и кузовом, м |
Поперечное смещение кузова относительно тележки, зависящее от радиуса кривой, по направлению внутрь кривой, м | |
Поперечное смещение кузова относительно тележки по направлению к наружной стороне кривой, м | |
Поперечное смещение кузова относительно тележки при нахождении вагона в прямой, м | |
z | Отклонение от среднего положения на пути вследствие квазистатического бокового наклона и асимметрии Особые случаи: Если то .Если то .Если Для необрессоренных частей z = 0 |
s | Коэффициент наклона подвижного состава: если железнодорожный подвижной состав стоит на пути с возвышением одного рельса и плоскость, касательная к головке рельсов, образует с горизонталью угол Соотношение |
h | Высота данной точки вагона от уровня верха головок рельсов, м |
Высота центра поворота кузова вагона относительно уровня верха головок рельсов, м | |
q | Наибольшее возможное поперечное перемещение в направляющем сечении в одну сторону из центрального положения рамы тележки относительно колесной пары вследствие наличия зазоров при максимальных износах и деформаций упругих элементов в буксовом узле и узле сочленения рамы тележки с буксой, м |
Асимметрия железнодорожного подвижного состава в градусах вследствие строительных и регулировочных допусков и возможности неравномерного распределения нагрузки (в градусах) | |
Дополнительное ограничение внутренних сечений вагонов, имеющих большую базу, с учетом кривых радиуса между 250 м и 150 м. Этот член проявляется, если , т.е. при величине базы a, близкой к 20 м | |
Дополнительное ограничение для внешних сечений железнодорожного подвижного состава с большой базой .Это выражение ограничивает предоставляемое железнодорожному подвижному составу пространство в кривых радиуса между 250 мм и 150 м | |
l | Ширина колеи с учетом предельных отклонений. Принимается 1,465 м для всех габаритов, кроме верхнего очертания габарита 1-BM. Для него следует принимать размер 1,546 м |
Расстояние между скользунами, м |
,
,
, (6.12)
,
, (6.13)
; (6.14)
,
,
, (6.15)
,
(6.16)
. (6.17)
, то расчет внутренних ограничений
производят по следующей формуле
. (6.18)
производят по формуле
(6.19)
, то расчет внешних ограничений
(6.20)
(6.21)
,
, (6.24)
(6.25)
;
,
(6.26)
, (6.27)
(6.28)
. (6.29)
. (6.30)
, расчет ограничений производят по формуле
, расчет ограничений производят по формуле
(6.32)
. (6.33)
, (6.34)
и
, (6.35)
, (6.36)
, если
, (6.37)
, (6.38)
, если
. (6.39)Наименование составных частей подвижного состава | Учитываемые факторы понижений |
Колеса | Максимальный износ для всех видов железнодорожного подвижного состава |
Различные, не указанные в таблице отдельно, части железнодорожного подвижного состава | Максимальные износы, например: скользунов, тормозных рычажных передач и других деталей для всех видов железнодорожного подвижного состава и для каждой конструкции особенно |
Корпус подшипника | Износ не учитывается |
Рама тележки | Строительные допуски, которые ведут к понижению по отклонению к номинальным размерам: не учитываются |
Кузов железнодорожного подвижного состава | Строительные допуски, которые ведут к понижению относительно номинальных размеров: не учитываются у всех видов железнодорожного подвижного состава, включая обычные грузовые вагоны и все специальные грузовые вагоны |
Наименование составных частей подвижного состава | Учитываемые факторы понижений |
Колеса | Не учитываются |
Рамы тележек | Не учитываются |
Кузов железнодорожного подвижного состава | Поперечный прогиб и скручивание не учитываются. Продольный прогиб должен учитываться у грузовых вагонов от воздействия увеличенной на 30% максимально допустимой нагрузки, что учитывает динамическую нагрузку |
Наименование составных частей железнодорожного подвижного состава | Учитываемые факторы понижений |
Стальная рессора | Прогиб от статической нагрузки. Дополнительный прогиб от динамических нагрузок. Прогиб, определяемый допусками |
Резиновая рессора | Прогиб учитывается так же, как и у стальной рессоры |
Пневморессора | Полный прогиб - сильфон опорожнен (включая запасное подрессоривание, если оно имеется) |
Наименование единиц железнодорожного подвижного состава | Учитываемые факторы понижений |
Пассажирские вагоны порожние, готовые к движению | Суммарный прогиб 30 мм |
Пассажирские и багажные вагоны | Прогиб при перегрузе в размере 30% от подрессоренного веса или полный прогиб |
Грузовые вагоны | Полный прогиб |
Специальные грузовые вагоны | Прогиб при перегрузе в размере 30% от подрессоренного веса или полный прогиб |
(недостаток возвышения 278 мм) вместо
у обычного железнодорожного подвижного состава.
, (6.42)
, (6.43)
, м;
, (6.44)ИС МЕГАНОРМ: примечание. Неравенство дано в соответствии с официальным текстом документа. |
. (6.45)
На высоте от уровня верха головок рельсов, мм | Для габаритов T, | Для конкретного подвижного состава | ||||
пассажирского | грузового | |||||
при скорости движения, км/ч, не более | ||||||
40 | 10 | 40 | 10 | 40 | 10 | |
5500 - 5201 | 135 | 125 | 190 | 175 | 165 | 155 |
5200 - 4901 | 125 | 115 | 180 | 170 | 160 | 150 |
4900 - 4601 | 120 | 110 | 175 | 160 | 155 | 145 |
4600 - 4301 | 115 | 105 | 170 | 155 | 145 | 140 |
4300 - 4001 | 105 | 100 | 160 | 150 | 140 | 135 |
4000 - 3701 | 100 | 95 | 155 | 145 | 135 | 130 |
3700 - 3401 | 90 | 90 | 150 | 140 | 130 | 125 |
3400 - 3101 | 85 | 80 | 140 | 130 | 125 | 120 |
3100 - 2801 | 80 | 75 | 135 | 125 | 120 | 115 |
2800 - 2501 | 70 | 70 | 130 | 120 | 115 | 110 |
2500 - 2201 | 65 | 60 | 120 | 115 | 105 | 105 |
2200 - 2001 | 60 | 55 | 115 | 105 | 100 | 100 |
2000 - 1801 | 55 | 50 | 110 | 100 | 95 | 95 |
1800 - 1601 | 50 | 50 | 105 | 100 | 95 | 90 |
1600 - 1301 | 45 | 45 | 100 | 95 | 90 | 85 |
1300 и менее | 25 | 25 | 75 | 75 | 75 | 75 |
Примечания 1. Нормы, приведенные для конкретного подвижного состава, даны для внутренних сечений рассматриваемого подвижного состава. Для определения минимальных зазоров между сооружениями и частями подвижного состава, расположенных в наружных его сечениях, значения, приведенные для конкретного подвижного состава, следует увеличить: - на - на где l - база подвижного состава, м. Внутренние сечения подвижного состава - поперечные сечения в пределах базы подвижного состава (между направляющими сечениями). Наружные сечения подвижного состава - поперечные сечения за пределами базы подвижного состава (снаружи направляющих сечений). Направляющие сечения - согласно определению в 2.10. 2. В кривых участках пути горизонтальные расстояния до сооружений или устройств, найденные с учетом норм настоящей таблицы, следует дополнительно увеличить на величину , мм, , мм,где - при учете размеров габаритов подвижного состава , мм;- при учете размеров конкретного подвижного состава , мм; , мм,где h - возвышение наружного рельса, мм; R - радиус кривой, м; p - база тележек подвижного состава, м; | ||||||
На расстоянии от оси пути, мм | Для габаритов подвижного состава T, | Для конкретного подвижного состава | ||
при скорости движения, км/ч, не более | ||||
40 | 10 | 40 | 10 | |
1900 - 1701 | 65/80 | 60/75 | 85/100 | 80/95 |
1700 - 1501 | 60/75 | 55/70 | 80/95 | 75/90 |
1500 - 1301 | 55/70 | 50/65 | 75/90 | 70/85 |
1300 - 1101 | 40/65 | 40/60 | 60/85 | 60/80 |
1100 - 901 | 40/60 | 40/60 | 60/80 | 60/80 |
900 - 701 | 40/55 | 40/55 | 60/75 | 60/75 |
700 и менее | 40/50 | 40/50 | 60/70 | 60/70 |
Примечания 1. Нормы, приведенные дробью, даны для частей сооружений или устройств, расположенных: в числителе - ниже, а в знаменателе - выше соответствующих частей подвижного состава. 2. В кривых участках пути вертикальные расстояния от головок рельсов до частей сооружений и устройств, найденные с учетом норм настоящей таблицы, следует дополнительно увеличить на величину , мм; , мм,где | ||||





Трудовые операции | Расстояние S, мм, при скоростях движения обрабатываемого состава V1 и состава на смежном пути V2, не более, км/ч | |||
V1 =0, V2 = 0 | V1 = 0, V2 <= 60 | V1 <= 60, V2 = 0 | V1 <= 60, V2 <= 60 | |
Проход по междупутью при (для) выполнении технических операций | 4500 | 4800 | 4800 | |
Пропуск движущегося состава, вагонов | - | 4500 | 4500 | 4750 |
Встреча с сигналом в руке движущегося поезда | - | - | 4650 | 4800 |
Подача ручных сигналов при маневрах | 4450 | 4650 | 4650 | 4800 |
Расцепка вагонов вручную (V1 <= 3 км/ч) | 4370 | 4600 | 4600 | 4770 |
Общий осмотр, списывание номеров вагонов (V1 <= 25 км/ч) | 4350 | 4550 | 4550 | 4800 |
Коммерческий осмотр и разметка вагонов | 4480 | 4720 | ||
Устранение коммерческих неисправностей | 4570 | 4800 | ||
Технический осмотр (обслуживание вагонов) | 4490 | 4720 | ||
Безотцепочный ремонт вагонов | 4585 | 4800 | ||
Снятие и навешивание сигнального диска на вагон | 4350 | 4500 | ||
Укладка и снятие тормозных башмаков вручную | 4350 | 4350 | ||
Укладка и снятие тормозных башмаков с помощью вилки (V1 <= 15 км/ч) | - | - | 4700 | 4800 |
Проезд на подножках вагонов (V1 <= 25 км/ч) | - | - | 4200 | 4300 |
ИС МЕГАНОРМ: примечание. В официальном тексте документа, видимо, допущена опечатка: таблица Д.18 отсутствует. |
Наименование путей | Расстояния между осями смежных путей на станциях, разъездах и обгонных пунктах, мм | ||
нормальное | минимальное | ||
Главные пути на двухпутных участках при движении со скоростями | До 140 км/ч | 5300 | Равно расстоянию между осями путей на прилегающих перегонах <*> |
Свыше 140 и до 250 км/ч | Равно расстоянию между осями путей на прилегающих перегонах <*> | ||
Главные пути на многопутных участках | Равно расстоянию между осями путей на прилегающих перегонах <*> | ||
Главные пути различных направлений на раздельных пунктах, к которым примыкают несколько железнодорожных линий | По нормам главного пути и смежного с ним | ||
Главный и смежные с ним пути при движении поездов со скоростями | До 140 км/ч | 5300 | 5300 |
Свыше 140 и до 250 км/ч | 7650 | 7400 | |
Приемо-отправочные пути и сортировочно-отправочные пути | 5300 | 4800 | |
Вытяжной и смежный с ним путь | 6500 | 5300 | |
Второстепенные станционные пути | Пути стоянки железнодорожного подвижного состава | 4800 | 4500 |
Пути грузовых дворов (кроме путей для перегрузки) | 4800 | 4500 | |
Остальные пути | 4800 | 4500 | |
Пути парков приема, отправления, где предусматривается безотцепочный ремонт вагонов | Через один путь | ||
5600 и 5300 | 5600 и 5300 | ||
Пути для отцепочного ремонта вагонов | Через один путь | ||
6000 и 7500 | 6000 и 7500 | ||

- габарит приближения строений в прямых участках пути;
- то же, в кривых.Радиус кривой, м | Координаты точек габарита приближения строений с наружной стороны кривой ( | |||||||
II | ||||||||
(6400/1020) | (6250/1120) | |||||||
1 | 2 | 4 | 5 | 6 | 8 | 9 | ||
4000 | 6400 | 1130 | 6470 | 760 | 6250 | 1220 | 6320 | 870 |
3000 | 6400 | 1180 | 6500 | 650 | 6250 | 1270 | 6360 | 760 |
2500 | 6400 | 1190 (1210) | 6530 | 580 | 6250 | 1280 (1310) | 6390 | 640 |
2000 | 6400 | 1190 (1270) | 6560 | 420 | 6250 | 1280 (1370) | 6420 | 530 |
1800 | 6400 | 1190 (1270) | 6580 | 330 | 6250 | 1280 (1370) | 6440 | 450 |
1500 | 6400 | 1190 (1270) | 6620 | 190 | 6250 | 1280 (1370) | 6480 | 310 |
1200 | 6400 | 1190 (1270) | 6620 | 190 | 6250 | 1280 (1370) | 6480 | 310 |
1000 | 6400 | 1190 (1270) | 6620 | 190 | 6250 | 1280 (1370) | 6480 | 310 |
800 | 6400 | 1190 (1270) | 6620 | 190 | 6250 | 1280 (1370) | 6480 | 310 |
700 | 6400 | 1190 (1270) | 6620 | 190 | 6250 | 1280 (1370) | 6480 | 310 |
600 | 6400 | 1190 (1270) | 6620 | 190 | 6250 | 1280 (1370) | 6480 | 310 |
500 | 6400 | 1190 (1270) | 6620 | 190 | 6250 | 1280 (1370) | 6480 | 310 |
400 | 6400 | 1190 (1270) | 6620 | 190 | 6250 | 1280 (1370) | 6480 | 310 |
350 | 6400 | 1190 (1270) | 6620 | 190 | 6250 | 1280 (1370) | 6480 | 310 |
300 | 6400 | 1190 (1270) | 6620 | 190 | 6250 | 1280 (1370) | 6480 | 310 |
250 | 6400 | 1190 (1270) | 6620 | 190 | 6250 | 1280 (1370) | 6480 | 310 |
200 | 6400 | 1190 (1270) | 6620 | 190 | 6250 | 1280 (1370) | 6480 | 310 |
Радиус кривой, м | Координаты точек габарита приближения строений с наружной стороны кривой ( | |||||||
1 | 2 | 4 | ||||||
(5550/1600) | (4300/2450) | (1100/2450) | ||||||
10 | 12 | 13 | 14 | 15 | 16 | 17 | ||
4000 | 5550 | 1700 | 5650 | 1390 | 4300 | 2460 | 1100 | 2460 |
3000 | 5550 | 1750 | 5690 | 1290 | 4300 | 2460 | 1100 | 2460 |
2500 | 5550 | 1760 (1780) | 5730 | 1190 | 4300 | 2460 | 1100 | 2460 |
2000 | 5550 | 1760 (1830) | 5770 | 1100 | 4300 | 2470 | 1100 | 2470 |
1800 | 5550 | 1760 (1840) | 5800 | 1020 | 4300 | 2470 | 1100 | 2470 |
1500 | 5550 | 1770 (1840) | 5850 | 900 | 4300 | 2470 | 1100 | 2470 |
1200 | 5550 | 1770 (1850) | 5850 | 910 | 4300 | 2480 | 1100 | 2480 |
1000 | 5550 | 1780 (1850) | 5850 | 920 | 4300 | 2490 | 1100 | 2490 |
800 | 5550 | 1790 (1860) | 5850 | 930 | 4300 | 2500 | 1100 | 2500 |
700 | 5550 | 1790 (1870) | 5850 | 930 | 4300 | 2500 | 1100 | 2500 |
600 | 5550 | 1800 (1880) | 5850 | 940 | 4300 | 2510 | 1100 | 2510 |
500 | 5550 | 1820 (1890) | 5850 | 950 | 4300 | 2520 | 1100 | 2520 |
400 | 5550 | 1830 (1910) | 5850 | 970 | 4300 | 2540 | 1100 | 2540 |
350 | 5550 | 1850 (1920) | 5850 | 980 | 4300 | 2550 | 1100 | 2550 |
300 | 5550 | 1860 (1940) | 5850 | 1000 | 4300 | 2570 | 1100 | 2570 |
250 | 5550 | 1890 (1960) | 5850 | 1020 | 4300 | 2590 | 1100 | 2590 |
200 | 5550 | 1920 (2000) | 5850 | 1060 | 4300 | 2630 | 1100 | 2630 |
Радиус кривой, м | Координаты точек габарита приближения строений с наружной стороны кривой ( | |||||||
4а | 5 | 6 | 7 | |||||
(1070/2450) | (1100/1920) | (200/1920) | (200/1745) | |||||
18 | 19 | 20 | 23 | 25 | ||||
4000 | 1070 | 2460 | 1100 | 1940 | 160 | 1930 | 160 | 1750 |
3000 | 1070 | 2460 | 1100 | 1940 | 150 | 1930 | 150 | 1760 |
2500 | 1070 | 2460 | 1100 | 1940 (1950) | 140 | 1930 | 140 | 1760 |
2000 | 1070 | 2470 | 1100 | 1950 (1950) | 140 (120) | 1940 | 140 (120) | 1760 |
1800 | 1070 | 2470 | 1100 | 1950 (1960) | 140 (120) | 1940 | 140 (120) | 1770 |
1500 | 1070 | 2470 | 1100 | 1950 (1960) | 140 (120) | 1940 | 140 (120) | 1770 |
1200 | 1070 | 2480 | 1100 | 1960 (1970) | 140 (120) | 1950 | 140 (120) | 1780 |
1000 | 1070 | 2490 | 1100 | 1970 (1970) | 140 (120) | 1960 | 140 (120) | 1780 |
800 | 1070 | 2500 | 1100 | 1980 (1980) | 140 (120) | 1970 | 140 (120) | 1790 |
700 | 1070 | 2500 | 1100 | 1980 (1990) | 140 (120) | 1970 | 140 (120) | 1800 |
600 | 1070 | 2510 | 1100 | 1990 (2000) | 140 (120) | 1980 | 140 (120) | 1810 |
500 | 1070 | 2520 | 1100 | 2000 (2010) | 140 (120) | 1990 | 140 (120) | 1820 |
400 | 1070 | 2540 | 1100 | 2020 (2030) | 140 (120) | 2010 | 140 (120) | 1840 |
350 | 1070 | 2550 | 1100 | 2030 (2040) | 140 (120) | 2020 | 140 (120) | 1850 |
300 | 1070 | 2570 | 1100 | 2050 (2060) | 140 (120) | 2040 | 140 (120) | 1870 |
250 | 1070 | 2590 | 1100 | 2070 (2080) | 140 (120) | 2060 | 140 (120) | 1890 |
200 | 1070 | 2630 | 1100 | 2110 (2120) | 140 (120) | 2100 | 140 (120) | 1930 |
Радиус кривой, м | Координаты точек габарита приближения строений с наружной стороны кривой ( | ||||||
8 | 9 | 10 | 11 | ||||
(0/1745) | (0/2450) | (3200/3100) | (0/3100) | ||||
26 | 27 | 28 | 29 | 30 | 31 | 32 | |
4000 | 1750 | 2460 | 3200 | 3110 | 3350 | 2990 | 3110 |
3000 | 1760 | 2460 | 3200 | 3110 | 3400 | 2950 | 3110 |
2500 | 1760 | 2460 | 3200 | 3110 | 3440 | 2910 | 3110 |
2000 | 1760 | 2470 | 3200 | 3120 | 3490 | 2880 | 3120 |
1800 | 1770 | 2470 | 3200 | 3120 | 3530 | 2850 | 3120 |
1500 | 1770 | 2470 | 3200 | 3120 | 3590 | 2800 | 3120 |
1200 | 1780 | 2480 | 3200 | 3130 | 3590 | 2810 | 3130 |
1000 | 1780 | 2490 | 3200 | 3140 | 3590 | 2820 | 3140 |
800 | 1790 | 2500 | 3200 | 3150 | 3590 | 2830 | 3150 |
700 | 1800 | 2500 | 3200 | 3150 | 3590 | 2830 | 3150 |
600 | 1810 | 2510 | 3200 | 3160 | 3590 | 2840 | 3160 |
500 | 1820 | 2520 | 3200 | 3170 | 3590 | 2850 | 3170 |
400 | 1840 | 2540 | 3200 | 3190 | 3590 | 2870 | 3190 |
350 | 1850 | 2550 | 3200 | 3200 | 3590 | 2880 | 3200 |
300 | 1870 | 2570 | 3200 | 3220 | 3590 | 2900 | 3220 |
250 | 1890 | 2590 | 3200 | 3240 | 3590 | 2920 | 3240 |
200 | 1930 | 2630 | 3200 | 3280 | 3590 | 2960 | 3280 |
Радиус кривой, м | Координаты точек габарита приближения строений с внутренней стороны кривой ( | |||||||
II | Iб | 1, I | ||||||
(6400/1020) | (6250/1120) | (5900/1700) | (5550/1600) | |||||
33 | 34 | 35 | 36 | 37 | 38 | 39 | 40 | |
4000 | 6400 | 1250 | 6250 | 1340 | 5900 | 1910 | 5550 | 1810 |
3000 | 6400 | 1370 | 6250 | 1460 | 5900 | 2020 | 5550 | 1910 |
2500 | 6400 | 1480 | 6250 | 1570 | 5900 | 2120 | 5550 | 2010 |
2000 | 6400 | 1600 | 6250 | 1690 | 5900 | 2230 | 5550 | 2110 |
1800 | 6400 | 1690 | 6250 | 1770 | 5900 | 2310 | 5550 | 2190 |
1500 | 6400 | 1830 | 6250 | 1910 | 5900 | 2440 | 5550 | 2320 |
1200 | 6400 | 1830 | 6250 | 1910 | 5900 | 2440 | 5550 | 2330 |
1000 | 6400 | 1830 | 6250 | 1910 | 5900 | 2440 | 5550 | 2330 |
800 | 6400 | 1830 | 6250 | 1910 | 5900 | 2440 | 5550 | 2340 |
700 | 6400 | 1830 | 6250 | 1910 | 5900 | 2440 | 5550 | 2350 |
600 | 6400 | 1830 | 6250 | 1910 | 5900 | 2440 | 5550 | 2360 |
500 | 6400 | 1830 | 6250 | 1910 | 5900 | 2440 | 5550 | 2370 |
400 | 6400 | 1830 | 6250 | 1910 | 5900 | 2440 | 5550 | 2390 |
350 | 6400 | 1830 | 6250 | 1910 | 5900 | 2440 | 5550 | 2400 |
300 | 6400 | 1830 | 6250 | 1910 | 5900 | 2440 | 5550 | 2420 |
250 | 6400 | 1830 | 6250 | 1910 | 5900 | 2440 | 5550 | 2440 |
200 | 6400 | 1830 | 6250 | 1910 | 5900 | 2440 | 5550 | 2480 |
Радиус кривой, м | Координаты точек габарита приближения строений с внутренней стороны кривой ( | |||||||
2 | 4 | 4а | 5 | |||||
(4300/2450) | (1100/2450) | (1070/2450) | (1100/1920) | |||||
41 | 42 | 43 | 44 | 45 | 46 | 47 | 48 | |
4000 | 4300 | 2600 | 1040 | 2480 | 1010 | 2470 | 1040 | 1950 |
3000 | 4300 | 2650 | 1030 | 2490 | 1000 | 2490 | 1030 | 1970 |
2500 | 4300 | 2710 | 1010 | 2510 | 980 | 2510 | 1010 | 1980 |
2000 | 4300 | 2770 | 990 | 2530 | 970 | 2520 | 990 | 2000 |
1800 | 4300 | 2810 | 970 | 2540 | 940 | 2540 | 970 | 2020 |
1500 | 4300 | 2880 | 950 | 2560 | 920 | 2560 | 950 | 2040 |
1200 | 4300 | 2890 | 950 | 2570 | 920 | 2560 | 950 | 2050 |
1000 | 4300 | 2890 | 950 | 2570 | 920 | 2570 | 950 | 2050 |
800 | 4300 | 2900 | 950 | 2580 | 920 | 2580 | 950 | 2060 |
700 | 4300 | 2910 | 950 | 2590 | 920 | 2580 | 950 | 2070 |
600 | 4300 | 2920 | 950 | 2600 | 920 | 2590 | 950 | 2080 |
500 | 4300 | 2930 | 950 | 2610 | 920 | 2600 | 950 | 2090 |
400 | 4300 | 2950 | 950 | 2630 | 920 | 2620 | 950 | 2110 |
350 | 4300 | 2960 | 950 | 2640 | 920 | 2640 | 950 | 2120 |
300 | 4300 | 2980 | 950 | 2660 | 920 | 2650 | 950 | 2140 |
250 | 4300 | 3000 | 950 | 2680 | 920 | 2680 | 950 | 2160 |
200 | 4300 | 3040 | 950 | 2720 | 920 | 2710 | 950 | 2200 |
Радиус кривой, м | Координаты точек габарита приближения строений с внутренней стороны кривой ( | ||||||||
6 | 7 | 8 | 9 | 10 | 11 | ||||
(200/1920) | (200/1745) | (0/1745) | (0/2450) | (3200/3100) | (0/3100) | ||||
49 | 50 | 51 | 52 | 53 | 54 | 55 | 56 | 57 | |
4000 | 160 | 1930 | 160 | 1750 | 1750 | 2460 | 3200 | 3200 | 3110 |
3000 | 130 | 1930 | 130 | 1760 | 1760 | 2460 | 3200 | 3250 | 3110 |
2500 | 100 | 1930 | 100 | 1760 | 1760 | 2460 | 3200 | 3290 | 3110 |
2000 | 80 | 1940 | 80 | 1760 | 1760 | 2470 | 3200 | 3330 | 3120 |
1800 | 60 | 1940 | 60 | 1770 | 1770 | 2470 | 3200 | 3370 | 3120 |
1500 | 30 | 1940 | 30 | 1770 | 1770 | 2470 | 3200 | 3420 | 3120 |
1200 | 30 | 1950 | 30 | 1780 | 1780 | 2480 | 3200 | 3430 | 3130 |
1000 | 30 | 1960 | 30 | 1780 | 1780 | 2490 | 3200 | 3430 | 3140 |
800 | 30 | 1970 | 30 | 1790 | 1790 | 2500 | 3200 | 3440 | 3150 |
700 | 30 | 1970 | 30 | 1800 | 1800 | 2500 | 3200 | 3450 | 3150 |
600 | 30 | 1980 | 30 | 1810 | 1810 | 2510 | 3200 | 3460 | 3160 |
500 | 30 | 1990 | 30 | 1820 | 1820 | 2520 | 3200 | 3470 | 3170 |
400 | 30 | 2010 | 30 | 1840 | 1840 | 2540 | 3200 | 3490 | 3190 |
350 | 30 | 2020 | 30 | 1850 | 1850 | 2550 | 3200 | 3500 | 3200 |
300 | 30 | 2040 | 30 | 1870 | 1870 | 2570 | 3200 | 3520 | 3220 |
250 | 30 | 2060 | 30 | 1890 | 1890 | 2590 | 3200 | 3540 | 3240 |
200 | 30 | 2100 | 30 | 1930 | 1930 | 2630 | 3200 | 3580 | 3280 |
Примечания 1. Под номерами точек в скобках дробью указаны их координаты в прямой: в числителе - высота H точек габарита (считая от уровня верха головки рельса), в знаменателе - горизонтальное расстояние B от оси пути до точек габарита. 2. 3. | |||||||||
Радиус кривой, м | Координаты точек габарита приближения строений с наружной стороны кривой ( | |||||||||
I | 1 | 1 | ||||||||
(5550/1600) | (5550/1600) | (5550/1635) | ||||||||
1 | 2 | 3 | 4 | 5 | 6 | 7 | 8 | 9 | 10 | 11 |
4000 | 5550 | 1630 | 5550 | 1630 | 5570 | 1560 | 5500 | 1660 | 5520 | 1590 |
3000 | 5550 | 1650 | 5550 | 1650 | 5580 | 1530 | 5500 | 1680 | 5530 | 1580 |
2500 | 5550 | 1660 | 5550 | 1660 | 5590 | 1530 | 5500 | 1700 | 5540 | 1560 |
2000 | 5550 | 1680 | 5550 | 1680 | 5600 | 1510 | 5500 | 1720 | 5550 | 1550 |
1800 | 5550 | 1700 | 5550 | 1700 | 5600 | 1500 | 5500 | 1730 | 5550 | 1550 |
1500 | 5550 | 1720 | 5550 | 1720 | 5610 | 1490 | 5500 | 1760 | 5560 | 1520 |
1200 | 5550 | 1760 | 5550 | 1760 | 5630 | 1460 | 5500 | 1790 | 5580 | 1490 |
1000 | 5550 | 1780 | 5550 | 1780 | 5650 | 1410 | 5500 | 1810 | 5600 | 1450 |
800 | 5550 | 1780 | 5550 | 1790 | 5670 | 1370 | 5500 | 1820 | 5620 | 1410 |
700 | 5550 | 1790 | 5550 | 1790 | 5690 | 1300 | 5500 | 1830 | 5650 | 1340 |
600 | 5550 | 1800 | 5550 | 1800 | 5710 | 1260 | 5500 | 1840 | 5670 | 1300 |
500 | 5550 | 1810 | 5550 | 1810 | 5750 | 1180 | 5500 | 1850 | 5710 | 1220 |
400 | 5550 | 1830 | 5550 | 1830 | 5770 | 1170 | 5500 | 1870 | 5720 | 1210 |
350 | 5550 | 1850 | 5550 | 1850 | 5770 | 1180 | 5500 | 1880 | 5720 | 1220 |
300 | 5550 | 1860 | 5550 | 1860 | 5770 | 1200 | 5500 | 1900 | 5720 | 1240 |
250 | 5550 | 1890 | 5550 | 1890 | 5770 | 1220 | 5500 | 1920 | 5720 | 1260 |
200 | 5550 | 1920 | 5550 | 1920 | 5770 | 1260 | 5500 | 1960 | 5720 | 1300 |
180 | 5550 | 1940 | 5550 | 1940 | 5770 | 1280 | 5500 | 1980 | 5720 | 1320 |
150 | 5550 | 1980 | 5550 | 1980 | 5770 | 1320 | 5500 | 2020 | 5720 | 1360 |
120 | 5550 | 2040 | 5550 | 2040 | 5770 | 1380 | 5500 | 2080 | 5720 | 1420 |
Радиус кривой, м | Координаты точек габарита приближения строений с наружной стороны кривой ( | |||||||||
1 | 1а | 2а | 2б | |||||||
(5400/1700) | (4800/2110) | (2350) | (2000) | |||||||
12 | 13 | 14 | 15 | 16 | 17 | 18 | 19 | 20 | 21 | |
4000 | 5400 | 1730 | 5420 | 1660 | 4800 | 2130 | 4830 | 2070 | 2360 | 2010 |
3000 | 5400 | 1750 | 5430 | 1650 | 4800 | 2150 | 4840 | 2060 | 2360 | 2010 |
2500 | 5400 | 1760 | 5440 | 1630 | 4800 | 2160 | 4850 | 2050 | 2360 | 2010 |
2000 | 5400 | 1780 | 5450 | 1620 | 4800 | 2180 | 4860 | 2040 | 2370 | 2020 |
1800 | 5400 | 1790 | 5450 | 1620 | 4800 | 2190 | 4860 | 2040 | 2370 | 2020 |
1500 | 5400 | 1820 | 5460 | 1590 | 4800 | 2220 | 4870 | 2010 | 2370 | 2020 |
1200 | 5400 | 1860 | 5480 | 1560 | 4800 | 2250 | 4890 | 1990 | 2380 | 2030 |
1000 | 5400 | 1870 | 5500 | 1520 | 4800 | 2270 | 4920 | 1950 | 2390 | 2040 |
800 | 5400 | 1880 | 5520 | 1480 | 4800 | 2280 | 4940 | 1920 | 2400 | 2050 |
700 | 5400 | 1890 | 5550 | 1410 | 4800 | 2280 | 4980 | 1860 | 2400 | 2050 |
600 | 5400 | 1900 | 5570 | 1370 | 4800 | 2290 | 5000 | 1830 | 2410 | 2060 |
500 | 5400 | 1910 | 5610 | 1290 | 4800 | 2300 | 5050 | 1760 | 2420 | 2070 |
400 | 5400 | 1930 | 5630 | 1280 | 4800 | 2320 | 5060 | 1750 | 2440 | 2090 |
350 | 5400 | 1940 | 5630 | 1300 | 4800 | 2330 | 5060 | 1770 | 2450 | 2100 |
300 | 5400 | 1960 | 5630 | 1310 | 4800 | 2350 | 5060 | 1780 | 2470 | 2120 |
250 | 5400 | 1980 | 5630 | 1340 | 4800 | 2370 | 5060 | 1810 | 2490 | 2140 |
200 | 5400 | 2020 | 5630 | 1370 | 4800 | 2410 | 5060 | 1840 | 2530 | 2180 |
180 | 5400 | 2040 | 5630 | 1390 | 4800 | 2430 | 5060 | 1860 | 2550 | 2200 |
150 | 5400 | 2080 | 5630 | 1430 | 4800 | 2470 | 5060 | 1900 | 2590 | 2240 |
120 | 5400 | 2140 | 5630 | 1490 | 4800 | 2530 | 5060 | 1960 | 2650 | 2300 |
Радиус кривой, м | Координаты точек габарита приближения строений с наружной стороны кривой ( | |||||||||
2 | 4 | 4а | 5 | 6 | ||||||
(4300/2450) | (1100/2450) | (1070/2450) | (1100/1920) | (200/1920) | ||||||
22 | 23 | 24 | 25 | 26 | 27 | 29 | 31 | |||
4000 | 4300 | 2460 | 1100 | 2460 | 1070 | 2460 | 1100 | 1930 | 190 | 1930 |
3000 | 4300 | 2460 | 1100 | 2460 | 1070 | 2460 | 1100 | 1930 | 190 | 1930 |
2500 | 4300 | 2460 | 1100 | 2460 | 1070 | 2460 | 1100 | 1940 | 180 | 1930 |
2000 | 4300 | 2470 | 1100 | 2470 | 1070 | 2470 | 1100 | 1940 | 170 | 1940 |
1800 | 4300 | 2470 | 1100 | 2470 | 1070 | 2470 | 1100 | 1950 | 170 | 1940 |
1500 | 4300 | 2470 | 1100 | 2470 | 1070 | 2470 | 1100 | 1950 | 160 | 1940 |
1200 | 4300 | 2480 | 1100 | 2480 | 1070 | 2480 | 1100 | 1960 | 150 | 1950 |
1000 | 4300 | 2490 | 1100 | 2490 | 1070 | 2490 | 1100 | 1970 | 140 | 1960 |
800 | 4300 | 2500 | 1100 | 2500 | 1070 | 2500 | 1100 | 1980 | 140 | 1970 |
700 | 4300 | 2500 | 1100 | 2500 | 1070 | 2500 | 1100 | 1980 | 140 | 1970 |
600 | 4300 | 2510 | 1100 | 2510 | 1070 | 2510 | 1100 | 1990 | 140 | 1980 |
500 | 4300 | 2520 | 1100 | 2520 | 1070 | 2520 | 1100 | 2000 | 140 | 1990 |
400 | 4300 | 2540 | 1100 | 2540 | 1070 | 2540 | 1100 | 2020 | 140 | 2010 |
350 | 4300 | 2550 | 1100 | 2550 | 1070 | 2550 | 1100 | 2030 | 140 | 2020 |
300 | 4300 | 2570 | 1100 | 2570 | 1070 | 2570 | 1100 | 2050 | 140 | 2040 |
250 | 4300 | 2590 | 1100 | 2590 | 1070 | 2590 | 1100 | 2070 | 140 | 2060 |
200 | 4300 | 2630 | 1100 | 2630 | 1070 | 2630 | 1100 | 2110 | 140 | 2100 |
180 | 4300 | 2650 | 1100 | 2650 | 1070 | 2650 | 1100 | 2130 | 140 | 2120 |
150 | 4300 | 2690 | 1100 | 2690 | 1070 | 2690 | 1100 | 2170 | 140 | 2160 |
120 | 4300 | 2750 | 1100 | 2750 | 1070 | 2750 | 1100 | 2230 | 140 | 2220 |
Радиус кривой, м | Координаты точек габарита приближения строений с наружной стороны кривой ( | ||||||||
7 | 8 | 9 | 10 | 11 | |||||
(200/1745) | (0/1745) | (0/2450) | (3200/3100) | (0/3100) | |||||
33 | 34 | 35 | 36 | 37 | 38 | 39 | 40 | ||
4000 | 190 | 1750 | 1750 | 2460 | 3200 | 3110 | 3240 | 3080 | 3110 |
3000 | 190 | 1760 | 1760 | 2460 | 3200 | 3110 | 3260 | 3090 | 3110 |
2500 | 180 | 1760 | 1760 | 2460 | 3200 | 3110 | 3270 | 3060 | 3110 |
2000 | 170 | 1760 | 1760 | 2470 | 3200 | 3120 | 3270 | 3060 | 3120 |
1800 | 170 | 1770 | 1770 | 2470 | 3200 | 3120 | 3300 | 3060 | 3120 |
1500 | 160 | 1770 | 1770 | 2470 | 3200 | 3120 | 3320 | 3040 | 3120 |
1200 | 150 | 1780 | 1780 | 2480 | 3200 | 3130 | 3350 | 3030 | 3130 |
1000 | 140 | 1780 | 1780 | 2490 | 3200 | 3140 | 3370 | 3020 | 3140 |
800 | 140 | 1790 | 1790 | 2500 | 3200 | 3150 | 3410 | 3010 | 3150 |
700 | 140 | 1800 | 1800 | 2500 | 3200 | 3150 | 3430 | 2980 | 3150 |
600 | 140 | 1810 | 1810 | 2510 | 3200 | 3160 | 3480 | 2970 | 3160 |
500 | 140 | 1820 | 1820 | 2520 | 3200 | 3170 | 3490 | 2940 | 3170 |
400 | 140 | 1840 | 1840 | 2540 | 3200 | 3190 | 3490 | 2950 | 3190 |
350 | 140 | 1850 | 1850 | 2550 | 3200 | 3200 | 3490 | 2960 | 3200 |
300 | 140 | 1870 | 1870 | 2570 | 3200 | 3220 | 3490 | 2980 | 3220 |
250 | 140 | 1890 | 1890 | 2590 | 3200 | 3240 | 3490 | 3000 | 3240 |
200 | 140 | 1930 | 1930 | 2630 | 3200 | 3280 | 3490 | 3040 | 3280 |
180 | 140 | 1950 | 1950 | 2650 | 3200 | 3300 | 3490 | 3060 | 3300 |
150 | 140 | 1990 | 1990 | 2690 | 3200 | 3340 | 3490 | 3100 | 3340 |
120 | 140 | 2050 | 2050 | 2750 | 3200 | 3400 | 3490 | 3160 | 3400 |
Радиус кривой, м | Координаты точек габарита приближения строений с внутренней стороны кривой ( | |||||||||
1, I | 1 | 1 | 1а | 2а (В-2350) | ||||||
(5550/1600) | (5500/1635) | (5400/1700) | (4800/2110) | на высоте, мм | ||||||
4450 | 1100 | |||||||||
41 | 42 | 43 | 44 | 45 | 46 | 47 | 48 | 49 | 50 | |
4000 | 5550 | 1640 | 5500 | 1670 | 5400 | 1740 | 4800 | 2140 | 2380 | 2340 |
3000 | 5550 | 1650 | 5500 | 1690 | 5400 | 1750 | 4800 | 2160 | 2390 | 2350 |
2500 | 5550 | 1680 | 5500 | 1710 | 5400 | 1770 | 4800 | 2170 | 2410 | 2360 |
2000 | 5550 | 1700 | 5500 | 1730 | 5400 | 1790 | 4800 | 2190 | 2430 | 2360 |
1800 | 5550 | 1700 | 5500 | 1730 | 5400 | 1800 | 4800 | 2200 | 2430 | 2370 |
1500 | 5550 | 1740 | 5500 | 1770 | 5400 | 1830 | 4800 | 2230 | 2460 | 2380 |
1200 | 5550 | 1780 | 5500 | 1810 | 5400 | 1870 | 4800 | 2270 | 2500 | 2390 |
1000 | 5550 | 1830 | 5500 | 1870 | 5400 | 1930 | 4800 | 2310 | 2530 | 2400 |
800 | 5550 | 1890 | 5500 | 1930 | 5400 | 1980 | 4800 | 2360 | 2570 | 2420 |
700 | 5550 | 1970 | 5500 | 2000 | 5400 | 2060 | 4800 | 2440 | 2620 | 2430 |
600 | 5550 | 2030 | 5500 | 2060 | 5400 | 2120 | 4800 | 2490 | 2660 | 2450 |
500 | 5550 | 2140 | 5500 | 2170 | 5400 | 2230 | 4800 | 2580 | 2730 | 2480 |
400 | 5550 | 2190 | 5500 | 2220 | 5400 | 2270 | 4800 | 2620 | 2760 | 2500 |
350 | 5550 | 2200 | 5500 | 2230 | 5400 | 2280 | 4800 | 2640 | 2770 | 2510 |
300 | 5550 | 2220 | 5500 | 2250 | 5400 | 2300 | 4800 | 2650 | 2790 | 2530 |
250 | 5550 | 2240 | 5500 | 2270 | 5400 | 2330 | 4800 | 2680 | 2810 | 2550 |
200 | 5550 | 2280 | 5500 | 2310 | 5400 | 2360 | 4800 | 2710 | 2850 | 2590 |
180 | 5550 | 2300 | 5500 | 2330 | 5400 | 2380 | 4800 | 2730 | 2870 | 2610 |
150 | 5550 | 2340 | 5500 | 2370 | 5400 | 2420 | 4800 | 2770 | 2910 | 2650 |
120 | 5550 | 2400 | 5500 | 2430 | 5400 | 2480 | 4800 | 2830 | 2970 | 2710 |
Радиус кривой, м | Координаты точек габарита приближения строений с внутренней стороны кривой ( | |||||||||
2б (В-2000) | 2 | 4 | 4а | 5 | ||||||
на высоте | (4300/2450) | (1100/2450) | (1070/2450) | (1100/1920) | ||||||
1970 | 1100 | |||||||||
51 | 52 | 53 | 54 | 55 | 56 | 57 | 58 | 59 | 60 | |
4000 | 2030 | 2000 | 4300 | 2470 | 1090 | 2450 | 1060 | 2450 | 1090 | 1920 |
3000 | 2050 | 2000 | 4300 | 2490 | 1080 | 2450 | 1050 | 2450 | 1080 | 1920 |
2500 | 2070 | 2010 | 4300 | 2510 | 1080 | 2460 | 1050 | 2460 | 1080 | 1930 |
2000 | 2090 | 2010 | 4300 | 2520 | 1070 | 2460 | 1040 | 2460 | 1070 | 1930 |
1800 | 2090 | 2020 | 4300 | 2530 | 1070 | 2470 | 1040 | 2470 | 1070 | 1940 |
1500 | 2120 | 2030 | 4300 | 2560 | 1060 | 2480 | 1030 | 2480 | 1060 | 1950 |
1200 | 2160 | 2040 | 4300 | 2590 | 1050 | 2490 | 1020 | 2490 | 1050 | 1960 |
1000 | 2200 | 2050 | 4300 | 2620 | 1040 | 2500 | 1010 | 2500 | 1040 | 1970 |
800 | 2240 | 2070 | 4300 | 2660 | 1030 | 2520 | 1000 | 2510 | 1030 | 1990 |
700 | 2290 | 2080 | 4300 | 2700 | 1020 | 2530 | 990 | 2530 | 1020 | 2010 |
600 | 2330 | 2100 | 4300 | 2740 | 1010 | 2550 | 980 | 2550 | 1010 | 2030 |
500 | 2400 | 2130 | 4300 | 2810 | 990 | 2580 | 960 | 2570 | 990 | 2050 |
400 | 2440 | 2150 | 4300 | 2840 | 990 | 2600 | 960 | 2600 | 990 | 2080 |
350 | 2450 | 2160 | 4300 | 2850 | 990 | 2610 | 960 | 2610 | 990 | 2090 |
300 | 2470 | 2180 | 4300 | 2870 | 990 | 2630 | 960 | 2630 | 990 | 2110 |
250 | 2590 | 2200 | 4300 | 2890 | 990 | 2650 | 960 | 2650 | 990 | 2130 |
200 | 2530 | 2240 | 4300 | 2930 | 990 | 2690 | 960 | 2690 | 990 | 2170 |
180 | 2550 | 2260 | 4300 | 2950 | 990 | 2710 | 960 | 2710 | 990 | 2190 |
150 | 2590 | 2300 | 4300 | 2990 | 990 | 2750 | 960 | 2750 | 990 | 2230 |
120 | 2650 | 2360 | 4300 | 3050 | 990 | 2810 | 960 | 2810 | 990 | 2290 |
Радиус кривой, м | Координаты точек габарита приближения строений с внутренней стороны кривой ( | ||||||||
6 | 7 | 8 | 9 | 10 | 11 | ||||
(200/1920) | (200/1745) | (0/1745) | (0/2450) | (3200/3100) | (0/3100) | ||||
61 | 62 | 63 | 64 | 65 | 66 | 67 | 68 | 69 | |
4000 | 190 | 1930 | 190 | 1750 | 1750 | 2460 | 3200 | 3110 | 3110 |
3000 | 190 | 1930 | 190 | 1760 | 1760 | 2460 | 3200 | 3130 | 3110 |
2500 | 180 | 1930 | 180 | 1760 | 1760 | 2460 | 3200 | 3140 | 3110 |
2000 | 180 | 1940 | 180 | 1760 | 1760 | 2470 | 3200 | 3150 | 3120 |
1800 | 180 | 1940 | 180 | 1770 | 1770 | 2470 | 3200 | 3160 | 3120 |
1500 | 170 | 1940 | 170 | 1770 | 1770 | 2470 | 3200 | 3180 | 3120 |
1200 | 170 | 1950 | 170 | 1780 | 1780 | 2480 | 3200 | 3210 | 3130 |
1000 | 160 | 1960 | 160 | 1780 | 1780 | 2490 | 3200 | 3230 | 3140 |
800 | 140 | 1970 | 140 | 1790 | 1790 | 2500 | 3200 | 3260 | 3150 |
700 | 120 | 1970 | 120 | 1800 | 1800 | 2500 | 3200 | 3310 | 3150 |
600 | 110 | 1980 | 110 | 1810 | 1810 | 2510 | 3200 | 3330 | 3160 |
500 | 90 | 1990 | 90 | 1820 | 1820 | 2520 | 3200 | 3380 | 3170 |
400 | 80 | 2010 | 80 | 1840 | 1840 | 2540 | 3200 | 3410 | 3190 |
350 | 80 | 2020 | 80 | 1850 | 1850 | 2550 | 3200 | 3420 | 3200 |
300 | 80 | 2040 | 80 | 1870 | 1870 | 2570 | 3200 | 3440 | 3220 |
250 | 80 | 2060 | 80 | 1890 | 1890 | 2590 | 3200 | 3460 | 3240 |
200 | 80 | 2100 | 80 | 1930 | 1930 | 2630 | 3200 | 3500 | 3280 |
180 | 80 | 2120 | 80 | 1950 | 1950 | 2650 | 3200 | 3520 | 3300 |
150 | 80 | 2160 | 80 | 1990 | 1990 | 2690 | 3200 | 3560 | 3340 |
120 | 80 | 2220 | 80 | 2050 | 2050 | 2750 | 3200 | 3620 | 3400 |
Примечания 1. Под номерами точек в скобках дробью указаны их координаты в прямой: в числителе - высота H точки габарита (считая от уровня верха головки рельса), в знаменателе - горизонтальное расстояние B от оси пути до точки габарита. 2. Нормы, приведенные для наружной стороны кривой в графах 28, 30, 32, являются обязательными для сооружений и устройств, не связанных с посадкой и высадкой пассажиров, а также погрузкой и выгрузкой грузов. Высоту пассажирских и грузовых платформ, расположенных с наружной и внутренней сторон кривых, следует принимать по эксплуатационным нормам исходя из величин возвышений наружного рельса и максимальной скорости движения на участке на перспективу. | |||||||||
Радиус кривой, м | Координаты точек габарита приближения строений с наружной стороны кривой ( | |||||||
II | ||||||||
(6400/1020) | (6250/1120) | |||||||
1 | 2 | 3 | 4 | 5 | 6 | 7 | 8 | 9 |
4000 | 6400 | 1020 (1050) | 6420 | 970 | 6250 | 1120 (1050) | 6270 | 1070 |
3000 | 6400 | 1030 (1070) | 6420 | 950 | 6250 | 1130 (1070) | 6270 | 1050 |
2500 | 6400 | 1040 (1090) | 6430 | 940 | 6250 | 1140 (1090) | 6280 | 1040 |
2000 | 6400 | 1060 (1120) | 6430 | 920 | 6250 | 1160 (1120) | 6280 | 1020 |
1800 | 6400 | 1070 (1140) | 6430 | 910 | 6250 | 1170 (1140) | 6280 | 1010 |
1500 | 6400 | 1080 (1170) | 6440 | 880 | 6250 | 1180 (1160) | 6290 | 980 |
1200 | 6400 | 1100 (1170) | 6450 | 850 | 6250 | 1200 (1160) | 6300 | 950 |
1000 | 6400 | 1130 (1170) | 6460 | 810 | 6250 | 1230 (1160) | 6310 | 910 |
800 | 6400 | 1160 (1170) | 6480 | 740 | 6250 | 1260 (1290) | 6330 | 840 |
700 | 6400 | 1190 | 6500 | 690 | 6250 | 1290 | 6350 | 790 |
600 | 6400 | 1190 | 6510 | 650 | 6250 | 1290 | 6360 | 750 |
500 | 6400 | 1190 | 6510 | 650 | 6250 | 1290 | 6360 | 750 |
400 | 6400 | 1190 | 6510 | 650 | 6250 | 1290 | 6360 | 750 |
350 | 6400 | 1190 | 6510 | 650 | 6250 | 1290 | 6360 | 750 |
300 | 6400 | 1190 | 6510 | 650 | 6250 | 1290 | 6360 | 750 |
250 | 6400 | 1190 | 6510 | 650 | 6250 | 1290 | 6360 | 750 |
200 | 6400 | 1190 | 6510 | 650 | 6250 | 1290 | 6360 | 750 |
180 | 6400 | 1190 | 6510 | 650 | 6250 | 1290 | 6360 | 750 |
150 | 6400 | 1190 | 6510 | 650 | 6250 | 1290 | 6360 | 750 |
120 | 6400 | 1190 | 6510 | 650 | 6250 | 1290 | 6360 | 750 |
100 | 6400 | 1190 | 6510 | 650 | 6250 | 1290 | 6360 | 750 |
80 | 6400 | 1190 | 6510 | 650 | 6250 | 1290 | 6360 | 750 |
60 | 6400 | 1190 | 6510 | 650 | 6250 | 1290 | 6360 | 750 |
Радиус кривой, м | Координаты точек габарита приближения строений с наружной стороны кривой ( | |||||||||
Iб | Iа | I | 1 | |||||||
(5900/1700) | (5400/1700) | (5550/1600) | (5550/1600) | |||||||
10 | 11 | 12 | 13 | 14 | 15 | 16 | 17 | 18 | 19 | |
4000 | 5900 | 1700 (1740) | 5400 | 1710 (1750) | 5550 | 1610 (1650) | 5550 | 1610 (1650) | 5570 (5570) | 1560 (1560) |
3000 | 5900 | 1710 (1770) | 5400 | 1720 (1770) | 5550 | 1620 (1670) | 5550 | 1620 (1670) | 5570 (5580) | 1560 (1540) |
2500 | 5900 | 1720 (1790) | 5400 | 1740 (1800) | 5550 | 1630 (1690) | 5550 | 1630 (1690) | 5580 (5590) | 1550 (1530) |
2000 | 5900 | 1730 (1820) | 5400 | 1750 (1820) | 5550 | 1650 (1730) | 5550 | 1650 (1730) | 5590 (5600) | 1530 (1510) |
1800 | 5900 | 1740 (1830) | 5400 | 1770 (1850) | 5550 | 1660 (1740) | 5550 | 1660 (1740) | 5600 (5600) | 1520 (1500) |
1500 | 5900 | 1760 (1850) | 5400 | 1780 (1870) | 5550 | 1680 (1770) | 5550 | 1680 (1770) | 5600 (5620) | 1500 (1470) |
1200 | 5900 | 1780 (1850) | 5400 | 1800 (1870) | 5550 | 1700 (1770) | 5550 | 1700 (1770) | 5620 (5630) | 1470 (1430) |
1000 | 5900 | 1800 (1850) | 5400 | 1830 (1870) | 5550 | 1730 (1780) | 5550 | 1730 (1780) | 5630 (5660) | 1460 (1390) |
800 | 5900 | 1830 (1850) | 5400 | 1870 (1890) | 5550 | 1770 (1790) | 5550 | 1770 (1790) | 5660 (5690) | 1400 (1320) |
700 | 5900 | 1850 | 5400 | 1890 | 5550 | 1790 | 5550 | 1790 | 5690 | 1360 (1330) |
600 | 5900 | 1850 | 5400 | 1900 | 5550 | 1800 | 5550 | 1800 | 5690 | 1340 |
500 | 5900 | 1850 | 5400 | 1910 | 5550 | 1820 | 5550 | 1820 | 5690 | 1350 |
400 | 5900 | 1850 | 5400 | 1930 | 5550 | 1830 | 5550 | 1830 | 5690 | 1370 |
350 | 5900 | 1850 | 5400 | 1950 | 5550 | 1850 | 5550 | 1850 | 5690 | 1380 |
300 | 5900 | 1850 | 5400 | 1960 | 5550 | 1860 | 5550 | 1860 | 5690 | 1400 |
250 | 5900 | 1850 | 5400 | 1990 | 5550 | 1890 | 5550 | 1890 | 5690 | 1420 |
200 | 5900 | 1850 | 5400 | 2020 | 5550 | 1920 | 5550 | 1920 | 5690 | 1460 |
180 | 5900 | 1850 | 5400 | 2040 | 5550 | 1940 | 5550 | 1940 | 5690 | 1480 |
150 | 5900 | 1850 | 5400 | 2080 | 5550 | 1980 | 5550 | 1980 | 5690 | 1520 |
120 | 5900 | 1850 | 5400 | 2140 | 5550 | 2040 | 5550 | 2040 | 5690 | 1580 |
100 | 5900 | 1850 | 5400 | 2200 | 5550 | 2100 | 5550 | 2100 | 5690 | 1640 |
80 | 5900 | 1850 | 5400 | 2290 | 5550 | 2190 | 5550 | 2190 | 5690 | 1730 |
60 | 5900 | 1850 | 5400 | 2440 | 5550 | 2340 | 5550 | 2340 | 5690 | 1880 |
Радиус кривой, м | Координаты точек габарита приближения строений с наружной стороны кривой ( | |||||||
Iа | 1 | |||||||
(5400/1700) | (5500/1635) | |||||||
20 | 21 | 22 | 23 | 24 | 25 | 26 | 27 | |
4000 | 5400 | 1710 | 5420 | 1660 | 5500 | 1645 | 5520 | 1595 |
3000 | 5400 | 1720 | 5420 | 1660 | 5500 | 1655 | 5520 | 1595 |
2500 | 5400 | 1730 | 5430 | 1650 | 5500 | 1665 | 5530 | 1585 |
2000 | 5400 | 1750 | 5440 | 1630 | 5500 | 1685 | 5540 | 1565 |
1800 | 5400 | 1760 | 5450 | 1620 | 5500 | 1695 | 5550 | 1555 |
1500 | 5400 | 1770 | 5460 | 1610 | 5500 | 1705 | 5560 | 1545 |
1200 | 5400 | 1800 | 5470 | 1580 | 5500 | 1735 | 5570 | 1515 |
1000 | 5400 | 1830 | 5480 | 1570 | 5500 | 1765 | 5580 | 1505 |
800 | 5400 | 1860 | 5510 | 1510 | 5500 | 1795 | 5610 | 1445 |
700 | 5400 | 1890 | 5530 | 1460 | 5500 | 1825 | 5630 | 1395 |
600 | 5400 | 1900 | 5540 | 1450 | 5500 | 1835 | 5640 | 1385 |
500 | 5400 | 1910 | 5540 | 1460 | 5500 | 1845 | 5640 | 1395 |
400 | 5400 | 1930 | 5540 | 1470 | 5500 | 1865 | 5640 | 1405 |
350 | 5400 | 1940 | 5540 | 1490 | 5500 | 1875 | 5640 | 1425 |
300 | 5400 | 1960 | 5540 | 1500 | 5500 | 1895 | 5640 | 1435 |
250 | 5400 | 1980 | 5540 | 1530 | 5500 | 1915 | 5640 | 1465 |
200 | 5400 | 2020 | 5540 | 1560 | 5500 | 1955 | 5640 | 1495 |
180 | 5400 | 2040 | 5540 | 1580 | 5500 | 1975 | 5640 | 1515 |
150 | 5400 | 2080 | 5540 | 1620 | 5500 | 2015 | 5640 | 1545 |
120 | 5400 | 2140 | 5540 | 1680 | 5500 | 2075 | 5640 | 1615 |
100 | 5400 | 2200 | 5540 | 1740 | 5500 | 2135 | 5640 | 1675 |
80 | 5400 | 2290 | 5540 | 1830 | 5500 | 2225 | 5640 | 1765 |
60 | 5400 | 2440 | 5540 | 1980 | 5500 | 2375 | 5640 | 1915 |
Радиус кривой, м | Координаты точек габарита приближения строений с наружной стороны кривой ( | |||||||||
1а | 2а | 2б | 2 | 4 | ||||||
(4800/2110) | (-/2350) | (-/2000) | (4300/2450) | (1100/2450) | ||||||
28 | 29 | 30 | 31 | 32 | 33 | 34 | 35 | 36 | 37 | |
4000 | 4800 | 2120 | 4830 | 2070 | 2360 | 2010 | 4300 | 2460 | 1100 | 2460 |
3000 | 4800 | 2130 | 4830 | 2080 | 2360 | 2010 | 4300 | 2460 | 1100 | 2460 |
2500 | 4800 | 2140 | 4840 | 2060 | 2360 | 2010 | 4300 | 2460 | 1100 | 2460 |
2000 | 4800 | 2160 | 4850 | 2050 | 2370 | 2020 | 4300 | 2470 | 1100 | 2470 |
1800 | 4800 | 2160 | 4860 | 2040 | 2370 | 2020 | 4300 | 2470 | 1100 | 2470 |
1500 | 4800 | 2180 | 4860 | 2030 | 2370 | 2020 | 4300 | 2470 | 1100 | 2470 |
1200 | 4800 | 2200 | 4880 | 2010 | 2380 | 2030 | 4300 | 2480 | 1100 | 2480 |
1000 | 4800 | 2220 | 4890 | 2000 | 2390 | 2040 | 4300 | 2490 | 1100 | 2490 |
800 | 4800 | 2260 | 4930 | 1940 | 2400 | 2050 | 4300 | 2500 | 1100 | 2500 |
700 | 4800 | 2280 | 4950 | 1910 | 2400 | 2050 | 4300 | 2500 | 1100 | 2500 |
600 | 4800 | 2290 | 4970 | 1890 | 2410 | 2060 | 4300 | 2510 | 1100 | 2510 |
500 | 4800 | 2300 | 4970 | 1910 | 2420 | 2070 | 4300 | 2520 | 1100 | 2520 |
400 | 4800 | 2320 | 4970 | 1920 | 2440 | 2090 | 4300 | 2540 | 1100 | 2540 |
350 | 4800 | 2330 | 4970 | 1940 | 2450 | 2100 | 4300 | 2550 | 1100 | 2550 |
300 | 4800 | 2350 | 4970 | 1950 | 2470 | 2120 | 4300 | 2570 | 1100 | 2570 |
250 | 4800 | 2370 | 4970 | 1980 | 2490 | 2140 | 4300 | 2590 | 1100 | 2590 |
200 | 4800 | 2410 | 4970 | 2010 | 2530 | 2180 | 4300 | 2630 | 1100 | 2630 |
180 | 4800 | 2430 | 4970 | 2030 | 2550 | 2200 | 4300 | 2650 | 1100 | 2650 |
150 | 4800 | 2470 | 4970 | 2070 | 2590 | 2240 | 4300 | 2690 | 1100 | 2690 |
120 | 4800 | 2530 | 4970 | 2130 | 2650 | 2300 | 4300 | 2750 | 1100 | 2750 |
100 | 4800 | 2590 | 4970 | 2190 | 2710 | 2360 | 4300 | 2810 | 1100 | 2810 |
80 | 4800 | 2680 | 4970 | 2280 | 2800 | 2450 | 4300 | 2900 | 1100 | 2900 |
60 | 4800 | 2830 | 4970 | 2430 | 2950 | 2600 | 4300 | 3050 | 1100 | 3050 |
Радиус кривой, м | Координаты точек габарита приближения строений с наружной стороны кривой ( | |||||
5 | 6 | 7 | ||||
(1100/1920) | (200/1920) | (200/1745) | ||||
39 | 41 | 43 | ||||
4000 | 1100 | 1930 (1930) | 200 (190) | 1930 | 200 (190) | 1750 |
3000 | 1100 | 1930 (1940) | 200 (180) | 1930 | 200 (180) | 1760 |
2500 | 1100 | 1940 (1940) | 190 (170) | 1930 | 190 (170) | 1760 |
2000 | 1100 | 1940 (1950) | 190 (160) | 1940 | 190 (160) | 1760 |
1800 | 1100 | 1940 (1950) | 190 (150) | 1940 | 190 (160) | 1770 |
1500 | 1100 | 1950 (1960) | 180 (140) | 1940 | 180 (140) | 1770 |
1200 | 1100 | 1960 (1960) | 170 (140) | 1950 | 170 (140) | 1780 |
1000 | 1100 | 1960 (1970) | 160 (140) | 1960 | 160 (140) | 1780 |
800 | 1100 | 1970 (1980) | 150 (140) | 1970 | 150 (140) | 1790 |
700 | 1100 | 1980 | 140 | 1970 | 140 | 1800 |
600 | 1100 | 1990 | 140 | 1980 | 140 | 1810 |
500 | 1100 | 2000 | 140 | 1990 | 140 | 1820 |
400 | 1100 | 2020 | 140 | 2010 | 140 | 1840 |
350 | 1100 | 2030 | 140 | 2020 | 140 | 1850 |
300 | 1100 | 2050 | 140 | 2040 | 140 | 1870 |
250 | 1100 | 2070 | 140 | 2060 | 140 | 1890 |
200 | 1100 | 2110 | 140 | 2100 | 140 | 1930 |
180 | 1100 | 2130 | 140 | 2120 | 140 | 1950 |
150 | 1100 | 2170 | 140 | 2160 | 140 | 1990 |
120 | 1100 | 2230 | 140 | 2220 | 140 | 2050 |
100 | 1100 | 2290 | 140 | 2280 | 140 | 2110 |
80 | 1100 | 2380 | 140 | 2370 | 140 | 2200 |
60 | 1100 | 2530 | 140 | 2520 | 140 | 2350 |
Радиус кривой, м | Координаты точек габарита приближения строений с наружной стороны кривой ( | |||||
8 | 10 | 11 | ||||
(0/1745) | (3200/3100) | (0/3100) | ||||
44 | 45 | 46 | 47 | 48 | 49 | |
4000 | 1750 | 3200 | 3110 | 3240 (3240) | 3080 (3080) | 3110 |
3000 | 1760 | 3200 | 3110 | 3240 (3250) | 3080 (3070) | 3110 |
2500 | 1760 | 3200 | 3110 | 3250 (3260) | 3070 (3060) | 3110 |
2000 | 1760 | 3200 | 3120 | 3260 (3270) | 3070 (3060) | 3120 |
1800 | 1770 | 3200 | 3120 | 3270 (3290) | 3060 (3050) | 3120 |
1500 | 1770 | 3200 | 3120 | 3290 (3310) | 3050 (3040) | 3120 |
1200 | 1780 | 3200 | 3130 | 3310 (3330) | 3040 (3020) | 3130 |
1000 | 1780 | 3200 | 3140 | 3320 (3360) | 3040 (3010) | 3140 |
800 | 1790 | 3200 | 3150 | 3340 (3400) | 3020 (2990) | 3150 |
700 | 1800 | 3200 | 3150 | 3380 (3400) | 3000 (2990) | 3150 |
600 | 1810 | 3200 | 3160 | 3400 | 3000 | 3160 |
500 | 1820 | 3200 | 3170 | 3400 | 3010 | 3170 |
400 | 1840 | 3200 | 3190 | 3400 | 3030 | 3190 |
350 | 1850 | 3200 | 3200 | 3400 | 3040 | 3200 |
300 | 1870 | 3200 | 3220 | 3400 | 3060 | 3220 |
250 | 1890 | 3200 | 3240 | 3400 | 3080 | 3240 |
200 | 1930 | 3200 | 3280 | 3400 | 3120 | 3280 |
180 | 1950 | 3200 | 3300 | 3400 | 3140 | 3300 |
150 | 1990 | 3200 | 3340 | 3400 | 3180 | 3340 |
120 | 2050 | 3200 | 3400 | 3400 | 3240 | 3400 |
100 | 2110 | 3200 | 3460 | 3400 | 3300 | 3460 |
80 | 2200 | 3200 | 3550 | 3400 | 3390 | 3550 |
60 | 2350 | 3200 | 3700 | 3400 | 3540 | 3700 |
Радиус кривой, м | Координаты точек габарита приближения строений с внутренней стороны кривой ( | |||||||
II | Iб | Iа | ||||||
(6400/1020) | (6250/1120) | (5900/1700) | (5400/1700) | |||||
50 | 51 | 52 | 53 | 54 | 55 | 56 | 57 | |
4000 | 6400 | 1050 | 6250 | 1150 | 5900 | 1730 | 5400 | 1740 |
3000 | 6400 | 1070 | 6250 | 1170 | 5900 | 1730 | 5400 | 1740 (1750) |
2500 | 6400 | 1080 | 6250 | 1180 | 5900 | 1750 (1770) | 5400 | 1760 (1780) |
2000 | 6400 | 1100 | 6250 | 1200 | 5900 | 1770 (1790) | 5400 | 1780 (1800) |
1800 | 6400 | 1110 | 6250 | 1210 | 5900 | 1790 (1800) | 5400 | 1790 (1810) |
1500 | 6400 | 1140 | 6250 | 1240 | 5900 | 1800 (1840) | 5400 | 1820 (1860) |
1200 | 6400 | 1170 | 6250 | 1270 | 5900 | 1840 (1890) | 5400 | 1860 (1900) |
1000 | 6400 | 1210 | 6250 | 1310 | 5900 | 1860 (1940) | 5400 | 1880 (1960) |
800 | 6400 | 1280 | 6250 | 1380 | 5900 | 1940 (2020) | 5400 | 1970 (2040) |
700 | 6400 | 1330 | 6250 | 1430 | 5900 | 1990 (2020) | 5400 | 2010 (2040) |
600 | 6400 | 1370 | 6250 | 1470 | 5900 | 2020 | 5400 | 2050 |
500 | 6400 | 1370 | 6250 | 1470 | 5900 | 2020 | 5400 | 2060 |
400 | 6400 | 1370 | 6250 | 1470 | 5900 | 2020 | 5400 | 2080 |
350 | 6400 | 1370 | 6250 | 1470 | 5900 | 2020 | 5400 | 2100 |
300 | 6400 | 1370 | 6250 | 1470 | 5900 | 2020 | 5400 | 2110 |
250 | 6400 | 1370 | 6250 | 1470 | 5900 | 2020 | 5400 | 2140 |
200 | 6400 | 1370 | 6250 | 1470 | 5900 | 2020 | 5400 | 2170 |
180 | 6400 | 1370 | 6250 | 1470 | 5900 | 2020 | 5400 | 2190 |
150 | 6400 | 1370 | 6250 | 1470 | 5900 | 2020 | 5400 | 2230 |
120 | 6400 | 1370 | 6250 | 1470 | 5900 | 2020 | 5400 | 2290 |
100 | 6400 | 1370 | 6250 | 1470 | 5900 | 2020 | 5400 | 2350 |
80 | 6400 | 1370 | 6250 | 1470 | 5900 | 2020 | 5400 | 2440 |
60 | 6400 | 1370 | 6250 | 1470 | 5900 | 2020 | 5400 | 2590 |
Радиус кривой, м | Координаты точек габарита приближения строений с внутренней стороны кривой ( | |||||||
1, I | 1 | 1а | 2а | |||||
(5550/1600) | (5500/1635) | (4800/2110) | (4450/2350) | (1100/2350) | ||||
58 | 59 | 60 | 61 | 62 | 63 | 64 | 65 | |
4000 | 5550 | 1640 | 5500 | 1675 | 4800 | 2140 | 2380 | 2340 |
3000 | 5550 | 1640 (1660) | 5500 | 1675 | 4800 | 2140 | 2380 | 2350 |
2500 | 5550 | 1660 (1680) | 5500 | 1695 | 4800 | 2160 | 2400 | 2350 |
2000 | 5550 | 1680 (1700) | 5500 | 1715 | 4800 | 2180 | 2420 | 2360 |
1800 | 5550 | 1700 (1720) | 5500 | 1735 | 4800 | 2200 | 2430 | 2370 |
1500 | 5550 | 1720 (1760) | 5500 | 1755 | 4800 | 2210 | 2450 | 2370 |
1200 | 5550 | 1760 (1800) | 5500 | 1795 | 4800 | 2250 | 2480 | 2390 |
1000 | 5550 | 1790 (1870) | 5500 | 1815 | 4800 | 2270 | 2500 | 2400 |
800 | 5550 | 1870 (1960) | 5500 | 1895 | 4800 | 2340 | 2560 | 2420 |
700 | 5550 | 1920 (1960) | 5500 | 1945 | 4800 | 2390 | 2590 | 2430 |
600 | 5550 | 1960 | 5500 | 1985 | 4800 | 2420 | 2620 | 2440 |
500 | 5550 | 1970 | 5500 | 1995 | 4800 | 2430 | 2630 | 2450 |
400 | 5550 | 1990 | 5500 | 2015 | 4800 | 2450 | 2650 | 2470 |
350 | 5550 | 2000 | 5500 | 2025 | 4800 | 2470 | 2660 | 2480 |
300 | 5550 | 2020 | 5500 | 2045 | 4800 | 2480 | 2680 | 2500 |
250 | 5550 | 2040 | 5500 | 2065 | 4800 | 2510 | 2700 | 2520 |
200 | 5550 | 2080 | 5500 | 2105 | 4800 | 2540 | 2740 | 2560 |
180 | 5550 | 2100 | 5500 | 2125 | 4800 | 2560 | 2760 | 2580 |
150 | 5550 | 2140 | 5500 | 2165 | 4800 | 2600 | 2800 | 2620 |
120 | 5550 | 2200 | 5500 | 2225 | 4800 | 2660 | 2860 | 2680 |
100 | 5550 | 2260 | 5500 | 2285 | 4800 | 2720 | 2920 | 2740 |
80 | 5550 | 2350 | 5500 | 2375 | 4800 | 2810 | 3010 | 2830 |
60 | 5550 | 2500 | 5500 | 2525 | 4800 | 2960 | 3160 | 2980 |
Радиус кривой, м | Координаты точек габарита приближения строений с внутренней стороны кривой ( | |||||||
2б | 2 | 4 | 5 | |||||
(4970/2000) | (1100/2000) | (4300/2450) | (1100/2450) | (1100/1920) | ||||
66 | 67 | 68 | 69 | 70 | 71 | 72 | 73 | |
4000 | 2030 | 2000 | 4300 | 2470 | 1090 | 2450 | 1090 | 1920 |
3000 | 2030 | 2000 | 4300 | 2480 (2490) | 1090 (1080) | 2450 (2450) | 1090 (1080) | 1920 (1920) |
2500 | 2050 | 2000 | 4300 | 2490 (2510) | 1080 (1080) | 2450 (2460) | 1080 (1080) | 1920 (1930) |
2000 | 2070 | 2010 | 4300 | 2510 (2520) | 1080 (1070) | 2460 (2460) | 1080 (1070) | 1930 (1930) |
1800 | 2090 | 2020 | 4300 | 2530 (2540) | 1070 (1070) | 2470 (2470) | 1070 (1070) | 1940 (1940) |
1500 | 2110 | 2020 | 4300 | 2540 (2570) | 1070 (1060) | 2470 (2480) | 1070 (1060) | 1940 (1950) |
1200 | 2150 | 2040 | 4300 | 2580 (2600) | 1060 (1050) | 2490 (2490) | 1060 (1050) | 1960 (1960) |
1000 | 2170 | 2050 | 4300 | 2600 (2640) | 1050 (1040) | 2520 (2510) | 1050 (1040) | 1970 (1980) |
800 | 2220 | 2070 | 4300 | 2650 (2690) | 1040 (1030) | 2520 (2530) | 1040 (1030) | 1990 (2000) |
700 | 2260 | 2080 | 4300 | 2680 (2690) | 1030 (1030) | 2530 (2530) | 1030 (1030) | 2000 (2000) |
600 | 2280 | 2090 | 4300 | 2700 | 1030 | 2540 | 1030 | 2010 |
500 | 2300 | 2100 | 4300 | 2710 | 1030 | 2550 | 1030 | 2030 |
400 | 2310 | 2120 | 4300 | 2730 | 1030 | 2570 | 1030 | 2040 |
350 | 2330 | 2130 | 4300 | 2740 | 1030 | 2580 | 1030 | 2060 |
300 | 2340 | 2150 | 4300 | 2760 | 1030 | 2600 | 1030 | 2070 |
250 | 2370 | 2170 | 4300 | 2780 | 1030 | 2620 | 1030 | 2100 |
200 | 2400 | 2210 | 4300 | 2820 | 1030 | 2660 | 1030 | 2130 |
180 | 2420 | 2230 | 4300 | 2840 | 1030 | 2680 | 1030 | 2150 |
150 | 2460 | 2270 | 4300 | 2880 | 1030 | 2720 | 1030 | 2190 |
120 | 2520 | 2330 | 4300 | 2940 | 1030 | 2780 | 1030 | 2250 |
100 | 2580 | 2390 | 4300 | 3000 | 1030 | 2840 | 1030 | 2310 |
80 | 2670 | 2480 | 4300 | 3090 | 1030 | 2930 | 1030 | 2400 |
60 | 2820 | 2630 | 4300 | 3240 | 1030 | 3080 | 1030 | 2550 |
Радиус кривой, м | Координаты точек габарита приближения строений с внутренней стороны кривой ( | |||||||
6 | 7 | 8 | 10 | 11 | ||||
(200/1920) | (200/1745) | (0/1745) | (3200/3100) | (0/3100) | ||||
74 | 75 | 76 | 77 | 78 | 79 | 80 | 81 | |
4000 | 190 | 1930 | 190 | 1750 | 1750 | 3200 | 3110 | 3110 |
3000 | 190 (190) | 1930 | 190 (190) | 1760 | 1760 | 3200 | 3120 (3130) | 3110 |
2500 | 190 (180) | 1930 | 190 (180) | 1760 | 1760 | 3200 | 3130 (3140) | 3110 |
2000 | 180 (180) | 1940 | 180 (180) | 1760 | 1760 | 3200 | 3140 (3150) | 3120 |
1800 | 180 (180) | 1940 | 180 (180) | 1770 | 1770 | 3200 | 3160 (3170) | 3120 |
1500 | 180 (170) | 1940 | 180 (170) | 1770 | 1770 | 3200 | 3170 (3190) | 3120 |
1200 | 170 (160) | 1950 | 170 (160) | 1780 | 1780 | 3200 | 3200 (3220) | 3130 |
1000 | 170 (150) | 1960 | 170 (150) | 1780 | 1780 | 3200 | 3210 (3240) | 3140 |
800 | 150 (130) | 1970 | 150 (130) | 1790 | 1790 | 3200 | 3250 (3280) | 3150 |
700 | 140 (130) | 1980 | 140 (130) | 1800 | 1800 | 3200 | 3280 (3290) | 3150 |
600 | 130 | 1980 | 130 | 1810 | 1810 | 3200 | 3300 | 3160 |
500 | 130 | 1990 | 130 | 1820 | 1820 | 3200 | 3310 | 3170 |
400 | 130 | 2010 | 130 | 1840 | 1840 | 3200 | 3330 | 3190 |
350 | 130 | 2020 | 130 | 1850 | 1850 | 3200 | 3340 | 3200 |
300 | 130 | 2040 | 130 | 1870 | 1870 | 3200 | 3360 | 3220 |
250 | 130 | 2060 | 130 | 1890 | 1890 | 3200 | 3380 | 3240 |
200 | 130 | 2100 | 130 | 1930 | 1930 | 3200 | 3420 | 3280 |
180 | 130 | 2120 | 130 | 1950 | 1950 | 3200 | 3440 | 3300 |
150 | 130 | 2160 | 130 | 1990 | 1990 | 3200 | 3480 | 3340 |
120 | 130 | 2220 | 130 | 2050 | 2050 | 3200 | 3540 | 3400 |
100 | 130 | 2280 | 130 | 2110 | 2110 | 3200 | 3600 | 3460 |
80 | 130 | 2370 | 130 | 2200 | 2200 | 3200 | 3690 | 3550 |
60 | 130 | 2520 | 130 | 2350 | 2350 | 3200 | 3840 | 3700 |
Примечания 1. Под номерами точек в скобках дробью указаны их координаты в прямой: в числителе - высота H точек габарита (считая от уровня верха головки рельса), в знаменателе - горизонтальное расстояние B от оси пути до точек габарита. 2. Нормы, приведенные для наружной стороны кривой в графах 38, 40, 42, являются обязательными для сооружений и устройств, не связанных с посадкой и высадкой пассажиров, а также погрузкой и выгрузкой грузов. Высоту пассажирских и грузовых платформ, расположенных с наружной и внутренней сторон кривых, следует принимать по эксплуатационным нормам исходя из величин возвышений наружного рельса и максимальной скорости движения на участке на перспективу. 3. Нормы, приведенные в скобках, следует применять для сооружений и устройств, расположенных у путей (кроме главных), скорость движения по которым установлена до 120 км/ч. 4. Для станционных путей, имеющих возвышение наружного рельса более 80 мм, применяются нормы, указанные в таблице Е.2. | ||||||||
Радиус кривой, м | Координаты точек габарита приближения строений с наружной стороны кривой ( | |||||||
II | Iб | Iа | ||||||
(6400/1020) | (6250/1120) | (5900/1700) | (5400/1700) | |||||
1 | 2 | 3 | 4 | 5 | 6 | 7 | 8 | 9 |
4000 | 6400 | 1020 | 6250 | 1120 | 5900 | 1700 | 5400 | 1710 |
3000 | 6400 | 1020 | 6250 | 1120 | 5900 | 1700 | 5400 | 1710 |
2500 | 6400 | 1020 | 6250 | 1120 | 5900 | 1700 | 5400 | 1720 |
2000 | 6400 | 1020 | 6250 | 1120 | 5900 | 1700 | 5400 | 1720 |
1800 | 6400 | 1020 | 6250 | 1120 | 5900 | 1700 | 5400 | 1720 |
1500 | 6400 | 1020 | 6250 | 1120 | 5900 | 1700 | 5400 | 1730 |
1200 | 6400 | 1030 | 6250 | 1130 | 5900 | 1710 | 5400 | 1740 |
1000 | 6400 | 1040 | 6250 | 1140 | 5900 | 1720 | 5400 | 1760 |
800 | 6400 | 1050 | 6250 | 1150 | 5900 | 1730 | 5400 | 1780 |
700 | 6400 | 1070 | 6250 | 1170 | 5900 | 1740 | 5400 | 1790 |
600 | 6400 | 1080 | 6250 | 1180 | 5900 | 1750 | 5400 | 1810 |
500 | 6400 | 1090 | 6250 | 1190 | 5900 | 1770 | 5400 | 1830 |
400 | 6400 | 1120 | 6250 | 1220 | 5900 | 1800 | 5400 | 1880 |
350 | 6400 | 1140 | 6250 | 1240 | 5900 | 1810 | 5400 | 1910 |
300 | 6400 | 1170 | 6250 | 1270 | 5900 | 1840 | 5400 | 1950 |
250 | 6400 | 1190 | 6250 | 1280 | 5900 | 1850 | 5400 | 1990 |
200 | 6400 | 1190 | 6250 | 1280 | 5900 | 1850 | 5400 | 2020 |
180 | 6400 | 1190 | 6250 | 1280 | 5900 | 1850 | 5400 | 2040 |
150 | 6400 | 1190 | 6250 | 1280 | 5900 | 1850 | 5400 | 2080 |
120 | 6400 | 1190 | 6250 | 1280 | 5900 | 1850 | 5400 | 2140 |
100 | 6400 | 1190 | 6250 | 1280 | 5900 | 1850 | 5400 | 2200 |
80 | 6400 | 1190 | 6250 | 1280 | 5900 | 1850 | 5400 | 2290 |
60 | 6400 | 1190 | 6250 | 1280 | 5900 | 1850 | 5400 | 2440 |
Радиус кривой, м | Координаты точек габарита приближения строений с наружной стороны кривой ( | |||||||
1, I | 1 | 1а | 2а | 2б | ||||
(5550/1600) | (5500/1635) | (4800/2110) | (-/2350) | (-/2000) | ||||
10 | 11 | 12 | 13 | 14 | 15 | 16 | 17 | |
4000 | 5550 | 1610 | 5500 | 1645 | 4800 | 2120 | 2360 | 2010 |
3000 | 5550 | 1610 | 5500 | 1645 | 4800 | 2120 | 2360 | 2010 |
2500 | 5550 | 1610 | 5500 | 1655 | 4800 | 2120 | 2360 | 2010 |
2000 | 5550 | 1620 | 5500 | 1655 | 4800 | 2130 | 2370 | 2020 |
1800 | 5550 | 1620 | 5500 | 1655 | 4800 | 2130 | 2370 | 2020 |
1500 | 5550 | 1630 | 5500 | 1665 | 4800 | 2130 | 2370 | 2020 |
1200 | 5550 | 1640 | 5500 | 1675 | 4800 | 2140 | 2380 | 2030 |
1000 | 5550 | 1650 | 5500 | 1695 | 4800 | 2150 | 2390 | 2040 |
800 | 5550 | 1680 | 5500 | 1715 | 4800 | 2160 | 2400 | 2050 |
700 | 5550 | 1690 | 5500 | 1725 | 4800 | 2160 | 2400 | 2050 |
600 | 5550 | 1710 | 5500 | 1745 | 4800 | 2170 | 2410 | 2060 |
500 | 5550 | 1740 | 5500 | 1765 | 4800 | 2180 | 2420 | 2070 |
400 | 5550 | 1780 | 5500 | 1815 | 4800 | 2200 | 2440 | 2090 |
350 | 5550 | 1810 | 5500 | 1845 | 4800 | 2210 | 2450 | 2100 |
300 | 5550 | 1850 | 5500 | 1885 | 4800 | 2230 | 2470 | 2120 |
250 | 5550 | 1890 | 5500 | 1925 | 4800 | 2250 | 2490 | 2140 |
200 | 5550 | 1920 | 5500 | 1955 | 4800 | 2290 | 2530 | 2180 |
180 | 5550 | 1940 | 5500 | 1975 | 4800 | 2310 | 2550 | 2200 |
150 | 5550 | 1980 | 5500 | 2015 | 4800 | 2350 | 2590 | 2240 |
120 | 5550 | 2040 | 5500 | 2075 | 4800 | 2410 | 2650 | 2300 |
100 | 5550 | 2100 | 5500 | 2135 | 4800 | 2470 | 2710 | 2360 |
80 | 5550 | 2190 | 5500 | 2225 | 4800 | 2560 | 2800 | 2450 |
60 | 5550 | 2340 | 5500 | 2375 | 4800 | 2710 | 2950 | 2600 |
Радиус кривой, м | Координаты точек габарита приближения строений с наружной стороны кривой ( | |||||||
2 | 4 | 5 | 6 | |||||
(4300/2450) | (1100/2450) | (1100/1920) | (200/1920) | |||||
18 | 19 | 20 | 21 | 22 | 23 | 25 | ||
4000 | 4300 | 2460 | 1100 | 2460 | 1100 | 1930 | 200 | 1930 |
3000 | 4300 | 2460 | 1100 | 2460 | 1100 | 1930 | 200 | 1930 |
2500 | 4300 | 2460 | 1100 | 2460 | 1100 | 1930 | 200 | 1930 |
2000 | 4300 | 2470 | 1100 | 2470 | 1100 | 1940 | 200 | 1940 |
1800 | 4300 | 2470 | 1100 | 2470 | 1100 | 1940 | 200 | 1940 |
1500 | 4300 | 2470 | 1100 | 2470 | 1100 | 1940 | 200 | 1940 |
1200 | 4300 | 2480 | 1100 | 2480 | 1100 | 1950 | 200 | 1950 |
1000 | 4300 | 2490 | 1100 | 2490 | 1100 | 1960 | 190 | 1960 |
800 | 4300 | 2500 | 1100 | 2500 | 1100 | 1970 | 190 | 1970 |
700 | 4300 | 2500 | 1100 | 2500 | 1100 | 1970 | 190 | 1970 |
600 | 4300 | 2510 | 1100 | 2510 | 1100 | 1980 | 180 | 1980 |
500 | 4300 | 2520 | 1100 | 2520 | 1100 | 1990 | 170 | 1990 |
400 | 4300 | 2540 | 1100 | 2540 | 1100 | 2010 | 170 | 2010 |
350 | 4300 | 2550 | 1100 | 2550 | 1100 | 2020 | 160 | 2020 |
300 | 4300 | 2570 | 1100 | 2570 | 1100 | 2040 | 150 | 2040 |
250 | 4300 | 2590 | 1100 | 2590 | 1100 | 2060 | 140 | 2060 |
200 | 4300 | 2630 | 1100 | 2630 | 1100 | 2100 | 140 | 2100 |
180 | 4300 | 2650 | 1100 | 2650 | 1100 | 2120 | 140 | 2120 |
150 | 4300 | 2690 | 1100 | 2690 | 1100 | 2160 | 140 | 2160 |
120 | 4300 | 2750 | 1100 | 2750 | 1100 | 2220 | 140 | 2220 |
100 | 4300 | 2810 | 1100 | 2810 | 1100 | 2280 | 140 | 2280 |
80 | 4300 | 2900 | 1100 | 2900 | 1100 | 2370 | 140 | 2370 |
60 | 4300 | 3050 | 1100 | 3050 | 1100 | 2520 | 140 | 2520 |
Радиус кривой, м | Координаты точек габарита приближения строений с наружной стороны кривой ( | |||||
7 | 8 | 10 | 11 | |||
(200/1745) | (0/1745) | (3200/3100) | (0/3100) | |||
27 | 28 | 29 | 30 | 31 | ||
4000 | 200 | 1750 | 1750 | 3200 | 3110 | 3110 |
3000 | 200 | 1760 | 1760 | 3200 | 3110 | 3110 |
2500 | 200 | 1760 | 1760 | 3200 | 3110 | 3110 |
2000 | 200 | 1760 | 1760 | 3200 | 3120 | 3120 |
1800 | 200 | 1770 | 1770 | 3200 | 3120 | 3120 |
1500 | 200 | 1770 | 1770 | 3200 | 3120 | 3120 |
1200 | 200 | 1780 | 1780 | 3200 | 3130 | 3130 |
1000 | 190 | 1780 | 1780 | 3200 | 3140 | 3140 |
800 | 190 | 1790 | 1790 | 3200 | 3150 | 3150 |
700 | 190 | 1800 | 1800 | 3200 | 3150 | 3150 |
600 | 180 | 1810 | 1810 | 3200 | 3160 | 3160 |
500 | 170 | 1820 | 1820 | 3200 | 3170 | 3170 |
400 | 170 | 1840 | 1840 | 3200 | 3190 | 3190 |
350 | 160 | 1850 | 1850 | 3200 | 3200 | 3200 |
300 | 150 | 1870 | 1870 | 3200 | 3220 | 3220 |
250 | 140 | 1890 | 1890 | 3200 | 3240 | 3240 |
200 | 140 | 1930 | 1930 | 3200 | 3280 | 3280 |
180 | 140 | 1950 | 1950 | 3200 | 3300 | 3300 |
150 | 140 | 1990 | 1990 | 3200 | 3340 | 3340 |
120 | 140 | 2050 | 2050 | 3200 | 3400 | 3400 |
100 | 140 | 2110 | 2110 | 3200 | 3460 | 3460 |
80 | 140 | 2200 | 2200 | 3200 | 3550 | 3550 |
60 | 140 | 2350 | 2350 | 3200 | 3700 | 3700 |
Радиус кривой, м | Координаты точек габарита приближения строений с внутренней стороны кривой ( | |||||||||||
II | Iб | Iа | ||||||||||
(6400/1020) | (6250/1120) | (5900/1700) | (5400/1700) | |||||||||
| ||||||||||||
1 | 32 | 33 | 341020 | 35 | 36 | 37 | 38 | 39 | ||||
4000 | 6400 | 1020 | 6250 | 1120 | 5900 | 1700 | 5400 | 1710 | ||||
3000 | 6400 | 1020 | 6250 | 1120 | 5900 | 1700 | 5400 | 1710 | ||||
2500 | 6400 | 1020 | 6250 | 1120 | 5900 | 1700 | 5400 | 1720 | ||||
2000 | 6400 | 1020 | 6250 | 1120 | 5900 | 1700 | 5400 | 1720 | ||||
1800 | 6400 | 1020 | 6250 | 1120 | 5900 | 1700 | 5400 | 1720 | ||||
1500 | 6400 | 1020 | 6250 | 1120 | 5900 | 1700 | 5400 | 1730 | ||||
1200 | 6400 | 1020 | 6250 | 1120 | 5900 | 1700 | 5400 | 1730 | ||||
1000 | 6400 | 1020 | 6250 | 1120 | 5900 | 1700 | 5400 | 1740 | ||||
800 | 6410 | 1020 | 6260 | 1120 | 5900 | 1700 | 5400 | 1750 | ||||
700 | 6410 | 1020 | 6260 | 1120 | 5900 | 1700 | 5400 | 1750 | ||||
600 | 6410 | 1020 | 6260 | 1120 | 5900 | 1700 | 5400 | 1760 | ||||
500 | 6410 | 1020 | 6270 | 1120 | 5900 | 1700 | 5400 | 1770 | ||||
400 | 6420 | 1020 | 6270 | 1120 | 5900 | 1700 | 5400 | 1790 | ||||
350 | 6420 | 1020 | 6280 | 1120 | 5900 | 1700 | 5400 | 1810 | ||||
300 | 6430 | 1020 | 6280 | 1120 | 5900 | 1700 | 5400 | 1820 | ||||
250 | 6430 | 1020 | 6280 | 1120 | 5900 | 1700 | 5400 | 1850 | ||||
200 | 6430 | 1020 | 6280 | 1120 | 5900 | 1700 | 5400 | 1880 | ||||
180 | 6430 | 1020 | 6280 | 1120 | 5900 | 1700 | 5400 | 1910 | ||||
150 | 6430 | 1020 | 6280 | 1120 | 5900 | 1700 | 5400 | 1940 | ||||
120 | 6430 | 1020 | 6280 | 1120 | 5900 | 1700 | 5400 | 2000 | ||||
100 | 6430 | 1020 | 6280 | 1120 | 5900 | 1700 | 5400 | 2060 | ||||
80 | 6430 | 1020 | 6280 | 1120 | 5900 | 1700 | 5400 | 2150 | ||||
60 | 6430 | 1020 | 6280 | 1120 | 5900 | 1700 | 5400 | 2300 | ||||
Радиус кривой, м | Координаты точек габарита приближения строений с внутренней стороны кривой ( | |||||||
1, I | 1 | 1а | 2а | 2б | ||||
(5550/1600) | (5500/1635) | (4800/2110) | (-/2350) | (-/2000) | ||||
40 | 41 | 42 | 43 | 44 | 45 | 46 | 47 | |
4000 | 5550 | 1610 | 5500 | 1645 | 4800 | 2120 | 2360 | 2010 |
3000 | 5550 | 1610 | 5500 | 1645 | 4800 | 2120 | 2360 | 2010 |
2500 | 5550 | 1610 | 5500 | 1655 | 4800 | 2120 | 2360 | 2010 |
2000 | 5550 | 1620 | 5500 | 1655 | 4800 | 2130 | 2370 | 2020 |
1800 | 5550 | 1620 | 5500 | 1655 | 4800 | 2130 | 2370 | 2020 |
1500 | 5550 | 1620 | 5500 | 1665 | 4800 | 2130 | 2370 | 2020 |
1200 | 5550 | 1630 | 5500 | 1665 | 4800 | 2140 | 2380 | 2030 |
1000 | 5550 | 1640 | 5500 | 1675 | 4800 | 2150 | 2390 | 2040 |
800 | 5550 | 1650 | 5500 | 1685 | 4800 | 2160 | 2400 | 2050 |
700 | 5550 | 1650 | 5500 | 1685 | 4800 | 2160 | 2400 | 2050 |
600 | 5550 | 1660 | 5500 | 1695 | 4800 | 2170 | 2410 | 2060 |
500 | 5550 | 1670 | 5500 | 1705 | 4800 | 2180 | 2420 | 2070 |
400 | 5550 | 1690 | 5500 | 1725 | 4800 | 2200 | 2440 | 2090 |
350 | 5550 | 1700 | 5500 | 1745 | 4800 | 2210 | 2450 | 2100 |
300 | 5550 | 1720 | 5500 | 1755 | 4800 | 2230 | 2470 | 2120 |
250 | 5550 | 1740 | 5500 | 1785 | 4800 | 2250 | 2490 | 2140 |
200 | 5550 | 1780 | 5500 | 1815 | 4800 | 2290 | 2530 | 2180 |
180 | 5550 | 1800 | 5500 | 1845 | 4800 | 2310 | 2550 | 2200 |
150 | 5550 | 1840 | 5500 | 1875 | 4800 | 2350 | 2590 | 2240 |
120 | 5550 | 1900 | 5500 | 1935 | 4800 | 2410 | 2650 | 2300 |
100 | 5550 | 1960 | 5500 | 1995 | 4800 | 2470 | 2710 | 2360 |
80 | 5550 | 2050 | 5500 | 2085 | 4800 | 2560 | 2800 | 2450 |
60 | 5550 | 2200 | 5500 | 2235 | 4800 | 2710 | 2950 | 2600 |
Радиус кривой, м | Координаты точек габарита приближения строений с внутренней стороны кривой ( | |||||||
2 | 4 | 5 | 6 | |||||
(4300/2450) | (1100/2450) | (1100/1920) | (200/1920) | |||||
48 | 49 | 50 | 51 | 52 | 53 | 54 | 55 | |
4000 | 4300 | 2460 | 1100 | 2460 | 1100 | 1930 | 200 | 1930 |
3000 | 4300 | 2460 | 1100 | 2460 | 1100 | 1930 | 200 | 1930 |
2500 | 4300 | 2460 | 1100 | 2460 | 1100 | 1930 | 200 | 1930 |
2000 | 4300 | 2470 | 1100 | 2470 | 1100 | 1940 | 200 | 1940 |
1800 | 4300 | 2470 | 1100 | 2470 | 1100 | 1940 | 200 | 1940 |
1500 | 4300 | 2470 | 1100 | 2470 | 1100 | 1940 | 200 | 1940 |
1200 | 4300 | 2480 | 1100 | 2480 | 1100 | 1950 | 200 | 1950 |
1000 | 4300 | 2490 | 1100 | 2490 | 1100 | 1960 | 200 | 1960 |
800 | 4300 | 2500 | 1100 | 2500 | 1100 | 1970 | 200 | 1970 |
700 | 4300 | 2500 | 1100 | 2500 | 1100 | 1970 | 200 | 1970 |
600 | 4300 | 2510 | 1100 | 2510 | 1100 | 1980 | 200 | 1980 |
500 | 4300 | 2520 | 1100 | 2520 | 1100 | 1990 | 200 | 1990 |
400 | 4300 | 2540 | 1100 | 2540 | 1100 | 2010 | 200 | 2010 |
350 | 4300 | 2550 | 1100 | 2550 | 1100 | 2020 | 200 | 2020 |
300 | 4300 | 2570 | 1100 | 2570 | 1100 | 2040 | 200 | 2040 |
250 | 4300 | 2590 | 1100 | 2590 | 1100 | 2060 | 200 | 2060 |
200 | 4300 | 2630 | 1100 | 2630 | 1100 | 2100 | 200 | 2100 |
180 | 4300 | 2650 | 1100 | 2650 | 1100 | 2120 | 200 | 2120 |
150 | 4300 | 2690 | 1100 | 2690 | 1100 | 2160 | 200 | 2160 |
120 | 4300 | 2750 | 1100 | 2750 | 1100 | 2220 | 200 | 2220 |
100 | 4300 | 2810 | 1100 | 2810 | 1100 | 2280 | 200 | 2280 |
80 | 4300 | 2900 | 1100 | 2900 | 1100 | 2370 | 200 | 2370 |
60 | 4300 | 3050 | 1100 | 3050 | 1100 | 2520 | 200 | 2520 |
Радиус кривой, м | Координаты точек габарита приближения строений с внутренней стороны кривой ( | |||||
7 | 8 | 10 | 11 | |||
(200/1745) | (0/1745) | (3200/3100) | (0/3100) | |||
56 | 57 | 58 | 59 | 60 | 61 | |
4000 | 200 | 1750 | 1750 | 3200 | 3110 | 3110 |
3000 | 200 | 1760 | 1760 | 3200 | 3110 | 3110 |
2500 | 200 | 1760 | 1760 | 3200 | 3110 | 3110 |
2000 | 200 | 1760 | 1760 | 3200 | 3120 | 3120 |
1800 | 200 | 1770 | 1770 | 3200 | 3120 | 3120 |
1500 | 200 | 1770 | 1770 | 3200 | 3120 | 3120 |
1200 | 200 | 1780 | 1780 | 3200 | 3130 | 3130 |
1000 | 200 | 1780 | 1780 | 3200 | 3140 | 3140 |
800 | 200 | 1790 | 1790 | 3200 | 3150 | 3150 |
700 | 200 | 1800 | 1800 | 3200 | 3150 | 3150 |
600 | 200 | 1810 | 1810 | 3200 | 3160 | 3160 |
500 | 200 | 1820 | 1820 | 3200 | 3170 | 3170 |
400 | 200 | 1840 | 1840 | 3200 | 3190 | 3190 |
350 | 200 | 1850 | 1850 | 3200 | 3200 | 3200 |
300 | 200 | 1870 | 1870 | 3200 | 3220 | 3220 |
250 | 200 | 1890 | 1890 | 3200 | 3240 | 3240 |
200 | 200 | 1930 | 1930 | 3200 | 3280 | 3280 |
180 | 200 | 1950 | 1950 | 3200 | 3300 | 3300 |
150 | 200 | 1990 | 1990 | 3200 | 3340 | 3340 |
120 | 200 | 2050 | 2050 | 3200 | 3400 | 3400 |
100 | 200 | 2110 | 2110 | 3200 | 3460 | 3460 |
80 | 200 | 2200 | 2200 | 3200 | 3550 | 3550 |
60 | 200 | 2350 | 2350 | 3200 | 3700 | 3700 |
Примечания 1. Под номерами точек в скобках дробью указаны их координаты в прямой: в числителе - высота H точек габарита (считая от уровня верха головки рельса), в знаменателе - горизонтальное расстояние B от оси пути до точки габарита. 2. Нормы, приведенные для наружной стороны кривой в графах 24, 26, являются обязательными для сооружений и устройств, не связанных с посадкой и высадкой пассажиров, а также погрузкой и выгрузкой грузов. Высоту пассажирских и грузовых платформ, расположенных с наружной стороны кривой, можно принимать равной установленной габаритами C и | ||||||
Радиус кривой, м | На перегонах | На раздельных пунктах с путевым развитием | ||||||
![]() | ![]() | | ![]() | (для любых путей) | ; | |||
между главным и любым другим путем станций | между любыми (кроме главных) путями станций | между главным и любым другим путем станций | между любыми (кроме главных) путями станций | |||||
1 | 4 | 7 | 8 | |||||
4000 | 70 | 20 | 130 | 20 | 20 (20) | 20 | 40 | 20 (20) |
3000 | 90 | 20 | 240 | 30 | 20 (20) | 20 | 90 | 20 (20) |
2500 | 150 | 30 | 330 | 60 | 30 (30) | 30 | 130 | 30 (30) |
2000 | 240 | 40 | 410 | 90 | 40 (40) | 40 | 170 | 40 (40) |
1800 | 290 | 40 | 480 | 120 | 40 (40) | 40 | 200 | 40 (40) |
1500 | 360 (380) | 80 | 580 | 150 (160) | 50 (50) | 50 | 250 | 50 (60) |
1200 | 370 (430) | 150 | 590 | 160 (180) | 60 (60) | 60 | 260 | 60 (90) |
1000 | 390 (440) | 170 (220) | 600 | 170 (190) | 70 (80) | 70 | 270 | 80 (120) |
800 | 400 (460) | 190 (240) | 630 | 190 (210) | 90 (110) | 90 | 290 | 130 (160) |
700 | 420 (470) | 200 (250) | 630 | 200 (220) | 100 (120) | 100 | 300 | 160 (170) |
600 | 430 (490) | 220 (270) | 650 | 220 (240) | 130 (140) | 120 | 320 | 190 (190) |
500 | 460 (510) | 240 (290) | 680 | 240 (260) | 160 (160) | 140 | 340 | 210 (210) |
400 | 490 (550) | 280 (330) | 710 | 280 (300) | 200 (200) | 180 | 380 | 250 (250) |
350 | 520 (570) | 300 (360) | 740 | 310 (330) | 230 (230) | 210 | 410 | 280 (280) |
300 | 550 (610) | 340 (390) | 770 | 340 (360) | 260 (260) | 240 | 440 | 310 (310) |
250 | 600 (660) | 380 (440) | 820 | 390 (410) | 310 (310) | 290 | 490 | 360 (360) |
200 | 670 (730) | 460 (510) | 890 | 460 (480) | 380 (380) | 360 | 560 | 430 (430) |
Примечания 1. Нормы, указанные в графах 2, 3 и 5 в скобках, предусматривающие повышение допускаемого непогашенного ускорения до 1 м/с2, применяют для главных путей линий и участков. 2. Нормы, приведенные в графах 6 и 9 в скобках, применяют для путей раздельных пунктов (кроме главных), скорость движения по которым установлена 120 км/ч. 3. Для станционных междупутий более 5300 мм (но не более 5400 мм) уширение в кривых может не производиться. | ||||||||
Радиус кривой, м | На перегонах | На раздельных пунктах с путевым развитием | ||||||
![]() | ![]() | | ![]() | (для любых путей) | ; | |||
между главным и любым другим путем станций | между любыми (кроме главных) путями станций | между главным и любым другим путем станций | между любыми (кроме главных) путями станций | |||||
1 | 2 | 3 | 4 | 5 | 7 | 9 | ||
4000 | 20 | 20 | 20 | 20 | 20 | 20 | 20 | 20 |
3000 | 20 | 20 | 20 | 20 | 20 | 20 | 20 | 20 |
2500 | 30 | 30 | 30 | 30 | 30 | 30 | 30 | 30 |
2000 | 40 | 40 | 40 | 40 | 40 | 40 | 40 | 40 |
1800 | 40 | 40 | 40 | 40 | 40 | 40 | 40 | 40 |
1500 | 50 | 50 | 80 | 50 | 50 | 50 | 50 | 50 |
1200 | 60 | 60 | 160 | 60 | 60 | 60 | 80 | 60 |
1000 | 120 | 70 | 220 | 70 | 70 | 70 | 110 | 80 |
800 | 190 | 90 | 260 | 100 | 90 | 90 | 140 | 130 |
700 | 230 | 100 | 350 | 130 | 100 | 100 | 180 | 160 |
600 | 270 | 140 | 400 | 150 | 130 | 120 | 210 | 190 |
500 | 350 | 190 | 500 | 200 | 160 | 140 | 270 | 210 |
400 | 390 | 230 | 560 | 240 | 200 | 180 | 310 | 250 |
350 | 420 | 260 | 580 | 270 | 230 | 210 | 340 | 280 |
300 | 450 | 290 | 620 | 300 | 260 | 240 | 370 | 310 |
250 | 500 | 340 | 670 | 350 | 310 | 290 | 420 | 360 |
200 | 510 | 410 | 740 | 420 | 380 | 360 | 490 | 430 |
180 | 610 | 450 | 780 | 460 | 420 | 400 | 530 | 470 |
150 | 690 | 530 | 860 | 540 | 500 | 480 | 610 | 550 |
120 | 810 | 650 | 980 | 660 | 620 | 600 | 730 | 670 |
100 | 930 | 770 | 1100 | 780 | 740 | 720 | 850 | 790 |
80 | 1100 | 950 | 1280 | 960 | 920 | 900 | 1030 | 970 |
60 | 1410 | 1250 | 1580 | 1260 | 1220 | 1200 | 1330 | 1270 |
Радиус кривой, м | Увеличение горизонтальных расстояний, мм | |||||
с наружной стороны кривой | с внутренней стороны кривой | |||||
0 | 10 | 20 | ||||
при расположении опор, мачт, столбов в прямых участках пути на расстоянии от оси пути, мм | ||||||
2450, 2750 - 3100, 5700 | 2450, 2750 - 3100, 5700 | 2450, 2750 - 3100, 5700 | 2450 | 2750 - 3100 | 5700 | |
1 | 4 | 5 | 6 | 7 | ||
4000 | 10 | 10 | 10 | 40 | 25 | 10 |
3000 | 10 | 10 | 15 | 40 | 30 | 15 |
2500 | 15 | 15 | 20 | 45 | 30 | 20 |
2000 | 20 | 20 | 20 | 50 | 35 | 20 |
1800 | 20 | 20 | 25 | 50 | 35 | 25 |
1600 | 25 | 25 | 25 | 50 | 40 | 25 |
1500 | 25 | 25 | 25 | 55 | 40 | 25 |
1400 | 25 | 25 | 30 | 55 | 40 | 30 |
1200 | 30 | 30 | 30 | 60 | 45 | 30 |
1000 | 35 | 35 | 40 | 65 | 50 | 40 |
900 | 40 | 40 | 40 | 70 | 55 | 40 |
800 | 45 | 45 | 45 | 75 | 60 | 45 |
700 | 50 | 50 | 55 | 80 | 65 | 55 |
600 | 60 | 60 | 60 | 90 | 75 | 60 |
500 | 70 | 70 | 75 | 100 | 90 | 75 |
400 | 90 | 90 | 90 | 120 | 105 | 90 |
350 | 105 | 105 | 105 | 130 | 120 | 105 |
300 | 120 | 120 | 120 | 150 | 135 | 120 |
250 | 140 | 140 | 140 | 180 | 165 | 140 |
200 | 180 | 180 | 180 | 210 | 195 | 180 |
180 | 200 | 200 | 200 | 230 | 215 | 200 |
150 | 240 | 240 | 240 | 270 | 255 | 240 |
120 | 300 | 300 | 300 | 330 | 315 | 300 |
100 | 360 | 360 | 360 | 390 | 375 | 360 |
80 | 450 | 450 | 450 | 480 | 465 | 450 |
60 | 600 | 600 | 600 | 630 | 615 | 600 |
Радиус кривой, м | Увеличение горизонтальных расстояний с внутренней стороны кривой | ||||||||
30 | 40 | 50 | |||||||
при расположении опор, мачт, столбов в прямых участках пути на расстоянии от оси пути, мм | |||||||||
2450 | 2750 - 3100 | 5700 | 2450 | 2750 - 3100 | 5700 | 2450 | 2750 - 3100 | 5700 | |
8 | 9 | 10 | 11 | 12 | 13 | 14 | 15 | 16 | |
4000 | 65 | 45 | 10 | 90 | 65 | 10 | 120 | 85 | 15 |
3000 | 70 | 50 | 15 | 95 | 70 | 15 | 125 | 90 | 20 |
2500 | 70 | 50 | 20 | 100 | 70 | 15 | 125 | 95 | 20 |
2000 | 75 | 55 | 20 | 100 | 75 | 20 | 130 | 95 | 25 |
1800 | 75 | 55 | 25 | 105 | 75 | 20 | 130 | 95 | 25 |
1600 | 80 | 60 | 25 | 105 | 80 | 25 | 135 | 100 | 30 |
1500 | 80 | 60 | 25 | 110 | 80 | 25 | 135 | 100 | 30 |
1400 | 85 | 60 | 30 | 110 | 80 | 25 | 135 | 100 | 35 |
1200 | 85 | 65 | 30 | 115 | 85 | 30 | 140 | 105 | 35 |
1000 | 90 | 70 | 40 | 120 | 90 | 35 | 145 | 110 | 40 |
900 | 100 | 75 | 40 | 125 | 95 | 40 | 150 | 115 | 45 |
800 | 100 | 80 | 45 | 130 | 100 | 45 | 155 | 120 | 50 |
700 | 100 | 85 | 55 | 135 | 105 | 50 | 160 | 125 | 55 |
600 | 115 | 95 | 60 | 145 | 115 | 60 | 170 | 135 | 65 |
500 | 130 | 110 | 75 | 155 | 125 | 70 | 180 | 145 | 80 |
400 | 145 | 125 | 90 | 175 | 145 | 90 | 200 | 165 | 95 |
350 | 160 | 140 | 105 | 185 | 160 | 105 | 215 | 180 | 110 |
300 | 175 | 155 | 120 | 205 | 175 | 120 | 230 | 195 | 125 |
250 | 205 | 185 | 140 | 235 | 205 | 140 | 260 | 225 | 155 |
200 | 235 | 215 | 180 | 265 | 235 | 180 | 290 | 255 | 185 |
180 | 255 | 235 | 200 | 285 | 255 | 200 | 310 | 275 | 205 |
150 | 295 | 275 | 240 | 325 | 295 | 240 | 350 | 315 | 245 |
120 | 355 | 335 | 300 | 385 | 355 | 300 | 410 | 375 | 305 |
100 | 415 | 395 | 360 | 445 | 415 | 360 | 470 | 435 | 365 |
80 | 505 | 485 | 450 | 535 | 505 | 450 | 560 | 525 | 455 |
60 | 655 | 635 | 600 | 685 | 655 | 600 | 710 | 675 | 605 |
Радиус кривой, м | Увеличение горизонтальных расстояний с внутренней стороны кривой | ||||||||
60 | 70 | 80 | |||||||
при расположении опор, мачт, столбов в прямых участках пути на расстоянии от оси пути, мм | |||||||||
2450 | 2750 - 3100 | 5700 | 2450 | 2750 - 3100 | 5700 | 2450 | 2750 - 3100 | 5700 | |
17 | 19 | 20 | 21 | 22 | 23 | 24 | 25 | ||
4000 | 140 | 105 | 25 | 175 | 125 | 30 | 200 | 145 | 35 |
3000 | 150 | 110 | 25 | 180 | 130 | 30 | 205 | 150 | 40 |
2500 | 155 | 110 | 30 | 180 | 130 | 35 | 205 | 150 | 40 |
2000 | 155 | 115 | 30 | 185 | 135 | 40 | 210 | 155 | 45 |
1800 | 160 | 115 | 35 | 185 | 135 | 40 | 210 | 155 | 45 |
1600 | 160 | 120 | 35 | 190 | 140 | 45 | 215 | 160 | 50 |
1500 | 160 | 120 | 40 | 190 | 140 | 45 | 215 | 160 | 50 |
1400 | 165 | 120 | 40 | 190 | 140 | 45 | 220 | 160 | 50 |
1200 | 165 | 125 | 45 | 195 | 145 | 50 | 220 | 165 | 55 |
1000 | 175 | 130 | 50 | 200 | 150 | 55 | 225 | 170 | 60 |
900 | 175 | 135 | 55 | 205 | 155 | 60 | 230 | 175 | 65 |
800 | 180 | 140 | 60 | 210 | 160 | 65 | 235 | 180 | 70 |
700 | 190 | 145 | 65 | 215 | 165 | 70 | 240 | 185 | 75 |
600 | 195 | 155 | 75 | 225 | 175 | 80 | 250 | 195 | 85 |
500 | 210 | 165 | 85 | 235 | 190 | 90 | 265 | 205 | 95 |
400 | 225 | 185 | 105 | 255 | 205 | 110 | 280 | 225 | 115 |
350 | 240 | 200 | 115 | 265 | 220 | 120 | 295 | 240 | 130 |
300 | 255 | 215 | 135 | 285 | 235 | 140 | 310 | 255 | 145 |
250 | 285 | 245 | 165 | 315 | 265 | 170 | 340 | 285 | 175 |
200 | 315 | 275 | 195 | 345 | 295 | 200 | 370 | 315 | 205 |
180 | 335 | 295 | 215 | 365 | 315 | 220 | 390 | 335 | 225 |
150 | 375 | 335 | 255 | 405 | 355 | 260 | 430 | 375 | 265 |
120 | 435 | 395 | 315 | 465 | 415 | 320 | 490 | 435 | 325 |
100 | 495 | 455 | 375 | 525 | 475 | 380 | 550 | 495 | 385 |
80 | 585 | 545 | 465 | 615 | 565 | 470 | 640 | 585 | 475 |
60 | 735 | 695 | 615 | 765 | 715 | 620 | 790 | 735 | 625 |
Радиус кривой, м | Увеличение горизонтальных расстояний с внутренней стороны кривой | ||||||||
90 | 100 | 110 | |||||||
при расположении опор, мачт, столбов в прямых участках пути на расстоянии от оси пути, мм | |||||||||
2450 | 2750 - 3100 | 5700 | 2450 | 2750 - 3100 | 5700 | 2450 | 2750 - 3100 | 5700 | |
26 | 27 | 28 | 29 | 30 | 31 | 32 | 33 | 34 | |
4000 | 230 | 165 | 40 | 255 | 185 | 50 | 280 | 205 | 55 |
3000 | 230 | 170 | 45 | 260 | 190 | 50 | 285 | 210 | 55 |
2500 | 235 | 170 | 45 | 260 | 190 | 55 | 290 | 210 | 60 |
2000 | 240 | 175 | 50 | 265 | 195 | 60 | 290 | 215 | 65 |
1800 | 240 | 175 | 50 | 265 | 195 | 60 | 290 | 215 | 65 |
1600 | 240 | 180 | 55 | 270 | 200 | 60 | 295 | 220 | 70 |
1500 | 245 | 180 | 55 | 270 | 200 | 65 | 295 | 220 | 70 |
1400 | 245 | 180 | 60 | 270 | 200 | 65 | 300 | 220 | 70 |
1200 | 250 | 185 | 60 | 275 | 205 | 70 | 300 | 225 | 75 |
1000 | 255 | 190 | 65 | 280 | 210 | 75 | 310 | 230 | 80 |
900 | 260 | 195 | 70 | 285 | 215 | 80 | 310 | 240 | 90 |
800 | 265 | 200 | 75 | 290 | 220 | 85 | 320 | 240 | 90 |
700 | 270 | 205 | 80 | 295 | 225 | 90 | 325 | 245 | 95 |
600 | 280 | 215 | 90 | 305 | 235 | 100 | 330 | 255 | 105 |
500 | 300 | 225 | 105 | 315 | 245 | 110 | 345 | 265 | 115 |
400 | 310 | 245 | 120 | 335 | 265 | 130 | 360 | 285 | 135 |
350 | 320 | 260 | 135 | 350 | 280 | 140 | 375 | 300 | 145 |
300 | 340 | 275 | 150 | 365 | 295 | 160 | 390 | 315 | 165 |
250 | 370 | 305 | 180 | 395 | 325 | 190 | 420 | 345 | 195 |
200 | 400 | 335 | 210 | 425 | 355 | 220 | 450 | 375 | 225 |
180 | 420 | 355 | 230 | 445 | 375 | 240 | 470 | 395 | 245 |
150 | 460 | 395 | 270 | 485 | 415 | 280 | 510 | 435 | 285 |
120 | 520 | 455 | 330 | 545 | 475 | 340 | 570 | 495 | 345 |
100 | 580 | 535 | 390 | 605 | 535 | 400 | 630 | 555 | 405 |
80 | 670 | 605 | 480 | 695 | 625 | 490 | 720 | 645 | 495 |
60 | 820 | 755 | 630 | 845 | 775 | 640 | 870 | 795 | 645 |
Радиус кривой, м | Увеличение горизонтальных расстояний с внутренней стороны кривой | ||||||||
120 | 130 | 140 | |||||||
при расположении опор, мачт, столбов в прямых участках пути на расстоянии от оси пути, мм | |||||||||
2450 | 2750 - 3100 | 5700 | 2450 | 2750 - 3100 | 5700 | 2450 | 2750 - 3100 | 5700 | |
35 | 36 | 37 | 38 | 39 | 40 | 41 | 42 | 43 | |
4000 | 310 | 225 | 60 | 335 | 245 | 65 | 365 | 205 | 75 |
3000 | 310 | 230 | 65 | 340 | 250 | 70 | 365 | 270 | 75 |
2500 | 315 | 230 | 65 | 340 | 250 | 70 | 370 | 270 | 80 |
2000 | 320 | 235 | 70 | 345 | 255 | 75 | 370 | 275 | 80 |
1800 | 320 | 235 | 70 | 345 | 255 | 75 | 375 | 275 | 85 |
1600 | 325 | 240 | 75 | 350 | 260 | 80 | 375 | 280 | 85 |
1500 | 325 | 240 | 75 | 350 | 260 | 80 | 380 | 280 | 90 |
1400 | 325 | 240 | 75 | 350 | 260 | 80 | 380 | 280 | 90 |
1200 | 330 | 245 | 80 | 355 | 265 | 85 | 385 | 285 | 95 |
1000 | 335 | 250 | 85 | 360 | 270 | 90 | 390 | 290 | 100 |
900 | 340 | 255 | 90 | 365 | 275 | 95 | 395 | 295 | 105 |
800 | 345 | 260 | 95 | 370 | 280 | 100 | 400 | 300 | 110 |
700 | 350 | 265 | 100 | 375 | 285 | 105 | 405 | 305 | 115 |
600 | 360 | 275 | 110 | 385 | 295 | 120 | 415 | 315 | 125 |
500 | 370 | 285 | 120 | 400 | 305 | 130 | 425 | 325 | 135 |
400 | 390 | 305 | 140 | 415 | 325 | 145 | 445 | 345 | 155 |
350 | 400 | 320 | 155 | 430 | 340 | 160 | 455 | 360 | 165 |
300 | 420 | 335 | 170 | 445 | 355 | 175 | 475 | 375 | 185 |
250 | 450 | 365 | 200 | 475 | 385 | 205 | 505 | 405 | 215 |
200 | 480 | 395 | 230 | 505 | 415 | 235 | 535 | 435 | 245 |
180 | 500 | 415 | 250 | 525 | 435 | 255 | 555 | 455 | 265 |
150 | 540 | 455 | 290 | 565 | 475 | 295 | 595 | 495 | 305 |
120 | 600 | 515 | 350 | 625 | 535 | 355 | 655 | 555 | 365 |
100 | 660 | 575 | 410 | 685 | 595 | 415 | 715 | 615 | 425 |
80 | 750 | 665 | 500 | 775 | 685 | 505 | 805 | 705 | 515 |
60 | 900 | 815 | 650 | 925 | 835 | 655 | 955 | 855 | 665 |
Радиус кривой, м | Увеличение горизонтальных расстояний с внутренней стороны кривой | |||||
150 | 160 | |||||
при расположении опор, мачт, столбов в прямых участках пути на расстоянии от оси пути, мм | ||||||
2450 | 2750 - 3100 | 5700 | 2450 | 2750 - 3100 | 5700 | |
44 | 45 | 46 | 47 | 48 | 49 | |
4000 | 390 | 285 | 80 | 415 | 305 | 85 |
3000 | 395 | 290 | 80 | 420 | 310 | 90 |
2500 | 395 | 290 | 85 | 420 | 310 | 90 |
2000 | 400 | 295 | 90 | 425 | 315 | 95 |
1800 | 400 | 295 | 90 | 430 | 315 | 95 |
1600 | 405 | 300 | 90 | 430 | 320 | 100 |
1500 | 405 | 300 | 95 | 430 | 320 | 100 |
1400 | 405 | 300 | 95 | 435 | 320 | 100 |
1200 | 410 | 305 | 100 | 440 | 325 | 105 |
1000 | 415 | 310 | 105 | 445 | 330 | 110 |
900 | 420 | 315 | 110 | 450 | 335 | 115 |
800 | 425 | 320 | 115 | 450 | 340 | 120 |
700 | 430 | 325 | 120 | 460 | 345 | 125 |
600 | 440 | 335 | 130 | 465 | 355 | 135 |
500 | 450 | 345 | 140 | 480 | 365 | 145 |
400 | 470 | 365 | 160 | 500 | 385 | 165 |
350 | 485 | 380 | 170 | 510 | 400 | 180 |
300 | 500 | 395 | 190 | 525 | 415 | 195 |
250 | 530 | 425 | 220 | 555 | 445 | 225 |
200 | 560 | 455 | 250 | 585 | 475 | 255 |
180 | 580 | 475 | 270 | 605 | 495 | 275 |
150 | 620 | 515 | 310 | 645 | 535 | 315 |
120 | 680 | 575 | 370 | 705 | 595 | 375 |
100 | 740 | 635 | 430 | 765 | 655 | 435 |
80 | 830 | 725 | 520 | 855 | 745 | 525 |
60 | 980 | 875 | 670 | 1005 | 895 | 675 |
Примечания 1. Нормы, приведенные в настоящей таблице, применяют для путей перегонов и раздельных пунктов общей сети железных дорог, а также для подъездных путей от станции примыкания до территории промышленных предприятий, путей между территориями промышленных предприятий и на территориях промышленных предприятий. 2. При определении увеличения горизонтальных расстояний до опор, мачт и столбов с внутренней стороны кривой величину возвышения наружного рельса принимают для определения проектных норм - равной расчетным возвышениям наружного рельса, указанных в таблице Е.7а; эксплуатационных норм - равной существующим или намечаемым на определенную перспективу возвышениям наружного рельса. 3. Увеличение горизонтальных расстояний в кривых до карликовых светофоров (при высоте их над уровнем верха головок рельсов не более 1100 мм) производят по нормам, приведенным для опор, мачт и столбов, расположенных в прямой на расстоянии 5700 мм от оси пути. | ||||||
Радиус кривой, м | На перегонах и главных путях раздельных пунктов | На всех путях (кроме главных) раздельных пунктов общей сети железных дорог, подъездных путей и путей промышленных предприятий, скорость движения по которым более 50 км/ч | |
общей сети железных дорог | подъездных путей от станции примыкания до территории промышленных предприятий и путей между территориями промышленных предприятий | ||
4000 | 60 | 15 | 15 |
3000 | 80 | 20 | 20 |
2500 | 100 | 25 | 25 |
2000 | 120 | 30 | 30 |
1800 | 135 | 30 | 30 |
1500 | 160 | 40 | 40 |
1200 | 160 | 50 | 50 |
1000 | 160 | 60 | 60 |
800 | 160 | 70 | 70 |
700 | 160 | 85 | 80 |
600 | 160 | 95 | 80 |
500 | 160 | 115 | 80 |
400 | 160 | 120 | 80 |
350 | 160 | 120 | 80 |
300 | 160 | 120 | 80 |
250 | 160 | 120 | 80 |
200 | 160 | 120 | 80 |
180 | 160 | 120 | 80 |
150 | - | 120 | 80 |
120 | - | 120 | 80 |
100 | - | 120 | 80 |
80 | - | 120 | 80 |
60 | - | 120 | 80 |
,
;
;
, мм,
- габарит приближения строений в прямых участках пути;
- то же, в кривых.Номер точек габарита и их координаты в прямой | Наименование координат в кривой | Координаты точек габарита приближения строений с наружной стороны кривой ( | ||||||||
непогашенном ускорении | при возвышении наружного рельса, мм | |||||||||
0 | 10 | 20 | 30 | 40 | 50 | 60 | 70 | |||
1 | 2 | 3 | 4 | 5 | 6 | 7 | 8 | 9 | 10 | 11 |
II | - | 6400 | 6410 | 6420 | 6420 | 6430 | 6440 | 6450 | 6450 | |
6400 ------- 1020 | 0,7 | 1190 | 1150 | 1110 | 1070 | 1030 | 990 | 950 | 910 | |
0,6 | 1160 | 1120 | 1080 | 1040 | 1000 | 960 | 920 | 880 | ||
0,5 | 1130 | 1090 | 1050 | 1010 | 970 | 930 | 890 | 850 | ||
0,4 | 1100 | 1060 | 1020 | 980 | 940 | 900 | 860 | 820 | ||
0,3 | 1070 | 1030 | 990 | 950 | 910 | 870 | 830 | 790 | ||
0,2 | 1040 | 1000 | 960 | 920 | 880 | 840 | 800 | 760 | ||
0,1 и 0 | 1020 | 980 | 940 | 900 | 860 | 820 | 780 | 740 | ||
II | - | 6250 | 6260 | 6270 | 6280 | 6280 | 6290 | 6300 | 6310 | |
6250 ------ 1120 | 0,7 | 1290 | 1250 | 1210 | 1170 | 1130 | 1090 | 1050 | 1010 | |
0,6 | 1260 | 1220 | 1180 | 1140 | 1100 | 1060 | 1020 | 980 | ||
0,5 | 1230 | 1190 | 1150 | 1110 | 1070 | 1030 | 990 | 950 | ||
0,4 | 1200 | 1160 | 1120 | 1080 | 1040 | 1000 | 960 | 920 | ||
0,3 | 1170 | 1130 | 1090 | 1050 | 1010 | 970 | 930 | 890 | ||
0,2 | 1140 | 1100 | 1060 | 1020 | 980 | 940 | 900 | 860 | ||
0,1 и 0 | 1120 | 1080 | 1040 | 1000 | 960 | 920 | 880 | 840 | ||
Iа | - | 5400 | 5420 | 5430 | 5450 | 5460 | 5480 | 5500 | 5510 | |
5400 ------- 1700 | 0,7 | 1840 + b | 1800 + b | 1770 + b | 1740 + b | 1700 + b | 1670 + b | 1640 + b | 1600 + b | |
0,6 | 1810 + b | 1780 + b | 1750 + b | 1710 + b | 1680 + b | 1650 + b | 1610 + b | 1580 + b | ||
0,5 | 1790 + b | 1760 + b | 1720 + b | 1690 + b | 1660 + b | 1620 + b | 1590 + b | 1550 + b | ||
0,4 | 1770 + b | 1730 + b | 1700 + b | 1670 + b | 1630 + b | 1600 + b | 1560 + b | 1530 + b | ||
0,3 | 1740 + b | 1710 + b | 1680 + b | 1640 + b | 1610 + b | 1570 + b | 1540 + b | 1510 + b | ||
0,2 | 1720 + b | 1690 + b | 1650 + b | 1620 + b | 1590 + b | 1550 + b | 1520 + b | 1480 + b | ||
0,1 и 0 | 1700 + b | 1670 + b | 1630 + b | 1600 + b | 1570 + b | 1530 + b | 1500 + b | 1460 + b | ||
1, I | - | 5550 | 5570 | 5580 | 5590 | 5600 | 5610 | 5620 | 5630 | |
5550 ------- 1600 | 0,7 | 1740 + b | 1710 + b | 1670 + b | 1640 + b | 1600 + b | 1570 + b | 1540 + b | 1500 + b | |
0,6 | 1720 + b | 1680 + b | 1650 + b | 1610 + b | 1580 + b | 1550 + b | 1510 + b | 1480 + b | ||
0,5 | 1700 + b | 1660 + b | 1630 + b | 1590 + b | 1560 + b | 1520 + b | 1490 + b | 1450 + b | ||
0,4 | 1670 + b | 1630 + b | 1600 + b | 1570 + b | 1530 + b | 1500 + b | 1460 + b | 1430 + b | ||
0,3 | 1650 + b | 1610 + b | 1580 + b | 1540 + b | 1510 + b | 1470 + b | 1440 + b | 1400 + b | ||
0,2 | 1620 + b | 1590 + b | 1550 + b | 1520 + b | 1480 + b | 1450 + b | 1410 + b | 1380 + b | ||
0,1 и 0 | 1600 + b | 1570 + b | 1530 + b | 1500 + b | 1460 + b | 1430 + b | 1400 + b | 1360 + b | ||
2 | - | 4300 | 4320 | 4340 | 4360 | 4380 | 4400 | 4420 | 4440 | |
4300 ------- 2450 | - | 2450 + b | 2420 + b | 2400 + b | 2370 + b | 2340 + b | 2320 + b | 2290 + b | 2260 + b | |
4 | - | 1100 | 1120 | 1140 | 1160 | 1180 | 1200 | 1220 | 1240 | |
1100 ------- 2450 | - | 2450 + b | 2440 + b | 2440 + b | 2430 + b | 2420 + b | 2420 + b | 2410 + b | 2400 + b | |
4а | - | 1070 | 1090 | 1110 | 1130 | 1150 | 1170 | 1190 | 1210 | |
1070 ------- 2450 | - | 2450 + b | 2440 + b | 2440 + b | 2430 + b | 2420 + b | 2420 + b | 2410 + b | 2400 + b | |
10 | - | 3200 | 3220 | 3250 | 3270 | 3300 | 3320 | 3350 | 3370 | |
3200 ------- 3100 | - | 3100 + b | 3080 + b | 3060 + b | 3040 + b | 3020 + b | 3000 + b | 2980 + b | 2960 + b | |
11 | - | 0 | 0 | 0 | 0 | 0 | 0 | 0 | 0 | |
0 ------ 3100 | - | 3100 + b | 3100 + b | 3100 + b | 3100 + b | 3100 + b | 3100 + b | 3100 + b | 3100 + b | |
Номер точек габарита и их координаты в прямой | Наименование координат в кривой | Координаты точек габарита приближения строений с наружной стороны кривой ( | ||||||||
непогашенном ускорении | при возвышении наружного рельса, мм | |||||||||
80 | 90 | 100 | 110 | 120 | 130 | 140 | 150 | |||
1 | 2 | 3 | 12 | 13 | 14 | 15 | 16 | 17 | 18 | 19 |
II | - | 6460 | 6470 | 6480 | 6490 | 6500 | 6510 | 6520 | 6530 | |
6400 ------- 1020 | 0,7 | 870 | 830 | 790 | 750 | 710 | 670 | 630 | 590 | |
0,6 | 840 | 800 | 760 | 720 | 680 | 640 | 600 | 560 | ||
0,5 | 810 | 770 | 730 | 690 | 650 | 610 | 570 | 530 | ||
0,4 | 780 | 740 | 700 | 660 | 620 | 580 | 540 | 500 | ||
0,3 | 750 | 710 | 670 | 630 | 590 | 550 | 510 | 470 | ||
0,2 | 720 | 680 | 640 | 600 | 560 | 520 | 480 | 440 | ||
0,1 и 0 | 700 | 660 | 620 | 580 | 540 | 500 | 460 | 420 | ||
II | - | 6320 | 6330 | 6340 | 6350 | 6360 | 6370 | 6380 | 6390 | |
6250 ------ 1120 | 0,7 | 970 | 930 | 890 | 850 | 810 | 770 | 730 | 690 | |
0,6 | 940 | 900 | 860 | 820 | 780 | 740 | 700 | 660 | ||
0,5 | 910 | 870 | 830 | 790 | 750 | 710 | 670 | 630 | ||
0,4 | 880 | 840 | 800 | 760 | 720 | 680 | 640 | 600 | ||
0,3 | 850 | 810 | 770 | 730 | 690 | 650 | 610 | 570 | ||
0,2 | 820 | 790 | 750 | 710 | 670 | 630 | 590 | 540 | ||
0,1 и 0 | 810 | 770 | 730 | 680 | 650 | 610 | 570 | 530 | ||
Iа | - | 5530 | 5540 | 5560 | 5570 | 5590 | 5600 | 5620 | 5630 | |
5400 ------- 1700 | 0,7 | 1570 + b | 1530 + b | 1500 + b | 1470 + b | 1430 + b | 1400 + b | 1380 + b | 1330 + b | |
0,6 | 1540 + b | 1510 + b | 1480 + b | 1440 + b | 1410 + b | 1380 + b | 1340 + b | 1310 + b | ||
0,5 | 1520 + b | 1490 + b | 1450 + b | 1420 + b | 1390 + b | 1350 + b | 1320 + b | 1290 + b | ||
0,4 | 1500 + b | 1460 + b | 1430 + b | 1400 + b | 1360 + b | 1330 + b | 1290 + b | 1260 + b | ||
0,3 | 1470 + b | 1440 + b | 1410 + b | 1370 + b | 1340 + b | 1300 + b | 1270 + b | 1240 + b | ||
0,2 | 1450 + b | 1420 + b | 1380 + b | 1350 + b | 1320 + b | 1280 + b | 1250 + b | 1210 + b | ||
0,1 и 0 | 1430 + b | 1400 + b | 1360 + b | 1330 + b | 1300 + b | 1260 + b | 1230 + b | 1200 + b | ||
1, I | - | 5640 | 5660 | 5670 | 5680 | 5690 | 5710 | 5720 | 5730 | |
5550 ------- 1600 | 0,7 | 1470 + b | 1430 + b | 1400 + b | 1360 + b | 1330 + b | 1290 + b | 1260 + b | 1220 + b | |
0,6 | 1440 + b | 1410 + b | 1370 + b | 1340 + b | 1300 + b | 1270 + b | 1230 + b | 1200 + b | ||
0,5 | 1420 + b | 1380 + b | 1350 + b | 1310 + b | 1280 + b | 1240 + b | 1210 + b | 1170 + b | ||
0,4 | 1390 + b | 1360 + b | 1320 + b | 1290 + b | 1250 + b | 1220 + b | 1180 + b | 1150 + b | ||
0,3 | 1370 + b | 1330 + b | 1300 + b | 1260 + b | 1230 + b | 1200 + b | 1160 + b | 1130 + b | ||
0,2 | 1340 + b | 1310 + b | 1270 + b | 1240 + b | 1200 + b | 1170 + b | 1130 + b | 1100 + b | ||
0,1 и 0 | 1320 + b | 1290 + b | 1250 + b | 1220 + b | 1190 + b | 1150 + b | 1110 + b | 1080 + b | ||
2 | - | 4460 | 4480 | 4500 | 4520 | 4540 | 4560 | 4580 | 4610 | |
4300 ------- 2450 | - | 2240 + b | 2210 + b | 2180 + b | 2160 + b | 2130 + b | 2100 + b | 2070 + b | 2050 + b | |
4 | - | 1260 | 1280 | 1300 | 1320 | 1340 | 1360 | 1380 | 1410 | |
1100 ------- 2450 | - | 2400 + b | 2390 + b | 2380 + b | 2370 + b | 2370 + b | 2360 + b | 2350 + b | 2350 + b | |
4а | - | 1230 | 1250 | 1270 | 1290 | 1310 | 1330 | 1350 | 1380 | |
1070 ------- 2450 | - | 2400 + b | 2390 + b | 2380 + b | 2380 + b | 2370 + b | 2360 + b | 2360 + b | 2350 + b | |
10 | - | 3400 | 3420 | 3440 | 3470 | 3490 | 3520 | 3540 | 3570 | |
3200 ------- 3100 | - | 2940 + b | 2920 + b | 2900 + b | 2880 + b | 2860 + b | 2840 + b | 2820 + b | 2800 + b | |
11 | - | 0 | 0 | 0 | 0 | 0 | 0 | 0 | 0 | |
0 ------ 3100 | - | 3100 + b | 3100 + b | 3100 + b | 3100 + b | 3100 + b | 3100 + b | 3100 + b | 3100 + b | |
Номер точек габарита и их координаты в прямой | Наименование координат в кривой | Координаты точек габарита приближения строений с внутренней стороны кривой ( | |||||||||||
при возвышении наружного рельса, мм | |||||||||||||
0 | 10 | 20 | 30 | 40 | 50 | 60 | 70 | ||||||
1 | 2 | 3 | 4 | 5 | 6 | 7 | 8 | 9 | 10 | ||||
II | 6400 | 6400 | 6400 | 6400 | 6390 | 6390 | 6390 | 6390 | |||||
6400 ------- 1020 | 1020 | 1040 | 1080 | 1120 | 1160 | 1200 | 1250 | 1310 | |||||
II | 6250 | 6250 | 6250 | 6240 | 6240 | 6240 | 6240 | 6230 | |||||
6250 ------ 1120 | 1120 | 1130 | 1170 | 1210 | 1250 | 1290 | 1340 | 1390 | |||||
| |||||||||||||
1а | 5400 | 5390 | 5390 | 5380 | 5380 | 5370 | 5370 | 5360 | |||||
5400 ------- 1700 | 1700 | 1710 | 1740 | 1780 | 1810 | 1840 | 1890 | 1940 | |||||
1, I | 5550 | 5550 | 5540 | 5540 | 5540 | 5530 | 5530 | 5520 | |||||
5550 ------- 1600 | 1600 + b | 1610 + b | 1640 + b | 1680 + b | 1710 + b | 1750 + b | 1800 + b | 1850 + b | |||||
2 | 4300 | 4290 | 4280 | 4270 | 4260 | 4250 | 4240 | 4230 | |||||
4300 ------- 2450 | 2450 + b | 2450 + b | 2480 + b | 2510 + b | 2530 + b | 2560 + b | 2590 + b | 2610 + b | |||||
4 | 1100 | 1090 | 1080 | 1070 | 1060 | 1050 | 1040 | 1030 | |||||
1100 ------- 2450 | 2450 + b | 2450 + b | 2450 + b | 2450 + b | 2450 + b | 2460 + b | 2470 + b | 2470 + b | |||||
4а | 1070 | 1060 | 1050 | 1040 | 1030 | 1020 | 1010 | 1000 | |||||
1070 ------- 2450 | 2450 + b | 2450 + b | 2450 + b | 2450 + b | 2450 + b | 2460 + b | 2470 + b | 2470 + b | |||||
10 | 3200 | 3190 | 3170 | 3160 | 3140 | 3130 | 3110 | 3100 | |||||
3200 ------- 3100 | 3100 + b | 3100 + b | 3120 + b | 3140 + b | 3160 + b | 3180 + b | 3200 + b | 3220 + b | |||||
11 | 0 | 0 | 0 | 0 | 0 | 0 | 0 | 0 | |||||
0 ------ 3100 | 3100 + b | 3100 + b | 3100 + b | 3100 + b | 3100 + b | 3100 + b | 3100 + b | 3100 + b | |||||
Номер точек габарита и их координаты в прямой | Наименование координат в кривой | Координаты точек габарита приближения строений с внутренней стороны кривой ( | |||||||||||
при возвышении наружного рельса, мм | |||||||||||||
80 | 90 | 100 | 110 | 120 | 130 | 140 | 150 | ||||||
1 | 2 | 11 | 12 | 13 | 14 | 15 | 16 | 17 | 18 | ||||
II | 6390 | 6390 | 6390 | 6390 | 6380 | 6380 | 6380 | 6380 | |||||
6400 ------- 1020 | 1370 | 1430 | 1480 | 1540 | 1600 | 1660 | 1710 | 1770 | |||||
II | 6230 | 6230 | 6230 | 6230 | 6220 | 6220 | 6220 | 6220 | |||||
6250 ------ 1120 | 1460 | 1510 | 1580 | 1630 | 1690 | 1740 | 1800 | 1860 | |||||
| |||||||||||||
1а | 5360 | 5350 | 5340 | 5340 | 5330 | 5330 | 5320 | 5320 | |||||
5400 ------- 1700 | 2000 | 2040 | 2080 | 2130 | 2180 | 2230 | 2280 | 2330 | |||||
1, I | 5520 | 5520 | 5510 | 5510 | 5510 | 5500 | 5500 | 5490 | |||||
5550 ------- 1600 | 1900 + b | 1950 + b | 2000 + b | 2050 + b | 2100 + b | 2150 + b | 2200 + b | 2250 + b | |||||
2 | 4220 | 4210 | 4200 | 4190 | 4180 | 4170 | 4160 | 4150 | |||||
4300 ------- 2450 | 2640 + b | 2670 + b | 2700 + b | 2720 + b | 2750 + b | 2770 + b | 2800 + b | 2830 + b | |||||
4 | 1020 | 1010 | 1000 | 990 | 980 | 970 | 960 | 950 | |||||
1100 ------- 2450 | 2480 + b | 2490 + b | 2490 + b | 2500 + b | 2510 + b | 2510 + b | 2520 + b | 2530 + b | |||||
4а | 990 | 980 | 970 | 960 | 950 | 940 | 930 | 920 | |||||
1070 ------- 2450 | 2480 + b | 2490 + b | 2490 + b | 2500 + b | 2510 + b | 2510 + b | 2520 + b | 2530 + b | |||||
10 | 3090 | 3070 | 3060 | 3040 | 3030 | 3010 | 3000 | 2990 | |||||
3200 ------- 3100 | 3240 + b | 3260 + b | 3280 + b | 3300 + b | 3320 + b | 3340 + b | 3360 + b | 3380 + b | |||||
11 | 0 | 0 | 0 | 0 | 0 | 0 | 0 | 0 | |||||
0 ------ 3100 | 3100 + b | 3100 + b | 3100 + b | 3100 + b | 3100 + b | 2360 + b | 3100 + b | 3100 + b | |||||
Примечания 1. Под номерами точек дробью указаны: в числителе - высота H точек габарита C над уровнем верха головки рельса в прямой, в знаменателе - горизонтальное расстояние B от оси пути до точек габарита C в прямой. 2. Непогашенное ускорение 3. Числовые значения величины b = 36000/R, мм, приведены в таблице Е.21. | |||||||||||||
Номер точек габарита и их координаты в прямой | Наименование координат в кривой | Координаты точек габарита приближения строений с наружной стороны кривой ( | ||||||||
непогашенном ускорении | при возвышении наружного рельса, мм | |||||||||
0 | 10 | 20 | 30 | 40 | 50 | 60 | 70 | |||
1 | 2 | 3 | 4 | 5 | 6 | 7 | 8 | 9 | 10 | 11 |
1 | - | 5400 | 5410 | 5420 | 5440 | 5450 | 5460 | 5470 | 5480 | |
5400 ------- 1700 | 0,7 | 1840 + b | 1800 + b | 1770 + b | 1740 + b | 1700 + b | 1670 + b | 1640 + b | 1600 + b | |
0,6 | 1810 + b | 1780 + b | 1740 + b | 1710 + b | 1680 + b | 1650 + b | 1610 + b | 1580 + b | ||
0,5 | 1790 + b | 1760 + b | 1720 + b | 1690 + b | 1660 + b | 1620 + b | 1590 + b | 1550 + b | ||
0,4 | 1770 + b | 1730 + b | 1700 + b | 1670 + b | 1630 + b | 1600 + b | 1560 + b | 1530 + b | ||
0,3 | 1740 + b | 1710 + b | 1680 + b | 1640 + b | 1610 + b | 1570 + b | 1540 + b | 1510 + b | ||
0,2 | 1720 + b | 1690 + b | 1650 + b | 1620 + b | 1590 + b | 1550 + b | 1520 + b | 1480 + b | ||
0,1 и 0 | 1700 + b | 1670 + b | 1630 + b | 1600 + b | 1570 + b | 1530 + b | 1500 + b | 1460 + b | ||
1а | - | 4800 | 4820 | 4830 | 4840 | 4850 | 4860 | 4880 | 4890 | |
4800 ------ 2110 | 0,7 | 2220 + b | 2190 + b | 2160 + b | 2130 + b | 2110 + b | 2080 + b | 2050 + b | 2030 + b | |
0,6 | 2200 + b | 2170 + b | 2140 + b | 2120 + b | 2090 + b | 2060 + b | 2040 + b | 2010 + b | ||
0,5 | 2180 + b | 2150 + b | 2130 + b | 2100 + b | 2070 + b | 2050 + b | 2020 + b | 1990 + b | ||
0,4 | 2160 + b | 2130 + b | 2110 + b | 2080 + b | 2050 + b | 2030 + b | 2000 + b | 1970 + b | ||
0,3 | 2140 + b | 2120 + b | 2090 + b | 2060 + b | 2040 + b | 2010 + b | 1980 + b | 1960 + b | ||
0,2 | 2130 + b | 2100 + b | 2070 + b | 2040 + b | 2020 + b | 1990 + b | 1960 + b | 1940 + b | ||
0,1 и 0 | 2110 + b | 2080 + b | 2060 + b | 2030 + b | 2000 + b | 1980 + b | 1950 + b | 1920 + b | ||
1 | - | 5500 | 5510 | 5520 | 5530 | 5540 | 5560 | 5570 | 5580 | |
5500 ------- 1635 | 0,7 | 1780 + b | 1740 + b | 1710 + b | 1670 + b | 1640 + b | 1600 + b | 1570 + b | 1540 + b | |
0,6 | 1750 + b | 1720 + b | 1680 + b | 1650 + b | 1620 + b | 1580 + b | 1550 + b | 1510 + b | ||
0,5 | 1730 + b | 1690 + b | 1660 + b | 1630 + b | 1590 + b | 1560 + b | 1520 + b | 1490 + b | ||
0,4 | 1700 + b | 1670 + b | 1630 + b | 1600 + b | 1570 + b | 1530 + b | 1500 + b | 1460 + b | ||
0,3 | 1680 + b | 1650 + b | 1610 + b | 1580 + b | 1540 + b | 1510 + b | 1470 + b | 1440 + b | ||
0,2 | 1660 + b | 1620 + b | 1590 + b | 1550 + b | 1520 + b | 1480 + b | 1450 + b | 1410 + b | ||
0,1 и 0 | 1640 + b | 1600 + b | 1570 + b | 1530 + b | 1500 + b | 1460 + b | 1430 + b | 1390 + b | ||
2а | - | 4450 | 4470 | 4490 | 4510 | 4530 | 4550 | 4560 | 4580 | |
4450 ------- 2350 | - | 2350 + b | 2320 + b | 2290 + b | 2260 + b | 2240 + b | 2210 + b | 2180 + b | 2150 + b | |
2б | - | 4970 | 4990 | 5010 | 5020 | 5040 | 5060 | 5080 | 5090 | |
4970 ------- 2000 | - | 2000 + b | 1970 + b | 1940 + b | 1910 + b | 1880 + b | 1850 + b | 1810 + b | 1780 + b | |
2 | - | 4300 | 4320 | 4340 | 4360 | 4380 | 4400 | 4420 | 4440 | |
4300 ------- 2450 | - | 2450 + b | 2420 + b | 2400 + b | 2370 + b | 2340 + b | 2320 + b | 2280 + b | 2260 + b | |
4 | - | 1100 | 1120 | 1140 | 1160 | 1180 | 1200 | 1220 | 1240 | |
1100 ------- 2450 | - | 2450 + b | 2440 + b | 2440 + b | 2430 + b | 2420 + b | 2420 + b | 2410 + b | 2400 + b | |
4а | - | 1070 | 1090 | 1110 | 1130 | 1150 | 1170 | 1190 | 1210 | |
1070 ------- 2450 | - | 2450 + b | 2440 + b | 2440 + b | 2430 + b | 2420 + b | 2420 + b | 2410 + b | 2400 + b | |
10 | - | 3200 | 3220 | 3250 | 3270 | 3300 | 3330 | 3350 | 3370 | |
3200 ------ 3100 | - | 3100 + b | 3080 + b | 3060 + b | 3040 + b | 3020 + b | 3000 + b | 2980 + b | 2960 + b | |
11 | - | 0 | 0 | 0 | 0 | 0 | 0 | 0 | 0 | |
0 ------ 3100 | - | 3100 + b | 3100 + b | 3100 + b | 3100 + b | 3100 + b | 3100 + b | 3100 + b | 3100 + b | |
Номер точек габарита и их координаты в прямой | Наименование координат в кривой | Координаты точек габарита приближения строений с наружной стороны кривой ( | ||||||||
непогашенном ускорении | при возвышении наружного рельса, мм | |||||||||
80 | 90 | 100 | 110 | 120 | 130 | 140 | 150 | |||
1 | 2 | 3 | 12 | 13 | 14 | 15 | 16 | 17 | 18 | 19 |
1 | - | 5490 | 5500 | 5520 | 5530 | 5540 | 5550 | 5570 | 5580 | |
5400 ------- 1700 | 0,7 | 1570 + b | 1530 + b | 1500 + b | 1470 + b | 1430 + b | 1400 + b | 1360 + b | 1330 + b | |
0,6 | 1540 + b | 1510 + b | 1480 + b | 1440 + b | 1410 + b | 1380 + b | 1340 + b | 1310 + b | ||
0,5 | 1520 + b | 1490 + b | 1450 + b | 1420 + b | 1390 + b | 1350 + b | 1320 + b | 1290 + b | ||
0,4 | 1500 + b | 1460 + b | 1430 + b | 1400 + b | 1360 + b | 1330 + b | 1300 + b | 1260 + b | ||
0,3 | 1470 + b | 1440 + b | 1410 + b | 1370 + b | 1340 + b | 1300 + b | 1270 + b | 1240 + b | ||
0,2 | 1450 + b | 1420 + b | 1380 + b | 1350 + b | 1320 + b | 1280 + b | 1250 + b | 1210 + b | ||
0,1 и 0 | 1430 + b | 1400 + b | 1360 + b | 1330 + b | 1300 + b | 1260 + b | 1230 + b | 1190 + b | ||
1а | - | 4900 | 4910 | 4930 | 4940 | 4960 | 4980 | 5000 | 5010 | |
4800 ------ 2110 | 0,7 | 2000 + b | 1970 + b | 1950 + b | 1920 + b | 1890 + b | 1870 + b | 1840 + b | 1810 + b | |
0,6 | 1980 + b | 1960 + b | 1930 + b | 1900 + b | 1870 + b | 1850 + b | 1820 + b | 1790 + b | ||
0,5 | 1960 + b | 1940 + b | 1910 + b | 1880 + b | 1860 + b | 1830 + b | 1800 + b | 1780 + b | ||
0,4 | 1940 + b | 1920 + b | 1890 + b | 1870 + b | 1840 + b | 1810 + b | 1790 + b | 1760 + b | ||
0,3 | 1930 + b | 1900 + b | 1870 + b | 1850 + b | 1820 + b | 1790 + b | 1770 + b | 1740 + b | ||
0,2 | 1910 + b | 1880 + b | 1860 + b | 1830 + b | 1800 + b | 1780 + b | 1750 + b | 1720 + b | ||
0,1 и 0 | 1900 + b | 1870 + b | 1840 + b | 1820 + b | 1790 + b | 1760 + b | 1730 + b | 1710 + b | ||
1 | - | 5590 | 5600 | 5610 | 5630 | 5640 | 5660 | 5670 | 5690 | |
5500 ------- 1635 | 0,7 | 1500 + b | 1470 + b | 1430 + b | 1400 + b | 1360 + b | 1330 + b | 1300 + b | 1260 + b | |
0,6 | 1480 + b | 1440 + b | 1410 + b | 1370 + b | 1340 + b | 1310 + b | 1270 + b | 1240 + b | ||
0,5 | 1450 + b | 1420 + b | 1380 + b | 1350 + b | 1320 + b | 1280 + b | 1250 + b | 1210 + b | ||
0,4 | 1430 + b | 1390 + b | 1360 + b | 1330 + b | 1290 + b | 1260 + b | 1220 + b | 1190 + b | ||
0,3 | 1400 + b | 1370 + b | 1340 + b | 1300 + b | 1270 + b | 1230 + b | 1200 + b | 1160 + b | ||
0,2 | 1380 + b | 1350 + b | 1310 + b | 1280 + b | 1240 + b | 1210 + b | 1180 + b | 1140 + b | ||
0,1 и 0 | 1360 + b | 1330 + b | 1290 + b | 1260 + b | 1220 + b | 1190 + b | 1150 + b | 1120 + b | ||
2а | - | 4600 | 4620 | 4640 | 4660 | 4680 | 4700 | 4720 | 4740 | |
4450 ------- 2350 | - | 2120 + b | 2090 + b | 2060 + b | 2030 + b | 2130 + b | 2100 + b | 2070 + b | 1920 + b | |
2б | - | 5110 | 5130 | 5150 | 5160 | 5180 | 5200 | 5220 | 5230 | |
4970 ------- 2000 | - | 1750 + b | 1720 + b | 1690 + b | 1660 + b | 1630 + b | 1600 + b | 1570 + b | 1530 + b | |
2 | - | 4460 | 4480 | 4500 | 4520 | 4540 | 4560 | 4580 | 4610 | |
4300 ------- 2450 | - | 2240 + b | 2210 + b | 2180 + b | 2160 + b | 2130 + b | 2100 + b | 2080 + b | 2050 + b | |
4 | - | 1260 | 1280 | 1300 | 1320 | 1340 | 1360 | 1380 | 1410 | |
1100 ------- 2450 | - | 2400 + b | 2390 + b | 2380 + b | 2370 + b | 2370 + b | 2360 + b | 2350 + b | 2350 + b | |
4а | - | 1230 | 1250 | 1270 | 1290 | 1310 | 1330 | 1350 | 1380 | |
1070 ------- 2450 | - | 2400 + b | 2390 + b | 2380 + b | 2380 + b | 2370 + b | 2360 + b | 2360 + b | 2350 + b | |
10 | - | 3400 | 3420 | 3440 | 3470 | 3490 | 3520 | 3540 | 3570 | |
3200 ------ 3100 | - | 2940 + b | 2920 + b | 2900 + b | 2880 + b | 2860 + b | 2840 + b | 2820 + b | 2800 + b | |
11 | - | 0 | 0 | 0 | 0 | 0 | 0 | 0 | 0 | |
0 ------ 3100 | - | 3100 + b | 3100 + b | 3100 + b | 3100 + b | 3100 + b | 3100 + b | 3100 + b | 3100 + b | |
Номер точек габарита и их координаты в прямой | Наименование координат в кривой | Координаты точек габарита приближения строений с внутренней стороны кривой ( | |||||||
при возвышении наружного рельса, мм | |||||||||
0 | 10 | 20 | 30 | 40 | 50 | 60 | 70 | ||
1 | 2 | 3 | 4 | 5 | 6 | 7 | 8 | 9 | 10 |
1 | 5400 | 5400 | 5390 | 5380 | 5380 | 5370 | 5370 | 5360 | |
5400 ------- 1700 | 1700 | 1710 | 1740 | 1780 | 1810 | 1840 | 1890 | 1940 | |
1а | 4800 | 4790 | 4780 | 4780 | 4770 | 4760 | 4750 | 4740 | |
4800 ------ 2110 | 2110 + b | 2110 + b | 2140 + b | 2160 + b | 2190 + b | 2220 + b | 2260 + b | 2290 + b | |
1 | 5500 | 5500 | 5490 | 5480 | 5480 | 5470 | 5470 | 5460 | |
5500 ------- 1635 | 1640 + b | 1640 + b | 1680 + b | 1710 + b | 1750 + b | 1780 + b | 1830 + b | 1880 + b | |
2а | 4450 | 4440 | 4430 | 4420 | 4410 | 4410 | 4400 | 4390 | |
4450 ------- 2350 | 2350 + b | 2350 + b | 2380 + b | 2410 + b | 2440 + b | 2470 + b | 2500 + b | 2530 + b | |
2б | 4970 | 4960 | 4960 | 4950 | 4940 | 4930 | 4930 | 4920 | |
4970 ------- 2000 | 2000 + b | 2010 + b | 2040 + b | 2070 + b | 2100 + b | 2130 + b | 2160 + b | 2190 + b | |
2 | 4300 | 4290 | 4280 | 4270 | 4260 | 4250 | 4240 | 4230 | |
4300 ------- 2450 | 2450 + b | 2450 + b | 2480 + b | 2510 + b | 2530 + b | 2560 + b | 2590 + b | 2610 + b | |
4 | 1100 | 1090 | 1080 | 1070 | 1060 | 1050 | 1040 | 1030 | |
1100 ------- 2450 | 2450 + b | 2450 + b | 2450 + b | 2450 + b | 2450 + b | 2460 + b | 2470 + b | 2470 + b | |
4а | 1070 | 1060 | 1050 | 1040 | 1030 | 1020 | 1010 | 1000 | |
1070 ------- 2450 | 2450 + b | 2450 + b | 2450 + b | 2450 + b | 2450 + b | 2460 + b | 2470 + b | 2470 + b | |
10 | 3200 | 3190 | 3170 | 3160 | 3140 | 3130 | 3110 | 3100 | |
3200 ------ 3100 | 3100 + b | 3100 + b | 3120 + b | 3140 + b | 3160 + b | 3180 + b | 3200 + b | 3220 + b | |
11 | 0 | 0 | 0 | 0 | 0 | 0 | 0 | 0 | |
0 ------ 3100 | 3100 + b | 3100 + b | 3100 + b | 3100 + b | 3100 + b | 3100 + b | 3100 + b | 3100 + b | |
Номер точек габарита и их координаты в прямой | Наименование координат в кривой | Координаты точек габарита приближения строений с внутренней стороны кривой ( | |||||||
при возвышении наружного рельса, мм | |||||||||
80 | 90 | 100 | 110 | 120 | 130 | 140 | 150 | ||
1 | 2 | 11 | 12 | 13 | 14 | 15 | 16 | 17 | 18 |
1 | 5360 | 5350 | 5340 | 5340 | 5330 | 5330 | 5320 | 5320 | |
5400 ------- 1700 | 1990 | 2040 | 2090 | 2130 | 2180 | 2230 | 2280 | 2330 | |
1а | 4740 | 4730 | 4720 | 4710 | 4700 | 4690 | 4690 | 4680 | |
4800 ------ 2110 | 2330 + b | 2370 + b | 2410 + b | 2450 + b | 2490 + b | 2520 + b | 2560 + b | 2600 + b | |
1 | 5460 | 5450 | 5450 | 5440 | 5440 | 5430 | 5430 | 5420 | |
5500 ------- 1635 | 1930 + b | 1980 + b | 2030 + b | 2080 + b | 2130 + b | 2180 + b | 2220 + b | 2270 + b | |
2а | 4380 | 4370 | 4360 | 4350 | 4340 | 4330 | 4320 | 4310 | |
4450 ------- 2350 | 2550 + b | 2580 + b | 2610 + b | 2640 + b | 2670 + b | 2700 + b | 2730 + b | 2760 + b | |
2б | 4910 | 4900 | 4900 | 4890 | 4880 | 4870 | 4870 | 4860 | |
4970 ------- 2000 | 2220 + b | 2250 + b | 2290 + b | 2320 + b | 2350 + b | 2380 + b | 2410 + b | 2440 + b | |
2 | 4220 | 4210 | 4200 | 4190 | 4180 | 4170 | 4160 | 4150 | |
4300 ------- 2450 | 2640 + b | 2670 + b | 2700 + b | 2720 + b | 2750 + b | 2770 + b | 2800 + b | 2830 + b | |
4 | 1020 | 1010 | 1000 | 990 | 980 | 970 | 960 | 950 | |
1100 ------- 2450 | 2480 + b | 2490 + b | 2490 + b | 2500 + b | 2510 + b | 2520 + b | 2520 + b | 2530 + b | |
4а | 990 | 980 | 970 | 960 | 950 | 940 | 930 | 920 | |
1070 ------- 2450 | 2480 + b | 2490 + b | 2490 + b | 2500 + b | 2510 + b | 2510 + b | 2520 + b | 2530 + b | |
10 | 3090 | 3070 | 3060 | 3040 | 3030 | 3010 | 3000 | 2980 | |
3200 ------ 3100 | 3240 + b | 3260 + b | 3280 + b | 3300 + b | 3320 + b | 3340 + b | 3360 + b | 3380 + b | |
11 | 0 | 0 | 0 | 0 | 0 | 0 | 0 | 0 | |
0 ------ 3100 | 3100 + b | 3100 + b | 3100 + b | 3100 + b | 3100 + b | 2360 + b | 3100 + b | 3100 + b | |
Примечания 1. Под номерами точек дробью указаны: в числителе - высота H точек габарита 2. Непогашенное ускорение 3. Числовые значения величины b = 36000/R, мм, приведены в таблице Е.21. | |||||||||
Номер точек очертания и их координаты в прямой | Наименование координат в кривой | Координаты точек очертания A в кривой ( | ||||||||
при непогашенном ускорении | при возвышении наружного рельса, мм | |||||||||
0 | 10 | 20 | 30 | 40 | 50 | 60 | 70 | |||
1 | 2 | 3 | 4 | 5 | 6 | 7 | 8 | 9 | 10 | 11 |
1. С наружной стороны кривой | ||||||||||
1 | - | 5450 | 5460 | 5470 | 5490 | 5500 | 5510 | 5520 | 5530 | |
5450 ------- 1100 | 0,7 | 1240 + b | 1210 + b | 1170 + b | 1140 + b | 1100 + b | 1070 + b | 1040 + b | 1000 + b | |
0,6 | 1220 + b | 1180 + b | 1150 + b | 1110 + b | 1080 + b | 1050 + b | 1010 + b | 980 + b | ||
0,5 | 1190 + b | 1160 + b | 1120 + b | 1090 + b | 1060 + b | 1020 + b | 990 + b | 950 + b | ||
0,4 | 1170 + b | 1130 + b | 1100 + b | 1070 + b | 1030 + b | 1000 + b | 960 + b | 930 + b | ||
0,3 | 1140 + b | 1110 + b | 1080 + b | 1040 + b | 1010 + b | 970 + b | 940 + b | 910 + b | ||
0,2 | 1120 + b | 1090 + b | 1050 + b | 1020 + b | 980 + b | 960 + b | 920 + b | 880 + b | ||
0,1 и 0 | 1110 + b | 1070 + b | 1030 + b | 1000 + b | 960 + b | 930 + b | 900 + b | 860 + b | ||
2 | - | 5300 | 5320 | 5330 | 5350 | 5360 | 5380 | 5390 | 5410 | |
5300 ------- 1700 | 0,7 | 1840 + b | 1800 + b | 1770 + b | 1740 + b | 1700 + b | 1670 + b | 1640 + b | 1600 + b | |
0,6 | 1810 + b | 1780 + b | 1750 + b | 1710 + b | 1680 + b | 1640 + b | 1610 + b | 1580 + b | ||
0,5 | 1790 + b | 1760 + b | 1720 + b | 1690 + b | 1660 + b | 1620 + b | 1590 + b | 1560 + b | ||
0,4 | 1770 + b | 1730 + b | 1700 + b | 1670 + b | 1630 + b | 1600 + b | 1570 + b | 1530 + b | ||
0,3 | 1740 + b | 1710 + b | 1680 + b | 1640 + b | 1610 + b | 1580 + b | 1540 + b | 1510 + b | ||
0,2 | 1720 + b | 1690 + b | 1650 + b | 1620 + b | 1590 + b | 1550 + b | 1520 + b | 1490 + b | ||
0,1 и 0 | 1700 + b | 1670 + b | 1630 + b | 1600 + b | 1570 + b | 1530 + b | 1500 + b | 1470 + b | ||
3 | - | 4825 | 4845 | 4865 | 4875 | 4895 | 4915 | 4935 | 4945 | |
4825 ------- 2025 | 0,7 | 2150 + b | 2120 + b | 2090 + b | 2060 + b | 2030 + b | 2000 + b | 1970 + b | 1940 + b | |
0,6 | 2130 + b | 2100 + b | 2070 + b | 2040 + b | 2010 + b | 1980 + b | 1950 + b | 1920 + b | ||
0,5 | 2100 + b | 2070 + b | 2040 + b | 2010 + b | 1980 + b | 1950 + b | 1920 + b | 1890 + b | ||
0,4 | 2080 + b | 2050 + b | 2020 + b | 1990 + b | 1960 + b | 1930 + b | 1900 + b | 1870 + b | ||
0,3 | 2060 + b | 2030 + b | 2000 + b | 1970 + b | 1940 + b | 1910 + b | 1880 + b | 1850 + b | ||
0,2 | 2040 + b | 2010 + b | 1980 + b | 1950 + b | 1920 + b | 1890 + b | 1860 + b | 1830 + b | ||
0,1 и 0 | 2030 + b | 2000 + b | 1970 + b | 1940 + b | 1910 + b | 1880 + b | 1850 + b | 1820 + b | ||
4 | - | 3600 | 3620 | 3640 | 3660 | 3680 | 3700 | 3720 | 3740 | |
3600 ------- 2300 | - | 2300 + b | 2280 + b | 2260 + b | 2230 + b | 2210 + b | 2190 + b | 2170 + b | 2140 + b | |
5 | - | 3000 | 3020 | 3040 | 3060 | 3080 | 3100 | 3120 | 3140 | |
3000 ------- 2400 | - | 2400 + b | 2380 + b | 2360 + b | 2340 + b | 2330 + b | 2310 + b | 2290 + b | 2270 + b | |
6 | - | 2500 | 2520 | 2540 | 2560 | 2580 | 2600 | 2620 | 2640 | |
2500 ------- 2425 | - | 2430 + b | 2410 + b | 2390 + b | 2380 + b | 2360 + b | 2350 + b | 2330 + b | 2320 + b | |
7 | - | 1100 | 1120 | 1140 | 1160 | 1180 | 1200 | 1220 | 1240 | |
1100 ------- 2380 | - | 2380 + b | 2370 + b | 2370 + b | 2360 + b | 2350 + b | 2350 + b | 2340 + b | 2330 + b | |
8 | - | 840 | 860 | 880 | 900 | 920 | 940 | 960 | 980 | |
840 ------ 2300 | - | 2300 + b | 2300 + b | 2290 + b | 2280 + b | 2280 + b | 2270 + b | 2270 + b | 2260 + b | |
9 | - | 0 | 0 | 0 | 0 | 0 | 0 | 0 | 0 | |
0 ------ 1745 | - | 1745 + b | 1745 + b | 1745 + b | 1745 + b | 1745 + b | 1745 + b | 1745 + b | 1745 + b | |
Номер точек очертания и их координаты в прямой | Наименование координат в кривой | Координаты точек очертания A в кривой ( | ||||||||
при непогашенном ускорении | при возвышении наружного рельса, мм | |||||||||
80 | 90 | 100 | 110 | 120 | 130 | 140 | 150 | |||
1 | 2 | 3 | 12 | 13 | 14 | 15 | 16 | 17 | 18 | 19 |
1. С наружной стороны кривой | ||||||||||
1 | - | 5550 | 5560 | 5570 | 5580 | 5590 | 5600 | 5620 | 5630 | |
5450 ------- 1100 | 0,7 | 970 + b | 930 + b | 900 + b | 870 + b | 830 + b | 800 + b | 760 + b | 730 + b | |
0,6 | 940 + b | 910 + b | 880 + b | 850 + b | 810 + b | 770 + b | 740 + b | 710 + b | ||
0,5 | 920 + b | 890 + b | 850 + b | 820 + b | 780 + b | 750 + b | 720 + b | 680 + b | ||
0,4 | 900 + b | 860 + b | 830 + b | 790 + b | 760 + b | 730 + b | 690 + b | 660 + b | ||
0,3 | 870 + b | 840 + b | 800 + b | 770 + b | 740 + b | 700 + b | 670 + b | 630 + b | ||
0,2 | 850 + b | 810 + b | 780 + b | 750 + b | 710 + b | 670 + b | 640 + b | 610 + b | ||
0,1 и 0 | 830 + b | 790 + b | 760 + b | 730 + b | 690 + b | 660 + b | 620 + b | 590 + b | ||
2 | - | 5430 | 5440 | 5460 | 5470 | 5490 | 5500 | 5520 | 5530 | |
5300 ------- 1700 | 0,7 | 1570 + b | 1540 + b | 1500 + b | 1470 + b | 1440 + b | 1400 + b | 1370 + b | 1340 + b | |
0,6 | 1550 + b | 1510 + b | 1480 + b | 1450 + b | 1410 + b | 1380 + b | 1350 + b | 1320 + b | ||
0,5 | 1520 + b | 1490 + b | 1460 + b | 1430 + b | 1390 + b | 1360 + b | 1330 + b | 1290 + b | ||
0,4 | 1500 + b | 1470 + b | 1440 + b | 1400 + b | 1370 + b | 1340 + b | 1300 + b | 1270 + b | ||
0,3 | 1480 + b | 1440 + b | 1410 + b | 1380 + b | 1340 + b | 1310 + b | 1280 + b | 1250 + b | ||
0,2 | 1450 + b | 1420 + b | 1390 + b | 1360 + b | 1320 + b | 1290 + b | 1260 + b | 1220 + b | ||
0,1 и 0 | 1440 + b | 1400 + b | 1370 + b | 1340 + b | 1300 + b | 1270 + b | 1240 + b | 1200 + b | ||
3 | - | 4965 | 4985 | 5005 | 5015 | 5035 | 5055 | 5075 | 5095 | |
4825 ------- 2025 | 0,7 | 1910 + b | 1880 + b | 1850 + b | 1820 + b | 1790 + b | 1760 + b | 1730 + b | 1700 + b | |
0,6 | 1890 + b | 1860 + b | 1830 + b | 1800 + b | 1770 + b | 1740 + b | 1710 + b | 1670 + b | ||
0,5 | 1860 + b | 1830 + b | 1800 + b | 1770 + b | 1740 + b | 1710 + b | 1680 + b | 1650 + b | ||
0,4 | 1840 + b | 1810 + b | 1780 + b | 1750 + b | 1720 + b | 1690 + b | 1660 + b | 1630 + b | ||
0,3 | 1820 + b | 1790 + b | 1760 + b | 1730 + b | 1700 + b | 1670 + b | 1640 + b | 1610 + b | ||
0,2 | 1800 + b | 1770 + b | 1740 + b | 1710 + b | 1680 + b | 1650 + b | 1620 + b | 1590 + b | ||
0,1 и 0 | 1790 + b | 1760 + b | 1730 + b | 1700 + b | 1670 + b | 1640 + b | 1610 + b | 1580 + b | ||
4 | - | 3760 | 3770 | 3790 | 3810 | 3830 | 3850 | 3870 | 3890 | |
3600 ------- 2300 | - | 2120 + b | 2100 + b | 2080 + b | 2050 + b | 2030 + b | 2010 + b | 1990 + b | 1960 + b | |
5 | - | 3160 | 3180 | 3200 | 3220 | 3240 | 3260 | 3280 | 3300 | |
3000 ------- 2400 | - | 2250 + b | 2230 + b | 2210 + b | 2190 + b | 2180 + b | 2160 + b | 2140 + b | 2120 + b | |
6 | - | 2660 | 2680 | 2700 | 2720 | 2740 | 2760 | 2780 | 2800 | |
2500 ------- 2425 | - | 2300 + b | 2280 + b | 2270 + b | 2250 + b | 2240 + b | 2220 + b | 2210 + b | 2190 + b | |
7 | - | 1260 | 1280 | 1300 | 1320 | 1340 | 1360 | 1380 | 1400 | |
1100 ------- 2380 | - | 2330 + b | 2320 + b | 2310 + b | 2300 + b | 2300 + b | 2290 + b | 2280 + b | 2280 + b | |
8 | - | 1000 | 1010 | 1030 | 1050 | 1070 | 1090 | 1110 | 1130 | |
840 ------ 2300 | - | 2260 + b | 2250 + b | 2250 + b | 2240 + b | 2240 + b | 2230 + b | 2230 + b | 2220 + b | |
9 | - | 0 | 0 | 0 | 0 | 0 | 0 | 0 | 0 | |
0 ------ 1745 | - | 1745 + b | 1745 + b | 1745 + b | 1745 + b | 1745 + b | 1745 + b | 1745 + b | 1745 + b | |
Номер точек очертания и их координаты в прямой | Наименование координат в кривой | Координаты точек очертания A в кривой ( | ||||||||
при непогашенном ускорении | при возвышении наружного рельса, мм | |||||||||
0 | 10 | 20 | 30 | 40 | 50 | 60 | 70 | |||
1 | 2 | 3 | 4 | 5 | 6 | 7 | 8 | 9 | 10 | 11 |
2. С внутренней стороны кривой | ||||||||||
1 | - | 5450 | 5450 | 5450 | 5440 | 5440 | 5440 | 5440 | 5440 | |
5450 ------- 1100 | - | 1100 + b | 1110 + b | 1140 + b | 1180 + b | 1210 + b | 1250 + b | 1290 + b | 1340 + b | |
2 | - | 5300 | 5290 | 5290 | 5280 | 5280 | 5270 | 5270 | 5260 | |
5300 ------- 1700 | - | 1700 + b | 1710 + b | 1740 + b | 1770 + b | 1810 + b | 1840 + b | 1890 + b | 1930 + b | |
3 | - | 4825 | 4815 | 4805 | 4805 | 4795 | 4785 | 4775 | 4775 | |
4825 ------- 2025 | - | 2030 + b | 2030 + b | 2060 + b | 2090 + b | 2120 + b | 2150 + b | 2190 + b | 2240 + b | |
4 | - | 3600 | 3590 | 3580 | 3570 | 3560 | 3550 | 3540 | 3530 | |
3600 ------- 2300 | - | 2300 + b | 2300 + b | 2320 + b | 2340 + b | 2370 + b | 2390 + b | 2410 + b | 2430 + b | |
5 | - | 3000 | 2990 | 2980 | 2970 | 2960 | 2950 | 2940 | 2930 | |
3000 ------- 2400 | - | 2400 + b | 2400 + b | 2410 + b | 2430 + b | 2450 + b | 2470 + b | 2490 + b | 2510 + b | |
6 | - | 2500 | 2490 | 2480 | 2470 | 2460 | 2450 | 2440 | 2430 | |
2500 ------- 2425 | - | 2430 + b | 2430 + b | 2430 + b | 2450 + b | 2460 + b | 2480 + b | 2490 + b | 2510 + b | |
7 | - | 1100 | 1090 | 1080 | 1070 | 1060 | 1050 | 1040 | 1030 | |
1100 ------- 2380 | - | 2380 + b | 2380 + b | 2380 + b | 2380 + b | 2380 + b | 2390 + b | 2400 + b | 2400 + b | |
8 | - | 840 | 830 | 820 | 810 | 800 | 790 | 780 | 770 | |
840 ------ 2300 | - | 2300 + b | 2300 + b | 2300 + b | 2300 + b | 2300 + b | 2300 + b | 2310 + b | 2310 + b | |
9 | - | 0 | 0 | 0 | 0 | 0 | 0 | 0 | 0 | |
0 ------ 1745 | - | 1745 + b | 1745 + b | 1745 + b | 1745 + b | 1745 + b | 1745 + b | 1745 + b | 1745 + b | |
Номер точек очертания и их координаты в прямой | Наименование координат в кривой | Координаты точек очертания A в кривой ( | ||||||||
при непогашенном ускорении | при возвышении наружного рельса, мм | |||||||||
80 | 90 | 100 | 110 | 120 | 130 | 140 | 150 | |||
1 | 2 | 3 | 12 | 13 | 14 | 15 | 16 | 17 | 18 | 19 |
2. С внутренней стороны кривой | ||||||||||
1 | - | 5440 | 5430 | 5430 | 5430 | 5430 | 5430 | 5420 | 5420 | |
5450 ------- 1100 | - | 1390 + b | 1440 + b | 1490 + b | 1540 + b | 1590 + b | 1640 + b | 1680 + b | 1730 + b | |
2 | - | 5260 | 5250 | 5240 | 5240 | 5230 | 5230 | 5220 | 5220 | |
5300 ------- 1700 | - | 1980 + b | 2030 + b | 2080 + b | 2120 + b | 2170 + b | 2220 + b | 2270 + b | 2310 + b | |
3 | - | 4765 | 4755 | 4745 | 4735 | 4735 | 4725 | 4715 | 4705 | |
4825 ------- 2025 | - | 2280 + b | 2320 + b | 2360 + b | 2410 + b | 2450 + b | 2490 + b | 2530 + b | 2580 + b | |
4 | - | 3530 | 3510 | 3500 | 3500 | 3490 | 3480 | 3470 | 3460 | |
3600 ------- 2300 | - | 2460 + b | 2480 + b | 2500 + b | 2520 + b | 2550 + b | 2570 + b | 2590 + b | 2610 + b | |
5 | - | 2920 | 2910 | 2900 | 2890 | 2880 | 2870 | 2860 | 2850 | |
3000 ------- 2400 | - | 2530 + b | 2540 + b | 2560 + b | 2580 + b | 2600 + b | 2620 + b | 2640 + b | 2660 + b | |
6 | - | 2420 | 2410 | 2400 | 2390 | 2380 | 2370 | 2360 | 2350 | |
2500 ------- 2425 | - | 2530 + b | 2540 + b | 2560 + b | 2570 + b | 2590 + b | 2600 + b | 2620 + b | 2630 + b | |
7 | - | 1020 | 1010 | 1000 | 990 | 980 | 970 | 960 | 950 | |
1100 ------- 2380 | - | 2410 + b | 2420 + b | 2420 + b | 2430 + b | 2440 + b | 2440 + b | 2450 + b | 2460 + b | |
8 | - | 770 | 760 | 750 | 740 | 730 | 720 | 710 | 700 | |
840 ------ 2300 | - | 2320 + b | 2320 + b | 2330 + b | 2330 + b | 2340 + b | 2340 + b | 2350 + b | 2350 + b | |
9 | - | 0 | 0 | 0 | 0 | 0 | 0 | 0 | 0 | |
0 ------ 1745 | - | 1745 + b | 1745 + b | 1745 + b | 1745 + b | 1745 + b | 1745 + b | 1745 + b | 1745 + b | |
Примечания 1. Под номерами точек в скобках дробью указаны: в числителе - высота H точек очертания A над уровнем верха головки рельса в прямой, в знаменателе - горизонтальное расстояние B от оси пути до точек очертания A в прямой. 2. Непогашенное ускорение 3. Числовые значения величины b = 36000/R, мм, приведены в таблице Е.21. | ||||||||||
Номер точек очертания и их координаты в прямой | Наименование координат в кривой | Координаты точек очертания B1 ( | ||||||||
при непогашенном ускорении | при возвышении наружного рельса, мм | |||||||||
0 | 10 | 20 | 30 | 40 | 50 | 60 | 70 | |||
1 | 2 | 3 | 4 | 5 | 6 | 7 | 8 | 9 | 10 | 11 |
1. С наружной стороны кривой | ||||||||||
а) При напряжении в контактном проводе 25 кВ | ||||||||||
1 | - | 6400 | 6410 | 6420 | 6420 | 6430 | 6440 | 6450 | 6460 | |
6400 ------ 500 | 0,7 | 670 | 630 | 590 | 550 | 510 | 470 | 430 | 390 | |
0,6 | 640 | 600 | 560 | 520 | 480 | 440 | 400 | 360 | ||
0,5 | 610 | 570 | 530 | 490 | 450 | 410 | 370 | 330 | ||
0,4 | 580 | 540 | 500 | 460 | 420 | 380 | 340 | 300 | ||
0,3 | 550 | 510 | 470 | 430 | 390 | 350 | 310 | 270 | ||
0,2 | 520 | 480 | 440 | 400 | 360 | 320 | 280 | 240 | ||
0,1 и 0 | 500 | 460 | 420 | 380 | 340 | 300 | 260 | 220 | ||
2 | - | 6050 | 6060 | 6070 | 6090 | 6100 | 6110 | 6120 | 6130 | |
6050 ------- 1100 | 0,7 | 1260 | 1220 | 1180 | 1140 | 1110 | 1070 | 1030 | 990 | |
0,6 | 1230 | 1190 | 1150 | 1120 | 1080 | 1040 | 1000 | 970 | ||
0,5 | 1200 | 1170 | 1130 | 1090 | 1050 | 1010 | 980 | 940 | ||
0,4 | 1180 | 1140 | 1100 | 1060 | 1030 | 990 | 950 | 910 | ||
0,3 | 1150 | 1110 | 1070 | 1040 | 1000 | 960 | 920 | 880 | ||
0,2 | 1120 | 1080 | 1050 | 1010 | 970 | 930 | 900 | 860 | ||
0,1 и 0 | 1100 | 1060 | 1020 | 990 | 950 | 910 | 870 | 840 | ||
3 | - | 5900 | 5910 | 5930 | 5940 | 5950 | 5970 | 5980 | 5990 | |
5900 ------- 1300 | 0,7 | 1450 | 1420 | 1380 | 1340 | 1310 | 1270 | 1230 | 1200 | |
0,6 | 1430 | 1390 | 1350 | 1320 | 1280 | 1240 | 1210 | 1170 | ||
0,5 | 1400 | 1360 | 1330 | 1290 | 1250 | 1220 | 1180 | 1140 | ||
0,4 | 1370 | 1340 | 1300 | 1260 | 1230 | 1190 | 1150 | 1120 | ||
0,3 | 1350 | 1310 | 1270 | 1240 | 1200 | 1160 | 1130 | 1090 | ||
0,2 | 1320 | 1290 | 1250 | 1210 | 1180 | 1140 | 1100 | 1060 | ||
0,1 и 0 | 1300 | 1260 | 1230 | 1190 | 1150 | 1120 | 1080 | 1040 | ||
4 | - | 5400 | 5420 | 5430 | 5450 | 5460 | 5480 | 5490 | 5510 | |
5400 ------- 1700 | 0,7 | 1840 | 1800 | 1770 | 1740 | 1700 | 1670 | 1640 | 1600 | |
0,6 | 1810 | 1780 | 1750 | 1710 | 1680 | 1650 | 1610 | 1580 | ||
0,5 | 1790 | 1760 | 1720 | 1690 | 1660 | 1620 | 1590 | 1560 | ||
0,4 | 1770 | 1730 | 1700 | 1670 | 1630 | 1600 | 1560 | 1530 | ||
0,3 | 1740 | 1710 | 1680 | 1640 | 1610 | 1570 | 1540 | 1510 | ||
0,2 | 1720 | 1690 | 1650 | 1620 | 1590 | 1550 | 1520 | 1480 | ||
0,1 и 0 | 1700 | 1670 | 1630 | 1600 | 1570 | 1530 | 1500 | 1460 | ||
5 | - | 6250 | 6260 | 6270 | 6270 | 6280 | 6290 | 6300 | 6310 | |
6250 ------- 500 | 0,7 | 660 | 620 | 590 | 550 | 510 | 470 | 430 | 390 | |
0,6 | 640 | 600 | 560 | 520 | 480 | 440 | 400 | 360 | ||
0,5 | 610 | 570 | 530 | 490 | 450 | 410 | 370 | 330 | ||
0,4 | 580 | 540 | 500 | 460 | 420 | 380 | 350 | 310 | ||
0,3 | 550 | 510 | 470 | 430 | 400 | 360 | 320 | 280 | ||
0,2 | 520 | 490 | 450 | 410 | 370 | 330 | 290 | 250 | ||
0,1 и 0 | 500 | 460 | 420 | 380 | 340 | 310 | 270 | 230 | ||
Номер точек очертания и их координаты в прямой | Наименование координат в кривой | Координаты точек очертания B1 ( | ||||||||
при непогашенном ускорении | при возвышении наружного рельса, мм | |||||||||
80 | 90 | 100 | 110 | 120 | 130 | 140 | 150 | |||
1 | 2 | 3 | 12 | 13 | 14 | 15 | 16 | 17 | 18 | 19 |
1. С наружной стороны кривой | ||||||||||
а) При напряжении в контактном проводе 25 кВ | ||||||||||
1 | - | 6470 | 6470 | 6480 | 6490 | 6500 | 6510 | 6510 | 6520 | |
6400 ------ 500 | 0,7 | 350 | 310 | 270 | 230 | 190 | 150 | 110 | 70 | |
0,6 | 320 | 280 | 240 | 200 | 160 | 120 | 80 | 40 | ||
0,5 | 290 | 250 | 210 | 170 | 130 | 90 | 50 | 10 | ||
0,4 | 260 | 220 | 180 | 140 | 100 | 60 | 20 | -20 | ||
0,3 | 230 | 190 | 150 | 110 | 70 | 30 | -10 | -50 | ||
0,2 | 200 | 160 | 120 | 80 | 40 | 0 | -40 | -80 | ||
0,1 и 0 | 180 | 140 | 100 | 60 | 20 | -20 | -60 | -100 | ||
2 | - | 6150 | 6160 | 6170 | 6180 | 6190 | 6200 | 6220 | 6230 | |
6050 ------- 1100 | 0,7 | 950 | 920 | 880 | 840 | 800 | 770 | 730 | 690 | |
0,6 | 930 | 890 | 850 | 810 | 780 | 740 | 700 | 660 | ||
0,5 | 900 | 860 | 830 | 790 | 750 | 710 | 670 | 640 | ||
0,4 | 870 | 840 | 800 | 760 | 720 | 680 | 640 | 610 | ||
0,3 | 850 | 810 | 770 | 730 | 700 | 660 | 620 | 580 | ||
0,2 | 820 | 780 | 740 | 710 | 670 | 630 | 590 | 560 | ||
0,1 и 0 | 800 | 760 | 720 | 680 | 650 | 610 | 570 | 530 | ||
3 | - | 6010 | 6020 | 6030 | 6040 | 6050 | 6070 | 6080 | 6100 | |
5900 ------- 1300 | 0,7 | 1160 | 1120 | 1080 | 1050 | 1010 | 970 | 940 | 900 | |
0,6 | 1130 | 1100 | 1060 | 1020 | 980 | 950 | 910 | 870 | ||
0,5 | 1110 | 1070 | 1030 | 990 | 960 | 920 | 880 | 850 | ||
0,4 | 1080 | 1040 | 1010 | 970 | 930 | 900 | 860 | 820 | ||
0,3 | 1050 | 1020 | 980 | 940 | 910 | 870 | 830 | 800 | ||
0,2 | 1030 | 990 | 950 | 920 | 880 | 840 | 810 | 770 | ||
0,1 и 0 | 1010 | 970 | 930 | 890 | 860 | 820 | 780 | 750 | ||
4 | - | 5530 | 5540 | 5560 | 5570 | 5590 | 5600 | 5620 | 5630 | |
5400 ------- 1700 | 0,7 | 1570 | 1530 | 1500 | 1470 | 1430 | 1400 | 1370 | 1330 | |
0,6 | 1540 | 1510 | 1480 | 1440 | 1410 | 1380 | 1340 | 1310 | ||
0,5 | 1520 | 1490 | 1450 | 1420 | 1390 | 1350 | 1320 | 1290 | ||
0,4 | 1500 | 1460 | 1430 | 1400 | 1360 | 1330 | 1290 | 1260 | ||
0,3 | 1470 | 1440 | 1410 | 1370 | 1340 | 1300 | 1270 | 1240 | ||
0,2 | 1450 | 1420 | 1380 | 1350 | 1320 | 1280 | 1250 | 1210 | ||
0,1 и 0 | 1430 | 1400 | 1360 | 1330 | 1300 | 1260 | 1230 | 1190 | ||
5 | - | 6320 | 6320 | 6330 | 6340 | 6350 | 6360 | 6360 | 6370 | |
6250 ------- 500 | 0,7 | 350 | 310 | 270 | 230 | 190 | 160 | 120 | 80 | |
0,6 | 320 | 280 | 250 | 210 | 170 | 130 | 90 | 50 | ||
0,5 | 300 | 260 | 220 | 180 | 140 | 100 | 60 | 20 | ||
0,4 | 270 | 230 | 190 | 150 | 110 | 70 | 30 | -10 | ||
0,3 | 240 | 200 | 160 | 120 | 80 | 40 | 0 | -40 | ||
0,2 | 210 | 170 | 130 | 90 | 50 | 20 | -20 | -60 | ||
0,1 и 0 | 190 | 150 | 110 | 70 | 30 | -10 | -50 | -90 | ||
Номер точек очертания и их координаты в прямой | Наименование координат в кривой | Координаты точек очертания B1 ( | ||||||||
при непогашенном ускорении | при возвышении наружного рельса, мм | |||||||||
0 | 10 | 20 | 30 | 40 | 50 | 60 | 70 | |||
1 | 2 | 3 | 4 | 5 | 6 | 7 | 8 | 9 | 10 | 11 |
6 | - | 6200 | 6210 | 6220 | 6230 | 6240 | 6250 | 6260 | 6270 | |
6200 ------ 700 | 0,7 | 860 | 820 | 780 | 750 | 710 | 670 | 630 | 590 | |
0,6 | 830 | 800 | 760 | 720 | 680 | 640 | 600 | 560 | ||
0,5 | 810 | 770 | 730 | 690 | 650 | 610 | 570 | 540 | ||
0,4 | 780 | 740 | 700 | 660 | 620 | 580 | 550 | 510 | ||
0,3 | 750 | 710 | 670 | 640 | 600 | 560 | 520 | 480 | ||
0,2 | 720 | 680 | 650 | 610 | 570 | 530 | 490 | 450 | ||
0,1 и 0 | 700 | 660 | 620 | 580 | 550 | 510 | 470 | 430 | ||
б) При напряжении в контактном проводе 1,5 - 4 кВ | ||||||||||
7 | - | 6250 | 6260 | 6270 | 6270 | 6280 | 6290 | 6300 | 6310 | |
6250 ------- 500 | 0,7 | 660 | 620 | 590 | 550 | 510 | 470 | 430 | 390 | |
0,6 | 640 | 600 | 560 | 520 | 480 | 440 | 400 | 360 | ||
0,5 | 610 | 570 | 530 | 490 | 450 | 410 | 370 | 330 | ||
0,4 | 580 | 540 | 500 | 460 | 420 | 380 | 350 | 310 | ||
0,3 | 550 | 510 | 470 | 430 | 400 | 360 | 320 | 280 | ||
0,2 | 520 | 480 | 450 | 410 | 370 | 330 | 290 | 250 | ||
0,1 и 0 | 500 | 460 | 420 | 380 | 340 | 310 | 270 | 230 | ||
8 | - | 5950 | 5960 | 5970 | 5990 | 6000 | 6010 | 6020 | 6030 | |
5950 ------- 1100 | 0,7 | 1250 | 1220 | 1180 | 1140 | 1110 | 1070 | 1030 | 990 | |
0,6 | 1230 | 1190 | 1150 | 1120 | 1080 | 1040 | 1010 | 970 | ||
0,5 | 1200 | 1160 | 1130 | 1090 | 1050 | 1020 | 980 | 940 | ||
0,4 | 1180 | 1140 | 1100 | 1060 | 1030 | 990 | 950 | 920 | ||
0,3 | 1150 | 1110 | 1080 | 1040 | 1000 | 960 | 930 | 890 | ||
0,2 | 1120 | 1090 | 1050 | 1010 | 970 | 940 | 900 | 860 | ||
0,1 и 0 | 1100 | 1060 | 1030 | 990 | 950 | 910 | 880 | 840 | ||
9 | - | 5850 | 5860 | 5880 | 5890 | 5900 | 5910 | 5930 | 5940 | |
5850 ------- 1250 | 0,7 | 1400 | 1360 | 1330 | 1290 | 1260 | 1220 | 1180 | 1150 | |
0,6 | 1380 | 1340 | 1300 | 1270 | 1230 | 1190 | 1160 | 1120 | ||
0,5 | 1340 | 1310 | 1280 | 1240 | 1200 | 1170 | 1130 | 1090 | ||
0,4 | 1320 | 1290 | 1250 | 1210 | 1180 | 1140 | 1100 | 1070 | ||
0,3 | 1300 | 1260 | 1220 | 1190 | 1150 | 1110 | 1080 | 1040 | ||
0,2 | 1270 | 1230 | 1200 | 1160 | 1130 | 1090 | 1050 | 1020 | ||
0,1 и 0 | 1250 | 1210 | 1180 | 1140 | 1100 | 1070 | 1030 | 990 | ||
10 | - | 5350 | 5370 | 5380 | 5400 | 5410 | 5430 | 5440 | 5460 | |
5350 ------- 1600 | 0,7 | 1740 | 1700 | 1670 | 1640 | 1600 | 1570 | 1540 | 1500 | |
0,6 | 1710 | 1680 | 1650 | 1610 | 1580 | 1550 | 1510 | 1480 | ||
0,5 | 1690 | 1660 | 1620 | 1590 | 1560 | 1520 | 1490 | 1460 | ||
0,4 | 1670 | 1630 | 1600 | 1570 | 1530 | 1500 | 1470 | 1430 | ||
0,3 | 1640 | 1610 | 1580 | 1540 | 1510 | 1480 | 1440 | 1410 | ||
0,2 | 1620 | 1590 | 1550 | 1520 | 1490 | 1450 | 1420 | 1390 | ||
0,1 и 0 | 1600 | 1570 | 1530 | 1500 | 1470 | 1430 | 1400 | 1370 | ||
11 | - | 6100 | 6110 | 6120 | 6120 | 6130 | 6140 | 6150 | 6160 | |
6100 ------- 500 | 0,7 | 660 | 620 | 580 | 550 | 510 | 470 | 430 | 390 | |
0,6 | 630 | 590 | 560 | 520 | 480 | 440 | 400 | 370 | ||
0,5 | 600 | 570 | 530 | 490 | 450 | 410 | 380 | 340 | ||
0,4 | 580 | 540 | 500 | 460 | 420 | 390 | 350 | 310 | ||
0,3 | 550 | 510 | 470 | 440 | 400 | 360 | 320 | 280 | ||
0,2 | 520 | 480 | 450 | 410 | 370 | 330 | 290 | 260 | ||
0,1 и 0 | 500 | 460 | 420 | 390 | 350 | 310 | 270 | 230 | ||
Номер точек очертания и их координаты в прямой | Наименование координат в кривой | Координаты точек очертания B1 ( | ||||||||
при непогашенном ускорении | при возвышении наружного рельса, мм | |||||||||
80 | 90 | 100 | 110 | 120 | 130 | 140 | 150 | |||
1 | 2 | 3 | 12 | 13 | 14 | 15 | 16 | 17 | 18 | 19 |
6 | - | 6280 | 6280 | 6290 | 6300 | 6310 | 6320 | 6330 | 6340 | |
6200 ------- 700 | 0,7 | 550 | 510 | 480 | 440 | 400 | 360 | 320 | 280 | |
0,6 | 520 | 490 | 450 | 410 | 370 | 330 | 290 | 250 | ||
0,5 | 500 | 460 | 420 | 380 | 340 | 300 | 260 | 230 | ||
0,4 | 470 | 430 | 390 | 350 | 310 | 270 | 240 | 200 | ||
0,3 | 440 | 400 | 360 | 330 | 290 | 250 | 210 | 170 | ||
0,2 | 410 | 370 | 340 | 300 | 260 | 220 | 180 | 140 | ||
0,1 и 0 | 390 | 350 | 310 | 270 | 240 | 200 | 160 | 120 | ||
б) При напряжении в контактном проводе 1,5 - 4 кВ | ||||||||||
7 | - | 6320 | 6320 | 6330 | 6340 | 6350 | 6360 | 6360 | 6370 | |
6250 ------- 500 | 0,7 | 350 | 310 | 270 | 230 | 190 | 160 | 120 | 80 | |
0,6 | 320 | 280 | 250 | 210 | 170 | 130 | 90 | 50 | ||
0,5 | 300 | 260 | 220 | 180 | 140 | 100 | 60 | 20 | ||
0,4 | 270 | 230 | 190 | 150 | 110 | 70 | 30 | -10 | ||
0,3 | 240 | 200 | 160 | 120 | 80 | 40 | 0 | -40 | ||
0,2 | 210 | 170 | 130 | 90 | 50 | 20 | -20 | -60 | ||
0,1 и 0 | 190 | 150 | 110 | 70 | 30 | -10 | -50 | -90 | ||
8 | - | 6050 | 6060 | 6070 | 6080 | 6090 | 6100 | 6120 | 6130 | |
5950 ------- 1100 | 0,7 | 960 | 920 | 880 | 850 | 810 | 770 | 730 | 700 | |
0,6 | 930 | 890 | 860 | 820 | 780 | 750 | 710 | 670 | ||
0,5 | 900 | 870 | 830 | 790 | 760 | 720 | 680 | 640 | ||
0,4 | 880 | 840 | 800 | 770 | 730 | 690 | 650 | 620 | ||
0,3 | 850 | 810 | 780 | 740 | 700 | 670 | 630 | 590 | ||
0,2 | 820 | 790 | 750 | 710 | 680 | 640 | 600 | 560 | ||
0,1 и 0 | 800 | 770 | 730 | 690 | 650 | 620 | 580 | 540 | ||
9 | - | 5950 | 5970 | 5980 | 5990 | 6000 | 6020 | 6030 | 6040 | |
5850 ------- 1250 | 0,7 | 1110 | 1070 | 1040 | 1000 | 960 | 930 | 890 | 850 | |
0,6 | 1080 | 1050 | 1010 | 970 | 940 | 900 | 860 | 830 | ||
0,5 | 1060 | 1020 | 980 | 950 | 910 | 870 | 840 | 800 | ||
0,4 | 1030 | 990 | 960 | 920 | 880 | 850 | 810 | 780 | ||
0,3 | 1000 | 970 | 930 | 900 | 860 | 820 | 790 | 750 | ||
0,2 | 980 | 940 | 910 | 870 | 830 | 800 | 760 | 720 | ||
0,1 и 0 | 960 | 920 | 880 | 850 | 810 | 780 | 740 | 700 | ||
10 | - | 5470 | 5490 | 5500 | 5520 | 5530 | 5550 | 5560 | 5580 | |
5350 ------- 1600 | 0,7 | 1470 | 1440 | 1400 | 1370 | 1340 | 1300 | 1270 | 1240 | |
0,6 | 1450 | 1410 | 1380 | 1350 | 1310 | 1280 | 1250 | 1210 | ||
0,5 | 1420 | 1390 | 1360 | 1320 | 1290 | 1260 | 1220 | 1190 | ||
0,4 | 1400 | 1370 | 1330 | 1300 | 1270 | 1230 | 1200 | 1160 | ||
0,3 | 1380 | 1340 | 1310 | 1280 | 1240 | 1210 | 1180 | 1140 | ||
0,2 | 1350 | 1320 | 1290 | 1250 | 1220 | 1180 | 1150 | 1120 | ||
0,1 и 0 | 1330 | 1300 | 1270 | 1230 | 1200 | 1170 | 1130 | 1100 | ||
11 | - | 6170 | 6170 | 6180 | 6190 | 6200 | 6210 | 6210 | 6220 | |
6100 ------- 500 | 0,7 | 350 | 320 | 280 | 240 | 200 | 160 | 130 | 90 | |
0,6 | 330 | 290 | 250 | 210 | 170 | 140 | 100 | 60 | ||
0,5 | 300 | 260 | 220 | 190 | 150 | 110 | 70 | 30 | ||
0,4 | 270 | 230 | 200 | 160 | 120 | 80 | 40 | 10 | ||
0,3 | 250 | 210 | 170 | 130 | 90 | 50 | 20 | -20 | ||
0,2 | 220 | 180 | 140 | 100 | 60 | 30 | -10 | -50 | ||
0,1 и 0 | 200 | 160 | 120 | 80 | 40 | 0 | -30 | -70 | ||
Номер точек очертания и их координаты в прямой | Наименование координат в кривой | Координаты точек очертания B1 ( | ||||||||
при непогашенном ускорении | при возвышении наружного рельса, мм | |||||||||
0 | 10 | 20 | 30 | 40 | 50 | 60 | 70 | |||
1 | 2 | 3 | 4 | 5 | 6 | 7 | 8 | 9 | 10 | 11 |
2. С внутренней стороны кривой | ||||||||||
а) При напряжении в контактном проводе 25 кВ | ||||||||||
1 | - | 6400 | 6400 | 6400 | 6400 | 6400 | 6400 | 6400 | 6400 | |
6400 ------- 500 | - | 500 | 520 | 560 | 600 | 640 | 680 | 730 | 790 | |
2 | - | 6050 | 6050 | 6050 | 6040 | 6040 | 6040 | 6040 | 6040 | |
6050 ------- 1100 | - | 1100 | 1110 | 1150 | 1190 | 1230 | 1260 | 1320 | 1370 | |
3 | - | 5900 | 5900 | 5890 | 5890 | 5890 | 5880 | 5880 | 5880 | |
5900 ------- 1300 | - | 1300 | 1310 | 1350 | 1390 | 1420 | 1460 | 1510 | 1560 | |
4 | - | 5400 | 5390 | 5390 | 5380 | 5380 | 5370 | 5370 | 5360 | |
5400 ------- 1700 | - | 1700 | 1710 | 1740 | 1780 | 1810 | 1840 | 1890 | 1940 | |
5 | - | 6250 | 6250 | 6250 | 6250 | 6250 | 6250 | 6250 | 6250 | |
6250 ------- 500 | - | 500 | 510 | 550 | 590 | 630 | 670 | 730 | 780 | |
6 | - | 6200 | 6200 | 6200 | 6200 | 6200 | 6200 | 6200 | 6200 | |
6200 ------- 700 | - | 700 | 710 | 750 | 790 | 830 | 870 | 920 | 980 | |
б) При напряжении в контактном проводе 1,5 - 4 кВ | ||||||||||
7 | - | 6250 | 6250 | 6250 | 6250 | 6250 | 6250 | 6250 | 6250 | |
6250 ------- 500 | - | 500 | 510 | 550 | 590 | 630 | 670 | 730 | 780 | |
8 | - | 5950 | 5950 | 5950 | 5940 | 5940 | 5940 | 5940 | 5940 | |
5950 ------- 1100 | - | 1100 | 1110 | 1150 | 1190 | 1220 | 1260 | 1310 | 1370 | |
9 | - | 5850 | 5850 | 5840 | 5840 | 5840 | 5840 | 5830 | 5830 | |
5850 ------- 1250 | - | 1250 | 1260 | 1300 | 1340 | 1370 | 1410 | 1460 | 1510 | |
10 | - | 5350 | 5350 | 5340 | 5340 | 5330 | 5330 | 5320 | 5320 | |
5350 ------- 1600 | - | 1600 | 1610 | 1640 | 1680 | 1710 | 1740 | 1790 | 1840 | |
11 | - | 6100 | 6100 | 6100 | 6100 | 6100 | 6100 | 6100 | 6100 | |
6100 ------- 500 | - | 500 | 510 | 550 | 590 | 630 | 670 | 720 | 770 | |
Номер точек очертания и их координаты в прямой | Наименование координат в кривой | Координаты точек очертания B1 ( | ||||||||
при непогашенном ускорении | при возвышении наружного рельса, мм | |||||||||
80 | 90 | 100 | 110 | 120 | 130 | 140 | 150 | |||
1 | 2 | 3 | 12 | 13 | 14 | 15 | 16 | 17 | 18 | 19 |
2. С внутренней стороны кривой | ||||||||||
а) При напряжении в контактном проводе 25 кВ | ||||||||||
1 | - | 6400 | 6400 | 6400 | 6400 | 6400 | 6400 | 6400 | 6400 | |
6400 ------- 500 | - | 850 | 910 | 960 | 1020 | 1080 | 1140 | 1190 | 1250 | |
2 | - | 6040 | 6030 | 6030 | 6030 | 6030 | 6030 | 6020 | 6020 | |
6050 ------- 1100 | - | 1430 | 1480 | 1540 | 1590 | 1650 | 1700 | 1750 | 1810 | |
3 | - | 5880 | 5870 | 5870 | 5870 | 5860 | 5860 | 5860 | 5850 | |
5900 ------- 1300 | - | 1620 | 1670 | 1720 | 1780 | 1830 | 1880 | 1940 | 1990 | |
4 | - | 5360 | 5350 | 5340 | 5340 | 5330 | 5330 | 5320 | 5320 | |
5400 ------- 1700 | - | 1990 | 2040 | 2080 | 2130 | 2180 | 2230 | 2280 | 2330 | |
5 | - | 6250 | 6250 | 6250 | 6250 | 6250 | 6250 | 6250 | 6250 | |
6250 ------- 500 | - | 840 | 890 | 950 | 1010 | 1060 | 1120 | 1180 | 1230 | |
6 | - | 6200 | 6200 | 6200 | 6200 | 6200 | 6200 | 6200 | 6200 | |
6200 ------- 700 | - | 1040 | 1090 | 1150 | 1200 | 1260 | 1320 | 1370 | 1430 | |
б) При напряжении в контактном проводе 1,5 - 4 кВ | ||||||||||
7 | - | 6250 | 6250 | 6250 | 6250 | 6250 | 6250 | 6250 | 6250 | |
6250 ------- 500 | - | 840 | 890 | 950 | 1010 | 1060 | 1120 | 1180 | 1230 | |
8 | - | 5940 | 5930 | 5930 | 5930 | 5930 | 5930 | 5920 | 5920 | |
5950 ------- 1100 | - | 1420 | 1470 | 1530 | 1580 | 1630 | 1690 | 1740 | 1800 | |
9 | - | 5830 | 5830 | 5820 | 5820 | 5820 | 5810 | 5810 | 5810 | |
5850 ------- 1250 | - | 1570 | 1620 | 1670 | 1720 | 1780 | 1830 | 1880 | 1930 | |
10 | - | 5310 | 5310 | 5300 | 5300 | 5290 | 5290 | 5280 | 5280 | |
5350 ------- 1600 | - | 1890 | 1930 | 1980 | 2030 | 2080 | 2130 | 2170 | 2220 | |
11 | - | 6100 | 6100 | 6100 | 6100 | 6100 | 6100 | 6100 | 6100 | |
6100 ------- 500 | - | 830 | 880 | 940 | 990 | 1050 | 1100 | 1160 | 1210 | |
Примечания 1. Под номерами точек очертания B1 дробью указаны: в числителе - высота H над уровнем верха головки рельса в прямой, в знаменателе - горизонтальное расстояние B от оси пути до точек очертания B1 в прямой. 2. Непогашенное ускорение | ||||||||||
Номер точек очертания и их координаты в прямой | Наименование координат в кривой | Координаты точек очертания B2 ( | ||||||||
при непогашенном ускорении | при возвышении наружного рельса, мм | |||||||||
0 | 10 | 20 | 30 | 40 | 50 | 60 | 70 | |||
1 | 2 | 3 | 4 | 5 | 6 | 7 | 8 | 9 | 10 | 11 |
1. С наружной стороны кривой | ||||||||||
а) При напряжении в контактном проводе 25 кВ | ||||||||||
1 | - | 6230 | 6240 | 6250 | 6250 | 6250 | 6250 | 6260 | 6270 | |
6225 ------- 500 | 0,7 | 660 | 620 | 590 | 550 | 510 | 470 | 430 | 390 | |
0,6 | 640 | 600 | 560 | 520 | 480 | 440 | 400 | 360 | ||
0,5 | 610 | 570 | 530 | 490 | 450 | 410 | 370 | 330 | ||
0,4 | 580 | 540 | 500 | 460 | 420 | 380 | 350 | 310 | ||
0,3 | 550 | 510 | 470 | 430 | 400 | 360 | 320 | 280 | ||
0,2 | 520 | 480 | 450 | 410 | 370 | 330 | 290 | 250 | ||
0,1 и 0 | 500 | 460 | 420 | 380 | 340 | 310 | 270 | 230 | ||
2 | - | 5950 | 5960 | 5970 | 5990 | 6000 | 6010 | 6020 | 6030 | |
5950 ------- 1100 | 0,7 | 1250 | 1220 | 1180 | 1140 | 1110 | 1070 | 1030 | 990 | |
0,6 | 1230 | 1190 | 1150 | 1120 | 1080 | 1040 | 1010 | 970 | ||
0,5 | 1200 | 1160 | 1130 | 1090 | 1050 | 1020 | 980 | 940 | ||
0,4 | 1180 | 1140 | 1100 | 1060 | 1030 | 990 | 950 | 920 | ||
0,3 | 1150 | 1110 | 1070 | 1040 | 1000 | 960 | 930 | 890 | ||
0,2 | 1120 | 1090 | 1050 | 1010 | 970 | 940 | 900 | 860 | ||
0,1 и 0 | 1100 | 1060 | 1030 | 990 | 950 | 910 | 880 | 840 | ||
3 | - | 5850 | 5860 | 5880 | 5890 | 5900 | 5910 | 5930 | 5940 | |
5850 ------- 1250 | 0,7 | 1400 | 1360 | 1330 | 1290 | 1260 | 1220 | 1180 | 1150 | |
0,6 | 1380 | 1340 | 1300 | 1270 | 1230 | 1190 | 1160 | 1120 | ||
0,5 | 1350 | 1310 | 1280 | 1240 | 1200 | 1170 | 1130 | 1080 | ||
0,4 | 1320 | 1290 | 1250 | 1210 | 1180 | 1140 | 1100 | 1070 | ||
0,3 | 1300 | 1260 | 1220 | 1190 | 1150 | 1110 | 1080 | 1040 | ||
0,2 | 1270 | 1230 | 1200 | 1160 | 1130 | 1090 | 1050 | 1020 | ||
0,1 и 0 | 1250 | 1210 | 1180 | 1140 | 1100 | 1070 | 1030 | 990 | ||
4 | - | 5350 | 5370 | 5380 | 5400 | 5410 | 5430 | 5440 | 5460 | |
5350 ------- 1650 | 0,7 | 1790 | 1750 | 1720 | 1690 | 1650 | 1620 | 1590 | 1550 | |
0,6 | 1760 | 1730 | 1700 | 1660 | 1630 | 1600 | 1560 | 1530 | ||
0,5 | 1740 | 1710 | 1670 | 1640 | 1610 | 1570 | 1540 | 1510 | ||
0,4 | 1720 | 1680 | 1650 | 1620 | 1580 | 1550 | 1520 | 1480 | ||
0,3 | 1690 | 1660 | 1630 | 1590 | 1560 | 1530 | 1490 | 1460 | ||
0,2 | 1670 | 1640 | 1600 | 1570 | 1540 | 1500 | 1470 | 1440 | ||
0,1 и 0 | 1650 | 1620 | 1580 | 1550 | 1520 | 1480 | 1450 | 1420 | ||
5 | - | 6080 | 6090 | 6100 | 6110 | 6120 | 6130 | 6140 | 6150 | |
6075 ------- 700 | 0,7 | 860 | 820 | 780 | 750 | 710 | 670 | 630 | 590 | |
0,6 | 830 | 790 | 760 | 720 | 680 | 640 | 600 | 570 | ||
0,5 | 800 | 770 | 730 | 690 | 650 | 610 | 580 | 540 | ||
0,4 | 780 | 740 | 700 | 660 | 630 | 590 | 550 | 510 | ||
0,3 | 750 | 710 | 670 | 640 | 600 | 560 | 520 | 480 | ||
0,2 | 720 | 680 | 650 | 610 | 570 | 530 | 490 | 460 | ||
0,1 и 0 | 700 | 660 | 620 | 590 | 550 | 510 | 470 | 430 | ||
Номер точек очертания и их координаты в прямой | Наименование координат в кривой | Координаты точек очертания B2 ( | ||||||||
при непогашенном ускорении | при возвышении наружного рельса, мм | |||||||||
80 | 90 | 100 | 110 | 120 | 130 | 140 | 150 | |||
1 | 2 | 3 | 12 | 13 | 14 | 15 | 16 | 17 | 18 | 19 |
1. С наружной стороны кривой | ||||||||||
а) При напряжении в контактном проводе 25 кВ | ||||||||||
1 | - | 6280 | 6280 | 6290 | 6300 | 6300 | 6310 | 6310 | 6320 | |
6225 ------- 500 | 0,7 | 350 | 310 | 270 | 230 | 190 | 160 | 120 | 80 | |
0,6 | 320 | 280 | 250 | 210 | 170 | 130 | 90 | 50 | ||
0,5 | 300 | 260 | 220 | 180 | 140 | 100 | 60 | 20 | ||
0,4 | 270 | 230 | 190 | 150 | 110 | 70 | 30 | 10 | ||
0,3 | 240 | 200 | 160 | 120 | 80 | 40 | 0 | 40 | ||
0,2 | 210 | 170 | 130 | 90 | 50 | 20 | 20 | 60 | ||
0,1 и 0 | 190 | 150 | 110 | 70 | 30 | 10 | 50 | 90 | ||
2 | - | 6050 | 6060 | 6070 | 6080 | 6090 | 6100 | 6120 | 6130 | |
5950 ------- 1100 | 0,7 | 960 | 920 | 880 | 850 | 810 | 770 | 730 | 700 | |
0,6 | 930 | 890 | 860 | 820 | 780 | 750 | 710 | 670 | ||
0,5 | 900 | 870 | 830 | 790 | 760 | 720 | 680 | 640 | ||
0,4 | 880 | 840 | 800 | 770 | 730 | 690 | 650 | 620 | ||
0,3 | 850 | 810 | 780 | 740 | 700 | 670 | 630 | 590 | ||
0,2 | 820 | 790 | 750 | 710 | 680 | 640 | 600 | 560 | ||
0,1 и 0 | 800 | 770 | 730 | 690 | 650 | 620 | 580 | 540 | ||
3 | - | 5950 | 5970 | 5980 | 5990 | 6000 | 6020 | 6030 | 6040 | |
5850 ------- 1250 | 0,7 | 1110 | 1070 | 1040 | 1000 | 960 | 930 | 880 | 850 | |
0,6 | 1080 | 1050 | 1010 | 970 | 940 | 900 | 860 | 830 | ||
0,5 | 1060 | 1020 | 980 | 950 | 910 | 870 | 840 | 800 | ||
0,4 | 1030 | 990 | 960 | 920 | 880 | 850 | 810 | 780 | ||
0,3 | 1000 | 970 | 930 | 900 | 860 | 820 | 790 | 750 | ||
0,2 | 980 | 940 | 910 | 870 | 830 | 800 | 760 | 720 | ||
0,1 и 0 | 960 | 920 | 880 | 850 | 810 | 780 | 740 | 700 | ||
4 | - | 5470 | 5490 | 5500 | 5520 | 5530 | 5550 | 5560 | 5580 | |
5350 ------- 1650 | 0,7 | 1520 | 1490 | 1450 | 1420 | 1390 | 1350 | 1320 | 1290 | |
0,6 | 1500 | 1460 | 1430 | 1400 | 1360 | 1330 | 1300 | 1260 | ||
0,5 | 1470 | 1440 | 1410 | 1370 | 1340 | 1310 | 1280 | 1240 | ||
0,4 | 1450 | 1420 | 1380 | 1350 | 1320 | 1280 | 1250 | 1210 | ||
0,3 | 1430 | 1390 | 1360 | 1330 | 1290 | 1260 | 1230 | 1190 | ||
0,2 | 1400 | 1370 | 1340 | 1300 | 1270 | 1230 | 1200 | 1170 | ||
0,1 и 0 | 1380 | 1350 | 1320 | 1280 | 1250 | 1220 | 1180 | 1150 | ||
5 | - | 6160 | 6160 | 6170 | 6180 | 6190 | 6200 | 6210 | 6220 | |
6075 ------- 700 | 0,7 | 550 | 520 | 480 | 440 | 400 | 360 | 330 | 290 | |
0,6 | 530 | 490 | 450 | 410 | 380 | 340 | 300 | 260 | ||
0,5 | 500 | 460 | 420 | 390 | 350 | 310 | 270 | 230 | ||
0,4 | 470 | 430 | 400 | 360 | 320 | 280 | 240 | 210 | ||
0,3 | 450 | 410 | 370 | 330 | 290 | 250 | 220 | 180 | ||
0,2 | 420 | 380 | 340 | 300 | 270 | 230 | 190 | 150 | ||
0,1 и 0 | 400 | 360 | 320 | 280 | 240 | 200 | 170 | 130 | ||
Номер точек очертания и их координаты в прямой | Наименование координат в кривой | Координаты точек очертания B2 ( | ||||||||
при непогашенном ускорении | при возвышении наружного рельса, мм | |||||||||
0 | 10 | 20 | 30 | 40 | 50 | 60 | 70 | |||
1 | 2 | 3 | 4 | 5 | 6 | 7 | 8 | 9 | 10 | 11 |
б) При напряжении в контактном проводе 1,5 - 4 кВ | ||||||||||
6 | - | 5950 | 5960 | 5970 | 5970 | 5990 | 5990 | 6000 | 6010 | |
5950 ------- 500 | 0,7 | 650 | 620 | 580 | 540 | 510 | 470 | 430 | 390 | |
0,6 | 630 | 590 | 550 | 520 | 480 | 440 | 410 | 370 | ||
0,5 | 600 | 560 | 530 | 490 | 450 | 420 | 380 | 340 | ||
0,4 | 580 | 540 | 500 | 460 | 430 | 390 | 350 | 320 | ||
0,3 | 550 | 510 | 470 | 440 | 400 | 360 | 330 | 290 | ||
0,2 | 520 | 490 | 450 | 410 | 370 | 340 | 300 | 260 | ||
0,1 и 0 | 500 | 460 | 430 | 390 | 350 | 310 | 280 | 240 | ||
7 | - | 5650 | 5660 | 5680 | 5690 | 5700 | 5710 | 5730 | 5740 | |
5650 ------- 1200 | 0,7 | 1350 | 1310 | 1280 | 1240 | 1210 | 1170 | 1130 | 1100 | |
0,6 | 1320 | 1290 | 1250 | 1220 | 1180 | 1140 | 1110 | 1070 | ||
0,5 | 1300 | 1260 | 1230 | 1190 | 1160 | 1120 | 1080 | 1050 | ||
0,4 | 1270 | 1240 | 1200 | 1170 | 1130 | 1090 | 1060 | 1020 | ||
0,3 | 1250 | 1210 | 1180 | 1140 | 1110 | 1070 | 1030 | 1000 | ||
0,2 | 1220 | 1190 | 1150 | 1120 | 1080 | 1040 | 1010 | 970 | ||
0,1 и 0 | 1200 | 1170 | 1130 | 1090 | 1060 | 1020 | 990 | 950 | ||
8 | - | 5150 | 5170 | 5180 | 5190 | 5210 | 5220 | 5240 | 5250 | |
5150 ------- 1550 | 0,7 | 1680 | 1650 | 1620 | 1580 | 1550 | 1520 | 1490 | 1460 | |
0,6 | 1660 | 1630 | 1590 | 1560 | 1530 | 1500 | 1470 | 1430 | ||
0,5 | 1640 | 1600 | 1570 | 1540 | 1510 | 1480 | 1440 | 1410 | ||
0,4 | 1610 | 1580 | 1550 | 1520 | 1480 | 1450 | 1420 | 1390 | ||
0,3 | 1590 | 1560 | 1530 | 1490 | 1460 | 1430 | 1400 | 1370 | ||
0,2 | 1570 | 1540 | 1500 | 1470 | 1440 | 1410 | 1380 | 1340 | ||
0,1 и 0 | 1550 | 1520 | 1490 | 1450 | 1420 | 1390 | 1360 | 1330 | ||
9 | - | 5800 | 5810 | 5820 | 5830 | 5840 | 5850 | 5860 | 5870 | |
5800 ------ 700 | 0,7 | 850 | 810 | 780 | 740 | 710 | 670 | 630 | 600 | |
0,6 | 820 | 790 | 750 | 720 | 650 | 640 | 610 | 570 | ||
0,5 | 800 | 760 | 730 | 690 | 650 | 620 | 580 | 540 | ||
0,4 | 770 | 740 | 700 | 660 | 630 | 590 | 560 | 520 | ||
0,3 | 750 | 710 | 670 | 640 | 600 | 570 | 530 | 490 | ||
0,2 | 720 | 690 | 650 | 610 | 580 | 540 | 500 | 470 | ||
0,1 и 0 | 700 | 660 | 630 | 590 | 560 | 520 | 480 | 450 | ||
Номер точек очертания и их координаты в прямой | Наименование координат в кривой | Координаты точек очертания B2 ( | ||||||||
при непогашенном ускорении | при возвышении наружного рельса, мм | |||||||||
80 | 90 | 100 | 110 | 120 | 130 | 140 | 150 | |||
1 | 2 | 3 | 12 | 13 | 14 | 15 | 16 | 17 | 18 | 19 |
б) При напряжении в контактном проводе 1,5 - 4 кВ | ||||||||||
6 | - | 6020 | 6020 | 6030 | 6040 | 6050 | 6060 | 6060 | 6070 | |
5950 ------- 500 | 0,7 | 360 | 320 | 280 | 250 | 210 | 170 | 130 | 100 | |
0,6 | 330 | 290 | 260 | 220 | 180 | 150 | 110 | 70 | ||
0,5 | 300 | 270 | 230 | 190 | 160 | 120 | 80 | 40 | ||
0,4 | 280 | 240 | 200 | 170 | 130 | 90 | 50 | 20 | ||
0,3 | 250 | 210 | 180 | 140 | 100 | 70 | 30 | -10 | ||
0,2 | 220 | 190 | 150 | 110 | 80 | 40 | 0 | -40 | ||
0,1 и 0 | 200 | 170 | 130 | 90 | 50 | 20 | -20 | -60 | ||
7 | - | 5750 | 5760 | 5780 | 5790 | 5800 | 5810 | 5830 | 5840 | |
5650 ------- 1200 | 0,7 | 1060 | 1030 | 990 | 960 | 920 | 890 | 850 | 820 | |
0,6 | 1040 | 1000 | 970 | 930 | 900 | 860 | 830 | 790 | ||
0,5 | 1010 | 980 | 940 | 910 | 870 | 840 | 800 | 770 | ||
0,4 | 990 | 950 | 920 | 880 | 850 | 810 | 780 | 740 | ||
0,3 | 960 | 930 | 890 | 860 | 820 | 780 | 750 | 720 | ||
0,2 | 940 | 900 | 870 | 830 | 800 | 760 | 730 | 690 | ||
0,1 и 0 | 920 | 880 | 850 | 810 | 780 | 740 | 710 | 670 | ||
8 | - | 5270 | 5280 | 5300 | 5310 | 5330 | 5340 | 5360 | 5370 | |
5150 ------- 1550 | 0,7 | 1420 | 1390 | 1360 | 1330 | 1300 | 1260 | 1230 | 1200 | |
0,6 | 1400 | 1370 | 1340 | 1300 | 1270 | 1240 | 1210 | 1180 | ||
0,5 | 1380 | 1350 | 1310 | 1280 | 1250 | 1220 | 1190 | 1150 | ||
0,4 | 1360 | 1320 | 1290 | 1260 | 1230 | 1200 | 1160 | 1130 | ||
0,3 | 1330 | 1300 | 1270 | 1240 | 1210 | 1170 | 1140 | 1110 | ||
0,2 | 1310 | 1280 | 1250 | 1210 | 1180 | 1150 | 1120 | 1090 | ||
0,1 и 0 | 1290 | 1260 | 1230 | 1200 | 1160 | 1130 | 1100 | 1070 | ||
9 | - | 5880 | 5880 | 5890 | 5900 | 5910 | 5920 | 5930 | 5940 | |
5800 ------- 700 | 0,7 | 560 | 520 | 490 | 450 | 420 | 380 | 340 | 310 | |
0,6 | 530 | 500 | 460 | 430 | 390 | 350 | 320 | 280 | ||
0,5 | 510 | 470 | 440 | 400 | 360 | 330 | 290 | 250 | ||
0,4 | 480 | 450 | 410 | 370 | 340 | 300 | 270 | 230 | ||
0,3 | 460 | 420 | 380 | 350 | 310 | 280 | 240 | 200 | ||
0,2 | 430 | 400 | 360 | 320 | 290 | 250 | 210 | 180 | ||
0,1 и 0 | 410 | 370 | 340 | 300 | 270 | 230 | 190 | 160 | ||
Номер точек очертания и их координаты в прямой | Наименование координат в кривой | Координаты точек очертания B2 ( | ||||||||
при непогашенном ускорении | при возвышении наружного рельса, мм | |||||||||
0 | 10 | 20 | 30 | 40 | 50 | 60 | 70 | |||
1 | 2 | 3 | 4 | 5 | 6 | 7 | 8 | 9 | 10 | 11 |
2. С внутренней стороны кривой | ||||||||||
а) При напряжении в контактном проводе 25 кВ | ||||||||||
1 | - | 6250 | 6250 | 6250 | 6250 | 6250 | 6250 | 6250 | 6250 | |
6225 ------- 500 | - | 500 | 510 | 550 | 590 | 630 | 670 | 730 | 780 | |
2 | - | 5950 | 5950 | 5950 | 5940 | 5940 | 5940 | 5940 | 5940 | |
5950 ------ 1100 | - | 1100 | 1110 | 1150 | 1190 | 1220 | 1260 | 1310 | 1370 | |
3 | - | 5850 | 5850 | 5850 | 5840 | 5840 | 5840 | 5830 | 5830 | |
5850 ------- 1250 | - | 1250 | 1260 | 1300 | 1340 | 1370 | 1410 | 1460 | 1510 | |
4 | - | 5350 | 5350 | 5340 | 5330 | 5330 | 5320 | 5320 | 5310 | |
5350 ------- 1650 | - | 1650 | 1660 | 1690 | 1730 | 1760 | 1790 | 1840 | 1890 | |
5 | - | 6100 | 6100 | 6100 | 6100 | 6100 | 6100 | 6100 | 6100 | |
6075 ------- 700 | - | 700 | 710 | 750 | 790 | 830 | 870 | 920 | 970 | |
б) При напряжении в контактном проводе 1,5 - 4 кВ | ||||||||||
6 | - | 5950 | 5950 | 5950 | 5950 | 5950 | 5950 | 5950 | 5950 | |
5950 ------- 500 | - | 500 | 510 | 550 | 590 | 620 | 660 | 710 | 770 | |
7 | - | 5650 | 5650 | 5650 | 5640 | 5640 | 5640 | 5640 | 5630 | |
5650 ------- 1200 | - | 1200 | 1210 | 1250 | 1280 | 1320 | 1350 | 1400 | 1450 | |
8 | - | 5150 | 5150 | 5140 | 5140 | 5130 | 5130 | 5120 | 5120 | |
5150 ------- 1550 | - | 1550 | 1560 | 1590 | 1620 | 1650 | 1690 | 1730 | 1780 | |
9 | - | 5800 | 5800 | 5800 | 5800 | 5800 | 5800 | 5800 | 5800 | |
5800 ------- 700 | - | 700 | 710 | 750 | 780 | 820 | 860 | 910 | 960 | |
Номер точек очертания и их координаты в прямой | Наименование координат в кривой | Координаты точек очертания B2 ( | ||||||||
при непогашенном ускорении | при возвышении наружного рельса, мм | |||||||||
80 | 90 | 100 | 110 | 120 | 130 | 140 | 150 | |||
1 | 2 | 3 | 12 | 13 | 14 | 15 | 16 | 17 | 18 | 19 |
2. С внутренней стороны кривой | ||||||||||
а) При напряжении в контактном проводе 25 кВ | ||||||||||
1 | - | 6250 | 6250 | 6250 | 6250 | 6250 | 6250 | 6250 | 6250 | |
6225 ------- 500 | - | 840 | 890 | 950 | 1010 | 1060 | 1120 | 1180 | 1230 | |
2 | - | 5940 | 5930 | 5930 | 5930 | 5930 | 5930 | 5920 | 5920 | |
5950 ------- 1100 | - | 1420 | 1470 | 1530 | 1580 | 1630 | 1690 | 1740 | 1800 | |
3 | - | 5830 | 5830 | 5820 | 5820 | 5820 | 5810 | 5810 | 5810 | |
5850 ------- 1250 | - | 1570 | 1620 | 1670 | 1720 | 1780 | 1830 | 1880 | 1930 | |
4 | - | 5310 | 5300 | 5300 | 5290 | 5290 | 5280 | 5280 | 5270 | |
5350 ------- 1650 | - | 1940 | 1980 | 2030 | 2080 | 2130 | 2180 | 2220 | 2270 | |
5 | - | 6100 | 6100 | 6100 | 6100 | 6100 | 6100 | 6100 | 6100 | |
6075 ------- 700 | - | 1030 | 1080 | 1140 | 1190 | 1250 | 1300 | 1360 | 1410 | |
б) При напряжении в контактном проводе 1,5 - 4 кВ | ||||||||||
6 | - | 5950 | 5950 | 5950 | 5950 | 5950 | 5950 | 5950 | 5950 | |
5950 ------- 500 | - | 820 | 870 | 930 | 980 | 1030 | 1090 | 1140 | 1200 | |
7 | - | 5630 | 5630 | 5630 | 5620 | 5620 | 5620 | 5620 | 5610 | |
5650 ------- 1200 | - | 1500 | 1550 | 1600 | 1650 | 1700 | 1760 | 1810 | 1860 | |
8 | - | 5110 | 5110 | 5100 | 5100 | 5090 | 5090 | 5080 | 5080 | |
5150 ------- 1550 | - | 1820 | 1870 | 1920 | 1960 | 2010 | 2050 | 2100 | 2150 | |
9 | - | 5800 | 5800 | 5800 | 5800 | 5800 | 5800 | 5800 | 5800 | |
5800 ------- 700 | - | 1010 | 1060 | 1120 | 1170 | 1220 | 1270 | 1320 | 1380 | |
Примечания 1. Под номерами точек очертания B2 дробью указаны: в числителе - высота H над уровнем верха головки рельса в прямой, в знаменателе - горизонтальное расстояние B от оси пути до точек очертания B2 в прямой. 2. Непогашенное ускорение | ||||||||||
Координаты в прямой | Наименование координат в кривой | Вертикальные и горизонтальные расстояния до верхнего края платформ в кривой, мм | ||||||||
при непогашенном ускорении | при возвышении наружного рельса, мм | |||||||||
0 | 10 | 20 | 30 | 40 | 50 | 60 | 70 | |||
1 | 2 | 3 | 4 | 5 | 6 | 7 | 8 | 9 | 10 | 11 |
1. С наружной стороны кривой | ||||||||||
1300 ------- 1920 | 0,7 | 1240 | 1260 | 1280 | 1290 | 1310 | 1330 | 1340 | 1360 | |
0,6 | 1250 | 1270 | 1290 | 1300 | 1320 | 1340 | 1350 | 1370 | ||
0,5 | 1260 | 1280 | 1300 | 1310 | 1330 | 1350 | 1360 | 1380 | ||
0,4 | 1270 | 1290 | 1310 | 1320 | 1340 | 1360 | 1370 | 1390 | ||
0,3 | 1280 | 1300 | 1320 | 1330 | 1350 | 1370 | 1380 | 1400 | ||
0,2 | 1290 | 1310 | 1330 | 1340 | 1360 | 1380 | 1390 | 1410 | ||
0,1 и 0 | 1300 | 1320 | 1330 | 1350 | 1370 | 1390 | 1400 | 1420 | ||
- | 1920 + b | 1910 + b | 1900 + b | 1890 + b | 1880 + b | 1870 + b | 1860 + b | 1860 + b | ||
1200 ------- 1920 | - | 1200 | 1220 | 1230 | 1250 | 1270 | 1290 | 1300 | 1320 | |
- | 1920 + b | 1910 + b | 1910 + b | 1900 + b | 1890 + b | 1880 + b | 1880 + b | 1870 + b | ||
1100 ------- 1920 | - | 1100 | 1120 | 1130 | 1150 | 1170 | 1190 | 1200 | 1220 | |
- | 1920 + b | 1910 + b | 1910 + b | 1900 + b | 1890 + b | 1890 + b | 1880 + b | 1870 + b | ||
1300 ------- 1875 | 0,7 | 1240 | 1260 | 1280 | 1290 | 1310 | 1330 | 1340 | 1360 | |
0,6 | 1250 | 1270 | 1290 | 1300 | 1320 | 1340 | 1350 | 1370 | ||
0,5 | 1260 | 1280 | 1300 | 1310 | 1330 | 1350 | 1360 | 1380 | ||
0,4 | 1270 | 1290 | 1310 | 1320 | 1340 | 1360 | 1370 | 1390 | ||
0,3 | 1280 | 1300 | 1320 | 1330 | 1350 | 1370 | 1380 | 1400 | ||
0,2 | 1290 | 1310 | 1330 | 1340 | 1360 | 1380 | 1390 | 1410 | ||
0,1 и 0 | 1300 | 1320 | 1330 | 1350 | 1370 | 1390 | 1400 | 1420 | ||
- | 1875 + b | 1870 + b | 1860 + b | 1860 + b | 1850 + b | 1840 + b | 1830 + b | 1820 + b | ||
1200 ------- 1875 | - | 1200 | 1220 | 1230 | 1250 | 1270 | 1290 | 1300 | 1320 | |
- | 1875 + b | 1870 + b | 1870 + b | 1860 + b | 1850 + b | 1840 + b | 1840 + b | 1830 + b | ||
1100 ------- 1875 | - | 1100 | 1120 | 1130 | 1150 | 1170 | 1190 | 1200 | 1220 | |
- | 1875 + b | 1870 + b | 1870 + b | 1860 + b | 1850 + b | 1850 + b | 1840 + b | 1830 + b | ||
200 ------ 1745 | 0,7 | 140 | 160 | 180 | 190 | 210 | 220 | 240 | 260 | |
0,6 | 150 | 170 | 190 | 200 | 220 | 230 | 250 | 270 | ||
0,5 | 160 | 180 | 200 | 210 | 230 | 240 | 260 | 270 | ||
0,4 | 170 | 190 | 210 | 220 | 240 | 250 | 270 | 280 | ||
0,3 | 180 | 200 | 220 | 230 | 250 | 260 | 280 | 290 | ||
0,2 | 190 | 210 | 220 | 240 | 260 | 270 | 290 | 300 | ||
0,1 и 0 | 200 | 220 | 230 | 250 | 260 | 280 | 300 | 310 | ||
- | 1745 + b | 1740 + b | 1740 + b | 1740 + b | 1740 + b | 1740 + b | 1740 + b | 1740 + b | ||
270 ------ 1425 | 0,7 | 220 | 230 | 250 | 260 | 280 | 290 | 300 | 320 | |
0,6 | 230 | 240 | 260 | 270 | 280 | 300 | 310 | 330 | ||
0,5 | 240 | 250 | 270 | 280 | 290 | 310 | 320 | 330 | ||
0,4 | 250 | 260 | 270 | 290 | 300 | 320 | 330 | 340 | ||
0,3 | 250 | 270 | 280 | 300 | 310 | 320 | 340 | 350 | ||
0,2 | 260 | 280 | 290 | 300 | 320 | 330 | 350 | 360 | ||
0,1 и 0 | 270 | 280 | 300 | 310 | 330 | 340 | 350 | 370 | ||
- | 1425 + b | 1425 + b | 1420 + b | 1420 + b | 1420 + b | 1420 + b | 1410 + b | 1410 + b | ||
1300 ------- 1800 | - | 1300 | 1320 | 1330 | 1350 | 1360 | 1380 | 1400 | 1410 | |
- | 1800 + b | 1790 + b | 1780 + b | 1770 + b | 1770 + b | 1760 + b | 1750 + b | 1740 + b | ||
Координаты в прямой | Наименование координат в кривой | Вертикальные и горизонтальные расстояния до верхнего края платформ в кривой, мм | ||||||||
при непогашенном ускорении | при возвышении наружного рельса, мм | |||||||||
80 | 90 | 100 | 110 | 120 | 130 | 140 | 150 | |||
1 | 2 | 3 | 12 | 13 | 14 | 15 | 16 | 17 | 18 | 19 |
1. С наружной стороны кривой | ||||||||||
1300 ------- 1920 | 0,7 | 1380 | 1390 | 1410 | 1430 | 1450 | 1460 | 1480 | 1500 | |
0,6 | 1390 | 1400 | 1420 | 1440 | 1460 | 1470 | 1490 | 1510 | ||
0,5 | 1400 | 1410 | 1430 | 1450 | 1470 | 1480 | 1500 | 1520 | ||
0,4 | 1410 | 1430 | 1440 | 1460 | 1480 | 1490 | 1510 | 1530 | ||
0,3 | 1420 | 1440 | 1450 | 1470 | 1490 | 1500 | 1520 | 1540 | ||
0,2 | 1430 | 1450 | 1460 | 1480 | 1500 | 1510 | 1530 | 1550 | ||
0,1 и 0 | 1440 | 1450 | 1470 | 1490 | 1500 | 1520 | 1540 | 1560 | ||
- | 1860 + b | 1850 + b | 1840 + b | 1830 + b | 1820 + b | 1810 + b | 1810 + b | 1800 + b | ||
1200 ------- 1920 | - | 1340 | 1350 | 1370 | 1390 | 1400 | 1420 | 1440 | 1460 | |
- | 1860 + b | 1850 + b | 1850 + b | 1840 + b | 1830 + b | 1820 + b | 1820 + b | 1810 + b | ||
1100 ------- 1920 | - | 1230 | 1250 | 1270 | 1290 | 1300 | 1320 | 1340 | 1360 | |
- | 1870 + b | 1860 + b | 1850 + b | 1840 + b | 1840 + b | 1830 + b | 1820 + b | 1820 + b | ||
1300 ------- 1875 | 0,7 | 1380 | 1390 | 1410 | 1430 | 1450 | 1460 | 1480 | 1500 | |
0,6 | 1390 | 1400 | 1420 | 1440 | 1460 | 1470 | 1490 | 1510 | ||
0,5 | 1400 | 1410 | 1430 | 1450 | 1470 | 1480 | 1500 | 1520 | ||
0,4 | 1410 | 1430 | 1440 | 1460 | 1480 | 1490 | 1510 | 1530 | ||
0,3 | 1420 | 1440 | 1450 | 1470 | 1490 | 1500 | 1520 | 1540 | ||
0,2 | 1430 | 1450 | 1460 | 1480 | 1500 | 1510 | 1530 | 1550 | ||
0,1 и 0 | 1440 | 1450 | 1470 | 1490 | 1500 | 1520 | 1540 | 1560 | ||
- | 1820 + b | 1810 + b | 1800 + b | 1790 + b | 1780 + b | 1770 + b | 1770 + b | 1760 + b | ||
1200 ------- 1875 | - | 1340 | 1350 | 1370 | 1390 | 1400 | 1420 | 1440 | 1460 | |
- | 1820 + b | 1810 + b | 1810 + b | 1800 + b | 1790 + b | 1780 + b | 1780 + b | 1770 + b | ||
1100 ------- 1875 | - | 1230 | 1250 | 1270 | 1290 | 1300 | 1320 | 1340 | 1360 | |
- | 1830 + b | 1820 + b | 1810 + b | 1800 + b | 1800 + b | 1790 + b | 1780 + b | 1780 + b | ||
200 ------ 1745 | 0,7 | 270 | 290 | 300 | 320 | 330 | 350 | 370 | 380 | |
0,6 | 280 | 300 | 310 | 330 | 350 | 360 | 380 | 390 | ||
0,5 | 290 | 310 | 320 | 340 | 350 | 370 | 390 | 400 | ||
0,4 | 300 | 320 | 330 | 350 | 360 | 380 | 400 | 410 | ||
0,3 | 310 | 330 | 340 | 360 | 370 | 390 | 410 | 420 | ||
0,2 | 320 | 340 | 350 | 370 | 380 | 400 | 420 | 430 | ||
0,1 и 0 | 330 | 340 | 360 | 380 | 390 | 410 | 420 | 440 | ||
- | 1740 + b | 1730 + b | 1730 + b | 1730 + b | 1730 + b | 1730 + b | 1730 + b | 1730 + b | ||
270 ------ 1425 | 0,7 | 330 | 350 | 360 | 370 | 390 | 400 | 420 | 430 | |
0,6 | 340 | 350 | 370 | 380 | 400 | 410 | 420 | 440 | ||
0,5 | 350 | 360 | 380 | 390 | 400 | 420 | 430 | 450 | ||
0,4 | 360 | 370 | 390 | 400 | 410 | 430 | 440 | 460 | ||
0,3 | 370 | 380 | 390 | 410 | 420 | 440 | 450 | 460 | ||
0,2 | 370 | 390 | 400 | 420 | 430 | 440 | 460 | 470 | ||
0,1 и 0 | 380 | 400 | 410 | 420 | 440 | 450 | 470 | 480 | ||
- | 1410 + b | 1410 + b | 1410 + b | 1400 + b | 1400 + b | 1400 + b | 1400 + b | 1400 + b | ||
1300 ------- 1800 | - | 1430 | 1440 | 1460 | 1480 | 1500 | 1510 | 1530 | 1540 | |
- | 1730 + b | 1720 + b | 1710 + b | 1700 + b | 1690 + b | 1690 + b | 1680 + b | 1670 + b | ||
Координаты в прямой | Наименование координат в кривой | Вертикальные и горизонтальные расстояния до верхнего края платформ в кривой, мм | ||||||||
при непогашенном ускорении | при возвышении наружного рельса, мм | |||||||||
0 | 10 | 20 | 30 | 40 | 50 | 60 | 70 | |||
1 | 2 | 3 | 4 | 5 | 6 | 7 | 8 | 9 | 10 | 11 |
1200 ------ 1800 | - | 1200 | 1220 | 1230 | 1250 | 1260 | 1280 | 1300 | 1310 | |
- | 1800 + b | 1790 + b | 1790 + b | 1780 + b | 1770 + b | 1770 + b | 1760 + b | 1750 + b | ||
1100 ------- 1800 | - | 1100 | 1120 | 1130 | 1150 | 1160 | 1180 | 1200 | 1210 | |
- | 1800 + b | 1790 + b | 1790 + b | 1780 + b | 1770 + b | 1770 + b | 1760 + b | 1750 + b | ||
1300 ------- 1750 | - | 1300 | 1320 | 1330 | 1350 | 1360 | 1380 | 1400 | 1410 | |
- | 1750 + b | 1740 + b | 1730 + b | 1720 + b | 1720 + b | 1710 + b | 1700 + b | 1690 + b | ||
1200 ------- 1750 | - | 1200 | 1220 | 1230 | 1250 | 1260 | 1280 | 1300 | 1310 | |
- | 1750 + b | 1740 + b | 1740 + b | 1730 + b | 1720 + b | 1720 + b | 1710 + b | 1700 + b | ||
1100 ------- 1750 | - | 1100 | 1120 | 1130 | 1150 | 1160 | 1180 | 1200 | 1210 | |
- | 1750 + b | 1740 + b | 1740 + b | 1730 + b | 1720 + b | 1720 + b | 1710 + b | 1700 + b | ||
2. С внутренней стороны кривой | ||||||||||
1300 ------- 1920 | - | 1300 | 1290 | 1290 | 1280 | 1270 | 1270 | 1250 | 1240 | |
- | 1920 + b | 1920 + b | 1920 + b | 1920 + b | 1930 + b | 1940 + b | 1940 + b | 1950 + b | ||
1200 ------- 1920 | - | 1200 | 1190 | 1190 | 1180 | 1170 | 1170 | 1160 | 1150 | |
- | 1920 + b | 1920 + b | 1920 + b | 1920 + b | 1930 + b | 1930 + b | 1940 + b | 1950 + b | ||
1100 ------- 1920 | - | 1100 | 1090 | 1090 | 1080 | 1070 | 1070 | 1060 | 1050 | |
- | 1920 + b | 1920 + b | 1920 + b | 1920 + b | 1920 + b | 1930 + b | 1940 + b | 1940 + b | ||
1300 ------- 1875 | - | 1300 | 1290 | 1290 | 1280 | 1280 | 1270 | 1260 | 1250 | |
- | 1875 + b | 1875 + b | 1875 + b | 1875 + b | 1880 + b | 1890 + b | 1890 + b | 1900 + b | ||
1200 ------- 1875 | - | 1200 | 1190 | 1190 | 1180 | 1180 | 1170 | 1160 | 1150 | |
- | 1875 + b | 1875 + b | 1880 + b | 1880 + b | 1880 + b | 1890 + b | 1890 + b | 1900 + b | ||
1100 ------- 1875 | - | 1100 | 1090 | 1090 | 1080 | 1080 | 1070 | 1060 | 1050 | |
- | 1875 + b | 1875 + b | 1880 + b | 1880 + b | 1880 + b | 1880 + b | 1890 + b | 1900 + b | ||
200 ------- 1745 | - | 200 | 190 | 190 | 180 | 180 | 170 | 160 | 150 | |
- | 1745 + b | 1745 + b | 1745 + b | 1745 + b | 1745 + b | 1745 + b | 1745 + b | 1745 + b | ||
270 ------ 1425 | - | 270 | 270 | 260 | 260 | 250 | 250 | 240 | 230 | |
- | 1425 + b | 1425 + b | 1425 + b | 1425 + b | 1425 + b | 1425 + b | 1425 + b | 1425 + b | ||
1300 ------- 1800 | - | 1300 | 1290 | 1290 | 1280 | 1270 | 1270 | 1260 | 1260 | |
- | 1800 + b | 1810 + b | 1820 + b | 1830 + b | 1840 + b | 1840 + b | 1850 + b | 1860 + b | ||
1200 ------- 1800 | - | 1200 | 1190 | 1190 | 1180 | 1170 | 1170 | 1160 | 1150 | |
- | 1800 + b | 1810 + b | 1810 + b | 1820 + b | 1830 + b | 1840 + b | 1850 + b | 1850 + b | ||
1100 ------- 1800 | - | 1100 | 1090 | 1090 | 1080 | 1070 | 1070 | 1060 | 1060 | |
- | 1800 + b | 1810 + b | 1810 + b | 1820 + b | 1830 + b | 1840 + b | 1840 + b | 1850 + b | ||
1300 ------- 1750 | - | 1300 | 1290 | 1290 | 1280 | 1280 | 1270 | 1260 | 1250 | |
- | 1750 + b | 1750 + b | 1750 + b | 1750 + b | 1760 + b | 1770 + b | 1780 + b | 1780 + b | ||
Координаты в прямой | Наименование координат в кривой | Вертикальные и горизонтальные расстояния до верхнего края платформ в кривой, мм | ||||||||
при непогашенном ускорении | при возвышении наружного рельса, мм | |||||||||
80 | 90 | 100 | 110 | 120 | 130 | 140 | 150 | |||
1 | 2 | 3 | 12 | 13 | 14 | 15 | 16 | 17 | 18 | 19 |
1200 ------ 1800 | - | 1330 | 1340 | 1360 | 1380 | 1400 | 1410 | 1430 | 1440 | |
- | 1740 + b | 1730 + b | 1730 + b | 1720 + b | 1710 + b | 1700 + b | 1700 + b | 1690 + b | ||
1100 ------- 1800 | - | 1230 | 1240 | 1260 | 1270 | 1290 | 1310 | 1320 | 1340 | |
- | 1750 + b | 1740 + b | 1730 + b | 1730 + b | 1720 + b | 1710 + b | 1700 + b | 1690 + b | ||
1300 ------- 1750 | - | 1430 | 1440 | 1460 | 1470 | 1490 | 1510 | 1520 | 1540 | |
- | 1680 + b | 1670 + b | 1660 + b | 1650 + b | 1640 + b | 1640 + b | 1630 + b | 1620 + b | ||
1200 ------- 1750 | - | 1330 | 1340 | 1360 | 1370 | 1390 | 1410 | 1420 | 1440 | |
- | 1690 + b | 1680 + b | 1680 + b | 1670 + b | 1660 + b | 1650 + b | 1650 + b | 1640 + b | ||
1100 ------- 1750 | - | 1230 | 1240 | 1260 | 1270 | 1290 | 1310 | 1320 | 1340 | |
- | 1700 + b | 1690 + b | 1680 + b | 1680 + b | 1670 + b | 1660 + b | 1650 + b | 1640 + b | ||
2. С внутренней стороны кривой | ||||||||||
1300 ------- 1920 | - | 1230 | 1210 | 1200 | 1190 | 1170 | 1160 | 1150 | 1130 | |
- | 1960 + b | 1970 + b | 1980 + b | 1980 + b | 1990 + b | 2000 + b | 2010 + b | 2020 + b | ||
1200 ------- 1920 | - | 1140 | 1140 | 1130 | 1120 | 1120 | 1110 | 1100 | 1100 | |
- | 1960 + b | 1960 + b | 1970 + b | 1980 + b | 1990 + b | 1990 + b | 2000 + b | 2010 + b | ||
1100 ------- 1920 | - | 1040 | 1040 | 1030 | 1020 | 1020 | 1010 | 1000 | 1000 | |
- | 1950 + b | 1960 + b | 1960 + b | 1970 + b | 1980 + b | 1990 + b | 1990 + b | 2000 + b | ||
1300 ------- 1875 | - | 1240 | 1220 | 1210 | 1200 | 1190 | 1180 | 1160 | 1150 | |
- | 1910 + b | 1920 + b | 1930 + b | 1930 + b | 1940 + b | 1950 + b | 1960 + b | 1970 + b | ||
1200 ------- 1875 | - | 1140 | 1120 | 1110 | 1100 | 1090 | 1080 | 1060 | 1050 | |
- | 1910 + b | 1920 + b | 1930 + b | 1930 + b | 1940 + b | 1940 + b | 1950 + b | 1960 + b | ||
1100 ------- 1875 | - | 1040 | 1020 | 1010 | 1000 | 990 | 980 | 960 | 950 | |
- | 1910 + b | 1920 + b | 1920 + b | 1930 + b | 1940 + b | 1950 + b | 1950 + b | 1960 + b | ||
200 ------- 1745 | - | 140 | 120 | 110 | 100 | 90 | 80 | 60 | 50 | |
- | 1745 + b | 1745 + b | 1745 + b | 1745 + b | 1745 + b | 1745 + b | 1745 + b | 1745 + b | ||
270 ------ 1425 | - | 220 | 210 | 210 | 200 | 190 | 180 | 170 | 160 | |
- | 1425 + b | 1425 + b | 1425 + b | 1425 + b | 1425 + b | 1425 + b | 1425 + b | 1425 + b | ||
1300 ------- 1800 | - | 1250 | 1240 | 1240 | 1230 | 1220 | 1220 | 1210 | 1200 | |
- | 1870 + b | 1880 + b | 1890 + b | 1900 + b | 1910 + b | 1920 + b | 1930 + b | 1930 + b | ||
1200 ------- 1800 | - | 1140 | 1140 | 1130 | 1120 | 1120 | 1110 | 1100 | 1100 | |
- | 1860 + b | 1870 + b | 1880 + b | 1880 + b | 1890 + b | 1900 + b | 1910 + b | 1910 + b | ||
1100 ------- 1800 | - | 1050 | 1040 | 1040 | 1030 | 1020 | 1020 | 1010 | 1000 | |
- | 1860 + b | 1860 + b | 1870 + b | 1880 + b | 1880 + b | 1890 + b | 1900 + b | 1900 + b | ||
1300 ------- 1750 | - | 1240 | 1230 | 1210 | 1200 | 1190 | 1180 | 1170 | 1160 | |
- | 1790 + b | 1800 + b | 1810 + b | 1810 + b | 1820 + b | 1830 + b | 1840 + b | 1840 + b | ||
Координаты в прямой | Наименование координат в кривой | Вертикальные и горизонтальные расстояния до верхнего края платформ в кривой, мм | ||||||||
при непогашенном ускорении | при возвышении наружного рельса, мм | |||||||||
0 | 10 | 20 | 30 | 40 | 50 | 60 | 70 | |||
1 | 2 | 3 | 4 | 5 | 6 | 7 | 8 | 9 | 10 | 11 |
1200 ------- 1750 | - | 1200 | 1190 | 1190 | 1180 | 1180 | 1170 | 1160 | 1150 | |
- | 1750 + b | 1750 + b | 1750 + b | 1750 + b | 1760 + b | 1770 + b | 1780 + b | 1780 + b | ||
1100 ------- 1750 | - | 1100 | 1090 | 1090 | 1080 | 1080 | 1070 | 1070 | 1060 | |
- | 1750 + b | 1750 + b | 1750 + b | 1750 + b | 1760 + b | 1760 + b | 1770 + b | 1780 + b | ||
Координаты в прямой | Наименование координат в кривой | Вертикальные и горизонтальные расстояния до верхнего края платформ в кривой, мм | ||||||||
при непогашенном ускорении | при возвышении наружного рельса, мм | |||||||||
80 | 90 | 100 | 110 | 120 | 130 | 140 | 150 | |||
1 | 2 | 3 | 12 | 13 | 14 | 15 | 16 | 17 | 18 | 19 |
1200 ------- 1750 | - | 1140 | 1130 | 1110 | 1100 | 1090 | 1080 | 1070 | 1060 | |
- | 1790 + b | 1800 + b | 1810 + b | 1810 + b | 1820 + b | 1830 + b | 1840 + b | 1840 + b | ||
1100 ------- 1750 | - | 1050 | 1050 | 1040 | 1040 | 1030 | 1030 | 1020 | 1010 | |
- | 1790 + b | 1800 + b | 1800 + b | 1810 + b | 1820 + b | 1830 + b | 1840 + b | 1840 + b | ||
Примечания 1. Дробью приведены: в числителе - вертикальные размеры H от уровня верха головки рельса, в знаменателе - горизонтальные размеры от оси пути до верхнего края пассажирских и грузовых платформ в прямых, допускаемые при проектировании или эксплуатации. 2. Непогашенное ускорение 3. Числовые значения величины b = 36000/R, мм, приведены в таблице Е.21. 4. Горизонтальную координату точки края платформы на уровне верха головок рельсов принимают равной горизонтальной координате точки верхнего края платформы, указанной в настоящей таблице. | ||||||||||
Номер точек очертаний ПР и ПР' и их координаты в прямой | Наименование координат в кривой | Координаты точек очертаний ( | |||||||
0 | 10 | 20 | 30 | 40 | 50 | 60 | 70 | ||
1 | 2 | 3 | 4 | 5 | 6 | 7 | 8 | 9 | 10 |
1. С наружной стороны кривой | |||||||||
1 | 5450 | 5460 | 5470 | 5480 | 5490 | 5500 | 5510 | 5520 | |
5450 ------- 900 | 900 + b | 865 + b | 830 + b | 800 + b | 760 + b | 730 + b | 700 + b | 660 + b | |
2 | 5300 | 5310 | 5330 | 5340 | 5360 | 5370 | 5380 | 5400 | |
5300 ------- 1400 | 1400 + b | 1390 + b | 1370 + b | 1360 + b | 1340 + b | 1330 + b | 1320 + b | 1300 + b | |
2' | 4700 | 4720 | 4730 | 4750 | 4760 | 4780 | 4790 | 4810 | |
4700 ------- 1600 | 1600 + b | 1570 + b | 1540 + b | 1510 + b | 1480 + b | 1450 + b | 1420 + b | 1390 + b | |
3 | 4500 | 4520 | 4530 | 4560 | 4570 | 4580 | 4600 | 4620 | |
4500 ------- 1950 | 1950 + b | 1920 + b | 1890 + b | 1870 + b | 1840 + b | 1810 + b | 1780 + b | 1750 + b | |
4 | 4350 | 4370 | 4390 | 4400 | 4420 | 4440 | 4460 | 4480 | |
4350 ------- 1950 | 1950 + b | 1920 + b | 1900 + b | 1870 + b | 1840 + b | 1810 + b | 1790 + b | 1760 + b | |
5 | 1300 | 1310 | 1330 | 1340 | 1360 | 1380 | 1390 | 1420 | |
1300 ------- 1950 | 1950 + b | 1940 + b | 1940 + b | 1930 + b | 1920 + b | 1920 + b | 1910 + b | 1900 + b | |
6 | 1300 | 1320 | 1330 | 1350 | 1360 | 1380 | 1390 | 1410 | |
1300 ------- 1800 | 1800 + b | 1790 + b | 1780 + b | 1770 + b | 1770 + b | 1760 + b | 1760 + b | 1750 + b | |
7 | 270 | 290 | 300 | 320 | 340 | 350 | 370 | 390 | |
270 ------ 1800 | 1800 + b | 1800 + b | 1800 + b | 1800 + b | 1790 + b | 1790 + b | 1790 + b | 1790 + b | |
Номер точек очертаний ПР и ПР' и их координаты в прямой | Наименование координат в кривой | Координаты точек очертаний ( | |||||||
80 | 90 | 100 | 110 | 120 | 130 | 140 | 150 | ||
1 | 2 | 11 | 12 | 13 | 14 | 15 | 16 | 17 | 18 |
1. С наружной стороны кривой | |||||||||
1 | 5540 | 5550 | 5560 | 5570 | 5580 | 5590 | 5600 | 5620 | |
5450 ------- 900 | 630 + b | 590 + b | 560 + b | 530 + b | 490 + b | 460 + b | 420 + b | 390 + b | |
2 | 5410 | 5420 | 5440 | 5450 | 5470 | 5480 | 5490 | 5510 | |
5300 ------- 1400 | 1290 + b | 1280 + b | 1260 + b | 1250 + b | 1230 + b | 1220 + b | 1210 + b | 1200 + b | |
2' | 4820 | 4840 | 4850 | 4870 | 4880 | 4900 | 4910 | 4930 | |
4700 ------- 1600 | 1360 + b | 1340 + b | 1310 + b | 1280 + b | 1250 + b | 1220 + b | 1190 + b | 1140 + b | |
3 | 4640 | 4650 | 4670 | 4690 | 4700 | 4720 | 4740 | 4750 | |
4500 ------- 1950 | 1720 + b | 1690 + b | 1670 + b | 1640 + b | 1610 + b | 1580 + b | 1550 + b | 1520 + b | |
4 | 4490 | 4510 | 4530 | 4550 | 4560 | 4580 | 4600 | 4610 | |
4350 ------- 1950 | 1730 + b | 1710 + b | 1680 + b | 1650 + b | 1620 + b | 1600 + b | 1570 + b | 1540 + b | |
5 | 1430 | 1450 | 1470 | 1490 | 1500 | 1520 | 1540 | 1560 | |
1300 ------- 1950 | 1900 + b | 1890 + b | 1880 + b | 1870 + b | 1870 + b | 1860 + b | 1850 + b | 1850 + b | |
6 | 1430 | 1440 | 1460 | 1470 | 1490 | 1510 | 1520 | 1540 | |
1300 ------- 1800 | 1750 + b | 1740 + b | 1730 + b | 1720 + b | 1720 + b | 1710 + b | 1700 + b | 1680 + b | |
7 | 400 | 420 | 430 | 450 | 470 | 480 | 500 | 520 | |
270 ------ 1800 | 1790 + b | 1780 + b | 1780 + b | 1780 + b | 1780 + b | 1780 + b | 1770 + b | 1770 + b | |
Номер точек очертаний ПР и ПР' и их координаты в прямой | Наименование координат в кривой | Координаты точек очертаний ( | |||||||
0 | 10 | 20 | 30 | 40 | 50 | 60 | 70 | ||
1 | 2 | 3 | 4 | 5 | 6 | 7 | 8 | 9 | 10 |
2. С внутренней стороны кривой | |||||||||
1 | 5400 | 5400 | 5400 | 5400 | 5400 | 5400 | 5400 | 5400 | |
5450 ------- 900 | 940 + b | 990 + b | 980 + b | 1020 + b | 1050 + b | 1090 + b | 1130 + b | 1180 + b | |
2 | 5300 | 5300 | 5290 | 5290 | 5290 | 5280 | 5280 | 5270 | |
5300 ------- 1400 | 1400 + b | 1410 + b | 1440 + b | 1470 + b | 1510 + b | 1540 + b | 1590 + b | 1630 + b | |
2' | 4700 | 4700 | 4690 | 4690 | 4680 | 4680 | 4670 | 4670 | |
4700 ------- 1600 | 1600 + b | 1630 + b | 1660 + b | 1690 + b | 1720 + b | 1750 + b | 1780 + b | 1810 + b | |
3 | 4500 | 4490 | 4490 | 4480 | 4470 | 4470 | 4460 | 4450 | |
4500 ------- 1950 | 1950 + b | 1950 + b | 1980 + b | 2010 + b | 2040 + b | 2070 + b | 2110 + b | 2150 + b | |
4 | 4350 | 4340 | 4330 | 4330 | 4320 | 4310 | 4300 | 4300 | |
4350 ------- 1950 | 1950 + b | 1950 + b | 1980 + b | 2010 + b | 2030 + b | 2060 + b | 2100 + b | 2140 + b | |
5 | 1300 | 1290 | 1280 | 1280 | 1270 | 1260 | 1250 | 1250 | |
1300 ------- 1950 | 1950 + b | 1950 + b | 1950 + b | 1950 + b | 1950 + b | 1960 + b | 1970 + b | 1970 + b | |
6 | 1300 | 1290 | 1290 | 1280 | 1280 | 1270 | 1260 | 1250 | |
1300 ------- 1800 | 1800 + b | 1800 + b | 1800 + b | 1800 + b | 1810 + b | 1820 + b | 1830 + b | 1830 + b | |
7 | 270 | 260 | 260 | 250 | 240 | 240 | 230 | 220 | |
270 ------ 1800 | 1800 + b | 1800 + b | 1800 + b | 1800 + b | 1810 + b | 1810 + b | 1810 + b | 1810 + b | |
Номер точек очертаний ПР и ПР' и их координаты в прямой | Наименование координат в кривой | Координаты точек очертаний ( | |||||||
80 | 90 | 100 | 110 | 120 | 130 | 140 | 150 | ||
1 | 2 | 11 | 12 | 13 | 14 | 15 | 16 | 17 | 18 |
2. С внутренней стороны кривой | |||||||||
1 | 5400 | 5390 | 5390 | 5390 | 5390 | 5390 | 5390 | 5390 | |
5450 ------- 900 | 1230 + b | 1270 + b | 1330 + b | 1380 + b | 1420 + b | 1480 + b | 1520 + b | 1570 + b | |
2 | 5270 | 5260 | 5260 | 5260 | 5260 | 5250 | 5250 | 5240 | |
5300 ------- 1400 | 1680 + b | 1730 + b | 1780 + b | 1820 + b | 1870 + b | 1920 + b | 1970 + b | 2010 + b | |
2' | 4660 | 4670 | 4650 | 4650 | 4640 | 4640 | 4630 | 4620 | |
4700 ------- 1600 | 1840 + b | 1870 + b | 1900 + b | 1930 + b | 1950 + b | 1980 + b | 2010 + b | 2040 + b | |
3 | 4450 | 4440 | 4430 | 4430 | 4420 | 4410 | 4400 | 4400 | |
4500 ------- 1950 | 2200 + b | 2240 + b | 2260 + b | 2330 + b | 2370 + b | 2420 + b | 2460 + b | 2500 + b | |
4 | 4290 | 4280 | 4270 | 4260 | 4260 | 4250 | 4240 | 4230 | |
4350 ------- 1950 | 2180 + b | 2210 + b | 2240 + b | 2290 + b | 2330 + b | 2370 + b | 2410 + b | 2450 + b | |
5 | 1240 | 1230 | 1220 | 1210 | 1210 | 1200 | 1190 | 1180 | |
1300 ------- 1950 | 1980 + b | 1990 + b | 1990 + b | 2000 + b | 2010 + b | 2010 + b | 2020 + b | 2030 + b | |
6 | 1240 | 1230 | 1200 | 1200 | 1190 | 1180 | 1170 | 1160 | |
1300 ------- 1800 | 1840 + b | 1850 + b | 1860 + b | 1860 + b | 1870 + b | 1880 + b | 1910 + b | 1910 + b | |
7 | 200 | 190 | 180 | 170 | 160 | 140 | 130 | 120 | |
270 ------ 1800 | 1815 + b | 1815 + b | 1820 + b | 1820 + b | 1820 + b | 1820 + b | 1825 + b | 1825 + b | |
Примечание. Значения b приведены в таблице Е.21, в отдельных случаях для проверки возможности пропуска через сооружение восьмиосных полувагонов высотой (по верхней обвязке кузова) 4350 мм, при загрузке углем с "шапкой", возвышающейся дополнительно на 250 мм, в качестве b допускают применять геометрические выносы этих полувагонов, приведенные в таблице Е.22. | |||||||||
Номер точек очертаний | Наименование координат в кривой | Координаты точек очертаний ( | |||||||
0 | 10 | 20 | 30 | 40 | 50 | 60 | 70 | ||
1 | 2 | 3 | 4 | 5 | 6 | 7 | 8 | 9 | 10 |
1. С наружной стороны кривой | |||||||||
1 | 5400 | 5410 | 5420 | 5435 | 5445 | 5455 | 5465 | 5480 | |
5400 ------- 1000 | 1000 + b | 965 + b | 935 + b | 900 + b | 865 + b | 830 + b | 800 + b | 765 + b | |
2 | 5300 | 5315 | 5325 | 5340 | 5355 | 5365 | 5380 | 5395 | |
5300 ------- 1350 | 1350 + b | 1315 + b | 1285 + b | 1250 + b | 1220 + b | 1185 + b | 1150 + b | 1120 + b | |
2' | 4650 | 4670 | 4680 | 4690 | 4710 | 4720 | 4740 | 4750 | |
4650 ------- 1500 | 1500 + b | 1470 + b | 1440 + b | 1410 + b | 1380 + b | 1350 + b | 1310 + b | 1280 + b | |
3 | 4500 | 4515 | 4535 | 4550 | 4565 | 4580 | 4600 | 4615 | |
4500 ------- 1900 | 1900 + b | 1875 + b | 1845 + b | 1815 + b | 1785 + b | 1755 + b | 1730 + b | 1700 + b | |
4 | 4350 | 4370 | 4385 | 4405 | 4420 | 4440 | 4455 | 4475 | |
4350 ------- 1900 | 1900 + b | 1875 + b | 1845 + b | 1815 + b | 1790 + b | 1765 + b | 1740 + b | 1710 + b | |
5 | 1300 | 1320 | 1335 | 1355 | 1370 | 1390 | 1405 | 1425 | |
1300 ------- 1900 | 1900 + b | 1895 + b | 1885 + b | 1880 + b | 1875 + b | 1865 + b | 1860 + b | 1850 + b | |
2. С внутренней стороны кривой | |||||||||
1 | 5400 | 5400 | 5400 | 5400 | 5395 | 5395 | 5395 | 5390 | |
5400 ------- 1000 | 1000 + b | 1035 + b | 1070 + b | 1100 + b | 1135 + b | 1170 + b | 1200 + b | 1235 + b | |
2 | 5300 | 5300 | 5295 | 5290 | 5285 | 5285 | 5280 | 5275 | |
5300 ------- 1350 | 1350 + b | 1385 + b | 1415 + b | 1450 + b | 1480 + b | 1515 + b | 1550 + b | 1580 + b | |
2' | 4650 | 4640 | 4640 | 4630 | 4630 | 4620 | 4620 | 4620 | |
4650 ------- 1500 | 1500 + b | 1530 + b | 1560 + b | 1590 + b | 1620 + b | 1650 + b | 1680 + b | 1700 + b | |
3 | 4550 | 4545 | 4540 | 4530 | 4525 | 4520 | 4510 | 4505 | |
4500 ------- 1900 | 1900 + b | 1930 + b | 1960 + b | 1990 + b | 2015 + b | 2045 + b | 2075 + b | 2105 + b | |
4 | 4350 | 4340 | 4335 | 4325 | 4320 | 4315 | 4305 | 4295 | |
4350 ------- 1900 | 1900 + b | 1940 + b | 1955 + b | 1985 + b | 2010 + b | 2035 + b | 2065 + b | 2090 + b | |
5 | 1300 | 1290 | 1285 | 1280 | 1270 | 1265 | 1255 | 1250 | |
1300 ------- 1900 | 1900 + b | 1905 + b | 1915 + b | 1920 + b | 1930 + b | 1935 + b | 1940 + b | 1950 + b | |
Номер точек очертаний | Наименование координат в кривой | Координаты точек очертаний ( | |||||||
80 | 90 | 100 | 110 | 120 | 130 | 140 | 150 | ||
1 | 2 | 11 | 12 | 13 | 14 | 15 | 16 | 17 | 18 |
1. С наружной стороны кривой | |||||||||
1 | 5490 | 5500 | 5515 | 5525 | 5535 | 5545 | 5560 | 5570 | |
5400 ------- 1000 | 730 + b | 700 + b | 665 + b | 630 + b | 595 + b | 560 + b | 530 + b | 495 + b | |
2 | 5410 | 5420 | 5435 | 5450 | 5460 | 5475 | 5490 | 5550 | |
5300 ------- 1350 | 1065 + b | 1055 + b | 1020 + b | 985 + b | 950 + b | 920 + b | 885 + b | 850 + b | |
2' | 4770 | 4780 | 4790 | 4810 | 4820 | 4840 | 4850 | 4860 | |
4650 ------- 1500 | 1250 + b | 1220 + b | 1190 + b | 1160 + b | 1130 + b | 1100 + b | 1070 + b | 1030 + b | |
3 | 4630 | 4645 | 4685 | 4680 | 4700 | 4715 | 4730 | 4750 | |
4500 ------- 1900 | 1670 + b | 1645 + b | 1615 + b | 1585 + b | 1555 + b | 1525 + b | 1500 + b | 1470 + b | |
4 | 4490 | 4510 | 4525 | 4540 | 4560 | 4580 | 4595 | 4615 | |
4350 ------- 1900 | 1685 + b | 1655 + b | 1630 + b | 1600 + b | 1575 + b | 1550 + b | 1520 + b | 1490 + b | |
5 | 1440 | 1460 | 1475 | 1490 | 1510 | 1530 | 1545 | 1565 | |
1300 ------- 1900 | 1845 + b | 1840 + b | 1830 + b | 1825 + b | 1820 + b | 1810 + b | 1805 + b | 1800 + b | |
2. С внутренней стороны кривой | |||||||||
1 | 5390 | 5390 | 5390 | 5385 | 5385 | 5385 | 5385 | 5380 | |
5400 ------- 1000 | 1270 + b | 1300 + b | 1340 + b | 1370 + b | 1405 + b | 1440 + b | 1475 + b | 1505 + b | |
2 | 5270 | 5270 | 5265 | 5260 | 5260 | 5255 | 5250 | 5250 | |
5300 ------- 1350 | 1615 + b | 1650 + b | 1680 + b | 1715 + b | 1750 + b | 1780 + b | 1815 + b | 1850 + b | |
2' | 4610 | 4610 | 4600 | 4600 | 4600 | 4590 | 4590 | 4580 | |
4650 ------- 1500 | 1730 + b | 1760 + b | 1790 + b | 1820 + b | 1850 + b | 1880 + b | 1910 + b | 1940 + b | |
3 | 4500 | 4490 | 4485 | 4480 | 4475 | 4470 | 4460 | 4455 | |
4500 ------- 1900 | 2130 + b | 2160 + b | 2190 + b | 2215 + b | 2245 + b | 2275 + b | 2305 + b | 2335 + b | |
4 | 4290 | 4285 | 4275 | 4270 | 4260 | 4255 | 4245 | 4240 | |
4350 ------- 1900 | 2120 + b | 2145 + b | 2170 + b | 2200 + b | 2225 + b | 2250 + b | 2280 + b | 2310 + b | |
5 | 1240 | 1235 | 1225 | 1220 | 1210 | 1205 | 1195 | 1190 | |
1300 ------- 1900 | 1965 + b | 1960 + b | 1970 + b | 1975 + b | 1980 + b | 1990 + b | 1995 + b | 2005 + b | |
Примечания 1. Координаты точек 6 - 7 принимают по таблице Е.14. 2. См. примечание к таблице Е.14. | |||||||||
Номер точек очертания и их координаты в прямой | Наименование координат в кривой | Координаты точек очертания Ц в кривой ( | |||||||
0 | 10 | 20 | 30 | 40 | 50 | 60 | 70 | ||
1 | 2 | 3 | 4 | 5 | 6 | 7 | 8 | 9 | 10 |
1. С наружной стороны кривой | |||||||||
1 | 5350 | 5360 | 5370 | 5380 | 5390 | 5400 | 5410 | 5420 | |
5350 ------- 900 | 900 + b | 870 + b | 830 + b | 800 + b | 770 + b | 730 + b | 700 + b | 670 + b | |
2 | 5260 | 5270 | 5285 | 5295 | 5310 | 5320 | 5335 | 5350 | |
5260 ------- 1180 | 1180 + b | 1145 + b | 1110 + b | 1080 + b | 1050 + b | 1020 + b | 980 + b | 950 + b | |
3 | 5010 | 5020 | 5040 | 5050 | 5060 | 5080 | 5090 | 5100 | |
5010 ------- 1400 | 1400 + b | 1370 + b | 1340 + b | 1310 + b | 1270 + b | 1240 + b | 1210 + b | 1180 + b | |
4 | 4750 | 4760 | 4780 | 4790 | 4810 | 4820 | 4840 | 4850 | |
4750 ------- 1580 | 1580 + b | 1550 + b | 1520 + b | 1490 + b | 1460 + b | 1430 + b | 1400 + b | 1370 + b | |
5 | 4320 | 4340 | 4350 | 4370 | 4390 | 4400 | 4420 | 4430 | |
4320 ------- 1830 | 1830 + b | 1800 + b | 1780 + b | 1750 + b | 1720 + b | 1690 + b | 1670 + b | 1640 + b | |
6 | 4050 | 4070 | 4080 | 4110 | 4120 | 4140 | 4150 | 4170 | |
4050 ------- 1960 | 1960 + b | 1930 + b | 1910 + b | 1880 + b | 1860 + b | 1830 + b | 1810 + b | 1780 + b | |
7 | 2900 | 2920 | 2930 | 2950 | 2970 | 2990 | 3000 | 3020 | |
2900 ------- 1990 | 1990 + b | 1970 + b | 1950 + b | 1940 + b | 1920 + b | 1900 + b | 1880 + b | 1860 + b | |
8 | 2000 | 2020 | 2030 | 2050 | 2060 | 2080 | 2100 | 2110 | |
2000 ------- 1795 | 1795 + b | 1780 + b | 1770 + b | 1760 + b | 1740 + b | 1730 + b | 1720 + b | 1710 + b | |
9 | 1200 | 1220 | 1230 | 1250 | 1260 | 1280 | 1290 | 1310 | |
1200 ------- 1725 | 1725 + b | 1720 + b | 1710 + b | 1700 + b | 1700 + b | 1690 + b | 1680 + b | 1680 + b | |
10 | 270 | 290 | 300 | 320 | 330 | 340 | 360 | 380 | |
270 ------- 1725 | 1725 + b | 1720 + b | 1720 + b | 1720 + b | 1720 + b | 1720 + b | 1710 + b | 1710 + b | |
Номер точек очертания и их координаты в прямой | Наименование координат в кривой | Координаты точек очертания Ц в кривой ( | |||||||
80 | 90 | 100 | 110 | 120 | 130 | 140 | 150 | ||
1 | 2 | 11 | 12 | 13 | 14 | 15 | 16 | 17 | 18 |
1. С наружной стороны кривой | |||||||||
1 | 5430 | 5450 | 5460 | 5470 | 5480 | 5490 | 5500 | 5510 | |
5350 ------- 900 | 630 + b | 600 + b | 570 + b | 530 + b | 500 + b | 460 + b | 430 + b | 400 + b | |
2 | 5360 | 5370 | 5380 | 5390 | 5410 | 5420 | 5430 | 5445 | |
5260 ------- 1180 | 920 + b | 880 + b | 850 + b | 820 + b | 780 + b | 755 + b | 720 + b | 685 + b | |
3 | 5120 | 5130 | 5150 | 5160 | 5170 | 5190 | 5200 | 5220 | |
5010 ------- 1400 | 1150 + b | 1120 + b | 1090 + b | 1060 + b | 1020 + b | 990 + b | 960 + b | 930 + b | |
4 | 4870 | 4880 | 4900 | 4920 | 4930 | 4940 | 4960 | 4970 | |
4750 ------- 1580 | 1340 + b | 1310 + b | 1280 + b | 1250 + b | 1220 + b | 1190 + b | 1160 + b | 1140 + b | |
5 | 4450 | 4470 | 4480 | 4500 | 4520 | 4530 | 4550 | 4570 | |
4320 ------- 1830 | 1610 + b | 1590 + b | 1560 + b | 1530 + b | 1510 + b | 1480 + b | 1450 + b | 1430 + b | |
6 | 4190 | 4200 | 4220 | 4240 | 4260 | 4270 | 4290 | 4310 | |
4050 ------- 1960 | 1760 + b | 1730 + b | 1710 + b | 1680 + b | 1660 + b | 1630 + b | 1600 + b | 1580 + b | |
7 | 3040 | 3060 | 3070 | 3090 | 3110 | 3130 | 3140 | 3160 | |
2900 ------- 1990 | 1840 + b | 1830 + b | 1810 + b | 1790 + b | 1770 + b | 1750 + b | 1740 + b | 1720 + b | |
8 | 2130 | 2150 | 2160 | 2180 | 2190 | 2210 | 2230 | 2240 | |
2000 ------- 1795 | 1690 + b | 1680 + b | 1670 + b | 1660 + b | 1640 + b | 1630 + b | 1620 + b | 1610 + b | |
9 | 1330 | 1340 | 1360 | 1370 | 1390 | 1410 | 1420 | 1440 | |
1200 ------- 1725 | 1670 + b | 1660 + b | 1660 + b | 1650 + b | 1640 + b | 1640 + b | 1630 + b | 1620 + b | |
10 | 400 | 410 | 430 | 440 | 460 | 470 | 490 | 510 | |
270 ------- 1725 | 1710 + b | 1710 + b | 1700 + b | 1700 + b | 1700 + b | 1700 + b | 1700 + b | 1690 + b | |
Номер точек очертания и их координаты в прямой | Наименование координат в кривой | Координаты точек очертания Ц в кривой ( | |||||||
0 | 10 | 20 | 30 | 40 | 50 | 60 | 70 | ||
1 | 2 | 3 | 4 | 5 | 6 | 7 | 8 | 9 | 10 |
2. С внутренней стороны кривой | |||||||||
1 | 5350 | 5350 | 5350 | 5350 | 5350 | 5350 | 5350 | 5350 | |
5350 ------- 900 | 900 + b | 930 + b | 970 + b | 1000 + b | 1030 + b | 1070 + b | 1100 + b | 1130 + b | |
2 | 5260 | 5260 | 5260 | 5250 | 5250 | 5250 | 5250 | 5240 | |
5260 ------- 1180 | 1180 + b | 1210 + b | 1250 + b | 1280 + b | 1310 + b | 1340 + b | 1380 + b | 1400 + b | |
3 | 5010 | 5010 | 5000 | 5000 | 5000 | 4990 | 4990 | 4980 | |
5010 ------- 1400 | 1400 + b | 1430 + b | 1460 + b | 1490 + b | 1520 + b | 1560 + b | 1590 + b | 1620 + b | |
4 | 4750 | 4740 | 4740 | 4730 | 4730 | 4730 | 4720 | 4720 | |
4750 ------- 1580 | 1580 + b | 1610 + b | 1640 + b | 1670 + b | 1700 + b | 1730 + b | 1760 + b | 1790 + b | |
5 | 4320 | 4310 | 4310 | 4300 | 4290 | 4290 | 4280 | 4280 | |
4320 ------- 1830 | 1830 + b | 1860 + b | 1880 + b | 1910 + b | 1940 + b | 1970 + b | 1990 + b | 2020 + b | |
6 | 4050 | 4040 | 4030 | 4030 | 4020 | 4010 | 4010 | 4000 | |
4050 ------- 1960 | 1960 + b | 1980 + b | 2010 + b | 2040 + b | 2060 + b | 2090 + b | 2110 + b | 2140 + b | |
7 | 2900 | 2890 | 2890 | 2880 | 2870 | 2860 | 2860 | 2850 | |
2900 ------- 1990 | 1990 + b | 2010 + b | 2030 + b | 2040 + b | 2060 + b | 2080 + b | 2100 + b | 2130 + b | |
8 | 2000 | 1990 | 1990 | 1980 | 1980 | 1970 | 1960 | 1960 | |
2000 ------- 1795 | 1795 + b | 1810 + b | 1820 + b | 1830 + b | 1850 + b | 1860 + b | 1870 + b | 1880 + b | |
9 | 1200 | 1190 | 1190 | 1180 | 1180 | 1170 | 1170 | 1160 | |
1200 ------- 1725 | 1720 + b | 1730 + b | 1740 + b | 1750 + b | 1750 + b | 1760 + b | 1770 + b | 1770 + b | |
10 | 270 | 260 | 260 | 250 | 250 | 240 | 240 | 230 | |
270 ------- 1725 | 1725 + b | 1730 + b | 1730 + b | 1730 + b | 1730 + b | 1740 + b | 1740 + b | 1740 + b | |
Номер точек очертания и их координаты в прямой | Наименование координат в кривой | Координаты точек очертания Ц в кривой ( | |||||||
80 | 90 | 100 | 110 | 120 | 130 | 140 | 150 | ||
1 | 2 | 11 | 12 | 13 | 14 | 15 | 16 | 17 | 18 |
2. С внутренней стороны кривой | |||||||||
1 | 5340 | 5340 | 5340 | 5340 | 5340 | 5340 | 5340 | 5340 | |
5350 ------- 900 | 1170 + b | 1200 + b | 1230 + b | 1270 + b | 1300 + b | 1330 + b | 1370 + b | 1400 + b | |
2 | 5240 | 5240 | 5240 | 5230 | 5230 | 5230 | 5230 | 5220 | |
5260 ------- 1180 | 1440 + b | 1480 + b | 1510 + b | 1540 + b | 1570 + b | 1610 + b | 1640 + b | 1670 + b | |
3 | 4980 | 4980 | 4970 | 4970 | 4960 | 4960 | 4960 | 4950 | |
5010 ------- 1400 | 1650 + b | 1680 + b | 1710 + b | 1740 + b | 1770 + b | 1810 + b | 1840 + b | 1870 + b | |
4 | 4710 | 4710 | 4710 | 4700 | 4690 | 4690 | 4680 | 4680 | |
4750 ------- 1580 | 1820 + b | 1850 + b | 1880 + b | 1910 + b | 1940 + b | 1970 + b | 2000 + b | 2030 + b | |
5 | 4270 | 4260 | 4260 | 4250 | 4240 | 4240 | 4230 | 4230 | |
4320 ------- 1830 | 2050 + b | 2070 + b | 2100 + b | 2130 + b | 2150 + b | 2180 + b | 2210 + b | 2230 + b | |
6 | 3990 | 3980 | 3980 | 3970 | 3960 | 3960 | 3950 | 3940 | |
4050 ------- 1960 | 2160 + b | 2190 + b | 2210 + b | 2240 + b | 2260 + b | 2290 + b | 2310 + b | 2340 + b | |
7 | 2840 | 2830 | 2830 | 2820 | 2810 | 2800 | 2800 | 2790 | |
2900 ------- 1990 | 2140 + b | 2150 + b | 2170 + b | 2190 + b | 2210 + b | 2230 + b | 2240 + b | 2260 + b | |
8 | 1950 | 1940 | 1940 | 1930 | 1930 | 1920 | 1910 | 1910 | |
2000 ------- 1795 | 1890 + b | 1910 + b | 1920 + b | 1930 + b | 1950 + b | 1960 + b | 1970 + b | 1980 + b | |
9 | 1150 | 1150 | 1140 | 1140 | 1130 | 1130 | 1120 | 1110 | |
1200 ------- 1725 | 1780 + b | 1790 + b | 1790 + b | 1800 + b | 1810 + b | 1810 + b | 1820 + b | 1830 + b | |
10 | 220 | 220 | 210 | 210 | 200 | 190 | 190 | 180 | |
270 ------- 1725 | 1740 + b | 1740 + b | 1750 + b | 1750 + b | 1750 + b | 1750 + b | 1750 + b | 1760 + b | |
Примечание. Значения b приведены в таблице Е.21. В отдельных случаях для определения возможности пропуска через сооружение восьмиосных цистерн габарита | |||||||||
Номер точек очертания и их координаты в прямой | Наименование координат в кривой | Координаты точек очертания | |||||||
0 | 10 | 20 | 30 | 40 | 50 | 60 | 70 | ||
1 | 2 | 3 | 4 | 5 | 6 | 7 | 8 | 9 | 10 |
1. С наружной стороны кривой | |||||||||
1 | 5300 | 5310 | 5320 | 5330 | 5350 | 5360 | 5370 | 5380 | |
5300 ------- 1050 | 1050 + b | 1020 + b | 980 + b | 950 + b | 920 + b | 880 + b | 850 + b | 820 + b | |
2 | 5260 | 5270 | 5280 | 5300 | 5310 | 5320 | 5330 | 5340 | |
5260 ------- 1135 | 1135 + b | 1100 + b | 1070 + b | 1040 + b | 1000 + b | 970 + b | 940 + b | 900 + b | |
3 | 5010 | 5020 | 5040 | 5050 | 5060 | 5080 | 5090 | 5100 | |
5010 ------- 1355 | 1355 + b | 1320 + b | 1290 + b | 1260 + b | 1230 + b | 1200 + b | 1170 + b | 1140 + b | |
4 | 4750 | 4760 | 4780 | 4790 | 4810 | 4820 | 4840 | 4850 | |
4750 ------- 1540 | 1540 + b | 1510 + b | 1480 + b | 1450 + b | 1420 + b | 1390 + b | 1360 + b | 1330 + b | |
5 | 4320 | 4340 | 4350 | 4370 | 4380 | 4400 | 4420 | 4430 | |
4320 ------- 1790 | 1790 + b | 1760 + b | 1740 + b | 1710 + b | 1680 + b | 1660 + b | 1630 + b | 1600 + b | |
6 | 4050 | 4070 | 4080 | 4100 | 4120 | 4140 | 4150 | 4170 | |
4050 ------- 1925 | 1925 + b | 1900 + b | 1870 + b | 1850 + b | 1820 + b | 1800 + b | 1770 + b | 1750 + b | |
7 | 2900 | 2920 | 2930 | 2950 | 2970 | 2990 | 3000 | 3020 | |
2900 ------- 1950 | 1950 + b | 1940 + b | 1920 + b | 1900 + b | 1880 + b | 1860 + b | 1850 + b | 1830 + b | |
8 | 2000 | 2020 | 2030 | 2050 | 2060 | 2080 | 2100 | 2110 | |
2000 ------- 1775 | 1775 + b | 1760 + b | 1750 + b | 1740 + b | 1730 + b | 1710 + b | 1700 + b | 1690 + b | |
9 | 1200 | 1220 | 1230 | 1250 | 1260 | 1280 | 1290 | 1310 | |
1200 ------- 1725 | 1725 + b | 1720 + b | 1710 + b | 1700 + b | 1700 + b | 1690 + b | 1680 + b | 1680 + b | |
10 | 270 | 290 | 300 | 320 | 330 | 350 | 360 | 380 | |
270 ------- 1725 | 1725 + b | 1720 + b | 1720 + b | 1720 + b | 1720 + b | 1710 + b | 1710 + b | 1710 + b | |
Номер точек очертания и их координаты в прямой | Наименование координат в кривой | Координаты точек очертания | |||||||
80 | 90 | 100 | 110 | 120 | 130 | 140 | 150 | ||
1 | 2 | 11 | 12 | 13 | 14 | 15 | 16 | 17 | 18 |
1. С наружной стороны кривой | |||||||||
1 | 5390 | 5400 | 5420 | 5430 | 5440 | 5450 | 5460 | 5470 | |
5300 ------- 1050 | 790 + b | 750 + b | 720 + b | 690 + b | 650 + b | 620 + b | 590 + b | 550 + b | |
2 | 5360 | 5370 | 5380 | 5390 | 5410 | 5420 | 5430 | 5440 | |
5260 ------- 1135 | 870 + b | 840 + b | 810 + b | 770 + b | 740 + b | 710 + b | 670 + b | 640 + b | |
3 | 5120 | 5130 | 5140 | 5160 | 5170 | 5190 | 5200 | 5210 | |
5010 ------- 1355 | 1100 + b | 1070 + b | 1040 + b | 1010 + b | 980 + b | 950 + b | 920 + b | 890 + b | |
4 | 4870 | 4880 | 4900 | 4910 | 4920 | 4940 | 4950 | 4970 | |
4750 ------- 1540 | 1300 + b | 1270 + b | 1240 + b | 1210 + b | 1180 + b | 1150 + b | 1120 + b | 1090 + b | |
5 | 4450 | 4470 | 4480 | 4500 | 4510 | 4530 | 4550 | 4560 | |
4320 ------- 1790 | 1570 + b | 1550 + b | 1520 + b | 1490 + b | 1470 + b | 1440 + b | 1410 + b | 1390 + b | |
6 | 4190 | 4200 | 4200 | 4240 | 4250 | 4270 | 4290 | 4310 | |
4050 ------- 1925 | 1720 + b | 1700 + b | 1670 + b | 1650 + b | 1620 + b | 1600 + b | 1570 + b | 1550 + b | |
7 | 3040 | 3050 | 3070 | 3090 | 3110 | 3120 | 3140 | 3160 | |
2900 ------- 1950 | 1810 + b | 1790 + b | 1770 + b | 1760 + b | 1740 + b | 1720 + b | 1700 + b | 1680 + b | |
8 | 2130 | 2140 | 2160 | 2180 | 2190 | 2210 | 2230 | 2240 | |
2000 ------- 1775 | 1680 + b | 1660 + b | 1650 + b | 1640 + b | 1630 + b | 1610 + b | 1600 + b | 1590 + b | |
9 | 1330 | 1340 | 1360 | 1370 | 1390 | 1410 | 1420 | 1440 | |
1200 ------- 1725 | 1670 + b | 1660 + b | 1660 + b | 1650 + b | 1640 + b | 1640 + b | 1630 + b | 1620 + b | |
10 | 400 | 410 | 430 | 440 | 460 | 480 | 490 | 500 | |
270 ------- 1725 | 1710 + b | 1710 + b | 1700 + b | 1700 + b | 1700 + b | 1700 + b | 1700 + b | 1700 + b | |
Номер точек очертания и их координаты в прямой | Наименование координат в кривой | Координаты точек очертания | |||||||||||
0 | 10 | 20 | 30 | 40 | 50 | 60 | 70 | ||||||
1 | 2 | 3 | 4 | 5 | 6 | 7 | 8 | 9 | 10 | ||||
2. С внутренней стороны кривой | |||||||||||||
1 | 5300 | 5300 | 5300 | 5300 | 5290 | 5290 | 5290 | 5290 | |||||
5300 ------- 1050 | 1050 + b | 1080 + b | 1120 + b | 1150 + b | 1180 + b | 1220 + b | 1250 + b | 1280 + b | |||||
2 | 5260 | 5260 | 5260 | 5250 | 5250 | 5250 | 5250 | 5250 | |||||
5260 ------- 1135 | 1135 + b | 1170 + b | 1200 + b | 1230 + b | 1270 + b | 1300 + b | 1330 + b | 1370 + b | |||||
3 | 5010 | 5010 | 5000 | 5000 | 5000 | 4990 | 4990 | 4990 | |||||
5010 ------- 1355 | 1355 + b | 1390 + b | 1420 + b | 1450 + b | 1480 + b | 1510 + b | 1540 + b | 1570 + b | |||||
4 | 4750 | 4750 | 4740 | 4740 | 4730 | 4730 | 4720 | 4720 | |||||
4750 ------- 1540 | 1540 + b | 1570 + b | 1600 + b | 1630 + b | 1660 + b | 1690 + b | 1720 + b | 1750 + b | |||||
5 | 4320 | 4310 | 4310 | 4300 | 4300 | 4280 | 4280 | 4270 | |||||
| |||||||||||||
4320 ------- 1790 | 1790 + b | 1820 + b | 1840 + b | 1870 + b | 1900 + b | 1930 + b | 1950 + b | 1980 + b | |||||
6 | 4050 | 4040 | 4040 | 4030 | 4020 | 4010 | 4010 | 4000 | |||||
4050 ------- 1925 | 1925 + b | 1950 + b | 1980 + b | 2000 + b | 2030 + b | 2050 + b | 2080 + b | 2100 + b | |||||
7 | 2900 | 2900 | 2890 | 2880 | 2870 | 2860 | 2860 | 2850 | |||||
2900 ------- 1950 | 1950 + b | 1970 + b | 1990 + b | 2010 + b | 2030 + b | 2050 + b | 2060 + b | 2080 + b | |||||
8 | 2000 | 1990 | 1990 | 1980 | 1980 | 1970 | 1960 | 1960 | |||||
2000 ------- 1775 | 1775 + b | 1790 + b | 1800 + b | 1810 + b | 1830 + b | 1840 + b | 1850 + b | 1860 + b | |||||
9 | 1200 | 1190 | 1190 | 1180 | 1180 | 1170 | 1170 | 1160 | |||||
1200 ------- 1725 | 1725 + b | 1730 + b | 1740 + b | 1750 + b | 1750 + b | 1760 + b | 1770 + b | 1770 + b | |||||
10 | 270 | 260 | 260 | 250 | 250 | 240 | 240 | 230 | |||||
270 ------- 1725 | 1725 + b | 1730 + b | 1730 + b | 1730 + b | 1730 + b | 1740 + b | 1740 + b | 1740 + b | |||||
Номер точек очертания и их координаты в прямой | Наименование координат в кривой | Координаты точек очертания | |||||||
80 | 90 | 100 | 110 | 120 | 130 | 140 | 150 | ||
1 | 2 | 11 | 12 | 13 | 14 | 15 | 16 | 17 | 18 |
2. С внутренней стороны кривой | |||||||||
1 | 5290 | 5290 | 5280 | 5280 | 5280 | 5280 | 5280 | 5280 | |
5300 ------- 1050 | 1320 + b | 1350 + b | 1380 + b | 1410 + b | 1450 + b | 1460 + b | 1510 + b | 1550 + b | |
2 | 5240 | 5240 | 5240 | 5240 | 5230 | 5230 | 5230 | 5230 | |
5260 ------- 1135 | 1400 + b | 1430 + b | 1460 + b | 1500 + b | 1530 + b | 1560 + b | 1600 + b | 1630 + b | |
3 | 4980 | 4980 | 4980 | 4970 | 4970 | 4960 | 4960 | 4960 | |
5010 ------- 1355 | 1610 + b | 1640 + b | 1670 + b | 1700 + b | 1730 + b | 1760 + b | 1800 + b | 1820 + b | |
4 | 4710 | 4710 | 4700 | 4700 | 4690 | 4690 | 4690 | 4680 | |
4750 ------- 1540 | 1780 + b | 1810 + b | 1840 + b | 1870 + b | 1900 + b | 1930 + b | 1960 + b | 1990 + b | |
5 | 4260 | 4260 | 4250 | 4250 | 4240 | 4230 | 4230 | 4220 | |
4320 ------- 1790 | 2010 + b | 2030 + b | 2060 + b | 2090 + b | 2110 + b | 2140 + b | 2170 + b | 2200 + b | |
6 | 4000 | 3990 | 3980 | 3970 | 3970 | 3960 | 3950 | 3940 | |
4050 ------- 1925 | 2130 + b | 2150 + b | 2180 + b | 2200 + b | 2230 + b | 2250 + b | 2280 + b | 2300 + b | |
7 | 2840 | 2840 | 2830 | 2820 | 2810 | 2810 | 2800 | 2790 | |
2900 ------- 1950 | 2100 + b | 2120 + b | 2140 + b | 2150 + b | 2170 + b | 2190 + b | 2210 + b | 2230 + b | |
8 | 1950 | 1950 | 1940 | 1930 | 1930 | 1920 | 1910 | 1910 | |
2000 ------- 1775 | 1880 + b | 1890 + b | 1900 + b | 1910 + b | 1930 + b | 1940 + b | 1950 + b | 1960 + b | |
9 | 1150 | 1150 | 1140 | 1140 | 1130 | 1120 | 1120 | 1110 | |
1200 ------- 1725 | 1780 + b | 1790 + b | 1790 + b | 1800 + b | 1810 + b | 1810 + b | 1820 + b | 1830 + b | |
10 | 220 | 220 | 210 | 210 | 200 | 190 | 190 | 180 | |
270 ------- 1725 | 1740 + b | 1740 + b | 1750 + b | 1750 + b | 1750 + b | 1750 + b | 1750 + b | 1760 + b | |
Примечание. Значения b приведены в таблице Е.21. В отдельных случаях для определения возможности пропуска через сооружение восьмиосных цистерн габарита | |||||||||
Радиус кривой, м | При отсутствии возвышения или при равных возвышениях наружных рельсов обоих путей или при возвышении наружного рельса внешнего пути менее возвышения наружного рельса внутреннего пути | При возвышении наружного рельса внешнего пути более возвышения наружного рельса внутреннего пути | ||||||||||||||||
При разности возвышений наружных рельсов внешнего и внутреннего путей , мм | ||||||||||||||||||
0 | 10 | 20 | 30 | 40 | 50 | 60 | 70 | 80 | 90 | 100 | 110 | 120 | 130 | 140 | 150 | |||
4000 | 20 | 20 | 20 | 20 | 20 | 20 | 20 | 20 | 20 | 20 | 20 | - | - | - | - | - | 5 | |
3000 | 25 | 25 | 25 | 25 | 25 | 25 | 25 | 25 | 25 | 25 | 25 | - | - | - | - | - | 10 | ![]() |
2500 | 30 | 30 | 30 | 30 | 30 | 30 | 30 | 30 | 30 | 30 | 30 | - | - | - | - | - | 15 | ![]() |
2000 | 35 | 35 | 35 | 35 | 35 | 35 | 35 | 35 | 35 | 35 | 35 | - | - | - | - | - | 20 | ![]() |
1800 | 40 | 40 | 40 | 40 | 40 | 40 | 40 | 40 | 40 | 40 | 40 | - | - | - | - | - | 25 | ![]() |
1700 | 45 | 45 | 45 | 45 | 45 | 45 | 45 | 45 | 45 | 45 | 45 | 45 | - | - | - | - | 30 | ![]() |
1600 | 45 | 45 | 45 | 45 | 45 | 45 | 45 | 45 | 45 | 45 | 45 | 45 | 45 | - | - | - | 35 | ![]() |
1500 | 50 | 50 | 50 | 50 | 50 | 50 | 50 | 50 | 50 | 50 | 50 | 50 | 50 | 50 | 50 | - | 40 | ![]() |
1400 | 50 | 50 | 50 | 50 | 50 | 50 | 50 | 50 | 50 | 50 | 50 | 55 | 60 | 60 | 60 | 60 | 45 | ![]() |
1300 | 55 | 55 | 55 | 55 | 55 | 55 | 55 | 55 | 55 | 55 | 55 | 60 | 70 | 80 | 80 | 80 | 50 | ![]() |
1200 | 60 | 60 | 60 | 60 | 60 | 60 | 60 | 60 | 60 | 60 | 60 | 65 | 75 | 85 | 95 | 105 | 55 | ![]() |
1100 | 65 | 65 | 65 | 65 | 65 | 65 | 65 | 65 | 65 | 65 | 65 | 70 | 80 | 90 | 100 | 110 | 60 | ![]() |
1000 | 70 | 70 | 70 | 70 | 70 | 70 | 70 | 70 | 70 | 70 | 70 | 75 | 85 | 100 | 110 | 115 | 65 | ![]() |
900 | 80 | 80 | 80 | 80 | 80 | 80 | 80 | 80 | 80 | 80 | 80 | 85 | 95 | 105 | 115 | 125 | 70 | ![]() |
800 | 90 | 90 | 90 | 90 | 90 | 90 | 90 | 90 | 90 | 90 | 90 | 95 | 105 | 115 | 125 | 135 | 75 | ![]() |
700 | 105 | 105 | 105 | 105 | 105 | 105 | 105 | 105 | 105 | 105 | 105 | 110 | 120 | 130 | 140 | 150 | 80 | ![]() |
600 | 120 | 120 | 120 | 120 | 120 | 120 | 120 | 120 | 120 | 120 | 120 | 125 | 135 | 145 | 155 | 165 | 90 | ![]() |
500 | 145 | 145 | 145 | 145 | 145 | 145 | 145 | 145 | 145 | 145 | 145 | 150 | 160 | 170 | 180 | 190 | 100 | ![]() |
400 | 180 | 180 | 180 | 180 | 180 | 180 | 180 | 180 | 180 | 180 | 180 | 185 | 195 | 205 | 215 | 225 | 110 | ![]() |
300 | 240 | 240 | 240 | 240 | 240 | 240 | 240 | 240 | 240 | 240 | 240 | 245 | 255 | 265 | 275 | 285 | 120 | ![]() |
250 | 290 | 290 | 290 | 290 | 290 | 290 | 290 | 290 | 290 | 290 | 290 | 295 | 305 | 315 | 325 | 335 | 130 | ![]() |
200 | 360 | 360 | 360 | 360 | 360 | 360 | 360 | 360 | 360 | 360 | 360 | 365 | 375 | 385 | 395 | 405 | 140 | ![]() |
180 | 400 | 400 | 400 | 400 | 400 | 400 | 400 | 400 | 400 | 400 | 400 | 405 | 415 | 425 | 435 | 445 | 150 | ![]() |
150 | 480 | 480 | 480 | 480 | 480 | 480 | 480 | 480 | 480 | 480 | 480 | 485 | 495 | 505 | 515 | 525 | - | - |
120 | 600 | 600 | 600 | 600 | 600 | 600 | 600 | 600 | 600 | 600 | 600 | 605 | 615 | 625 | 635 | 645 | - | - |
100 | 720 | 720 | 720 | 720 | 720 | 720 | 720 | 720 | 720 | 720 | 720 | 725 | 735 | 745 | 755 | 765 | - | - |
80 | 900 | 900 | 900 | 900 | 900 | 900 | 900 | 900 | 900 | 900 | 900 | 905 | 915 | 925 | 935 | 945 | - | - |
60 | 1200 | 1200 | 1200 | 1200 | 1200 | 1200 | 1200 | 1200 | 1200 | 1200 | 1200 | 1205 | 1215 | 1225 | 1235 | 1245 | - | - |
Примечание. Значения | ||||||||||||||||||
Радиус кривой, м | Полное центробежное ускорение | ||||||||||||||||||||||||
40 | 45 | 50 | 55 | 60 | 65 | 70 | 75 | 80 | 85 | 90 | 95 | 100 | 105 | 110 | 115 | 120 | 125 | 130 | 135 | 140 | 145 | 150 | 155 | 160 | |
4000 | 0,03 | 0,04 | 0,05 | 0,06 | 0,07 | 0,08 | 0,10 | 0,11 | 0,12 | 0,14 | 0,16 | 0,17 | 0,19 | 0,21 | 0,23 | 0,26 | 0,28 | 0,30 | 0,33 | 0,35 | 0,38 | 0,41 | 0,43 | 0,46 | 0,49 |
3000 | 0,04 | 0,05 | 0,06 | 0,08 | 0,09 | 0,11 | 0,13 | 0,14 | 0,16 | 0,19 | 0,21 | 0,23 | 0,26 | 0,28 | 0,31 | 0,34 | 0,37 | 0,40 | 0,44 | 0,47 | 0,50 | 0,54 | 0,58 | 0,62 | 0,66 |
2500 | 0,05 | 0,06 | 0,08 | 0,09 | 0,11 | 0,13 | 0,15 | 0,17 | 0,20 | 0,22 | 0,25 | 0,28 | 0,31 | 0,34 | 0,37 | 0,41 | 0,44 | 0,48 | 0,52 | 0,56 | 0,60 | 0,65 | 0,69 | 0,74 | 0,79 |
2000 | 0,06 | 0,08 | 0,10 | 0,12 | 0,14 | 0,16 | 0,19 | 0,22 | 0,25 | 0,28 | 0,31 | 0,35 | 0,39 | 0,43 | 0,47 | 0,51 | 0,56 | 0,60 | 0,65 | 0,70 | 0,76 | 0,81 | 0,87 | 0,93 | 0,99 |
1800 | 0,07 | 0,09 | 0,11 | 0,13 | 0,15 | 0,18 | 0,21 | 0,24 | 0,27 | 0,31 | 0,35 | 0,39 | 0,43 | 0,47 | 0,52 | 0,57 | 0,62 | 0,67 | 0,72 | 0,78 | 0,84 | 0,90 | 0,96 | 1,03 | 1,10 |
1600 | 0,08 | 0,10 | 0,12 | 0,15 | 0,18 | 0,21 | 0,24 | 0,28 | 0,31 | 0,35 | 0,39 | 0,44 | 0,48 | 0,53 | 0,58 | 0,64 | 0,69 | 0,77 | 0,82 | 0,88 | 0,95 | 1,01 | 1,09 | 1,18 | 1,23 |
1500 | 0,08 | 0,10 | 0,13 | 0,16 | 0,19 | 0,22 | 0,25 | 0,28 | 0,33 | 0,37 | 0,42 | 0,46 | 0,51 | 0,57 | 0,62 | 0,68 | 0,74 | 0,80 | 0,87 | 0,94 | 1,01 | 1,08 | 1,16 | 1,24 | 1,32 |
1400 | 0,09 | 0,11 | 0,14 | 0,17 | 0,20 | 0,23 | 0,27 | 0,31 | 0,35 | 0,40 | 0,44 | 0,49 | 0,55 | 0,61 | 0,66 | 0,73 | 0,79 | 0,85 | 0,93 | 1,00 | 1,08 | 1,16 | 1,24 | 1,30 | 1,41 |
1200 | 0,10 | 0,13 | 0,16 | 0,19 | 0,23 | 0,27 | 0,32 | 0,36 | 0,41 | 0,46 | 0,52 | 0,58 | 0,64 | 0,71 | 0,78 | 0,85 | 0,93 | 1,00 | 1,09 | 1,17 | 1,26 | 1,35 | 1,45 | 1,54 | 1,65 |
1000 | 0,12 | 0,16 | 0,19 | 0,23 | 0,28 | 0,33 | 0,38 | 0,43 | 0,49 | 0,56 | 0,63 | 0,70 | 0,77 | 0,85 | 0,93 | 1,02 | 1,11 | 1,21 | 1,30 | 1,41 | 1,51 | 1,62 | 1,65 | - | - |
900 | 0,14 | 0,17 | 0,21 | 0,26 | 0,31 | 0,36 | 0,42 | 0,48 | 0,55 | 0,62 | 0,69 | 0,77 | 0,86 | 0,95 | 1,04 | 1,13 | 1,23 | 1,34 | 1,45 | 1,56 | 1,65 | - | - | - | - |
800 | 0,15 | 0,20 | 0,24 | 0,29 | 0,35 | 0,41 | 0,47 | 0,54 | 0,62 | 0,70 | 0,78 | 0,87 | 0,96 | 1,06 | 1,17 | 1,28 | 1,39 | 1,51 | 1,63 | 1,65 | - | - | - | - | - |
700 | 0,18 | 0,22 | 0,28 | 0,33 | 0,40 | 0,47 | 0,54 | 0,62 | 0,71 | 0,80 | 0,89 | 0,99 | 1,10 | 1,22 | 1,33 | 1,46 | 1,50 | 1,65 | - | - | - | - | - | - | - |
600 | 0,21 | 0,26 | 0,32 | 0,39 | 0,46 | 0,54 | 0,63 | 0,72 | 0,82 | 0,93 | 1,04 | 1,16 | 1,29 | 1,42 | 1,56 | 1,65 | - | - | - | - | - | - | - | - | - |
500 | 0,25 | 0,31 | 0,39 | 0,47 | 0,56 | 0,65 | 0,76 | 0,87 | 0,99 | 1,11 | 1,25 | 1,39 | 1,54 | 1,65 | - | - | - | - | - | - | - | - | - | - | - |
400 | 0,31 | 0,39 | 0,48 | 0,58 | 0,69 | 0,81 | 0,95 | 1,08 | 1,23 | 1,39 | 1,56 | 1,65 | - | - | - | - | - | - | - | - | - | - | - | - | - |
350 | 0,35 | 0,45 | 0,55 | 0,67 | 0,79 | 0,93 | 1,08 | 1,24 | 1,41 | 1,59 | 1,65 | - | - | - | - | - | - | - | - | - | - | - | - | - | - |
300 | 0,41 | 0,52 | 0,64 | 0,78 | 0,93 | 1,09 | 1,26 | 1,45 | 1,65 | - | - | - | - | - | - | - | - | - | - | - | - | - | - | - | - |
250 | 0,49 | 0,62 | 0,77 | 0,93 | 1,11 | 1,30 | 1,51 | 1,65 | - | - | - | - | - | - | - | - | - | - | - | - | - | - | - | - | - |
200 | 0,62 | 0,77 | 0,96 | 1,17 | 1,39 | 1,63 | 1,65 | - | - | - | - | - | - | - | - | - | - | - | - | - | - | - | - | - | - |
180 | 0,69 | 0,86 | 1,07 | 1,25 | 1,54 | 1,65 | - | - | - | - | - | - | - | - | - | - | - | - | - | - | - | - | - | - | - |
150 | 0,87 | 1,04 | 1,28 | 1,55 | 1,65 | - | - | - | - | - | - | - | - | - | - | - | - | - | - | - | - | - | - | - | - |
Полное центробежное ускорение, | Непогашенное ускорение | ||||||||||||||
10 | 20 | 30 | 40 | 50 | 60 | 70 | 80 | 90 | 100 | 110 | 120 | 130 | 140 | 150 | |
1,65 - 1,57 | - | - | - | - | - | - | - | - | - | - | - | - | - | - | 0,7 |
1,56 - 1,51 | - | - | - | - | - | - | - | - | - | - | - | - | - | 0,7 | 0,6 |
1,50 - 1,47 | - | - | - | - | - | - | - | - | - | - | - | - | 0,7 | 0,6 | 0,6 |
1,46 - 1,45 | - | - | - | - | - | - | - | - | - | - | - | 0,7 | 0,7 | 0,6 | 0,5 |
1,44 - 1,41 | - | - | - | - | - | - | - | - | - | - | - | 0,7 | 0,6 | 0,6 | 0,5 |
1,40 - 1,39 | - | - | - | - | - | - | - | - | - | - | - | 0,7 | 0,6 | 0,5 | 0,5 |
1,38 - 1,37 | - | - | - | - | - | - | - | - | - | - | 0,7 | 0,6 | 0,6 | 0,5 | 0,5 |
1,36 - 1,35 | - | - | - | - | - | - | - | - | - | - | 0,7 | 0,6 | 0,6 | 0,5 | 0,4 |
1,34 - 1,32 | - | - | - | - | - | - | - | - | - | - | 0,7 | 0,6 | 0,5 | 0,5 | 0,4 |
1,31 | - | - | - | - | - | - | - | - | - | 0,7 | 0,6 | 0,6 | 0,5 | 0,5 | 0,4 |
1,30 - 1,29 | - | - | - | - | - | - | - | - | - | 0,7 | 0,6 | 0,6 | 0,5 | 0,4 | 0,4 |
1,28 - 1,27 | - | - | - | - | - | - | - | - | - | 0,7 | 0,6 | 0,5 | 0,5 | 0,4 | 0,4 |
1,26 | - | - | - | - | - | - | - | - | - | 0,7 | 0,6 | 0,5 | 0,5 | 0,4 | 0,3 |
1,25 | - | - | - | - | - | - | - | - | 0,7 | 0,6 | 0,6 | 0,5 | 0,5 | 0,4 | 0,3 |
1,24 - 1,22 | - | - | - | - | - | - | - | - | 0,7 | 0,6 | 0,6 | 0,5 | 0,4 | 0,4 | 0,3 |
1,21 | - | - | - | - | - | - | - | - | 0,7 | 0,6 | 0,6 | 0,5 | 0,4 | 0,4 | 0,3 |
1,20 | - | - | - | - | - | - | - | - | 0,7 | 0,6 | 0,5 | 0,5 | 0,4 | 0,3 | 0,3 |
1,19 | - | - | - | - | - | - | - | 0,7 | 0,6 | 0,6 | 0,5 | 0,5 | 0,4 | 0,3 | 0,3 |
1,18 - 1,17 | - | - | - | - | - | - | - | 0,7 | 0,6 | 0,6 | 0,5 | 0,4 | 0,4 | 0,3 | 0,3 |
1,16 | - | - | - | - | - | - | - | 0,7 | 0,6 | 0,6 | 0,5 | 0,4 | 0,4 | 0,3 | 0,2 |
1,15 | - | - | - | - | - | - | - | 0,7 | 0,6 | 0,5 | 0,5 | 0,4 | 0,4 | 0,3 | 0,2 |
1,14 | - | - | - | - | - | - | - | 0,7 | 0,6 | 0,6 | 0,5 | 0,4 | 0,3 | 0,3 | 0,2 |
1,13 - 1,12 | - | - | - | - | - | - | 0,7 | 0,6 | 0,6 | 0,5 | 0,5 | 0,4 | 0,3 | 0,3 | 0,2 |
1,11 | - | - | - | - | - | - | 0,7 | 0,6 | 0,6 | 0,5 | 0,5 | 0,4 | 0,3 | 0,3 | 0,2 |
1,10 | - | - | - | - | - | - | 0,7 | 0,6 | 0,6 | 0,5 | 0,5 | 0,4 | 0,3 | 0,2 | 0,2 |
1,09 | - | - | - | - | - | - | 0,7 | 0,6 | 0,5 | 0,5 | 0,4 | 0,4 | 0,3 | 0,2 | 0,2 |
1,08 | - | - | - | - | - | - | 0,7 | 0,6 | 0,5 | 0,5 | 0,4 | 0,3 | 0,3 | 0,2 | 0,2 |
1,07 | - | - | - | - | - | 0,7 | 0,6 | 0,6 | 0,5 | 0,5 | 0,4 | 0,3 | 0,3 | 0,2 | 0,2 |
1,06 | - | - | - | - | - | 0,7 | 0,6 | 0,6 | 0,5 | 0,5 | 0,4 | 0,3 | 0,3 | 0,2 | 0,1 |
1,05 | - | - | - | - | - | 0,7 | 0,6 | 0,6 | 0,5 | 0,4 | 0,4 | 0,3 | 0,3 | 0,2 | 0,1 |
1,04 | - | - | - | - | - | 0,7 | 0,6 | 0,6 | 0,5 | 0,4 | 0,4 | 0,3 | 0,2 | 0,2 | 0,1 |
1,03 - 1,02 | - | - | - | - | - | 0,7 | 0,6 | 0,5 | 0,5 | 0,4 | 0,4 | 0,3 | 0,2 | 0,2 | 0,1 |
1,01 | - | - | - | - | 0,7 | 0,6 | 0,6 | 0,5 | 0,5 | 0,4 | 0,3 | 0,3 | 0,2 | 0,2 | 0,1 |
1,00 | - | - | - | - | 0,7 | 0,6 | 0,6 | 0,5 | 0,5 | 0,4 | 0,3 | 0,3 | 0,2 | 0,1 | 0,1 |
0,99 | - | - | - | - | 0,7 | 0,6 | 0,6 | 0,5 | 0,4 | 0,4 | 0,3 | 0,3 | 0,2 | 0,1 | 0,1 |
0,98 | - | - | - | - | 0,7 | 0,6 | 0,6 | 0,5 | 0,4 | 0,4 | 0,3 | 0,2 | 0,2 | 0,1 | 0,1 |
0,97 - 0,96 | - | - | - | - | 0,7 | 0,6 | 0,5 | 0,5 | 0,4 | 0,4 | 0,3 | 0,2 | 0,2 | 0,1 | 0 |
0,95 | - | - | - | 0,7 | 0,6 | 0,6 | 0,5 | 0,5 | 0,4 | 0,3 | 0,3 | 0,2 | 0,2 | 0,1 | 0 |
0,94 | - | - | - | 0,7 | 0,6 | 0,6 | 0,5 | 0,5 | 0,4 | 0,3 | 0,3 | 0,2 | 0,1 | 0,1 | 0 |
0,93 - 0,92 | - | - | - | 0,7 | 0,6 | 0,6 | 0,5 | 0,4 | 0,4 | 0,3 | 0,3 | 0,2 | 0,1 | 0,1 | 0 |
0,91 - 0,90 | - | - | - | 0,7 | 0,6 | 0,5 | 0,5 | 0,4 | 0,4 | 0,3 | 0,2 | 0,2 | 0,1 | 0,1 | 0 |
0,89 | - | - | - | 0,6 | 0,6 | 0,5 | 0,5 | 0,4 | 0,3 | 0,3 | 0,2 | 0,2 | 0,1 | 0 | - |
0,88 | - | - | 0,7 | 0,6 | 0,6 | 0,5 | 0,5 | 0,4 | 0,3 | 0,3 | 0,2 | 0,1 | 0,1 | 0 | - |
0,87 - 0,86 | - | - | 0,7 | 0,6 | 0,6 | 0,5 | 0,4 | 0,4 | 0,3 | 0,3 | 0,2 | 0,1 | 0,1 | 0 | - |
0,85 - 0,84 | - | - | 0,7 | 0,6 | 0,5 | 0,5 | 0,4 | 0,4 | 0,3 | 0,2 | 0,2 | 0,1 | 0,1 | 0 | - |
0,83 | - | - | 0,7 | 0,6 | 0,5 | 0,5 | 0,4 | 0,3 | 0,3 | 0,2 | 0,2 | 0,1 | 0 | - | - |
0,82 | - | 0,7 | 0,6 | 0,6 | 0,5 | 0,5 | 0,4 | 0,3 | 0,3 | 0,2 | 0,2 | 0,1 | 0 | - | - |
0,81 - 0,80 | - | 0,7 | 0,6 | 0,6 | 0,5 | 0,4 | 0,4 | 0,3 | 0,3 | 0,2 | 0,1 | 0,1 | 0 | - | - |
0,79 - 0,78 | - | 0,7 | 0,6 | 0,5 | 0,5 | 0,4 | 0,4 | 0,3 | 0,2 | 0,2 | 0,1 | 0,1 | 0 | - | - |
0,77 | - | 0,7 | 0,6 | 0,5 | 0,5 | 0,4 | 0,3 | 0,3 | 0,2 | 0,2 | 0,1 | 0 | - | - | - |
0,76 | 0,7 | 0,6 | 0,6 | 0,5 | 0,5 | 0,4 | 0,3 | 0,3 | 0,2 | 0,2 | 0,1 | 0 | - | - | - |
0,75 - 0,74 | 0,7 | 0,6 | 0,6 | 0,5 | 0,4 | 0,4 | 0,3 | 0,3 | 0,2 | 0,1 | 0,1 | 0 | - | - | - |
0,73 | 0,7 | 0,6 | 0,6 | 0,5 | 0,4 | 0,4 | 0,3 | 0,2 | 0,2 | 0,1 | 0,1 | 0 | - | - | - |
0,72 | 0,7 | 0,6 | 0,5 | 0,5 | 0,4 | 0,4 | 0,3 | 0,2 | 0,2 | 0,1 | 0,1 | 0 | - | - | - |
0,71 | 0,7 | 0,6 | 0,5 | 0,5 | 0,4 | 0,3 | 0,3 | 0,2 | 0,2 | 0,1 | 0 | - | - | - | - |
0,70 | 0,6 | 0,6 | 0,5 | 0,5 | 0,4 | 0,3 | 0,3 | 0,2 | 0,2 | 0,1 | 0 | - | - | - | - |
0,69 - 0,68 | 0,6 | 0,6 | 0,5 | 0,4 | 0,4 | 0,3 | 0,3 | 0,2 | 0,1 | 0,1 | 0 | - | - | - | - |
0,67 | 0,6 | 0,6 | 0,5 | 0,4 | 0,4 | 0,3 | 0,2 | 0,2 | 0,1 | 0,1 | 0 | - | - | - | - |
0,66 | 0,6 | 0,5 | 0,5 | 0,4 | 0,4 | 0,3 | 0,2 | 0,2 | 0,1 | 0,1 | - | - | - | - | - |
0,65 - 0,64 | 0,6 | 0,5 | 0,5 | 0,4 | 0,3 | 0,3 | 0,2 | 0,2 | 0,1 | 0 | - | - | - | - | - |
0,63 | 0,6 | 0,5 | 0,5 | 0,4 | 0,3 | 0,3 | 0,2 | 0,1 | 0,1 | 0 | - | - | - | - | - |
0,62 | 0,6 | 0,5 | 0,4 | 0,4 | 0,3 | 0,3 | 0,2 | 0,1 | 0,1 | 0 | - | - | - | - | - |
0,61 | 0,6 | 0,5 | 0,4 | 0,4 | 0,3 | 0,2 | 0,2 | 0,1 | 0,1 | 0 | - | - | - | - | - |
0,60 | 0,5 | 0,5 | 0,4 | 0,4 | 0,3 | 0,2 | 0,2 | 0,1 | 0,1 | 0 | - | - | - | - | - |
0,59 - 0,58 | 0,5 | 0,5 | 0,4 | 0,3 | 0,3 | 0,2 | 0,2 | 0,1 | 0 | - | - | - | - | - | - |
0,57 | 0,5 | 0,5 | 0,4 | 0,3 | 0,3 | 0,2 | 0,1 | 0,1 | 0 | - | - | - | - | - | - |
0,56 | 0,5 | 0,4 | 0,4 | 0,3 | 0,3 | 0,2 | 0,1 | 0,1 | 0 | - | - | - | - | - | - |
0,55 - 0,53 | 0,5 | 0,4 | 0,4 | 0,3 | 0,2 | 0,2 | 0,1 | 0,1 | 0 | - | - | - | - | - | - |
0,52 | 0,5 | 0,4 | 0,3 | 0,3 | 0,2 | 0,2 | 0,1 | 0 | - | - | - | - | - | - | - |
0,51 | 0,5 | 0,4 | 0,3 | 0,3 | 0,2 | 0,1 | 0,1 | 0 | - | - | - | - | - | - | - |
0,50 | 0,4 | 0,4 | 0,3 | 0,3 | 0,2 | 0,1 | 0,1 | 0 | - | - | - | - | - | - | - |
0,49 - 0,47 | 0,4 | 0,4 | 0,3 | 0,2 | 0,2 | 0,1 | 0,1 | 0 | - | - | - | - | - | - | - |
0,46 | 0,4 | 0,3 | 0,3 | 0,2 | 0,2 | 0,1 | 0 | - | - | - | - | - | - | - | - |
0,45 - 0,43 | 0,4 | 0,3 | 0,3 | 0,2 | 0,1 | 0,1 | 0 | - | - | - | - | - | - | - | - |
0,42 - 0,41 | 0,4 | 0,3 | 0,2 | 0,2 | 0,1 | 0,1 | 0 | - | - | - | - | - | - | - | - |
0,40 | 0,3 | 0,3 | 0,2 | 0,2 | 0,1 | 0 | - | - | - | - | - | - | - | - | - |
0,39 - 0,37 | 0,3 | 0,3 | 0,2 | 0,1 | 0,1 | 0 | - | - | - | - | - | - | - | - | - |
0,36 - 0,35 | 0,3 | 0,2 | 0,2 | 0,1 | 0,1 | 0 | - | - | - | - | - | - | - | - | - |
0,34 - 0,33 | 0,3 | 0,2 | 0,2 | 0,1 | 0 | - | - | - | - | - | - | - | - | - | - |
0,32 - 0,31 | 0,3 | 0,2 | 0,1 | 0,1 | 0 | - | - | - | - | - | - | - | - | - | - |
0,30 - 0,28 | 0,2 | 0,2 | 0,1 | 0,1 | 0 | - | - | - | - | - | - | - | - | - | - |
0,27 | 0,2 | 0,2 | 0,1 | 0 | - | - | - | - | - | - | - | - | - | - | - |
0,26 - 0,21 | 0,2 | 0,1 | 0,1 | 0 | - | - | - | - | - | - | - | - | - | - | - |
0,20 - 0,17 | 0,1 | 0,1 | 0 | - | - | - | - | - | - | - | - | - | - | - | - |
0,16 - 0,13 | 0,1 | 0 | - | - | - | - | - | - | - | - | - | - | - | - | - |
0,13 - 0,11 | 0,1 | 0 | - | - | - | - | - | - | - | - | - | - | - | - | - |
0,10 - 0 | 0 | - | - | - | - | - | - | - | - | - | - | - | - | - | - |
R, м | B, мм |
4000 | 10 |
3000 | 10 |
2500 | 15 |
2000 | 20 |
1800 | 20 |
1500 | 25 |
1200 | 30 |
1000 | 35 |
800 | 45 |
700 | 50 |
600 | 60 |
500 | 75 |
400 | 90 |
350 | 105 |
300 | 120 |
250 | 145 |
200 | 180 |
180 | 200 |
150 | 240 |
120 | 300 |
100 | 360 |
80 | 450 |
60 | 600 |
,
)R, м | ||
4000 | 5 | 10 |
3000 | 5 | 10 |
2500 | 10 | 10 |
2000 | 10 | 15 |
1800 | 10 | 15 |
1500 | 10 | 20 |
1200 | 15 | 25 |
1000 | 15 | 30 |
800 | 20 | 35 |
700 | 25 | 40 |
600 | 30 | 45 |
500 | 35 | 55 |
400 | 45 | 70 |
350 | 50 | 80 |
300 | 60 | 90 |
250 | 70 | 110 |
200 | 80 | 140 |
180 | 90 | 150 |
150 | 110 | 180 |
120 | 140 | 230 |
100 | 170 | 270 |
80 | 210 | 340 |
60 | 280 | 450 |
.
;
;
;
.
.
,
;
;
, приведенных в графах 2 - 17 таблицы Е.18;
;
.
.
;
;
.
, то определяем
.
.
.Характеристика участков подхода к круговым кривым | Увеличение размеров габаритов приближения строений | |||
с наружной стороны кривой | с внутренней стороны кривой | |||
начало увеличения | окончание увеличения | начало увеличения | окончание увеличения | |
Наличие переходной кривой и отсутствие возвышения наружного рельса | За 10 м до начала переходной кривой | В конце переходной кривой | За 5 м до начала переходной кривой | В конце переходной кривой |
а) ![]() | а) ![]() | |||
б) ![]() | б) ![]() | |||
Отсутствие переходной кривой и возвышения наружного рельса | За 15 м до начала круговой кривой | В начале круговой кривой | За 10 м до начала круговой кривой | На круговой кривой в 5 м от ее начала |
а) ![]() | а) ![]() | |||
б) ![]() | б) ![]() | |||
Наличие возвышения наружного рельса при наличии или отсутствии переходной кривой | За 10 м до начала переходной кривой или до начала отвода возвышения наружного рельса | Для проектных норм - в начале круговой кривой, для эксплуатационных норм - за 10 м до начала круговой кривой | За 10 м до начала переходной кривой или до начала отвода возвышения наружного рельса | За 10 м до начала круговой кривой |
а) ![]() | а) ![]() | |||
б) ![]() | б) ![]() | |||
где: a = 10 - для проектных норм; a = 0 - для эксплуатационных норм | ||||
Примечания 1. Формулы а) приведены для определения горизонтальных координат точек габарита приближения строений C 2. Условные обозначения, принятые в формулах: B - горизонтальная координата рассматриваемой точки габарита приближения строений в прямой, мм; | ||||
Номер точки и координаты в прямой | Обозначение координат в кривой | Координаты точек габарита с наружной стороны кривой, имеющей радиус, м | |||
4000 и более | 3000 | 2500 | 2000 | ||
IIа | 6900 | 6900 | 6900 | 6900 | |
6900/1000 | 1205 | 1280 | 1280 | 1280 | |
IIа | 6750 | 6750 | 6750 | 6750 | |
6750/1100 | 1300 | 1370 | 1370 | 1370 | |
II | 6400 | 6400 | 6400 | 6400 | |
6400/1020 | 1205 | 1270 | 1270 | 1270 | |
II | 6250 | 6250 | 6250 | 6250 | |
6250/1120 | 1300 | 1370 | 1370 | 1370 | |
Iб | 5900 | 5900 | 5900 | 5900 | |
5900/1700 | 1870 | 1930 | 1930 | 1930 | |
Iа | 5400 | 5400 | 5400 | 5400 | |
5400/1700 | 1850 | 1910 | 1910 | 1910 | |
I | 5550 | 5550 | 5550 | 5550 | |
5550/1600 | 1760 | 1815 | 1815 | 1815 | |
1 | 5550 | 5550 | 5550 | 5550 | |
5550/1600 | 1770 | 1830 | 1830 | 1830 | |
2 | 4300 | 4300 | 4300 | 4300 | |
4300/2450 | 2460 | 2460 | 2465 | 2470 | |
4 | 1100 | 1100 | 1100 | 1100 | |
1100/2450 | 2460 | 2460 | 2465 | 2470 | |
4а | 1070 | 1070 | 1070 | 1070 | |
1070/2450 | 2460 | 2460 | 2465 | 2470 | |
5 | 1100 | 1100 | 1100 | 1100 | |
1100/1920 | 1940 | 1945 | 1950 | 1955 | |
6 | 140 | 120 | 120 | 120 | |
200/1920 | 1930 | 1930 | 1935 | 1940 | |
7 | 140 | 120 | 120 | 120 | |
200/1756 | 1750 | 1760 | 1760 | 1770 | |
8 | |||||
0/1745 | 1750 | 1760 | 1760 | 1770 | |
9 | |||||
0/2450 | 2460 | 2460 | 2465 | 2470 | |
10 | 3200 | 3200 | 3200 | 3200 | |
3200/3100 | 3110 | 3110 | 3110 | 3120 | |
11 | |||||
0/3100 | 3110 | 3110 | 3115 | 3120 | |
Примечания 1. 2. | |||||
Номер точек очертаний ПР и ПР' и их координаты в прямой (H/B), мм | Наименование координат в кривой | Координаты точек очертаний ( | |||||||||||||||||||
0 | 10 | 20 | 30 | 40 | 50 | 60 | 70 | 80 | 90 | 100 | 110 | 120 | 130 | 140 | 150 | ||||||
Размеры с наружной стороны кривой | |||||||||||||||||||||
1 | 5300 | 5310 | 5320 | 5330 | 5340 | 5350 | 5360 | 5370 | 5390 | 5400 | 5410 | 5420 | 5440 | 5450 | 5460 | 5480 | |||||
| |||||||||||||||||||||
5300/1100 | 1100 + b | 1065 + b | 1030 | 1000 + b | 960 + b | 930 + b | 900 + b | 860 + b | 830 + b | 790 + b | 760 + b | 730 + b | 690 + b | 660 + b | 620 + b | 590 + b | |||||
2 | 4850 | 4870 | 4880 | 4900 | 4910 | 4930 | 4940 | 4960 | 4970 | 4990 | 5000 | 5010 | 5020 | 5040 | 5050 | 5070 | |||||
4850/1535 | 1535 + b | 1505 + b | 1475 + b | 1445 + b | 1415 + b | 1385 + b | 1355 + b | 1325 + b | 1305 + b | 1285 + b | 1205 + b | 1175 + b | 1145 + b | 1115 + b | 1085 + b | 1075 + b | |||||
3 | 4650 | 4670 | 4680 | 4710 | 4720 | 4730 | 4750 | 4770 | 4790 | 4800 | 4820 | 4840 | 4850 | 4870 | 4890 | 4900 | |||||
650/1820 | 1820 + b | 1790 + b | 1700 + b | 1675 + b | 1690 + b | 1660 + b | 1630 + b | 1600 + b | 1570 + b | 1540 + b | 1520 + b | 1490 + b | 1460 + b | 1325 + b | 1295 + b | 1265 + b | |||||
4 | 4450 | 4470 | 4490 | 4500 | 4520 | 4540 | 4560 | 4580 | 4590 | 4610 | 4630 | 4650 | 4660 | 4680 | 4700 | 4710 | |||||
4450/1915 | 1915 + b | 1885 + b | 1865 + b | 1835 + b | 1805 + b | 1775 + b | 1755 + b | 1725 + b | 1730 + b | 1710 + b | 1680 + b | 1650 + b | 1620 + b | 1600 + b | 1570 + b | 1540 + b | |||||
5 | 1300 | 1310 | 1330 | 1340 | 1360 | 1380 | 1390 | 1420 | 1430 | 1450 | 1470 | 1490 | 1500 | 1520 | 1540 | 1560 | |||||
1300/1915 | 1915 + b | 1905 + b | 1905 + b | 1895 + b | 1885 + b | 1885 + b | 1875 + b | 1865 + b | 1865 + b | 1890 + b | 1880 + b | 1870 + b | 1870 + b | 1860 + b | 1850 + b | 1850 + b | |||||
6 | 1300 | 1320 | 1330 | 1350 | 1360 | 1380 | 1390 | 1410 | 1430 | 1440 | 1460 | 1470 | 1490 | 1510 | 1520 | 1540 | |||||
1300/1725 | 1725 + b | 1715 + b | 1705 + b | 1695 + b | 1695 + b | 1685 + b | 1675 + b | 1665 + b | 1655 + b | 1645 + b | 1635 + b | 1625 + b | 1615 + b | 1605 + b | 1595 + b | 1585 + b | |||||
7 | 490 | 510 | 520 | 540 | 560 | 570 | 590 | 610 | 620 | 640 | 650 | 670 | 690 | 700 | 720 | 740 | |||||
490/1725 | 1725 + b | 1725 + b | 1725 + b | 1725 + b | 1715 + b | 1715 + b | 1715 + b | 1715 + b | 1705 + b | 1695 + b | 1695 + b | 1685 + b | 1685 + b | 1685 + b | 1675 + b | 1675 + b | |||||
Размеры с внутренней стороны кривой | |||||||||||||||||||||
1 | 5300 | 5300 | 5290 | 5290 | 5290 | 5280 | 5280 | 5270 | 5270 | 5260 | 5260 | 5260 | 5260 | 5250 | 5250 | 5240 | |||||
5300/1100 | 1100 + b | 1100 + b | 1140 + b | 1180 + b | 1210 + b | 1240 + b | 1290 + b | 1320 + b | 1370 + b | 1420 + b | 1470 + b | 1510 + b | 1560 + b | 1610 + b | 1660 + b | 1700 + b | |||||
2 | 4850 | 4850 | 4840 | 4840 | 4830 | 4830 | 4820 | 4820 | 4810 | 4810 | 4790 | 4790 | 4780 | 4780 | 4760 | 4750 | |||||
4850/1535 | 1535 + b | 1565 + b | 1595 + b | 1625 + b | 1655 + b | 1655 + b | 1655 + b | 1655 + b | 1685 + b | 1715 + b | 1745 + b | 1775 + b | 1795 + b | 1825 + b | 1825 + b | 1825 + b | |||||
3 | 4650 | 4640 | 4640 | 4630 | 4620 | 4620 | 4610 | 4600 | 4600 | 4590 | 4580 | 4580 | 4570 | 4560 | 4550 | 4550 | |||||
650/1820 | 1820 + b | 1820 + b | 1850 + b | 1880 + b | 1910 + b | 1940 + b | 1980 + b | 2010 + b | 2060 + b | 2100 + b | 2120 + b | 2190 + b | 2230 + b | 2280 + b | 2320 + b | 2360 + b | |||||
4 | 4450 | 4440 | 4430 | 4430 | 4420 | 4410 | 4400 | 4400 | 4390 | 4380 | 4370 | 4360 | 4360 | 4350 | 4340 | 4330 | |||||
4450/1915 | 1915 + b | 1915 + b | 1945 + b | 1975 + b | 1995 + b | 2025 + b | 2065 + b | 2105 + b | 2145 + b | 2175 + b | 2205 + b | 2255 + b | 2295 + b | 2335 + b | 2375 + b | 2415 + b | |||||
5 | 1300 | 1290 | 1280 | 1280 | 1270 | 1260 | 1250 | 1250 | 1240 | 1230 | 1220 | 1210 | 1210 | 1200 | 1190 | 1180 | |||||
1300/1915 | 1950 + b | 1950 + b | 1950 + b | 1950 + b | 1950 + b | 1960 + b | 1970 + b | 1970 + b | 1980 + b | 1990 + b | 1990 + b | 2000 + b | 2010 + b | 2010 + b | 2020 + b | 2030 + b | |||||
6 | 1300 | 1290 | 1290 | 1280 | 1280 | 1270 | 1260 | 1250 | 1240 | 1230 | 1200 | 1200 | 1190 | 1180 | 1170 | 1160 | |||||
1300/1725 | 1725 + b | 1725 + b | 1725 + b | 1725 + b | 1735 + b | 1745 + b | 1755 + b | 1755 + b | 1765 + b | 1775 + b | 1785 + b | 1785 + b | 1795 + b | 1805 + b | 1815 + b | 1815 + b | |||||
7 | 490 | 485 | 478 | 478 | 465 | 460 | 455 | 448 | 442 | 435 | 430 | 424 | 418 | 412 | 405 | 400 | |||||
490/1725 | 1725 + b | 1728 + b | 1730 + b | 1735 + b | 1738 + b | 1740 + b | 1743 + b | 1745 + b | 1748 + b | 1754 + b | 1755 + b | 1758 + b | 1760 + b | 1763 + b | 1766 + b | 1768 + b | |||||
;
;
;Наименование | Обозначение | Числовое значение | Примечание | |
Габарит: | кузова | |||
тележки | ||||
Длина по кузову (раме), м | L | |||
Направляющая база подвижного состава, м | l | |||
База тележек 4- или 6-осного подвижного состава, одинаковая, м | p | |||
База тележки 4- или 6-осного подвижного состава, большая, м | max p | |||
База тележки 4- или 6-осного подвижного состава, меньшая, м | min p | |||
База ходовой тележки 8- и более -осного подвижного состава, м | ||||
Расстояние между пятниками первой соединительной балки (для 4-осных тележек - база), м | ||||
Расстояние между пятниками второй соединительной балки (для 4-осных тележек - база), м | ||||
Расстояние между пятниками третьей соединительной балки (для 4-осных тележек - база), м | ||||
Расстояние между пятниками четвертой соединительной балки (для 4-осных тележек - база), м | ||||
Сила тяжести подвижного состава брутто, кН | Q | |||
Сила тяжести тары, кН | T | |||
Сила тяжести тележки, одинаковая, кН | ||||
Сила тяжести тележки, , кН | ![]() | |||
Сила тяжести тележки, меньшая, кН | ||||
Расчетная нагрузка на одну тележку (при равномерном распределении), кН | ||||
Расчетная нагрузка на одну тележку, (при неравномерном распределении), кН | ||||
Расчетная нагрузка на одну тележку, меньшая, кН | ||||
Гибкость надбуксовых рессор тележки, одинаковая для обеих тележек, мм/кН | ||||
Гибкость центральных рессор тележки, одинаковая для обеих тележек, мм/кН | ||||
Гибкость надбуксовых рессор тележки, , мм/кН | ||||
Гибкость надбуксовых рессор тележки, меньшая, мм/кН | ||||
Гибкость центральных рессор тележки, , мм/кН | ||||
Гибкость центральных рессор тележки, меньшая, мм/кН | ||||
Общая гибкость рессор одной тележки, мм/кН | ||||
Максимальный диаметр новых колес, мм | ||||
Минимальный диаметр предельно изношенных колес, мм | ||||
Минимально допустимое расстояние между внутренними гранями бандажей колес (колея 1520 мм), мм | ||||
Минимально допускаемая толщина гребня бандажа на уровне верха головки рельса (колея 1520 мм), мм | ||||
Минимально допустимое расстояние между внутренними гранями бандажей колес (колея 1435 мм), мм | ||||
Минимально допускаемая толщина гребня бандажа на уровне верха головки рельса (колея 1435 мм), мм | ||||
Вертикальное расстояние от центра тяжести груженого кузова до нижней поверхности подпятника, мм | ||||
Возможное поперечное смещение буксы относительно колесной пары, мм | q' | |||
Возможное поперечное смещение рамы тележки относительно буксы, мм | q" | |||
Наибольшее возможное поперечное перемещение в направляющем сечении в одну сторону из центрального положения рамы тележки относительно колесной пары вследствие наличия зазоров при максимальных износах и деформациях упругих элементов в буксовом узле и узле сочленения рамы тележки с буксой, мм | q | |||
Возможное поперечное смещение из центрального положения надрессорной балки относительно рамы тележки, мм | w | |||
Возможное поперечное смещение пятника относительно подпятника (или скользунов относительно друг друга при опоре на скользуны), мм | w" | |||
Наибольшее возможное поперечное перемещение в направляющем сечении в одну сторону из центрального положения кузова относительно рамы тележки вследствие наличия зазоров при максимальных износах и деформациях упругих элементов в узле сочленения кузова и рамы тележки, мм | w | |||
Максимально допустимый прокат бандажей (включая местную выбоину в размере 1 мм) за период между обточками колес (для локомотивов), мм | ||||
Понижение буксы (или другой части) относительно оси колесной пары вследствие износов подшипника и осевой шейки по радиусу, мм | ||||
Понижение буксы (или другой части) относительно оси колесной пары за период между обточками колес (для локомотивов), мм | ||||
Понижение рамы тележки относительно буксы вследствие вертикальных износов опорных поверхностей, мм | ||||
Понижение рамы тележки относительно буксы за период между обточками колес (для локомотивов), мм | ||||
Понижение надрессорной балки относительно рамы тележек из-за износов и зазоров в элементах ее подвески, мм | ||||
Понижение надрессорной балки относительно рамы тележек за период между обточками колес (для локомотивов), мм | ||||
Допускаемый вертикальный износ пятника и подпятника (или скользунов), мм | ||||
Вертикальный износ пятника и подпятника (или скользунов) за период между обточками колес (для локомотивов), мм | ||||
Остаточная осадка надбуксовых рессор, мм | ||||
Остаточная осадка центральных рессор, мм | ||||
Собственный прогиб под нагрузкой среднего сечения конструкции рамы подвижного состава (хребтовая балка) | z | |||
Расстояние от направляющего сечения до внутреннего сечения N 1 кузова, м | ||||
Расстояние от направляющего сечения до сечения N 2, м | ||||
Расстояние от направляющего сечения до сечения N 3 и т.д. до N 10, м | ![]() | |||
Расстояние от направляющего сечения до наружного сечения N 1 кузова, м | ||||
Расстояние от направляющего сечения до наружного сечения N 2, м | ||||
Расстояние от направляющего сечения до наружного сечения N 3 и т.д. до N 10, м | ![]() | |||
Расстояние от направляющего сечения тележки до рассматриваемого ее внутреннего сечения N 1 кузова, м | ||||
Расстояние от направляющего сечения тележки до рассматриваемого ее внутреннего сечения N 2, м | ||||
Расстояние от направляющего сечения тележки до рассматриваемого ее внутреннего сечения N 3 и т.д. до N 5, м | ![]() | |||
Расстояние от направляющего сечения тележки до рассматриваемого ее наружного сечения N 1 кузова, м | ||||
Расстояние от направляющего сечения тележки до рассматриваемого ее наружного сечения N 2, м | ||||
Расстояние от направляющего сечения тележки до рассматриваемого ее наружного сечения N 3 и т.д. до N 5, м | ![]() | |||
Расстояние между поперечными сечениями опирания деталей на необрессоренную и обрессоренную части, м | a | |||
Расстояние вдоль пути от оси колесной пары, которая является одной из точек опирания полуобрессоренной части, до рассматриваемого сечения этой части, м | ||||
Примечание. При заполнении данных по расстояниям | ||||
Наименование смещений | Обозначение | Четырехосные вагоны на тележках с подшипниками качения | ||
КВЗ-ЦНИИ I и II типа | КВЗ-5 | КВЗ-И2, Дессау, ЦМВ | ||
А. Смещения по элементам: | ||||
буксы относительно оси колесной пары | q' | 1 | 1 | 1 |
рамы тележки относительно буксы | q" | 7 | 7 | 10 |
надрессорной балки относительно рамы тележки | w' | 43 | 38 | 40 |
предохранительного стержня, поддона и серьги относительно рамы тележки | 22 | 19 | 20 | |
пятника по подпятнику или скользуна по скользуну | w" | 3 | 3 | 3 |
Б. Суммарные смещения: | ||||
рамы тележки и укрепленных на ней частей | q | 8 | 8 | 11 |
предохранительного стержня, серег и поддона | - | 30 | 27 | 31 |
надрессорной балки и укрепленных на ней частей | - | 51 | 46 | 51 |
рамы вагона и укрепленных на ней частей | q + w | 54 | 49 | 54 |
Наименование смещений | Обозначение | Четырехосные вагоны на тележках с подшипниками качения | ||
КВЗ-ЦНИИ I и II типа | КВЗ-5, ЦМВ | КВЗ-И2, Дессау | ||
А. Понижения по элементам вследствие: | ||||
износа колесной пары по кругу катания | h | 45 | 45 | 53 |
износа в шарнирах люлечного подвешивания | 10 | 10 | 10 | |
износа скользунов | 7 | - | - | |
износа пятника и подпятника | - | 5 | 7 | |
статической осадки надбуксовых рессор | 5 | 5 | 5 | |
статической осадки люлечных рессор | 10 | 10 | 10 | |
равномерного прогиба надбуксовых рессор от расчетной нагрузки | - | - | - | |
равномерного прогиба люлечных рессор от расчетной нагрузки | - | - | - | |
Б. Суммарные понижения: | ||||
буксы | 45 | 45 | 53 | |
рамы тележки и укрепленных на ней частей (в том числе предохранительный стержень тележки КВЗ-ЦНИИ I типа) | ||||
серьги поддона | ||||
надрессорной балки (бруса) и укрепленных на ней частей | ![]() | ![]() | ![]() | |
рамы вагона и укрепленных на ней частей | ![]() | ![]() | ![]() | |
Наименование смещений | Обозначение | Четырехосные вагоны на двухосных тележках с подшипниками качения | Шестиосные вагоны на трехосных тележках с подшипниками качения | Восьмиосные вагоны на четырехосных тележках с подшипниками качения |
ЦНИИ-Х3-0 | УВЗ-9М | Четырехосные на базе двухосных ЦНИИ-Х3-0 | ||
А. Смещения по элементам: | ||||
буксы относительно оси колесной пары | q' | 1 (10) | 1 | 1 |
рамы тележки относительно буксы | q" | 2 | 2 | 2 |
фрикционного клина относительно середины боковины | 20 | - | 20 | |
надрессорной балки относительно середины фрикционного клина | 4 | - | 4 | |
надрессорной балки относительно середины боковины | w' | 24 | 20 | - |
пятника по подпятнику | w" | 4 | 6 | 8 |
Б. Суммарные смещения: | ||||
рамы тележки и укрепленных на ней частей | q | 3 (12) | 3 | 3 |
надрессорной балки и укрепленных на ней частей | - | 27 (36) | 23 | 27 |
рамы вагона и укрепленных на ней частей | q + w | 31 (40) | 29 | 35 |
Примечание. В скобках указаны величины смещений для тележек на подшипниках скольжения. | ||||
Наименование понижений | Обозначение | Четырехосные вагоны на двухосных тележках с подшипниками качения | Шестиосные вагоны на трехосных тележках с подшипниками качения | Восьмиосные вагоны на четырехосных тележках с подшипниками качения |
ЦНИИ-Х3-0 | УВЗ-9М | Четырехосные на базе двухосных ЦНИИ-Х3-0 | ||
А. Понижения по элементам вследствие: | ||||
износа колесной пары по кругу катания | 53 | 53 | 53 | |
износа буксы и боковины в месте взаимного опирания | 2 | 2 | 2 | |
статической осадки рессор | 10 | 10 | 10 | |
износа пятника и подпятника | 5 | 5 | 10 | |
равномерного статического прогиба от расчетной нагрузки | - | - | - | |
Б. Суммарные понижения: | ||||
буксы | 53 (68) | 53 | 53 | |
рамы тележки и укрепленных на ней частей | 55 (70) | 55 | 55 | |
надрессорной балки и укрепленных на ней частей | ![]() | |||
рамы вагона и укрепленных на ней частей | ![]() | |||
Примечание. В скобках указаны смещения для тележек на подшипниках скольжения. | ||||
Наименование смещений | Обозначение | Моторные вагоны | Прицепные вагоны | |||||
ЭР2, ЭР9П | ЭР22 | ЭР22 на тележках с пневмоподвешиванием | ДР1, ДР2 | ЭР2, ЭР9П | ЭР22 | ДР1, ДР2 | ||
А. Смещения по элементам: | ||||||||
буксы относительно оси колесной пары | q' | 1 (1) | 1 | 1 | 1 | 1 (1) | 1 | 1 |
рамы тележки относительно буксы | q" | 4 (4,5) | 6 | 6 | 4 | 6 (6) | 6 | 4 |
шкворневой балки относительно рамы тележки | - | - | - | 1 | - | - | 1 | |
надрессорной балки относительно рамы тележки | w' | 47 (44) | 47 | 45 | - | 45 | 45 | - |
подвески и поддона относительно рамы тележки | 40 (36) | 40 | 45 | - | 25 | 23 | - | |
кузова относительно шкворневой балки | - | - | - | - | 44 | - | - | 43 |
кузова относительно надрессорной балки | w" | 1 (1) | 1 | 1 | - | 3 (3) | 3 | - |
Б. Суммарные смещения: | ||||||||
рамы тележки и жестко укрепленных на ней частей | q | 5 (5,5) | 7 | 7 | 5 | 7 (7) | 7 | 5 |
надрессорной балки и укрепленных на ней частей | - | 52 (49,5) | 54 | 52 | - | 52 (50) | 52 | - |
поддона и подвесок | - | 45 (41,5) | 47 | - | - | 32 (33) | 30 | - |
рамы вагона и укрепленных на ней частей | q + w | 53 (50,5) | 55 | 53 | 50 | 55 (53) | 55 | 49 |
Примечание. В скобках указаны данные для ЭР2Р. | ||||||||
Наименование понижений | Обозначение | Моторные вагоны | Прицепные вагоны | ||||
ЭР2, ЭР9П, ЭР9М, ЭР9Е | ЭР22 | ЭР22 на тележках с пневмоподвешиванием | ДР1, ДР2 | ЭР2, ЭР9П, ЭР22, ЭР9М, ЭР9Е | ДР1, ДР2 | ||
А. Понижения по элементам вследствие: | |||||||
износа колесной пары по кругу катания | 40 | 45 | 40 | 45 | 45 | 45 | |
уменьшения радиуса колесного центра | 3 | - | 3 | - | - | - | |
статической осадки надбуксовых пружин | 10 | 10 | 10 | - | 10 | - | |
статической осадки пружин центрального подвешивания | 15 | 15 | - | 15 | 15 | 15 | |
износа в шарнирах соединения балансира и буксы | 5 | - | - | - | - | - | |
износа в шарнирах люлечного подвешивания | 10 | 10 | 10 | 5 | 10 | 5 | |
износа скользунов | 10 | 10 | 10 | 15 | 9 | 15 | |
понижения обрессоренных частей при полном отключении пневморессор центрального подвешивания | - | - | - | 34 | - | - | - |
Б. Суммарные понижения: | |||||||
рамы тележки и жестко укрепленных на ней частей | |||||||
частей, шарнирно соединенных с рамой тележки (поддона) и шкворневой балкой дизель-поезда надрессорной балки и укрепленных на ней частей рамы вагона и укрепленных на ней частей | |||||||
![]() | ![]() | ![]() | - | ![]() | - | ||
![]() | ![]() | ![]() | ![]() | ![]() | ![]() | ||
Примечание. Данные, приведенные для ЭР2, действительны и для вагонов ЭР2Р, за исключением | |||||||
Наименование смещений | Обозначение | Тепловозы | Электровозы | |||
ТЭ3, 2ТЭ10Л, ТЭМ2, ТГМ3 | ТЭП60 | ВЛ8, ВЛ23 | ВЛ60 | ВЛ80, ВЛ10 | ||
А. Смещения по элементам: | ||||||
буксы относительно оси колесной пары | q' | 1 (12) | 3 | 2 | 1 | 1 |
рамы тележки относительно буксы | q" | 2 | 6 | 2 | 6 | 6 |
кузова относительно рамы тележки | w | 2 | 30 | 3 | 45 | 35 |
Б. Суммарные смещения: | ||||||
рамы тележки и укрепленных на ней частей | q | 3 (14) | 9 | 4 | 7 | 7 |
рамы кузова и укрепленных на ней частей | q + w | 5 (16) | 39 | 7 | 52 | 42 |
Примечание. В скобках указаны величины перемещений для тележек с упругими упорами в буксовом узле. | ||||||
Наименование смещений | Обозначение | Тепловозы | Электровозы | |||
ТЭ3, 2ТЭ10Л, ТЭМ2, ТГМ3 | ТЭП60 | ВЛ8, ВЛ23 | ВЛ60 | ВЛ80, ВЛ10 | ||
А. Понижения по элементам вследствие: | ||||||
износа колесной пары по кругу катания | 39 | 39 | 50 | 50 | 50 | |
уменьшения радиуса колесного центра | 3 | 3 | 3 | 3 | 3 | |
износа шарниров и опорных поверхностей надбуксового подвешивания | 9 | 6 | 8 | 17 | 17 | |
статической осадки рессор надбуксового подвешивания | 10 | 10 | 10 | 5 | 5 | |
износа опорных поверхностей центрального подвешивания | - | 2 | - | 4 | 5 | |
статической осадки центрального подвешивания | - | - | - | 10 | 10 | |
износа скользунов (пятника и подпятника) | 3 | 4 | 18 | - | 7 | |
Б. Суммарные понижения: | ||||||
буксы | 42 | 42 | 53 | 53 | 53 | |
рамы тележки и укрепленных на ней частей | ||||||
рамы кузова и укрепленных на ней частей | ![]() | ![]() | ![]() | ![]() | ![]() | |
Вид подвижного состава | Расчетная нагрузка | |
Полезная нагрузка | Предметы экипировки | |
Вагоны | ||
Грузовые всех типов (кроме изотермических) | Сила тяжести груза в пределах грузоподъемности | |
Изотермические | Сила тяжести груза в пределах грузоподъемности | Сила тяжести льда, соли, топлива, рассола и других предметов экипировки |
Пассажирские дальнего следования (мягкие, купейные, жесткие) | Сила тяжести пассажиров с багажом, определяемая по расчетной населенности вагона. Расчетную населенность вагона определяют по наибольшему числу мест, предусмотренных при эксплуатации вагона, силу тяжести одного пассажира с багажом принимают равной 1 кН | Сила тяжести воды, топлива и других предметов экипировки |
Багажные, почтовые, грузопочтовые | Сила тяжести груза и обслуживающего персонала в пределах грузоподъемности | Сила тяжести воды, топлива и других предметов экипировки |
Межобластные, вагоны электросекций, электропоездов и дизель-поездов, автомотрисы | Сила тяжести пассажиров с багажом. Количество пассажиров определяют по числу мест для сидения и количеству стоящих пассажиров из расчета 7 человек на 1 м2 свободной площади пола, включая тамбуры и проходы (площадь между диванами, занятая ногами сидящих пассажиров, шириной 200 мм у края дивана не учитывают). Силу тяжести одного пассажира с багажом принимают равной 0,7 кН | |
Локомотивы | ||
Тепловозы и паровозы | - | Сила тяжести запаса воды, топлива, песка, смазки и других предметов экипировки |
Электровозы | - | Сила тяжести запаса песка, смазки и других предметов экипировки |
.
.
,ИС МЕГАНОРМ: примечание. В официальном тексте документа, видимо, допущена опечатка: форма И.7.1 отсутствует. |
;Габарит | Точки габарита | Значения коэффициентов | |||||||
k, мм | |||||||||
T; | Все точки | 0 | ![]() | 2,5 | 180 | ||||
1-BM | 1 - 11 | ||||||||
Остальные точки | 25 | ||||||||
0-BM | 1 - 11 | 75 | |||||||
Остальные точки | 25 | ||||||||
| |||||||||
02-BM | 1 - 8* | 75 | 2 | 0 | |||||
Остальные точки | 25 | ||||||||
03-BM | 1 - 5 | 75 | |||||||
Остальные точки | 25 | ||||||||
p - база тележки четырех- и шестиосного подвижного состава. Для подвижного состава с сочлененными тележками в качестве , где | |||||||||
,ИС МЕГАНОРМ: примечание. В официальном тексте документа, видимо, допущена опечатка: форма 3.7.1 отсутствует. |
,
,
,
,
,
,
,
.
,
,
,
,
,
,
.- при положительных их значениях; | |
- при отрицательных значениях: | -1, -2 и до -8 - при вычислении |
ИС МЕГАНОРМ: примечание. В официальном тексте документа, видимо, допущена опечатка: форма Ж.7.1 отсутствует. |
, (Ж.4)
. (Ж.5)
,
.
; (Ж.9)
; (Ж.11)
, (Ж.12)
; (Ж.13)ИС МЕГАНОРМ: примечание. В официальном тексте документа, видимо, допущена опечатка: форма Ж.7.1 в Приложении Ж в отсутствует. |
;
; (Ж.15)
, м
; (Ж.18)
. (Ж.19)
; (Ж.20)
, м
; (Ж.21)
, м
; (Ж.26)
; (Ж.27)
; (Ж.28)
, (Ж.31)ИС МЕГАНОРМ: примечание. Обозначение дано в соответствии с официальным текстом документа. |
, (Ж.32)
;
;
. (Ж.33)
, (Ж.34)
, (Ж.35)
.
Расстояние от направляющего сечения | Порядковый номер в местах критической точки | Измеряемая величина | Габаритные размеры, мм | |
Расстояние, | Высота, Y, от головок рельсов | |||
1 | 2 | 3 | 4 | 5 |