Главная // Актуальные документы // ГОСТ (Государственный стандарт)
СПРАВКА
Источник публикации
М.: Стандартинформ, 2018
Примечание к документу
Документ включен в Перечень международных и региональных (межгосударственных) стандартов, а в случае их отсутствия - национальных (государственных) стандартов, в результате применения которых на добровольной основе обеспечивается соблюдение требований технического регламента Таможенного союза "О безопасности машин и оборудования" (ТР ТС 010/2011) (Решение Коллегии Евразийской экономической комиссии от 09.03.2021 N 28).

Текст данного документа приведен с учетом поправки, опубликованной в "ИУС", N 3, 2020.

Документ введен в действие с 01.06.2019.
Название документа
"ГОСТ ISO 7132-2017. Межгосударственный стандарт. Машины землеройные. Самосвалы. Терминология и торговые спецификации"
(введен в действие Приказом Росстандарта от 13.11.2018 N 986-ст)

"ГОСТ ISO 7132-2017. Межгосударственный стандарт. Машины землеройные. Самосвалы. Терминология и торговые спецификации"
(введен в действие Приказом Росстандарта от 13.11.2018 N 986-ст)


Содержание


Введен в действие
Приказом Федерального
агентства по техническому
регулированию и метрологии
от 13 ноября 2018 г. N 986-ст
МЕЖГОСУДАРСТВЕННЫЙ СТАНДАРТ
МАШИНЫ ЗЕМЛЕРОЙНЫЕ
САМОСВАЛЫ
ТЕРМИНОЛОГИЯ И ТОРГОВЫЕ СПЕЦИФИКАЦИИ
Earth-moving machinery. Dumpers.
Terminology and commercial specifications
(ISO 7132:2003, IDT)
ГОСТ ISO 7132-2017
МКС 01.040.53
53.100
Дата введения
1 июня 2019 года
Предисловие
Цели, основные принципы и основной порядок проведения работ по межгосударственной стандартизации установлены в ГОСТ 1.0-2015 "Межгосударственная система стандартизации. Основные положения" и ГОСТ 1.2-2015 "Межгосударственная система стандартизации. Стандарты межгосударственные, правила и рекомендации по межгосударственной стандартизации. Правила разработки, принятия, обновления и отмены"
Сведения о стандарте
1 ПОДГОТОВЛЕН Обществом с ограниченной ответственностью "ИЦ "ЦНИП СДМ" (ООО "ИЦ "ЦНИП СДМ") на основе собственного перевода на русский язык англоязычной версии международного стандарта, указанного в пункте 5
2 ВНЕСЕН Межгосударственным техническим комитетом по стандартизации МТК 267 "Строительно-дорожные машины и оборудование"
3 ПРИНЯТ Межгосударственным советом по стандартизации, метрологии и сертификации (протокол от 30 ноября 2017 г. N 52)
За принятие проголосовали:
Краткое наименование страны по МК (ИСО 3166) 004-97
Код страны по МК (ИСО 3166) 004-97
Сокращенное наименование национального органа по стандартизации
Армения
AM
Минэкономики Республики Армения
Беларусь
BY
Госстандарт Республики Беларусь
Казахстан
KZ
Госстандарт Республики Казахстан
Киргизия
KG
Кыргызстандарт
Россия
RU
Росстандарт
Таджикистан
TJ
Таджикстандарт
Узбекистан
UZ
Узстандарт
4 Приказом Федерального агентства по техническому регулированию и метрологии от 13 ноября 2018 г. N 986-ст межгосударственный стандарт ГОСТ ISO 7132-2017 введен в действие в качестве национального стандарта Российской Федерации с 1 июня 2019 г.
5 Настоящий стандарт идентичен международному стандарту ISO 7132:2003 "Землеройные машины. Самосвалы. Терминология и торговые спецификации" ("Earthmoving machinery - Dumpers - Terminology and commercial specifications", IDT).
При применении настоящего стандарта рекомендуется использовать вместо ссылочных международных стандартов соответствующие им межгосударственные стандарты, сведения о которых приведены в дополнительном приложении ДА
6 Настоящий стандарт может быть использован при ежегодной актуализации перечня стандартов, содержащих правила и методы исследований (испытаний), а также стандартов, в результате применения которых на добровольной основе обеспечивается соблюдение требований технического регламента Таможенного союза ТР ТС 010/2011 "О безопасности машин и оборудования"
7 ВВЕДЕН ВПЕРВЫЕ
Информация об изменениях к настоящему стандарту публикуется в ежегодном информационном указателе "Национальные стандарты", а текст изменений и поправок - в ежемесячном информационном указателе "Национальные стандарты". В случае пересмотра (замены) или отмены настоящего стандарта соответствующее уведомление будет опубликовано в ежемесячном информационном указателе "Национальные стандарты". Соответствующая информация, уведомление и тексты размещаются также в информационной системе общего пользования - на официальном сайте Федерального агентства по техническому регулированию и метрологии в сети Интернет (www.gost.ru)
1 Область применения
Настоящий стандарт устанавливает терминологию и эксплуатационные требования к коммерческой документации для самосвалов (включая мини-самосвалы) по ISO 6165.
2 Нормативные ссылки
В настоящем стандарте использованы нормативные ссылки на следующие международные стандарты. Для недатированных ссылок применяют последнее издание ссылочного документа (включая все его изменения). Для датированных ссылок применяют только указанное издание ссылочного документа.
ISO 3450, Earth-moving machinery - Braking systems of rubber-tyred machines - Systems and performance requirements and test procedures (Машины землеройные. Колесные машины. Эксплуатационные требования и методики испытаний тормозных систем)
ISO 5010, Earth-moving machinery - Rubber-tyred machines - Steering requirements (Машины землеройные, машины с резиновыми шинами. Требования к системам рулевого управления)
ISO 6014:1986, Earth-moving machinery - Determination of ground speed (Машины землеройные. Определение скорости движения)
ISO 6016:1998, Earth-moving machinery - Methods of measuring the masses of whole machines, their equipment and components (Машины землеройные. Методы измерения массы машин в целом, их рабочего оборудования и узлов)
ISO 6165, Earth-moving machinery - Basic types - Vocabulary (Машины землеройные. Основные типы. Словарь)
ISO 6483:1980, Earth-moving machinery - Dumper bodies - Volumetric rating (Машины землеройные. Кузовы землевозов. Расчет вместимости)
ISO 6746-1, Earth-moving machinery - Definitions of dimensions and codes - Part 1: Base machine (Машины землеройные. Определения размеров и коды. Часть 1. Базовая машина)
ISO 7457:1997, Earth-moving machinery - Determination of turning dimensions of wheeled machines (Машины землеройные. Определение размеров поворота колесных машин)
ISO 9249:1997, Earth-moving machinery - Engine test code - Net power (Машины землеройные. Свод правил по испытанию двигателей. Полезная мощность)
3 Термины и определения
В настоящем стандарте применены термины и определения по ISO 6165, а также следующие термины с соответствующими определениями:
3.1 Общие термины
3.1.1 самосвал (dumper): Самоходная гусеничная или колесная машина с открытым кузовом, предназначенная для транспортирования, разгрузки и распределения материала, которая загружается внешними средствами или оборудованием для самозагрузки.
3.1.2 базовая машина (base machine): Машина с кабиной или навесом и при наличии, защитными конструкциями, без рабочего оборудования или рабочих органов, но с необходимыми приспособлениями для их монтажа.
3.1.3 рабочее оборудование (equipment): Комплект узлов, монтируемых на базовую машину для выполнения установленных функций.
3.1.4 оборудование для самозагрузки (self-loading equipment): Смонтированное на мини-самосвале ковшовое оборудование с независимым приводом, предназначенное для загрузки материала в открытый кузов.
Примечание - См. 4.1.5.
3.1.5 дополнительное оборудование (attachment): Узел, который может быть смонтирован на базовой машине или на рабочем оборудовании для специального использования.
3.1.6 комплектующие (component): Часть узла или базовой машины, рабочего или дополнительного оборудования.
3.2 Эксплуатационные термины
3.2.1 тяговое усилие (tractive force rimpull): Усилие между колесами и поверхностью грунта, приводящее самосвал в движение.
3.2.1.1 тяговое усилие самосвала с механической трансмиссией (tractive force with direct drive transmission): Расчетное или измеренное тяговое усилие при максимальном крутящем моменте двигателя при включенной муфте сцепления.
Примечание - Максимальное тяговое усилие может быть ограничено массой машины и коэффициентом сцепления.
3.2.1.2 тяговое усилие самосвала с бесступенчатой трансмиссией, электрическим или гидростатическим приводом (tractive force rimpull with powershift transmission: electric drive, hydrostatic drive): Усилие, характеризуемое кривыми зависимости тягового усилия от скорости движения машины на каждой передаче переднего хода, полученными расчетом или измерением.
Примечание - Максимальное тяговое усилие может быть ограничено массой машины и коэффициентом сцепления.
3.2.2 время подъема и опускания незагруженного кузова (empty body dump and return time): Полный временной цикл, включающий в себя время перемещения незагруженного кузова самосвала, откидного борта или гидроцилиндра подъема/опускания при номинальной частоте оборотов двигателя.
3.2.3 полезная нагрузка (payload): Нагрузка, определяемая номинальной массой груза, которую может перевозить машина по документации изготовителя.
4 Базовая машина
Примечание - Информация о параметрах базовой машины указана на нижеприведенных рисунках.
4.1 Типы самосвалов
4.1.1 По методу разгрузки:
- задняя разгрузка, см. рисунок 1;
- донная разгрузка, см. рисунок 2;
- боковая разгрузка, см. рисунок 3;
- передняя разгрузка, см. рисунок 4;
- поворотная разгрузка, см. рисунок 5;
- разгрузка с предварительным подъемом кузова, см. рисунок 6;
- разгрузка с поворотной платформы, см. рисунок 7.
Рисунок 1 - Задняя разгрузка
Рисунок 2 - Донная разгрузка
Рисунок 3 - Боковая разгрузка
Рисунок 4 - Передняя разгрузка
Рисунок 5 - Поворотная разгрузка
Рисунок 6 - Разгрузка с предварительным подъемом кузова
Рисунок 7 - Разгрузка с поворотной платформы
4.1.2 По системе рулевого управления:
- рулевое управление передними колесами, см. рисунок 8;
- рулевое управление шарнирно-сочлененной рамой, см. рисунок 9;
- рулевое управление задними колесами, см. рисунок 10;
- рулевое управление всеми колесами, см. рисунок 11;
- рулевое управление бортами с гусеничным движителем, см. рисунок 12;
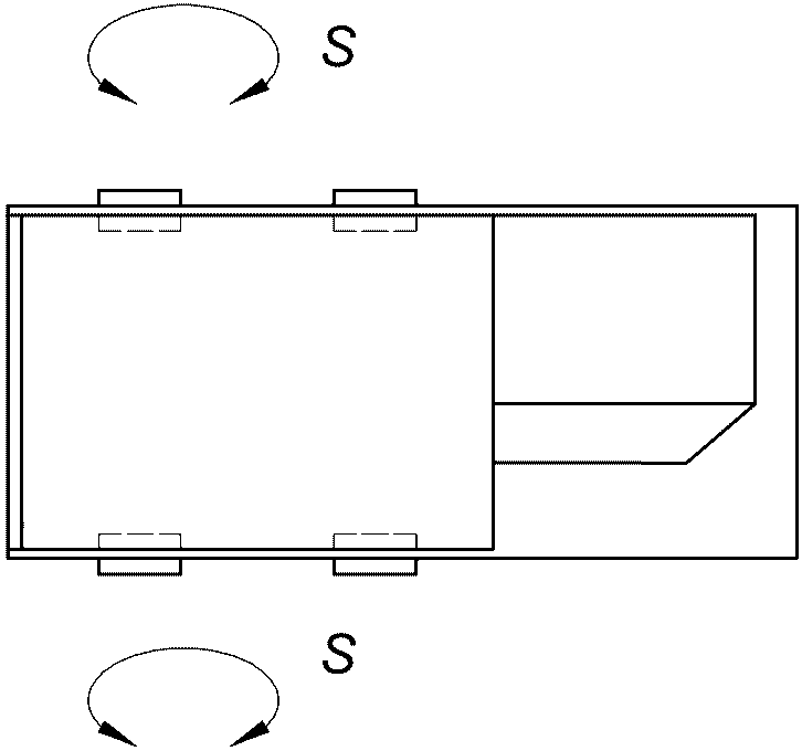
- рулевое управление бортами с колесным движителем, см. рисунок 13.
S - Управляемые колеса
Рисунок 8 - Рулевое управление передними колесами
T - Центр поворота
Рисунок 9 - Управление шарнирно-сочлененной рамой
S - Управляемые колеса
Рисунок 10 - Управление задними колесами
S - Управляемые колеса
Рисунок 11 - Управление всеми колесами
S - Управляемые гусеницы
Рисунок 12 - Управление бортами с гусеничным движителем
S - Управляемые колеса
Рисунок 13 - Управление бортами с колесным движителем
4.1.3 По системе привода:
- привод на задние колеса, см. рисунок 14;
- привод на все колеса, см. рисунок 15;
- привод на центральную ось, см. рисунок 16;
- гусеничный привод, см. рисунок 17.
D - Приводные колеса
Рисунок 14 - Привод на задние колеса
D - Приводные колеса
Рисунок 15 - Привод на все колеса
D - Приводные колеса
Рисунок 16 - Привод на центральную ось
Рисунок 17 - Гусеничный привод
4.1.4 По количеству осей:
- двухосные, см. рисунок 18;
- трехосные, см. рисунок 19;
- с числом осей более трех, см. рисунок 20.
Рисунок 18 - Двухосный самосвал
Рисунок 19 - Трехосный самосвал
Рисунок 20 - Самосвальный полуприцеп
с числом осей более трех
4.1.5 По методу самозагрузки:
- кузовная загрузка, см. рисунок 21;
- загрузка вспомогательным ковшом, см. рисунок 22.
Рисунок 21 - Кузовная загрузка
Рисунок 22 - Загрузка вспомогательным ковшом
4.1.6 По рабочему месту оператора:
- рабочее место оператора сзади, см. рисунок 23;
- рабочее место оператора спереди, см. рисунок 24;
- реверсивное рабочее место оператора, см. рисунок 25.
Рисунок 23 - Рабочее место оператора сзади
Рисунок 24 - Рабочее место оператора спереди
Рисунок 25 - Реверсивное рабочее место оператора
4.2 Габаритные размеры (см. ISO 6746-1)
4.2.1 Самосвалы
Основные размеры указаны на рисунке 26. Дополнительные сведения о размерах, термины и условные обозначения самосвалов приведены в приложении A.
a) Жесткая рама
Рисунок 26, лист 1 - Размеры базовой машины. Самосвал
Рисунок 26, лист 2
4.2.2 Мини-самосвалы
Основные размеры указаны на рисунках 27 - 31. Дополнительные сведения о размерах, а также термины и условные обозначения, относящиеся только к мини-самосвалам, даны в приложении B.
Рисунок 27 - Размеры четырехколесного мини-самосвала
Рисунок 28 - Размеры восьмиколесного мини-самосвала
Рисунок 29 - Размеры гусеничного мини-самосвала.
Рабочее место оператора сзади
Рисунок 30 - Размеры гусеничного мини-самосвала.
Рабочее место оператора спереди
Рисунок 31 - Размеры мини-самосвала с самозагрузкой
4.3 Весовые параметры
См. ISO 6016.
4.4 Номенклатура узлов и агрегатов
Узлы и агрегаты двухосного самосвала с задней разгрузкой, см. рисунок 32.
Узлы и агрегаты двух- и четырехколесных тягачей, см. рисунок 33.
Узлы и агрегаты полуприцепов, см. рисунок 34.
Узлы и агрегаты колесных мини-самосвалов, см. рисунки 35 и 36.
Узлы и агрегаты гусеничных мини-самосвалов, см. рисунки 37 и 38.
1 - бампер; 2 - цапфа буксирного устройства; 3 - кабина;
4 - крыло; 5 - колесо; 6 - шина; 7 - тормозное устройство;
8 - штанга, выталкиватель камней; 9 - подвеска
(факультативно); 10 - палец, цапфа поворота кузова;
11 - ось (оси); 12 - опорная стойка (при поднятом кузове);
13 - кузов; 14 - гидроцилиндр разгрузки; 15 - трансмиссия;
16 - выхлопная труба в атмосферу или прогрев кузова;
17 - навес; 18 - основная рама; 19 - капот; 20 - трап;
21 - силовая установка; 22 - ограждающая решетка
Рисунок 32 - Узлы и агрегаты двухосного самосвала
с задней разгрузкой
1 - бампер; 2 - тяговый крюк; 3 - защита днища; 4 - основная
рама; 5 - крыло; 6 - шкворень; 7 - прицепное устройство;
8 - ось шарнира; 9 - шарнир прицепного устройства;
10 - оси переднего и заднего шарниров
Рисунок 33 - Узлы и агрегаты двух- и четырехколесных тягачей
1 - корпус поворотного шкворня; 2 - гусек; 3 - кузов;
4 - створки; 5 - основная рама; 6 - бампер; 7 - тяговая
рама; 8 - выталкиватель; 9 - задний откидной борт;
10 - гидроцилиндр разгрузки
Рисунок 34 - Узлы и агрегаты полуприцепов
1 - крыло; 2 - колесо; 3 - шина; 4 - тормозная система;
5 - ось и корпус шарнира; 6 - ось (оси); 7 - кузов;
8 - гидроцилиндр; 9 - трансмиссия; 10 - основная рама;
11 - капот; 12 - энергетическая установка
Рисунок 35 - Узлы и агрегаты двухосных
колесных мини-самосвалов
1 - крыло; 2 - колесо; 3 - шина; 4 - тормозная система;
5 - ось и корпус шарнира; 6 - ось; 7 - кузов;
8 - гидроцилиндр; 9 - трансмиссия; 10 - основная рама;
11 - капот; 12 - энергетическая установка; 13 - ограждение;
14 - кожух, цепной привод; 15 - задний откидной борт
Рисунок 36 - Узлы и агрегаты колесных мини-самосвалов
с числом осей более трех
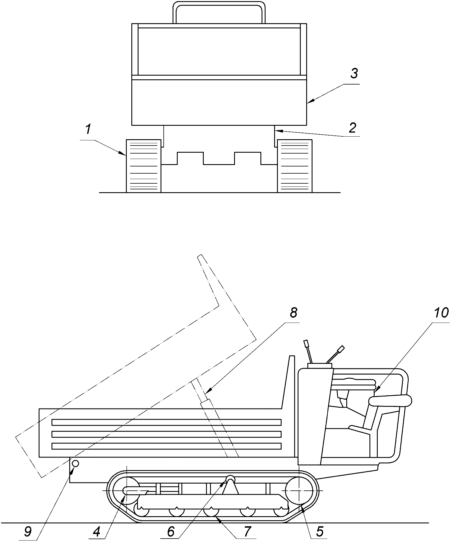
1 - гусеница; 2 - основная рама; 3 - кузов; 4 - ленивец;
5 - приводная звездочка; 6 - поддерживающий ролик; 7 - ролик
гусеницы; 8 - гидроцилиндр разгрузки; 9 - ось шарнира
кузова; 10 - энергетическая установка
Рисунок 37 - Узлы и агрегаты гусеничных
мини-самосвалов без навеса
1 - навес; 2 - основная рама; 3 - силовая установка;
4 - резиновая гусеница; 5 - стальная гусеница; 6 - приводная
звездочка; 7 - ленивец; 8 - нижний опорный ролик;
9 - верхний опорный ролик; 10 - ролик; 11 - кузов;
12 - гидроцилиндр разгрузки; 13 - ось и корпус шарнира;
14 - задний откидной борт
Рисунок 38 - Узлы гусеничных мини-самосвалов с навесом
5 Технические характеристики
Для самосвалов приводят нижеперечисленные технические характеристики. Настоящий стандарт приводит соответствующие характеристики и методы испытаний:
a) полезная мощность (двигателя): см. ISO 9249;
b) максимальная скорость движения: см. ISO 6014;
c) тяговое усилие (3.2.1):
1) тяговое усилие самосвала с механической трансмиссией (3.2.1.1),
2) тяговое усилие самосвала с бесступенчатой трансмиссией, электрическим или гидростатическим приводом (3.2.1.2);
d) время подъема и опускания незагруженного кузова (3.2.2);
e) управляемость:
1) радиус поворота: см. ISO 7457,
2) габаритный диаметр поворота машины: см. ISO 7457;
f) тормозные свойства: см. ISO 3450;
g) полезная нагрузка (3.2.3).
6 Эксплуатационные показатели для коммерческой документации (в системе СИ)
6.1 Двигатель
Приводят следующие данные:
a) изготовитель и модель;
b) тип воспламенения: от сжатия (дизель) или искровое;
c) тип цикла (двух- или четырехтактный);
d) без наддува, с механическим компрессором или с турбокомпрессором, с охлаждением надувочного воздуха или без него;
e) число цилиндров;
f) диаметр цилиндра;
g) ход поршня;
h) рабочий объем;
i) система охлаждения (воздушная или жидкостная);
j) тип топлива;
k) полезная мощность: ________ при ________ об/мин;
l) максимальный крутящий момент: ________ при ________ об/мин;
m) тип стартера;
n) электрическая система: ________ В.
6.2 Трансмиссия
Приводят описание типа трансмиссии, например:
- механическая, со сцеплением;
- гидродинамическая;
- гидростатическая;
- электрическая;
- число передач, вперед и назад;
- скорость движения (вперед и назад).
Необходимо предоставить номограмму зависимости колесной тяги от скорости.
6.3 Ведущая ось (оси)
Приводят описание типа осей, например:
- управляемая;
- фиксированная и/или подъемная;
- с гидростатическим приводом;
- с электрическим приводом;
- тип главной передачи (центральная косозубая шестерня с полуосями);
- дифференциал: стандартный, повышенного трения или с блокировкой;
- планетарный редуктор.
6.4 Рулевое управление
6.4.1 Тип рулевого управления
Приводят описание типа рулевого управления согласно ISO 5010, например:
- управление шарнирно-сочлененной рамой;
- управление передними колесами;
- управление задними колесами;
- управление всеми колесами;
- управление бортами с гусеничным движителем;
- управление с усилителем, ручное, гидростатическое;
- аварийная система рулевого управления.
6.4.2 Эксплуатационные свойства
Приводят следующие данные:
- радиус поворота: ________, влево и вправо;
- габаритный диаметр поворота машины: ________.
6.5 Тормозные системы
6.5.1 Рабочий тормоз
Приводят описание типа, например:
- тип тормоза (барабанный, дисковый, мокрый или сухой);
- тип рабочей тормозной системы (механическая, пневматическая, гидравлическая, электрическая, комбинированная и т.д.).
6.5.2 Стояночный тормоз
Приводят описание типа стояночной тормозной системы.
6.5.3 Резервный тормоз
Приводят описание типа резервной тормозной системы.
6.5.4 Тормоз-замедлитель
Приводят описание:
- типа тормоза-замедлителя;
- системы приведения его в действие.
6.5.5 Тормозные свойства
Приводят данные в соответствии с требованиями ISO 3450.
6.6 Колеса и шины
Приводят следующие данные:
- размер и тип;
- число слоев корда;
- размер обода.
6.7 Гидравлическая система
6.7.1 Время разгрузки и возврата кузова
Приводят следующие данные:
- производительность гидравлического насоса: _______ при ________ давлении и оборотах двигателя ________ об/мин;
- давление настройки предохранительного клапана: ________;
- тип гидравлического насоса;
- гидроцилиндры подъема кузова: число, тип;
- время разгрузки и возврата кузова.
6.7.2 Рулевое управление
Приводят следующие данные:
- производительность гидравлического насоса ________ при ________ давлении: ________;
- тип гидравлического насоса;
- давление настройки предохранительного клапана: ________.
6.8 Подвеска
Приводят описание для каждого колеса, оси в сборе или машины полностью.
6.8.1 Тип
Приводят описание типа подвески, например:
- механическая пружинная или на листовых рессорах;
- телескопические амортизаторы: газонаполненные, масляные, комбинированные;
- с упругим элементом;
- пневматическая.
6.8.2 Энергоемкость
Приводят данные о рабочих ходах подвески.
6.8.3 Прогиб от нагрузки
- загруженный самосвал;
- незагруженный самосвал.
6.9 Кузов
6.9.1 Номинальная вместимость кузова
Приводят данные номинального объема кузова в кубических метрах в соответствии с требованиями ISO 6483.
6.9.2 Способ самозагрузки
Приводят данные о применяемом методе самозагрузки:
- кузовная загрузка;
- загрузка вспомогательным ковшом.
6.10 Рабочее место оператора
Приводят данные о рабочем месте оператора:
- рабочее место оператора сзади;
- рабочее место оператора спереди;
- реверсивное рабочее место оператора.
6.11 Распределение масс
Приводят следующие данные:
a) распределение снаряженной массы:
- на переднюю ось,
- ведущую ось,
- ось полуприцепа;
b) снаряженная масса;
c) номинальная грузоподъемность;
d) распределение полной массы:
- на переднюю ось,
- ведущую ось,
- ось полуприцепа;
e) полная масса.
6.12 Заправочные объемы
Приводят данные о заправочных объемах:
- топливного бака;
- картера двигателя;
- системы охлаждения;
- гидравлической системы;
- трансмиссии;
- дифференциала;
- главной передачи.
6.13 Габаритные размеры самосвалов
Приводят чертеж общего вида с указанием следующих размеров (например):
- общая максимальная высота без кузова;
- дорожный просвет под осями;
- дорожный просвет под днищем кузова при закрытых откидных бортах;
- дорожный просвет при открытых откидных бортах;
- высота загрузки;
- высота при поднятом кузове;
- высота разгрузки;
- максимальная высота с кузовом;
- максимальная ширина;
- колея;
- максимальная длина;
- колесная база;
- межосевое расстояние между осями сдвоенной тележки;
- радиус поворота;
- габаритный диаметр поворота.
Приложение A
(обязательное)
РАЗМЕРЫ И УСЛОВНЫЕ ОБОЗНАЧЕНИЯ САМОСВАЛОВ
Условное обозначение
Термины и определения
Номер рисунка
H11
Высота загрузки: Расстояние по координате Z между базовой плоскостью грунта (GRP) и верхней точкой заднего борта незагруженного кузова в положении загрузки
H12
Высота кузова в положении разгрузки: Расстояние по координате Z между GRP и верхней точкой кузова самосвала, поднятого в крайнее верхнее положение
H13
Высота задней или боковой разгрузки: Расстояние по координате Z между GRP и низшей точкой кузова самосвала, поднятого в крайнее верхнее положение
H14
Максимальная высота кузова самосвала или сцепного устройства: Расстояние по координате Z от GRP до верхней точки кузова или сцепного устройства при установке незагруженного кузова в положение загрузки с устройством защиты от просыпающегося материала, если самосвал оборудован этим устройством
L8
Колесная база прицепа: Расстояние по координате X между двумя плоскостями X, проходящими через центры задних колес тягача и задними колесами прицепа. Для машин со сдвоенной задней тележкой за центр колес принимают линию, проходящую посередине расстояния между двумя осями колес сдвоенной тележки
L9
Расстояние между осями колес сдвоенной тележки: Расстояние по координате X между плоскостями X, проходящими через центры переднего и заднего колес сдвоенной тележки
L10
Длина грузовой части кузова: Расстояние по координате X между двумя плоскостями X, проходящими через крайнюю внутреннюю точку задней части кузова и крайнюю внутреннюю точку передней грузовой части кузова
A7
Угол разгрузки кузова с задней загрузкой: Угол на плоскости Y между днищем кузова, поднятого в крайнее верхнее положение, и GRP
Примечание - Координаты X, Y, Z, а также GRP определены в ISO 6746-1.
Приложение B
(обязательное)
РАЗМЕРЫ И УСЛОВНЫЕ ОБОЗНАЧЕНИЯ МИНИ-САМОСВАЛОВ
Условное обозначение
Термины и определения
Номер рисунка
H11
Высота загрузки: Расстояние по координате Z между базовой плоскостью грунта (GRP) и верхней точкой заднего борта незагруженного кузова в положении загрузки
H12
Высота кузова в положении разгрузки: Расстояние по координате Z между GRP и верхней точкой кузова мини-самосвала, поднятого в крайнее верхнее положение
H13
Высота разгрузки: Расстояние по координате Z между GRP и низшей точкой кузова мини-самосвала, поднятого в крайнее верхнее положение
H23
Высота самозагрузки: Расстояние по координате Z между GRP и верхней точкой устройства самозагрузки
L14
Дистанция разгрузки: Расстояние по координате X между внешней поверхностью передних колес и передним краем кузова, поднятом в крайнее верхнее положение
A13
Задний угол самозагрузка: Максимальный угол, на который поворачивается задняя часть ковша ниже горизонтальной линии в крайнем верхнем положении
A14
Передний угол самозагрузка: Максимальный угол, на который поворачивается днище ковша ниже горизонтальной линии, в положении ковша, полностью повернутого вперед, A14 < 30°
L15
Плечо самозагрузка: Максимальное расстояние по координате X между передней кромкой кузова и передней кромкой ковша при его максимальном вылете вперед L15 < 200 мм
Примечание - Координаты X и Z, а также GRP определены в ISO 6746-1.
Приложение ДА
(справочное)
СВЕДЕНИЯ О СООТВЕТСТВИИ ССЫЛОЧНЫХ МЕЖДУНАРОДНЫХ СТАНДАРТОВ
МЕЖГОСУДАРСТВЕННЫМ СТАНДАРТАМ
Таблица ДА.1
Обозначение ссылочного международного стандарта
Степень соответствия
Обозначение и наименование соответствующего межгосударственного стандарта
ISO 3450
-
ISO 5010
IDT
ГОСТ ISO 5010-2011 "Машины землеройные. Системы рулевого управления колесных машин"
ISO 6014:1986
MOD
ГОСТ 27927-88 (ИСО 6014-1986) "Машины землеройные. Определение скорости движения"
ISO 6016:1998
MOD
ГОСТ 27922-88 (ИСО 6016-1998) "Машины землеройные. Методы измерения масс машин в целом, рабочего оборудования и составных частей"
ISO 6165
-
ИС МЕГАНОРМ: примечание.
В официальном тексте документа, видимо, допущена опечатка: ГОСТ 27923-88 имеет название "Машины землеройные. Кузовы землевозов (самосвалов). Расчет вместимости".
ISO 6483:1980
MOD
ГОСТ 27923-88 (ИСО 6483-1980) "Машины землеройные. Кузовы землевозов. Расчет вместимости"
ISO 6746-1
MOD
ГОСТ 28633-90 (ИСО 6746-1-87) "Машины землеройные. Определения размеров и коды. Часть 1. Базовая машина"
ИС МЕГАНОРМ: примечание.
В официальном тексте документа, видимо, допущена опечатка: ГОСТ 27257-87 имеет название "Машины землеройные. Методы определения параметров поворота колесных машин".
ISO 7457:1997
MOD
ГОСТ 27257-87 (ИСО 7457-1997) "Машины землеройные. Определение размеров поворота колесных машин"
ISO 9249:1997
MOD
ГОСТ 30687-2000 (ИСО 9249-1997) "Машины землеройные. Правила испытаний двигателей. Полезная мощность"
<*> Соответствующий межгосударственный стандарт отсутствует. До его утверждения рекомендуется использовать перевод на русский язык данного международного стандарта.
Примечание - В настоящей таблице использованы следующие условные обозначения степени соответствия стандартов:
- IDT - идентичный стандарт;
- MOD - модифицированные стандарты.
УДК 621.869.4-788:629.614.006.354
МКС 01.040.53
IDT
Ключевые слова: землеройные машины, самосвалы, терминология и торговые спецификации