Главная // Актуальные документы // ГОСТ (Государственный стандарт)СПРАВКА
Источник публикации
М.: Стандартинформ, 2020
Примечание к документу
Документ
введен в действие с 01.06.2022.
Название документа
"ГОСТ 33966.1-2020 (EN 115-1:2017). Межгосударственный стандарт. Эскалаторы и пассажирские конвейеры. Часть 1. Требования безопасности к устройству и установке"
(введен в действие Приказом Росстандарта от 30.10.2020 N 997-ст)
"ГОСТ 33966.1-2020 (EN 115-1:2017). Межгосударственный стандарт. Эскалаторы и пассажирские конвейеры. Часть 1. Требования безопасности к устройству и установке"
(введен в действие Приказом Росстандарта от 30.10.2020 N 997-ст)
Приказом Федерального
агентства по техническому
регулированию и метрологии
от 30 октября 2020 г. N 997-ст
МЕЖГОСУДАРСТВЕННЫЙ СТАНДАРТ
ЭСКАЛАТОРЫ И ПАССАЖИРСКИЕ КОНВЕЙЕРЫ
ЧАСТЬ 1
ТРЕБОВАНИЯ БЕЗОПАСНОСТИ К УСТРОЙСТВУ И УСТАНОВКЕ
Escalators and moving walks. Part 1. Safety requirements
for construction and installation
(EN 115-1:2017, Safety of escalators and moving walks -
Part 1: Construction and installation, MOD)
ГОСТ 33966.1-2020
(EN 115-1:2017)
Дата введения
1 июня 2022 года
Цели, основные принципы и общие правила проведения работ по межгосударственной стандартизации установлены
ГОСТ 1.0 "Межгосударственная система стандартизации. Основные положения" и
ГОСТ 1.2 "Межгосударственная система стандартизации. Стандарты межгосударственные, правила и рекомендации по межгосударственной стандартизации. Правила разработки, принятия, обновления и отмены"
1 ПОДГОТОВЛЕН Ассоциацией "Российское лифтовое объединение" (Ассоциация "РЛО"), Закрытым акционерным обществом "Эскомстроймонтаж-сервис" (ЗАО "Эс-сервис"), Федеральным государственным унитарным предприятием "Российский научно-технический центр информации по стандартизации, метрологии и оценке соответствия" (ФГУП "СТАНДАРТИНФОРМ") на основе официального перевода на русский язык англоязычной версии указанного в
пункте 5 стандарта, который выполнен ФГУП "СТАНДАРТИНФОРМ"
2 ВНЕСЕН Федеральным агентством по техническому регулированию и метрологии
3 ПРИНЯТ Межгосударственным советом по стандартизации, метрологии и сертификации (протокол от 30 сентября 2020 г. N 133-П)
За принятие проголосовали:
Краткое наименование страны по МК (ИСО 3166) 004-97 | Код страны по МК (ИСО 3166) 004-97 | Сокращенное наименование национального органа по стандартизации |
Армения | AM | ЗАО "Национальный орган по стандартизации и метрологии" Республики Армения |
Беларусь | BY | Госстандарт Республики Беларусь |
Киргизия | KG | Кыргызстандарт |
Россия | RU | Росстандарт |
Узбекистан | UZ | Узстандарт |
4 Приказом Федерального агентства по техническому регулированию и метрологии от 30 октября 2020 г. N 997-ст межгосударственный стандарт ГОСТ 33966.1-2020 (EN 115-1:2017) введен в действие в качестве национального стандарта Российской Федерации с 1 июня 2022 г.
5 Настоящий стандарт является модифицированным по отношению к стандарту EN 115-1:2017 "Безопасность эскалаторов и пассажирских конвейеров. Часть 1. Устройство и установка" ("Safety of escalators and moving walks - Part 1: Construction and installation", MOD) путем изменения его структуры для приведения в соответствие с правилами, установленными в ГОСТ 1.5 (
подразделы 4.2 и
4.3); путем включения в текст дополнительных слов, фраз, показателей, терминологических статей, пунктов, ссылок для учета потребностей национальных экономик стран, указанных выше, и/или особенностей межгосударственной стандартизации, которые выделены в тексте курсивом.
Наименование настоящего стандарта изменено относительно наименования указанного стандарта для приведения в соответствие с ГОСТ 1.5
(подраздел 3.6).
Сведения о соответствии ссылочных межгосударственных стандартов международным стандартам, использованным в качестве ссылочных в примененном стандарте EN 115-1, приведены в дополнительном
приложении ДА.
Сопоставление структуры настоящего стандарта со структурой указанного стандарта приведено в дополнительном
приложении ДБ
6 Настоящий стандарт может быть применен на добровольной основе для соблюдения требований Технического регламента Таможенного союза
ТР ТС 010/2011 "О безопасности машин и оборудования"
Информация о введении в действие (прекращении действия) настоящего стандарта и изменений к нему на территории указанных выше государств публикуется в указателях национальных стандартов, издаваемых в этих государствах, а также в сети Интернет на сайтах соответствующих национальных органов по стандартизации.
В случае пересмотра, изменения или отмены настоящего стандарта соответствующая информация будет опубликована на официальном интернет-сайте Межгосударственного совета по стандартизации, метрологии и сертификации в каталоге "Межгосударственные стандарты"
Настоящий стандарт предназначен для:
- проектировщиков, изготовителей и поставщиков эскалаторов и пассажирских конвейеров;
- органов по сертификации и испытательных лабораторий;
- монтажных и эксплуатирующих организаций;
- владельцев эскалаторов и пассажирских конвейеров;
- владельцев и проектировщиков зданий и сооружений, в которых устанавливаются эскалаторы и пассажирские конвейеры.
Цель настоящего стандарта - установить требования по обеспечению безопасности людей и объектов при монтаже, оценке соответствия, эксплуатации, техническом обслуживании, ремонте и модернизации эскалаторов и пассажирских конвейеров.
В настоящем стандарте приведены меры, направленные на устранение или уменьшение до приемлемого уровня рисков, связанных с опасностями, перечисленными в
разделе 4.
Настоящий стандарт не препятствует разработке новых конструкций эскалаторов и пассажирских конвейеров при условии соответствия их конструкции установленному настоящим стандартом уровню безопасности. Для оценки безопасности решений, ситуаций или событий, касающихся эскалаторов и пассажирских конвейеров, на которые не распространяется настоящий стандарт (например, принципиально новых технических решений), следует применять процедуру анализа и снижения риска, установленную в нормативных документах государств, указанных в предисловии, проголосовавших за принятие настоящего стандарта.
Особые требования к эскалаторам и пассажирским конвейерам, обусловленные их загруженностью в условиях эксплуатации, учтены в настоящем стандарте введением понятия "режим работы" эскалатора или пассажирского конвейера (нормальный и тяжелый) (см.
5.2.5).
Особые требования сформулированы на основании требований EN 115-1, предъявляемых к эскалаторам и пассажирским конвейерам для общественного транспорта, и требований к эскалаторам метрополитенов, установленных в нормативных документах государств, проголосовавших за принятие настоящего стандарта.
Настоящий стандарт основывается на предположении о том, что лица, использующие эскалаторы и пассажирские конвейеры, способны это делать без посторонней помощи. Для обеспечения безопасности лица с ограничениями физических возможностей, при которых самостоятельное использование эскалаторов и пассажирских конвейеров затруднительно, должны использовать помощь сопровождающих, а лица в инвалидных колясках - помощь проинструктированного персонала. Если для транспортирования лиц с ограниченными физическими возможностями предусмотрены другие подъемники, например лифты, то путь доступа к ним должен быть четко обозначен с использованием указателей, расположенных в удобных местах перед входами на эскалатор или пассажирский конвейер.
Транспортирование на эскалаторах и пассажирских конвейерах громоздких предметов, представляющих опасность для пассажиров, должно быть запрещено. Исключение составляют багажные и покупательские тележки специальной конструкции в торговых центрах (см.
B.3, приложение B).
Риски, связанные с расположением эскалаторов и пассажирских конвейеров внутри здания или сооружения (например, препятствия или проемы, прилегающие к эскалаторам) должны быть оценены проектировщиком/владельцем здания или сооружения на этапе его проектирования с использованием упомянутой выше методологии анализа и снижения риска для устранения опасностей или для снижения риска до приемлемого уровня. Размеры машинных помещений и проходов в зоне обслуживания (при их наличии) следует проектировать с учетом соблюдения эргономических требований к рабочим местам для обслуживания механизмов и узлов эскалатора или пассажирского конвейера и обеспечения эффективности рабочего процесса. Вышеуказанные риски не являются областью ответственности изготовителя/поставщика эскалатора или пассажирского конвейера.
При заключении каждого договора на поставку (контракта) между заказчиком и поставщиком или организацией, осуществляющей установку, согласовывают:
1) назначение и режим работы эскалатора или пассажирского конвейера;
2) условия окружающей среды;
3) технические особенности здания, сооружения;
4) другие аспекты, связанные с местом установки.
Ответственным за планирование пассажиропотоков и составление плана эвакуации/спасательных работ является владелец сооружения.
Если эскалаторы или пассажирские конвейеры предназначены для эксплуатации в особых условиях, таких как непосредственное атмосферное воздействие или взрывоопасная среда, или в исключительных случаях они должны служить в качестве аварийных выходов или использоваться для транспортирования грузов, следует использовать соответствующие критерии проектирования, комплектующие, материалы и инструкции по применению, которые отвечают этим конкретным особым условиям. Оценку рисков, вызванных этими особыми условиями, следует проводить в соответствии с упомянутой выше методологией анализа и снижения риска.
Применение положений настоящего стандарта на добровольной основе может быть использовано при подтверждении и оценке соответствия эскалаторов и пассажирских конвейеров требованиям Технического регламента Таможенного союза
ТР ТС 010/2011 "О безопасности машин и оборудования".
1.1 Настоящий стандарт устанавливает общие требования безопасности к устройству и установке вновь изготавливаемых эскалаторов и пассажирских конвейеров (пластинчатых или ленточных).
1.2 Настоящий стандарт распространяется на все значительные опасности, опасные ситуации и события, имеющие отношение к эскалаторам и пассажирским конвейерам, когда их используют по назначению, а также в условиях неправильного использования, которые изготовитель может обоснованно спрогнозировать (см.
раздел 4).
1.3 Рекомендуется использовать настоящий стандарт при модернизации эскалаторов и пассажирских конвейеров, изготовленных до даты его введения.
В настоящем стандарте использованы нормативные ссылки на следующие межгосударственные стандарты:
ГОСТ 2.601 Единая система конструкторской документации. Эксплуатационные документы
ГОСТ 263 Резина. Метод определения твердости по Шору A
ГОСТ ISO 3864-1 Графические символы. Сигнальные цвета и знаки безопасности. Часть 1. Принципы проектирования знаков и сигнальной разметки
ГОСТ ISO 12100 Безопасность машин. Основные принципы конструирования. Оценки риска и снижения риска
ГОСТ 14254 (IEC 60529:2013) Степени защиты, обеспечиваемые оболочками (Код IP)
ГОСТ 23752 Платы печатные. Общие технические условия
ГОСТ 26246.10 (МЭК 249-2-11-87) Материал электроизоляционный фольгированный тонкий общего назначения для многослойных печатных плат на основе стеклоткани, пропитанной эпоксидным связующим. Технические условия
ГОСТ 26246.14 (МЭК 249-3-1-81) Материалы электроизоляционные фольгированные для печатных плат. Склеивающая прокладка, используемая при изготовлении многослойных печатных плат. Технические условия
ГОСТ 28203-89 (МЭК 68-2-6-82) Основные методы испытаний на воздействие внешних факторов. Часть 2. Испытания. Испытание Fc и руководство: Вибрация (синусоидальная)
ГОСТ 28209 (МЭК 68-2-14-84) Основные методы испытаний на воздействие внешних факторов. Часть 2. Испытания. Испытание N: Смена температуры
ГОСТ 28213-89 (МЭК 68-2-27-87) Основные методы испытаний на воздействие внешних факторов. Часть 2. Испытания. Испытание Ea и руководство: Одиночный удар
ГОСТ 28215 (МЭК 68-2-29-87) Основные методы испытаний на воздействие внешних факторов. Часть 2. Испытания. Испытание Eb и руководство: Многократные удары
ГОСТ 29283 (МЭК 747-5-84) Полупроводниковые приборы. Дискретные приборы и интегральные схемы. Часть 5. Оптоэлектронные приборы
ГОСТ 30030 (МЭК 742-
83) Трансформаторы разделительные и безопасные разделительные трансформаторы. Технические требования
ГОСТ IEC 60227-3 Кабели с поливинилхлоридной изоляцией на номинальное напряжение до 450/750 В включительно. Кабели без оболочки для стационарной прокладки
ГОСТ IEC 60227-4 Кабели с поливинилхлоридной изоляцией на номинальное напряжение до 450/750 В включительно. Кабели в оболочке для стационарной прокладки
ГОСТ IEC 60227-5 Кабели с поливинилхлоридной изоляцией на номинальное напряжение до 450/750 В включительно. Часть 5. Гибкие кабели (шнуры)
ГОСТ IEC 60227-6 Кабели с поливинилхлоридной изоляцией на номинальное напряжение до 450/750 В включительно. Лифтовые кабели и кабели для гибких соединений
ГОСТ IEC 60947-5-1-2014 Аппаратура распределения и управления низковольтная. Часть 5-1. Аппараты и коммутационные элементы цепей управления. Электромеханические устройства цепей управления
Примечание - При пользовании настоящим стандартом целесообразно проверить действие ссылочных стандартов и классификаторов на официальном интернет-сайте Межгосударственного совета по стандартизации, метрологии и сертификации (www.easc.by) или по указателям национальных стандартов, издаваемым в государствах, указанных в предисловии, или на официальных сайтах соответствующих национальных органов по стандартизации. Если на документ дана недатированная ссылка, то следует использовать документ, действующий на текущий момент, с учетом всех внесенных в него изменений. Если заменен ссылочный документ, на который дана датированная ссылка, то следует использовать указанную версию этого документа. Если после принятия настоящего стандарта в ссылочный документ, на который дана датированная ссылка, внесено изменение, затрагивающее положение, на которое дана ссылка, то это положение применяется без учета данного изменения. Если ссылочный документ отменен без замены, то положение, в котором дана ссылка на него, применяется в части, не затрагивающей эту ссылку.
3 Термины, определения и обозначения
3.1 Термины и определения
В настоящем стандарте применены термины по
ГОСТ ISO 12100, а также следующие термины с соответствующими определениями:
Общие термины
3.1.1 эскалатор: Подъемно-транспортная машина, представляющая собой наклонную непрерывно движущуюся лестницу с электромеханическим приводом для подъема или спуска пассажиров, у которой несущая поверхность ступеней остается горизонтальной.
3.1.2 пассажирский конвейер: Подъемно-транспортная машина с электромеханическим приводом для перемещения пассажиров, в которой непрерывная несущая поверхность пластин или ленты остается параллельной направлению ее движения.
Основные параметры и размеры
3.1.3 высота транспортирования пассажиров (высота подъема): Расстояние по вертикали между горизонтальными уровнями верхней и нижней входных площадок.
3.1.4 угол наклона: Максимальный угол относительно горизонтали, под которым движутся ступени, пластины или лента.
3.1.5 наклонная база эскалатора: Плоскость, проходящая по передним кромкам гребней настилов ступеней в наклонной части эскалатора.
3.1.6 горизонтальная верхняя/нижняя база эскалатора: Плоскость, проходящая по горизонтальной поверхности входных площадок верхнего/нижнего сооружения.
3.1.7 вертикальная верхняя/нижняя база эскалатора: Вертикальная плоскость, проходящая через линию пересечения наклонной базы с горизонтальной базой.
3.1.8 номинальная скорость: Скорость движения ступеней, пластин или ленты при работе без нагрузки в установившемся режиме при номинальной частоте тока и номинальном напряжении, указанная изготовителем как скорость, на которую рассчитан эскалатор или пассажирский конвейер.
3.1.9 ремонтная скорость: Скорость движения ступеней, пластин или ленты ниже номинальной, используемая при выполнении работ по техническому обслуживанию или ремонту.
3.1.10 провозная способность: Наибольшее число пассажиров, которое может быть перемещено эскалатором или пассажирским конвейером в единицу времени.
3.1.11 максимальная эксплуатационная нагрузка: Наибольшая нагрузка от пассажиров на 1 м длины несущего полотна или поручня.
3.1.12 использование по назначению в режиме ожидания: Режим, при котором эскалатор или пассажирский конвейер останавливается или замедляет движение при отсутствии пассажиров и автоматически запускается или ускоряется до номинальной скорости при подходе пассажира к входной площадке.
3.1.13 ширина несущего полотна: Расстояние по внешним боковым торцам настила ступени, пластины или ленты.
3.1.14 высота ступени эскалатора: Расстояние между верхними поверхностями настилов двух смежных ступеней на наклонном участке лестничного полотна.
3.1.15 глубина ступени/пластины: Расстояние между передним и задним торцами настила ступени/пластины.
Привод
3.1.16 привод эскалатора/конвейера: Электромеханический привод, предназначенный для перемещения несущего полотна.
3.1.17 вспомогательный привод: Электромеханический привод, предназначенный для перемещения несущего полотна с ремонтной скоростью.
Примечание -
Применяется, если ремонтная скорость не обеспечивается электромеханическим приводом по 3.1.16 или ручным приводом по 3.1.18.
3.1.18 ручной привод: Привод, предназначенный для перемещения несущего полотна вручную.
Тормоза
3.1.19 рабочий тормоз: Устройство, предназначенное для остановки несущего полотна при отключении электродвигателя.
3.1.20 дополнительный тормоз: Устройство, предназначенное для остановки несущего полотна при превышении им номинальной скорости или самопроизвольном изменении направления движения, а также при превышении максимального допустимого тормозного пути рабочего тормоза.
Лестничное/пластинчатое полотно, лента
3.1.21 несущее полотно: Лестничное полотно эскалатора, пластинчатое полотно или лента пассажирского конвейера, предназначенные для перемещения пассажиров.
3.1.22 лестничное полотно эскалатора: Грузонесущий элемент эскалатора, состоящий из ступеней, объединенных тяговыми цепями.
3.1.23 ступень: Часть лестничного полотна эскалатора, предназначенная для размещения пассажиров.
3.1.24 пластинчатое полотно конвейера: Грузонесущий элемент пластинчатого пассажирского конвейера, состоящий из пластин, объединенных тяговыми цепями.
3.1.25 пластина: Часть пластинчатого полотна пассажирского конвейера, предназначенная для размещения пассажиров.
3.1.26 настил ступени/пластины: Рабочая рифленая поверхность ступени/пластины, во впадины которой входят зубья гребенки входной площадки.
3.1.27 подступенок ступени эскалатора: Деталь передней части ступени с рифленой поверхностью, во впадины которой входят зубья настила смежной ступени.
3.1.28 гребень настила ступени эскалатора: Съемный элемент настила ступени, расположенный над подступенком.
3.1.29 горизонтальный участок лестничного полотна эскалатора: Участок лестничного полотна перед входными площадками, предназначенный для обеспечения безопасного входа и выхода пассажиров.
3.1.30 перепад ступеней лестничного полотна: Разность уровней настилов двух смежных ступеней на горизонтальном участке.
3.1.31 основной бегунок ступени/пластины: Опора качения ступени/пластины по направляющим, связанная с тяговой цепью.
3.1.32 вспомогательный бегунок ступени/пластины: Опора качения ступени/пластины по направляющим, не связанная с тяговой цепью.
3.1.33 трасса лестничного/пластинчатого полотна: Совокупность направляющих, контрнаправляющих основных и вспомогательных бегунков ступеней/пластин, обеспечивающих перемещение лестничного/пластинчатого полотна по заданной траектории.
3.1.34 лента: Грузонесущий элемент ленточного пассажирского конвейера в виде бесконечной ленты с рифленой (в продольном направлении) наружной поверхностью, во впадины которой входят зубья гребенки входной площадки.
Входная площадка
3.1.35 гребенка входной площадки: Зубчатая секция входной площадки, зубья которой входят во впадины настила ступеней, пластин или ленты.
3.1.36 плита входной площадки: Несущая плита входной площадки, к которой крепятся гребенки.
Поручневое устройство
3.1.37 поручневое устройство: Совокупность блоков, направляющих, привода, натяжного устройства и поддерживающих роликов, обеспечивающих движение поручня по трассе.
3.1.38 поручень: Непрерывная лента, перемещающаяся по трассе поручневого устройства, предназначенная для опоры рук пассажиров.
3.1.39 устье поручня: Устройство, расположенное в месте входа поручня в балюстраду при переходе с рабочей на нерабочую ветвь.
3.1.40 борт поручня: Часть поручня, предназначенная для удержания поручня на трассе при его движении по рабочей ветви.
Балюстрада
3.1.41 балюстрада: Совокупность щитов, карнизов и других элементов, которые отделяют пассажиров от механизмов и металлоконструкций с целью обеспечения их безопасности и служат для создания интерьера.
3.1.42 карниз балюстрады: Элемент балюстрады, к которому крепятся направляющие поручня и щиты балюстрады.
3.1.43 фартук балюстрады: Нижняя вертикальная часть балюстрады, расположенная вдоль трассы несущего полотна на уровне ступеней, пластин или ленты (при необходимости может использоваться для регулирования зазора между ступенью и балюстрадой).
3.1.44 плинтус балюстрады: Элемент балюстрады, расположенный над фартуком, к которому крепятся щиты балюстрады.
3.1.45 внутренняя балюстрада: Часть балюстрады, расположенная с обеих сторон несущего полотна между фартуком или плинтусом и карнизом.
3.1.46 средняя балюстрада: Часть балюстрады, расположенная между карнизами двух смежных эскалаторов.
3.1.47 крайняя балюстрада: Часть балюстрады, расположенная между карнизом крайнего эскалатора и строительными сооружениями.
3.1.48 наружная балюстрада: Часть балюстрады, расположенная в местах входа и выхода пассажиров, примыкающая к полу вестибюля и к крайней балюстраде в случае выполнения последней свободностоящей.
3.1.49 штапик балюстрады: Элемент балюстрады, закрывающий зазор между смежными щитами балюстрады.
3.1.50
дефлектор: Устройство, снижающее риск защемления предметов между ступенями и фартуком.
Система безопасности
3.1.51 электрическая система безопасности: Часть электрической системы управления, обеспечивающая безопасность и представляющая собой совокупность цепей безопасности и устройств контроля.
3.1.52 цепь безопасности: Часть электрической системы безопасности, состоящая из электрических устройств безопасности.
3.1.53
электрические устройства безопасности: Часть цепи безопасности, состоящая из выключателей безопасности, и/или отказоустойчивых цепей, и/или Э/Э/ПЭ
(см. 3.1.57), используемых для выполнения функций безопасности.
3.1.54 отказоустойчивая цепь: Электрическая и/или электронная система, связанная с обеспечением безопасности, которая работает заданным образом в случае отказа оборудования.
3.1.55 выключатель безопасности: Электротехническое устройство, предназначенное для выключения питания в цепи безопасности.
3.1.56 блокировочное устройство: Устройство, в состав которого входит электрическое устройство безопасности или функция безопасности системы управления, отключающие электродвигатель(и) эскалатора или пассажирского конвейера или запрещающее его (их) включение при нарушении установленного режима работы механизма или узла, которое может привести к опасной ситуации.
3.1.57
связанные с безопасностью электрические, электронные и программируемые электронные устройства; Э/Э/ПЭ: Система управления, защиты или мониторинга, основанная на использовании одного или нескольких программируемых электронных устройств, включая все элементы системы, такие как источники питания, датчики и другие устройства ввода, магистрали данных и другие каналы связи, приводные устройства и другие устройства вывода, используемые в устройствах безопасности, перечисленных в
5.12.3.
3.1.58 функция безопасности системы управления: Функция, включаемая входным сигналом и обрабатываемая элементами системы управления, связанными с обеспечением безопасности, которая позволяет эскалатору или пассажирскому конвейеру (как системе) достичь безопасного состояния.
3.1.59 уровень полноты безопасности; УПБ (SIL): Дискретный уровень, определяющий требования к полноте безопасности для функций безопасности, которые должны быть распределены по Э/Э/ПЭ.
Примечание - В настоящем стандарте УПБ1 (SIL1) соответствует наименьшей полноте безопасности, УПБ3 (SIL3) характеризует наибольшую достижимую полноту безопасности, даже если УПБ3 (SIL3) не используется.
3.1.60 обоснование безопасности эскалатора или пассажирского конвейера: Комплект технических документов или специально разработанный документ, применяемые для подтверждения безопасности оборудования и соответствия требованиям <*>.
--------------------------------
Помещения и пространства
3.1.61 машинное оборудование: Механизмы эскалатора или пассажирского конвейера и связанное с ними оборудование.
3.1.62 машинное помещение/пространство: Помещение снаружи или пространство внутри несущей конструкции эскалатора или пассажирского конвейера, в котором машинное оборудование размещается полностью или частично.
3.1.63 пассажирская зона: Пространство, на котором могут находиться пассажиры, включающее в себя несущее полотно и свободную зону для прохода пассажиров у входных площадок.
3.1.64 зона обслуживания: Пространство, предназначенное для выполнения работ по обслуживанию и ремонту механизмов и узлов эскалатора или пассажирского конвейера, доступное только обслуживающему персоналу.
В настоящем стандарте использованы следующие обозначения, приведенные в таблице 1.
Таблица 1
Обозначение | Наименование, единица измерения | Рисунок | Раздел, пункт, подпункт |
b1 | Расстояние по осям поручней, мм | | |
b2 | Ширина поручня, мм | | |
b3 | Расстояние по горизонтали между фартуком и щитом балюстрады, мм | | |
b4 | Ширина горизонтальной части плинтуса балюстрады, мм | | |
b5 | Расстояние по горизонтали между внутренним краем поручня и кромкой карниза балюстрады, мм | | |
b6,  ,  | Зазор между поручнем и карнизом или направляющей, мм | | |
b7 | Ширина впадин настила, мм | | |
b8 | Ширина выступов настила, мм | | |
b9 | Расстояние по горизонтали между наружным краем поручня и несплошным препятствием, например колонной, мм | | |
b10 | Расстояние по горизонтали между наружным краем поручня и сплошным препятствием, например стеной, мм | | |
b11 | Расстояние по горизонтали между поручнями соседних эскалаторов/пассажирских конвейеров, мм | | |
b12 | Перпендикулярное расстояние между нижним краем поручня и карнизом балюстрады, мм | | |
b13 | Ширина наружного плинтуса, мм | | |
b14 | Расстояние по горизонтали между наружными краями щитов балюстрады соседних эскалаторов или пассажирских конвейеров, мм | | |
b15 | Расстояние по горизонтали между элементом конструкции здания (стеной) и осевой линией поручня, мм | | |
b16 | Расстояние по горизонтали между осями поручней соседних эскалаторов/пассажирских конвейеров, мм | | |
b17 | Расстояние по горизонтали от устройства противоскольжения до наружного края поручня, мм | | |
b18 | Перпендикулярное расстояние между нижним краем поручня и точкой, в которой вертикальный закрывающий профиль соединен с карнизом балюстрады, мм | | |
h1 | Расстояние по вертикали между поверхностью поручня и передним краем ступени, поверхностью пластины или ленты, м | | |
h2 | Перпендикулярное расстояние между верхним краем фартука или нижним краем плинтуса или штапика и линией кромки ступеней или поверхностью настила пластин или ленты, мм | | |
h3 | Расстояние между входом поручня в устье и полом, м | | |
h4 | Свободная высота над любой точкой поверхности ступеней, пластин или ленты на участке между наружными краями поручней, включая свободную для прохода пассажиров зону, м | | |
h5 | Высота отражательного щитка, м | | |
h6 | Зазор между верхним краем поверхности настила ступеней, пластин или ленты и основанием зубьев гребенки, мм | | |
h7 | Глубина впадин настила, мм | | |
h8 | Глубина захода гребенки во впадины настила ступеней, пластин или ленты, мм | | |
h9 | Расстояние по вертикали между полом и нижним краем устройства, препятствующего влезанию на балюстраду, мм | | |
h10 | Расстояние по вертикали между нижним краем поручня и верхним краем ограждения, мм | | |
h11 | Высота устройства противоскольжения, мм | | |
h12 | Высота верхнего края свободного пространства снаружи поручня, мм | | |
h13 | Высота транспортирования пассажиров, м | | |
L1 | Линия основания зубьев гребенки | | |
L2 | Линия пересечения гребенки и поверхности настила ступени, пластины или ленты | | |
l | Длина горизонтальных участков ступеней, пластин или ленты у входных площадок, м | | |
l1 | Расстояние по горизонтали между опорами, м | | |
l2 | Расстояние между крайней точкой, которую достигает поручень, и линией пересечения гребенки ( L2, см. рисунок 1), измеряемое параллельно поверхности настила ступеней, пластин или ленты, м | | |
l3 | Длина прямой части поручня в направлении входной площадки, измеренная от линии пересечения гребенки ( L2, см. рисунок 1), м | | |
l4 | Расстояние между крайней точкой, которую достигает поручень, и точкой входа в устье, измеряемое параллельно поверхности настила ступеней, пластин или ленты, м | | |
l5 | Длина ограждения, препятствующего влезанию со стороны наружного плинтуса, мм | | |
x1 | Высота ступени, м | | |
y1 | Глубина ступени, пластины, м | | |
z1 | Номинальная ширина несущего полотна (ступени, пластины или ленты), м | | |
z2 | Расстояние по горизонтали между фартуками, м | | |
z3 | Расстояние между опорными роликами ленты в поперечном направлении, мм | | |
| Угол наклона эскалатора или пассажирского конвейера, градусы | | |
| Угол наклона зубьев гребенки входной площадки, градусы | | |
| Угол наклона плинтуса, измеряемый по его поперечному сечению, градусы | | |
| Коэффициент трения | - | |
v | Номинальная скорость, м/с | - | |
П | Фактическая провозная способность, чел./ч, чел./мин | - | |
qс | Максимальная статическая нагрузка, Н/м2 | - | |
qм.э | Максимальная эксплуатационная нагрузка на один метр длины несущего полотна, Н/м | - | |
Q | Нагрузка на ступень эскалатора/отрезок несущего полотна пассажирского конвейера длиной 0,4 м, кг | - | |
QSE | Сейсмическая нагрузка на ступень, кг/ступ | - | |
| Коэффициент сейсмической нагрузки | - | |
agR | Пиковое ускорение грунта, м/с2 | - | |
4 Перечень значительных опасностей
В
таблице 2 перечислены все значительные опасности, опасные ситуации и события для эскалаторов и пассажирских конвейеров, требующие действий, направленных на исключение или уменьшение рисков, а также указаны номера подразделов, пунктов и подпунктов настоящего стандарта, в которых приведены защитные меры для устранения или снижения до безопасного уровня рисков, связанных с конкретными опасностями.
Перечень значительных опасностей | Номер подраздела, пункта, подпункта настоящего стандарта |
1 Механические опасности: | |
- контакт с движущимися деталями (например, вращающимися деталями привода, несущего полотна или привода поручня), которые в штатном режиме эксплуатации недоступны пользователям | |
- повреждение пальцев при их попадании между поручнем и балюстрадой, в зазоры балюстрады | |
- опасность пореза о кромки смежных закрывающих профилей | |
- удары об элементы конструкции зданий (стены, перекрытия, декоративные элементы) или при столкновении с людьми на соседних эскалаторах/пассажирских конвейерах | |
- затягивание в устье поручня | |
- защемление между движущимся несущим полотном и неподвижными конструкциями (гребенкой входной площадки, фартуком) | 5.4.1.2, 5.4.1.4, 5.4.2.4 - 5.4.2.6, 5.4.3.5, 5.4.3.9, 5.4.4.3, 5.5.3, 5.5.4, 5.5.6 - 5.5.9, 5.8.8.2, 5.8.8.4, 5.8.9 |
- защемление между полом и поручнем | |
2 Электрические опасности: | |
- прикосновения людей к токоведущим частям, находящимся под напряжением | |
- непрямого контакта | |
- аварийных остановок | |
- неправильной сборки электрических элементов | |
- явлений, связанных со статическим электричеством | |
- внешних воздействий на электрооборудование | |
3 Опасности электромагнитного излучения: | |
- электромагнитное излучение от оборудования эскалатора или пассажирского конвейера | |
- электромагнитное излучение от сторонних источников | |
4 Опасности пожара: | |
- пожароопасные материалы | |
- скопление горючих материалов внутри несущей конструкции | |
- изоляционные материалы кабелей | |
- перегрузка привода | |
5 Опасности, связанные с несоблюдением эргономических принципов: | |
- несоблюдение эргономических параметров, с которыми сталкиваются пользователи (например, скорости, высоты балюстрады, ширины поручня) | |
- недостаточное освещение рабочих мест и доступа к ним | |
- недостаток свободного места на рабочих местах в зонах обслуживания и на путях доступа к ним | |
- отсутствие вентиляции в местах, где она необходима | |
- отсутствие грузоподъемного оборудования для работы с тяжелыми грузами | |
6 Опасности отказа цепи управления: | |
- отсутствие остановки в случае опасных ситуаций | |
- короткое замыкание электропроводки | |
- перегрузка электропроводки, в том числе при неправильном монтаже | |
- неожиданный пуск машины после прерывания работы | |
- неожиданное изменение направления движения привода | |
- чрезмерно высокая скорость движения | |
- чрезмерно резкое торможение при остановке | |
7 Опасности поломки при эксплуатации: | |
- превышение эксплуатационных нагрузок | |
- повреждение несущей конструкции | |
- повреждение, нарушение положения направляющих | |
- повреждение балюстрады | |
- разрыв тяговой цепи, ленты | |
- повреждение ступени/пластины | |
- отказ или повреждение элементов привода | |
- разрыв, сход поручня с направляющих | |
8 Опасности поскользнуться, споткнуться, упасть: | |
- поскальзывание на ступенях/пластинах/ленте или на настиле входной площадки и плит перекрытия | |
- спотыкание при входе на эскалатор/выходе с эскалатора/пассажирского конвейера | |
- падение, вызванное изменением скорости движения поручня (включая остановку) | |
- падение, вызванное изменением направления движения | |
- падение, вызванное увеличенным ускорением или замедлением | |
- падение, вызванное неожиданным пуском или превышением скорости движения машины | |
- падение, вызванное недостаточным освещением на входных площадках | |
9 Особые опасности: | |
- отсутствие ступеней или пластин | |
- защемление предметов или конечностей в устройстве ручного перемещения эскалатора или пассажирского конвейера | |
- ненадлежащее использование техники для перевозки чего-либо помимо людей (например, покупательских или багажных тележек, складных колясок) | |
- соскальзывание между балюстрадами | |
- влезание на балюстраду | |
- катание на поручне | |
- хранение товаров рядом с балюстрадой | |
- создание заторов на огороженных входных площадках или промежуточных выходах последовательно расположенных эскалаторов или пассажирских конвейеров | |
- создание препятствий людским потокам на соединенных эскалаторах/пассажирских конвейерах | |
- катание на поручне и падение за неподвижное ограждение или балюстраду соседнего эскалатора/пассажирского конвейера | |
10 Опасности, вызванные сейсмическими событиями: | |
- повреждение оборудования | |
- разрушение при смещении оборудования | |
5 Требования безопасности и защитные меры
5.1.1 Эскалаторы и пассажирские конвейеры должны соответствовать требованиям безопасности и защитным мерам, изложенным в настоящем разделе.
Кроме того, при проектировании эскалаторов и пассажирских конвейеров необходимо руководствоваться
ГОСТ ISO 12100 в отношении требующих внимания, но не являющихся значительными опасностей, на которые не распространяется настоящий стандарт.
При установке эскалаторов и пассажирских конвейеров в районах, подверженных сейсмическим воздействиям, необходимо руководствоваться рекомендациями
приложения J.
5.1.2 Скопление материалов (например, консистентной смазки, масла, пыли, бумаги) создает опасность пожара, поэтому необходимо обеспечить возможность чистки внутренней части эскалатора/пассажирского конвейера.
5.1.3 Элементы конструкции эскалатора/пассажирского конвейера должны быть испытаны изготовителем этих элементов в соответствии с положениями настоящего стандарта.
Испытания тяговых цепей следует проводить в соответствии с 5.4.5.2 и 5.4.5.3, ступеней/пластин - в соответствии с 5.4.7.
Разрывное усилие ленты, поручня, приводных цепей и ремней должно быть подтверждено сертификатами изготовителей этих элементов.
5.2 Основные параметры и размеры
5.2.1 Скорость движения несущего полотна и поручней
5.2.1.1 Номинальная скорость движения несущего полотна
v должна быть не более 0,75 м/с.
Для эскалаторов с углом наклона более 30° номинальная скорость должна быть не более 0,5 м/с.
Допускается увеличение номинальной скорости пассажирских конвейеров до 0,90 м/с при условии, что ширина пластин или ленты не превышает 1,10 м, а у входных площадок пластины или лента движутся горизонтально на участке не менее 1,60 м. Данное требование не распространяется на пассажирские конвейеры, имеющие участки ускорения, или на системы пассажирских конвейеров с непосредственным переходом между пассажирскими конвейерами, движущимися с разными скоростями.
Допускается отклонение фактической скорости несущего полотна без нагрузки в установившемся режиме от номинальной не более +/- 5% при номинальной частоте и номинальном напряжении питающей сети.
5.2.1.2 Скорость движения поручня не должна отличаться от скорости движения несущего полотна более чем на 2%.
5.2.1.3 Если технология обслуживания или ремонта эскалатора/пассажирского конвейера предполагает нахождение обслуживающего персонала рядом с движущимися или вращающимися деталями, должна быть предусмотрена возможность перемещения несущего полотна с ремонтной скоростью не более 0,15 м/с при выполнении этих работ.
Для эскалаторов и пассажирских конвейеров, устанавливаемых в метрополитене, ремонтная скорость должна быть не более 0,04 м/с.
При использовании ручного привода значения ремонтной скорости не регламентируются.
Угол наклона

эскалатора не должен быть более 30°, но при высотах транспортирования пассажиров
h13, не превышающих 6 м, и при номинальной скорости, не превышающей 0,50 м/с, допускается увеличение угла наклона до 35° (см.
рисунок 1).
Угол наклона эскалаторов тяжелого режима работы не должен быть более 30°.
Угол наклона пассажирских конвейеров не должен быть более 12°.
5.2.3 Ширина несущего полотна (ступени, пластины, ленты)
Номинальная ширина z1 несущего полотна эскалаторов и пассажирских конвейеров должна быть не менее 0,58 м и не более 1,10 м.
Для пассажирских конвейеров с углом наклона до 6° допускается ширина несущего полотна до 1,65 м.
5.2.4 Провозная способность
5.2.4.1 Максимальная фактическая провозная способность эскалатора/пассажирского конвейера не превышает значений, указанных в таблице 3.
Таблица 3
Максимальная фактическая провозная способность П
Ширина ступени/пластины z1, м | Провозная способность П, чел./ч, при номинальной скорости v, м/с |
0,50 | 0,65 | 0,75 |
0,60 | 3600 | 4400 | 4900 |
0,80 | 4800 | 5900 | 6600 |
1,00 | 6000 | 7300 | 8200 |
Примечание 1 - При проектировании транспортного узла следует учитывать, что максимальная фактическая провозная способность достигается при напряженном пассажиропотоке, дискомфортном для пассажиров.
Примечание 2 - Провоз покупательских и багажных тележек (см.
приложение B) уменьшает провозную способность приблизительно на 80%.
Примечание 3 - В случае пассажирских конвейеров с пластинами шириной более 1,00 м провозная способность не увеличивается, так как пользователям необходимо держаться за поручень, дополнительная ширина нужна для того, чтобы можно было провозить покупательские или багажные тележки.
5.2.4.2 Максимальная фактическая провозная способность П (чел./ч, чел./мин) эскалаторов и пассажирских конвейеров в метрополитене, учитывающая реальное заполнение несущего полотна пассажирами, составляет, не более:
П = 8800(2,1 - v)z1v, чел./ч;
П = 190(2,1 - v)z1v, чел./мин.
5.2.5.1 Эскалаторы и пассажирские конвейеры, которые:
- являются частью системы общественного транспорта, включая точки входа и выхода, или
- установлены на объектах, на которых предполагается их интенсивное использование, классифицируются в настоящем стандарте как эскалаторы или пассажирские конвейеры тяжелого Т режима работы.
Интенсивное использование: работа примерно в течение 140 ч в неделю с нагрузкой, достигающей 100% нагрузки, указанной для эскалаторов в
таблице 4 и для пассажирских конвейеров - в
таблице 5, в течение периодов общей продолжительностью не менее чем 0,5 ч в течение любого 3-часового интервала времени.
Таблица 4
Максимальная нагрузка на ступень эскалатора
Номинальная ширина z1, м | Нагрузка на одну ступень Q, кг |
До 0,60 включ. | 60 |
Св. 0,60 до 0,80 включ. | 90 |
Св. 0,80 до 1,10 включ. | 120 |
Таблица 5
Максимальная нагрузка для пассажирских конвейеров
Номинальная ширина z1, м | Нагрузка Q, кг, на отрезок длиной 0,4 м |
До 0,60 включ. | 50 |
Св. 0,60 до 0,80 включ. | 75 |
Св. 0,80 до 1,10 включ. | 100 |
Св. 1,10 до 1,40 включ. | 125 |
Св. 1,40 до 1,65 включ. | 150 |
Режим работы эскалаторов и пассажирских конвейеров тяжелого режима работы в метрополитене: работа примерно в течение 140 ч в неделю с эквивалентной эксплуатационной нагрузкой по 5.2.6.3.3, при этом не менее 3 ч непрерывной работы за любой интервал времени 6 ч со среднечасовой эксплуатационной нагрузкой по 5.2.6.3.2.
5.2.5.2 Эскалаторы и пассажирские конвейеры, которые:
- не являются частью системы общественного транспорта, включая точки входа и выхода, или
- не установлены на объектах, на которых предполагается их интенсивное использование, классифицируются в настоящем стандарте как эскалаторы или пассажирские конвейеры нормального Н режима работы.
5.2.6.1 Максимальная статическая нагрузка
qс для расчета металлоконструкций, плит перекрытий и входных площадок на прочность и жесткость составляет 5000 Н/м
2.
5.2.6.2 Максимальная эксплуатационная нагрузка
qм.э (Н/м) на один метр длины несущего полотна эскалатора/пассажирского конвейера определяется для эскалаторов - по данным
таблицы 4, для пассажирских конвейеров - по данным
таблицы 5 по формуле
qм.э = 9,81
Q/0,4.
Максимальная нагрузка на поручень составляет 1% эксплуатационной нагрузки на несущем полотне.
5.2.6.3 Нагрузки для эскалаторов и пассажирских конвейеров в метрополитене
5.2.6.3.1 Максимальную эксплуатационную нагрузку на один метр длины несущего полотна qм.э (Н/м) для расчета деталей и узлов механизмов на прочность, расчета направляющих бегунков на жесткость, проверки пусковых и тормозных характеристик принимают равной 2000(2,1 - v)z
1.
5.2.6.3.2 Среднечасовая эксплуатационная нагрузка для расчета номинальной мощности двигателя привода - 0,83qм.э.
5.2.6.3.3 Эквивалентная эксплуатационная нагрузка для расчета элементов конструкции на выносливость и долговечность -
0,63qм.э.
5.2.6.3.4 Эксплуатационные нагрузки на поручень составляют 1% соответствующих эксплуатационных нагрузок на несущем полотне.
5.2.7.1 Основные принципиальные размеры эскалатора и пассажирского конвейера приведены на
рисунках 1 -
8.
1 - наклонная база; 2 - горизонтальная нижняя база;
3 - горизонтальная верхняя база; 4 - вертикальная нижняя
база; 5 - вертикальная верхняя база
Примечание - Зазоры между смежными ступенями на видах Y и Z даны в миллиметрах.
Рисунок 1 - Эскалатор (основные размеры)
Таблица
Основной размер | Пункт, подпункт | Основной размер | Пункт, подпункт |
b7 - 5 - 7 мм (настилы ступеней и пластин) | | h8 >= 4 мм | |
b7 - 4,5 - 7 мм (лента) | | h13 - высота транспортирования пассажиров | |
b8 - 2,5 - 5 мм (настилы ступеней и пластин) | | L1 - линия основания зубьев гребенки | |
b8 - 4,5 - 8 мм (лента) | | L2 - линия пересечения гребенки | |
h1 - 0,90 - 1,10 м | | l - горизонтальный участок перед входной площадкой | |
h2 >= 25 мм | |
h3 - 0,10 - 0,25 м | | l1 - расстояние между опорами | |
h4 >= 2,30 м | | l2 >= 0,60 м | |
h5 >= 0,30 м | | l3 >= 0,30 м | |
h6 <= 4 мм | | l4 >= 0,30 м | |
h7 >= 10 мм (настилы ступеней и пластин) | |  - угол наклона | |
h7 >= 5 мм (лента) | | | |
Рисунок 1, лист 2
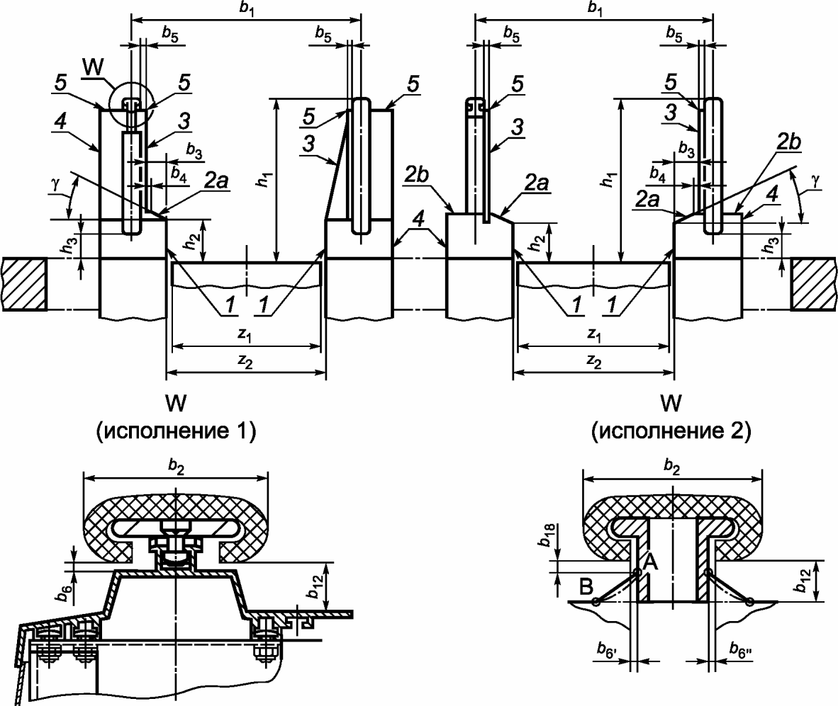
1 - фартук (см.
5.8.8);
2a - внутренний плинтус
Рисунок 2 - Эскалатор/пассажирский конвейер (вид в разрезе),
основные размеры
Таблица
Основной размер | Пункт, подпункт | Основной размер | Пункт, подпункт | Основной размер | Пункт, подпункт |
b1 <= z2 + 0,45 м | | b6 <= 5 мм по всей трассе, кроме НКУ <1>; b6 <= 7 мм на НКУ | | h2 >= 25 мм | |
b2 = 70 - 100 мм | | h3 = 0,10 - 0,25 м | |
b3 < 0,12 м (если  менее 45°) | |  ;  | | z2 = z1 + 7 мм; расстояние между фартуками | |
b12 >= 25 мм | |
b4 < 30 мм | | b18 >= 8 мм | |
b5 <= 50 мм | | h1 = 0,90 - 1,10 м | | | |
<1> НКУ - нижний криволинейный участок рабочей ветви трассы поручня. |
Рисунок 2, лист 2
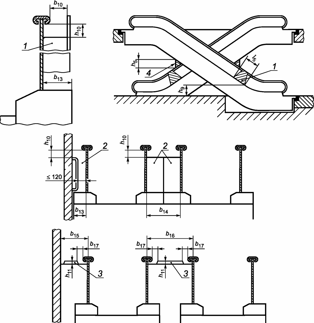
1 - ограждение, препятствующее влезанию (см.
5.8.3.4);
2 - ограждение, ограничивающее доступ (см.
5.8.3.5);
3 - противоскользящее устройство (см.
5.8.3.6);
4 - вертикальный предохранительный щиток (см.
5.13.6)
Рисунок 3 - Устройства, препятствующие
ненадлежащему использованию
Таблица
Основной размер | Пункт, подпункт | Основной размер | Пункт, подпункт |
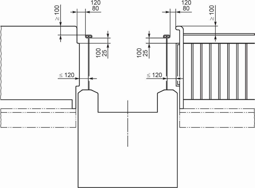
b10 >= 80 мм | | h9 = (1000 +/- 50) мм | |
b13, b14 | | h10 = 25 - 150 мм | |
b15, b16 | | h11 >= 20 мм | |
b17 >= 100 мм | | l5 >= 1000 мм | |
h5 >= 0,30 м | | | |
Рисунок 3, лист 2
1 - препятствие (например, колонна)
Таблица
В миллиметрах
Основной размер | Пункт | Основной размер | Пункт |
b9 >= 400 | | h4 >= 2300 | |
b10 >= 80 | | h12 >= 2100 | |
b11 >= 160 | | | |
Рисунок 4 - Расстояния между элементами конструкции здания
и эскалатором/пассажирским конвейером
1 - настил ступеней; 2 - подступенок
Рисунок 5 - Ступени (основные размеры)
Таблица
В метрах
Основной размер | Пункт, подпункт |
x1 <= 0,24 | |
y1 >= 0,38 | |
z1 = 0,58 - 1,10 | |
Рисунок 5, лист 2
Рисунок 6 - Пластины, зазор (в миллиметрах) между смежными
пластинами (пластинчатый пассажирский конвейер без выступов
и впадин на передних и задних краях пластин) у нижней
и верхней входных площадок и в месте перехода
от горизонтального участка к наклонному
Рисунок 7 - Пластины, зазор и глубина входа (в миллиметрах)
выступов в углубления смежной пластины (пластинчатый
пассажирский конвейер с выступами и впадинами на передних
и задних краях пластин) у нижней и верхней входных площадок
и в месте перехода от горизонтального участка к наклонному
z3 - расстояние между опорными роликами в поперечном
Рисунок 8 - Лента (вид в разрезе), одиночное усилие
5.3.1 Несущая конструкция должна быть спроектирована таким образом, чтобы она могла нести собственную массу эскалатора или пассажирского конвейера плюс расчетную нагрузку
qс по
5.2.6.1.
Площадь восприятия нагрузки определяют как произведение номинальной ширины
z1 (см.
5.2.3) на расстояние между опорами (пролет)
l1 (см.
рисунок 1) эскалатора или пассажирского конвейера или
пролет рассчитываемого элемента конструкции.
5.3.2 Стрела упругого прогиба под действием нагрузки
qс не должна превышать 1/750 пролета (горизонтального расстояния между опорами) для пролетных металлоконструкций, включая плиты входных площадок, эскалаторов и пассажирских конвейеров.
Для эскалаторов и пассажирских конвейеров нормального режима работы допускается увеличение прогиба плит входных площадок и плит перекрытий до 4 мм, если при этом обеспечивается свободное (без задеваний) прохождение гребней ступеней/пластин/ленты в гребенку входной площадки и под плитами.
Стрела упругого прогиба плит перекрытия между входными площадками эскалатора/пассажирского конвейера метрополитена и строительными конструкциями под действием нагрузки qс и массы строительного покрытия не должна превышать 1/600 пролета.
5.4 Лестничное/пластинчатое полотно, ленты, направляющие
5.4.1.1 Лестничное/пластинчатое полотно эскалатора/пассажирского конвейера должно состоять из ступеней/пластин, соединенных не менее чем двумя тяговыми цепями, причем с каждой стороны ступени/пластины должна располагаться хотя бы одна цепь.
Допускается осуществлять привод пластин пассажирского конвейера одной цепью, если параллельность движения пластин рабочей ветви обеспечивается другими механическими средствами.
5.4.1.2 Рабочая поверхность настила ступеней, пластин или ленты должна иметь впадины в направлении движения, в которые входят зубья гребенок входных площадок.
Настил не должен оканчиваться впадиной у балюстрады.
Два крайних выступа настила и предшествующие им впадины ступеней эскалаторов для метрополитена должны иметь яркий отличительный цвет с каждой стороны ступени.
5.4.1.3 Подступенки ступеней должны иметь выступы с гладкой поверхностью. Впадины на конце настила ступени должны совпадать с выступами подступенка следующей ступени.
Подступенок не должен оканчиваться впадиной у балюстрады.
Край настила или съемный гребень настила, примыкающий к подступенку, должен быть притуплен.
5.4.1.4 Стык полотна ленты не должен иметь перепадов на поверхностях выступов и впадин.
5.4.1.5 Материалы, из которых изготовлены ступени, пластины или ленты, должны сохранять свои прочностные характеристики в течение установленного для них срока службы с учетом условий окружающей среды, например температуры, ультрафиолетового излучения, влажности, коррозии.
5.4.1.6 Поверхность настила должна обеспечивать надежную опору ногам пассажиров без проскальзывания (см.
5.5.2).
5.4.1.7 Для выделения края ступени эскалатора у входных площадок должно быть предусмотрено разграничение в направлении движения ступеней (например, впадина в настиле, полоса или гребень яркого отличительного цвета).
5.4.2.1 Ширина ступени, пластины, ленты - по
5.2.3.
5.4.2.2 Высота ступени
x1 должна быть не более 0,24 м.
Для эскалаторов метрополитена высота ступени x1 должна быть не более 0,205 м.
5.4.2.3 Глубина ступени
y1 должна быть не менее 0,38 м.
5.4.2.4 Ширина
b7 впадин настила должна быть не менее 5 мм (для ленты - не менее 4,5 мм) и не более 7 мм.
5.4.2.5 Глубина
h7 впадин настила должна быть не менее 10 мм (для ленты - не менее 5 мм).
5.4.2.6 Ширина выступов настила
b8 должна быть:
- не менее 2,5 мм и не более 5 мм - для ступени/пластины;
- не менее 4,5 мм и не более 8 мм - для ленты.
5.4.3 Конфигурация ступеней, пластин и ленты
5.4.3.1 В пассажирской зоне эскалатора настил ступеней должен быть горизонтальным с допуском в направлении движения не более 1:100.
5.4.3.2 У входных площадок ступени эскалатора должны направляться таким образом, чтобы передние края ступеней, выходящие из гребенки, и задние края ступеней, входящие в гребенку, двигались горизонтально на участке
l от линии
L2 (см.
рисунок 1, вид X), не менее:
- 0,80 м - при номинальных скоростях не более 0,50 м/с и при высоте транспортирования пассажиров h13 не более 6 м;
- 1,20 м - при номинальных скоростях более 0,50 м/с или при высоте транспортирования пассажиров h13 более 6 м.
При номинальных скоростях более 0,65 м/с рекомендуется увеличивать этот размер до 1,60 м.
Разность уровней двух смежных ступеней/пластин по вертикали на горизонтальном участке должна быть не более 4 мм.
5.4.3.3 У верхних входных площадок пассажирских конвейеров с наклоном более 6° пластины или лента должны двигаться на участке длиной не менее 0,40 м под углом не более 6° до входа в гребенку или после выхода из гребенки.
При этом передний край пластины, выходящей из гребенки, и задний край пластины, входящей в гребенку, должны двигаться без изменения угла наклона на участке длиной не менее 0,40 м.
5.4.3.4 Зазор между двумя следующими друг за другом ступенями эскалаторов или пластинами пассажирского конвейера в любом положении на рабочей ветви, измеренный у поверхности настила [см.
рисунок 1 (виды Y, Z),
рисунок 6 (вид S) и
рисунок 7 (вид U)], не должен превышать 6 мм. Измерения зазоров следует проводить так, как показано на указанных рисунках.
При эксплуатации допускается увеличение указанного зазора, но не более чем до 10 мм.
В районе переходных кривых пассажирских конвейеров при заходе выступов во впадины передних и задних кромок пластин допускается увеличение зазора до 8 мм (см.
рисунок 7, вид V).
5.4.3.5 Зазор между ступенью, пластиной или лентой и фартуком не должен превышать 4 мм с любой из сторон и 7 мм - по сумме зазоров, измеренных с обеих сторон.
При эксплуатации допускается увеличение указанных зазоров, но не более чем до 6 мм с любой из сторон и не более 10 мм - по сумме зазоров с обеих сторон.
Для пассажирских конвейеров, у которых фартук заканчивается выше поверхности настила пластины или ленты, зазор, измеренный по вертикали от поверхности настила пластины/ленты до фартука, не должен превышать 4 мм. Поперечное смещение пластин или ленты не должно вызывать появление горизонтального зазора между фартуком и краем пластины или ленты.
Смещение по вертикали ступеней и пластин на рабочей ветви не должно превышать 4 мм, ленты - 6 мм.
5.4.3.6 Радиус кривизны верхнего перехода от наклонного к горизонтальному участку должен быть, м, не менее:
- 1,0 - при номинальных скоростях менее 0,5 м/с;
- 1,5 - при номинальных скоростях более 0,5 м/с, но не более 0,65 м/с;
- 2,6 - при номинальных скоростях более 0,65 м/с.
Радиус кривизны нижнего перехода от наклонного к горизонтальному участку эскалатора должен быть, м, не менее:
- 1,0 - при номинальных скоростях не более 0,65 м/с;
- 2,0 - при номинальных скоростях более 0,65 м/с.
У эскалаторов метрополитена радиусы кривизны верхнего и нижнего переходов от наклонного к горизонтальному участку должны быть не менее 2,6 м.
5.4.3.7 Для ленточных пассажирских конвейеров радиус кривизны в месте перехода от наклонного к горизонтальному участку должен быть не менее 0,4 м.
Для пластинчатых пассажирских конвейеров нет необходимости определять указанный радиус кривизны, т.к. он всегда будет достаточно большим вследствие необходимости обеспечить допустимый зазор между двумя следующими друг за другом пластинами (см.
5.4.3.4).
5.4.3.8 Конструкцией эскалатора/пластинчатого пассажирского конвейера должны быть исключены подъем ступеней/пластин на рабочем участке ветви несущего полотна и смещение несущего полотна в поперечном направлении более значений, указанных в 5.4.3.5.
5.4.3.9 При опускании ступени или пластины ниже уровня, при котором совмещение зубьев гребенки и впадин рабочей поверхности настила ступени/пластины более не обеспечивается, эскалатор или пассажирский конвейер должен быть остановлен блокировочными устройствами [см.
5.12.3, перечисление c)], расположенными перед каждой входной площадкой на расстоянии, достаточном для того, чтобы гарантировать, что опущенная ступень или пластина не дойдет до линии пересечения гребенки (см. тормозные пути, указанные в
5.7.3). Контроль опускания может осуществляться по любому месту ступени или пластины.
5.4.3.10 Использование по назначению эскалатора/пассажирского конвейера допускается только с полным комплектом ступеней/пластин. Отсутствие ступени/пластины должно выявляться [см.
5.12.3, перечисление b)], и эскалатор/пассажирский конвейер должен останавливаться до того, как проем, образовавшийся в результате отсутствия ступени/пластины, появится из-под гребенки нижней или верхней входной площадки в пассажирской зоне. Устройство, обнаруживающее отсутствие ступени/пластины, должно быть установлено в приводной и натяжной станциях со стороны нерабочего участка трассы движения ступеней/пластин.
5.4.3.11 В случае расстыковки тяговой цепи эскалатор или наклонный пластинчатый пассажирский конвейер

должен быть остановлен блокировочным устройством [см.
5.12.3, перечисление d)].
5.4.3.12 При сползании обода (например, полиуретана) с основного или вспомогательного бегунков ступени эскалатора метрополитена несущее полотно должно быть остановлено блокировочным устройством [см. 5.12.3, перечисление o)].
5.4.4.1 Стрела упругого прогиба направляющих бегунков рабочего участка трассы движения ступеней/пластин эскалатора/пассажирского конвейера метрополитена под действием нагрузки qм.э (см. 5.2.6.3.1) должна быть не более 1/1000 длины пролета.
При расчете верхних криволинейных направляющих следует учитывать дополнительные усилия, возникающие от перегиба тяговых цепей.
5.4.4.2 Направляющие и их стыки на всех участках трассы должны быть предохранены от поперечного смещения.
5.4.4.3 Опоры по осевой линии ленты пассажирского конвейера должны быть установлены с интервалом не более 2 м и расположены не ниже чем на 50 мм относительно нижней поверхности ленты, нагруженной согласно
5.4.6.4.
5.4.4.4 Если монтаж/демонтаж ступеней/пластин проводят через открывающийся проем в направляющих несущего полотна, должно быть предусмотрено блокировочное устройство, предотвращающее пуск или останавливающее эскалатор/пассажирский конвейер при незакрытом проеме в направляющих на демонтажном участке ступеней/пластин [см. 5.12.3, перечисление j)].
5.4.5.1 Расчетный запас прочности тяговой цепи должен быть не менее 5. Этот запас прочности определяется как отношение между разрушающим усилием цепи и статическим усилием, воздействию которого она подвергается, при загрузке несущего полотна статической нагрузкой
qс в соответствии с
5.2.6.1 вместе с усилием натяжения натяжного устройства.
Расчетный запас прочности тяговой цепи эскалаторов и пассажирских конвейеров метрополитена должен быть не менее 7. Это запас прочности определяют как отношение разрывного усилия цепи к наибольшему расчетному натяжению при нагрузке qм.э (см.
5.2.6.3.1)
с учетом усилия натяжного устройства, при этом динамические нагрузки не учитывают.
Если применяют более чем одну цепь, предполагается, что нагрузка между цепями распределяется равномерно.
5.4.5.2
Разрывное усилие тяговой цепи следует проверять на стенде. Для этого отбирают не менее двух однотипных отрезков цепи и доводят их до разрушения. При этом должно быть выполнено требование 5.4.5.1.
Длина отобранных для испытаний отрезков цепи должна быть не менее 600 мм. Испытания цепей допускается проводить совместно с осями ступеней, вставленными в отверстия полых валиков.
Допускается не доводить цепи до разрушения, если нагрузка при испытаниях превысила на 5% расчетную разрушающую нагрузку.
5.4.5.3
Каждый отрезок цепи эскалаторов метрополитена должен быть проверен на стенде под нагрузкой, превышающей в два раза наибольшее расчетное натяжение при нагрузке qм.э (см.
5.2.6.3.1).
После испытаний цепь не должна иметь остаточных деформаций или распрессовки деталей цепи.
5.4.5.4 Цепи должны быть постоянно натянуты. Перемещение натяжного устройства в сторону привода или в обратном направлении на расстояние 30 мм (не более) должно контролироваться устройством безопасности или функцией безопасности в соответствии с
5.12.3, перечисление d).
Применение пружин растяжения для натяжения цепей не допускается.
При использовании для натяжения цепей грузов должно быть предусмотрено их улавливание в случае обрыва.
Примечание - Допускается не натягивать концевые участки длиннозвенных цепей (шаг цепи равен шагу ступеней/пластин) за пределами пассажирской зоны, если предусмотрены конструктивные меры по обеспечению прохождения несущего полотна на указанных участках без соприкосновения смежных ступеней/пластин.
5.4.6.1 Расчетный запас прочности ленты, включая ее стык, должен быть не менее 5.
Расчетный запас прочности определяют как отношение разрывного усилия ленты (по данным предприятия - изготовителя ленты) к наибольшему расчетному натяжению при нагрузке
qм.э (см.
5.2.6.2,
5.2.6.3.1) с учетом усилия натяжного устройства и динамических усилий в соответствии с
5.6.5 и
5.7.6.
Расчет должен быть проведен для наиболее неблагоприятного случая нагружения.
5.4.6.2 Лента должна выдерживать все возможные нагрузки и деформирующие воздействия, которые могут создаваться приводом, натяжным устройством и направляющей системой в ходе эксплуатации, и должна быть рассчитана на то, чтобы нести равномерно распределенную нагрузку 6000 Н/м
2.
Примечание - Значение 6000 Н/м
2 получают умножением статической нагрузки
qс (см.
5.2.6.1) на коэффициент динамичности 1,2.
5.4.6.3 Ленту приводят в движение барабаном, и ее натяжение должно осуществляться постоянно и автоматически. При перемещении натяжного устройства в сторону привода или в обратном направлении на расстояние 30 мм (не более) должен подаваться сигнал [см.
5.12.3, перечисление d)] на остановку пассажирского конвейера.
Не допускается применение пружин растяжения для натяжения ленты.
При использовании для натяжения ленты грузов должно быть предусмотрено их улавливание в случае обрыва.
5.4.6.4 Ленту при натяжении, соответствующем условиям эксплуатации, следует испытывать одиночным усилием 750 Н (включая массу испытательной пластинки), приложенным через стальную пластинку размерами 0,15 x 0,25 x 0,025 м. Пластинку следует устанавливать посередине между опорными роликами, находящимися по краям ленты, таким образом, чтобы ее продольная ось была параллельна продольной оси ленты. Прогиб в центре не должен превышать 1/100
z3 [
z3 - поперечное расстояние между опорными роликами (см.
z3 на
рисунке 8)].
5.4.7.1 Сборные ступени и пластины должны быть спроектированы таким образом, чтобы все комплектующие детали, например вкладыши, были надежно прикреплены и их крепление не ослаблялось в течение срока службы. Вкладыши и детали крепления должны выдерживать противодействующее усилие гребенки входной площадки при срабатывании блокировки входной площадки [см.
5.12.3, перечисление i)] от попадания под гребенку обуви или частей одежды пассажиров.
5.4.7.2 Коэффициент запаса прочности ступени/пластины должен быть не менее 5.
Запас прочности ступени/пластины определяют как отношение предела прочности деталей ступени к расчетным напряжениям, возникающим при равномерно распределенной максимальной эксплуатационной нагрузке (см.
5.2.6.2,
5.2.6.3.1)
с учетом максимальных усилий от тяговых цепей, действующих на ступень/пластину на верхних криволинейных участках трассы движения лестничного/пластинчатого полотна.
5.4.7.3 Прочность ступеней/пластин должна подтверждаться испытаниями на стенде по 5.4.7.4 - 5.4.7.9.
Ступень испытывают в сборе вместе с бегунками (неподвижными), полуосями (или осями) в горизонтальном положении на наклонной опоре, угол наклона которой соответствует максимальному углу наклона направляющих эскалатора.
Пластину в сборе испытывают на горизонтальной опоре.
При проверке фактического запаса прочности по 5.4.7.4 допускается основные бегунки не устанавливать.
5.4.7.4 Для проверки фактического запаса прочности к ступени/пластине прикладывают нагрузку 5qм.э (не менее), равномерно распределенной по площади настила. Допускается прикладывать нагрузку 5qм.э через пластинку согласно требованиям 5.4.7.5.
Для ступеней/пластин, воспринимающих усилия от перегиба тяговых цепей на верхних криволинейных участках трассы движения лестничного/пластинчатого полотна, должно быть проведено испытание соответствующими пятикратными нагрузками, приложенными к осям ступени/пластины по центру шарниров тяговой цепи.
После испытаний ступень/пластина не должна иметь трещин, изломов или остаточной деформации более 4 мм, измеренной у поверхности настила.
5.4.7.5 Прочность изготовленных или отремонтированных ступеней проверяют приложением однократного усилия, равного 3000 Н (см.
рисунок 9, усилие
F1), прочность пластин - усилием, которое для пластины площадью 1 м
2 составляет 7500 Н.
Указанное усилие (включая массу пластинки) прикладывают в центре стальной пластинки размером 0,20 x 0,30 м (0,30 x 0,45 м - для пластины площадью 1 м2) и толщиной не менее 25 мм перпендикулярно к поверхности настила. Короткий край пластинки должен быть расположен параллельно переднему краю ступени/пластины, длинный край пластинки - перпендикулярно к переднему краю ступени/пластины.
Для пластин меньшей или большей площади усилие и площадь нагрузки должны быть изменены пропорционально, при этом площадь нагрузки должна иметь отношение длин сторон 1:1,5; однако усилие не должно быть меньше 3000 Н (включая массу пластинки), размер пластинки не должен быть менее 0,20 x 0,30 м, а ее толщина должна быть не менее 25 мм. В случае пластин глубиной менее 0,30 м ширина испытательной пластинки должна быть 0,20 м, а длина пластинки должна быть равна глубине пластины.
Прогиб, измеренный у поверхности настила в ходе этого испытания, не должен превышать 4 мм. Остаточная деформация, превышающая допуски на установку, не допускается.
5.4.7.6 Настил ступени со стороны фартука не должен отклоняться в любом направлении более чем на 4 мм при приложении одиночной нагрузки 1500 Н (см.
рисунок 9, усилие
F2) у края ступени перпендикулярно к поверхности настила на площади 2500 мм
2 через квадратную стальную плиту
a1 x
b (где
a1 =
b = 50 мм) толщиной не менее 15 мм. При наличии вставок/накладок на поверхности настила нагрузку следует прикладывать непосредственно к вставке/накладке, смонтированной на ступень. Площадка приложения нагрузки должна составлять
a2 x
b, где
a2 - ширина вставки/накладки,
b = 50 мм (см.
рисунок 10). Усилие следует прикладывать вертикально. Направление действия силы не должно меняться во время испытания. Остаточная деформация, превышающая допуски на установку, не допускается.
F1 = 3000 Н; F2 = 1500 Н; a1 = 50 мм; b = 50 мм
Рисунок 9 - Испытание ступени
F2 = 1500 Н; a2 - ширина вставки/накладки; b = 50 мм
Рисунок 10 - Испытание ступени со вставками/накладками
5.4.7.7 Подступенок полностью собранной ступени не должен прогибаться более чем на 4 мм под воздействием одиночной нагрузки 1500 Н (см.
рисунок 9, усилие
F2), приложенной перпендикулярно к его поверхности на площади 2500 мм
2, с использованием квадратной или круглой стальной пластинки толщиной не менее 25 мм, форма которой повторяет кривизну подступенка. Направление действия силы не должно меняться во время испытания. Остаточная деформация, превышающая допуски на установку, не допускается.
При наличии вставок/накладок на подступенке дополнительное испытание следует проводить на полностью собранной ступени нагрузкой
F2, приложенной непосредственно к вставке/накладке, посредине полной высоты подступенка на площадке
a2 x
b, где
a2 - ширина вставки/накладки,
b = 50 мм (см.
рисунок 10).
5.4.7.8 Ступень/пластина (независимо от ее размера) должна быть подвергнута воздействию нагрузки, пульсирующей в диапазоне 500 - 3000 Н на одной частоте в диапазоне 5 - 20 Гц в течение не менее 5 x 10
6 циклов, что позволяет обеспечить установившийся гармонический режим нагружения. Нагрузку следует прикладывать перпендикулярно к поверхности настила через стальную пластинку размером 0,20 x 0,30 м и толщиной не менее 25 мм, расположенную в центре поверхности настила так, как указано в
5.4.7.5.
В случае пластин глубиной менее 0,30 м ширина испытательной пластинки должна быть 0,20 м, а длина пластинки должна быть равна глубине пластины.
После испытания ступень/пластина не должна иметь признаков трещинообразования. Остаточная деформация, измеренная у поверхности настила, не должна превышать 4 мм. Ступени/пластины и их детали, например вкладыши или крепежные детали, должны быть надежно закреплены, и их крепление не должно ослабляться.
В случае повреждения бегунков в ходе испытания допускается их замена.
5.4.7.9 Ступень/пластина должна быть такой, чтобы она выдерживала скручивающую нагрузку, эквивалентную смещению на +/- 2 мм центра вспомогательного бегунка, движущегося по дуге, центром которой является центр основного бегунка. Смещение +/- 2 мм относится к расстоянию 400 мм между центрами вспомогательного и основного бегунков. При размерах, отличающихся от 400 мм, значение смещения изменяется пропорционально.
Динамическую нагрузку следует регулировать таким образом, чтобы гарантировать, что указанные выше прогибы достигаются в ходе испытания. Испытание следует проводить на одной частоте в диапазоне 5 - 20 Гц в течение не менее 5 x 106 циклов, что должно обеспечивать установившийся гармонический режим нагружения.
После испытания ступень/пластина не должна иметь признаков трещинообразования. Остаточная деформация, измеренная у поверхности настила, не должна превышать 4 мм. Ступени/пластины и их детали, например вкладыши или крепежные детали, должны быть надежно закреплены, и их крепление не должно ослабляться.
Испытание на кручение требуется только для пластин, оснащенных вспомогательными бегунками.
5.5.1 Для обеспечения безопасного входа на несущее полотно эскалатора или пассажирского конвейера и схода с него должны быть оборудованы входные площадки с наклонными гребенками.
Гребенки должны быть легкозаменяемыми.
5.5.2 Поверхность входных площадок должна обеспечивать надежную опору ногам пассажиров на расстоянии не менее 0,85 м от основания зубьев гребенки (см.
L1 на
рисунке 1, вид X), например быть рифленой. Определение противоскользящих свойств материалов и методику испытаний см. в
приложении C.
Это требование не распространяется на гребенки.
5.5.3 Зубья гребенок должны входить во впадины ступеней, пластин или ленты (см.
рисунок 1, вид X).
Ширина зубьев гребенки, измеренная у поверхности настила, должна быть не менее 2,5 мм.
Глубина входа h8 зубьев гребенок во впадины поверхности настила должна быть не менее 4 мм.
Зазор h6 между верхним краем поверхности настила и основанием зубьев гребенки должен быть не более 4 мм. При эксплуатации эскалаторов тяжелого режима работы допускается увеличение указанного зазора, но не более чем до 6 мм.
5.5.4 Концы гребенок должны быть скруглены и иметь такую форму, чтобы сводить к минимуму риск защемления обуви или багажа пассажиров между гребенками и ступенями, пластинами или лентой.
Радиус кривизны конца зуба должен быть не более 2 мм.
5.5.5 Зубья гребенки должны иметь такие форму и наклон, чтобы пассажиры, покидающие эскалатор или пассажирский конвейер, не спотыкались о них. Угол наклона зуба гребенки

(см.
рисунок 1, вид X) не должен превышать 35°.
5.5.6 Гребенки или их опорные конструкции должны быть регулируемыми, чтобы обеспечивать надлежащее совмещение зубьев гребенки и впадин настила ступени.
5.5.7 В области входной площадки должно быть предусмотрено устройство, обеспечивающее правильное направление настила ступеней/пластин относительно зубьев гребенки.
При этом должно быть обеспечено прохождение выступов настила ступеней между зубьями гребенки без взаимного бокового задевания.
Ленты в этой области должны иметь соответствующие опоры, например барабаны, ролики или скользящие опоры.
5.5.8 Конструкцией гребенки должно быть предусмотрено, чтобы при попадании посторонних предметов их зубья либо отклонялись, оставаясь во впадинах ступеней, пластин или ленты, либо ломались.
5.5.9 Если в гребенку попадают предметы, с которыми не удается справиться описанными в
5.5.8 способами, и если это создает опасность повреждения гребенки/ступени/пластины, эскалатор или пассажирский конвейер должен автоматически останавливаться [см.
5.12.3, перечисление i)].
5.5.10 Освещенность у входных площадок, включая гребенки, должна соответствовать освещенности, создаваемой общим освещением в этой зоне. Освещенность входных площадок на уровне пола, измеренная по оси лестничного полотна, должна быть не менее 50 лк.
5.6.1 Привод не должен приводить в движение более одного эскалатора или пассажирского конвейера.
5.6.2 Привод должен обеспечивать перемещение несущего полотна с номинальной скоростью по
5.2.1.1.
В случае применения привода для обеспечения перемещения несущего полотна с ремонтной скоростью скорость полотна должна соответствовать 5.2.1.3.
При наличии отдельного вспомогательного привода для обеспечения ремонтной скорости должна быть исключена возможность его включения одновременно с главным приводом.
5.6.3 Привод эскалатора/пассажирского конвейера тяжелого режима работы должен обеспечивать работу эскалатора/пассажирского конвейера в режиме интенсивного использования
или в режиме работы метрополитена согласно
5.2.5.1.
5.6.4
Мощность двигателя вспомогательного привода должна быть достаточной для выполнения монтажно-ремонтных операций, технического обслуживания, растормаживания дополнительного тормоза (при необходимости).
5.6.5
При пуске эскалатора/пассажирского конвейера должен обеспечиваться плавный разгон несущего полотна с ускорением не более 0,75 м/с2.
5.6.6
На одном из валов привода (предпочтительно быстроходном) должен быть установлен рабочий тормоз. Для связи вала, на котором установлен рабочий тормоз, с ведущими звездочками ступеней/пластин или барабаном ленты следует применять преимущественно нефрикционные элементы, такие как валы, шестерни, многорядные цепи или не менее двух однорядных цепей.
В тех случаях, когда используют фрикционные элементы, такие как клиновые ремни (применение плоских ремней не допускается), необходимо предусмотреть дополнительный тормоз в соответствии с
5.7.10.
В приводах эскалаторов и пассажирских конвейеров с углом наклона более 6° тяжелого режима работы применение фрикционных элементов не допускается.
5.6.7
В соединениях, передающих крутящий момент:
- применение посадок с гарантированным натягом без дополнительного крепления (шпонками, болтами и т.п.) не допускается;
- упругие муфты должны иметь такую конструкцию, при которой разрушение упругих элементов не должно приводить к потере кинематической связи между полумуфтами.
5.6.8 В случае применения приводных цепей или клиновых ремней на эскалаторах или пассажирских конвейерах запас их прочности должен быть не менее 5. При использовании клиновых ремней должно быть не менее трех ремней.
Этот запас прочности определяется как отношение между разрушающим усилием приводного элемента и статическим усилием, воздействию которого он подвергается при загрузке несущего полотна нагрузкой
qс в соответствии с
5.2.6.1.
Запас прочности приводных цепей эскалаторов и наклонных пассажирских конвейеров, применяемых в метрополитене, должен быть не менее 7. Этот запас прочности определяют как отношение разрывного усилия цепи к наибольшему расчетному натяжению при нагрузке qм.э (см. 5.2.6.3.1).
В случае горизонтальных пассажирских конвейеров при определении запаса прочности следует использовать динамические усилия, определяемые с учетом требований
5.6.5 и
5.7.6 в сочетании с усилием натяжного устройства.
5.6.9 Если предусмотрен ручной привод эскалатора или пассажирского конвейера, он должен быть легкодоступен и безопасен при использовании (см.
7.3.1.5).
Не допускается использование в качестве такого устройства кривошипных рукояток или штурвалов со спицами.
5.6.10 Должно быть предусмотрено устройство [см.
5.12.3, перечисление p)], отключающее привод
при самопроизвольном переключении с главного привода на вспомогательный и наоборот или установке съемного штурвала ручного привода.
5.6.11 На эскалаторах метрополитена должно быть предусмотрено диагностическое устройство, информирующее о перегреве подшипника входного вала редуктора.
5.7.1 Эскалаторы и пассажирские конвейеры должны иметь тормозную систему, посредством которой они могут останавливаться с равномерным замедлением и удерживаться в неподвижном состоянии, в том числе и при нагрузке
qм.э на несущем полотне.
При применении тормозной системы не должно быть преднамеренной задержки, т.е. процесс торможения должен запускаться немедленно после поступления соответствующего сигнала системы управления.
5.7.2 Рабочее торможение должно осуществляться рабочим тормозом или путем электрического торможения с последующим наложением рабочего тормоза.
5.7.3 Тормозной путь (в метрах) лестничного полотна эскалатора или пластинчатого полотна или ленты пассажирского конвейера при торможении по
5.7.2 должен быть:
- не менее 0,72v2 - на спуск и подъем без нагрузки;
- не более 2,0v -
на спуск с нагрузкой qм.э по 5.2.6.2, 5.2.6.3.1, где v -
номинальная скорость (см. 5.2.1.1), м/с.
Это также относится к ненагруженным и нагруженным движущимся в обоих направлениях горизонтальным пассажирским конвейерам.
5.7.4 Тормозной путь следует измерять за интервал времени от момента срабатывания электрического устройства безопасности (кнопка "стоп", блокировочное устройство) до момента остановки несущего полотна.
5.7.5 Замедление движущегося на спуск лестничного полотна эскалатора, пластинчатого полотна или ленты наклонного пассажирского конвейера при торможении по
5.7.3 не должно превышать 1 м/с
2. Для горизонтального пассажирского конвейера направление движения безразлично.
Рекомендуется обеспечивать как можно более короткий тормозной путь в пределах установленного ограничения замедления.
5.7.6 Должна быть предусмотрена функция безопасности [см.
5.12.3, перечисление r)], предотвращающая повторный пуск эскалатора/пассажирского конвейера, в случае если тормозной путь превысит максимальные значения, указанные в
5.7.3, более чем на 20%. Повторный пуск должен быть возможен только после принудительного восстановления рабочего состояния функции. Перед восстановлением рабочего состояния функции необходимо проконтролировать тормозную систему и при необходимости принять меры к устранению неисправностей.
Примечание - Контроль тормозного пути допускается проводить по расчетному времени торможения, соответствующему данному тормозному пути.
5.7.7 Должно быть предусмотрено устройство контроля нерастормаживания тормозной системы после пуска эскалатора/пассажирского конвейера [см.
5.12.3, перечисление f)].
5.7.8 Электрическое торможение
5.7.8.1 Для снижения скорости несущего полотна при рабочем торможении допускается использовать электрическое торможение (например, изменением частоты вращения ротора электродвигателя при помощи частотного преобразователя) с обязательным применением рабочего тормоза (см.
5.7.9) не позднее 1 с после окончания заданного (определенного) времени электрического торможения, измеряемого с момента подачи команды на электрическое торможение.
5.7.8.2 При использовании электрического торможения требования к рабочему тормозу (см.
5.7.9) сохраняются.
5.7.8.3 Прерывание подачи питания на рабочий тормоз должно происходить по истечении расчетного времени электрического торможения.
Общее время электрического торможения до срабатывания рабочего тормоза не должно превышать 4 с.
Если используется система слежения за снижением скорости несущего полотна при электрическом торможении и устройство контроля по
5.7.8.4 обнаруживает нарушение расчетного изменения скорости, команда на срабатывание рабочего тормоза должна подаваться немедленно.
5.7.8.4 Должно быть предусмотрено устройство контроля или функция безопасности системы управления [см.
5.12.3, перечисление s)], прерывающие подачу питания на рабочий тормоз при обнаружении отклонений параметров процесса электрического торможения по
5.7.8.3.
5.7.9.1 Рабочий тормоз (см. также 5.6.6) должен автоматически накладываться при каждом отключении главного или вспомогательного привода, а также в случае обесточивания цепи питания или цепи управления.
5.7.9.2 Тормоз должен находиться в расторможенном состоянии при непрерывном протекании электрического тока. Срабатывание тормоза должно происходить после размыкания электрической цепи тормоза без задержки.
5.7.9.3 Тормозное усилие должно создаваться пружиной (или пружинами) сжатия, установленной в направляющих,
и/или грузом.
5.7.9.4 Должна быть исключена возможность растормаживания вследствие электрического самовозбуждения устройства отпускания тормоза.
5.7.9.5 Прерывание подачи электропитания должно осуществляться двумя независимыми электрическими устройствами. Это могут быть устройства, которые размыкают цепь питания привода. Если после остановки эскалатора или пассажирского конвейера одно из этих электрических устройств не разомкнулось, повторный пуск эскалатора/пассажирского конвейера должен быть невозможен.
5.7.9.6
При использовании двух и более рабочих тормозов тормозной путь (в метрах) движущегося на спуск несущего полотна эскалатора или наклонного пассажирского конвейера с нагрузкой qм.э (см. 5.2.6.2, 5.2.6.3.1) при торможении каждым тормозом должен быть не более 5V, где V - номинальная скорость (см. 5.2.1.1), м/с.
Тормозные пути в режиме торможения на спуск без нагрузки каждым тормозом не должны отличаться более чем на 15%.
5.7.9.7 Тормоза, которые можно растормозить вручную, должны иметь такую конструкцию, которая требует постоянного приложения ручного воздействия, чтобы держать их в расторможенном состоянии.
5.7.9.8
При достижении предельного износа тормозных обкладок в тормозах эскалаторов тяжелого режима работы устройство контроля [см. 5.12.3, перечисление g)] должно подавать сигнал в систему управления о необходимости замены изношенных тормозных обкладок.
В зависимости от конструкции тормоза данное устройство может быть использовано либо как информационное, либо как блокировочное, предотвращающее пуск эскалатора после остановки лестничного полотна.
Контроль следует проводить по величине хода якоря электромагнита или другим элементам тормоза, изменяющим свое расположение при затормаживании и растормаживании тормоза.
5.7.10 Дополнительный тормоз
5.7.10.1 Эскалаторы и наклонные пассажирские конвейеры с углом наклона более 6° должны быть оборудованы автоматически действующим дополнительным тормозом (тормозами), если:
a)
эскалатор или пассажирский конвейер эксплуатируют в тяжелом режиме работы (см. 5.2.5.1), или
b) соединение между рабочим тормозом (см.
5.6.6) и ведущими звездочками ступеней/пластин или барабаном ленты не осуществляется валами, шестернями, многорядными цепями или более чем одной однорядной цепью, или
c) рабочий тормоз не является электромеханическим тормозом согласно
5.7.9, или
d) высота транспортирования пассажиров h13 превышает 6 м.
5.7.10.2 Соединение между дополнительным тормозом и ведущими звездочками ступеней/пластин или барабаном ленты должно осуществляться валами, шестернями, многорядными цепями или более чем одной однорядной цепью. Не допускается, чтобы это соединение было выполнено на основе фрикционной передачи, т.е. ремней, дисков сцепления.
Это соединение должно иметь независимую от рабочего тормоза кинематическую связь с ведущими звездочками ступеней/пластин или барабаном ленты, в противном случае дополнительный тормоз должен устанавливаться непосредственно на валу звездочек ступеней/пластин или барабана ленты.
5.7.10.3 Дополнительный тормоз должен обеспечивать остановку с эффективным замедлением и удержание в неподвижном состоянии несущего полотна эскалатора или пассажирского конвейера, движущегося на спуск с нагрузкой
qм.э. При этом значение замедления не должно превышать 1 м/с
2.
Примечание - Нет необходимости выдерживать указанный уровень замедления в случае нарушения кинематической связи между валом электродвигателя привода и ведущими звездочками ступеней/пластин или барабаном ленты.
5.7.10.4 К тормозным путям при торможении дополнительным тормозом не применяются ограничения, установленные для тормозных путей при рабочем торможении (см.
5.7.3).
5.7.10.5 Дополнительный тормоз должен быть механическим (фрикционным).
Рекомендуется применять тормоз нормально замкнутого типа с постоянным тормозным моментом.
5.7.10.6 Дополнительный тормоз должен срабатывать:
a) до того, как скорость движения несущего полотна превысит номинальную скорость более чем в 1,4 раза;
Примечание - Для эскалаторов метрополитена - не более чем в 1,2 раза;
b) если ступени, пластины или лента, движущиеся на подъем, самопроизвольно изменят текущее направление движения.
Для обнаружения ситуации, при которой необходимо применение дополнительного тормоза, следует применять устройство контроля скорости несущего полотна [см.
5.12.3, перечисление a)].
5.7.10.7 Совместное срабатывание дополнительного и рабочего тормозов в случае отказа электропитания или разрыва цепи управления допускается
при условии, что замедление лестничного полотна при торможении не превысит 1 м/с2, в противном случае одновременное срабатывание дополнительного и рабочего тормозов допускается только при условиях по
5.7.10.6.
5.7.11 Проверка и испытания тормозной системы
5.7.11.1 Проверку эффективности действия и регулировку тормозного момента тормозов проводят при торможении несущего полотна без нагрузки по величине расчетного (настроечного) тормозного пути.
Для рабочих тормозов эскалаторов и пассажирских конвейеров тяжелого режима работы рекомендуется устанавливать контрольный диапазон настроечного тормозного пути 200(
v/
0,75)2 мм, где v -
номинальная скорость (см. 5.2.1.1), м/с.
5.7.11.2 Грузовые испытания тормозов следует проводить с использованием грузов, устанавливаемых на несущем полотне.
Число ступеней, которое следует учитывать при определении суммарной тормозной нагрузки для эскалатора, определяется высотой транспортирования пассажиров
h13, разделенной на максимальную видимую высоту подступенка (см.
x1 на
рисунке 5).
При испытаниях допускается распределение общей тормозной нагрузки по двум третям учитываемого числа ступеней, но не более 300 кг на ступень.
При определении тормозной нагрузки для пассажирских конвейеров, которые имеют несколько наклонов вдоль своей длины (разностей в уровне), следует учитывать только те секции, которые движутся вниз.
5.8 Балюстрада и ограждения
5.8.1 Все механические движущиеся детали эскалатора или пассажирского конвейера должны быть полностью ограждены от пассажирской зоны щитами или стенами, не имеющими отверстий. Исключение составляют предназначенные для перемещения пассажиров ступени, пластины, часть ленты и поручня. Допускаются отверстия для вентиляции по
5.8.11.3.
Допускается не ограждать механические движущиеся детали в местах, к которым доступ пассажиров исключен (например, посредством запираемых на замок дверей).
5.8.2 С каждой стороны несущего полотна должна быть установлена прочная, жесткая, гладкая облицовка - балюстрада.
5.8.3 Размеры балюстрады и ограждений
5.8.3.1 Высота по вертикали
h1 от переднего края ступени, или поверхности пластины, или поверхности ленты до поверхности поручня должна быть не менее 0,90 м и не более 1,10 м (см.
рисунки 1 и
2).
5.8.3.2 Концевые участки балюстрады, включая поручни, должны выступать по горизонтали за линию пересечения гребенки
L2 (см.
рисунок 1, вид X) не менее чем на 0,6 м в продольном направлении (см.
l2,
рисунок 1).
5.8.3.3 Горизонтальная часть поручня должна продолжаться в продольном направлении у входных площадок на расстояние
l3 (см.
рисунок 1) не менее 0,30 м за линию пересечения гребенки
L2 (см.
рисунок 1, вид X).
В случае наклонных пассажирских конвейеров без горизонтальных участков у входных площадок допускается продолжение поручня параллельно линии угла наклона несущего полотна.
5.8.3.4 Балюстрада не должна иметь деталей, на которые мог бы встать пассажир.
Должны быть предусмотрены меры, препятствующие попыткам пассажиров взобраться на балюстраду с внешней стороны, если это может привести к их падению.
При отсутствии крайней балюстрады на наружном плинтусе эскалатора или пассажирского конвейера должны быть предусмотрены ограждения
1 (см.
рисунок 3) на расстоянии
h9 от уровня пола, равном (1000 +/- 50) мм. Основание ограждения должно быть расположено параллельно карнизу балюстрады и должно иметь длину
l5 не менее 1000 мм. Высота ограждения должна быть не ниже поверхности поручня при соблюдении размеров
b10 (см.
рисунок 4) и
b12 (см.
рисунок 2).
5.8.3.5 В тех случаях, когда эскалаторы или пассажирские конвейеры располагаются рядом со стенами и ширина наружного плинтуса
b13 превышает 125 мм, должны быть предусмотрены ограждения
2 (см.
рисунок 3), ограничивающие доступ в образовавшееся пространство. При параллельной установке эскалаторов/пассажирских конвейеров такая защита должна быть предусмотрена в тех случаях, когда общая ширина наружных плинтусов
b14 превышает 125 мм. Верхняя кромка ограждения должна быть расположена на расстоянии
h10 от нижней поверхности поручня, равном 25 - 150 мм.
Все открытые головки деталей крепления таких ограждений должны быть антивандального типа, откручивание которых невозможно с применением стандартных приспособлений.
5.8.3.6 В тех случаях, когда расстояние
b15 между элементом конструкции здания (стеной) и осевой линией поручня превышает 300 мм или расстояние
b16 между осевыми линиями поручней смежных эскалаторов или наклонных пассажирских конвейеров превышает 400 мм,
а указанные пространства закрыты щитами крайней или средней балюстрады, должны быть предусмотрены противоскользящие устройства
3 (см.
рисунок 3).
Эти устройства должны состоять из элементов, прикрепленных к щиту балюстрады не ближе 100 мм от края поручня (см.
b17 на
рисунке 3) с интервалом не более 1800 мм. Высота
h11 должна быть не менее 20 мм. Эти устройства не должны иметь острых углов или кромок.
Установка противоскользящих устройств не требуется в случае установки на балюстраде светильников или рекламных щитов (см. 5.8.12, 5.13.3).
5.8.3.7 Плинтус и щит внутренней балюстрады должны иметь угол наклона

не менее 25° к горизонтали (см.
рисунок 2). Это не распространяется на горизонтальную часть плинтуса, которая непосредственно примыкает к щиту (см.
b4 на
рисунке 2).
Горизонтальная часть плинтуса b4 должна быть не более 30 мм.
Измеренная по горизонтали ширина плинтуса
b3, наклоненного под углом менее 45° к горизонтали, должна быть не более 0,12 м (см.
рисунок 2).
5.8.4 Части балюстрады, обращенные в сторону ступеней, пластин или ленты, должны быть гладкими и ровными. Стыковые накладки, ориентированные не в направлении движения, не должны выступать более чем на 3 мм. Они должны быть жесткими и должны иметь скругленные края или края со снятыми фасками. Не допускается использовать стыковые накладки на фартуке.
Стыковые накладки, ориентированные в направлении движения (в частности, между плинтусом и щитом боковой балюстрады), должны иметь такую конструкцию и форму, чтобы исключить возможность защемления частей тела или одежды пассажира.
Зазоры между щитами должны быть не более 4 мм. Края щитов должны быть скруглены или иметь фаски.
5.8.5 Балюстрада должна быть рассчитана на то, чтобы выдерживать одновременное воздействие статического усилия 600 Н в поперечном направлении и усилия 730 Н в вертикальном направлении, которые равномерно распределены на длине 1 м и приложены к направляющей поручня в одном и том же месте.
Зазор между смежными щитами внутренней балюстрады при приложении усилия 500 Н в любой точке щита под прямым углом на квадратной или круглой площадке 2500 мм2 не должен превышать 4 мм. Остаточная деформация не допускается.
5.8.6 Стеклянные щиты балюстрады следует изготавливать из закаленного стекла толщиной не менее 6 мм. В случае многослойного закаленного стекла толщина минимум одного слоя также должна быть не менее 6 мм.
5.8.7 Расстояние по горизонтали (измеряемое в направлении, перпендикулярном к направлению движения) между нижними точками щитов внутренней балюстрады должно быть не более расстояния по горизонтали, измеренного в более высоких точках.
5.8.8.1 Фартук должен быть вертикальным, прямым и должен иметь соединения встык. Допускается иметь другие конструкции соединений (например, скользящие) в случае длинных эскалаторов или пассажирских конвейеров в тех местах, где они пересекают температурные швы зданий или сооружений.
Стыки фартуков не должны иметь перепадов более 0,5 мм и должно быть исключено их взаимное смещение.
5.8.8.2 Расстояние в перпендикулярном направлении
h2 между верхней кромкой фартука, или нижним краем плинтуса или штапика, или нижней кромкой жесткой части дефлектора (см.
3.1.50) и линией гребней ступеней или поверхностью настила пластин или ленты должно быть не менее 25 мм (см.
рисунок 2).
5.8.8.3 Прогиб фартука под воздействием одиночного усилия 1500 Н, приложенного в наиболее неблагоприятном месте перпендикулярно к поверхности фартука на площади 25 см
2 в виде квадратной или круглой площадки, должен быть не более 4 мм. Такое воздействие не должно приводить к появлению остаточной деформации. Это требование должно выполняться до высоты 25 мм над линией гребней ступеней или поверхности настила пластин или ленты (см.
5.8.5,
рисунок 1, вид R). Для высоты более 25 мм должно выполняться требование к прилагаемому усилию на балюстраду, равному 500 Н.
5.8.8.4 На эскалаторах должна быть сведена к минимуму возможность защемления обуви или багажа между фартуком и ступенями.
Для этого должны быть выполнены следующие четыре условия:
a) обеспечена достаточная жесткость фартука в соответствии с
5.8.8.3;
b) выдержаны зазоры в соответствии с
5.4.3.5;
c) установлены дефлекторы (см.
5.8.9);
d) применены материалы или покрытие фартука, для которых коэффициент трения

для резины со смазкой равен менее 0,45 [для испытаний используют резину на основе SBR каучука (бутадиенстирольный каучук) плотностью (1,23 +/- 0,2) г/см
3 и твердостью по Шору D 50 +/- 3
согласно ГОСТ 263; испытательная смазка содержит додецилсульфат натрия (чистота >= 99%) и деионизированную или дистиллированную воду]. Методика испытаний - см.
приложение E.
Рисунок 11 - Требования к дефлектору
--------------------------------
<a> На наклонном участке.
<b> На переходных и горизонтальных участках.
1 - гибкая часть; 2 - жесткая часть
Примечание - Рисунок не определяет конструкцию.
Рисунок 11, лист 2
5.8.9.1 Дефлекторы должны состоять из жесткой и гибкой частей (например, щетки, резиновые профили).
5.8.9.2 Горизонтальное расстояние от края дефлектора до фартука должно быть от 33 до 50 мм (см.
рисунок 11,
a).
5.8.9.3 Дефлекторы должны выдерживать вертикальное усилие 900 Н, приложенное к жесткой части на прямоугольной площадке 600 мм
2, без отрыва от основания или появления остаточной деформации.
5.8.9.4 Размеры дефлектора
Горизонтальное расстояние от края жесткой части дефлектора, соответствующего по прочности требованиям
5.8.9.3, до фартука должно быть от 18 до 25 мм.
Горизонтальная проекция гибкой части должна быть от 15 до 30 мм.
Расстояние от нижней кромки жесткой части дефлектора до гребня ступени или поверхности настила пластин или ленты в направлении, перпендикулярном к настилу, должно быть от 25 до 30 мм в наклонной части и от 25 до 55 мм - на радиусных и горизонтальных участках.
Нижняя поверхность жесткой части должна быть скошена под углом не менее 25° вверх, а верхняя поверхность должна быть скошена под углом не менее 25° вниз от перпендикуляра к фартуку.
Допускается плоская поверхность жесткой части дефлектора, расположенная перпендикулярно к фартуку на ширину не более 5 мм, за которой следует уклон вниз на верхней поверхности жесткой части и/или вверх на нижней поверхности жесткой части. При этом уклон 25° должен обеспечиваться не менее чем для половины горизонтальной проекции жесткой части (см.
рисунок 11,
b).
Также допускается плоская поверхность, перпендикулярная к фартуку шириной не более 10 мм, а затем уклон вниз не менее 25° на верхней поверхности жесткой части и/или плоская поверхность, перпендикулярная к фартуку шириной не более 5 мм, а затем прямой наклон вверх не менее 25° на нижней поверхности жесткой части (см.
рисунок 11,
c).
Дефлекторы должны иметь скругленные края. Головки крепежных деталей и соединительные элементы стыков не должны выступать в область движения.
Дефлектор должен заканчиваться у входных площадок на расстоянии не менее чем 50 мм до линии пересечения гребенки и не более чем 150 мм - за линией пересечения гребенки. Концы дефлектора должны иметь плавные переходы к фартуку.
5.8.9.5 Если дефлектор является продолжением плинтуса, наклоненного под углом менее 45° к горизонтали, суммарная ширина плинтуса
b3 (см.
рисунок 2) и жесткой части дефлектора, измеренная по горизонтали, должна быть не более 0,12 м.
5.8.10 Наружная балюстрада
5.8.10.1 Щиты наружной балюстрады должны выдерживать усилие 250 Н в любой точке, приложенное под прямым углом на площади 25 см
2, без разрушения или деформации, приводящей к появлению какого-либо зазора. Крепление должно быть спроектировано таким образом, чтобы оно выдерживало нагрузку от удвоенной собственной массы наружной балюстрады. Зазоры или отверстия должны быть не более 4 мм.
5.8.11 Смотровые проемы и вентиляционные отверстия
5.8.11.1 Люки смотровых проемов и подъемные плиты перекрытий
Люки смотровых проемов и подъемные плиты перекрытий должны иметь блокировочное устройство [см.
5.12.3, перечисление j)].
Открытие люка или подъемной плиты должно быть возможно только ключом или инструментом, подходящим для этой цели.
Если крышка смотрового проема или подъемная плита перекрытия состоит из более, чем одной детали, должно быть предусмотрено блокировочное устройство [см.
5.12.3, перечисление j)]:
- на первом открывающемся элементе, в случае если удаление последующих элементов исключено механическими средствами или перекрывающимися элементами;
- для каждой отдельно демонтируемой детали.
Если в машинные пространства за люком или подъемной плитой могут проникать люди, они должны открываться изнутри без ключа или специального инструмента, даже если они заперты.
Крышки люков и подъемные плиты перекрытий не должны иметь отверстий. Крышки люков должны соответствовать тем же требованиям, что и места их установки.
5.8.11.2 Части балюстрады (например, карниз балюстрады, щиты балюстрады), которые необходимо удалить в целях технического обслуживания, не должны рассматриваться в качестве люков смотровых проемов.
5.8.11.3 Вентиляционные отверстия должны быть выполнены или расположены таким образом, чтобы была исключена возможность просунуть сквозь ограждение вентиляционного отверстия прямой жесткий стержень диаметром 10 мм и коснуться им какой-либо движущейся детали.
5.8.12 Допускается установка на балюстраде решеток для громкоговорящей связи, осветителей и розеток по согласованию с разработчиком эскалатора или пассажирского конвейера или экспертной организацией.
5.9 Поручневое устройство
5.9.1 По обеим сторонам эскалатора или пассажирского конвейера на балюстраде должны быть установлены поручни, движущиеся в том же направлении и стой же скоростью, что и ступени, пластины или ленты с отклонением скорости не более 2%.
5.9.2 Должно быть предусмотрено устройство контроля скорости поручня [см.
5.12.3, перечисление k)] для остановки работающего на номинальной скорости эскалатора или пассажирского конвейера при отклонении фактической скорости поручня от скорости несущего полотна более чем на 15% в течение периода времени от 5 до 15 с.
5.9.3 Профили поручня и его направляющих на балюстраде должны быть такими, чтобы уменьшить возможность защемления или захвата пальцев или кистей рук пассажиров.
5.9.4
Зазор b6 между поручнем и верхней поверхностью карниза балюстрады (см. рисунок 2, вид W, исполнение 1) должен быть не более 5 мм по всей трассе, кроме нижнего криволинейного участка, и не более 7 мм на нижнем криволинейном участке.
При конструкции карниза согласно
рисунку 2 (вид W, исполнение 2) зазоры

и

между бортами поручня и направляющей или закрывающим профилем должны быть не более 8 мм.
5.9.5 Расстояния от поручня до смежных поверхностей должны быть не менее 80 мм по горизонтали (см.
рисунок 3, размер
b10) и 25 мм по вертикали (см.
рисунок 2, размер
b12).
Сокращение этой площади допускается до тех пор, пока размер
b18 составляет не менее 8 мм (см.
рисунок 2, вид W, исполнение 2: точка A на закрывающем профиле, точка B на горизонтальной поверхности, находящейся ниже нижнего края поручня не менее чем на 25 мм и ограниченной внешними кромками поручня). Ни одна точка балюстрады не должна быть выше прямой линии от точки A до точки B.
5.9.6 Ширина
b2 поручня должна быть 70 - 100 мм (см.
рисунок 2, вид W, исполнение 1 или 2).
5.9.7 Расстояние
b5 между поручнем и кромкой балюстрады должно быть не более 50 мм (см.
рисунок 2).
5.9.8 Расстояние
b1 по осям поручней не должно превышать расстояния между фартуками
z2 более чем на 0,45 м (см.
b1 и
z2 на
рисунке 2).
5.9.9 Нижняя точка входа поручня в устье должна находиться на расстоянии
h3 от уровня чистого пола, которое должно быть не менее 0,10 м и не более 0,25 м (см.
рисунки 1 и
2).
5.9.10 Расстояние по горизонтали
l4 между крайней точкой, которую достигает поручень, и точкой входа в устье должно быть не менее 0,30 м (см.
рисунок 1). Если
l4 превышает значение
l2 -
l3 + 50 мм, поручень должен входить в устье под углом к горизонтали не менее 20°.
5.9.11
Зазор между поручнем и кромкой отверстия в устье поручня не должен превышать 5 мм.
В точке входа поручня в устье должна быть предусмотрена защита, предотвращающая защемление пальцев и кистей рук.
При защемлении инородных предметов в устье поручня устройство безопасности [см.
5.12.3, перечисление m)] должно инициировать остановку привода.
Допускается не устанавливать указанное устройство безопасности, если доступ к устью поручня исключен (например, предохранительным барьером).
5.9.12 Поручень должен направляться и натягиваться таким образом, чтобы он не сходил со своих направляющих в ходе штатной эксплуатации.
На эскалаторах метрополитена должно быть предусмотрено блокировочное устройство [см.
5.12.3, перечисление l)],
отключающее привод при сходе поручня с направляющих на нижнем радиусном участке трассы поручня.
Примечание - По согласованию с заказчиком допускается не устанавливать данное блокировочное устройство на эскалаторах со стеклянной балюстрадой.
5.10 Машинные помещения/пространства
5.10.1 Должен быть обеспечен безопасный доступ обслуживающего персонала в машинные помещения.
5.10.2 Машинные помещения должны быть недоступными для посторонних. Дверь для входа в машинное помещение должна быть заперта на замок, который можно открыть изнутри без ключа.
5.10.3 Машинные помещения/пространства следует использовать только для размещения оборудования, необходимого для эксплуатации, технического обслуживания и инспекции эскалатора или пассажирского конвейера.
При условии что они не создают дополнительных рисков при эксплуатации и техническом обслуживании, допускается размещение в этих помещениях систем пожарной сигнализации, оборудования для непосредственной борьбы с огнем и спринклерных головок, если при этом обеспечена их достаточная защита от непреднамеренного повреждения.
5.10.4 Должна быть обеспечена эффективная защита и ограждение движущихся и вращающихся деталей, если они легкодоступны (см.
примечание) и опасны, в частности, это касается:
- шпонок и винтов на валах;
- приводных цепей, ремней;
- зубчатых колес и звездочек;
- выступающих валов электродвигателей;
- незакрытых ограничителей скорости;
- нерабочей ветви ступеней или пластин на приводных и/или натяжных станциях, в которые необходимо входить для проведения технического обслуживания;
- маховиков и тормозных барабанов.
Примечание -
Под легкодоступными движущимися и вращающимися деталями подразумеваются детали, к которым можно прикоснуться случайно в зоне обслуживания (лестничное полотно внутри металлоконструкции не является легкодоступным снаружи металлоконструкции). При работе эскалатора в зоне обслуживания может находиться только обслуживающий персонал, соблюдающий правила техники безопасности.
Ограждения должны обеспечивать удобный осмотр, смазку и техническое обслуживание элементов конструкции. При необходимости они могут быть съемными.
Не имеющие ограждения (например, кожуха) гладкие круглые вращающиеся детали должны быть окрашены в яркий отличительный цвет.
5.10.5 Машинные пространства внутри несущей конструкции
5.10.5.1
Конструкция эскалатора и пассажирского конвейера должна обеспечивать доступ к составным частям эскалатора и возможность обслуживания, монтажа и демонтажа через проемы в лестничном полотне, балюстраде и плитах перекрытий.
5.10.5.2 В машинных пространствах внутри несущей конструкции у приводной и натяжной станций должно быть достаточно свободного от стационарного оборудования места, где можно стоять. Площадь этого места должна быть не менее 0,30 м
2, при этом его меньшая сторона должна иметь длину не менее 0,50 м.
Разрешается занимать эту зону постоянно установленным оборудованием при условии, что детали указанного оборудования размещены за закруглениями максимального радиуса 0,25 м (см. рисунок 12) в углах и на высоте не менее 0,12 м над свободной зоной, в которой можно стоять.
Рисунок 12 - Зона, в которой могут стоять люди
5.10.5.3 Если шкаф управления необходимо перемещать или поднимать для проведения технического обслуживания, должны быть предусмотрены соответствующие приспособления для подъема, например рым-болты, ручки.
5.10.5.4 Для освещения пространств внутри несущей конструкции должны быть предусмотрены переносные лампы, хранящиеся в легкодоступном для обслуживающего персонала месте.
У приводной и натяжной станций должны быть предусмотрены одна или более розеток, выполненных в соответствии с требованиями
5.10.8.
Освещенность в рабочих зонах должна быть не менее 200 лк.
5.10.5.5 В тех случаях, когда основной привод или тормоз расположен между рабочей ветвью полотна ступеней, пластин или ленты и его обратной ветвью, в рабочей зоне должна быть предусмотрена горизонтальная площадка площадью не менее 0,12 м
2, на которой могут стоять люди. Размер меньшей стороны площадки должен быть не менее 0,30 м. Допускается, чтобы эта площадка была или жестко закрепленной, или съемной.
5.10.6 Машинные помещения снаружи несущей конструкции
5.10.6.1 Машинные помещения должны быть обеспечены стационарным электрическим освещением, обеспечивающим освещенность на уровне пола не менее:
- 200 лк - на участках проведения работ по техническому обслуживанию;
- 50 лк - в проходах.
5.10.6.2 Должно быть установлено аварийное освещение, позволяющее осуществлять безопасную эвакуацию персонала из машинного помещения.
Аварийное освещение не предназначено для проведения технического обслуживания и других работ.
5.
10.6.3 В машинном помещении и натяжной камере должны быть установлены штепсельные розетки для питания переносных ламп и электроинструмента (включая сварочный аппарат), выполненные в соответствии с требованиями 5.10.8.
В эскалаторном тоннеле или тоннеле, в котором установлен пассажирский конвейер, штепсельные розетки должны быть расположены на расстоянии не более 20 м друг от друга.
5.10.6.4 Размеры машинных помещений должны быть достаточными, чтобы можно было легко и безопасно проводить работы (включая демонтажные операции) на оборудовании, в том числе на электрооборудовании.
В частности, должны быть предусмотрены горизонтальные площадки обслуживания высотой в свету не менее 2,0 м:
a) перед пультами и шкафами управления:
- глубиной от наружной поверхности корпусов не менее 0,70 м,
- шириной, равной полной ширине шкафа, но не менее 0,50 м;
b) для технического обслуживания и контроля движущихся деталей в местах, где это необходимо, размером не менее 0,50 x 0,60 м.
5.10.6.5 Высота проходов в свету должна быть не менее 1,80 м, ширина - не менее 0,50 м. Допускаются местные сужения до 0,40 м в местах, где отсутствуют движущиеся детали.
В боковых проходах (при круглом тоннеле) допускается постепенное сужение поперечного сечения прохода от 500 мм в средней по высоте части до 400 мм на уровне ступеней и на высоте 1800 мм.
Примечание - При проектировании новых объектов, на которых устанавливаются эскалаторы и пассажирские конвейеры, рекомендуется увеличивать указанные минимально допустимые размеры проходов на 25% - 30% для повышения безопасности обслуживающего персонала.
5.10.6.6 Проходы между эскалаторами или пассажирскими конвейерами или эскалатором/пассажирским конвейером и стеной сооружения должны быть оснащены устройствами, позволяющими воздействовать на выключатель "стоп" из любого места прохода [см. 5.12.3, перечисление q)].
Допускается не устанавливать указанные устройства в проходе между эскалатором или пассажирским конвейером нормального режима работы и стеной сооружения при ширине прохода более 1000 мм.
5.10.6.7 Машинное помещение должно быть оборудовано вентиляцией в соответствии с санитарно-гигиеническими требованиями.
5.10.7 Дополнительные требования к машинным помещениям эскалаторов метрополитенов
5.10.7.1 Помещение, в котором устанавливают эскалатор метрополитена, должно иметь размеры, обеспечивающие возможность его монтажа и демонтажа, а также доступ к узлам эскалатора для их осмотра и обслуживания.
При этом должны быть предусмотрены:
a) помещения для установки привода (машинное помещение), электрооборудования, аппаратуры управления и телемеханики;
b) помещение для установки натяжного устройства (натяжная камера);
c) проходы вдоль эскалатора для обслуживания его в наклонной части; в случае отсутствия проходов должна быть обеспечена возможность обслуживания составных частей через проемы в лестничном полотне и балюстраде;
d) демонтажная шахта и демонтажный проход (камера).
Для обеспечения технического обслуживания эскалаторов в непосредственной близости от машинного помещения должны быть предусмотрены бытовые помещения для дежурного персонала в соответствии с санитарными нормами; помещения для хранения запасных частей, горюче-смазочных и других материалов; помещения для мастерской.
5.10.7.2 Ширина прохода между фундаментами или выступающими частями привода эскалатора и стенами машинного помещения, торцевой стеной натяжной камеры устанавливается исходя из условий обеспечения монтажа и демонтажа оборудования, но не менее 900 мм.
При высоте транспортирования пассажиров до 15 м допускается уменьшение ширины указанного прохода: при установке трех эскалаторов - до 750 мм, а при установке двух эскалаторов - до 600 мм.
Размеры боковых проходов в наклонном тоннеле -
см. 5.10.6.5.
5.10.7.3 Высота машинного помещения и натяжной камеры, измеренная от пола до балок перекрытия или подвесных путей грузоподъемных механизмов, должна быть не менее 2400 мм для машинного помещения и не менее 2000 мм -
для натяжной камеры.
5.10.7.4 Машинное помещение должно иметь не менее двух входов, оборудованных запирающимися дверями.
5.10.7.5 Натяжная камера должна иметь люк или дверь с лестницей для удобного и безопасного выхода к нижней входной площадке эскалатора.
Люк должен запираться на замок и быть оборудован устройством фиксации в открытом положении. Люк должен иметь ограждение высотой не менее 1100 мм и размеры не менее 700 x 900 мм. Люк не должен быть расположен в зоне прохода пассажиров. При входе в люк и выходе из него должны быть предусмотрены дополнительные опоры для безопасного перемещения персонала.
Натяжная камера и вход в нее должны быть изолированы от других помещений, не относящихся к обслуживанию и содержанию эскалаторного оборудования.
5.10.7.6 Машинное помещение должно иметь входную лестницу. Лестница должна иметь в начале и в конце свободные площадки, равные ширине лестницы, но не менее 900 мм. Угол наклона лестницы должен быть не более 45°. Лестница должна иметь перила и плоские горизонтальные ступени высотой не более 200 мм, ступени должны быть из стальных рифленых листов.
5.10.7.7 Натяжная камера, при необходимости, должна иметь входную лестницу, которая может быть наклонной или вертикальной.
Наклонная лестница (с углом наклона к горизонту не более 75°) должна быть оборудована перилами и должна иметь ступени глубиной не менее 120 мм из стальных рифленых листов.
Вертикальные лестницы (или лестницы с углом наклона к горизонту более 75°) должны быть шириной не менее 600 мм и должны иметь расстояние между ступенями не более 300 мм, шаг ступеней должен быть выдержан по всей высоте лестницы. Ступени вертикальной лестницы должны отстоять от стен и других строительных конструкций не менее чем на 150 мм.
При высоте лестницы более 5 м, начиная с высоты 3 м, должны быть установлены ограждения в виде дуг.
5.10.7.8 Машинное помещение и примыкающие к нему демонтажная шахта и демонтажный проход (демонтажная камера) должны быть оборудованы грузоподъемными устройствами для монтажа, демонтажа и транспортирования элементов привода.
Демонтажный проход должен выдерживать минимальный габарит приближения тележки с валом приводных звездочек.
По всему пути транспортирования узлов эскалатора по демонтажному проходу должны быть предусмотрены устройства для транспортирования и грузоподъемные приспособления.
Грузоподъемные устройства в демонтажной камере должны иметь площадки обслуживания.
Демонтажная камера должна иметь люк, оборудованный гидроизоляцией и теплоизоляцией. Люк должен открываться наружу, иметь съемные ограждения и устройства подъема и опускания.
Пол машинного помещения и демонтажной камеры должен быть выполнен на одном уровне, устройство порогов и ступеней не допускается.
В случае конструктивного наличия перепадов уровней пола должно быть предусмотрено грузоподъемное устройство для перегрузки транспортируемых элементов с одного уровня на другой.
5.10.7.9 В проходах между эскалаторами, а также между крайним эскалатором и строительными конструкциями по наклонной части эскалаторного тоннеля должны быть расположены ступени шириной не менее 350 мм и высотой не более 200 мм с постоянным углом наклона.
5.10.8 Освещение и розетки
5.10.8.1 Электрическое освещение и розетки должны быть независимыми от питания привода эскалатора или пассажирского конвейера, питаясь либо от отдельного кабеля, либо от ответвительного кабеля, который подключен перед главным выключателем эскалатора или пассажирского конвейера. Должна быть обеспечена возможность прервать цепь питания всех фаз отдельным выключателем (см.
5.11.6.1).
- для напряжения 250 В должны быть типа 2 P + PE (2 полюса + проводник заземления), напрямую питающиеся от сети;
- для напряжения не более 42 В должны иметь контакт для присоединения проводника заземления, вилки не должны подходить к розеткам для других напряжений.
5.10.9 Выключатель "Стоп" для технического обслуживания и ремонта
На приводной и натяжной станциях должны быть установлены выключатели "Стоп".
Эскалаторы и пассажирские конвейеры, привод которых размещается между рабочей и холостой ветвями полотна ступеней, пластин или ленты, должны иметь дополнительные выключатели "Стоп" рядом с приводом.
Приведение в действие этих выключателей "Стоп" должно вызывать отключение (разъединение) подачи питания к приводу и срабатывание рабочего тормоза для остановки эскалатора или пассажирского конвейера.
Выключатели "Стоп" должны быть несамовозвратными. При приведении их в действие пуск эскалатора или пассажирского конвейера должен быть исключен. Установка командного устройства в исходное положение не должна вызывать выдачу команды включения.
Положения переключения должны быть маркированы отчетливо и на постоянной основе.
Наличие выключателя "Стоп" не является обязательным в машинном помещении/пространстве, если в нем находится главный выключатель согласно
5.11.6.
5.11 Электрооборудование и приборы
5.11.1 Область применения
5.11.1.1 Требования настоящего стандарта в отношении электрооборудования распространяются:
a) на электрические цепи эскалатора или пассажирского конвейера и связанные с ними электрические цепи, следующие за главным выключателем эскалатора;
b) на цепи освещения и связанные с ними электрические цепи, следующие за выключателем освещения.
Эскалатор или пассажирский конвейер должен рассматриваться как единое целое со всей его аппаратурой.
5.11.1.2 Внешние цепи освещения машинных помещений, приводных и натяжных станций,
цепи пожарной сигнализации, звукового оповещения, видеонаблюдения, мониторинга и связи не относятся к электрооборудованию эскалатора или пассажирского конвейера.
5.11.2.1 Электрооборудование эскалаторов или пассажирских конвейеров должно быть спроектировано и изготовлено таким образом, чтобы оно обеспечивало защиту от факторов риска, которые связаны с эксплуатацией электрооборудования или могут возникнуть вследствие внешних воздействий на него, при условии, что оборудование используется по назначению и обеспечивается его надлежащее техническое обслуживание.
5.11.2.2 Электрооборудование эскалатора и пассажирского конвейера, его монтаж, электроснабжение и заземление должны соответствовать требованиям, установленным в нормативных документах государств, проголосовавших за принятие настоящего стандарта (см. предисловие).
5.11.3 Защита от непосредственного контакта
5.11.3.1
Требования к защите от непосредственного контакта представлены в [1].
5.11.3.2
Требования к сопротивлению изоляции между проводниками и между проводником и землей изложены в [1].
5.11.3.3 Среднее значение постоянного напряжения или среднеквадратичное значение переменного напряжения цепей управления и безопасности, измеренное между проводниками или между проводниками и землей, должно быть не более 250 В.
5.11.3.4
Требования к нейтральному проводу и проводу заземления изложены в [1].
5.11.4 Главные контакторы, релейные контакторы, элементы цепей безопасности
5.11.4.1 Главные контакторы и релейные контакторы
Главные контакторы, применяемые для остановки привода (см.
5.12.4.8), следует относить к следующим категориям
(см. [2]):
a) AC-3 - для контакторов электродвигателей переменного тока;
b) DC-3 - для контакторов электродвигателей постоянного тока.
5.11.4.2 Релейные контакторы следует относить к следующим категориям
(см. [2]):
a) AC-15 - для контакторов цепей управления переменного тока;
b) DC-13 - для контакторов цепей управления постоянного тока.
5.11.4.3 Для главных и релейных контакторов при отказах по
5.12.2.2 допускается предполагать, что:
a) если один из нормально замкнутых контактов замкнут, все нормально разомкнутые контакты разомкнуты;
b) если один из нормально разомкнутых контактов замкнут, все нормально замкнутые контакты разомкнуты.
5.11.4.4 Элементы цепей безопасности
Если в цепях безопасности используют релейные контакторы (см.
5.11.4.2), требования
5.11.4.3 распространяются и на них.
Если применяемые реле таковы, что размыкаемые и замыкаемые контакты никогда не замкнуты одновременно при любом положении якоря, допускается не учитывать возможность частичного притягивания якоря [см.
5.12.2.2, перечисление f)].
Устройства, подключаемые после электрических устройств безопасности, должны отвечать требованиям
5.12.4.6.3 в отношении длин путей токов утечки и воздушных зазоров (но не в отношении расстояний размыкания).
Требование не распространяется на контакторы, указанные в
5.11.4.1.
5.11.5 Защита электродвигателей
5.11.5.1 Электродвигатели, непосредственно подключаемые к сети, должны быть защищены от короткого замыкания.
5.11.5.2 Электродвигатели, непосредственно подключаемые к сети, должны быть защищены от перегрузки посредством автоматических выключателей с ручным возвратом в исходное положение (за исключением случаев, предусмотренных
5.11.5.3), которые должны отключать питание электродвигателя путем разъединения всех проводников, находящихся под напряжением
(см. [2]).
5.11.5.3 В тех случаях, когда перегрузку определяют по подъему температуры в обмотках электродвигателя, допускается автоматическое замыкание контактов после охлаждения до нужного уровня, но повторный пуск эскалатора или пассажирского конвейера должен быть возможен только при выполнении требований, указанных в
5.12.6.1.
5.11.5.4 Для электродвигателей с не менее чем двумя обмотками, которые запитываются от разных цепей питания, требования
5.11.5.2 и
5.11.5.3 распространяются на каждую обмотку.
5.11.5.5 Если приводные электродвигатели эскалатора или пассажирского конвейера питаются от генераторов постоянного тока, приводимых в движение электродвигателями, приводные двигатели генераторов также должны быть защищены от перегрузки.
5.11.6 Главные выключатели
5.11.6.1 Вблизи привода, натяжной станции или шкафа управления должен находиться главный выключатель, рассчитанный на прерывание находящихся под нагрузкой цепей, подающих питание на привод, тормоз и цепи управления.
Главный выключатель не должен отключать подачу напряжения на розетки или цепи освещения, необходимые для осмотра или технического обслуживания (см.
5.10.8).
При наличии независимых цепей питания вспомогательного оборудования, например системы отопления, освещения балюстрады и входной площадки, рядом с главным выключателем должен находиться выключатель, размыкающий эти цепи, с четкой маркировкой.
5.11.6.2 Должна быть исключена возможность случайного включения главного выключателя посторонними лицами. Для этой цели могут быть использованы замки или другие аналогичные средства.
Главный выключатель следует устанавливать в легкодоступном месте.
5.11.6.3 Главный выключатель должен быть рассчитан на прерывание цепи питания под максимальной нагрузкой, возникающей при нормальной работе эскалатора или пассажирского конвейера, и при коротком замыкании.
Требования к главному выключателю изложены в [1].
5.11.6.4 При установке в одном машинном помещении главных выключателей нескольких эскалаторов или пассажирских конвейеров должна быть обеспечена возможность легко определить, к какому эскалатору или пассажирскому конвейеру относится каждый выключатель.
5.11.7.1 Кабели для электропроводки должны соответствовать
требованиям, установленным в нормативных документах государств, проголосовавших за принятие настоящего стандарта, и ГОСТ IEC 60227-3 - ГОСТ IEC 60227-6 (см. также [1]).
5.11.7.2 Для обеспечения механической прочности площадь поперечного сечения проводников не должна быть меньше, чем указано в соответствующих нормативных документах
(см. [1]).
5.11.8 Требования к монтажу электрооборудования
5.11.8.1 Электрооборудование для облегчения пользования следует снабжать необходимыми и понятными обозначениями в соответствии с электрической принципиальной схемой.
5.11.8.2 При монтаже электрооборудования следует выполнять общие требования соответствующих нормативных документов
(см. [1]).
5.11.8.3 Проводники и кабели должны быть установлены в каналах или желобах или иметь эквивалентную механическую защиту. Проводники и кабели с двойной изоляцией могут быть установлены без каналов или желобов, если они расположены так, чтобы избежать случайного повреждения, например движущимися частями.
Данное требование не следует применять:
a) к проводникам или кабелям, не подключенным к предохранительным устройствам, при условии, что они:
1) не подвержены номинальной мощности более 100 ВА;
2) являются частью схем SELV или PELV;
b) к электропроводке рабочих или распределительных устройств в шкафах или на панелях между:
1) различными частями электрооборудования или
2) этими частями оборудования и соединительными клеммами.
5.11.8.4 Соединения, соединительные клеммы и разъемы, устанавливаемые без защитного кожуха, должны иметь защиту IP2X (см.
ГОСТ 14254) при подключении и отключении и должны быть надлежащим образом закреплены для предотвращения непреднамеренного разъединения.
5.11.8.5 Если после размыкания главного выключателя или выключателей эскалатора или пассажирского конвейера некоторые клеммы остаются под напряжением, они должны быть четко отделены от клемм, которые обесточиваются; требования маркировки, разделения или идентификации по цвету представлены в
[1].
Если напряжение превышает 25 В переменного тока или 60 В постоянного тока, то постоянная предупредительная надпись
(см. [1]) должна быть размещена в непосредственной близости от главного выключателя или выключателей, и соответствующее предупреждение должно быть включено в руководство по техническому обслуживанию.
5.11.8.6 Соединительные клеммы, случайное неверное соединение которых между собой может привести к возникновению опасной ситуации на эскалаторе или пассажирском конвейере, должны иметь отличительную маркировку, если их конструкция не устранят этот риск.
5.11.8.7 Для механической защиты защитные кожухи кабелей должны входить в корпуса выключателей и приборов либо иметь кабельные сальники на концах.
Однако если существует опасность механического повреждения движущимися деталями или острыми краями металлоконструкции, кабели, подключенные к устройству безопасности, должны быть защищены механически.
Требования к соединительным разъемам представлены в [1].
Разъемы и устройства со штепсельным соединением, размещенные в цепях с электрическими устройствами безопасности, должны иметь конструкцию, исключающую возможность их неправильного включения, которое может привести к опасной ситуации.
5.11.10 Защита от статического электричества
В местах возможного образования электростатического потенциала должны быть предусмотрены средства для его снятия (например, щетки).
5.12 Система управления, контроля, диагностики
5.12.1.1 Для управления эскалатором или пассажирским конвейером должны быть предусмотрены пульты управления, розетки для подключения переносных пультов управления, кнопки/выключатели "Стоп" для экстренной ручной остановки привода и блокировочные устройства для автоматической остановки привода в опасных ситуациях, в состав которых входят выключатели безопасности, включенные в электрические цепи безопасности.
5.12.1.2
Допускается оборудование эскалатора или пассажирского конвейера устройствами автоматического пуска и остановки (см. 5.12.6.2), а также средствами телемеханики и теленаблюдения.
5.12.2 Защита от неисправностей электросети и электрооборудования
5.12.2.1 Любая из перечисленных в
5.12.2.2 неисправностей электрооборудования эскалатора или пассажирского конвейера, если она не попадает под описание
5.12.2.3 и/или
приложения F, не должна привести к аварии эскалатора или пассажирского конвейера.
5.12.2.2 Должна быть предусмотрена возможность следующих отказов:
a) обесточивание;
b) падение напряжения;
c) обрыв электрической цепи;
d) замыкание электрической цепи на землю;
e) короткое замыкание, изменение значения или функции элементов электрических цепей, таких как резистор, конденсатор, транзистор, контроллер;
f) отсутствие притяжения или неполное притяжение подвижного якоря контактора или реле;
g) отсутствие отделения подвижного якоря контактора или реле;
h) неразмыкание контакта;
i) незамыкание контакта;
j) неправильное подключение фаз.
5.12.2.3 Нет необходимости рассматривать возможность неразмыкания контакта, если выключатели безопасности соответствуют
5.12.4.6.
5.12.2.4 Эскалатор или пассажирский конвейер должен останавливаться автоматически:
a) при обесточивании силовой цепи или цепи управления;
b) при замыкании на землю цепи, в которой имеется электрическое устройство безопасности;
c) при перегрузке двигателя (см.
5.11.5.2);
d) при перегреве двигателя (см.
5.11.5.3).
Восстановление работоспособности по перечислениям a) - c) должно обеспечиваться принудительным приведением выключателя в исходное положение вручную.
5.12.3 Блокировочные устройства
Блокировочные устройства, в состав которых входят электрические устройства безопасности по 5.12.4 или функции безопасности системы управления, должны отключать электродвигатель с остановкой несущего полотна и делать невозможным его пуск в следующих случаях:
a) при превышении номинальной скорости ступеней, пластин или ленты [см.
5.12.6.9, перечисление a)] или самопроизвольном изменении направления их движения при работе эскалатора или пассажирского конвейера с углом наклона более 6° на подъем [см.
5.12.6.9, перечисление b)];
b) при отсутствии ступени/пластины (см.
5.4.3.10);
c) при опускании ступеней или пластин перед входными площадками (см.
5.4.3.9);
d) при перемещении натяжного устройства в сторону привода или в обратном направлении на расстояние 30 мм (не более) (см.
5.4.5.4);
e) при отсутствии растормаживания дополнительного тормоза;
f) при нерастормаживании тормозной системы после пуска эскалатора или пассажирского конвейера (см.
5.7.7);
g) при предельном износе тормозных обкладок или запасе хода якоря электромагнита рабочего тормоза менее регламентированного (см. 5.7.9.8);
h) при отвинчивании гайки или выходе винта дополнительного тормоза за регламентированные значения в случае использования грузоупорного тормоза;
i) при защемлении инородных предметов в месте входа ступеней, пластин или ленты в гребенку (см.
5.5.9);
j) если открыт смотровой люк в области несущей конструкции, снята или открыта плита перекрытия
или не закрыт проем в направляющих на демонтажном участке ступеней/пластин (см.
5.8.11.1,
5.4.4.4);
k) при отклонении скорости движения поручня более чем на 15% от фактической скорости движения несущего полотна эскалатора/пассажирского конвейера в течение периода времени от 5 до 15 с (см.
5.9.2);
l) при сходе поручня с направляющих на нижнем криволинейном участке (см.
5.9.12);
m) при защемлении инородных предметов в месте входа поручня в устье (см.
5.9.11);
n) при обрыве или чрезмерной вытяжке приводных цепей или клиновых ремней привода несущего полотна (см.
5.6.8);
o) при сползании обода основного или вспомогательного бегунка ступени (см. 5.4.3.12);
p) при
самопроизвольном переключении с главного привода на вспомогательный и наоборот или установке съемного устройства ручного перемещения эскалатора или пассажирского конвейера (см.
5.6.10);
q) при воздействии на выключатели "Стоп" по 5.12.5.1.2 или устройство, позволяющее приводить в действие выключатель "Стоп" в любом месте прохода между эскалаторами или пассажирскими конвейерами в зоне обслуживания (см. 5.10.6.6);
r) при превышении максимальных тормозных путей рабочего торможения более чем на 20% (см.
5.7.6);
s) при обнаружении отклонений параметров электрического торможения (см.
5.7.8.3);
t) если при транспортировании пассажиров закрыт перекрыватель на выходе с эскалатора или пассажирского конвейера (см. 5.13.13);
u) при остановке одного из эскалаторов или пассажирских конвейеров, установленных последовательно без промежуточных выходов и работающих в одном направлении (см.
5.13.9);
v) при отсутствии съемного барьера, предназначенного для блокирования доступа на эскалатор/пассажирский конвейер покупательских и багажных тележек (см.
5.13.14).
1) К
перечислениям a) -
d),
f) -
h),
n),
q),
r),
s): после каждой остановки эскалатора/пассажирского конвейера вследствие срабатывания блокировочного устройства повторный пуск эскалатора/пассажирского конвейера должен быть возможен после перевода сработавшей блокировки в исходное состояние обслуживающим персоналом вручную
или после принудительного восстановления функции безопасности в системе управления, фиксирующей события (пуски, остановки, срабатывание и восстановление блокировок с указанием даты и времени).
2) В случае отсутствия на эскалаторе/пассажирском конвейере конструктивного элемента (например, приводной цепи, съемной плиты перекрытия и т.д.), соответствующую данному элементу блокировку не применяют.
5.12.4 Электрические устройства безопасности
5.12.4.1 Электрические устройства безопасности, входящие в состав блокировочных устройств по
5.12.3, могут включать в себя:
a) один или несколько выключателей безопасности, отвечающих требованиям
5.12.4.6, либо
b) электрические цепи безопасности, соответствующие требованиям
5.12.4.7 с учетом исключения отказов электронных компонентов в соответствии с
приложением F, либо
c) электрические, электронные и программируемые электронные устройства, связанные с безопасностью (Э/Э/ПЭ) в соответствии с
5.12.4.10.
5.12.4.2 Параллельное подключение электрооборудования к электрическим устройствам безопасности не допускается, за исключением приборов для контроля и диагностики, отвечающих требованиям
приложения F.
5.12.4.3 Воздействие внутренней или внешней индуктивности или емкостного сопротивления не должно вызывать неисправность электрических устройств безопасности.
5.12.4.4 Выходной сигнал из цепи безопасности не должен изменяться под воздействием постороннего сигнала, исходящего из другого электрического устройства, находящегося далее в этой же цепи, так, чтобы это могло в результате создавать опасное состояние.
5.12.4.5 Устройство и размещение внутренних блоков питания не должны вызывать появления ложных сигналов на выходе устройств безопасности в результате коммутации. В частности, пики напряжения, возникающие в сети при работе эскалатора или другого оборудования, не должны влиять на работу электронного оборудования (помехозащищенность).
5.12.4.6 Выключатели безопасности
5.12.4.6.1 Срабатывание выключателя безопасности должно приводить к принудительному механическому разделению контактов. Это принудительное механическое разделение должно произойти даже при сваривании контактов между собой.
Принудительное механическое разделение контактов достигается тогда, когда все размыкающиеся контакты заняли разомкнутое положение, и при этом на протяжении значительной части пути их движения не будет упругих элементов (например, пружин) между движущимися контактами и приводным элементом, к которому прикладывается усилие.
Конструкция выключателя безопасности должна сводить к минимуму риск возникновения короткого замыкания в результате неисправности одной из деталей.
5.12.4.6.2 Изоляция выключателя безопасности должна быть рассчитана на номинальное напряжение 250 В, если степень защиты корпуса не ниже IP4X по
ГОСТ 14254, или 500 В, если степень защиты корпуса ниже IP4X.
Выключатели безопасности
(см. [2]) следует относить к следующим категориям:
a) AC-15 - для выключателей безопасности переменного тока;
b) DC-13 - для выключателей безопасности постоянного тока.
5.12.4.6.3 Если защитный корпус имеет класс защиты ниже IP4X, воздушные зазоры должны быть не менее 3 мм, а длина путей токов утечки - не менее 4 мм. После разделения расстояние между контактами должно быть не менее 4 мм.
5.12.4.6.4 При многократных размыканиях расстояние между размыкаемыми контактами после разделения в каждом случае должно быть не менее 2 мм.
5.12.4.6.5 Загрязнение проводящим материалом не должно приводить к короткому замыканию контактов.
5.12.4.7 Требования к цепям безопасности
5.12.4.7.1 Любая из неисправностей, перечисленных в
5.12.2.2, не должна быть причиной возникновения аварийной ситуации.
5.12.4.7.2 Кроме того, к отказам, перечисленным в
5.12.2.2, применяют следующее условие: если один отказ в сочетании со вторым отказом может привести к возникновению опасной ситуации, эскалатор или пассажирский конвейер должен быть остановлен к моменту начала следующего рабочего цикла, в котором должен участвовать неисправный элемент.
Возможность того, что второй отказ приведет к возникновению опасной ситуации до остановки эскалатора или пассажирского конвейера в вышеупомянутом рабочем цикле не рассматривается.
5.12.4.7.3 Если два отказа в сочетании с третьим отказом могут привести к возникновению опасной ситуации, эскалатор или пассажирский конвейер должен быть остановлен к моменту начала следующего рабочего цикла, в котором должен участвовать один из неисправных элементов.
Возможность того, что третий отказ приведет к возникновению опасной ситуации до остановки эскалатора или пассажирского конвейера в вышеупомянутом рабочем цикле не рассматривается.
5.12.4.7.4 Если неисправность элементов, которая вызвала первый отказ по
5.12.4.7.2 или два отказа по
5.12.4.7.3, не может быть обнаружена по изменению состояния, необходимо предпринять соответствующие меры для обнаружения неисправности и предотвратить начало движения до момента повторного пуска эскалатора или пассажирского конвейера по
5.12.6.8.
Средняя наработка на отказ отказоустойчивых цепей должна быть не менее 2,5 лет. Этот срок установлен исходя из предположения, что в течение 3 мес каждый эскалатор или пассажирский конвейер перезапускается в соответствии с
5.12.6.8 минимум одни раз и таким образом его состояние подвергается изменению.
5.12.4.7.5 Сочетание более чем трех отказов можно не рассматривать:
a) если отказоустойчивая цепь состоит из не менее чем двух каналов и их одинаковое состояние контролируется цепью управления, проверка которой осуществляется перед повторным пуском эскалатора или пассажирского конвейера по
5.12.6.8 (см. также
приложение G) или
b) если отказоустойчивая цепь состоит из не менее чем трех каналов и их одинаковое состояние контролируется цепью управления.
Если требования
перечисления a) или
b) не выполняются, прерывание анализа неисправностей не допускается, и он должен продолжаться согласно
5.12.4.7.3.
5.12.4.7.6 Проектирование и оценка отказоустойчивых цепей должны осуществляться согласно
рисунку G.1 (приложение G).
5.12.4.8 Срабатывание электрического устройства безопасности
Срабатывание электрического устройства безопасности должно предотвращать пуск привода или вызывать его немедленную остановку. При этом должен приводиться в действие рабочий тормоз.
5.12.4.9 Приведение в действие электрических устройств безопасности
Элементы, приводящие в действие электрические устройства безопасности, должны быть выбраны и смонтированы так, чтобы правильно функционировать под воздействием механических нагрузок, возникающих при их работе, и обеспечивать необходимую прочность и геометрические характеристики.
В случае применения дублирующих цепей безопасности необходимо механическим способом или при помощи датчиков исключить незамеченную потерю резервирования.
Датчики цепей безопасности, неисправность которых нельзя обнаружить, должны соответствовать требованиям
H.4.2 и
H.4.3 (приложение H).
5.12.4.10 Электрические, электронные и программируемые электронные устройства, связанные с безопасностью (Э/Э/ПЭ)
Электрические, электронные и программируемые электронные системы, связанные с безопасностью, должны быть спроектированы в соответствии с требованиями соответствующих нормативных документов
(см. [3]).
Если (Э/Э/ПЭ) системы и система, не связанная с безопасностью, используют одно и то же оборудование, должны быть выполнены требования к (Э/Э/ПЭ).
При использовании (Э/Э/ПЭ) для блокировочных устройств по
5.12.3 уровень полноты безопасности (УПБ) должен быть не менее:
5.12.5 Аппараты управления
5.12.5.1 Стационарные выключатели и пульты управления
5.12.5.1.1 Для пуска эскалатора или пассажирского конвейера (или открытие его для пользования, если его пуск осуществляется автоматически при прохождении пассажиром определенной точки) должны быть предусмотрены установленные в стационарных пультах управления или других местах один или несколько выключателей, управление которыми может осуществлять только обслуживающий персонал (например, выключатели с ключом, со съемным рычагом, запираемыми защитными крышками; устройства дистанционного пуска). При управлении выключателем персонал должен находиться за линией пересечения гребенки и лестничного полотна.
Эти выключатели не должны выполнять функцию главных выключателей по
5.11.6.
Пусковой выключатель (или выключатели) должен(ны) находиться в пределах досягаемости от выключателя "Стоп" по
5.12.5.1.2.
Любой из отказов электрооборудования эскалатора или пассажирского конвейера, перечисленных в
5.12.2.2, если он не может быть исключен при условиях, описанных в
5.12.2.3 и/или
приложении F, не должен вызывать пуска привода.
5.12.5.1.2 Выключатели "Стоп" должны быть расположены
в пультах управления, в местах, указанных в 5.10.9, в хорошо видных и легкодоступных местах на балюстраде у каждой входной площадки эскалатора или пассажирского конвейера или рядом с ними, а также в средней части балюстрады с таким расчетом, чтобы расстояния между соседними выключателями "Стоп" не превышало:
- 30 м - на эскалаторах;
- 40 м - на пассажирских конвейерах.
Примечание - Выключатели "Стоп" в средней части балюстрады могут не устанавливаться, если обеспечено постоянное наблюдение за пассажирской зоной с возможностью остановки эскалатора или пассажирского конвейера обслуживающим персоналом.
У входных площадок выключатели "Стоп" должны быть доступны из зоны за пределами несущего полотна.
Если выключатель "Стоп" расположен ниже половины высоты балюстрады
h1 (см.
рисунок 1), дополнительно на внутренней стороне балюстрады должен быть установлен указатель согласно
рисунку 13 со следующими характеристиками:
- минимальный диаметр - 80 мм;
- фон - красный;
- слово "STOP" - прописные белые буквы;
- расположен над половиной высоты балюстрады h1;
- стрелка, которая также может располагаться ниже половины высоты балюстрады h1, указывает направление от знака к выключателю "Стоп".
Примечание - Рисунок выполнен не в масштабе. Он служит только для иллюстрации требований.
Рисунок 13 - Указатель для выключателя "Стоп"
Если выход с эскалатора/пассажирского конвейера может оказаться заблокированным структурными элементами здания/сооружения (например, пожарными воротами), дополнительный выключатель "Стоп", доступный с эскалатора/пассажирского конвейера, должен быть установлен на расстоянии 2 - 3 м до пересечения несущим полотном гребенки входной площадки на вертикальном расстоянии от 200 до 400 мм выше уровня поверхности поручня, измеренного до середины органа управления (например, кнопка или ручка). Допускается установка выключателя "Стоп" внутри или снаружи балюстрады при условии, что исключен риск причинения вреда в результате защемления (с учетом
5.8.4,
5.13.3 и
5.13.12).
Выключатель "Стоп" должен быть электрическим устройством безопасности согласно
5.12.4.
5.
12.5.1.3 В случае установки стационарных пультов управления они должны быть расположены:
a) у верхней и/или нижней входных площадок;
b) у приводных звездочек ступеней/пластин или барабана ленты и в натяжной камере тоннельного эскалатора.
Пульты дистанционного управления могут быть расположены как в зоне расположения эскалатора или пассажирского конвейера, так и вне ее.
5.12.5.2 Переносной пульт управления
5.12.5.2.1 Эскалаторы или пассажирские конвейеры должны быть снабжены переносными пультами управления, позволяющими включать их при техническом обслуживании или ремонте. При этом минимум один переносной пульт управления должен быть предусмотрен для каждого эскалатора или пассажирского конвейера.
5.12.5.2.2 Разъемы для подключения гибкого кабеля переносного пульта должны быть расположены у каждой входной площадки, например в приводной станции и в натяжной станции внутри несущей конструкции.
При необходимости должны быть предусмотрены дополнительные разъемы с каждой стороны эскалатора или пассажирского конвейера, чтобы выдержать расстояние между ними не более 20 м. Разъемы должны быть расположены таким образом, чтобы любая точка эскалатора или пассажирского конвейера была досягаема с использованием кабеля. Длина кабеля должна быть не менее 3,0 м.
5.12.5.2.3 Элементы управления переносного пульта должны быть защищены от случайного включения. Движение эскалатора или пассажирского конвейера должно быть возможно только при непосредственном ручном воздействии на элементы управления двумя руками: одной рукой - на кнопку выбора направления движения, другой рукой - на элемент управления движением ("пуск"). Направление движения должно быть четко указано.
Переносной пульт должен быть оборудован несамовозвратной кнопкой "Стоп", приведение в действие которой при подключенном пульте должно вызывать отключение (разъединение) цепи питания привода и приведение в действие рабочего тормоза.
5.12.5.2.4 При использовании переносного пульта управления все другие пульты управления должны быть электрически заблокированы.
При подключении более одного переносного пульта все переносные пульты должны быть электрически заблокированы.
5.12.6 Управление эскалатором и пассажирским конвейером
5.12.6.1 Пуск эскалатора или пассажирского конвейера персоналом
Пуск эскалатора или пассажирского конвейера следует осуществлять одним из выключателей по
5.12.5.1.1, доступных только для обслуживающего персонала.
Пуск с пассажирами на несущем полотне допускается при выполнении следующих условий:
- если перед пуском обслуживающий персонал имеет возможность наблюдения за пассажирской зоной или обеспечена переговорная связь с персоналом, находящимся у эскалатора или пассажирского конвейера;
- если предусмотрены средства оповещения пассажиров о предстоящем пуске.
Для исключения пуска эскалатора или пассажирского конвейера с пассажирами в обратном направлении на выключателе должно быть четко указано направление движения.
К устройствам (системам) дистанционного пуска применяют те же требования.
5.12.6.2 Автоматический пуск эскалатора или пассажирского конвейера, работающего в режиме ожидания
5.12.6.2.1 Эскалаторы или пассажирские конвейеры, работающие в режиме ожидания и запускающиеся или ускоряющиеся автоматически контрольными элементами (например, фотоэлементами, контактными матами и т.д.), реагирующими на приближение пассажира, должны двигаться со скоростью, составляющей не менее 20% номинальной скорости при пересечении пассажиром гребенки, а затем ускоряться до номинальной скорости с ускорением не более 0,5 м/с
2.
Контрольные элементы должны быть расположены с учетом средней скорости идущего человека 1 м/с.
Компоновка строительных конструкций и ограждений должна препятствовать попыткам обойти контрольные элементы.
Работа эскалатора или пассажирского конвейера в автоматическом режиме допускается только после его пуска персоналом в соответствии с
5.12.6.1.
5.12.6.2.2 Направление движения эскалатора или пассажирского конвейера, работающего в режиме ожидания, должно быть четко указано с использованием указателей или светофоров и должно быть хорошо видно пассажирам.
В тех случаях, когда на эскалатор или пассажирский конвейер, работающий в режиме ожидания, можно войти в направлении, противоположном установленному направлению движения, он должен запускаться в установленном направлении до подхода пассажира к входной площадке в соответствии с требованиями
5.12.6.2.1 и работать не менее 10 с.
5.12.6.2.3 Эскалаторы, предназначенные для работы в режиме автоматического пуска в двух направлениях, следует оснащать контрольными элементами, реагирующими на приближение пассажира, со стороны каждой входной площадки. Эскалаторы должны запускаться в направлении, определяемом первым вошедшим пассажиром. После запуска эскалатора на противоположной стороне от стороны пуска должен высвечиваться индикатор "входа нет".
5.12.6.3 Остановка эскалатора или пассажирского конвейера персоналом
Перед остановкой привода обслуживающий персонал должен иметь возможность убедиться в отсутствии пассажиров на эскалаторе или пассажирском конвейере.
В случае необходимости осуществить остановку с пассажирами пассажиры должны быть предупреждены о предстоящей остановке при помощи системы оповещения (например, громкоговорителя или звуковой сигнализации).
К устройствам дистанционной остановки применяют те же требования.
5.12.6.4 Автоматическая остановка эскалатора или пассажирского конвейера, работающего в режиме ожидания
Допускается предусмотреть автоматическую остановку эскалатора или пассажирского конвейера, работающего в режиме ожидания, через промежуток времени, равный ожидаемому времени транспортирования пассажира плюс не менее 10 с после того, как на входящего пассажира среагирует контрольный элемент управления, описанный в
5.12.6.2.1.
5.12.6.5 Экстренная остановка вручную
Экстренная остановка эскалатора или пассажирского конвейера может быть осуществлена при приведении в действие одного из выключателей "Стоп" по
5.12.5.1.2.
5.12.6.6 Остановка по команде устройств контроля или электрических устройств безопасности
В случае, если устройства контроля или электрические устройства безопасности обнаруживают любое из событий по
5.12.3, должны быть приняты меры, препятствующие пуску привода, или он должен быть немедленно остановлен до начала процедуры повторного пуска по
5.12.6.8.
5.12.6.7 Изменение направления движения
Преднамеренное изменение направления движения допускается только после остановки эскалатора или пассажирского конвейера и после того, как все пассажиры покинут несущее полотно.
5.12.6.8.1 Повторный пуск после каждой остановки, за исключением автоматической остановки по
5.12.6.4, должен быть возможен с соблюдением требований
5.12.6.1.
После экстренной остановки при неисправностях электросети и электрооборудования [см.
5.12.2.4, перечисления a) -
c)] или блокировочными устройствами [см.
5.12.3, перечисления a) -
d),
f) -
h),
n),
q),
r),
s)] повторный пуск должен быть возможен только после определения и, при необходимости, устранения причины остановки, а также перевода сработавшей блокировки в исходное состояние.
До момента перевода в исходное состояние блокировка, сработавшая при отказе, должна оставаться включенной даже после ликвидации причины отказа или восстановления подачи питания (см. также
примечание к 5.12.3).
5.12.6.8.2 Восстановление включенного состояния для автоматического повторного пуска после остановки выключателем "Стоп" по
5.12.6.5 допускается при выполнении следующих условий:
a) отсутствие пассажиров на участке между линиями пересечения гребенки плюс не менее 0,30 м за каждой гребенкой. Автоматическое восстановление включенного состояния допускается, если устройство контроля способно обнаруживать непрозрачный вертикально стоящий цилиндр диаметром 0,30 м и высотой 0,30 м в любом месте в пределах указанной зоны;
b) эскалатор или пассажирский конвейер должен запускаться при проходе пассажира. Пуск должен происходить только в том случае, если аппарат управления не обнаруживает минимум в течение 10 с пассажиров или предметы в пределах зоны, указанной в
перечислении a);
c) аппаратом для приведения в состояние готовности к автоматическому повторному пуску должно быть устройство, отвечающее требованиям
5.12.4.
При одноканальном решении допускается использовать самоконтролирующиеся датчики.
5.12.6.9 Защита от превышения скорости и непреднамеренного изменения направления движения
Эскалаторы и наклонные

пассажирские конвейеры должны быть оборудованы устройствами контроля [см.
5.12.3, перечисление a)], подающими сигнал в систему управления о необходимости остановки несущего полотна:
a) до того, как скорость несущего полотна превысит номинальную в 1,4 раза (см. также
5.7.10.6);
b) если ступени и пластины или лента, движущиеся на подъем, самопроизвольно изменят текущее направление движения.
5.13 Установка эскалаторов и пассажирских конвейеров
5.13.1
Строительные конструкции должны быть рассчитаны на нагрузку от эскалатора или пассажирского конвейера, загруженного расчетной нагрузкой
qс (см. также
5.3.1).
Перекрытия здания, примыкающие к эскалатору, должны быть рассчитаны на нагрузки от монтажных и транспортных средств и узлов эскалатора.
Строительное задание на разработку конструкций и закладных деталей под эскалатор должно содержать сведения для расчета и конструирования: значения расчетных нагрузок, данные о характере и местах их приложения (сосредоточенные и распределенные).
5.13.2 Расстояние по вертикали от уровня настила ступеней эскалатора, или пластин, или ленты пассажирского конвейера до потолка галереи, тоннеля или выступающих частей (балок, архитектурных украшений, осветительной арматуры и т.д.) должно быть не менее 2300 мм (см.
h4 на
рисунках 1 и
4) по всей длине и ширине эскалатора или пассажирского конвейера по наружным кромкам поручня и не менее 2100 мм (см.
h12 на
рисунке 4) - за наружными краями поручня по ширине на расстоянии не менее
b10 (см.
5.13.3).
Для круглых тоннелей это расстояние, измеряемое у края ступени со стороны, примыкающей к стене тоннеля, может быть сокращено до 2000 мм.
5.13.3 Расстояние по горизонтали (см.
b10 на
рисунке 4) от края поручня до примыкающей отвесной стены, торшеров и других светильников, расположенных на балюстраде, должно быть не менее 80 мм
(в случае волнистого зонта указанное расстояние относится к точкам зонта с минимальным расстоянием от поручня).
В зоне, ограниченной указанными в настоящем пункте размерами, допускается установка только выключателей "Стоп".
5.13.4 Расстояние по вертикали (см.
b12 на
рисунке 2) между нижним краем поручня и верхним краем препятствий с наружной стороны балюстрады должно быть не менее 25 мм.
5.13.5 В случае эскалаторов и пассажирских конвейеров, расположенных рядом друг с другом параллельно или крест-накрест, расстояние между поручнями должно быть не менее 160 мм (см.
b11 на
рисунке 4).
5.13.6 Если расстояние (см.
b9 на
рисунке 4) между наружными краями поручня смежных эскалаторов или пассажирских конвейеров, расположенных крест-накрест, или наружным краем поручня и проемом в перекрытии менее 400 мм, то в зоне пересечения поручня с перекрытием или с нижней кромкой смежного эскалатора должен быть предусмотрен предохранительный щиток. Отбойная кромка щитка должна быть гладкой, скругленной, высотой по вертикали не менее 300 мм (см.
h5 на
рисунках 1 и
3) и должна продолжаться ниже нижнего края поручня не менее чем на 25 мм или до щита крайней/средней балюстрады.
5.13.7
На площадках перед входом на эскалатор не должно быть сооружений и предметов, затрудняющих проход пассажиров. Допускается установка барьеров для направления (см. 5.13.12) и перекрывателя (см. 5.13.13) пассажиропотоков, а также пультов управления, дополнительных выключателей "Стоп" или кабины для персонала, наблюдающего за пассажирами.
5.13.8 Перед входом на эскалатор или пассажирский конвейер должна быть предусмотрена свободная зона для прохода пассажиров высотой в свету не менее 2,3 м, шириной не менее расстояния между наружными краями поручней плюс 80 мм с каждой стороны и глубиной не менее 2,50 м от конца балюстрады. Допускается уменьшение глубины зоны до 2,00 м, если ее ширина в два (и более) раза превышает расстояние между наружными краями поручней плюс 80 мм с каждой стороны.
Для эскалаторов или пассажирских конвейеров тяжелого режима работы глубина указанной зоны должна быть не менее 4,5 м.
Свободную зону не следует использовать для других пассажиропотоков внутри здания/сооружения.
Не допускается перекрытие свободных зон близко расположенных эскалаторов или пассажирских конвейеров. Допускается боковой сдвиг свободной зоны.
Пол свободной зоны должен быть ровным с уклоном не более 6°. Не допускается установка стационарных лестниц внутри свободной зоны.
5.13.9 В случае системы следующих друг за другом эскалаторов и пассажирских конвейеров без промежуточных выходов они должны иметь одинаковую провозную способность (см.
5.2.4), должны быть оснащены блокировочными устройствами для остановки всех следующих друг за другом эскалаторов и пассажирских конвейеров при остановке эскалатора или пассажирского конвейера, установленного перед ними в транспортной цепи [см.
5.12.3, перечисление u)], и
между ними должна быть предусмотрена свободная зона в соответствии с требованием 5.13.8.
5.13.10 В тех случаях, когда за наружным краем поручня у входной площадки имеется проем, в который пассажир может упасть при потере равновесия, опасная зона должна иметь стационарное ограждение высотой не менее 100 мм над уровнем поручня, расположенное на расстоянии от 80 до 120 мм от наружного края поручня (см.
рисунок 14).
Примечание - Рисунок выполнен не в масштабе. Он служит только для иллюстрации требований.
Рисунок 14 - Пример ограждений у входных площадок
5.13.11 Окружающее пространство эскалатора или пассажирского конвейера должно быть освещено, особенно вблизи гребенок входных площадок (см.
5.5.10). Допускается размещать осветительные приборы в окружающем пространстве и/или на самом эскалаторе или пассажирском конвейере. Установка осветительных приборов на эскалаторе или пассажирском конвейере допускается по согласованию с изготовителем эскалатора или пассажирского конвейера.
5.13.12 В свободной для прохода пассажиров зоне по
5.13.8 допускается установка барьеров разделения пассажиропотоков, конструкция которых не должна создавать дополнительного риска для пассажиров. Барьеры должны размещаться за пределами центральных линий поручня по ширине зоны и на высоте не менее 100 мм над поверхностью поручня.
Барьеры разделения пассажиропотоков допускается соединять с балюстрадой горизонтальными/наклонными элементами цилиндрической формы без острых кромок, расположенными на расстоянии не менее 80 мм до края поручня.
К барьерам разделения пассажиропотоков предъявляются следующие требования:
- барьеры и их опоры должны выдерживать горизонтальную силу 1 кН/м, приложенную к верхней части;
- барьеры должны устанавливаться на строительных конструкциях. Допускается установка барьеров на плитах перекрытия в случае, если приложенные расчетные силы не вызывают остаточной деформации и увеличенных/дополнительных зазоров;
- высота барьеров должна быть не менее высоты уровня поручней.
5.13.13 Для предотвращения доступа пассажиров на неработающий эскалатор или пассажирский конвейер допускается перед входными площадками устанавливать перекрыватели (например, поворотную калитку, шлагбаум).
Положения перекрывателя "открыто" и "закрыто" должны быть четко обозначены и хорошо видны пассажирам (например, с использованием светофора зеленого и красного цветов). На закрытом перекрывателе или рядом с ним должна быть предупреждающая надпись: "Проход закрыт" или установлен указатель: "Входа нет".
При запуске эскалатора/пассажирского конвейера для транспортирования пассажиров должен сначала открываться перекрыватель на выходе с эскалатора/пассажирского конвейера, затем запускаться эскалатор/пассажирский конвейер, а после достижения несущим полотном номинальной скорости - открываться перекрыватель на входе на эскалатор/пассажирский конвейер.
Перекрыватели могут закрываться только после остановки несущего полотна.
Должно быть предусмотрено блокировочное устройство [см.
5.12.3, перечисление t)] для обнаружения закрытого перекрывателя на выходе с несущего полотна при работе эскалатора или пассажирского конвейера в режиме транспортирования пассажиров.
5.13.14 Меры по предотвращению доступа торговых и багажных тележек
Если в торговой зоне, в которой установлен эскалатор, применяются торговые и/или багажные тележки и существует опасность того, что эти тележки могут быть доставлены на эскалатор, их доступ к эскалатору должен быть заблокирован.
Если торговые и/или багажные тележки не предназначены для передвижения на пассажирском конвейере, их доступ к пассажирскому конвейеру должен быть заблокирован.
Для блокирования доступа торговых и/или багажных тележек на эскалатор или пассажирский конвейер могут быть использованы барьеры, отвечающие следующим требованиям:
a) барьеры следует устанавливать только на входе на эскалатор или пассажирский конвейер. Установка барьеров на выходе в свободной для прохода пассажиров зоне не допускается;
b) конструкция барьера не должна создавать дополнительных рисков;
c) свободная ширина прохода между крайними точками поручней и барьерами и между самими барьерами должна быть не менее 500 мм и меньше ширины торговых и/или багажных тележек, которые будут использоваться;
d) высота барьера должна составлять от 900 до 1100 мм;
e) барьер и его опоры должны выдерживать горизонтальную силу 3000 Н, приложенную на высоте 200 мм. Эта сила возникает из-за удара шасси тележки с грузом массой 160 кг, движущейся со скоростью 1,0 м/с;
f) барьеры должны устанавливаться на строительных конструкциях. Допускается установка барьеров на плитах перекрытия, если приложенные расчетные силы не вызывают остаточной деформации и увеличенных/дополнительных зазоров.
В случае применения съемных барьеров (например, для эскалаторов/пассажирских конвейеров, работающих в обоих направлениях) должно быть предусмотрено блокировочное устройство [см.
5.12.3, перечисление v)] для обнаружения отсутствия барьера.
5.13.15 Для эскалаторов/пассажирских конвейеров, обслуживание/ремонт которых проводится через съемные плиты перекрытий, проемы в лестничном/пластинчатом полотне или съемные элементы балюстрады, должны быть предусмотрены временные ограждения для исключения доступа пассажиров к эскалатору/пассажирскому конвейеру в период выполнения работ по его обслуживанию/ремонту.
Ограждения и их фиксация должны соответствовать месту их установки, учитывать расположение эскалатора/пассажирского конвейера в здании/сооружении, интенсивность пассажиропотока и должны быть снабжены табличкой, информирующей о проведении работ, например, "Проход закрыт! Ведутся работы".
5.14 Противопожарная защита
5.14.1 Рекомендуется изготавливать эскалаторы и пассажирские конвейеры из таких материалов, которые не создают дополнительной опасности в случае пожара.
Во избежание риска возгорания см. также
5.1.2.
5.14.2 Возможность применения системы пожаротушения и расположение элементов пожаротушения (спринклеры, форсунки системы водяного тумана и т.д.) должны быть согласованы с разработчиком эскалатора или пассажирского конвейера.
Полностью собранные эскалаторы/пассажирские конвейеры, или узлы, или комплектующие эскалаторов/пассажирских конвейеров, которые невозможно перемещать вручную, должны:
- быть оснащены арматурой для перемещения с использованием подъемного устройства или транспортных средств либо
- иметь конструкцию, предусматривающую возможность прикрепления такой арматуры (например, резьбовые отверстия), либо
- иметь форму, позволяющую легко закрепить средства подъема или транспортирования.
6 Проверка выполнения требований по обеспечению безопасности и/или защитных мер
6.1 Методы проверки требований безопасности
В
таблице 6 указаны методы для проверки изготовителем выполнения требований и мер по обеспечению безопасности по
разделам 5 и
7 для каждой новой модели эскалатора или пассажирского конвейера, а также приведены ссылки на соответствующие пункты настоящего стандарта. Выполнение требований подпунктов, которые не перечислены в таблице 6, проверяют согласно указанным пунктам.
Таблица 6
Методы для проверки выполнения требований настоящего
стандарта
Номер подраздела, пункта, подпункта | | | | |
| | | | X |
| | | | X |
| X | | | |
| | X | | |
| | X | | |
| | | X | |
| | | | X |
| | | X | |
| | X | | |
| X | | X | |
| | | | X |
| X | | | |
| | | | X |
| | X | | |
| | X | | |
| | | | X |
| X | | | |
| X | | | X |
| X | | | |
| X | | | |
| X | | X | |
| | | | X |
| | X | | |
| X | | | |
| | | X | |
| X | | | |
| X | | | |
| X | | | X |
| | | X | X |
| | | X | |
| X | | | X |
| X | | | |
| X | | | X |
| | | | X |
| | X | | |
| | X | | |
| | | | X |
| | X | | |
| | | | X |
| X | | | X |
| X | | | |
| | X | | |
| | | | X |
| X | | | X |
| | | X | |
| X | | X | |
| X | | | |
| | | | X |
| | | | X |
| | | X | X |
| | | | X |
| X | | | X |
| | | | X |
| X | | | X |
| | | | X |
| X | | X | |
| X | | | |
| X | | | |
| X | | | |
| X | | | X |
| | | | X |
| | | | X |
| X | | | |
| X | | | |
| X | | | X |
| X | | | X |
| | | | X |
| X | | X | |
| | | | X |
| | | | X |
| | | | X |
| | | | X |
| X | | | |
| | | X | |
| | | | X |
| X | | | |
| X | | | |
| X | | | X |
| | | | X |
| | | | X |
| | X | | X |
| | X | | X |
| X | | | |
| | X | | X |
| | X | | |
| | | | X |
| | X | | |
| X | | | |
| | | | X |
| | | | X |
| | X | | |
| X | | | |
| | X | | |
| | X | | |
| X | | | |
| X | | | X |
| | | | X |
| | | | X |
| | | | X |
| X | | | X |
| X | | | X |
| | | | X |
| | X | | |
| X | | | X |
| X | | | X |
| | | | X |
| | X | | X |
| | | | X |
| X | X | | X |
| | X | | X |
| | | | X |
| | | | X |
| X | | | X |
| | X | | X |
| X | | | X |
| | | X | X |
<1> Результат испытания должен показать, что эскалатор/пассажирский конвейер, включая электрические устройства безопасности, работаете соответствии с техническими условиями. <2> Результат измерения должен показать, что указанные измеряемые параметры выдержаны. <3> Расчеты должны подтвердить, что проектные характеристики соответствующих элементов отвечают требованиям. <4> Результатом визуального контроля должно быть установление наличия элемента (например, маркировки, пульта управления, инструкции) того, что маркировка отвечает требованиям и что содержание документации, предоставленной владельцу, также соответствует требованиям. |
Записи о результатах проверки (например, журнал) должен вести изготовитель.
При контроле размеров в случаях механических испытаний, предусмотренных настоящим стандартом, допускаются отклонения в пределах допусков на установку.
6.2 Конкретные данные, протоколы испытаний и сертификаты
По каждой модели эскалатора/пассажирского конвейера изготовитель должен иметь в наличии следующую документацию:
a) расчет напряжений несущей металлоконструкции (см.
5.3);
b) расчет запаса прочности деталей, приводящих в движение ступени, пластины или ленту, например приводных цепей (см.
5.6.8);
c) расчет тормозных путей под нагрузкой (см.
5.7.3) вместе с допустимыми настроечными тормозными путями без нагрузки для каждого тормоза (по настроечному тормозному пути проводится регулировка тормозного момента);
d) протоколы испытаний тяговых цепей по 5.4.5.2 вместе с расчетом запаса прочности тяговых цепей по 5.4.5.1;
e) результаты испытаний по проверке запаса прочности ступеней/пластин и динамических испытаний ступеней/пластин (см.
5.4.7);
f) подтверждение разрывного усилия ленты/поручня
вместе с расчетом запаса прочности для ленты (см. 5.4.6.1);
| | ИС МЕГАНОРМ: примечание. В официальном тексте документа, видимо, допущена опечатка: перечисление r) в пункте 5.8.8.4 отсутствует. | |
g) подтверждение коэффициентов трения скольжения для фартука [см.
5.8.8.4, перечисление r)];
h) подтверждение противоскользящих свойств поверхностей настила ступеней, пластин, входных площадок, плит перекрытий (см.
приложение C);
i) результаты испытаний эскалатора/пассажирского конвейера с подтверждением значений тормозных путей и замедления (см.
5.7.3).
7 Информация по эксплуатации
Монтаж, испытания, ввод в эксплуатацию, ремонт, модернизация и эксплуатация эскалатора и пассажирского конвейера должны проводиться в соответствии с требованиями эксплуатационной документации.
7.2 Сопроводительная документация
7.2.1 Вместе с эскалатором или пассажирским конвейером должна поставляться следующая документация:
a) обоснование безопасности эскалатора или пассажирского конвейера при отступлении от требований настоящего стандарта;
b) паспорт;
c) установочный (монтажный) чертеж;
d) принципиальная электрическая схема с перечнем элементов;
e) электрические схемы соединений;
f) техническое описание;
g) руководство по эксплуатации;
h) инструкция по монтажу, пуску, регулированию и обкатке;
i) ведомость запасных частей, инструментов и принадлежностей (ЗИП) (при наличии ЗИП в поставке);
j) ведомость комплекта запасных изделий для пусконаладочных работ (при наличии запасных изделий в поставке);
k) чертежи сборочных единиц и деталей, предусмотренные контрактом на поставку оборудования;
l) ведомость документации, поставляемой с эскалатором.
Эксплуатационные документы на эскалатор или пассажирский конвейер следует разрабатывать в соответствии с ГОСТ 2.601. Они должны содержать дополнительные положения по эксплуатации машин согласно настоящему стандарту.
7.2.2 В документацию по
7.2.1 должны быть включены сведения о транспортировании, монтаже и установке, пусконаладке, использовании (настройке, обучении/программировании, эксплуатации, чистке, поиске и устранении неисправностей и техническом обслуживании) эскалатора или пассажирского конвейера и, при необходимости, - выводе из эксплуатации, демонтаже и утилизации.
7.2.3 Рекомендации по составлению сопроводительных документов
7.2.3.1 Содержание
Сопроводительные документы по
7.2.1 должны содержать:
a) сведения о транспортировании, погрузочно-разгрузочных работах и хранении эскалатора или пассажирского конвейера или его частей, например:
- условия хранения;
- габаритные размеры, массу, положение центра(ов) тяжести;
- указания по проведению погрузочно-разгрузочных операций (например, чертежи, указывающие точки крепления подъемного оборудования);
b) сведения об установке и пусконаладке эскалатора или пассажирского конвейера, например:
- расположение в здании;
- требования к креплению/фиксации и гашению вибраций;
- условия сборки и монтажа;
- пространство, необходимое для эксплуатации и технического обслуживания;
- допустимые условия окружающей среды (например, температуру, влажность, вибрацию, электромагнитное излучение, вопросы защиты от землетрясений и гражданской обороны);
- указания по подключению электропитания (в частности, относительно защиты от электрической перегрузки);
- рекомендации относительно удаления/утилизации отходов;
- рекомендации по мерам защиты, которые должен предпринять владелец, например дополнительные ограждения, безопасные расстояния, знаки и сигналы системы безопасности;
c) информацию, относящуюся к самому эскалатору или пассажирскому конвейеру, например:
- подробное описание эскалатора или пассажирского конвейера, его монтажа, ограждений и/или защитных устройств;
- полное описание возможных вариантов применения, на которые рассчитан эскалатор или пассажирский конвейер (с учетом модернизации конструкции), включая запрещенные варианты использования, если таковые имеются;
- схемы (например, схематическое представление функций обеспечения безопасности);
- техническую документацию на электрооборудование;
- документы, подтверждающие соответствие эскалатора или пассажирского конвейера техническому регламенту;
- документы, подтверждающие оценочную группу противоскользящих свойств поверхностей (настилов, покрытий входных площадок и плит перекрытия, фартуков балюстрады);
d) сведения по эксплуатации эскалатора или пассажирского конвейера:
- об использовании по назначению;
- об описании ручных органов управления (исполнительных механизмов);
- о требованиях к проверке перед пуском;
- о настройках и регулировках;
- об опасностях, которые могут оказаться неустраненными защитными мерами, принятыми проектировщиком;
- о запрещении размещения торговых точек между соседними балюстрадами или между балюстрадой и соседними конструкциями здания, на люках демонтажных шахт или вблизи них;
- о недопущении размещения вблизи эскалатора/пассажирского конвейера объектов, которые способствуют его ненадлежащему использованию;
- о недопущении создания препятствий в свободных для прохода зонах;
- об особых опасностях, которые могут создаваться определенными видами использования (включая провоз покупательских и/или багажных тележек на эскалаторах и пассажирских конвейерах, см.
приложение B), и о конкретных мерах по обеспечению безопасности, которые необходимо принять в случае таких видов использования;
- о вариантах неправильного использования, которые можно обоснованно спрогнозировать, и о недопустимых вариантах использования;
- о рекомендациях не использовать эскалаторы в качестве обычных лестниц или аварийных выходов (кроме эскалаторов метрополитенов);
- о рекомендациях заказчику обеспечить укрытие от атмосферных воздействий;
- об обнаружении и определении мест отказов, необходимом ремонте и повторном пуске после ремонта;
- о мерах по устранению отказов и ручному снятию блокировок перед повторным запуском машины;
e) информацию по техническому обслуживанию:
- о средствах индивидуальной защиты, которыми необходимо пользоваться, и необходимой подготовке персонала;
- о характере и периодичности проверок;
- указания относительно работ по техническому обслуживанию, которые требуют определенных технических знаний или конкретных навыков и, следовательно, должны проводиться исключительно квалифицированными лицами (например, специалистами, персоналом технического обслуживания);
- указания относительно работ по техническому обслуживанию (например, замене деталей), которые не требуют специальных навыков и, следовательно, могут выполняться владельцем;
- чертежи и схемы, позволяющие обслуживающему персоналу выполнять работу рационально (особенно поиск неисправностей);
- указания относительно чистки и восстановления рабочего состояния;
- о необходимости наблюдения полного оборота полотна ступеней/пластин обслуживающим персоналом перед открытием эскалатора/пассажирского конвейера для пассажиров после технического обслуживания;
- указания по использованию переносных пультов управления при техническом обслуживании и ремонте;
f) информацию о периодических проверках и об испытаниях с целью подтверждения того, что эксплуатация эскалатора или пассажирского конвейера является безопасной, включая:
- проверку блокировочных устройств с точки зрения эффективности их работы;
- проверку тормоза (или тормозов);
- контроль элементов привода на наличие видимых признаков износа, истирания, недостаточного натяжения ремней и цепей;
- контроль ступеней, пластин или ленты на наличие дефектов, правильности их перемещения по направляющим;
- контроль размеров и зазоров, указанных в настоящем стандарте;
- контроль гребенок с точки зрения их надлежащего состояния и регулирования;
- контроль щитов внутренней балюстрады и фартука;
- контроль поручней;
- проверку целостности электрического соединения между клеммой (или клеммами) заземления в приводной станции и различными частями эскалатора или пассажирского конвейера, которые могут случайно оказаться под напряжением;
g) информацию о чрезвычайных ситуациях:
- порядок действий в случае аварии или несчастного случая;
- использование устройства ручного перемещения эскалатора или пассажирского конвейера (при наличии);
- предупреждение о возможном выбросе или утечке вредного вещества (или веществ) и по возможности указание средств борьбы с его воздействием;
- для эскалаторов и пассажирских конвейеров, подверженных сейсмическим воздействиям, - инструкции, описывающие поведение оборудования при землетрясениях, информацию о необходимости периодических проверок наличия и исправности сейсмического оборудования, инструкции по проверке работоспособности и исправности эскалатора или пассажирского конвейера после сейсмического воздействия;
h) заявление о том, что уровень звукового давления, измеренный в пассажирской зоне на высоте 1,0 м от несущего полотна по всей трассе и у входных площадок, не должен превышать 75 дБА.
7.2.3.2 Представление материалов в сопроводительных документах
a) Тип и размер шрифта должны обеспечивать наилучшую читаемость. Предупреждающие знаки и/или надписи должны быть выделены цветом, символами и/или крупным шрифтом.
b) Информация по эксплуатации должна быть приведена на русском языке. Если необходимо использовать более одного языка, текст на каждом языке должен быть четко отделен от текста на других языках и должны быть приняты меры к тому, чтобы текст перевода и соответствующие иллюстрации были размещены вместе.
c) Для улучшения восприятия текст, где это возможно, должен сопровождаться иллюстрациями, размещенными в последовательности изложения.
d) Предпочтительным в тех случаях, когда это способствует лучшему пониманию, является представление информации в табличном виде. Таблицы следует размещать рядом с соответствующим текстом.
e) В отношении элементов, требующих быстрой идентификации следует использовать цветовые обозначения.
f) При большом объеме информации по эксплуатации должно быть приведено содержание и/или указатель.
g) Указания по обеспечению безопасности, которые требуют немедленных действий, должны быть четко выделены.
7.2.3.3 Рекомендации по составлению и редактированию информации по эксплуатации
a) Связь информации с конкретной моделью эскалатора или пассажирского конвейера должна быть четко идентифицирована.
b) При подготовке информации по эксплуатации следует придерживаться принципа "увидел - подумал - применил". С целью достижения максимального эффекта информация должна быть упорядочена в соответствии с последовательностью действий. Следует предвидеть вопросы "как?" и "зачем?" и предоставить ответы на них.
c) Информация по эксплуатации должна быть простой и краткой, в ней должна быть использована согласованная система терминов и единиц измерения с четким пояснением необычных технических терминов.
d) Документы с указаниями по эксплуатации должны быть выпущены в виде, предназначенном для долговременного использования (т.е. они должны быть рассчитаны на частое использование). Целесообразно снабдить их грифом "сохранить для использования в качестве справочного материала в будущем". В тех случаях, когда информация по эксплуатации хранится в электронном виде (например, на компакт-дисках, DVD-дисках, магнитной ленте), информация по безопасности, предполагающая выполнение немедленных действий, должна иметь резервную копию в виде печатного экземпляра, который должен быть легко доступен.
7.3 Сигналы и устройства предупреждения
7.3.1 Таблички, надписи и замечания по использованию
7.3.1.1 Все надписи и замечания по использованию должны быть выполнены из долговечного материала, размещены на видных местах и написаны хорошо читаемыми символами на русском языке.
7.3.1.2 У входа на эскалатор или пассажирский конвейер должны быть установлены следующие предписывающие и запрещающие знаки по
приложению A:
a) "Держать маленьких детей за руку" (см.
рисунок A.1).
d) "Пользоваться складными колясками запрещено" (см.
рисунок A.4).
Если этого требуют местные условия, возможна установка других указателей, например, "Перевозка громоздких и тяжелых грузов запрещена" или "По соображениям безопасности пассажирам в инвалидных колясках рекомендуется использовать лифт".
7.3.1.3 Выключатели "Стоп", указанные в
5.12.5.1.2, должны быть красного цвета, и либо на самом устройстве, либо в непосредственной близости от него должна быть маркирована надпись "СТОП".
7.3.1.4 Во время технического обслуживания, ремонта, контроля или аналогичных работ доступ на эскалатор или пассажирский конвейер должен быть надежно закрыт для посторонних лиц с использованием устройств, которые должны быть снабжены предупреждающей надписью: "Проход закрыт", указателем: "Входа нет" или аналогичным и однозначным по смыслу и должны находиться в непосредственной близости.
7.3.1.5 Если предусмотрен ручной привод эскалатора или пассажирского конвейера, указания по его использованию должны быть рядом с ручным приводом. Направление движения эскалатора или пассажирского конвейера должно быть ясно указано.
7.3.1.6 На дверях машинного помещения снаружи несущей конструкции, приводных и натяжных станций должна быть прикреплена табличка с надписью следующего содержания:
"Машинное помещение - опасно, посторонним вход запрещен".
7.3.2 Специальные указатели для эскалаторов и пассажирских конвейеров, запускающихся автоматически
Если эскалаторы или пассажирские конвейеры запускаются автоматически, должна быть предусмотрена ясно видимая система сигнализации, например сигналы, аналогичные сигналам регулирования дорожного движения, указывающие пассажиру, можно ли пользоваться эскалатором или пассажирским конвейером и направление его движения.
При автоматической работе в двух направлениях необходима дополнительная индикация (например, знак двустороннего движения).
Минимум у одной входной площадки должен быть указан и виден со стороны пассажирской зоны товарный знак предприятия-изготовителя, кроме того, в легкодоступном месте должна быть размещена табличка с указанием:
- наименования изготовителя;
- обозначения серии, типа или модели эскалатора (пассажирского конвейера);
- серийного (заводского) номера;
- года изготовления.
7.5.1 Общие положения
Эскалаторы и пассажирские конвейеры после монтажа на месте применения должны подвергаться осмотру, техническому освидетельствованию, испытаниям.
7.5.2 Строительный контроль
Перед монтажом эскалатора или пассажирского конвейера должны быть завершены строительные работы в здании (сооружении) в месте его установки.
Строительная часть, несущие конструкции, подводка электропитания должны быть проверены на соответствие требованиям нормативных документов, строительного задания и задания на электроснабжение.
Результаты приемки должны быть отражены в соответствующем акте (протоколе).
7.5.3 Опробование (обкатка)
7.5.3.1 Каждый вновь изготовленный эскалатор или пассажирский конвейер нормального режима работы должен в собранном виде на предприятии-изготовителе (или на месте применения) подвергаться опробованию (обкатке) в течение 12 ч непрерывной работы на номинальной скорости без нагрузки, по 6 ч в каждом направлении.
При обкатке допускаются остановки для наладки и регулировки общей продолжительностью не более 30 мин. При необходимости более длительной остановки для устранения дефектов обкатку необходимо повторить вновь.
Разъемные эскалаторы или пассажирские конвейеры подвергаются обкатке на месте применения.
7.5.3.2 Опробование (обкатка) каждого вновь установленного эскалатора или пассажирского конвейера тяжелого режима работы проводится на месте применения в течение 48 ч непрерывной работы на номинальной скорости, по 24 ч в каждом направлении.
При обкатке допускаются остановки для наладки и регулирования общей продолжительностью не более 90 мин. При необходимости более длительной остановки для устранения дефектов обкатку необходимо повторить вновь.
7.5.4 Приемка и испытания
После завершения монтажа на месте эксплуатации должна проводиться проверка соответствия эскалатора или пассажирского конвейера и его установки требованиям настоящего стандарта, приемка и испытания, которые включают:
a) общий визуальный осмотр с проверкой соответствия эскалатора или пассажирского конвейера требованиям настоящего стандарта и документации по
7.2.1;
b) измерение зазоров и размеров, связанных с установкой эскалатора или пассажирского конвейера;
c) функциональные испытания для проверки:
- номинальной и ремонтной скорости (см.
примечание) несущего полотна;
- синхронности движения несущего полотна и каждого поручня;
- настроечных тормозных путей по
5.7.11.1 при торможении несущего полотна рабочим тормозом и дополнительным тормозом.
Примечание - При использовании ручного привода для выполнения ремонтных операций измерение ремонтной скорости не проводят;
d) проверку блокировочных устройств безопасности с точки зрения эффективности их работы;
e) измерение сопротивления изоляции различных цепей между проводниками и землей. Оно должно включать в себя испытание целостности электрического соединения между клеммой (или клеммами) заземления в приводной станции и различными частями эскалатора или пассажирского конвейера, которые могут случайно оказаться под напряжением. При этом электронные элементы должны быть отключены.
При грузовых испытаниях эскалатора или наклонного пассажирского конвейера с углом наклона более 6°, загруженного согласно
5.7.11.2, проводят проверку:
- возможности эффективной остановки и удержания в неподвижном состоянии несущего полотна при торможении рабочим(и) и дополнительным тормозами;
- тормозных путей при электрическом торможении, торможении рабочим(и) и дополнительным тормозами;
- срабатывания дополнительного тормоза в случаях, предусмотренных 5.7.10.6;
- возможности пуска на номинальной скорости в любом направлении эскалаторов и наклонных пассажирских конвейеров тяжелого режима работы.
(обязательное)
ЗНАКИ БЕЗОПАСНОСТИ, ПРИМЕНЯЕМЫЕ ПРИ ИСПОЛЬЗОВАНИИ
ЭСКАЛАТОРОВ И ПАССАЖИРСКИХ КОНВЕЙЕРОВ
Дизайн знаков системы безопасности должен соответствовать ГОСТ ISO 3864-1. Минимальный диаметр знаков - 80 мм.
Рисунок A.1 - Предписывающий знак "Держать маленьких детей
за руку"
Рисунок A.2 - Предписывающий знак "Держать собак на руках"
Рисунок A.3 - Предписывающий знак "Держаться за поручень"
Рисунок A.4 - Запрещающий знак "Пользоваться складными
колясками запрещено"
(обязательное)
ТРЕБОВАНИЯ К ЭСКАЛАТОРАМ И ПАССАЖИРСКИМ КОНВЕЙЕРАМ,
ПРЕДНАЗНАЧЕННЫМ ДЛЯ ПЕРЕВОЗКИ ПОКУПАТЕЛЬСКИХ
И БАГАЖНЫХ ТЕЛЕЖЕК
B.1 Требования к эскалаторам
Провоз покупательских и багажных тележек на эскалаторах является опасным и не должен допускаться. Принципиальными причинами, по которым это считается опасным, - прогнозируемое ненадлежащее использование, перегрузка и ограничение по ширине.
В тех случаях, когда в местах вокруг эскалаторов разрешено пользоваться покупательскими и/или багажными тележками, должны быть предусмотрены соответствующие заграждения, препятствующие доступу тележек на эскалаторы.
Примечание - Покупательские или багажные тележки могут быть допущены на эскалаторы только в случае, если между изготовителем эскалатора, изготовителем указанных тележек и заказчиком согласованы специальные меры на основании оценки рисков
(см. [4]). Конструкция указанных тележек должна быть согласована между их изготовителем и изготовителем эскалатора, а возможность использования на эскалаторе несогласованных видов покупательских или багажных тележек, создающих серьезную опасность ненадлежащего использования эскалатора, должна быть исключена.
Эскалаторы должны иметь горизонтальный участок ступеней у обеих входных площадок длиной не менее 1,6 м, минимальные радиусы кривизны перехода от наклонного участка к горизонтальному: 2,6 м - у верхней входной площадки и 2,0 м - у нижней входной площадки, номинальную скорость не более 0,5 м/с и угол наклона не более 30°.
Гребенки входных площадок должны иметь угол наклона

не более 19°.
Должны быть предусмотрены дополнительные аварийные выключатели "Стоп" на уровне поручня, расположенные на расстоянии от 2,0 до 3,0 м от линий пересечения гребенок с уровнем настила ступеней. Аварийный выключатель "Стоп" рядом с местом перехода от наклонного участка к горизонтальному должен быть в зоне досягаемости эскалатора, а аварийные выключатели "Стоп" на выходе (или выходах) должны быть в зоне досягаемости снаружи эскалатора.
B.2 Требования к пассажирским конвейерам
На пассажирских конвейерах допускается провоз покупательских и багажных тележек, имеющих соответствующую конструкцию.
Конструкция покупательских или багажных тележек, которые предназначены для перевозки на пассажирском конвейере, должна быть согласована между их изготовителем и изготовителем пассажирского конвейера. Если в зоне пассажирского конвейера возможно использование покупательских или багажных тележек несогласованных видов, возникает серьезная опасность ненадлежащего использования пассажирского конвейера. Необходимо предотвратить их доступ на пассажирский конвейер.
В случае пассажирских конвейеров с наклоном более 6° номинальная скорость должна быть не более 0,5 м/с.
Гребенки входных площадок должны иметь угол наклона

не более 19°.
Должны быть предусмотрены дополнительные аварийные выключатели "Стоп" на уровне поручня, расположенные на расстоянии от 2,0 до 3,0 м вдоль пассажирского конвейера до точек, когда пластины достигают линий пересечения гребенок. Аварийный выключатель "Стоп" рядом с местом перехода от наклонного участка к горизонтальному должен быть в зоне досягаемости с пассажирского конвейера, а аварийные выключатели "Стоп" на выходе (или выходах) должны быть в зоне досягаемости снаружи пассажирского конвейера.
B.3 Требования к покупательским и багажным тележкам
Покупательские и багажные тележки должны соответствовать конструкции эскалатора/пассажирского конвейера.
Конструкция покупательской или багажной тележки должна обеспечивать безопасную и правильную погрузку.
Ширина покупательской или багажной тележки и ее содержимого должна быть не менее чем на 400 мм меньше номинальной ширины ступени/пластины. Пассажиры должны иметь возможность покинуть эскалатор/пассажирский конвейер, даже если покупательские или багажные тележки находятся на несущем полотне.
Диаметр колес покупательской или багажной тележки должен быть не менее 120 мм.
Масса покупательской или багажной тележки с нагрузкой должна быть не более 160 кг.
Тормоз покупательских или багажных тележек должен автоматически включаться на наклонной части эскалатора/пассажирского конвейера.
Покупательская или багажная тележка должна быть оснащена тормозной или блокировочной системой.
Покупательская или багажная тележка должна иметь бамперы (отражательные устройства) для уменьшения опасности зажима.
Для обеспечения безопасного схода с эскалатора/пассажирского конвейера необходимо, чтобы незаторможенные колеса покупательской или багажной тележки могли свободно прокатываться через гребенку, а заторможенные колеса могли легко отделяться от настила ступеней/пластин.
Для обеспечения правильной ориентации покупательской или багажной тележки при входе на эскалатор/пассажирский конвейер на прилегающем к входной площадке участке должны быть предусмотрены дополнительные бамперы и направляющие устройства.
Должны быть предусмотрены знаки системы безопасности, указывающие безопасные и правильные способы пользования покупательскими и багажными тележками на эскалаторе/пассажирском конвейере.
(справочное)
ОПРЕДЕЛЕНИЕ ПРОТИВОСКОЛЬЗЯЩИХ СВОЙСТВ ПОВЕРХНОСТЕЙ НАСТИЛА
СТУПЕНЕЙ И ПЛАСТИН, ВХОДНЫХ ПЛОЩАДОК И ПЛИТ ПЕРЕКРЫТИЙ
Методика определения противоскользящих свойств поверхностей настила ступеней и пластин, входных площадок и плит перекрытий основывается на том, что люди, проводящие испытание, наступают на испытуемое покрытие на наклонной плоскости. При испытаниях используется обувь с каучуковой (резиновой) профильной подошвой. Влажность покрытия соответствует условиям эксплуатации. Методику используют как средство для принятия решения, подходит ли соответствующее покрытие для использования на эскалаторах и пассажирских конвейерах.
Средний угол наклона, определяемый по нескольким измерениям, является важным параметром для отнесения покрытия к одной из пяти оценочных групп. Оценочная группа используется в качестве ориентира для определения уровня противоскользящих свойств, при этом покрытия оценочной группы R 9 отвечают самым низким противоскользящим требованиям, а покрытия оценочной группы R 13 - самым высоким. Распределение оценочных групп по углам наклона показано в таблице C.1.
Таблица C.1
Соответствие средних значений углов наклона оценочным
группам противоскользящих свойств
Среднее значение угла наклона | Оценочная группа противоскользящего свойства |
От 6° до 10° включ. | R 9 |
Св. 10° до 19° включ. | R 10 |
Св. 19° до 27° включ. | R 11 |
Св. 27° до 35° включ. | R 12 |
Св. 35° | R 13 |
Оценка противоскользящих свойств покрытий с профильными поверхностями должна учитывать все направления возможного скольжения. Для оценки безопасности должна использоваться самая низкая группа из полученных по всем направлениям.
Покрытия, которые соответствуют оценочной группе R 9, считаются противоскользящими при применении в помещениях, а покрытия, соответствующие по крайней мере оценочным группам R 10 (для эскалаторов) и R 11 (для наклонных пассажирских конвейеров), - при применении вне помещений.
Если на входных площадках эскалаторов и пассажирских конвейеров и прилегающих к ним участках пола имеются покрытия различных оценочных групп, следует принять меры, чтобы соседние участки пола отличались друг от друга не более чем на одну оценочную группу.
Поверхность с накладными элементами не подлежит оценке противоскользящих свойств покрытий эскалаторов и пассажирских конвейеров.
(рекомендуемое)
ПРИМЕРЫ ВОЗМОЖНЫХ ДИНАМИЧЕСКИХ ИСПЫТАНИЙ
НА КРУЧЕНИЕ СТУПЕНЕЙ И ПЛАСТИН
D.1 Общие положения
Нижеприведенные примеры иллюстрируют методы, которые применяются на практике для проведения динамических испытаний на кручение согласно требованиям
5.4.7.9 настоящего стандарта.
D.2 Испытание на кручение 1
Ступень/пластину следует подвергать испытанию при максимальном наклоне (на наклонной опоре), на который она рассчитана, в сборе с бегунками (невращающимися), осями или шпильками (при наличии). Ступень/пластина поддерживается и фиксируется тяговыми цепями. Для того чтобы свести к минимуму влияние бегунков на деформацию, все бегунки ступени заменяют стальными бегунками таких же основных размеров. При этом поддерживающий вспомогательный бегунок получает возможность двигаться с низким трением по опорной плоскости в поперечном направлении. Для того чтобы избежать поднятия бегунка ступени/пластины, противоположного не имеющему опоры свободному вспомогательному бегунку, применяют блокировочный зажим, параллельный площади опоры, с зазором менее 0,2 мм (испытательное оборудование см. на
рисунке D.1).
1 - со стальными бегунками; 2 - без бегунка;
3 - блокирующий зажим, параллельный плоскости опоры;
F - динамическая нагрузка
Примечание - Рисунок не определяет конструкцию.
Рисунок D.1 - Испытательное оборудование для испытания
ступени и пластины на кручение
Для того чтобы создать возможность кручения ступени/пластин, один вспомогательный бегунок лишают опоры или снимают. Кроме того, центр этого вспомогательного бегунка способен перемещаться вниз на расстояние от 0 до минус 4 мм, двигаясь по дуге, центром которой является центр основного бегунка ступени/пластины. Четырехмиллиметровое смещение относится к расстоянию между вспомогательным бегунком и центром основного бегунка ступени/пластины, равному 400 мм. Указанное соотношение выдерживают и при изменении размера 400 мм.
Динамическую нагрузку прилагают перпендикулярно к поверхности настила через стальную пластинку, расположенную согласно
5.4.7.5 настоящего стандарта в центре поверхности настила, что приводит к отклонению лишенного опоры бегунка или отсутствующего вспомогательного бегунка.
D.3 Испытание на кручение 2
Ступень/пластина крепится осями основных бегунков и одной осью вспомогательных бегунков, как показано на
рисунке D.2 (при таком испытании бегунки не устанавливают). Ось каждого основного бегунка имеет опору в том месте, где обычно располагается тяговая цепь. Ступень/пластина может свободно вращаться вокруг, но она не скользит вдоль оси цепи. Закрепленный конец оси вспомогательных бегунков удерживается на шаровой цапфе, позволяющей свободно двигаться во всех направлениях. Нижний конец цапфы крепится шарнирно к неподвижной опоре.
1 - точка вращения; 2 - тяга (только с одной стороны
ступени); F - динамическая нагрузка
Примечание - Рисунок не определяет конструкцию.
Рисунок D.2 - Принцип испытания на кручение ступени
и пластины
Свободный конец оси вспомогательного бегунка соединяют шарнирно с исполнительным устройством. Нижний конец исполнительного устройства соединяют шарнирно с неподвижной опорой, так что свободный конец оси вспомогательного бегунка может двигаться в любом направлении. Ось исполнительного устройства перпендикулярна к плоскости, в которой лежат обе оси, - и вспомогательного бегунка, и основного бегунка.
Ограничивающие и исполнительные тяги используют шарикоподшипники той же конструкции, что и подшипник вспомогательного бегунка. В испытательном узле используют штатные крепления вспомогательных бегунков и прилагают установленные крутящие моменты.
Исполнительное устройство создает и снимает усилие в каждом направлении, так что вызывает циклическое линейное смещение. Максимальное смещение составляет 2 мм в обе стороны относительно номинального "нулевого" положения ступени/пластины (т.е. от положения, когда оси основного бегунка и вспомогательного бегунка находятся в одной плоскости).
Смещение +/- 2 мм относится к расстоянию между вспомогательным бегунком и центром основного бегунка, равному 400 мм. Указанное соотношение выдерживается и при изменении размера 400 мм.
(справочное)
ОПРЕДЕЛЕНИЕ СКОЛЬЗЯЩИХ СВОЙСТВ ОБУВИ ПО ФАРТУКУ БАЛЮСТРАДЫ
Скользящие свойства обуви по фартуку балюстрады проверяются на горизонтальной жесткой поверхности, к которой крепится отрезок фартука длиной не менее 1000 мм. Жесткую пластину толщиной не менее 10 мм, размером примерно 100 x 100 мм с закрепленным на ее поверхности материалом подошвы обуви устанавливают на фартук так, чтобы испытуемый материал был обращен к фартуку, и нагружают усилием Q не менее 100 Н (с учетом массы пластины). К пластине через динамометр прикладывают горизонтальное усилие F, обеспечивающее ее перемещение с равномерной скоростью.
Коэффициент трения определяют по формуле

(E.1)
Для того чтобы воспроизвести имеющиеся на эскалаторе условия как можно ближе к реальности, должны быть проведены испытания скользящих свойств резины, трущейся о щиты фартука, в условиях, указанных в
5.8.8.4, перечисление d).
Коэффициент трения скольжения

рассчитывают по трем - пяти отдельным измерениям.
(обязательное)
ЭЛЕКТРОННЫЕ ЭЛЕМЕНТЫ. ИСКЛЮЧЕНИЕ НЕИСПРАВНОСТЕЙ
F.1 Область применения
Пункт 5.12.2.2 настоящего стандарта предусматривает ряд отказов электрооборудования эскалатора и пассажирского конвейера.
В ходе анализа неисправностей некоторые отказы можно исключать при определенных условиях.
Настоящее приложение описывает такие условия и устанавливает требования, которые необходимо выполнять для их соблюдения.
F.2 Условия исключения неисправностей
a) перечень основных и наиболее распространенных элементов, используемых в технологиях современной электроники; элементы сгруппированы в "семейства":
1) пассивные элементы - 1;
2) полупроводниковые приборы - 2;
3) прочие - 3;
4) сборка элементов на печатной плате - 4;
b) выявляемые неисправности:
1) разрыв цепи - I;
2) короткое замыкание - II;
3) изменение значения в большую сторону - III;
4) изменение значения в меньшую сторону - IV;
5) изменение функции - V;
c) возможность и условия исключения неисправности.
Главное условие исключения неисправности заключается в том, что элементы следует использовать в условиях (с точки зрения температуры, влажности, напряжения и вибраций), не худших, чем это определено для них в стандартах, технических условиях и т.д.;
- слово "Нет" в таблице означает, что неисправность не исключается, т.е. возможность ее возникновения должна быть рассмотрена;
- пустая графа означает, что указанный тип отказа не имеет отношения к данному случаю.
Примечание - Руководство по проектированию цепей безопасности приведено в
приложении I.
Таблица F.1
Исключение неисправностей
Семейство элементов | Исключение возможной неисправности | Условие, необходимое для исключения неисправности |
I | II | III | IV | V |
1 Пассивные элементы | | | | | | |
1.1 Постоянный резистор | Нет | 1) | Нет | 1) | | 1) Только в случае пленочных резисторов с лаковой или герметизированной пленкой сопротивления и аксиальным соединением в соответствии со стандартами и в случае проволочных резисторов, если они выполнены однослойной намоткой, защищенной эмалью или герметизированной. |
1.2 Переменный резистор | Нет | Нет | Нет | Нет | |
1.3 Нелинейный резистор | | | | | |
1.3.1 С отрицательным температурным коэффициентом (NTC) | Нет | Нет | Нет | Нет | |
1.3.2 С положительным температурным коэффициентом (PTC) | Нет | Нет | Нет | Нет | |
1.3.3 Нелинейное сопротивление (VDR) | Нет | Нет | Нет | Нет | |
1.3.4 Индуктивное сопротивление (IDR) | Нет | Нет | Нет | Нет | |
1.4 Конденсатор | Нет | Нет | - | Нет | |
1.5 Индуктивные элементы: | Нет | Нет | | Нет | |
- катушка индуктивности | | | | | |
- дроссель | | | | | |
2 Полупроводниковые приборы | | | | | | |
2.1 Диод, светодиод (LED) | Нет | Нет | | | Нет | Изменение функции означает изменение значения обратного тока. |
2.2 Диод Зенера (стабилитрон) | Нет | Нет | | Нет | Нет | Изменение значения в сторону уменьшения означает изменение напряжения Зенера. Изменение функции означает изменение значения обратного тока. Изменение функции означает самовозбуждение или блокировку элементов. |
2.3 Тиристор, симистор, запираемый тиристор (GTO) | Нет | Нет | | | Нет |
2.4 Оптрон | Нет | 2) | | | Нет | I означает разомкнутую цепь в одном из двух основных элементов (светодиоде и фототранзисторе); II означает короткое замыкание между ними. 2) Можно исключить при условии, что оптрон соответствует ГОСТ 29283 и напряжение развязки соответствует нижеприведенной таблице |
|
| Напряжение "фаза-земля", полученное из номинального напряжения системы до и включая среднеквадратичную и постоянную составляющую тока, В | Предпочтительная серия импульсного выдерживаемого напряжения для электроустановки (категория III), В | |
50 | 800 |
100 | 1500 |
150 | 2500 |
300 | 4000 |
600 | 6000 |
1000 | 8000 |
|
2.5 Гибридные схемы | Нет | Нет | Нет | Нет | Нет | |
2.6 Интегральные схемы | Нет | Нет | Нет | Нет | Нет | Изменение функции: колебания, при которых логический элемент "И" становится элементом "ИЛИ" и т.д. |
3 Прочие | | | | | | 3) Применяется нормативный документ <*> при условии, что: - класс устойчивости к загрязнениям - 3; - группа материала - III; - имеет место неоднородное поле. Если класс защиты разъема выше IP4X (в соответствии с ГОСТ 14254), длину путей токов утечки можно уменьшить до значений зазоров, приведенных в нормативном документе <*>. |
| Нет | | 3) | | |
Клеммы | | | | | |
Штекеры | | | | | |
3.2 Неоновая лампа | Нет | Нет | | | | |
3.3 Трансформатор | Нет | 4) | 5) | 5) | | 4) Короткие замыкания включают в себя короткие замыкания первичной или вторичной обмоток или между первичной и вторичной обмотками. 5) Изменение значения означает изменение коэффициента трансформации при частичном коротком замыкании обмотки. 4) и 5) Можно исключить при условии, что сопротивление изоляции и напряжение между полюсом и землей соответствуют ГОСТ 30030 (пункты 17.2; 17.3). |
3.4 Плавкий предохранитель | | 6) | | | | II означает короткое замыкание перегоревшего предохранителя. 6) Можно исключить, если предохранитель имеет правильный номинал и выполнен в соответствии с нормативным документом <**>. |
3.5 Реле | Нет | 7) | | | | 7) Короткие замыкания между контактами и между контактами и катушкой можно исключить, если реле отвечает требованиям 5.11.4.4; 5.12.4.6.2. |
| | 8) | | | | 8) Сварку контактов исключить нельзя. Однако, если конструкция реле предусматривает наличие контактов с принудительной механической блокировкой и выполнено в соответствии с ГОСТ IEC 60947-5-1, применяются предположения, изложенные в 5.11.4.3. |
| Нет | 9) | | | | Общие технические характеристики печатной платы соответствуют ГОСТ 23752. Основной материал должен соответствовать техническим требованиям ГОСТ 26246.10 и/или ГОСТ 26246.14. 9) Применяется нормативный документ <*> при условии, что: - класс устойчивости к загрязнениям - 3; - группа материала - III; - имеет место неоднородное поле. Если класс защиты разъема выше IP4X (в соответствии с ГОСТ 14254, длину путей токов утечки можно уменьшить до значений зазоров, приведенных в нормативном документе <*> |
4 Сборка элементов на печатной плате | Нет | 10) | | | | 10) Короткое замыкание можно исключить при условии, что короткое замыкание самого элемента можно исключить и ни методика монтажа, ни сама печатная плата не уменьшают длину путей токов утечки и зазоры ниже минимальных допустимых значений, указанных в 3.1 и 3.6 настоящей таблицы |
Условные обозначения: I - разрыв цепи; II - короткое замыкание; III - изменение значения в  сторону; IV - изменение значения в меньшую сторону; V - изменение функции. |
(обязательное)
ЭСКИЗНОЕ ПРОЕКТИРОВАНИЕ И ОЦЕНКА ОТКАЗОУСТОЙЧИВЫХ ЦЕПЕЙ
Рисунок G.1 - Блок-схема эскизного проектирования и оценки
отказоустойчивых цепей по
5.12.4.7.5 настоящего стандарта
(обязательное)
ИСПЫТАНИЕ ОТКАЗОУСТОЙЧИВЫХ ЦЕПЕЙ, СОДЕРЖАЩИХ ЭЛЕКТРОННЫЕ
ЭЛЕМЕНТЫ, И/ИЛИ ПРОГРАММИРУЕМЫХ ЭЛЕКТРОННЫХ СИСТЕМ (Э/Э/ПЭ)
H.1 Общие сведения
В случае отказоустойчивых цепей, содержащих электронные элементы, необходимо проводить лабораторные испытания, так как практические проверки на месте эксплуатации инспекторами невозможны.
В настоящем приложении под отказоустойчивыми цепями подразумеваются печатные платы. Если отказоустойчивая цепь собрана иным образом, следует рассматривать эквивалентную сборку.
H.2 Общие положения
H.2.1 Отказоустойчивые цепи, содержащие электронные элементы
Для проведения испытаний изделия в специализированную лабораторию должны быть представлены:
a) идентификационные данные платы;
b) информация об условиях эксплуатации;
c) перечень используемых элементов;
d) топология печатной платы;
e) топология гибридных элементов и маркировка проводников, используемых в отказоустойчивых цепях;
f) функциональное описание;
g) электрические характеристики, включая электромонтажную схему (при наличии), в том числе определения входов и выходов платы.
H.2.2 Цепи безопасности, содержащие программируемые электронные системы (Э/Э/ПЭ)
В дополнение к
H.2.1 должна быть представлена следующая документация:
a) описание конструкции и использования;
b) общее описание используемого программного обеспечения (правила программирования, язык программирования, компилятор, модули);
c) функциональное описание, включая структуру программного обеспечения и взаимодействия программного обеспечения и аппаратных средств;
d) описание блоков, модулей, данных, переменных интерфейсов;
e) перечень программного обеспечения.
H.3 Испытательные образцы
В специализированную лабораторию должны быть представлены:
a) одна печатная плата;
b) одна печатная плата без установленных элементов.
H.4 Механические испытания
H.4.1 Общие положения
В ходе испытаний объект, проходящий испытания (печатная плата), должен работать. Во время и после испытаний в отказоустойчивой цепи не должно возникать сбоев в ее работе.
Датчики отказоустойчивых цепей должны соответствовать следующим требованиям:
a) по стойкости к вибрации при качании с частотой 20 циклов качания по каждой оси - ГОСТ 28203-89,
пункт A.6.1 (приложение A);
таблица C.2 (приложение C):
1) с амплитудой 0,35 мм или 5gn,
2) частотой в диапазоне 10 - 55 Гц;
1) одним импульсом по каждой оси с максимальным ускорением 294 м/с2 или 30gn,
2) соответствующей продолжительностью импульса 11 мс и
3) соответствующим изменением скорости 2,1 м/с при полусинусоидальных импульсах.
Примечание - В тех случаях, когда датчики снабжены амортизаторами, они считаются частью датчиков.
После испытаний зазоры и длины путей токов утечки не должны становиться меньше минимально допустимых.
H.4.3.1 Общие положения
Испытания на стойкость к ударам моделируют случаи, когда печатные платы падают, что создает опасность излома элементов и возникновения опасной ситуации. Испытания следует проводить в соответствии с
ГОСТ 28215.
Испытания делят на частичное испытание стойкости к ударным воздействиям и испытание стойкости к непрерывным ударным воздействиям. Во время испытания не требуется, чтобы цепи работали.
H.4.3.2 Частичное испытание на стойкость к ударным воздействиям
Объект испытания должен отвечать следующим минимальным требованиям:
a) формы ударных воздействий - 1 импульс по каждой оси (полусинусоидальный);
b) амплитуда ускорения - 15g;
c) продолжительность ударного воздействия - 11 мс.
H.4.3.3 Испытание стойкости к непрерывным ударным воздействиям
Объект испытания должен отвечать следующим минимальным требованиям:
- амплитуда ускорения - 10g;
- продолжительность ударного воздействия - 16 мс;
1) число ударов - 1000 +/- 10;
2) частота ударов - 2/с.
H.5 Климатические испытания
H.5.1 Испытания стойкости к воздействию температур
Испытания стойкости к воздействию температур следует проводить в соответствии с ГОСТ 28209 следующим образом:
a) предельные значения рабочих температур окружающей среды: 0 °C, 65 °C (температура окружающего воздуха электрического устройства безопасности в пульте управления);
b) условия проведения испытания:
1) печатная плата должна находиться в рабочем положении;
2) печатная плата должна быть подключена к источнику питания со штатным номинальным напряжением;
3) электрическое устройство безопасности должно работать во время испытания и после него. Если печатная плата содержит элементы, отличные от отказоустойчивых цепей, они также должны работать во время испытания (их отказ не учитывается);
4) испытания проводят при минимальной и максимальной температурах (0 °C, 65 °C); продолжительность испытаний - не менее 4 ч;
5) если печатная плата предназначена для эксплуатации в более широком диапазоне температур, она должна быть подвергнута испытанию в этом расширенном диапазоне.
H.5.2 Испытания стойкости к воздействию влажности
Испытания стойкости к воздействию влажности для отказоустойчивых цепей не требуются, поскольку эскалаторы/пассажирские конвейеры должны иметь класс защиты от загрязнения, длины путей токов утечки и зазоры, указанные в настоящем стандарте.
H.6 Проверка функционирования и безопасности (Э/Э/ПЭ)
Проверку функционирования и безопасности (Э/Э/ПЭ) следует проводить в соответствии с нормативным документом
(см. [3]).
(справочное)
РУКОВОДСТВО ПО ПРОЕКТИРОВАНИЮ ЦЕПЕЙ БЕЗОПАСНОСТИ
Данное руководство содержит рекомендации по исключению опасных ситуаций, обусловленных коротким замыканием в одном или нескольких электрических устройствах безопасности или обрывом провода заземления в сочетании с одной или несколькими другими неисправностями при поступлении от цепи безопасности сигнала для решения задач управления, дистанционного управления, управления сигнализацией и т.д.
При проектировании цепей безопасности необходимо:
- соблюдать расстояния по
3.1 и
3.6 таблицы F.1 (приложение F) для элементов цепей безопасности и печатных плат;
- располагать общий провод заземления системы управления в общей электросхеме эскалатора/пассажирского конвейера за электронными элементами. В этом случае любое нарушение заземления (например, из-за корректировки электросхемы в процессе эксплуатации) будет приводить к отключению системы управления;
- исходить из возможности возникновения "наихудшего сочетания" неблагоприятных факторов;
- использовать внешние (не входящие в состав элемента) предохранители в качестве защитных устройств; внутренние предохранители устройств не следует считать надежными;
- использовать только элементы, имеющие паспорта, сертификаты, технические условия;
- учитывать возможную самоиндукцию электронных приборов;
- проводить выбор и монтаж заземляющих устройств и защитных проводников в соответствии с нормативным документом
(см. [6]);
- осуществлять повторный анализ возможности возникновения "наихудшего сочетания" неблагоприятных факторов при внесении изменений в электросхему эскалатора/пассажирского конвейера с учетом внесенных изменений.
Допускается не учитывать:
- неисправности, указанные в
таблице F.1 (приложение F);
- неисправности электрооборудования, не входящего в состав эскалатора/пассажирского конвейера;
- нарушение электрического соединения между заземлением оборудования эскалатора/пассажирского конвейера и общим заземляющим контуром здания/сооружения при условии соответствия заземляющих устройств и защитных проводников указанного оборудования требованиям соответствующего нормативного документа
(см. [6]).
(обязательное)
ЭСКАЛАТОРЫ И ПАССАЖИРСКИЕ КОНВЕЙЕРЫ, ПОДВЕРЖЕННЫЕ
СЕЙСМИЧЕСКИМ ВОЗДЕЙСТВИЯМ
J.1 Введение
В настоящем приложении указаны специальные требования безопасности к устройству и установке эскалаторов и пассажирских конвейеров в зданиях и сооружениях, расположенных в сейсмичных районах.
J.2 Требования к установке
J.2.1 Общие положения
Эскалаторы и пассажирские конвейеры, подверженные сейсмическим воздействиям, должны соответствовать требованиям безопасности и/или защитным мерам настоящего приложения.
J.2.2 Требования к опорам
Опоры эскалаторов и пассажирских конвейеров при установке на фундаменты здания/сооружения должны быть закреплены так, чтобы конструкции эскалатора и пассажирского конвейера не оказались зажатыми при сейсмических воздействиях. Одна опорная конструкция должна быть выполнена в виде неподвижной опоры, а остальные опоры должны быть выполнены как скользящие в горизонтальном направлении.
Должны быть приняты конструктивные меры для недопущения смещения эскалаторов и пассажирских конвейеров с их опор в вертикальном направлении при сейсмических воздействиях.
J.2.3 Расположение опор
Расположение опор эскалаторов и пассажирских конвейеров должно учитывать возможные перемещения строительных перекрытий на разных этажах здания или вертикальных уровнях сооружения. Опоры должны быть спроектированы таким образом, чтобы при максимально возможном горизонтальном смещении строительных перекрытий на разных этажах/уровнях они оставались в пределах опорной площадки фундаментов.
J.2.4 Механические предохранительные устройства для эскалаторов и пассажирских конвейеров
Если конструкция эскалатора или пассажирского конвейера и его опорных площадок не гарантирует, что эскалатор или пассажирский конвейер остается в безопасном положении на опорах при сейсмическом воздействии, необходимо применять дополнительные механические ограничительные устройства, препятствующие падению эскалатора или пассажирского конвейера с опоры.
J.3 Требования к конструкции
J.3.1 Общие положения
Величина максимального ускорения грунта agR должна быть согласована между заказчиком и поставщиком эскалатора или пассажирского конвейера. Данное ускорение должно быть указано в проектной документации здания/сооружения и в договоре на поставку эскалатора или пассажирского конвейера.
J.3.2 Металлоконструкция
Металлоконструкция эскалатора или пассажирского конвейера должна соответствовать сейсмичности района, обеспечивать способность рассеивать энергию и выдерживать проектное землетрясение в регионе, где он расположен.
J.3.3 Масса эскалаторов и пассажирских конвейеров
Для проектных расчетов эскалаторов и пассажирских конвейеров силы должны определяться с учетом согласованного ускорения грунта (agR).
Для определения горизонтальных и вертикальных сил на эскалаторах и пассажирских конвейерах следует использовать вес конструкции плюс сейсмическую нагрузку на ступень/пластину
QSE, равную произведению коэффициента сейсмической нагрузки

на нагрузку
Q (см.
5.2.6.2)
или максимальную эксплуатационную нагрузку qм.э (см. 5.2.6.2, 5.2.6.3.1), умноженную на глубину ступени/пластины y1 (см. рисунок 5 и 5.4.2.3).
J.3.4 Нагрузки и деформации во время сейсмического воздействия
В расчетах сейсмическую нагрузку следует классифицировать как:
- исключительную нагрузку для районов с низкой сейсмической активностью;
- стандартную переменную нагрузку в зонах регулярной сейсмической активности.
Коэффициент важности

выбирают равным 0,85.
Трение на опорах не учитывается при расчете опорных реакций.
Пластическая деформация допускается, если она не влияет на целостность металлоконструкции, опор и работоспособность эскалатора или пассажирского конвейера. Целостность металлоконструкции и опор и работоспособность эскалатора или пассажирского конвейера должны быть проверены специализированной организацией после сейсмического воздействия до того, как эскалатор или пассажирский конвейер могут быть возвращены в эксплуатацию.
J.3.5 Процедуру расчета сейсмических воздействий проводят в соответствии с требованиями нормативных документов государств, проголосовавших за принятие настоящего стандарта.
J.4 Требования к оборудованию
Оборудование эскалатора или пассажирского конвейера должно быть спроектировано и закреплено с учетом предотвращения смещения в результате приложенных к нему сил, включая силы, создаваемые ускорением грунта (agR).
J.5 Требования к системе управления
В случае если здание/сооружение оборудовано сейсмическим датчиком, система управления эскалатора или пассажирского конвейера должна иметь возможность подключения к этому датчику и остановки эскалатора или пассажирского конвейера в случае сейсмической активности. Эта функция должна иметь ручной сброс.
(справочное)
СВЕДЕНИЯ О СООТВЕТСТВИИ ССЫЛОЧНЫХ МЕЖГОСУДАРСТВЕННЫХ
СТАНДАРТОВ МЕЖДУНАРОДНЫМ СТАНДАРТАМ, ИСПОЛЬЗОВАННЫМ
В КАЧЕСТВЕ ССЫЛОЧНЫХ В ПРИМЕНЕННОМ СТАНДАРТЕ EN
Таблица ДА.1
Обозначение ссылочного межгосударственного стандарта | Степень соответствия | Обозначение и наименование ссылочного международного стандарта |
ГОСТ ISO 3864-1-2013 | IDT | ISO 3864-1:2011 "Графические символы, сигнальные цвета и знаки безопасности. Часть 1. Принципы проектирования знаков и сигнальной разметки" |
| IDT | ISO 12100:2010 "Безопасность машин. Общие принципы конструирования. Оценка рисков и снижение рисков" |
(IEC 60529:2013) | MOD | IEC 60529 (2013) "Степени защиты, обеспечиваемые оболочками (код IP)" |
ГОСТ 26246.10-89 (МЭК 249-2-11-87) | MOD | IEC 249-2-11-87 "Материал электроизоляционный фольгированный тонкий общего назначения для многослойных печатных плат на основе стеклоткани, пропитанной эпоксидным связующим. Технические условия" |
ГОСТ 26246.14-91 (МЭК 249-3-1-81) | MOD | IEC 249-3-1-81 "Материалы электроизоляционные фольгированные для печатных плат. Склеивающая прокладка, используемая при изготовлении многослойных печатных плат. Технические условия" |
(МЭК 68-2-6-82) | MOD | IEC 68-2-6-82 "Основные методы испытаний на воздействие внешних факторов. Часть 2. Испытания. Испытание Fc и руководство: Вибрация (синусоидальная)" |
ГОСТ 28209-89 (МЭК 68-2-14-84) | MOD | IEC 68-2-14-84 "Основные методы испытаний на воздействие внешних факторов. Часть 2. Испытания. Испытание N: Смена температуры" |
(МЭК 68-2-27-87) | MOD | IEC 68-2-27-87 "Основные методы испытаний на воздействие внешних факторов. Часть 2. Испытания. Испытание Ea и руководство: Одиночный удар" |
(МЭК 68-2-29-87) | MOD | IEC 68-2-29-87 "Основные методы испытаний на воздействие внешних факторов. Часть 2. Испытания. Испытание Eb и руководство: Многократные удары" |
ГОСТ 29283-92 (МЭК 747-5-84) | MOD | IEC 747-5-84 "Полупроводниковые приборы. Дискретные приборы и интегральные схемы. Часть 5. Оптоэлектронные приборы" |
| IDT | IEC 60227-3 (1997) "Кабели с поливинилхлоридной изоляцией на номинальное напряжение до 450/750 В включительно. Часть 3. Кабели без оболочки для стационарной прокладки" |
| IDT | IEC 60227-4 (1997) "Кабели с поливинилхлоридной изоляцией на номинальное напряжение до 450/750 В включительно. Часть 4. Кабели в оболочке для стационарной прокладки" |
| IDT | IEC 60227-5 (2011) "Кабели с поливинилхлоридной изоляцией на номинальное напряжение до 450/750 В включительно. Часть 5. Гибкие кабели (шнуры)" |
| IDT | IEC 60227-6 (2001) "Кабели с поливинилхлоридной изоляцией на номинальное напряжение до 450/750 В включительно. Часть 6. Лифтовые кабели и кабели для гибких соединений |
| IDT | IEC 60947-5-1:2009 "Аппаратура распределения и управления низковольтная. Часть 5-1. Аппараты и коммутационные элементы цепей управления. Электромеханические устройства цепей управления" |
Примечание - В настоящей таблице использованы следующие условные обозначения степени соответствия стандартов: - IDT - идентичные стандарты; - MOD - модифицированные стандарты. |
(справочное)
СОПОСТАВЛЕНИЕ СТРУКТУРЫ НАСТОЯЩЕГО СТАНДАРТА
СО СТРУКТУРОЙ ПРИМЕНЕННОГО В НЕМ СТАНДАРТА EN
Таблица ДБ.1
Структура настоящего стандарта | Структура стандарта EN 115-1:2017 |
Разделы | Пункты, подпункты, рисунки | | Пункты, подпункты, рисунки |
| | 5 | 5.1 |
| 5.2.1.4 |
| - | |
| 5 | 5.4.1.2.2; 5.4.1.2.3 |
| 5.6.1 |
| - | |
| 5 | 5.2.2 |
| 5.3.2.1 |
| Приложение H | H.1 |
| - | |
| Приложение H | H.2 |
| - | |
| 5 | 5.2.5 |
| 5.4.2.1.3.1; 5.4.2.1.3.3 |
| - | |
| 5 | Рисунок 5 |
| Рисунок 6 |
| Рисунок 7 |
| Приложение A | Рисунок A.1 |
| 5 | Рисунок 8 |
| Рисунок 9 |
| Рисунок 10 |
| Рисунок 11 |
| Рисунок 1 |
| Рисунок 2 |
| 5.2.5, абзац 1 |
| 5.2.5, абзац 2, абзац 3 |
| 5.4.3.1, абзац 1, абзац 2 |
| 5.3.2.2.3; 5.3.2.2.8; 5.3.2.3.1; 5.3.2.3.5, абзац 1 |
| | | 5.3.2.2.4; 5.3.2.2.9 |
| | 5.3.2.3.5, абзац 2 |
| | 5.3.3.1, абзац 1 |
| | 5.3.1, абзац 2 |
| | 5.3.5, абзац 2 |
| | 5.3.2.2 |
| 5 | 5.3.2.1 |
| 5.3.2.2.1 |
| 5.3.2.2.2 |
| 5.3.2.2.5; 5.3.2.3.2 |
| 5.3.2.2.6; 5.3.2.3.3 |
| 5.3.2.2.7; 5.3.2.3.4 |
| 5.3.1, абзац 1 |
| 5.7.2.1 |
| 5.7.2.4 |
| 5.3.5, абзацы 1, 3 |
| 5.3.4, абзацы 1, 2; 5.5.5 |
| 5.7.2.2 |
| 5.7.2.3 |
| - | |
| 5 | 5.12.2.7.10 |
| 5.3.6; 5.12.2.7.11 |
| 5.4.3.1, абзац 3; 5.12.2.7.5 |
| - | |
| - | |
| | 5 | 5.3.4, абзац 3 |
| - | |
| 5 | 5.4.1.3.2; 5.4.3.2, абзацы 2, 3 |
| - | |
| 5 | 5.4.3.3; 5.12.2.7.6 |
| 5.4.4.1 |
| 5.3.3.1, абзац 2 |
| 5.4.4.2; 5.12.2.7.6 |
| 5.3.3.2.4 |
| 5.3.3.1, абзац 4 |
| - | |
| 5 | 5.3.3.2.1, абзац 3 5.3.3.2.3, абзац 5 |
| - | |
| 5 | 5.3.3.2.1, абзацы 1, 2 5.3.3.2.3, абзацы 1 - 4 |
| 5.3.3.2.1, абзац 5 |
| 5.3.3.2.2 |
| 5.3.3.3.1.1; 5.3.3.3.2.1 |
| 5.3.3.3.1.2; 5.3.3.3.2.2 |
| 5.7.3.1 |
| 5.7.1 |
| 5.7.3.2.1; 5.7.3.3 |
| 5.7.3.2.2 |
| 5.7.3.2.3 |
| 5.7.3.2.4 |
| 5.7.2.5, абзацы 1, 2 |
| 5.7.3.2.5 |
| 5.7.3.2.6; 5.12.2.7.7 |
| Приложение A | A.2.9 |
| 5 | 5.4.1.1 |
| 5.4.2.1.1; 5.4.2.1.2; 5.4.1.2.3 с дополнением |
| | Приложение H | H.2 с уточнением |
| - | |
| 5 | 5.4.1.3.1 с дополнением |
| - | |
| 5 | 5.4.1.3.2 |
| 5.4.1.4, абзацы 1, 3 |
| 5.4.1.4, абзац 2 |
| - | |
| 5 | 5.4.2.1.1.1, абзац 1; 5.12.3.5.2.1 |
| 5.4.2.1.1.2, абзац 1; 5.4.2.1.1.3, абзац 1 |
| 5.4.2.1.3.2, абзац 1; 5.4.2.1.3.4, абзац 1 |
| 5.4.2.1.3.2, абзац 3; 5.4.2.1.3.4, абзац 3 |
| 5.4.2.1.3.2, абзацы 4, 5; 5.4.2.1.3.4, абзацы 4, 5 |
| 5.12.3.10; 5.12.2.8 |
| 5.12.2.7.12 |
| 5.4.2.1.1.3, абзац 1; 5.12.3.5.2.2.1 |
| 5.4.2.1.1.3, абзац 2 |
| 5.12.3.5.2.2.1; 5.12.3.5.2.2.2 |
| 5.12.2.9.2 |
| 5.12.3.5.1, абзац 2 |
| 5.4.2.1.2, абзац 1 |
| 5.4.2.1.2, абзац 2 |
| 5.4.2.1.2, абзац 3 |
| 5.12.3.5.1, абзацы 3, 4 |
| - | |
| 5 | 5.4.2.1.1.5 |
| - | |
| 5 | 5.4.2.2.1, абзац 1 |
Приложение H | H.2 |
| | 5 | 5.4.2.2.1, абзац 2 с дополнением |
| 5.4.2.2.2, абзац 1 с дополнением |
| 5.4.2.2.2, абзац 2 |
| 5.4.2.2.3 |
| 5.12.3.5.3 |
| 5.4.2.2.5 |
| - | |
| 5 | 5.4.2.1.3.1; 5.4.2.1.3.3 |
| 5.2.1.1; 5.2.1.3 |
| 5.5.1 |
| 5.5.2.1 |
| 5.5.4.1 |
| 5.5.4.2 |
| 5.5.2.2, абзацы 1 - 3 |
| 5.5.2.2, абзацы 4, 5 |
| 5.5.2.2, абзацы 6, 7 |
| 5.5.2.6 |
| 5.5.2.4, абзацы 1 - 3 |
| 5.5.2.3; 5.5.2.4, абзац 4 |
| 5.5.2.4, абзац 5 |
| 5.5.2.5 |
| 5.5.3.1 |
| 5.5.3.2 |
| 5.5.3.3 |
| 5.5.3.4 без перечисления c) |
| 5.5.3.4, перечисление c) |
| 5.2.1.2 |
| 5.2.4, без второго предложения абзаца 2 |
| | 5 | 5.2.4, второе предложение абзаца 2 |
| 5.2.1.5 |
| - | |
| 5 | 5.6.1, абзац 1 |
| 5.6.1, абзац 2; 5.12.2.7.13 |
| 5.6.2.1, абзац 1 |
| 5.6.2.1, абзац 2 |
| 5.6.2.1, абзац 2 |
| 5.6.2.2 |
| 5.6.2.3 |
| 5.6.3 |
| 5.6.4.1 |
| 5.6.4.2 |
| 5 | 5.6.4.3; 5.12.2.7.9 с дополнением |
| 5.6.5 с дополнением |
| Приложение A | A.3.1 |
| 5 | 5.2.3, A.3.2 |
| 5.8.1, абзацы 1, 2 |
| 5.8.1, абзац 3 |
| - | |
| 5 | 5.8.2.1 |
| 5.8.2.2 |
| 5.8.3.2 |
| 5.8.2.3 |
| Приложение A | A.3.3 |
| A.3.4 |
| - | |
| Приложение A | A.3.5 |
| A.3.6 |
| - | |
| Приложение A | A.3.7 с дополнением |
| - | |
| 5 | 5.8.3.1 |
| 5.8.3.3 |
| 5.12.2.7.17 |
| | 5.11.1.2.1 |
| | 5.11.1.2.2 |
| 5.11.1.1, абзац 1 |
| - | |
| 5 | 5.11.1.3 |
| 5.11.1.4 |
| 5.11.1.5 |
| 5.11.1.6 |
| 5.11.2.1.1 |
| 5.11.2.1.2 |
| 5.11.2.1.3; 5.11.2.1.4 |
| 5.11.2.2 |
| 5.12.1.3 |
| 5.11.3 |
| 5.11.4.1; 5.11.4.2 |
| 5.11.4.3 |
| 5.11.4.4 |
| 5.12.1.5 |
| - | |
| 5 | 5.12.1.2; 5.12.1.4 |
| 5.12.2.7; 5.12.2.9 |
| 5.12.2.2 |
| 5.12.2.3 |
| - | |
| |
| 5 | 5.12.2.4 |
| 5.12.2.6.1 |
| 5.12.2.6 |
| 5.12.3.9 |
| 5.12.2.5 |
| 5.12.2.6.3; 5.12.2.7.1; 5.12.2.9.1 |
| 5.12.3.2 |
| 5.12.3.8; A.5, абзац 4 |
| - | |
| | 5 | 5.12.3.13 |
| 5.12.3.2 |
| 5.12.3.3; 5.12.3.4 |
| 5.12.3.6 |
| 5.12.3.7 |
| 5.12.3.8 |
| 5.12.3.9 |
| 5.12.3.11 |
| 5.12.3.12 |
| 5.4.2.3; 5.12.2.7.2; 5.12.2.7.3 |
| 5.2.5, абзац 1 |
| Приложение A | A.2.1; A.2.2 |
| A.2.2 |
| A.2.2 |
| Приложение A | A.2.3 |
| A.2.4 |
| - | |
| Приложение A | A.2.5, абзацы 1 - 3 |
| A.2.6 |
| A.2.7 |
| A.2.8; A.2.9 |
| A.5 |
| - | |
| Приложение A | A.4; 5.12.2.7.19 |
| 5 | 5.9 |
| 5.10 |
| | 6 | 6 |
| | - | |
| 7 | 7.1 |
| 7.4 |
| 7.2 |
| 7.5 |
| 7.3 |
Приложения | | Приложения | G |
| I |
| J |
| F |
| K.2 |
| B |
| C |
| D |
| E |
| M |
Примечания 1 Сопоставление структуры стандартов приведено, начиная с раздела 5, т.к. предыдущие разделы стандартов и их структурные элементы (за исключением предисловия и раздела 3.1, в который введены дополнительные термины и определения) идентичны. 2 Прочерк в столбце "Раздел" структуры стандарта EN 115-1:2017 означает, что в соответствующий пункт/подпункт настоящего стандарта введены дополнительные требования для учета потребностей национальной экономики государств, проголосовавших за принятие настоящего стандарта. |
| МЭК 60204-1:2005 | Безопасность машин. Электрооборудование машин и механизмов. Часть 1. Общие требования |
(IEC 60204-1:2005) | (Safety of machinery - Electrical equipment of machines - Part 1: General requirements) |
| МЭК 60947-4-1:2009 | Аппаратура распределения и управления низковольтная. Часть 4-1. Контакторы и пускатели. Электромеханические контакторы и пускатели |
(IEC 60947-4-1:2009) | (Low-voltage switchgear and controlgear - Part 4-1: Contactors and motor-starters - Electromechanical contactors and motor-starters) |
| МЭК 62061:2005 + A1:2012 | Безопасность машин и механизмов. Функциональная безопасность электрических, электронных и программируемых электронных систем управления, связанных с безопасностью |
(IEC 62061:2005 + A1:2012) | (Safety of machinery - Functional safety of safety-related electrical, electronic and programmable electronic control systems) |
| МЭК 60664.1:2007 | Координация изоляции для оборудования в низковольтных системах. Часть 1. Принципы, требования и испытания |
(IEC 60664.1:2007) | (Insulation coordination for equipment within low-voltage systems - Part 1: Principles, requirements and tests) |
| МЭК 60269-1:2006 | Предохранители низковольтные плавкие. Часть 1. Общие требования |
(IEC 60269-1:2006) | (Low-voltage fuses - Part 1: General requirements) |
| МЭК 60364-5-54:2011 | Электрические установки зданий. Часть 5-54. Выбор и монтаж электрооборудования. Заземляющие устройства, защитные проводники и проводники уравнивания потенциалов |
(IEC 60364-5-54:2011) | (Electrical installations of buildings - Part 5-54: Selection and erection of electrical equipment - Earthing arrangements, protective conductors and protective bonding conductors) |
УДК 621.876.32:006.354 | | MOD |
Ключевые слова: эскалаторы, пассажирские конвейеры, опасности, требования безопасности, термины, определения, устройство, установка, параметры, размеры, конструкция, лестничное полотно, лента, ступени, пластины, направляющие, входные площадки, поручень, балюстрада, тормоза, блокировочные устройства, управление |