Главная // Актуальные документы // ГОСТ (Государственный стандарт)СПРАВКА
Источник публикации
М.: ФГБУ "Институт стандартизации", 2024
Примечание к документу
Документ
вводился в действие с 01.05.2024.
Приказом Росстандарта от 24.07.2024 N 959-ст дата введения в действие данного документа перенесена на 01.05.2025 с правом досрочного применения.
Название документа
"ГОСТ 33128-2024. Межгосударственный стандарт. Дороги автомобильные общего пользования. Ограждения дорожные. Технические требования"
(введен в действие Приказом Росстандарта от 26.03.2024 N 354-ст)
"ГОСТ 33128-2024. Межгосударственный стандарт. Дороги автомобильные общего пользования. Ограждения дорожные. Технические требования"
(введен в действие Приказом Росстандарта от 26.03.2024 N 354-ст)
агентства по техническому
регулированию и метрологии
от 26 марта 2024 г. N 354-ст
МЕЖГОСУДАРСТВЕННЫЙ СТАНДАРТ
ДОРОГИ АВТОМОБИЛЬНЫЕ ОБЩЕГО ПОЛЬЗОВАНИЯ
ОГРАЖДЕНИЯ ДОРОЖНЫЕ
ТЕХНИЧЕСКИЕ ТРЕБОВАНИЯ
Automobile roads of general use. Road restraint systems.
Technical requirements
ГОСТ 33128-2024
| | Приказом Росстандарта от 24.07.2024 N 959-ст дата введения в действие данного документа перенесена на 01.05.2025 с правом досрочного применения. | |
Дата введения
1 мая 2024 года
Цели, основные принципы и общие правила проведения работ по межгосударственной стандартизации установлены
ГОСТ 1.0 "Межгосударственная система стандартизации. Основные положения" и
ГОСТ 1.2 "Межгосударственная система стандартизации. Стандарты межгосударственные, правила и рекомендации по межгосударственной стандартизации. Правила разработки, принятия, обновления и отмены"
1 РАЗРАБОТАН Обществом с ограниченной ответственностью "Малое инновационное предприятие "НИИ Механики и проблем качества" (ООО "МиПК"), Межгосударственным техническим комитетом по стандартизации МТК 418 "Дорожное хозяйство"
2 ВНЕСЕН Федеральным агентством по техническому регулированию и метрологии
3 ПРИНЯТ Межгосударственным советом по стандартизации, метрологии и сертификации (протокол от 31 января 2024 г. N 169-П)
За принятие проголосовали:
Краткое наименование страны по МК (ИСО 3166) 004-97 | Код страны по МК (ИСО 3166) 004-97 | Сокращенное наименование национального органа по стандартизации |
Азербайджан | AZ | Азстандарт |
Беларусь | BY | Госстандарт Республики Беларусь |
Киргизия | KG | Кыргызстандарт |
Россия | RU | Росстандарт |
Узбекистан | UZ | Узстандарт |
4
Приказом Федерального агентства по техническому регулированию и метрологии от 26 марта 2024 г. N 354-ст межгосударственный стандарт ГОСТ 33128-2024 введен в действие в качестве национального стандарта Российской Федерации с 1 мая 2024 г.
Информация о введении в действие (прекращении действия) настоящего стандарта и изменений к нему на территории указанных выше государств публикуется в указателях национальных стандартов, издаваемых в этих государствах, а также в сети Интернет на сайтах соответствующих национальных органов по стандартизации.
В случае пересмотра, изменения или отмены настоящего стандарта соответствующая информация будет опубликована на официальном интернет-сайте Межгосударственного совета по стандартизации, метрологии и сертификации в каталоге "Межгосударственные стандарты"
Настоящий стандарт распространяется на дорожные ограждения по
ГОСТ 33127 и устанавливает технические требования к ним.
В настоящем стандарте использованы нормативные ссылки на следующие межгосударственные стандарты:
ГОСТ 9.307 Единая система защиты от коррозии и старения. Покрытия цинковые горячие. Общие требования и методы контроля
ГОСТ 2349 Устройства тягово-сцепные системы "крюк-петля" автомобильных и тракторных поездов. Основные параметры и размеры. Технические требования
ГОСТ 32865 Дороги автомобильные общего пользования. Знаки переменной информации. Технические требования
ГОСТ 32866 Дороги автомобильные общего пользования. Световозвращатели дорожные. Технические требования
ГОСТ 32945 Дороги автомобильные общего пользования. Знаки дорожные. Технические требования
ГОСТ 33127 Дороги автомобильные общего пользования. Ограждения дорожные. Классификация
ГОСТ 33129-2024 Дороги автомобильные общего пользования. Ограждения дорожные. Методы контроля
Примечание - При пользовании настоящим стандартом целесообразно проверить действие ссылочных стандартов и классификаторов на официальном интернет-сайте Межгосударственного совета по стандартизации, метрологии и сертификации (www.easc.by) или по указателям национальных стандартов, издаваемым в государствах, указанных в предисловии, или на официальных сайтах соответствующих национальных органов по стандартизации. Если на документ дана недатированная ссылка, то следует использовать документ, действующий на текущий момент, с учетом всех внесенных в него изменений. Если заменен ссылочный документ, на который дана датированная ссылка, то следует использовать указанную версию этого документа. Если после принятия настоящего стандарта в ссылочный документ, на который дана датированная ссылка, внесено изменение, затрагивающее положение, на которое дана ссылка, то это положение применяется без учета данного изменения. Если ссылочный документ отменен без замены, то положение, в котором дана ссылка на него, применяется в части, не затрагивающей эту ссылку.
В настоящем стандарте применены термины по
ГОСТ 33127, а также следующие термины с соответствующими определениями:
3.1
автомобиль прикрытия: Автомобиль, оборудованный проблесковым маячком оранжевого или желтого цвета и временными техническими средствами организации дорожного движения, предназначенный для ограждения (обозначения и защиты) мест краткосрочных работ (событий). |
3.2 виртуальное испытание дорожного ограждения: Компьютерное моделирование, имитирующее реальные условия наезда автомобиля на испытуемое дорожное ограждение или другого типа ударные воздействия.
Примечание - Компьютерное моделирование - по
ГОСТ 33129.
3.3 выбег испытательного автомобиля: Процесс неуправляемого движения испытательного автомобиля после прекращения контакта с ограждением.
3.4 высота дорожного ограждения: Расстояние в вертикальной плоскости от наивысшей точки продольного конструктивного элемента дорожного ограждения до уровня обочины, покрытия на мостовом сооружении, разделительной полосе или проезжей части, измеренное у лицевой поверхности дорожного ограждения.
Примечания
1 При наличии тротуара или газона (с бортовым камнем) или цоколя высоту дорожного ограждения определяют до уровня дорожного покрытия, а пешеходного - до уровня поверхности тротуара или газона.
2 Высоту дорожного защитного ограждения определяют до уровня поверхности земли или покрытия.
3.5 динамический прогиб дорожного бокового ограждения: Максимальное горизонтальное смещение лицевой поверхности бокового ограждения в поперечном направлении относительно лицевой поверхности недеформированного ограждения при наезде на него испытательного автомобиля.
3.6 изделие: Комплект элементов дорожного ограждения одной марки, изготовленный по одному заказу, необходимый для его сборки и установки.
3.7 индекс тяжести травмирования: Показатель, характеризующий инерционную перегрузку по трем взаимно перпендикулярным осям в центре тяжести испытательного автомобиля, действующую на пассажиров при его наезде на дорожное ограждение.
3.8 испытательный автомобиль: Транспортное средство, применяемое при испытании дорожного ограждения, для совершения наезда.
3.9 класс зоны перенаправления: Показатель, характеризующий траекторию движения испытательного автомобиля после наезда на фронтальное ограждение или терминал.
3.10 класс скорости столкновения: Условная скорость наезда транспортного средства на ограждение, при котором обеспечивается безопасность находящихся в транспортном средстве людей.
3.11 конусность дорожного фронтального ограждения: Отношение разности двух торцевых поперечных сечений дорожного фронтального ограждения (ширины передней и задней части) к расстоянию между ними.
3.12 лицевая поверхность дорожного ограждения: Поверхность дорожного ограждения, максимально приближенная к проезжей части дороги в поперечном направлении.
3.13 марка дорожного ограждения: Условное буквенно-цифровое обозначение изделия.
3.14 натурное испытание дорожного ограждения: Испытание дорожного ограждения, установленного на испытательной площадке, методом наезда на него испытательным автомобилем.
Примечание - Испытание дорожного ограждения - по
ГОСТ 33129.
3.15 переходный элемент: Элемент индивидуального проектирования, не являющийся частью рабочего участка ограждения и предназначенный для соединения разных конструкций дорожных ограждений.
3.16 остаточный прогиб бокового ограждения: Максимальное горизонтальное смещение лицевой поверхности деформированного рабочего участка бокового ограждения в поперечном направлении относительно лицевой поверхности недеформированной части ограждения, измеренное после наезда на него испытательного автомобиля.
3.17 рабочая ширина бокового ограждения: Максимальное динамическое боковое смещение испытательного автомобиля или элемента дорожного ограждения относительно лицевой поверхности недеформированного дорожного ограждения при наезде.
3.18 семейство ограждений: Дорожные ограждения одного типа, состоящие из одинаковых конструктивных элементов и материалов.
3.19 торцевая плоскость фронтального ограждения: Передняя часть конструкции дорожного фронтального ограждения, воспринимающая удар при наезде транспортного средства.
3.20 торцевая плоскость мобильного фронтального ограждения: Передняя часть конструкции мобильного фронтального ограждения, воспринимающая фронтальный удар при наезде транспортного средства.
3.21 удерживающая способность бокового ограждения: Способность дорожного ограждения удерживать транспортное средство на автомобильной дороге при наезде с определенной энергией удара без опрокидывания или переезда через ограждения.
3.22 уровень пассивной безопасности: Показатель ограждения, характеризующийся диапазоном значений индекса тяжести травмирования.
3.23 уровень удерживающей способности бокового ограждения: Показатель удерживающей способности ограждения, характеризующийся энергией удара.
3.24 концевой участок бокового ограждения: Дополнительная часть дорожного ограждения, расположенная после рабочего участка дорожного ограждения (по ходу движения транспортного средства).
3.25 начальный участок бокового ограждения: Дополнительная часть дорожного ограждения, расположенная перед рабочим участком дорожного ограждения (по ходу движения транспортного средства).
3.26 переходный участок бокового ограждения: Участок ограждения, предназначенный для сопряжения разных конструкций боковых ограждений.
3.27 рабочий участок бокового ограждения: Основная часть дорожного ограждения, предназначенная для восприятия ударных нагрузок при наезде транспортного средства.
3.28 цифровые (виртуальные) испытания: Определение количественных и (или) качественных характеристик свойств объекта испытаний как результата исследования свойств цифровой модели (или цифрового двойника) этого объекта.
3.29 энергия удара: Начальное значение кинетической энергии удара (наезда), передаваемой ограждению.
4 Условные обозначения и сокращения
4.1 В настоящем стандарте применены сокращения по
ГОСТ 33127.
4.2 Дорожные ограждения должны иметь марку изделия, позволяющую идентифицировать конструкцию ограждения.
4.3 Марка ограждения должна состоять из двух частей: основной, в соответствии с
приложением А, и дополнительной, приведенной в
приложении Б.
Дополнительная часть, отделенная от основной части наклонной чертой, должна содержать основные конструктивные параметры дорожного ограждения в соответствии с СТО (ТУ) предприятия-изготовителя и номер СТО (ТУ). Требования к дополнительной части марки должны быть приведены в СТО (ТУ) и предполагать однозначную идентификацию изделия.
4.4 Примеры условного обозначения марки дорожного ограждения приведены в
приложении В.
5 Общие технические требования
5.1.1 Дорожные ограждения должны соответствовать конструкторской документации, ТУ или СТО предприятия-изготовителя, утвержденным в установленном порядке.
Дорожные ограждения допускается изготавливать из металла, бетона и других материалов.
5.1.2 Над деформационными швами пролетных строений мостовых сооружений балка барьерного ограждения или блоки парапетного ограждения должны иметь возможность относительного перемещения в стыке секций на значение расчетных перемещений в деформационном шве.
5.1.3 Элементы ограждений должны иметь конструктивно-технологические решения, снижающие агрессивное воздействие окружающей среды, и быть изготовлены из материалов, стойких в среде эксплуатации.
При использовании метода горячего цинкования покрытие должно иметь толщину не менее 80 мкм для основных элементов (стоек, балок, консолей), 60 мкм - для малогабаритных деталей, 30 мкм - для крепежных деталей, не менее 250 г/м2 - для тросов.
При термодиффузионном покрытии толщина покрытия должна быть не менее 80 мкм для основных элементов и малогабаритных деталей и 30 мкм для крепежных деталей.
Стальные открытые элементы парапетных ограждений должны быть защищены цинковым покрытием толщиной не менее 80 мкм.
При использовании других видов защитных антикоррозийных покрытий срок службы покрытия должен быть не менее срока эксплуатации конструкции дорожного ограждения, указанного в СТО (ТУ) предприятия-изготовителя и (или) указанного в национальных стандартах.
5.1.4 Защитное покрытие должно иметь достаточный уровень сцепления с основным металлом. Прочность сцепления покрытия считается удовлетворительной, если подтверждена испытаниями по
ГОСТ 9.307.
5.1.5 Линейные размеры дорожных ограждений должны соответствовать требованиям конструкторской документации, ТУ или СТО (ТУ) предприятия-изготовителя при максимальных отклонениях, не превышающих указанных в
таблице 1.
5.1.6 Конструкция бокового дорожного ограждения должна обеспечивать установленные уровни удерживающей способности.
5.1.7 Энергия удара для каждого уровня удерживающей способности рабочего участка дорожных боковых ограждений должна быть не ниже установленной в
таблице 2.
Таблица 1
Максимальные отклонения линейных размеров
Размеры в миллиметрах
Линейный размер | Допустимое отклонение |
Менее 10 включ. | +/- 0,2 |
Св. 10 до 20 включ. | +/- 0,5 |
Св. 20 до 1000 включ. | +/- 2 |
Св. 1000 до 2000 включ. | +/- 5 |
Св. 2000 | +/- 10 |
Таблица 2
Энергия удара для уровней удерживающей способности
Уровень удерживающей способности | У1 | У2 | У3 | У4 | У5 | У6 | У7 | У8 | У9 | У10а | У10б |
Значение энергии удара, кДж | 130 | 190 | 250 | 300 | 350 | 400 | 450 | 500 | 550 | 600 | 724 |
Примечание - Значение энергии удара при наезде грузовым транспортным средством (ТС), автобусом или автопоездом должно быть не менее указанного в данной таблице. Значение энергии удара при наезде легковым автомобилем может быть ниже указанного и должно определяться по ГОСТ 33129. |
5.1.8 Уровень пассивной безопасности рабочего участка боковых дорожных ограждений, ФО, терминалов должен соответствовать требованиям таблицы 3.
Таблица 3
Уровни пассивной безопасности
боковых дорожных ограждений, ФО, терминалов
Уровень пассивной безопасности | Индекс тяжести травмирования И |
А | И <= 1,0 |
Б | И <= 1,4 |
Примечание - Для определения уровня пассивной безопасности дорожного ограждения применяют максимальное значение индекса тяжести травмирования. |
5.2.1 Рабочие участки
5.2.1.1 Для каждой марки рабочего участка ограждения по результатам испытаний должен быть подтвержден уровень удерживающей способности, определены динамический прогиб, рабочая ширина и соответствие конструкции требованиям безопасности, указанным в
5.9.
5.2.1.2 Минимальная длина установки ограждения, позволяющая обеспечить заявленные уровень удерживающей способности, динамический прогиб и рабочую ширину и соответствие конструкции требованиям безопасности, должна определяться предприятием-изготовителем.
5.2.2 Переходные участки боковых ограждений
5.2.2.1 При соединении двух разных типов или конструкций боковых ограждений конец одного типа ограждения должен накладываться на начало другого типа дорожного бокового ограждения.
5.2.2.2 При соединении дорожного бокового барьерного ограждения с парапетным ограждением необходимо предусмотреть постепенное доведение шага стоек до 1,0 м с максимальной кратностью изменения шага стоек 1,0 м. При этом протяженность участков с одинаковым шагом стоек должна быть не менее 8,0 м. Балка барьерного ограждения должна быть жестко прикреплена к блоку парапетного ограждения с применением переходного элемента.
5.2.2.3 При соединении односторонних и двусторонних боковых ограждений должен быть выполнен плавный переход с одного ограждения к другому, без разрывов, с применением переходного элемента.
5.2.2.4 При соединении барьерных ограждений, отличающихся количеством применяемых балок по высоте, нижние балки должны быть плавно соединены, верхняя балка должна быть выполнена с понижением до уровня земли на расстоянии не более максимального шага стоек стыкуемых рабочих участков ограждения или оканчиваться концевым элементом.
5.3 Фронтальные ограждения
5.3.1 На торцевой плоскости фронтального ограждения должна быть нанесена вертикальная дорожная разметка в виде чередующих наклонных полос.
Форму, размеры, цвет типов вертикальной разметки устанавливают в национальных стандартах, действующих на территории государства, принявшего настоящий стандарт.
5.3.2 Общая площадь вертикальной разметки должна быть не менее 95% площади торцевой поверхности дорожного фронтального ограждения.
5.3.3 Для каждой марки фронтального ограждения по результатам испытаний должен быть подтвержден класс скорости столкновения и определены индекс тяжести травмирования, класс зоны перенаправления, соответствие конструкции требованиям пассивной безопасности.
5.3.4 Класс зоны перенаправления определяют в соответствии с таблицей 4.
Таблица 4
Классы зоны перенаправления испытательного автомобиля
Класс зоны перенаправления | Значение ширины зоны перенаправления z, м |
Z1 | z <= 4 |
Z2 | 4,0 < z <= 6 |
Z3 | z > 6 |
5.4.1 На торцевой плоскости терминала должна быть нанесена вертикальная дорожная разметка в виде чередующихся наклонных полос.
Форму, размеры, цвет типов вертикальной разметки устанавливают в национальных стандартах, действующих на территории государства, принявшего настоящий стандарт.
5.4.2 Для каждой марки терминала по результатам испытаний должен быть подтвержден класс скорости столкновения, определены индекс тяжести травмирования, класс зоны перенаправления, значения рабочей ширины и соответствие конструкции требованиям пассивной безопасности.
5.4.3 Класс зоны перенаправления определяют в соответствии с
таблицей 4.
5.5 Мобильные фронтальные ограждения
5.5.1 Масса автомобиля прикрытия должна соответствовать массе ТС, указанного в СТО (ТУ) предприятия - изготовителя МФО.
5.5.2 ПМФО должны соответствовать требованиям, устанавливаемым в документах, принятых в государствах - участниках Соглашения, к прицепам колесных ТС.
5.5.3 ПМФО буксируется автомобилем прикрытия или ТС, сцепное устройство которого должно соответствовать требованиям
ГОСТ 2349 и (или) требованиям, устанавливаемым в документах, принятых в государствах - участниках Соглашения.
5.5.4 На торцевой плоскости МФО должна быть нанесена вертикальная дорожная разметка.
Форму, размеры, цвет типов вертикальной разметки устанавливают в национальных стандартах.
5.5.5 На МФО должно быть предусмотрено наличие дорожных световозвращателей типа КД1 и (или) КД2 и (или) КД5-КI по
ГОСТ 32866 и знаков со световой индикацией по
ГОСТ 32865 или
ГОСТ 32945.
На МФО допускается устанавливать динамическое информационное табло в соответствии с требованиями СТО (ТУ) предприятия-изготовителя.
5.5.6 Для каждой марки МФО по результатам испытаний должен быть подтвержден класс скорости столкновения, определены индекс тяжести травмирования, длина перемещения грузового автомобиля прикрытия и соответствие конструкции требованиям безопасности, указанным в
5.9.
5.5.7 Уровень пассивной безопасности МФО должен соответствовать требованиям таблицы 5.
Таблица 5
Уровни пассивной безопасности МФО
Уровень пассивной безопасности | Индекс тяжести травмирования И |
А | И <= 1,0 |
Б | 1,0 < И <= 1,4 |
В | 1,4 < И <= 1,9 |
5.6 Удерживающие пешеходные ограждения
5.6.1 УПО должны обеспечивать прочность и жесткость при вертикальной нагрузке 1,27 кН, приложенной к поручню.
5.6.2 Высота УПО должна быть не менее 1,1 м.
5.6.3 В разреженных секциях УПО расстояние в свету (разреженность) между вертикальными элементами заполнения должно быть не более 150 мм.
5.6.4 Расстояние от уровня поверхности, на которой устанавливают УПО, до нижней перекладины секции не должно превышать 150 мм.
5.7 Ограничивающие пешеходные ограждения
5.7.1 ОПО перильного и иных типов должны обеспечивать прочность и жесткость при вертикальной нагрузке 0,3 кН, приложенной к поручню.
5.7.2 ОПО сетчатого типа должны обеспечивать прочность и жесткость при горизонтальной распределенной нагрузке на полотно ограждения не менее 0,2 кН/м
2.
5.7.3 Высота дорожных ОПО перильного типа должна быть не менее 0,8 м, сетчатого и иных типов - не менее 1,2 м.
Высота защитных ограждений должна быть не менее 2,0 м.
5.9 Пассивная безопасность
5.9.1 Требования безопасности для терминалов, фронтальных ограждений и МФО обеспечиваются, если:
а) испытательный автомобиль, вступивший в контакт с ограждением, не опрокинулся перед ограждением или через ограждение;
б) не произошло проникновение деталей ограждения в салон (кабину) испытательного автомобиля;
в) средний коэффициент сохранности внутренних размеров легкового автомобиля, полученный по результатам измерений, должен быть не менее 0,9, а наименьший коэффициент - не менее 0,8;
г) выбег испытательного автомобиля соответствует требованиям
5.9.4 для фронтального ограждения и
5.9.5 для терминала;
д) значение показателя индекса тяжести травмирования при наезде испытательного автомобиля не превышает:
1) 1,4 - для терминала, дорожного фронтального ограждения;
2) 1,9 - для мобильного фронтального ограждения.
5.9.2 Требования безопасности для рабочих участков боковых ограждений обеспечиваются, если удовлетворены требования
5.9.1 а) -
в), а также:
- значение показателя индекса тяжести травмирования при наезде испытательного автомобиля не превышает 1,4;
- выбег испытательного автомобиля соответствует требованиям
5.9.3;
- при наезде испытательного автомобиля на рабочий участок бокового ограждения барьерного типа не произошел разрыв балки;
- при наезде испытательного автомобиля на рабочий участок бокового ограждения парапетного типа не произошло полного раскрытия соединительных элементов ограждения или смещения блоков относительно друг друга более чем на 10 см;
- при наезде испытательного автомобиля на рабочий участок тросового ограждения не произошло разрыва хотя бы одного троса;
- при наезде испытательного автомобиля на рабочий участок комбинированного или иного ограждения не произошло разрыва продольного элемента ограждения (балки, троса).
5.9.3 Для бокового ограждения безопасным считается выбег, при котором испытательный автомобиль после взаимодействия с ограждением движется в пределах коридора шириной
K на длине
B (см.
рисунок 1) и не более одного колеса испытательного автомобиля пересекли лицевую поверхность деформируемого участка ограждения.
1 - испытуемое дорожное ограждение;
2 - ось лицевой поверхности ограждения до наезда;
3 - траектория движения ТС; 4 - траектория выбега,
удовлетворяющая требованиям безопасности; 5 - траектория
выбега, не удовлетворяющая требованиям безопасности;
K - ширина коридора; B - длина коридора
Рисунок 1 - Границы коридора выбега испытательного
автомобиля после наезда на боковое ограждение (вид сверху)
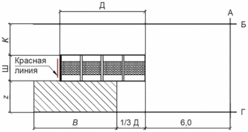
5.9.4 Для фронтального ограждения безопасным считается выбег, при котором:
- колесо испытательного автомобиля не пересекло линию А, Б или Г (см.
рисунок 2а) для режимов испытаний N 1 - 4 (см.
рисунок 5 ГОСТ 33129-2024) и перемещалось в пределах коридора выбега (см.
рисунок 2б) для режима испытания N 5 (см.
рисунок 5 ГОСТ 33129-2024);
- автомобиль или элементы конструкции дорожного фронтального ограждения не пересекли красную линию (см.
рисунок 2а), которой обозначается конец дорожного фронтального ограждения.
5.9.5 Для терминала безопасным считается выбег, при котором:
- в процессе и после наезда колесо испытательного автомобиля не пересекло линию А, Б, Г или Д (см.
рисунок 3а) для испытаний N 1, 2 (см.
рисунок 3 ГОСТ 33129-2024) и двигалось в пределах коридора выбега
(рисунок 3б), установленного для испытания N 3 (см.
рисунок 3 ГОСТ 33129-2024);
- в процессе и после наезда ТС движется в пределах полосы шириной
z на длине коридора
B (см.
рисунок 3б).
| |
а - для режимов испытаний N 1, 2, 3, 4 | б - для режима испытания N 5 |
Ш - ширина дорожного фронтального ограждения;
Д - длина дорожного фронтального ограждения; z - ширина зоны
перенаправления; B - длина коридора выбега (линию Г проводят
параллельно лицевой поверхности дорожного фронтального
ограждения), равная 10,0 м
Примечание - Ширину зоны перенаправления определяют после испытаний в соответствии с
таблицей 3.
Рисунок 2 - Границы коридора выбега испытательного
автомобиля после наезда на дорожное фронтальное
ограждение (вид сверху)
6.1 Требования к комплектности дорожных ограждений должны быть приведены в СТО (ТУ) предприятия-изготовителя.
6.2 Дорожные ограждения (изделия) должны сопровождаться документацией предприятия-изготовителя, содержащей:
- все предусмотренные предприятием-изготовителем составные элементы дорожного ограждения;
- документ о качестве со штампом службы технического контроля предприятия-изготовителя о приемке;
- копия сертификата соответствия требованиям технического регламента или другим стандартам, принятым в государствах - участниках Соглашения;
- инструкции по установке ограждения;
- маркировочные бирки в необходимом количестве в соответствии с
разделом 7.
Размеры в метрах
а - для режимов испытаний N 1 и N 2 по
таблице 3
1 - деформированный терминал; 2 - рабочий участок бокового
ограждения; 3 - ось рабочего участка бокового ограждения;
z - ширина зоны перенаправления; B - длина коридора
Примечание - Ширину зоны перенаправления определяют после испытаний в соответствии с
таблицей 3.
Рисунок 3 - Границы коридора выбега испытательного
автомобиля после наезда на терминал (вид сверху)
7.1 Каждое изделие должно иметь маркировочную бирку.
7.2 Надписи, знаки и изображения на маркировочных бирках должны быть выполнены способом, обеспечивающим сохранность их как при хранении, так и в процессе всего гарантийного срока эксплуатации дорожных ограждений.
7.3 Маркировочная бирка должна содержать информацию в соответствии с
приложением Г и быть нанесена на видном месте для обзора и прочтения.
Маркировочную бирку наносят любым способом, обеспечивающим требования
7.2:
- на первой и последней секциях балки или стойке рабочего участка бокового ограждения барьерного типа;
- на первой и последней стойках рабочего участка бокового ограждения тросового типа;
- на верхнем ребре первого и последнего блоков сборного бокового ограждения парапетного типа;
- в начале и конце рабочих участков монолитного бокового ограждения парапетного типа;
- на фронтальном ограждении;
- на терминале;
- на мобильном фронтальном ограждении;
- на начальной и концевой секциях каждого участка установленного дорожного удерживающего и ограничивающего пешеходного ограждения, а также защитного ограждения.
7.4 Маркировочная бирка на боковое ограждение, терминал и фронтальное ограждение должна быть нанесена организацией, осуществляющей монтаж ограждения, после установки изделия на автомобильной дороге.
Маркировочная бирка на МФО наносится изготовителем ограждения.
7.5 Маркировку транспортной тары и мест захвата для подъема груза следует осуществлять согласно
ГОСТ 14192 и требованиям чертежей предприятия-изготовителя.
Требования к упаковке дорожных ограждений - в соответствии с требованиями национальных стандартов, действующих на территории государства, принявшего настоящий стандарт, и СТО (ТУ) предприятия-изготовителя.
9.1.1 Изготовленные дорожные ограждения должны быть приняты отделом или службой технического контроля предприятия-изготовителя.
9.1.2 Для проверки соответствия элементов дорожных ограждений требованиям настоящего стандарта предприятие-изготовитель должно проводить приемо-сдаточные и приемочные испытания.
9.1.3 Приемо-сдаточным испытаниям подвергают элементы дорожных ограждений на их соответствие требованиям
5.1.1,
5.1.3,
5.1.5,
5.3.1,
5.3.2,
5.4.1,
5.5.4,
5.5.5,
5.6.2 -
5.6.4,
5.7.3,
5.8,
разделов 6 -
8.
Контроль проводят в объеме 5% от партии, но менее трех штук.
Партией следует считать одноименные элементы конструкции, изготовленные по одной технологии без переналадки оборудования, на которые оформлен один сопроводительный документ.
9.1.4 Если при проверке хотя бы один элемент дорожного ограждения по какому-либо показателю не будет соответствовать требованиям настоящего стандарта, то проводят проверку удвоенного числа элементов, отобранных из той же партии.
При неудовлетворительных результатах повторной проверки партию бракуют или же осуществляют приемку всех элементов дорожного ограждения поштучно.
На принятые партии должно быть оформлено свидетельство о приемке или приемо-сдаточный акт.
9.1.5 До начала массового производства дорожных ограждений должны быть проведены приемочные испытания по
5.1.6 -
5.1.8,
5.3.3,
5.3.4,
5.4.2,
5.4.3,
5.5.6,
5.5.7,
5.6.1,
5.7.1,
5.7.2, которые также должны быть проведены:
- при изменении технологии их производства;
- изменении материала изготовления;
- изменении конструкции.
9.1.6 В СТО (ТУ) предприятия-изготовителя для каждой марки ограждения должны быть приведены сведения о проведении испытаний по
ГОСТ 33129:
- вид испытаний (натурные или виртуальные);
- наименование испытательной лаборатории (центра);
- номер протокола испытаний;
- коэффициент критичности (для барьерных ограждений).
9.2 Объединение ограждений в одно семейство
9.2.1 Дорожные боковые ограждения барьерного типа разных марок одного производителя могут быть объединены в одно семейство, если:
- в ограждениях семейства применяют одинаковые профили;
- не изменяют консоль;
- материалы каждого элемента ограждений, входящих в одно семейство, одной марки и не имеют отличий в механических характеристиках более чем на 30%;
- в конструкции стоек изменены только габаритные размеры и/или толщины стенок при сохранении профиля стойки;
- площадь поперечного сечения их стоек отличается не более чем на 30% от наибольшего значения (сравнение проводят во всех местах в которых меняется площадь поперечного сечения);
- не изменены узлы соединения (количество и геометрия отверстий, соединительные элементы) балка-балка, балка-консоль, консоль-стойка, балка-стойка;
- ограждения отнесены к одной группе (дорожной или мостовой) и подгруппе (односторонней или двусторонней);
- не изменено количество ярусов балок ограждения по высоте;
- высота ограждений:
1) изменена не более чем на 15% для дорожной группы;
2) находится в пределах 0,75 - 0,80 м или 0,9 - 1,5 м для мостовой группы;
- одинаковая величина заглубления стоек в дорожную одежду.
9.2.2 Дорожные боковые ограждения парапетного типа разных марок одного производителя могут быть объединены в одно семейство, если:
- ограждения имеют одинаковый профиль лицевой (рабочей) поверхности блока;
- ограждения имеют одинаковые соединительные элементы блоков между собой и отличаются только их толщиной и высотой не более чем на 30%;
- общая площадь армирования увеличена не более чем на 30%;
- материалы каждого элемента ограждений, входящих в одно семейство, одной марки;
- высота ограждений изменена не более чем на 15%.
9.2.3 Конструкции дорожных боковых ограждений тросового типа разных марок одного производителя могут быть объединены в одно семейство, если:
- ограждения имеют одинаковый профиль стойки;
- толщина стоек отличается не более чем на 1 мм, а габаритные размеры - не более чем на 10%;
- ограждения имеют одинаковый узел крепления стойки к тросу;
- ограждения имеют одинаковое количество и диаметр тросов +/- 1 мм;
- ограждения имеют одинаковые конструкции стяжных устройств и анкерных креплений;
- материалы каждого элемента ограждений, входящих в одно семейство, одной марки и не имеют отличий в механических характеристиках более чем на 30%;
- высота ограждений изменена не более чем на 15%;
- ограждения отнесены к одной группе (дорожной или мостовой).
9.3 Требования к испытаниям в семействе ограждений
9.3.1 В семействе дорожных ограждений барьерного типа натурные испытания проводят для наиболее критичных марок ограждений для каждой толщины балки. Для остальных марок ограждений проводят виртуальные испытания.
Определение наиболее критичных марок ограждений происходит в следующей последовательности:
а) в семействе составляют отдельные группы в зависимости от толщины балки. Если в конструкции ограждения применяют балки разной толщины, отнесение марки к группе определяют:
- для 2-ярусных ограждений высотой менее 0,8 м по толщине верхней балки;
- для 2-ярусных ограждений высотой 0,8 - 1,5 м по нижней балке;
- для 3-ярусных ограждений высотой 1,1 - 1,5 м по средней балке;
б) в каждой группе для всех марок ограждений определяют коэффициент критичности.
Наиболее критичными ограждениями являются ограждения с наименьшим и наибольшим значениями коэффициента критичности. Если таких ограждений несколько, натурные испытания проводят для каждой марки ограждения с наибольшим и наименьшим значениями коэффициента критичности;
в) коэффициент критичности ккр определяют по формуле
ккр = ку + кш + кст, (1)
где ку - коэффициент критичности уровня удерживающей способности;
кш - коэффициент критичности шага стоек;
кст - коэффициент критичности сечения стойки.
Коэффициент критичности уровня удерживающей способности равен единице для минимального уровня удерживающей способности ограждения, для каждого последующего уровня коэффициент увеличивается на единицу.
Коэффициент критичности шага стоек равен 0 для ограждения с минимальным шагом стоек. При увеличении шага стоек на каждые 0,5 м коэффициент увеличивается на 0,5.
Коэффициент критичности сечения стойки определяют как отношение максимальной площади поперечного сечения стойки в семействе ограждения к площади поперечного сечения рассматриваемой стойки;
г) если после определения коэффициента критичности натурным испытаниям не подвергают ограждение с максимальным уровнем удерживающей способности, то проводят дополнительные испытания для ограждения с максимальным уровнем удерживающей способности с максимальным коэффициентом критичности;
д) если после определения коэффициента критичности натурным испытаниям не подвергают ограждение с максимальным шагом стоек, то проводят дополнительные испытания для ограждения с максимальным шагом стоек с максимальным коэффициентом критичности.
При этом, если по
перечислению б) необходимо проведение натурных испытаний ограждения с аналогичной удерживающей способностью и отличающегося от рассматриваемого уменьшенным шагом стоек не более чем на 1,0 м, то натурные испытания проводят для ограждения с

шагом стоек.
9.3.2 Натурные испытания в семействе дорожных ограждений парапетного типа проводят для ограждений с максимальным уровнем удерживающей способности:
- при максимальном заглублении ограждения в дорожную одежду. Если таких ограждений несколько, то испытания проводят для ограждения наименьшей высоты;
- без заглубления ограждения в дорожную одежду. Если таких ограждений несколько, то испытание проводят для ограждения наименьшей высоты. Если таких ограждений нет, то испытание проводят для ограждения с минимальным заглублением в дорожную одежду. Если таких ограждений несколько, то испытание проводят для ограждения наименьшей высоты.
Если в СТО (ТУ) предприятия-изготовителя приведены блоки ограждения с разной длиной, то натурные испытания проводят для ограждений с наименьшей и наибольшей длиной блоков.
Если в СТО (ТУ) предприятия-изготовителя приведены разные способы установки ограждения в дорожную одежду, то натурные испытания проводят для всех способов установки.
Если в СТО (ТУ) предприятия-изготовителя приведены ограждения разных подгрупп (односторонние или двусторонние), натурные испытания проводят для односторонних ограждений.
9.3.3 Натурные испытания в семействе дорожных ограждений тросового типа проводят для ограждений:
а) с максимальной удерживающей способностью. Если приведенным требованиям соответствуют несколько марок ограждений, то испытание проводят для ограждения с максимальным шагом стоек;
б) с минимальным шагом стоек. Если приведенным требованиям соответствуют несколько марок ограждений, то испытание проводят для ограждения с максимальной удерживающей способностью.
9.4.1 Боковые ограждения могут быть объединены в одно семейство в соответствии с
9.2.
9.4.2 Натурные испытания в семействе ограждений проводятся в соответствии с
9.3, для остальных ограждений в семействе, за исключением ограждений по
9.4.3, проводят виртуальные или натурные испытания в соответствии с
ГОСТ 33129 методом наезда:
- легковым автомобилем;
- грузовым автомобилем (автопоездом) или автобусом.
9.4.3 Результаты натурных и виртуальных испытаний могут быть распространены:
- на ограждения с меньшей удерживающей способностью по сравнению с испытанными, при идентичности конструкции и материалов с сохранением значений динамического прогиба и рабочей ширины ограждения;
- на ограждения с увеличенной величиной заглубления стоек в дорожную одежду.
9.5 Фронтальные ограждения
9.5.1 Фронтальные ограждения могут быть объединены в одно семейство, если они состоят из одинаковых элементов и имеют одинаковую последовательность их установки и могут отличаться классом скорости столкновения, конусностью и длиной.
9.5.2 В семействе фронтальных ограждений натурные испытания по
ГОСТ 33129 проводят в соответствии с
таблицей 6. Для остальных ограждений в семействе, за исключением ограждений по
9.5.1, необходимо проведение виртуальных или натурных испытаний.
9.5.3 Результаты натурных и виртуальных испытаний могут быть распространены на ограждения с меньшим классом скорости столкновения по сравнению с испытанным, при идентичности конструкции и материалов элементов, с сохранением значений индекса тяжести травмирования.
Таблица 6
для семейства фронтальных ограждений
Класс скорости столкновения для семейства ограждения | Конусность фронтального ограждения |
минимальная | максимальная |
Максимальный | Все испытания | Испытания N 1 и 4 |
Остальные ограждения в семействе | Испытание N 1 | Испытание N 4 |
Примечания 1 Испытание N 1 проводят с помощью легковых автомобилей массой 1,0 и 1,5 т. 2 Испытание N 4 проводят с помощью легковых автомобилей массой 1,5 т. 3 Если в семействе ограждений приведены ограждения с одной конусностью, испытания проводят как для ограждения с минимальной конусностью. |
Результаты натурных испытаний терминалов могут быть распространены на ограждения с меньшим классом скорости столкновения по сравнению с испытанным, при идентичности конструкции и материалов элементов, с сохранением значений индекса тяжести травмирования.
9.7 Мобильные фронтальные ограждения
9.7.1 С целью уменьшения количества натурных испытаний МФО могут быть объединены в одно семейство, если они имеют одинаковые конструктивные элементы (при этом геометрия и толщина применяемых элементов ограждения не должны изменяться) и отличаются только длиной ограждения (обеспечивается за счет добавления/исключения уже используемых элементов ограждения), классом скорости столкновения и массой применяемого автомобиля прикрытия.
В семействе МФО натурные испытания проводят в соответствии с
таблицей 7. Для всех остальных ограждений в семействе, за исключением ограждений по
9.7.2, проводят виртуальные испытания.
Если конструкция МФО опционально может быть дополнена техническими средствами организации дорожного движения, которые приводят к изменению конструкции ограждения, то в семействе МФО проводят дополнительные испытания МФО, оборудованного техническими средствами организации дорожного движения, по схеме N 1 по
ГОСТ 33129 с массой испытательного автомобиля 2,0 т, с максимально допустимой массой автомобиля прикрытия:
- натурные испытания - для МФО с максимальным классом скорости столкновения;
- виртуальные испытания - для остальных классов МФО.
Таблица 7
Матрица натурных испытаний семейства МФО
Класс скорости столкновения МФО | Номер испытания | Масса испытательного автомобиля, т | Масса грузового автомобиля прикрытия, заявленная производителем МФО |
Максимальный | 1 | 1,0 | Максимальная |
Максимальный | 1 | 2,0 | Максимальная |
Максимальный | 1 | 2,0 | Минимальная |
Максимальный | 2 | 2,0 | Минимальная |
Минимальный | 1 | 1,0 | Максимальная |
Минимальный | 1 | 2,0 | Максимальная |
Примечания 1 Схему (номер) испытания принимают в соответствии с ГОСТ 33129. 2 Скорость наезда испытательного автомобиля принимают в соответствии с классом скорости столкновения МФО. |
9.7.2 Результаты натурных испытаний МФО могут быть распространены на ограждения с меньшим классом скорости столкновения по сравнению с испытанным, при идентичности конструкции и материалов элементов, с сохранением значений индекса тяжести травмирования.
9.7.3 Если конструкция МФО или узлы его крепления к автомобилю прикрытия отличаются в зависимости от способа применения МФО (стационарное или передвижное), то полный комплекс испытаний проводят для каждого из этих способов применения МФО.
(обязательное)
УСЛОВНЫЕ ОБОЗНАЧЕНИЯ ОСНОВНОЙ ЧАСТИ МАРКИ
ДОРОЖНОГО ОГРАЖДЕНИЯ
А.1 Условное обозначение участков бокового ограждения
А.1.1 Основную часть марки рабочего участка бокового ограждения принимают в соответствии с рисунком А.1.
X X - XX - X - X - X - X - (X)/X
Подкласс │ │ │ │ │ │ │ │ │ Нормативный документ,
──────────┘ │ │ │ │ │ │ │ │ по которому изготавливают
Тип │ │ │ │ │ │ │ │ ограждение
─────────────┘ │ │ │ │ │ │ └──────────────────────────────
Группа и подгруппа│ │ │ │ │ │ Рабочая ширина
──────────────────┘ │ │ │ │ └─────────────────────────────────
Уровень удерживающей │ │ │ │
способности │ │ │ │ Динамический прогиб
──────────────────────┘ │ │ └──────────────────────────────────────
Высота
<*> │ │ Уровень пассивной безопасности
──────────────────────────┘ └──────────────────────────────────────────
--------------------------------
<*> При установке ограждения на бордюре (парапете) дополнительно в скобках указывают общую высоту ограждения и высоту бордюра (парапета).
Примечание - Динамический прогиб является факультативным, и его допускается не указывать в условном обозначении марки рабочего участка бокового ограждения.
Рисунок А.1 - Последовательность расположения букв и цифр
условного обозначения марки рабочего участка
бокового ограждения
А.1.1.1 Подклассы боковых ограждений обозначают цифрами:
- 1 - недеформируемое;
- 2 - деформируемое.
А.1.1.2 Типы боковых ограждений обозначают цифрами:
- 1 - барьерное;
- 2 - парапетное;
- 3 - тросовое;
- 4 - комбинированное;
- 5 - конструкции иных типов.
А.1.1.3 Группу и подгруппу ограждений обозначают буквами:
- ДО - дорожные односторонние;
- ДД - дорожные двусторонние;
- МО - мостовые односторонние;
- МД - мостовые двусторонние.
А.1.1.4 Значения уровня удерживающей способности, динамического прогиба и рабочей ширины ограждения определяют по результатам испытаний по
ГОСТ 33129.
А.1.2 Начальный/концевой участок
Условное обозначение начального/концевого участка с понижением до уровня земли принимают в соответствии с рисунком А.2.
X X - XX - X - X:X/X
Подкласс │ │ │ │ │ │ Нормативный документ, по которому
───────────────┘ │ │ │ │ │ изготавливают ограждение
Тип │ │ │ │ │
──────────────────┘ │ │ │ │
Группа и подгруппа │ │ │ │
───────────────────────┘ │ │ └─────────────────────────────────────
Участок ограждения │ │ Уклон
───────────────────────────┘ └────────────────────────────────────────
Рисунок А.2 - Последовательность расположения букв и цифр
условного обозначения марки начального/концевого участка
с понижением до уровня земли
А.1.2.1 Подклассы боковых ограждений обозначают в соответствии с
А.1.1.1.
А.1.2.2 Типы боковых ограждений обозначают цифрами в соответствии с
А.1.1.2.
А.1.2.3 Группу и подгруппу ограждений обозначают в соответствии с
А.1.1.3.
А.1.2.4 Участок ограждения обозначают:
- Н - начальный участок с понижением до уровня земли;
- К - концевой участок с понижением до уровня земли.
А.2 Условное обозначение фронтального ограждения
А.2.1 Расположение букв и цифр в условном обозначении фронтального ограждения принимают в соответствии с рисунком А.3.
X - XX - X - X - X/X
Класс │ │ │ │ │ │ Нормативный документ, по которому
──────────────────┘ │ │ │ │ │ изготавливают ограждение
Группа и подгруппа │ │ │ │ │
───────────────────────┘ │ │ │ └───────────────────────────────────
Вид │ │ │
───────────────────────────┘ │ │
Класс скорости столкновения │ │ Уровень пассивной безопасности
───────────────────────────────┘ └─────────────────────────────────────
Рисунок А.3 - Последовательность расположения букв и цифр
условного обозначения марки фронтального ограждения
А.2.1.1 Класс фронтальных ограждений обозначают буквами "ФО".
А.2.1.2 Группу и подгруппу фронтальных ограждений обозначают в соответствии с
А.1.1.3.
А.2.1.3 Виды фронтального ограждения обозначают:
- П - параллельные;
- Н - непараллельные;
- А - асимметричные.
А.2.1.4 Обозначения классов скорости столкновения - 60, 90, 110, 130. Класс скорости столкновения определяет предприятие-изготовитель.
А.3 Условное обозначение терминала
А.3.1 Расположение букв и цифр в условном обозначении терминала принимают в соответствии с рисунком А.4.
X - X - X/X
Класс │ │ │ │
─────────────────────────────┘ │ │ │ Нормативный документ,
Класс скорости столкновения │ │ │ по которому изготавливают
─────────────────────────────────┘ │ │ ограждение
Уровень пассивной безопасности │ │
─────────────────────────────────────┘ └────────────────────────────
Рисунок А.4 - Последовательность расположения букв и цифр
условного обозначения марки терминала
А.3.1.1 Класс терминалов обозначается буквой "Т".
А.3.1.2 Обозначения классов скорости столкновения - 60, 90, 110, 130. Класс скорости столкновения определяет предприятие-изготовитель.
А.4 Условное обозначение мобильного фронтального ограждения
А.4.1 Расположение букв и цифр в условном обозначении МФО принимают в соответствии с рисунком А.5.
X - X - X/X
Класс и вид │ │ │ │
─────────────────────────────┘ │ │ │ Нормативный документ,
Класс скорости столкновения │ │ │ по которому изготавливают
─────────────────────────────────┘ │ │ ограждение
Уровень пассивной безопасности │ │
─────────────────────────────────────┘ └────────────────────────────
Рисунок А.5 - Последовательность расположения букв и цифр
условного обозначения марки МФО
А.4.1.1 Класс и вид МФО обозначают:
- НМФО - навесные мобильные фронтальные ограждения;
- ПМФО - прицепные мобильные фронтальные ограждения.
А.4.1.2 Обозначения класса скорости столкновения - 50, 70, 90. Класс скорости столкновения определяет предприятие-изготовитель.
А.5 Условное обозначение удерживающего пешеходного ограждения
А.5.1 Расположение букв и цифр в условном обозначении марки удерживающего пешеходного ограждения принимают в соответствии с рисунком А.6.
X - X - X - X/X
Подкласс │ │ │ │ │
──────────────────────┘ │ │ │ │ Нормативный документ, по которому
Тип │ │ │ │ изготавливают ограждение
──────────────────────────┘ │ │ └────────────────────────────────────
Высота │ │ Шаг стоек
──────────────────────────────┘ └──────────────────────────────────────
Рисунок А.6 - Последовательность расположения букв и цифр
условного обозначения марки удерживающего
пешеходного ограждения
А.5.1.1 Подкласс удерживающих пешеходных ограждений обозначают буквами "УПО".
А.5.1.2 Типы УПО обозначают:
- П - перильные;
- С - сетчатые;
- Д - конструкции иных типов.
А.6 Условное обозначение ограничивающего пешеходного ограждения
А.6.1 Условное обозначение марки ограничивающего пешеходного ограждения принимают в соответствии с рисунком А.7.
X - X - X - X/X
Подкласс │ │ │ │ │ Нормативный документ,
─────────────────────────┘ │ │ │ │ по которому изготавливают
Тип │ │ │ │ ограждение
─────────────────────────────┘ │ │ └────────────────────────────
Высота │ │ Шаг стоек
─────────────────────────────────┘ └──────────────────────────────
Рисунок А.7 - Последовательность расположения букв и цифр
условного обозначения марки ограничивающего
пешеходного ограждения
А.6.1.1 Подкласс ограничивающих пешеходных ограждений обозначают буквами "ОПО".
А.6.1.2 Типы ОПО обозначают:
- П - перильные;
- С - сетчатые;
- Д - конструкции иных типов.
А.7 Условное обозначение защитного ограждения
А.7.1 Условное обозначение марки защитного ограждения принимают в соответствии с рисунком А.8.
X - X - X/X
│ │ │ │ Нормативный документ, по которому
Класс │ │ │ │ изготавливают ограждение
────────────────────┘ │ │ └────────────────────────────────────
Высота │ │ Шаг стоек
────────────────────────┘ └──────────────────────────────────────
Рисунок А.8 - Последовательность расположения букв и цифр
условного обозначения марки защитного ограждения
А.7.1.1 Класс защитного ограждения обозначают буквами "ЗО".
(рекомендуемое)
УСЛОВНЫЕ ОБОЗНАЧЕНИЯ ДОПОЛНИТЕЛЬНОЙ ЧАСТИ МАРКИ
ДОРОЖНОГО ОГРАЖДЕНИЯ
Б.1 Условное обозначение бокового ограждения барьерного типа
Б.1.1 Буквы и цифры условного обозначения марки бокового ограждения барьерного типа располагают в последовательности, приведенной на рисунке Б.1.
X(X) - X - X(X)/X
│ │ │ │ │ │ Нормативный документ, по которому
Шаг стоек, м │ │ │ │ │ │ изготавливают ограждение
────────────────────┘ │ │ │ │ └────────────────────────────────────
Профиль стоек │ │ │ │ Толщина балки, мм
──────────────────────┘ │ │ └───────────────────────────────────────
Тип консоли │ │ Тип балки
───────────────────────────┘ └─────────────────────────────────────────
Рисунок Б.1 - Последовательность расположения букв и цифр
условного обозначения марки бокового ограждения
барьерного типа
Б.1.1.1 Профили стоек:
- Д - двутавр;
- Ш - швеллер;
- С - гнутый С-образный профиль;
- П - гнутый П-образный профиль.
Б.1.1.2 Типы консолей:
- КА - консоль-амортизатор;
- КЖ - консоль жесткая;
- КП - консоль П-образная.
Б.1.1.3 Типы балок:
- W - 2-волновая балка;
- N - 3-волновая балка;
- C - балка коробчатого профиля;
- D - балка круглого сечения.
| | ИС МЕГАНОРМ: примечание. В официальном тексте документа, видимо, допущена опечатка: п.п. Б.1.2 - Б.1.4 отсутствуют. | |
Б.1.1.4 Пункты Б.1.2 - Б.1.4 являются справочными и могут быть дополнены в СТО (ТУ) предприятия-изготовителя барьерного ограждения.
Б.1.1.5 Если в конструкции ограждения используют сразу несколько типов балок или консолей, их перечисляют сверху вниз через разделительную линию.
Б.2 Условное обозначение бокового ограждения парапетного типа
Б.2.1 Буквы и цифры условного обозначения марки бокового ограждения парапетного типа располагают в последовательности, приведенной на рисунке Б.2.
X - X/X
─────────────────────┘ │ │ Нормативный документ, по которому
Длина блока, м │ │ изготавливают ограждение
─────────────────────────┘ └────────────────────────────────────
--------------------------------
<*> При установке ограждения с заглублением в дорожную одежду дополнительно в скобках указывают глубину заглубления блока в метрах.
Рисунок Б.2 - Последовательность расположения букв и цифр
условного обозначения марки бокового ограждения
парапетного типа
Б.2.1.1 Типы установки парапетного ограждения:
- Б - без крепления блоков к основанию;
- А - с анкерным креплением блоков к дорожной одежде или к мостовому полотну;
- З - с заглублением блоков в дорожную одежду или мостовое полотно.
Б.3 Условное обозначение бокового ограждения тросового типа
Б.3.1 Буквы и цифры условного обозначения марки бокового ограждения тросового типа располагают в последовательности, приведенной на рисунке Б.3.
X - X - X - X/X
Шаг стоек, м │ │ │ │ │
──────────────────────┘ │ │ │ │ Нормативный документ,
Расположение тросов │ │ │ │ по которому изготавливают
относительно стоек │ │ │ │ ограждение
──────────────────────────┘ │ │ └────────────────────────────
Тип стоек │ │ Тип гильз
──────────────────────────────┘ └──────────────────────────────
Рисунок Б.3 - Последовательность расположения букв и цифр
условного обозначения марки бокового ограждения
тросового типа
Б.3.1.1 Расположение тросов относительно стоек
- ПР - прямые;
- ПЕ - переплетенные;
- К - комбинированные.
Б.3.1.2 Типы стоек:
- О - открытый;
- З - закрытый.
Б.3.1.3 Типы гильз:
- ГБ - бетонируемые;
- ГЗ - забивные в слабые грунты;
- ГК - забивные в капитальную дорожную одежду;
- ГМ - мостовые.
Б.4 Условное обозначение боковых ограждений комбинированного и иного типа
Требования к дополнительной части условного обозначения принимают в соответствии с СТО (ТУ) завода-изготовителя.
(справочное)
ПРИМЕРЫ УСЛОВНОГО ОБОЗНАЧЕНИЯ МАРКИ ДОРОЖНОГО ОГРАЖДЕНИЯ
В.1 Деформируемое удерживающее боковое ограждение (2) барьерного типа (1), дорожное одностороннее (ДО), уровень удерживающей способности 4 (У4), высота ограждения 0,75 м (0,75), уровень пассивной безопасности А (А); динамический прогиб 1,2 м (1,2), рабочая ширина 1,3 м (1,3), шаг стоек 2,0 м (2,0), профиль стоек швеллер N 12 (Ш12), консоль-амортизатор (КА), 2-волновая балка толщиной 3 мм (W(3)), изготовленное по СТО
В.2 Деформируемое удерживающее боковое ограждение (2) барьерного типа (1), мостовое двухстороннее (МД), уровень удерживающей способности 6 (У6), высота ограждения 1,10 м (1,10), высота цоколя 0,15 м (0,15), уровень пассивной безопасности А (А), динамический прогиб 0,7 м (0,7), рабочая ширина 0,9 м (0,9), шаг стоек 1,5 м (1,5), профиль стоек швеллер N 16 (Ш16), стойка без консоли (О), консоль жесткая (КЖ), верхняя балка коробчатого сечения толщиной 3 мм C(3), нижняя балка 2-волновая толщиной 4 мм (W(4)), изготовленное по СТО
В.3 Недеформируемое удерживающее боковое ограждение (1) парапетного типа (2), дорожное одностороннее (ДО), уровень удерживающей способности 4 (У4), высота ограждения 0,85 м (0,85), уровень пассивной безопасности Б (Б), динамический прогиб 0,2 м (0,2), рабочая ширина 0,8 м (0,8), с заглублением в дорожную одежду (3) на 0,05 м (0,05), длина блока 3,5 м (3,5), изготовленное по СТО
В.4 Деформируемое удерживающее боковое ограждение (2) барьерного типа (1), дорожное одностороннее (ДО), начальный участок (Н), уклон 1:10, изготовленное по СТО
В.5 Фронтальное ограждение (ФО), дорожное одностороннее (ДО), параллельное (П), класс скорости столкновения 110, ширина ограждения 1,10 м (1,10), высота 0,75 м (0,75), длина ограждения 5,10 м (5,10), уровень пассивной безопасности А (А), изготовленное по СТО
В.6 Терминал (Т), класс скорости столкновения 90, уровень пассивной безопасности А (А), изготовленное по СТО
В.7 Навесное мобильное фронтальное ограждение (НМФО), класс скорости столкновения 90, уровень пассивной безопасности Б (Б), изготовленное по СТО
В.8 Удерживающее пешеходное ограждение (УПО), перильное (П), высота ограждения 1,10 м (1,10), шаг стоек 2,0 м (2,0), изготовленное по СТО
В.9 Ограничивающее пешеходное ограждение (ОПО), сетчатое (С), высота ограждения 80 м (0,80), шаг стоек 2,0 м (2,0), изготовленное по СТО
В.10 Защитное ограждение (ЗО), высота ограждения 2,3 м (2,3), шаг стоек 3,0 м (3,0), изготовленное по СТО
(обязательное)
ФОРМА МАРКИРОВОЧНОЙ БИРКИ ДОРОЖНОГО ОГРАЖДЕНИЯ
| Знак соответствия требованиям технического регламента или других стандартов, принятых в государствах-участниках Соглашения | |
Наименование, юридический адрес и товарный знак изготовителя или ИНН |
Обозначение стандарта, которому соответствует продукция |
Условное обозначение дорожного ограждения по ГОСТ 33128 |
Рисунок Г.1 - Содержание маркировочной бирки
Примечание - Допускается на маркировочную бирку наносить дополнительную информацию в соответствии с требованиями СТО (ТУ) предприятия - изготовителя ограждения.
УДК 625.748.32:006.354 | |
Ключевые слова: динамический прогиб бокового ограждения, удерживающая способность бокового ограждения, рабочая ширина бокового ограждения, класс скорости столкновения, фронтальное ограждение, мобильное фронтальное ограждение, изделие, марка |