Главная // Актуальные документы // ГОСТ Р (Государственный стандарт)СПРАВКА
Источник публикации
М.: Стандартинформ, 2013
Примечание к документу
Документ
введен в действие с 1 июля 2013 года.
Название документа
"ГОСТ Р ЕН 14591-1-2012. Национальный стандарт Российской Федерации. Горные выработки подземные. Системы взрывопредупреждения и взрывозащиты. Часть 1. Взрывобезопасные вентиляционные сооружения, выдерживающие давление ударной волны 2 бара"
(утв. и введен в действие Приказом Росстандарта от 17.10.2012 N 508-ст)
"ГОСТ Р ЕН 14591-1-2012. Национальный стандарт Российской Федерации. Горные выработки подземные. Системы взрывопредупреждения и взрывозащиты. Часть 1. Взрывобезопасные вентиляционные сооружения, выдерживающие давление ударной волны 2 бара"
(утв. и введен в действие Приказом Росстандарта от 17.10.2012 N 508-ст)
Утвержден и введен в действие
агентства по техническому
регулированию и метрологии
от 17 октября 2012 г. N 508-ст
НАЦИОНАЛЬНЫЙ СТАНДАРТ РОССИЙСКОЙ ФЕДЕРАЦИИ
ГОРНЫЕ ВЫРАБОТКИ ПОДЗЕМНЫЕ
СИСТЕМЫ ВЗРЫВОПРЕДУПРЕЖДЕНИЯ И ВЗРЫВОЗАЩИТЫ
ЧАСТЬ 1
ВЗРЫВОБЕЗОПАСНЫЕ ВЕНТИЛЯЦИОННЫЕ СООРУЖЕНИЯ,
ВЫДЕРЖИВАЮЩИЕ ДАВЛЕНИЕ УДАРНОЙ ВОЛНЫ 2 БАРА
Underground mines. Explosion prevention
and protection systems. Part 1.
2-Bar explosion-proof ventilation structures
EN 14591-1:2004
Explosion prevention and protection in underground
mines - Protective systems - Part 1:
2-bar explosion-proof ventilation structure
(IDT)
ГОСТ Р ЕН 14591-1-2012
Дата введения
1 июля 2013 года
1 ПОДГОТОВЛЕН Автономной некоммерческой национальной организацией "Ex-стандарт" (АННО "Ex-стандарт") на основе собственного аутентичного перевода на русский язык стандарта, указанного в пункте 4
2 ВНЕСЕН Техническим комитетом по стандартизации ТК 403 "Оборудование для взрывоопасных сред (Ex-оборудование)"
3 УТВЕРЖДЕН И ВВЕДЕН В ДЕЙСТВИЕ
Приказом Федерального агентства по техническому регулированию и метрологии от 17 октября 2012 г. N 508-ст
4 Настоящий стандарт идентичен европейскому стандарту ЕН 14591-1:2004 (с поправкой от января 2006 г.) "Горные выработки подземные. Системы взрывопредупреждения и взрывозащиты. Часть 1. Взрывобезопасные вентиляционные сооружения, выдерживающие давление ударной волны 2 бара" (EN 14591-1:2004 "Explosion prevention and protection in underground mines - Protective systems - Part 1: 2-bar explosion-proof ventilation structure").
При применении настоящего стандарта рекомендуется использовать вместо ссылочных региональных и международного стандартов соответствующие им национальные стандарты Российской Федерации, сведения о которых приведены в справочном
приложении ДА
5 ВВЕДЕН ВПЕРВЫЕ
Правила применения настоящего стандарта установлены в ГОСТ Р 1.0-2012
(раздел 8). Информация об изменениях к настоящему стандарту публикуется в ежегодном (по состоянию на 1 января текущего года) информационном указателе "Национальные стандарты", а официальный текст изменений и поправок - в ежемесячном информационном указателе "Национальные стандарты". В случае пересмотра (замены) или отмены настоящего стандарта соответствующее уведомление будет опубликовано в ближайшем выпуске ежемесячного информационного указателя "Национальные стандарты". Соответствующая информация, уведомление и тексты размещаются также в информационной системе общего пользования - на официальном сайте Федерального агентства по техническому регулированию и метрологии в сети Интернет (gost.ru)
Настоящий стандарт содержит полный аутентичный текст регионального стандарта ЕН 14591-1:2004 (с поправкой от января 2006 г.), включенного в международную систему сертификации МЭКEx и европейскую систему сертификации на основе
директивы 94/9/ЕС
[1]; его требования полностью отвечают потребностям экономики страны и международным обязательствам Российской Федерации.
Настоящий стандарт подготовлен в обеспечение Федерального закона "О техническом регулировании".
Настоящий стандарт идентичен стандарту ЕН 14591-1:2004.
Настоящий стандарт входит в серию стандартов:
ГОСТ ЕН 14591-2 "Горные выработки подземные. Системы взрывопредупреждения и взрывозащиты. Часть 2. Инертная вода через барьеры".
ГОСТ ЕН 14591-3 "Горные выработки подземные. Системы взрывопредупреждения и взрывозащиты. Часть 3. Инертная вода для заслонов для локализации взрыва".
ГОСТ ЕН 14591-4 "Горные выработки подземные. Системы взрывопредупреждения и взрывозащиты. Часть 4. Автоматические системы подавления взрывов на проходческих комбайнах".
Настоящий стандарт распространяется на вентиляционные перемычки и вентиляционные двери, которые должны сохранять функциональность после прохождения взрывной волны с давлением до 2 бар. Вентиляционные сооружения - это защитные системы, которые создают вентиляционный поток после взрыва, чтобы ограничить влияние взрыва на вентиляционную систему и обеспечить возможность выхода и спасения людей из опасной зоны.
Примечание - Взрывобезопасные вентиляционные сооружения могут быть использованы тогда, когда результаты изучения условий вентиляции показывают, что вентиляционная струя на рабочем месте может значительно уменьшиться и не будет обеспечен безопасный аварийный выход для горняков, если вентиляционные сооружения будут разрушены. Взрывобезопасные вентиляционные сооружения следует оценивать индивидуально на устойчивость движения потоков воздуха, чтобы гарантировать наличие достаточных воздушных потоков.
Приведенные ниже стандарты являются обязательными для применения настоящего стандарта. Для стандартов с указанной датой опубликования применяют только указанное издание. Если дата опубликования не указана, то применяют последнее издание приведенного стандарта (со всеми поправками).
ЕН 10025 Горячекатаная продукция из конструкционных сталей. Часть 1. Общие технические условия поставки
(EN 10025, Hot rolled products of non-alloy structural steels - Technical delivery conditions)
ЕН 13463-1 Оборудование неэлектрическое, предназначенное для применения в потенциально взрывоопасных средах. Часть 1. Общие требования
(EN 13463-1, Non-electrical equipment for potentially explosive atmospheres - Part 1: Basic method and requirements)
ЕН 13478 Безопасность машин. Противопожарная защита
(EN 13478, Safety and machinery - Fire prevention and protection)
ИСО 2768-1 Допуски общие. Часть 1. Допуски на линейные и угловые размеры без указания допусков на отдельные размеры
(ISO 2768-1, General tolerances - Part 1: Tolerances for linear and angular dimensions without individual tolerance indications)
В настоящем стандарте применены следующие термины с соответствующими определениями:
3.1 вентиляционная перемычка (air shutter frame): Сооружение, которое изолирует рабочий участок, оставляя пространства для откатки, проезда, конвейера, кабелей и труб, а также каналы, необходимые для создания соответствующего воздушного потока в соответствии с существующими условиями давления.
3.2 вентиляционная дверь со сбросом давления (pressure-relief air door): Вентиляционная дверь, в которой створки открываются и закрываются в противоположные стороны.
Примечание - Силы уравновешены с помощью конструкции, например с помощью применения соединительной штанги или поворотной цепи, чтобы приходилось преодолевать только силы трения и возврата в исходное положение устройства открывания и закрывания.
3.3 вентиляционная дверь без сброса давления (non-pressure-relief air door): Вентиляционная дверь, которая обычно открывается в направлении против воздушного потока с помощью механических устройств открывания и закрывания.
Таблица 1
Символы и сокращения
Сокращение | Описание | Единица измерения |
lD 2 bar | Минимальная длина вентиляционной перемычки | миллиметр |
aw | Максимальная ширина/высота вентиляционного штрека в вентиляционном сооружении | миллиметр |
| Сопротивление растяжению при изгибе | ньютонов на квадратный миллиметр |
R1, R2 | Толщина ребра | миллиметр |
T | Толщина | миллиметр |
A | Внутренняя ширина | миллиметр |
h0 | Вертикальный габарит | миллиметр |
L | Угловая сталь | - |
U | U-образная сталь | - |
FI | Ковкая сталь | - |
BI | Толстолистовая сталь | - |
Vkt | Брусковая сталь | - |
TB | Тавровая сталь | - |
Ex | Взрыв | - |
5. Требования безопасности
Вентиляционное сооружение, выдерживающее взрывную волну до 2 бар (взрывобезопасное вентиляционное сооружение), включает в себя по меньшей мере одну вентиляционную перемычку в соответствии с
5.2. Когда в эти сооружения для регулирования подачи воздуха устанавливают вентиляционные двери, то эти двери должны быть сконструированы с откидными створками в соответствии с
5.3.3, установленными против направления взрыва для откаточных штреков, и с откидными створками и сбросом давления в соответствии с
5.3.2 для проезжей части штольни (см. рисунок 1 a).
При невозможности точно определить направление взрыва вентиляционные двери должны быть установлены с двух сторон вентиляционной перемычки (см. рисунок 1 b).
1 - стандартное вентиляционное сооружение;
2 - взрывобезопасное вентиляционное
сооружение, выдерживающее давление
взрывной волны 2 бара; 3 - воздушный шлюз
Рисунок 1 - Схематическое изображение взрывобезопасного
вентиляционного сооружения, выдерживающего
давление взрывной волны, равное 2 барам
5.2. Вентиляционные перемычки
5.2.1. Материалы и элементы
Следует использовать негорючие материалы и элементы, утвержденные для применения в подземных выработках. Допускается использовать только гидравлически связанные материалы с сопротивлением растяжению при изгибе не менее 3,5 Н/мм2 (значение за 7 дней).
5.2.2. Длина вентиляционной перемычки и толщина ребра
Минимальную длину вентиляционной перемычки рассчитывают с помощью уравнения (1):

(1)
Значения толщины ребра
R1 между дверью откаточной выработки и дверью проезжей части штольни и другими крепежными приспособлениями (см. рисунок 2) и толщины ребра
R2 между двумя крепежными приспособлениями и между крепежными приспособлениями и стеной или подошвой выработки (см.
рисунок 3) приведены в
таблице 2.
1 - компрессионная вставка
Рисунок 2 - Схематическое изображение толщины ребра
R1 между дверью откаточной выработки и дверью проезжей
части штольни и другими крепежными приспособлениями
1 - компрессионная вставка
Рисунок 3 - Схематическое изображение толщины ребра
R2 между двумя крепежными приспособлениями и между
крепежными приспособлениями и стеной или подошвой выработки
Таблица 2
Толщина ребра взрывобезопасного вентиляционного сооружения,
выдерживающего давление взрывной волны, равное 2 барам
Поперечное сечение горной выработки, м2 | Толщина ребра, мм |
R1 | R2 |
Не более 20 | Не менее 600 | Не менее 300 |
Более 20 | Не менее 1000 | Не менее 500 |
5.2.3. Соединение с пластом
Вентиляционная перемычка должна быть заделана во вруб по периметру выработки на глубину не менее 250 мм для создания прочной опоры.
Податливые элементы (компрессионные вставки) могут быть установлены между стенками выработки и вентиляционной перемычкой для уменьшения протечек воздуха. Герметизирующая компрессионная вставка устанавливается на глубине 250 мм.
5.3. Вентиляционные двери
Вентиляционные двери должны выдерживать давление взрывной волны 2 бара и сохранять работоспособность.
5.3.2. Вентиляционная дверь проезжей части штольни, выдерживающая давление взрывной волны 2 бара
Эта вентиляционная дверь должна быть сконструирована, как вентиляционная дверь со сбросом давления.
Обе створки двери должны одновременно открываться под углом 90° от дверной рамы.
Уплотнительные стержни должны быть изготовлены из трудновоспламеняемых и антистатических материалов (см. ЕН 13478 и ЕН 13463-1).
Размеры, не совпадающие с указанными в
приложении A, должны быть проверены для предполагаемого применения расчетами по достоверным статистическим данным.
5.3.3. Вентиляционная дверь откаточной выработки, выдерживающая давление взрывной волны 2 бара
Эта вентиляционная дверь должна быть сконструирована, как вентиляционная дверь без сброса давления.
Обе створки двери должны одновременно открываться под углом 90° от дверной рамы.
Размеры, не совпадающие с указанными в
приложении B, должны быть проверены для предполагаемого применения расчетами по достоверным статистическим данным.
5.3.4. Система управления
Линии управления и соединения должны быть защищены от потенциальных действий взрыва. Рабочие контакты должны быть спроектированы и установлены таким образом, чтобы было невозможно их срабатывание под действием взрывной волны.
Вентиляционные двери откаточной выработки и проезжей части штольни, выдерживающие давление взрывной волны 2 бара, должны иметь стойкую маркировку, в которой должны быть указаны год изготовления и знак изготовителя.
(обязательное)
ИЗОБРАЖЕНИЕ ИСПЫТАННОЙ ВЕНТИЛЯЦИОННОЙ ДВЕРИ
ПРОЕЗЖЕЙ ЧАСТИ ШТОЛЬНИ, ВЫДЕРЖИВАЮЩЕЙ ДАВЛЕНИЕ
ВЗРЫВНОЙ ВОЛНЫ 2 БАРА ПРИ ВНУТРЕННЕЙ ШИРИНЕ
a = 700 мм И ВЕРТИКАЛЬНОМ ГАБАРИТЕ h0 = 1800 мм
Рисунок A.1 - Вентиляционная дверь проезжей части штольни,
выдерживающая давление взрывной волны 2 бара
Таблица A.1
Спецификация деталей вентиляционной двери проезжей части
штольни, выдерживающей давление взрывной волны 2 бара
Номер | Число деталей | Описание | |
1 | 1 | Рама двери | |
2 | 1 | Створка двери левая | S 235 JR |
3 | 1 | Створка двери правая | S 235 JR |
4 | 1 | Окно | Поликарбонат |
5 | 1 | Соединительная штанга | S 235 JR |
6 | 1 | Рычажная передача | E 295 |
7 | 1 | Закрывающее устройство | S 235 JR |
8 | 2 | Нижний подшипник | S 235 JR |
9 | 2 | Верхний подшипник | S 235 JR |
10 | 4 | Крепежная планка | S 235 JR |
11 | 8 | Прижимная планка | S 235 JR |
<a> Материал в соответствии с ЕН 10025, кроме номера 4. <b> Отечественные аналоги материала S 235 JR: Ст2сп, Ст2пс, Ст3пс, Ст3сп - сталь конструкционная углеродистая обыкновенного качества. |
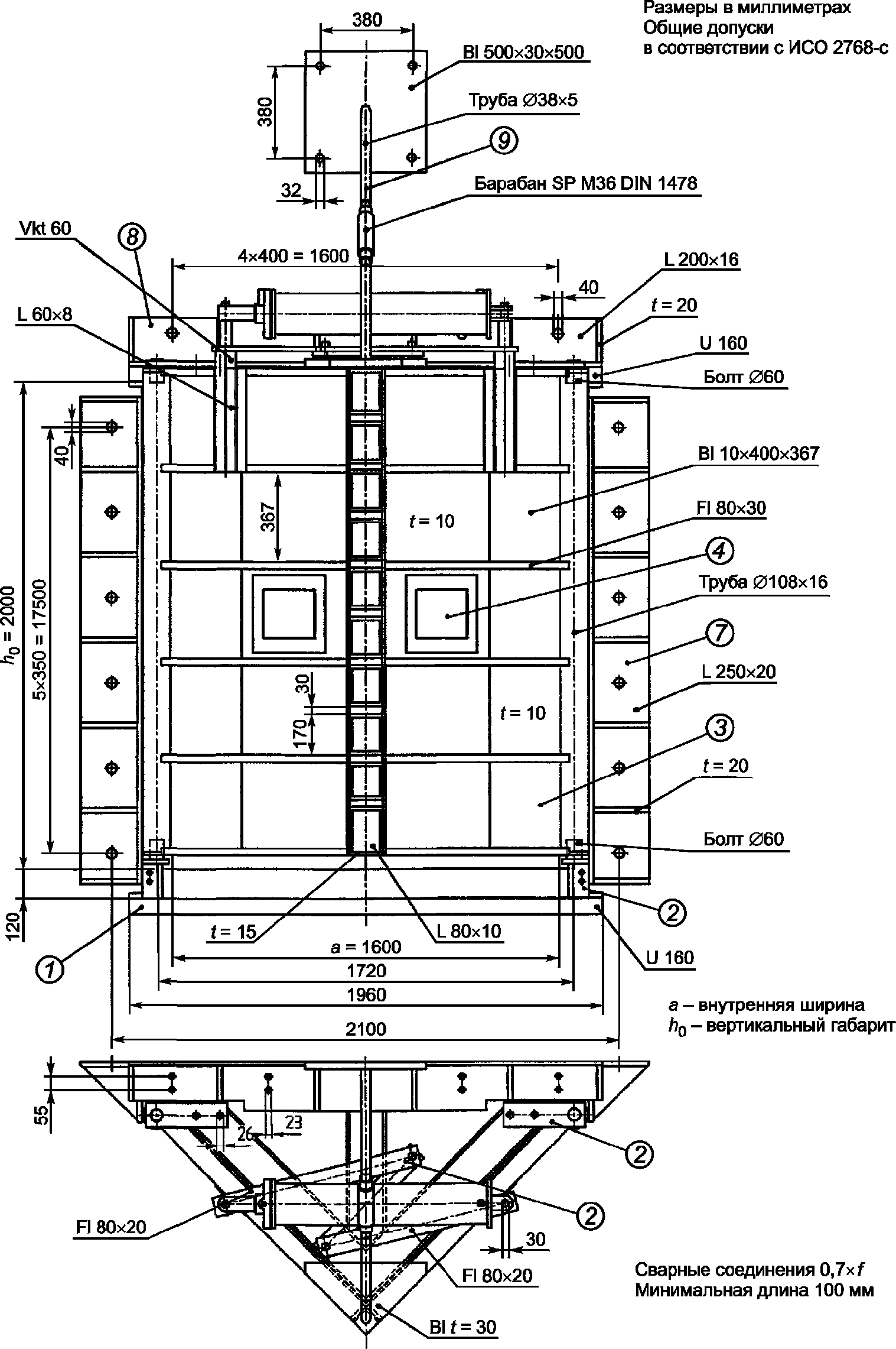
(обязательное)
ИЗОБРАЖЕНИЕ ИСПЫТАННОЙ ВЕНТИЛЯЦИОННОЙ ДВЕРИ
ОТКАТОЧНОЙ ВЫРАБОТКИ, ВЫДЕРЖИВАЮЩЕЙ ДАВЛЕНИЕ
ВЗРЫВНОЙ ВОЛНЫ 2 БАРА ПРИ ВНУТРЕННЕЙ ШИРИНЕ
a = 1600 мм И ВЕРТИКАЛЬНОМ ГАБАРИТЕ h0 = 2000 мм
Рисунок B.1 - Вентиляционная дверь откаточной выработки,
выдерживающая давление взрывной волны 2 бара
Таблица B.1
Спецификация деталей вентиляционной двери откаточной
выработки, выдерживающей давление взрывной волны 2 бара
Номер | Число деталей | Описание | |
1 | 1 | Рама двери | |
2 | 2 | Нижний подшипник | S 235 JR |
3 | 2 | Створка двери | S 235 JR |
4 | 2 | Окно | Поликарбонат |
5 | 2 | Верхний подшипник | S 235 JR |
6 | 1 | Связь типа ножниц | S 235 JR |
7 | 2 | Боковой опорный кронштейн | S 235 JR |
8 | 1 | Верхний опорный кронштейн | S 235 JR |
9 | 1 | Анкер кровли | S 235 JR |
<a> Материал в соответствии с ЕН 10025, кроме номера 4. <b> Отечественные аналоги материала S 235 JR: Ст2сп, Ст2пс, Ст3пс, Ст3сп - сталь конструкционная углеродистая обыкновенного качества. |
(справочное)
СВЕДЕНИЯ О СООТВЕТСТВИИ ССЫЛОЧНЫХ РЕГИОНАЛЬНЫХ
И МЕЖДУНАРОДНОГО СТАНДАРТОВ ССЫЛОЧНЫМ НАЦИОНАЛЬНЫМ
СТАНДАРТАМ РОССИЙСКОЙ ФЕДЕРАЦИИ
Таблица ДА.1
Обозначение ссылочного регионального и международного стандарта | Степень соответствия | Обозначение и наименование соответствующего национального стандарта |
ЕН 10025 | - | |
ЕН 13463-1 | MOD | ГОСТ Р ЕН 13463-1-2009 "Оборудование неэлектрическое, предназначенное для применения в потенциально взрывоопасных средах. Часть 1. Общие требования" |
ЕН 13478 | - | <*> |
ИСО 2768-1 | - | <*> |
<*> Соответствующий национальный стандарт отсутствует. До его утверждения рекомендуется использовать перевод на русский язык данного ссылочного стандарта. Перевод данного ссылочного стандарта находится в Федеральном информационном фонде технических регламентов и стандартов. Примечание - В настоящей таблице использовано следующее условное обозначение степени соответствия стандартов: - MOD - модифицированные стандарты. |
| Directive 94/9/EC of the European Parliament and the Council of 23 March 1994 on the approximation of the laws of the member states concerning equipment and protective equipment intended for use in potentially explosive atmospheres Директива Европейского Парламента и Совета от 23 марта 1994 94/9/ЕС по сближению законодательных актов государств - членов в области оборудования и защитных систем, предназначенных для применения в потенциально взрывоопасных атмосферах |