Главная // Актуальные документы // ГОСТ Р (Государственный стандарт)СПРАВКА
Источник публикации
М.: Стандартинформ, 2018
Примечание к документу
В соответствии с
Приказом Росстандарта от 19.12.2017 N 2021-ст данный документ
вводился в действие с 01.01.2020. В соответствии с изменением, внесенным
Приказом Росстандарта от 14.01.2020 N 1-ст, срок введения в действие данного документа перенесен на 01.01.2022.
Название документа
"ГОСТ Р ИСО 11003-2-2017. Национальный стандарт Российской Федерации. Клеи. Определение свойств конструкционных клеев при сдвиге. Часть 2. Метод испытания на растяжение металлических образцов, склеенных внахлестку"
(утв. и введен в действие Приказом Росстандарта от 19.12.2017 N 2021-ст)
"ГОСТ Р ИСО 11003-2-2017. Национальный стандарт Российской Федерации. Клеи. Определение свойств конструкционных клеев при сдвиге. Часть 2. Метод испытания на растяжение металлических образцов, склеенных внахлестку"
(утв. и введен в действие Приказом Росстандарта от 19.12.2017 N 2021-ст)
Утвержден и введен в действие
агентства по техническому
регулированию и метрологии
от 19 декабря 2017 г. N 2021-ст
НАЦИОНАЛЬНЫЙ СТАНДАРТ РОССИЙСКОЙ ФЕДЕРАЦИИ
КЛЕИ
ОПРЕДЕЛЕНИЕ СВОЙСТВ КОНСТРУКЦИОННЫХ КЛЕЕВ ПРИ СДВИГЕ
ЧАСТЬ 2
МЕТОД ИСПЫТАНИЯ НА РАСТЯЖЕНИЕ МЕТАЛЛИЧЕСКИХ ОБРАЗЦОВ,
СКЛЕЕННЫХ ВНАХЛЕСТКУ
Adhesives. Determination of shear behaviour of structural
adhesives. Part 2. Tensile test method for metallic
standards with the use of thick adherends
(ISO 11003-2:2001,
Adhesives - Determination of shear behaviour of structural
adhesives - Part 2: Tensile test method using
thick adherends,
IDT)
ГОСТ Р ИСО 11003-2-2017
| | Приказом Росстандарта от 14.01.2020 N 1-ст дата введения в действие перенесена на 01.01.2022. | |
Дата введения
1 января 2020 года
1 ПОДГОТОВЛЕН Акционерным обществом "Научно-исследовательский центр "Строительство" (АО "НИЦ "Строительство") - Центральный научно-исследовательский, проектно-конструкторский и технологический институт им. В.А. Кучеренко" (ЦНИИСК им. В.А. Кучеренко) на основе официального перевода на русский язык англоязычной версии указанного в пункте 4 международного стандарта, который выполнен Федеральным государственным унитарным предприятием "Российский научно-технический центр информации по стандартизации, метрологии и оценке соответствия" (ФГУП "СТАНДАРТИНФОРМ")
2 ВНЕСЕН Техническим комитетом по стандартизации ТК 465 "Строительство"
3 УТВЕРЖДЕН И ВВЕДЕН В ДЕЙСТВИЕ
Приказом Федерального агентства по техническому регулированию и метрологии от 19 декабря 2017 г. N 2021-ст
4 Настоящий стандарт идентичен международному стандарту ИСО 11003-2:2001 "Клеи. Определение свойств конструкционных клеев при сдвиге. Часть 2. Метод испытания на растяжение склеенных внахлест пластинок" (ISO 11003-2:2001 "Adhesives - Determination of shear behaviour of structural adhesives - Part 2: Tensile test method using thick adherends", IDT).
Наименование настоящего стандарта изменено относительно наименования указанного международного стандарта для приведения в соответствие с ГОСТ Р 1.5
(пункт 3.5).
При применении настоящего стандарта рекомендуется использовать вместо ссылочных международных стандартов соответствующие им межгосударственные стандарты, сведения о которых приведены в дополнительном
приложении ДА
5 ВВЕДЕН ВПЕРВЫЕ
Правила применения настоящего стандарта установлены в
статье 26 Федерального закона от 29 июня 2015 г. N 162-ФЗ "О стандартизации в Российской Федерации". Информация об изменениях к настоящему стандарту публикуется в ежегодном (по состоянию на 1 января текущего года) информационном указателе "Национальные стандарты", а официальный текст изменений и поправок - в ежемесячном информационном указателе "Национальные стандарты". В случае пересмотра (замены) или отмены настоящего стандарта соответствующее уведомление будет опубликовано в ближайшем выпуске ежемесячного информационного указателя "Национальные стандарты". Соответствующая информация, уведомление и тексты размещаются также в информационной системе общего пользования - на официальном сайте Федерального агентства по техническому регулированию и метрологии в сети Интернет (www.gost.ru)
Настоящий стандарт устанавливает метод определения свойств при сдвиге клея на образце клеевого соединения внахлестку при приложении растягивающей нагрузки.
Испытание выполняют на образцах, составленных из толстых жестких склеиваемых деталей при небольшой длине нахлестки, чтобы получить наиболее равномерное распределение возможных напряжений сдвига и свести к минимуму другие напряженные состояния, инициирующие напряжение.
Данный метод можно использовать, чтобы определить
- кривую зависимости "напряжение-деформация" при сдвиге до разрушения клеевого шва;
- модуль сдвига клея в клеевом соединении;
- другие свойства, которые можно вывести по кривой "напряжение-деформация", например, секущий или касательный модуль сдвига и максимальное напряжение сдвига;
- влияние температуры, окружающей среды, скорости испытания и т.д. на эти свойства.
Настоящий стандарт содержит положения других нормативных документов в виде датированных или недатированных ссылок. Эти нормативные ссылки приведены в соответствующих местах текста, а сами документы перечислены ниже. При датированных ссылках последующие изменения или пересмотры любой из указанных публикаций относятся к настоящему стандарту только в том случае, если они включены в него в виде изменения или пересмотра. При недатированных ссылках применяется самое последнее издание, на которое приведена ссылка.
ISO 291:1997 <*>, Plastics - Standard atmospheres for conditioning and testing (Пластмассы. Стандартные атмосферы для кондиционирования и испытания)
--------------------------------
<*> Отменен. Действуют ISO 291:2008 и ISO 291:2016. Однако для однозначного соблюдения требования настоящего стандарта, выраженного в датированной ссылке, рекомендуется использовать только указанное в этой ссылке издание.
ISO 683-11:1987 <**>, Heat-treatable steels, alloy steels and free-cutting steels - Part 11: Case-hardening steels (Стали термоупрочняемые, легированные и автоматные. Часть 11. Деформируемые науглероживаемые стали)
--------------------------------
<**> Отменен. Действует ISO 683-11:2012. Однако для однозначного соблюдения требования настоящего стандарта, выраженного в датированной ссылке, рекомендуется использовать только указанное в этой ссылке издание.
ISO 1052:1982, Steels for general engineering purposes (Сталь конструкционная общего назначения)
ISO 4588:1995, Adhesives - Guidelines for the surface preparation of metals (Клеи. Руководство по обработке поверхности металлов перед склеиванием)
| | ИС МЕГАНОРМ: примечание. Текст дан в соответствии с официальным текстом документа. | |
ISO 4995:2001 <***>, Hot-rolled steel sheet of structural quality (Листы стальные горячекатаные из конструкционного качества)
--------------------------------
<***> Отменен. Действует ISO 4995:2014. Однако для однозначного соблюдения требования настоящего стандарта, выраженного в датированной ссылке, рекомендуется использовать только указанное в этой ссылке издание.
ISO 10365, Adhesives - Designation of main failure patterns (Клеи. Обозначение основных типов разрушений)
Склеенный образец (см.
рисунок 1) подвергают действию растягивающего усилия так, чтобы клеевой шов оказался под напряжением сдвига. Относительное смещение склеиваемых деталей измеряют с помощью специального датчика, расположенного в центральной части образца. Усилие и смещение измеряют с момента приложения нагрузки до момента разрушения образца. Напряжения и деформации при сдвиге рассчитывают по размерам (клеевого) соединения.
a - склеенные детали; b - обточенные детали;
1 - клеевой шов
Рисунок 1 - Размеры и конфигурация образца
4.1 Машина для испытания на растяжение, обеспечивающая разрыв образца при растягивающем усилии от 10% до 80% диапазона полной шкалы датчика усилия.
4.2 Устройство для приложения усилия к образцу таким образом, чтобы при приложении нагрузки к образцу кручение развивалось медленно. Для этой цели подходит простая конструкция с универсальным соединением, как показано на
рисунке 2.
4.3 Датчик усилия, обеспечивающий измерение нагрузки на образец с точностью до 1% нагрузки при деформации сдвига 0,01.
4.4 Один или два экстензометра (см.
примечание 2) для измерения смещения между точками, начальное расстояние между которыми известно, на каждой склеиваемой детали в центральной части клеевого соединения (см.
рисунок 3 и
приложение А). Точки контакта со склеиваемыми деталями должны быть расположены на расстоянии 2 мм от склеиваемых поверхностей. Устройство (устройства) должно(ы) обеспечить измерение смещения при сдвиге с точностью до 1 мкм.
Примечание 1 - Во время нагружения каждая из склеиваемых деталей образца слегка изгибается, что приводит к небольшому повороту центральной (склеенной) части испытуемого образца. Для получения высокой точности при измерении смещений необходимо, чтобы экстензометр поворачивался вместе с образцом. Это достигается с помощью конструкции, показанной на
рисунке 3, т.е. с помощью двухштырькового контакта с одной из склеиваемых деталей образца.
Примечание 2 - Применение двух экстензометров на противоположных сторонах образца рекомендуется для сведения в результаты измерения к минимуму значения крутящего момента, прикладываемого к образцу. Применение двух экстензометров также служит для указания сбоев одного из экстензометров, когда показания этих двух приборов значительно отличаются друг от друга.
4.5 Оборудование для регистрации данных для непрерывной записи относительного смещения склеиваемых деталей и приложенной нагрузки с момента приложения нагрузки до разрушения образца.
4.6 Микрометр точностью выше 0,002 мм для измерения размеров склеиваемых деталей образца.
4.7 Оптический микроскоп точностью выше 0,002 мм для измерения толщины клеевого соединения, если используется образец конфигурации, показанной на
рисунке 1 a.
5.1 Размеры и конфигурация
Образцы необходимо готовить либо путем склеивания металлических пластин или полосок, чтобы получить конфигурацию, показанную на
рисунке 1 a, либо путем склеивания деталей, которые обработаны на станке до формы, показанной на
рисунке 1 b. Размеры образца приведены на
рисунке 1 и являются одинаковыми для обоих методов подготовки в рамках варьирования толщины клеевого шва.
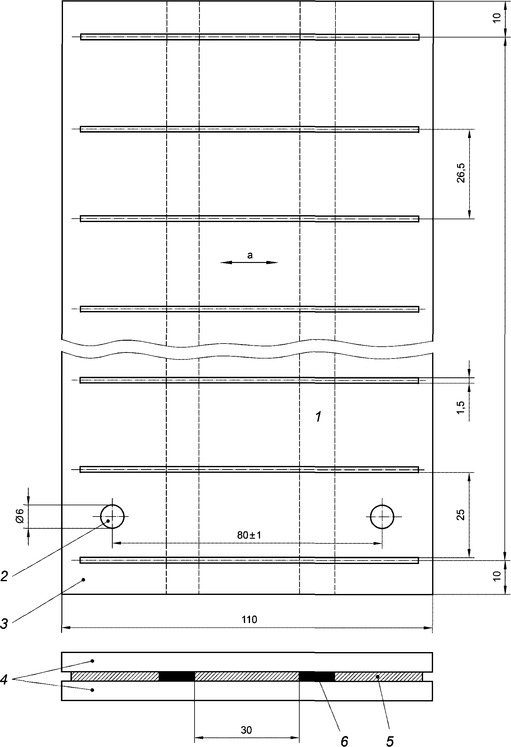
Толщина клеевого шва должна быть в интервале от 0,2 до 0,8 мм.
Примечание 1 - Предпочтительная толщина клеевого шва - 0,5 мм.
Примечание 2 - Склеиваемые детали образца, показанные на
рисунке 1 a, имеют более низкую жесткость при изгибе, чем образец, показанный на
рисунке 1 b. Поэтому напряжения отрыва на концах клеевого шва образца на
рисунке 1 a, будут выше, чем напряжения отрыва образца, показанного на
рисунке 1 b. Все это оказывает незначительное влияние на измерение напряжения и деформации, но поскольку разрушение образца обычно инициируется этими напряжениями, конструкция образца, показанного на
рисунке 1 a, разрушится раньше (при более низком напряжении и деформации), чем конструкция, показанная на
рисунке 1 b.
5.2 Склеиваемые детали образца
Для измерения свойств клея рекомендуется использовать для склеивания стальные детали из-за их высокого модуля упругости.
Примечание - Используют сталь марки ХС18 или Е24, класс 1 или 2.
Рисунок 2 - Пример устройства для нагружения образца
в разрывной машине
Пластины или прутки для использования в качестве склеиваемых деталей обрабатывают на станке в соответствии с ИСО 683-11, ИСО 1052 или ИСО 4995 до размеров, показанных на
рисунке 1, a или b, в зависимости от выбранной конфигурации образца.
5.3 Обработка поверхностей перед склеиванием
Поверхности перед склеиванием должны быть обработаны в соответствии с ИСО 4588 или иным методом, приводящим к когезионному разрушению в пределах клеевого шва.
1 - подвижная внутренняя часть; 2 - жесткая наружная рама;
3 - стальная пластинчатая пружина; 4 - контур
преобразователя; 5 - конус преобразователя;
6 - вольфрамовые штырьки
Рисунок 3 - Пример позиционирования экстензометра
6.1 Подготовка
6.1.1 Склеиваемые детали с плоскими концами
6.1.1.1 Общие положения
Образцы, склеиваемые детали которых имеют плоские концы, показаны на
рисунке 1 a и могут быть получены из вырезанных или невырезанных, обточенных на станке пластин.
6.1.1.2 Невырезанные пластинки
Пластины, из которых вырезают образцы, должны состоять из двух листов размерами, соответствующими
рисунку 4, склеенных вместе в соответствии с инструкциями изготовителя клея.
Для определения толщины клеевого шва вставляют прокладки или разделители (металлическая фольга), или калиброванную металлическую проволоку на участках, которые не станут зоной склеивания внахлест.
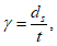
Разрезают склеенные пластины на образцы с помощью подходящего инструмента, например ленточной пилы. Затем обрабатывают образцы на станке. Выполняют последний проход по кромке образца параллельно продольному направлению образца так, чтобы не оставить металлических заусенцев вдоль клеевого соединения.
Высверливают отверстия на концах каждого образца для штырьков, которые удержат образец в разрывной машине.
Очерчивают зону нахлестки двумя канавками, как показано на
рисунке 5.
Если образцы обработаны на станке, необходимо следить, чтобы образец не нагрелся до температуры свыше 50 °C. Для охлаждения не допускается использовать жидкость.
6.1.1.3 Предварительно вырезанные пластинки
Выполняют последовательность
6.1.1.2, используя две предварительно вырезанные из листа пластинки, соответствующие
рисунку 6.
Необходимо выполнить два отверстия в каждом листе, так чтобы эти два листа можно было правильно наложить друг на друга, используя сборку с двумя центрирующими выступами.
Вырезают и обрабатывают на станке образцы в соответствии с
6.1.1.2.
6.1.1.4 Отдельные образцы
Склеивают две пластинки размерами 110 x 25 x 6 мм в соответствии с инструкциями изготовителя клея, определяя толщину клеевого соединения в соответствии с
6.1.1.2. Проверяют, чтобы стороны склеиваемых пластинок были параллельны с точностью до 0,1 мм.
Обтачивают каждый образец до нужных размеров.
Высверливают отверстия для приложения нагрузки.
Выполняют две канавки на фрезерном станке, чтобы очертить нахлестку.
Соблюдают те же меры предосторожности, что и в
6.1.1.2.
6.1.2 Образцы со ступенчатыми склеиваемыми пластинками
Для такого типа образца склеиваемые пластинки должны быть механически обработаны до размеров, приведенных на
рисунке 1 b, перед склеиванием. Затем пластинки прочно закрепляют в раме, обеспечивающей их точное выравнивание, и склеивают.
Чтобы получить соединение четко определенных формы и длины, необходимо в зазоры между склеиваемыми пластинками вставить полоски из стали или политетрафторэтилена толщиной 1,5 мм после нанесения клея и до его отверждения. После завершения отверждения клея полоски извлекают. При применении стальных полосок их необходимо покрыть антиадгезионным веществом.
Примечание - Рекомендуется на таких полосках выполнять кромку, скошенную под 45°, так чтобы образовалась выемка треугольного профиля на конце клеевого соединения. Эта выемка уменьшит концентрацию деформаций по краю клеевого соединения, что может продлить время до разрушения образца во время испытания.
6.2 Число образцов
Для данного испытуемого клея необходимо испытать пять образцов.
Температура испытания должна соответствовать одному из стандартных значений, указанных в ИСО 291.
Измеряют длину l нахлестки и ширину b каждого образца с точностью до 0,1 мм.
Если используют образцы с плоскими концами (
рисунок 1 a), измеряют толщину клеевого соединения в зоне нахлестки с обоих концов и на каждой стороне образца с точностью до 0,01 мм. Записывают среднее значение от четырех измерений. Если расхождение между значениями замера на концах превышает 20% от среднего значения, образец бракуют. Там, где образцы составлены из ступенчатых склеиваемых пластинок (
рисунок 1 b), толщину клеевого шва можно получить с помощью измерения толщины до склеивания ступенчатых концов пластинок и толщины полученного образца после склеивания в области нахлестки.
Устанавливают экстензометр на одну или на обе стороны образца (см.
рисунок 3).
Испытывают образец на разрывной машине при постоянной скорости расхождения захватов. Для сопоставления результатов, полученных на образцах, изготовленных из различных материалов, рекомендуется скорость расхождения захватов 0,5 мм/мин.
Регистрируют усилие (растягивающую нагрузку) и смещение по мере нагружения образца до его разрушения. Также регистрируют температуру.
1 - край для удаления в отходы; 2 - склеиваемые пластинки;
3 - клей; 4 - тонкая прокладка (необязательно)
--------------------------------
<a> Зависит от числа образцов.
<b> Направление прокатки при производстве металла.
Рисунок 4 - Невырезанная пластинка для склеивания образца
1 - тонкая прокладка (необязательно); 2 - клей
Рисунок 5 - Образец, склеенный из пластинок
с плоскими концами
1 - тонкая прокладка; 2 - отверстие для крепления;
3 - граничная секция; 4 - склеиваемые пластинки; 5 - клей;
6 - тонкая прокладка (необязательно)
Рисунок 6 - Предварительно вырезанная пластинка
для получения образца
8.1 Используемые обозначения
Обозначение | Значение | Единицы измерения | Ссылка |
b | Ширина образца | метры (м) | |
l | Длина клеевого шва | метры (м) | |
t | Толщина клеевого шва | метры (м) | |
ta | Расстояние между штырьками экстензометра | метры (м) | |
d | Измеренное смещение | метры (м) | |
ds | Смещение при сдвиге клея | метры (м) | |
F | Сила, приложенная к образцу | ньютоны (Н) | |
| Среднее напряжение сдвига в клее | паскали (Па) | |
| Деформация сдвига в клее вдоль средней линии образца | 1 | |
G | Модуль сдвига клея | паскали (Па) | |
Ga | Модуль сдвига клея склеиваемой пластинки | паскали (Па) | |
8.2 Среднее напряжение сдвига

в клее
При любой силе
F, приложенной к образцу, среднее напряжение сдвига

в клее задается уравнением (1)

(1)
8.3 Деформация сдвига

в клее
Деформация сдвига

в клее задается уравнением (2)

(2)
где
t - среднее значение выполненных измерений толщины (см.
раздел 7).
Примечание 1 - Смещение при сдвиге клея
ds меньше измеренного смещения
d в результате учета в
d деформации склеиваемых пластинок (см.
рисунок 7).
ds можно рассчитать с хорошим приближением, если принять, что единообразное напряжение сдвига

действует в зоне, перекрытой экстензометром.
Формула (3) позволит в таком случае вычислить ds:

(3)
где

- напряжение сдвига, соответствующее измеренному смещению.
Примечание 2 - Простая поправка даст более точное значение для ds, чем результат посредством измерений на контрольном образце, имеющем такую же геометрию, как склеенный образец, но составленный только одной выточенной пластинкой из склеиваемого материала. Распределение напряжения сдвига в контрольном образце далеко не равномерно, и для конкретной приложенной нагрузки напряжение в центральной зоне будет ниже, чем получено при той же нагрузке в склеенном образце.
1 - склеиваемая пластинка; 2 - клей
Секущая линия ABCD деформируется в линию A'B'C'D' при приложении нагрузки.
--------------------------------
<a> Расстояние между штырьками ta.
<b> Вклад со стороны склеенных пластинок.
Рисунок 7 - Деформация, измеренная экстензометром
8.4 Кривая зависимости "напряжение-деформация"
График зависимости напряжения сдвига от деформации иллюстрирует механические свойства клея при постоянной скорости деформирования и может быть использован для получения определенных данных, необходимых для проектирования.
Примечание - После начального линейного отклика клеевого шва его жесткость уменьшается с увеличением деформации. По мере уменьшения жесткости испытательная машина производит все

долю общего смещения поперек клеевого слоя. Таким образом, в испытании, проводимом при постоянной скорости расхождения захватов разрывной машины, скорость деформации в клеевом слое не будет постоянной, а будет увеличиваться, пока не достигнет максимума. Зависимость скорости деформации от упругих свойств стекловидных клеев невелико. Поэтому соответствующей скоростью является скорость деформации на выходе.
8.5 Модуль сдвига клея
Модуль сдвига равен градиенту линейного участка деформации на графике зависимости напряжения сдвига от деформации сдвига.
Примечание 1 - Ввиду сложностей, возникающих при измерении малых деформаций, график зависимости "напряжение-деформация" вряд ли пройдет через начало координат без обработки полученных данных. Там, где такая обработка выполнена правильно, модуль сдвига можно получить по уравнению (4):

(4)
где

и

соответствуют точке линейного участка кривой.
Примечание 2 - Там, где клей испытывают в условиях, в которых он проявляет значительные вязкоупругие свойства (например, при температуре, близкой к температуре перехода от твердого состояния к эластичному), на кривой "напряжение-деформация" нет линейного участка даже при низких деформациях, когда вязкоупругие свойства изменяются линейно. Более того, в этих условиях поведение "напряжение-деформация" в высокой степени зависит от скорости деформации и температуры. Определение модуля по результатам испытания, выполненного при постоянной скорости деформации, в таком случае не подходит, и следует выполнять динамические механические испытания или испытания при релаксации напряжений, чтобы охарактеризовать линейное вязкоупругое поведение.
Объективность данного метода испытания неизвестна ввиду отсутствия достаточного количества данных лабораторных испытаний. Когда эти данные будут получены, сведения о точности будут опубликованы при пересмотре настоящего стандарта.
Протокол испытания должен содержать следующие пункты:
a) ссылка на настоящий стандарт;
b) вся информация, необходимая для полной идентификации испытанного клея (классификация, тип, поставщик, рекомендации партнеров, номер партии, дата изготовления, пропорции смеси для двухкомпонентных клеев);
c) идентификация склеиваемых деталей и метод их производства для испытания, включая информацию о наличии закруглений на каждом конце клеевого соединения;
d) подробная информация об обработке поверхностей перед склеиванием;
e) условия отверждения, используемые для испытуемого клея;
f) температура испытания;
g) информация о состоянии образцов;
h) скорость (расхождения захватов машины) при испытании;
i) размеры образцов (длина нахлестки и ширина образца);
j) толщина клеевого шва;
k) число испытанных образцов;
l) тип использованной испытательной машины;
m) описание прибора, использованного для измерения деформации;
n) обозначение картины разрушения образца в соответствии с ИСО 10365;
o) значения свойств клея, определенные в
разделе 8;
p) дата проведения испытания.
(справочное)
ПОДХОДЯЩАЯ КОНСТРУКЦИЯ ЭКСТЕНЗОМЕТРА
В настоящем приложении описана конструкция экстензометра, который успешно используется для измерения деформации в данном методе испытания. В то же время допускается использовать экстензометры другой конструкции.
Экстензометр (см.
рисунок 3) состоит из жесткой рамки и внутренней части, которая может перемещаться параллельно рамке на подпружиненных пластинах. Корпус датчика линейного смещения имеет установленную подвижную внутреннюю часть, тогда как сердечник датчика установлен на жесткую рамку.
Три измерительных штырька установлены на одной стороне экстензометра: один - на жесткой рамке, а два других - на внутренней подвижной части.
В то время как образец испытывает напряжения, две половинки образца движутся в разных направлениях относительно друг друга. Относительное движение двух половинок образца приводит к движению штырьков относительно друг друга, заставляя, таким образом, сердечник соленоида двигаться в электрической обмотке датчика.
Датчик соединен с усилителем, выходной сигнал которого пропорционален относительному движению между штырьками. Дисплей можно калибровать на считывание непосредственно в миллиметрах.
Два экстензометра данного типа закрепляют на образце с помощью специального приспособления (по одному с каждой стороны образца).
Устройство для калибровки с прецизионным микрометрическим винтом дает возможность калибровать экстензометры перед испытанием.
Применение таких экстензометров дает измерение смещений на 1 мм с точностью 1 мкм в интервале температур от минус 100 °C до плюс 200 °C в зависимости от используемых датчиков.
(справочное)
СВЕДЕНИЯ О СООТВЕТСТВИИ ССЫЛОЧНЫХ МЕЖДУНАРОДНЫХ СТАНДАРТОВ
МЕЖГОСУДАРСТВЕННЫМ СТАНДАРТАМ
Таблица ДА.1
Обозначение ссылочного международного стандарта | Степень соответствия | Обозначение и наименование соответствующего межгосударственного стандарта |
ISO 291 | MOD | ГОСТ 12423-2013 (ISO 291:2008) "Пластмассы. Условия кондиционирования и испытания образцов (проб)" |
ISO 683-11:1987 | - | |
ISO 1052:1982 | NEQ | |
ISO 4588:1995 | - | |
ISO 4995:2001 | NEQ | ГОСТ 14637-89 (ИСО 4995-78) "Прокат толстолистовой из углеродистой стали обыкновенного качества. Технические условия" |
ISO 10365 | - | <*> |
<*> Соответствующий национальный стандарт отсутствует. До его принятия рекомендуется использовать перевод на русский язык данного международного стандарта. Примечание - В настоящей таблице использованы следующие условные обозначения степени соответствия стандартов: - MOD - модифицированные стандарты; - NEQ - неэквивалентные стандарты. |