Главная // Актуальные документы // ГОСТ Р (Государственный стандарт)СПРАВКА
Источник публикации
М.: Стандартинформ, 2019
Примечание к документу
Документ
введен в действие с 1 января 2020 года.
Название документа
"ГОСТ Р 58463-2019. Национальный стандарт Российской Федерации. Автоматизированные системы управления освещением автомобильных дорог и тоннелей. Требования к регулированию освещения"
(утв. и введен в действие Приказом Росстандарта от 31.07.2019 N 438-ст)
"ГОСТ Р 58463-2019. Национальный стандарт Российской Федерации. Автоматизированные системы управления освещением автомобильных дорог и тоннелей. Требования к регулированию освещения"
(утв. и введен в действие Приказом Росстандарта от 31.07.2019 N 438-ст)
Утвержден и введен в действие
агентства по техническому
регулированию и метрологии
от 31 июля 2019 г. N 438-ст
НАЦИОНАЛЬНЫЙ СТАНДАРТ РОССИЙСКОЙ ФЕДЕРАЦИИ
АВТОМАТИЗИРОВАННЫЕ СИСТЕМЫ УПРАВЛЕНИЯ ОСВЕЩЕНИЕМ
АВТОМОБИЛЬНЫХ ДОРОГ И ТОННЕЛЕЙ
ТРЕБОВАНИЯ К РЕГУЛИРОВАНИЮ ОСВЕЩЕНИЯ
Roads and tunnels lighting automatic control systems.
Requirements for lighting control
ГОСТ Р 58463-2019
Дата введения
1 января 2020 года
1 РАЗРАБОТАН Обществом с ограниченной ответственностью "Всесоюзный научно-исследовательский светотехнический институт имени С.И. Вавилова" (ООО "ВНИСИ") при участии рабочей группы в составе А.В. Сибрикова, А.И. Киричка, д.т.н., проф. А.А. Сапронова, к.т.н. А.Ю. Никуличева, О.Т. Зотина
2 ВНЕСЕН Техническим комитетом по стандартизации ТК 332 "Светотехнические изделия, освещение искусственное"
3 УТВЕРЖДЕН И ВВЕДЕН В ДЕЙСТВИЕ
Приказом Федерального агентства по техническому регулированию и метрологии от 31 июля 2019 г. N 438-ст
4 ВВЕДЕН ВПЕРВЫЕ
Правила применения настоящего стандарта установлены в статье 26 Федерального закона от 29 июня 2015 г. N 162-ФЗ "О стандартизации в Российской Федерации". Информация об изменениях к настоящему стандарту публикуется в ежегодном (по состоянию на 1 января текущего года) информационном указателе "Национальные стандарты", а официальный текст изменений и поправок -
в ежемесячном информационном указателе "Национальные стандарты". В случае пересмотра (замены) или отмены настоящего стандарта соответствующее уведомление будет опубликовано в ближайшем выпуске ежемесячного информационного указателя "Национальные стандарты". Соответствующая информация, уведомление и тексты размещаются также в информационной системе общего пользования -
на официальном сайте Федерального агентства по техническому регулированию и метрологии в сети Интернет (www.gost.ru)
Настоящий стандарт распространяется на автоматизированные системы регулирования освещения автомобильных дорог и тоннелей (далее - дорог и тоннелей).
Настоящий стандарт не распространяется на аварийное освещение тоннелей, а также на мониторинг освещения дорог и тоннелей.
Настоящий стандарт применяют при проектировании, эксплуатации и реконструкции осветительных установок дорог и тоннелей.
В настоящем стандарте использованы нормативные ссылки на следующие стандарты:
ГОСТ 26.005 Телемеханика. Термины и определения
ГОСТ 32144 Электрическая энергия. Совместимость технических средств электромагнитная. Нормы качества электрической энергии в системах электроснабжения общего назначения
ГОСТ 33382 Дороги автомобильные общего пользования. Техническая классификация
ГОСТ Р 55392 Приборы и комплексы осветительные. Термины и определения
ГОСТ Р 56334 Тоннели автодорожные. Освещение искусственное. Нормы и методы расчета
ГОСТ Р 58107.1 Освещение автомобильных дорог общего пользования. Нормы и методы расчета
ГОСТ Р 58462 Автоматизированные системы управления освещением автомобильных дорог и тоннелей. Общие требования
Примечание - При пользовании настоящим стандартом целесообразно проверить действие ссылочных стандартов в информационной системе общего пользования - на официальном сайте Федерального агентства по техническому регулированию и метрологии в сети Интернет или по ежегодному информационному указателю "Национальные стандарты", который опубликован по состоянию на 1 января текущего года, и по выпускам ежемесячного информационного указателя "Национальные стандарты" за текущий год. Если заменен ссылочный стандарт, на который дана недатированная ссылка, то рекомендуется использовать действующую версию этого стандарта с учетом всех внесенных в данную версию изменений. Если заменен ссылочный стандарт, на который дана датированная ссылка, то рекомендуется использовать версию этого стандарта с указанным выше годом утверждения (принятия). Если после утверждения настоящего стандарта в ссылочный стандарт, на который дана датированная ссылка, внесено изменение, затрагивающее положение, на которое дана ссылка, то это положение рекомендуется применять без учета данного изменения. Если ссылочный стандарт отменен без замены, то положение, в котором дана ссылка на него, рекомендуется применять в части, не затрагивающей эту ссылку.
3 Термины, определения и сокращения
3.1.1 интенсивность движения: Число транспортных средств, проходящих в час через поперечное сечение полосы движения в часы пик.
3.1.2 канал связи: Совокупность технических средств и тракта (среда, кабель, проводная линия и т.д.) для передачи сообщений на расстояние.
3.1.3 подъездная зона тоннеля: Участок дороги вне тоннеля длиной, равной расстоянию безопасного торможения, примыкающий к въездному порталу.
3.1.4 пороговая зона тоннеля: Участок тоннеля длиной, равной расстоянию безопасного торможения, примыкающий к въездному порталу.
3.1.5 переходная зона тоннеля: Участок тоннеля, примыкающий к пороговой зоне и заканчивающийся в том месте, где яркость дорожного покрытия спадает до 3-кратной величины яркости внутренней зоны.
3.1.6 пункты питания; ПП: Территориально распределенные пункты электропитания освещения дорог с техническими средствами, предназначенными для автоматизации технологических процессов контроля и управления осветительными установками, регулирования параметров осветительных установок, а также для обеспечения связи, контроля и управления объектами нижнего уровня при их наличии.
3.1.7 расстояние безопасного торможения, м: Минимальное расстояние, требуемое для надежного приведения транспортного средства, движущегося с установленной скоростью, в состояние полной остановки, которое определяется суммарным временем реагирования водителя на появившееся препятствие для принятия решения и торможения транспортного средства.
3.1.8 транспортная зона тоннеля: Часть тоннеля, содержащая непосредственно проезжую часть, заключенную между въездным и выездным порталами.
3.1.9 яркость адаптации L20, кд·м-2: Средняя яркость в коническом поле зрения, стягиваемого углом 20° с вершиной в месте расположения глаза подъезжающего водителя и с направленной на центр входного портала тоннеля осью.
Примечание - Яркость адаптации L20 определяют применительно к точке, расположенной на расстоянии безопасного торможения от входного портала тоннеля в середине, соответствующей проезжей части или полосы движения транспорта.
3.1.10 байпас-обход: Функция в электронном устройстве, позволяющая выполнить коммутацию входного сигнала непосредственно на выход, в обход всех функциональных блоков.
3.2 В настоящем стандарте использованы следующие сокращения:
ДП - диспетчерский пункт;
ИС - источник света;
ОП - осветительный прибор;
ОУ - осветительная установка;
ПП - пункт питания;
ПТК - программно-технический комплекс;
СД - светодиод;
УУ - устройство управления;
ЭмПРА - электромагнитный пускорегулирующий аппарат;
ЭПРА - электронный пускорегулирующий аппарат;
PLC - технология телепередачи сигнала по силовой линии.
4 Параметры регулирования освещения дорог
4.1 К параметрам регулирования освещения дорог относят среднюю яркость

и среднюю освещенность

дорожного покрытия, нормы которых установлены в
ГОСТ Р 58107.1.
4.2 Допускается в ночное время для дорог со средней яркостью

не менее 1 кд/м
2 или средней освещенностью

не менее 10 лк снижение нормируемых параметров регулирования освещения:
- на 30% - при уменьшении интенсивности движения до 1/3 максимального значения;
- 50% - при уменьшении интенсивности движения до 1/5 максимального значения.
4.3 Не допускается регулирование освещения по критерию уменьшения интенсивности движения в местах, требующих повышенного внимания участников дорожного движения:
- на пересечениях дорог в одном и разных уровнях на расстоянии не менее 100 м от линии примыкания;
- на наземных пешеходных переходах и подъездах к ним на расстоянии не менее 100 м от границ пешеходных переходов;
- в местах пересечения дорог с путепроводами, трубопроводами, линиями электропередачи, мостами, иными инженерными сооружениями и конструкциями на расстоянии не менее 100 м от границ таких пересечений;
- в местах организации кругового движения автомобильного транспорта на расстоянии не менее 100 м от границ таких мест;
- в местах пересечения дорог с железнодорожными переездами на расстоянии не менее 250 м от границ железнодорожных переездов;
- в местах концентрации дорожно-транспортных происшествий;
- на участках дорог, обозначенных знаками "крутой поворот", "крутой спуск", "крутой подъем", "конец автодороги" ("тупик") на расстоянии не менее 100 м от границ таких участков;
- на обгонных полосах съезда и выезда, примыкающих к дорогам на расстоянии не менее 100 м от границ полос;
- на мостах, эстакадах, путепроводах, их участков въезда и съезда на расстоянии не менее 100 м от границ таких сооружений;
- на участках сужений дорог на расстоянии не менее 100 м от границ таких участков;
- на участках проведения строительных и ремонтных работ на расстоянии не менее 100 м от границ участков;
- в местах размещения стационарных постов дорожно-патрульной службы на расстоянии не менее 100 м от постов;
- в местах размещения пунктов взимания оплаты на расстоянии не менее 100 м от границ пунктов оплаты.
4.4 Допускается регулирование освещения в местах, перечисленных в
4.3, для обеспечения нормативных параметров освещения в течение всего срока эксплуатации ОП.
5 Параметры регулирования освещения тоннелей
5.1 Нормы параметров освещения тоннелей должны соответствовать
ГОСТ Р 56334.
5.2 Регулирование параметров освещения тоннелей проводят для дневного и ночного режима работы.
В дневном режиме работы при естественной горизонтальной освещенности вблизи въездного портала более 100 лк в транспортной зоне тоннеля выделяют четыре яркостные зоны: пороговую, переходную, внутреннюю и выездную, а перед въездом в тоннель - подъездную яркостную зону.
В ночном режиме работы при естественной горизонтальной освещенности вблизи въездного портала менее 100 лк формируют одноуровневую яркостную зону на всем протяжении транспортной зоны тоннеля.
В климатических зонах, где в темное время суток при отсутствии облачности, тумана и других естественных погодных условий при естественной горизонтальной освещенности вблизи въездного портала более 100 лк, регулирование освещения тоннелей рекомендуется производить согласно требованиям дневного режима работы.
5.3 К параметрам регулирования освещения в дневном режиме относят:
- среднюю яркость дорожного покрытия в пороговой зоне Lth;
- продольное распределение яркости дорожного покрытия в переходной зоне Ltr;
- среднюю яркость дорожного покрытия во внутренней зоне Lin;
- среднюю яркость дорожного покрытия в выездной зоне Lex.
5.4 Регулирование освещения в дневном режиме проводят в пороговой и переходной зоне тоннеля в зависимости от уровня яркости адаптации L20 в подъездной зоне в заданный момент времени.
При регулировании освещения в пороговой зоне значение отношения
Lth/L20 должно соответствовать установленному в
ГОСТ Р 56334.
Регулирование освещения в переходной и пороговой зоне проводят одновременно таким образом, чтобы отношение Ltr/Lth было постоянным.
5.5 Регулирование освещения в ночном режиме на протяжении всего тоннеля проводят по средней яркости дорожного покрытия.
5.6 Для обеспечения плавного регулирования и сохранения задаваемых параметров светового потока рекомендуется обеспечивать стабилизацию питающего напряжения ОП применением регуляторов-стабилизаторов или устройств стабилизации питающего напряжения (или оптимизаторов напряжения) перед регулятором, подключенным к распределительной сети освещения тоннелей. Рекомендуется для СД и разрядных ИС при плавном регулировании использовать "шаг" не более 10%.
Примечания
1 Под плавным регулированием понимается результат управляющего воздействия регулятора в течение задаваемого промежутка времени, когда в допустимом диапазоне регулирования параметров светового потока ОП (от минимума до максимума) выполняется заданное количество шагов, направленных на понижение или повышение значений параметров регулирования путем изменения значений напряжения/тока/мощности, которое при визуальном восприятии водителем не создает эффекта ослепления, приводящего к нарушению ориентации или к наблюдению резкого изменения светового потока.
2 Под ступенчатым регулированием понимается быстрое изменение светового потока (более чем 10%), которое может наблюдаться визуально, и включение/отключение части ИС в ОП или отдельных модулей ОП при его модульной конструкции в том случае, если для УУ СД или ЭПРА предусмотрены только функции включения/отключения всего ОП или его части.
5.7 При отсутствии фотометрических датчиков изменение режима работы ОУ тоннеля с применением регуляторов проводят по годовому графику смены дневного и ночного режимов или по сигналу (появлению напряжения в каскадной цепи) при отключении/включении освещения.
5.8 Для дневного и ночного режимов работы предусмотрены следующие технологические состояния системы регулирования:
- нормальное - все технологические параметры сетей освещения тоннеля находятся в пределах нормы;
- анормальное - не все технологические параметры находятся в пределах нормы, и это может создать определенные проблемы при эксплуатации дорожной инфраструктуры тоннеля или для участников дорожного движения, но это еще не приводит к возникновению устойчивых аварийных ситуаций в работе программно-технических средств, коммуникаций, электрооборудования, конструкций или ОУ, а также аварийных ситуаций для участников дорожного движения;
- аварийное - как минимум один технологический параметр выходит за нормируемые пределы, что вызывает устойчивые сбои или повреждения (дефекты), отказы (нарушения работоспособного состояния) в работе комплексов технических средств, ПТК, коммуникаций, электрооборудования или ОУ, что, в свою очередь, создает реальную угрозу возникновения аварийных ситуаций для участников дорожного движения, нарушения и/или перерывы в контроле и мониторинге технологических и производственных процессов;
- диагностическое (тестовое) и аварийно-диагностическое - проведение полной или выборочной проверки технологических параметров на их соответствие нормируемым значениям.
Примечание - Аварийно-диагностическое технологическое состояние применяется в том случае, когда параметры регулирования контролируются и анализируются системой для целей диагностики неисправностей ОП. Продолжительность его кратковременна - не более 1 мин для каждого ОП при снижении его мощности не более чем на 50% в ночном режиме. В дневном режиме время, необходимое для проведения диагностики, может иметь произвольное значение.
5.9 Любой из режимов освещения может сопровождаться различными режимами соответствия технологическим нормативам и состояниям.
6 Требования к регулированию освещения дорог и тоннелей
6.1 Способы, режимы и технические средства регулирования освещения
6.1.1 Способы регулирования освещения дорог и тоннелей подразделяются:
- на групповой - регулирование только параметров линий освещения вне зависимости от количества ОП и ИС и без контроля ОП и ИС;
- индивидуальный - регулирование и/или контроль параметров отдельных ОП и/или ИС.
6.1.2 В зависимости от выбранных технических средств регулирования применяются следующие режимы:
- плавное регулирование (рекомендуется как основной);
- ступенчатое регулирование.
6.1.3 Технические средства регулирования обеспечены реализацией способов и режимов регулирования освещения дорог и тоннелей, приведенных в таблице 1.
Таблица 1
Способы, режимы и технические средства регулирования
освещения дорог и тоннелей
Техническое средство регулирования | Способ регулирования | Режим регулирования |
Групповой | Индивидуальный | Ступенчатый | Плавный |
Групповые регуляторы со встроенными регуляторами напряжения, средствами сбора и передачи информации, каналами связи и другим оборудованием | + | - | - | + |
Индивидуальные регуляторы со встроенными УУ или с внешними УУ, средствами сбора и передачи команд управления и информации, каналами связи, средствами настройки и другим оборудованием | - | + | + | + |
ОУ с опорами с двойным числом ОП и более (по два ОП или более на опору), часть которых в ночном режиме отключают полностью или последовательно (ступенями) | + | - | + | - |
ОП с ЭПРА с запрограммированной функцией регулирования | - | + | - | + |
ОП с двухрежимными ЭмПРА для снижения освещенности в ночном режиме | - | + | + | - |
Электронные регуляторы, обеспечивающие пофазное регулирование напряжения в отходящих линиях освещения | + | - | - | + |
УУ СД, имеющее два режима работы и более, автономно обеспечивающее снижение светового потока за счет отключения части СД в ОП по графику или алгоритму, задающему время изменения режима (выполнения переключений) по установленным критериям (например, по времени включения/отключения питающего напряжения на линиях освещения) | - | + | + | - |
УУ СД с функцией плавного регулирования, которая выполняется по командам телеуправления, поступающим в ОП по каналам связи без обратной связи (без контроля состояния ОП и/или ИС по сигналам телеизмерения и телесигнализации) | + | + | - | + |
УУ СД с функцией плавного регулирования, которая выполняется по командам телеуправления, поступающим в ОП по каналам связи с контролем состояния ОП и/или ИС цифровыми и/или аналоговыми сигналами | - | + | + | + |
Примечания 1 В состав групповых регуляторов входят регуляторы напряжения, средства сбора и передачи информации, каналы связи и другое оборудование (в качестве регуляторов напряжения могут быть использованы автотрансформаторы с переключаемыми обмотками, однофазные или трехфазные трансформаторы со стабилизацией выходного напряжения в задаваемых пределах и без стабилизации или силовые полупроводниковые элементы, например симисторные сборки). 2 В состав индивидуальных регуляторов ОП с СД модулями со встроенными или внешними УУ СД включают: средства сбора и передачи команд управления и информации, каналы связи, программно-аппаратные средства настройки и другое оборудование. 3 Не допускается использование групповых регуляторов и регуляторов - стабилизаторов напряжения сети освещения, если нарушены: - требования к качеству электроэнергии, установленные ГОСТ 32144; - условия обеспечения работоспособности ОП вследствие больших потерь напряжения на линиях освещения большой протяженности; - нормальная работа ОУ при совместной эксплуатации регуляторов напряжения и ОП с СД и/или разрядными ИС, имеющими в своем составе источники питания (УУ СД) и/или ЭПРА со стабилизацией параметров входного напряжения. |
Функциональные требования к групповым и индивидуальным регуляторам приведены в
приложении А.
6.2 Регулирование светового потока осветительных приборов на дорогах
6.2.1 Регулирование светового потока ОП в ОУ дорог категорий I и II производят централизованно из ПП (шкафа управления), в которых совместно с устройствами подачи и распределения электроэнергии установлены УУ освещением и связи.
6.2.2 Для дорог категорий I и II применяемые технические средства регулирования ОП для каждой фазной линии должны обеспечивать следующие способы регулирования:
- индивидуальный - команда управления исполняется только одним регулятором ОП (одним из всех имеющихся на линии освещения);
- групповой - команда управления одновременно исполняется группой регуляторов ОП или всеми регуляторами, имеющимися на линии освещения.
Все вышеуказанные способы должны быть выполнены автоматизированной системой регулирования ОП по заданному алгоритму либо по команде оператора (диспетчера) системы.
6.2.3 Технические средства регулирования ОП должны обеспечивать возможность проведения диагностики ОП (определение работоспособности каждого).
6.2.4 В случае возникновения аварийных перерывов электропитания, после восстановления питания, регуляторы светового потока ОП в течение 1 мин или задаваемого периода времени должны восстанавливать уровень начального светового потока ОП до уровня, соответствующего его значению на момент возникновения аварийной ситуации.
6.2.5 На дорогах категорий I и II и аварийно-опасных участках дорог других категорий не следует применять технические средства непосредственного управления регулятором ОП с использованием программно-технических средств и услуг беспроводных технологий на нелицензируемых частотных диапазонах из-за наличия потенциальной угрозы блокировки каналов управления на неопределенное время и других отрицательных аспектов.
6.3 Требования к регулированию освещения тоннелей
6.3.1 Регулирование освещения тоннелей в дневном режиме обеспечивают применением:
- фотометрических датчиков (например, яркомеров);
- ОП со встроенными или внешними ЭПРА/ЭмПРА с функцией регулирования;
- отключения части ОП в ОУ;
- ОП со встроенными УУ СД или внешними устройствами регулирования.
6.3.2 Регулирование освещения тоннелей в ночном режиме работы допускается обеспечивать отключением части ОП в ОУ при условии выполнения требований к неравномерности освещения по
ГОСТ Р 56334.
6.3.3 При использовании регулируемых ОП в ОУ тоннелей применяют технические средства регулирования, реализующие следующие способы и режимы регулирования:
- ступенчатое - автоматическое, по годовому графику;
- ступенчатое - по показаниям фотометрических датчиков (например, яркомеров);
- плавное регулирование светового потока ОП;
- автономное управление ОП по встроенным таймерам;
- коммутация или изменение значения напряжения или тока в линии освещения в течение определенного периода времени на заданное значение;
- комбинация перечисленных способов.
6.3.4 Варианты режимов управления регулированием:
а) автоматический, управляемый командой от таймера/автономного контроллера
(рисунок 1) с учетом географического положения и ориентации объекта, времени года и суток в соответствии с
ГОСТ Р 56334;
б) ручной, передаваемый из ДП;
в) автоматизированный - по показаниям фотометрических датчиков (например, яркомеров), устанавливаемых перед въездными порталами и в пороговых зонах тоннеля.
Часы (время суток) -> контакторы -> осветительные приборы
Рисунок 1 - Автоматический режим переключения
с учетом времени суток
Эти варианты режимов регулирования и контроля ОУ обеспечивают следующие цепочные структуры телемеханической сети, включающие в себя командный и информационный тракты каналов связи:
1) ступенчатое регулирование в пороговой зоне тоннеля в дневном режиме (может быть в ночном режиме при яркой луне)
(рисунок 2);
3) передача команд - сигналов телеуправления (командный тракт,
рисунок 3);
4) передача информации - сигналов телеизмерения и телесигнализации (информационный тракт,
рисунок 4).
Фотометрический датчик (яркомер) -> шкаф
управления -> контакторы (коммутационные аппараты) ступеней
(КТ1, ..., КТn) -> осветительные приборы
Рисунок 2 - Ступенчатое регулирование в пороговой зоне
тоннеля в дневном режиме
Шкаф управления -> контакторы (коммутационные аппараты)
ступеней (КТ1, КТ2) -> осветительные приборы
Рисунок 3 - Управление переключением режимов
ДП - диспетчерский пункт; КС - канал связи;
ШУ - шкаф управления; ОП - осветительный прибор; сигналы:
ТИ - телеизмерение, ТС - телесигнализация,
ТУ - телеуправление
Примечание - Направление сигналов показано стрелкой.
Рисунок 4 - Передача команд и сигналов
6.3.5 Для применения днем нескольких режимов (ступеней) изменения средней яркости в пороговой и переходной зонах тоннеля следует проводить сравнение нормируемых и фактических значений отношения Lth/L20. При этом фактические значения яркости пороговой зоны Lth, ф и яркости адаптации L20, ф определяют по показаниям фотометрических датчиков (например, яркомеров), установленных соответственно в первой половине пороговой зоны и на расстоянии безопасного торможения от въездного портала.
6.3.6 Для обеспечения плавного изменения уровня освещения в пороговой и переходной зонах тоннеля в соответствии с изменением естественного освещения снаружи тоннеля следует проводить постоянное сравнение нормируемых и фактических значений параметров освещения, получаемых от фотометрических датчиков (например, яркомеров) в подъездной и пороговой зонах тоннеля для выдачи команд телеуправления на регулирование светового потока ОП.
6.3.7 В пороговой, переходной, внутренней и выездной зонах тоннеля могут быть применены дополнительные фотометрические датчики (например, яркомеры), учитывающие снижение яркости дорожного покрытия и стен вследствие спада светового потока и выхода из строя ИС, а также загрязнения ОП и отражающих поверхностей тоннеля.
6.3.8 При потере связи с ДП/сервером или неисправности яркомеров должен быть предусмотрен автоматический переход шкафов управления освещением в автономный режим работы (программное управление от регулятора шкафа).
6.3.9 Система управления ОУ позволяет применять следующие цепочные структуры телемеханических сетей управления в автономном (автоматическом, при необходимости) режиме работы
(рисунок 5):
- схема телемеханического управления групповым регулятором от автономного контроллера (годовое расписание) и фотометрического датчика:
- схема автономной работы регулятора по внутреннему алгоритму и задаваемому графику:
- схема диспетчеризации и телемеханического управления для группового и индивидуального регулирования:
регулятор <-> каналы связи <-> автоматизированное рабочее место
(рисунок 5в).
в - диспетчеризация и телемеханическое
управление регуляторами
Рисунок 5 - Цепочные структуры
телемеханических сетей управления
6.4 Требования к осветительным приборам, используемым для регулирования освещения
6.4.1 В регулируемых ОУ следует использовать ОП с СД и/или разрядными ИС.
6.4.2 ОП должны обеспечивать устойчивую работу ИС в соответствии с заданными параметрами регулирования во всех режимах работы регуляторов.
6.4.3 На одном участке регулирования все ОП должны иметь одинаковые индекс цветопередачи и цветовую температуру.
6.4.4 Кратность пускового тока ОП не должна превышать более чем в три раза значение рабочего тока. При обосновании использования ОП, в котором этот показатель выше, необходимо предусматривать специальные меры по ограничению пускового тока на линии освещения, в том числе с помощью устройств регулирования.
Примечание - Кратность пускового тока определяют как отношение максимального значения тока в пусковом режиме (за время выхода ОП на рабочий режим,
рисунок А.1 приложения А) к номинальному значению тока, потребляемому ОП в рабочем режиме. Продолжительность пускового режима зависит от типа УУ и ИС, используемых в ОП.
7 Структура автоматизированных систем регулирования освещения
7.1 Способы организации связи осветительных установок
7.1.1 Для обеспечения связи между ОУ, включая в отдельных случаях канал(ы) связи с ОП, используют:
- проводные линии управления с одним из стандартных интерфейсов Ethernet, Modbus, TCP/UDP, DALI, DSI, 1-10V, DMX 512 и др.;
- силовые линии освещения с использованием, например, технологии PLC;
- через выделенные физические линии (например, медные телефонные пары);
- беспроводные каналы связи (радиоканалы) стандартных унифицированных протоколов Blutooth (BLE), ZigBee, WiFi, УКВ, LTE/3G/GSM/GPRS/SMS, LPWAN и др.
7.1.2 Основным видом каналов связи между ОУ (ОП, ПП) и ДП/сервером должен быть проводной канал связи (рисунок 6).
ДП - диспетчерский пункт; КС - канал связи;
ПП - пункт питания; ВФЛ - выделенные физические линии;
ВОЛС - волоконно-оптическая линия связи
Рисунок 6 - Схема проводного канала связи
7.1.3 При отсутствии технической возможности использования проводных каналов связи допускается применять беспроводную связь (радиосвязь), а также беспроводные оптические каналы связи (рисунок 7).
ДП - диспетчерский пункт;
КС - канал связи; ПП - пункт питания
Рисунок 7 - Схема беспроводного канала связи
7.1.4 Для обеспечения надежности работы систем регулирования освещения дорог и тоннелей допускается применять комбинированные варианты каналов связи - проводные и беспроводные
(рисунок 8). Проводные каналы связи должны быть основными, а беспроводные - резервными или применяемыми для реализации дополнительных (сервисных) функций систем.
ДП - диспетчерский пункт; КС - канал связи;
ПП - пункт питания; ВФЛ - выделенные физические линии;
ВОЛС - волоконно-оптическая линия связи
Рисунок 8 - Схема комбинированных каналов связи
7.1.5 Для индивидуального регулирования могут быть реализованы два варианта связи с ОП и/или СД модулями ОП:
- однонаправленный - в ОП и/или СД модули ОП передают исключительно команды телеуправления;
- двусторонний - в ОП и/или СД модули ОП передают команды телеуправления и принимают сигналы состояния (телесигнализации) и сигналы измерений (телеизмерения).
Двусторонний вариант организации связи может быть реализован как по одному каналу связи, так и по разным каналам связи: один канал - для передачи команд телеуправления; другой - для передачи сигналов телесигнализации и телеизмерения.
Способы организации связи с ОП при индивидуальном регулировании освещения приведены на рисунке 9.
ПП - пункт питания; КС - канал связи;
ОП - осветительный прибор; PLC - технология телепередачи
сигнала по силовой линии; УУ - устройство управления
Рисунок 9 - Схема способов организации связи
с ОП при индивидуальном регулировании
7.2 Требования к структуре автоматизированных систем регулирования освещения
При создании систем регулирования освещения дорог учитывают требования
ГОСТ Р 58462.
7.2.1 Автоматизированные системы регулирования освещения - это сложная структура уровня автоматизированных систем управления технологическими процессами, представляющая собой распределенный ПТК, состоящий из трехуровневой иерархической системы централизованного управления с возможностью децентрализации и автономного управления на отдельных участках и ПП при авариях, вызывающих нарушение или потерю связи между уровнями системы (рисунок 10).
КТС - комплекс технических средств;
ПТК - программно-технический комплекс;
ДП - диспетчерский пункт; ЦУП - центр управления
производством; ЦДП - центральный диспетчерский пункт;
сигналы: ТУ - телеуправление; ТИ - телеизмерение;
ТС - телесигнализация
Рисунок 10 - Структура автоматизированных систем
регулирования освещения
7.2.2 Структура управления должна предусматривать средства интеграции в существующие автоматизированные системы регулирования освещения верхнего уровня и обеспечивать возможность масштабирования, развития и наращивания.
При интеграции автоматизированных систем регулирования освещения с другими управляющими и информационными системами определяют следующее: роль системы управления (основная система/подсистема) и основные функции, ее место в новой структуре, иерархический уровень, каналы связи и управления, средства сбора, обработки, защиты, хранения и отображения информации, а также методы, способы, технологии, протоколы и уровни.
7.3 Первый уровень автоматизированных систем регулирования освещения (нижний)
7.3.1 Объекты первого уровня подразделяют:
- на подуровень 1А, к которому отнесены датчики [фотометрические - освещенности, яркости, спектра, метеорологические, информационной системы дорожной инфраструктуры - учета и мониторинга интенсивности дорожного движения (трафика) и др.] и устройства контроля целостности линий;
- подуровень 1Б, к которому отнесены групповые и индивидуальные регуляторы.
На
рисунке 11 показана общая схема подуровня 1Б для группового регулирования.
ШУ - шкаф управления; ВРШ - вводно-распределительный шкаф;
ВОЛС - волоконно-оптическая линия связи;
ВФЛ - выделенная физическая линия;
ГЛОНАСС/GPS - навигационные системы
Рисунок 11 - Общая схема подуровня 1Б
для группового регулирования
На
рисунке 12 показана общая схема подуровня 1Б для индивидуального регулирования.
а - схема без блока управления регулированием
б - схема с блоком управления регулированием
ШУ - шкаф управления; ВРШ - вводно-распределительный шкаф;
ВОЛС - волоконно-оптическая линия связи; ВФЛ - выделенная
физическая линия; ГЛОНАСС/GPS - навигационные системы
Рисунок 12 - Общая схема подуровня 1Б
для индивидуального регулирования
Связь с третьим уровнем системы регулятор без блока управления осуществляет с помощью встроенных средств связи (например, GSM-, LPWAN-, ZigBee-модемами). При этом необходимая информация о работе ОП и ПП принимается, обрабатывается и передается между объектами первого и второго уровней через ПТК третьего уровня.
Регулятор с блоком управления посредством коммутации силовых линий средствами PLC-технологии управляет регулированием и контролирует технологические процессы в ОП в автоматизированном, автономном и автоматическом режимах работы, осуществляет связь первого и третьего уровней через комплекс технических средств ПП.
Пример принципиальных схем включения групповых регуляторов в ПП приведен в
приложении Б.
7.3.2 Управление регулированием производят:
- с помощью/без контроллеров шкафов управления - автономно или автоматически для групповых регуляторов по командам, поступающим из ДП по каналам связи;
- индивидуально для каждого ОП (группы ОП) с помощью/без контроллеров шкафов управления и/или контроллеров, встроенных в ОП и имеющих каналы связи, - автономно или автоматически по заданному алгоритму с помощью контроллеров УУ ОП.
7.3.3 В состав автоматизированных систем регулирования освещения могут входить подсистемы автоматического управления, работающие автономно на первом и втором уровнях или в автоматическом режиме на отдельных участках на втором уровне или подуровне 1Б.
7.4 Второй уровень автоматизированных систем регулирования освещения (средний)
7.4.1 К объектам второго уровня относят ПП, в состав которых могут входить комплексы технических средств контроля и управления групповыми и индивидуальными регуляторами, расположенные в подстанциях, или в отдельных шкафах и ящиках на опорах освещения, или на других конструкциях объектов инфраструктуры дороги.
7.4.2 Объекты второго уровня управляют:
- режимами работы ОУ путем коммутации отходящих линий и/или фаз;
- работой групповых и индивидуальных регуляторов (отдельных ОП или групп ОП) при наличии подуровня 1Б на первом уровне.
Пример принципиальной схемы системы регулирования ОП с групповыми регуляторами и датчиками приведен в
приложении В.
7.4.3 Объекты второго уровня контролируют состояние:
- объектов первого уровня (яркомеров, датчиков несанкционированного доступа, датчиков входящих и отходящих линий и др.);
- коммутационных аппаратов;
- связи с объектами первого и третьего уровня.
7.4.4 По информации, поступающей от объектов подуровня 1А, объекты второго уровня управляют по задаваемым алгоритмам работой технических средств объектов подуровня 1Б.
7.4.5 Объекты второго уровня осуществляют диагностику оборудования и передачу показаний счетчиков электроэнергии, фотометрических датчиков (например, яркомеров), а также передачу информации о состоянии оборудования и результатах работы метеостанций, приборов фото- и видеонаблюдения и других информационных систем, подключаемых к автоматизированным системам регулирования освещения.
7.5 Третий уровень автоматизированных систем регулирования освещения (верхний)
К объектам третьего уровня относят:
- пункты оперативно-диспетчерского контроля и управления (ДП);
- технологические (серверные) объекты, которые предназначены для размещения ПТК серверной части автоматических систем регулирования освещения (при использовании клиент-серверных технологий), и средства связи, которые обслуживают несколько оперативно-диспетчерских объектов третьего уровня или являются элементами системы сбора, обработки и хранения информации объекта третьего уровня.
Примечания
1 В системе могут функционировать несколько объектов третьего уровня, подлежащих контролю со стороны одного объекта четвертого уровня.
2 Для сложной структуры организационного и функционального построения третьего уровня системы регулирования освещения дорог следует предусмотреть использование средств для защиты информации, разграничения доступа и резервирования.
7.6 Требования к программно-техническим комплексам
7.6.1 Система регулирования освещения должна работать круглосуточно, обеспечивать восстановление работоспособности серверного оборудования, сетевого и объектового аппаратного и программного обеспечения при сбоях, авариях и отказах (все уровни).
7.6.2 Работоспособность системы регулирования освещения и телекоммуникаций (каналов связи) должна быть обеспечена при наличии как минимум одной фазы питающего напряжения, а при отключении внешнего электропитания - источником бесперебойного питания в течение времени, определяемого заказчиком (все уровни).
7.6.3 При сбоях в электропитании или его полном отключении система регулирования освещения должна обеспечивать сохранность данных и фиксацию всех параметров в ДП для последующего перехода в соответствующий режим функционирования после восстановления питания (третий уровень).
7.6.4 Аппаратная часть ПП должна состоять из шкафов и/или панелей управления/регулирования, обеспечивающих управление/регулирование и организацию каналов связи с ДП (второй уровень).
7.6.5 Шкафы и/или панели управления/регулирования должны иметь органы местного управления и индикации.
7.6.6 Для системы управления/регулирования освещением должны быть предусмотрены резервные и/или дублирующие каналы связи с ДП (рисунок 13).
ДП - диспетчерский пункт; КС - канал связи;
ШУ - шкаф управления; сигналы: ТИ - телеизмерение;
ТС - телесигнализация; ТУ - телеуправление
Примечание - Направление сигналов показано стрелкой.
Рисунок 13 - Передача команд и сигналов
7.6.7 Для организации каналов связи может быть предусмотрено дополнительное телекоммуникационное оборудование.
7.6.8 При нарушении работоспособности всех каналов связи ДП с ПП регулирование освещения должно быть осуществлено в автономном режиме. Переход в автономный режим должен происходить автоматически через задаваемый промежуток времени. Переход в нормальный режим работы должен происходить автоматически или по команде, поступающей из ДП, при восстановлении как минимум одного канала связи.
7.6.9 Система регулирования освещения должна обеспечивать:
- включение/отключение освещения с ДП от контроллеров, по каскадным цепям (схемам) управления, из помещения ПП, с внешних пультов или выключателями коммутационных аппаратов, соблюдая установленные режимы работы для ОУ;
- блокировку отключения/включения ПП с ДП при проведении технического обслуживания, регламентных и аварийно-восстановительных работ, а также при авариях и чрезвычайных ситуациях;
- диагностику состояния комплекса технических средств ПП в части оборудования регулирования и контроль их параметров:
1) наличие управляющего напряжения на коммутационных аппаратах, а также на управляющих контактах электронных коммутационных аппаратов,
2) наличие напряжения в ПП,
3) наличие напряжения и токов на шинах,
4) превышение пусковых токов,
5) наличие напряжений на линейных полюсах коммутационных аппаратов после автоматических выключателей и плавких вставок,
6) наличие напряжений на линейном полюсе контактора (коммутационного аппарата),
7) наличие напряжения в каскадных схемах управления (при их использовании);
- надлежащее состояние и соответствующие результаты измерений датчиков, в том числе тех, состояние которых учитывается в алгоритмах работы регуляторов;
- передачу информации о состоянии объектов системы регулирования освещения и отображение ее на мониторах и табло автоматизированных рабочих мест в ДП;
- передачу на сервер и отображение в ДП показаний датчиков (сенсоров), измерительных модулей (блоков) в ОП, поступающих от комплексов технических средств ПП, от ПТК ДП;
- взаимосвязь (канал связи) между ОП, датчиками, регуляторами, комплексами технических средств ПП, сервером и ДП;
- диагностику основных модулей (блоков) регуляторов с помощью органов местного управления шкафов управления или мобильных устройств (мобильных автоматизированных рабочих мест);
- ведение протоколов событий и действий операторов.
7.6.10 Оборудование и программное обеспечение автоматизированных систем регулирования освещения в каждом ПП должны обеспечивать:
- работу в режиме управления освещением в соответствии с
ГОСТ Р 58462;
- подключение комплекса технических средств телемеханики к распределительному устройству освещения, имеющему необходимое число направлений освещения;
- работу оборудования связи, контроллеров регулирования и шкафов управления освещением при отключении вводного рубильника на время, задаваемое заказчиком;
- формирование каналов связи, обеспечивающих работоспособность автоматизированной системы регулирования;
- управление регуляторами и коммутационными аппаратами при наличии данной функции в системе регулирования (при необходимости);
- регулирование светового потока ИС различного типа в автономном и/или автоматическом режиме по показаниям датчиков освещенности, сигналам каскадных схем управления, графику, а также в ручном телемеханическом и ручном местном режимах;
- формирование диагностической информации;
- автоматическое включение автономного режима при потере связи с вышестоящим объектом управления на время, свыше заданного при настройке, а при восстановлении связи - переход в исходный режим по команде, поступающей из ДП;
- возможность ручного управления оборудованием ПП при плановых и аварийно-ремонтных работах;
- обработку и передачу телесигнализации от оборудования ПП;
- управление и контроль регуляторов в ОУ.
7.6.11 Сигналы телеизмерения принимают от узла учета электроэнергии или других поверенных средств измерений.
7.6.12 С целью повышения надежности систем регулирования освещения дорог не допускается:
- применение в трехфазных сетях трехполюсных автоматических выключателей для защиты линий освещения с одновременным отключением трех линий при срабатывании защиты на одной и/или двух из них;
- установка автоматического выключателя в нулевом проводнике;
- подключение ответвления (отпайки) длиной более 100 м к основной линии освещения без установки дополнительной защиты от сверхтоков в месте подключения ответвления (отпайки), согласованной по условию селективности с защитой головного участка линии освещения;
- подключение ОП в составе двух последовательно установленных ОУ и более на одну фазную линию;
- подключение однофазных ответвлений (отпаек) длиной более 100 м на данном участке к трехфазным линиям освещения и ПП;
- совместное использование нулевых проводников сетей освещения и сетей электроснабжения нагрузок, технологически не связанных с обеспечением работы и регулированием параметров ОУ (в случае их совместной прокладки на всех участках).
В
приложении Г приведены примеры значимых элементов и параметров ОУ, которые учитывают при работе систем регулирования освещения.
(справочное)
ФУНКЦИОНАЛЬНЫЕ ТРЕБОВАНИЯ
К ГРУППОВЫМ И ИНДИВИДУАЛЬНЫМ РЕГУЛЯТОРАМ
А.1 Функциональные требования к групповым регуляторам
А.1.1 Групповой регулятор может иметь:
- на входе и выходе - одну или три фазы напряжения переменного тока;
- встроенное электронное устройство с функцией "байпас-обход" для коммутации входного сигнала непосредственно на выход, в обход всех функциональных блоков, обеспеченное собственными средствами автоматики и коммуникации, имеющее достаточную электродинамическую и термическую стойкость к токам короткого замыкания.
А.1.2 Групповые регуляторы должны обеспечивать:
- регулирование напряжения под нагрузкой при напряжении сети в диапазоне 235 - 265 В (50/60 Гц) на фазу (для разрядных ИС значения напряжения приведены в
таблице А.1);
- регулирование выходного напряжения без использования электромеханических элементов в диапазоне 170 - 235 В на фазу с допустимыми отклонениями +2,5%;
- включение и отключение токов нагрузки и короткого замыкания;
- соответствие выходного напряжения задаваемым требованиям значения тока или напряжения с учетом характеристик регулирования ОП (ИС);
- перезажигание ИС в случае их погасания только при номинальном значении напряжения на выходе регулятора;
- ночное энергосбережение с автоматическим переходом в режим экономии потребления только после стабилизации режима работы ИС;
- включение разрядных ИС с плавным выходом на стабилизацию режима работы ИС в течение не более 15 мин после их зажигания и ограничение пускового тока;
- автоматическое (электромеханическое или электронное) включение режима "байпас-обход" или отключение нагрузки в случае аварийной ситуации (короткое замыкание);
- возможность ручного включения режима "байпас-обход" и местно, и дистанционно;
- прием и учет показаний датчиков (фотометрических датчиков, исполнительного оборудования, датчиков температуры, а также прием и учет показаний датчиков интенсивности движения автомобильного транспорта и метеостанций);
- возможность связи с сервером и/или ДП и удаленного управления;
- мониторинг состояния и управления исполнительным оборудованием;
- передачу данных мониторинга по каналам передачи данных, обработку и отображение на средства визуального контроля;
- дистанционные или местные настройки параметров регуляторов:
1) по обновлению встроенного математического обеспечения модуля управления,
2) программированию регулирования напряжения в режиме скорости изменения напряжения,
3) установке порога регулирования напряжения,
4) установке порога срабатывания по току,
5) программированию времени регулирования.
Таблица А.1
Регулирование напряжения для разрядных ИС в ОП с ЭмПРА
Регулируемое напряжение | Напряжение питания ПРА (напряжение на питающей фазе), В |
220 | 230 |
Натриевые лампы (ДНаТ) | Ртутные лампы (ДРЛ) | Натриевые лампы (ДНаТ) | Ртутные лампы (ДРЛ) |
Стартовый уровень (напряжения розжига) | 200 | 200 | 209 | 209 |
Нормальный (номинальный) уровень | 220 | 220 | 230 | 230 |
Уровень диммирования (нижний предел) | 180 | 200 | 187 | 208 |
Примечание - Напряжения могут незначительно изменяться в зависимости: - от изменения напряжения питания; - модификации ламп и ПРА; - регулировок пользователя (настроек регулятора с учетом напряжения питающей сети и старения ИС). |
А.1.3 Групповые регуляторы могут обеспечивать:
- повышение уровня напряжения питания при пониженном входном сетевом напряжении на регуляторе;
- повышение уровня напряжения питания при необходимости увеличить световой поток выше номинального по задаваемому алгоритму;
- повышение уровня напряжения питания при старении ОП и падении светового потока;
- ограниченный диапазон стабилизации напряжения по трем фазам при применении трехфазных трансформаторов и использовании одной из питающих фаз в качестве опорной (для измерения питающего напряжения).
Пример последовательности работы группового регулятора-стабилизатора приведен на
рисунке А.1.
T0 - время включения освещения (включения регулятора);
T0 - T1 - время запуска (зажигания) ламп, с;
T1 - T2 - время разгорания ламп, мин;
T2 - T3 - время нарастания напряжения питания до номинального уровня, мин;
T3 - T4 - время для термостабилизации ламп, мин;
T4 - T5 - рабочий номинальный режим ОП, ч;
T5 - время начала уменьшения напряжения (диммирования/редукции);
T5 - T6 - время периода диммирования/редукции (плавное регулирование), мин;
T5 - время периода пониженного светового потока (нижний предел), ч.
Рисунок А.1 - Пример последовательности работы
группового регулятора-стабилизатора
А.2 Функциональные требования к индивидуальным регуляторам
А.2.1 Индивидуальный регулятор должен обеспечивать:
- возможность связи с блоком управления регулированием, сервером и/или ДП;
- мониторинг состояния и управления исполнительным оборудованием (автотрансформаторы и бустерные трансформаторы, бесконтактные коммутаторы, симисторные модули, ЭПРА, УУ СД);
- мониторинг состояния оборудования системы управления;
- отображение данных мониторинга на средства визуального контроля (индикация состояния) и передачу на средства связи;
- дистанционные или местные настройки параметров регулятора в соответствии с дистанционными настройками групповых регуляторов.
А.2.2 Индивидуальный регулятор может обеспечивать:
- прием и учет показаний датчиков (датчиков температуры, интенсивности движения автомобильного транспорта, фотометрических датчиков и др.);
- передачу команд, состояния и информацию с результатами диагностики исполнительного оборудования.
А.3 Пример характеристик группового трехфазного регулятора - стабилизатора напряжения приведен в таблице А.2.
Таблица А.2
Характеристики группового трехфазного
регулятора - стабилизатора напряжения
Характеристика | Значение/свойство | Примечание |
Номинальное входное напряжение | 3 x 230 В + N 50/60 Гц (+6%, минус 10%) | По заказу |
3 x 230 В 50/60 Гц (+6%, минус 10%) | По заказу |
3 x 400 В + N 50/60 Гц (+6%, минус 10%) | По заказу |
Максимальное выходное напряжение | 190 - 240 В | Конфигурируемое |
Минимальное выходное напряжение | 150 - 230 В | Конфигурируемое |
Выходное напряжение розжига | 180 - 240 В | Конфигурируемое |
Нагрузка | 0 - 100% номинальной нагрузки | - |
Коэффициент мощности нагрузки | Любой | - |
Точность выходного напряжения | +/- 1% на всем рабочем диапазоне | - |
Контроль выходного напряжения | Независимо по трем фазам | - |
Скорость стабилизации | Менее 40 мс/В | - |
Скорость увеличения (нарастания) ступени (шага) регулирования напряжения | От 1 до 50 В/мин | Настраиваемая |
Скорость уменьшения (снижения) ступени (шага) регулирования напряжения | От 1 до 15 В/мин | Настраиваемая |
Гармонические искажения | Отсутствуют | - |
Температура хранения | От минус 25 °C до 70 °C | - |
Рабочая температура | От минус 20 °C до 55 °C | - |
Влажность | От 0% до 97% Без конденсации | - |
Система охлаждения | Естественная/принудительная | В зависимости от модели |
Степень защиты для корпуса из стеклоткани, усиленного эпоксидной смолой | IP44 | - |
IP21 | С открытой дверью |
Степень защиты для корпуса из металлического листа | IP21 | - |
IP44 | По заказу |
Движущиеся механические части, требующие обслуживания | Отсутствуют | - |
Предохранители защиты цепи управления | Есть | - |
Четырехполюсный магнитотермический выключатель | Есть | - |
Повторное включение цикла пуска после отключения электроэнергии, мини-порт USB | Есть | - |
Для соединения с модемом и ПК (дистанционное управление) | - |
Загрузка и обработка на ПК, дисплей LCD для чтения всех измерений и параметров регулятора | Напряжение, ток, активные и реактивные мощности | - |
Индикация напряжения, тока, активной мощности, реактивной мощности, коэффициента мощности, аналоговых входных и выходных значений | - |
Конфигурируемые параметры сигнала тревоги | Минимальное и максимальное текущие значения напряжения и тока: - пороговые значения напряжения и тока; - минимум и максимум текущего значения активной мощности; - пороговые значения активной мощности; - минимум и пороги максимальной активной мощности; - минимальный и максимальный коэффициент мощности; - действие по тревоге (вызов, режим "байпас-обход" и др.) | - |
Программируемые пользователем циклы | Есть | - |
Резервная батарея | Для данных и часов | - |
Индикация работы | Регулятор или режим "байпас-обход", фазы | - |
Индикация аварийных сигналов | СД индикаторы | - |
Контакты реле выхода | Конфигурируемые: для астрономических часов, таймера, режима "байпас-обход", сброса модема, переключения астрономических часов/фотометрических датчиков, датчиков охлаждения (вентиляции) | - |
Аналоговые входы | 4 - 20 мА | - |
Цифровые входы | Конфигурируемые | - |
Аналоговый выход для внешнего сигнала уровня напряжения тока или связи с другими контроллерами, подключенными к выходу | 4 - 20 мА | - |
Расширение главного порта для подключения нескольких модулей/контроллеров | Конвертер RS232/422-485 | - |
Коммутация из режима "розжиг" в режим "работа" | В соответствии с запрограммированным циклом все промежуточные ступенчатые регулировки выполняют без отключения линии освещения и с максимальным отклонением 2 В | - |
Статический режим "байпас-обход" | Независимый для каждой фазы | - |
Объединенный режим "байпас-обход" | С ручным переключателем | Опция (по заказу) |
Объединенный режим "байпас-обход" контактора | Автоматический/ручной | Опция (по заказу) |
Индивидуально конфигурируемые входы/ выходы | 10 | Опция (по заказу) |
Астрономические часы с реле | Опция | По заказу |
Автоматический выключатель для цепей управления | Есть | - |
Сумеречный выключатель с датчиком внешней освещенности | Есть | - |
Автоматический/ручной переключатель режима управления | Сумеречный режим "байпас-обход" | - |
Узел учета | Есть | - |
В таблице А.3 показаны параметры группового трехфазного регулятора - стабилизатора напряжения, программируемые пользователем.
Таблица А.3
Параметры группового трехфазного
регулятора - стабилизатора напряжения,
программируемые пользователем
Характеристика | Значение/свойство | Примечание |
Рабочее напряжение | 10 периодов времени в день | - |
Операционные циклы | Четыре стандартных, заранее поставленных цикла; один программируемый годовой цикл; пять периодических циклов | - |
Режимы работы | Полный свет, уменьшенный свет, напряжение розжига | Различные для каждой фазы |
Режимы управления | Автоматический, ручной, полный свет, уменьшенный свет | - |
Скорость изменения ступени (шага) регулирования | Настраиваемая | - |
Частота дискретизации измерений | Настраиваемая | - |
Типы сигналов тревоги | Включены | - |
Пороги сигнализации | Настраиваемые | - |
Тип реакции на каждый сигнал тревоги | Программируемый | - |
Перезапуск состояния контроллера | Есть | - |
Программируемые входы/выходы | Два в модуле регулирования, 10 в модуле ОЗУ | - |
Установка порога входного сигнала датчика освещенности | Опция | По заказу |
(справочное)
ПРИНЦИПИАЛЬНЫЕ СХЕМЫ ВКЛЮЧЕНИЯ ГРУППОВЫХ РЕГУЛЯТОРОВ
В ПУНКТАХ ПИТАНИЯ
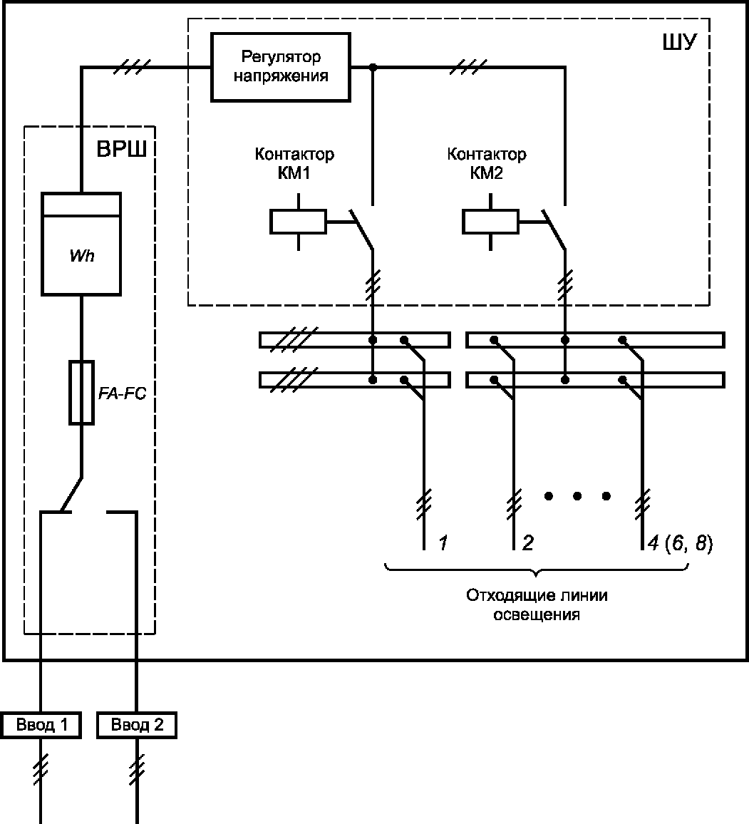
Б.1 При применении групповых регуляторов напряжения для регулирования всех отходящих линий освещения, подключенных к ПП, может быть использована схема, приведенная на
рисунке Б.1.
ВРШ - вводно-распределительный шкаф;
ШУ - шкаф управления; Wh - счетчик электроэнергии;
FA-FC - дискретные элементы защиты
по току мгновенного действия
Рисунок Б.1 - Схема подключения группового регулятора
для регулирования всех отходящих линий освещения,
подключенных к ПП
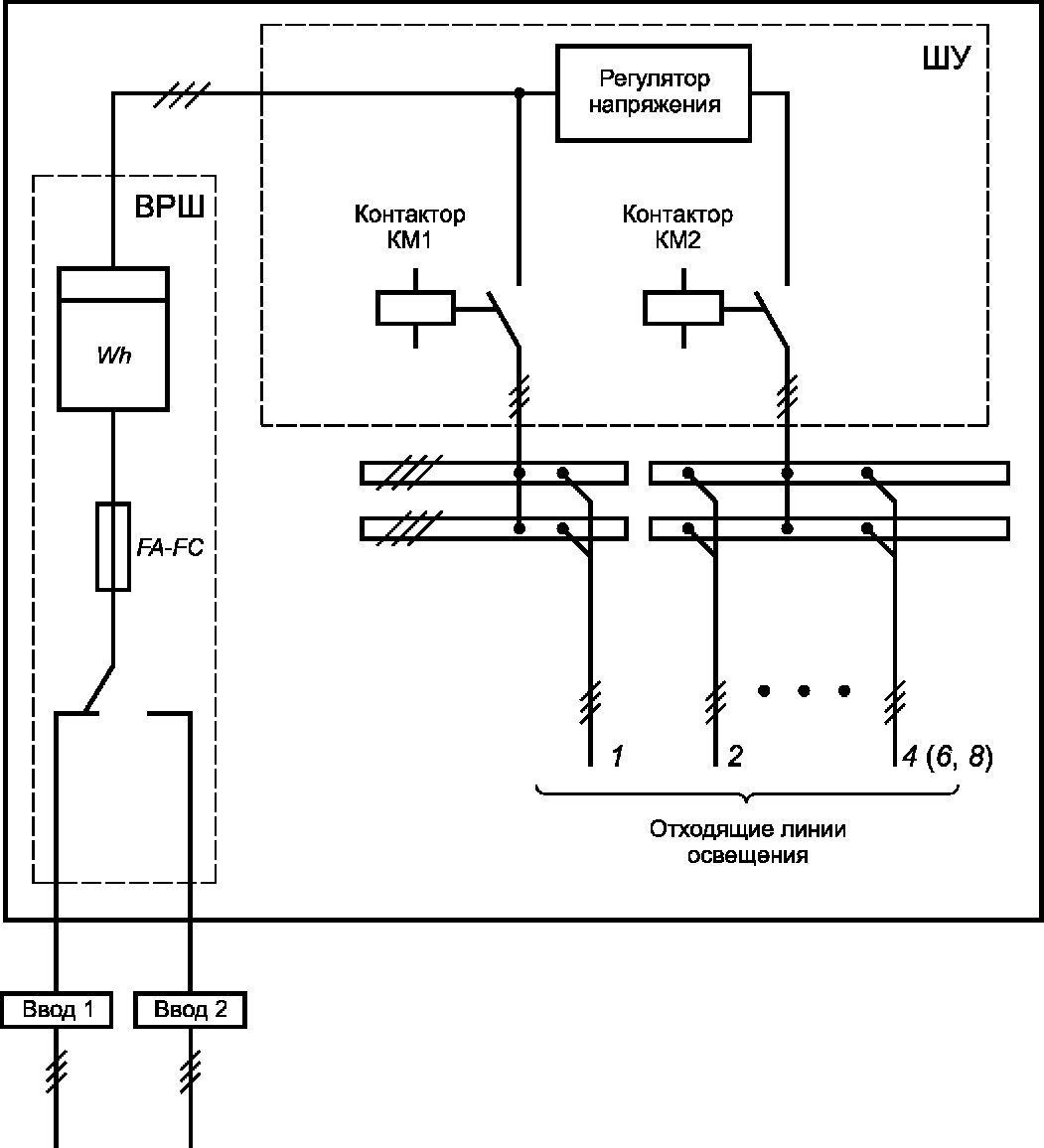
Б.2 Если на одном участке дороги есть места, допускающие регулирование, и места, в которых запрещено регулировать световой поток (например, пешеходные переходы, транспортные развязки и др.), то может быть применена схема, приведенная на
рисунке Б.2. На этой схеме одна группа линий освещения не регулируется (отходящая линия N 1), а другие группы [отходящие линии N 2 - 4 (6, 8)] подключены к регулятору и регулируются групповым методом.
ВРШ - вводно-распределительный шкаф;
ШУ - шкаф управления; Wh - счетчик электроэнергии;
FA-FC - дискретные элементы защиты по току
мгновенного действия
Рисунок Б.2 - Схема подключения группового регулятора
для регулирования отдельных отходящих линий (групп)
освещения, подключенных к ПП
(справочное)
ПРИМЕР ПРИНЦИПИАЛЬНОЙ СХЕМЫ СИСТЕМЫ РЕГУЛИРОВАНИЯ
ОСВЕТИТЕЛЬНЫХ ПРИБОРОВ С ГРУППОВЫМИ
РЕГУЛЯТОРАМИ И ДАТЧИКАМИ
На
рисунке В.1 приведен пример принципиальной схемы системы регулирования ОП с групповыми регуляторами и датчиками:
а) регулятор управляется:
- по командам, поступающим из ДП,
- информации, поступающей от фотометрических датчиков, установленных снаружи и ориентированных на въездной портал, и внутренних, установленных внутри тоннеля для контроля светового потока, а также от датчиков блока защиты и измерений,
- автономно - при отсутствии связи (автоматически по командам встроенного контроллера блока управления и связи и по информации от фотометрических датчиков);
б) показаны различные варианты реализации каналов связи:
- основной - проводный (волоконно-оптическая линия связи) в двух вариантах: с применением внешнего оборудования связи и с использованием телекоммуникационных возможностей шкафа управления,
- резервный (GSM/GPRS/SMS), который может быть единственным при отсутствии проводного канала связи;
в) для синхронизации времени работы можно применять модуль ГЛОНАСС/GPS;
г) блок управления и связи управляет функциональными элементами регулятора;
д) непосредственно для регулирования предназначены:
- логический блок регулирования,
- силовой блок силового коммутационного оборудования;
е) на схеме приведен пример использования двух переключателей нагрузки (байпас-обход):
- электронного, переключающего цепи питания в обход блока силового коммутационного оборудования (может включаться в начале работы для разжигания разрядных ламп);
- механического, переключающего цепи питания при поступлении аварийного сигнала от блока защиты и измерений.
ВОЛС - волоконно-оптическая линия связи;
ШУ - шкаф управления; модуль Ethernet - модуль
локальной сети; ГЛОНАСС/GPS - навигационные системы;
GSM/GPRS/SMS - виды связи; бп - байпас-обход
Рисунок В.1 - Принципиальная схема системы
регулирования ОП с групповыми регуляторами и датчиками
(справочное)
ПРИМЕРЫ ЗНАЧИМЫХ ЭЛЕМЕНТОВ И ПАРАМЕТРОВ
ОСВЕТИТЕЛЬНЫХ УСТАНОВОК, КОТОРЫЕ УЧИТЫВАЮТ
ПРИ РАБОТЕ СИСТЕМ РЕГУЛИРОВАНИЯ ОСВЕЩЕНИЯ
Г.1 Сложность объекта при проектировании обеспечения диспетчерского управления определена количеством дескрипторов, описывающих данный объект с точки зрения информационной емкости включения в систему диспетчерского управления. Возможные виды дескрипторов приведены в таблице Г.1.
Таблица Г.1
Возможные виды дескрипторов
Элемент | Примечание |
Линия телесигнализации | Переменного напряжения 220 В или слаботочная. Необходимо считать по количеству точек контроля |
Линия телеуправления | Необходимо считать по количеству коммутационных элементов |
Сигнал телеизмерения | По количеству измеряемых параметров |
Сигнал телерегулирования | По количеству передаваемых параметров |
Канал DMX | По количеству используемых для управления светильниками каналов |
Канал PLC | Необходимо считать по количеству коммутационных элементов и по количеству передаваемых параметров |
Дискретный выход модуля вывода | По количеству выходов в модуле |
Дискретный вход модуля ввода | По количеству входов в модуле |
Аналоговый вход модуля ввода | По количеству входов в модуле |
Примечание - Дескриптор - информационная единица, описывающая смысловое содержание схемы. Применительно к регулированию ОУ - это магнитные пускатели/контакторы/полупроводниковое коммутационное оборудование, точки контроля, анализируемые узлы, измеряемые и передаваемые параметры, управляемое светотехническое оборудование, дискретные элементы модулей управления. Дескрипторами описываются значимые элементы и параметры ОУ, участвующие в ее работе. С помощью дескрипторов описывается информационная емкость системы управления ОУ (включающая), которая, в свою очередь, определяет объем работ по подключению объекта к системам диспетчеризации, регулирования и анализа. |
Г.2 Значимые параметры системы регулирования объекта для оценки сложности приведены в таблице Г.2.
Таблица Г.2
Параметры системы регулирования для оценки сложности
Параметр | Значение |
Количество технологических операций | Численное |
Количество контролируемых сигналов |
Количество управляющих сигналов |
Переменные данные |
Г.3 Примеры технологических операций, контролируемых и управляющих сигналов, переменных данных, которые учитывают при работе систем регулирования освещения, приведены в таблицах Г.3 -
Г.6.
Таблица Г.3
Технологические операции
Технологическая операция |
Выбор режима "Вечерний" (ручной) |
Выбор режима "Вечерний" (автоматический) |
Выбор режима "Вечерний" (дистанционный) |
Выбор режима "Ночной" (ручной) |
Выбор режима "Ночной" (автоматический) |
Выбор режима "Ночной" (дистанционный) |
Выбор режима "Дневной" (ручной) |
Выбор режима "Дневной" (автоматический) |
Выбор режима "Дневной" (дистанционный) |
Выбор режима "Блокировка групповых команд управления" (дистанционный) |
Выбор режима "Блокировка групповых команд управления" (ручной) |
Выбор режима "Блокировка каскадных команд управления" (дистанционный) |
Выбор режима "Блокировка каскадных команд управления" (ручной) |
Выбор режима "Общее управление с шагом x% по фазе x" |
Выбор режима "Групповое управление" |
Выбор режима "Групповое управление световым потоком ОП с шагом x% по фазе x" |
Выбор режима "Телекаскадное управление" |
Выбор режима "Телеадресное управление" |
Выбор режима "Адресное управление световым потоком ОП с шагом x% по фазе x" |
Выбор режима "Сценарий N X" |
Выбор режима "байпас-обход" |
Автоматическая диагностика |
Тестовая диагностика |
Контроль наличия требуемого напряжения в точках контроля |
Контроль наличия трехфазного напряжения на входах коммутационных аппаратов |
Контроль требуемого напряжения на "прямых проводах" каскадного управления |
Контроль требуемого напряжения на "обратных проводах" каскадного управления |
Регулирование напряжения по показаниям фотометрических датчиков (например, яркомеров) |
Регулирование напряжения в ночном режиме |
Операция по корректировке времени часов/таймера пункта управления |
Синхронизация времени |
Операция по изменению сетевой конфигурации |
Операция по изменению конфигурации оборудования |
Контроль состояния пожарного датчика (дымового извещателя) |
Местная ручная диагностика оборудования (тестовая, с местного пульта на сборке) |
Местная ручная диагностика канала связи (тестовая, с местного пульта на сборке) |
Реализация интерфейсов взаимодействия между автоматизированным рабочим местом и шкафом управления |
Реализация интерфейсов взаимодействия между комплексами технических средств системы регулирования |
Контроль положения коммутационных аппаратов |
Операция по корректировке режимов шкафа управления |
Операция по организации и проверке связи между сервером/ПТК ДП и шкафом управления |
Операция по проверке качества входного трехфазного напряжения (измерение токов и напряжений по фазам) |
Таблица Г.4
Контролируемые сигналы
Сигнал |
Показания счетчика (телеизмерение) |
Напряжение в контрольных точках (телесигнализация) |
Показания яркомеров (телеизмерение) |
Датчики (телесигнализация) |
Положение пускателей (телесигнализация) |
Положение переключателей (телесигнализация) |
Наличие физического канала связи ДП - ПП (телесигнализация) |
Наличие физического канала связи сервер - ПТК ДП (телесигнализация) |
Наличие физического канала связи сервер - ПП (телесигнализация) |
Уровень сигнала в канале связи (телеизмерение) |
Состояние контроллеров и модулей (телесигнализация) |
Наличие связи с сервером (телесигнализация) |
Наличие сигнала синхронизации времени (телесигнализация) |
Наличие сигнала телерегулирования (телесигнализация) |
Регулирование параметров (телерегулирование) |
Таблица Г.5
Управляющие сигналы для объекта регулирования
(для комплекта регулятора)
Технологическая операция |
Запрос на измерения счетчика |
Управление коммутационными аппаратами |
Передача команды "Отключить" |
Передача команды "Погасить" (снижение светового потока до минимального значения) |
Передача команды "Вечерний" |
Передача команды "Ночной" |
Передача команды "Дневной" |
Передача команды "Байпас-обход" |
Передача команды "Регулирование" (изменение параметра, например, напряжения) |
Передача команды "Блокировка" |
Передача команды "Разблокировка" |
Таблица Г.6
Переменные для объекта регулирования
Переменная |
Наличие/отсутствие напряжения в точках контроля |
Наличие/отсутствие напряжения на "прямых проводах" каскадного управления |
Наличие/отсутствие напряжения на "обратных проводах" каскадного управления |
Текущее положение коммутационных аппаратов |
Состояние пожарного датчика (дымового извещателя) |
Флаг дистанционного управления коммутационных аппаратов |
Годовой график включения |
Значения токов по фазам |
Значения напряжения по фазам |