Главная // Актуальные документы // ГОСТ Р (Государственный стандарт)СПРАВКА
Источник публикации
М.: Стандартинформ, 2015
Примечание к документу
Документ
введен в действие с 1 декабря 2013 года.
Название документа
"ГОСТ Р ИСО 16000-16-2012. Национальный стандарт Российской Федерации. Воздух замкнутых помещений. Часть 16. Обнаружение и подсчет плесневых грибков. Отбор проб фильтрованием"
(утв. и введен в действие Приказом Росстандарта от 08.11.2012 N 694-ст)
"ГОСТ Р ИСО 16000-16-2012. Национальный стандарт Российской Федерации. Воздух замкнутых помещений. Часть 16. Обнаружение и подсчет плесневых грибков. Отбор проб фильтрованием"
(утв. и введен в действие Приказом Росстандарта от 08.11.2012 N 694-ст)
Утвержден и введен в действие
агентства по техническому
регулированию и метрологии
от 8 ноября 2012 г. N 694-ст
НАЦИОНАЛЬНЫЙ СТАНДАРТ РОССИЙСКОЙ ФЕДЕРАЦИИ
ВОЗДУХ ЗАМКНУТЫХ ПОМЕЩЕНИЙ
ЧАСТЬ 16
ОБНАРУЖЕНИЕ И ПОДСЧЕТ ПЛЕСНЕВЫХ ГРИБКОВ.
ОТБОР ПРОБ ФИЛЬТРОВАНИЕМ
Indoor air. Part 16. Detection and enumeration of moulds.
Sampling by filtration
ISO 16000-16:2008
Indoor air - Part 16: Detection and enumeration
of moulds - Sampling by filtration
(IDT)
ГОСТ Р ИСО 16000-16-2012
Группа Т58
Дата введения
1 декабря 2013 года
1. Подготовлен Автономной некоммерческой организацией "Научно-исследовательский центр контроля и диагностики технических систем" (АНО "НИЦ КД") на основе собственного аутентичного перевода на русский язык международного стандарта, указанного в пункте 4.
2. Внесен Техническим комитетом по стандартизации ТК 457 "Качество воздуха".
3. Утвержден и введен в действие
Приказом Федерального агентства по техническому регулированию и метрологии от 8 ноября 2012 г. N 694-ст.
4. Настоящий стандарт идентичен международному стандарту ИСО 16000-16:2008 "Воздух замкнутых помещений. Часть 16. Обнаружение и подсчет плесневых грибков. Отбор проб фильтрованием" (ISO 16000-16:2008 "Indoor air - Part 16: Detection and enumeration of moulds - Sampling by filtration").
При применении настоящего стандарта рекомендуется использовать вместо ссылочных международных стандартов соответствующие им национальные стандарты Российской Федерации, сведения о которых приведены в дополнительном
Приложении ДА.
5. Введен впервые.
Правила применения настоящего стандарта установлены в ГОСТ Р 1.0-2012
(раздел 8). Информация об изменениях к настоящему стандарту публикуется в ежегодном (по состоянию на 1 января текущего года) информационном указателе "Национальные стандарты", а официальный текст изменений и поправок - в ежемесячном информационном указателе "Национальные стандарты". В случае пересмотра (замены) или отмены настоящего стандарта соответствующее уведомление будет опубликовано в ближайшем выпуске ежемесячного информационного указателя "Национальные стандарты". Соответствующая информация, уведомление и тексты размещаются также в информационной системе общего пользования - на официальном сайте Федерального агентства по техническому регулированию и метрологии в сети Интернет (gost.ru).
Плесень - общее название нитевидных грибков, принадлежащих к различным таксономическим группам (Зигомицеты, Аскомицеты [отдел Аскомикота], дейтеромицеты). Они образуют мицелий (гифы) и споры, а именно: конидиоспоры (конидии), спорангиоспоры или аскоспоры, по которым их можно визуально обнаружить с помощью микроскопа. Размер большинства спор составляет от 2 до 10 мкм, некоторые имеют диаметр до 30 мкм, и совсем небольшое число достигает диаметра 100 мкм. Споры грибков некоторых видов очень малы и легко попадают в воздух (например, аспергилл, пенициллин), а других - имеют большие размеры и/или покрыты слизью (стахиботрикс, фузариум) и не так подвижны.
Споры грибков широко распространены в окружающей среде, поэтому в различном количестве они встречаются и в замкнутых помещениях. Рост плесени в замкнутых помещениях следует рассматривать как проблему, касающуюся здоровья населения, поскольку результаты эпидемиологических исследований подтвердили тесную взаимосвязь между влажностью и/или ростом плесени в домах и ухудшением здоровья их обитателей.
Стандартизованные методы отбора проб, обнаружения и подсчета плесневых грибков, в том числе стандарты, устанавливающие методы отбора проб, необходимы для получения результатов с целью сравнения их с пределами допускаемых значений, установленных для содержания плесневых грибков в замкнутых помещениях. Перед проведением каких-либо измерений необходимо разработать их методику.
Методика, установленная в настоящем стандарте, основана на VDI 4252-2
[7], широко используемом для обнаружения и подсчета плесневых грибков в атмосферном воздухе, и адаптированном для воздуха замкнутых помещений.
В настоящем стандарте установлены требования к долговременному (от 0,5 ч до нескольких часов) отбору проб воздуха в замкнутых помещениях для улавливания плесневых грибков методом фильтрования. В соответствии с приведенными требованиями отбирают пробу воздуха для последующего обнаружения в ней плесневых грибков путем их культивирования после суспендирования в соответствии с ИСО 16000-17, являющимся частью полной методики измерений.
Настоящий стандарт не применяют при индивидуальном отборе проб.
ПРЕДУПРЕЖДЕНИЕ - При применении настоящего стандарта может потребоваться использование опасных материалов, действий и оборудования. В настоящем стандарте не рассмотрены требования безопасности. Обязанностью пользователя настоящего стандарта является установление подходящих требований безопасности и гигиены и определение регулирующих ограничений по безопасности перед его использованием.
В настоящем стандарте использованы ссылки на следующий международный стандарт:
| | ИС МЕГАНОРМ: примечание. Текст дан в соответствии с официальным текстом документа. | |
ИСО 16000-17:2008 Воздух замкнутых помещений. Часть 17. Обнаружение и подсчет числа плесневых грибков. Метод культивирования (ISO 16000-172008, Indoor air - Detection and enumeration of moulds - Culture based method).
В настоящем стандарте применены следующие термины с соответствующими определениями:
3.1. Аэродинамический диаметр (aerodynamic diameter): диаметр сферы с относительной плотностью 1, которая в условиях спокойного воздуха под действием силы гравитации имеет такую же конечную скорость осаждения, что и рассматриваемая частица при преобладающих значениях температуры, давления и относительной влажности.
Примечание. Взято из ИСО 7708, пункт 2.2.
3.2. Эффективность сохранения биологической активности (biological preservation efficiency): способность устройства отбора проб поддерживать жизнеспособность взвешенных в воздухе микроорганизмов при их улавливании и сохранять в неповрежденном виде продукты их жизнедеятельности.
3.3. Нитевидный грибок (filamentous fungus): грибок, растущий в форме нитевидных клеток, называемых гифами.
Примечания
1. Гифы, соединенные в пучки, называются мицелиями.
2. Термин "нитевидные грибки" необходим для различения грибков с гифальным ростом и дрожжевых грибков.
3.4. Фильтрование (filtration): улавливание частиц, взвешенных в потоке газа или жидкости, при пропускании его через пористый материал.
Примечание. В настоящем стандарте под фильтрованием следует понимать отделение микроорганизмов или плесневых грибков от воздуха определенного объема с помощью фильтров.
3.5. Колониеобразующая единица; КОЕ (colony forming unit; cfu): единица, с помощью которой выражают число микроорганизмов, способных к образованию культур.
Примечания
1. Одна колониеобразующая единица может происходить от одного отдельного микроорганизма, агрегатов нескольких микроорганизмов, а также от одного или нескольких микроорганизмов, присоединившихся к частице.
2. Число колоний может зависеть от условий культивирования.
3.6. <1> Культивирование (cultivation): выращивание микроорганизмов на питательной среде.
--------------------------------
<1>
Термины 3.6;
3.7;
3.9 установлены для целей настоящего стандарта, т.е. для оценки качества воздуха замкнутых помещений.
3.7. Холостая проба для условий применения (field blank): проба, отбираемая таким же образом, что и реальная проба, за исключением просасывания воздуха через устройство отбора проб.
Примечание. Результат анализа такой холостой пробы представляет собой число КОЕ, попадающих в пробу при обращении с фильтром при отборе проб. Результаты анализа холостых проб для условий применения используют не для корректировки результатов измерений, а для обнаружения погрешностей отбора проб (см. ИСО 16000-17).
3.8. Микроорганизм (microorganism): любая микробиологическая форма, клеточная или неклеточная, способная к размножению или переносу генетического материала, или формы, утратившие эту способность.
3.9. Плесневый грибок (mould): нитевидные грибки, принадлежащие нескольким таксономическим группам, а именно: Зигомицеты, Аскомицеты (Аскомикота) и Дейтеромицеты (несовершенные грибы).
Примечание. Плесневые грибки образуют споры различного вида в зависимости от того, к какой таксономической группе они принадлежат, а именно: конидиоспоры (конидии), спорангиоспоры и аскоспоры.
3.10. Физическая эффективность отбора проб (physical sampling efficiency): способность пробоотборника улавливать взвешенные в воздухе частицы определенных размеров.
3.11. Общая эффективность отбора проб (total sampling efficiency): произведение физической эффективности отбора проб на эффективность сохранения биологической активности.
При фильтровании определенное количество воздуха просасывается через фильтр, в котором или на котором происходит отделение взвешенных в воздухе частиц.
Взвешенные в воздухе плесневые грибки улавливают на желатиновые фильтры, обладающие высокой общей эффективностью отбора проб (см.
Приложение A). Под желатиновые фильтры подкладывают поликарбонатные фильтры для повышения устойчивости (см.
Приложение A). Вместо желатиновых могут быть применены другие фильтры, если относительная степень извлечения для них составляет не менее 90% по массе по отношению к массе материала, извлеченного с желатинового фильтра.
Устройство отбора проб предназначено для обнаружения частиц размером, близким к размеру спор плесневых грибков (от более 1 до приблизительно 30 мкм). При отборе проб линейная скорость потока воздуха через фильтр должна быть в диапазоне от 100 до 250 мм/с.
Примечания
1. Если используют фильтр диаметром 80 мм, то указанная объемная скорость потока воздуха достигается при объемной скорости потока воздуха от 1,5 до 3,3 м3/ч (от 25 до 55 л/мин).
2. Методика, приведенная в настоящем стандарте, была аттестована для линейной скорости потока воздуха 217 мм/с. Физическая эффективность отбора проб при других значениях скорости потока воздуха может быть ниже.
3. Частицы размером более 30 мкм также улавливаются фильтрами. Если держатель фильтра находится в подвешенном состоянии (например, при измерениях на открытом воздухе при сильном ветре и дожде), то возможно, что более крупные частицы могут не достигнуть фильтра из-за их большой инерции.
После отбора проб спор плесневых грибков культивируют их и подсчитывают. Соответствующая методика культивирования приведена в ИСО 16000-17.
5. Оборудование и принадлежности
5.1. Устройство отбора проб
Необходимы следующие компоненты.
5.1.1. Стойка для размещения пробоотборной насадки на требуемой высоте.
5.1.2. Пробоотборная насадка для размещения фильтродержателя с вставленными фильтрами при необходимости в подвешенном состоянии.
Для подсоединения пробоотборной насадки к устройству отбора проб может быть использована коленчатая трубка или гибкий шланг. Внутренний диаметр трубки или шланга должен быть от 8 до 10 мм.
5.1.3. Фильтродержатель стерильный (одноразовый или стерилизуемый).
5.1.4. Фильтры желатиновые <1>, стерильные, номинальной тонкостью фильтрации 3 мкм и фильтры из поликарбоната, стерильные, номинальной тонкостью фильтрации 0,8 мкм (см.
Приложение A).
--------------------------------
<1> Sartorius Stedim Biotech,

является примером подходящего серийного изготовителя таких фильтров. Информация приведена для удобства пользователей настоящего стандарта и не является рекламой поставщика.
5.1.5. Вакуумный насос, обеспечивающий постоянный расход воздуха при непрерывной работе.
Объемная скорость потока воздуха должна быть отрегулирована так, чтобы линейная скорость потока через фильтр была в пределах от 100 до 250 мм/с (см.
раздел 4).
5.1.6. Газовый счетчик для определения объема воздуха в кубических метрах, просасываемого через пробоотборную насадку.
5.1.7. Таймер для предварительной установки времени и продолжительности отбора проб.
5.1.8. Экран для защиты устройства отбора проб от неблагоприятных погодных условий (необязательно, в основном только при использовании на открытом воздухе).
Расстояние между верхним краем защитного экрана и нижним краем пробоотборной насадки должно составлять не менее 400 мм.
5.2.1. Стерильные контейнеры для транспортирования фильтров, например чашки Петри.
5.2.2. Герметичные контейнеры для транспортирования проб.
5.2.3. Защитные перчатки, предпочтительно одноразовые стерильные или продезинфицированные.
5.2.4. Дезинфицирующее средство, например изопропанол или этанол (с объемной долей основного вещества не менее 70%).
5.2.5. Стерильный пинцет для обращения с фильтрами.
6.1. Подготовка к отбору проб
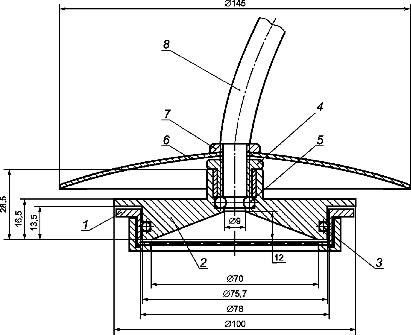
Собирают установку для отбора проб в соответствии с
рисунком 1.
1 - пробоотборная насадка для подвешивания
(с фильтродержателем) при необходимости; 2 - газовый
счетчик (например, измерительная диафрагма, термический
измеритель массового расхода); 3 - блок электроники
для пересчета показаний в кубические метры; 4 - дисплей
для отображения объема воздуха в кубических метрах;
5 - вакуумный насос; 6 - таймер; 7 - фильтр для абразивных
веществ <a>; 8 - корпус для защиты от неблагоприятных
условий окружающей среды (необязательно); pA - атмосферное
давление; pG - давление отбираемого газа; TA - температура
атмосферного воздуха; TG - температура отбираемого газа;
VB - объем отбираемого газа
--------------------------------
<a> При использовании пластинчатого насоса поток воздуха, поступающий на фильтр, должен быть горизонтальным.
Рисунок 1. Принципиальная схема установки для отбора проб
Примечание. В небольших помещениях, например детских комнатах, могут быть отобраны пробы малого объема. Отбор проб большого объема можно проводить в замкнутых помещениях с очень большой площадью, если шум, производимый устройством отбора проб, не оказывает неблагоприятного воздействия на обитателей помещения, при соблюдении установленных условий по скорости отбора проб или отбираемого объема воздуха.
Подходящее устройство отбора проб подробно описано в
Приложении B.
Для определения объема пробы герметично подсоединяют газовый счетчик между насосом и пробоотборной насадкой. Объем отбираемого воздуха отражается на дисплее в кубических метрах с погрешностью 0,01 м3. Температуру и давление в объемном газовом счетчике, а также температуру окружающего воздуха и атмосферное давление непрерывно регистрируют.
Объем отбираемого воздуха, приведенный к реальным условиям, VB, м3, вычисляется в объемном газовом счетчике автоматически по формуле

(1)
где VG - объем отобранного воздуха, измеренный объемным газовым счетчиком;
TA - температура воздуха;
pG - давление воздуха в объемном газовом счетчике;
TG - температура воздуха в объемном газовом счетчике;
pA - давление воздуха.
Подготавливают необходимое число устройств отбора проб в соответствии с целью и методикой измерений. Расход воздуха в устройстве отбора проб не должен превышать 10% кратности воздухообмена в исследуемом помещении. Если кратность воздухообмена в помещении неизвестна, то объем воздуха, отбираемого за час, не должен превышать 10% объема помещения.
Во время отбора проб отклонение скорости потока воздуха от заданного должно быть в пределах +/- 2%. Также по мере увеличения загрузки фильтра расход отбираемого воздуха не должен понижаться более чем на 10%.
Примечание. Существуют самонастраивающиеся системы отбора проб, в которых эти недостатки устранены.
Рекомендуется проверять комплектность и функционирование оборудования в соответствии с контрольным перечнем.
Проверяют градуировку устройства отбора проб. При необходимости проводят очередную градуировку перед проведением измерений (см.
раздел 8).
При проведении измерений используют стерильные фильтры и стерильные фильтродержатели. Обеспечивают, чтобы фильтр оставался стерильным вплоть до начала отбора проб. При транспортировании защищают фильтры от попадания пыли, перегрева и сильных вибраций.
Отбор проб обычно проводят на высоте от 0,75 до 1,5 м от пола. В особых случаях допустимо проводить отбор проб на другой высоте. Следят за тем, чтобы пыль, осевшая на пол в доме, не попала в устройство отбора проб при его размещении на небольшой высоте от пола.
Примечание. При размещении фильтродержателя в замкнутом помещении с неинтенсивным движением воздуха его ориентация имеет второстепенное значение. Подвешивание пробоотборной насадки необходимо только в том случае, если наблюдается интенсивное движение воздуха (например, при проведении сравнительных измерений на открытом воздухе).
Устанавливают стерильные фильтродержатели со стерильными фильтрами в устройство отбора проб, не внося никаких загрязнений (предпочтительно используя при этом стерильные одноразовые перчатки). Осматривают фильтры в фильтродержателях визуально на предмет отсутствия повреждений и точной и герметичной установки.
Включают устройство отбора проб в соответствии с инструкциями изготовителя.
В протоколе отбора проб указывают цель измерения и место его проведения (пример формы протокола отбора проб приведен в
Приложении C), а также подробное описание расположения устройства отбора проб, его тип, дату и время отбора каждой отдельной пробы, продолжительность отбора проб, значения объемной скорости потока воздуха, а при работе с атмосферным воздухом - направление и скорость ветра. Также регистрируют другие параметры (например, температуру воздуха, относительную влажность) и любые другие особые обстоятельства, аномалии или мешающие влияния, информация о которых может быть полезна при анализе проблем с плесневыми грибками (например, при наличии жалоб на запахи, при определении типа и местоположения возможных дополнительных источников выделения).
По завершении отбора проб вынимают фильтродержатели с фильтрами из устройства отбора проб, используя при этом стерильные или продезинфицированные перчатки, и проверяют их на предмет отсутствия повреждений. Помещают фильтры в герметичные контейнеры для предотвращения любого вторичного загрязнения.
Рекомендуется проводить несколько измерений при различной продолжительности отбора проб. Это особенно важно в тех случаях, когда ожидаемый уровень содержания плесневых грибков неизвестен.
Отбирают как минимум одну холостую пробу для каждого объекта измерений предпочтительно в середине серии измерений. С этой целью помещают стерильный фильтродержатель с фильтром в пробоотборную насадку при выключенном насосе, а затем вынимают, запаковывают и обрабатывают фильтр в ходе анализа таким же образом, как и загруженные фильтры. Предотвращают длительное воздействие окружающего воздуха на фильтр.
6.3. Продолжительность отбора проб
Продолжительность отбора проб определяется целью измерений и ожидаемым содержанием плесневых грибков. Обычно продолжительность отбора проб составляет от 30 мин до нескольких часов.
6.4. Транспортирование и хранение проб
Защищают фильтр от неблагоприятных воздействий (солнечного света, влажности или пересушивания, перегрева, пыли и т.д.) и транспортируют его в лабораторию сразу после отбора проб, размещая рабочей поверхностью вверх в герметично закрытых контейнерах (см.
5.2). Температура окружающей среды при транспортировании не должна превышать температуру культивирования, т.е. должна быть в пределах (25 +/- 3) °C. При необходимости при транспортировании охлаждают пробы, но следят за тем, чтобы их не заморозить. Регистрируют условия транспортирования (температуру окружающей среды, влажность и продолжительность). Анализируют пробы по возможности сразу же, но не позднее чем через 48 ч после отбора проб. Пробы хранят в лаборатории при температуре, не превышающей температуру культивирования.
7. Эффективность отбора проб и ограничения метода
Ограничения метода определяются физической и биологической эффективностью отбора проб.
Физическая эффективность желатиновых и поликарбонатных фильтров составляет более 95% для плесневых грибков с аэродинамическим диаметром более 1 мкм при линейной скорости потока воздуха через фильтр v = 217 мм/с (см.
Приложение A).
Влияние пересушивания на эффективность сохранения биологической активности неоднозначно, но оно зависит от температуры и относительной влажности воздуха во время отбора проб, его продолжительности, а также типа плесневых грибков. Однако большинство спор плесневых грибков относительно нечувствительны к пересушиванию, поэтому обычно фильтрование может успешно применяться. Испытания при валидации методики выявили пониженную степень извлечения для Cladosporium spp. при очень жаркой и солнечной погоде (см.
D.2).
8. Градуировка оборудования по расходу воздуха
и техническое обслуживание системы отбора проб
8.1. Градуировка оборудования по расходу воздуха
Проводят градуировку устройства отбора проб с помощью газового счетчика утвержденного типа, имеющего погрешность измерения объема воздуха в кубических метрах, приведенного к реальным условиям, в пределах +/- 2%. Подсоединяют газовый счетчик к входному отверстию устройства отбора проб. Убеждаются в том, что входное отверстие газового счетчика открыто. После настройки расхода воздуха проверяют точность выведения данных на экран устройства отбора проб по газовому счетчику. Объем воздуха, просасываемого через устройство отбора проб в течение 60 мин, должен отображаться с погрешностью в пределах +/- 1% по отношению к показанию газового счетчика утвержденного типа. Время установления постоянной скорости потока не должно превышать 5 с.
Периодичность проверки расхода воздуха (оперативный контроль) зависит от стабильности работы устройства. Полную градуировку системы отбора проб выполняют перед началом новой серии измерений или после значительных изменений, например, если было установлено новое или отремонтированное оборудование, или после технического обслуживания насоса. Если расход воздуха, определенный с помощью эталона сравнения, отклоняется более чем на 2% от значения, требуемого для корректной работы входного отверстия, регулируют объемную скорость потока в соответствии с инструкциями изготовителя.
8.2. Техническое обслуживание
Проводят техническое обслуживание механических частей системы отбора проб (входного отверстия и подсоединяемых трубок), в том числе проверку утечек в соответствии с инструкциями изготовителя.
Всю методику измерений проверяют с помощью холостых проб для условий применения (см. также
6.2).
Важно, чтобы установился прецизионный режим работы устройства отбора проб (в отсутствии натекания при определении объема пробы). Кроме того, особенно внимательно следят за работой насоса и пробоотборной насадки с фильтрами.
Лаборатория должна иметь документированное руководство по качеству, находящееся в свободном доступе для сотрудников (см. ИСО/МЭК 17025
[5]).
Маркируют пробы для их однозначной идентификации.
Заполняют протокол отбора проб для каждой пробы перед ее отбором (или сразу после отбора).
Протокол должен содержать по крайней мере следующую информацию:
a) дату и время отбора проб;
b) ФИО и адрес заказчика;
c) тип применяемого устройства отбора проб;
d) объем пробы воздуха, описание места и продолжительности отбора проб;
e) деятельность обитателей помещения во время отбора проб;
f) ФИО лаборанта, отбиравшего пробу.
Также по возможности может быть указана цель анализа и перечень необходимых для анализа параметров, которые впоследствии могут быть учтены при выборе методов анализа в лаборатории. Может потребоваться другая дополнительная информация (например, по температуре и влажности воздуха, подробное описание точки отбора проб, любые наблюдения или явления, которые могли повлиять на содержание плесневых грибков в воздухе).
Примечание. При проведении измерений в атмосферном воздухе могут иметь значение другие параметры, такие как атмосферное давление, направление и скорость ветра, а также климатические условия.
11. Характеристики эффективности
Характеристические кривые фильтрования и эффективности отбора проб для спор плесневых грибков были получены при использовании желатиновых фильтров в сочетании с поликарбонатными (см.
рисунок A.1 и
Приложение A). Эффективность отбора проб составила более 95% для плесневых грибков с аэродинамическим диаметром > 1 мкм.
Пригодность метода изначально была проверена по сравнительным измерениям в атмосферном воздухе (см.
раздел D.1). Для сравнения с отбором проб методом осаждения (см.
раздел D.2) в воздухе замкнутых помещений были проведены некоторые дополнительные эксперименты.
(справочное)
ИЗВЛЕЧЕНИЕ СПОР ПРИ ИСПОЛЬЗОВАНИИ ЖЕЛАТИНОВЫХ ФИЛЬТРОВ
В СОЧЕТАНИИ С ПОЛИКАРБОНАТНЫМИ
Взвешенные в воздухе биоаэрозоли при фильтровании осаждаются на фильтре. Механизмы фильтрования (диффузия, осаждение, захват и седиментация) определяют достигаемую эффективность отбора проб (см.
[8]).
Были проведены сравнительные эксперименты по выращиванию плесневых грибков после осаждения спор на различные фильтрующие материалы. Споры были извлечены с фильтров и культивированы на агаре DG18. Для желатиновых фильтров характерна высокая степень извлечения (см. также таблицу A.1), что приводит к низкому стандартному отклонению результатов измерений и более низкому пределу обнаружения по сравнению с результатами, полученными с помощью поликарбонатных фильтров (см.
[9]).
Таблица A.1
Извлечение спор плесневых грибков с различных фильтров
[10]
при отборе проб воздуха в замкнутых помещениях
Проба | Номер измерения | Отбор проб на поликарбонатные фильтры, содержание плесневых грибков <1>, КОЕ·м -3 | Отбор проб на желатиновые фильтры, содержание плесневых грибков, КОЕ·м-3 |
A | 1 | 50 | 120 |
2 | 30 | 170 |
3 | 30 | 120 |
4 | 50 | 300 |
5 | - | 120 |
6 | - | 240 |
B | 1 | 50 | 290 |
2 | 30 | 260 |
3 | 40 | 190 |
4 | 40 | 220 |
--------------------------------
<1> Содержание плесневелых грибков в воздухе замкнутого помещения, характеризуемое числом колоний, образуемых из кубического метра воздуха.
Недостатком желатиновых фильтров является их пониженная влагостойкость, обусловленная растворением, и, как следствие, небольшая механическая прочность.
Использование влагостойких поликарбонатных фильтров для отбора проб приводит к более низкой степени извлечения по сравнению с желатиновыми фильтрами. Достоинством поликарбонатных фильтров по сравнению с другими фильтрами является их универсальность, а также устойчивость к воздействию влаги и температуры.
Поэтому в условиях высокой атмосферной влажности рекомендуется использовать поликарбонатный фильтр, установленный после желатинового по потоку. В этом случае поликарбонатный фильтр выступает в качестве опоры и защиты для желатинового фильтра, очень чувствительного к воздействию влаги.
Использование вышеописанного сочетания фильтров доказало их надежность и возможность применения в течение более 24 ч в условиях повышенной влажности и даже атмосферных осадков. Таким образом, подобное сочетание фильтров представляет собой фильтрующую систему, подходящую для отбора проб спор плесневых грибков даже в замкнутых помещениях с влажной средой или в атмосферном воздухе (см.
[10]).
Эффективность отбора проб при использовании желатиновых фильтров в сочетании с поликарбонатными составляет более 95% для спор плесневых грибков с аэродинамическим диаметром более > 1 мкм (см. рисунки A.1 и
A.2).

- эффективность фильтра; d
p - диаметр частиц
Рисунок A.1. Характеристические кривые фильтрования
для желатиновых фильтров (номинальной тонкостью фильтрации
3 мкм; диаметром 80 мм) при расходе воздуха
3 м3/ч - приведенные значения получены при линейной
скорости потока воздуха через фильтр v = 217 мм/с

- эффективность фильтра; d
p - диаметр частиц
Рисунок A.2. Характеристические кривые фильтрования
для поликарбонатных фильтров (номинальной тонкостью
фильтрации 0,8 мкм, диаметром 80 мм) при расходе воздуха
3 м3/ч - приведенные значения получены при линейной
скорости потока воздуха через фильтр v = 217 мм/с
(справочное)
ТЕХНИЧЕСКОЕ ОПИСАНИЕ ПОДХОДЯЩЕГО УСТРОЙСТВА
ДЛЯ ФИЛЬТРОВАНИЯ
Описание пробоотборной насадки и фильтродержателя, подходящих для измерений в воздухе замкнутых помещений и на открытом воздухе, приведено на
рисунках B.1 и
B.2. Подвешивание пробоотборной насадки необходимо только при проведении измерений на открытом воздухе (см.
примечание к 6.2).
Технические характеристики системы отбора проб приведены в таблице B.1.
Таблица B.1
Технические характеристики системы отбора проб
Техническая характеристика | Значение |
Расход воздуха | (3,0 +/- 0,3) м3/ч |
Допустимое отклонение расхода воздуха во время отбора проб (см. 8.1) | <= 10% |
Погрешность средства измерений расхода воздуха на экране | +/- 0,01 м3/ч |
Диаметр фильтра | 80 мм |
Диаметр активной поверхности фильтра | 70 мм |
Скорость потока воздуха через фильтр | 217,0 мм/с, относительная погрешность +/- 10% |
Продолжительность отбора проб (см. 6.3) | От 10 мин до нескольких часов |
Эта система была использована при обмене пробами при аттестации метода отбора проб для атмосферного воздуха (см.
Приложение D).
Можно использовать другие системы отбора проб, если они соответствуют требованиям (см.
5.1) или при их применении могут быть получены сопоставимые результаты. Если применяют пробоотборник других размеров, то фильтр и другое оборудование должны быть соответствующим образом адаптированы, чтобы соблюдалось основное требование к скорости потока воздуха через фильтр.
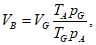
Пробоотборная насадка может быть предназначена для одноразовых или стерилизуемых фильтродержателей для многоразового использования. Фильтродержатель помещают в переходник. При этом фильтродержатель будет плотно прижат к уплотнительной прокладке. Отводящую трубку или наконечник гибкого шланга с резьбой подсоединяют к пробоотборной насадке, используя уплотнительное кольцо для герметизации. Фитинг с внутренней резьбой плотно подсоединяют к переходнику, герметизируя соединение, например с помощью политетрафторэтиленовой пленки.
1 - одноразовый фильтродержатель; 2 - переходник;
3 - уплотнительная прокладка (силиконовая); 4 - фитинг
с внутренней резьбой; 5 - уплотнительная прокладка;
6 - защитный экран; 7 - контргайка; 8 - отводящая трубка
Рисунок B.1. Пробоотборная насадка с фильтродержателем
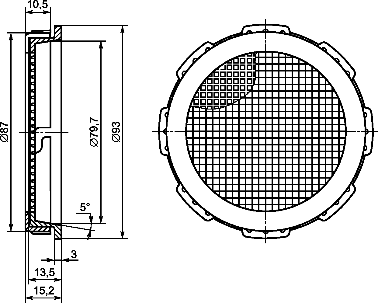
Рисунок B.2. Одноразовый фильтродержатель
(справочное)
Заказчик: | Протокол N: |
Объект: | Тип и серийный номер устройства: |
Место проведения измерений: | Дата: | Время: |
N фильтра | Время начала отбора проб | Объем пробы, м3 | Продолжительность отбора проб, мин | Высота положения устройства, м | Температура, °C | Относительная влажность, % | Замечания |
| | | | | | | |
| | | | | | | |
| | | | | | | |
Замечания:
ФИО лаборанта: Дата и подпись:
Описание деятельности в помещении и мешающих влияний во время отбора
проб
Заказчик: | Протокол N: |
Объект: | Тип и серийный номер устройства: |
Место проведения измерений: | Дата: | Время: |
N фильтра | Деятельность и мешающие влияния в помещении во время отбора проб (потенциальные источники выделения спор плесневых грибков, наличие запахов, повторное попадание осажденных частиц в воздух) |
| |
| |
| |
Замечания:
ФИО лаборанта: Дата и подпись:
(справочное)
ИСПЫТАНИЯ С ЦЕЛЬЮ ВАЛИДАЦИИ
Методика, установленная в настоящем стандарте, широко используется при проведении измерений с целью оценки качества атмосферного воздуха. Следовательно, изначально имеются данные по проверке результатов оценки качества окружающего атмосферного воздуха.
Пригодность методики была проверена в условиях применения при использовании желатиновых фильтров в сочетании с поликарбонатными, а в качестве количественной оценки (см.
[10]) было определено стандартное отклонение методики измерений в целом (отбор и анализ проб, неоднородность объекта измерений). Исследования проводились для атмосферного воздуха:
- на заднем дворе дома, находящегося на городской территории (улица с жилыми домами, тупиковая), одной лабораторией;
- на заднем дворе дома, находящегося на городской территории (улица с жилыми домами, тупиковая), четырьмя лабораториями;
- вблизи завода по компостированию отходов шестью лабораториями;
- вблизи завода по переработке твердых отходов пятью лабораториями.
От 7 до 12 проб, отобранных одновременно, были случайно распределены между шестью лабораториями, участвующими в проверке, с целью исключения влияния систематической погрешности.
Измерения проводились во время холодного межсезонного осенне-зимнего периода при средней температуре воздуха приблизительно 10 °C. Влажность воздуха была преимущественно очень высокой. Часть измерений проводили во время сильных осадков. Продолжительность отбора проб составляла от 24 до 26 ч. При таких атмосферных условиях была проверена пригодность сочетания фильтров (в частности, неустойчивый к воздействию влаги желатиновый фильтр сохранил свою пригодность благодаря применению защитного поликарбонатного фильтра).
Перед отбором проб всегда отбирали холостую пробу. Чистые фильтры всегда были незагружены. Все фильтры транспортировали по почте. Обработку проб и последующее количественное определение плесневых грибков выполняли на агаре DG18 в соответствии с ИСО 16000-17.
Результаты анализа проб приведены в таблице D.1.
Таблица D.1
анализа проб атмосферного воздуха разными
лабораториями, отобранных на желатиновые/поликарбонатные
фильтры в различных местах
Измерения в период: ноябрь 2002 г. | Отбор проб в городе/анализ в одной лаборатории | Отбор проб в городе/анализ в нескольких лабораториях | Отбор проб вблизи завода по компостированию отходов/анализ в нескольких лабораториях | Отбор проб вблизи завода по переработке твердых отходов/анализ в нескольких лабораториях |
|
N фильтра | Сутки 1 | Сутки 2 | Сутки 3 | Сутки 1 | Сутки 2 | Сутки 3 | Сутки 1 | Сутки 2 | Сутки 3 | Сутки 1 | Сутки 2 | Сутки 3 |
1 | 100 | 100 | 20 | 200 | 200 | 50 | 700 | 2000 | 1000 | 10000 | 400 | 800 |
2 | 90 | 80 | 10 | 200 | 200 | 200 | 600 | 3000 | 500 | 8000 | 600 | 800 |
3 | 80 | 60 | 20 | 500 | 70 | 300 | 2000 | 800 | 600 | 7000 | 400 | 800 |
4 | 60 | 80 | 20 | 500 | 90 | 200 | 1000 | 1000 | 800 | 7000 | 500 | 900 |
5 | 70 | 30 | 20 | 200 | 400 | 300 | 900 | 3000 | 600 | 10000 | 300 | 1000 |
6 | 40 | 50 | 20 | 500 | 300 | 400 | 500 | 3000 | 400 | 10000 | 900 | 600 |
7 | 100 | 20 | 20 | 500 | 1000 | 400 | 3000 | 1000 | 900 | 8000 | 700 | 700 |
8 | 100 | 30 | 10 | 2000 | 100 | 60 | 2000 | 3000 | 600 | 6000 | 300 | 900 |
9 | 80 | 60 | 20 | 2000 | - | 200 | 700 | 2000 | 800 | 9000 | 300 | 700 |
10 | - | - | - | - | - | - | 600 | 2000 | 1000 | 8000 | 200 | - |
11 | - | - | - | - | - | - | 3000 | - | - | - | - | - |
12 | - | - | - | - | - | - | 3000 | - | - | - | - | - |
Среднее | 80 | 60 | 20 | 700 | 300 | 200 | 1000 | 2000 | 700 | 8000 | 400 | 800 |
Медианное среднее | 80 | 60 | 20 | 500 | 200 | 200 | 1000 | 2000 | 700 | 8000 | 400 | 800 |
Минимальное значение | 40 | 20 | 10 | 200 | 70 | 50 | 500 | 800 | 400 | 6000 | 200 | 600 |
Максимальное значение | 100 | 100 | 20 | 2000 | 1000 | 400 | 3000 | 3000 | 1000 | 10000 | 900 | 1000 |
Коэффициент вариации, % | 27 | 49 | 22 | 101 | 97 | 55 | 63 | 37 | 33 | 18 | 49 | 15 |
<a> Каждое значение соответствует результату анализа пробы атмосферного воздуха, отобранной за одни сутки соответствующей лабораторией. |
D.2. Воздух замкнутых помещений
Условия в замкнутом помещении не должны отличаться от атмосферных условий, при которых проходил отбор проб, настолько, чтобы это могло ограничить применимость результатов проверки, полученных для атмосферного воздуха (см.
раздел D.1, а также
[11],
[12] и
[13]).
В закрытых помещениях были проведены две дополнительные проверки. Большинство лабораторий, участвующих в испытаниях, применяли отбор проб методом осаждения, некоторые - фильтрования.
Проверки были проведены в двух разных гостиных комнатах (проверки N 1 и N 2 в каждой из комнат), проветриваемых обычным образом. Окна закрывали за час до начала отбора проб. Параллельные пробы объемом 50, 100 и 200 л отбирали методом осаждения. Пробы большего объема отбирали путем фильтрования в течение от 1 до 3 ч.
Чашки Петри с агаром DG18 были предоставлены референтной лабораторией всем участникам испытаний для предотвращения влияния питательной среды на результаты измерений. Один комплект чашек Петри был отправлен в референтную лабораторию для проведения дальнейшего анализа. Второй комплект чашек Петри был проанализирован соответствующими лабораториями, принимающими участие в проверке N 1. Все чашки Петри были проанализированы референтной лабораторией в ходе проверки N 2.
В ходе проверки N 1 (проходившей в июне 2005 г.) пробы были отобраны 36 лабораториями; 34 лаборатории отбирали пробы методом осаждения. Фильтрование осуществлялось 12 фильтрующими устройствами, предоставленными тремя различными изготовителями. Фильтры были проанализированы в двух различных референтных лабораториях. Результаты анализа приведены на
рисунке D.1.

- результаты анализа чашек Петри с агаром
в референтной лаборатории, отбор проб методом осаждения A
(n <a> = 34);

- результаты анализа чашек Петри
с агаром лабораториями, участвующими в проверке, отбор проб
методом осаждения B (n = 26);

- все
скомпилированные результаты анализа, отбор проб методом
фильтрования C (n = 12); C - плотность
колониеобразующих единиц, КОЕ·м-3;
1 - Cladosporium spp.; 2 - Alternaria spp.;
3 - Aspergillus spp.;
4 - Penicillium spp.; 5 - другие виды;
6 - общий отсчет по колониям
--------------------------------
<a> Число устройств отбора проб.
Рисунок D.1. Результаты средних подсчетов колоний для проб,
отобранных в гостиной с помощью различных устройств отбора
проб в ходе проверки N 1
Результаты анализа проб, полученных методами осаждения и фильтрации, оказались сопоставимы при проверке N 1.
В ходе проверки N 2 (проходившей в июне 2006 г.) пробы были отобраны 37 лабораториями; 33 лаборатории отбирали пробы методом осаждения; три лаборатории - методом фильтрования с использованием шести различных устройств отбора проб. Фильтры были проанализированы в трех различных референтных лабораториях. Результаты анализа приведены на
рисунке D.2.

- результаты анализа чашек Петри с агаром
в референтной лаборатории, отбор проб методом осаждения A
(n <a> = 34);

- результаты анализа чашек Петри
с агаром лабораториями, участвующими в проверке, отбор проб
методом фильтрования в течение от 1 до 2 ч (n = 4);

- результаты анализа чашек Петри с агаром, отбор
проб методом фильтрования в течение 3 ч (n = 12);
C - плотность колониеобразующих единиц, КОЕ·м-3;
1 - Cladosporium spp.; 2 - Alternaria spp.;
3 - Aspergillus spp.; 4 - Penicillium spp.;
5 - другие виды; 6 - общий отсчет по колониям
--------------------------------
<a> Число устройств отбора проб.
Рисунок D.2. Результаты средних подсчетов колоний для проб,
отобранных в гостиной с помощью различных устройств отбора
проб в ходе проверки N 2
В проверке N 2 при отборе проб методом фильтрования были получены более низкие числа колоний по сравнению с методом осаждения. В особенности это было характерно для Cladosporium spp., для которых при отборе проб методом фильтрования в течение от 1 до 2 ч или в течение 3 ч были получены числа колоний, составляющие 21% и 12% соответственно от отсчета по колониям при отборе проб методом осаждения.
Проверки N 1 и N 2 были проведены в течение одного и того же месяца в 2005 и 2006 гг. При этом метеорологические условия существенно различались. В 2005 году погода была относительно холодной и дождливой. В 2006 году за неделю до проверки и в день проверки было жарко и солнечно. Различием погодных условий можно объяснить разницу извлечения грибков при отборе проб методом фильтрования. Высыхание фильтра в процессе отбора проб при проверке N 2 сильно повлияло на извлечение Cladosporium spp.
(справочное)
СВЕДЕНИЯ О СООТВЕТСТВИИ ССЫЛОЧНЫХ МЕЖДУНАРОДНЫХ СТАНДАРТОВ
ССЫЛОЧНЫМ НАЦИОНАЛЬНЫМ СТАНДАРТАМ РОССИЙСКОЙ ФЕДЕРАЦИИ
Таблица ДА.1
Обозначение ссылочного международного стандарта | Степень соответствия | Обозначение и наименование соответствующего национального стандарта |
ИСО 16000-17 | IDT | ГОСТ Р ИСО 16000-17-2012 "Воздух замкнутых помещений. Часть 17. Обнаружение и подсчет числа плесневых грибков. Метод культивирования" |
Примечание. В настоящей таблице использовано следующее условное обозначение степени соответствия стандартов: - IDT - идентичные стандарты. |
[1] | ISO 7708 | Air quality - Particle size fraction definitions for health-related sampling (ИСО 7708 Качество воздуха. Определение гранулометрического состава частиц при санитарно-гигиеническом контроле) |
[2] | ISO 12219-1 | Indoor air - Road vehicles - Part 1: Whole vehicle test chamber - Specification and method for the determination of volatile organic compounds in car interiors (ИСО 12219-1 Воздух замкнутых помещений. Дорожные транспортные средства. Часть 1. Испытательная камера для транспортного средства. Технические характеристики и метод определения летучих органических соединений в кабинах транспортных средств) |
[3] | ISO 16017-1 | Indoor, ambient and workplace air - Sampling and analysis of volatile organic compounds by sorbent tube/thermal desorption/capillary gas chromatography - Part 1: Pumped sampling (ИСО 16017-1 Воздух атмосферный, рабочей зоны и замкнутых помещений. Отбор проб летучих органических соединений при помощи сорбционной трубки с последующей термодесорбцией и газохроматографическим анализом на капиллярных колонках. Часть 1. Отбор проб методом прокачки) |
[4] | ISO 16017-2 | Indoor, ambient and workplace air - Sampling and analysis of volatile organic compounds by sorbent tube/thermal desorption/capillary gas chromatography - Part 2: Diffusive sampling (ИСО 16017-2 Воздух атмосферный, рабочей зоны и замкнутых помещений. Отбор проб летучих органических соединений при помощи сорбционной трубки с последующей термодесорбцией и газохроматографическим анализом на капиллярных колонках. Часть 2. Диффузионный метод отбора проб) |
| ISO/IEC 17025 | General requirements for the competence of testing and calibration laboratories (ИСО/МЭК 17025 Общие требования к компетентности испытательных и калибровочных лабораторий) |
| EN 13098 | Workplace atmospheres - Guidelines for measurement of airborne microorganisms and endotoxin (ЕН 13098 Воздух рабочей зоны. Руководство по контролю микроорганизмов и эндотоксинов в воздухе) |
| VDI 4252-2 | Measurement of airborne microorganisms and viruses in ambient air - Active sampling of bioaerosols - Separation of airborne mould on gelatine/polycarbonate filters (VDI 4252-2 Контроль микроорганизмов и вирусов в атмосферном воздухе. Активный отбор проб биоаэрозолей. Улавливание взвешенных в воздухе плесневых грибков желатиновыми/поликарбонатными фильтрами) |
| Liu, B.Y.H., Pui, D.Y.H., Rubow, K.L. Characteristics of air sampling filter media. In: Marple, V.A., Liu, B.Y.H., editors. Aerosols in the mining and industrial work environments, Vol. 3, Instrumentation, pp. 989 - 1037. Ann Arbor Science, Ann Arbor, MI, 1983 |
| Rabe, R.,  , H. Methodische Verbesserungen bei der Messung luftgetragener Mikroorganismen [Methodological improvements in measuring airborne microorganisms]. Gefahrst. Reinhalt. Luft 2002, 62, pp. 461 - 466 |
| Gabrio, T., Creutznacher, H., Fischer, G., Herold, T.,  , P., Philipp, W., Rabe, R., Tesseraux, J., Weidner, U., Woppowa, L. Ergebnis eines Probenaustausches  Richtlinien VDI 4252 Blatt 2 und VDI 4253 Blatt 2 [Results of a sample exchange in accordance with guidelines VDI 4252-2 and VDI 4253-2]. Gefahrst. Reinhalt. Luft 2004, 64, pp. 295 - 299 |
| Gabrio, T., Dill, I., Trautmann, C. Weidner, U. Schimmelpilze in Luft - Probenahme und Bestimmung, Validierung von Probenahmeverfahren zur Bestimmung von Schimmelpilzen in Luft [Mould fungi in air - Sampling and regulation, validation of sampling procedures for the detection of mould fungi in air]. Bundesgesundheitsbl. Gesundheitsforsch. Gesundheitsschutz 2005, 48, pp. 3 - 11 |
| Gabrio, T., Seidl, H.P., Szewzyk, R., Trautmann, C. Weidner, U. Aussagekraft von Luft- und Hausstaubuntersuchungen im Zusammenhang mit Schimmelpilzproblemen im Innenraum [Validity of air and house dust investigations in connection with interior mould problems]. Gefahrst. Reinhalt. Luft 2005, 65, pp. 106 - 113 |
| Seidl, H.P., Gabrio, T.  bei der Messung von Schimmelpilzen [Quality assurance with the measurement of mold fungi]. In: Mikrobielle Luftverunreinigungen: KRdL Experten Forum, 2005-10-13 to 14, Freising-Weihenstephan, pp. 157 - 176. Normenausschuss KRdL,  , 2005. (Kommission Reinhaltung der Luft-Schriftenreihe, Vol. 35). |