Главная // Актуальные документы // ГОСТ Р (Государственный стандарт)СПРАВКА
Источник публикации
М.: Стандартинформ, 2013
Примечание к документу
Документ
введен в действие с 1 декабря 2013 года.
Название документа
"ГОСТ Р ИСО 10848-2-2012. Национальный стандарт Российской Федерации. Акустика. Лабораторные измерения косвенной передачи воздушного и ударного шума между смежными помещениями. Часть 2. Применение к легким слабо связанным конструкциям"
(утв. и введен в действие Приказом Росстандарта от 29.11.2012 N 1384-ст)
"ГОСТ Р ИСО 10848-2-2012. Национальный стандарт Российской Федерации. Акустика. Лабораторные измерения косвенной передачи воздушного и ударного шума между смежными помещениями. Часть 2. Применение к легким слабо связанным конструкциям"
(утв. и введен в действие Приказом Росстандарта от 29.11.2012 N 1384-ст)
Утвержден и введен в действие
агентства по техническому
регулированию и метрологии
от 29 ноября 2012 г. N 1384-ст
НАЦИОНАЛЬНЫЙ СТАНДАРТ РОССИЙСКОЙ ФЕДЕРАЦИИ
АКУСТИКА
ЛАБОРАТОРНЫЕ ИЗМЕРЕНИЯ КОСВЕННОЙ ПЕРЕДАЧИ ВОЗДУШНОГО
И УДАРНОГО ШУМА МЕЖДУ СМЕЖНЫМИ ПОМЕЩЕНИЯМИ
ЧАСТЬ 2
ПРИМЕНЕНИЕ К ЛЕГКИМ СЛАБО СВЯЗАННЫМ КОНСТРУКЦИЯМ
Acoustics. Laboratory measurement
of the flanking transmission of airborne and impact sound
between adjoining rooms. Part 2. Application to light
elements when the junction has a small influence
ISO 10848-2:2006
Acoustics - Laboratory measurement of the flanking
transmission of airborne and impact sound between adjoining
rooms - Part 2: Application to light elements when
the junction has a small influence
(IDT)
ГОСТ Р ИСО 10848-2-2012
Дата введения
1 декабря 2013 года
Цели и принципы стандартизации в Российской Федерации установлены Федеральным
законом от 27 декабря 2002 г. N 184-ФЗ "О техническом регулировании", а правила применения национальных стандартов Российской Федерации -
ГОСТ Р 1.0-2004 "Стандартизация в Российской Федерации. Основные положения".
1. Подготовлен Автономной некоммерческой организацией "Научно-исследовательский центр контроля и диагностики технических систем" (АНО "НИЦ КД") на основе собственного аутентичного перевода на русский язык международного стандарта, указанного в
пункте 4.
2. Внесен Техническим комитетом по стандартизации ТК 358 "Акустика".
3. Утвержден и введен в действие
Приказом Федерального агентства по техническому регулированию и метрологии от 29 ноября 2012 г. N 1384-ст.
4. Настоящий стандарт идентичен международному стандарту ИСО 10848-2:2006 "Акустика. Лабораторные измерения косвенной передачи воздушного и ударного шума между смежными помещениями. Часть 2. Применение к легким слабо связанным конструкциям" (ISO 10848-2:2006 "Acoustics - Laboratory measurement of the flanking transmission of airborne and impact sound between adjoining rooms - Part 2: Application to light elements when the junction has a small influence").
При применении настоящего стандарта рекомендуется использовать вместо ссылочных международных стандартов соответствующие им национальные стандарты Российской Федерации, сведения о которых приведены в дополнительном
Приложении ДА.
5. Введен впервые.
Информация об изменениях к настоящему стандарту публикуется в ежегодно издаваемом информационном указателе "Национальные стандарты", а текст изменений и поправок - в ежемесячно издаваемом информационном указателе "Национальные стандарты". В случае пересмотра (замены) или отмены настоящего стандарта соответствующее уведомление будет опубликовано в ежемесячно издаваемом информационном указателе "Национальные стандарты". Соответствующая информация, уведомление и тексты размещаются также в информационной системе общего пользования - на официальном сайте Федерального агентства по техническому регулированию и метрологии в сети Интернет.
Стандарт ИСО 10848 (части 1 - 3) устанавливает лабораторные методы измерений косвенной звукопередачи одной или несколькими строительными конструкциями.
Измеренные значения могут использоваться для сравнения акустических параметров строительных изделий, для установления технических требований к ним или в качестве исходных данных для методов прогнозирования, изложенных, например, в
[2] или
[3].
Настоящий стандарт распространяется на легкие строительные конструкции, такие как подвесные потолки, фальшполы, легкие сплошные (навесные, вентилируемые) фасады или плавающие полы. Звукопередача из одного помещения в другое может происходить одновременно как через испытуемую конструкцию, так и по воздуху через монтажное пространство (пленум), при его наличии. В соответствии с настоящим стандартом измеряют суммарную звукопередачу, при этом указанные выше два способа звукопередачи не могут быть разделены. Измеряемые величины

и

зависят от реальных размеров испытуемых элементов.
Элемент конструкции определяют как легкий в соответствии с ИСО 10848-1 (статья 3.10).
В настоящем стандарте использованы нормативные ссылки на следующие стандарты. Недатированные ссылки относят к последнему изданию ссылочного стандарта, включая все его изменения.
ИСО 140-2 Акустика. Измерение звукоизоляции зданий и строительных элементов. Часть 2. Определение, проверка и применение показателей точности данных (ISO 140-2, Acoustics - Measurement of sound insulation in buildings and of building elements - Part 2: Determination, verification and application of precision data)
ИСО 140-3:1995
<*> Акустика. Измерение звукоизоляции зданий и строительных элементов. Часть 3. Лабораторные измерения звукоизоляции воздушного шума элементами зданий (ISO 140-3:1995, Acoustics - Measurement of sound insulation in buildings and of building elements - Part 3: Laboratory measurements of airborne sound insulation of building elements)
ИСО 140-6:1998
<*> Акустика. Измерение звукоизоляции зданий и строительных элементов. Часть 6. Лабораторные измерения звукоизоляции ударного шума полами (ISO 140-6:1998, Acoustics - Measurement of sound insulation in buildings and of building elements - Part 6: Laboratory measurements of impact sound insulation of floors)
ИСО 354 Акустика. Измерение звукопоглощения в реверберационной камере (ISO 354, Acoustics - Measurement of sound absorption in a reverberation room)
ИСО 717-1 Акустика. Нормирование звукоизоляции зданий и строительных элементов. Часть 1. Звукоизоляция воздушного шума (ISO 717-1, Acoustics - Rating of sound insulation in buildings and of building elements - Part 1: Airborne sound insulation)
ИСО 717-2 Акустика. Нормирование звукоизоляции зданий и строительных элементов. Часть 2. Звукоизоляция ударного шума (ISO 717-2, Acoustics - Rating of sound insulation in buildings and of building elements - Part 2: Impact sound insulation)
ИСО 10848-1:2006 Акустика. Лабораторные измерения косвенной передачи воздушного и ударного шума между смежными помещениям. Часть 1. Основные положения (ISO 10848-1:2006, Acoustics - Laboratory measurement of the flanking transmission of airborne and impact sound between adjoining rooms - Part 1: Frame document)
--------------------------------
<*> Серия международных стандартов ИСО 140 (части 3, 6) заменена на серию стандартов ИСО 10140. Если требования отмененных ссылочных стандартов эквивалентны требованиям новых стандартов, то последние указаны далее в сносках.
В настоящем стандарте применены следующие термины с соответствующими определениями:
┌─────────────────────────────────────────────────────────────────────────┐
│ 3.1. Приведенная разность уровней звукового давления побочного шума│
│(normalized flanking level difference) D , дБ: разность средних уровней│
│ n,f │
│звукового давления шума в двух помещениях, созданного источником в одном│
│из них, причем звукопередача проходит по известному косвенному пути. │
│ Примечание. Величина D приведена к эквивалентной площади│
│ n,f │
│звукопоглощения A приемного помещения и рассчитывается по формуле │
│ │
│ A │
│ D = L - L - 10lg--, (1) │
│ n,f 1 2 A │
│ 0 │
│ │
│ где L - средний уровень шума в приемном помещении, дБ; │
│ 1 │
│ L - средний уровень шума в помещении источника, дБ; │
│ 2 │
│ A - эквивалентная площадь звукопоглощения приемного помещения, м2; │
│ A - стандартная эквивалентная площадь звукопоглощения, м2; A =│
│ 0 0 │
│10 м2. │
│ │
│ [ИСО 10848-1:2006, статья 3.2] │
├─────────────────────────────────────────────────────────────────────────┤
│ 3.2. Приведенный уровень звукового давления побочного ударного шума│
│(normalized flanking impact sound pressure level) L , дБ: средний│
│ n,f │
│уровень звукового давления ударного шума в приемном помещении,│
│создаваемого стандартной ударной машиной, устанавливаемой в различных│
│точках испытуемого пола в помещении источника, и проникающего в приемное│
│помещение по известным косвенным путям. │
│ Примечание. Уровень L приведен к эквивалентной площади│
│ n,f │
│звукопоглощения A приемного помещения и рассчитывается по формуле │
│ │
│ A │
│ L = L + 10lg--, (2) │
│ n,f 2 A │
│ 0 │
│ │
│ где L - средний уровень шума в приемном помещении, дБ; │
│ 2 │
│ A - эквивалентная площадь звукопоглощения приемного помещения, м2; │
│ A - стандартная эквивалентная площадь звукопоглощения, м2; A =│
│ 0 0 │
│10 м2. │
│ │
│ [ИСО 10848-1:2006, статья 3.3] │
└─────────────────────────────────────────────────────────────────────────┘
3.3. Монтажное пространство (plenum space): пространство под фальшполом или над подвесным потолком в обоих помещениях испытательной установки <*>.
--------------------------------
<*> В реальных конструкциях монтажное пространство используют для элементов монтажа, размещения инженерного, коммуникационного и энергетического оборудования и/или заполняют звукопоглощающим материалом.
Средства измерений должны удовлетворять требованиям ИСО 10848-1 (раздел 5).
5. Испытательная установка
5.1. Требования к лаборатории
5.1.1. Общие положения
Испытательное оборудование и испытательные помещения должны удовлетворять общим требованиям, приведенным в ИСО 10848-1 (раздел 6). Более конкретные требования установлены в следующих подразделах настоящего стандарта. Установки для испытуемых элементов различного вида приведены на рисунках 1 -
4.
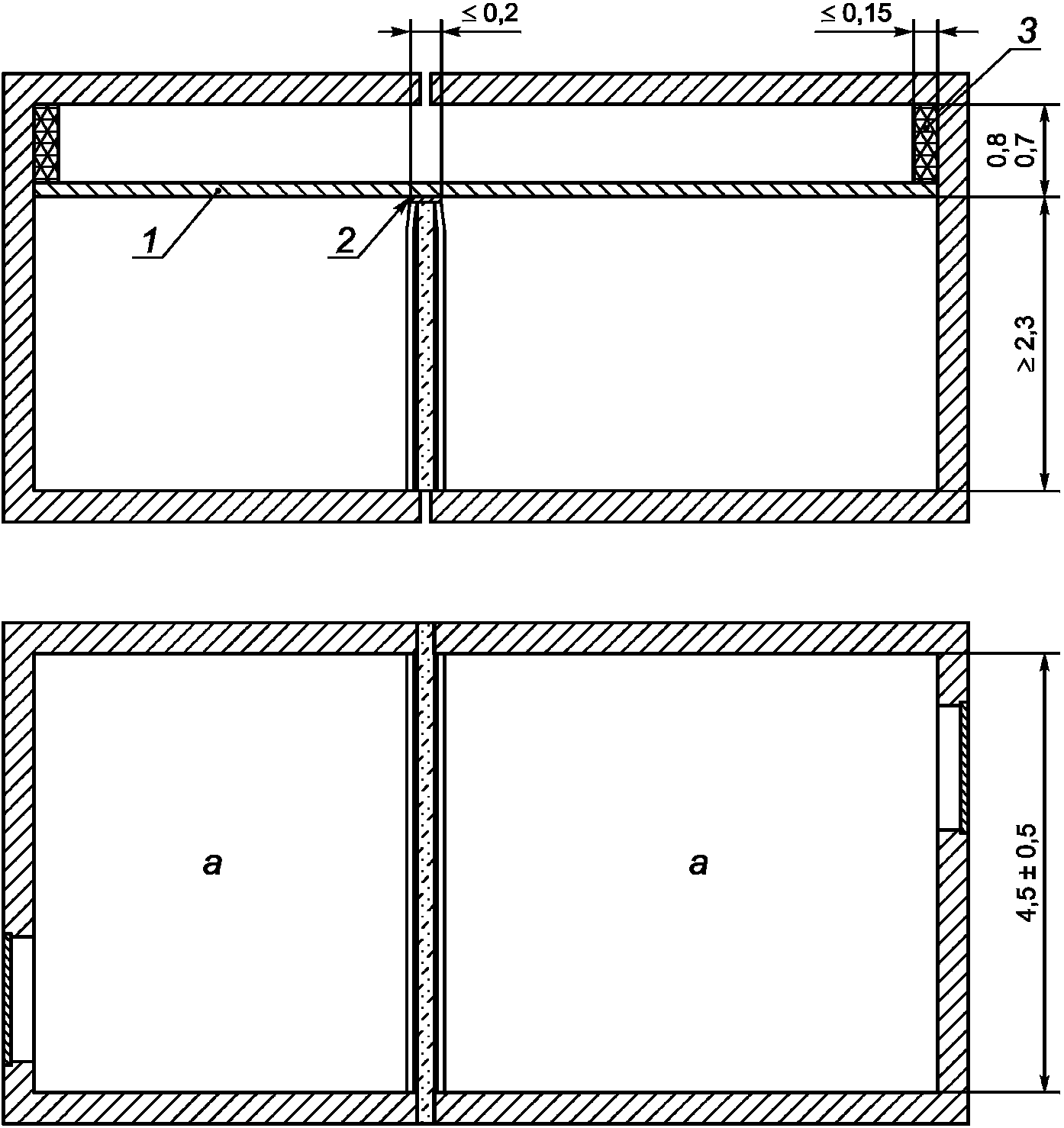
Размеры в метрах
1 - упругий материал; 2 - фальшпол; 3 - высота
фальшпола (по возможности должна быть равна 0,3 м);
4 - антивибрационный зазор; 5 - разделительная стена;
6 - звукопоглощающий материал; a - объем помещений
не менее 50 м3
Рисунок 1. Размеры испытательных помещений и пример
конструкции фальшпола и разделительной стены
Размеры в метрах
1 - подвесной потолок; 2 - упругий материал;
3 - звукопоглощающий материал; a - объем помещений
не менее 50 м3
Рисунок 2. Размеры испытательных помещений и пример
конструкции подвесного потолка и разделительной стены
1 - испытуемый материал; 2 - упругий материал
Рисунок 3. Пример установки фасада.
Горизонтальная звукопередача (вид сверху)
1 - испытуемый материал; 2 - упругий материал
Рисунок 4. Пример установки фасада.
Вертикальная звукопередача (вертикальный разрез)
5.1.2. Конструкция испытательной установки
Помещения должны находиться на одном уровне, за исключением помещений, предназначенных для испытаний фасадов и расположенных одно под другим.
Для фальшполов и подвесных потолков испытательное помещение в основании должно быть прямоугольным. Если помещения располагаются рядом, то между ними должен быть антивибрационный зазор, чтобы косвенная структурная звукопередача через испытательную установку была незначительной (см.
рисунок 1).
При наличии монтажного пространства время реверберации каждого помещения может зависеть от обратной звукопередачи из смежного испытательного помещения. В таких случаях при измерении времени реверберации в монтажном пространстве должен быть установлен подходящий звуконепроницаемый барьер между краем разделительной стены и низом монтажного пространства.
5.1.3. Размеры испытательной установки
Ширина испытательной установки должна быть (4,5 +/- 0,5) м, высота помещения источника и приемного помещения должна быть не менее 2,3 м.
Объем каждого испытательного помещения должен быть не менее 50 м3. Положение разделительной стены рекомендуется выбирать так, чтобы при установленном испытуемом элементе объемы помещений отличались не менее чем на 10%.
Минимальная длина каждого помещения должна быть 3,5 м.
5.1.4. Разделительная стена
Разделительная стена разделяет испытательную установку на помещение источника и приемное помещение. Разделительная стена должна устанавливаться так, чтобы не нагружать испытуемый элемент. Зазор между разделительной стеной и испытуемым элементом должен быть заполнен упругим материалом. Толщина стены должна быть менее 200 мм либо должна постепенно уменьшаться до 200 мм (см., например,
рисунок 1). Уменьшение толщины стены к испытуемому элементу должно происходить под углом не более 45°. Конструкция разделительной стены должна быть такой, чтобы

на 10 дБ превышало

для любого подлежащего испытаниям элемента.
При наличии монтажного пространства для проверки звукоизоляции испытательной установки между краем разделительной стены и стеной испытательной установки при отсутствии испытуемого элемента может быть установлен подходящий экран или аналогичная разделительной стене конструкция. При отсутствии монтажного пространства для определения

необходимо принятие соответствующих мер, например следует выполнить облицовку внутренней поверхности испытуемого элемента.
5.1.5. Положение испытуемого элемента
Для фальшполов высота от их поверхности до основного (черного) пола испытательной установки должна быть 0,3 м или близкой к данному значению. Допускается выполнять испытания с другими высотами, если они используются в реальных условиях.
Для подвесных потолков высота от низшей поверхности потолка до низшей поверхности основного потолка испытательной установки должна быть в пределах от 0,7 до 0,8 м. Допускается выполнять испытания с другими высотами, если они используются в реальных условиях.
5.1.6. Облицовка монтажного пространства
Одна боковая стена, передняя и задняя стены, ограничивающие монтажное пространство, должны быть облицованы подходящим звукопоглощающим материалом. Данный материал при его испытаниях в качестве плоского звукопоглотителя в соответствии с ИСО 354 должен иметь коэффициент звукопоглощения не менее указанного в таблице 1.
Таблица 1
Коэффициент звукопоглощения плоского звукопоглотителя
Среднегеометрическая частота октавной полосы, Гц | 125 | 250 | 500 | 1000 | 2000 | 4000 |
Коэффициент звукопоглощения,  | 0,65 | 0,80 | 0,80 | 0,80 | 0,80 | 0,80 |
Коэффициент звукопоглощения других боковых стен и пола на указанных в
таблице 1 частотах должен быть менее 0,10.
Толщина облицовки не должна превышать 150 мм.
При отсутствии монтажного пространства следует обеспечить отсутствие значительной воздушной звукопередачи по обходному пути между двумя частями испытуемого элемента - через помещение, где смонтирована испытательная установка.
Примечание. Типичное отношение объема помещения ко времени его реверберации должно быть более 500 м3/с.
5.2. Монтаж испытуемой конструкции
5.2.1. Монтаж фальшполов
Площадь пола должна быть ограничена длиной и шириной испытательной установки.
Элементы конструкции пола должны быть типичными, реально применяемыми в реальных условиях. Пол должен монтироваться в соответствии с рекомендациями изготовителя или в соответствии со стандартом по монтажу.
5.2.2. Монтаж подвесных потолков
Детали конструкции соединения потолка и верхнего края разделительной стены должны моделировать реальные условия монтажа потолка.
Площадь потолка должна быть ограничена длиной и шириной испытательной установки.
Для оформления примыкания потолка, если имеется зазор между ним и разделительной стеной, может потребоваться дополнительный плинтус. Из-за этого площадь сплошного потолка будет меньше площади, определяемой размерами испытательного помещения, на величину площади дополнительного плинтуса.
Элементы конструкции потолка должны быть типичными для реальных условий. Потолок должен монтироваться в соответствии с рекомендациями изготовителя или в соответствии со стандартом по монтажу.
Если при обычном способе монтажа требуется устанавливать нестандартные потолочные панели шириной или длиной менее 100 мм, то вместо них вдоль одной из стен испытательной установки, параллельной разделительной стене, может быть использован материал с высокими потерями звукопередачи. См., например,
рисунок 2.
5.2.3. Монтаж фасадов
Между испытуемым элементом и разделительной стеной или плитой испытательной установки фасады устанавливают с помощью упругих соединений. Примеры горизонтальной и вертикальной звукопередачи показаны на
рисунках 3 и
4 соответственно.
5.2.4. Монтаж перегородок
Перегородки устанавливают аналогично фасадам.
5.3. Методика проверки отсутствия структурной связи легкого бокового элемента с разделительной стеной
Методика проверки отсутствия структурной связи легкого бокового элемента с разделительной стеной испытательной установки приведена в ИСО 10848-1 (подраздел 8.3). Если указанную проверку выполнить не удается, то применяют более мягкий материал между испытуемым элементом и разделительной стеной.
5.4. Методы экранирования при возбуждении конструкции посредством источника воздушного шума
При экранировании с целью определения, например,

следуют рекомендациям ИСО 10848-1 (раздел 9) для определения необходимого улучшения звукоизоляции

.
Измерения

и

выполняют в соответствии с ИСО 10848-1 (подраздел 7.1) при возбуждении источником воздушного шума или стандартной ударной машиной.
Диапазон частот определен в ИСО 10848-1 (подраздел 7.5).
7. Неопределенность измерения
Метод измерений должен обеспечивать удовлетворительную повторяемость. Выполнение данного требования устанавливают в соответствии с ИСО 140-2 и периодически проверяют в случае модификации методики или средств измерений.
Для проверки повторяемости и воспроизводимости рекомендуется выполнять межлабораторные сравнительные испытания на одинаковом испытательном оборудовании.
8. Выражение результатов измерений
С целью заявления значений приведенной разности уровней звукового давления побочного шума и/или приведенного уровня звукового давления побочного ударного шума результаты измерений должны приводиться в табличной форме с точностью до десятых долей децибела и в виде графиков для всех частот измерений.
Графики в протоколе измерений должны отображаться в виде зависимости уровней (в децибелах) от частоты (в герцах по логарифмической шкале) с использованием следующих масштабов:
- 5 мм для одной 1/3 октавы;
- 20 мм для 10 дБ.
Для представления результатов измерений рекомендуется применять формы в соответствии с ИСО 140-3:1995 (приложение G)
<*> и ИСО 140-6:1998 (приложение E)
<**>. Должна быть приведена информация об испытуемом элементе, о методике выполнения измерений и результаты испытаний. Результаты испытаний в октавных полосах частот при необходимости могут быть рассчитаны по значениям в третьоктавных полосах с использованием одной из следующих формул:

, (3)

. (4)
--------------------------------
<*> Следует применять ИСО 10140-2 (приложение B).
<**> Следует применять ИСО 10140-3 (приложение B).
Если процедуру испытаний повторяют как в прямом, так и в обратном направлении, то следует рассчитывать среднее арифметическое измеренных значений в каждой частотной полосе.
При измерениях с ударным шумом большее по размеру помещение всегда выбирают в качестве приемного помещения.
Оценку одним числом по частотным характеристикам

и/или

выполняют по ИСО 717-1 и ИСО 717-2 соответственно. В результате определяют индекс приведенной разности уровней побочного шума

и индекс приведенного уровня побочного ударного шума

.
Протокол испытаний должен содержать следующую информацию:
a) ссылку на настоящий стандарт;
b) наименование организации, проводившей испытания;
c) идентификационные данные испытательной установки;
d) дату проведения испытаний;
e) наименование заказчика;
f) наименование изготовителя и идентификационные данные испытуемого элемента;
g) описание испытуемого элемента с эскизами поперечных разрезов, включая размеры, толщину, поверхностную плотность, материал, время выдержки и подготовки составных частей (если известны); описание напольного покрытия, при наличии; информацию об организации, осуществлявшей монтаж испытуемого элемента (испытательная организация или изготовитель);
h) объемы обоих испытательных помещений;
i) высоту монтажного пространства, если испытуемым элементом является фальшпол или подвесной потолок;
j) характеристики и толщину звукопоглощающих материалов, применяемых в монтажном пространстве, при наличии;
k) тип упругого материала соединения испытуемого элемента и разделительной стены;
l) температура и относительная влажность воздуха в испытательных помещениях;
m) приведенная разность уровней побочного шума и/или приведенный уровень звукового давления побочного ударного шума испытуемого элемента как функция частоты;
n) значения величин, которые должны быть приняты в качестве пределов измерений. Они должны быть приведены в виде неравенств

или

. Данные пределы следует применять, если уровень шума в какой-либо полосе не может быть измерен из-за фонового шума (акустического или электрического), а также в случае, когда измеренное значение зависело от звукопередачи через конструктивные элементы испытательной установки;
o) краткое описание особенностей методики выполнения измерений или испытательного оборудования.
(справочное)
ИЗМЕРЕНИЕ

ИНТЕНСИМЕТРИЧЕСКИМ МЕТОДОМ
Если при использовании методики измерений в соответствии с настоящим стандартом звукопередача через конструктивные элементы испытательной установки оказывает существенное влияние на результат испытаний и если контроль такой звукопередачи затруднен, то следует рассмотреть возможность измерения излучаемого испытуемым элементом шума с помощью интенсиметрических методов.
Методика интенсиметрических измерений в приемном помещении приведена в
[1]. Приведенную разность уровней интенсивности побочного шума

, дБ, рассчитывают по формуле

, (A.1)
где

- средний уровень звукового давления в помещении источника, дБ;

- уровень нормальной составляющей интенсивности, средний по измерительной поверхности, охватывающей боковой элемент в приемном помещении, дБ;

- суммарная площадь измерительной поверхности, охватывающей побочный элемент в приемном помещении, м2;

- стандартная эквивалентная площадь звукопоглощения;

.
Требования к техническим характеристикам громкоговорителей, характеристикам шума, положениям источников и методам измерений звукового давления в приемном помещении установлены ИСО 10848-1. Требования к измерениям интенсивности шума - по
[1] (средства измерений, измерительная поверхность, метод измерения уровня средней интенсивности шума и т.д.).
(справочное)
СВЕДЕНИЯ О СООТВЕТСТВИИ ССЫЛОЧНЫХ МЕЖДУНАРОДНЫХ СТАНДАРТОВ
ССЫЛОЧНЫМ НАЦИОНАЛЬНЫМ СТАНДАРТАМ РОССИЙСКОЙ ФЕДЕРАЦИИ
Таблица ДА.1
Обозначение ссылочного международного стандарта | Степень соответствия | Обозначение и наименование соответствующего национального стандарта |
ИСО 140-2 | - | |
| IDT | ГОСТ Р ИСО 10140-2-2012 <***> "Акустика. Лабораторные измерения звукоизоляции элементов зданий. Часть 2. Измерение звукоизоляции воздушного шума" |
| IDT | ГОСТ Р ИСО 10140-3-2012 <***> "Акустика. Лабораторные измерения звукоизоляции элементов зданий. Часть 3. Измерение звукоизоляции ударного шума" |
ИСО 354 | MOD | ГОСТ Р 53376-2009 "Материалы звукопоглощающие. Метод измерения звукопоглощения в реверберационной камере" |
ИСО 717-1 | - | |
ИСО 717-2 | - | |
| | ИС МЕГАНОРМ: примечание. В официальном тексте документа, видимо, допущена опечатка: стандарт имеет номер ГОСТ Р ИСО 10848-1-2012, а не ГОСТ Р ИСО 10848-2012. | |
|
ИСО 10848-1:2006 | IDT | ГОСТ Р ИСО 10848-2012 "Акустика. Лабораторные измерения косвенной передачи воздушного и ударного шума между смежными помещениями. Часть 1. Основные положения" |
<*> Соответствующий национальный стандарт отсутствует. До его утверждения рекомендуется использовать перевод на русский язык данного международного стандарта. Перевод данного международного стандарта находится в Федеральном информационном фонде технических регламентов и стандартов. <**> Серия международных стандартов ИСО 140 (части 3, 6) заменена на серию стандартов ИСО 10140. <***> Указанный национальный стандарт Российской Федерации идентичен отмененному международному стандарту в части примененных в настоящем стандарте требований. Примечание. В настоящей таблице использованы следующие условные обозначения степени соответствия стандартов: - IDT - идентичные стандарты; - MOD - модифицированные стандарты. |
[1] ISO 15186-1, Acoustics - Measurement of sound insulation in buildings
and of building elements using sound intensity - Part 1: Laboratory
measurements
[2] EN 12354-1, Building acoustics - Estimation of acoustic performance of
buildings from the performance of elements - Part 1: Airborne sound
insulation between rooms
[3] EN 12354-2, Building acoustics - Estimation of acoustic performance of
buildings from the performance of elements - Part 2: Impact sound
insulation between rooms