Главная // Актуальные документы // ГОСТ Р (Государственный стандарт)СПРАВКА
Источник публикации
М.: Стандартинформ, 2020
Примечание к документу
Документ
введен в действие с 01.08.2021.
Название документа
"ГОСТ Р 59154-2020. Национальный стандарт Российской Федерации. Материалы строительные. Метод испытания на пожарную опасность при термическом воздействии одиночного источника зажигания на строительные материалы, за исключением напольных покрытий"
(утв. и введен в действие Приказом Росстандарта от 03.11.2020 N 1026-ст)
"ГОСТ Р 59154-2020. Национальный стандарт Российской Федерации. Материалы строительные. Метод испытания на пожарную опасность при термическом воздействии одиночного источника зажигания на строительные материалы, за исключением напольных покрытий"
(утв. и введен в действие Приказом Росстандарта от 03.11.2020 N 1026-ст)
Утвержден и введен в действие
агентства по техническому
регулированию и метрологии
от 3 ноября 2020 г. N 1026-ст
НАЦИОНАЛЬНЫЙ СТАНДАРТ РОССИЙСКОЙ ФЕДЕРАЦИИ
МАТЕРИАЛЫ СТРОИТЕЛЬНЫЕ
МЕТОД ИСПЫТАНИЯ НА ПОЖАРНУЮ ОПАСНОСТЬ
ПРИ ТЕРМИЧЕСКОМ ВОЗДЕЙСТВИИ ОДИНОЧНОГО ИСТОЧНИКА ЗАЖИГАНИЯ
НА СТРОИТЕЛЬНЫЕ МАТЕРИАЛЫ, ЗА ИСКЛЮЧЕНИЕМ НАПОЛЬНЫХ ПОКРЫТИЙ
Building products.
Reaction to fire test with thermal attack by a single
burning item on building products, excluding floorings
ГОСТ Р 59154-2020
Дата введения
1 августа 2021 года
1 ПОДГОТОВЛЕН Федеральным государственным унитарным предприятием "Российский научно-технический центр информации по стандартизации, метрологии и оценке соответствия" (ФГУП "СТАНДАРТИНФОРМ") и Федеральным государственным бюджетным учреждением "Всероссийский ордена "Знак Почета" научно-исследовательский институт противопожарной обороны МЧС России" (ФГБУ ВНИИПО МЧС РОССИИ) на основе собственного перевода на русский язык немецкоязычной версии стандарта, указанного в
пункте 4
2 ВНЕСЕН Техническим комитетом по стандартизации ТК 144 "Строительные материалы и изделия"
3 УТВЕРЖДЕН И ВВЕДЕН В ДЕЙСТВИЕ
Приказом Федерального агентства по техническому регулированию и метрологии от 3 ноября 2020 г. N 1026-ст
4 Настоящий стандарт идентичен стандарту ДИН ЕН 13823:2015 "Испытания строительных материалов на реакцию при воздействии огня. Термическое воздействие одного источника пламени на строительные материалы, за исключением напольных покрытий" (DIN EN 13823:2015-02 "

zum Brandverhalten von Bauprodukten - Thermische Beanspruchung durch einen einzelnen brennenden Gegenstand

Bauprodukte mit Ausnahme von

", IDT).
Наименование настоящего стандарта изменено относительно наименования указанного европейского стандарта для приведения в соответствие с ГОСТ Р 1.5-2012
(пункт 3.5).
При применении настоящего стандарта рекомендуется использовать вместо ссылочных европейских стандартов соответствующие им национальные стандарты, сведения о которых приведены в дополнительном
приложении ДА
5 ВВЕДЕН ВПЕРВЫЕ
Правила применения настоящего стандарта установлены в статье 26 Федерального закона от 29 июня 2015 г. N 162-ФЗ "О стандартизации в Российской Федерации". Информация об изменениях к настоящему стандарту публикуется в ежегодном (по состоянию на 1 января текущего года) информационном указателе "Национальные стандарты", а официальный текст изменений и поправок - в ежемесячном информационном указателе "Национальные стандарты". В случае пересмотра (замены) или отмены настоящего стандарта соответствующее уведомление будет опубликовано в ближайшем выпуске ежемесячного информационного указателя "Национальные стандарты". Соответствующая информация, уведомление и тексты размещаются также в информационной системе общего пользования - на официальном сайте Федерального агентства по техническому регулированию и метрологии в сети Интернет (www.gost.ru)
С целью обеспечения пожарной безопасности для предотвращения угрозы жизни, здоровью и имуществу граждан, а также материального ущерба государству в Российской Федерации принят ряд нормативных правовых актов, включающий Федеральный
закон от 21 декабря 1994 г. N 69-ФЗ "О пожарной безопасности", Федеральный
закон от 22 июля 2008 г. N 123-ФЗ "Технический регламент о требованиях пожарной безопасности" и другие документы, регулирующие вопросы пожарной безопасности. В обеспечение требований Технического
регламента (о требованиях пожарной безопасности) Приказом Федерального агентства по техническому регулированию и метрологии от 14 июля 2020 г. N 1190 утвержден
перечень стандартов, включающий стандарты на методы определения показателей пожарной опасности строительных материалов.
Продукция российской строительной промышленности, реализуемая на внутреннем рынке, должна соответствовать требованиям нормативных и правовых актов, действующих на территории Российской Федерации. Параметры, на основе которых осуществляют классификацию строительных материалов и конструкций по пожарной опасности в Российской Федерации в соответствии с "Техническим
регламентом о требованиях пожарной безопасности", отличается от классификационных параметров, определения которых представлены в настоящем стандарте. В то же время необходимо отметить, что уровень развития и потенциал отечественной строительной отрасли позволяют ей выходить на мировой рынок, для чего необходимо соответствие продукции требованиям международных и европейских стандартов.
Гармонизация национальных стандартов с международными и европейскими стандартами, способствующая решению задач, поставленных Федеральным
законом от 29 июня 2015 г. N 162-ФЗ "О стандартизации в Российской Федерации", позволит повысить экспортный потенциал отечественной строительной отрасли, а также увеличить конкурентоспособность ее продукции на мировом и европейском рынках.
Учитывая изложенное, метод испытаний, описанный в настоящем стандарте, может быть использован по усмотрению изготовителя в качестве дополнительного метода контроля и/или при подтверждении соответствия продукции требованиям
ГОСТ Р 59137.
Классификация строительных материалов по пожарной опасности, которая была закреплена Решением Европейской комиссии 2000/147/EC (Официальный журнал EC, L50 от 23 февраля 2000 г.), определяет в таблице 1 отдельные классы пожарной опасности строительных материалов за исключением покрытий для пола. Соответствующие методы испытаний для определения пожарной опасности были разработаны Техническим комитетом CEN/TC 127.
ВНИМАНИЕ - Всему персоналу, участвующему в планировании и проведении огневых испытаний, описанных в настоящем стандарте, следует помнить, что испытания по определению реакции на огонь могут быть опасны и что при их проведении возможно выделение токсичного и/или вредного дыма, а также токсичных и/или вредных газов.
Необходимо провести оценку всех возможных опасностей и рисков для здоровья, определить и принять меры предосторожности. Дым и газы не должны проникать к рабочему месту. Следует разработать письменные инструкции по технике безопасности, а также обучить соответствующий персонал. Персонал лабораторий обязан выполнять письменные инструкции по технике безопасности.
Для системы подачи пропана необходимы особые меры предосторожности:
- такое оборудование как трубы, соединения, расходомеры должны быть пригодными для пропана;
- горелка должна быть оборудована дистанционно управляемой системой зажигания, например вспомогательной (пилотной) горелкой или нитью накаливания. Должны быть установлены система оповещения об утечке газа и клапан для мгновенного и автоматического прекращения подачи газа в случае затухания вспомогательной горелки. Вспомогательная горелка может быть зажжена непосредственно оператором в помещении для испытаний, однако при зажигании весь прочий персонал должен быть удален из помещения для испытаний;
- должна быть обеспечена возможность осуществлять переключение между вспомогательной и основной горелкой и управлять главным клапаном на линии подачи газа (для открытия и прекращения подачи пропана) вне испытательного помещения.
Особые меры предосторожности необходимы при тушении горящих образцов.
При тушении интенсивно горящих образцов рекомендуется, чтобы на случай принятия неотложных мер присутствовал второй лаборант. В наличии должны быть соответствующие средства пожаротушения (например, в случае сильного возгорания вследствие выделения большого количества тепла может быть повреждено испытательное оборудование).
Настоящий стандарт устанавливает метод испытаний для определения параметров пожарной опасности строительных материалов при термическом воздействии одиночного источника зажигания (SBI, single burning item), за исключением напольных покрытий, а также исключая параметры пожарной опасности, перечисленные в таблице 1 Решения Европейской комиссии 2000/147/EC
<1>. Обработку результатов испытаний проводят в соответствии с
приложением A. Информация о точности методов испытаний приведена в
приложении B. Методы градуировки даны в
приложениях C и
D, причем
приложение C является обязательным.
Примечание - Настоящий стандарт разработан с целью определения пожарной опасности, главным образом, плоских строительных материалов. Процедуры для материалов в составе таких групп строительных изделий, как трубы, воздуховоды, кабели и так далее, могут потребовать особых правил.
--------------------------------
<1> В указанной таблице наряду с параметрами пожарной опасности, определяемыми SBI-методом, приведены параметры, также участвующие в установлении класса пожарной опасности строительного материала, но определяемые другими стандартными методами: негорючесть, теплота сгорания, воспламеняемость.
В настоящем стандарте использованы нормативные ссылки на следующие стандарты. Для датированных ссылок применяют только указанное издание ссылочного стандарта, для недатированных - последнее издание (включая все изменения).
EN 13238,

zum Brandverhalten von Bauprodukten - Konditionierungsverfahren und allgemeine Regeln

die Auswahl von

(Reaction to fire tests for building products - Conditioning procedures and general rules for selection of substrates) (Испытания строительных материалов на пожарную опасность. Методы кондиционирования и общие правила выбора подложек)
EN 13501-1:2007+A1:2009, Klassifizierung von Bauprodukten und Bauarten zu ihrem Brandverhalten - Teil 1: Klassifizierung mit den Ergebnissen aus den

zum Brandverhalten von Bauprodukten
<2> (Fire classification of construction products and building elements - Part 1: Classification using data from reaction to fire tests) (Классификация строительных материалов и конструкций по пожарной опасности. Часть 1. Классификация с использованием результатов испытаний по определению реакции на огонь)
--------------------------------
<2> Заменен на EN 13501-1:2018. Однако для однозначного соблюдения требования настоящего стандарта, выраженного в датированной ссылке, рекомендуется использовать только указанное в этой ссылке издание.
EN 60584-1:1995, Thermopaare - Teil 1: Grundwerte der Thermospannungen (IEC 60584-1:1995) <1> [Thermocouples - Part 1: Reference tables (IEC 60584-1:1995)] (Термопары. Часть 1. Справочные таблицы)
--------------------------------
<1> Заменен на EN 60584-1:2013 (IEC 60584-1:2013). Однако для однозначного соблюдения требования настоящего стандарта, выраженного в датированной ссылке, рекомендуется использовать только указанное в этой ссылке издание.
EN ISO 13943:2000, Brandschutz - Vokabular (ISO 13943:2000) <2> [Fire safety - Vocabulary (ISO 13943:2000)] (Пожарная безопасность. Словарь)
--------------------------------
<2> Заменен на EN ISO 13943:2010. Однако для однозначного соблюдения требования настоящего стандарта, выраженного в датированной ссылке, рекомендуется использовать только указанное в этой ссылке издание.
В настоящем стандарте применены термины по ЕН ИСО 13943:2000 и ЕН 13501-1:2007+A1:2009, а также следующие термины с соответствующими определениями:
3.1 задняя закрывающая плита (backend plate): Плита из силиката кальция, которая используется для того, чтобы полностью закрыть образец сзади; она может быть установлена непосредственно позади свободно стоящего образца или на некотором расстоянии от него.
3.2 образец (probe): Часть строительного материала, подвергаемая испытанию.
Примечание - Образец может включать элементы крепления, предназначенные для практического применения материала, а также воздушный зазор и/или подложку.
3.3 подложка (sub strate): Строительный материал, непосредственно примыкающий к испытуемому строительному материалу с тыльной стороны, о котором необходима информация.
3.4 THR600 с: Общее количество тепла, выделенного образцом за первые 600 с воздействия пламени основной горелки.
3.5 LSF: Боковое распространение пламени на широком фрагменте образца.
Примечание - Показатель
LSF более подробно описан в
8.3.3.
3.6 TSP600 с: Суммарное дымовыделение образца за первые 600 с воздействия пламени основной горелки.
3.7 FIGRA0,2 МДж: Максимальное значение отношения интенсивности тепловыделения образца к соответствующему промежутку времени, в течение которого общее количество выделенного тепла THR равно 0,2 МДж.
Примечание - Показатель
FIGRA0,2 МДж более подробно описан в
A.5.3.
3.8 FIGRA0,4 МДж: Максимальное значение отношения интенсивности тепловыделения образца к соответствующему промежутку времени, в течение которого общее количество выделенного тепла THR равно 0,4 МДж.
Примечание - Показатель
FIGRA0,4 МДж более подробно описан в
A.5.3.
3.9 SMOGRA (smoke growth rate): Максимальное значение отношения интенсивности дымообразования образца к соответствующему промежутку времени.
Примечание - Показатель
SMOGRA подробно описан в
A.6.3.
3.10 устойчивое пламенное горение (sustained flaning combustion): Наличие пламени на экспонируемой поверхности или более обширной части образца в течение установленного минимального промежутка времени.
[ЕН ИСО 13943:2000]
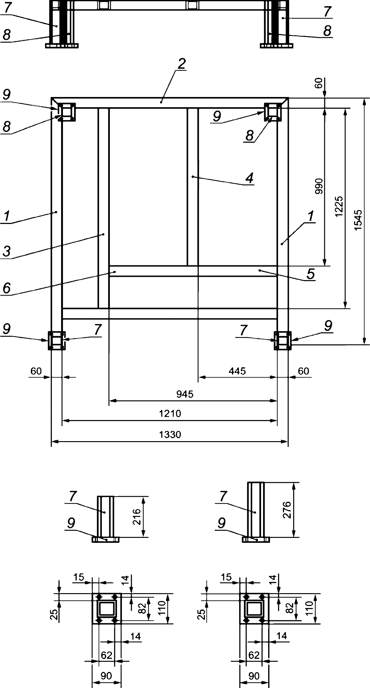
4 Оборудование для испытаний
Оборудование для SBI-испытаний состоит из камеры для испытаний, испытательной аппаратуры (тележка для образца, рама, горелки, вытяжной зонт, коллектор и вытяжная труба), системы отвода дыма и средств измерения. Подробное описание указанных компонентов оборудования приведено в
4.2 -
4.7. В
приложении E приведены чертежи, на которых указанные размеры являются номинальными, если не указаны допуски.
Примечание - Воздух для испытательной камеры, поступающий через нижнюю часть тележки для образца, должен быть чистым и не использовавшимся ранее.
4.2.1 Камера для испытаний должна иметь высоту внутреннего помещения (2,4 +/- 0,05) м и квадратное основание, каждая сторона которого равна (3,0 +/- 0,05) м. Стены камеры должны быть сложены из строительных блоков (например, из огнеупорного пористого бетона), гипсовых, кальций-силикатных плит или других плитных материалов, имеющих класс пожарной опасности A1 или A2.
4.2.2 Одна из стен камеры для испытаний должна иметь проем, через который из лаборатории в камеру вкатывают тележку с образцом. Проем должен иметь ширину не менее 1470 мм и высоту 2450 мм (размеры рамы). В двух стенах, расположенных напротив фрагментов образца, смонтированных под прямым углом друг к другу, должны быть расположены смотровые окна. Для работы с испытательной аппаратурой SBI-метода и образцами в то время, когда тележка для образцов находится в рабочем положении, необходима дополнительная дверь.
4.2.3 При нахождении тележки с образцом в рабочем положении в камере для испытаний расстояние между лицевой поверхностью закрепленного U-профилем широкого фрагмента образца и стеной камеры должно составлять (2,1 +/- 0,05) м. Это расстояние измеряют перпендикулярно к поверхности широкого фрагмента образца и противоположной ему стене. Суммарная площадь проемов в камере для испытаний, не считая проема для подачи воздуха в нижней части тележки и отверстия вытяжного зонта для отвода дыма, не должна превышать 0,05 м2.
4.2.4 Допускается ориентированное налево расположение, как показано на
рисунке 1, а также ориентированное направо расположение (тележка с образцом как на
рисунке 1, но зеркально отраженная относительно вертикальной оси).
Примечания
1 Чтобы обеспечить возможность замены боковых панелей вытяжного зонта без демонтажа коллектора, соединение между рамой, входящей в состав испытательной аппаратуры, и потолком камеры для испытаний должно быть спроектировано соответствующим образом. Должна быть возможность извлечь боковые панели наружу, потянув их по направлению к полу.
2 Относительное положение рамы в камере для испытаний зависит от конструктивных особенностей соединения камеры для испытаний и рамы.
Размеры в метрах
1 - смотровое окно; 2 - неподвижная рама; 3 - смотровое окно
(с ориентированным налево образцом); 4 - тележка
для образцов (с ориентированным налево образцом)
Примечание - Допускается использовать как ориентированные налево, так и ориентированные направо образцы. Для ориентированного направо образца рисунок будет представлять собой зеркальное отражение относительно вертикальной оси.
Рисунок 1 - Схематическое изображение камеры
для SBI-испытаний (вид сверху)
Товарный газ пропан со степенью чистоты не менее 95%.
4.4 Испытательная аппаратура
4.4.1 Тележка для образцов, на опорную плиту которой вертикально устанавливают перпендикулярно друг к другу два образца. В образуемый образцами угол устанавливают горелку с песчаным слоем.
При помещении тележки с образцом в камеру для испытаний, ее задняя стенка закрывает проем в стене камеры для SBI-испытания. Для обеспечения равномерного распределения потока воздуха по всей площади камеры в нижнюю плиту тележки, через которую поступает воздух, устанавливают перфорированный металлический лист с отверстиями (отношение площади отверстий к общей площади составляет от 40% до 60%, диаметр отверстий от 8 мм до 12 мм).
Во время испытаний опорная плита тележки для образцов должна располагаться горизонтально с отклонением +/- 5 мм. Перед новой серией испытаний или при использовании новой тележки горизонтальность положения проверяют, проводя необходимые измерения непосредственно за U-образным профилем и между C-образными профилями. Если положение опорной плиты оказывается не горизонтальным, положение тележки изменяют.
4.4.2 Неподвижная рама, обрамляющая проем, через который тележку для образцов вталкивают в камеру для испытаний. На раму опирается вытяжной зонт, к ней крепится вторая (вспомогательная) горелка.
4.4.3 Вытяжной зонт установлен над рамой и предназначен для сбора дымовых газов.
4.4.4 Коллектор на вытяжном зонте с направляющими перегородками и горизонтальным выходом для подсоединения вытяжной трубы для отвода дымовых газов.
4.4.5 Вытяжная труба для отвода дымовых газов (J-образная) круглого сечения с внутренним диаметром (315 +/- 5) мм, теплоизолированная слоем огнеупорной минеральной ваты толщиной 50 мм. Вытяжная труба состоит из следующих элементов (указаны в соответствии с направлением потока):
- элемент для соединения с коллектором;
- секция трубы длиной 500 мм с возможностью крепления четырех термоэлектрических преобразователей (для дополнительных измерений температуры) на расстоянии, как минимум, 400 мм от коллектора;
- секция трубы длиной 1000 мм;
- два колена трубы, изогнутых под углом 90° (радиус закругления оси трубы - 400 мм);
- секция трубы длиной 1625 мм со вставкой для выравнивания профиля потока и перегородкой для сужения сечения трубы; длина вставки, расположенной на расстоянии 50 мм от колена трубы, - 630 мм; непосредственно за вставкой находится кольцевая диафрагма толщиной (2 +/- 0,5) мм с наружным диаметром 314 мм и внутренним диаметром отверстия 265 мм;
- секция трубы длиной 2155 мм с возможностью крепления зондового датчика измерителя давления, четырех термоэлектрических преобразователей, зонда для отбора проб газа и оптической измерительной системы; этот участок называют "общим измерительным участком";
- секция трубы длиной 500 мм;
- элемент для соединения с вытяжкой.
Примечание - При сборке трубы необходимо соблюсти требование, чтобы общая масса без измерительных зондов и так далее составляла приблизительно 250 кг.
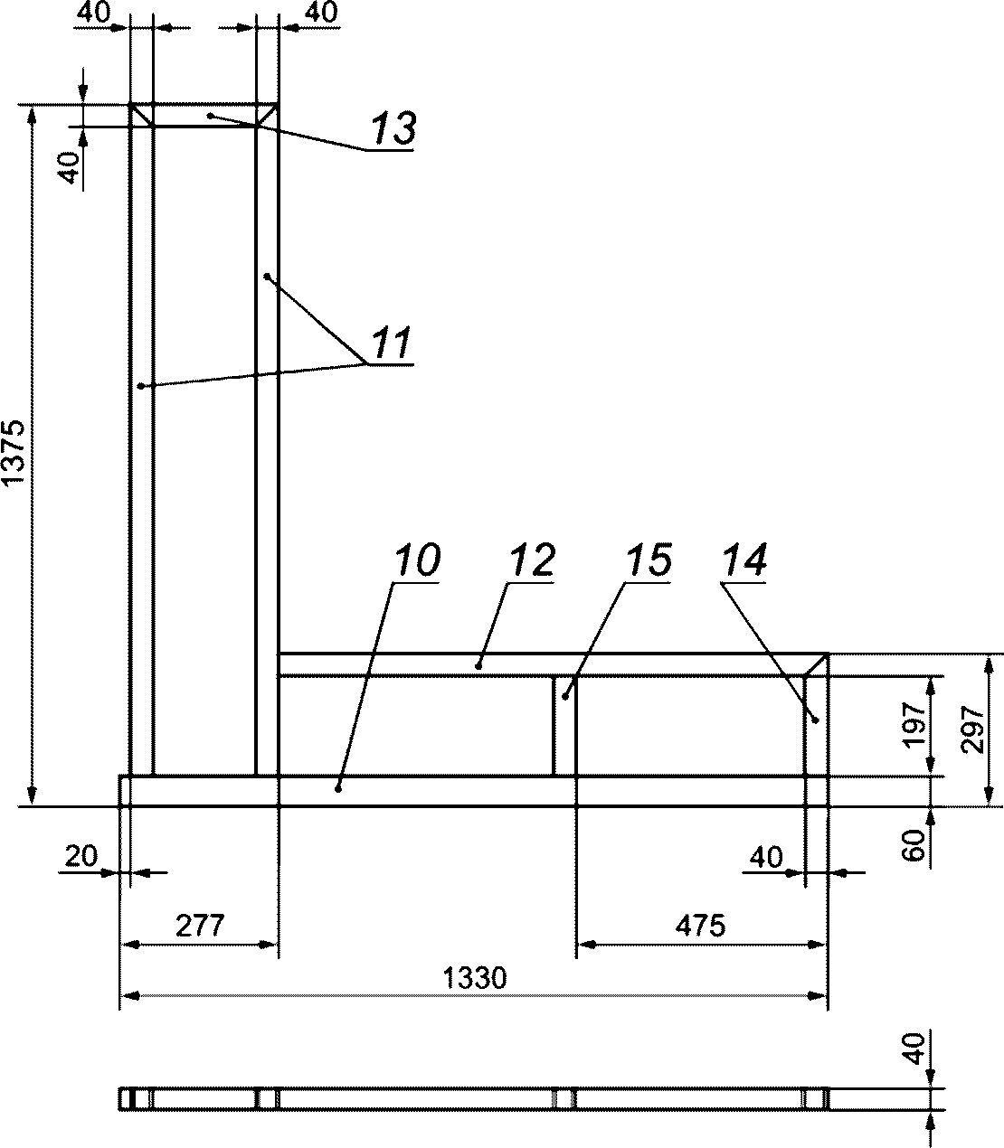
4.4.6 Две идентичные горелки с песчаным слоем (см.
рисунок E.9), одну из которых (основную) размещают на опорной плите тележки для образцов, а другую (вспомогательную) крепят к вертикальному профилю рамы. Горелки должны соответствовать перечисленным ниже требованиям:
a) Форма: прямоугольный равнобедренный треугольник (вид сверху) с длиной катетов 250 мм. Высота корпуса 80 мм, дно горелки сплошное и имеет в центре тяжести патрубок диаметром 12,5 мм, а верх открытый. На высоте 10 мм от дна расположен перфорированный металлический лист в форме треугольника. На высоте 12 мм и 60 мм от дна горелки размещены металлические сетки с максимальным размером ячейки 2 мм. Отклонения указанных размеров должны составлять не более +/- 2 мм.
b) Материал: корпус из нержавеющей листовой стали толщиной 1,5 мм. Над днищем горелки находится полое пространство высотой 10 мм. Выше него на высоту до 60 мм от дна засыпан слой гравия с размером зерен от 4 мм до 8 мм, а еще выше, на высоту до 80 мм от дна горелки - слой песка с размером зерен от 2 мм до 4 мм. Слои удерживают в должном положении металлические проволочные сетки, которые предотвращают попадание гравия в газовый патрубок. Гравий и песок представляют собой круглый речной гравий и песок, а не колотые обломки.
c) Положение основной горелки: крепится к опорной плите тележки (см.
рисунки E.9 и
E.19) вплотную к U-образному профилю. Верхняя кромка корпуса основной горелки должна находиться на (25 +/- 2) мм выше верхней кромки U-профиля.
d) Положение вспомогательной горелки: крепится к вертикальному профилю рамы, который находится напротив угла, образованного фрагментами образца. Верхняя кромка горелки находится на высоте (1450 +/- 5) мм над уровнем пола испытательной камеры (вертикальное расстояние до вытяжного колпака - 1000 мм); ее гипотенуза параллельна гипотенузе основной горелки.
e) Основная горелка соединена с U-образными профилями, которые находятся на широком и узком фрагментах образца (см.
рисунок E.18, позиция 10). В обоих профилях применяют уплотнительные пластины (см.
рисунок E.19), которые заканчиваются на высоте U-профилей и расположены на расстоянии 0,3 м от угла между закрепленными фрагментами образца (на краю зоны горелки, см.
8.3.4).
f) Основную горелку необходимо защитить стоящей под углом решеткой, если предыдущие испытания материала аналогичного типа привели к преждевременному завершению испытания вследствие обрушения материала на песчаный слой в соответствии с
8.5. Площадь отверстий защитной решетки должна составлять не менее 90% ее поверхности. Решетку одной стороной устанавливают на гипотенузу основной горелки. Угол между горизонтальной линией, соединяющей середину гипотенузы и угол образцов, и решеткой должен составлять (45 +/- 5)°.
4.4.7 Защитный экран прямоугольной формы, шириной (370 +/- 5) мм, высотой (550 +/- 5) мм, изготовленный из кальций-силикатной плиты (состав соответствует составу задней закрывающей плиты), применяемый для защиты испытуемого образца от теплового излучения пламени вспомогательной горелки.
Защитный экран крепится на гипотенузе вспомогательной горелки таким образом, чтобы боковые кромки кальций-силикатной плиты выступали на (8 +/- 3) мм за обе кромки горелки, а верхняя кромка плиты находилась на расстоянии (470 +/- 5) мм над верхней поверхностью вспомогательной горелки.
4.4.8 Регулятор массового расхода пропана с диапазоном регулировки от 0 г/с до 2,3 г/с и погрешностью измерения расхода 1% в диапазоне от 0,6 г/с до 2,3 г/с (см. также
C.1.5).
Примечание - С учетом низшей теплоты сгорания пропана (46 360 кДж/кг) поток пропана 2,3 г/с соответствует мощности тепловыделения 107 кВт.
| | ИС МЕГАНОРМ: примечание. В официальном тексте документа, видимо, допущена опечатка: пункт C.3.1 отсутствует. | |
4.4.9 Устройство переключения, предназначенное для обеспечения подачи пропана к соответствующей горелке. Устройство переключения должно предотвращать одновременное снабжение пропаном обеих горелок, за исключением продолжительности самого переключения (краткого отрезка времени, в течение которого выделение тепла вспомогательной горелкой снижается, а выделение тепла основной горелкой возрастает). Продолжительность переключения, рассчитанная в соответствии с C.3.1, не должна превышать 12 с.
Должна быть обеспечена возможность управлять устройством переключения и основным клапаном, расположенным выше по току газа, находясь вне камеры для испытаний.
4.4.10 Задние закрывающие плиты, которые закрывают образцы, расположенные на тележке, сзади. Закрывающие плиты изготавливают из кальций-силикатных плит плотностью (800 +/- 150) кг/м
3, толщиной (12 +/- 3) мм. Закрывающие плиты должны иметь следующие размеры:
a) для узкого фрагмента образца - [(минимум 570 + толщина образца) x (1500 +/- 5)] мм;
b) для широкого фрагмента образца - [(1000 + воздушный зазор +/- 5) x (1500 +/- 5)] мм.
Закрывающая плита, находящаяся за узким фрагментом образца, должна быть шире фрагмента и выступать только с одной его стороны. У образцов, устанавливаемых с воздушным зазором, ширина закрывающей плиты для широкого фрагмента образца должна быть увеличена на ширину воздушного зазора.
4.4.11 Съемные части плиты. Для обеспечения дополнительной вентиляции обоих фрагментов образца плиты (
позиции 22 и
25 на
рисунке E.20) должны быть заменены половинчатыми плитами таким образом, чтобы половинчатые плиты занимали только верхнюю половину закрываемого плитами 22 и 25 пространства.
Съемные части могут быть удалены только при условиях, указанных в
5.2.2 a).
4.5.1 В процессе испытания система отвода дыма должна обеспечивать объемный расход от 0,50 м
3/с до 0,65 м
3/с при температуре 298 К.
4.5.2 Вытяжная труба должна иметь два боковых ответвления (круглого сечения с внутренним диаметром 45 мм), расположенные горизонтально на одной высоте и перпендикулярно к продольной оси вытяжной трубы (см.
рисунки E.32 и
E.33).
4.5.3 Два возможных варианта конструкции вытяжной трубы показаны на
рисунке E.1. Проем в испытательной камере для тележки с образцами на рисунке находится наверху камеры. Направление вытяжной трубы может отличаться от изображенного на
рисунке E.1, если при этом условия вентиляции образца не изменяются. Коленчатый участок вытяжной трубы, осуществляющий поворот на 180°, может быть удален и заменен двунаправленным зондом измерителя давления при условии, что точность измерения объемного расхода при этом не ухудшится.
Примечания
1 Вследствие изменяющегося тепловыделения некоторые вытяжные системы (особенно системы с локальными вентиляторами) в течение испытаний требуют ручной или автоматической настройки для того, чтобы были выполнены требования по
4.5.1.
2 Вытяжную трубу необходимо регулярно чистить, чтобы исключить значительные отложения сажи и копоти.
4.6 Оборудование общего измерительного участка
4.6.1 Три зачехленные термопары типа K в соответствии с ЕН 60584-1:1995, диаметр электродов 0,5 мм.
Спаи термопар должны находиться на расстоянии (87 +/- 5) мм от оси трубы и на угловом расстоянии друг от друга 120°.
4.6.2 Двунаправленный зонд, подключенный к измерителю давления с диапазоном измерения от 0 Па до 100 Па и погрешностью измерения +/- 2 Па.
Измеритель давления должен иметь 90%-ное время отклика (в 90% случаев) 1 с или менее.
4.6.3 Зонд для отбора проб газа, подключенный к блоку кондиционирования газа и анализаторам O2 и CO2.
a) Анализатор O
2 парамагнитного типа с диапазоном измерения не менее чем 16% - 21% кислорода

. Время срабатывания анализатора должно составлять не более 12 с (при определении согласно
C.2.2). Шумы и дрейф выходного сигнала анализатора должны составлять не более 100 ppm в течение 30 мин (оба значения определяют согласно
C.1.3). Выходной сигнал анализатора для системы обработки данных должен иметь максимальное разрешение 100 ppm.
b) Анализатор CO
2 инфракрасного типа с диапазоном измерения от 0% до 10% по диоксиду углерода. Линейность аналитического сигнала в диапазоне измерений должна составлять 1% или лучше. Время срабатывания анализатора должно составлять не более 12 с (согласно
C.2.1). Выходной сигнал анализатора для системы обработки данных должен иметь максимальное разрешение 100 ppm.
4.6.4 Оптическая измерительная система, работающая с белым светом, закрепленная с помощью гибкого соединения на боковых ответвлениях вытяжной трубы, состоит из следующих частей:
a) Лампа с нитью накала и цветовой температурой излучения (2900 +/- 100) К. Лампа должна работать от стабилизированного источника постоянного тока; стабильность сигнала должна быть в пределах +/- 0,5% (включая стабильность температуры, краткосрочную и долговременную стабильность).
b) Система линз для фокусирования света в параллельный световой пучок с минимальным диаметром 20 мм. Окошко фотоэлемента должно быть расположено на пути луча в фокусе линзы и должно иметь диаметр d, который выбирают относительно фокусного расстояния линзы f таким образом, чтобы соотношение d/f было менее 0,04.
c) Приемник света со спектрально распределенной чувствительностью согласно МКО
<1>; функция

(фотооптические кривые CIE) с точностью не менее +/- 5%. Отклонение от линейности выходного сигнала приемника в диапазоне не менее двух десятичных разрядов должно быть не более 3% для измеренного значения коэффициента пропускания или не более 1% для абсолютного пропускания.
--------------------------------
<1> Международная комиссия по освещению. Именуется по аббревиатуре французского наименования CIE (Commission International de l'Eclairage).
Градуировку оптической измерительной системы проводят в соответствии с
C.1.6. 90%-ное время срабатывания измерительной системы (в 90% случаев) не должно превышать 3 с.
Для предотвращения накопления дыма в боковых ответвлениях и осаждения вследствие этого сажи на оптике необходимо продувать боковые трубы воздухом либо посредством всасывания, либо посредством принудительного нагнетания. При принудительном нагнетании воздуха скорость потока должна составлять максимально 5 дм3/мин.
4.7 Другие измерительные приборы
4.7.1 Термопара типа K в соответствии с ЕН 60584-1:1995 диаметром (2 +/- 1) мм, предназначенная для измерения температуры воздуха, поступающего в камеру для испытаний. Термопару закрепляют на внешней стенке испытательной камеры на расстоянии до 0,20 м от проема для ввоза тележки с образцами и на высоте до 0,20 м над уровнем пола лаборатории.
4.7.2 Устройство для измерения давления окружающего воздуха с погрешностью +/- 200 Па (2 мбар).
4.7.3 Устройство для измерения относительной влажности воздуха с погрешностью +/- 5% в диапазоне измерения от 20% до 80%.
4.7.4 Система сбора и обработки данных (для автоматического сбора данных измерений) с точностью равной или лучше чем: 100 ppm (0,01%) для измерения содержаний O
2 и CO
2; 0,5 °C - для измерения температуры; 0,01% - для всех диапазонов измерения других измерительных приборов и 0,1 с - для определения времени. Система сбора и обработки данных должна каждые 3 с определять и сохранять значения следующих параметров (сведения о формате файла с данными измерения приведены в
приложении F):
a) время, с;
b) массовый расход пропана через горелку, мг/с;
c) разность давлений двунаправленного зонда, Па;
d) пропускание света, безразмерная величина;
e) концентрация O
2 
, %;
| | ИС МЕГАНОРМ: примечание. Текст дан в соответствии с официальным текстом документа. | |
f) концентрация CO
2 
, %;
g) температура воздуха у основания тележки для образцов, К;
h) три температуры на общем измерительном участке, К.
5.1.1 Образец состоит из двух фрагментов, узкого и широкого, образующих между собой прямой угол. Максимальная толщина образца составляет 200 мм.
Строительные материалы в виде плит должны иметь следующие размеры:
а) узкий фрагмент образца - (495 +/- 5) x (1500 +/- 5) мм;
б) широкий фрагмент образца - (1000 +/- 5) x (1500 +/- 5) мм.
Примечание - Если для составления образцов применяют дополнительные материалы (согласно
5.3.2), то указанные выше размеры относятся к составному образцу.
5.1.2 Образцы толщиной более 200 мм уменьшают до

мм со стороны, не подвергаемой воздействию пламени, при отсутствии других требований в технических условиях на изделие.
5.1.3 Для наблюдения за боковым распространением пламени на передней стороне широкого фрагмента образца вблизи внешней кромки, наиболее удаленной от угла, на высотах (500 +/- 3) мм и (1000 +/- 3) мм от нижней кромки проводят две горизонтальные линии.
5.2.1 Сборка как в практическом применении
Результаты испытаний строительных материалов, монтируемых и испытываемых в соответствии с применением в определенной практической области, распространяются только для данной области применения.
5.2.2 Сборка согласно стандарту
Если строительные материалы монтируют и испытывают согласно настоящему стандарту, то результаты испытаний распространяются как для области практического применения материала, так и для более широкого диапазона областей применения. Способ монтажа и параметры испытания образцов в соответствии с настоящим стандартом должны соответствовать техническим требованиям на материалы и описанным ниже требованиям.
a) Плиты, которые при практическом применении используют свободно стоящими, испытывают свободно стоящими на расстоянии не менее 80 мм до задней закрывающей плиты. Плиты, вентилируемые при практическом применении, испытывают при наличии полого пространства шириной не менее 40 мм. Для этих двух типов расположения плит внешние края полого пространства, находящиеся на наибольшем отдалении от угла, должны оставаться открытыми. При этом части закрывающих плит снимают согласно
4.4.11, а полое пространство за двумя фрагментами образца должно быть сквозным и открытым. Для других типов плит стороны, наиболее удаленные от угла, должны быть закрыты, части закрывающих плит согласно
4.4.11 должны быть установлены, а полые пространства за двумя фрагментами образца не должны иметь открытого соединения друг с другом.
b) Плиты, которые при практическом применении механически закреплены на подложке, испытывают закрепленными на подложке соответствующими средствами крепления. Крепления, выступающие над поверхностью образца, должны располагаться таким образом, чтобы не мешать примыканию фрагмента к U-профилю и второму фрагменту образца по всей длине.
c) Плиты, которые при практическом применении механически крепят на подложке с образованием за ними пространства, испытывают с полым пространством между подложкой и задней закрывающей плитой. Расстояние между подложкой и закрывающей плитой должно составлять не менее 40 мм.
d) Строительные материалы, которые при применении наклеивают на подложку, испытывают наклеенными на подложку.
e) Строительные материалы, имеющие соединительный шов, испытывают с горизонтальным швом на широком фрагменте образца, расположенным на высоте 500 мм от нижней кромки образца. Строительные материалы с вертикальным соединительным швом испытывают с вертикальным швом на широком фрагменте образца, расположенным на расстоянии 200 мм от угла смонтированного образца.
Примечание - Нижние кромки образцов в смонтированном состоянии не видны на тележке для образцов. Высоту измеряют от нижнего края образцов, но не от верхней кромки U-профиля на тележке для образцов.
f) Многослойные строительные материалы с полыми камерами испытывают с вертикальными полыми камерами.
g) Стандартные подложки должны соответствовать требованиям ЕН 13238, размеры подложек должны соответствовать размерам испытываемых образцов (см.
5.1.1):
1) для узкого фрагмента образца: длина подложки должна соответствовать длине меньшего фрагмента плюс толщина образца и толщина подложки;
2) для широкого фрагмента образца: подложка должна соответствовать поперечным и вертикальным размерам образца.
h) Строительные материалы с неровной поверхностью устанавливают для испытания таким образом, чтобы не более 30% ширины экспонируемой поверхности образца (250 мм на одном фрагменте и 250 мм на другом фрагменте) отстояло от ровной оборотной стороны вертикальной части U-профиля более чем на 10 мм. С целью достижения соответствия указанному требованию строительные материалы, имеющие неровную поверхность, могут быть преобразованы и/или до некоторой степени сдвинуты по отношению к U-профилю в сторону горелки. При этом строительный материал не должен выходить из области воздействия основной горелки (т.е. максимально допустимая проекция сдвига на U-профиль составляет 40 мм).
i) Если размеры производимого строительного материала не пригодны для изготовления образца для испытаний, то готовят специальный образец для испытаний, как описано ниже.
Монтаж образца из строительного материала оригинального размера начинают с нижней части двух фрагментов образца, образующих угол. Сначала из кусков строительного материала оригинального размера составляют правильно ориентированный угол, а затем обрезают куски по краям, формируя собственно тело фрагментов образца.
Если образец содержит горизонтальный и/или вертикальный шов, как описано в
5.2.2 e), то их расположению придается приоритетное значение. Установку образца начинают с нижнего угла, с ближайшего к основной горелке края, используя строительный материал оригинального размера. Если строительные материалы необходимо резать, чтобы горизонтальный и/или вертикальный соединительный шов оказался в заданном положении, то смежный фрагмент образца, изготовленный из оригинального строительного материала, должен плотно прилегать на всем участке сопряжения, включая соединительный шов.
Примечания
1 Строительные материалы, подлежащие испытанию, крепят к оборотной стороне U-профиля (см.
5.3.1). При этом установленный строительный материал с ровной поверхностью находится в вертикальной плоскости оборотной стороны U-профиля. Так как положение поверхности образца влияет на количество тепла, воспринимаемого от пламени горелки, то основные части строительных материалов с неровной поверхностью не должны находиться слишком далеко за вертикальной плоскостью оборотной стороны U-профиля.
2 На
рисунке 2 приведен пример расположения образца и задних закрывающих плит.
1 - задняя закрывающая плита; 2 - L-профиль; 3 - воздушный
зазор; 4 - соединительные швы; 5 - фрагменты испытуемого
образца; 6 - основная горелка; 7 - U-профиль
Рисунок 2 - Пример монтажа образца
5.3 Установка образцов на тележку
5.3.1 Оба фрагмента образца устанавливают на тележке следующим образом.
a) Нижнюю кромку узкого фрагмента образца монтируют с коротким U-профилем на опорной плите тележки для образцов, а закрывающую узкий фрагмент образца плиту устанавливают в тележке так, чтобы выступающая часть закрывающей плиты находилась со стороны основной горелки.
b) Нижнюю кромку широкого фрагмента образца монтируют с длинным U-профилем на опорной плите тележки для образцов, а внешнюю кромку закрывающей широкий фрагмент образца плиты устанавливают вплотную к выступающей части плиты, закрывающей узкий фрагмент образца.
c) Оба фрагмента образца прочно крепят вверху и внизу.
d) Чтобы образованный обеими закрывающими плитами угол во время испытания не раскрылся, устанавливают на обратной стороне угла, образованного двумя закрывающими плитами L-профиль из металла длиной 1500 мм. L-профиль закрепляют на закрывающих плитах в местах, отстоящих друг от друга не более чем на 250 мм.
5.3.2 Незащищенные кромки образцов и шов в углу, образованный фрагментами образца, допускается защищать с помощью дополнительных строительных материалов, если это соответствует применению на практике. При использовании дополнительных строительных материалов ширина фрагментов образца, включая дополнительные строительные материалы, должна соответствовать требованиям
5.1.1.
5.3.3 После установки испытуемого образца в тележке всю компоновку фотографируют следующим образом:
a) Общий вид экспонируемой поверхности широкого фрагмента образца. Центр широкого фрагмента образца должен находиться в центре поля зрения. Камера должна быть направлена перпендикулярно к поверхности широкого фрагмента образца.
b) Съемка крупным планом вертикальной внешней кромки широкого фрагмента образца на высоте 500 мм от опорной плиты тележки. Угол съемки должен составлять 45° к поверхности фрагмента образца.
c) При использовании дополнительных строительных материалов в соответствии с
5.3.2 проводят съемку крупным планом кромок и/или швов, которые имеются в строительных материалах.
5.4 Количество образцов для испытаний
Для испытаний готовят три образца (три широких и три узких фрагмента) в соответствии с
разделом 8.
В том случае, если поведение строительного материала зависит от ориентации образца, и ориентация не оговорена ни в настоящем стандарте, ни в стандарте на данный вид строительного материала, необходимо испытать образец строительного материала при обеих ориентациях. Серия испытаний такого строительного материала заканчивается еще двумя дополнительными испытаниями при той конфигурации образца, при которой классификационные параметры оказались самыми плохими при первом испытании. Это событие вступает в силу в том случае, когда все классификационные параметры (FIGRA0,2 МДж, FIGRA0,4 МДж, THR600 с, SMOGRA, TSP600 с, LSF, образование горящих капель/обломков) оказались худшими для одной конфигурации. Если же одни параметры хуже для одной конфигурации, а другие параметры хуже для второй конфигурации, то необходимо испытать три образца, ориентированных в обоих направлениях.
6 Кондиционирование образцов
6.1 Кондиционирование проводят в соответствии с ЕН 13238 (подраздел 6.2).
6.2 Части, из которых состоит образец, могут подвергаться кондиционированию отдельно или соединенными друг с другом. Образцы, которые испытывают приклеенными к подложке, перед кондиционированием должны быть приклеены.
Примечание - Для достижения постоянной массы образцов, закрепленных на подложке, может потребоваться больше времени.
Образец, состоящий из двух вертикально стоящих фрагментов и образующих прямой угол, подвергают воздействию пламени расположенной внизу в углу горелки (основная горелка). Пламя возникает при сжигании пропана, проходящего через песчаный слой. Интенсивность тепловыделения горелки составляет (30,7 +/- 2,0) кВт.
Продолжительность испытания образца на пожарную опасность составляет 20 мин. Параметрами, определяющими пожарную опасность, являются: тепловыделение, дымообразование, боковое (горизонтальное) распространение пламени и образование горящих капель/обломков.
Небольшой промежуток времени перед розжигом основной горелки используют для того, чтобы отдельно измерить тепловыделение и дымообразование горелки, используя идентичную горелку, расположенную на расстоянии от образца (вспомогательная горелка).
Одни измерения выполняются автоматически, другие осуществляют посредством визуального контроля. Вытяжная труба для отвода дымового газа оборудована чувствительными датчиками для измерения температуры, ослабления света, молярной доли O2 и CO2 и разницы давления в вытяжной трубе. Эти значения записываются автоматически и используются для расчета объемного расхода воздуха, интенсивности тепловыделения (HRR) и интенсивности дымообразования (SPR).
Боковое распространение пламени и образование горящих капель/обломков оценивают визуальным наблюдением.
Испытания проводят согласно
8.2, при этом регистрируют измеряемые показатели. Тележка с образцом и основной горелкой находятся в раме под вытяжным зонтом. Продолжительность всего испытания, от взятия образца из камеры кондиционирования до конца испытания, не должна превышать 2 ч.
Все измерительные приборы и насосы должны быть включены минимум за полчаса до проведения градуировки или испытания.
Примечание - Время стабилизации газоанализаторов значительно дольше. Поэтому газоанализаторы должны быть постоянно включены.
8.2 Порядок проведения испытания
8.2.1 Устанавливают объемный расход воздуха
V298(
t), равный (0,60 +/- 0,05) м
3/с, поступающего из испытательной камеры [согласно
A.5.1.1, a)]. Объемный расход воздуха в течение всего испытания должен находиться в диапазоне от 0,50 м
3/с до 0,65 м
3/с.
Примечание - В силу изменения тепловыделения некоторые вытяжные системы (особенно с установленным локальным вентилятором) требуют во время испытания ручной или автоматической настройки.
8.2.2 Регистрируют в течение не менее 300 с температуру в вытяжной трубе T1, T2 и T3 и температуру окружающей среды. Температура окружающей среды должна быть (20 +/- 10) °C, а температура в вытяжной трубе не должна отличаться более чем на 4 °C от температуры окружающей среды.
8.2.3 Включают устройства для розжига обеих горелок (при наличии таких устройств). Изменения в подаче газа к устройствам для розжига во время испытания не должны превышать 5 мг/с.
8.2.4 Записывают параметры окружающей среды перед испытанием, указанные в
8.3.2.
8.2.5 Начинают хронометраж, включая секундомер и автоматическую регистрацию измеряемых параметров. Время включения отмечают как
t = 0 с. Зарегистрированные на этот момент данные приведены в
8.4.
8.2.6 При t = (120 +/- 5) с зажигают вспомогательную горелку и устанавливают массовый расход пропана mгаз = (647 +/- 10) мг/с. Настройку необходимо завершить до t = 150 с. Указанный диапазон массового расхода пропана должен соблюдаться в течение всего испытания.
Примечание - Период времени 210 с < t < 270 с используют для измерения базового значения интенсивности тепловыделения.
8.2.7 При t = (300 +/- 5) с подачу газа переключают со вспомогательной горелки на основную. Время розжига основной горелки регистрируют.
8.2.8 Пожароопасные характеристики образца определяют в течение 1260 с, а данные записывают в протокол испытания. Регистрируемые параметры приведены в
8.3.3 и
8.3.4.
Примечание - Эффективная продолжительность воздействия пламени основной горелки на образец составляет 1260 с. Пожароопасные характеристики оценивают за период времени 1200 с.
8.2.9 При t >= 1560 с:
a) прекращают подачу газа к горелке;
b) останавливают автоматическую регистрацию данных.
8.2.10 Параметры в конце испытания фиксируют в протоколе испытания не ранее чем через 1 мин после полного затухания образца. Регистрируемые параметры приведены в
8.3.5.
Примечание - Параметры в конце испытания должны фиксироваться при отсутствии влияния продолжающегося горения. При невозможности потушить образец из испытательной камеры удаляют тележку.
8.3 Наблюдения и запись данных вручную
8.3.1 Общие положения
Значения параметров, приведенных в настоящем разделе, определяют при визуальном контроле и регистрируют в установленном формате. Оператор должен иметь секундомер, позволяющий фиксировать промежутки времени. Наблюдения записывают в протоколе испытания, пример которого приведен в
приложении G.
8.3.2 Параметры, регистрируемые перед испытанием
Записывают следующие параметры:
a) давление окружающей среды, Па;
b) относительная влажность окружающего воздуха, % H2O;
c) температура окружающей среды, °C.
8.3.3 Боковое распространение пламени на широком фрагменте образца
Боковое (горизонтальное) распространение пламени фиксируют в том случае, если в течение испытания устойчивое пламя достигнет внешней кромки широкого фрагмента образца на высоте от 500 до 1000 мм. Решающим фактором при этом является наличие устойчивого горения экспонируемой поверхности образца в течение не менее 5 с.
Если критерий, касающийся распространения бокового пламени, не выполняется, по требованию клиента могут быть проведены дополнительные испытания; при этом широкий фрагмент образца должен иметь ширину, равную 1 м плюс толщина образца.
Если в трех дополнительных испытаниях пламя не достигает боковой кромки широкого фрагмента образца, критерий бокового распространения пламени считают удовлетворительным.
Примечание - Нижняя кромка образца не видна, если образец установлен в тележке. В смонтированном состоянии высота образца на уровне верхней кромки U-профиля тележки составляет примерно 20 мм.
8.3.4 Образование горящих капель/обломков
Если ожидается появление горящих капель или обломков, ход испытания следует непрерывно записывать с использованием подходящей камеры с высоким разрешением.
Образование горящих капель/обломков регистрируют только в течение первых 600 с воздействия и только тогда, когда на опорную плиту тележки (на высоте нижней кромки образца) вне зоны горелки падают капли/обломки. Зону горелки определяют как участок опорной плиты перед фрагментами образца, ограниченный линией, находящейся на удалении менее 0,3 м от вершины угла, образованного фрагментами образца, согласно
рисунку 3. Регистрируют следующие наблюдения:
a) образование горящих капель/горящих обломков в установленный промежуток времени вне зоны горелки, при этом горящие капли/части после капания/падения продолжают гореть не более 10 с;
b) образование горящих капель/горящих обломков в установленный промежуток времени вне зоны горелки, при этом горящие капли/части после капания/падения продолжают гореть более 10 с.
Размеры в миллиметрах
1 - уплотнительная пластина в U-профиле; 2 - граница зоны
горелки; 3 - основная горелка
Начерченный на опорной плите тележки для образцов сектор необходим для обозначения зоны горелки. Ширина линии должна быть менее 3 мм.
Примечания
1 Горящие части испытуемого образца, касающиеся опорной плиты тележки вне зоны горелки, несмотря на то, что соответствующие части еще держатся на образце (например, из-за прогиба размягченного строительного материала), рассматривают как горящие падающие части.
2 Чтобы исключить вытекание расплавленного материала за пределы зоны горелки, в U-профиле на широком фрагменте образца и в U-профиле на узком фрагменте образца предусмотрены вертикальные уплотнительные пластины на краю зоны горелки (см.
4.4.6).
8.3.5 Параметры, регистрируемые в конце испытания
Регистрируют следующие параметры:
a) светопропускание в общем измерительном участке вытяжной трубы, %;
b) мольная доля O2 в потоке газа в общем измерительном участке вытяжной трубы;
c) мольная доля CO2 в потоке газа в общем измерительном участке вытяжной трубы.
8.3.6 Регистрируемые особенности
В протоколе испытаний фиксируют следующие наблюдаемые особенности:
a) появление пламени на наружной поверхности;
b) дым от образцов, который не выводится через вытяжную трубу и проникает в испытательную камеру;
c) падение частей образца;
d) возникновение зазора в углу (поломка креплений для фиксации задних закрывающих плит);
e) возникновение одного или нескольких условий, которые приводят к преждевременному завершению испытания в соответствии с
8.5;
f) появление деформаций или разрушение образца;
g) все другие события, имеющие значение для правильной интерпретации результатов испытаний или для области применения строительного материала.
8.4 Автоматический сбор данных
8.4.1 Указанные в
8.4.2 -
8.4.9 параметры должны автоматически измеряться каждые 3 с в течение промежутка времени, указанного в
8.2, фиксироваться и сохраняться для последующей обработки.
8.4.2 Время
t, с, к началу записи данных
t = 0.
8.4.3 Массовый расход пропана, поступающего к горелке (mгаз), мг/с.
8.4.4 Разница давления между камерами двунаправленного зонда

в общем измерительном участке вытяжной трубы, Па.
8.4.5 Сигнал от светоприемника (I) оптической измерительной системы в общем измерительном участке вытяжной трубы, %.
8.4.6 Молярная доля O2 в пробе дымовых газов (xO2), отобранной зондом в общем измерительном участке вытяжной трубы.
Примечание - Концентрации кислорода и диоксида углерода измеряют только в вытяжной трубе; предполагается, что концентрации этих газов в поступающем в испытательную SBI-камеру воздушном потоке постоянны в течение всего испытания. Следует учитывать, что для воздуха, поступающего из зоны, в которой расходуется кислород (например, из помещения, где проводят огневые испытания), это условие не выполняется.
8.4.7 Молярная доля CO2 в пробе дымовых газов (xCO2), отобранной зондом в общем измерительном участке вытяжной трубы.
8.4.8 Температура окружающего воздуха (T0) на впуске воздуха в основании тележки для образцов, К.
8.4.9 Три температуры (
T1,
T2 и
T3) в общем измерительном участке вытяжной трубы, К.
8.5 Преждевременное завершение испытания
Основная горелка может быть выключена до окончания номинальной продолжительности горения, если материал падает на песчаный слой горелки и существенно мешает пламени горелки или тушит его. Существенной помехой пламени является условие, когда не менее половины площади горелки покрыто упавшим материалом.
В таком случае фиксируется время отключения подачи газа к горелке и соответствующая причина.
При преждевременном прекращении испытания его результаты неприменимы для целей классификации.
Примечания
1 Преждевременное завершение испытания можно предотвратить использованием стоящей под углом решетки согласно
4.4.6.
2 Следующие события могут привести к повреждению испытательной аппаратуры:
a) тепловыделение образца превышает 350 кВт или на протяжении 30 с превышает среднее значение 280 кВт;
b) температура в вытяжной трубе в какой-либо момент времени превышает 400 °C или в течение 30 с превышает среднее значение 300 °C.
При превышении указанных значений испытатель может рассматривать возможность преждевременного завершения испытаний. При измерении температуры и показателя тепловыделения в определенной степени следует учитывать возможность помех. Поэтому не рекомендуется заканчивать испытание на основании только одного или двух последовательно измеренных значений, превышающих максимальные значения.
9 Представление результатов
9.1 Для каждого огневого испытания представляют следующие характеристики пожарной опасности строительного материала: диаграмма интенсивности тепловыделения
HRRср(
t), общее количество выделившегося тепла
THR(
t) и значение 1000 x
HRRср(
t)/(
t - 300) для интервала времени 0 <=
t <= 1500 с, значения
FIGRA0,2 МДж и
FIGRA0,4 МДж, общее количество выделенного тепла в течение первых 600 с воздействия пламени
THR600 с, вычисляемое в соответствии с
A.5, данные по боковому распространению пламени до кромки образца в соответствии с
8.3.3.
9.2 Для каждого огневого испытания представляют следующие характеристики дымообразования строительного материала: диаграмма интенсивности дымообразования
SPRср(
t), общее количество выделенного дыма
TSP(
t) и значение 10000 x
SPRср(
t)/(
t - 300) для интервала времени 0 <=
t <= 1500 с. Кроме того, указывают значения
SMOGRA и общего количества выделенного дыма в течение первых 600 с воздействия пламени
TSP600 с, вычисляемых в соответствии с
A.6.
9.3 Для каждого огневого испытания указывают сведения об образовании горящих капель/обломков по одной или обеим категориям горящих капель/обломков согласно
8.3.4, a) или
8.3.4, b).
Необходимо четко различать данные, предоставленные заказчиком, и данные, полученные при испытаниях. Протокол испытаний должен содержать следующую информацию:
a) указание на то, что испытание проведено в соответствии с настоящим стандартом;
b) описание любых отклонений от методики испытаний;
c) наименование и адрес испытательной лаборатории;
d) дата и идентификационный номер протокола испытаний;
e) наименование и адрес заказчика;
f) наименование и адрес изготовителя/поставщика, если известно;
g) дата поступления образца;
h) идентификация строительного материала;
i) описание отбора образца, если это существенно;
j) общее описание испытуемого строительного материала, включая плотность, массу единицы площади и толщину, а также вид конструкции образца;
k) описание подложки и крепления на подложке (если используется);
l) подробные сведения о кондиционировании;
m) дата проведения испытаний;
n) результаты испытаний, оформленные в соответствии с
разделом 9, включая сведения о методике расчета интенсивности дымовыделения
(A.6.1.2);
o) фотографии в соответствии с
5.3.3;
p) наблюдения, сделанные во время испытаний;
q) заключение: "Результаты испытания распространяются на показатели пожарной опасности образцов строительных материалов при особых условиях испытания и не являются единственным критерием оценки потенциального риска возгорания строительного материала при практическом применении".
(обязательное)
A.1 Общие сведения
A.1.1 Общие замечания
A.1.1.1 Общие положения
Порядок проведения испытаний описан в
разделе 8. Частично информация повторяется в настоящем приложении из практических соображений.
a) Важными этапами в их последовательности являются:
1) t = 0 с - начало сбора данных;
2) t = (120 +/- 5) с - розжиг вспомогательной горелки;
3) t = (300 +/- 5) с - переключение со вспомогательной горелки на основную;
4) t >= 1560 с - отключение основной горелки и завершение сбора данных.
b) Пожарную опасность образцов оценивают в течение первых 1200 с (300 с <= t <= 1500 с) воздействия пламени основной горелки. Этот отрезок времени обозначают как длительность воздействия.
c) Учитывая применение усредненных во времени данных, допускаемые погрешности и время запаздывания, может возникнуть необходимость продолжить регистрацию данных при воздействии пламени еще в течение следующих, как максимум, 60 с (после t = 1500 с).
d) Интервал времени 210 с <= t <= 270 с используют для измерения тепловыделения и дымообразования горелки. Этот интервал называют базовым временем. Для того, чтобы получить тепловыделение и дымообразование образца через t = 300 с, из суммарного тепловыделения и дымообразования горелки и образца вычитают среднее тепловыделение и дымообразование горелки в течение базового времени.
По требованию заказчика может быть применена альтернативная процедура в соответствии с
примечанием к A.6.1.2 для определения вклада основной горелки в дымообразование.
e) В течение 1560 с каждые 3 с регистрируют следующие исходные данные: массовый расход газа, разницу давления, ослабление света, концентрации кислорода и диоксида углерода, температуру окружающей среды и температуру дымового газа в соответствии с
8.4.
A.1.1.2 Обозначения
В настоящем приложении для полученных в течение определенного промежутка времени средних значений применяют упрощенное обозначение:
-
- среднее значение
f(
t) за промежуток времени
t1 <=
t <=
t2.
A.1.2 Проведение расчетов с применением измеряемых значений
После испытаний, проведенных с целью оценки пожарной опасности строительного материала, рассчитывают ряд параметров. Все вычисления в настоящем приложении, за исключением расчетов по
A.2, проводят с применением смещенных по времени измеряемых параметров в соответствии с
A.2.
Проводят следующие вычисления:
- синхронизация измеряемых параметров;
- расчет времени запаздывания приборов;
- расчет продолжительности воздействия пламени;
- расчет HRR(t);
- расчет усредненного во времени значения HRR(t): HRR30 с;
- расчет THR(t) и THR600 с;
- расчет FIGRA0,2 МДж и FIGRA0,4 МДж;
- расчет SPR(t);
- расчет усредненного во времени значения SPR(t): SPR60 с;
- расчет TSP(t) и TSP600 с;
- расчет SMOGRA.
Результаты испытаний действительны только при выполнении требований
A.2 и
A.3. Расчеты приведены в
A.2 -
A.6.
A.1.3 Проведение расчетов при градуировке
Метод градуировки приведен в
приложении C. Порядок расчета градуировочных параметров приведен в
A.7, если они не являются составной частью стандартных данных, получаемых при испытании и вычисляемых согласно
A.2 -
A.6.
A.1.4 Стандартный набор измеряемых данных
Так как методы расчета достаточно сложны, то стандартный набор измеряемых данных может быть использован для проверки этапов расчета и определения эффективности программного обеспечения.
A.2 Приведение в соответствие измеряемых значений
A.2.1 Синхронизация O2 и CO2 с Tms
При переключении со вспомогательной горелки на основную важные измеряемые параметры одновременно могут демонстрировать кратковременный подъем или падение. Эти изменения параметров используют для синхронизации результатов измерений. Считают, что этот автоматический процесс синхронизации и/или измеренное время задержки ошибочны, если временное смещение, рассчитанное в процессе автоматической синхронизации, отклоняется более чем на 6 с от времени запаздывания анализаторов, установленного при градуировке по
C.2.1.
a) Измеренные значения содержаний O
2 и CO
2 смещают на время запаздывания анализаторов, определяемое при градуировке по
C.2.1.
b) Время t0_T определяют как время снятия последнего показания перед тем, как температура в общем измерительном участке Tms(t) через t = 270 с упадет более чем на 2,5 К по сравнению со средним значением Tms, наблюдаемым в течение базового времени (210 с <= t <= 270 с):

(A.1)
где
Tms(
t) - температура в общем измерительном участке, рассчитанная согласно
A.3.2.
c) Время

определяют как время снятия последнего показания перед тем, как концентрация кислорода через
t = 270 с повысится более чем на 0,05% (500 ppm) по сравнению со средним значением, наблюдаемым в течение базового времени (210 с <=
t <= 270 с):

(A.2)
где xO2 - концентрация кислорода в мольных долях.
d) Время

определяют как время снятия последнего показания через
t = 270 с перед тем, как концентрация диоксида углерода
xCO
2 упадет более чем на 0,02% (200 ppm) по сравнению со средним значением, наблюдаемым в течение базового времени (210 с <=
t <= 270 с):

(A.3)
где xCO2 - концентрация диоксида углерода в мольных долях.
e) Измеряемые содержания кислорода и диоксида углерода смещают таким образом, чтобы повышение содержания O
2 и понижение содержания CO
2 совпали по времени с понижением
Tms (так, чтобы

). Интервалы, на которые проводят смещение, должны составлять не более 6 с.

(A.4)
где xO2 - концентрация кислорода в мольных долях;

- время, определяемое по c);
t0_T - время, определяемое по b).
Аналогичный вид имеет уравнение для CO2 после замены O2 на CO2.
Примечание - В некоторых случаях минимальные и пиковые значения из описанного выше метода синхронизации могут быть слишком малы. В таких случаях возможна визуальная оценка
t0_T,

и/или

.
A.2.2 Время измерения всех показателей смещают через t = 300 с.
После согласования по времени измеряемых содержаний O
2 и CO
2 с
Tms данные смещают по времени таким образом, чтобы из практических соображений для всех измеряемых значений действовало

. Интервал, на который проводят смещение, должен быть менее 15 с.
Примечание - Здесь все данные (
mгаз,

,
I,
xO
2,
xCO
2,
T0,
T1,
T2,
T3 и
Tms) в совокупности смещают по времени. В
A.2.1, e) измеряемые содержания O
2 и CO
2 были смещены по времени относительно других данных.
A.2.3 Все расчеты по
A.3 -
A.6 проводят с применением смещенных по времени данных согласно этому разделу.
A.3 Проверка времени запаздывания приборов
A.3.1 Измерение температуры
Температура, измеряемая размещенными в общем измерительном участке термопарами 1, 2 и 3, не должна отклоняться более чем 10 раз в процессе измерений более чем на 1% от среднего значения Tms = (T1 + T2 + T3)/3. Допускается описанное ниже исключение.
При отклонении показаний одной термопары более чем на 1% от Tms более 10 раз, а показаний двух остальных термопар не более чем на 1% от их средней температуры более 10 раз, первую термопару полностью исключают из расчета значения Tms. В остальных случаях для расчета значения Tms следует применять показания всех термопар. Применение только двух термопар должно быть указано в протоколе испытаний.
Примечания
1 Это требование служит для исключения из расчета неисправных термопар. Исходят из того, что отклонение более чем на 1% малое число раз не означает неисправность термопары.
2 Перед началом испытаний или градуировок дополнительные критерии записывают.
A.3.2 Дрейф при измерении концентрации газа
Дрейф при измерении концентраций xO2 и xCO2 вычисляют как разницу между начальным значением xO2 (30 с ... 90 с) или xCO2 (30 с ... 90 с) и конечным значением, получаемым как минимум через 60 с после того, как оптическая система измерений зафиксирует отсутствие продуктов сгорания в вытяжной трубе.
Должно соблюдаться следующее требование:

(A.5)

(A.6)
где xO2 - концентрация кислорода, мольная доля;
xCO2 - концентрация диоксида углерода, мольная доля.
A.3.3 Дрейф при измерении ослабления света
Отклонение в измерении ослабления света I вычисляют как разницу между начальным значением I (30 с ... 90 с) и конечным значением, получаемым не менее чем через 60 с после того, как оптическая система измерений зафиксирует отсутствие продуктов сгорания в вытяжной трубе.
Должно соблюдаться следующее требование
|Iначало - Iконец|Iначало <= 0,02, (A.7)
где I - сигнал от светоприемника, %.
Примечание - Существенная часть разницы между начальным и конечным значениями может быть вызвана отложением сажи на линзах измерительного прибора.
A.4 Продолжительность воздействия пламени
На образец воздействует пламя основной горелки от момента времени t = t0 = 300 с до прекращения подачи газа в момент времени t'. Продолжительность воздействия равна t' - t0.
Прекращение работы горелки можно проверить, определив время t', когда в первый раз после t0 и при последующем измерении в момент времени (t' + 3 с) массовый расход пропана будет менее 300 мг/с:

(A.8)
где mгаз(t') - массовый расход пропана, мг/с.
Должно соблюдаться следующее требование: t' - t0 >= 1245 с.
A.5.1 Расчет интенсивности тепловыделения HRR
A.5.1.1 Суммарная интенсивность тепловыделения образца и горелки (HRRобщ)
a) Объемный расход воздуха в вытяжной системе
V298(
t), м
3/с, в пересчете на 298 К вычисляют по формуле

(A.9)
где
c - коэффициент,

, К
0,5·м
1,5·кг
-0,5;
A - площадь поперечного сечения общего измерительного участка вытяжной трубы, м2;
kt - коэффициент профиля потока, определяемый согласно
C.2.5;
kp - поправочный коэффициент к числу Рейнольдса для датчика измерения перепада давления, в данном случае принимают равным 1,08;

- перепад давления, Па;
Tms(t) - температура в общем измерительном участке, К.
b) Коэффициент потребления кислорода

вычисляют по формуле

(A.10)
где xO2(t) - концентрация кислорода, мольная доля;
xCO2(t) - концентрация диоксида углерода, мольная доля;

- средняя концентрация кислорода, измеренная в промежутке от 30 с до 90 с после начала испытания, мольная доля;

- средняя концентрация диоксида углерода, измеренная в промежутке от 30 с до 90 с после начала испытания, мольная доля.
c) Концентрацию кислорода в окружающем воздухе, включая водяной пар,

, мольная доля, вычисляют по формуле

(A.11)
где

- средняя концентрация кислорода, измеренная в промежутке от 30 с до 90 с после начала испытания, мольная доля;
H - относительная влажность воздуха, %;
p - давление окружающего воздуха, Па;

- средняя температура в общем измерительном участке за промежуток от 30 с до 90 с после начала испытания, К.
d) Суммарную интенсивность тепловыделения горелки и образца HRRобщ(t), кВт, вычисляют по формуле

(A.12)
где E - тепловыделение на единицу объема потребляемого кислорода при 298 К, равное 17 200 кДж/м3;
V298(t) - объемный расход воздуха в вытяжной системе в пересчете на 298 К, м3/с;

- концентрация кислорода в окружающем воздухе, включая водяной пар, мольная доля;

- коэффициент потребления кислорода.
A.5.1.2 Расчет HRR горелки
Интенсивность тепловыделения горелки HRRгорелки(t) равна общей интенсивности тепловыделения HRRобщ(t) в течение базового времени. За среднее значение интенсивности тепловыделения горелки HRRср_горелки, кВт, принимают среднее значение общей интенсивности тепловыделения в течение базового времени 210 с <= t <= 270 с

(A.13)
где

- суммарная интенсивность тепловыделения горелки и образца в течение базового времени от 210 с до 270 с после начала испытания, кВт.
Стандартное отклонение показателя
HRRгорелки,

, за период времени 210 с <=
t <= 270 с рассчитывают по формуле

(A.14)
где HRRср_горелки - средняя интенсивность тепловыделения горелки, кВт;
HRRгорелки(t) - интенсивность тепловыделения горелки в момент времени t, кВт;
n - число измерений (n = 21).
Уровень тепловыделения и стабильность работы горелки в течение базового времени должны соответствовать следующим требованиям:
HRRср_горелки = (30,7 +/- 2,0) кВт (A.15)
и

(A.16)
где HRRср_горелки - средняя интенсивность тепловыделения горелки, кВт;

- стандартное отклонение параметра
HRRгорелки в период 210 с <=
t <= 270 с.
Примечание - Соотношение выработки диоксида углерода и потребления кислорода в течение базового времени (210 с <= t <= 270 с; сжигание только пропана) можно использовать для проверки анализа газа перед переключением горелок. Соотношение должно составлять (0,60 +/- 0,05).
A.5.1.3 Расчет HRR испытуемого образца
Как правило, интенсивность тепловыделения образца HRR(t), кВт, определяют, как разницу общей интенсивности тепловыделения и средней интенсивности тепловыделения горелки.
Для t > 312 с
HRR(
t) =
HRRобщ(
t) -
HRRср_горелки, (A.17)
где HRRобщ(t) - суммарная интенсивность тепловыделения горелки и образца, кВт;
HRRср_горелки - средняя интенсивность тепловыделения горелки, кВт.
В момент переключения со вспомогательной горелки на основную в начале воздействия пламени на образцы общее тепловыделение обеих горелок составляет менее
HRRср_горелки. В этом случае
формула (A.17) дает отрицательные значения
HRR(
t) в течение не более 12 с (время срабатывания устройства для переключения горелок). Эти отрицательные значения и значение для
t = 0 устанавливают на ноль следующим образом:
- для t = 300 с:
HRR(300) = 0 кВт, (A.18)
- для 300 с <= t <= 312 с:
HRR(t) = max[0 кВт, (HRRобщ(t) - HRRср_горелки)], (A.19)
где HRR(t) - интенсивность тепловыделения образца, кВт;
HRRобщ(t) - суммарная интенсивность тепловыделения горелки и образца, кВт;
HRRср_горелки - средняя интенсивность тепловыделения горелки, кВт;
max[a, b] - выбранное наибольшее из двух значений - a или b.
Вычисление средней интенсивности тепловыделения за 30 с HRR30 с(t), кВт, проводят по формуле
| | ИС МЕГАНОРМ: примечание. Формула дана в соответствии с официальным текстом документа. | |

(A.20)
где HRR(t) - интенсивность тепловыделения в момент времени t, кВт.
A.5.2 Расчет значений THR(t) и THR600 с
Общее тепловыделение образца THR(t), МДж, и общее тепловыделение образца за первые 600 с воздействия (300 с <= t <= 900 с) THR600 с, МДж, рассчитывают по формулам:

(A.21)

(A.22)
где THR(ta) - общее количество тепла, выделенного образцом за 300 с <= t <= ta, МДж;
HRR(t) - интенсивность тепловыделения образца в момент времени t, кВт;
max[a, b] - выбранное наибольшее из двух значений - a или b.
Примечание - Применяют коэффициент 3, так как каждые 3 с определяют только одно значение параметра.
A.5.3 Расчет FIGRA0,2 МДж и FIGRA0,4 МДж
Показатель FIGRA (firegrowth rate) определяют как максимальное значение отношения HRRср(t)/(t - 300 с), умноженное на коэффициент 1000. Показатель рассчитывают только для тех промежутков времени воздействия пламени, в течение которых были превышены предельные значения HRRср и THR. Если одно или оба предельных значения в течение воздействия пламени не достигаются, то значение FIGRA устанавливают равным нулю. Применяют два предельных значения THR, для которых рассматриваемые показатели обозначают FIGRA0,2 МДж и FIGRA0,4 МДж.
a) Среднее значение
HRRср, применяемое для расчета
FIGRA, соответствует
HRR30 с согласно
A.5.1.4, за исключением первых 12 с воздействия пламени. Для первых 12 с воздействия пламени среднее значение интенсивности тепловыделения определяют для временных диапазонов, включающих максимальные симметричные к данной точке измерения промежутки времени:
1) для t = 300 с: HRRср(300 с) = 0;
2) для
t = 303 с:

;
3) для
t = 306 с:

;
4) для
t = 309 с:

;
5) для
t = 312 с:

;
6) для t >= 315 с: HRRср(t) = HRR30 с(t). (A.23)
b) Рассчитывают FIGRA0,2 МДж для всех значений t при:
HRRср(t) > 3 кВт, THR(t) > 0,2 МДж и (300 с < t <= 1500 с),
а также рассчитывают FIGRA0,4 МДж для всех значений t при:
HRRср(t) > 3 кВт, THR(t) > 0,4 МДж и (300 с < t <= 1500 с),
используя формулу

(A.24)
где FIGRA - индекс развития пламени, Вт/с;
HRRср(
t) - среднее значение
HRR(
t) в соответствии с
a), кВт;
max[a(t)] - максимальное значение параметра a(t) в течение установленного времени.
Примечание - Вследствие вышесказанного образцы со значениями HRRср не более 3 кВт в течение всего испытания или со значением THR не более 0,2 МДж в течение всего испытания имеют значение FIGRA0,2 МДж, равное нулю. Образцы со значениями HRRср не более 3 кВт в течение всего времени испытания или со значением THR не более 0,4 МДж в течение всего времени испытания имеют значение FIGRA0,4 МДж, равное нулю.
A.6.1 Расчет интенсивности дымообразования SPR
A.6.1.1 Общая интенсивность дымообразования образцов и горелки: SPRобщ
a) Объемный расход газа в вытяжной системе V(t), м3/с, вычисляют по формуле

(A.25)
где V298(t) - объемный расход газа в вытяжной системе при 298 К;
Tms(t) - температура в общем измерительном участке, К.
b) Общую интенсивность дымообразования образцов и горелки SPRобщ(t), м2/с, вычисляют по формуле

(A.26)
где V(t) - объемный поток вытяжной системы (при реальных параметрах окружающей среды), м3/с;
L - длина оптического пути через вытяжную трубу, равная диаметру трубы, м;
I(t) - сигнал от светоприемника, %.
При проведении вычислений принимают I(t) = max[10e - 9, I(t)], чтобы избежать необходимости деления на ноль.
Интенсивность дымообразования горелки SPRгорелки(t) равна SPRобщ(t) в течение базового времени. Среднюю интенсивность дымообразования горелки SPRср_горелки, м2/с, рассчитывают, как среднее значение SPRобщ(t) в течение базового времени (210 с <= t <= 270 с) по формуле

(A.27)
где

- средняя интенсивность общего дымообразования образца и горелки в течение базового времени, м
2/с.
Стандартное отклонение показателя SPRгорелки(t) в промежутке времени 210 с <= t <= 270 с рассчитывают по формуле

(A.28)
где SPRср.горелки - средняя интенсивность дымообразования горелки, м2/с;
SPRгорелки(t) - интенсивность дымообразования горелки в момент времени t, м2/с;
n - число измерений (n = 21).
Уровень дымообразования и стабильность работы горелки в течение базового времени должны соответствовать следующим требованиям:
SPRср_горелки = (0 +/- 0,1) м
2/с, (A.29)

(A.30)
где SPRср_горелки - средняя интенсивность дымообразования горелки, м2/с;

- стандартное отклонение показателя
SPRгорелки(
t) в промежутке времени 210 с <=
t <= 270 с.
Примечание - Наблюдали, что вспомогательная горелка образует меньше дыма, чем основная горелка. Для того чтобы убедиться, что выделяемый единичной горелкой дым не влияет на классификацию строительного материала с точки зрения дымообразования, следует оценить вклад собственно горелки. Этот альтернативный метод расчета можно использовать в тех случаях, когда вероятно изменение классификации строительного материала. Процедура описана ниже, и она применима только в том случае, если проводится в тот же день, когда испытывают образцы, для которых используют данную процедуру.
a) Устанавливают чистые подложки из силиката кальция непосредственно на тележку таким образом, чтобы они образовали угол.
b) Помещают тележку в камеру для испытаний и проводят тестирование, при котором работа горелок и измерения показателей происходят в обычном рабочем режиме.
c) Через 600 с испытание можно завершить в любой момент.
d) Вместо показателя, вычисляемого по
формуле (A.27), вычисляют
SPRср_горелки =
SPRобщ(390 с ... 450 с). Для этого применяют синхронизированные данные.
e) Вычисляют стандартное отклонение по
формуле (A.28), используя интервал времени (390 с ... 450 с) вместо интервала (210 с ... 270 с), и проверяют соблюдение необходимых требований [в соответствии с
формулами (A.29) и
(A.30)]. При этом предельное значение для
формулы (A.29) может быть установлено равным (0 +/- 0,2) м
2/с, так как основная горелка производит больше дыма, чем вспомогательная.
A.6.1.3 SPR образца
Как правило, интенсивность дымообразования образца SPR эквивалентна общей интенсивности дымообразования SPRобщ(t), уменьшенной на среднее значение интенсивности дымообразования горелки SPRср_горелки.
Для t > 312 с:
SPR(
t) =
SPRобщ(
t) -
SPRср_горелки, (A.31)
где SPRобщ(t) - суммарная интенсивность дымообразования горелки и образца, м2/с;
SPRср_горелки - средняя интенсивность дымообразования горелки, м2/с;
SPR(t) - интенсивность дымообразования образца, м2/с.
При переключении потока газа со вспомогательной горелки на основную в начале воздействия пламени общее дымовыделение от обеих горелок может быть меньше
SPRср_горелки. В этом случае на несколько секунд значения
SPR(
t) в соответствии с
формулой (A.31) становятся отрицательными. Такие отрицательные значения в расчетах принимают за ноль:
- для t = 300 с:
SPR(300) = 0 м2/с;
- для 300 с <= t <= 312 с:
SPR(t) = max[0, (SPRобщ(t) - SPRср_горелки)], (A.32)
где SPRобщ(t) - суммарная интенсивность дымообразования горелки и образца, м2/с;
SPRср_горелки - средняя интенсивность дымообразования горелки, м2/с;
SPR(t) - интенсивность дымообразования образца, м2/с;
max[a, b] - выбранное наибольшее из двух значений - a или b.
Примечание - Образование дыма пламенем горелки с большой вероятностью изменится, когда образцы начнут выделять воспламеняющиеся летучие компоненты. Тем не менее базовые значения интенсивности дымообразования используют как первое приближение с приемлемой точностью, особенно в начале воздействия пламени, когда базовый уровень является важным для расчета SMOGRA.
Среднюю интенсивность дымообразования образца в течение 60 с SPR60 с(t), м2/с, вычисляют по формуле

(A.33)
где SPR(t) - интенсивность дымообразования образца в момент времени t, м2/с.
A.6.2 Расчет TSP(t) и TSP600 с
Общее дымообразование образца за определенный промежуток времени TSP(t) и общее дымообразование образца в течение первых 600 с воздействия пламени (300 с <= t <= 900 с) TSP600 с рассчитывают по формулам:

(A.34)

(A.35)
где TSP(ta) - общее дымообразование образца в течение 300 с <= t <= ta, м2;
SPR(t) - интенсивность дымообразования образца, м2/с;
TSP600 с - общее дымообразование образца в течение 300 с <= t <= 900 с (равно TSP(900)), м2;
max[a, b] - выбранное наибольшее из двух значений - a или b.
Примечание - Применяют коэффициент 3, так как каждые 3 с имеют только один результат измерения.
Показатель SMOGRA (smoke growth rate) определяют как максимум отношения SPRср(t)/(t - 300 с), умноженный на коэффициент 10 000. Отношение рассчитывают только для того периода воздействия пламени, для которого были превышены предельные значения SPRср и TSP. Если одно или оба предельных значения в течение воздействия пламени не превышены, то значение SMOGRA считают равным нулю.
a) Значение
SPRср, применяемое для расчета
SMOGRA, согласно
A.6.1.4 равно
SPR60 с, за исключением первых 27 с воздействия пламени. Для первых 27 с периода воздействия пламени среднее значение интенсивности дымообразования определяют для временных диапазонов, включающих максимальные симметричные к данной точке измерения промежутки времени:
1) для t = 300 с: SPRср(300 с) = 0 м2/с;
2) для
t = 303 с:

;
3)
для t = 306 с:

;
и т.д. до
4) для
t = 327 с:

;
5) для t >= 330 с: SPRср(t) = SPR60 с(t). (A.36)
b) Рассчитывают индекс SMOGRA для всех значений t при
(SPRср(t) > 0,1 м2/с), (TSP(t) > 6 м2) и (300 с < t <= 1500 с)

(A.37)
где SMOGRA - индекс развития дымообразования, м2/с2;
SPRср(
t) - среднее значение интенсивности дымообразования образца
SPR(
t),
как указано в
a), м
2/с;
max[a(t)] - максимальное значение a(t) в течение установленного времени.
Примечания
1 Вследствие вышеизложенного образцы со значениями SPRср не более 0,1 м2/с в течение всего периода испытания или со значением TSP не более 6 м2 в течение всего периода испытания имеют значение индекса SMOGRA, равное нулю.
2 Индекс SMOGRA, м2/с2, не имеет прямого физического смысла, так как содержит коэффициент 10000.
A.7 Расчет для градуировки. Интенсивность тепловыделения пропана
A.7.1 Теоретически интенсивность тепловыделения потока пропана рассчитывают по формуле

(A.38)
где qгаз(t) - интенсивность тепловыделения потока пропана, кВт;

- низшая теплота сгорания пропана, равная 46360 кДж/кг;
mгаз(t) - массовый расход пропана, кг/с.
A.7.2 Среднее значение qгаз(t) за 30 с рассчитывают по формуле
| | ИС МЕГАНОРМ: примечание. Формула дана в соответствии с официальным текстом документа. | |

(A.39)
где qгаз 30 с - среднее значение qгаз(t) за 30 с, кВт;
qгаз(t) - теоретическая интенсивность тепловыделения потока пропана, кВт.
(справочное)
ПРЕЦИЗИОННОСТЬ МЕТОДА ИСПЫТАНИЙ
B.1 Общие замечания
Данные о прецизионности SBI-метода основаны на результатах межлабораторных сравнительных испытаний, проведенных в 1997 году. В сравнительных испытаниях приняли участие 15 лабораторий, в каждой из которых проведено испытание 30 материалов, по три параллельных испытания для каждого материала. Подвергнутые испытаниям материалы приведены в таблице B.1.
Таблица B.1
Материалы, подвергнутые испытаниям SBI-методом
при проведении межлабораторных сравнительных испытаний
Код | Материал (материалы с маркировкой "FR" обработаны огнезащитными средствами - антипиренами) | Толщина, мм | Объемная масса, кг/м3 | Масса единицы площади, г/м2 |
| Плита гипсовая, кашированная бумагой | 13 | 700 | |
| Поливинилхлорид (PVC) FR | 3 | 1180 | |
| Экструдированный полистирол XPS FR | 40 | 32 | |
| Плита из пенополиуретана (PUR) с покрытием из алюминиевой/бумажной пленки | 40 | PUR: 40 | |
| Еловая древесина (строительная) лакированная | 10 | 380 | |
| Плита древесностружечная FR | 12 | 780 | |
| Плита поликарбонатная трехслойная FR | 16 | 175 | |
| Плита гипсовая окрашенная, кашированная бумагой | 13 | 700 | Краска: 145 |
| Обои на гипсовой плите | 13 | Гипс: 700 | Бумага: 200 |
| Стенной ковер из поливинилхлорида на гипсовой плите | 13 | Гипс: 700 | PVC: 1500 |
| Сталь листовая с синтетическим покрытием на минеральной вате | 0,15 + 1 + 50 | Вата: 160 | |
| Строительная древесина (ель) нелакированная | 10 | 450 | |
| Гипсовая плита на полистироле EPS | 13 + 100 | EPS: 20 | |
| Пенофенол | 40 | | |
| Интумицирующая краска на древесностружечной плите | 12 | 700 | Краска: 500 |
| Плита МДФ с меламиновым покрытием | 12 | МДФ: 750 | Меламин: 120 |
| Водопроводная поливинилхлоридная труба  | 2 | | |
| Электрический кабель с покрытием из поливинилхлорида | | | |
| Каменная вата некашированная | 50 | 145 | |
| Древесностружечная плита с меламиновым покрытием | 12 | 680 | |
| Листовая сталь на полистироле EPS | 0,5 + 100 | EPS: 20 | |
| Обычная древесностружечная плита | 12 | 700 | |
| Обычная клееная фанера (береза) | 12 | 650 | |
| Обои на древесностружечной плите | 12 | | Бумага: 200 |
| Древесностружечная плита МДФ (1) | 12 | 700 | |
| Древесностружечная плита с малой плотностью | 12 | 250 | |
| Гипсовая плита на полиуретане (PUR) FR | 13 + 87 | PUR: 38 | |
| Крашеная звукопоглощающая плита из минерального волокна | 18 | Волокно: 220 | |
| Текстильные обои на плите CaSi (силикатная) | 10 | CaSi: 875 | Текстиль: 400 |
| Оклеенная бумагой стекловата | 100 | 18 | 90 |
Статистический анализ проведен согласно
[1] и
[2] для постоянных параметров (
FIGRA0,2 МДж,
FIGRA0,4 МДж,
THR600 с,
SMOGRA и
TSP600 с). Анализ данных по качественным параметрам, результат определения которых сводится к утверждению "да" или "нет", не проводился.
B.2 Обработка результатов испытаний
Постоянные параметры были рассчитаны на основе данных испытаний с использованием расчетов, указанных в
приложении A. Но поскольку частично методика испытаний и метод расчета в серии испытаний были усовершенствованы, то часть данных не соответствовала требованиям, указанным в
приложении A. Поэтому проведенные расчеты основаны на методе, описанном в
приложении A, за исключением отклонений, указанных в
a) -
f). Из-за отклонений получен более широкий набор данных для статистического анализа. Можно предположить, что точность процедуры оценки на основе более широкого набора данных относительно недостаточна.
a) Контроль термопар: межлабораторные сравнительные испытания проводили с применением двух строго предписанных и различных термопар вместо трех. Требование к двум термопарам состояло в том, чтобы отклонение от средней температуры составляло не более 2% для максимально 20 замеров.
b) Синхронизация: для испытаний, при которых не выполнялись требования синхронизации, синхронизацию продлили до t = 420 с, снизив предельные значения: для понижения температуры - 1,5 К, для повышения содержания O2 - 0,03% и для понижения содержания CO2 - 0,012%.
c) Время отклика на переключение горелок: не учитывали результаты определения индексов FIGRA или SMOGRA в течение первой минуты и при времени отклика на переключение горелок более 15 с.
d) Измерение плотности дыма: не учитывали испытания, при которых световой сигнал возвращался менее чем на 90%.
e) Прочие требования: другие требования, несоблюдение которых могло вести к непризнанию результатов испытаний, не применяли, например возврат показаний анализаторов O2 и CO2 к начальному значению.
f) Продолжительность испытаний: в связи с меньшей продолжительностью испытаний расчеты проводили на основе значений, измеренных до момента времени
t = 1470 с.
B.3 Статистический анализ
Расчет и статистический анализ основаны только на алгоритмах. Это означает, что отказ от учета выбросов основан на числовом методе согласно 7.3.2 по
[2]. Тест Кохрена повторяют максимально 4 раза, в то время как стандарт рекомендует повторять максимально 2 раза. При четырехкратном повторе не были учтены результаты определения
SMOGRA несколькими лабораториями.
B.4 Статистические результаты
Средние результаты (
m) и стандартные отклонения в условиях повторяемости (
sr) и воспроизводимости (
sR) приведены в
таблице B.3 для каждого параметра и для всех 30 испытанных материалов.
Кроме того, вычислены средние относительные стандартные отклонения
sr/
m и
sR/
m. Хотя с точки зрения статистики это не в полной мере оправдано, тем не менее значения
sr/
m и
sR/
m дают представление о точности метода испытаний. В
таблице B.2 приведены значения
sr/
m и
sR/
m, за исключением тех, для которых среднее значение параметра слишком мало <1>.
--------------------------------
<1> При вычислении sr/m и sR/m не учитывали значения параметров, составляющие 50% или менее самого низкого предельного значения по классификации для евроклассов A2 - E (т.е. FIGRA0,2 МДж <= 60 Вт/с, THR600 с <= 3,75 МДж, SMOGRA <= 15 м2/с и TSP600 с <= 25 м2).
Таблица B.2
Средние относительные стандартные отклонения
| FIGRA0,2 МДж | FIGRA0,4 МДж | THR600 с | SMOGRA | TSP600 с |
Среднее значение (sr/m) | 14% | 15% | 11% | 15% | 18% |
Среднее значение (sR/m) | 23% | 25% | 21% | 40% | 44% |
Таблица B.3
Статистический параметр | FIGRA0,2 МДж, Вт/с |
|
| | | | | | | | | | | | | | |
Число лабораторий | 14 | 14 | 15 | 14 | 13 | 14 | 14 | 14 | 15 | 13 | 15 | 14 | 12 | 15 | 15 |
Среднее значение (m) | 21 | 81 | 1375 | 1869 | 681 | 25 | 1028 | 16 | 202 | 380 | 78 | 440 | 9 | 82 | 16 |
Число результатов | 41 | 40 | 41 | 41 | 38 | 42 | 40 | 39 | 40 | 38 | 44 | 41 | 35 | 45 | 45 |
sr | 19 | 14 | 174 | 229 | 64 | 3 | 474 | 17 | 28 | 34 | 24 | 47 | 18 | 14 | 14 |
sR | 23 | 20 | 753 | 229 | 96 | 11 | 963 | 20 | 30 | 51 | 27 | 79 | 20 | 22 | 14 |
sr/m | 89 | 18 | 13 | 12 | 9 | 14 | 46 | 102 | 14 | 9 | 30 | 11 | 210 | 17 | 84 |
sR/m | 106 | 25 | 55 | 12 | 14 | 43 | 94 | 122 | 15 | 13 | 35 | 18 | 228 | 27 | 84 |
Продолжение таблицы B.3
Статистический параметр | FIGRA0,2 МДж, Вт/с |
|
| | | | | | | | | | | | | | |
Число лабораторий | 15 | 14 | 14 | 10 | 14 | 12 | 14 | 14 | 13 | 12 | 13 | 15 | 10 | 13 | 14 |
Среднее значение (m) | 601 | 92 | 435 | 1 | 381 | 21 | 404 | 399 | 479 | 436 | 1103 | 17 | 0 | 162 | 4073 |
Число результатов | 42 | 40 | 39 | 30 | 39 | 30 | 40 | 42 | 39 | 36 | 35 | 38 | 29 | 38 | 42 |
sr | 66 | 14 | 42 | 1 | 30 | 17 | 26 | 38 | 40 | 24 | 93 | 16 | 0 | 22 | 456 |
sR | 83 | 20 | 133 | 2 | 50 | 26 | 49 | 58 | 58 | 35 | 196 | 19 | 0 | 29 | 679 |
sr/m | 11 | 16 | 10 | 200 | 8 | 84 | 7 | 10 | 8 | 6 | 8 | 92 | - | 13 | 11 |
sR/m | 14 | 22 | 31 | 269 | 13 | 127 | 12 | 14 | 12 | 8 | 18 | 108 | - | 18 | 17 |
Продолжение таблицы B.3
Статистический параметр | FIGRA0,4 МДж, Вт/с |
|
| | | | | | | | | | | | | | |
Число лабораторий | 13 | 14 | 15 | 14 | 13 | 14 | 14 | 14 | 15 | 13 | 13 | 14 | 8 | 14 | 15 |
Среднее значение (m) | 8 | 73 | 1375 | 1869 | 681 | 21 | 1027 | 6 | 154 | 374 | 33 | 440 | 0 | 49 | 14 |
Число результатов | 38 | 40 | 41 | 41 | 38 | 42 | 40 | 38 | 43 | 38 | 38 | 41 | 23 | 42 | 45 |
sr | 9 | 12 | 174 | 229 | 64 | 3 | 475 | 7 | 31 | 36 | 11 | 47 | 0 | 8 | 7 |
sR | 12 | 21 | 753 | 229 | 96 | 9 | 964 | 9 | 34 | 53 | 11 | 79 | 0 | 13 | 7 |
sr/m | 121 | 17 | 13 | 12 | 9 | 16 | 46 | 110 | 20 | 9 | 33 | 11 | - | 16 | 52 |
sR/m | 148 | 29 | 55 | 12 | 14 | 43 | 94 | 143 | 22 | 14 | 33 | 18 | - | 26 | 54 |
Продолжение таблицы B.3
Статистический параметр | FIGRA0,4 МДж, Вт/с |
|
| | | | | | | | | | | | | | |
Число лабораторий | 15 | 14 | 14 | 14 | 14 | 11 | 14 | 14 | 13 | 12 | 13 | 15 | 13 | 14 | 13 |
Среднее значение (m) | 601 | 92 | 435 | 3 | 381 | 11 | 404 | 399 | 479 | 436 | 1103 | 6 | 1 | 108 | 3923 |
Число результатов | 42 | 40 | 39 | 42 | 39 | 27 | 40 | 42 | 39 | 36 | 35 | 38 | 37 | 40 | 39 |
sr | 66 | 15 | 42 | 4 | 30 | 13 | 26 | 38 | 40 | 24 | 93 | 5 | 4 | 34 | 309 |
sR | 83 | 21 | 133 | 6 | 50 | 17 | 49 | 58 | 58 | 35 | 196 | 7 | 4 | 39 | 630 |
sr/m | 11 | 16 | 10 | 134 | 8 | 115 | 7 | 10 | 8 | 6 | 8 | 81 | 439 | 32 | 8 |
sR/m | 14 | 23 | 31 | 181 | 13 | 152 | 12 | 14 | 12 | 8 | 18 | 114 | 439 | 36 | 16 |
Продолжение таблицы B.3
Статистический параметр | THR600 с, МДж |
|
| | | | | | | | | | | | | | |
Число лабораторий | 15 | 14 | 15 | 13 | 14 | 15 | 14 | 14 | 15 | 14 | 15 | 13 | 14 | 15 | 15 |
Среднее значение (m) | 1,0 | 5,9 | 40,5 | 28,6 | 15,1 | 2,3 | 17,2 | 0,8 | 1,4 | 6,5 | 1,2 | 15,7 | 0,8 | 3,2 | 1,9 |
Число результатов | 44 | 41 | 42 | 38 | 42 | 45 | 41 | 42 | 44 | 41 | 45 | 39 | 41 | 45 | 45 |
sr | 0 | 2 | 7 | 1 | 1 | 0 | 3 | 0 | 0 | 0 | 0 | 1 | 0 | 0 | 1 |
sR | 1 | 2 | 17 | 4 | 2 | 1 | 12 | 0 | 0 | 1 | 1 | 2 | 1 | 1 | 1 |
sr/m | 38 | 35 | 18 | 5 | 9 | 10 | 19 | 33 | 27 | 7 | 36 | 8 | 51 | 9 | 50 |
sR/m | 61 | 35 | 41 | 13 | 11 | 33 | 70 | 51 | 34 | 17 | 48 | 13 | 69 | 17 | 58 |
Продолжение таблицы B.3
Статистический параметр | THR600 с, МДж |
|
| | | | | | | | | | | | | | |
Число лабораторий | 15 | 14 | 13 | 15 | 14 | 13 | 13 | 15 | 12 | 12 | 12 | 15 | 15 | 13 | 14 |
Среднее значение (m) | 24,0 | 9,4 | 45,4 | 0,7 | 20,1 | 1,3 | 26,9 | 21,7 | 26,7 | 3,4 | 39,7 | 0,7 | 0,7 | 1,9 | 6,7 |
Число результатов | 43 | 41 | 36 | 45 | 39 | 36 | 37 | 45 | 36 | 36 | 34 | 43 | 43 | 37 | 42 |
sr | 2 | 3 | 2 | 0 | 2 | 2 | 1 | 2 | 1 | 1 | 3 | 1 | 0 | 0 | 1 |
sR | 2 | 4 | 10 | 1 | 2 | 2 | 2 | 4 | 2 | 2 | 5 | 1 | 0 | 0 | 1 |
sr/m | 7 | 35 | 5 | 58 | 10 | 151 | 4 | 9 | 5 | 4 | 7 | 72 | 38 | 22 | 8 |
sR/m | 9 | 39 | 23 | 95 | 11 | 151 | 8 | 18 | 7 | 6 | 13 | 72 | 47 | 22 | 13 |
Продолжение таблицы B.3
Статистический параметр | SMOGRA, м2/с |
|
| | | | | | | | | | | | | | |
Число лабораторий | 10 | 12 | 9 | 11 | 11 | 13 | 11 | 10 | 12 | 13 | 11 | 14 | 9 | 11 | 9 |
Среднее значение (m) | 0 | 120 | 216 | 212 | 2 | 12 | 167 | 0 | 0 | 114 | 67 | 3 | 0 | 1 | 1 |
Число результатов | 28 | 31 | 22 | 29 | 28 | 36 | 28 | 29 | 34 | 36 | 31 | 37 | 25 | 31 | 27 |
sr | 0 | 17 | 21 | 26 | 1 | 1 | 58 | 0 | 0 | 14 | 6 | 1 | 0 | 0 | 1 |
sR | 0 | 32 | 80 | 36 | 2 | 5 | 169 | 0 | 0 | 37 | 19 | 2 | 1 | 1 | 1 |
sr/m | | 14 | 10 | 12 | 38 | 10 | 35 | 272 | 198 | 12 | 9 | 31 | 10 | 46 | 86 |
sR/m | | 27 | 37 | 17 | 90 | 38 | 101 | 381 | 249 | 32 | 29 | 72 | 360 | 143 | 153 |
Продолжение таблицы B.3
Статистический параметр | SMOGRA, м2/с |
|
| | | | | | | | | | | | | | |
Число лабораторий | 12 | 11 | 6 | 11 | 9 | 12 | 11 | 12 | 8 | 8 | 9 | 12 | 10 | 8 | 14 |
Среднее значение (m) | 1 | 224 | 109 | 0 | 2 | 5 | 3 | 1 | 2 | 1 | 9 | 0 | 0 | 0 | 3 |
Число результатов | 27 | 27 | 14 | 33 | 25 | 27 | 25 | 36 | 17 | 20 | 21 | 35 | 29 | 22 | 41 |
sr | 1 | 21 | 17 | 0 | 0 | 2 | 1 | 1 | 0 | 1 | 6 | 0 | 0 | 0 | 3 |
sR | 1 | 55 | 61 | 0 | 2 | 5 | 2 | 1 | 2 | 1 | 7 | 1 | 0 | 0 | 5 |
sr/m | 73 | 9 | 16 | | 14 | 36 | 42 | 80 | 10 | 72 | 68 | 79 | | | 108 |
sR/m | 118 | 25 | 56 | | 64 | 102 | 63 | 110 | 97 | 102 | 71 | 131 | | | 155 |
Окончание таблицы B.3
Статистический параметр | TSP600 с, м2 |
|
| | | | | | | | | | | | | | |
Число лабораторий | 14 | 12 | 9 | 11 | 12 | 12 | 11 | 14 | 15 | 15 | 11 | 14 | 13 | 13 | 14 |
Среднее значение (m) | 29 | 937 | 1057 | 410 | 45 | 101 | 531 | 29 | 30 | 164 | 108 | 47 | 34 | 43 | 55 |
Число результатов | 40 | 32 | 23 | 29 | 30 | 34 | 29 | 41 | 44 | 42 | 31 | 38 | 34 | 37 | 41 |
sr | 3 | 163 | 208 | 38 | 8 | 5 | 94 | 5 | 5 | 16 | 13 | 10 | 8 | 6 | 5 |
sR | 12 | 198 | 474 | 60 | 22 | 28 | 412 | 17 | 16 | 47 | 33 | 22 | 22 | 22 | 24 |
sr/m | 12 | 17 | 20 | 9 | 18 | 5 | 18 | 17 | 17 | 10 | 12 | 20 | 22 | 14 | 10 |
sR/m | 41 | 21 | 45 | 15 | 50 | 28 | 78 | 59 | 53 | 28 | 30 | 46 | 64 | 52 | 44 |
Окончание таблицы B.3
Статистический параметр | TSP600 с, м2 |
|
| | | | | | | | | | | | | | |
Число лабораторий | 12 | 12 | 6 | 12 | 11 | 12 | 10 | 12 | 8 | 9 | 9 | 13 | 15 | 12 | 14 |
Среднее значение (m) | 24 | 1629 | 458 | 26 | 39 | 44 | 29 | 19 | 18 | 20 | 79 | 30 | 31 | 31 | 43 |
Число результатов | 27 | 29 | 14 | 36 | 31 | 26 | 22 | 36 | 19 | 22 | 21 | 38 | 44 | 34 | 41 |
sr | 7 | 289 | 49 | 3 | 8 | 11 | 8 | 4 | 7 | 10 | 39 | 5 | 7 | 6 | 10 |
sR | 16 | 391 | 122 | 10 | 17 | 20 | 19 | 12 | 18 | 15 | 57 | 12 | 12 | 15 | 22 |
sr/m | 30 | 18 | 11 | 13 | 20 | 25 | 27 | 23 | 36 | 48 | 49 | 17 | 22 | 20 | 24 |
sR/m | 68 | 24 | 27 | 38 | 42 | 45 | 65 | 66 | 99 | 77 | 71 | 41 | 37 | 47 | 51 |
(обязательное)
C.1 Методы, применяемые для отдельных приборов
C.1.1 Общие положения
Градуировку и техническое обслуживание приборов выполняют согласно указаниям изготовителя.
Концентрации газов в процентах представляют как

и, соответственно,

. При этом

и

- объемы O
2 и CO
2 соответственно в объеме воздуха
Vвоздух.
C.1.2 Настройка анализатора кислорода
Каждый день, когда проводят испытания, анализатор кислорода подвергают настройке нулевого показания и диапазона измерения. Диапазон измерений должен находиться внутри диапазона, выраженного в объемных процентах кислорода в воздухе, установленного при градуировке с применением градуировочных газов. Границы диапазона измерений и градуировочного диапазона должны отстоять на 0,04%. Для сухого воздуха окружающей среды показание анализатора должно составлять (20,95 +/- 0,01)%. Один из возможных способов настройки описан в
D.1.2.
C.1.3 Рассеяние и дрейф выходного сигнала анализатора кислорода
C.1.3.1 Общие положения
Контроль рассеяния и дрейфа выходного сигнала анализатора кислорода при использовании системы сбора и обработки данных проводят после ввода в эксплуатацию, технического обслуживания, ремонта и замены анализатора кислорода или других важных компонентов системы анализа газа, но не реже чем каждые 6 мес.
C.1.3.2 Процедура
Применяют следующую процедуру контроля рассеяния и дрейфа выходного сигнала анализатора кислорода.
a) В анализатор кислорода подают газообразный азот, не содержащий кислорода, и продувают до достижения анализатором стабильного состояния.
b) Не ранее чем через 60 мин продувки азотом, не содержащим кислорода, переключают анализатор на воздух, проходящий через вытяжную трубу, предварительно установив расход воздуха (0,60 +/- 0,05) м3/с. При этом должны быть обеспечены все условия анализа: скорость газового потока, давление, процедура высушивания газа. После достижения анализатором стабильного состояния регулируют выходной сигнал анализатора, который должен составлять (20,95 +/- 0,01)%.
c) В течение 1 мин запускают систему сбора и обработки данных для регистрации выходного сигнала анализатора кислорода в течение 30 мин с интервалом 3 с.
d) Методом суммы наименьших квадратов определяют коэффициенты линейной зависимости выходного сигнала анализатора и отображают эту зависимость графически. Абсолютное значение разницы между сигналами при 0 мин и 30 мин на данной прямой представляет собой дрейф выходного сигнала анализатора кислорода.
e) Рассеяние выходного сигнала определяют расчетом среднего стандартного отклонения (RMS) измеренных данных, лежащих по обе стороны от построенной прямой линии.
C.1.3.3 Критерии
Дрейф и рассеяние (при положительном значении обоих показателей) не должны превышать 0,01%

.
C.1.3.4 Отчет о градуировке
Отчет о градуировке должен содержать следующие данные:
a) кривая объемных концентраций O
2(
t), т.е. значений

в процентах;
b) значения рассеяния и дрейфа, рассчитанные в соответствии с
C.1.3.2, d) и
C.1.3.2, e), в процентах объемной концентрации

.
C.1.4 Регулировка анализатора диоксида углерода
Каждый день, когда проводят испытания, анализатор диоксида углерода подвергают настройке нулевого показания и диапазона измерения. Диапазон измерений должен находиться в пределах диапазона, установленного при градуировке, отступая от границ градуировочного диапазона на 0,1%

. Выходной сигнал анализатора при продувке азотом, не содержащим диоксид углерода, должен составлять (0,00 +/- 0,02)%. Один из возможных способов настройки описан в
D.1.3.
C.1.5 Проверка регулятора массового расхода пропана
Погрешность регулирования массового расхода пропана должна быть лучше +/- 6 мг/с при массовом расходе (647 +/- 10) мг/с (скорость, применяемая при испытаниях). Данный контроль проводят не реже чем через каждые 6 мес. Применяемый метод контроля описан в
D.1.4.
C.1.6 Градуировка системы оптических измерений
C.1.6.1 Общие положения
Градуировку системы оптических измерений проводят после ее установки, проведения мероприятий по техническому обслуживанию, ремонта или замены устройства для крепления системы измерения дыма или других важных деталей вытяжной системы, но как минимум каждые 6 мес при регулярном проведении испытаний. Процесс градуировки состоит из двух частей: контроля стабильности выходного сигнала и контроля с помощью оптических фильтров.
C.1.6.2 Контроль стабильности
Контроль стабильности проводят поэтапно с применением готового к работе измерительного оборудования и тележки для образцов (без образцов, но с установленными задними закрывающими плитами) в раме под вытяжным зонтом.
a) Устанавливают в вытяжной системе объемный расход воздуха
V298 = (0,60 +/- 0,05) м
3/с [рассчитывают согласно
A.5.1.1, a)].
b) Начинают отсчет времени и фиксируют сигнал светоприемника в течение 30 мин.
c) Методом суммы наименьших квадратов определяют коэффициенты линейной зависимости сигнала светоприемника, чтобы провести прямую через точки измерения. Абсолютное значение разницы между сигналами при 0 мин и 30 мин на данной прямой представляет собой дрейф выходного сигнала системы оптических измерений.
d) Рассеяние выходного сигнала определяют расчетом среднего стандартного отклонения (RMS) измеренных данных, лежащих по обе стороны от построенной прямой линии.
Критерий подтверждения стабильности: и рассеяние, и дрейф выходного сигнала должны быть менее 0,5% от начального выходного сигнала.
C.1.6.3 Контроль с помощью оптических фильтров
Градуировку фотометрического измерительного участка проводят с применением не менее пяти нейтральных фильтров с оптической плотностью в диапазоне от 0,05 до 2,00. Оптическая плотность, рассчитанная по измеренному сигналу светоприемника, должна быть в пределах +/- 5% или +/- 0,01 от указанной оптической плотности фильтров, причем за установленную погрешность измерений оптической системы принимают ту, при которой получено наибольшее отклонение. Один из возможных способов градуировки описан в
D.1.5. Нейтральные фильтры, используемые для градуировки, должны иметь равномерно распределенную мутность. Использование фильтров с покрытием не допускается.
C.2 Градуировка системы по времени срабатывания
C.2.1 Время срабатывания переключателя горелок
Время срабатывания переключателя горелок представляет собой разницу между tup и tdown, которые определяют следующим образом:
- tup - момент регистрации данных, когда впервые после t = 270 с зафиксирована концентрация кислорода, превышающая уровень "90%-ной мощности горелки";
- tdown - момент регистрации данных, предшествующий тому, при котором впервые зафиксировано снижение концентрации кислорода до уровня менее "90%-ной мощности горелки".

(C.1)

(C.2)
где xO2(t) - концентрация кислорода, мольные доли.
Должно соблюдаться следующее требование:
tdown - tup <= 12 с. (C.3)
Примечания
1 Данные должны быть приведены к t = 300 с. Время tup равно 300 с или 303 с, поэтому tdown никогда не может быть более чем t = 315 с. Следование этому критерию является важным моментом для правильного определения значений параметров FIGRA и SMOGRA.
2 В короткий промежуток времени при переключении со вспомогательной горелки на основную горелку (во время
t ~= 300 с) суммарное тепловыделение обеих горелок ниже, чем тепловыделение одной нормально работающей горелки. Из этого следует, что интенсивность тепловыделения принимает кратковременно минимальное значение, а концентрация кислорода в тот же короткий промежуток времени принимает максимальное значение (см.
рисунок C.1). Кратковременное максимальное значение
xO
2 превышает на величину приблизительно от 25% до 50% средний уровень мощности горелки. Ширина этого пика должна быть небольшой, потому что это "отсутствующее" тепловыделение должно быть вычтено из тепловыделения образца, как описано ниже. Ширину этого пика измеряют на уровне 90% средней интенсивности тепловыделения горелки и называют временем срабатывания переключателя горелок. В примере на
рисунке C.1 время срабатывания переключателя горелок составляет 9 с.
3 Уровень 90%-ной мощности горелки вычисляют как 90% разности между уровнем в начале испытания и уровнем в течение базового времени. Концентрация кислорода в начале испытания - это средняя концентрация кислорода перед зажиганием горелки (30 с <= t <= 90 с). Базовая концентрация кислорода - это средняя концентрация кислорода во время работы вспомогательной горелки (210 с <= t <= 270 с).
4 Важными событиями являются:
1) Включение вспомогательной горелки при t ~= 120 с;
2) Переключение со вспомогательной горелки на основную горелку при t ~= 300 с.
Интервал времени вокруг
t ~= 300 с изображен на
рисунке C.1, b в увеличенном виде. Вычисленное время срабатывания переключателя горелок составляет 9 с.
1 - уровень в начале испытания; 2 - уровень "90%-ной
мощности горелки"; 3 - базовый уровень; 4 - концентрация
кислорода, %; 5 - время, с; 6 - tup; 7 - tdown
Рисунок C.1 - Концентрация кислорода во время первой
фазы испытания
C.2.2 Градуировка пошаговым изменением мощности горелки
C.2.2.1 Общие положения
В этом методе градуировки используют основную горелку при трех различных уровнях тепловыделения. Метод используют для определения времени отклика и запаздывания анализаторов газа, времени срабатывания переключателя горелок, термопар, а также коэффициента пересчета для вычисления интенсивности тепловыделения. Градуировку настоящим методом следует проводить не реже одного раза в месяц или после 30 испытаний, в зависимости от того, что происходит раньше.
Примечание - Как часть процедуры градуировки проводят определение времени запаздывания газоанализаторов, осуществляя изменение тепловыделения с относительно большим шагом в диапазоне (30 - 60) кВт, что соответствует изменению объемной доли кислорода в воздухе в диапазоне 0,3% - 0,6%. Время запаздывания сигнала зависит от заданных коэффициентов ослабления анализаторов.
Некоторые газоанализаторы используют дополнительный коэффициент ослабления при измерении относительно небольших изменений концентрации газа (обычно, в пределах 100 ppm). Это дополнительное ослабление позволяет устранить влияние дыма, однако диапазон колебаний не должен быть настолько большим, чтобы отрицательно сказаться на времени запаздывания сигнала.
C.2.2.2 Процедура градуировки
Градуировку настоящим методом проводят при работающей системе сбора и обработки данных, используя тележку для образцов (без образцов, но с установленными задними закрывающими плитами) в раме под вытяжным зонтом. При этом последовательно проводят указанные ниже процедуры.
a) Устанавливают объемный расход воздуха в вытяжной трубе
V298 = (0,60 +/- 0,05) м
3/с (как рассчитано согласно
A.5.1.1, a). Объемный расход в течение всей процедуры градуировки должен находиться в диапазоне от 0,65 до 0,50 м
3/с.
b) Регистрируют температуры T1, T2 и T3 в вытяжной трубе и температуру окружающего воздуха в течение, как минимум, 300 с. Температура окружающей среды должна находиться в пределах (20 +/- 10) °C, а температура в вытяжной трубе не должна отличаться от температуры окружающей среды более чем на 4 °C.
c) Записывают условия в начале испытания в протокол испытаний. Фиксируемые данные указаны в
8.3.2.
d) Включают системы отсчета времени и автоматической регистрации измеряемых данных: этот момент времени определяют, как
t = 0 с. Регистрируют каждые 3 с данные:
t,
mгаз,
xO
2,
xCO
2,

и
T0 -
T3 в соответствии с
8.4.
e) Зажигают вспомогательную горелку и устанавливают массовый расход пропана в соответствии с таблицей C.1 в течение первых 5 с каждого этапа.
Таблица C.1
Подача пропана на вспомогательную горелку
Номер этапа | Время, мин | Массовый расход пропана в дополнительной горелке, мг/с |
1 | 0 - 2 | 0 |
| 2 - 5 | 647 +/- 50 |
f) Переключают подачу пропана со вспомогательной горелки на основную и устанавливают массовый расход пропана в соответствии с таблицей C.2 в течение первых 5 с каждого этапа.
Таблица C.2
Подача пропана на основную горелку
Номер этапа | Время, мин | Массовый расход пропана в основной горелке, мг/с |
| 5 - 8 | 647 +/- 50 |
| 8 - 11 | 2000 +/- 100 |
| 11 - 14 | 647 +/- 50 |
| 14 - 17 | 0 |
g) Завершают автоматическую регистрацию данных в конце
этапа 6.
h) Записывают условия в конце испытания. Фиксируемые данные приведены в
8.3.5.
Примечания
1 Интенсивность тепловыделения горелки при указанных массовых расходах пропана составляет примерно 0 кВт, 30 кВт и 93 кВт.
2 При настройке массового расхода газа допускаются отклонения больше, чем при самом испытании, чтобы обеспечить быструю настройку массового расхода.
C.2.2.3 Вычисляемые параметры
Основываясь на не смещенных по времени измеряемых значениях, определяют следующие параметры:
a) для каждого этапа, за исключением
этапа 3:
1) tгаз - время начала этапа как время получения первого измеряемого значения, когда массовый расход пропана изменился на 100 мг/с по сравнению со средним значением последних 2 мин предыдущего этапа;
2) tT - время получения первого измеряемого значения, когда температура Tms изменилась на 2,5 К по сравнению со средним значением последних 2 мин предыдущего этапа;
3)

- время получения первого измеряемого значения, когда концентрация кислорода изменилась на 0,05% по сравнению со средним значением последних 2 мин предыдущего этапа;
4)

- время получения первого измеряемого значения, когда концентрация диоксида углерода изменилась на 0,02% по сравнению со средним значением последних 2 мин предыдущего этапа;
5)

- время, когда в первый раз измеренное значение концентрации кислорода показало изменение на 10%, при сравнении средних значений последних 2 мин предыдущего и текущего этапов;
6)

- аналогично

, но с изменением на 90% вместо 10%;
7)

- время, когда в первый раз измеренное значение концентрации диоксида углерода показало изменение на 10%, при сравнении средних значений последних 2 мин предыдущего и текущего этапов;
8)

- аналогично

, но с изменением на 90% вместо 10%;
9) tT, 10% - время получения измеряемого значения, когда в первый раз температура Tms достигает 10% отклонения при сравнении среднего значения за последние 15 с предыдущего этапа и среднего значения за период от 15 с до 30 с после начала текущего этапа;
10) tT, 75% - аналогично tT, 10%, но с отклонением на 75% вместо 10%;
b) время запаздывания сигнала анализатора кислорода как среднее арифметическое значений

, полученных на
этапах 4,
5 и
6;
c) время запаздывания сигнала анализатора диоксида углерода как среднее арифметическое значений

, полученных на
этапах 4,
5 и
6;
d) время срабатывания анализатора кислорода как среднее арифметическое значений

, полученных на
этапах 4,
5 и
6;
e) время срабатывания анализатора диоксида углерода как среднее арифметическое значений

, полученных на
этапах 4,
5 и
6;
f) время срабатывания переключателя горелок в соответствии с
C.2.1;
g) время срабатывания измерителя температуры как среднее значений
tT, 75% -
tT, 10%, полученных на
этапах 2,
4,
5 и
6;
h)
qгаз(
t) и
qгаз, 30 с(
t) в соответствии с
A.7;
i) средние значения
qгаз(
t) согласно
h), поддерживаемые в течение двух средних минут (начиная с 30 с после очередного изменения расхода пропана)
этапов 2,
3 и
5 (
qгаз, этап 2,
qгаз, этап 3,
qгаз, этап 5).
Смещают измеренные значения O2 и CO2 назад по времени, в соответствии с полученными значениями времени запаздывания анализатора, и рассчитывают следующие параметры:
j)
HRR(
t) или, что то же самое
HRRобщ(
t) согласно
A.5.1.1, но с использованием
E = 16 800 кДж/м
3 (значение для пропана);
k)
HRR30 с(
t) согласно
A.5.1.4 с использованием
HRR(
t) согласно
j);
l) средние значения
HRR(
t) согласно
k), поддерживаемые в течение двух средних минут
этапов 2,
3 и
5 (
HRRэтап 2,
HRRэтап 3 и
HRRэтап 5);
m) коэффициент профиля потока kt,q газ, скорректированный с учетом теплоты сгорания пропана, вычисляют по формуле
| | ИС МЕГАНОРМ: примечание. Формула дана в соответствии с официальным текстом документа. | |

(C.4)
где
kt' - коэффициент профиля потока, используемый при расчете
HRR согласно
j);
HRRэтап x - интенсивность тепловыделения газовой горелки на этапе
x согласно
l), кВт;
qгаз, этап x - общее тепловыделение при горении пропана на этапе
x согласно
i), кВт.
Примечания
1 Время задержки и срабатывания анализаторов на
этапе 2 используют для контроля. Разница времени задержки на
этапах 4,
5 и
6 может означать дополнительные временные задержки в системе подачи пропана.
2 Время срабатывания при измерении температуры рассчитывают для контроля термопар на функционирование и отложение сажи. Время срабатывания термопар включает влияние термической инерции трубопровода как целого.
C.2.2.4 Критерии оценки
Должны выполняться следующие требования:
a) время запаздывания сигналов обоих анализаторов не должно превышать 30 с;
b) время срабатывания обоих анализаторов не должно превышать 12 с;
c) время срабатывания переключателя горелок не должно превышать 12 с;
d) время срабатывания термоэлементов (термопар) не должно превышать 6 с;
| | ИС МЕГАНОРМ: примечание. В официальном тексте документа, видимо, допущена опечатка: пункт A.3.4 отсутствует. | |
e) срабатывание измерительных приборов должно соответствовать требованиям по
A.3.3 и A.3.4; конечные значения по
A.3.3 и A.3.4 определяют, как средние значения за последние 30 с
этапа 6;
f) отношение
qгаз, 30 с(
t) к
HRR30 с(
t) в интервалах от 40 с до 160 с после начала
этапов 2,
3,
4 и
5 должно составлять (100 +/- 5)%. Как начало
этапов 2,
4 и
5 используют
tT, как начало
этапа 3 используют
t = 300 с;
g) средние значения
HRRэтап 2 и
HRRэтап 3 по
C.2.2.3 не должны отличаться друг от друга более чем на 0,5 кВт.
C.2.2.5 Отчет о градуировке
Отчет о градуировке должен содержать следующую информацию:
a) графическое изображение соотношений qгаз(t)/HRR(t) и;
b) максимальные и минимальные значения соотношения
qгаз, 30 с(
t)/
HRR30 с(
t) для каждого из четырех интервалов согласно
C.2.2.4, f);
c) время запаздывания и время срабатывания двух анализаторов;
d) время срабатывания переключателя горелки;
e) время срабатывания температурных датчиков;
f) значения
qгаз, этап x и
HRRэтап x для
этапов 2,
3 и
5;
g) значение kt, применяемое для вычисления HRR(t);
h) значение kt,q газ.
C.2.3 Градуировка с применением гептана
C.2.3.1 Общие положения
Градуировку проводят перед проведением испытаний после наладки, технического обслуживания, ремонта или замены крепления измерительной системы или других важных деталей вытяжной системы, но не реже одного раза в год. Измерения проводят с применением:
a) круглой открытой топливной ванны из стали с внутренним диаметром (350 +/- 5) мм, внутренней перегородкой высотой 152 мм и толщиной 3 мм;
b) гептана (степень чистоты более 99%).
C.2.3.2 Процедура градуировки
Выполняют перечисленные ниже процедуры с применением готового к работе измерительного оборудования и тележки для образцов (без образцов, но с установленными задними закрывающими плитами) в раме под вытяжным зонтом.
a) Устанавливают в вытяжной системе объемный расход воздуха
V298 = (0,60 +/- 0,05) м
3/с (рассчитывают согласно
A.5.1.1, a). Объемный расход в течение всего процесса градуировки должен находиться в диапазоне от 0,65 до 0,50 м
3/с.
b) Фиксируют температуру окружающей среды T0 и температуры T1, T2 и T3 в вытяжной трубе в течение не менее 300 с. Измеряют температуру поверхности ванны для горючего материала. Температура окружающей среды должна составлять (20 +/- 10) °C. Температуры, измеренные в вытяжной трубе, и температура поверхности ванны не должны отличаться более чем на 4 °C от температуры окружающей среды.
c) Топливную ванну устанавливают на стандартную кальций-силикатную плиту размером 400 x 400 мм над платформой тележки для образцов. Опоры высотой 100 мм поднимают кальций-силикатную плиту над трубопроводом, проходящим диагонально над опорной плитой тележки для образцов. Ванну устанавливают таким образом, чтобы расстояние между внутренним углом держателя образца и боковой стенкой ванны составляло 500 мм. Если ванна установлена правильно, то расстояние от боковой стенки ванны до задней и боковой стенки составляет не менее 300 мм.
d) Наполняют топливную ванну водой в количестве (2000 +/- 10) г.
e) Записывают в протокол испытаний условия перед испытанием. Фиксируемые данные перечислены в
8.3.2.
f) Включают системы отсчета времени и автоматической регистрации измеряемых данных: этот момент времени определяют как
t = 0 с. Регистрируют каждые 3 с следующие данные:
t,
mгаз,
xO
2,
xCO
2,

,
T0 -
T3 и сигнал светоприемника согласно
8.4.
g) По истечении не менее 2 мин в топливную ванну с водой осторожно наливают (2840 +/- 10) г гептана.
h) По прошествии не менее одной минуты зажигают гептан (t1).
i) По окончании горения регистрацию значений измеряемых параметров продолжают еще в течение 5 мин, после чего регистрацию прекращают (t2).
j) Записывают условия в конце испытания. Фиксируемые данные приведены в
8.3.5.
C.2.3.3 Вычисляемые параметры
Рассчитывают следующие параметры:
a) суммарный выход дымового газа
TSP в соответствии с
A.6 в промежутке времени от
t1 до
t2. Затем
TSP делят на массу израсходованного горючего материала
m;
b) общее количество выделенного тепла
THR в соответствии с
A.5 в промежутке времени от
t1 до
t2. Расчет общего тепловыделения (см.
A.5.1.1) проводят с использованием значения
E = 16 500 кДж/м
3 (значение для гептана). Затем
THR делят на массу израсходованного горючего материала
m;
c) коэффициент профиля потока, скорректированный на теплосодержание гептана, kt,q гептан, определяют по формуле

(C.5)
где
kt' - коэффициент профиля потока, используемый для расчета
THR согласно
b);
THR - общее тепловыделение гептана в соответствии с
b), МДж/кг;
Y - теплота сгорания гептана, равная 44,56 МДж/кг.
C.2.3.4 Требования
Должны быть выполнены следующие требования:
a) отношение THR/m, МДж/кг, должно составлять 44,56 МДж/кг с отклонением не более +/- 5%;
b) в момент времени t2 сигнал светоприемника должен находиться в пределах 1% от своего начального значения [т.е. в диапазоне от 99% до 101% от I (30 с ... 90 с)];
| | ИС МЕГАНОРМ: примечание. В официальном тексте документа, видимо, допущена опечатка: пункт A.3.4 отсутствует. | |
c) время срабатывания приборов должно соответствовать требованиям
A.3.3 и A.3.4.
Примечание - Отношение TSP/m, м2/кг, может быть использовано для контроля оптического измерительного участка. Значение отношения должно составлять (125 +/- 25) м2/кг.
C.2.3.5 Отчет о градуировке
Отчет о градуировке должен содержать следующую информацию:
a) графики кривых SPR(t) и HRR(t);
b) отношения TSP/m и THR/m;
c) значение kt, применяемое для вычисления HRR(t) и kt,q гептан.
C.2.4 Коэффициент профиля скорости kt,v
C.2.4.1 Общие положения
Коэффициент профиля скорости kt,v измеряют после ввода установки в эксплуатацию, технического обслуживания, ремонта или замены двунаправленных зондов или других основных компонентов вытяжной системы, но не реже одного раза в год. Измерения проводят с помощью трубки Пито или термоанемометра.
C.2.4.2 Описание измерения
a) Для получения стабильных показаний измерительные приборы должны работать при достаточном демпфировании.
b) Измерительный зонд после его введения в вытяжную трубу механически закрепляют в требуемом положении, а не удерживают рукой. Контролируют горизонтальное или вертикальное расположение измерительного зонда (требуемое в каждом отдельном случае) и правильный угол к оси трубы.
c) Разъемные отверстия, не используемые анемометром, заглушают.
d) Скорость воздуха измеряют 20 раз в каждой точке измерения: 10 раз при движении измерительного зонда от оси трубы наружу и 10 раз при движении по направлению внутрь к оси трубы.
e) Точки измерения находятся на одном радиусе на следующих расстояниях от внутренней стенки трубы, представленных в виде доли радиуса (по
[3]): 0,038; 0,153; 0,305; 0,434; 0,722 и 1,000 (середина). Точки показаны на
рисунке C.2.
Примечание - Для применяемого диаметра трубы (315 мм) эти точки находятся на следующих расстояниях от оси трубы: 0; 43,7; 89,1; 109,5; 133,4; 151,5 мм.
Размеры в миллиметрах
Рисунок C.2 - Часть вытяжной трубы. Измерительные позиции
для определения скорости воздуха
C.2.4.3 Проведение измерения
Выполняют следующие действия: a) устанавливают объемный расход воздуха в вытяжной трубе
V298 = (0,60 +/- 0,05) м
3/с (рассчитывают в соответствии с
A.5.1.1, a);
b) фиксируют температуры T1, T2 и T3 в вытяжной трубе и температуру окружающей среды в течение не менее 300 с. Температура окружающей среды должна составлять (20 +/- 10) °C, а температура в трубе должна отличаться от температуры окружающей среды не более чем на 4 °C;
c) измеряют скорость воздуха во всех точках измерения: по шесть точек измерения на каждое отверстие для ввода;
d) рассчитывают скорость воздуха во всех точках измерения как среднеарифметическое значение из 20 результатов измерений, определяя таким образом Vc для середины трубы и пять значений Vn для пяти других точек измерения для каждого отверстия.
Примечание - Отсюда следует, что профиль скорости измеряют и рассчитывают как по горизонтали, так и по вертикали по всему диаметру.
C.2.4.4 Расчет значения kt,v
Для радиуса n средняя скорость воздуха выражается параметром vN, являющимся средним значением из четырех измеренных значений vn. Скорость воздуха по оси трубы представляет параметр vC, являющийся средним значением из четырех измеренных значений vC. Тогда коэффициент профиля скорости kt,v вычисляют по формуле
C.2.4.5 Протокол измерения
Протокол измерения должен содержать следующую информацию:
a) профиль скорости воздуха на основании средних значений vn на пяти радиусах и профиль скорости воздуха на основании значений vc, измеренных в каждом отверстии для ввода (профили для вертикального и горизонтального сечений);
b) значения, вычисленные как средние из четырех результатов измерений, для каждого радиуса vn, четыре значения для параметров vc, vN, vC и соответствующее им значение kt,v.
C.2.5 Коэффициент профиля потока kt
| | ИС МЕГАНОРМ: примечание. Текст дан в соответствии с официальным текстом документа. | |
Коэффициент профиля потока
kt, используемый для расчета интенсивности тепловыделения согласно
A.5.1, вычисляют как среднее значение трех параметров:
kt,v,
kt,g газ и
kt,q гептан, по формуле
kt = (kt,v + kt,q газ + kt,q гептан)/3, (C.6)
и при этом должны быть выполнены следующие условия:
|(kt - kt,v)/kt| <= 5%;
| | ИС МЕГАНОРМ: примечание. Формула дана в соответствии с официальным текстом документа. | |
|(kt - kt,g газ)/kt| <= 5%;
|(kt - kt,q гептан)/kt| <= 5%,
где
kt,v - коэффициент профиля скорости, измеренный согласно
C.2.4;
kt,q газ - коэффициент профиля потока пропана, рассчитанный согласно
C.2.2;
kt,q гептан - коэффициент профиля потока гептана, рассчитанный согласно
C.2.3.
Примечание - Изменение каждого kt-значения необходимо тщательно контролировать. Изменения могут служить индикатором необходимости ремонта датчиков в вытяжной трубе и измерительных приборов.
(справочное)
МЕТОДЫ НАСТРОЙКИ АППАРАТУРЫ
D.1 Настройка отдельных частей установки
D.1.1 Общие положения
Настоящий раздел устанавливает методы настройки аппаратуры в соответствии с требованиями, соблюдение которых необходимо для проведения градуировки.
Концентрацию газов в процентах выражают как

и

.
D.1.2 Настройка анализатора кислорода
Настройку анализатора кислорода проводят в указанной ниже последовательности.
a) Для настройки нулевой точки в анализатор подают азот, не содержащий кислород, с такой же скоростью и таким же давлением, как при испытании образцов. После достижения стабильного состояния анализатора устанавливают выходной сигнал, равный (0,00 +/- 0,01)%.
b) Для настройки диапазона измерения используют осушенный окружающий воздух или другой газ, соответствующий техническим условиям, с содержанием кислорода (21,0 +/- 0,1)%. Если для настройки диапазона измерения применяют сухой воздух, то скорость потока воздуха в вытяжной трубе в течение всего процесса настройки должна составлять (0,60 +/- 0,05) м3/с. При использовании другого газа вытяжка дымового газа не требуется. После достижения анализатором стабильного состояния при использовании сухого воздуха выходной сигнал устанавливают равным (20,95 +/- 0,01)%, а при использовании другого газа, соответствующего техническим условиям, - фактическому содержанию кислорода +/- 0,01%.
Примечание - В некоторых анализаторах понятия "нулевая точка" и "диапазон измерения" могут отличаться, например для анализаторов с диапазоном, меньшим чем от 0% до 21%. В этих случаях для градуировки могут быть использованы газы, концентрация кислорода в которых соответствует диапазону измерений анализаторов.
D.1.3 Настройка анализатора диоксида углерода
Настройка анализатора диоксида углерода может быть выполнена следующим способом.
a) Для настройки нулевой точки в анализатор подают азот, не содержащий диоксида углерода, с такой же скоростью и таким же давлением, как при испытании образцов. После достижения стабильного состояния анализатора устанавливают выходной сигнал, равный (0,00 +/- 0,01)%.
b) Для настройки диапазона измерения применяют газ, соответствующий техническим условиям, с содержанием диоксида углерода от 5% до 10%. Газ подают в анализатор с такой же скоростью потока и таким же давлением, как при проведении испытаний. После достижения анализатором стабильного состояния выходной сигнал устанавливают равным фактической концентрации диоксида углерода в газе +/- 0,01%.
D.1.4 Проверка регулятора массового расхода пропана
D.1.4.1 Общие положения
Правильность показаний регулятора расхода пропана может быть проверена с использованием отдельного баллона с пропаном и основной горелки при установке применяемого для стандартных испытаний массового расхода пропана (647 +/- 10) мг/с. Скорость потока газа определяют исходя из начальной и конечной массы газового баллона. Применяют весы или взвешивающее устройство с точностью взвешивания до 5 г или выше.
D.1.4.2 Процедура проверки
a) Газовый баллон устанавливают на взвешивающее устройство и соединяют с системой подачи газа.
b) Испытательное оборудование подготавливают так же, как для стандартной процедуры градуировки, монтируя на тележке задние закрывающие плиты. В основную горелку подают газ со скоростью (647 +/- 10) мг/с, установленной с помощью регулятора расхода пропана, равной скорости потока пропана при стандартных испытаниях.
c) Определяют массу баллона и одновременно начинают отсчет времени.
d) Через (3600 +/- 30) с опять фиксируют массу газового баллона и одновременно прекращают отсчет времени.
e) Вычисляют среднюю скорость потока газа в миллиграммах в секунду, исходя из потери массы баллона.
D.1.4.3 Требование
Средняя скорость потока газа, установленная согласно
b), и средняя скорость, вычисленная согласно
e), должны отличаться друг от друга не более чем на 6 мг/с.
D.1.5 Проверка с применением оптических фильтров
D.1.5.1 Общие положения
Оптическая измерительная система может быть отградуирована с использованием процедуры, описанной ниже.
D.1.5.2 Процедура
Выполняют перечисленные ниже процедуры с применением готового к работе измерительного оборудования и тележки для образцов (без образцов, но с установленными задними закрывающими плитами) в раме под вытяжным зонтом.
a) В держатель фильтров помещают светонепроницаемую вставку и устанавливают показание светоприемника на ноль.
b) Удаляют светонепроницаемую вставку и устанавливают сигнал светоприемника на 100%.
c) Начинают отсчет времени и в течение 2 мин записывают сигнал светоприемника.
d) Вставляют в держатель один из фильтров, имеющих оптическую плотность (d), равную 0,1; 0,3; 0,5; 0,8; 1,0 или 2,0 и регистрируют показания измерительного прибора в течение не менее 1 мин.
e) Процедуру d) повторяют с другими фильтрами.
f) Регистрацию показаний прекращают и рассчитывают средние значения светопропускания для всех фильтров.
D.1.5.3 Требование
Каждое значение d, рассчитанное из среднего значения светопропускания (d = -log I), должно находиться в пределах +/- 5% или +/- 0,01 от теоретического значения d для соответствующего фильтра.
Примечание - Теоретические значения светопропускания для указанных значений d (0,1; 0,3; 0,5; 0,8; 1,0 и 2,0), вычисленные по приведенной формуле, составляют: 79,43%; 50,12%; 31,62%; 15,85%; 10% и 1%.
D.2 Проверка теплового воздействия на образцы
D.2.1 Общие положения
Повторяемость теплового воздействия на образцы контролируют после каждой наладки, технического обслуживания, ремонта или замены основной горелки или других важных компонентов, которые могут оказывать влияние на пламя горелки, путем измерения теплового потока в следующих трех положениях на широком фрагменте образца:
- положение 1 - 8 см от угла и 16 см от верхней кромки горелки;
- положение 2 - 8 см от угла и 75 см от верхней кромки горелки;
- положение 3 - 20 см от угла и 30 см от верхней кромки горелки.
Для регулярной градуировки или после обновления горелки (например, после замены старого песка на новый) достаточно измерения теплового потока в положении 3.
Настоящую проверку проводят с использованием задней закрывающей кальций-силикатной плиты в качестве широкого фрагмента образца (см.
4.4.10), имеющей три отверстия диаметром 26 мм в указанных позициях.
D.2.2 Процедура
Перед розжигом горелки датчик прибора для измерения плотности теплового потока вставляют в одно из отверстий широкой задней закрывающей плиты (узкая закрывающая плита также установлена) и заглушают остальные отверстия.
Примечание - Для измерения плотности теплового потока используют прибор типа "Шмидт-Белтер" (Schmidt-Boelter) с диаметром датчика 25,4 мм, градуированный в диапазоне от 0 до 100 кВт/м2. Прибор должен охлаждаться водой с температурой около 20 °C. Датчик прибора для измерения плотности теплового потока вставляют на такую глубину, чтобы черная поверхность датчика и поверхность закрывающей плиты находились на одном уровне.
При работе испытательного оборудования SBI-метода в нормальном режиме (см.
8.2) регистрируют плотность теплового потока в течение 5 мин после розжига горелки. Затем рассчитывают среднее значение плотности теплового потока из показаний прибора, зарегистрированных в промежутке времени между 240 с и 300 с при работающей горелке.
После наладки, технического обслуживания, ремонта или замены основной горелки или других важных компонентов, которые могут оказывать влияние на пламя горелки, измерение по описанной процедуре повторяют 5 раз. Рассчитывают среднее значение по результатам пяти измерений для каждого положения. Относительное стандартное отклонение должно быть менее 4%.
Для регулярных градуировок (в положении 3) достаточно одного измерения. Если расхождение между полученным результатом и средним значением из результатов пятикратного измерения составляет более 4%, проверяют горелку или другие части испытательного оборудования и проводят пятикратное измерение в каждом из трех положений.
(обязательное)
Размеры в миллиметрах
Рисунок E.1 - Вытяжная система, проекции: два возможных
Размеры в миллиметрах
Позиция | Описание | Количество | Позиция | Описание | Количество |
1 | Труба 80 x 80 x 4/L = 2370 | 2 | 12 | Стальная плита 200 x 70 x 10 | 2 |
2 | Труба 70 x 70 x 5/L = 2370 | 2 | 13 | Стальная плита 170 x 90 x 10 | 2 |
3 | Труба 70 x 70 x 5/L = 1470 | 2 | 16 | Стальная плита 240 x 130 x 5 | 1 |
4 | Труба 40 x 20 x 3/L = 1320 | 2 | 17 | Стальная плита 160 x 90 x 5 | 1 |
5 | Труба 60 x 40 x 4/L = 1320 | 3 | | | |
Рисунок E.2 - Неподвижная рама, сварные детали,
правая сторона
Размеры в миллиметрах
Позиция | Описание | Количество | Позиция | Описание | Количество |
1 | Труба 80 x 40 x 4/L = 2370 | 2 | 6 | Труба 40 x 40 x 3/L = 1320 | 1 |
2 | Труба 70 x 70 x 5/L = 2370 | 2 | 12 | Стальная плита 200 x 70 x 10 | 2 |
3 | Труба 70 x 70 x 5/L = 1470 | 2 | 13 | Стальная плита 170 x 90 x 10 | 2 |
5 | Труба 60 x 40 x 4/L = 1320 | 3 | | | |
Рисунок E.3 - Неподвижная рама, сварные детали,
левая сторона
Размеры в миллиметрах
Позиция | Описание | Количество | Позиция | Описание | Количество |
1 | Труба 80 x 40 x 4/L = 2370 | 2 | 9 | Труба 70 x 70 x 5/L = 1390 | 2 |
2 | Труба 70 x 70 x 5/L = 2370 | 2 | 10 | Труба 40 x 40 x 3/L = 1330 | 1 |
3 | Труба 70 x 70 x 5/L = 1470 | 2 | 11 | Труба 70 x 70 x 5/L = 1330 | 1 |
4 | Труба 40 x 20 x 3/L = 1320 | 2 | 12 | Стальная плита 200 x 70 x 10 | 2 |
5 | Труба 60 x 40 x 4/L = 1320 | 3 | 13 | Стальная плита 170 x 90 x 10 | 2 |
6 | Труба 40 x 40 x 3/L = 1320 | 1 | 16 | Стальная плита 240 x 130 x 5 | 1 |
7 | Труба 70 x 70 x 5/L = 1330 | 2 | 17 | Стальная плита 160 x 90 x 5 | 1 |
8 | Труба 100 x 50 x 5/L = 1330 | 1 | | | |
Рисунок E.4 - Неподвижная рама, сварные детали,
компоновка (a)
Размеры в миллиметрах
Позиция | Описание | Количество | Позиция | Описание | Количество |
1 | Труба 80 x 40 x 4/L = 2370 | 2 | 8 | Труба 100 x 50 x 5/L = 1330 | 1 |
2 | Труба 70 x 70 x 5/L = 2370 | 2 | 9 | Труба 70 x 70 x 5/L = 1390 | 2 |
3 | Труба 70 x 70 x 5/L = 1470 | 2 | 10 | Труба 40 x 40 x 3/L = 1330 | 1 |
4 | Труба 40 x 20 x 3/L = 1320 | 2 | 11 | Труба 70 x 70 x 5/L = 1330 | 1 |
5 | Труба 60 x 40 x 4/L = 1320 | 1 | 12 | Стальная плита 200 x 70 x 10 | 2 |
6 | Труба 40 x 40 x 3/L = 1320 | 1 | 13 | Стальная плита 170 x 90 x 10 | 2 |
7 | Труба 70 x 70 x 5/L = 1330 | 2 | 16 | Стальная плита 240 x 130 x 5 | 1 |
Рисунок E.5 - Неподвижная рама, сварные детали,
компоновка (b)
Размеры в миллиметрах
Позиция | Описание | Количество | Позиция | Описание | Количество |
A | Вид передней стороны (с закрепленными плитами на передней стороне) | | 6 | Труба 40 x 40 x 3/Длина = 1320 | 1 |
7 | Труба 70 x 70 x 5/Длина = 1330 | 2 |
1 | Труба 80 x 40 x 4/Длина = 2370 | 2 | 8 | Труба 100 x 50 x 5/Длина = 1330 | 1 |
3 | Труба 70 x 70 x 5/Длина = 1470 | 2 | 9 | Труба 70 x 70 x 5/Длина = 1390 | 2 |
4 | Труба 40 x 20 x 3/Длина = 1320 | 2 | 12 | Стальная плита 200 x 70 x 10 | 2 |
5 | Труба 60 x 40 x 4/Длина = 1320 | 3 | 18 | Стальная плита 1450 x 260 x 2 | 1 |
Рисунок E.6 - Неподвижная рама, сварные детали,
компоновка (c)
Размеры в миллиметрах
Позиция | Описание | Количество |
1 | Силикат кальция (450 кг/м3) 1375 x 255 x 20 | 1 |
2 | Силикат кальция (450 кг/м3) 1375 x 100 x 20 | 1 |
3 | Силикат кальция (450 кг/м3) 1300 x 70 x 20 | 1 |
4 | Силикат кальция (450 кг/м3) 1375 x 600 x 20 | 1 |
5 | Силикат кальция (450 кг/м3) 1345 x 70 x 20 | 1 |
6 | Силикат кальция (450 кг/м3) 1325 x 90 x 20 | 1 |
7 | Силикат кальция (450 кг/м3) 1320 x 600 x 20 | 1 |
8 | Силикат кальция (450 кг/м3) 1285 x 70 x 20 | 1 |
9 | Силикат кальция (450 кг/м3) 1235 x 90 x 20 | 1 |
11 | Силикат кальция (450 кг/м3) 160 x 90 x 12 | 2 |
12 | Силикат кальция (450 кг/м3) 1095 x 90 x 20 | 2 |
13 | Силикат кальция (450 кг/м3) 1185 x 30 x 20 | 2 |
14 | Силикат кальция (450 кг/м3) 1395 x 795 x 12 | 1 |
15 | Силикат кальция (450 кг/м3) 1395 x 1200 x 12 | 1 |
16 | Силикат кальция (450 кг/м3) 1115 x 18 x 20 | 1 |
Рисунок E.7 - Неподвижная рама, обшивка, компоновка (a)
Размеры в миллиметрах
Позиция | Описание | Количество | Позиция | Описание | Количество | Позиция | Описание | Количество |
1 | Силикат кальция (450 кг/м3) 1375 x 255 x 20 | 1 | 6 | Силикат кальция (450 кг/м3) 1345 x 70 x 20 | 1 | 12 | Силикат кальция (450 кг/м3) 1095 x 90 x 20 | 2 |
2 | Силикат кальция (450 кг/м3) 1375 x 100 x 20 | 1 | 7 | Силикат кальция (450 кг/м3) 1325 x 90 x 20 | 1 | 13 | Силикат кальция (450 кг/м3) 1185 x 30 x 20 | 1 |
3 | Силикат кальция (450 кг/м3) 1300 x 70 x 20 | 1 | 8 | Силикат кальция (450 кг/м3) 1320 x 600 x 20 | 1 | 14 | Силикат кальция (450 кг/м3) 1395 x 795 x 12 | 1 |
4 | Силикат кальция (450 кг/м3) 1300 x 70 x 20 | 1 | 9 | Силикат кальция (450 кг/м3) 1285 x 70 x 20 | 1 | 15 | Силикат кальция (450 кг/м3) 1395 x 1200 x 12 | 1 |
5 | Силикат кальция (450 кг/м3) 1375 x 600 x 20 | 1 | 10 | Силикат кальция (450 кг/м3) 1235 x 90 x 20 | 2 | 16 | Силикат кальция (450 кг/м3) 1115 x 18 x 20 | 1 |
Рисунок E.8 - Неподвижная рама, обшивка, компоновка (b)
Размеры в миллиметрах
Позиция | Описание | Количество | Позиция | Описание | Количество |
A | Песок 2 - 4 мм (недробленый, речной) | | 21 | Перфорированная (50%,  ) стальная плита 249 x 249 x 2 | 1 |
B | Гравий 4 - 8 мм (недробленый, речной) | | 22 | Проволочная сетка (< 2 x  ) 249 x 249 | 2 |
C | Подключение газа | | 23 | Стальная плита  | 1 |
18 | Стальная плита 250 x 80 x 2 | 2 | 24 | Винт М6 x 15 | 3 |
19 | Стальная плита 250 x 80 x 2 | 1 | 25 | Гайка М6 | 6 |
20 | Стальная плита 250 x 250 x 2 | 1 | 26 | Подкладная шайба М6 | 6 |
Рисунок E.9 - Горелка с песчаным слоем
Размеры в миллиметрах
Позиция | Описание | Количество |
17 | Дополнительная горелка | 1 |
27 | Силикат кальция (870 кг/м3) 550 x 370 x 12 | 1 |
Рисунок E.10 - Неподвижная рама, обшивка, сборка
Размеры в миллиметрах
Позиция | Описание | Количество | Позиция | Описание | Количество |
1 | Труба 60 x 60 x 5/L = 1545 | 2 | 6 | Труба 60 x 60 x 5/L = 1210 | 1 |
2 | Труба 60 x 60 x 5/L = 1330 | 1 | 7 | Труба 60 x 60 x 5/L = 216 | 1 |
3 | Труба 60 x 60 x 5/L = 1255 | 1 | 8 | Труба 60 x 60 x 5/L = 276 | 1 |
4 | Труба 60 x 60 x 5/L = 990 | 1 | 9 | Стальная плита 110 x 90 x 10 | 1 |
5 | Труба 60 x 60 x 5/L = 945 | 1 | |
Рисунок E.11 - Тележка для образцов, сварные детали,
нижняя часть
Размеры в миллиметрах
Позиция | Описание | Количество | Позиция | Описание | Количество |
10 | Труба 60 x 40 x 4/L = 1330 | 1 | 13 | Труба 40 x 40 x 4/L = 277 | 1 |
11 | Труба 40 x 40 x 4/L = 1315 | 2 | 14 | Труба 40 x 40 x 4/L = 237 | 1 |
12 | Труба 40 x 40 x 4/L = 1033 | 1 | 15 | Труба 40 x 40 x 4/L = 197 | 1 |
Рисунок E.12 - Тележка для образцов, сварные детали,
верхняя часть в раме
Размеры в миллиметрах
Позиция | Описание | Количество |
16 | Стальная плита 1280 x 1270 x 2 | 1 |
17 | Стальная плита 310 x 200 x 2 | 4 |
Рисунок E.13 - Тележка для образцов, сварные детали,
опорная плита
Размеры в миллиметрах
Позиция | Описание | Количество | Позиция | Описание | Количество |
18 |  / L = 1450 | 1 | 23 | Труба 60 x 40 x 5/L = 1586 | 1 |
19 |  / L = 2126 | 1 | 24 |  / L = 1561 | 1 |
20 |  / L = 2126 | 1 | 25 | Вращающееся колесо/h = 164 | 2 |
21 | Труба 60 x 60 x 5/L = 1586 | 2 | 26 | Стационарное колесо/h = 164 | 2 |
22 | Труба 60 x 40 x 5/L = 1586 | 3 | | | |
Рисунок E.14 - Тележка для образцов, сварные детали,
компоновка (a)
Размеры в миллиметрах
Позиция | Описание | Количество |
19 | Профиль  /Длина = 2126 | 1 |
20 | Профиль  /Длина = 2126 | 1 |
21 | Труба 60 x 60 x 5/Длина = 1586 | 2 |
22 | Труба 60 x 40 x 5/Длина = 1586 | 3 |
23 | Труба 60 x 40 x 5/Длина = 1586 | 1 |
24 | Профиль  /Длина = 1561 | 1 |
Рисунок E.15 - Тележка для образцов, сварные детали,
компоновка (b)
Размеры в миллиметрах
Позиция | Описание | Количество | Позиция | Описание | Количество |
1 | Труба 60 x 60 x 5/L = 1545 | 2 | 6 | Труба 60 x 60 x 5/L =1210 | 1 |
2 | Труба 60 x 60 x 5/L = 1330 | 1 | 7 | Труба 60 x 60 x 5/L = 216 | 2 |
3 | Труба 60 x 60 x 5/L = 1255 | 1 | 8 | Труба 60 x 60 x 5/L = 276 | 2 |
4 | Труба 60 x 60 x 5/L = 990 | 1 | 16 | Стальная плита 1280 x 1270 x 2 | 1 |
5 | Труба 60 x 60 x 5/L = 945 | 1 | 17 | Стальная плита 310 x 200 x 2 | 4 |
Рисунок E.16 - Тележка для образцов, сварные детали,
компоновка (c)
Размеры в миллиметрах
Позиция | Описание | Количество | Позиция | Описание | Количество |
A | Вид спереди (встроенная дверь и лицевая панель) | | 31 | Петля дверная | 2 |
27 |  / L = 1575 | 2 | 32 | Ручка 140 x 25 | 1 |
28 |  / L = 745 | 2 | 33 | Ручка 140 x 25 | 3 |
29 | Стальная плита 1665 x 790 x 2 | 1 | 34 | Замок | 2 |
30 | Стальная плита 1665 x 490 x 2 | 1 | | | |
Рисунок E.17 - Тележка для образцов, сварные детали,
компоновка (d)
Размеры в миллиметрах
Позиция | Описание | Количество | Позиция | Описание | Количество |
1 | Силикат кальция (870 кг/м3) 1330 x 495 x 12 | 1 | 15 | Силикат кальция (450 кг/м3) 80 x 257 x 20 | 1 |
2 | Силикат кальция (870 кг/м3) 1330 x 820 x 12 | 1 | 16 | Силикат кальция (450 кг/м3) 262 x 257 x 20 | 1 |
3 | Силикат кальция (450 кг/м3) 1033 x 990 x 20 | 1 | 17 | Силикат кальция (450 кг/м3) 86 x 257 x 20 | 1 |
| Сварной швеллерный профиль | 1 | 18 | Силикат кальция (450 кг/м3) 527 x 40 x 20 | 1 |
11 | Горелка | 1 | 19 | С-образный профиль 35 x 20/L = 293 | 2 |
12 | Силикат кальция (450 кг/м3) 350 x 293 x 20 | 1 | 20 | С-образный профиль 35 x 20/L = 257 | 2 |
13 | Силикат кальция (450 кг/м3) 460 x 293 x 20 | 1 | 43 |  / L = 60 | 8 |
14 | Силикат кальция (450 кг/м3) 390 x 293 x 20 | 1 | | | |
Рисунок E.18 - Тележка для образцов, обшивка, компоновка (a)
Размеры в миллиметрах
Рисунок E.19 - Тележка для образцов, обшивка,
детали компоновки (a), лист 1
Позиция | Описание | Количество | Позиция | Описание | Количество |
1 | Силикат кальция (870 кг/м3) 1330 x 495 x 12 | 1 | 8 | Стальная плита 250 x 250 x 2 | 1 |
2 | Силикат кальция (870 кг/м3) 1330 x 820 x 12 | 1 | 9 | Стальная плита 30 x 27 x 3 | 4 |
3 | Силикат кальция (450 кг/м3) 1030 x 990 x 20 | 1 | 10 | Сварные швеллерные профили | 1 |
4 | Швеллерные профили 40 x 40 x 3/L = 1075 | 1 | 11 | Горелка | 1 |
5 | Швеллерные профили 40 x 40 x 3/L = 500 | 1 | 45 | Стальная плита 27 x 20 x 2 | 4 |
6 | Стальная плита 354 x 80 x 2 | 1 | 49 | Стальная плита 37 x 34 x 2 | 2 |
7 | Стальная плита 250 x 80 x 2 | 2 | | | |
Рисунок E.19, лист 2
Размеры в миллиметрах
Рисунок E.20 - Тележка для образцов, обшивка,
компоновка (b), лист 1
Позиция | Описание | Количество | Позиция | Описание | Количество |
a) | Вид сверху | | 31 | Силикат кальция (450 кг/м3) 1315 x 52 x 20 | 1 |
19 | Профили 35 x 20/Длина = 293 | 2 | 32 | Силикат кальция (870 кг/м3) 1255 x 40 x 12 | 1 |
20 | Профили 35 x 20/Длина = 257 | 2 | 33 | Силикат кальция (450 кг/м3) 1235 x 52 x 20 | 2 |
21 | Силикат кальция (450 кг/м3) 1555 x 60 x 20 | 2 | 34 | Силикат кальция (870 кг/м3) 1235 x 40 x 12 | 1 |
| Силикат кальция (450 кг/м3) 1605 x 275 x 20 | 1 | 35 | Силикат кальция (870 кг/м3) 1080 x 110 x 20 | 1 |
23 | Силикат кальция (450 кг/м3) 1450 x 60 x 20 | 1 | 36 | Силикат кальция (450 кг/м3) 198 x 40 x 20 | 1 |
24 | Силикат кальция (450 кг/м3) 1555 x 40 x 20 | 1 | 37 | Силикат кальция (870 кг/м3) 738 x 40 x 12 | 1 |
| Силикат кальция (450 кг/м3) 1605 x 273 x 20 | 1 | 38 | Силикат кальция (870 кг/м3) 1006 x 110 x 20 | 1 |
26 | Силикат кальция (450 кг/м3) 1565 x 530 x 20 | 1 | 39 | Силикат кальция (450 кг/м3) 502 x 52 x 20 | 1 |
27 | Силикат кальция (450 кг/м3) 157 x 60 x 20 | 1 | 40 | Силикат кальция (870 кг/м3) 502 x 40 x 12 | 1 |
28 | Силикат кальция (450 кг/м3) 1335 x 80 x 20 | 2 | 43 |  /Длина = 60 | 8 |
29 | Силикат кальция (450 кг/м3) 157 x 40 x 20 | 1 | 44 | | 3 |
30 | Силикат кальция (450 кг/м3) 1010 x 277 x 20 | 1 | | | |
Рисунок E.20, лист 2
Размеры в миллиметрах
Позиция | Описание | Количество |
22 | Силикат кальция (450 кг/м3) 1605 x 275 x 20 | 1 |
25 | Силикат кальция (450 кг/м3) 1605 x 273 x 20 | 1 |
30 | Силикат кальция (450 кг/м3) 1010 x 277 x 20 | 1 |
43 |  / L = 60 | 8 |
44 |  / L = 60 | 3 |
Рисунок E.21 - Тележка для образцов, обшивка, детали
компоновки (b)
Размеры в миллиметрах
Позиция | Описание | Количество |
A | Вид сзади | |
47 | Перфорированная стальная плита 1360 x 400 x 2 (см. 4.4.1) | 2 |
48 | Перфорированная стальная плита (см. 4.4.1) | 1 |
Рисунок E.22 - Тележка для образцов, обшивка, компоновка (c)
Размеры в миллиметрах
Позиция | Описание | Количество |
1 | Нижняя рама/гофрированная нержавеющая плита/t = 2 | 1 |
2 | Верхняя рама/гофрированная нержавеющая плита/t = 2 | 1 |
3 | Боковая плита 1/гофрированная нержавеющая плита/t = 2 | 1 |
4 | Боковая плита 2/гофрированная нержавеющая плита/t = 2 | 1 |
5 | Боковая плита 3/гофрированная нержавеющая плита/t = 2 | 1 |
6 | Боковая плита 4/гофрированная нержавеющая плита/t = 2 | 1 |
7 | Теплоизоляция/вермикулит, насыпная плотность 475 кг/м3/t = 50 | 4 |
Рисунок E.23 - Пример вытяжного зонта
Размеры в миллиметрах
Позиция | Описание | Количество |
C | Деталь 1 | |
1 | Вермикулит/Плотность 475 кг/м3 | |
2 | Опорная плита/Нержавеющая сталь/t = 2 мм | 1 |
3 | Фланец/Нержавеющая листовая сталь/  / t = 3 мм | 3 |
4 | Боковая плита/Нержавеющая сталь/t = 2 мм | 2 |
5 | Верхняя плита/Нержавеющая сталь/t = 2 мм | 1 |
| | ИС МЕГАНОРМ: примечание. Нумерация позиций дана в соответствии с официальным текстом документа. | |
|
7 | Задняя плита/Нержавеющая сталь/t = 2 мм | 1 |
8 | Плита из нержавеющей стали/500 x 500/t = 2 мм | 1 |
9 | Труба из нержавеющей стали/  / L = 50 мм | 1 |
10 | Труба из нержавеющей стали/  / t = 2 мм/ L = 50 мм | 1 |
11 | Минеральная вата | |
Рисунок E.24 - Коллектор, виды и разрезы
Размеры в миллиметрах
Позиция | Описание | Количество |
1 | Соединение между коллектором и вытяжным колпаком | |
2 | Измерение температуры | |
3 | Направляющая пластина | |
4 | Редукционное кольцо (нержавеющая сталь,  , толщина 2 мм) | |
5 | Зона измерений (  , T, дым, образец) | |
Рисунок E.25 - Вытяжная труба, проекция
Размеры в миллиметрах
Позиция | Описание | Количество |
1 | Термопары в чехле/TKI | 4 |
2 | Термозамок/MGW | 4 |
3 | Направление потока | |
Рисунок E.26 - Участок трубы для измерения температуры
Размеры в миллиметрах
Позиция | Описание | Количество |
1 | Труба/Нержавеющая сталь 304/  / t = 2 мм/ L = 1625 мм | 1 |
2 | Теплоизоляция/Минеральная вата/t = 50 мм | 1 |
3 | Труба/Оцинкованная сталь/  / t = 2 мм/ L = 1625 мм | 1 |
4 | Фланец/внутр.  /наруж.  / t = 5 мм | 2 |
5 | Направляющая пластина/Нержавеющая сталь/304/t = 3 мм/L = 630 мм, h = 1575 мм | 8 |
6 | Редукционное кольцо/Нержавеющая сталь,  ,  /толщина 2 мм | 1 |
Рисунок E.27 - Участок измерительной трубы,
направляющие пластины
Размеры в миллиметрах
Позиция | Описание |
1 | Сталь листовая, оцинкованная 1 мм |
2 | Минеральная вата 159 |
3 | Нержавеющая сталь 304 - 2 мм |
4 | Фланец из нержавеющей стали 4 м, 12 отверстий  при  |
5 | Направление потока |
Рисунок E.28 - Вытяжная труба, общий измерительный участок
Размеры в миллиметрах
Позиция | Описание | Количество |
1 | Двунаправленный зонд | 1 |
Рисунок E.29 - Участок измерительной трубы,
двунаправленный зонд (a)
Размеры в миллиметрах
Позиция | Описание | Количество |
1 | Трубка из нержавеющей стали/  / L = 32 мм/ t = 0,91 мм | 1 |
2 | Трубка из нержавеющей стали/  | 2 |
3 | Сварка | |
Рисунок E.30 - Участок измерительной трубы,
двунаправленный зонд (b)
Размеры в миллиметрах
Позиция | Описание | Количество |
1 | Открытый конец | |
2 | Закрытый конец | |
3 | Пробоотборник газа/  / L = 500 мм | 1 |
Рисунок E.31 - Участок измерительной трубы,
пробоотборник газа и термопары
Размеры в миллиметрах
Позиция | Описание | Количество |
1 | Сильфон (непрозрачный) | |
Рисунок E.32 - Участок измерительной трубы, держатель
системы для измерения плотности дыма
Размеры в миллиметрах
Позиция | Описание | Количество |
2 | Стальная лента/  / t = 1,5 мм/ b = 100 мм | 2 |
3 | Винт и гайка из нержавеющей стали/M10/L = 40 мм | 2 |
4 | Труба из нержавеющей стали/  /46,3/ L = 117 | 1 |
7 | Сварка | |
Рисунок E.33 - Участок измерительной трубы, части системы
для измерения плотности дыма
Размер в миллиметрах
Позиция | Описание | Количество |
1 | Уплотнительное кольцо с обеих сторон стекла | |
2 | Зазор | |
3 | Стекло с покрытием + (дополнительно) фильтр <*> | |
<*> Если используется фильтр, он всегда должен быть защищен от возможных вредных газов с помощью стекла с покрытием (вдали от вытяжного шкафа). |
Рисунок E.34 - Участок измерительной трубы, крепление
установки для измерения плотности дыма (общий)
Размеры в миллиметрах
Позиция | Описание | Количество |
1 | Стекло с покрытием | |
2 | (Дополнительно) Фильтр | |
3 | Резиновые уплотнительные кольца | |
Рисунок E.35 - Участок измерительной трубы, крепление
установки для измерения плотности дыма (детали)
(справочное)
ФОРМАТ ФАЙЛА С ДАННЫМИ ИСПЫТАНИЙ
Для удобства обмена результатами испытаний данные испытаний должны сохраняться в едином формате. Основная цель заключается в том, чтобы файл содержал всю необходимую информацию, включая визуально наблюдаемые/записанные и автоматически зарегистрированные данные. Должна быть обеспечена возможность проведения всех необходимых расчетов и (вместе с остальными результатами испытания) классификации испытуемых образцов.
Данные испытаний должны сохраняться в файле с кодировкой ASCII в 12 графах, разделенных табуляторами. Большее количество граф (с необязательными данными) возможно, если эти графы размещены после, а не между обязательными графами с данными.
Файл должен содержать двухстрочный заголовок и дополнительные строки с общей информацией и автоматически записанными (необработанными) данными в зависимости от времени.
Первая строка заголовка содержит заголовки граф:
a) общая информация;
b) пустая;
c) время, с;
d) mгаз, мг/с;
e)

, Па;
f) фотометрический сигнал, %;
g) xO2, %;
h) xCO2, %;
i) T0, К;
j) T1, К;
k) T2, К;
l) T3, К.
Вторая строка не регламентирована (пустая строка по умолчанию).
Последующие строки содержат общую информацию в первых двух графах и автоматически записанные (необработанные) данные в следующих 10 графах. В графах 1 и 2 используются только первые 62 строки. В графах 3 - 12 используются не менее 520 строк (интервал времени 1560 с, шаг 3 с).
Общую информацию (по испытанию, строительному материалу, лаборатории, испытательному оборудованию, начальным и конечным условиям и визуальному контролю) указывают в графе 2, при этом в графе 1 содержится информация о том, что должно быть указано в графе 2. Порядок размещения различных пунктов приведен в
примере ниже.
10 граф с автоматически записанными данными соответствуют
8.4 и указаны в последовательности, приведенной в
8.4.
Приведенный ниже формат файла данных относится к необработанным данным (до проведения расчетов). Для обработанных данных формат файла не задается. Однако рекомендуется файл с обработанными данными создавать из файла с необработанными данными путем добавления граф и строк в конце (не между имеющимися графами). Таким образом, файл с обработанными данными может быть использован как исходный файл с необработанными данными.
| | Графа 2 |
Строка | Общая информация | |
1 | | |
2 | | |
3 | Испытание | |
4 | Используемый стандарт | ДИН ЕН 13823:2015 |
5 | Дата испытания | 9 июня 2011 |
6 | Полная продолжительность испытания/выполнено (Да/Нет) | Да |
7 | | |
8 | Строительный материал | |
9 | Наименование материала | Полипанель U40 |
10 | Номер образца | 1 |
11 | Подложка | Нет |
12 | Крепление | Вариант 3 по ЕН ... |
13 | Места соединения (швы) | Обычный вертикальный |
14 | |
15 | Кондиционирование |
16 | {Постоянная масса/фиксированная продолжительность} | Постоянная масса |
17 | Продолжительность | 42 ч |
18 | Масса 1 (г) | 5 264 |
19 | Масса 2 (г) | 5 261 |
20 | | |
21 | Лаборатория | |
22 | Название лаборатории | NMP |
23 | Испытатель | BS |
24 | Имя файла | PU40Ar.csv |
25 | Номер отчета | NMP-99-01234 |
26 | | |
27 | Характеристики измерительных устройств | |
28 | Коэффициент профиля потока kt(-) | 0,86 |
29 | Константа зонда для измерения давления  | 1,08 |
30 | Диаметр трубы (м) | 0,315 |
31 | Время запаздывания анализатора O2 согласно градуировке (с) | 18 |
32 | Время запаздывания анализатора CO2 согласно градуировке (с) | 15 |
33 | | |
34 | Условия окружающей среды перед испытанием | |
35 | Давление (Па) | 101 300 |
36 | Относительная влажность (%) | 50 |
37 | Температура окружающей среды (°C) | 24,7 |
38 | Визуальные наблюдения | |
39 | Боковое распространение пламени до края (Да/Нет) | Нет |
40 | Образование горящих капель/обломков <= 10 с (Да/Нет) | Нет |
41 | Образование горящих капель/обломков > 10 с (Да/Нет) | Нет |
42 | | |
43 | Условия в конце испытания | |
44 | Светопропускание (%) | 99,8 |
45 | xO2 (%) | 20,95 |
46 | xCO2 (%) | 0,039 |
47 | | |
48 | Зарегистрированные события | |
49 | Поверхностное пламя (Да/Нет) | Нет |
50 | Падение частей образца (Да/Нет) | Нет |
51 | Дым вне вытяжной трубы (Да/Нет) | Нет |
52 | Взаимная фиксация закрывающих плит не удалась (Да/Нет) | Нет |
53 | Условия, оправдывающие преждевременное прекращение испытания (Да/Нет) | Нет |
54 | Деформация/разрушение (Да/Нет) | Нет |
55 | Другие дополнительные события | Не было |
56 | | |
57 | Преждевременное завершение испытания | |
58 | Время отключения подачи газа (с) | 1 563 |
59 | Чрезмерная интенсивность тепловыделения HRR (Да/Нет) | Нет |
60 | Чрезмерная температура (Да/Нет) | Нет |
61 | Серьезное повреждение горелки/засоренность (Да/Нет) | Нет |
62 | Отказ испытательного оборудования (Да/Нет) | Нет |
(справочное)
Общие сведения |
Испытатель: | Дата испытания: |
Строительный материал: | Идентификатор протокола: |
|
Условия перед испытанием |
Кондиционирование образца | Дата начала: | Дата окончания: |
Масса 1 (г): | Масса 2 (г): |
Условия окружающей среды | Давление (Па): | Влажность воздуха (% H2O): |
|
Визуальные наблюдения |
Общие наблюдения и замечания: | | Боковое распространение пламени |
Наблюдение | Время, с | Наблюдение | Да/Нет |
Начало записи данных | 0 | До кромки образца | |
Розжиг основной горелки | | |
| | Горящие капли или падение обломков |
| | Наблюдение | Да/Нет |
| | Горящие капли/обломки <= 10 с | |
| | Горящие капли/обломки > 10 с | |
| | | |
|
Условия в конце испытания |
Светопропускание (мВ): | Концентрация O2, %: | Концентрация CO2, %: |
|
Примечания |
Рисунок G.1 - Протокол SBI-испытания
(справочное)
СВЕДЕНИЯ О СООТВЕТСТВИИ ССЫЛОЧНЫХ ЕВРОПЕЙСКИХ СТАНДАРТОВ
НАЦИОНАЛЬНЫМ СТАНДАРТАМ
Таблица ДА.1
Обозначение ссылочного европейского стандарта | Степень соответствия | Обозначение и наименование соответствующего национального стандарта |
EN 13238 | - | |
EN 13501-1:2007+A1:2009 | IDT | ГОСТ Р 59137-2020 "Классификация пожарной опасности строительных материалов и конструкций. Часть 1. Классификация на основе результатов испытаний по определению реакции на огонь" |
EN 60584-1:1995 | - | |
EN ISO 13943:2000 | - | |
<*> Соответствующий национальный стандарт отсутствует. До его принятия рекомендуется использовать перевод на русский язык международного стандарта. Примечание - В настоящей таблице использовано следующее условное обозначение степени соответствия стандарта: - IDT - идентичный стандарт. |
| ISO 5725-1:1994 | Accuracy (trueness and precision) of measurement methods and results - Part 1: General principles and definitions (Точность (правильность и прецизионность) методов и результатов измерений. Часть 1. Общие принципы и определения) |
| ISO 5725-2:1994 | Accuracy (trueness and precision) of measurement methods and results - Part 2: Basic method for the determination of repeatability and reproducibility of a standard measurement method (Точность (правильность и прецизионность) методов и результатов измерений. Часть 2. Основной метод определения повторяемости и воспроизводимости стандартного метода измерения) |
| ISO 3966:2008 | Measurement of fluid flow in closed conduits - Velocity area method using Pitot static tubes (Измерение расхода жидкости в закрытых каналах. Метод расчета площади эпюры скорости с применением трубок Пито) |
УДК 614.841.1:006.354 | |
Ключевые слова: строительные материалы, пожарная опасность, метод испытаний, интенсивность тепловыделения, интенсивность дымообразования |