Скачать Типовой проект 902-2-451.88 Здание решеток с 3 механизированными решетками РМУ-3Б с дроблением отбросовДата актуализации: 01.01.2021 Типовой проект 902-2-451.88
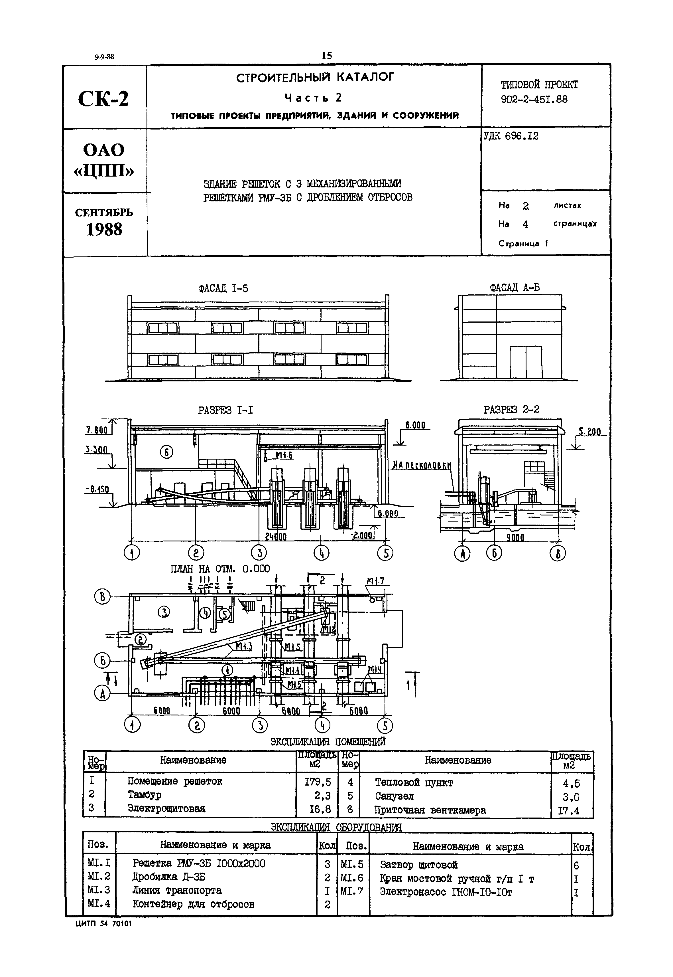
Здание решеток с 3 механизированными решетками РМУ-3Б с дроблением отбросов| Обозначение: | Типовой проект 902-2-451.88 | | Обозначение англ: | 902-2-451.88 | | Статус: | не определен законодательством | | Название рус.: | Здание решеток с 3 механизированными решетками РМУ-3Б с дроблением отбросов | | Дата добавления в базу: | 01.09.2013 | | Дата актуализации: | 01.01.2021 | | Дата введения: | 01.09.1988 | | Дата окончания срока действия: | 30.06.2003 |
  
|