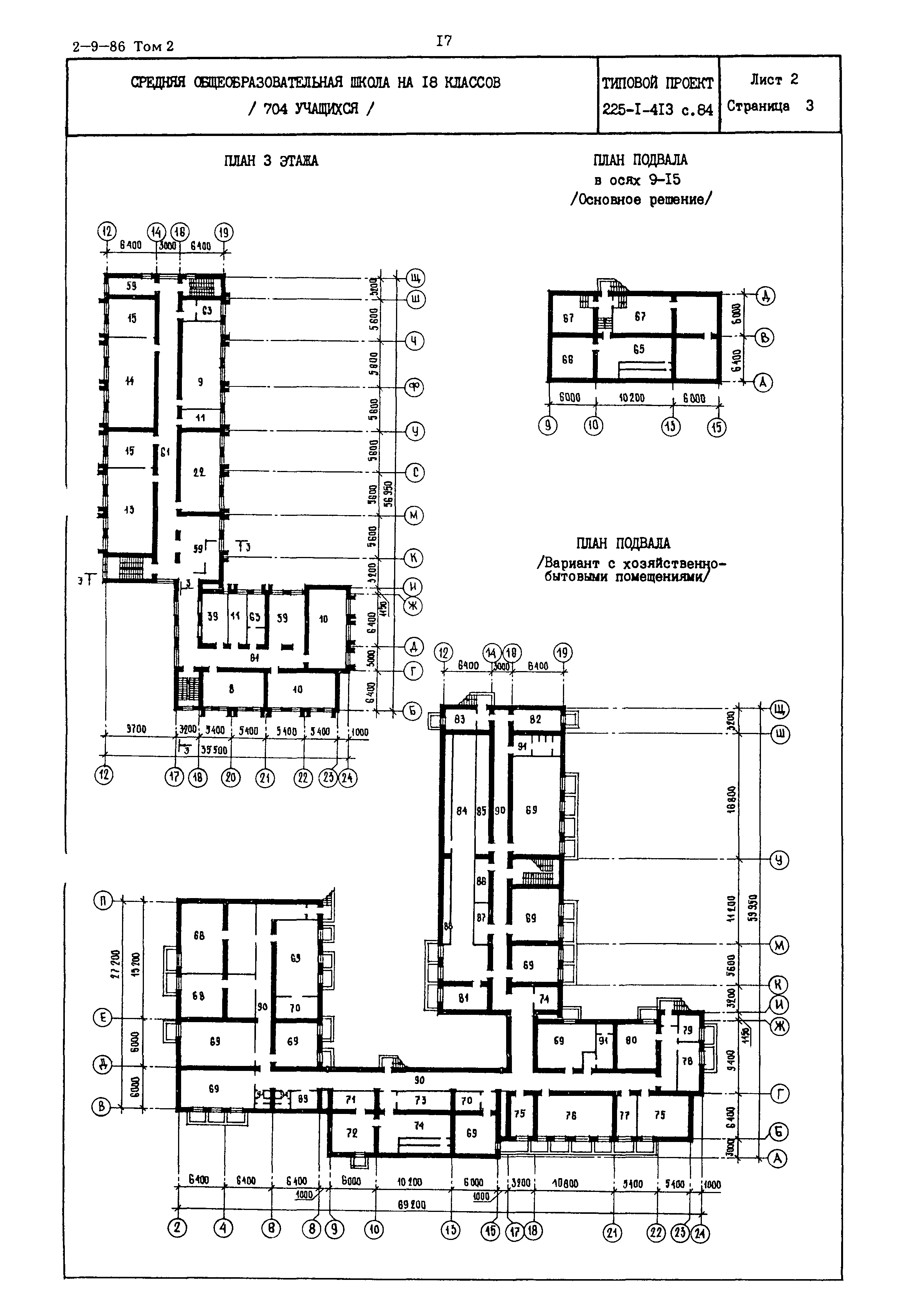
Скачать Типовой проект 225-1-413с.84 Средняя общеобразовательная школа на 18 классов (704 учащихся)Дата актуализации: 01.01.2021
|
| Обозначение: | Типовой проект 225-1-413с.84 |
| Обозначение англ: | 225-1-413с.84 |
| Статус: | действует |
| Название рус.: | Средняя общеобразовательная школа на 18 классов (704 учащихся) |
| Дата добавления в базу: | 01.10.2014 |
| Дата актуализации: | 01.01.2021 |
| Дата введения: | 25.10.1985 |







