Скачать Типовой проект 222-1-481.86 Школа на 22 класса (834 - 864 учащихся) в конструкциях серии 1.020-1/83Дата актуализации: 01.01.2021 Типовой проект 222-1-481.86
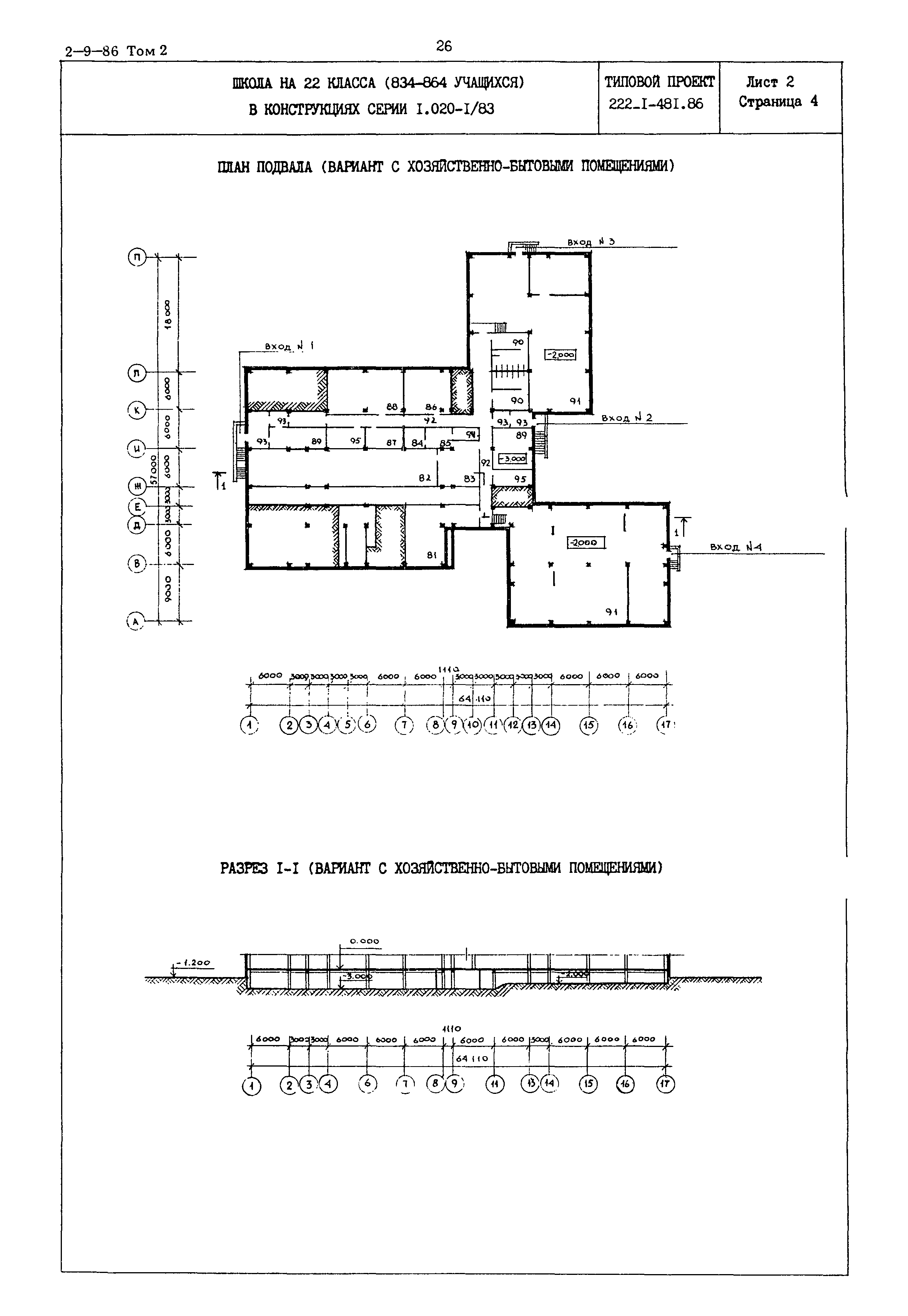
Школа на 22 класса (834 - 864 учащихся) в конструкциях серии 1.020-1/83| Обозначение: | Типовой проект 222-1-481.86 | | Обозначение англ: | 222-1-481.86 | | Статус: | не определен законодательством | | Название рус.: | Школа на 22 класса (834 - 864 учащихся) в конструкциях серии 1.020-1/83 | | Дата добавления в базу: | 01.10.2014 | | Дата актуализации: | 01.01.2021 | | Дата введения: | 10.04.1986 | | Дата окончания срока действия: | 30.06.2003 |
      
|