Скачать Типовой проект 254-5-35.86 Станция скорой медицинской помощи для обслуживания сельского населения на 16 тыс. выездов в год (со стенами из кирпича)Дата актуализации: 01.01.2021 Типовой проект 254-5-35.86
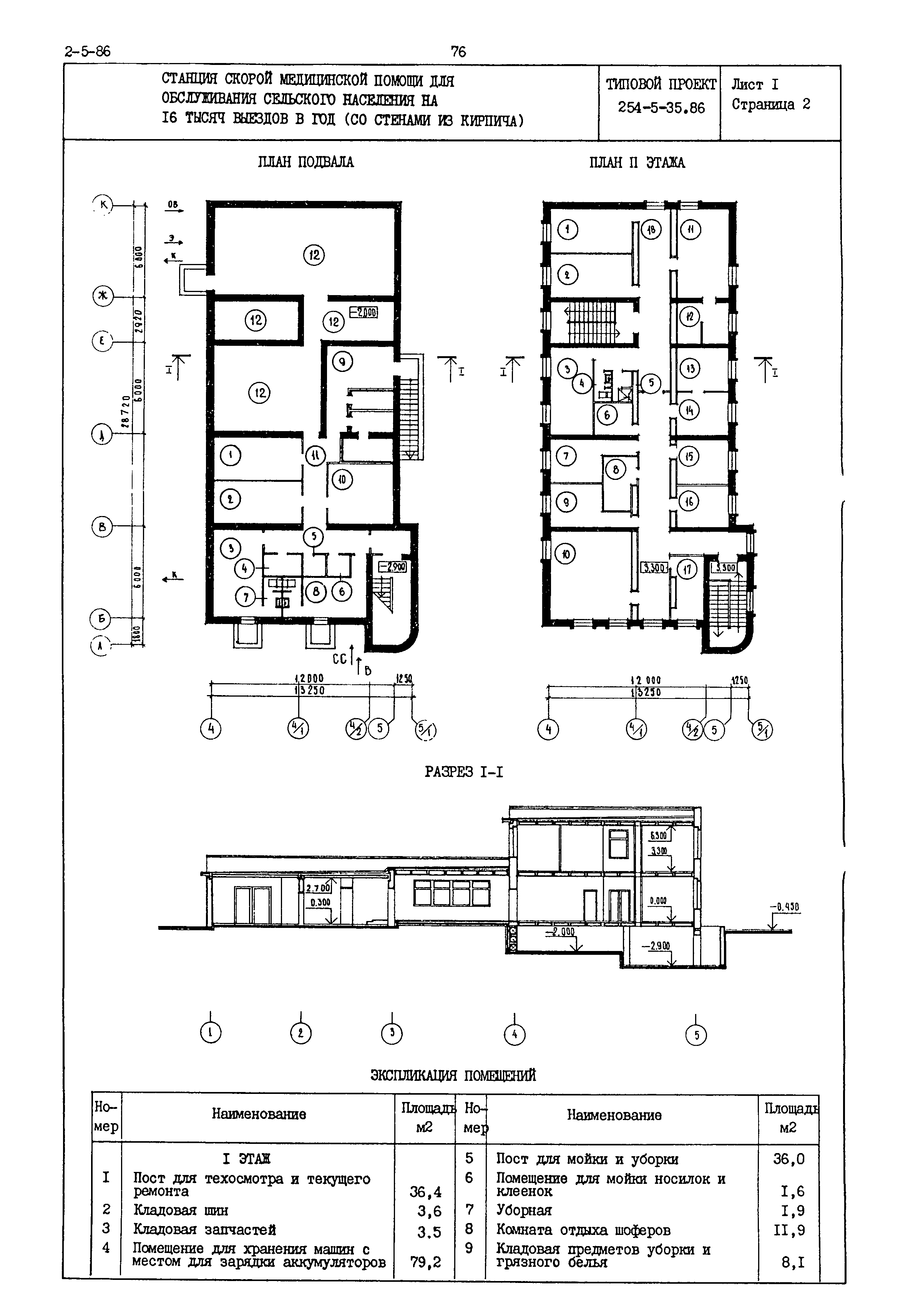
Станция скорой медицинской помощи для обслуживания сельского населения на 16 тыс. выездов в год (со стенами из кирпича)| Обозначение: | Типовой проект 254-5-35.86 | | Обозначение англ: | 254-5-35.86 | | Статус: | не определен законодательством | | Название рус.: | Станция скорой медицинской помощи для обслуживания сельского населения на 16 тыс. выездов в год (со стенами из кирпича) | | Дата добавления в базу: | 01.10.2014 | | Дата актуализации: | 01.01.2021 | | Дата введения: | 12.09.1985 | | Дата окончания срока действия: | 30.06.2003 |
   
|