Скачать Типовой проект 213-1-335.85 Детские ясли-сад на 95 мест со стенами из мелких ячеистобетонных блоковДата актуализации: 01.01.2021
|
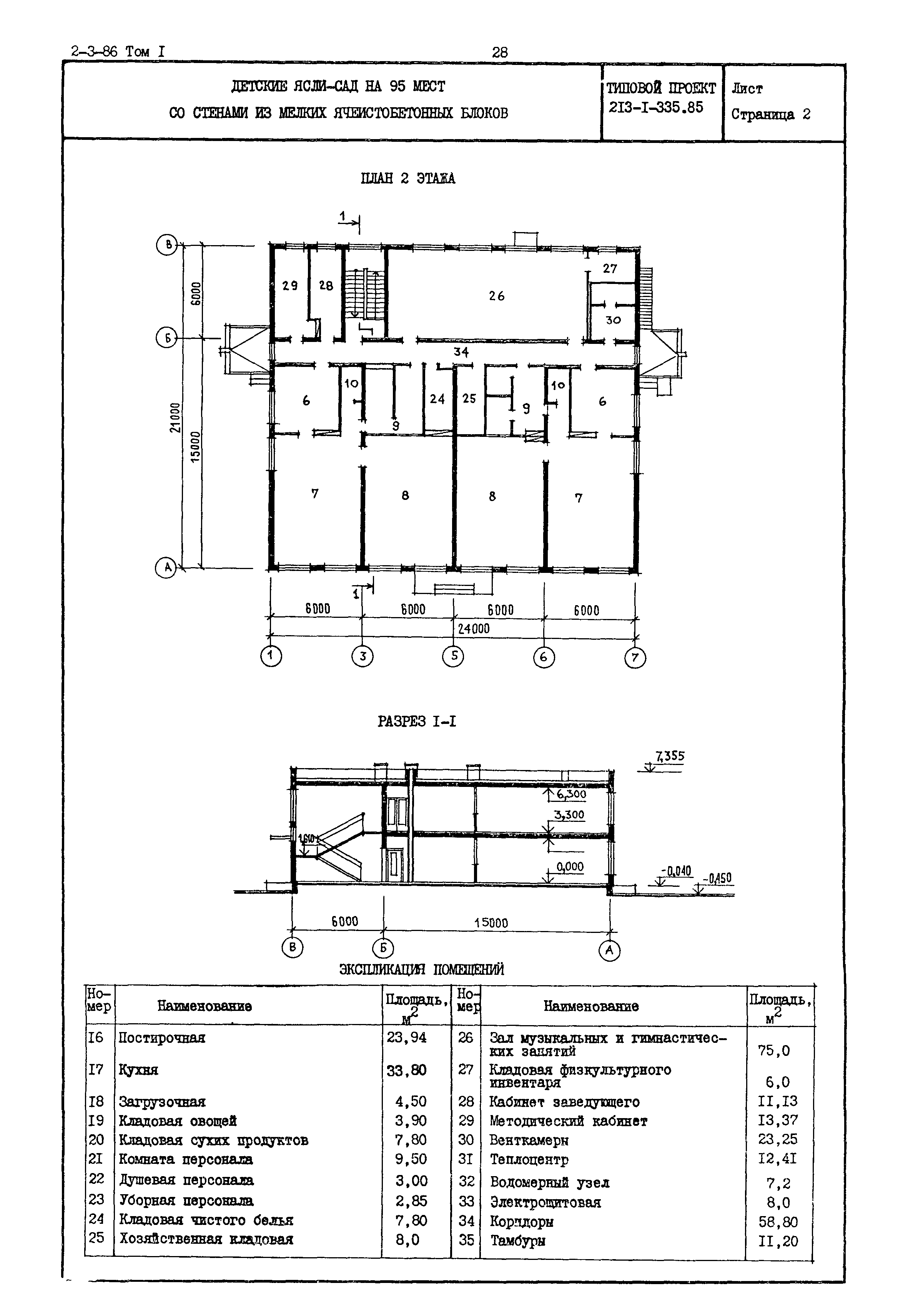
| Обозначение: | Типовой проект 213-1-335.85 |
| Обозначение англ: | 213-1-335.85 |
| Статус: | действует |
| Название рус.: | Детские ясли-сад на 95 мест со стенами из мелких ячеистобетонных блоков |
| Дата добавления в базу: | 01.10.2014 |
| Дата актуализации: | 01.01.2021 |
| Дата введения: | 01.02.1985 |



