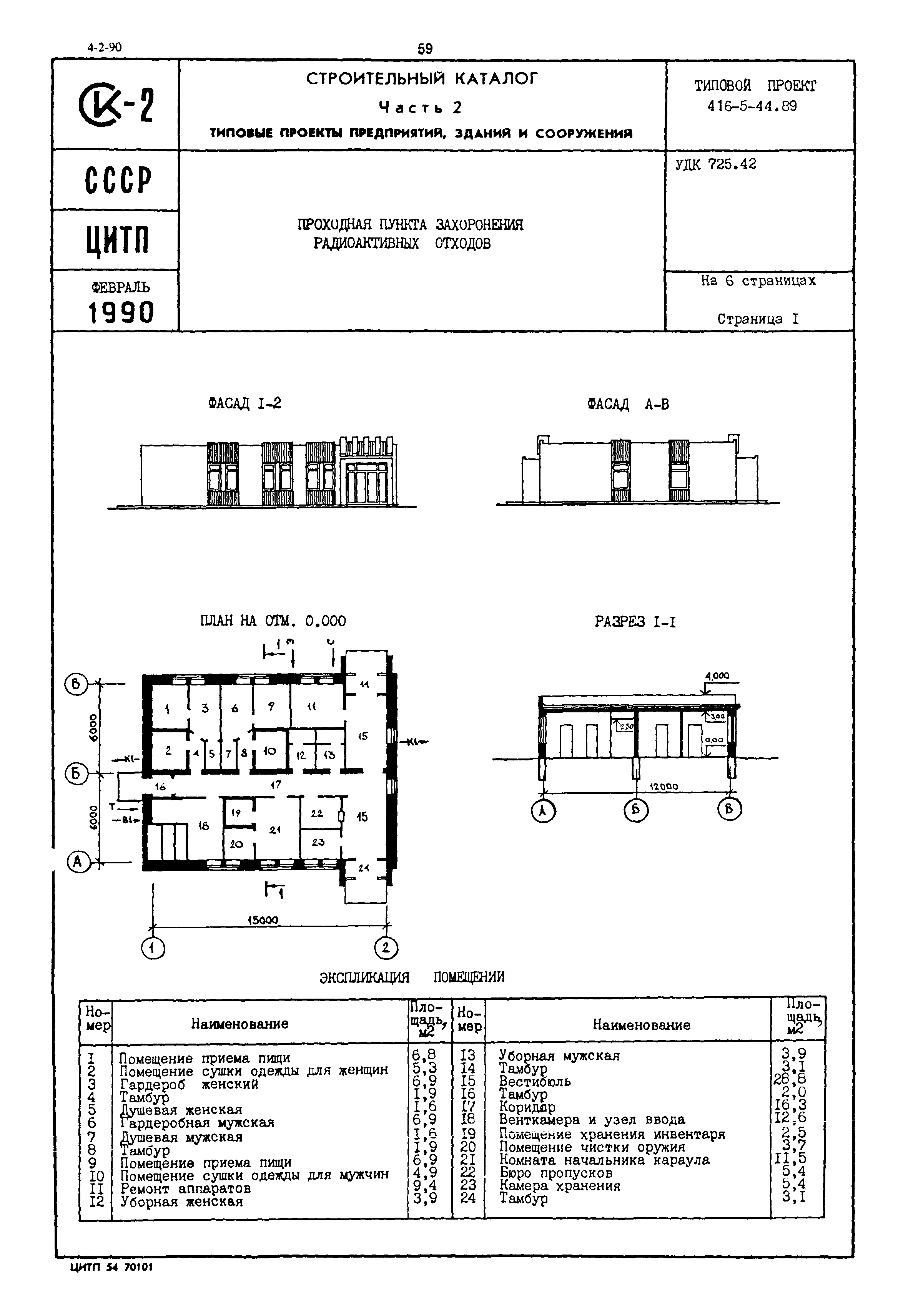
Скачать Типовой проект 416-5-44.89 Проходная пункта захоронения радиоактивных отходовДата актуализации: 01.01.2021
|
| Обозначение: | Типовой проект 416-5-44.89 |
| Обозначение англ: | 416-5-44.89 |
| Статус: | не определен законодательством |
| Название рус.: | Проходная пункта захоронения радиоактивных отходов |
| Дата добавления в базу: | 01.02.2020 |
| Дата актуализации: | 01.01.2021 |
| Дата введения: | 14.07.1989 |
| Дата окончания срока действия: | 30.06.2003 |
| Область применения: | Проходная предназначена для охраны территории пункта захоронения радиоактивных отходов, пропуска рабочих и служащих и включает в себя следующие помещения: конторские, бытовые и служебные |





